Jacqueline Riel - Spring 24 Architecture & Design Portfolio

Page 1

architecture & design portfolio

jacqueline riel

01 03 02 04

hollow haven field study arcadia graphics

fall 2023 summer 2023 spring 2024 fall 2022

syracuse university

contents

programs used:

Rhino

Illustrator

InDesign

Photoshop

Enscape

Climate Consultant

05 07 06 08

health + wellness hostel greentide case studies arboreal retreat

spring 2023

spring 2024 spring 2023

fall 2023

hollow haven

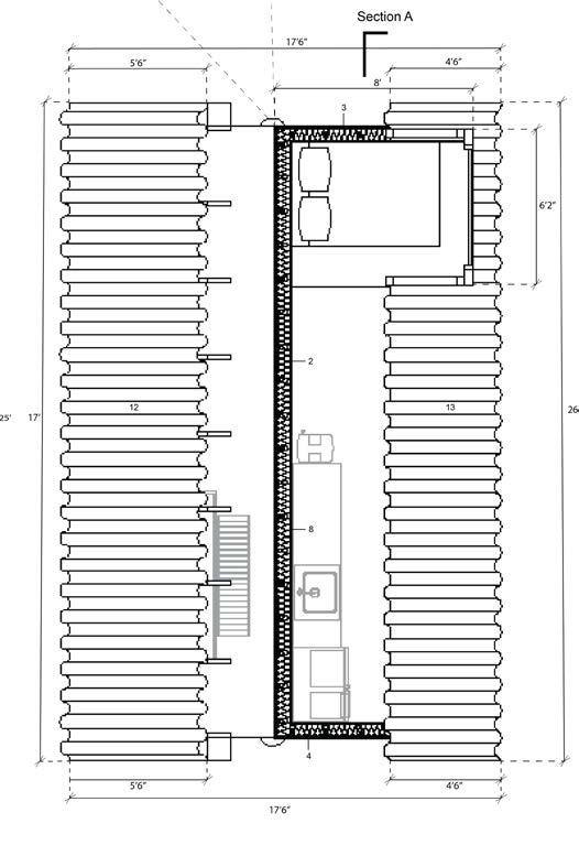
Hollow Haven aims to establish a harmonious community center and Airbnb destination in the picturesque Labrador Hollow, New York. Nestled near a gliding launch port, this retreat will serve as a haven for hikers, nature enthusiasts, the local community, and yoga lovers alike. At the heart of this project is the integration of the natural beauty of the Labrador Hollow area. Hiking trails culminate at the site, rewarding visitors with panoramic views of the surrounding landscape and the communal amenities. A central walkway serves as the spine with platforms that connect the various amenities; communal kitchen, communal dining, outdoor seating, a yoga multipurpose studio, lockers, and shared bedrooms.

08
Professor Parga 207

exterior rendering

interior rendering of yoga studio

Professor Parga 207
physical model

Field Studies: Galapagos

Prompts given were to observe the wildlife, consider the emerging enviromental changes both short and long term, and develop designs to solve the issues at hand. Ideas were presented to local environmentalists, architects and public officials. Field studies took place in San Cristobal and Santa Cruz.

02
pre-intervention

a kind of boardwalk to mitigate water impact on the seawall to protect wildlife from getting injured from the harsh tides against the wall haul off haven

haul off provides for the interaction between humans and non humans; a viewing port inabitable by both

Professor Brown & Czernaik 500

tortise trench

a trench to allow an underpass for tortises without disturbing traffic, increasing safety for wildilife on thier migration routes; the trench doubles as a filter system for the surrounding farmland, providing water for vegetation

Professor Brown & Czernaik 500

arcadia

Through the exploration of the 80’s nostalgia subculture and the popular gaming consoles that came about, this was a project focused on the themes of interactivity, escapism, organization, and simplicity. Rooms were transformed ergonomically and systematically to encase communal, individual, and hybridized consoles. Users of the space are led around the pavillion to communicate, interact, or seclude themselves from one another, depending on what console they decide to use. The juxtaposition of this pavillion within shrubery establishes the idea of technology being one with nature, deviating from an original arcades purpose, hence the title arcadia (greek for being in harmony with nature).

03
Professor Pediredla 107

logo illustration

04
infographics

health + wellness hostel

Locacted on the Corner of South Crouse Avenue and East Genessee Street, Health and Wellness Hostel is based on a series of unit aggregations, their part to part relationships, and the way in which these part to parts permeate on a grid system. To achieve this, the space is split into two wings; intrapersonal health (containing individual and group rooms) and collective wellness (communal spaces - gym, multipurpose room, and cafe). To further the idea of health and wellness, pockets of breath or communal balconies are scattered throughout each floor. The overall stepped alignment of the hostel is influenced by the centralized placement of the entrance and the emphasis of the split wings. Some ornamentation details that allude to the unit shape is the ribbed concrete carved along the rounded edges of the rooms, giving insight to the logic of the units and the way they interlock.

05
Professor Fayyad 108
floor
ground
first floor
second
floor

WELLNESS HOSTEL

WELLNESS HOSTEL

and

To further the or communal balconies stepped alignment of the placement of the entrance and the details that allude to the the rounded edges of the the way they interlock.

Locacted on the Corner of South Crouse Avenue and East Genessee Street, Yostel is based on a series of unit aggregations, their part to part relationships, and the way in which these part to parts permeate on a grid system. To achieve this, the space is split into two wings; intrapersonal health (containing individual and group rooms) collective wellness (communal spaces - gym, multipurpose room, and cafe). To further the idea of health and wellness, pockets of breath or communal balconies are scattered throughout each floor. The overall stepped alignment of the hostel is influenced by the centralized placement of the entrance and the emphasis of the split wings. Some ornamentation details that allude to the unit shape is the ribbed concrete carved along the rounded edges of the rooms, giving insight to the logic of the units and the way they interlock.

structural climate material analysis

(june 12pm)

winter solstice sun (december 12pm) wind

horizonal structure (dead load) primary vertical structure (dead load)

WELLNESS HOSTEL

CITATIONS:

Locacted on the Corner of South Crouse Avenue and East Genessee Street, Yostel is based on a series of unit aggregations, their part to part relationships, and the way in which these part to parts permeate on a grid system. To achieve this, the space is split into two wings; intrapersonal health (containing individual and group rooms) and collective wellness (communal spaces - gym, multipurpose room, and cafe). To further the idea of health and wellness, pockets of breath or communal balconies are scattered throughout each floor. The overall stepped alignment of the hostel is influenced by the centralized placement of the entrance and the emphasis of the split wings. Some ornamentation details that allude to the unit shape is the ribbed concrete carved along the rounded edges of the rooms, giving insight to the logic of the units and the way they interlock. CITATIONS:

benefits of double glazed glass include insulation for both cold and warm weather, lower energy bills, and noise reduction; especially since this building is located on a busy street (passive system)

benefits of double glazed glass include insulation for both cold and warm weather, lower energy bills, and noise reduction; especially since this building is located on a busy street (passive system)

HEALTH AND WELLNESS HOSTEL

HEALTH AND WELLNESS HOSTEL

benefits of double glazed glass include insulation for both cold and warm weather, lower energy bills, and noise reduction; especially since this building is located on a busy street (passive system)

Overall building image / site plan / axon

(include annotations and captions)

Overall building image / site plan / axon (include annotations and captions)

NEW

HOSTEL

WELLNESS HOSTEL

benefits of concrete include thermal mass and durability: thermal mass during the winter soltice to help maintain internal temperature and durability for longevity of the structure (passive system)

benefits of concrete include thermal mass and durability: thermal mass during the winter soltice to help maintain internal temperature and durability for longevity of the structure (passive system)

system)

benefits of concrete include thermal mass and durability: thermal mass during the winter soltice to help maintain internal temperature and durability for longevity of the structure (passive system)

NEW YORK YOUTH HOSTEL

DESIGN INTENT

1. “Climate Consultant.” Climate Consultant | Society of Building Science Educators https://www.sbse.org/resources/climate-consultant

HOSTEL SPRING

2. “Climatestudio.” Solemma https://www.solemma.com/climatestudio.

3. “Fluted

Genessee part to part on a grid intrapersonal wellness further the balconies alignment of the entrance and the allude to the edges of the interlock.

1. “Climate Consultant.” Climate Consultant Society of Building Science Educators

Locacted on the Corner of South Crouse Avenue and East Genessee Street, Yostel is based on a series of unit aggregations, their part to part relationships, and the way in which these part to parts permeate on a grid system. To

and East Genessee aggregations, their part to part permeate on a grid wings; intrapersonal collective wellness cafe). To further the communal balconies stepped alignment of the the entrance and the details that allude to the rounded edges of the way they interlock.

Norwich Glass https://www.norwich-glass.co.uk/product/4mm-double-glazed-tough

3. “Fluted Natural Stone Bathroom Tiles: Il Granito.” Fluted natural stone bathroom tiles | Il Granito. https://www.norwich-glass.co.uk/product/4mm-double-glazed-toughened-glass/.

and East Genessee their part to part permeate on a grid wings; intrapersonal collective wellness cafe). To further the communal balconies alignment of the entrance and the that allude to the rounded edges of the they interlock.

benefits of double glazed glass include insulation for both cold and warm weather, lower energy bills, and noise reduction; especially since this building is located on a busy street (passive

Genessee part grid intrapersonal wellness the balconies the

pockets of breath or communal balconies are scattered throughout each floor. The overall stepped alignment of the hostel is influenced by the centralized placement of the entrance and the emphasis of the split wings. Some ornamentation details that allude to the unit shape is the ribbed concrete carved along the rounded edges of the rooms, giving insight to the logic of the units and the way they interlock.

wellness, pockets of breath or communal balconies are scattered throughout each floor. The overall stepped alignment of the hostel is influenced by the centralized placement of the entrance and the emphasis of the split wings. Some ornamentation details that allude to the unit shape is the ribbed concrete carved along the rounded edges of the rooms, giving insight to the logic of the units and the way they interlock.

benefits of concrete include thermal mass and durability: thermal mass during the winter soltice to help maintain internal temperature and durability for longevity of the structure (passive

benefits of double glazed glass include insulation for both cold and warm weather, lower energy bills, and noise reduction; especially since this building is located on a busy street (passive system)

(june 12pm)

(december 12pm)

windows (dead

1. “Climate Consultant.” Climate Consultant Society of Building Science Educators https://www.sbse.org/resources/climate-consultant

CITATIONS: 1. “Climate Consultant.” Climate Consultant | Society of Building Science Educators https://www.sbse.org/resources/climate-consultant

2. “Climatestudio.” Solemma https://www.solemma.com/climatestudio.

2. “Climatestudio.” Solemma https://www.solemma.com/climatestudio.

benefits of concrete include thermal mass and durability: thermal mass during the winter soltice to help maintain internal temperature and durability for longevity of the structure (passive system)

3. “Fluted Natural Stone Bathroom Tiles: Il Granito.” Fluted natural stone bathroom tiles Il Granito. https://www.ilgranito.be/collection/fluted-tiles?lid=62

3. “Fluted Natural Stone Bathroom Tiles: Il Granito.” Fluted natural stone bathroom tiles Il Granito. https://www.ilgranito.be/collection/fluted-tiles?lid=62

4. “4mm Double Glazed Toughened Glass.” Norwich Glass https://www.norwich-glass.co.uk/product/4mm-double-glazed-toughened-glass/.

4. “4mm Double Glazed Toughened Glass.” Norwich Glass https://www.norwich-glass.co.uk/product/4mm-double-glazed-toughened-glass/.

solid and slab structural system a section a gravitational force gravitational force sun is drastically lower during the winter compared to the summer, surrounding buildings effect the incoming winds, mitigating its impact on the structure gravitational force snow/ice/rain open windows during summer to allow ventilation snow/ice/rain 70° 24° winter soltice wind
Genessee part grid intrapersonal wellness further the balconies of the and the to the of the interlock. solid and slab structural system unit a section a gravitational force gravitational force sun is drastically lower during the winter compared to the summer, surrounding buildings effect the incoming winds, mitigating its impact on the structure gravitational force snow/ice/rain open windows during summer to allow ventilation snow/ice/rain 70° 24° winter soltice wind S
HOSTEL DESIGN INTENT Locacted on the Corner of South Crouse Avenue and East Genessee Street, Yostel is based on a series of unit aggregations, their part to part relationships, and the way in which these part to parts permeate on a grid system. To achieve this, the space is split into two wings; intrapersonal health (containing individual and group rooms) and collective wellness (communal spaces - gym, multipurpose room, and cafe). To further the idea of health and wellness, pockets of breath or communal balconies are scattered throughout each floor. The overall stepped alignment of the hostel is influenced by the centralized placement of the entrance and the emphasis of the split wings. Some ornamentation details that allude to the unit shape is the ribbed concrete carved along the rounded edges of the rooms, giving insight to the logic of the units and the way they interlock. benefits of concrete include thermal mass and durability: thermal mass during the winter soltice to help maintain internal temperature and durability for longevity of the structure (passive system) benefits of double glazed glass include insulation for both cold and warm weather, lower energy bills, and noise reduction; especially since this building is located on a busy street (passive system) solid and slab structural system base unit Overall building image / site plan / axon (include annotations and captions) CITATIONS: 1. “Climate Consultant.” Climate Consultant Society of Building Science Educators https://www.sbse.org/resources/climate-consultant 2. “Climatestudio.” Solemma https://www.solemma.com/climatestudio. 3. “Fluted Natural Stone Bathroom Tiles: Il Granito.” Fluted natural stone bathroom tiles Il Granito. https://www.ilgranito.be/collection/fluted-tiles?lid=62 4. “4mm Double Glazed Toughened Glass.” Norwich Glass https://www.norwich-glass.co.uk/product/4mm-double-glazed-tough SYRACUSE, NEW YORK YOUTH HOSTEL b a winter solstice wind and sun path section a gravitational force sun is drastically lower during the winter compared to the summer, surrounding buildings effect the incoming winds, mitigating its impact on the structure intense winds mainly emitted from the west, low sun (24°) gravitational force 24° glazed windows (dead load) summer solstice sun (june 12pm) live loads winter solstice sun (december 12pm) wind primary horizonal structure (dead load) primary vertical structure (dead load) secondary vertical structure (dead load) S glazing visiblelight Avenue and East Genessee aggregations, their part to part parts permeate on a grid two wings;
wellness
Science Educators stone bathroom tiles |
Granito. https://www.norwich-glass.co.uk/product/4mm-double-glazed-toughened-glass/. summer solstice wind and sun path section b a section a gravitational force gravitational force sun is drastically lower during the winter compared to the summer, surrounding buildings effect the incoming winds, mitigating its impact weaker winds compared to winter, high sun gravitational force 24° load) S E
HEALTH AND WELLNESS
intrapersonal and collective
cafe).
Il
SPRING DESIGN INTENT Locacted on the Corner of South Crouse Avenue and East Genessee Street, Yostel is based on a series of unit aggregations, their part to part relationships,
the way in which these part to parts permeate on a grid system. To achieve this, the space is split into two wings; intrapersonal health (containing individual and group rooms) and collective wellness (communal spaces - gym, multipurpose room, and cafe). To further the idea of health and
benefits of double glazed glass include insulation for both cold solid and slab structural system base unit
and
ribbed concrete 3 SYRACUSE,
summer solstice wind and sun path section b winter solstice gravitational force gravitational force sun is drastically lower during the winter compared to the summer, surrounding buildings effect the incoming winds, mitigating its impact on the structure weaker winds compared to winter, high sun (70°) intense winds open windows during summer to allow ventilation snow/ice/rain glazed
load) summer solstice sun
live loads winter solstice sun
wind primary horizonal structure (dead load) primary vertical structure (dead load) secondary vertical structure (dead load) winter soltice wind E W
SPRING
this,
space
gym, multipurpose room,
wellness,
and warm weather, lower energy
solid and slab structural system base unit
achieve
the
is split into two wings; intrapersonal health (containing individual and group rooms) and collective wellness (communal spaces -
and cafe). To further the idea of health and
bills,
SYRACUSE,
YOUTH
summer solstice wind and sun path section b b a winter solstice section a gravitational force gravitational force sun is drastically lower during the winter compared to the summer, surrounding buildings effect the incoming winds, mitigating its impact on the structure weaker winds compared to winter, high sun (70°) intense winds mainly open windows during summer to allow ventilation snow/ice/rain glazed windows (dead load) summer solstice sun (june 12pm) live loads winter solstice sun (december 12pm) primary horizonal structure (dead load) primary vertical structure (dead load) secondary vertical structure (dead load) winter soltice wind S E W DESIGN INTENT
YORK
sun path section b winter section a gravitational force gravitational force sun is drastically lower during the winter compared to the summer, surrounding buildings effect the incoming winds, mitigating weaker winds compared to winter, high sun (70°) intense snow/ice/rain 70° glazed
summer
live loads
winter soltice wind S E W DESIGN INTENT
summer solstice wind and
windows (dead load)
solstice sun
primary
secondary vertical structure (dead load)
Natural Stone Bathroom Tiles: Il Granito.” Fluted natural stone bathroom tiles Il Granito.
Double Glazed Toughened Glass.”
section b winter solstice wind section a gravitational force gravitational force gravitational force sun is drastically lower during the winter compared to the summer, surrounding buildings effect the incoming winds, mitigating weaker winds compared to winter, high sun (70°) intense winds mainly emitted snow/ice/rain 70° 24° glazed windows (dead load) summer solstice sun (june 12pm) live loads winter solstice sun (december 12pm) wind primary horizonal structure (dead load) primary vertical structure (dead load) secondary vertical structure (dead load) winter soltice wind S E W
https://www.ilgranito.be/collection/fluted-tiles?lid=62 4. “4mm
solid and slab structural system base unit Educators bathroom tiles | Il Granito. double glazed glass ribbed concrete 3 summer solstice wind and sun path section b b a section a gravitational force gravitational force gravitational force sun is drastically lower during the winter compared to the summer, surrounding buildings effect the incoming winds, mitigating its impact on the structure gravitational force open during allow snow/ice/rain winter soltice wind E W
building
a busy street (passive Educators 4 b gravitational force sun is drastically lower during the winter compared to the summer, surrounding buildings effect the incoming winds, mitigating
is located on
the the the interlock.
solid and slab structural system unit double glazed glass 4 ribbed concrete 3 gravitational force snow/ice/rain 70° 24°
solid and slab structural system base unit tiles | Il Granito. ened-glass/.
double glazed glass
3 summer solstice wind and sun path section b b a section a gravitational force gravitational force gravitational force sun is drastically lower during the winter compared
its impact on the structure weaker winds compared to winter, high sun (70°) gravitational force snow/ice/rain open
summer allow ventilation snow/ice/rain 70° 24° winter soltice wind S E W
ribbed concrete
to the summer, surrounding buildings effect the incoming winds, mitigating
windows during
WELLNESS HOSTEL
solid and slab structural system base unit site Educators bathroom tiles | Il Granito. https://www.norwich-glass.co.uk/product/4mm-double-glazed-toughened-glass/. double
4
3 summer solstice wind and sun path section b b a section a gravitational force gravitational force gravitational force sun is drastically lower during the winter compared to the summer, surrounding buildings effect the incoming winds, mitigating its impact on the structure weaker winds compared to winter, high sun (70°) gravitational force snow/ice/rain open during allow snow/ice/rain 70° 24° winter soltice wind S E W heath and wellness hostel
glazed glass
ribbed concrete
Professor Kreitemeyer 121
AND
2023 ARC 121
3 DESIGN INTENT Locacted on the Corner of South Crouse Avenue and East Genessee Street, Yostel is based on a series of unit aggregations, their part to part relationships, and the way in which these part to parts permeate on a grid system. To achieve this, the space is split into two wings; intrapersonal health (containing individual and group rooms) and collective wellness (communal spaces gym, multipurpose room, and cafe). To further the idea of health and wellness, pockets of breath or communal balconies are scattered throughout each floor. The overall stepped alignment of the hostel is influenced by the centralized placement of the entrance and the emphasis of the split wings. Some ornamentation details that allude to the unit shape is the ribbed concrete carved along the rounded edges of the rooms, giving insight to the logic of the units and the way they interlock. benefits of concrete include thermal mass and durability: thermal mass during the winter soltice to help maintain internal temperature and durability for longevity of the structure (passive system) benefits of double glazed glass include insulation for both cold and warm weather, lower energy bills, and noise reduction; especially since this building is located on a busy street (passive system) solid and slab structural system base unit Overall building image / site plan axon (include annotations and captions) CITATIONS: 1. “Climate Consultant.” Climate Consultant Society of Building Science Educators https://www.sbse.org/resources/climate-consultant 2. “Climatestudio.” Solemma https://www.solemma.com/climatestudio. 3. “Fluted Natural Stone Bathroom Tiles: Il Granito.” Fluted natural stone bathroom tiles Il Granito. https://www.ilgranito.be/collection/fluted-tiles?lid=62 4. “4mm Double Glazed Toughened Glass.” Norwich Glass https://www.norwich-glass.co.uk/product/4mm-double-glazed-toughened-glass/. double glazed glass 4 ribbed concrete 3 SYRACUSE, NEW YORK YOUTH HOSTEL summer solstice wind and sun path section b b b a N a winter solstice wind and sun path section a gravitational force gravitational force gravitational force sun is drastically lower during the winter compared to the summer, surrounding buildings effect the incoming winds, mitigating its impact on the structure weaker winds compared to winter, high sun (70°) intense winds mainly emitted from the west, low sun (24°) gravitational force snow/ice/rain open windows during summer to allow ventilation snow/ice/rain 70° summer soltice wind 24° glazed windows (dead load) summer solstice sun (june 12pm) live loads winter solstice sun (december 12pm) wind primary horizonal structure (dead load) primary vertical structure (dead load) secondary vertical structure (dead load) winter soltice wind S E W winter solstice summer solstice glazing visiblelightsolarheat visiblelight radiantheat
JACKIE RIEL HEALTH
WELLNESS HOSTEL SPRING
PROJECT

case study

Professor Parga 207 06
villa in hakuba, japan naka architects 2012

greentide

algae + plastic reclamation center

GreenTide harnesses the unique properties of algae to tackle environmental and industrial challenges in Newtown Creek. Algae, naturally found in the creek, clings to non-natural materials like microplastics, forming the basis of the centers recycling process. Microplastics are collected and broken down using algae, transforming them into reusable bioplastic materials. These bioplastics are then utilized to create a dynamic, multilayered facade for the greenhouse, symbolizing the lifecycle of algae. The greenhouse design prioritizes environmental control to accommodate algae’s sensitivity, utilizing a skeletal structure and photobioreactors. Steel and concrete columns support the warehouse systems, optimizing space and functionality. A large ramp premeates through the space, serving as a connector for individuals to engage with the processes atop the photobioreactors, which act as partition walls throughout the warehouse. The facility is not only a hub for recycling and manufacturing processes but also a public space for education, collaboration, and events.

07
Professor Clouette 208

greentide

design process and drawings

Utilizing raster-based imaging, mapping techniques, collaging, and linework in the initial site analysis was integral in addressing the scale of the site and the development and division of the program. Raster-based imaging allowed for detailed analysis and visualization of the site, enabling the plan to carefully map out the placement of various elements such as the warehouse systems of both the plastic and algae collection, photobioreactors, public spaces, etc. This approach ensured that each component could be scaled appropriately within the context of the site.

Professor Clouette 208

arboreal retreat

Arboreal Retreat embodies the ideals of adaptive, eco-conscious living, situated in Skaneateles, New York, this sanctuary coexists harmoniously with the natural environment. Its wood frame, reminiscent of a classic A frame cabin, forms the backbone of the structure. The use of interchangeable fabrics that attach to the frame, allow for climate adaptation throughout the year.

The exterior is clad in durable, locally sourced native black locust wood. Another aspect that works with the changing climate is the clear corrugated polycarbonate layer that graces half the roof, welcoming sunlight throughout the year. While the other half of the roof is steel corrogated sheets. Underneath, a loft area offers unobstructed views of the adjacent lake, accompanied by a large dormer, maximizing headspace. The building is oriented among the surrounding trees, which provides a sense of tranquility and isolation, as well as maximizing heat gain during the winter months.

01
Group Project: Hui Yin Chan, Maya Daws, Jacqueline Riel, Pema Sherpa
Professor Stenson 222

jrriel@syr.edu

858-740-9349

linkedin: jacqueline-riel

Turn static files into dynamic content formats.

Create a flipbook
Issuu converts static files into: digital portfolios, online yearbooks, online catalogs, digital photo albums and more. Sign up and create your flipbook.