Bitácora taller Diseño arquitectónico VI

Page 1

ANTE ARQU Y RE Tafur Castillo, Julio Leyva,Jose Rueda Vega,Andrea Del Pilar Macazana Ballarta, Anny Ramos Ureta, Rubi DOCENTE: Gilda Dalila Rodríguez Valverde INTEGRANTES:

Casuística Nacional e Internacional

Análisis de casos Individuales

Cuadro de resumen

Propuesta De Terreno

Amálisis y Selección de Terreno (Fichas Individuales)

Cuadro de Resumen Comparativo

Planeamiento Preliminar

Esquema De Zonificación

Paquetes Funcionales por Nivel

Fichas Técnicas de Ambientes

Cuadro de resumen por niveles

Fichas Técnicas de Ambientes

Maqueta Conceptual

Norma Técnica "Criterios Generales De Diseño Para Infraestructura Educativa"

Norma Técnica criterios De Diseño para colegios De Alto Rendimiento

1. 2. 3. 4.Programa Arquitectónico Preliminar 5.Propuesta Conceptual Preliminar 6.Referencias de Consulta/Guía ÍNDICE

El centro educativo tiene un sistema aporticado columna vigas de concreto armado

C A S
SISTEMA CONSTRUCTIVO ANTES ACTUALIDAD

Seotorgoundesniveldealtura comoestrategiadediseño.

ASPECTOS POSITIVOS

El terreno del colegio fue un antiguo viñedo, por esto el sistema constructivo utilizado para el colegio es de pórticos con cimiento corrido

mano
C A S O N° 3 Fuente : Adaptada La historia del colegio se remonta a su fundación en 1961 Se remodelo a la
del ASPECTOS POSITIVOS ANÁLISIS
EL TERRENO 1 Tiene un desnivel notable mayor al 15% Av.Jose carlos mareategui 3135 San Gabriel Fuente : Adaptada

DEL

FICHA DE ANÁLISIS
TERRENO 1 Influencias Ambientales: CARACTERÍSTICAS EXÓGENAS Vialidad: Zonificación: Mapa de Riesgos: Vías: Genera un Polo de Desarrollo:Equipamientos: Accesibilidad: Ubicación: Tensión Urbana: Topografía: Mínima Inversión: Adquisición: Calidad De Suelo: Ocupación Del Terreno: Accesibilidad de Servicios: Accesibilidad: Cercanía a un Núcleo Urbano Principal: Cercanía a un Núcleo Urbano Menores: Terreno Público Mala calidad Peligroso Vehicular/ Relación c Cercanía m Condiciones Climáticas: Centros Educativos: CARACTERÍSTICAS ENDÓGENAS Morfología: N° De Frentes : Usos De Suelo: Transporte Público: 4 frentes Templado Otros Usos Otros Usos Agua,Desague y electricidad. Alta cercanía Alta posibilidad Alta cercanía Alta cercanía Mayor al 15% Fuente : Adaptada Av Jose Carlos Mariategui Suelos blandos y arenosos
Ubicación: FICHA DE ANÁLISIS DEL TERRENO 2 CONTEXTO DEL ENTORNO Tiene un desnivel breve menor al 15% Av.Tupac Yupanqui Villa María del Triunfo 15818 Fuente : Adaptada

Morfología:

Influencias

FICHA DE ANÁLISIS DEL TERRENO

Ubicación:

De Frentes :

Incas Suelos Blandos y

Inversión:

Climáticas:

Vialidad: Zonificación:

Urbana:

:

De Suelo:

Usos

Público

De Suelo

de Riesgos: Vías:

Usos

un Polo de Desarrollo:

Educativos

Público

y

con vías PyS.

cercanía

cercanía

posibilidad

cercanía

cercanía

2
Ambientales: CARACTERÍSTICAS EXÓGENAS
Mapa
Genera
Equipamientos: Accesibilidad:
Tensión
Topografía
Mínima
Adquisición: Calidad
: Ocupación Del Terreno: Accesibilidad de Servicios: Accesibilidad: Cercanía a un Núcleo Urbano Principal: Cercanía a un Núcleo Urbano Menores: Terreno
Mala calidad Peligro medio Vehicular/Peatonal Relación
Alta
Condiciones
Centros
: CARACTERÍSTICAS ENDÓGENAS
Usos
Transporte
: 4 frentes Templado Otros
Otros
Agua,Desague
electricidad. Alta
Alta
Alta
Alta
Menor al 15% Fuente : Adaptada AvLos
arenosos
MATRIZ DE ANÁLISIS DEL TERRENO CARACTERÍSTICAS ENDOGENAS DEL TERRENO ASPECTOS CRITERIOS MORFOLOGÍA INFLUENCIAS AMBIENTALES UBICACIÓN MINIMA INVERSIÓN VALORACIÓN TOTAL N° DE FRENTES CONDICIONES CLIMATICAS MAPA DE RIESGOS TOPOGRAFÍAS USOS DE SUELOS ADQUISICIÓN CALIDAD DEL SUELO OCUPACIÓN DEL TERRENO 3 4 frentes 2 frentes 1 frente Templado Cálido Frio Peligro bajo Peligro medio Peligroso Pendiente menor al 15% Pendiente mayor al 15% Educación Residencial/comercial Otros usos Industrial/Arquiologico Terreno de instituciones Terreno del estado Terreno del privado Alta calidad Mediana calidad Baja calidad 0% ocupado 30 70% ocupado Más del 70% ocupado IUNIDAD TEM VALOR TERRENO1 4 1 3 3 2 2 2 1 1 1 4 4 4 3 3 3 3 4 4 21 1 1 1 1 5 5 5 5 6 3 1 3 3 5 6 5 35 3 3 3 TERRENO2 3 5 3 4 3 3 2 2 19 F25 uente : Adaptada

ZONIFICACIÓN

Accesibilidad De Servicios

VIABILIDAD

Accesibilidad

TENSIÓN URBANA

Agua,desague y electricidad

2 Servicios

1 Servicio Vehicular Peatonal Peatonal Relación con Vías Principales

Vías Cercanía a una Núcleo Urbano Principal Relación con Vías Secundarias Relación con Vías Menores

Cercana a otros usos menores Genera un polo de desarrollo urbano Centros Educativos Transporte Público

Alta Cercanía Mediana Cercanía Baja Cercanía Alta Cercanía Mediana Cercanía Baja Cercanía Alta Posibilidad Mediana Posibilidad Baja Posibilidad Cercanía Inmediata Cercanía Media Cercanía Pobre Alta Cercanía Mediana Cercanía

MATRIZ DE ANÁLISIS DEL TERRENO CARACTERÍSTICAS ENDOGENAS DEL TERRENO ASPECTOS CRITERIOS
EQUIPAMIENTOS VALORACIÓN TOTAL
IUNIDAD TEM VALOR TERRENO 1 5 4ACCESIBILIDAD
TERRENO 2 5 3 1 4 3 5 3 1 6 4 2 6 4 2 5 3 1 5 3 1 2 4 5 4 5 6 6 5 5 4 5 4 5 4 5 5 46 46 55 5 2 440 0 F34 uente : Adaptada
ANÁLISIS DEL LUGAR LEYENDA-ZONIFICACIÓN ACTUAL LEYENDA-PROPUESTA DIRECTRIZ DE IMPACTO URBANO AMBIENTAL Club zonal Uso Residencial Uso Comerciol Propuesta de cambio de uso Fuente : Adaptada
PLANO DE UBICACION Y LOCALIZACION Fuente : propia

ANÁLISIS DEL LUGAR

DIRECCIÓN JERARQUÍA PEATONAL Vía de doble dirección Vía de sola dirección Vía de mayor flujo vehicular_ los Incas Vía de mediano flujo vehicular _Jr.E.Aguirre Vía de menor flujo vehicular Av.Tupac Yupanqui Mama Ocllo ANÁLISIS DE FLUJO VEHICULAR ANÁLISIS DEL LUGAR
ANÁLISIS DEL LUGAR DIRECCIÓN JERARQUÍA PEATONAL Vía de doble dirección Vía de sola dirección Vía de mayor flujo peatonal _ Av. Los Incas Vía de menor flujo peatonal _ Av Tupac Yupanqui Av Mama Ocllo Vía de mediano flujo peatonal _Jr.E.Aguirre ANÁLISIS DE FLUJO PEATONAL

ANÁLISIS DEL LUGAR

Esta es la zona es la mas transcurrida , por lo cual es optimo colocar estacionamientos y los servicios generales.

Esta es la zona esta cerca a una avenidas por lo cual sería ideal colocar las lozas deportivas.

Esta es la zona menos transcurrida en turno tarde , por lo cúal es mas accesible para secundaria.

Esta es la zona menos transcurrida , por lo cual es optimo para el área educativa de primaria y servicios complementarios.

Esta es la zona menos Expuesta , por lo cual es optimo para el área educativa de nivel inicial y estimulación temprana

1° JERARQUÍA ANÁLISIS DE ZONAS JERARQUICAS 2° JERARQUÍA 3° JERARQUÍA 4° JERARQUÍA 5° JERARQUÍA
3° 5° 4°
2° 2°
N° de aulas SUBTOTAL DE DOCENTES Inicial 12 18 Primaria 24 18 Secundaria 36 10 Taller de danza 1 1 Taller de música 1 1 Ed. física 1 1 EDAD GENERO Nº DE AULAS ALUMNOS POR AULA SUBTOTAL DE ALUMNOS Inicial 3 5 Mixto 12 25 300 Primaria 6 11 Mixto 24 25 600 Secundaria 12 16 Mixto 36 25 900 Total 76 75 1800 PREMISAS DE DISEÑO Conclusión: El total de alumnos será de 1800 alumnos al año. Los alumnos se repartirán de la siguiente manera: Docentes: Fuente: adaptada

PREMISAS DE DISEÑO

Administrativo:

Personal de servicio:

Personal de servicio: Subtotal

Guardianía 2 Limpieza

Mantenimiento 2 Enfermería

TOTAL

fuente: adaptada

4
1
9

PREMISAS DE DISEÑO

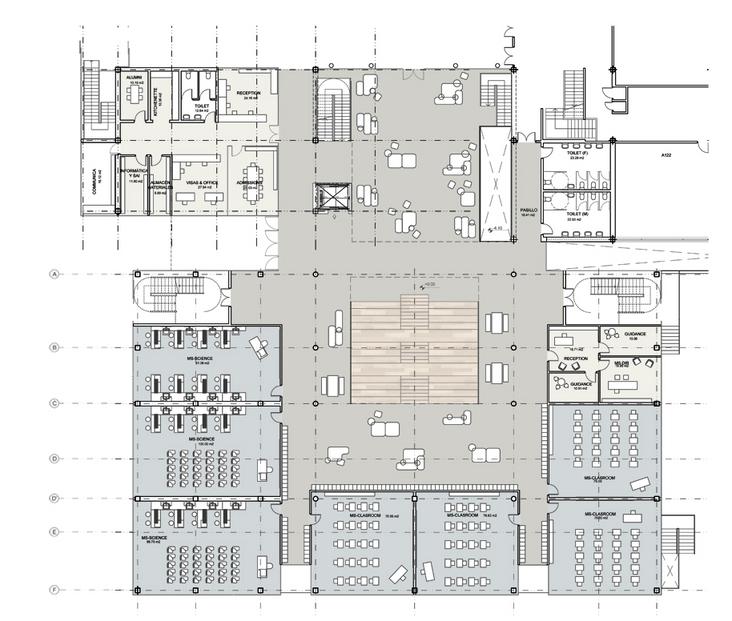
ZONAS PRINCIPALES

NIVEL SECUNDARIA NIVEL PRIMARIA NIVEL INICIAL

AREA ADMINISTRATIVA

AREA DE DEPORTE

Condicionantes climáticasCONDICIONANTES CLIMÁTICAS

Conceptualizacion en base a la Flor de Amancaes

"Nos llamó la atención que el cerro se ponía verde en invierno. Entonces, la curiosidad nos llevó a cuidarlo empíricamente porque nosotros veníamos de los Andes, donde todo era verde. Entonces empezamos a hacer caminatas familiares los fines de semana por la loma, como una vía de escape de lo gris", relató Cerrón.

Cuando todo en Lima se torna gris y el invierno dispara los índices de humedad, la Flor de Amancaes, el símbolo de la capital peruana, hace suya la neblina que cubre la ciudad y florece donde ninguna más lo hace, en medio del crecimiento urbano que amenaza su hábitat natural.

IDEA RECTORA

VOLUMETRÍA

Este Sur Norte
AULAS MULTIFUNCIONALES

REFERENCIAS BIBLIOGRÁFICAS

SESIÓN 1 : Colegio Emblematico 2022

SESIÓN 2 Colegio Privado Alexander Von Humboltd 2022

https://www.canva.com/design/DAFLd3nnRLE/NcGmta7uiQ3TNSajLeD 9g/edit https://www.canva.com/design/DAFLwzrxSXc/P72xed7alLFyWxDXQx78XA/edit

SESIÓN 3 Colegio Internacional Americano De Madrid

Norma Técnica “Criterios Generales de Diseño para Infraestructura de Colegios"

https://cdn.www.gob.pe/uploads/document/file/1965917/Norma%20T%C3%A9cnica%20%E2%80%9CCriterios%20Generales%20de%20Dise %C3%B1o%20para%20Infraestructura%20Educativa%E2%80%9D.pdf

Páginas Web

https://www.youtube.com/watch?v=fuWg8 jGIsA (Agosto de 2006)

https://www.youtube.com/watch?v=s4gbC8peObw (Agosto 2021)

https://tuamawta.com/2019/01/28/organizacion del aula en el nivel inicial/ (Septiembre 2022)

http://www.minedu.gob.pe/p/pdf/guia ebr jec 2015.pdf ( https://docs.google.com/presentation/d/1tZL80DgYb0n2GkwvaGKAxbgFLFwHpZnmguZGRK2Dzgw/edit#slide=id.g14b109db104 0 21

Colegio Emblematico Colegio Privado

Colegio Internacional 1. 2. 3. Introducción Ficha Tecnica Contexto del Entorno Antecedentes del Proyecto Análisis

Volumétrica , relación con el entorno Forma espacial y funcional Estrategia de diseño Sistema Constructivo y materialidad Valoración Experiencia del usuario Aspectos Positivos Aspectos Negativos

¿Qué llamó la atención al grupo?

Cuadro Comparativo de las I.E

Referencias Biliografica

ÍNDICE 4.
5.
COLEGIO EMBLEMATICO "HÉROES DE SAN JUAN"

VOLUMETRIA , RELACIÓN:

En Volumetría

Los bloques de las áreas educativas son paralelepípedos alargados, y otros de forma irregular

La ubicación de los bloques forman patios en forma de u, esto brinda iluminación natural a las aulas y pasillos

FICH NOMBRE DEL COLEGIO: CÓDIGO DEL CENTRO POBLAD DIRECTOR: CÓDIGO DEL CENTRO POBLAD
CONTEXTO MEDIO FÍSICO: AMBIENTAL URBANO"

FORMA ESPACIAL Y FUNCIONAL:

INGRESO PRINCIPAL PRIMARIA

Sistema de pabellones integrados integrados en base a patios, disposición tradicional de la arquitectura moderna

Los patios, áreas verdes, cafetín y áreas multifunción complementan los servicios y áreas educativas

El conjunto de espacios se interesa a las edificaciones con una circulación que se desarrolla transversalmente a los pabellones

ESTRATEGIA DE DISEÑO:

Estrategia ciudad Conexión a la vía pública conectando a vías principales

Estrategia zonal relación con los parques zonas de estar y viviendas del entorno

Estrategia de colegio Elementos articuladores a las áreas abiertas recreativas

Estrategia de las condicionantes ambientales (asoleamiento, ventilación)

INGRESO PRINCIPAL SECUNDARIA
DESCRIPCIÓN:
ASPECTOS POSITIVOS SISTEMA CONSTRUCTIVO: DESCRIPCIÓN: El centro educativo tiene un sistema aporticado columnas y vigas de concreto armado Carpintería en las coberturas, los vanos de ventanas de aluminio y vanos de puertas de madera Techo parabólico Aluzinc para coberturas de luces grandes Se incluye la carpintería metálica esto genera una nueva escala renovadora 1. El desplazamiento de los estudiantes hacia otra aula. 2. El mal cuidado de los elementos de los recursos del colegio. 3. No cuentan con ascensores . 4. No cuentan con seguridad ni juegos recreativos para nivel primaria. ASPECTOS NEGATIVOS: Cuentan con aulas funcionales
COLEGIO PRIVADO ALEXANDER VON HUMBOLDT
UBICACIÓN: FICHA DE ANÁLISIS :COLEGIO PRIVADO" INFORMACIÓN GENERAL NOMBRE DEL COLEGIO: Alexander Von Humboldt" ÁREA CONSTRUIDA: Av.Oscar Benavides N.3081 ARQUITECTO: Linder Paul 27,000.OO m2 7,780.88 m2 ÁREA DEL TERRENO: Ó CONTE

ESTRATEGIA DE DISEÑO:

El conjunto arquitectónico conformado por volúmenes lineales de los pisos de altura se desarrolla en torno a una trama espacial de patios. La solución responde exitosamente a las condicionantes tecnológicas de la iluminación natural ventilación diagonal y aislamiento acústico. La concepción corresponde a los principios de la Escuela Bauhaus del movimiento moderno.

ANTECEDENTES EL COLEGIO

DESCRIPCIÓN:

Las instalaciones deportivas de grandes extensiones

FUNCIONAL:

tienen la obligación de plantear una solución óptima de relación con el entorno a fin de no generar grandes espaldas a la Eciudad, l circuito de recorrido continuo que se plantea, conecta cada uno de los accesos a los distintos espacios de manera libre y accesible, es decir, desde los niveles inferiores se puede recorrer el edificio públicamente, por corredores cubiertos hasta llegar a las terrazas con pendientes cómodas y pasar de un espacio a otro por medio de estas.

ESTRATEGIA DE DISEÑO:

Estrategia de ubicación Estrategia de integración. Estrategia de accesos internos. estrategias bioclimática.

ANÁLISIS ESPACIAL Y

SISTEMA CONSTRUCTIVO:

DESCRIPCIÓN:

El terreno del colegio fue un antiguo viñedo, por esto el sistema constructivo utilizado para el colegio es de pórticos con cimiento corrido

EXPERIENCIA DEL USUARIO:

El Arquitecto Paul Linder emplazo el terreno hacia el lado norte , para poder colocar jardines y patios de recreo de tal manera alejandolos de las calles y avenidas .

Se otorgo un desnivel de altura como estrategia de diseño.

La distribución de los pabellones del edifico se distribuyen por medio de patios

Pórticos, Techo Plano Horizontal Concreto ciclópeo Ladrillo y cemento madera metal y Aluminio
Buena circulación a travez de areas verdes. Estacionamiento subterraneo Las areas verdes estan alejadas de calles avenidas. Cuentan con 3 tipos de losas ASPECTOS POSITIVOS: ASPECTOS NEGATIVOS: No cuentan con pisos pedotáctiles lo cuál impiden ,un facil acceso para personas discapacitadas.
COLEGIO INTERNACIONAL AMERICANO DE MADRID

Se aprecia un trazo geométrico lineal con volúmenes regulares horizontales del tipo minimalista y funcional. Los espacios abiertos tienen un tratamiento paisajista. Los vanos con cristal de grandes dimensiones le confieren un arraigo de iluminación natural. Los diferentes periodos de intervención y materialidad covergen en una lograda unidad.

School de Madrid se asienta en una geografía plana en con un área de 10 acres.

Cercano a campos de golf y a residencias de escasa a tu a.

UBICACIÓN: FICHA DE ANÁLISIS :COLEGIO INTERNACIONAL INFORMACIÓN GENERAL NOMBRE DEL COLEGIO: Americano De Madrid" ÁREA CONSTRUIDA: Calle América 3 Pozuelo de Alarcón 28224 Madrid, españa ARQUITECTO: Luis Gayarre 25,000.00 m2 7,780.88 m2 ÁREA DEL TERRENO: IDESCRIPCIÓN: RELACIÓN CON EL ENTORNO:

DESCRIPC

FUNCIONAL:

Se remodelo a la mano del Arquitecto Luis Gayarre, con el fin de ampliar espacios y maximizar su luz natural. Modificando el área común para permitir el ingreso de iluminación natural que es lo escencial

Se logro un aspecto industrial daba un aspecto moderno q perfección de los nuevo

ANÁLISIS ESPACIAL,FORMAL Y

school

Learning commons

SISTEMA CONSTRUCTIVO Y MATERIALIDAD: DESCRIPCIÓN: Lower
kindergarten Classroom Lower school lockers Lower school gymnasium Low level

Campo

Laboratorios

OS POSITIVOS: ASPECTOS NEGATIVOS: No cuentan con pisos pedotáctiles lo cuál impiden ,un facil acceso Posee circulación funcional con espacios iluminados y ventildos Aparcamiento para autos y bicicletas Se encuentra ubicado serca a restaurantes ,colegios,hospitales. cancha de tennis y futbol taller de arte y ecultura
de ciencia Contiene buen porcentaje en áreas verdes Taller de idiomas frances , ingles,españoL, y mandarín
de béisbol comedor y cafetería Contiene gimnasio Cuenta con áreas recreativas. Losascensoresnoseencuentreancercalocu vuelveunimpedimiento paralaspersonasq puedencaminar. Lam librenotieneningúnárbolquelepuedaproyectar sombraenesazona.
CUADRO COMPARATIVO

REFERENCIAS BIBLÍOGRAFICAS

Institución Educativa Minedu (2018)

https://www.institucioneducativa.info/dre/dre-lima-metropolitana/colegio-7061heroes-de-san-juan-54740/

Arquitectura Contemporanéa De Lima, (2018).

http://arquitecturacontemporanealima.blogspot.com/2012/01/43.html

Colegio Peruano Alemán, (2015). Wicona, (2019) Flansburgh, (2018), A erican School Of Madrid (2021)

https://www.colegio-humboldt.edu.pe/sp/nuestrocolegio/niveles/mayores/concepto.php?id=13&submenu=4 https://www.wicona.com/es/es/references/espana/american-school-of-madrid/ http://www.flansburgh.com/search-results/?search=american+school+of+madrid

https://www.asmadrid.org/our-community/our-alumni

Turn static files into dynamic content formats.

Create a flipbook
Issuu converts static files into: digital portfolios, online yearbooks, online catalogs, digital photo albums and more. Sign up and create your flipbook.
Bitácora taller Diseño arquitectónico VI by JOSE LUIS LEYVA ANGELES - Issuu