


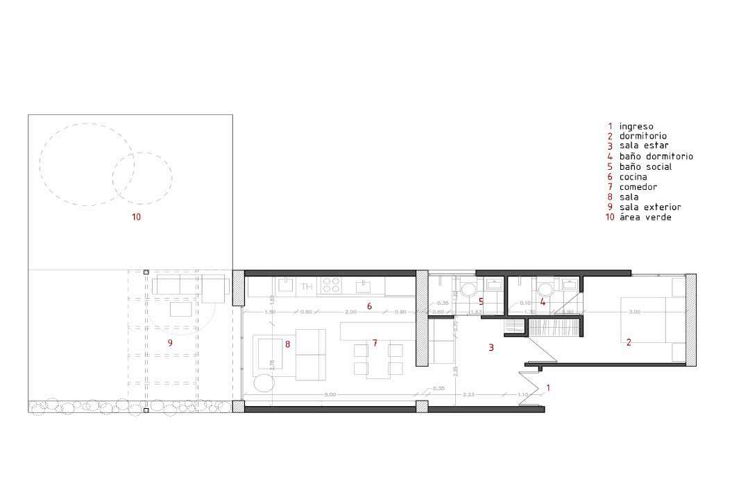
Ubicado en la Torre Alianza, en el centro norte de la ciudad de Quito, es un laboratorio de café, un espacio inusual, un triángulo de cristal de 20m2 de área, el cual se encuentra en una zona comercial, específicamente de oficinistas que buscan degustar café de especialidad.
La idea fue incrustar un mueble multiuso que se plantea como pieza única, que hace todo a la vez, la cual cumple la función de preparación, servicio y almacenamiento. En la parte baja se exponen los productos de Roveta, los procesos de la barra de preparación y tostado de café. Pensado para que una sola persona pueda realizar todas las acciones en el mismo espacio.
Esta pieza, además de ser funcional, da una nueva percepción del espacio, generando ambientes diferenciados entre la planta baja, el altillo y el espacio exterior que es una zona tipo terraza donde se encuentra mobiliario para el servicio de los clientes y una barra corrida que permite lavado de manos y sirve de apoyo para los baristas.
El principio fundamental del proyecto fue trabajar en materiales reciclados por lo que se utilizó madera en pino reciclada de 6cm x 4cm para la estructura tratada previamente para su rigidez y durabilidad.
El sistema constructivo está basado en una serie de pórticos que se unen unos con otros a través de unos tablones continuos para formar un solo elemento estructural. Los tablones además de ser unos elementos estructurales sirven como mesones para la preparación del café y como almacenamiento.
La cafetería cuenta con un mini montacargas de alimentos, que facilita la movilización de los productos desde la zona de preparación al altillo.
Modulo habitable
Un espacio pensado desde lo modular y la posibilidad de desmontarlo si se requiere, las piezas son estandarizadas y ensambladas por m edio de t ornillería. Se p iensa en u n sistema d e paneles tamborados, con una cara de contrachapado, aislante t érmico d e membrana térmica y enduelado. Este m ódulo g enera u n marco que une el jardín posterior pegado a la loma y la vista al valle de Tumbaco. Un espacio de descanso que se posa en las nubes y remata el proyecto con un elemento singular. Terrazas verdes
Se aprovechan las terrazas existentes, para generar h urtas y arborizar c on e species endémicas d e la z ona. La forestación se d a de m anera progresiva con la i ntención de desarrollar un b osquecillo e n pendiente que permita albergar a aves de la zona.
La recuperación de edificios que se encuentran en desuso o subutilizados del casco urbano de las ciudades es la oportunidad de proyectar una ciudad concéntrica, sostenible y sustentable. Alineados a esta estrategia nuestra propuesta propone empezar a promover una arquitectura que genere escenarios habitables diversos sin olvidar la esencia del centro urbano de la Ciudad de Ambato y su alma históricamente comercial y cultural. Desde la concepción espacial se propone un proyecto que optimiza recursos existentes y añadidos, proponemos trabajar con materiales renovables y mantenemos en un gran porcentaje la infraestructura existente como, ductos de instalaciones, circulaciones verticales y mamposterías.
Un edificio de cara al parque Cevallos integrando su primer piso como una ampliación del espacio público para promover emprendimientos de sus habitantes generando un acceso peatonal al edificio.
Reconfigurar espacios existentes a través de módulos prefabricados.
Esta estrategia plantea una serie de módulos que resuelven las necesidades de cada espacio. Un conjunto de piezas diseñado para optimizar el espacio, facilitar su uso y facilitar la implementación de cada vivienda.
Pérgolas / paneles solares energía verde en áreas comunales
Terrazas comunitarias espacios lúdicos lavandería cafetería
Pantalla permeable sombra control de luz privacidad
Placita de emprendimientos microeconomía punto de encuentro intercambio cultural espacios artísticos
Patios comunitarios estancia pet-friendly encuentro
Relación con el espacio público acceso directo desde vereda visuales al parque relacion con el exterior ver y ser visto
Se plantea la rehabilitación del edificio existente para su nuevo uso como vivienda desarrolladas en los dos bloques existentes y la creación de un bloque nuevo en la parte posterior. Se proyectan 16 departamentos, para 45 habitantes con el desarrollo de 7 tipologías adaptables a cada usuario. Cada unidad de vivienda ha sido estudiada para satisfacer las necesidades de los grupos vulnerables .
What does an Innovation Center mean? As its meaning indicates, the word innovate is “to make new”, “to renew” and IN “inward” with this base, innovation is associated with the idea of progress and development of new methods based on knowledge that precedes it.
To speak of an innovation center is to think of the appropriate scenario for the person or persons to solve problems and facilitate activities in a creative, efficient and new way for the Collective benefit.
When we talk about favorable scenarios to seek new solutions to problems in a CREATIVE AND ATYPICAL way.
The area of influence of the property to intervene is located northeast of the city, between Ponceano (north), Cochapamba (west), Kennedy (east), Rumipamba (soutTh). Specifically in the urban parish of La Concepción. Its main north-south traffic routes are the avenues of La Prensa, Río Amazonas and Galo Plaza Lasso; while in the east-west direction they are Isaac Albéniz, La Florida, Emperador Carlos and Luis Tufiño avenues.
In the parish there is the Bicentennial Park, the Former Airport Terminal, the Quito Metropolitan Convention Center, the Quito Metro Bicentennial Station, the El Labrador Multimodal Station and the future Quito Urban Agriculture Interpretation Center. This project will be an important point of development at the zonal and neighborhood level due to the future real estate expansion of the area around the Bicentennial Park.
Thinking “OUT OF THE BOX” allows you to break the standards of traditional spaces, creating unexpected, dynamic and hidden relationships between elements that would seem unrelated. This open box allows the entry of knowledge, important areas and talent, while at the same time bringing back innovation and an idea of community that would allow development in the city.
For this, the project is based on the methodology of LATERAL THINKING that favors creativity, proactivity, resilience and cognitive flexibility.
To generate innovation, it is necessary to think OUT OF THE BOX, introducing specific and unconventional thinking techniques, therefore its SPACES ARE DYNAMIC, UNCONVENTIONAL, ATTRACTIVE AND INTERACTIVE, allowing the development of thoughts from different paths than those used in traditional reasoning, facilitating new perspectives.
-Creation of an uninterrupted and comfortable route for pedestrians and improvement of interconnections with public transportation systems and electric alternative transportation within the project.
-Expansion of a route for cyclists through the project that connects them with the interior of the park.
-Parking of bicycles and scooters.
-Pasified road, to give priority to the pedestrian
-pedestrian paths within the park
-universal circulation inside and outside the project by means of a ramp, escalators and an elevator to connect the spaces.
-Construction of a continuous system of tree-lined passages that generate rooms and walkways in the shade.
-Creation of a large backyard, a powerful green point that is the connection to the park, contemplative green areas and tree planting, to compensate for the increase in temperature in the urbanized area and block short-wave radiation, thus cooling the ambient air and creating more favorable microclimates.
-Recycled/permeable plastic flooring.
- Green roofs as measures to mitigate the generation of heat islands.
- Water pond with biological filter
-Rainwater collection (Irrigation, toilets and urinals)
-Waste separation system, mass collection points
-Electric supply points for bikes, scooters
-LED lamps that are recharged by sunlight during the day
-Pet Friendly Areas.
-Urban agronomy, species that attract native flora and fauna
- Landscaping based on native species, low maintenance.
-Use of renewable materials and resources
-Recycling of existing structure
-New structure built in laminated wood. Renewable resource par excellence.
-Eco-efficiency in buildings through the integration of new technologies in the built fabric. This is reflected in the use of: sustainable and sustainable construction materials, photovoltaic panels on the roof, water collection system and gray water treatment.
-The idea proposes a circular economic model that promotes zone and neighborhood development, actively including the actors of the zone, through jobs, shared knowledge, integration spaces for the community.
- Cultural exhibition spaces are generated, open to the neighborhood and the city, As a consequence of creation and innovation processes that generate an economy capable of inserting itself into the economy of the area.
La sociedad y la arquitectura sufren importantes procesos de cambio con las necesidades y nuevas exigencias que van apareciendo con el tiempo. Mientras más evoluciona una sociedad sus construcciones requieren de cambios que se ajusten a los nuevos requerimientos de los usuarios.
El proyecto se presenta a partir de la “transformación del objeto arquitectónico a través del tiempo”, para ello se toma en cuenta teorías y estrategias de adaptabilidad y flexibilidad para un edificio, con el fin de que este en un futuro pueda ser transformado o adaptado a nuevas funciones.
Para el proyecto aparece la preocupación de como la arquitectura intenta adaptarse a las nuevas exigencias, intereses y necesidades de la sociedad actual, tomando en consideración que la arquitectura y el entorno evolucionan y se transforman a medida que va pasando el tiempo. Por lo tanto, esta necesita buscar estrategias o ideas que le permita adaptarse o evolucionar en paralelo a la sociedad.
El proyecto está constituido por tres partes: la edificación cubierta, un parque de uso público y los equipamientos que se mantienen. La idea es generar un parque continuo que no solo se desarrolla en la superficie del terreno, sino que se eleva hasta las terrazas de los bloques propuestos.
Las estrategias que se propone son: implementar diferentes medios de movilidad dentro del predio, generar un anillo que bordea el perímetro del predio para realizar ejercicio, y diseñar transiciones entre lo público y lo privado, el interior con el exterior.
Los equipamientos del proyecto se distribuyen a través de dos escenarios. El primero conformado por una serie de bloques consolidados en el mismo lugar (edificio propuesto), y el segundo distribuidos indistintamente en la superficie del predio (parque). El proyecto plantea un amplio portafolio de equipamientos, los cuales aportan a la práctica física, recreacional y deportiva.
Parte de la composición y como estrategia para el proyecto se plantea una suprogramación la cual consiste en condensar los equipamientos existentes en un solo lugar, con el fin de liberar la superficie donde se implanta el parque urbano.
Al colocar la gran cubierta, se genera diferentes cualidades espaciales dentro de la edificación, en donde se puede tener espacios cubiertos, semicubiertos y abiertos. En su interior se crean espacios intersticiales en los lugares que quedan vacíos, pero, al colocar está cubierta, estos espacios se vuelven funcionales.
Se plantea un edificio descompuesto en bloques que se ubican uno encima de otro, dejando espacios entre estos tanto horizontales como verticales. Los cuales se encuentran interconectados por circulaciones que van de terraza a terraza y que recorren la edificación a través de los diferentes niveles.
El edificio se conforma por seis bloques, de los cuales cuatro se encuentran suspendidos en el aire que dan la sensación de que flotan, estos están sujetos por tres núcleos estructurales y columnas rectangulares, y los otros dos se encuentran incrustados en el terreno ocupando una parte en el subsuelo y la otra parte en la planta baja del proyecto.