VIVIENDA BIOCLIMÁTICA
ESTUDIANTE:


Est. Arq. Jose David Saavedra Ramirez

CÁTEDRA
Mg. Arq. Jhonny Montalvan Silva
ESTUDIANTE:
Est. Arq. Jose David Saavedra Ramirez
CÁTEDRA
Mg. Arq. Jhonny Montalvan Silva
Soy Jose David Saavedra Ramirez, estudiante de la Escuela profesional de Arquitectura de la prestigiosa Universidad Peruana Unión, Filial Tarapoto. En esta oportunidad me complace presentar la proyección conceptual para la prupuesta de una Vivivenda Bioclimatica , En el Departamento de CHACHAPOYAS.
LA CONSTRUCCIÓN EN TAPIAL, ES PARTE DE UN MÉTODO
MILENARIO EN LA CONSTRUCCIÓN Y ARQUITECTURA VERNÁCULA DE MUCHAS PARTES DEL PERÚ, Y CHACHAPOYAS NO SE ESTÁ EXCEPTO, POR SUS GRANDES CARACTERÍSTICAS Y VENTAJAS ES QUE EN EL DESARROLLO DE ESTE PROYECTO SE OPTÓ POR EL USO DE ESTÁ TÉCNICA, APORTANDO CONFORT TÉRMICO AL INTERIOR DE LA VIVIENDA EN DESARROLLO DEBIDO A SU ALTA CONCENTRACIÓN DE MASA TÉRMICA, QUE DEBIDO A ESA MISMA DENSIDAD TIENE LA CUALIDAD DE NO DEJAR ESCAPAR LA TEMPERATURA INTERNA, UNA CARACTERÍSTICA IDEAL EN CLIMAS FRÍOS, DONDE LO IDEAL ES MANTENER EL CONFORT TÉRMICO EN TODO MOMENTO. ADEMÁS DE TENER COSTOS MÁS REDUCIDOS AL MOMENTO DE CONSTRUIRSE.
VELOCIDAD PROM. DE VIENTO ANUAL 1.3 m/s a 4.5 m/s
PROM. MAX. 136.7 mm
PROM. MIN. 20.8 mm
EL DIAGRAMA PRESENTE PARA ESTE ESTACIÓN EN LA CIUDAD DE CHACHAPOYAS SE ENCUENTRA ENTRE LOS SECTORES 3 Y 4 CORRESPONDEN A:
ES POR ELLO QUE:
DURANTE EL DÍA: SE RECOMIENDA REALIZAR ACTIVIDAD FÍSICA O EL DESPRENDIMIENTO DE CALOR DE ARTEFACTOS ELECTRODOMESTICOS PARA LOGRAR EL CONFORT.
DURANTE LA NOCHE: SE RECOMIENDA LO MENCIONADO ANTERIORMENTE, ADICIONANDO EL USO DE ELEMENTOS QUE PERMITAN LA CALEFACCIÓN DE LOS ESPACIOS DE MANERA LENTA, EL USO DE MUROS TROMBE O SISTEMAS DE CAPTACIÓN DE CALOR
DURANTE EL DÍA Y LO LIBEREN EN LA NOCHE.LA MATERIALIDAD Y/O COMPSCCIÓN DE LOS MUROS, UTILIZANDO AISLANTES TERMICOS EN SU INTERIOR. LA OCUPACIÓN, UN INVERNADERO ADOSADO, MURO PARIEDTODINAMICO
EL DIAGRAMA PRESENTE PARA ESTE ESTACIÓN EN LA CIUDAD DE CHACHAPOYAS SE ENCUENTRA ENTRE LOS SECTORES 3 Y 4 CORRESPONDEN A:
ES POR ELLO QUE:
DURANTE EL DÍA: SE RECOMIENDA REALIZAR ACTIVIDAD FÍSICA O EL DESPRENDIMIENTO DE CALOR DE ARTEFACTOS ELECTRODOMESTICOS PARA LOGRAR EL CONFORT.
DURANTE LA NOCHE: SE RECOMIENDA LO MENCIONADO ANTERIORMENTE, ADICIONANDO EL USO DE ELEMENTOS QUE PERMITAN LA CALEFACCIÓN DE LOS ESPACIOS DE MANERA LENTA, EL USO DE MUROS TROMBE O SISTEMAS DE CAPTACIÓN DE CALOR DURANTE EL DÍA Y LO LIBEREN EN LA NOCHE.LA MATERIALIDAD Y/O COMPSCCIÓN DE LOS MUROS, UTILIZANDO AISLANTES TERMICOS EN SU INTERIOR. LA OCUPACIÓN, UN INVERNADERO ADOSADO, MURO PARIEDTODINÁMICO. ADICIONANDO A ODO ESTO, EL USO DE PISOS REFLECTANTES O PISOS TERMICAMENTE AJUSTABLES.
TODA LA LÍNEA CORREPSONDIENTE A ESTE MES TANTO PARA DÍA Y NOCHE SE ENCUENTRA DEBAJO EL FACTOR CLO 0.9 ENTRE 0.95 Y 2.50 CLO APROXIMADAMENTE, DONDE SE RECOMIENDA EL USO DE DE ROPA DE LIGERA CASUAL DURANTE EL DÍA Y ROPA DE ABRIGO LIGERA Y PESADA PARA LA NOCHE(CHOMPAS, Y ROPA MÁS ABRIGADORA), ASÍ MISMO APROVECHAR EL SOL DE DÍA Y LOS DISTINTOS SISTEMAS DE CAPATACIÓN DE ENERGÍA SOLAR TERMICA PARA ABSORVER COMO MÍNIMO 5 WATTS DURANTE EL DÍA Y 65 WATTS PARA LA NOCHE.
TODA LA LÍNEA CORREPSONDIENTE A ESTE MES TANTO PARA DÍA Y NOCHE SE ENCUENTRA DEBAJO EL FACTOR CLO 1.0 ENTRE 1.15 Y 2.80 CLO APROXIMADAMENTE, DONDE SE RECOMIENDA EL USO DE DE ROPA DE ABRIGO LIGERA DURANTE EL DÍA Y ROPA DE ABRIGO PESADA PARA LA NOCHE(CHOMPAS, Y ROPA MÁS ABRIGADORA), ASÍ MISMO APROVECHAR EL SOL DE DÍA Y LOS DISTINTOS SISTEMAS DE CAPATACIÓN DE ENERGÍA SOLAR TERMICA PARA ABSORVER COMO MÍNIMO 10 WATTS DURANTE EL DÍA Y 80 WATTS PARA LA NOCHE.
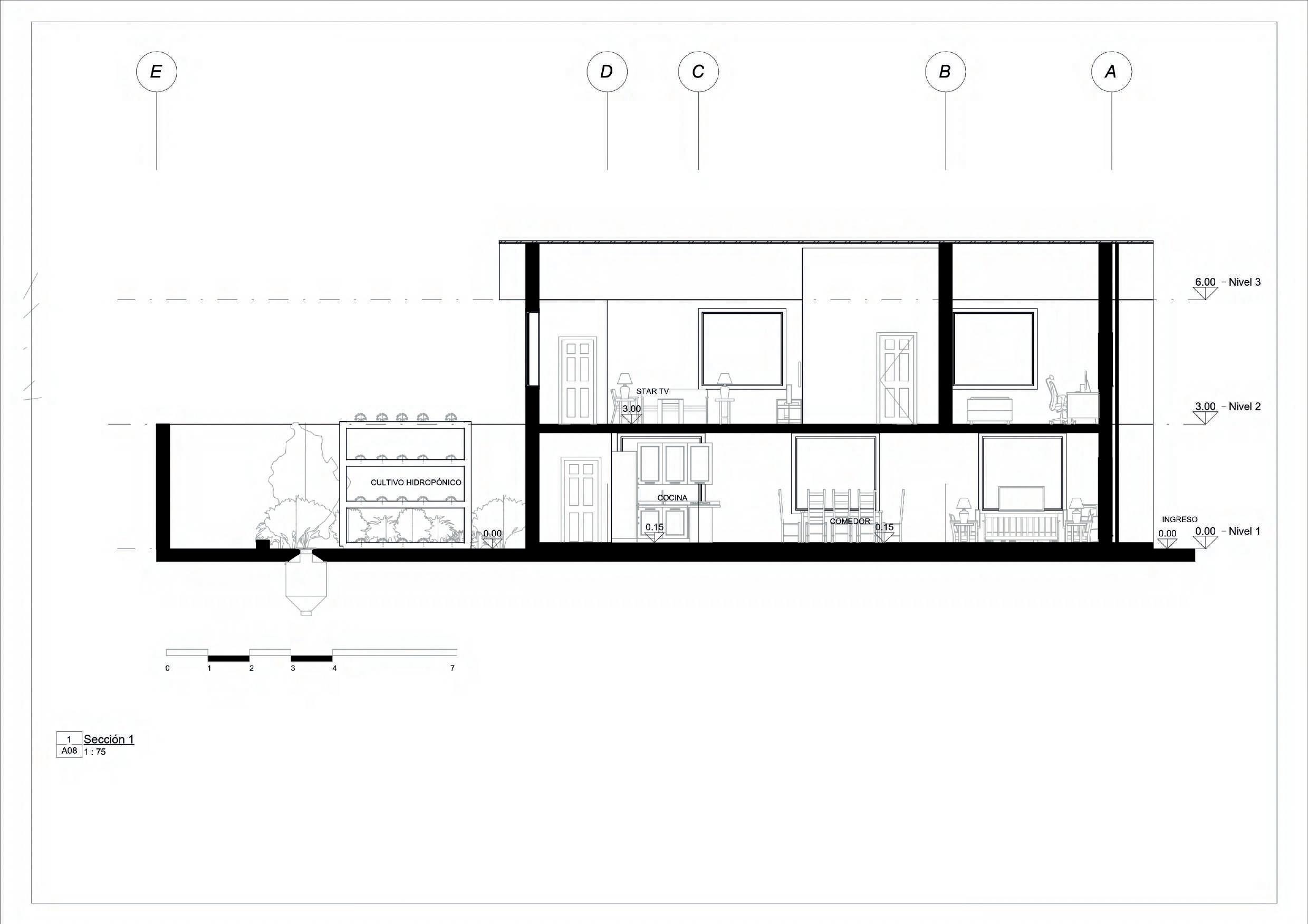
PARA EL DESARROLLO DE ESTE PROYECTO SE OPTÓ POR EL USO DE EL TAPIAL COMO PRINCIPAL MATERIAL DE CONSTRUCCIÓN DEBIDO A SU ALTA DENSIDAD Y COMPACCTACIÓN ADEM´PAS DE SUS CARACTERISTICAS DE RETENCIÓN TERMICA SE VUELVE IDEAL AL MOMENTO DE UTILIZARSE EN LACONTRUCCIÓN PARA CLIMAS FRÍOS, ADEMÁS DE BENEFICIAR A OTRAS ESTRATEGIAS BIOCLIMATICAS QU IRRADIAN CALOR HACIA EL INTERIOR DE LA VIVIENDA IMPIDIENDO QUE LA MISMA SE DISCIPE O ESCAPE. EN EL PROYECTO ESTA ESTRATEGIA SE VE UTILI-
LOS PANELES SOLARES, SE CONSIDERARON SU USO EN ESTE PROYECTO PRINCIPALMENTE PARA EL HAORRO ECONOMICO DE LOS HABITANTES Y EL CUIDADO DEL MEDIO AMBIENTE APROVECHANDO ENERGIAS LIMPIAS, PARA LOS DIVERSOS USOS QUE SE LE PUEDA DAR EN LA VIVIENDA.,SOLO SE DEBE TENER EN CONSIDERACIÓN QUE SU ADIQUISICIÓN REPRESENTA UNA COONSIDERABLE INVERSIÓN AL PRINCIPIO, PERO A LA LARGA LOS BENEFICIOS SON MAYORES. SU UBCACIÓN DEBE SER AL NORTE.
LA TERMA SOLAR QUE SE IMPLEMENTO COMO ESTRATEGIA BIOCLIMATICA DE CONFORT PARA LOS HABITANTES TIENE LA FUNCIÓN DE SUPLIR LA NECESIDAD DE AGUA CALIENTE PARA LAS DISTINTAS ACTIVIDADES QUE REALIZEN, SE CONSIDERO UN SISTEMA DE TUBOS AL VACIO Y UNA CAPACIDAD DE 300 LITROS EN EL TERMOTANQUE IDEAL PARA SUPPLIR LA NECESIDAD DE 5-6 PERSONAS DE MANERA CONTINUa.
ESTA ESTRATEGIA SE IMPLEMENTO CON EL FIN DE MEJORAR LA AUTOSUSTENTABILIDAD EL PROYECTO, REDUCIENDO COSTOS EN EL ESTILO DE VIDA DE LOS HABITANTES, GENERANDO GRAN CANTIDAD DE FRUTAS Y VERDURAS DE MANERA AS EFICIENTE Y EFICAZ, DANDO A LOS HHABITANTES ALIMENTOS LIBRES DE AGROQUIMICOS, ADEMAS DE QUE LAS CONDICIONES DE CULTIVO SON OPTIMAS, UTILIZANDO UN BAJO CONSUMO ENERGETICO, QUE VIENE SIENDO SUPLIDO POR EL SISTEMA DE PANELES SOSLARES
EL BIODIGESTOR ES UNA HERRAMIENTA MUY INTERESANTE PARA SER USADA, YA QUE PERMITE EL TRATAMIENTO S DE AGUAS NEGRASPROVENIENTE DE LA VIVNEDA, PARA ESTE PROYECTO SE COSIDERO UN BIODIGESTOR DE 600 LITROS, QUE SIN PROBLEMA SUPLIRALA NECESIDADES DE 5-6 PERSONAS, ADEMÁS DE QUE LOS RESIDUOS QUE SON PROCESADOS AL FINAL PUEDEN SER UTILIZADOS COMO BIO GAS O FERTILIZANTE.
ESTA ESTRATEGIA FUE INFALTABLE PARA EL DESARROLLO DE ESTA VIVIENDA BIOCLIMATICA YA QUE ES IMPRECINDIBLE EL APROVECHAMIENTO DE LOS ARTEFACTOS QUE GENEREN CALOR POR IRRADIACIÓN EN LUGARES CON CLIMAS FRÍOS, ESTA VEZ LA COCINA PRINCIPALMENTE BENEFICIA A SUS ESPACIOS CERCANOS COMO LOS SON EL COMEDOR Y LA SALA, ADEMAS DE UN BAÑO, Y AL INVERNADERO, CONSIDERANDO QUE MUY POSIBLEMENTE TAMBIEN TENGA EL MISMO EFECTO EN EL PISO DEL SEGUNDO INVEL SOBRE LA COCINA, ÁREA PERTENECIENTE AL STAR TV DE LA VIVIENDA.
ESTA ESTRATEGIA ES SINGULARMENTE IMPORTANTE PARA EL DESARROLLO DE LA VIVIENDA, DEBIDO A QUE ES DE LAS PRINCIPALES HERRAMIENTAS QUE PERMITIRAN EL CONFORT TERMICO DENTRO DE LA VIVIENDA, SU ORIENTACIÓN Y UBICACIÓN ES IMPORTANTE PARA SU FUNCIONAMIENTO, ESTA UBICADO LO MÁS POSIBLE AL NORTE , SU FUNCIO SE REPARTE PRACTIAMENTE EN TODOS LOS ESPACIOS DE LA VIVIENDA, BENEFICIANDO TANTO A LUGARES SOCIALES, DE SERVICIO Y PRIVADOS O INTIMOS. PARA ELPROYECTO SE CONSIDERO DE DOBLE ALTURA PARA OBTENER EL MAYOR BENEFICIO POSIBLE.
ESTA ESTRATEGIA NACE DEL ANÁLISIS DE DATOS BIOCLIMAICOS PERTENECIENTES A EL DISTRITO DE CHACHAPOYAS, EN DONDE SE MUESTRA QUE LOS PRINCIPALES VIENTOS PROVIENEN DEL SUERESTE Y NORESTE PARA DISTINTAS EPOCAS DEL AÑO, ES POR ELLO QUE SE IMPLETO LA SIEMBRA DE ARBOLES QUE SERVIRAN DEPANTALLA NATURAL PARA DISCIPAR LOS VIENTOS FUERTES PROVENIENTES DE LAS DIRECCIONES ANTES MENCIONADAS, ADEMÁS DE NO CONSIDERAR EL USO DE VENTANAS NI VENTANALES EN ESTAS DIRECCIONES EVITANDO LA INFILTRACIÓN DE VIENTO POR LAS MISMAS.
- PARA EL DESARROLLO DE ESTE PROYECTO FINAL, EN EL CURSO DE BIOCLIMATICA I, SE PUSO EN PRÁCTICA TODO LO APRENDIDO, GENERANDO UNA PROPUESTA DE VALOR CONSIDERANDO LAS DISTINTAS VARIABLES Y VARIANTES DE ACUERDO A LA FLEXIBILIDAD QUE UN TERRENO TE PUEDE OFRECER, EN ESTE CASO EN PARTICULAR SE CONSIDERO A CHACHAPOYAS COMO UBICACIÓN, LUGAR DEL CUAL SE HIZO UN ESTUDIO PREVIO DE LOS FACTORES CLIMATICOS Y TOPOGRAFICOS A LOS QUE SE SOMETIDO, PARA REALIZAR UNA PROPUESTA QUE PARA UN USUARIO GENERE CONFORT, SOSTENIENDOSE EN TÉCNICAS MILENARIAS Y DE ARQUITECTURA VERNACULA, ADEMÁS DE INCORPORRAR LOS NUEVOS AVANCES TECNOLOGICOS Y SISTEMAS QUE PERMITEN GENERAR CONFORT .
- COMO ESTUDIANTE DE ARQUITECTURA, ESTE PROYECTO ME PERMITIO MEJORAR MI JUICIO CRITICO, ENFRENTANDOME A DESAFIOS NATURALES, QUE REALMENTE TODOS LOS LUGARES EN EL QUE PODAMOS REALIZAR UNA PROPUESTA DE DISEÑO VAN A SER AFECTADOS. ESPECIALMENTE PARA LA UBICACIÓN EMPLEADA FUE DE GRAN IMPACTO PERSONAL, AL PODER DISEÑR PARA UN CLIMA FRÍO CONTRARIO TOTALMENTE A LO QUE CASUALMENTE REALIZAMOS, PERO DE ESTA MANERA SE PUEDEN CONOCER LAS DISTINTAS ESTRATEGIAS QUE SE PUEDEN IMPLEMENTAR PARA EL DESARROLLO DE UN PROYECTO BAJOESTAS ONDICIONES, SISTEMAS TAN IMPORTANTES PARA EL CONFORT DE AQUELLOS QUE LA HABITAN.
- A NIVEL PROYECTUAL, CONSIDERO QUE ESTE EJERCICIO NOS PERMITIRA IMPLEMENTAR DIVERSAS ESTRATEGIAS EN NUESTROS FUTUROS PROYECTOS, CONSIDERANDO LA NECESIDAD DE CONFORT. Y AMPLIANDO NUESTRA GAMA DE CONONCIMIENTOS PARASABER COMO AFRONTAR ESTAS NECESIDADES, DANDONOS CUENTA QUE SE PUEDE REALIZAR UNA PROPUESTA ESTETETICAMENTE LLAMATIVA A PESAR DE LAS DITINTAS ESTRATEGIAS QUE SE PUEDAN PLANTEAR.
-COMO PARTE DE MI ANÁLISIS PERSONAL, RECALCO LA IMPORTANCIA DE LAS DISTINTOS FACTORES ALTAMENTE RELEVANTES AL MOMENTO DE DISEÑAR Y SIN DUDA REPLICABLES EN UN FUTURO NO MUY LEJANO, CONSIDERAR QUE DE MANERA PERSONAL, BUSCARE AMPLIAR MIS CONCOCIMENTOS CON RESPECTOS A LAS ESTRATEGIAS PLANTEADAS, YA QUE CONSIDERO Y APENAS SON UNA PEQUEÑA PARTE DE LAS QUE SE PUEDEN EMPLEAR. Y NO SOLO APLICABLES EN CLIMAS FRÍOS SINO EN CALIDOS TAMBIÉN.
Angelsinocencio, P. (2016, noviembre 15). Estrategias bioclimáticas para mejorar la eficiencia energética en edificios. Ángel Sánchez Inocencio. https://angelsinocencio.com/estrategiasbioclimaticas-mejorar-eficiencia/
Caballero, P. (2020, julio 21). Tapial experimental house / estudio de arquitectura y planificación kaiser. ArchDaily. https://www.archdaily.com/943836/tapial-experimentalhouse-estudio-de-arquitectura-y-planificacion-kaiser?ad_medium=gallery
Chachapoyas grupo 6. (2020, noviembre 11). Issuu.
https://issuu.com/estefanycerdan/docs/grupo_6_chachapoyas_t2.pptx
Lirola, C. (2018, enero 27). Viviendas bioclimáticas. Tipos de casas según el Clima.
Autopromotores. https://www.autopromotores.com/viviendas-bioclimaticas/
Vista de Diseño de vivienda rural bioclimática para clima frio- húmedo andino. (s/f).
Edu.pe. Recuperado el 28 de junio de 2023, de
https://revistas.upt.edu.pe/ojs/index.php/arquitek/article/view/440/361
Vista de Estrategias bioclimáticas para clima frío tropical de altura. Validación de prototipo en Orduña, Puno, Perú. (s/f). Edu.ec. Recuperado el 28 de junio de 2023, de
https://publicaciones.ucuenca.edu.ec/ojs/index.php/estoa/article/view/3149/2621