Jessica Bermúdez-Portfolio arquitectura

Page 1

Jessica Bermúdez portafolio

P. 5-16

P. 17-24

01 02
Bioresearch
índice
Centro de bienestar integral Oficinas

Centro Cultural

Anteproyectos

03 04 05
P. 25-30 P. 31-38 P. 39-46

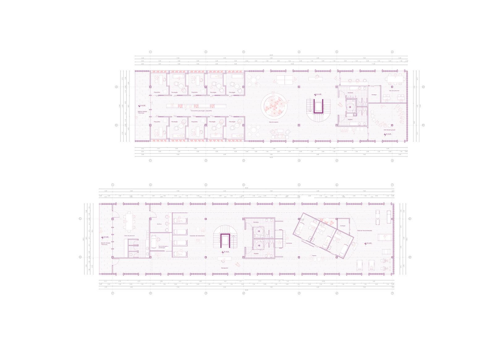
Centro de bienestar integral

Año: 2021-2022

Tipo: Trabajo de titulación

Autor: Arq. Jessica Bermúdez (diseño, detalles, visualización y presupuesto)

Lugar: Huayna Cápac-Cuenca, Ecuador

Distinción: Mención de honor FADA PUCE 2022. Taller de Titulación.

¿Cómo la arquitectura y el paisaje se pueden vincular para diseñar entornos saludables?

Aquella fue la interrogante que dio inicio a la investigación de mi trabajo de titulación en la ciudad de Cuenca. Y fue así como proyecté el diseño de un equipamiento interlocutor entre las decisiones de la arquitectura y su relación recíproca con paisaje natural.

De esta manera, el Centro de Bienestar Integral se implanta entre los ríos Tarqui y Yanuncay, eliminando las barreras que amenzan la promoción de entornos saludables, y en contrarrespuesta se diseña una serie de espacios orientados al bienestar físico, mental y social, vinculando los mismos a la conexión paisajística con los rios de la ciudad a través del espacio público.

El ladrillo, material protagonista, se fusiona a una serie de espacios verdes y espacios celestes que conforman la cota 0 de paisaje y que integran un paseo dinámico que permite la confluencia entre ríos, y hacia itinerarios clave de la ciudad.

https://youtu.be/PtIvz9kBqe4

Virtual Walkthrough

5 Jessica Bermúdez
6 Trabajos seleccionados
9
Planta baja Bloque A
a’ a
Sección transversal a-a’ por bloque A
10 Trabajos seleccionados
a’ a
Planta alta Bloque A
11 Jessica Bermúdez
Ala “b” Ala “a”
12 Trabajos seleccionados
Zona de biblioteca planta alta Zona de trabajo colaborativo Sección b-b’ por bloque B Planta de subsuelo entre bloques B y C. b’ b
14
b’ b
Primera planta alta: bloques B y C. Río Yanuncay Humedal urbano
15
Bermúdez
Jessica
Sala de mecanoterapia Recreación acuática
16 Trabajos seleccionados

Oficinas bioresearch

Año: 2022-2024

Tipo: Oficinas

Equipo: Arq. Jessica Bermúdez (diseño, visualización, residencia de obra)

Arq. César Pérez (diseño y gestión)

Ing. Jaime González . (construcción)

Lugar: San Camilo, Calderón.

Estado: En construcción

Proyecto de diseño de las nuevas oficinas de BIORESERACH, empresa formuladora de productos agroquímicos.

Para este proyecto fue importante darle una nueva cara a las oficinas, con una imagen fresca y con carácter. Es así como se decide trabajar el ladrillo como material protagónico, siendo este un recurso tanto estético como funcional. Las bondades del ladrillo visto permitieron crear espacios con textura y profundidad en donde la luz y la sombra realzan los detalles y generan un dinamismo a lo largo del día.

Volumétricamente el proyecto se desarrolla en dos barras que trabajan de manera inteligente la relación entre espacios servidores, servidos y el intersticio que demarca una doble altura en el ingreso, y conecta visualmente hacia el árbol preexistente. Asimismo, la composición de las fachadas cumple un rol de belleza y utilidad, en donde las piezas volumétricas que se repiten a lo largo de las fachadas constituyen mobiliario de almacenamiento hacia el interior, permitiendo aprovechar el máximo del espacio.

17 Jessica Bermúdez
18 Trabajos seleccionados
19 Jessica Bermúdez
20 Trabajos seleccionados 0 1 5 10 Planta baja 1 2 3 4 5 6 7
1. Porche de ingreso 2. Intersticio (exhibición de productos y espera clientes)
5.
6.
7.
3. Oficinas de atención al cliente 4. Commedor Archivo SS.HH. Deck posterior Acceso vehículos Acceso peatonal

La distribución de los espacios está definida por una clara composición de dos barras: una alargada que hacia el norte contiene el comedor en PB y la oficina principal en planta alta, mientras que hacia el sur se ubica la circulación vertical que es la antesala a los espacios de servicio; la barra ensanchada contiene los espacios principales que son las oficinas de atención al cliente en planta baja, y en planta alta la sala de reuniones y oficinas administrativas.

Estas dos barras dialogan entre si a través de un espacio intersticial que demarca el ingreso por medio de una doble altura que comunica visualmente a todo el proyecto, así como también a través de la transparencia del vidrio tanto en fachada como en cubierta que permite la entrada de luz cenital y la relación visual con el árbol preexistente que ha sido un símbolo para la empresa.

21 Jessica Bermúdez
0 1 5 10 Planta alta N+3.29m 1 1. Oficina principal 2. Oficina secretaria 3. Oficinas administrativas 4. Sala de reuniones 5. SS.HH. 2 3 4 5
22 Trabajos seleccionados
23 Jessica Bermúdez
Fachada norte Fachada este Fachada sur Sección longitudinal
24 Trabajos seleccionados
Proceso de construcción

Eat Quito -Pasaje Amador

Año: 2023

Tipo: Diseño interior de cafetería

Cliente: Alfredo López

Equipo: Arq. César Pérez (diseño y gestión)

Arq. Jessica Bermúdez (diseño interior, visualización)

Lugar: Pasaje Amador, Centro Histórico de Quito

Estado: Diseño

Proyecto de diseño interior de un emprendimiento de venta de sánduches,café y productos de delicatessen ubicado en el Centro Histórico de Quito, en la fachada del emblemático Pasaje Amador.

El concepto de diseño fue crear un ambiente encantador y acogedor, ofreciendo a los clientes un entorno fresco y atractivo, que les resulte cálido y agradable para pasar un buen rato en medio del dinamismo de la calle García Moreno y como antesala al Pasaje Amador.

Más allá de vender sánduches y café, el emprendimiento se entrelaza a otro negocio de Alfredo, la tienda de hilos que se encuentra dentro de otro local del pasaje y que busca interconectar los dos mundos a través de la exhibición de productos artesanales, y por medio de un aforo hacia el pasaje.

25 Jessica Bermúdez
26 Trabajos seleccionados

La distribución del espacio en el local es eficiente y estructurada, dividiendo claramente el área en dos zonas esenciales: una pública para los clientes y otra privada para los servicios. La zona pública, situada en la parte frontal del local, utiliza amplios ventanales en la fachada principal y lateral para exhibir productos en mostradores de piso a techo, al mismo tiempo que crea un ambiente acogedor hacia la parte trasera izquierda, donde se encuentran 4 nichos que ofrecen una mayor intimidad. Esta organización mejora la circulación y ordena el espacio, optimizando la experiencia del cliente.

La franja posterior alberga las áreas de cocina, lavado y mostradores con caja. Esto promueve una eficiente coordinación entre el personal autorizado y la zona de atención al cliente. Además, los servicios higiénicos están estratégicamente ubicados cerca de las áreas de servicio para facilitar la gestión de las instalaciones hidrosanitarias.

Se elige una paleta de colores cálidos, con ladrillo, acero cobrizo, madera y hormigón visto, creando un ambiente acogedor y evocando conexiones históricas. Así mismo, el mobiliario incorpora tejidos con patrones que simbolizan nuestra tradición, y que también son parte del negocio del propietario. Esta elección de diseño estimula el apetito y fomenta la relajación y la comunidad, brindando una experiencia memorable a los visitantes.

Acceso principal Calle García Moreno Acceso servicio
27 Jessica Bermúdez
Acceso por Pasaje Amador
28 Trabajos seleccionados
29 Jessica Bermúdez 1 5 Planta general Eat Quito 1 1 2 2 2 2 3 4 4 5 6 7 8 9 10 12 11
1. Aforo exterior 2. Mostradores de productos 3. Mesas con más intimidad 4. Sillas altas 5. Caja 6. Preparación de sánduches 7. Mostrador de pan
9.
10.
11.
12.
13.
3 13
8. Mostrador delicatessen Mostrador y estación de trabajo Elaboración de pan y cocina Zona de lavado SS.HH. Aforo hacia pasaje amador Acceso principal Calle García Moreno Acceso por Pasaje Amador Acceso servicio
30 Trabajos seleccionados

Centro Cultural Tarqui

Año: 2021

Tipo: Proyecto Taller de Arq. VIII

Autor: Arq. Jessica Bermúdez

Lugar: Ciudadela Tarqui, Quito-Ecuador

Reconocimiento: Mención de honor FADA PUCE 2021

La Ciudadela Tarqui es uno de los tantos lotizamientos que fueron transformando la mancha urbana del sur de Quito.

Existe una particularidad que distingue a este sector de muchos otros dentro de la ciudad; y es que su paisaje urbano muestra las reminiscencias de un plan de vivienda masivo, modular e incluso hasta pintorezco donde las cubiertas inclinadas y el escalonamiento de los volúmenes hacen de base para una posterior conjugación con expresiones de la informalidad, que nos evidencian la evolución formal de la arquitectura del lugar.

El diseño del Centro Cultural Tarqui surge de una reinterpretación y reivindicación tanto de la estructura urbana como de la arquitectura que hace parte del imaginario del lugar. A todo esto se le suma la necesidad de dotar de un equipamiento cultural al sitio, por lo cual bajo la lógica de la concatenación de espacios de congregación ya existentes, se propone diseñar un remate de congregación cultural.

31 Jessica Bermúdez
32 Trabajos seleccionados
33 Jessica Bermúdez Reinterpret a n d o la i n f ormalidad

Se adoptó el tema espacial de la transformación como un recurso espacial que permite materializar la congregación en distintas escalas, a través de una sucesión de torres que cocen una serie de momentos claves para el desarrollo de un programa variado que incluye: parque, aulas multiuso, auditorio, salas de estudio y biblioteca.

Así mismo, a la variedad programática le acompaña la transformación de las expresiones formales de cada torre que conforma el conjunto. Comenzando por la torre 1, misma que posee una cualidad tectónica que contiene una diversidad programática activa, la cual puede ser apreciada desde el exterior gracias a la transparencia de su fachada.

Continuando por los volúmenes, se erige una triada de torres que conforman una transición gradual hacia lo estereotómico, y que interiormente contienen el gran auditorio que hace de núcleo del proyecto, y cuyas cubiertas contienen espacios de aulas y cubículos de estudio que dotan de vida a cada cúspide de las torres. Finalmente, el conjunto remata en un parque que más allá de dotar de puntos de estancia, permite darle un respiro a la dureza de esta sucesión de canchas cementadas.

34 Trabajos seleccionados
Torre 1 Torre 2 Torre 3 Torre 4 Parque
torre singularidades La arquitectura del lugar
35 Jessica Bermúdez
Planta de subsuelo N-5.00 Segundo nivel +8.00
0 4 12 25 50 80 c c’ a a’ a a’ b b’ b b’ c c’
Cuarto nivel +16.00
36 Trabajos seleccionados
Planta baja N+/- 0.00
37 Jessica Bermúdez
Corte por muro

Biblioteca

Auditorio

38 Trabajos seleccionados

Matriz Coop. Atuntaqui

Año: 2023

Tipo: Concurso

Cliente: Coop. de ahorro y crédito Atuntaqui

Equipo: Arq. Jessica Bermúdez (diseño y visualización)

Ing. Jaime González y Arq. Eduardo Boada (gestión)

Lugar: Atuntaqui, Ecuador

Estado: Anteproyecto

Anteproyecto para la adjudicación del diseño de la nueva matriz de la cooperativa Atuntaqui, ubicada hacia las afueras de la ciudad homónima, en una zona poco consolidada pero con proyección a urbanizarse.

Para la presentación del anteproyecto la cooperativa pidió la entrega de renders que muestren la nueva imagen de la matriz. De esta manera, se sintelizaron las intenciones proyectuales en 4 imágenes clave que muestran una perspectiva principal, una vista ortográfica que permite entender la totalidad del volumen, y dos vistas interiores.

Se proyectan 4 pisos que conforman un solo bloque con un patio central que genera una perspectiva interior dotada de luz, y asimismo, una plaza de bienvenida que recibe a los peatones y aporta al espacio público de la zona que aún es nulo.

39 Jessica Bermúdez
40 Trabajos seleccionados

La planta baja del edificio cuenta con paneles de vidrio transparente, mientras que los niveles superiores presentan un sistema de muro cortina con vidrios negros, que es característico de la institución. Se destaca la esquina principal, convirtiéndola en un símbolo distintivo y un posible hito urbano. En la parte trasera, se crea una fachada retranqueada con balcones para las oficinas.

El centro del edificio se abre a un patio central con un jardín para clientes en la planta baja y ventilación en las plantas superiores. Este diseño fomenta la cooperación, proporcionando un espacio público en la ciudad, y promoviendo la interacción entre la comunidad y la institución

41 Jessica Bermúdez
42 Trabajos seleccionados

Residencia Martín Caicedo

Año: 2023

Tipo: Diseño residencial

Cliente: Diego Martín y Verónica Caicedo

Equipo: Arq. César Pérez (diseño y gestión)

Arq. Jessica Bermúdez (diseño y visualización)

Lugar: Urbanización “La Alhambra”- Tabacundo, Ecuador

Estado: Anteproyecto

Anteproyecto para el diseño de la casa de vacaciones de la familia Martín Caicedo que reside fuera del país y que desea tener su espacio de descanso en una zona alejada de las dinámicas de la ciudad.

Diego y Mónica son fanáticos de los espacios minimalistas en donde el color blanco y la luz se complementan entre sí para generar ambientes de calma. Por otra parte, era indispensable el diseñar habitaciones separadas que permitan gozar de privacidad tanto para los padres como para su hijo adolescente.

Fue así que se trabajó en una disposición lineal de los espacios que componen una barra alargada con tres momentos clave: una habitación en cada costado opuesto, y los espacios sociales como un intersticio.

Y ya pensando en el futuro, se planteó la posibilidad de que la composición inicial mute a una segunda opción con dos niveles, lo cual crea una doble altura y mezzanine en el área social. Mientras que hacia los costados se planeta la incorporación de una habitación adicional y una terraza con vista hacia Pambamarca.

43 Jessica Bermúdez
44 Trabajos seleccionados
45 Jessica Bermúdez
46 Trabajos seleccionados

(+593) 993970309

(+593) 993970309

jessicabermd z @gmail.com

jessicabermd z @gmail.com

Turn static files into dynamic content formats.

Create a flipbook
Issuu converts static files into: digital portfolios, online yearbooks, online catalogs, digital photo albums and more. Sign up and create your flipbook.