jay chan. works 2025

Page 1


Columbia

Tidal Organ

academic | fall 2024

Instructor: Gregory K. Melitonov

If a leaf falls in a forest and no one was around to hear it, did it make a sound?

The Tidal Organ is a project that provokes the subject to listen. Listen to the voices of thte voiceless. Set on Hudson River Park's Pier 45, the project aims to tap into the sonic elements of the pier to highlight the existance of non-human, and voiceless but very much critical agents of the site.

A

Sonic & Textural Study of Pier 45

One of the most striking things upon my first impression of Pier 45 was its auditory experience.

With sounds of crashing waves, rustling of trees and grass, and the cawing of birds, the scenery was an amazing sonic cacophany into the environment of the Hudson. To that effect, I began to take field recording samples and document different elements around and across the whole site.

As part of the Hudson-river park project, , Pier 45 is one of its most popular areas. Culturally significant as one of the "christopher st piers", it was an area of great significance to the LGBT community in New York as a public gathering space. Today, it is a place that is heavily populated for picnics, workouts and for people to take walks. As an area with extremely high foot-traffic, I saw it as an opportunity to bring forth a design ithat is both ephemeral and sensorally stimulating, driven by my fixation on its sonic atmosphere.

Mulberry Tree tree with delicate sounds of its leaves wind blows through
Pier Rocks - providing rocky shorelines for estuary, sounds of waves cashing
Steel grate - sounds of ocean waves crashing against the seawall can be heard from below.
Hudson River Seawall - Crashing waves and flowing waters emulate crashing and clapping sounds as waters crash and flow off of drainage
Pier 45

- Leafy delicate rustling leaves as through

Iron-casted cover #2

Iron-casted floor cover - Textural detail with metallic sheen, imperfect surface bumps and rusting

and fluttering sound

Fields - structural wooden columns from old piers, now transformed and adapted by marine organisms such as crustaceans and fish in the Huson as a new and vibrant estuary habitat.

SagebushCoastal bush species with denser and harder leaves, emulating a more stiff shaking and ruffle sound

Indiangrass - Native coastal grass to the Hudson River Estuary with a louder crackle and crunching sound
Coastal
Pile
Spartina grasscoastal grass with a delicate crackling
Wood grain rubbings - wood grainy textural detail found all across the site

Pile fields - leftover structural columns for old piers are adapted by the life within hudson river as new habtitat space

Wind-pipes chamferred to funnel and amplify the wails and howls of the wind through the pipes.

Imagery of the pile fields led me to think about pipes - Instruments that amplify sound, and allows nature to "play" its music

Human-pipes are closed on one end so it can serve different programmatic needs such as seating or as tables.

Bird-house pipes have an opening for birds. People below may also begin to hear their chirping as it echoes down the pipe

Ocean-pipes are pipes that reach into the river, amplifying sounds of the water, the crashing waves, and the riverbed to listeners above

Pipes and piles - serve multitude of functions including providing structural support for canopy, as well as habitats for river-life

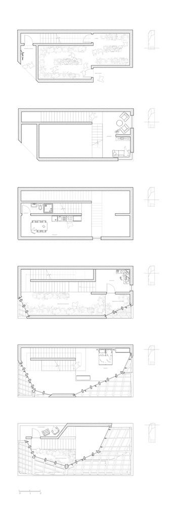
Conceptual model of canopy structure and sound-pipes design - exploring relationship between existing pier and design of an added intervention. Additionally the concept model also explores strategies on how to populate area with additional wooden-piles to create new habitats for the Hudson river wildlife .

Canopy system - a structural canopy that allows visitors to walk above and below.
Pier 45 - 10-12 ft deep waters, areas that are heavily populated with estuary habitats and life
Early sketch of canopy and pipes as structural supports
Early sketch of canopy with a ramp that brings visitors down towards the river

One of the main principles behind my design for this intervention was to not disturb and interrupt the existing circulation condition of the site. As my intervention peers off onto the river, and is in line with the foot-path, the circulation onto-and through flows seamlessly.

Canopy overlook - The canoopy extends outwards towards the river, allowing visitors to overlook the pile fields below and onto the river.
Bird house - Certain pipes provide habitats and shelter for birds, granting them access to drinking water.
Pile fields - reflecting imagery of the existing pile fields, additional wooden posts are added to help provide additional habitats for Hudson river life.
Canopy access

Human-centric pipes are closed off, allowing for them to be seating, but also hollow to become "playable: percussion.

Wind-pipes have chamferred tops, angled to funnel more wind through the pipe to capture its sound.

Ocean-pipes puncture the ocean-surface to extract sounds of waves and underwater activity up through the pipe

Test-model using PVC and scrap wood - testing how sound travels and gets amplified through the pipe

Bird-centric pipes have a circular cave-like opening towards the topproviding a protective and warm shelter the brids against the harsh wind

Canopy structure is reinforced by a steel truss-frame, but remains hollow for less load, and allow for light planting

Wooden piles help to provide added habitats for displaced marine and estuary life such as oysters, crustaceans and fish

Canopy staircase - circulation allowing visitors to access the top of the canopy structure.

Decentralizing "Fountains"

academic | fall 2024

Instructor: Gregory K. Melitonov Collaborator: Jes Zhang

Decentralizing Fountains was an experiment, our goal was to fully and systematically dismantle the function and aesthetic of the 'water fountain'. Through a mixture of on-site research and archival research, this project culminates in a design that attempts to answer questions like: What is a fountain? What can a fountain be? and Who is the fountain for?

What is a fountain?

Our investigation of the City Hall Park fountain as a site of interest began with questions like what a fountain even is and where this water comes from?

Our research led us to think about water injustices, who even gets access to this water? Why is something so water intensive used only for aesthetic purposes? How can we deconstruct the perception and function of public infrastructure?

The original city hall fountain, the Croton Fountain was as a celebration of the Croton Aqueduct, an engineering marvel in the 1800s. The fountain itself spanned 100 feet wide, and had water spouting over 50 feet high
Current city hall fountain (Jacob Wrey Fountain)
Current city hall fountain (Jacob Wrey Fountain)
Aquaduct
Our experiment : Decentralizing the fountain
Footprint of original fountain (Croton Fountain)

Decentralizing the Fountain : Our experiment seeks to interrogate and deconstruct what a fountain even is, and what a fountain does - speculating on the possibilities of re-tooling water infrastructure to serve a facilitate and interspecies ecology in the city. Here, water is used for play, for drinking, for bathing, for planting, for habitats, for temperature regulation. Everything existing cyclically.

Greenhouse-House

academic | fall 2022

I designed a house for a florsit, who operates a flower shop on the ground level and grows their own products and plants in a greenhouse above.

This project aims to tackle the phenomena of the “missing middle” by exploring new and alternative ways of implementing mixed-use buildings into neighbourhoods.

Formal Concept

Resulting form

5x11x15m block in site
Creating angled planes from sunpath
Sunpath planes used to shave off massing to form new faces on facade
Sunpath

massing tests...

In order to maximize sunlight exposure for the greenhouse portion of the house, I explored the concept of using the sunpath at the site to create angular faces on the building’s so that sunlight could be funnelled in throughout the day

Due to the need for maximal sunlight exposure on the southern side of the house, the concentration of programming meant that there will be no space for planting beds

Similarly, this iteration was also congesting the southern side of the house and taking up planting areas - programs also took up too much space

Improvement on congestion of south side but still minimal planting spaces

Final southern room in areas

less

Final version frees up southern area with ample for planting spaces areas with more sun exposure

Programming also takes less space in order to fit inside shell

BEDS CIRCULATION

Circulation is concentrated on northern side in order to not disrupt the greenhouse planting spaces

With the building functioning as a greenhouse and a flower shop simultaneously, products are to be grown and sold directly to the customer - alleviating the carbon footprint of transporting goods.

The greenhouse also functions to provide other ecosystem services to the inhabitants such as temperature regulation and cooling, and increased household carbon sequestriation.

The house serves to add another layer of mixed-use programming in the Kensington Market neighbourhood.

With the decline of mixed-use neighbourhoods in Toronto, this house can set a precedent for how future mixed-use residential buildings can function and look like as developments move away from victorian-styled houses in favor for more contemporary interventions.

Corridor Student House

academic | winter 2023

Instructor: Jon Cummings

Corridor student house is an exploration of aggregation and strategies for site-specific form making.

Taking James Stirling’s Andrew Melville Hall as a precedent study, this student residence concept for UofT uses modular architecture as a way of responding to the unique sloping conditions of the site.

The site is situated between Philospher’s Walk and Devonshire Place - two key streets in the context of the UofT Campus.

The sloped concept of the Corridor Student House is designed to connect these two points and improve campus circulation and acessibility.

The Landscaped Ampitheatre bridges pedestrians from the ground floor up to the second floor through a series of rising steps. This space acts as both a circulation feature and an outdoor social gathering space.

The Corridor Student House is populated by multiple roof gardens, designed to serve as additional green spaces for students. These spaces are areas for relaxation and gathering, and is more convenient for students living on the higher levels of the residence.

The oriented axis of the dormitory rooms layed out a grid as an organizing principle for the design and orientation of the site and landscape elements. This tilted axis was the basis for organizing spaces in both the interior facilities as well as the outdoor landscaping.

Tilted Axis
Second
Fifth Floor Detail - Roof Garden

Modular Unit Design & Configuration

Units in the residence are singlebed, and uses built-in closets as the connecting mechanisms to other modules.

The rotated orientation of the units is also intentional to incorporate corner windows, allowing for larger views and more sunlight exposure.

The Philospher’s Walk Entrance has both an indoor and outdoor component. The indoor component is a secondary lobby for students, and features a diverse mix of spaces including a cafe, gathering spaces, and study areas.

The outdoor component is a another landscaped ampitheatre space, and acts as a continuation of the Philospher’s Walk up to the main courtyard of the site.

Professional Works

Ida&Billy Architects (Hong Kong) | summer 2022

As an intern in a small sized architectural firm based out of Hong Kong, I got to learn the ins and outs of how a firm operates on a much more intimate and intensive scale.

Throughout my tenure with this team, I was mainly focused on visualization, where I helped to produce photomontages for a riverbank revitalization project in Hong Kong.

Research & Sound Design Works_

At the forefront of my research, is studying sound. With my previous interests in music, and music production = I began to incorporate sound design into my architectural works, with many projects dedicated to investigating the intersections between spaces and sounds.

Berlin: Symphony of a Metropolis Rework Sound Design + Video

Based on the concepts from Georg Simmel’s Metropolis and Mental Life, discussing ideas of hysteria caused by the hyperstimulation of urban environments, this project is a reworking of Walther Ruttmann’s 1927 film: Berlin: Symphony of a Metropolis.

Click to listen

Familiar Sounds Photography + Sound Installation

A visual and auditory installation that explores the relationship between spaces and other senses.

This project aims to bring audiences into the headspace of immigrants from Hong Kong who have found new homes in Toronto. Alongside the lushes soundscapes, the project is acompanied by a series postcards with written anecdotes that aim to capture snapshots of the daily life in Toronto’s Chinatown.

Click to listen

2024NEW YORK CITY, USA

2020 - 2024

TORONTO, CANADA

Education

Columbia University, Graduate School of Architecture, Planning & Preservation, Master of Architecture

University of Toronto, Bachelor of Arts, Architectural Studies

• Dean’s List Scholar 2021-2022

Experience

June – August 2024

TORONTO, CANADA

June – August 2023 REMOTE

Henry Chiu Architect – Architectural Assistant

• Visual representation & 3D modeling specialist role

• Rendering and drawings for various residential projects in the Greater Toronto Area

• Concept design and visualization for a residential guest house-garden suite project in Markham, Ontario

Future-Future - Architecture Communications & Business Development Intern

• Business development specialist

• Produced strategy presentations: researching regional competitors, potential/upcoming project opportunities, and assembling lists of potential collaborators for clients

• Consolidated contacts for press, business development and collaboration opportunities for architectural practices and developers

• Assembled submission packages for clients to enter international competitions and awards

June – July 2022

HONG KONG SAR

July – August 2021

TORONTO, CANADA

Ida&Billy Architects Ltd. – Architectural Intern

• Specialized in architectural visualization: producing photomontages

• Maintained strong engagement with clients by efficiently communicating design changes in timely manner

• Developed skills in architectural market research

• Assisted head architects with making powerpoint presentations

DesignLIFES CREATE Program – Communications Assistant

• Managed company website

• In charge of video content, interviewing students to document and showcase their experiences and research outcomes with the program

• Coordinated and moderated zoom events such as the Research Showcase

Awards

October 2022

October 2022

Contact

hello.chanjay@gmail.com

+1 (646) 498 7039 (US)

Peter W. And Linda D. Hamilton Award In Social Housing

• Awarded

Ontario Association of Architects’ Scholarship

• Nominee

Turn static files into dynamic content formats.

Create a flipbook
Issuu converts static files into: digital portfolios, online yearbooks, online catalogs, digital photo albums and more. Sign up and create your flipbook.