Jay (Javier) Chan_Selected works 2023-2024

Page 1

JAY CHAN

ARCHITECTURE STUDENT | UNIVERSITY OF TORONTO

SELECTED DESIGN WORKS 2023-2024

CORRIDOR STUDENT HOUSE 04 GREENHOUSE-HOUSE 18 NORTON HOUSE PRECEDENT STUDY 32 SPACES & PHASES OF VILLA MALAPARTE 38 BERLIN: SYMPHONY OF A METROPOLIS REWORK 42 PROFESSIONAL WORKS 46
TABLE OF CONTENTS

Corridor Student House

academic | ARC362 | winter 2023

Instructor: Jon Cummings

Corridor student house is an exploration of aggregation and strategies for site-specific form making.

Taking James Stirling’s Andrew Melville Hall as a precedent study, this student residence concept for UofT uses modular architecture as a way of responding to the unique sloping conditions of the site.

4
5
6
7
8

The site is situated between Philospher’s Walk and Devonshire Place - two key streets in the context of the UofT Campus.

The sloped concept of the Corridor Student House is designed to connect these two points and improve campus circulation and acessibility.

9

Unit Design & Configuration

Units in the residence are single-bed, and uses builtin closets as the connecting mechanisms to other modules.

The rotated orientation of the units is also intentional to incorporate corner windows, allowing for larger views and more sunlight exposure.

10
Modular
11
12
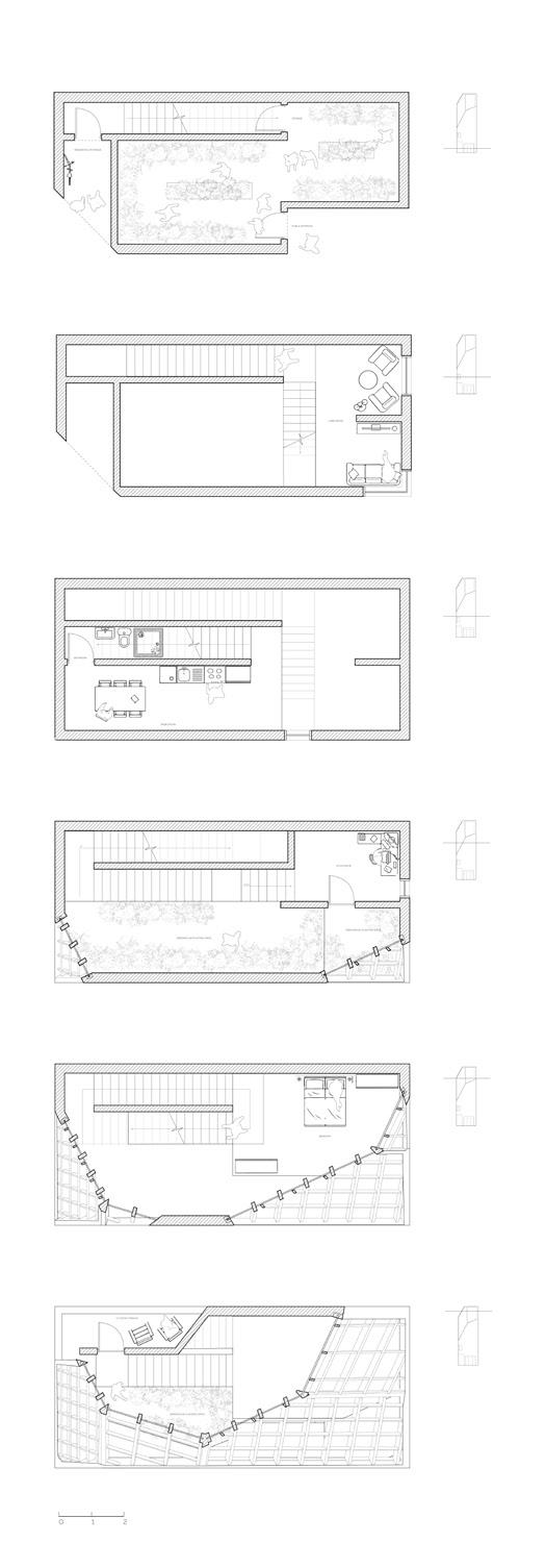
13 Ground Floor Plan

The Landscaped Ampitheatre bridges pedestrians from the ground floor up to the second floor through a series of rising steps. This space acts as both a circulation feature and an outdoor social gathering space.

14
Second Floor Plan - Landscaped Ampitheatre

The Corridor Student House is populated by multiple roof gardens, designed to serve as additional green spaces for students. These spaces are areas for relaxation and gathering, and is more convenient for students living on the higher levels of the residence.

15
Fifth Floor Plan - Roof Garden
16

The Philospher’s Walk Entrance has both an indoor and outdoor component. The indoor component is a secondary lobby for students, and features a diverse mix of spaces including a cafe, gathering spaces, and study areas.

The outdoor component is a another landscaped ampitheatre space, and acts as a continuation of the Philospher’s Walk up to the main courtyard of the site.

17

Greenhouse-House

academic | ARC361 | fall 2022

I designed a house for a florsit, who operates a flower shop on the ground level and grows their own products and plants in a greenhouse above.

This project aims to tackle the phenomena of the “missing middle” by exploring new and alternative ways of implementing mixed-use buildings into neighbourhoods.

18
19

To gain a better understanding of the surrounding site context, I conducted study on the programmatic elements of the site. With this study, I wanted to understand how different programs were mixed within the site and the ways in which the residential areas were folded into an otherwise heavily retail and restaurant dominanted area.

Given the density of the programs in the site, my investigation was specifically focused on mixed-use buildings, where multiple programs overlap

20
21

Formal Concept

Resulting form

22
5x11x15m block in site Creating angled planes from sunpath Sunpath planes used to shave off massing to form new faces on facade Sunpath

massing tests...

In order to maximize sunlight exposure for the greenhouse portion of the house, I explored the concept of using the sunpath at the site to create angular faces on the building’s so that sunlight could be funnelled in throughout the day

23

Due to the need for maximal sunlight exposure on the southern side of the house, the concentration of programming meant that there will be no space for planting beds

Similarly, this iteration was also congesting the southern side of the house and taking up planting areas - programs also took up too much space

Improvement on congestion of south side but still minimal planting spaces

Final southern room in areas

less

24
PROGRAM TEST 1
PROGRAM TEST
FINAL
Programming up
PROGRAM TEST 2
3

Final version frees up southern area with ample for planting spaces areas with more sun exposure

Programming also takes less space in order to fit inside shell

BEDS CIRCULATION

Circulation is concentrated on northern side in order to not disrupt the greenhouse planting spaces

25
FINAL
PROGRAM PLANTING

With the building functioning as a greenhouse and a flower shop simultaneously, products are to be grown and sold directly to the customer - alleviating the carbon footprint of transporting goods.

The greenhouse also functions to provide other ecosystem services to the inhabitants such as temperature regulation and cooling, and increased household carbon sequestriation.

26
27
28

The house serves to add another layer of mixed-use programming in the Kensington Market neighbourhood.

With the decline of mixed-use neighbourhoods in Toronto, this house can set a precedent for how future mixed-use residential buildings can function and look like as developments move away from victorian-styled houses in favor for more contemporary interventions.

29
30
31

Norton House Precedent Study

academic | ARC361 | fall 2022

Instructor: Carol Moukheiber

Frank Gehry’s Norton house is an architectural staple of the deconstructivism style. In Gehry’s project, there is a unique focus on the incorporation of found materials and objects. With my precendent study of this house, I wanted to focus on the house’s circulation system and how it serves an architectural promenade in the exploration of the project’s many unique architectural characters.

32
33
34

The themes of deconstructivism and circulation in the Norton House was further explored in a study model.

This project is a conceptual study of the Norton House’s circulation system, and could be assembled and disassembled as a play on the deconstructivist themes of the design.

35
36 VVW
37

Spaces & Phases of Villa Malaparte

academic | ARC465 | fall 2023

Instructor: Angela Cho

Collaborators: Michael Altomare, Jannace Bond, William Goo, Rachel Shimonov

Based on Curzio Malaparte’s own vision for the residence, we aimed to explore how spaces can evoke emotions through the medium of film.

Our experiment was to use the medium as a means of informing design, by designing new environments and spaces using plaster casted artifacts.

My responsibilities included concept development, casting, film direction, filming, and editing.

38
39 Click to view shortfilm on YouTube
40
Film stills

The film aims to communicate the designer’s own experience of the architecture:

montaging spaces of monumental and claustrophobic scales to convey feelings of confinement, anxiety and alienation.

41

Berlin: Symphony of a Metropolis Rework

academic | fall 2023

Collaborators: Zhaowei Ma, Celestine Martin

Based on the concepts from Georg Simmel’s Metropolis and Mental Life, discussing the hysteria caused by urban environments, this project is a reworking of Walther Ruttmann’s 1927 film: Berlin: Symphony of a Metropolis.

Coupled with recutting sequences from the original film, we also scored a new soundtrack that consisted of follies and sound effects from various urban environments.

Click to view film

42
43 Click to view film on YouTube Click to view film on YouTube
44

Through a mixture of diegetic and nondiegetic sounds, and sequences of bustling urban spaces, metropolitan architecture, and industrial machinery, the trailer aims to capture Simmel’s concepts of speed and hyperstimulation caused by the technology, economy and congestion of cities.

45

Professional Works

Ida&Billy Architects (Hong Kong) | summer 2022

As an intern in a small sized architectural firm based out of Hong Kong, I got to learn the ins and outs of how a firm operates on a much more intimate and intensive scale.

Throughout my tenure with this team, I was mainly focused on visualization, where I helped to produce photomontages for a riverbank revitalization project in Hong Kong.

46
47
48
49

thank you.

Turn static files into dynamic content formats.

Create a flipbook
Issuu converts static files into: digital portfolios, online yearbooks, online catalogs, digital photo albums and more. Sign up and create your flipbook.
Jay (Javier) Chan_Selected works 2023-2024 by Javier Chan - Issuu