Skip to main content

THESIS REPORT- THE SCHOOL KFI

Page 1

THE SCHOOL-KFI

THESIS REPORT 2021
Done By JayanthVarma.K A/2935/2016 5B Guide: Ar.Tanuja B.K Prof.Jaya Kumar Co-ordinator: Prof.Jaya Kumar VISAKHAPATNAM, ANDHRA PRADESH
Appendix 01 Candidate Declaration 21thMay 2021 The thesis titled THE SCHOOL-KFI a requisite of the Bachelors Program in the Department of Architecture, School of Planning and Architecture, New Delhi – 110002, was completed by the undersigned in January – May 2020.The supervisors were Prof.Jaya Kumar and Ar.Tanuja B.K The undersigned hereby declares that this is his/her original work and has not been plagiarized in part or full from any source. Furthermore this work has not been submitted for any degree in this or any other University. _________________________ (candidate signature) Name Kutcherlapati JayanthVarma Roll No A/2935/2016 Section VB

Certificate

VARMA KUTCHERLAPATI

was guided by us in January – June 2020 and placed in front of the Jury by the candidate on 27th and 28th May 2021.

completion of the report in all respects including the last chapter by the candidate and based on the declaration by the candidate here in above, we forward the report to the Department to be placed in the library of the School of

and Architecture, New Delhi.

21STMay, 2021 We certify that the Thesis titled THE SCHOOL- KFI by JAYANTH
roll no A/2935/2016
On
Planning
________________ ___________________ Guide Name ________________ ___________________Guide Name

ACKNOWLEDGEMENTS

I have been fortunate to receive overwhelming help of many people. Most of all I must extend my gratitude to my guides Prof. Jaya kumar and Prof.Tanuja B.K for all the support and help.

To my amma and dad, I express my love.Without their continuing care and patience, I wouldn’t be able do my thesis during these worst times with pandemic and many more. I thank them for creating a peaceful environment and keeping me same this whole time.

My go to people- Adithya,Vinay Baba,Vamsi krishna and Pravinya, who have been constantly supporting and guiding me through the process and filled me with positive energy.Thank you for always being there. I found my inspiration from my trusted friends and mentors.

I want to thank whole heartedly to all those who are named and unnamed for making the process enjoyable and helped me in keep going.

SYNOPSIS

With a concern for the quality of education imparted through the popular and established system of standardized curricula and testing, the thesis looks upon alternative systems of education that aim at holistic development through child-centric strategies and non-traditional pedagogical approaches.The thesis then departs on its search, to understand how architecture could contribute towards a holistic learning experience

Research from literature and case studies shed light upon educational philosophies and pedagogical approaches of alternative schools and their implications on school architecture. Due to choice of client, i.e. Krishnamurthi School,Visakhapatnam, the Krishnamurthi’s philosophy and ideologies on education is studied bringing forth philosophies like ‘Complete Human being”, and need for learning communities, importance of nature, and inclusion of handwork, i.e. arts and crafts for better engagement and improved retention of acquired knowledge.

The needs of the learning spaces i.e. to incorporate multiple pedagogical approaches, namely- Delivering, applying, creating and communicating is kept in mind while creating the building programme for the project. A 7 acre site is chosen in the institutional sector, Madhurawada,Visakhapatnam which is perfect for as the site is secluded from the hustle of the city.

The thesis book tries to record the design journey taken by the author, in the quest to understand, analyse, critique and apply the knowledge gained, with an aim to create appropriate, comfortable and flexible learning environments and with a hope to set better standards for schools projects to come.

मानकीकृत पाठ्यक्रम और परीक्षण की लोक प्रय और था पत प्रणाली के माध्यम से प्रदान की जाने वाली शक्षा की गुणवत्ता की चंता के साथ, थी सस शक्षा की वैकिल्पक प्रणा लयों को देखती है िजसका उद्देश्य बाल-कें द्रित रणनी तयों और गैरपारंप रक शैक्ष णक ि टकोणों के माध्यम से समग्र वकास करना है। थी सस तब अपनी खोज पर नकलती है, यह समझने के लए क आ कर्डटेक्चर समग्र सीखने के अनुभव में कैसे योगदान दे सकता है सा हत्य और केस टडी से अनुसंधान वैकिल्पक कूलों के शै क्षक दशर्डन और शैक्ष णक ि टकोण और कूल वा तुकला पर उनके प्रभाव पर प्रकाश डालता है। ग्राहक की पसंद के कारण, अथार्डत कृ णमू तर्ड कूल, वशाखापत्तनम, शक्षा पर कृ णमू तर्डके दशर्डन और वचारधाराओं का अध्ययन कया जाता है, जैसे क 'पूणर्ड मानव', और सीखने वाले समुदायों की आवश्यकता, प्रकृ त का महत्व, और ह त शल्प, यानी कला और शल्प को शा मल करना। बेहतर जुड़ाव और अिजर्डत ज्ञान के बेहतर प्र तधारण के लए। सीखने की जगह की जरूरतें यानी कई शैक्ष णक ि टकोणों को शा मल करना, अथार्डत्- प रयोजना के लए भवन कायर्डक्रम बनाते समय वत रत करना, लागू करना, बनाना और संचार करना ध्यान में रखा जाता है। एक 7 एकड़ साइट को सं थागत क्षेत्र, मधुरवाड़ा, वशाखापत्तनम में चुना जाता है, जो क शहर की हलचल से एकांत थान के लए एकदम सही है। थी सस पु तक लेखक द्वारा ली गई डजाइन यात्रा को समझने, वश्लेषण करने, आलोचना करने और प्राप्त ज्ञान को लागू करने के लए उपयुक्त, आरामदायक और लचीला सीखने के माहौल बनाने के उद्देश्य से और बेहतर मानकों को था पत करने की आशा के साथ रकॉडर्ड करने का प्रयास करती है। कूल प्रोजेक्ट आने वाले हैं। सारांश

01. INTRODUCTION 02. 03. 04. SITE STUDY DESIGN PROGRAM

1.1 Project Background....02

1.2 Areas of Research…..03

1.3 Thesis Proposition…..04

1.4 Project Proposal……..05

RESEARCH & CASE STUDIES

2.1 - Client & his philosophy……...09 2.2 -Academic Curriculum…….....11 2.3 - Case Studies

2.3.1 - Sahyadri School, Pune, Maharashtra…………….....13

2.3.2 - Rishi Valley School, Chittoor,Andhra Pradesh...19

2.3.3 -The School, Chennai, Tamil Nadu………………….21

2.4 - Case Studies Matrix…………30

3.1 -Area Programme...32 3.2 - Inferences & Conclusions……....37

4.1 - development norms & implications ……….39

4.2 - site analysis.

4.3 - climatic analysis

42

46

4.4 - design derivatives…...48

Contents
………….
……..

DESIGN PROPOSAL

05. 06. 07. 08. TECHNOLOGY RESEARCH DESIGN DETERMINANTS DESIGN EVOLUTION Contents 5.1 - Self Sustaining Systems………. …..50 5.2 - Structural Systems……………….55 5.3 - Passive Design Strategies…………..57 5.3 - Construction materials…………....59 6.1 - determinants for functional diagram…………...61 6.2 - determinants for zoning & volume disposition………...62 6.3 - determinants for site planning & circulation………..63 7.1 - zoning 1………..65 7.2 - zoning 2………..66 7.3 - zoning 3………..67 7.4 - zoning 4………..68 7.5 - zoning 5 ……….69 7.6 - zoning 6………..70
8.0 - Final drawings & visualisation

Figure

Figure

Figure

Figure

Figure

Figure

Figure

Figure

Figure

siteplan

site

jiddukrishnamurti(source:

sahyadrischool

rishivalley

irani

theschool(source:kfoundation.org)........................................................................................................................

sahyadrischooladminblock

khushruiranidesign

sahyadrischoolmasterplan(source:khushruiranidesign

sahyadrischooladminblockplan (source:khushruiranidesign

Figure11:sahyadrischooladminblocksection (source:khushruiranidesign

Figure12:sahyadrischooldormitories(source:khushruiranidesign

Figure13:sahyadrischooldormitoriessection(source:khushruiranidesign

Figure14:rishivalleyschool (source:rvs.org)......................................................................................................................

Figure15:rishivalleyschoolmasterplan(source:rvs.org)............................................................................................

Figure16:rishivalleyschoolmasterplan(source:rvs.org)............................................................................................

Figure17:rishivalleyschooldormitoryplan(source:flyingelephant.in.).................................................................

Figure18:rishivalleyschooldormitorysection(source:flyingelephant.in)............................................................

Figure19:rishivalleyschooldormitoryexplodedview(source:flyingelephant.in).............................................

Figure20:theschool-kfi(source:theschoolkfi.org)..............................................................................................................

Figure21:theschool-kfiplan(source:theschoolkfi.org)...................................................................................................

Figure22:theschool-kfiplan

Figure23:theschool-kfiassembly&library

Figure24:theschool-kfiart&jr.classroomplan

Figure25:theschool-kfitypicalclassroom

Figure26:theschool-kfi

casestudiesmatrix

theschool-kfiarea

theschool-kfi

Figure

Figure

Figure

Figure

theschool-kfiarea

theschool-kfiareaprogramme(source:

theschool-kfiareaprogramme(source:

theschool-kfisite&its

VMRDAmasterplan

masterplan

1: sitelocation&context…………………………………………………………………………………………………………………………………………………...05
2:
&immediatecontext…………………………………………………………………………………………………………………………………06 Figure3:
&context…………………………………………………………………………………………………………………………………………………………………….07
4:
kfoundation.org).....................................................................................................09
5:
(source:khushru
designstudios)................................................................................ 12
6:
school(source:kfoundation.org).........................................................................................................12
7:
12
8:
(source:
studios).................................................... 13
9:
studios).................................................... 14
10:
studios)...................................... 15
studios).................................. 16
studios)..................................................... 17
studios)..................................... 18
19
20
21
22
22
22
24
25
(source:theschoolkfi.org).................................................................................................. 25
(source:theschoolkfi.org).................................................................... 26
(source:theschoolkfi.org)......................................................... 27
(source:theschoolkfi.org)...................................................................... 28
views(source:theschoolkfi.org)................................................................................................ 29 Figure27:
(source:author)..................................................................................................................... 30 Figure28:
programme(source:author)............................................................................................32 Figure29:
areaprogramme(source:author).......................................................................................... 33
30:
programme(source:author)........................................................................................... 34
31:
author)............................................................................................ 35
32:
author)........................................................................................... 36
33:
immediatecontext(source:author)....................................................................39 Figure34:
2021(source:VMRDA)........................................................................................................40 Figure35:VMRDA
2021ZONE1(source:VMRDA)......................................................................................... 41 LISTOFFIGURES

Figure

Figure

Figure

Figure

Figure

Figure

Figure

Figure

Figure

Figure

Figure

site

site

imageshowingaccessroad

imageshowingaccessroad

imageshowingviewfacing

imageshowingviewfacing

graphshowing

graphshowinghumidity

graphshowingsun

winddirection(Source:

Stagesinrainwater

Stagesinsolarphotovoltaic

framestructuralsystem

structuralsystem

trussstructuralsystem

Figure36:VMRDAmasterplan2021ZONE1Institutionalzone(source:VMRDA)................................................................................42 Figure37:proposed
(source:author)............................................................................................................................................................43 Figure38:proposed
(source:author)............................................................................................................................................................44
39:
tothesite(source:author).........................................................................................................45
40:
adjacenttothesite(source:author).....................................................................................45
41:
srichaitanyajr.college(source:author)................................................................................45 Figure42:
incaphill(source:author).............................................................................................................45
43:
annualtemperature(source:accuweather)..................................................................................................46 Figure44:
level(source:accuweather)...............................................................................................................46
45:
path(source:accuweather)...........................................................................................................................47
46:dominant
https://www.windfinder.com/windstatistics/visakhapatnam_port)...........47
47:
harvesting(source:author)...........................................................................................................................50
48:
system(source:author)................................................................................................................53
49:
(source:engineersdaily.com).............................................................................................................55
50:
(source:engineersdaily.com)...........................................................................................................................55
51:
(source:engineersdaily.com)................................................................................................................56 Figure52:courtyardeffect(source:author)..........................................................................................................................................................57 Figure53:jaliwall(source:author).............................................................................................................................................................................57 Figure54:crossventilation(source:author)..........................................................................................................................................................58 Figure55:compressedearthblocks(CEB)usewithrattrapbondandjaliwall(source:mayapraxis.com)..........................59 Figure56:zoninghierarchy(source:author).........................................................................................................................................................62 Figure57:zoninghierarchy(source:author).........................................................................................................................................................62 Figure58:vehicularmovement(source:author)................................................................................................................................................63 Figure59:pedestrianmovement(source:author).............................................................................................................................................63 Figure60:designiteration1(source:author).......................................................................................................................................................66 Figure60:designiteration2(source:author)......................................................................................................................................................67 Figure60:designiteration3(source:author)......................................................................................................................................................68 Figure60:designiteration4(source:author)......................................................................................................................................................69 Figure60:designiteration5(source:author)......................................................................................................................................................70 Figure60:designiteration6(source:author)......................................................................................................................................................71 LISTOFFIGURES

INTRODUCTION

1.1 - Project Background

1.2 -Areas of Research

1.3 -Thesis Proposition

1.4 - Project Proposal

CHAPTER.01
01

PROJECT BACKGROUND

PROJECT THE SCHOOL-KFI

LOCATION : Madhurawada,Visakhapatnam urban, Andhra Pradesh

PROJECT TYPE : Institutional

As per the Government Proposal

Visakhapatnam Urban Development authority(VUDA), in its 2014 master plan has allotted a site for a school in Madhurawada region which is still left vacant without any development. Madhurawada falls under ecological conservation zone ofVisakhapatnam and the site is closer to Kambalakonda wildlife sanctuary and surrounded by hills, low rise residential buildings on one side.

The environment is perfect for a KFI school as all campuses of KFI are located away from the hustle of the city, nested in the beautiful valleys, hills and forest.., For school with so many values and ambitions, it is only fair to choose a site which is closer to nature and which can provide a safe and secure environment for the children.

02 1.1

AllKFIschools,follow Krishnamurthi’sidealsand incorporatethesequalitiesand nurturethechildrenalongwith theireducati.on

● Krishnamurti's Philosophy on Education and space ● Relationship between space and learning ● Building Materials ● Energy efficiency systems source: kfoundation.org 1.2 AREAS OF RESEARCH
03

1.3 THESIS PROPOSITION

THE SCHOOL-KFI ,VISAKHAPATNAM

The purpose of a school is to bring children together in an environment by creating the potential for intellectual and social exchange in nature, which is not restricted to a closed space

Forschoolwithsomanyvaluesandambitions,whichisclosertonatureandwhichcanprovideasafeandsecure environmentforthechildren.

04
1.4 PROJECT PROPOSAL Site Location – Madhurawada,Visakhapatnam •Distance from airport – 23 km •Distance from railway station – 18km •Distance from cricket stadium , bus stop – 3km Visakhapatnam is the largest city, both in terms of area and population in the Indian state of Andhra Pradesh. It is located on the coast of Bay of Bengal in the north eastern region of the state.ItistheExecutivecapital& FinancialcapitalcityofAndhraPradeshandalsoadministrativeheadquartersofVisakhapatnamdistrict. As per 2011 census, the population of the city was recorded as 20,35,922 making it the 14th largest city in the country and 4th largest city in South India.TheVisakhapatnamMetropolitanRegionisthe9thmostpopulous inIndiawithapopulationof5,340,000 05 Figure 1: site location & context
Site Extent–28,313 sqm(7 acre / 2.83 hectares) FAR - 1.50 Height : 15m Ground coverage: 35% THE SCHOOL-KFI ,VISAKHAPATNAM 06 Figure 2: site plan & immediate context
07 THE SCHOOL-KFI ,VISAKHAPATNAM PROPOSED SITE WITH CONTEXT Figure 3: site & context

RESEARCH

2.1 - CLIENT& HIS PHILOSOPHY

2.2 -ACADEMIC CURRICULUM CASE STUDIES

2.3.1 - Sahyadri School, Pune, Maharashtra.

2.3.2 - RishiValley School, Chittoor, Andhra Pradesh.

2.3.3 - The School, Chennai,Tamil Nadu.

2.3.4 - Case Studies Matrix

CHAPTER.02
08

Jiddu Krishnamurti (11 MAY 1895 - 17 FEB 1986) a philosopher, speaker, and writer.

Krishnamurthi was born in Madanapalle, Andhra Pradesh. He was trained to be the WORLDTEACHER byTheosophical society, which he later disowned and started his own quest for truth.Through many of his talks and books, he clearly stated that he doesn’t belong to any religion, cast or creed. Religion according to him is learning and constantly reinventing one’s self.

Krishnamurthi strongly believed that, to be truly free, one must know themselves from within and should think freely without any prejudices. Krishnamurthi revolutionised the education system, he never believed in preaching and teaching, but through his work it is very evident that, he made the effort to strike the conversation. His ultimate goal was to set man absolutely and unconditionally free.

09 2.1 CLIENT PROFILE
Figure 4: jiddu krishnamurti (source: kfoundation.org)

He talked of the things that concern all of us in our everyday life; the problems of living in modern society, the individual’s search for security, and the need for human beings to free themselves from their inner burdens of violence, fear and sorrow. (KFI, 2017)

He believed that, one can truly be free, sensitive and intelligent, when one goes through the process of right education from a tender age. Learning should be an enjoyment, the child is born with a natural curiosity, to learn, to feel, to love which should be retained and help them further explore themselves and the world.This will bring out a whole new generation of intelligent, fearless individuals creating an ideal society that Krishnamurthi dreamt of. He started few schools and study centres in India as well as abroad to bring his vision into action. After Krishnamurthi, Krishnamurti Foundation is taking care of all these school. (Krishnamurthi, 1963)

In the initial stages, the foundation majorly depended on donors, so they used to build according to the resources available to them. Most of the campuses are built in parts and by different architects, engineers and sometimes even locals. So there is not much structure visible in the school campuses. But there are few design drivers that they follow across all the schools:

● Sustainable building practices.

● Eco-friendly campus.

● Energy efficient systems.

● Protecting the existing ecosystem inside the campus and cultivating it.

● Community engagement

10

2.2Academic curriculum

Junior school

The school is affiliated to the Indian Council for Secondary Education.The students work with a curriculum designed by the school up-to ClassVIII, after which they follow a syllabus prescribed by the Council for the Indian School Certificate Examinations. English is the medium of instruction.Telugu, Hindi and Sanskrit are the other languages the students learn. In class I the children are introduced to formal reading and writing. Inbuilt in the learning approach is an emphasis on learning through the senses and engaging with what is being learnt in a direct and simple manner.The children learn to work on their own, in groups and in the larger setting of the whole class.They learn to be part of the campus relating sensitively to all the creatures and plants. Physical Activity, music, art, craft and clay work are integral to the curriculum. Class II, III and IV work in mixed age groups. Each classroom has children of ages ranging from six and a half years to nine and a half years. In addition to the academic subjects English, Maths and Environmental Science, children are also study languages (Hindi andTamil) and experience music, art, pottery, craft and games as an integral part of their learning. A second language (Hindi orTelugu) is chosen in Class IV.

Middle school

Students of Classes 5, 6 and 7 learn in a mixed age environment. some portion of students of each of the classes work and play together in a classroom.The attempt in these years in school is to help children read independently; make meaning of any text they are given and to understand concepts individually, in groups and with the help of the teacher.The subjects in middle school include English, Maths, Science (Physics, Chemistry, Biology), Social Studies (History & Geography), Sanskrit and a second language of their choice (Hindi orTamil). Environmental education is an important aspect of learning each year.

Senior school

ClassVIII is a threshold class between middle and senior school. In this year children continue some of the practices of middle school and at the same time prepare for their study of the IX and X ICSE Syllabus.The special experiences include understanding and working with aspects of the media, working on projects in areas of their interest in the various subjects, and a history based field trip. for class IX and X, the CISCE offers a wide choice of subjects out of which the students study English, one of the two languages (Hindi orTelugu), social studies, the sciences and mathematics. Some of the other subjects offered areYoga, Physical Education, Computer Applications, and Environmental Applications.

11

School - Sahyadri school

Location - Tiwai hill, Rajguru Nagar, Pune

Founder - Jiddu Krishnamurti

Site area - 26.3 hectares

Affiliation - ICSE & ISC

Architect - Khushru Irani design studios, Pune

Reason for choice

● Same organisation

Principles and ideology Project Brief

Sustainable and eco friendly which

self sufficient

School - Rishi valley school

Location - Madanapalle, AP

Founder - Jiddu Krishnamurti

Site area - 151 hectares

Affiliation - ICSE & ISC

Architect -

Reason for choice

Same organisation

Principles and ideology

School -The School

Location-Thazhambur, Chennai

Founder - Jiddu Krishnamurti

Site area - 1.1 hectares

Affiliation - ICSE & ISC

Architect - Ms. Anupama Mohanram, Green Evolution

Reason for choice

Same organisation

Principles and ideology

Recently constructed

Area of the project

is
12 2.3 CASE STUDIES Figure 5: sahyadri school (source: khushru irani design studios) Figure 7: the school(source:kfoundation.org)Figure 6: rishi valley school(source:kfoundation.org)
TYPE ESTABLISHED FOUNDER LOCATION AREA OS SITE SCHOOL STRENGTH (STUDENTS) No. OF FACULTY GRADES TEACHER, STUDENT RATIO GENDER AGE RANGE AFFILIATION Private boarding school 1995 Jiddu Krishnamurti Tiwai hill, Pune 65 acres 280 50 4 - 12 1:6 CO-educational 8 -17 ICSE,ISC-----Sahyadri school is located off the Pune-Nashik highway, approximately 25 kilometres from Rajgurunagar. 13 2.3.1 Sahyadri School, Pune, Maharashtra. Figure 8: sahyadri school admin block (source: khushru irani design studios)

When they first started building the school campus in 1990’s, Most of the buildings were built by volunteer designers and architects with available funds. The only design brief given by KFI is to build a school that is sustainable and eco-friendly which is self-sufficient.

In 2015, the school campus underwent redevelopment to accommodate new building blocks. We are going to look into the recent buildings to understand, how the architecture has expressed or justified the Krishnamurti's philosophy

source:thinkmatter.in/201704/04/sahayadrischool/ 14Figure 9: sahyadri school master plan (source: khushru irani design studios)

The buildings are semi-rustic in appearance, with ample space between them for strolling – but not so far apart as to engender a sense of isolation..

BUILDING STYLE AND MATERIAL
source:thinkmatter.in/201704/04/sahayadrischool/ ENTRANCE PORCH
OPEN
AIR
THEATRE
CENTRALCOURTYARD ACADEMIC BLOCK 15
Figure
10:
sahyadri school admin block plan (source: khushru irani design studios)

“The architecture of the school is an ensemble of spaces sewn together with tactful geometry and generous circulation. With a keen intent of restraint, the design opens up a universal desire to give fluid space to its users, thereby supporting life within and around it” -Khushru Irani Design studio

source:thinkmatter.in/201704/04/sahayadrischool/ BUILDING STYLE AND MATERIAL 16
Figure 11: sahyadri school admin block section (source: khushru irani design studios)

STYLE

The final finish of all the buildings are plastered walls and exposed concrete structure. Sustainable building practices like rainwater harvesting are made as part of the building structure.

BUILDING
AND MATERIAL source:thinkmatter.in/201704/04/sahayadrischool/ STUDENT DORMITORIES 17
Figure
12:
sahyadri school dormitories (source: khushru irani design studios)

There is a clear balance between built and open. All building blocks are provided with courtyards and the transition between built and open is carefully designed and used as social gathering spaces.

BUILT OPEN RELATIONSHIP source:thinkmatter.in/201704/04/sahayadrischool/ Figure 13: sahyadri school dormitories section(source: khushru irani design studios) 18
TYPE ESTABLISHED FOUNDER LOCATION AREA OS SITE SCHOOL STRENGTH (STUDENTS) No. OF FACULTY GRADES TEACHER, STUDENT RATIO GENDER AGE RANGE AFFILIATION Private boarding school 1926 Jiddu Krishnamurti Madanapalle, Andhra Pradesh 375 acres 360 60 4 - 12 1:6 CO-educational 8 -17 ICSE,ISC------RishiValley is located in the rocky, boulder strewn district of Chittoor, in the south western corner of Andhra Pradesh.It is about 123 km fromTirupati and around 133 km from Bangalore source: rishivalley.org 2.3.2 RishiValley School, Madanapalle, A.P. Figure 14: rishi valley school (source: rvs.org) 19

Krishnamurti created no blueprint for what a school should be. However, the passionate concerns he articulated remain the basis of the school and all its endeavors.

As the school kept developing across 8 decades, there were many architects and designers involved in the process, hence the architectural diversity is clearly visible in the school campus.

Taxila girls dormitory is the latest addition to the campus in 2009 by Flying Elephant Studios.

TAXILAGIRLS HOSTEL

source: rvs.org
20 Figure 15: rishi valley school master plan (source: rvs.org)

VEHICULAR MOVEMENT

it is clearly seen that the campus development over the years and not planned well.

Vehicular movement is restricted in the campus.

The connection between the building blocks is not well planned. The Dining hall is placed at the end of the site causing accessibility issues from the academic block and classrooms in the afternoon session.

Even the zoning of the site plan is questionable.

The vehicular movement inside the site is sorted, without disturbing the learning environment. But the internal movement between dorms, academic and dining hall is very long and complicated.There is no sense of direction or organisation

PEDESTRIAN &
source: rvs.org
Figure 16: rishi valley school master plan (source: rvs.org)
21

BUILDING STYLE AND MATERIAL

A central courtyard is the key element around which individual structures are arranged.

Dormitories are open on two sides allowing for maximum cross-ventilation as well as visual transparency from the court to the greenery around.

Composite screens of steel and local stone that create climatic buffers while providing security, wrap the external facades.

source: flyingelephant.in FLOOR PLAN SECTION 22
Figure 19: rishi valley school dormitory exploded view (source: flyingelephant.in) Figure 17: rishi valley school dormitory plan (source: flyingelephant.in.) Figure 18: rishi valley school dormitory section (source: flyingelephant.in)

BUILDING STYLE AND MATERIAL

All the materials were acquired locally.

Nature is of primary importance in all the buildings

source: flyingelephant.in 23
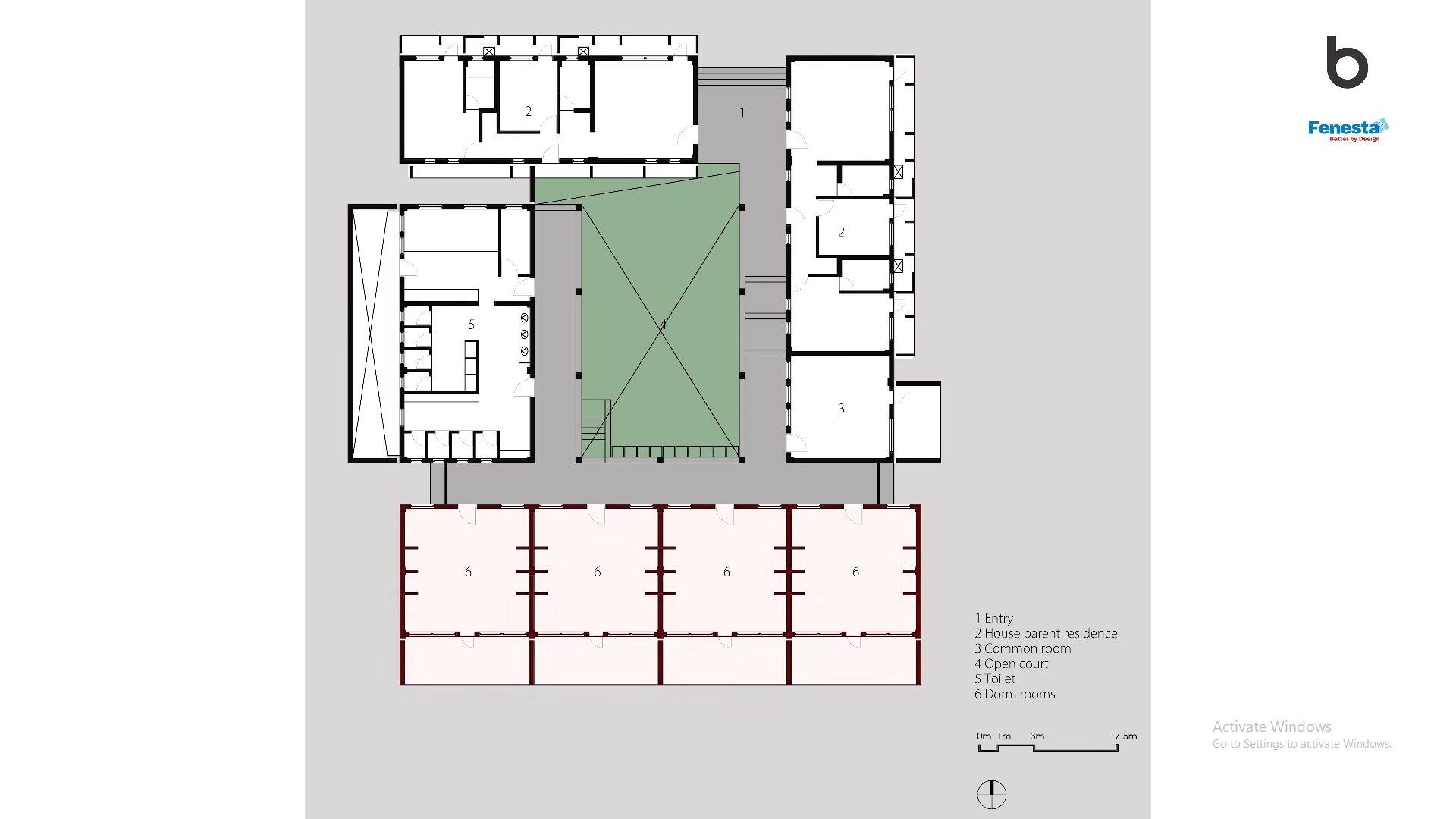
TYPE ESTABLISHED FOUNDER LOCATION AREA OS SITE SCHOOL STRENGTH (STUDENTS) No. OF FACULTY GRADES TEACHER, STUDENT RATIO GENDER AGE RANGE AFFILIATION Day boarding school 2018 Jiddu Krishnamurti Thazhambur, Chennai 2.75 acres 400 35 4 - 12 1:10 CO-educational 8 -17 ICSE,ISC-----The School KFI is relocated toThazhambur (2 km from Navalur junction on Old Mahabalipuram Road) in 2018. It is about 34 km from Chennai source:theschoolkfi.org24 2.3.3 The School, Chennai,Tamil Nadu. Figure 20: the school-kfi(source:theschoolkfi.org)

vehicular movement is strictly restricted in the site

Assembly hall & library is in the heart of the site, as it is one of the most accessed buildings.Through the spatial distribution of the buildings, it clearly seen that walking is encouraged.

Staff rooms are placed in the end. Classrooms were structured around activity patterns, with long corridors for children to gaze at life outside

25
Figure 21: the school-kfi plan (source:theschoolkfi.org) Figure 22: the school-kfi plan (source:theschoolkfi.org)

Assembly hall

Ground level

Total carpet area: 2500 Sq.ft(235 sq.m)

Library - first floor

Total carpet area : 2500 sq.ft (235 sq.m)

Library - second floor

Total carpet area : 950 sq.ft (90 sq.m)

26
Figure
23:
the school-kfi assembly & library (source:theschoolkfi.org
)
Art room Jr. class rooms Typical art room carpet area 570 sq.ft (53 sq.m) Typical classroom carpet area - 600 sq.ft(55 sq.m) spill out over area : 185 sq.ft (18 sq.m) 27 Figure 24: the school-kfi art & jr. classroom plan (source:theschoolkfi.org)
28 Figure 25: the school-kfi typical classroom (source:theschoolkfi.org)

a place of buildings with exposed bricks and nooks and crannies that children can explore.Jaalis cast latticed shadows on semi-circled corridors

At the heart of the school stands an open multi-purpose hall, hemmed in by artwork by children and a library with an arresting wooden staircase that is a climb to both the skylight and imagination. Says Jaideep, “The design hopes to keep alive the philosophy of The School, so that architecture aids education

29 Figure 26: the
school-kfi views (source:theschoolkfi.org
)

CASE STUDIES MATRIX

source:author SECONDARY CASE STUDIES 30 2.4
Figure 27: case studies matrix (source:author)

DESIGN PROGRAM

3.1 -AREAPROGRAMME

3.2 - INFERENCES

CHAPTER.03
31
5 32 Figure 28: the school-kfi area programme(source: author) 3.1 AREA PROGRAMME
33 Figure 29: the school-kfi area programme(source: author)
34 Figure 30: the school-kfi area programme(source: author)
length width 35 Figure 31: the school-kfi area programme(source: author)
AREA 36 Figure 32: the school-kfi area programme(source: author)
3.2 INFERENCES 37 Informalmeetingspacescreatingabufferbetweenclassroomsandopen. lightandventilationalongwithsafetyprecautionsHumanitiesrequired accordingly. Flexiblefurniture.Placedwhere,itcanbeaccessedbybothjuniorandsenior classesaswellasoutsiders. Multipurposehallplacedrightattheentranceandshouldbeconnectedtoadmin anddiningspace Dininghallplacednearkitchenandconnectedtoservicelaneandalsoaccessibleto allcomponentsoftheproject.

STUDY

4.1 - development norms & implications.

4.2 - site analysis.

4.3 - climatic analysis.

4.4 - design derivatives

CHAPTER.04 SITE
38
Site Extent–28,313 sqm(7 acre / 2.83 hectares) FAR - 1.50 Height : 15m Ground coverage: 35% THE SCHOOL-KFI ,VISAKHAPATNAM 39Figure 33: the school-kfi site & its immediate context (source: author) 4.1 DEVELOPMENT NORMS & IMPLICATIONS
PROPOSED SITE VMRDA MASTER PLAN 2021 40 Figure 34: VMRDA master plan 2021 (source: VMRDA)
VMRDAMASTER PLAN 2021 (ZONE 1) ● RESIDENTIALS ● COMMERCIAL ● INSTITUTIONAL ● WILDLIFE SANCTUARY PROPOSED SITE 41Figure 35: VMRDA master plan 2021 ZONE 1 (source: VMRDA)

VMRDAMASTER

location adjacent to the hill

hill) at the road level

PLAN 2021 (ZONE 1) Proposed institutional zone by VMRDA Site
(incap
42 Figure 36: VMRDA master plan 2021 ZONE 1 Institutional zone (source: VMRDA) 4.2 SITE ANALYSIS
12m ROAD 9m ROAD PROPOSED SITEAREA 18mROAD 18mROAD LVL- 500 LVL1000 43 Figure 37: proposed site (source: author) Site Location – Madhurawada,Visakhapatnam •Distance from airport – 23 km •Distance from railway station – 18km •Distance from cricket stadium , bus stop – 3km

SECTIONS

The slope from the road level to end point of the site is approx 2m

1. Section through the site

Figure

section

2. Section through the road

44
38: proposed site
(source:author)
45
Figure
39:
image showing access road to the site (source:author) Figure
40:
image showing access road adjacent to the site (source:author) Figure
41: image showing
view
facing sri chaitanya jr. college (source:author)
Figure
42:
image showing view facing
incap
hill (source:author)

4.3 CLIMATIC ANALYSIS

TEMPERATURE

CLIMATICANALYSIS

Visakhapatnam has a tropical warm and humid/ savanna climate with a pronounced dry season in the low-sun months , no cold season, wet season is in the high-sun months

The annual average temperature is 28.4 degrees Celsius (83.1 degrees Fahrenheit

Average monthly temperatures vary by 8.4 °C (15.1°F). This indicates that the continentality type is hyper oceanic, subtype barely hyper oceanic.

RELATIVE HUMIDITY

According to the Holdridge life zones system of bioclimatic classification

Visakhapatnam is situated in or near the subtropical dry forest biome.

The Relative humidity is higher than 75% for approximately 62% of the time in a year which is roughly 5468 hours. These hours are predominantly scattered in the late night and morning hours except during July, august, September, October and parts of November where the monsoon season starts to control the climatic dynamics.

Figure 43: graph showing annual temperature (source:accuweather)

Figure 44: graph showing humidity level (source:accuweather)

source:accuweather 46

ANALYSIS

SUN PATH

High sun altitude in summer peaking at (95°) and winter solstice angle at (49°).

The sun azimuth ranges from 68° to 105°

Figure 45: graph showing sun path(source:accuweather)

WIND FLOW

The monsoon winds flow from SW to NE during summers and rainy months. The winds flow from NE to SW during winter months • East wind will flow to west through the site from the hill

Figure

CLIMATIC
47
46:dominant wind direction (Source: https://www.windfinder.com/windstatistics/visakhapatnam_port)
•Designshallbesuchthatitaccommodatesthemulti-dimensionallearningneedsofa varietyoflearners-eachofwhommayhavetheirownpaceoflearning.. •The creationofvariousmicroenvironmentsthat help students identify each of them through distinguishable characters capable of imparting learnings. • It should be able to bring deep rooted inner change.Thespacemustspeakofthe addressedphilosophyinasubtleway. • Usage of localavailablematerials • Sustainable building practices likerainwaterharvestingare to be made as part of the building structure. 4.4 DESIGN DIRECTIVES 48

TECHNOLOGY RESEARCH

5.1 - Self Sustaining Systems.

5.2 - Structural Systems.

5.3 - Passive Design Strategies

CHAPTER.05
49

5.1 SELF SUSTAINING SYSTEMS

RAIN WATER HARVESTING

● The average annual rainfall in visakhapatnam is 1071mm

● Rather than allowing it to run off it is better to collect and use it

Secure water supply

● Rainwater harvesting systems in schools will not only help conserve water but also help students understand the concept of sustainable use of natural resources.

Natural Environment

● The water can then be used for any purpose such as watering garden and, with treatment, can be consumed safely.

Improve water quality

● School buildings are ideal for rainwater harvesting as the large roofs provide ample surface area for collection of water.The harvested water can be used for drinking, cleaning and preparing food.

1. Rainwater that collects on the terrace makes its way down a pipe

2. The suction tank filters the water and then sends it to the collection tank for storage

3. From the collection tank, the water is pumped to the roof top tank

Tackle flood 50
Figure 47: Stages in rain water harvesting(source:author)

RAINWATER HARVESTING

Annual average rainfall atVisakhapatnam is 995mm Total catchment area of the project= approx 7000 sq.mt Volume of rainfall on roof =annual rainfall X roof area = 6965 cu.mt Roof runoff coefficient for flat roof = 0.7 Evaporation coefficient = 0.8 Amount of water collected from roof=0.7 X 0.8 X 6975=3900 cu.mt /year Total water harvested per year = 3900 cu.mt Assuming 70% storage capacity at a point of time = 2730 cu.mt /year Depth of tank taken = 3.6m Total area of tank required= 2730 /3.6 = 760 sq.m TECHNOLOGY RAIN WATER HARVESTING Secure water supply Natural Environment Improve water quality Tackle flood 51

TECHNOLOGY

WATER REQUIREMENT

PER CAPITAWATER REQUIREMENT

Secure water supply

a. Day school 45 lt/day per head from NBC

b. Boarding school 185 lt/day per head

Total no of students appx = 450 students

A. Daily water consumption = 450 x 45 = 20,250lt/day

Total no of faculty and support staff appx = 70

B. Daily water consumption by faculty = 70 x 45 = 3150 lt/day

Total water consumption per day = A+B = 20,250 + 3150 = 23,400 lt/day

Natural Environment

Total tank capacity could be 25,000 lt/day

Multipurpose hall + floating population = 400 ppl from NBC = 400 x 15 = 6,000

Total water consumption = 31,000 (i.e tank size required is 31 cu.mt)

Improve water quality

WATER TANK CAPACITY NEEDED IS 31 SQ.M PER DAY

Tackle flood 52

WHY?

SOLAR PHOTOVOLTAIC SYSTEM

● Renewable energy is already becoming a more familiar part of our lives

● Electricity generated from 1kW of solar PV inVisakhapatnam climate is in the range of 1200 - 1500 kWh/year

● Solar power reduce the operating costs of the school

● It provides Unreliable and enough power for school

● Solar power is cutting-edge and attractive to eco-minded students, teachers, and supporters.

● School timings are from 7.30 a.m.2.30 p.m.

Figure 48: Stages in solar photovoltaic system (source:author)

TECHNOLOGY
53

SOLAR PHOTOVOLTAIC

SYSTEM

Total area available for solar panels considering the orientation of is 3000 sq.m

Space required for 1kW OF SOLAR PV installation is in the range 7 - 10 sq.m

Total capacity of solar pv installation on site is approx 500 kW

Electricity generated from 1kw of solar PV in visakhapatnam climate is in the range of 1200 - 1500 kWh/year

From the above data

Total electricity generated using solar PV on site (minimum) rounds upto - 350 X 1200 =420000 kWh/ year

Electricity consumed by person on an average is 0.5kWh/day

As the school has total capacity of 450 students + 70 staff

Electricity consumption for common areas is 25 % of total energy consumption

Electricity consumed per year on site =520 X 0.5 X 365 + 2.5 x 520 X 0.5 X 365 = 332150 kWh/year

TECHNOLOGY
54

STRUCTURAL SYSTEMS

TECHNOLOGY

Frame structural system

STRUCTURAL SYSTEM

● Frame structures are the structures having the combination of beam, column and slab to resist the lateral and gravity loads.These structures are usually used to overcome the large moments developing due to the applied loading.

Two-Way Systems

● As the name suggests, two-way floor and roof systems transfer the supported loads in two directions. Flexural reinforcement must be provided in both directions.

Figure

Figure

Source: https://www.engineerr.com 55 5.2
49: frame structural system (source:engineersdaily.com)
50: structural system (source:engineersdaily.com)

Sloping Chord FlatTruss

Truss is one of the most popular structural forms. It is primarily characterized by saving in material, axial forces, pinned joints and versatility of materials that can be used to

TECHNOLOGY STRUCTURAL SYSTEM ●
.
● 56 Figure 51: truss structural system (source:engineersdaily.com)

5.3 PASSIVE DESIGN STRATEGIES

TECHNOLOGY PASSIVE DESIGN STRATEGIES

Due to incident solar radiation in a courtyard, air gets warmer and rises, cool air from ground level flows through the lower openings

Free air flow

Jalisare a green tool can help you reduce the energy load of cooling and the costs associated with it.

The apertures in thejaliefficiently lessen the ingress of heat in the daytime.They also block the entry of direct sunlight, making for pleasant interiors.

Figure 52: courtyard effect (source:author)

Figure 53 : jali wall(source:author)

57

WARM & HUMID CLIMATE

1. BUILDINGS SHOULD BE SPREAD OUTWITH

MOVEMENT

2. CROSSVENTILATION IS IMPORTANT, LARGE OPENINGS

AIR PATH ANDTO ENSURE

Figure

LARGE OPEN SPACES IN BETWEEN FOR UNRESTRICTED AIR
TO UNOBSTRUCT
PROPERVENTILATION 58
54 : cross ventilation(source:author)

5.4 CONSTRUCTION MATERIALS

RADIANTTEMPERATURE

TECHNOLOGY PASSIVE DESIGN STRATEGIES

● Thermal mass: Compressed Earth Blocks are used for walls, which has a high thermal mass compared to the traditional burnt bricks,Thus helps in reducing the heat gain. And reduces the load on energy used for cooling.

Figure 55 : compressed earth blocks (CEB) use with rat trap bond and jali wall(source:mayapraxis.com)

59

DESIGN PROGRAM

6.1 - SWOTanalysis.

6.2 - determinants for zoning & volume disposition.

6.3 - determinants for site planning & circulation.

CHAPTER.06
60

SWOT ANALYSIS

STRENGTHS

1.With minimal obstruction of roads and access, the site boasts of a silent and serene atmosphere for a project like school.

2.The hills in the context provide channelled winds and scenic views providing a micro-environment suitable for the school.

3.The air and noise pollution are minimal owing to a secluded location.

4.Vicinity to National Highway with designated access.

WEAKNESS

1. Proximity to the ocean leads to high humidity levels

2. Soil type in these region is categorised as coastal sandy soil,

3.There is lack of rich vegetation consisting of tall and dense foliage.

OPPORTUNITY1. The philosophy of Jiddu Krishnamurthy can be strongly resonated in the area chosen for the site.l.

2.The existing natural features and ecosystem (Kambalakonda wildlife sanctuary and other prominent hillocks) around the site..

3.The residential zones surrounding the site an also help in the financial success of the school.

THEARTS

1. Lesser human traffic and pedestrian footfall leads to a lack of vigilance in the site.

2.Weaker structures cannot be built owing to the unexpected strong winds in the site.

61
6.1

Determinants:

FOR ZONING & SITE

Determinants:

62 6.2 DETERMINANTS
PLANNING
Hierarchy of spaces in terms of privacy Inter-relationship between functions Considering the existing features of the site.
Existing vegetation around the site. Relevant pause points in relation with the context Wind direction. Sr & labs Dining & multipurpose hall Arts & library Sr & labs Jr. & middle school Administrative blockDining & multipurpose hall Arts & library Open spaces Figure 56 : zoning hierarchy (source:author) Figure 57 : zoning hierarchy (source:author)

6.3 DETERMINANTS FOR CIRCULATION

Figure 58 : vehicular movement (source:author)

VEHICULAR MOVEMENT

Determinants:

Minimal Vehicular circulation inside the site.

Vehicular circulation without disturbing internal harmony inside the campus.

Serving Requirements.

Figure 59 : pedestrian movement (source:author)

PEDESTRIAN MOVEMENT

Determinants:

Providing an internal spine connecting all built and open spaces.

Giving multi directional spaces, which provides children with option to choose their own path among variety of options, it can be a narrow path through trees so that they can have their alone time to think and process their thoughts or the common path where they can talk with their peers and can see the activities happening around

63

DESIGN EVOLUTION

7.1 - zoning 1 7.2 - zoning 2 7.3 - zoning 3 7.4 - zoning 4 7.5 - zoning 5 7.6 - zoning 6

CHAPTER.07
64

1.All the building blocks are placed around the play area

2.Admin block is placed at the entrance

3.More emphasis on zoning, should right at the entrance at the same time needs to be connected with the academic and dining area.

Design iteration 1 65 Figure 60 : design iteration 1 (source:author)
ADMIN BLOCK CLASSROOMS ARTBLOCK TOILETS MULTI PURPOSE HALL CORE H.CIRCULATION DINING HALLS LVL- 500 LVL- 1000 6MSETBACK 6MSETBACK 6MSETBACK 6MSETBACK 7MSETBACK 9MROAD 18MROAD 66 Figure 61 : design iteration 2 (source:author) Design iteration 2 1.All the building blocks are placed around the courtyard 2.Admin block is placed at the entrance 3.More emphasis on zoning, should right at the entrance at the same time needs to be connected with the academic and dining area.

SITE

1.Entrance to the site is from 9m road

2.Admin block is placed at the entrance

PLAN GROUND FLOOR LVL WITHTREE'S 67 Figure 62 : design iteration 3 (source:author) Design iteration 3

1.All the building blocks are placed around the play area

2. Dining hall and multipurpose hall will be connecting all senior, jr & middle school students

3. Green area is placed in the area adjacent to 18m road to avoid noise pollution

68 Figure 63 : design iteration 4 (source:author) Design iteration 4

1.All the building blocks are placed around the play area

2. Dining hall and multipurpose hall will be connecting all senior, jr & middle school students

3. Green area is placed in the area adjacent to 18m road to avoid noise pollution

4.Admin is placed at the entrance

69 Figure 64 : design iteration 5 (source:author) Design iteration 5

1.All the building blocks are placed around the play area

2. Dining hall and multipurpose hall will be connecting all senior, jr & middle school students

3. Green area is placed in the area adjacent to 18m road to avoid noise pollution

4.Admin is placed at the entrance

70 Figure 65 : design iteration 6 (source:author) Design iteration 6

PROPOSAL

CHAPTER.08 8.0 - final drawings & visualizationsDESIGN
71
SITE VIEW FROM SOUTH 72
SITE PLAN 73
73 74 JUNIOR’S & MIDDLE SCHOOLBLOCK VIEW

G.F

75 JUNIOR’S & MIDDLE BLOCK PLANS & SEC
F.F
76 SENIOR’S & LABS SCHOOLVIEW

G.F

77SENIOR’S & LABS SCHOOL BLOCK PLANS & SEC
F.F

G.F

78 ADMINISTRATION BLOCK PLANS & SEC
F.F

G.F

79 DINING & MULTIPURPOSE BLOCK PLANS
F.F
80 F.F
81KFI-THE SCHOOLVIZAG - 3D VIEW
82KFI-THE SCHOOLVIZAG - 3D VIEW
83KFI-THE SCHOOLVIZAG - 3D VIEW

curriculumofTheschool–KRISHNAMURTIFOUNDATIONOFINDIA(http://theschoolkfi.org/curriculum/eleven.php)

Visakhapatnamurbandevelopmentauthority-VUDA(http://www.vuda.gov.in/)

Krishnamurti,J.TheAwakeningOfIntelligence.1sted.NewDelhi:PenguinBooks,2000.Print.

Krishnamurti,J.(Jiddu).KrishnamurtiOnEducation.1sted.1974.Print.

Laws

Pallasmaa,Juhani.TheEyesOfTheSkin.Chichester,WestSussex[U.K.]:Wiley,2012.

● "RISHIVALLEYEDUCATIONCENTRE-Overview-History".Rishivalley.org.N.p.,2017.Web.23Jan.2017.

● "VisakhapatnamWeather-AccuweatherForecastForAndhraPradeshIndia".AccuWeather.N.p.,2017.Web.16Feb.2017

● Jain,A.K(1998),SchoolBuildings:Planning,DesignandManagement,Managementpublishingcompany

FlyingElephantStudios,2013.FlyingElephantStudios.

● studios,KhushruIraniDesign,2015.Thinkmatter.

● Teja,R.R.,2016.SchoolforJidduKrishnamurtiFoundation,Delhi:SchoolofPlanningandArchitecture

● CBSEAffiliation
● Neuter'sHandbook ●
84 BIBLIOGRAPHY

Turn static files into dynamic content formats.

Create a flipbook