



Mere end 50 år i Hørning
Hos HWAM A/S har vi specialiseret os i produktion af brændeovne og pejseindsatse, som gennem mere end 50 år har sat sit præg på branchen med tidløst dansk design og banebrydende teknologi. Med base i Hørning, Danmark, har vi etableret os som en førende leverandør af varmekilder ved at kombinere æstetik med god forbrænding og meget nem betjening. Vores brændeovne og pejseindsatse er kendt for deres elegante udtryk og innovative funktioner, hvilket har gjort dem populære både nationalt og internationalt.
Det er med stor glæde, at vi nu kan præsentere tre helt nye serier. Dette inkluderer den modulopbyggede hjørne-brændeovnsserie HWAM 5600, den alsidige modulopbyggede HWAM 5500 serie og hjørneindsatsen HWAM I 40/56. Lad dig inspirere og find den model, der passer til dine behov. Velkommen til en verden af stilfuld opvarmning og nem betjening fra HWAM A/S.
Stefan Hvam Pedersen
Adm. direktør
Indhold
Designerne og tankerne bag serierne
Funktioner
Designdetaljer
Oversigt over serierne Tekniske tegninger og mål
Indhold
S. 5
S. 8
S. 10
S. 14
S. 16


Gennemtænkt dansk design
De to nye modulserier HWAM 5500 og HWAM 5600 og pejseindsatsen HWAM I 40/56, som alle er designet af Sørig & Jacobsen, er udviklet med varme og arkitektur som udgangspunkt. Funktion og form går hånd i hånd med respekt for indretning i alle disse designs.
HWAM I 40/56 er pejseindsatsen, der frit kan placeres hvor der er et hjørne ledigt i boligen. Idéen om et diskret indbygget ildsted bringes her til live. Ordet tidløst misbruges i mange sammenhænge, men netop denne serie er meget tidløs og derfor nem at integrere i boligen i såvel nybygget som i æl dre arkitektur. Grebet er udformet diskret og placeret næsten skjult under lågen. Det er udstyret med en fleksibel fjeder, der gør lågen meget nem at åbne, trods den lille størrelse.
Modulserierne HWAM 5500 og HWAM 5600 bygges op af elementer og kan suppleres med høje og lave moduler, med plads til opbevaring af brænde, optændingsgrej og dit favorit pynt. Dertil har du mulighed for at tilføje varmelagringssten i de fleste modeller, så varmen afgives over længere tid.
De tre nye HWAM-serier byder på ren formgivning med fokus på ilden og arkitekturen, som giver dig plads til at opleve ilden med så få men gennemarbejdede detaljer som muligt.




At finde den eneste ene er som at finde en sjæleven, en der får hjertet til slå et ekstra slag og få tankerne til at svæve. Det er i dette møde af tilfældigheder at magien opstår. Når du vælger en HWAM brændeovn vælger du ikke bare en varmekilde. Det er et møbel i dit hjem - et lille stykke kunst du kan varme dig ved og nyde at kigge på. Et lille stykke kunst du kan lade dig fortrylle af hver eneste dag. Hvilken af de nye HWAM modeller er din eneste ene? Scan koden nedenfor og se en lille film med HWAM 5580.
Scan koden og se en lille præsentation af HWAM 5580



Funktioner
der løfter din HWAM model op i særklasse, så du har masser af tid til hygge



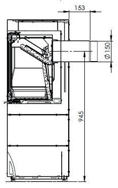
Røgafgang
Vælg mellem top og bagudgang.
Højde HWAM 5500 fås i to forskellige højder mens HWAM 5600 fås i tre højder. Der kan tilkøbes ekstra moduler for at øge højden.
Varmelagring fordeler varmen over tid
Nyd fordelen af varmelagring i din brændeovn. Når du tilføjer varmelagringssten i brændeovnen, forbedres evnen til at bevare og afgive varme over tid, efter at ilden er gået ud. Denne effekt opnås ved anvendelse af materialer med høj termisk masse, der absorberer og lagrer varmen fra forbrændingen. Når brændeovnen er varm, akkumuleres varmen i dette materiale og frigives gradvist i rummet, selv efter at ilden er gået ud. Dette forlænger opvarmningseffekten og gør din brændeovn mere effektiv og økonomisk i brug.
Rudeskyl holder glasset rent
Alle HWAM modeller er udstyret med rudeskyl, der leder den varme luft ned på indersiden af glasset fra toppen. Denne teknik gør, at dannelsen af sod reduceres. Det har den fordel for dig, at du har et flot indkig til flammerne og behovet for rengøring af glasset mindskes.
Konvektion
Alle HWAM brændeovne er konvektionsovne. Det vil sige, at brændeovnen meget hurtigt efter optændingen giver varme fra sig. Varmen flyttes ved en naturlig luftstrøm og ikke kun ved varmestråling. Resultatet er et behageligt indeklima og en ensartet temperatur i hele rummet. En anden fordel er, at yderkappen på brændeovnen ikke bliver særligt varm. Der kan således møbleres i ganske kort afstand til brændeovnen.
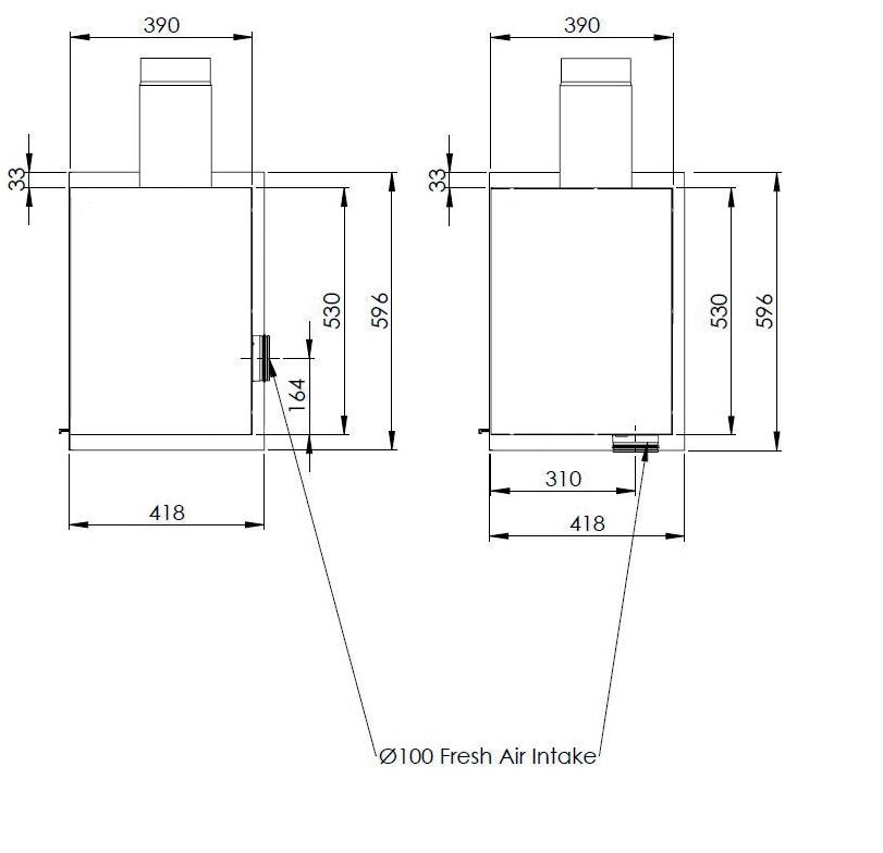
Friskluftsystem sikrer luft til brændeovnen
Bor du i et nyere hus vil det sandsynligvis være så lufttæt, at det kan give udfordringer når du fyrer op i brændeovnen. Når du tilkøber et friskluftsystem, undgår du dette. Ved at installere friskluftsystemet får brændeovnen luft udefra og du opnår bedre forbrænding og nemmere optænding.
Luften styres for dig
Alle HWAM brændeovne er som standard udstyret med HWAM® Autopilot™, der hjælper dig til at opnå en god forbrænding. I takt med at temperaturen stiger og falder i brændkammeret, vil en bimetalfjeder udvide sig eller trække sig sammen, hvorved lufttilførslen reguleres. Når ilden er ved at dø ud, åbnes spjældet igen automatisk, og du kan genindfyre eller lade ilden dø ud.

og arkitektoniske karakteristik, for at sikre det mest æstetiske udtryk. Modulbrændeovnene fås fra højde 950 mm.


Smuk opbevaring af dit brænde
Vælg et højt modul til smuk og praktisk opbevaring af dit brænde og andre ting du holder af at se på. Kunstfuldt arrangerede brændestykker giver et stilfuldt og fuldendt udtryk til rummet.

Alt lige ved hånden
Gør det endnu nemmere for dig selv. Vælg et flot og praktisk skuffesidemodul med push funktion til opbevaring af dine optændingsværktøjer og dit brænde. Fås i to bredder og med ege- eller valdnøddefront.

Først og fremmest bør du kaste din kærlighed over brændeovnens flotte design og stilrene udtryk. Derefter må du minde dig selv om, at skønhed i bund og grund kommer indefra. Det er de små, men vigtige detaljer, der gør den helt store forskel. Det er de gennemtænkte konstruktioner og det rigtig gode forbrændingssystem, der kommer til at gøre en forskel i din hverdag. Din HWAM brændeovn er lavet for at opfylde dine behov – på den aller nemmeste måde.

Oversigt over nye serier
Sammensæt det brændeovnsmodul du foretrækker med et lavt modul med skuffe eller et højt modul til brænde og andet smukt at se på. Det er kun din fantasi, der sætter grænserne...


















































































