Architectural Undergraduate Portfolio I Harshitha S I WCFA

Page 1

ARCHITECTURAL PORTOFOLIO

Selected Works 2019 - 2023

HARSHITHA S

Experience

Competation

CPK Trophy 2022 I NASA

ANDC Design Trophy 2022 I NASA

ZONASA Dance Trophy 2021 I NASA

Harshitha S

E- Mail : 2019_harshitha.s@wcfa.ac.in harshitha.17ssl@gmail.com

Phone no : 8762149218

DOB : 17.06.2001

Address : #10466, ‘Hridya’ Hightension road Vijayanagar 4th stage, second phase, Mysuru.

Nationality : Indian

Languages : Kannada, English, Hindi

Others : Professional Bharatanatya dancer ( vidwat )

Hobbies : Dance, Music, Movies

YouTube Channel : Hridya.Mysuru

EDUCATION

B.Arch : Wadiyar Center For Architecture, Mysuru

Pre-University : Sadvidya Semi-Residential College, Mysuru

School : Mahajana Public School, Mysuru

Skills

Mannual Skills

Hand drafting

Diagramming

Measure Draw

Basic Model making

Software Skills -

Drafting

AutoDesk AutoCAD

3D Modelling

Sketchup

Rendering

Enscape for SketchUp

V-Ray for SketchUp

Adobe suite

Illustrator

Photoshop

InDesign

MS Office

Presentation

Excel

Word

Others

AutoDesk Sketch book

Procreate

Google earth

3.

4.

5.

Alternative School

Public Library

Kishkinda Trust Working Drawing

Miscillaneous works

Sem 07

Sem 06

Sem 05

Sem 06

Selected works

CONTENT 1. 2.

Kishkinda Trust

SEM 07 - Industrial design Sustainability approach

FACULTIESProf. Anand Krishnamurthy

Prof. Prashant Girish Pole

Asso. Prof. Surendran Aalone

Asst. Prof. Asijit Khan

BRIEF -

The intent of this semester is to understand the word “sustainability” and its essence when it comes to architecture. This studio’s focus calls for an industrial building and will explore three variables; human comfort, climate responsiveness and resource efficiency.

The intent of the studio is to create a better and unified working condition for wokers and also create and platform for new generation to learn and take forward the handycraft.

The tourist attraction to the project should also be considered

LOCATIONAnegundi, Karnataka

SITE - 10,000 sq.M

Related Study project

The present report is a collection of the work done by the 7th semester students of Wadiyar Centre For Architecture, on their visit to Anegundi. Since the semester focuses on ideas of sustainability, the intent was to look at small scale industries and their functionality in a rural context. As a reference study, the students were taken to The Kishkinda Trust, an NGO that focuses on women empowerment and other welfare activities in Anegundi.

ANEGUNDI

Hampi is the former capital of the Vijaynagar empire in Northern Karnataka. Although in ruins today, this city once boasted riches known far beyond the shores of India. The ruins of Hampi of the 14th Century lie scattered amidst giant boulders and vegetation. Protected by river Tungabhadra in the north and rocky granite ridges on the other three sides, the splendid remains of palaces and the gateways of the broken city silently narrate the story of grandeur splendor and fabulous wealth along with tales of men with infinite talent and power of creativity.

THE KISHKINDA TRUST

Established in 1997 by Shama Pawar, TKT has been empowering the local community of Anegundi through crafts, heritage restoration, upskilling of locals and education in performing arts.

They aim to develop a model village that is economically, socially and environmentally sustainable.

Kishkinda trust, Anegundi village Kishkindha Trust Construction material Human Resource map Kishkindha Trust work Restored Heritage
Street Elevation
work- Kishkindha Trust work- Restored Heritage

Cocept & Context

Sub Ground Ground First Floor Terrace Massing Diagram Built Sheltered Open to sky With Plantation Without Plantation - After Harvest
Initial Zoning
Site - Anegundi , Hampi

Context

- Hot and Dry climate ( Semi-arid)

- Maximum temp - 42° C in May

- Minimum temp - 21 ° C in January

- Average temp – 33 ° C

- Average rainfall – 248 mm in a year

- Average humidity – 42 %

Temple at the junction Public Building at the junction

Lime Plaster

- Thermal comfort

- cost of construction

- durability of the structure

- Easy maintenances

- Reduce dead weight

Fly ash bricks

- Minimum Carbon footprint

- Properties similar to normal brick

- Light weight

Surkhi Plaster

- There is a global sand shortage. So, surkhi mortar can be used as an alternative.

- It has a low heat of hydration. Thus doesn’t require curing.

- It is more resistive to alkalis and salt solutions.

Earth flooring

- Cools the temperature of the space

- Does not crack when groves are made

- Natural with many finishes

- Strong and durable

- Does not absorb water

- Cools the temperature of the space

Kadappa Stone flooring Cement Flooring Tungabadra river on the east Buffer between the site and the river Boulder - River View from the site
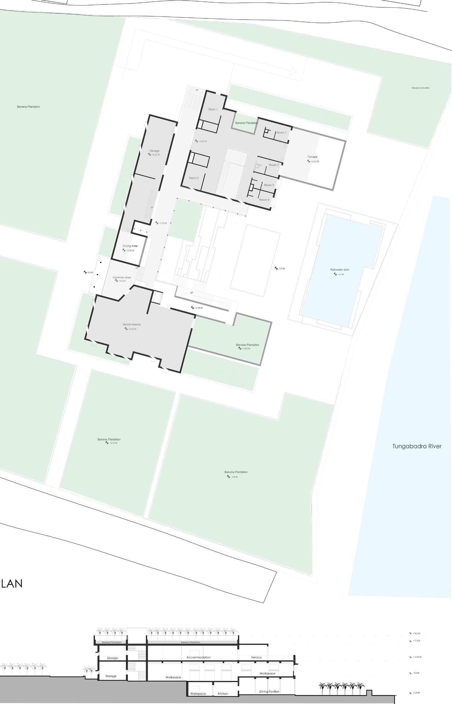
First Floor Plan @ +3750 M Ground Floor Plan @ +1500 M
3350 2575 270 450 600 1050 175 -3.75 M +3.5 M +7.6 M Corridor Corridor Foundation Earth Flooring Cill +0.15 M) Window 750 x 750 MM) Lintel RCC Beam (Depth - 450 MM) Concrete Flooring Paraphet Coping RCC Beam (Depth 600 MM) Plantation Drainage Retailing Wall Backfill Compact Earth South Wall Section Plan

Climatic response stratergies

Opening sizes and angles

Sun path analysis - for facades

M 0.75 M + 7.0 M + 8.45 M ROAD ROAD -3.9 M 0.75 M ROAD ROAD -3.75 M + 0.75 M + 3.5 M + 7.6 M + 8.5 M + 7.0 M + 3.25 M - 3.9 M -0.75 M AD 07 Sustainability - Industrial Design NORTH Harshitha S 4CM19AT025 Sem 07,batch 2019 ANEGUNDI SITE 1 SECTION EE’ SECTION FF’ TRANSVERSE SECTION - WORKSPACE LONGITUDINAL SECTION - WORKSPACE Research Library Research Studio Common area Workspace Workspace Kitchen Parking area Accommodation Banana Plantation Banana Plantation Research Studio Banana Plantation Common area Workspace Parking area Accommodation Banana Plantation Workspace Courtyard SCALE - 1 : 200 SCALE - 1 : 200 SCALE - 1 : 100 SCALE - 1 : 100 KEY PLAN DIAGRAM A A’ B B’ C C’ D D’ E E’ F F’ 00 AM at East wall 00 PM at West wall Sun Angle Summer – 61 degree Winter – 45 degree Wall angle – 30 degree Sun Angle Summer – 73 degree Winter – 51 degree Wall angle – 30 degree Winter Summer Sun Angle Summer – -99 degree Winter – -150 degree Wall angle – 24 degree 01 00 PM at West wall Case I Case II Sun Angle Summer – -99 degree Winter – -150 degree Wall angle – 156 degree Sun Angle Summer – -99 degree Winter – -150 degree Wall angle – 24 degree 01 00 PM at South wall Case Case II Sun Angle Summer – -99 degree Winter – -150 degree Wall angle – 156 degree South Facade West Facade North Facade East Facade

ALTERNATIVE SCHOOL

SEM 06 - Institution Relm

FACULTIES -

Prof. Srinivas S G

Asst. Prof. Ryan Thomas

Asso. Prof. R Kiran Kumar

Asso. Prof. Surendran Aalone

Asst. Prf. Kavana Kumar

BRIEF -

The semester focuses on architectural design of institution scale. The working, organisation, publicness, and the contribution of people to an institution is understood and catered.

The institution considered is an Alternative school in an urban setup following the phylosophical idealogies of Jiddu Krishnamurthy, catering children of age 6 - 16 years. The school id considered as non- residential and for dayschoolars of the neighborhood with a strength of 40 per class and proportional number teachers.

The school caters for all the interests of students, right from dancee, music , art to cooking and baking along with following ICSE syllabus for higher classes. The institution belives in freedom to think, no hierarchy and to live with

LOCATIONNasik , Maharashtra

SITE - 8,000 sq.M

Site Analysis

Cocept & Context

Site - Nasik city center

Zoning

Vegetation

Buildings around the site

Concept

Figure Ground Map Site dimensions Entrance Plaza Mini-Library for primary

Vegetation - Trees

dimensions

Learning space - regular classes (with collapsable enclousers)

primary level students

Learning space - group activity (with collapsable enclousers) - turns to be a multifunctional space

Plan at -3.0 M NORTH Section BB’
Section AA’
at +2.0 M NORTH
Plan

THE LIBRARY SEM 05 - Public Relm

FACULTIES -

Prof. Anand Krishnamurthy

Asso. Prof. R Kiran Kumar

Asst. Prof. Shreyas Baindur

Asst. Prof. Akash Rai

Asst. Prof. Asijith Khan

Asst. Prof. Shashank Satish

BRIEF -

The intent semester is to have an understanding of the human interactive and publicness of a project. This also includes understanding the context in city basis. The town context chosen , Srirangapattana, is an island surrounded by river Kaveri, having a historical imporatnace and a tourist attraction very closely located to city Mysuru.

The intent of the studio is to create a public library to hold and spread the importance of the town along with being a guide.The design path taken is a precedent study from which inspiration is drawn and is interpreted in own ways.

LOCATION -

SriRangapattana , Mandya

SITE - 1,800 sq.M

Precedent Study

Phillips Exeter Library

Architect - Louis I Kahn

Diagramming

Publicness of the space

SITE CONTEXT - Srirangapattana

Massing Iterations

Fort Wall

Railway Station Road

SITE

Volumn difference

Residential Road

Division of space

The carol consists of an elaborate adjustable louver, with a minimalist study table attached to it.

This helps the user to adjust amount of light and outside vision during the use. For safety purpose, the carol can be only rotated to 75 degree.

Hollow (void) Vertical (Book stack) Horizontal (Reading space) Furniture Detail - Study carol
At – 2.0 m At + 2.0 m At + 5.0 m At + 8.0 m At + 12.0 m Usable solid area Frame area for circulation Common Plinth Unusable are
Iterations
Cafeteria Public reading Plan at 2.0 M Plan at 6.0 M NORTH Longitudinal Section Material Uneven exposed brick Relates to the fort wall front Light Columnated side of wall Material Uniform exposed Relates to the Light Above parallel
Lobby Study Relax reading Kids reading Material Rusty exposed brick Relates to the fort wall in front Light Through clerestory brick in exposed Stone the fort wall in front parallel beams Material White painted brick wall with wooden carrels Light Vertical adjustable louvers Material Steal frame with timber skin Not enclosed completely Light Play of light through the wooden panels Material Uniform exposed brick Gives the space an order Light Adjustable Windows

Working Drawing

SEM 06 - Housing project

FACULTIES -

Prof. Srinivas S G

Prof. Manoj Ladhad

Asso. Prof. Thyagarajan C

Asst. Prof. Gregory M Anto

Asst. Prof. Surendran Alone

BRIEF -

The studio looked at the need for clear and accurate drawings that would make execution of workon site easier. The need for well thought of details and skill of representing that through drawings was the objective.

The semester takes up a housing projected designed within the semester on desirable location of site.

LOCATION -

Vijanayar , Mysuru

SITE - 2,600 sq.M

Column Marking

Excavation drawing

Beam-Slab Framing layout

3100 4420 4420 1820 4120 1920 2000 4920 3100 2700 4620 1720 4190 5620 C D F G 1 3 4 6 S1 S12 S15 S17 S18 S19 S23 S34 S39 S38 S40 S41 3100 2700 4620 1720 4190 4420 4420 1820 4120 1920 2000 4920 3100 2700 4620 1720 4190 5620 A B C D E F G H 1 2 3 4 5 6 7 8 9 10 11 14 12 13 I J LIVING ROOM BED ROOM BED ROOM KITCHEN TOILET LAUNDRY UTILITY BALCONY TOILET TOILET TOILET TOILET TOILET TOILET TOILET KITCHEN KITCHEN UTILITY UTILITY BALCONY BALCONY BED ROOM BED ROOM BED ROOM BED ROOM BED ROOM BED ROOM BED ROOM LIVING ROOM LIVING ROOM LIVING ROOM TOILET LAUNDRY DINING DINING DINING FOYER FOYER FOYER FOYER 4420 1820 4120 1920 2000 4920 D 6 11 12 13 15 C 100 100 100 500 500 100 100 500 100 500 100 500 100 600 300 100 100 600 100 500 100 500 100 100 500 100 100 100 500 100 500 100 100 100 100 100 100 100 100 100 300 100 500 100 500 100 100 100 100 100 500 100 500 100 200 100 400 100 100 100 100 100 100 100 100 100 100 200 500 100 500 100 100 100 C1 C8 C16 C36 C24 C2 C3 C4 C5 C7 C6 C9 C10 C12 C11 C14 C13 C15 C18 C23 C35 C19 C25 C37 C26 C27 C28 C29 C30 C31 C33 C32 C34 C38 C39 C40 C41 100 100 C17 C20 C21 C22 TRANSITION LEVELS COLUMN MEASUREMENTS FOUNDATION TO TERRACE FLOOR COLUMN ID's 200x600 C1, C2, C3, C4, C5,C6,C7, C8, C9,C11, C13, C14, C15, C16, C17, C18, C19, C20, C21,C22,C23,C24,C25,C26,C27,C28,C29,C30,C35,C36,C37,C38,C39,C40,C41 200x200 C31, C32, C33, C34 5620 4190 1720 4620 2700 2000 1100 2000 2700 4620 1720 4190 5620 1100 2000 1650 770 100 500 300 100 500 100 8600 8600 9600 8600 9600 9780 200x750 C10, C12 DRAWING TITLE LOCATION PROJECT TITLE CLIENT ACCEPTED BY GENERAL NOTES MR. ____________ Ph.no. ___________ AISHWARYA S WCFA Mysuru Kalyaninagar, Mysore WD II PROJECT NO SCALE 62100 Mix ratio Cement Sand Aggregates 1: 1.5 :3 COLUMN MARKING WD II DRAWING TITLE LOCATION CONSULTANT DESIGN CLIENT DATE PROJECT NO SCALE ACCEPTED DRAWN GENERAL CHECKED MR. ____________ MR. ____________ Ph.no. ___________ Ph.no. ___________ BHAVYASHREE WCFA Mysuru 50 KEY 2700 4620 1720 4190 5620 4420 4420 1820 4120 1920 2000 4920 2700 4620 1720 4190 5620 A B F G 2 3 11 12 13 1200 1400 1000 1425 1400 900 1200 818,8 800 3220 2400 1400 2400 2400 2400 2400 2400 1400 2400 2400 2400 1200 1200 2400 2400 2400 2400 1400 1400 1200 2400 2400 2400 2400 1200 2400 2400 2400 3000 2000 1100 1300 2000 C3 C10 C15 21 C22 28 30 36 C 32 C 34 35 40 C42 4000 4550 1200 T12@100C/C T12@100C/C Typical Floor PLan

A housing complex in a site of 2,460 sqaure meter, rising to a height of 16 meter with G+1 frame structure.

It consists of units with one to three bhk houses with four units per floor with central service core and a underground parking lot.

2BHK Electrical Layout Electrical Schedule

Wall

Beam

Ceiling

Telephone

Washing

- Typical Floor Plan

- Column Marking layout

- Excavation drawing

- Slab - Beam framing layout

- Electrical layout for one unit

- Electrical schedule

Architects : Aishwarya S, Bhavya Shree, Harshitha S, Sanjana S

Client : Accepted by : Wadiyar Center for Architecture

Project : ‘Ikya’ Housing Location : Vijayanagar , Mysuru

Drawings Listed : NORTH

All Dimensions are in MM

General Notes :
MB DB LAN TV AC G G SB-1 SB-2 SB-7 SB-8 SB-9 SB-11 SB-10 SB-3 SB-4 SB-5 SB-6 SB-28 SB-27 SB-26 SB-25 SB-24 SB-23 SB-22 SB-20 SB-21 SB-14 SB-15 SB-16 SB-17 SB-18 SB-19 SB-12 SB-13 1 2 3 4 5 6 16 9 8 7 15 10 11 12 13 23 22 21 20 2 1 17 18 24 27 26 25 29 28 30 31 35 34 32 33 63 55 56 57 4 60 59 58 64 62 61 53 54 52 51 50 41 40 45 46 47 3 44 43 42 38 39 37 36 14 19 48 49 FOYER FOYER DINING KITCHEN TOILET BEDROOM 2 TOILET BEDROOM 1 UTILITY BALCONY SB-29 X 2X X X X X 2X 2X X X X 4X X X X 4X X 4X X 2X 2X X X X X X W WM X 2X X 2X X X 2BHK ELECTRICAL LAYOUT 65 DRAWING TITLE LOCATION PROJECT TITLE CLIENT ACCEPTED BY DRAWN BY GENERAL NOTES CHECKED BY MR. ____________ Ph.no. ___________ SANJANA S WCFA Mysuru Kalyaninagar, Mysore
II DATE PROJECT NO SCALE 01 REV DESCRIPTION DATE ELECTRICAL LAYOUT HARSHITHA S Switch board SB-01 SB-02 SB-03 SB-04 SB-05 SB-06 SB-07 SB-08 Hieght From FFL. 1350 1350 450 1350 450 450 1350 1050 SB-09 SB-10 SB-11 SB-12 SB-13 SB-14 SB-15 SB-16 450 1350 1350 1350 1350 1050 SB-17 SB-18 SB-19 SB-20 SB-21 SB-22 1350 450 450 1350 1350 1350 SB-23 SB-24 SB-27 1350 1350 450 1350 Ceiling Fan point01 (2W )-4 (2W)-03 (2W)-03(2w) 2--33 , 342BHK ELECTRICAL SCHEDULE 26 17-18 , 25-27 15 19-20 , 21-22-36-38 , 37 43-46 (2W) ELECTRICAL SCHEDULE Ceiling light point 01 (2W) 01 (2W) , 0261 , 62 ,65 56-59 (2W) 55-57 60-62 56-59 (2W)51-53 42-44 , 45-47 43-46 (2W) 30-31 Wall / beam light point 03 16 52 14-50 ,5439 48 23 28 , 29-32 (2W) 24 1 x 5A 1 x 5A 1 x 15A 2 x 5A 2 x 5A 1 x 5A 2 x 5A2 x 15A 2 x 5A 4 x 15A 2 x 5A Plug point Misc. Symbol1 x 5A 2 x 5A 1 x 5A 2 x 5A 2 x 5A TV , LAN SB-XX----GEYSERWATER PURIFIEREXHAUSTCCTV Camera CALL BELL
light point
point
WD
Fan
light point
light point
Switch board
point
Television point LAN point AC
point
machine point
point
purifier point
point under sink
bell Distribution box Meter board Chandelier Light Description LEGEND2 x 5A - 3 x 5A - 4-7 , 5-8 , 6-9 -63 , 64 AC - 2 x 5A - 2 x 5A 4 (2W)GEYSER--- 40 ,41CHANDELIER 2 x 15A 2 x 5A 1350 2 x 15A 2 x 5A SB-28 SB-29 1350 - 10-12 , 11 - 1 x 5A 1350- 32 (2W) 1 x 15A 2 x 5A WASHING MACHINE 01 (2W )1 x 5A 1 x 15A 1 x 5A WD II SITE PLAN PARK 3100 2700 4620 1720 4190 5620 9 10 11 12 13 Sunken slab One Way slab Two way slab S2 S8 S9 S16 S22 S21 S20 S24 S37 S45 S13 S43 S42 DRAWING TITLE LOCATION STRUCTURAL CONSULTANT DESIGN CONSULTANT CLIENT GROUND FLOOR PLAN DRAWN BY GENERAL NOTES CHECKED BY MR. ____________ MR. ____________ MR. ____________ Ph.no. ___________ Ph.no. ___________ Ph.no. ___________ Sanjana WCFA Mysuru Kalyaninagar, Mysore WD II DATE PROJECT NO SCALE 200 01 5620 14 15 DRAWING TITLE : LOCATION : PROJECT TITLE CLIENT : ACCEPTED BY : DRAWN BY GENERAL NOTES : CHECKED BY : MR. ____________ Ph.no. ___________ WCFA Mysuru Kalyaninagar, Mysore DATE 10.06.2022 REV DESCRIPTION DATE TOILET KITCHEN UTILITY BALCONY BED ROOM DINING
Geyser
Water
Crusher
Door
Site Context layout

DETAIL 1 - PARAPET COPING

EXTERIOR WALL SECTION

A B C D E F 2520 4420 1820 4120 1920 1900 BASEMENT TERRACE LIFT CHAMBER TOILET 3150 3150 3150 3150 FOYER TOILET COMMON AREA STAIRCASE PORTICO FOYER TOILET FOYER TOILET FOYER A B C D E F 18763 15763 3512 29545 35000 1963 1050 3100 D1 D1 D1 D1 W2 W2 W2 W1 W1 W1 W1 H LVL -3000 mm LVL +3300 mm LVL +6400 mm LVL +9600 mm LVL +12780 mm LVL +150 mm BALCONY LVL +13830 mm BALCONY BALCONY BALCONY H BASEMENT GROUND FLOOR FIRST FLOOR SECOND FLOOR THIRD FLOOR TERRACE 2950 200 2950 200 2950 200 2950 200 2950 200 1000 175 1675 1500 900 150 2075 2950 2075 2950 2075 2950 2075 2950 2950 150MM RCC SLAB COMPACT EARTH VDF FLOORING 50 MM 150 MM RCC SLAB GRANITE TILE FLOORING 12.5 MM THICK PLASTER 150 MM RCC SLAB GRANITE TILE FLOORING 12.5 MM THICK PLASTER 150 MM RCC SLAB GRANITE TILE FLOORING 12.5 MM THICK PLASTER 150 MM RCC SLAB GRANITE TILE FLOORING 12.5 MM THICK PLASTER 150 MM RCC SLAB 50 MM WATER PROOFING 12.5 MM THICK PLASTER COPING STONE (50 X 175 MM ) 100 MM BRICK JAALI WALL FLOORING 50 MM 100 MM BRICK JAALI WALL FLOORING 50 MM 100 MM BRICK JAALI WALL FLOORING 50 MM 100 MM BRICK JAALI WALL FLOORING 50 MM 125 56 25 12 100 12 COPING STONE PLASTER 12.5 MM PARAPET WALL GROOVE 75 FLASHING 200 12.5 12.5 225 50 20 150 600 450 100 7 33 200 MM CONCRETE BLOCK MASONRY 12.5 MM THICK PLASTER 100 MM SKIRTING TITLE GRANITE TILE ( 600 X 600 X 20 MM) SLATE TILE FLOORING (300 X 300 X 7 MM) CEMENT BED 15 MM RCC SLAB BEAM (200 X 600 MM) 200 MM CONCRETE BLOCK MASONRY 100 125 888 122 775 203 33 150 SLATE TILE FLOORING (300 X 300 X 7 MM) 100 MM BRICK JAALI WALL BALCONY
BEDROOM
BALCONY
2
WALL SLAB JUNCTION
EXTERIOR WALL SECTION DETAIL
-
10 MM TILE DROP 1 3 2 CEMENT BED 150MM RCC SLAB BEAM (200 X 600 MM) 150 MM RCC SLAB BEAM (200 X 600 MM) 150 MM RCC SLAB BEAM (200 X 600 MM) 150 MM RCC SLAB BEAM (200 X 600 MM) 150 MM RCC SLAB BEAM (200 X 600 MM) 150 MM RCC SLAB H LVL -3000 mm LVL +3300 mm LVL +6400 mm LVL +9600 mm LVL +12780 mm LVL +150 mm BALCONY LVL +13830 mm BALCONY BALCONY BALCONY H BASEMENT GROUND FLOOR FIRST FLOOR SECOND FLOOR THIRD FLOOR TERRACE 2950 200 2950 200 2950 200 2950 200 2950 200 1000 175 1675 1500 900 150 2075 2950 2075 2950 2075 2950 2075 2950 2950 150MM RCC SLAB COMPACT EARTH VDF FLOORING 50 MM 150 MM RCC SLAB GRANITE TILE FLOORING 12.5 MM THICK PLASTER 150 MM RCC SLAB GRANITE TILE FLOORING 12.5 MM THICK PLASTER 150 MM RCC SLAB GRANITE TILE FLOORING 12.5 MM THICK PLASTER 150 MM RCC SLAB GRANITE TILE FLOORING 12.5 MM THICK PLASTER 150 MM RCC SLAB 50 MM WATER PROOFING 12.5 MM THICK PLASTER COPING STONE (50 X 175 MM 100 MM BRICK JAALI WALL FLOORING 50 MM 100 MM BRICK JAALI WALL FLOORING 50 MM 100 MM BRICK JAALI WALL FLOORING 50 MM 100 MM BRICK JAALI WALL FLOORING 50 MM 125 56 25 12 100 12 COPING STONE PLASTER 12.5 MM PARAPET WALL GROOVE 75 FLASHING 200 12.5 12.5 225 50 20 150 600 450 100 7 33 200 MM CONCRETE BLOCK MASONRY 12.5 MM THICK PLASTER 100 MM SKIRTING TITLE GRANITE TILE 600 X 600 X 20 MM) SLATE TILE FLOORING (300 X 300 X 7 MM) CEMENT BED 15 MM RCC SLAB BEAM (200 X 600 MM) 200 MM CONCRETE BLOCK MASONRY 125 888 122 775 203 SLATE TILE FLOORING (300 X 300 X 7 MM) 100 MM BRICK JAALI WALL BALCONY BALCONY BEDROOM EXTERIOR WALL SECTION DETAIL 2 - WALL SLAB JUNCTION DETAIL 1 - PARAPET COPING 10 MM TILE DROP 1 3 2 CEMENT BED 150MM RCC SLAB BEAM (200 X 600 MM) 150 MM RCC SLAB BEAM (200 X 600 MM) 150 MM RCC SLAB BEAM (200 X 600 MM) 150 MM RCC SLAB BEAM (200 X 600 MM) 150 MM RCC SLAB BEAM (200 X 600 MM) 150 MM RCC SLAB DRAWING TITLE LOCATION PROJECT TITLE CLIENT ACCEPTED BY DRAWN BY CHECKED BY MR. ____________ Ph.no. ___________ HARSHITHA S WCFA Mysuru Kalyaninagar, Mysore
II DATE PROJECT NO SCALE 01 10.07.2022 REV DESCRIPTION DATE WALL SECTION HOUSING FOR TECHIES, MYSORE AISHWARYA S LVL -3000 mm LVL +3300 mm LVL +6400 mm LVL +9600 mm LVL +12780 mm LVL +150 mm BALCONY LVL +13830 mm BALCONY BALCONY BALCONY H BASEMENT GROUND FLOOR FIRST FLOOR SECOND FLOOR THIRD FLOOR TERRACE 2950 200 2950 200 2950 200 2950 200 2950 200 1675 1500 900 150 2950 2075 2950 2075 2950 2075 2950 2950 150MM RCC SLAB COMPACT EARTH VDF FLOORING 50 MM 150 MM RCC SLAB GRANITE TILE FLOORING 12.5 MM THICK PLASTER 150 MM RCC SLAB GRANITE TILE FLOORING 12.5 MM THICK PLASTER 150 MM RCC SLAB GRANITE TILE FLOORING 12.5 MM THICK PLASTER 150 MM RCC SLAB GRANITE TILE FLOORING 12.5 MM THICK PLASTER 50 MM WATER PROOFING 12.5 MM THICK PLASTER COPING STONE (50 X 175 MM 100 MM BRICK JAALI WALL FLOORING 50 MM 100 MM BRICK JAALI WALL FLOORING 50 MM 100 MM BRICK JAALI WALL FLOORING 50 MM 100 MM BRICK JAALI WALL FLOORING 50 MM 12 100 12 FLASHING 20 450 GRANITE TILE 600 X 600 X 20 MM) 125 888 122 775 450 203 150 SLATE BALCONY BALCONY BEDROOM
WD
DETAIL 3 - BALCONY RAILING DETAIL 2 - WALL SLAB JUNCTION DETAIL 1 - PARAPET COPING 10 3 2 BEAM (200 X 600 MM) 150 MM RCC SLAB BEAM (200 X 600 MM) 150 MM RCC SLAB BEAM (200 X 600 MM) 150 MM RCC SLAB BEAM (200 X 600 MM) 150 MM RCC SLAB BEAM (200 X 600 MM) 150 MM RCC SLAB
Exterior Wall section Section AA’

Architects : Aishwarya S, Bhavya Shree, Harshitha S, Sanjana S

Client : Accepted by : Wadiyar Center for Architecture

Project : ‘Ikya’ Housing Location : Vijayanagar , Mysuru

Drawings Listed : NORTH

All Dimensions are in MM

General Notes :
DRAWING TITLE : LOCATION : PROJECT TITLE CLIENT ACCEPTED BY DRAWN BY GENERAL NOTES CHECKED BY : MR. ____________ Ph.no. ___________ AISHWARYA S WCFA Mysuru Kalyaninagar, Mysore
DATE PROJECT NO SCALE 01 10.07.2022 REV DESCRIPTION DATE KEY PLAN SECTION G H 1920 6820 LVL -3000 mm LVL +3300 mm LVL +6400 mm LVL +9600 mm LVL +12780 mm LVL +150 mm BEDROOM BALCONY LVL +13830 mm BALCONY BEDROOM BALCONY BEDROOM BALCONY HARSHITHA S G H 2420 LVL +15730 mm D3 D3 D3 BASEMENT GROUND FLOOR FIRST FLOOR SECOND FLOOR THIRD FLOOR TERRACE 1 2 4 7 9 12 BEDROOM BEDROOM BEDROOM BALCONY TOILET COMMON AREA COMMON AREA BEDROOM BEDROOM BEDROOM BALCONY TOILET COMMON AREA COMMON AREA BEDROOM BEDROOM BEDROOM BALCONY TOILET COMMON AREA COMMON AREA BEDROOM BEDROOM BEDROOM BALCONY TOILET COMMON AREA COMMON AREA LIFT SHAFT 2300 5620 6000 9200 2400 9120 5910 48500 3150 3000 3000 3000 3000 3000 18900 1 2 4 7 9 12 GENERAL NOTES 200 MM CONCRETE BLOCK MASONRY 12.5 MM THICK PLASTER 100 MM SKIRTING TITLE SLATE TILE FLOORING (300 X 300 X 7 MM) CEMENT BED 15 MM RCC SLAB BEAM (200 X 600 MM) 200 MM CONCRETE BLOCK MASONRY BEAM (200 X 600 MM) SLATE TILE FLOORING (300 X 300 X 7 MM) 100 MM BRICK JAALI WALL BALCONY JUNCTION COPING MM TILE DROP CEMENT BED 150MM RCC SLAB ACCEPTED BY : DRAWN BY GENERAL NOTES CHECKED BY HARSHITHA S WCFA Mysuru REV DESCRIPTION DATE AISHWARYA S LVL -3000 mm LVL +150 mm BASEMENT GROUND FLOOR 100 MM BRICK JAALI WALL FLOORING 50 MM 125 888 122 775 450 203 33 150 BEAM (200 X 600 MM) SLATE TILE FLOORING (300 X 300 X 7 MM) 100 MM BRICK JAALI WALL BALCONY SECTION DETAIL 3 - BALCONY RAILING DETAIL 2 - WALL SLAB JUNCTION CEMENT BED 150MM RCC SLAB LOCATION : PROJECT TITLE CLIENT : ACCEPTED BY : DRAWN BY : GENERAL NOTES : CHECKED BY : MR. ____________ Ph.no. ___________ AISHWARYA S WCFA Mysuru Kalyaninagar, Mysore REV DESCRIPTION DATE KEY PLAN G H 6820 LVL +3300 mm LVL +6400 mm LVL +9600 mm LVL +12780 mm LVL +150 mm BEDROOM BALCONY LVL +13830 mm BEDROOM BALCONY BEDROOM BALCONY BEDROOM BALCONY HARSHITHA S 2420 LVL +15730 mm GROUND FLOOR FIRST FLOOR SECOND FLOOR THIRD FLOOR TERRACE - Exterior Wall section - Section details - Sections Section BB’
WD II

West Elevation

Window W2 detail

WD II

Electrical ScheduleDoor D1 detail

200 200 2130 2680 2500 2080 350 300 2683 252 2512 500 377 1670 55 55 100 200 40 340 150
II DRAWING TITLE LOCATION STRUCTURAL CONSULTANT DESIGN CONSULTANT CLIENT DATE PROJECT NO SCALE ACCEPTED BY DRAWN BY GENERAL NOTES LEGENDS : CHECKED BY MR. ____________ MR. ____________ MR. ____________ Ph.no. ___________ Ph.no. ___________ Ph.no. ___________ WCFA Mysuru 01 14.01.2022 Idukki Kerala KEY PLAN 100 2400 2080 1580 3000 1580 3000 100 C 38 C 26 C 31 C 32 C 27 C 33 C 34 1780 4480 3000 1780 1780 1780 340 1580 100 100 40 55 FRAMING LAYOUT - 01 FRAMING LAYOUT - 02 SLAB LAYOUT BEAM - A BEAM B BEAM C BEAM - D 340 1780 1780 1580 KEY PLAN SECTION DETAIL AT A C 38 C 26 C 31 C 32 C 27 C 33 C 38 C 26 C 31 C 32 C 33 DETAIL AT B DETAIL AT C DETAIL AT D DETAIL AT E DETAIL AT F DETAIL AT A BEAM E BEAM F BEAM - A BEAM - B BEAM - C BEAM - D BEAM - E BEAM - F STEPS RECTANGLE SECTION OF 200X100 (THY- 10 MM) RECTANGLE SECTION OF 200X100 (THY- 10 MM) RECTANGLE SECTION OF 200X100 (THY- 10 MM) L SECTION OF 55X55 (THY- 5 MM) 4035 STEEL SECTIONS DETAIL B DETAIL E DETAIL C DETAIL D DETAIL - F BHAVYASHREE. R L - STEEL SECTION 55X55MM (THY- 5MM) STEEL MESH RECTANGLE SECTION OF 200X100 (THY- 10) CONCRETE SLAB (THY- 50MM) BASE PLATE BOLTING WELDING WELDING WELDING BOLTING WELDING BOLTING LVL +3300 mm LVL +6400 mm LVL +9600 mm LVL +12780 mm LVL +150 mm 3500 1000 650 4620 1050 1000 1500 4620 1500 2920 1830 7860 1800 5120 1000 1500 650 1000 11055 1830 +0.0 M +0.0 M +0.0 M +0.0 M +0.0 M +0.0 M +5.0 M +5.0 M +5.0 M +5.0 M +5.0 M +0.0 M +10.5 M +10.5 M +10.5 M +16.15 M +18.55 M +18.55 M +18.55 M +18.55 M +18.55 M +18.55 M +16.15 M +16.15 M BRICK JAALI DARK GRAY LIGHT GRAY METAL RAILING 1000 650 1500 1500 1650 1650 1500 29520 9040 1650 1650 1650 1500 1500 1500 1500 LEGEND GROUND FLOOR DRAWING TITLE : LOCATION : PROJECT TITLE CLIENT ACCEPTED BY DRAWN BY CHECKED BY MR. ____________ Ph.no. ___________ HARSHITHA S WCFA Mysuru Kalyaninagar, Mysore
WD
DATE PROJECT NO SCALE 01 08.07.2022 REV DESCRIPTION DATE WEST ELEVATION KEY PLAN FIRST FLOOR SECOND FLOOR THIRD FLOOR TERRACE WEST ELEVATION 15900 BHAVYA SHREE INTERIOR ELEVATION PLAN INSIDE OUTSIDE WINDOW W2 SHUTTER FRAME CLEAR GLASS SHUTTER FRAME 30MM WOODEN MAIN FRAME 25 57 5 1500 433 50 434 50 433 1400 1350 1250 1150 200 25 50 433 50 50 433 1500 100 50 50 36 7 7 5 10 57 75 25 100 CLEAR GLASS 57 25 MM MULLION DETAIL DRAWING TITLE LOCATION PROJECT TITLE CLIENT ACCEPTED BY DRAWN BY CHECKED BY MR. ____________ Ph.no. ___________ SANJANA S WCFA Mysuru Kalyaninagar, Mysore WD II DATE PROJECT NO SCALE 01 10.07.2022 REV DESCRIPTION DATE WINDOW DETIAL HARSHITHA S EXTERIOR ELEVATION PLAN INSIDE OUTSIDE OUTSIDE 1200 1000 1265 2133 2100 1917 300 1570 82.5 200 MM PEEP HOLE 50MM WOODEN BEEDING 1000 1200 225 225 MAIN FRAME DETAIL DOOR D1
Stairway detail

General Notes :

Architects : Aishwarya S, Bhavya Shree, Harshitha S, Sanjana S

Client : Accepted by : Wadiyar Center for Architecture

Project : ‘Ikya’ Housing Location : Vijayanagar , Mysuru

Drawings Listed : NORTH

All Dimensions are in MM

SECTION AT XX' INSIDE OUTSIDE MAIN FRAME DETAIL FRAME DETAIL 1350 1250 200 FRAME BEEDING 25 50 57 30 35 15 75 5 SHUTTER FRAME MAIN FRAME WOODEN BEADING MASONRY WALL SHUTTER FRAME 57 25 MATERIAL FRAME ROSE WOOD (100 MM BLOCK) CLEAR GLASS MM GENERAL NOTES SECTION AT XX' INSIDE OUTSIDE 3000 1917 300 2100 900 150 MAIN FRAME DETAIL DRAWING TITLE LOCATION PROJECT TITLE CLIENT ACCEPTED BY DRAWN BY GENERAL NOTES CHECKED BY MR. ____________ Ph.no. ___________ SANJANA S WCFA Mysuru Kalyaninagar, Mysore WD II DATE PROJECT NO SCALE 01 24.06.2022 REV DESCRIPTION DATE DOOR DETAIL HOUSING FOR TECHIES, MYSORE 6 TILE DROP 2 4 R SLOPE SLOPE TAG 1 5 2 USEAGE COMPANY MODEL SPECS WASH BASIN JAGUAR FAUCETS SHOWER JAGUAR Rimless, Blind Installation Wall Hung WC with UF soft 3 4 JAGUAR SHOWER MIXER Black water Grey water Hot water Cold water V1 D3 3000 1575 600 750 1200 1800 565 Sunken Slab (300 mm) Concealed P - trap Mirror Wall Tile Ceramic (300 x 600 mm) D3 1500 2700 835 365 600 2400 600 750 565 300 5 Sunken Slab (300 mm) Concealed Flush Tank Sliding Glass door Wall Tile - Ceramic (300 x 600 mm) V1 2700 2400 600 300 Partition frame Aluminum track 470 425 1500 750 1800 1645 2000 TAG 1 5 2 USEAGE COMPANY MODEL SPECS WASH BASIN JAGUAR FAUCETS JAGUAR SHOWER JAGUAR Kubix KUS-WHT-35901 ORP-10011BPM Size 595x435x140 mm Single Lever Basin Mixer WC JAGUAR Rimless, Blind Installation Wall Hung WC with UF soft close slim seat cover, Hinges, Accessories set SLS-WHT-6953BIPPSM 3 RAINSHOWERS OHS-1605 Single Lever Extended Basin Mixer (Height 85mm) without Popup Waste System with 450mm Long Braided Hoses 4 JAGUAR Exposed Part Kit of Single Lever Concealed Divertor ARI-39065K SHOWER MIXER TILE DROP 4 V1 Sunken Slab (300 mm) Concealed Flush tank Mirror Wall Tile - Ceramic (300 x 600 mm) 3000 500 2700 2400 1200 1800 425 835 600 365 1050 2000 1800 200 100 300 2 3 4 1 TILE DROP V1 Sunken Slab (300 mm) Glass partition D3 Wall Tile Ceramic (300 x 600 mm) 3000 500 2700 2400 1200 1800 1800 200 100 300 2400 645 1645 1050 815 Glass partition NOTESPLAN @ 750 MM MAGIC CORNER RACK STORE DRAWER MAGIC CORNER DRAWER DRAWER RACK STORE UTILITY KITCHEN 3000 4000 MM 5550 3200 1850 4200 4600 5550 3200 1850 UTILITY KITCHEN 3000 X 4000 MM RACK STORE PLAN @ 1550 MM 5550 3200 1850 4200 4600 5550 3200 1850 KITCHEN FOR 2BHK HOUSE WITH ATTACHED UTILITY SPACE WORK TRIANGLE COOKING - STORAGE WASHING MATERIAL PALETTE FLOOR PORCELAIN TILES (600 X 600 MM WALL VITRIFIED TILES (300 X 600 MM) COUNTER SLAB GRANITE STONE (30 MM) CABINET LAMINATED MDF BOARDS (15 MM) (MEDIUM DENSITY FIBERBOARD) HANDLE STAINLESS STEEL C CHANNEL 1240 900 600 570 15 52 19 7 19 2 52 7 10 900 805 690 730 200 75 715 30 365 250 100 900 805 200 750 820 75 275 160 80 250 40 775 40 48 18 90 PLAN - Cabinet Drawer ELEVATION - Cabinet Drawer SECTION - Cabinet Drawer SECTION - Cabinet Drawer Detail -Handle Detail - A Detail - Hinge 13 1 1 15 MDF Board Wood Finish Laminate Wall Stone Counter Slab Stainless Steel C channel Angle 110 degree A Drawer Track 200 750 820 SECTION - Magic Corner Stone Counter Slab 115 115 115 115 1240 342 25 1240 290 935 186 PLAN - Magic Corner 7 2 52 7 10 900 805 690 730 200 75 715 30 365 250 100 900 805 200 750 820 75 275 160 80 250 40 775 40 48 18 PLAN - Cabinet Drawer ELEVATION - Cabinet Drawer SECTION - Cabinet Drawer SECTION - Cabinet Drawer Detail -Handle Detail Wall Stone Counter Slab Stainless Steel C A Drawer Track 200 750 Stone Counter Slab 25 1240 290 935 - Elevation - Stairway details - Door detail - Window detail - Toilet plan & ELevations _ Kitchen layout - Kitchen cabinet detail Toilet Plan Elevation D Elevation C Elevation A Elevation B Kitchen Floor Plan Cabinet Detail

Miscellaneous

Content -

This includes selected works from all semester and also the snippets of competation submissions.

- Measure Draw - Margosa House, Mysuru

- CP Kukreja Competation submission

- ANDC (NASA) Trophy submission

- Selected semester works

Measure Draw

The intent of this exercise is to help students to relook and access thier drafting skills, post lockdown. This is a exercise conducted inbetween semester break, to give the students on site experience of measuring and drawing.

The selcted project is a hundred years old residential building owned by the ancestral royal family. It is a house in a site area about 100 square meter, in city center. The house contains four bedrooms with a living area, kitchen and a dining area. The house also has a dense garden in front with variety of plant species, out which is a huge Margosa tree, hence the house getting the name ‘MARGOSA HOUSE’.

The architectural elements are captured in the drawings on site. Different drawing styles are also introduced, on order to improve the speed and technique of hand drawing.

The excerise mainly focuses on the on site skills that an architect has to have, which unfortunately was missed out due to no related program study for the batch during covid time.

LOCATIONKrishnaraja Boulevard, Mysuru SITE - 100 sq.M

CP Kukreja Design Trophy

NASA

Group of 3 BRIEF -

Competation Entry

While we commemorate the glorious history and culture of India and celebrate 75 years of the country’s independence, NASA reaches the same time stamp in a decade. Since its independence, India has gone through tremendous change that has contributed to the world culturally, academically and technologically. As one of the most youthful nations, India continues to aim for positive change and with that spirit, contribute your proposals to suggest how you would celebrate this spirit through design. Our ways of adapting to current world issues can be shown and decoded through design. Proposing an installation at a location that celebrates a building/ public space of cultural or historical significance while also keeping in mind the present day urban issues of the area that would need fixing. To represent a new Indian community that is well connected and contributes to a vision of a brighter tomorrow.

DESIGN BRIEF

Take your pick at an edifice or public space of pivotal importance and suggest how a design intervention can help encourage public interaction and conversations. The design must limit itself to a maximum of 75 feet (23 meters) in height, length and breadth.

The Last Square

The intervention

Mumbai, Maharashtra, India

The Gateway of India is an during the 20th century in monument was erected of King George V and Queen on their visit to India in 1911.

The Gateway of India is located Apollo Bunder area at the Marg in South Mumbai and After its construction the symbolic ceremonial entrance colonial personnel. Following the last British troops to leave of the Somerset Light Infantry Gateway with a 21-gun on 28 February 1948, signaling and hence the name “The

The monument has also Mahal of Mumbai, and is attraction. The gateway locals, street vendors, and services. The Gateway stands the Taj Mahal Palace and in 1903. In the grounds of monument, stands the statue the Maratha warrior-hero the Mughal Empire to establish the 17th century. The other gateway is that of Swami monk who is credited as introduction of Indian philosophies as Vedanta and Yoga to

History & Significance
Tretyakov Gallery Pavilion, Russia
References :

Significance

an arch monument built in Bombay, India. The to commemorate the landing Queen Mary at Apollo Bunder 1911.

located on the waterfront at the end of Chhatrapati Shivaji and overlooks the Arabian Sea. Gateway was used as a entrance to India for important

Following Indian independence, leave India, the First Battalion Infantry, passed through the salute, as part of a ceremony signaling the end of the British Raj “The Last Square”.

been referred to as the Taj is the city’s top tourist is also a gathering spot for and photographers soliciting stands at an angle, opposite to and Tower Hotel, which was built of the gateway, opposite the statue of Shivaji, hero who fought against establish the Maratha Empire in other statue in the locality of the Swami Vivekananda,[an Indian a key figure in the philosophies such to the west.

Concept Views

The area in front of the Gateway is now used as a loose space for gathering. The main idea of the design is to centralize and give a shape to the functions happening around.

The form is based on a Rubik’s cube, with movable panels and an outer frame (each unit 2 x 2 x 2 m). Keeping it light, tectonic and dynamic in contrast to the bulky, predominant monument in front. The height of the design is purposefully limited to 4m so that the visual connection with the gateway is maintained.

Since it is a very happening and functional space used by all kinds of people, the movable panels involves users in forming spaces. Some of the surrounding petty shops can also be tucked in the intervention creating more chances for human interaction.

These panels are of 3 types a) opaque, b) translucent, c) porous signifying the British time, fight for struggle and the after independence. The panels running on the grooves could be moved by the public, as well as signifying the struggle for freedom. It’s about their efforts. Smaller panels of nine grids are used as puzzles in the interior part of the design, solving which gives a images of any freedom fighters or moments of history. A seating and clear view towards the Gate way is given from interior.

The roof panels given on the top act as rain shelters whereas the higher grid act as shade from harsh sun. The steel frame is illuminated with strip lights during nights.

The colorful light fabric, gain attention of the user group along with giving a dynamic effect to the space

Entire form works similar to as a Rubik's cube

2 x 2 x M cube as basic unit.

65CPK-70
Night View – strip lighting
The cubical enclosure The flexible seating by the use of elements like steel frame and hammock

ANDC Design Trophy NASA Competation Entry

Group of 6 BRIEF -

The assignment aims to target a zone (building to street level) which has high significance in society/ community. Places lost in time, places lost to ‘Development’, places lost from our daily lives, these are the ones which need us promptly. These places are not always neglected, but need solutions which are tailored for it and is integrated and grounded to the local context. The fine line between seeing a hawker and seeing an encroacher in the same people, place and time is what delineates the virtue missing in coeval day and age.

The solution to be offered has to be complete in inferring through time, eliminating the deficiency of today and also to deliver in future by understanding the transformations at a holistic level. Delineating the identified zones, identification and earmarking the scope for Architectural Intervention, contextual selection of appropriate materials, techniques and knowledge systems will also be an integral part of an important part of the overall solution.

The size of the site, identified core zone to be limited to 2.0 (Two) acres (± 20%), however the impact zone can extend beyond the identified core zone. The students can conduct the study first hand (refer annexure for data collection formats) and can take reference from secondary resources, acts, schemes, policies and schemes.

LOCATION - Lansdowne Building, Mysuru City

CONSIDERED SITE

the

MAJOR ROADS

Roads connect to a major around about KR circle and also the city bus stand.

NATURE OF SITE

The site is long linear path held between main road and fascade

DESIGN POSSIBILITIES

Break down the linear site with grid lines extended from the fascade for zoning

Embracing fascade of Lansdowne builidng
RESTORED
FOOD REPLACEMENT ORNAMENTATION
Proposed
RESTORED UNIT Proposed Design COURT ARCHIEVE BUILDING REPLACEMENT OF PURLINS RAILING DETAIL ORNAMENTATION BOUNDARY BETWEEN FOOTHPATH AND THE SITE PLANTATION OF VARIOUS SIZES FOR VARYING DEGREE OF PERMEABILITY FOOTHPATH SITE RECHARGES GROUNDWATER MINIMUM DEPTH OF 600 MM
Other Semester works
Interior DesignPantry Exhibition
Minor Task SEM III
Lobby Design
Studio SEM III
Freelance Illustrations
Design StudioSEM II
HARSHITHA S Contact No. : +91 8762149218 Mail Id : 2019_harshitha.s@wcfa.ac.in

Turn static files into dynamic content formats.

Create a flipbook
Issuu converts static files into: digital portfolios, online yearbooks, online catalogs, digital photo albums and more. Sign up and create your flipbook.