Retrofit and DfMA Multigenerational Living

Page 1

FUTURE HOMES 1

HARRISON LAURIE

ISSUU Online portfolio

Source: Farmhouse by Precht
Blank page.

TABLE OF CONTENTS

PROJECT 1

Yoga House Site Analysis

Client Analysis Spatial Planning Concept Development

Existing Drawings

Proposed Drawings Model

PROJECT 2

5

Farmhouse Site Analysis

6 7 8 9 10 11 12 15 16 17 18 19 20

Daylight Study Client Analysis Spatial Planning Concept Development Concept Implementation Preliminary Designs Final Floor Plans Lifetime Home Multigenerational Living Off-Site Fabrication 21 22 23 24 25 26

PROJECT

1

YOGA HOUSE

Sustainable Retrofit of a Derelict House

“Celebrate individuality”

This project focusses on the retrofit of 27 Cairns Street, part of the Granby Four Street Community Land Trust (CLT). The area has low economic activity and has been falling into disrepair. The CLT aims to unite the local community and create a sense of pride in their neighbourhood. It is therefore important that this project engages the community.

The clients are Julia, an extroverted sports teacher and Andres, an introverted student nurse. This design aims to celebrate their differing personalities and nurture their passions.

PROJECT 1 5

SITE ANALYSIS

Site Neighbour Green Space Tree

The orientation of the site means the garden is in almost constant shade throughout the year and direct sunlight only hits the the rear pitch of the roof from April to August. Therefore the front facade may have to be adapted to maximise direct sunlight into the house.

Sun Path

Noise Pollution Road

Granby Winter Garden

Site Analysis

Sun Path Analysis

PROJECT 1
PROJECT 1 7 Tranquil Dining Kitchen Skylight Efficient Kitchen Bookshelves Home Office Personal Outdoor Space Yoga Space Bicycle Storage Julia CLIENT ANALYSIS

SPATIAL PLANNING

Sketches exploring the importance of daylight in different spaces

PROJECT 1 8

CONCEPT DEVELOPMENT

Using iterative model making techniques I discovered that turning a traditional dormer window upside down allows more direct sunlight into the room. I found inspiration in the ‘tree’ yoga pose and the bowed roofs of Buddhist temples. This helped me develop the window into a unique feature of the house.

PROJECT 1 9
Sketch model at 1:200 Dormer window design experimentation Dormer window initial design

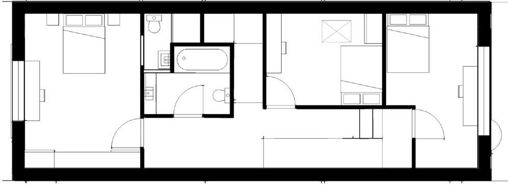
EXISTING DRAWINGS

Front elevation

Cross section

First floor

Ground floor

PROJECT 1 10

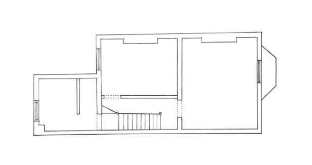
PROPOSED DRAWINGS

PROJECT 1 11
Ground floor First floor Second floor Cross section

Ground floor First floor Second floor Roof

MODEL

The model is a good way to understand the scale of each space within the house and explore how it will be inhabited. We can see Julia’s bedroom at the front of the house with a large window so she can see people passing by and engage with her neighbours. The front boundary wall acts as bicycle storage with a planter on top. This is not only practical, as Julia cycles to work, but it also gives her further opportunities to engage with the local community while gardening the planter. The loft has been converted to a yoga studio to assist Julia’s passion for yoga and exercise.

The rear of the first floor is occupied by Andres who values peaceful spaces to study and read. He has a personal roof terrace with views of the neighbouring gardens that is private enough for him to relax in.

PROJECT 1 12

Rear view

Interior view

PROJECT 1 13

PROJECT

2

FARMHOUSE

A Multigenerational, Prefabricated Terrace House in Portloop, Birmingham

and Interdependence”

This project explores:

how multigenerational homes can encourage household members to share amenities and positive interactions while maintaining their own independence and privacy.

how the home can be used to grow some of the family’s food, thus reducing costs and lowering their carbon footprint.

how a home can grow with a family, challenging the status quo of up- or down-scaling as the family’s living situation changes.

ideas of prefabrication, environmentally sustainable design and fabric-first construction.

PROJECT 2
“Independence

SITE ANALYSIS

PROJECT 2 16

DAYLIGHT STUDY

Sun path analysis shows how the front of the house receives the most sunlight. The angle of the site plot means it also receives evening light, whereas the rear of the house receives morning light.

Morning light is ideal for bedroom, especially early-risers like children or the elderly. It is also good for kitchens as it helps wake the occupant up as they have their breakfast.

Evening light is preferred in the bedrooms of young or middle-aged adults as they are often up late.

The core of the house receives little sunlight so daylighting solutions will have to be used.

PROJECT 2 17

Generation 1

Grandad

Wants to stay in this home for the rest of his life

Requires the home to adapt to his changing needs

Generation 2 Dad

Generation 3

Son (21 yrs)

Generation 4 Son (7 yrs)

Plays Lego

Enjoys playing outside with neighbours

Enjoys gardening with Grandad

Room needs to adapt as the child grows up

Daughter (1 yr) 1. Needs to sleep near parents

Needs space for equipment

Room needs to adapt as the child grows up

PROJECT 2 18
ANALYSIS
CLIENT
1.
2.
3.
4.
5.
6.
7.
Low mobility
Hearing difficulties
Lots of free time
Enjoys entertaining grandkids
Enjoys growing vegetables
1.
2.
3.
1.
2.
3.
4.
Works at the office but needs the option of working from home
Enjoys cooking
Enjoys hosting dinner parties Mum
Works from home
Needs to keep an eye on the kids when working
Enjoys family mealtimes
Owns lots of clothes
2.
3.
4.
5.
1. University student
Often gets home late
Enjoys bringing friends home
Enjoys entertaining the kids
Enjoys gaming
2.
3.
4.
1. Does homework
5.
2.
3.

SPATIAL PLANNING

To encourage independence and interdependence, I had to understand what each family member required from the space and which amenities could be shared. Spatial planning helped me explore which rooms needed to be close to, or far away from others in order to positively influence interpersonal relationships.

PROJECT 2 19

CONCEPT DEVELOPMENT

Circulation space Private-communal space divide

Zoning and expansion potential

Central circulation core

Central circulation core with private-communal space divide

Diagram to show how the parti diagram is implemented when the clients and the local context is taken into account

Circulation Space Shared
Shared Space Shared
Grandad Dad Mum Son (21 yrs) Son (7 yrs) Daughter (1 yr)
Space
Space Street Canal

PRELIMINARY DESIGNS

I carefully considered how each family member would spend their time the house and graphically represented it in furniture. I provided larger larger bathroom facilities for the Grandad to assist with his declining mobility. I also provided each child with space for a double bed to ensure their bedrooms would be sufficient when they grow up.

Furniture cut out at a scale of 1:100

Furniture arranged on floor plans

PROJECT 2 22

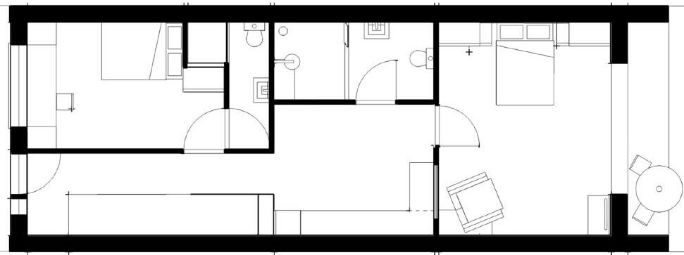
FINAL FLOOR PLANS

On the ground floor is the 20 year old sons’s ensuite room (1). It is located close to the front door to maximise his independence and prevent him from waking up the rest of the family. The Grandad’s room (2) is at the rear with a small terrace overlooking the canal. His accessible bathroom (3) and kitchen (4) shared with his grandson is located in the centre of the plan and an internal window guides light in from the rear of the house.

On the first floor is the family living room (5) with a desk for the mum (6) so she can work from home while keeping an eye on the kids. To the rear of the house is the kitchen/dining room (7) with an island for entertaining and for the children to eat their breakfast at.

The second floor has the master ensuite (8) with an additional desk, family bathroom (9) and the children’s bedrooms (10, 11).

On the third floor is a greenhouse (12) where the family grow their own fruit and vegetables.

RightAbove -

Final floor plans. Scale 1:100

Preliminary material selection. Scale 1:400

Second Floor

First Floor

PROJECT 2 23
Ground floor
Third Floor
1 2 3 4 5 6 7 8 9 10 11 12 UP DN UP DN DN

LIFETIME HOME

1 bedroom bungalow

Couple just married with no children. They are looking for a home to start a family in.

2 bedroom house

Couple have their first child who moves into the living room. A new living room is installed upstairs.

3 bedroom house

The wife’s father moves in. A new kitchen and bedroom are installed. The floor joists of the kitchen are designed to allow the installation of a lift down to the grandads room in the future.

5 bedroom house

The couple have two more children. Two more bedrooms are installed.

5 bedroom house with roof garden

The grandad is a keen gardener and wants to teach his grandchildren how to grow their own food. A greenhouse is installed on the roof.

PROJECT 2 24

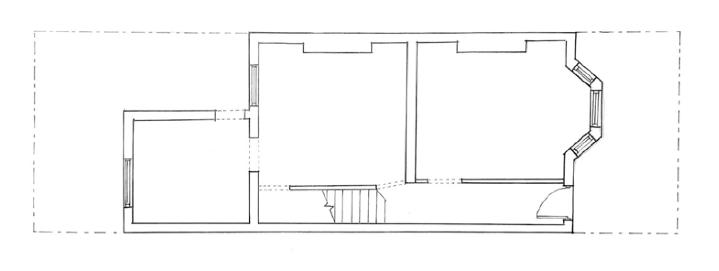
MULTIGENERATIONAL LIVING

The arrangement of spaces and open plan living area have been designed to encourage positive social interactions and interdependence while providing privacy and independence to each family member.

3D section cut through

PROJECT 2 25

OFF-SITE FABRICATION

This project is designed to be prefabricated off-site using panellised construction and transported to the site for assembly. This provides quality-control, a reliable construction schedule and cost estimate and a rapid construction time.

PROJECT 2 26

Thank you for reading.

Turn static files into dynamic content formats.

Create a flipbook
Issuu converts static files into: digital portfolios, online yearbooks, online catalogs, digital photo albums and more. Sign up and create your flipbook.