
REICKS ~ J.MOORMAN ~ COMMERCIALI ~ 10.02.24
![]()

REICKS ~ J.MOORMAN ~ COMMERCIALI ~ 10.02.24
Preliminary Planning
TimeLog
Site+Research
Concept
MoodBoard
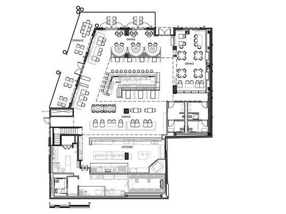
FloorPlanResearch
Diagrams
MenuBranding
Construction Documents
DimensionedFloorplan
FurnishingPlan+Schedule
FurnishingPlan
Materials+Finishes
ReflectedCeilingPlan
Elevation
Renderings

InspirationIdeas
InspirationIdeas
Space&BubbleDiagram
ConceptIdealization
Rendering
RevitFloorPlan
3DModeling
3DModeling
Presentation
Rendering
Documentation
FFESheets
Modeling
Modeling
Modeling
ConstructionDocuments
ConstructionDocuments
Rendering
Rendering
Presentation


30,000+RESIDENTS
CITYINCENTRALTEXAS
RURAL+CITYLIVING
LOCATEDINTHEHEARTOFTEXASATTHESOUTHERNCORNER

Immerseyourselfinadiningexperiencethatmirrorstheraw, untamedbeautyofthejungle—vibrant,mysterious,anddeeply soulful.LunaVerasefine-diningItalianrestaurantisa symphonyofbold,earthyflavors,whererustictraditionsmeet modernartistry.Likethesong’sdynamicenergy,eachdishis craftedwithpassion,evokingtherhythmofnatureandthe pulseofadventure.Here,theambianceiswarm,intimate,and alive,offeringanescapeintoaworldwhereeverybiteisa journey,andeverymomentfeelslikeahiddentreasure.









































