Sample Portfolio_Resume_Hadi Pirmohamed_2023

Page 1

PORTFOLIO ARCHITECTURE

Hadi Pirmohamed, MArchD (RIBA Part 2) Graduate

Hadi Pirmohamed

MArchD Architecture (RIBA Pt II) Graduate, Oxford Brookes University

WORK EXPERIENCE

Oct 2019 - Present Freelance Architectural Designer

+44 7756 145 536

hadi@pirmohamed.com

hadipirmohamed.github.io

Hadi Pirmohamed

• Completed various residential and interior design projects that entailed RIBA stages 0-5.

• Undertook a residential single story rear extension project in Hampton in Arden.

• Worked on a single story rear extension and loft conversion in Watford.

• Involved in the interior design of a 650m2 office space for a SME in Dubai.

• Developed multiple designs proposals for residential property in Milton Keynes to increase its property value.

• Undertook site visits in all projects to complete a measured survey and understand the space and project I was working on.

• Conducted regular site visits (RIBA stage 5) to ensure the smooth running of the project.

• Effectively communicated with clients, users and stakeholders to ensure the brief was met to their preferences and satisfaction.

• Produced high quality drawings such as floor plans, elevations, renders, interior visuals and walk-through animation.

• Hand-crafted a 1:100 scale model of the proposed community centre in Harefield to display at the existing centre for funding purposes.

ADDITIONAL WORK EXPERIENCE

July 2022 - Aug 2022

Optical Sales Assistant, Dunstable Eye Centre (Brillen)

• Maintaining customer service standards by interacting with and providing customers with knowledge on products and assistance on choosing frames in a professional manner.

Jan 2021 - Oct 2021

Founder, ICONic DESIGNS

• Founded a business that designed & sold App Icons for users to customise their iOS devices.

• Created a logo and branding for the company for brand awareness.

• Coded and designed the website from scratch using HTML and CSS code.

• Developed an Etsy page to sell the products and maintained high customer service standards through emails and messages to customers.

• Advertised the products on Instagram through generating various images and videos.

VOLUNTEERING

Oct 2022 - June 2023

Milton Keynes, UK

Teaching Assistant, Zainabiya (Supplementary School)

• Assisted with teaching the lower ability students through organising various activities.

• Implemented weekly reports for tutors to assess students progress throughout the year.

Aug 2022 - Feb 2023

Social Media Manager, Zainabiya Centre

• Generated various digital content to create public awareness of upcoming events.

• Created and maintained a key design theme for brand awareness.

CONTACT SOFTWARE Revit AutoCAD Adobe illustrator Adobe Photoshop Adobe InDesign SketchUp iMovie Canva Zoom/Teams/Meet 1 year 1 year 4 Years 1 Year 3 years 2 Years 2 Years 2 Years 3 Years EXPERTISE Creative Thinking Problem Solving Time Management Decision Making Active Listening Eye for Design Business Minded Team Working INTERESTS Football, Golf, Business

As an enthusiastic architecture graduate seeking a position as a Part 2 Architectural Assistant, I am well versed in RIBA stages 0-4 through practical experience in numerous design projects at university and as a freelance architectural designer. I have a sound theoretical foundation in stages 5-7 and am proficient in Revit, AutoCAD, Adobe, Sketchup and physical modelling.

EDUCATION

2021 - 2023 MArchD Applied Design in Architecture, Oxford Brookes University

• ARB and RIBA (Part 2) Accredited course.

• Worked on RIBA stages 0-4 to design a community centre in Meridian Water, London.

• Explored Technical design aspects such as occupancy, egress, vertical circulation, accessibility, mechanical ventilation and green roofs in the project’s design.

• Managed and worked in a team of 6, to form a fictional business competing with other firms, to pitch ideas to the client and win the project.

• Gained an understanding on RIBA stages 5-7 and how an architecture business is run.

• Tasked with managing & distributing workload, scheduling meetings and setting deadlines to ensure sufficient time to rehearse the presentation.

• Completed a 15,000 word design dissertation on “Exploring the urban design of Milton Keynes, focussing on resident’s movement in the city”. The dissertation moves beyond the original plans and uses the lessons learnt today (hence explores design intent vs reality) to highlight future proposals for Milton Keynes.

2017 - 2020 BSc Architecture (ARB/RIBA Part 1), Coventry University

• Worked on RIBA stages 0-4 to design an arts and crafts centre in Jewellery Quarter, Birmingham.

• Designed a double skin facade to maximise environmental and visual effects.

• Building regulations B (fire safety) were implemented in the projects design.

• Collaborated on a multidisciplinary group project between architects, technologists, civil engineers, quantity surveyors and construction managers to design a university campus in Barcelona (RIBA Stage 0-2).

• Lead the Architecture team and was tasked with finalising designs and communicating with the other disciplines.

• Completed a fictional international project on relocating a building in the UK to Bali (RIBA stages 2-4). Maximise its performance through various direct passive technologies according to Bali’s environment.

• Achieved the “Best Architectural Model Prize” in the end of year Degree Show.

LINKS

Scan the QR Code below to view my Portfolio REFERENCES Available Upon Request
MArchD, Meridian Water Project MArchD, Meridian Water Project Freelance Architectural Designer Freelance Architectural Designer Freelance Architectural Designer

Meridian Water Project

MArchD, Oxford Brookes University (RIBA Stages 0-4)

Project Summary: With the main aim of this proposal being to bridge the gap between 2 communities, this courtyard was created along with the roof top terrace to create a safe space for residents to hangout, collaborate and forge new connections.

The Drawing: These visual were made using Autodesk Revit to highlight the atmosphere of the courtyard and main internal breakout space and how the different materials and surfaces interact. The large floor to ceiling glazed curtain wall was implemented to invite the public into the community centre.

Sheet Size:

Scale: Page:

A4 N/A

4

Meridian Water Project: Development

MArchD, Oxford Brookes University (RIBA Stages 0-4)

Lines from surrounding building edges informing the massing of this proposal.

Creating an enclosed courtyard for collaboration between Upper Edmonton and Meridian Water.

The process of reducing the massing area whilst adding various height levels to the massing.

Amending the massing to improve the practicality and layout of functions and to invite the public into the site.

The development diagrams (SketchUp and Illustrator) and site map (Revit and Photoshop) were created to highlight the origins behind the overall massing and its development to the final design. Each function and space allocation were critically researched in accordance to current and proposed demographics and were determined accordingly.

Sheet Size:

Scale: Page:

A4 1:2000 7

Meridian Water Project: Technical Design

Fire Exit Staircase

Double Glazed Curtain Wall Windows

This cross section (above) was made using Illustrator and Photoshop, and highlights how the building interacts with its immediate surrounding whilst tackling with impact loads from passing trains with a shear wall and plant room buffer to minimize noise. Tree plantings on the east are strategically placed along with the 5m corridor/breakout space to

8m 4m 0
Scale: Corrugated Metal Facade
B A C 6850mm 7825mm 8m 4m 0
MArchD, Oxford Brookes University (RIBA Stages 0-4)

D E F

8188mm

Level R: 10000mm

Level F1: 6000mm

Hydraulic Lift Air Extract Separate w/c Air Extract Solar Shade

Project Top Level:

16000m

16m

Sheet Size:

Scale:

A4 1:2000 9

Roof:

First Floor Roof:

Top Level: 7000m

13400m

11000m

First Floor:

6000m

Ground:

0m

20m
Page: 12m
Scale: 1:200
3982mm 4951mm 20m 16m 12m
1:300
Top Level: 13400mm
Scale:
stop direct sunlight entering the sports hall whilst allowing windows on the facade for viewing/connecting purposes. The elevation (below) was drawn using Autodesk Revit and highlights the external facade design.

Meridian Water Project: Construction

MArchD, Oxford Brookes University (RIBA Stages 0-4)

Green Roof Detail: Drawn using AutoCAD, and highlights how the assembly of the extensive green roof is supported by the hollow core concrete floor slab that is attached to the steel I beam on the external cladding wall. Axonometric Component Detail (Right): Made using Illustrator and Sketchup, and highlights how the

1m 0.8m 0.6m 0.4m 0.2m 0
1:15
Scale:
Green Roof Detail

Slim deck Beam Calculations

Tapered beams to span long distances (20m)

Column Calculations

Sheer wall for lateral loads - Train wind pollution Building Core around the fire exits (vertical circulation)

7250mm 8000mm

Scale: 1:2000

10211mm (Largest Grid Span) / 30 = 340.37mm (beam depth)

Concrete Slab Calculations

2-way Simply Supported concrete slab - 10211mm (Largest Span) / 35 = 291.74mm (slab)

2-way Continuously Supported concrete slab - 10211mm (Largest Span) / 40 = 255.275mm (Slab)

Floor Depth Hollow core floor slab to reduce floor depth

291.74mm (2-way Simply Supported concrete slab) 340.37mm (Steel slim deck beam depth)

CMU block is attached to the steel column with the wire anchor holding the submerged reinforced steel bar in the concrete mix.

Scale: 1:20

1m 0.8m 0.6m 0.4m 0.2m 0

Sheet Size:

Scale:

A4 1:2000 11

Page: 100m 80m 60m 40m 20m 0
Tributary area (58m2) = 8m X 7.25m Column = 152mm X 152mm
CMU Block Cement filler Mortar Wire Anchor Reinforced steel rebar Sealant Steel Column

Residential Garden Renovation

Freelance Architectural Designer: Milton Keynes (RIBA Stages 0-3)

Scale: 1:200

Project Statement: The client was looking to increase their property value by renovating the garden and adding a self contained 1 bedroom garden suite with and external lounge and dining area. To ensure the garden suite did not intrude into the neighbours views (for planning approval) the garden topography was designed slightly

PIRMOHAMED GARDEN RENOVATION DESCRIPTION: Garden Room: Consists bedroom with en-suite open plan living space lounge and kitchen. Interior Renovation: W/C and side door larger utility room. CLIENT: ADDRESS: Asim 1 Laverde Milton MK10 DRAWN: CHECK: HP HP 01 . P2 . R . SHEET: REVISION: PROPOSAL 2: Renovating the garden self contained 1 bedroom outdoor lounge/dining for family recreation interior renovations SCALE: NORTH: PROJECT PROPOSED GROUND FLOOR PLAN LEGEND: DRAWING Living Room 5338.5 x 4021.0mm DINING ROOM 2867 x 4068mm KITCHEN 3481 x 3325mm STUDY 2083 x 3010mm W/C 1407 x 1800mm UTILITY 2413 x 3125mm DRIVEWAY GARAGE 7150 x 6291mm 200000mm 231450mm 205000mm 295327mm 200000mm 470000mm 100000mm 400000mm 300mm 249768mm 600mm 65749mm LOUNGE 4266 x 3328mm KITCHEN 2820 x 2967mm W/C 2596 x 1500mm BEDROOM 4244 x 3950mm PIRMOHAMED GARDEN RENOVATIONS DESCRIPTION: CLIENT: ADDRESS: Asim 1 Milton MK10 DRAWN: CHECK: HP HP SHEET: REVISION: PROPOSAL 2: Renovating the self contained 1 outdoor lounge/dining for family recreation interior renovations SCALE: NORTH: PROJECT PROPOSED BACK ELEVATIONS LEGEND: Extension DRAWING FRONT ELEVATION BACK ELEVATION EXTENSION AREA EXTENSION AREA 12m 8m 4m 0

SOUTH-WEST EXTENSION AREA GARDEN FENCE 12m 8m 4m 0

Scale: 1:200

below the property’s ground level. The North east section of the garden includes a raised platform for plants, tiling and various lighting effects. The floorplan and elevations were drawn using AutoCAD.

Sheet Size:

Scale:

A4 1:200 13 EXTENSION AREA

PIRMOHAMED DESCRIPTION: CLIENT: ADDRESS: Asim 1 Milton MK10 DRAWN: CHECK: HP HP 01 . P2 . R SHEET: REVISION A: PROPOSAL 2: Renovating the self contained 1 outdoor lounge/dining for family recreation interior renovations SCALE: NORTH: PROJECT SIDE ELEVATIONS LEGEND: Extension DRAWING SOUTH-WEST ELEVATION NORTH-EAST ELEVATION EXTENSION AREA EXTENSION AREA GARDEN FENCE PIRMOHAMED RESIDENCE: GARDEN RENOVATIONS DESCRIPTION: CLIENT: ADDRESS: Asim Pirmohamed 1 Laverde Milton Keynes MK10 9TL DRAWN: CHECK: HP HP 01 . P2 . R . 18/19 SHEET: 01.P2.R.18/19.14 REVISION: PROPOSAL 2: Renovating the garden self contained 1 bedroom outdoor lounge/dining for family recreation interior renovations to the SCALE: NORTH: PROJECT PROPOSED FRONT BACK ELEVATIONS LEGEND: Extension DRAWING FRONT ELEVATION BACK ELEVATION EXTENSION AREA EXTENSION AREA CLIENT: ADDRESS: Asim 1 Milton MK10 DRAWN: CHECK: HP HP 01 . P2 . R SHEET: REVISION A: lounge/dining for family recreation interior renovations SCALE: NORTH: SIDE ELEVATIONS LEGEND: Extension DRAWING
Page: ELEVATION NORTH-EAST ELEVATION

Residential Interior Renovation

Freelance Architectural Designer: Milton Keynes (RIBA Stages 0-7)

Sheet Size:

Scale: Page:

A4 N/A 14

Converting the existing bathroom into 2 separate bathrooms (1 en-suite & 1 family bathroom. Involved in all stages including stage 5 where I advocated for the client and pointed out key details during the construction phase.

In Progress

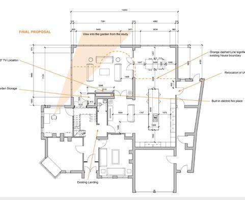
Residential Single Story Rear Extension

Freelance Architectural Designer: Hampton in Arden (RIBA Stages 0-3)

Project Statement: The client was looking to extend the existing conservatory (dashed orange line) to create a large living dining and kitchen space to accommodate 20-30 guests on the weekends without compromising on the view into the garden from the study. The Drawings: The floor plan and elevations were drawn using

UP 310 7281 310 4992 310 650 5460 2471 3639 983 975 5460 1000 7125 310 3855 13203 5045 1225 1844 1787 1475 1500 2488 1437 1300 22 1447 1200 2400 1406 1408 3288 2210 1525 813 1510 800
10m 8m 6m 4m 2m 0
View into the garden from the study Scale: 1:100

AutoDesk Revit and annotated using Illustrator to highlight the proposal in comparison to the existing building with relevant dimensions for the client to understand the size of the space and furniture drawn.

Sheet Size: Scale: Page:

A4 1:2000 17

Level 0 0 Level 1 3000 Level 2 6000 8400 Level 0 0 Level 1 3000 Level 2 6000 Level 3 8400 Level 4 10000 www.autodesk.com/revit SCALE (@ A1) CHECKED TITLE CLIENT PROJECT DRAWING NUMBER DRAWN BY STATUS PURPOSE OF CODE SUITABILITY 1 : 100 Unnamed Project Owner Checker Author 4m Scale: 1:200 Extension Area UP REF. REF. Level 0 0 Level 1 3000 Level 2 6000 Level 3 8400 Level 4 10000 Level 0 0 Level 1 3000 Level 2 6000 Level 3 8400 Level 4 10000 Extension Area 12m 8m 4m 0 Scale:
1:200

SME Office - Interior Design

Freelance Architectural Designer: Dubai (RIBA Stages 0-3)

Project Statement: The clients were looking to renovate their office space to maximize efficiency, impress clients and create an environment where employers want to work in.

The Drawing: These visuals were made using Sketchup and Photoshop and were used to showcase to the client the proposed office space at different sections of the floorplan.

Sheet Size:

Scale:

Page:

A4 1:100

19

Architecture Display Model

Freelance Architectural Designer: Harefield

Project Statement: The client was looking to showcase their newly acquired property to the community to help in fundraising the project, with an architectural model to be placed at the entrance of their current centre. The Drawing: This physical Handmade Model was intentionally created without external walls to the building as

requested by the client to showcase the scale or the property and potential for interior renovation. The only aspects that were sourced included cars, trees, lights, bikes, benches and people.

Sheet Size:

Scale:

Page:

A4 1:100 21

Turn static files into dynamic content formats.

Create a flipbook
Issuu converts static files into: digital portfolios, online yearbooks, online catalogs, digital photo albums and more. Sign up and create your flipbook.
Sample Portfolio_Resume_Hadi Pirmohamed_2023 by HadiPirmohamed - Issuu