

CONTENTS
CURRICULUM VITAE
SUMMARY OF QUALIFICATIONS
• Proficiency in Autocad, Rhinoceros 7, Enscape, Illustrator, Photoshop, InDesign to create full drawing set.
• Understanding of contract management.
• Firsthand experience of residential construction and handling various machinery and equipment.
• Ambitious, enthusiastic and versatile architecture student with particular interests in sustainability, conservation and accessibility.
EDUCATION
UNIVERSITY OF WATERLOO
Cambridge, ON
September 2021 - present
Candidate for Bachelor of Architectural Studies
• Honours Co-op Program.
• Excellent academic standing.
• Participation in galt publication and bridge student organizations.
BILL CROTHERS SECONDARY SCHOOL
Unionville, ON
August 2017 - June 2021
• Participation in hockey and slow pitch teams, Waterloo Math Contest (grades 10-12) and BCSS French Club.
WORK EXPERIENCE
HCMA
Vancouver, Canada
May 2024 - August 2024
Architecture Intern
• Worked on two projects teams to create drawings for schematic design phase of residential tower, aquatic centre, and various public instituion and sports design projects.
• Developed ground floor design concept for 40 storey residential towers.
• Created iterative massing diagrams for fire hall conceptual design in Revit.
HAAS COOK ZEMMRICH STUDIO 2050
Stuttgart, Germany
September 2023 - December 2023
Architecture Intern
• Assisted in final phase of projects to create finished drawings for competition panels.
• Created and edited digital 3D models for working projects.
• Developed iterative designs for various projects.
FIA INTERIORS AND ARCHITECTURE
Toronto, ON
January 2023 - April 2023
Architecture Intern
• Composed full construction and permit drawing sets in Autocad.
• Completed contract admin tasks.
• Participated in site visits to construction site.
• Created digital and physical sample boards.
REGIONAL MUNICIPALITY OF YORK
Newmarket ON
May 2022 - August 2022
Operations Support Clerk
• Supported transfer of York Region offices to hybrid arrangements.
SOFTWARE
• Autocad
• Rhinocerous 7
• Adobe Illustrator
• Adobe Photoshop
• Adobe Indesign
• Enscape
• Basic Revit
• Basic Lumion
• Basic Vectorworks
• Basic Grasshopper
• Basic Sketchup
• Various Microsoft apps
INTERESTS
• Travel
• Hockey
• Biking
• Music
• Guitar
• Literature
OTHER EXPERIENCE
• Sturgeon Bay Provincial Park Cashier and Maintenance
• Cottage renovation
• Learn to Skate Instructor
• Volunteer Hockey Coach
• Sheridan Nurseries Cashier
• Seasonal Snow Shoveling
• Ontario G drivers license
• Basic French language
• Beginner German language
• Basic CPR training
HELLO,
My name is Gillian Marsh, I am a 3rd year student at the University of Waterloo School of Architecture. I am looking for a 4-month intern position for the Winter 2025 term starting in January. As a student, I strive to learn and experience as much as I am able and try new things everyday. I am an enthusiastic, creative, organized worker with strong technical skills in various drafting and visual softwares. In my architectural career, I want to focus on environmental and sustainable oriented design that features “beyond-code” accessibility and encourages strong social connections. I believe prioritizing sustainability is key in today’s climate crisis and intend to play my part in the future.
Thank you for taking the time to look at my portfolio.


To whom it may concern,
This serves as a letter of reference for Gillian Marsh, who was employed as a co-op student at hcma Architecture + Design for a period of four months from May – August 2024, based in our Vancouver studio.
Gillian gained exposure to a broad cross section of experience and worked on a number of projects directly with me, specifically the new City of Regina Aquatic Centre and a rezoning in the City of Vancouver. Gillilan contributed to this work with high level conceptual diagramming and renderings. Gillian’s attitude was professional, the work was well received and has contributed to moving these projects forward.
Please feel free to contact me at m.henderson@hcma.ca if you need further information or would like to discuss Gillian’s qualifications in more detail.
Kind regards,

Michael Henderson he/him Principal AIBC, MRAIC
hcma architecture + design
Vancouver 400—675 W Hastings St Vancouver BC V6B 1N2 604.732.6620 vancouver@hcma.ca
Victoria 205—26 Bastion Square Victoria BC V8W 1H9 250.382.6650 victoria@hcma.ca
Edmonton 307—10110
Edmonton
St
T5J 1A 7 780.306.4464 edmonton@hcma.ca curiosity applied hcma.ca

COLLECTIVIZE THE GARDEN CITY!
TYPE
Urban Planning DATE
August 2024
ADVISOR
Adrian Blackwell SOFTWARE Rhino, Lumion, Illustrator, Photoshop, InDesign
GROUP
Chelsea Wu
Cindy He Rona Kong
Situated on the historical and industrial lands, ‘Collectivize the Garden City!’ aims to improve housing alienation and food scarcity in the Hespeler area by utilizing the core tenets of a gentrification tax to imagine an urban strategy of connectivity; to not only maintain but also support the density of an urban space that accepts the influx of long-term residents brought in by the train station, the project incorporates various collective housing approaches to create intentional communities of greater support amongst residents.





A circular economy of layered networks is created by maximizing both creative outlets to speak to the site’s industrial character, as well as a diverse set of green spaces heavily integrated into the residential fabric.











Through an emphasis on sustainable production and distribution in layers, the greater social needs are addressed and the community value that brought about the initial ‘unearned increment’ stays within the area to further strengthen the neighbourhood.








MAJOR ROADS
MINOR ROADS
BUILDING FIXTURE

WINDOW SUPPLIER
BRICK SUPPLIER
STEEL SUPPLIER
SUPPLIER WOOD SUPPLIER
CONCRETE SUPPLIER

The diagram above maps local building material suppliers in Cambridge measured in sections of 5km. Special materials such as CLT will be supplied off site. Below are life cycle diagrams of materials used, reused, and manufactured on site.

Wood is extracted and manufactured into furniture or building material. At its end of life, the wood can be recycled or composted for the community gardens in a continuous cycle. The new plant also offset the CO2 from the production.

The corrugated metal from the existing industrial building are reused in the new development for cladding, interior, and finishing, keeping the industrial history. At its end of life, the metal can be recycled and used as new building material.

Limestones and waste from demolishing the exiting buildings are reused in the process of making fly ash brick for construction.






THE NEST
The typologies of the NEST features designed spaces such as communal kitchens, large community gardens, and optimized orientation for natural lighting to build intentional communities within each housing complex. Situated closest to the suburbs north of the site, the NEST provides the social benefits of living collectively while creating a sense of safety and privacy.


LOW-MIX
The LOW MIX housing units surround courtyards framed by a partially enclosed balcony. Units are mirrored with flexible partitions built in consultation with occupants for agency and adaptability. Laundry facilities are provided in a communal space, and lighting is diffused with the use of operable shading throughout the building’s facade.


STACKT HOUSE
The STACKT HOUSES are stacked townhouses with a barrier free ground floor and a shared light well between the units to maximize daylighting. The NEST features another variation of this type that includes parking on the ground floor

MID-MIX
The MID-MIX housing consists of two 2 bedroom units and two 3 bedroom units that are designed to accommodate either single individuals or families.





Units surround a communal kitchen space that includes shared laundry facilities and a balcony that faces Makers’ Alley.

CO-RO-HO
Communal row housing AKA CO-RO-HO feature a communal kitchen between potentially 4 different occupant groups. This housing is meant to accommodate all demographics with a barrier free ground floor and flexible occupancy.



LAND BASED HARVEST LODGE
TYPE Lodge DATE August 2023
ADVISOR
Tracey Eve Winton
SOFTWARE Rhino, Enscape, Illustrator, Photoshop, InDesign
The Land Based Harvest Lodge is located in French River, Ontario, surrounded by beautiful forest and granite rock shaped by glacial formations . This project houses a land based harvest workshop intended as a summer camp for children and workshop for adults during fall and spring months. The main lodge is made up of 7 individual mass timber buildings, each with different programming that all contribute to the land based food harvest workshop. These individual buildings shift with the granite landscape and are tied together with a constructed walkway. This formation creates a courtyard that acts as the heart of the project, with a hearth sitting directly on granite. Altogether, the project shifts with the landscape and mimics the geometry of the granite.















The programs located in the main lodge include dining, preparation / cooking, reception, lounge, library. Within and near the courtyard you can find a smokehouse, drying rack and storage room. The programming in the main lodge supports ideas to live lightly on the land, in which visitors get to participate in minobimaatisiiwin - a way of living - instead of Traditional Ecological Knowledge.



The walkway from the main lodge leads to the cluster of cabins where you can find two cabin types, one that houses two visitors and the other four. The dense sleeping quarters was chosen to minimize individual spaces to encourage visitors to spend time outdoors and in the workshop. This cluster includes walkways that shift dramatically to align with the landscape, and also opens up to create small courtyards and patios.




COMMUTER HUB LIBRARY
TYPE
Library DATE
April 2022

ADVISOR
Isabel Ochoa, Sifei Mo
SOFTWARE Rhino, Illustrator, Photoshop, InDesign

Located in Corktown, Toronto, the Commuter Hub Library is a key destination for people commuting to and from work. This public building is a union between a traditional library, bike repair and commuter centre. The Commuter Hub promotes sustainable transit - is located next to TTC street car lines, Bike Share Toronto stations, and prioritizes bikers.
As a building designed for the everyday commuter, this library includes bathrooms, showers, a cafe, and a bike parking garage - all on the first floor. The remaining programs can be reached with a completely accessible ramp that wraps around the floors.
The exterior landscaping involves car parking, exterior bike racks, and a ramp that leads to the underground bike parking garage as well as the original bike path that is under the street.






FORM FOLLOWS RAMP
The library’s parti is programs contained in separate floorplates that shift to the ramp that encircles the whole building. This creates a public building that is entirely accessible to everyone - from bikes, to strollers and wheelchairs. The floors align to the ramp to prevent or create privacy without the use of walls.

The facade detail is based on a ‘vitruvian bike’ in which the vertical fin arrangement is based on the proportions of a standard bike.
The fin depth varies for each side of the building, changing for different orientations to maximize passive heating and diffuse lighting. The spaces between vertical fins are filled to depending on the program of each floor and sun exposure.





CAMBRIDGE COHOUSING
TYPE
Social Housing
DATE December 2022
ADVISOR Sam Eby
SOFTWARE
Rhino, Enscape, Illustrator, Photoshop, InDesign







Cambridge CoHousing fosters diverse relationships through the sharing of food, culture, and a program that creates opportunity and growth for the occupants and surrounding public. The co-op houses a reciprocal program that exchanges volunteer work in the community kitchen, daycare, and various other tasks for language classes and job training.
To provide affordable housing, Cambridge CoHousing offers various unit types as well as a spectrum of unit furnishings. Occupants are given the opportunity and agency to design their space for their particular needs, as well as simply rent and live in a pre-designed unit. In addition, each unit provides the space to expand for the number of people housed.


Hosted at Cambridge CoHousing, the Reciprocal Exchange Program is a great way for occupants to easily work, learn and grow. Inspired by Trampoline House located in Copenhagen, occupants are given the opportunity to receive job training and language classes in exchange for community services.






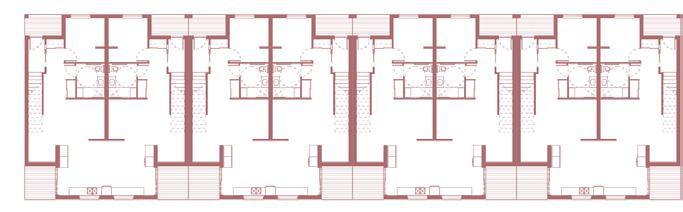
TOP FLOOR PLAN (8F / ROOF)

RESIDENTIAL FLOOR PLAN (3F-7F)

SECOND FLOOR PLAN

GROUND FLOOR PLAN






































With the use of light wells between each unit, every unit has at least two window walls, and every bedroom has a least one window. This is to create a strong quality light and therefore living within each unit. All units also have access to a shared balcony, encouraging neighborly encounters.

The Cambridge CoHousing design involves a strong focus on passive design. Light wells are integrated throughout the building between each unit to improve quality of light throughout each space. The south facing glazing and balconies are proportioned to each other in order to maximize heat gain from the sun during the winter months, and shading in summer months.
Cambridge CoHousing design also involves active systems. There is rainwater and solar energy collection located on the roof, and an allocated storage space on the ground floor to process and store rainwater and energy. To save on water and energy consumption, units contain only one bathroom, with a shared bathroom on each residential floor. In addition, laundry facilities are not contained within each unit, instead there is a set of shared washer and dryers on each residential floor.



TYPE
Physical Model
PHOTOGRAMMETRY
DATE
June 2023
ADVISOR
Lola Sheppard
SOFTWARE
Rhino, Grasshopper, Illustrator

1027 is a 1:1 analysis and interpretation of a 8 cubic feet site located on the French River, Ontario. The digital process of the project included a photogrammetry model of the site that was converted from a mesh to a polygonal surface, then to a point cloud that was recreated with 1000+ wooden beads hung from a plywood structure.




BUILDING



















MATERIALS
1000+ wooden beads
1/2”, 3/4” scrap plywood
scrap hardwood
0.1mm sewing thread
METROPOLITAN CHURCH MODEL
TYPE
Physical Model
DATE August 2023
ADVISOR Val Rynnimeri
SOFTWARE Rhino, Trotec laser cutting
GROUP
Jinhong Rioux
Dorcas Ng
Chelsea Wu
Arch 248 Cultural History Project to build a sectional model of Étienne-Louis Boullée’s Metropolitan Cathedral. From available drawings of the conceptual building, a digital 3D model was made and then converted to 2D lines to be laser cut out of white museum board. These pieces were assembled to create the final product.





FABRICATION




PROFESSIONAL WORK

30+45 RESIDENTIAL TOWER GROUND FLOOR DESIGN



CONTEXT ANALYSIS
SPORTS PARK SITE DESIGN



DIAGRAM

CONTEXT ANALYSIS



DIAGRAM

SITE ANALYSIS

AQUATIC CENTRE RENDERINGS








LUDWIGSBURG WBW CAMPUS COMPETITION





WURZBURG COMPETITION

SITE AERIAL VIEW




PIKTOS
ENERCITY FACADE STUDY COMPETITION




gflmarsh@uwaterloo.ca