25_0721_ULI tour_TFCCS_INTERACTIVE

Page 1


BOSTON, MASSACHUSETTS

JULY 29, 2025

SIMPSON GUMPERTZ & HEGER

2

THE CHRISTIAN SCIENCE PLAZA RESTORATION & REPAIR

THE MOTHER CHURCH EXTERIOR PRESERVATION & RESTORATION 3

THE MOTHER CHURCH INTERIOR PRESERVATION & RESTORATION

APPENDIX

APPENDIX OF SUPPORTING MATERIALS WITH ARCADIS WITH SGH WITH FINEGOLD ALEXANDER

Tour Stops

The Christian Science Plaza

RESTORATION & REPAIR

Highlights: The Arcadis design team set out to restore, repair and improve upon the 14-acre Christian Science Plaza, Boston’s largest publicly accessible private open space to make it more welcoming to the community and visitors in all four seasons, both day and night. Designed in 1968 by I.M. Pei & Partners’ Araldo Cossutta and Sasaki Associates’ Stu Dawson, the Plaza is a national icon and a designated Boston Landmark. This project was the Plaza’s first comprehensive restoration in 45 years.

Overall Site Before

Plaza Stop 2 | Sunken Garden

before before

Plaza Stop 3 | Mass Ave Lawn

time lapse - before

time lapse - after

Plaza Stop 4 | Publishing House Entry and Gateway

Plaza Stop 5 | Mass Ave Edge

before before

Plaza Stop 6 | Mass Ave Westland Gateway

before before

Plaza Stop 7 | Huntington Gateway

before before

Plaza Stop 7 | Reflecting Pool

time lapse - before

time lapse - after

Plaza Stop 8 | Huntington Edge

Plaza Stop 8 | Huntington Seating Nooks

before after

before after

before after

Plaza Stop 9 | Children’s Fountain & “The Beach”

Project Team for Plaza Restoration & Repair

Client/Owner

The First Church of Christ, Scientist

Owner’s Project Manager Redgate

Prime Consultant/Landscape Architect Arcadis

Construction Management Consigli Construction Inc.

Waterproofing & Structural Engineer Simpson, Gumpertz & Heger (SGH)

Civil Engineer & Green Infrastructure Nitsch Engineering

Garage Structural Engineer LeMessurier Consultants

Water Feature Design DEW Inc.

MEP Engineer Jaros Baum & Bolles

Lighting Design

Signage & Wayfinding

Irrigation

LAM Partners

Roll Barresi & Associates Inc (RBA)

Irrigation Consulting, Inc.

Arborist Bartlett Tree Experts

Materials Conservator Preservation Technologies Associates, Inc.

Geotechnical Expertise GEI Consultants, Inc.

Snowmelt HVAC Engineer Engineered Systems, Inc.

Cost Estimator AM Fogarty & Associates, Inc.

Finished Professional Photography Chuck Choi Architectural Photography

2

Exterior Restoration

TERRA COTTA SEMI DOMES

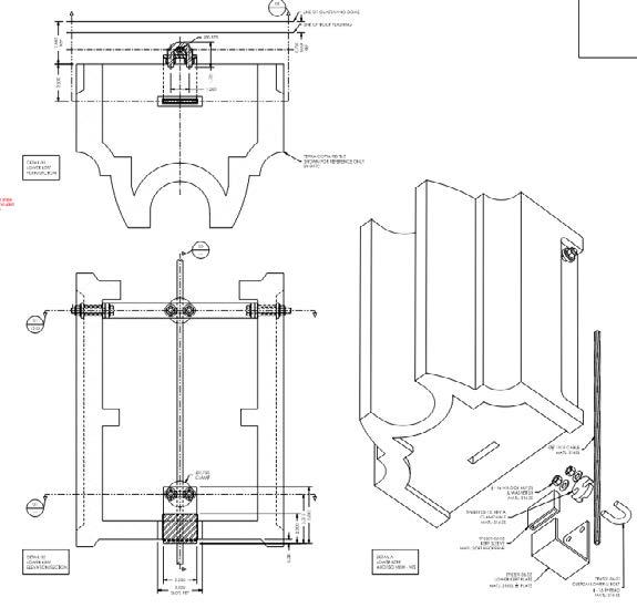
Highlights: Simpson Gumpertz & Heger (SGH) lead the exterior restoration that addressed chronic leaks that damaged both the facade, structure, and the interior. The comprehensive repairs included masonry restoration, flashing installation, roof replacement, and restoration of the terra cotta features including the two semi-domes and the cupola.

The semi-domes were originally built over a Guastavino shell, which was to be preserved in the repairs. SGH wanted to incorporate durable waterproofing and so developed an innovative terra cotta rainscreen assembly hung from tensioned stainless-steel cables that do not penetrate the new flat-seam copper roof below and incorporates modern enclosure detailing while using a tried-andtrue roofing system to retain the appearance of the semi-domes and preserve the Guastavino structure.

BEFORE CONDITIONS

GUSTAVINO STRUCTURE

RESEARCH AND ANALYSIS

DESIGN CONCEPT

CABLES AND ATTACHMENT

WATERPROOFING, CABLES AND CRESTING STEEL

DORMERS

CRESTING

FINISHED INSTALL

Cupola Restoration

Highlights: 180 ft above grade, the terra cotta cupola that tops the central dome is an iconic feature of the church extension. The cupola was suffering from cracking and spalling due to water infiltration and corrosion of the embedded steel frame and anchors. Given access and constructability challenges, SGH worked with TFCCS to evaluate multiple repair options and materials, eventually choosing to replace in-kind. To lessen field conditions, SGH worked with contractors to create a virtual mockup of the entire cupola that resulted in a seamless construction and limited scaffolding and access costs.

CUPOLA CONSTRUCTION HISTORY

SGH Involvement

CUPOLA BEFORE CONDITIONS

CUPOLA ACCESS

CUPOLA MODELLING

CUPOLA CONSTRUCTION

CUPOLA CONSTRUCTION

CONSTRUCTION

SUPPORT FOR ENTRANCE

FOUNDATIONS AND GROUND WATER RECHARGE SYSTEM

Highlights: The churches are built on thousands of wood piles. Due to lower ground water levels, the tops of multiple piles have deteriorated, resulting in differential settlement. The most dramatic settlement occurred at the TMCO tower, which was rotating out of plane. To lessen further deterioration, SGH developed a monitoring program and ground water recharge system. At the tower, SGH designed a new support structure, including micro-piles, to support and realign the tower, giving care not to damage the interior finishes or stain glass windows of the original church and the Mother’s Room, housed within.

FOUNDATIONS AND GROUND RECHARGE SYSTEM

FOUNDATIONS AND GROUNDWATER RECHARGE SYSTEM

BALUSTRADE RESTORATION

Highlights: Significant water was entering through the balustrade and related copings and cornices, damaging embedded steel, masonry and interior finishes below. SGH designed a long term approach to rebuild the balustrade as a veneer wall system, incorporating backup waterproofing and flashing. The original limestone facade was reused to preserve the building appearance.

DESIGN CONCEPT

Exterior Building Restoration Team:

Project Team for Exterior Building Restoration

Engineer of Record – Simpson Gumpertz & Heger

CM – Shawmut Design and Construction

Mason – Grande Masonry

Roofer – Gilbert and Becker

Attachment Hardware – TriPyramid

Terra Cotta – Boston Valley Terra Cotta

Interior Restoration: The Mother Church Original Edifice

Highlights: Finegold Alexander Architect’s design strategically inserted updated electrical and life safety systems into the existing building fabric to bring the building up to code, while leaving the original interiors virtually intact. Due to extensive water damage, the interior plaster and associate decorative painting were also restored.

Cloth-wrapped Wiring

Interior Restoration: The Mother Church Extension

Highlights: The restoration created intimacy within The Mother Church Extension’s (TMCX) expansive Auditorium to host a smaller congregation by creating an accessible reader’s platform. Priorities at the interiors included the introduction of modern electrical and life safety systems, the integration of accessibility and the restoration of the Church’s original historic finishes. Fun fact: The interior restoration required 14 tractor trailer loads to create 1.7 acres of planked scaffolding decks, with 2 stair towers at 11 levels high, each to reach the top of the interior semi-domes. BACK

1

Plaster Restoration

Elevator Insertion

Newly Accessible Entrance

Highlights: A goal of the restoration project was to create a welcoming, accessible entrance for the congregation’s journey through this vast building complex. This included a clear path of travel from the underground parking garage all the way to both Auditoriums through careful planning and the introduction of an elevator within the historic interiors to create an accessible entry from the plaza on the south side of the church, opening up the building on that public face.

Project Team for Church Building Interior Restoration

Client

Owner’s Project Manager

Architect

Contractor

The First Church of Christ, Scientist

Colliers International

Finegold Alexander Architects

Shawmut Design & Construction

Building Envelope, Structural Engineer Simpson, Gumpertz & Heger (SGH)

and Geotechnical Engineer

MEP/FP Engineer/Life Safety/Lighting Design ARUP

MEP/FP Engineer/Life Safety Altieri Sebor Wiebor LLC

Lighting Design Lam Partners

Geotechnical Engineer Peer Review

Code Consultant

Accessibility Consultant

Historic Preservation Resource Consultant

Local Preservation Consultant

Stained Glass Consultant

GEI Consultants, Inc.

Jensen Hughes

KMA Associates

Ilene R. Tyler

Building Conservation Associates

Sepentino Stained Glass Studio

Cost Estimating Vermeulens

Faithful & Gould

Test Pit Contractor

Specifications

United Civil

Kalin Associates

TMC INTERIOR REFRESH AND UPGRADES

Structural Engineer

Tripi Engineering Services

MEP/FP Engineer/Life Safety/Code Consultant ARUP

Cost Estimator

Acoustical & AV Consultant

Interiors & FF&E

Photography - TMCO interiors

Fennessy Consultants

Cavanaugh Tocci Associates

Stefura Associates, Inc.

Robert Benson Photography

Photography - Both TMCX Interiors and Exteriors Raj Das Photography

A Supporting Materials

› Historical Context

CONTEXT

› Plaza Supporting Materials

› Church Building Supporting Materials

BUILDING

Appendix of Supporting Materials

BACK TO TOC

PLAZA

Historical Context

MASSACHUSETTS AVE

CHARLES RIVER
HUNTINGTON AVE
The Mother Church
The Publishing House

Early 20th Century

St. Botolph & South End
BELVIDERE ST
The Mother Church
The Publishing House

The Original Plaza

Children’s Fountain

1970s - 1980s

Plaza Restoration & Repair

• Restoration & Repair

• Welcome & Integration

The Mother Church
Huntington The Publishing House
BELVIDERE ST 101 Belvidere

Edge Study

Defining Geometry

Defining Geometry

Site Plan

“The

Improved Sustainability

Add passive infiltration & rain water storage tanks

Increase area of pervious softscape

Use stored rain water for recharge wells

Re-waterproof & decrease depth of pool

Church Building

Plaza Location

HISTORY AND SIGNIFICANCE OF THE STRUCTURE AND PROJECT | OVERVIEW

The Mother Church sits at the center of the Christian Science Center Plaza, 13.5-acres that is the largest privately owned, publicly accessible open space in the City of Boston. This renowned building is comprised of two structures: the Romanesque Revival The Mother Church Original (1894) designed by Franklin Welch; and the larger Neoclassical domed edifice, The Mother Church Extension (1906) designed by Charles Brigham & Charles Covery of Boston and Solon Beman of Chicago. Each building represents different architectural styles and materials and were the product of rapid growth in the Christian Science faith. The Church buildings are Landmarked by the Boston Landmarks Commission (BLC), and all preservation work required careful consideration to receive BLC approval.

The Church selected Simpson Gumpertz & Heger as the building envelope and structural engineer for the building exterior, while Finegold Alexander Architects served as the architect for the building interiors, including electrical upgrades, life safety systems, significant accessibility modifications and the redesign of ancillary spaces, all while preserving and restoring the Church’s original historic finishes. Shawmut Design and Construction served as the construction manager, tasked with implementing the preservation work, restoring the building to its original vision while leaving behind no trace of the invasive work that was completed.

The recently completed renovations spanned eight years, with a completion date of 2024. The project is a first-rate example of groundbreaking preservation work, due to the impressive scale of the domed

structure; the difficult logistics required to remediate the ornate building fabric; the innovative engineering solutions used to rebuild the original Guastavino and terra cotta tile semi-domes and replace the terra cotta and steel framed cupola; and the significance that this iconic building has for Boston and beyond. In this model of preservation practice, leadership and teamwork was displayed in the coordinated efforts of the client, engineers, architects and consultant groups required to tackle this massive project. The preservation and restoration work on the Church edifices—which took place before, during and after the Covid-19 pandemic—created and enhanced opportunities for community not just for the Christian Science congregation, but also for the neighborhood residents, Boston citizens and visitors.

A Brief Building History

CONSTRUCTION OF TMCO

DESIGNED BY FRANKLIN WELCH

ROMANESQUE REVIVAL STYLE

NEW HAMPSHIRE GRANITE

EXTERIOR WITH SLATE ROOF

CONSTRUCTED IN ONLY 13 MONTHS

1906

CONSTRUCTION OF TMCX

DESIGNED BY CHARLES BRIGHAM & CHARLES COVERY OF BOSTON AND SOLON BEMAN OF CHICAGO

NEOCLASSICAL STYLE WITH BYZANTINE ELEMENTS

LIMESTONE & GRANITE EXTERIOR W/TERRACOTTA

CONSTRUCTED IN 23 MOS.

1918

SEMI-DOME

RESTORATION AT TMCX

1950 DOME

RESTORATION AT TMCX

TO ADDRESS SIGNIFICANT LEAKS AT BOTH NORTH AND SOUTH SEMI-DOMES

ALL TERRACOTTA ON BOTH SEMI-DOMES WAS REMOVED AND REPLACED

THE TERRACOTTA CLADDING ON THE CENTRAL TMCX DOME HAD SYSTEMATICALLY FAILED

CUPOLA AND ALL TERRACOTTA ON THE MAIN DOME WERE REMOVED AND REPLACED

1978

MASTERPLAN AND STONE PORTICO ADDITION

DESIGNED BY ARALDO COSSUTTA

PART OF THE PEI COBB FREED MASTER PLAN TO PROVIDE THE ADMINISTRATIVE HEADQUARTERS OF THE WORLDWIDE CHRISTIAN SCIENCE CHURCH WITH A MORE OPEN AND WELCOMING ENVIRONMENT

2011 LANDMARKS DESIGNATION

SIGNIFICANT AT THE LOCAL, STATE AND NATIONAL LEVELS

ASSOCIATION WITH DISTINGUISHED ARCHITECTS OVER THE SPAN OF A CENTURY

MONUMENTAL DESIGN FOR ENTIRE CITY BLOCK PROVIDES OPEN SPACE FOR ADJ.NEIGHBORHOODS

Phased and Occupied Construction

PHASE 1

COMPLETED: APRIL 2016

Timber pile foundation repairs

PHASE 2

COMPLETED: DEC 2017

Exterior envelope repairs

Electrical rewiring

Life safety upgrades

Interior plaster repair and decorative painting

PHASE

3 MAY 2019JULY 2020

Exterior envelope repairs

PHASE 4 JAN 2018MAY 2019

Exterior envelope repairs

PHASE

5 FEB 2020AUG 2021

Exterior envelope repairs

PHASE 6

AUG 2021APRIL 2022

Exterior envelope repairs

PHASE 7

AUG 2021DEC 2023

Interior plaster and stone repair

Decorative painting

Life safety upgrades

Accessibility and Congregation

Experience Improvments

Thank you!

BACK TO TOC

Turn static files into dynamic content formats.

Create a flipbook
Issuu converts static files into: digital portfolios, online yearbooks, online catalogs, digital photo albums and more. Sign up and create your flipbook.