Bygget på tradisjon, for
vår tid

I Norge har vi en stolt tradisjon for bygging med tre. Historien vår og landet vårt er fullt av vakre trebygninger. Her har vi funnet mye inspirasjon.
Vi har en levende hyttekultur i dag. Alt tyder på at gleden av å leve et liv nær naturen kommer til å fortsette. Ja, det blir kanskje stadig viktigere for oss?
Sammen med arkitekt Einar Jarmund & CO
AS Arkitekter MNAL har vi skapt et helhetlig og tidløst uttrykk med hytteserien Vy, som
balanserer det tradisjonelle og det moderne på en harmonisk måte. Selv om vi holder høy kvalitet, dyrker vi allikevel en nøkternhet. Utfordringen er mer å bygge så lite som mulig, enn så stort som mulig, og samtidig være sjenerøs.
Vi tror det er gjennom å være nyskapende at vi best kan holde tradisjonene i hevd og være aktuelle.


Vy standard
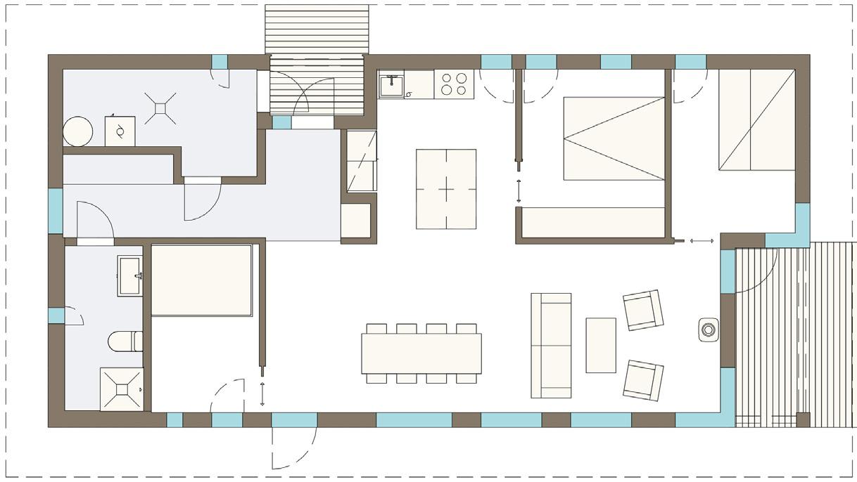
Vy standard er den originale Vy hytta, hvor du får alt på én flate. Enkelt, lettstelt og elegant.
Med alt på en flate og en takvinkel på beskjedne 22 grader, glir denne hytta inn i landskapet på en elegant måte. Her er det ingen dominerende utstikk, bare rene linjer som skaper et harmonisk utrykk. Vinduer fra gulv til tak skaper en opplevelse av å få naturen inn i hytta.
Med alt på én flate og en takvinkel på beskjedne 22 grader, glir denne hytta inn i landskapet på en elegant måte








18CT
Areal regulering: BRA 70m2 BYA 83m2
Lengde 11,08m
Bredde 7,48m
Areal salg: BRA 65m2 = BRA-i 65m2
19A
Areal regulering: BRA 76m2 BYA 87m2
Lengde 11,68m
Bredde 7,48m
Areal salg: BRA 73m2 = BRA-i 73m2
TBA 8m2
21AT
Areal regulering: BRA 82m2 BYA 96m2
Lengde 12,88m
Bredde 7,48m
Areal salg: BRA 76m2 = BRA-i 76m2
TBA 14m2
23AT
Areal regulering: BRA 91m2 BYA 105m2
Lengde 14,08m Bredde 7,48m
Areal salg: BRA 86m2 = BRA-i 86m2
TBA 12m2
















Denne hyttemodellen står på friluftsmuseet Maihaugen på Lillehammer.















23CT
Areal regulering: BRA: 91m2 BYA: 105m2
Lengde 14,08m
Bredde 7,48m
Areal salg: BRA 85m2 =
24ATS
Areal regulering: BRA 93m2 BYA 110m2
Lengde 14,68m
Bredde 7,48m
Areal salg: BRA 86m2 = BRA-i 85m2 + BRA-e 0,4m2
TBA 14m2
24CT
Areal regulering: BRA 95m2 BYA 110m2
Lengde 14,68m
Bredde 7,48m
Areal salg: BRA 89m2 = BRA-i 89m2
TBA 14m2



24AT
Areal regulering: BRA 95m2 BYA 110m2
Lengde 14,68m
Bredde 7,48m
Areal salg: BRA 89m2 = BRA-i 89m2
TBA 14m2













25BT
Areal regulering: BRA 99m2 BYA 114m2
Lengde 15,28m Bredde 7,48m
Areal salg: BRA 93m2 = BRA-i 93m2 TBA 14m2
28BT
Areal regulering: BRA 111m2 BYA 128m2
Lengde 17,08m
Bredde 7,48m



Visningshytte Norsk Hyttesenter, Hellerudsletta. (speilvendt)



Areal salg: BRA 105m2 = BRA-i 105m2 TBA 14m2
28CT
Areal regulering: BRA 111m2 BYA 128m2
Lengde 17,08m Bredde 7,48m
Areal salg: BRA 105m2 = BRA-i 105m2 TBA 14m2

29AT
Areal regulering: BRA 114m2 BYA 132m2
Lengde 17,68m Bredde 7,48m
Areal salg: BRA 104m2 = BRA-i 104m2 TBA 23m2






















30CT
Areal regulering: BRA 120m2 BYA 137m2
Lengde 18,28m Bredde 7,48m













32CT
Areal regulering:
Lengde 19,48m Bredde 7,48m
Areal salg:
14m2
34CT
Areal regulering: BRA 136m2 BYA 155m2
Lengde 20,68m Bredde 7,48m
122m2
Areal salg: BRA 130m2 = BRA-i 130m2 TBA 17m2

35BT

Areal regulering: BRA 140m2 BYA 159m2

Lengde 21,28m Bredde 7,48m
Areal salg: BRA 134m2 = BRA-i 134m2 TBA 17m2

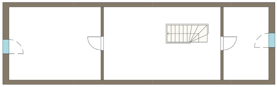
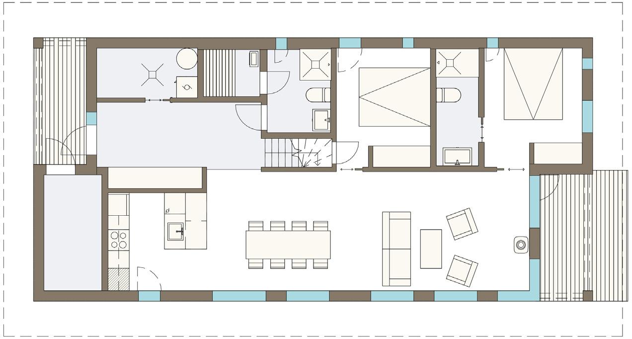
Vy med hems
Vy med hems gir den ekstra fleksibiliteten, som kan bety så mye på hytta. Et typisk eksempel er at noen ønsker å lese ei god bok, mens andre foretrekker et slag med Ludo.


Med rom for fleksibilitet
Med rom for fleksibilitet


En hems gir muligheter for ekstra areal, til glede for familie og venner.








18CH/6M
Areal regulering:
BRA 56m2
BYA 66m2
Lengde 11,08m Bredde 5,98m
Areal salg:
BRA 56m2 = BRA-i 56m2
GUA 74m2 = BRA 56m2 + ALH 18m2
TBA 6m2







19AH
Areal regulering:
BRA 75m2
BYA 87m2
Lengde 11,68m
Bredde 7,48m
Areal salg:
BRA 73m2 = BRA-i 73m2
GUA 112m2 = BRA 73m2 + ALH 39m2
TBA 4m2












21AH


Areal regulering:
BRA 84m2
BYA 96m2
Lengde 12,88m


















Bredde 7,48m
Areal salg:
BRA 82m2 = BRA-i 82m2
GUA 125m2 = BRA 82m2 + ALH 43m2
TBA 8m2





21DTH
Areal regulering: BRA 82m2 BYA 96m2
Lengde 12,88m Bredde 7,48m
Areal salg: BRA 76m2 = BRA-i 76m2 GUA 119m2 = BRA 76m2 + ALH 43m2 TBA 14m2
22ATH
Areal regulering: BRA 86m2 BYA 101m2
Lengde 13,48m Bredde 7,48m
Areal salg: BRA 80m2 = BRA-i 80m2 GUA 125m2 = BRA 80m2 + ALH 45m2 TBA 14m2








23ATH
Areal regulering: BRA 91m2 BYA 105m2
Lengde 14,08m Bredde 7,48m
Areal salg: BRA 85m2 = BRA-i 85m2
GUA 132m2 = BRA 85m2 + ALH 47m2 TBA 14m2




























23CTHS
Areal regulering:
Lengde 14,08m Bredde 7,48m
Areal salg: BRA 84m2 = BRA-i 84m2 + BRA-e 0,4m2 GUA 109m2 = BRA 83m2 + ALH 25m2 TBA 16m2
26ATHS
Areal regulering: BRA 102m2 BYA 119m2
Lengde 15,88m Bredde 7,48m
Areal salg:
93m2 =
88m2 +
5m2 GUA 146m2 = BRA 93m2 + ALH 53m2 TBA 14m2
26DTH
Areal regulering: BRA 103m2 BYA 119m2
Lengde 15,88m Bredde 7,48m
Areal salg: BRA 97m2 = BRA-i 97m2 GUA 150m2 = BRA 97m2 + ALH 53m2 TBA 14m2





















26CTH
Areal regulering:
Lengde 15,88m Bredde 7,48m
Areal salg:
127m2 =
14m2



Visningshytte Norsk hyttesenter, Hellerudsletta.








Hovedetasje













































27CTH


Areal regulering: BRA 107m2 BYA 123m2
Lengde 16,48m Bredde 7,48m



Areal salg:
135m2 =
14m2



28CTH
Areal regulering: BRA 111m2 BYA 128m2
Lengde 17,08m Bredde 7,48m
Areal salg: BRA 105m2 = BRA-i 105m2 GUA 137m2 = BRA 105m2 + ALH 32m2
14m2








32CTH
Areal regulering:
Lengde 19,48m Bredde 7,48m
Areal salg:









32CTHS













































Areal regulering:



Lengde 19,48m Bredde 7,48m
Areal salg:
119m2 = BRA-i 119m2 GUA 159m2 = BRA 119m2 + ALH 40m2 TBA 15m2











36CTH

Areal regulering: BRA 144m2 BYA 164m2
Lengde 19,48m Bredde 7,48m

Areal salg: BRA 138m2 = BRA-i 138m2 GUA 182m2 = BRA 138m2 + ALH 44m2
14m2




Vy med underetasje
Vy med underetasje er skapt for å gjøre tomter i skrånende terreng til én stor fordel. Eller to, eller tre.
Å bygge i bratt terreng gir mulighet for både utsikt og god utnyttelse av tomta sitt areal. Løsningen er en underetasje, som ganske enkelt forvandler en bakke til mye bedre plass inne. Også i underetasjen har vi store vindusflater, for oss som er glad i få dagslys og naturen helt inn i hytta.
Hovedetasje
Sokkeletasje
14UH Inngang sokkeletasje
Areal regulering:
BRA 104m2
BYA 65m2
Lengde 8,68m
Bredde 7,48m
Areal salg:
BRA 96m2 = BRA-i 96m2
GUA 128m2 = BRA 96m2 + ALH 28m2
TBA 13m2

Hovedetasje

Sokkeletasje

16UH Inngang hovedetasje
Areal regulering: BRA 121m2
BYA 74m2
Lengde 9,88m
Bredde 7,48m
Areal salg:
BRA 113m2 = BRA-i 109m2 + BRA-e 4m2
GUA 145m2 = BRA 113m2 + ALH 32m2
TBA 16m2



Hovedetasje


16UH
Inngang sokkeletasje
Areal regulering:
BRA 121m2
BYA 74m2
Lengde 9,88m
Bredde 7,48m
Areal salg:
BRA 113m2 = BRA-i 113m2
GUA 145m2 = BRA 113m2 + ALH 32m2
TBA 12m2

Hovedetasje
Hovedetasje

Sokkeletasje
Sokkeletasje

19ATUH Inngang sokkeletasje
Areal regulering: BRA 146m2
BYA 87m2
Lengde 11,68m Bredde 7,48m
Areal salg:
BRA 142m2 = BRA-i 142m2
GUA 181m2 = BRA 142m2 + ALH 39m2
TBA 5m2
Spis/Stue/Kjøkken


20CTU Inngang sokkeletasje
Areal regulering: BRA 154m2
BYA 92m2
Lengde 12,28m
Bredde 7,48m
Areal salg:
BRA 146m2 = BRA-i 146m2
TBA 14m2
20CTU Inngang hovedetasje
Areal regulering: BRA 153m2
BYA 92m2
Lengde 12,28m
Bredde 7,48m
Areal salg:
BRA 145m2 = BRA-i 145m2
TBA 14m2






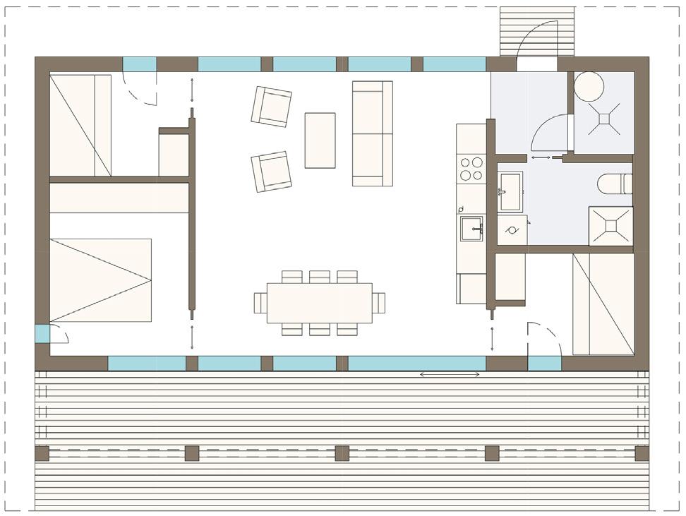
Sommer Vy
Nyt sommeren fullt ut!
Sommer Vy er skapt med hensyn til varme sommerdager og lange sommerkvelder.
Her får du mulighet til skyvedører som gjør at du slipper sommeren inn i hytta og kan nyte en romslig terrasse med tilgang til hytta sin funksjonalitet.
BRA: 66-88m2 Takvinkel: 8 grader
Soverom: 2-3
Baderom: 1
1
Sov 1 5,7 m2 Gang 3,8 m2

Toalett/Bad
Bod 2,4 m2
Spis/Stue/Kjøkken 26,9 m2
Sov 2 5,8 m2

Spis/Stue/Kjøkken

Sommer Vy 1
Areal regulering:
BRA 62m2 BYA 75m2
Lengde 9,28m Bredde 8,08m
Areal salg:
BRA 49m2 = BRA-i 49m2
TBA 27m2
Sommer Vy 2
Areal regulering: BRA 84m2 BYA 99m2
Lengde 12,28m
Bredde 8,08m
Areal salg:
BRA 66m2 = BRA-i 66m2
TBA 36m2
Sommer Vy 3
Areal regulering: BRA 86m2 BYA 100m2
Lengde 14,08m Bredde 6,28m
Areal salg:
BRA 76m2 = BRA-i 72m2 + BRA-e 4m2
TBA 28m2




Med Sommer Vy 2 skinner naturen tvers gjennom hytta.
Bod, anneks og garasje
Vi bygger garasje og uthus som står i stil med din hytte.
Ta kontakt med en av våre hyttekonsulenter, så finner vi sammen den beste løsningen for deres behov!



Vy 5 skibod
Areal regulering:
BRA 6m2
BYA 10m2
Lengde 3,28m
Bredde 2,98m
Areal salg:
BRA 6m2 = BRA-e 6m2
TBA 1m2

Vy 9 skibod
Areal regulering:
BRA 12m2
BYA 17m2
Lengde 5,68m
Bredde 2,98m
Areal salg:
BRA 12m2 = BRA-e 12m2
TBA 1m2

Vy 12 anneks
Areal regulering:
BRA 27m2
BYA 34m2
Lengde 7,48m
Bredde 4,48m
Areal salg:
BRA 27m2 = BRA-e 27m2
TBA 4m2

Vy 12 anneks med bad
Areal regulering:
BRA 29m2
BYA 36m2
Lengde 8,08m
Bredde 4,48m
Areal salg:
BRA 29m2 = BRA-e 29m2
TBA 4m2

Vy 10 garasje
Areal regulering:
BRA 23m2
BYA 28m2
Lengde 6,28m
Bredde 4,48m
Areal salg:
BRA 23m2 = BRA-e 23m2
TBA 0m2

Vy 14 garasje med skibod
Areal regulering:
BRA 32m2
BYA 39m2
Lengde 8,68m
Bredde 4,48m
Areal salg:
BRA 32m2 = BRA-e 32m2
TBA 0m2
Funksjonelle løsninger
1
Det er mange elementer som spiller sammen for å få utnyttet rommene maksimalt og skape en hyggelig atmosfære: Store vinduer, bred panel, rause takutstikk, planløsninger, praktiske boder, innebygd skap. Hytta skal fungere optimalt for deg og dine.


Nær naturen
2
Rikelig med vinduer fra gulv til tak gir et moderne preg innvendig, som utnytter naturlig lys og gir fantastisk utsikt, nært og fjernt. De karakteristiske, inntrukne vinduene bidrar til en harmonisk fasade, som passer inn med omgivelsene. Utvendig fremstår hytta som en selvfølgelig del av de fineste norske byggetradisjoner.
Gode valgmuligheter
Våre valgmuligheter gjør at du kan tilpasse hytta etter egen smak og egne behov, for fjellet, skogen eller nær sjøen. Du velger blant våre grunnmodeller, og med arkitektens retningslinjer for Vy tilpasses planløsningen. Du velger type bygg, taktype, størrelse, materialer, farger og en rekke detaljer for eget interiør. Hele veien ivaretas praktiske og arkitektonisk gode løsninger


Komplett4leveranse
Målet vårt er å gjøre prosessen med å kjøpe og bygge hytte så enkel og behagelig som mulig. Leve Hytter er ansvarlig søker for prosjektet. Vi står for byggemelding og ferdigattest, prosjektog byggeledelse, samt ettårsbefaring. Vi benytter Standard Norges kontrakt og leverer kvalitet hele veien, til avtalt tid og pris. Om det skulle dukke opp spørsmål underveis, vil vi alltid være behjelpelige.


Fornyer norsk hyttetradisjon
Bak Leve Hytter står noen av landets mest erfarne hyttebyggere. Filosofien vår er at kvalitet varer lengst og gir størst glede. Å levere hytter som bare konkurrerer på pris er ikke gøy, men pris skal heller ikke være en grunn til å velge oss bort. Så får vi heller jobbe litt hardere og smartere, sammen med våre dyktige håndverkere og lokale leverandører.
Vi bygger videre på norske byggetradisjoner, samtidig som vi vil tilføre noe nytt.
Leve Hytter bygger hytter til mennesker som verdsetter skikkelig kvalitet og god arkitektur, til de som ser forskjellen. For oss gir det mening å gjøre arkitekt-tegnede hytter av høy kvalitet mer tilgjengelig, i hele Norge.
Hovedkontoret til Leve Hytter ligger i Øyer i Gudbrandsdalen, et steinkast fra Hafjell. Besøk levehytter.no for mer informasjon, eller kontakt oss på telefon +47 476 70 400 og e-post kontakt@levehytter.no.




Arealbenevnelser
Areal regulering:
BRA (Bruksareal tomt) Bruksareal hytte + Bruksareal overbygd areal.
Hyttas areal ved utregning av tomteutnyttelse.
BYA (bebygd areal) Summen av areal som hytta opptar i terrenget.
Areal salg (se illustrasjon):
BRA-i (Internt bruksareal) Areal innenfor hytteenheten, inkl. innvendig boder. Måles fra innvendig kledning.
BRA-e (Eksternt bruksareal) Areal av rom utenfor hytteenheten, f.eks. bod med kun ekstern inngang.
BRA (Bruksareal hytte) Summen av BRA-i + BRA-e
ALH (Areal med lav himlingshøyde) Ikke måleverdig gulvareal som skyldes skråtak og lav himlingshøyde, slik som f.eks. hems.
GUA (Gulvareal) Summen av BRA + ALH
TBA (Terrasse- og balkongareal) Areal og terrasser, åpne balkonger og åpen altan tilknyttet hytta, også kalt åpent areal.



Våre visningshytter

Hellerud 1 - Vy standard, 28 BT Åpningstider
Norsk Hyttesenter
Hellerudsletta, Kragerudveien 2026 Skjetten
Torsdag 12:00-20:00
Fredag 10:00-16:00 Lørdag 10:00-16:00

Vy standard, 24 ATS
Maihaugen friluftsmuseum
Maihaugvegen 1 2609 Lillehammer
Åpningstider
Ta kontakt for avtale om visning.

Hellerud 2 - Vy med hems, 26 CTH Åpningstider
Norsk Hyttesenter Hellerudsletta, Kragerudveien 2026 Skjetten
Torsdag 12:00-20:00
Fredag 10:00-16:00 Lørdag 10:00-16:00

Vy med underetasje, Vy 14 UH
Myrkdalen, Voss Hagamyri 31, 5713 Vossestrand
illustrasjon
Åpningstider
Ta kontakt for avtale om visning.



