2024 Architectural Portfolio

Page 1

FATIMA JARQUIN

ARCHITECTURAL PORTFOLIO

CONTENT

01 J ARDINS DE MARIA MATILDE | INVESTIGATION OF THE EIXAMPLE BLOCK

An intervention aimed at attracting children and parents to an interior garden.

02 B REAKING THE CYCLE | A SOCIAL JUSTICE INITIATIVE

Ar chitecture designed for the reintegration of citizens into the community.

03 E CO-INDUSTRIAL PARK | AN AGROSILVOPASTORAL SYSTEM

A mas terplan for a closed-loop food system.

04 URB AN INTERACTION | DESIGNING MAKERSPACES

T wo homes designed for makers, tailored to meet their creative needs.

05 PR OFESSIONAL PRACTICE | FLUX ARCHITECTURE & DESIGN

Design and marketing tasks as an architectural intern at a modern design firm..

06 PHO TOGRAPHY | WAYS OF SEEING

Digit al photographs captured during my international travels.

JARDINS DE MARIA MATILDE

INVESTIGATION OF THE EIXAMPLE BLOCK

Barcelona, Spain | 2023 Summer Studio | Instructor: Sekou Samuels | Collaborator: Connie Lee

Named after actress and radio presenter Maria Matilde Almendros, our garden is a part of Barcelona’s network of 77 interior gardens in the Eixample district. Unique for its peaceful atmosphere and despite its 1.500 m2 size and proximity to Gran Via, it’s shielded from urban noise by the surrounding buildings. Upon conducting site visits and documentation, we observed a surprising lack of children in our garden, while

the adjacent garden attracted children and parents. Therefore, we propose an intervention that will invite parents to bring their children by adding a ramp element at the entrance to our site. Mirroring the arches underneath the ramp, we create a playful space for children to enjoy, ensuring our garden becomes a welcoming space for all.

September 2007

March 2015

0
Existing Section Oblique : Connie Lee 1 1 3 3 4 4 2 2 Site Analysis
1
Jardin de Maria Matilde Almendros Gran Via Jardins de Tete Monteliu Rocafort metro line by the brick walls pathway furniture kids play area Eixample Grid Green Passages + Gran Via Superillas + Interior Gardens Block + Metro Stations Schools Public Amenities Scheme 01: Mirroring tree canopy for play/rest Scheme 02: Activating the walls by extruding brick arches Scheme 03: Trees as anchor points for a canopy site play flow seating
Schematic Design

Above Ground Level: Flow + Seating

Ground Level: Site + Play Area

Section Obliques with Intervention: Connie Lee
Renders: Fatima + Connie

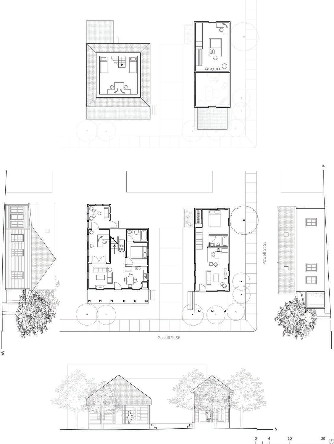
BREAKING THE CYCLE

A SOCIAL JUSTICE INITIATIVE

Atlanta, GA | 2023 Spring Studio |

Instructor: Vernelle A. A. Noel, Ph.D. |

Located at the intersection of Moreland Ave SE and McDonough Blvd SE, Breaking the Cycle is a facility designed to help community members and re-entering citizens come together and break the harmful cycle of recidivism. The programmatic spaces are specifically designed for re-entering citizens, with housing for up to two years, as well as opportunities for employment on our farm, in shops, and at a marketplace where

Collaborator: Nodoka Shimizu

they can acquire transferable skills and earn a source of income. In addition, our site offers spaces for community members to gather, learn about the challenges faced by those returning from incarceration in our museum, purchase fresh produce at affordable prices from our marketplace, or rent a lot on our farm to grow their own food.

15% of incarcerated people experience homelessness in the year before admission to prison.

80% of prisoners do get released.

68% of prisoners released were arrested for a new crime within three years of release from prison.

10x

Formerly incarcerated people are almost 10 �mes more likely to be homeless than the general public.

0 2
housing employment
lack of support + resources stigma + discrimination legal + financial obligations released from prison return to prison barriers faced during re-integration mental health + substance abuse
THE CYCLE OF RECIDIVISM THE PURPOSE
Highway 1 MILE 0 0.5 FRESH FOOD ACCESS HOMELESS SHELTERS Median Household Income Low-Income - Low Access Areas THE SITE

Program Diagram: Nodoka Shimizu

THE PROPOSAL

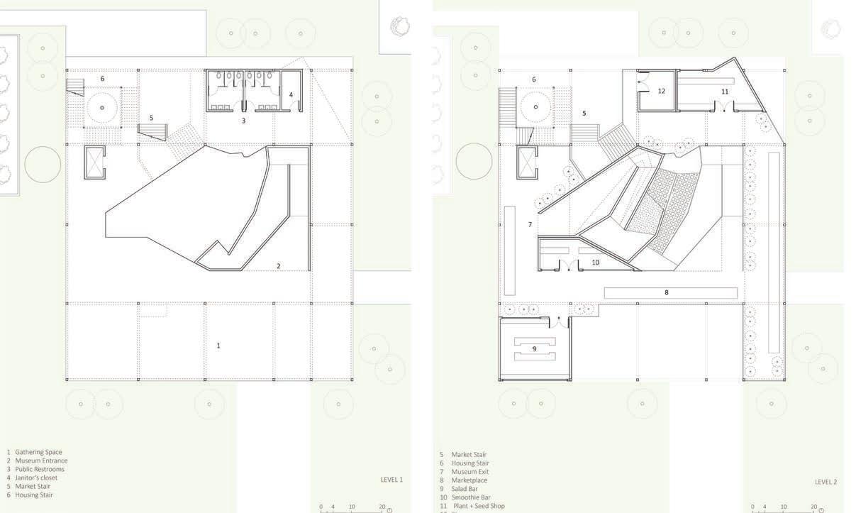
PROGRAM
THE CONCEPT THE

Museum

The museum, featuring charred wood finish, immerses visitors in the reentry barriers and the struggle of formerly incarcerated individuals.

Market

At the market, visitors can buy handcrafted products and goods made by individuals reintegrating into society. The open layout encourages interactions.

THE EXPERIENCE

Shops

Reentering citizens operate these shops, selling farmproduced goods. Options include a smoothie bar, salad bar, and a plant + seed store.

Housing

The private homes are designed to feature abundant natural lighting and a unifying roof between the units that encourages interaction among residents.

Experience Video

This audio and visual presentation provides a comprehensive walkthrough of the entire building, capturing its journey from concept to realization.

Class Zine

Our studio published a studentled zine containing our research, projects, and writings based on our work and what we learned this semester.

Northwest Facade + click thumbnails to navigate to links

Southeast Facade

ECO-INDUSTRIAL PARK

AN AGROSILVOPASTORAL SYSTEM

Fata Burnu, Sudan | 2022 Fall Studio | Instructor: Logman Arja

Fata Burnu, a village home to both native residents and internally displaced persons (IDPs), grapples with the aftermath of violent conflicts, resulting in a lack of critical infrastructure and widespread poverty. To address these challenges, an agrosilvopastoral system is being proposed for the eco-industrial park. This system involves a synergy between animals, crops, and trees, delivering benefits like shade, increased

biodiversity, and a creative beehive fence system to control animal grazing. Fields are thoughtfully planted with native crops and trees, employing water-retention techniques for maximum efficiency. Furthermore, an eco-tourism program is introduced, offering communal spaces for both tourists and farmers, serving as hubs for learning diverse farming techniques and engaging in various activities.

Site Analysis Model

0
3
This visual representation illustrates the Wadi Kutum, which serves as Fata Burnu’s primary water source, in its connection to various light industries within the village, including animal husbandry, pottery, carpentry, agrosilvopastoralism, and textile production.

An agrosilvopastoral system

The design decision to introduce an agrosilvopastoral system to Fata Burnu stems from recognizing the positive impact this integrated approach of animals, crops, and trees can have on the village’s overall well-being and economy.

V O P A S T O R A L S Y S T E M + E C O L O G I C A L F E N C E : A N I M A L S + C R O P S + T R E E S + B E E H I V E F E N C E + O F A N A G R O S I L V O P A S T O R A L S Y S T E M S O R G H U M T O B A C C O N A T U R A L F E R T I L I Z A T I O N
V O P A S T O R A L S Y S T E M + E C O L O G I C A L F E N C E : A N I M A L S + C R O P S + T R E E S + B E E H I V E F E N C E + O F A N A G R O S I L V O P A S T O R A L S Y S T E M S O R G H U M T O B A C C O N A T U R A L F E R T I L I Z A T I O N

3-D Clay Study Model

I created a 3-D model of my designated node at Georgia Tech’s Fabrication Lab using a 3-D clay printer. To make the initial study model, I converted the entire node into a terraced system using materials like sand, flour, and wooden dowels.

The Masterplan

The agrosilvopastoralism node is located by the village’s primary water source, the river, where the soil is fertile. Fields in this node are created by extending lines perpendicular to the river from all other industrial nodes.

The Micro-site

In Fata Burnu, the main crops include tobacco, millet, groundnuts, sorghum, and sesame, strategically arranged according to their harvest times to aid cattle movement. The fields will also have native trees like acacia and citrus trees producing arabic gum and citrus, while native palm trees are to be placed in the green spaces.

The Site Plan

The fields use three water-retention farming methods, including wind-breaking with citrus and acacia trees, alley-cropping with alternating rows of trees and crops, and terrace farming with five tiers.

F E E D S H A D E I N C R E A S E S A N I M A L W E L L B E N G N A T U R A L L Y F E R T L I Z E M A N U R E E N R I C H E S S O I L P O L L I N A T E T R E E S : -M I T I G A T E G R E E N H O U S E G A S E S -P R O V I D E S S H A D E -W A T E R I S C O N S E R V E D C R O P S -S T R E N G T H E N S O I L -P R O V I D E S F E E D -P R O V I D E S M A T E R I A L F O R C R A F T S B E E S : -P O L L I N A T E C R O P S -E F F I C I E N T B A R R I E R T O P R O T E C T C R O P S -P R O D U C E S H O N E Y C O W S : -F R O M A N I M A L H U S B A N D R Y -O N L Y G R A Z E A F T E R A C R O P ‘ S H A R V E S T S E A S O N -R E C E I V E N U T R I T I O U S F E E D B O - R EM E D A T I O N: -P R O V I D E S W A T E R B I O - D I G E S T E R S : -R E C E I V E C R O P W A S T E --P R O V I D E F E R T I L I Z E R F O O D - P R O C E S S N G : -R E C E I V E C R O P S -R E C E I V E S H O N E Y A N M A L H U S B A N D R Y : -P R O V I D E S A N I M A L S -R E C E I V E S A N I M A L F E E D
W I N D - B R E A K I N G R E S T G R E E N S P A C E A L L E Y - C R O P P I N G W I N D - B R E A K I N G T E R R A C E F A R M I N G G R E E N S P A C E G R E E N S P A C E T E R R A C E F A R M I N G
seed shop + cafe place of rest workshop
A L L E Y - C R O P P I N G W I N D - B R E A K I N G G R E E N S P A C E A L L E Y - C R O P P I N G W I N D - B R E A K I N G
watchtower pavilion

URBAN INFILL

DESIGNING MAKERSPACES

Cabbagetown, GA | 2021 Spring Semester | Instructor: Yousef Bushehri

This project proposes two homes on an empty corner lot in Cabbagetown, GA, tailored to the needs of two creative individuals. The chosen styles, the cottage and shotgun style home reflect the architectural typology of houses found in the district. Rachel’s cottage is on the west side of the lot, optimized for evening sunlight. She’s a photographer who spends her mornings and afternoons working with clients, returning home to

edit images and emails from her office, sunroom, or kitchen table. Sam lives alone in the shotgun-style home to the east of Rachel’s cottage. She works from home and benefits from ample natural light in his second-floor loft makerspace, which has skylights. Both homes are designed to meet the unique lighting and spatial requirements of the occupants, enhancing their creativity.

0 4

client seating

desk space

large cutting mat desk space

alterations stool couch natural lighting

mannequins

fabric racks

sewing machines

natural lighting

Rachel Sam
First Floor Plan Second Floor Plan

PROFESSIONAL PRACTICE

FLUX ARCHITECTURE & DESIGN

Peachtree Corners, GA | 2023 - 2024 Architectural Internship | Director of Design: Jorge Bazan

FLUX architecture + design is a multidisciplinary design studio specializing in contemporary design. With projects that range from large scale urban and mixed use developments to single family homes and interiors. At FLUX, I have been a key part of diverse projects, ranging from the Tucker residence’s topography map and millwork drawings to drafting initial shop drawings for the stair and handrail for the Glenairy home.

Currently, I am creating material selection boards for the CEO and COO’s office spaces in a commercial project set for completion in 2024. In addition to project contributions, I’ve played a role in marketing and financial efforts, updating the firm’s website, creating social media content, and assisting with organizing client financial pay applications.

0 5
Glenairy Residence In my involvement with this modern home, I enhanced the render above to feature its green surroundings, steel handrail + guardrail, and contemporary finishes, specifically for our website. The shop drawings on the right were created to support the contractor in estimating the assembly and installation of the handrails on-site.
3'-0" 3'-2" 9'-9 3 4 " 3'-6" 4" spacing between posts 3 3/4" SPACING BETWEEN CABLE RAILS, TYP. 1'-11 1 4 2'-5 1 2 3'-0" 3'-6" 3'-10 3 8 3'-5" 3 3/4" SPACING BETWEEN CABLE RAILS, TYP. 4" SPACING BETWEEN POSTS SCALE 1/2" = 1'-0" Section 3 B SCALE 1/4" = 1'-0" A SCALE 1/2" = 1'-0" Section Elevation - Stair Note: Spacing between cables is the same. 1 x 1 2 " STEEL POST TILE FINISH GRADE A A 3'-6" 3 3/4" SPACING BETWEEN CABLE RAILS, TYP. 1 1 2 " x 1 1 2 " STEEL POST intermediate steel post BALCONY CABLE RAIL SECTION (A-A) 3'-6" 4" x 4" steel baseplate 0'-5" 0'-5 9 16 0'-5" steel post X 1 steel post 8 SPACING BETWEEN CABLE RAILS, TYP. steel baseplate WELDED ONTO SCALE 1/4" = 1'-0" SCALE 1/4" = 1'-0" 1 2 Elevation - Balcony Rail Elevation - Stair Rail

Tucker Residence

My contributions to this 13,000 sq ft home in Chamblee have involved supporting budgeting efforts by measuring square footages for interior and exterior finishes, roof coping, and door counts. Furthermore, I created preliminary elevation drawings of the millwork and glazing. During a recent site visit, I observed the installation of retaining wall formwork before the concrete pour.

Living Room 108 Millwork & Interior Elevations A-9.14 FLUX architecture + design 2909 Langford Road Suite A-600 Norcross, GA 30071 p: f: COPYRIGHT This drawing and all reproductions are copyrighted and PROJECT TITLE SHEET NUMBER ISSUE NO.DATEDESCRIPTION PROJECT INFO Burgess Residence 2786 Old Norcross Road Tucker, GA 30084 cvd 404-890-5530 404-890-5532 info@fluxmodern.com www.fluxmodern.com 12/12/22 2/21/23 3/10/23 Glazing Update 3/20/23 Plan UpdateSection 1 - SCALE: 3/4" = 1'-0"1st Floor Plan10.5 SCALE: 3/4" 1'-0"Elevation A10.5 SCALE: 3/4" 1'-0"Elevation C10.5 SCALE: 3/4" 1'-0"Elevation B10.5 SCALE: 3/4" = 1'-0"Section 2 - SCALE: 3/4" 1'-0"

Commercial Office Project

In the development of this 26,000 sq ft private office space, my responsibilities included rendering tile selections for the women’s and men’s lobby restrooms. Additionally, I created material selection boards for the CEO and COO office and bathroom spaces, complete with finishes, furnishings, and lighting selections.

PHOTOGRAPHY

WAYS OF SEEING

My passion for photography began at 17 when I purchased my first digital camera. Since then, I’ve been capturing images of buildings, people, objects, and landscapes. Today, my focus is on discovering a pop

of color at every site I visit, especially during travels. I’m particularly drawn to patterns, textures, materials, repetition, and my favorite color, green, whether I find it in a tile or in the surrounding trees.

Barcelona, Spain

0 6
Girona, Spain Porto, Portugal

Mexico City, Mexico

Paris, France

Porto, Portugal
THANK YOU. e: fgjarquin12@gmail.com m: (404) 625-2491

Turn static files into dynamic content formats.

Create a flipbook
Issuu converts static files into: digital portfolios, online yearbooks, online catalogs, digital photo albums and more. Sign up and create your flipbook.
2024 Architectural Portfolio by fgjarquin - Issuu