Maltepe Marina _ Istanbul

Page 1

Maltepe Marina
Maltepe in Istanbul
Maltepe Marina sea green line green s a city

two different approaches

Maltepe Marina CONCEPT
1
Option
Option 2

access from the sea and internal basins

1
2
STEP 1
Option
Option
Maltepe Marina
Option 1 Option 2 Maltepe Marina STEP 2 fueling and technical basin
1
2 P P P P Maltepe Marina STEP 3 roads and parking P P
Option
Option
Option 1 Option 2 Maltepe Marina STEP 4 buildings & facilities
1
2 Maltepe Marina STEP 5
marina gathering & social core
Option
Option
the
KÜREK PARKURU DALGAKIRANI MEVCUT YOL İDO ARAZİSİ PARK PARK 15 15 15 15 15 15 15 15 15 15 15 15 15 14 14 14 14 14 14 14 14 14 14 14 14 14 14 14 13 13 13 13 13 13 13 13 13 13 13 13 13 13 13 12 12 12 12 12 12 12 12 12 12 12 12 12 12 12 11 11 11 11 11 11 11 11 11 11 11 11 11 11 10 10 10 10 10 10 10 10 10 10 10 10 10 10 9 9 9 9 9 9 9 9 9 9 9 9 9 8 8 8 8 8 8 8 8 8 8 8 7 7 7 7 7 7 7 6 6 6 6 6 5 5 5 4 41 10 m 38 12 m 37 12 m 38 12 m 39 12 m 38 12 m 39 12 m 39 12 m 39 12 m 34 15 m 34 15 m 34 15 m # 34 15 m # 34 15 m # 34 15 m 34 15 m 34 15 m 34 15 m 34 15 m 39 15 39 15 m 32 15 m 35 18 m # 38 15 m # 44 12 m 29 18 m 29 35 m 28 25 m # 31 # 29 21 m # 29 21 m 30 18 m 30 m 25 m # 36 30 m 25 30 m # 13 25 m 29 21 m 75.00 Ø100 Ø60 Ø60 Ø60 Ø100 75.00 Maltepe Marina OPTION 1
Maltepe Marina OPTION 2

Option 1

STRENGTHS

• The double entrance might be useful because it allows to enter in the Marina with different winds and sea conditions

• The double sea entrance basin offer the possibility of a functional division of the fleet, mega yachts in one side and common boats in the other

• Natural circulation of the sea water

• Direct connection between the waterfront park, the Marina activities and the public walkway on the breakwater

• Good functional division of the different zones of the project

• Good solution for the fuelling jetty that is accessible from the internal (Marina basin) and from the external side

• The project and the activities buildings are concentrated along the central pier in a barycentric position

WEAKNESSES

• The double entrance could cause management and control difficulties

• To connect the two basin it would be necessary to provide a swing bridge at the top of the central jetty (cost and maintenance issues)

STRENGTHS

strengths & weaknesses

Option

• The design configuration of the Marina with a central pier allows two inner basins with the possibility of a functional division of the fleet, mega yachts in one side and common boats in the other

• Direct connection between the waterfront park and the Marina activities

• Good functional division of the different zones of the project

• Good solution of the fuelling jetty that is easily accessible from the Marina entrance

• The project and the activities buildings are concentrated along the Northern pier in a barycentric position

• Nearby the Marina buildings and activities is locate a park, in continuity with the waterfront park

WEAKNESSES

• Significant distance between the farther moorings and shopping and the office administration area

• The public walkway doesn’t connect the existing waterfront with the breakwater

• Minor natural water circulation

2 Maltepe Marina STEP 6

green areas

walkways squares ~ 30,000 m2

public green areas & walkways

2
Maltepe Marina OPTION

fuelling

dry dock area ~ 25,000 m2

expansion area ~ 2,300 m2

hangar and workshop ~ 1,500 m2

exhibition area ~ 8,400 m2

2
Maltepe Marina OPTION
dry dock area | exhibition area

administration building ~ 1,500 m2

yacht club ~ 1,500 m2

market ~ 500 m2

retail | cafè | rest. | infirmary | etc. ~ 1,400 m2

agency offices ~ 300 m2

sanitaries

control tower

2
Maltepe Marina OPTION
buildings

roads

public parkings ~ 70 parking spaces

private parkings ~ 980 parking spaces

covered private parkings & depots

~ 210 parking spaces + ~ 454 depots

TOTAL NO. PRIVATE PARKINGS = 130% mooring places

Maltepe

roads & parkings

Marina OPTION 2

10 m boats - 118 mooring places

12 m boats - 205 mooring places

15 m boats - 228 mooring places

18 m boats - 109 mooring places

21 m boats - 87 mooring places

25 m boats - 62 mooring places

30 m boats - 53 mooring places

35 m boats - 25 mooring places

50 m boats - 3 mooring places

OPTION 2 moorings
Maltepe Marina

Maltepe Marina

NO. UPLAND FACILITIES

0 Marina entrance

1 Marina administration building (front office, manager rooms, personnel offices, meeting rooms, education room, small mosque, infirmary)

2 Yacht Club

3 Yacht market

4 ATM

5 Restaurant

6 Custom guard room - State offices

7 Sport areas

8 Bicycle roads

9 Market

10 Agency offices

11 Yachtsmen depots/lockers + closed garage

12 Taxi station

13 Transit berth control building

14 Infirmary

15 Sanitary units (Wc-shower, Handicapped wc-shower, Laundry, Baby care room)

16 Fuel station

17 Dry dock area

(winter, empty trailer-trailer park, fair and exhibition area)

18 Bazaar

19 Lighthouse

20 Travellift basin and slipway ramp

21 Service pontoon

22 Car park

23 Maintenance and repair workshops

24 Staff social building

25 Waste acceptance unit

(Bilge water, oil, sewage, solid waste, package waste, hazardous waste)

26 Yacht bottom washing area

27 Heliped

28 Fuel station (land+sea)

29 Control tower

OPTION 2

From the Marina Entrance Plaza it is possible to walk down the Marina level using a stairs and ramp system.

OPTION 2 entrance area
Maltepe Marina
Maltepe Marina OPTION 2 cafés, bazaars & restaurants Café option 1 Café option 2 Café
3 Bazaar Restaurant 1 1 1 7 2 2 2 8 4 4 4 3 3 3 9 5 5 6 6 5 11 10 12 13 14 15 16 17
option
CAFÉ (~ 70 m2) 1. Cafè 2. Kitchen 3. Restroom 4. Technical area 5. Dep. waste 6. Terrace BAZAAR (~ 70 m2) 7. Bazaar 8. Storage 9. Restroom 10. Technical area 11. Dep. waste RESTAURANT (~ 200 m2) 12. Restaurant (75 seats) 13. Restrooms (male/female/ handicapped) 14. Staff changing rooms (male/female) 15. Kitchen 16. Kitchen storage 17. Dep. waste
Maltepe Marina OPTION 2
offices & market Agency offices option 1 Agency offices option 2 Agency offices option 3 Market 1 1 1 4 5 6 7 8 1 1 1 1 2 2 2 2 2 2 3 3 3 3 3 3 3
agency
AGENCY OFFICES (~ 80 m2) 1. Agency office 2. Restroom 3. Storage MARKET (~ 500 m2) 4. Market 5. Office 6. Check-out 7. Staff changing rooms (male/female) 8. Storage + Loading & Unloading area
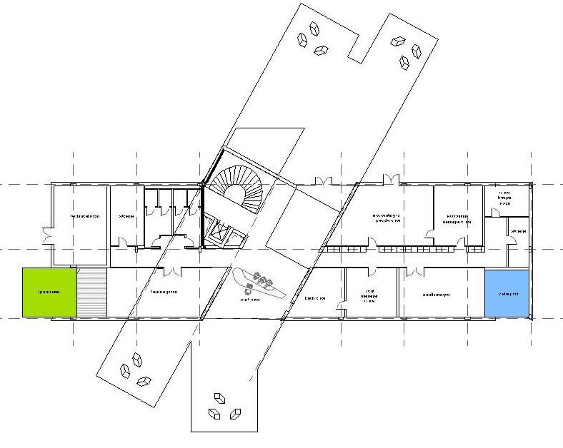
Maltepe Marina OPTION 2 administration building Ground floor 1 11 11 22 2 5 9 21 9 3 6 7 10 4 8 18 19 20 14 12 12 14 16 15 9 17
floor
Entrance,
First
1.
hall and stairs
Front
2.
Office 3. Back Office
4. Front Manager Office 5. Training Room 6. Accounting for people office
Keeper
12. Personnel Office 13. Meeting Room 14. Archive 15. Security Ass. Manager Office 16. Security Manager Office 17. Tea and Coffee Room 18. Ass. Marina Manager Office 19. Deputy Marina Manager Office 20. Marina Manager Office 21. Technical Room 22. Terrace
7. Accounting Manager office 8. Small Mosque 9. Storage 10.
Room 11. Restroom

From the Marina Manager office and the Ass. Manager office it is possible to control the whole Marina.

Maltepe Marina OPTION 2 administration building

Maltepe Marina

NO. UPLAND FACILITIES

0 Marina entrance

1 Marina administration building (front office, manager rooms, personnel offices, meeting rooms, education room, small mosque, infirmary)

2 Yacht Club

3 Yacht market

4 ATM

5 Restaurant

6 Custom guard room - State offices

7 Sport areas

8 Bicycle roads

9 Market

10 Agency offices

11 Yachtsmen depots/lockers + closed garage

12 Taxi station

13 Transit berth control building

14 Infirmary

15 Sanitary units (Wc-shower, Handicapped wc-shower, Laundry, Baby care room)

16 Fuel station

17 Dry dock area (winter, empty trailer-trailer park, fair and exhibition area)

18 Bazaar

19 Lighthouse

20 Travellift basin and slipway ramp

21 Service pontoon

22 Car park

23 Maintenance and repair workshops

24 Staff social building

25 Waste acceptance unit (Bilge water, oil, sewage, solid waste, package waste, hazardous waste)

26 Yacht bottom washing area

27 Heliped

28 Fuel station (land+sea)

29 Control tower

OPTION 2

CANTEEN (~ 490 m2)

1. Canteen (100 seats)

2. Restrooms (male/female/handicapped)

3. Cleaner room

4. Technical room

5. Staff changing rooms (male/female/male chefs/female chefs)

6. Storage

7. Kitchen storage

8. Dish washing

9. Kitchen

10. Office

11. Dep. clean

12. Dep. dirt

13. Dep. waste

MAINTENANCE AND REPAIR WORKSHOPS

14. Workshops (~ 37 m2 each)

15. Staff changing rooms (male/female)

16. Hangar (~ 740 m2)

17. Office

18. Restrooms

19. Archive

YACHT MARKET

20. Yacht market

21. Restrooms

22. Tea and coffee room

staff social building maintenance and repair workshops yacht market

1 5 10 m
Maltepe Marina OPTION 2
A AA’ EE’ DD’ CC’ BB’ C C’ D D’ E E’ A’ B B’ 1 2 3 4 5 7 6 10 11 12 13 14 14 14 15 14 14 14 20 21 22 17 17 19 18 16 9 8
Maltepe Marina OPTION 2 section A
Maltepe Marina OPTION 2 section B
Maltepe Marina OPTION 2 section C
Maltepe Marina OPTION 2 section D
Maltepe Marina OPTION 2 section E
Maltepe Marina OPTION 2 section F
Maltepe Marina OPTION 2 section G
Maltepe Marina OPTION 2 section H
CONCEPT
Maltepe Marina
SKETCHES

Maltepe Marina

PROJECT REFERENCES buildings & water

Maltepe Marina

PROJECT REFERENCES buildings & water

Maltepe Marina

PROJECT REFERENCES buildings & water

Maltepe Marina

PROJECT REFERENCES buildings & water

Maltepe Marina

PROJECT REFERENCES

landscape design

Maltepe Marina

PROJECT REFERENCES

landscape design

Maltepe Marina

PROJECT REFERENCES landscape design

Maltepe Marina

PROJECT REFERENCES

landscape design

Capolei Cavalli Architetti Associati

Turn static files into dynamic content formats.

Create a flipbook
Issuu converts static files into: digital portfolios, online yearbooks, online catalogs, digital photo albums and more. Sign up and create your flipbook.