Centro de Acolhimento LGBTQIA+

Page 1

CENTRO DE ACOLHIMENTO LGBTQIA+

Fabio Constante Da Silva

Centro Universitário Belas Artes de São Paulo

Arquitetura e Urbanismo

Trabalho Final de Graduação

Orientador(a): Solimar Isaac

São Paulo 2022

“O orgulho não é exatamente por ser LGBT, mas sim por ter coragem de ser o que somos em um mundo que tenta nos fazer desistir todos os dias.”

Foram longos cinco anos, cheios de emoções, dificuldades e conquistas, mas sou extremamente grato por cada detalhe.

Primeiramente gostaria de agradecer a Deus, por ter me dado a oportunidade de estudar e por me dar forças todos os dias.

Aos meus pais, Vera e Flavio, por acreditarem em mim e por sentirem orgulho de quem sou e do meu esforço. Mesmo sem ter muitas condições, eles sempre fizeram o maximo para me ajudar. Meu pai não esta mais presente para contemplar minha conquista, mas tenho certeza que de onde quer que ele esteja, esta mega orgulhoso.

AGRADECIMENTOS

A minha familia que me da muito apoio e vontade de continuar, independente de qualquer adversidade.

A minha orientadora Solimar, por ter disponibilizado seu tempo para me ajudar e compartilhar muito conhecimento. Sem ela, não teria conseguido alcançar este resultado que tanto amei.

A todos os meus amigos, que sempre estiveram presente na minha vida e aos que tive o privilégio de poder compartilhar esses cinco anos, principalmente ao meu grupo que sempre pude contar. Com certeza serão pessoas que levarei para vida.

E também gostaria de agradecer a mim mesmo, por não ter desistido, por ter dado o melhor de mim em cada coisa que desenvolvi e por continuar com a cabeça erguida mesmo nos piores momentos.

SUMÁRIO

01 - INTRODUÇÃO

02 - CONCEITOS

Diversidade e Inclusão Acolhimento Resistência 03 - JUSTIFICATIVA

04 - ESTUDOS DE CASO

The Bridge Homeless Assistence Center

Nem toda casa é abrigo: Cultura e Acolhida LGBTIA+

05 - CONTEXTUALIZAÇÃO

A luta ganha poder no mundo

A luta ganha poder no Brasil

Linha do tempo de conquistas 06 - O LOCAL

Republica e sua conexão com o publico LGBTQIA+ Linha do tempo República Mapas 07 - O TERRENO 08 - O PROJETO

Programa de necessidades Diagramas Estudo Solar Plantas Cortes Cortes Ampliados Layout Dormitórios Perspectivas externas e internas

17 - 20

28 - 29

09 - CONSIDERAÇÕES FINAIS 02 - REFERÊNCIAS 11 99 100 - 101 13 14 15 22 23 25 26 31 43

32 - 33 34 - 37 39 - 40 44 - 49 50 - 53 54 - 71 72 - 79 80 - 81 82 - 86 88 - 97

INTRODUÇÃO

Vivemos em uma sociedade onde a homofobia e intolerância religiosa, infelizmente ainda tem grande influência. De fato, com o surgimento do cristianismo, as pessoas mudaram seus modos de pensar e agir, passando a acreditar que homossexualidade é uma doença que tem cura.

Se voltarmos alguns séculos atrás, na Grécia e Roma antiga, era absolutamente normal um homem mais velho ter relação sexual com um homem mais novo. Para Sócrates, o coito anal era a melhor forma de inspiração, já que o sexo heterossexual servia apenas para procriação.

Já para os Atenienses, a relação de amizade e laços de amor entre homens mais jovens e mais velhos servia para trocar virtudes e conhecimentos filosóficos. Entre os 12 e 18 anos, com o consentimento da família, o jovem desenvolvia o papel passivo na relação e ao se tornar um homem, aos 25 anos, revertia os papeis, passando a ser ativo.

Entre os romanos, a relação de um homem mais velho com um mais novo, era vista como um ato puro, no entanto, se um homem mais velho se relacionasse com outro, era condenado a desgraça. Um homem adulto que optasse por continuar sendo passivo, era visto com desprezo e não podiam exercer cargos públicos.

Contudo, é nítido que esse tipo de preconceito foi se desenvolvendo conforme o passar dos anos, juntamente com o poder a crença, transformando algo que era considerado puro, para algo abominável.

Homossexualidade é crime?

No mundo, 70 países ainda têm algum tipo de lei contra a homossexualidade. A situação é muito diferente entre os países, desde os que protegem mais - que incluem em suas constituições a proibição de discriminar por orientação sexual - aos que estabelecem pena de morte contra quem mantém relações sexuais com pessoas do mesmo sexo.

11 01
Fonte: GGB (Grupo Gay da Bahia)

CONCEITOS

São muitos os conceitos sobre a diversidade. Nas palavras de Gomes (2012), a diversidade pode ser entendida como uma construção social formada por processos históricos, culturais, políticos, econômicos e educacionais. Fleury (2000), por seu turno, aprofunda mais sua conceituação em relação ao papel do convívio social e das diferentes formas de estudo da diversidade:

A diversidade é definida como um mix de pessoas com identidades diferentes interagindo no mesmo sistema social. Nesses sistemas, coexistem grupos de maioria e de minoria. Os grupos de maioria são os grupos cujos membros historicamente obtiveram vantagens em termos de recursos econômicos e de poder em relação aos outros. Verificamos, assim, que o tema diversidade cultural pode ser estudado sob diferentes perspectivas: no nível da sociedade, no nível organizacional e no nível do grupo ou indivíduo. (FLEURY, 2000, p. 20).

A visão que norteia os debates nos inúmeros segmentos sociais, é que são as diferenças que constituem os seres humanos. Os sujeitos têm suas identidades determinadas pelo contexto social e histórico em que sua existência é produzida. A vida em sociedade pressupõe o reconhecimento das multiculturas, advindas da acelerada tecnologização e das complexas transformações nos modos de produção social que fazem surgir novas formas de acúmulo do capital e distribuição de renda na contemporaneidade. Assim:

constitui verdade inquestionável o fato de que, a todo momento, as diferenças entre os homens fazem-se presentes, mostrando e demonstrando que existem grupos humanos dotados de especificidades naturalmente irredutíveis. As pessoas são diferentes de fato, em relação à cor da pele e dos olhos, quanto ao gênero e à sua orientação sexual, com referência às origens familiares e regionais, nos hábitos e gostos, no tocante ao estilo. Em resumo, os seres humanos são diferentes, pertencem a grupos variados, convivem e desenvolvem-se em culturas distintas. São então diferentes de direito. É o chamado direito à diferença; o direito de ser, sendo diferente (FERREIRA e GUIMARÃES, 2003, p. 37).

Segundo uma pesquisa nacional sobre a inclusão e diversidade nas escolas, os jovens sofrem conflitos desde cedo, principalmente por sua cor ou orientação sexual. A pesquisa mostra a triste realidde do jovem LGBT, principalmente pela sua exclusão. A grande maioria sofre algum tipo de agressão, sendo fisica ou verbal.

Muitas vezes ameaçado, humilhado, separado e desamparado. Mesmo assim continuei firme e forte determinado a completar os anos em que perdi por medo, insegurança, e mais medo, com a esperança de que um dia as escolas sejam uma segunda casa, onde além de se aprender sobre apenas fazer expressões matemáticas ou poemas arcaicos, mas também sobre igualdade, sobre respeito, sobre amar o próximo, porque é isso o que deveria ser ensinado nas escolas, respeito. (depoimento de um estudante gay, 16 anos, estado do Paraná) (PESQUISA NACIONAL SOBRE O AMBIENTE EDUCACIONAL DO BRASIL, 2016).

Diversidade e Inclusão
13 02

O conceito do termo acolhimento é abordado em diversos estudos no âmbito da saúde coletiva, visando práticas que proporcionem qualidade e acesso a um atendimento humanizado. Segundo o dicionário, acolhimento significa “local seguro que oferece proteção.”

No campo da saúde coletiva, o acolhimento tem sido compreendido como um dispositivo capaz de alterar o modelo tecno assistencial na assistência à saúde, pautado no desenvolvimento de práticas que contemplem o princípio da integralidade, com a garantia de acesso, a criação de vínculo e do atendimento humanizado (FRANCO, BUENO, MERHY, 2003; CAMPOS, 1997 apud CHUPEL; MIOTO, 2010, p. 38).

Numa definição mais sensível do termo, Franco, Bueno e Merhy (1999) falam do tempo dedicado ao acolhimento, assim como da energia e esperança reacesa para se acolher o indivíduo.

(...)a capacidade de se colocar no nosso tempo, mobilizar energias adormecidas, reacender a esperança e colocar em movimento segmentos importantes dos serviços de saúde, como grupos sujeitos que se propõem à construção do novo, a fazer no tempo presente aquilo que é o objetivo no futuro. (FRANCO, BUENO, MERHY; 1999, p. 351).

Solla (2005) define o acolhimento como a humanização e também a garantia de acesso a tal atendimento, de maneira qualificada, positiva e responsável.

O “acolhimento” significa a humanização do atendimento, o que pressupõe a garantia de acesso a todas as pessoas. Diz respeito, ainda, à escuta de problemas de saúde do usuário, de forma qualificada, dando-lhe sempre uma resposta positiva e responsabilizando-se pela resolução do seu problema. (SOLLA, 2005, p. 495)

Ernesto Sábato, diz em seu livro “A resistência” que a resistência é um ato heroico e passou a ser seu próprio lema.

Acredito que é preciso resistir: esse tem sido meu lema. Hoje, contudo, muitas vezes me pergunto como encarar essa palavra. Antes, quando a vida era menos dura, eu teria entendido por resistência um ato heroico, como negar-se a continuar sobre este trem que nos leva a loucura e ao infortúnio. […] A situação mudou tanto, que devemos reavaliar com muita atenção o que entendemos por resistência. Não posso lhes dar uma resposta. (Sábato, 2000, p. 87).

O termo resistência é utilizado pelo médico Sigmund Freud, como obstáculos que se impuseram ao tratamento psicanalítico.

O psicoterapeuta analítico tem, assim, uma batalha tríplice a travar – em sua própria mente, contra as forças que procuram arrastá-lo para abaixo do nível analítico; fora da análise, contra opositores que discutem a importância que ela dá às forças pulsionais sexuais e impedem-nos de fazer uso delas em sua técnica científica; e, dentro da análise, contra as pacientes, que a princípio comportam-se como opositores, mas, posteriormente, revelam a supervalorização da vida sexual que as domina e tentam torná-lo cativo de sua paixão socialmente indomada (FREUD, 1914 /1996, p. 187).

Resistência segundo Frederico Lorenz Remete a “luta e esforço coletivo”.

A forma de resistência com a qual nos identificamos, então, remete à luta e ao esforço coletivo. Imagina um fio profundo construído no decorrer dos séculos e em diversos continentes, e se pergunta pelas formas de resistência reconhecendo a sua antiguidade, mas lutando contra as especializações que muitas vezes são paralisantes. Posições e bastiões defendidos até a última gota do sangue, a vida entregue em nome dos que fogem; as relações com lutas emancipatórias são praticamente obvias. No entanto, é importante assinalar que as representações da resistência não se esgotam nos enfrentamentos armados ou na guerra. (LORENZ, 2015, p. 12).

Acolhimento 15 14
Resistência

Desprezo onde deveria haver Refujo

Muitos pais não aceitam quando descobrem que o(a) filho(a) pertence à comunidade LGBT. Por isso, muitas famílias expulsam seus filhos que, muitas vezes, não sabem para onde ir. Para os jovens que sofrem com isso, tudo se torna ainda, mais difícil, já que além de serem discriminados dentro da sociedade por pessoas conhecidas e desconhecidas, a família, que deveria oferecer apoio, também age com preconceito. Segundo uma pesquisa realizada pela Secretaria de Assistência e Desenvolvimento Social (SMADS) da Prefeitura de São Paulo, entre 5,3% e 8,9% do total da população em situação de rua na capital pertencem à comunidade LGBT. Além disso, 63% dos jovens de 18 a 25 anos, relatam sentir rejeição total ou parcial dos familiares após “saírem do armário” e apenas 59% revelam sua orientação sexual para a família.

“Até tinha uma relação mais amistosa com a minha família, mas eles não me chamam pelo nome social e nem respeitam a minha identidade. São conservadores”, Sasha dos Santos Silva.

JUSTIFICATIVA

Sasha é uma jovem trans, que sentiu a necessidade de sair de casa pois não era totalmente aceita por seus familiares. Desamparada, Sasha buscou ajuda em albergues públicos até ser encaminhada para a Casa Florescer, centro de acolhimento exclusivo para mulheres transexuais e travestis. Criado em 2016, o projeto tem como objetivo não apenas acolher pessoas trans em situação de vulnerabilidade, mas também reverter o quadro com atendimento social e psicológico.

Imagem 02 - “O sonho da minha vida é reformar a casa da minha mãe”, diz Sasha dos Santos Silva. Fonte: Acervo Pessoal
17 03

Homofobia causa morte

Segundo o GGB (Grupo Gay da Bahia), a análise de mortes LGBT começou a ser feita no ano de 1990, onde foram registradas 164 mortes. Após 20 anos (2010) o número de mortes aumentou cerca de 60% onde 260 pessoas do meio LGBT perderam suas vidas, entretanto o ano de 2017 foi marcado por 445 mortes.

O último relatório feito foi no ano de 2020, onde podemos notar um declínio de 28%, comparando com o ano de 2019, foram registradas 237 mortes. A queda dos números teve relação com o início da pandemia, onde todos os grupos de pessoas precisaram entrar em isolamento social.

Imagem 03: Tabela quantitativa de mortes violentas LGBT, Brasil entre 1963 - 2021.

Fonte:Grupo Gay da Bahia, 2022

04 : Grafico de mortes violentas de LGBT no Brasil 2000 - 2021. Fonte: Grupo Gay da Bahia, 2022

“Ainda que os dados apresentem uma redução, não há o que celebrar, lésbicas, gays, bissexuais, travestis, transexuais e intersexos continuam morrendo por resistirem pela liberdade de seus corpos, sexualidades e vida.” (MARTINELLI, 2020).

Em 2019, o Governo Federal comemorou a redução em 19% no número de homicídios no país vis-à-vis 2018, observando-se a mesma tendência no segmento LGBT+, quando morreram menos 91 pessoas em relação aos 420 casos de 2018, contra 329, em 2019, a queda de mortes chega a 21,67%, tendência confirmada igualmente pela ANTRA – Associação Nacional de Travestis e Transexuais, que apontou uma queda de 24% de mortes de travestis e transexuais face ao ano anterior

Imagem 05 : Grafico de mortes violentas de LGBT no Brasil por orientção sexual, em 2021 Fonte: Grupo Gay da Bahia, 2022

Imagem 06: Grafico de mortes violentas de LGBT no Brasil por orientção sexual, em 2021 Fonte: Grupo Gay da Bahia, 2022

19 18
Imagem

Gustavo dos Santos Lima (Dentista), 27 anos, foi encontrado sem vida no dia 14 de outubro de 2021, em Campo Grande (MS). Sua morte ocorreu dias depois de sua mãe recusar que sua filha fosse vacinada por um “viado”, ocasião em que vitima atuava como voluntário na vacinação contra Covid -19

Victtor Cauã Bianchiini Silva, 17 anos, assassinado no dia 13 de março de 2022, em Rondonópolis (MT), em um centro de umbanda pelo pai de um amigo que não aceitava que o filho participasse dessa religião. Investigações mostram que o caso foi de homofobia.

ESTUDOS DE CASO

Kauan, 13 anos, era uma criança trans, que acabou entrando no mundo prostituição para sobreviver. Ele foi encontrado morto, ensanguentado, vítima de um crime de homofobia.

Até quando sua homofobia interromperá histórias??

20 04

The Bridge Homeless Assistance Center

Arquiteto: Overland Partners

Area: 75000m²

Local: Dallas, Texas - EUA

Ano: 2010

Concluido em 2008, o Homeless Assistence Center

“The Bridge”Passou de um porta-estandarte para projetos de centros para sem-teto nos Estados Unidos,para um modelo mundial para projetos de centros para sem-teto, desde que ganhou o prêmio de “Melhor Projeto de Arquitetura” no Concurso Internacional de Rebranding dos Sem-Abrigo, organizado pela Tshwane Leadership Foundation da África do Sul. Concluído em maio de 2008 e situado em um terreno previamente desenvolvido de 3,41 acres no distrito comercial central de Dallas , The Bridge oferece um amplo espectro de cuidados, incluindo moradia, emergência e cuidados transitórios para mais de 6.000 pessoas em Dallas que vivem desabrigadas a longo prazo. Composta por cinco edifícios que criam um pátio no centro do campus, bem como envolve a comunidade circundante, The Bridge incorpora um edifício de serviços de três andares, um edifício de boas-vindas de um andar, um edifício de armazenamento, um pavilhão ao ar livre e um refeitório, que serve como um ponto focal para o pátio interior ajardinado do campus e também como um ímã de comida, proporcionando aos assistentes sociais a oportunidade de se conectar com os sem-teto.

Nem toda casa é abrigo - Cultura e Acolhida LGBTIA+

Local: República - SP Ano: 2020

Projeto elaborado para o bairro da República, onde existe uma grande conexão com o publico LGBTQIA+, o autor desenvolveu um edificio de abrigo temporário, com atendimentos psicológico e social, e fez um link para residencia de hostel e casa para artistas.

Heitor precisou fazer uma separação em suas circulações para tornar alguns espaços mais privados, sendo assim, cada area possui uma circulação vertical.

para sua estrutura, ele trouxe a estrutura metalica, onde seria possivel criar grandes vãos e utilizou a viga vierendeel em algumas partes, como auditório por exemplo.

O mesmo fez uma conexão com o minhocão, então seus acessos não eram feitos apenas pelo térreo do terreno, mas também pela parte de cima, dessa forma, ele consegue conversar por completo com o entorno. No acesso superior, ele fez uma grande praça publica.

Perspectiva - Overland Partners Perspectiva - Heitor Ferreira Praça - Overland Partners Diagrama de Circulação - Heitor Ferreira Implantação pelo Terreo - Overland Partners Planta térreo - Heitor Ferreira Autor: Heitor Ferreira
23 22

A Luta ganha poder no mundo Stonewall - 1969

A luta contra a homofobia tem uma longa jornada e começou ganhar poder em 1969, nos Estados Unidos, especificamente no Texas. Na época, era crime pessoas do mesmo sexo se relacionarem, então a milicia se reunia para agredir e prender gays, lésbicas e travestis que se reuniam em bares. Foi no dia 28 de junho, o público LGBTQIA+ declarou um “basta” contra repressão policial, no Stonewall Inn. Houve um grande confronto, com milhares de prisões, e assim, a luta ganhou poder. O Stonewall teve grande repercussão no mundo todo, e a partir dele, outros países começaram a se levantar e lutar pelos seus direitos de igualdade e liberdade.

CONTEXTUALIZAÇÃO

Rebelião de Stonewall. Foto: Domínio Público.
25 05

A Luta ganha poder no Brasil

Sexualidade NÃO é questão de escolha

Stonewall Brasileiro - 1980

No Brasil, em 13 e junho de 1980, houve um grande protesto contra a “operação limpeza”, que ficou conhecido como Stonewall Brasileiro. Com o apoio dos movimentos negro e feminista, o público LGBTQIA+ se reuniu em frente ao Theatro Municipal para brigar contra a repressão e homofobia. Na época, principalmente na região da republica (onde era considerado ponto gay), milicia se reunia para agredir e prender gays e travestis.

“A polícia passava pelas áreas de frequência gay da República e prendia por vadiagem”, explica a antropóloga Regina Facchini.

GAY: Pessoa do gênero masculino que sente atração pelo mesmo sexo/gênero

TRANSEXUAL/TRANS -

GÊNERO: Pessoa que nasce com o sexo biológico diferente do gênero que se reconhece

INTERSEXO: Pessoa cujo desenvolvimento sexual e corporal expressado em hormonios não se encaixa na norma binária

+: Abriga todas as diversas possibilidades e orientação sexual e de identidade de gênero que existam

LÉSBICA: Pessoa do gênero feminino que sente atração pelo mesmo sexo/gênero

Bissexual: Pessoa que sente atração por ambos sexos/gêneros

QUEER: Pessoa jovem cuja orientação sexual não é exclusivamente heterossexual.

ASSEXUAL: Pessoa que não sente nenhuma atração pelo sexo/gênero igual ou oposto

“Se eu tatuasse a maneira como eu gostaria de ser chamada na testa, seria o suficiente para que você me acolhesse do jeito que eu sou? Respeita nossa identidade, respeita nossa existência!” (Linn da Quebrada)

27 26
Fonte: Revista Gama

1969 - Stonewll

Em 28 de junho de 1969, ao inicio de um batida policial, as pessoas se reuniram e debateram esse movimento policial, ganhando visibilidade.

1970 - 1º embrião da parada gay

Um ano após Stonewall, um grupo de LBGT se reuniram e saíram pelas ruas dos estados unidos comemorando a liberdade.

1970 - 1º Gay na politica

Harvey Milk, primeiro homossexual assumido eleito para um cargo público na Califórnia, Estados Unidos

1980 - “Stonewall brasileiro” 1985 - Despatologização da homossexualidade

“Stonewall brasileiro”: protesto contra a “Operação Limpeza” promovida pelo delegado José Wilson Richetti no centro de São Paulo, 1em 3 de junho de 1980.

Em 1981 o Grupo gay da Bahia travou uma luta para provar que homossexualidade não era uma doença e em 1985 a luta teve fim com grande êxito.

1987 - Orientação sexual na legislação

O grupo Triangulo rosa (RJ) lutou para mudar a palavra “Opção sexual” por “orientação sexual”

2018 - Mudança de nome e sexo no registro

Em março de 2018 o supremo tribunal federal autorizou a mudança de nome e sexo no registro da pessoa.

2011 - União Civil estável

Em 2011, o supremo tribunal federal decidiu aprovar a união estável entre pessoas do mesmo sexo e em 2013 o casamento civil foi liberado.

1997 - Primeira parada Gay em São Paulo

Em 1996, na Praça Franklin Roosevelt, houve o primeiro embrião a parada gay onde cerca de duas mil pessoas se reuniram. Em 1997, ela foi oficializada na avenida Paulista.

Em 2019, o supremo tribunal federal decidiu permitir que a homofobia fosse criminalizada como racismo. .

2020 - Doação de sangue

O supremo tribunal federal autorizou a doação de sangue feita por pessoas que pertencem ao grupo LGBTQIA+

Ministro do supremo tribunal federaldetermina adoção de medidas para garantir que transexuais e travestis tenho acesso a todos os tipos de tratamento disponiveis no SUS

2019 - Homofobia é crime 2021 - Direito a saude
LGBTQIA+ 29 28
Conquistas

República e sua Conexão com o publico LGBTQIA+

O bairro da república, começou criar uma conexão muito grande com o púbico LGBTQIA+ no começo do século 20. Entre 1950 e 1960, a região acabou se tornando um lugar de convivência dessa população e a praça da república se transformou em rota para os footings e tours (nome para os percursos a pé, feito por gays para flertar e conhecer novas pessoas)

Conforme os passar do tempo, foram surgindo diversos bares e baladas que atendesse toda essa comunidade, tornando o bairro um local de refúgio LGBT. Na época a milicia invadia as boates e baladas para agredir e prender as pessoas, por sua orientação sexual. Em 2000, a praça da república ficou marcada pois o adestrador de cães Edson Neris da Silva, foi espancado e morto, quando passeava de mãos dadas com seu namorado.

O LOCAL

Vista do chamado centro novo em 1970: Edificio Itália, Copan, Eiffel, Hotel Hilton Foto: Edison Aquino/Museu da cidade de São Paulo.
31 06

Por volta de metade do século

XIX, a área era destinada a treinamentos militares e conhecida como praça das milícias.

Foi estabelecido o Museu da Diversidade Sexual na estação República do Metrô.

A praça ganhou seu nome definitivo (Praça da Republica) e passou a ser um ponto importante na geografia da nascente metrópole, principalmente depois da inauguração do Viaduto do Chá (1893)

No auge da grande imigração e da chegada dos dólares do café, a praça foi totalmente reformada introduzindo as pontes e lagos. A cidade ganhou, de forma definitiva, um dos seus principais pontos de referencia.

1817 1894 1920

Revolução Constitucionalista contra

Getúlio Vargas, foram mortos os estudantes “M.M.D.C” – Mário Martins de Almeida, Euclides Miragaia, Dráusio Marcondes de Souza e Antônio Camargo de Andrade.

A praça mudou de nome para “praça do curro” foi implantada uma grande área de lazer, com anfiteatro de madeira para as populares touradas e cavalhadas.

Foi construída a Escola Normal Caetano de Campos, de arquitetura típica das escolas da Primeira República.

A praça começa a se estabelecer como polo de entretenimento da cidade, com diversos cinemas como o antigo Cine República (um dos maiores de São Paulo em número de assentos) – e locais de shows.

1950/1960

A Praça da República vira rota dos footings e tours, que consistiam em percursos realizados a pé por gays para conhecer pessoas e flertar.

O local recebeu a estação da linha 4-Amarela, a primeira linha privada.

Foi inaugurada a estação Republica da linha vermelha.

Por conta da desigualdade de classes, o centro passa a ser considerado lugar de ocupação das “bichas pobres” e das “bichas velhas”, enquanto que as regiões mais próximas à Avenida Paulista, Jardins e pontualmente o Ibirapuera passam a ser considerados lugares onde estavam as “finas”

A praça tornou-se referência hippie do Brasil. Ali se reuniam os artistas de vanguarda, expondo suas obras e ideias.

2000 1970

1889 1905 1932 1980 2012 1982 2011

A republica teve sua força como lugar de memória LGBT+ potencializada, após a morte de Edson Neris, que foi espancado por um grupo de skinheads porque estava andando de mão dadas com o namorado.

Inicio de uma passeata feita por cerca de mil gays, lésbicas, travestis e prostitutas, que gritavam “Abaixo a repressão mais amor e mais tesão” contra a violência dos policiais.

A praça teve outra interferência importante na área de transportes. “Nascia” a linha 3-Vermelha do Metrô, anteriormente chamada de linha Leste-Oeste.

do tempo República 33 32
Linha

Mapa de territorialidade LGBTQIA+

O mapa ao lado, representa a convivência e relevancia LGBT que existe na area estudada (República). Conforme o passar dos anos, na região, começaram a surgir diversos bares, boates, saunas e cinemas voltados para este público, tornando ali o ponto de encontro.

Fonte: Mapa desenvolvido por Barbara Catta

Mapa de Cultura

O mapa ao lado, representa a cultura e diversidade que existe no bairro da República. Podemos notar que a área é rica em programas cultados a comunidade, sendo eles: bibliotecas, espaços culturais, museus, teatros etc.

Fonte: Mapa desenvolvido por Barbara Catta

35 34

Mapa Viário

O mapa ao lado, representa o zoneamento do recorte escolhido. A predominancia é Zona de centralidade (ZC), entretanto, existem alguns lotes que estao em Zeis 3, Zeu e Zm. A area encontra-se em operação Urbana Centro, que foi criada com intuito de promover melhoria e revalorização da area Central.

“A Operação Urbana Centro (OUC) foi criada com o objetivo de promover a melhoria e a revalorização da área central, para atrair investimentos imobiliários, turísticos e culturais e reverter o processo de deterioração do centro. Essa Operação Urbana estabeleceu incentivos, mediante contrapartida financeira, para produção de novas edificações, regularização de imóveis, reconstrução e reforma das existentes para sua adequação a novos usos e criou condições especiais para a transferência de potencial construtivo de imóveis de interesse histórico.”(Gestão Urbana)

O mapa ao lado, representa as vias da região, sendo elas:

Arterial - Avenidas que ligam das regiões da cidade;

Coletoras - Avenidas que redistribuem o transito;

Locais -Avenidas destinadas para o tráfego local;

Mapa de Zoneamento
37 36
Fonte: Dados retirados do Geosampa Fonte: Mapa desenvolvido por Barbara Catta

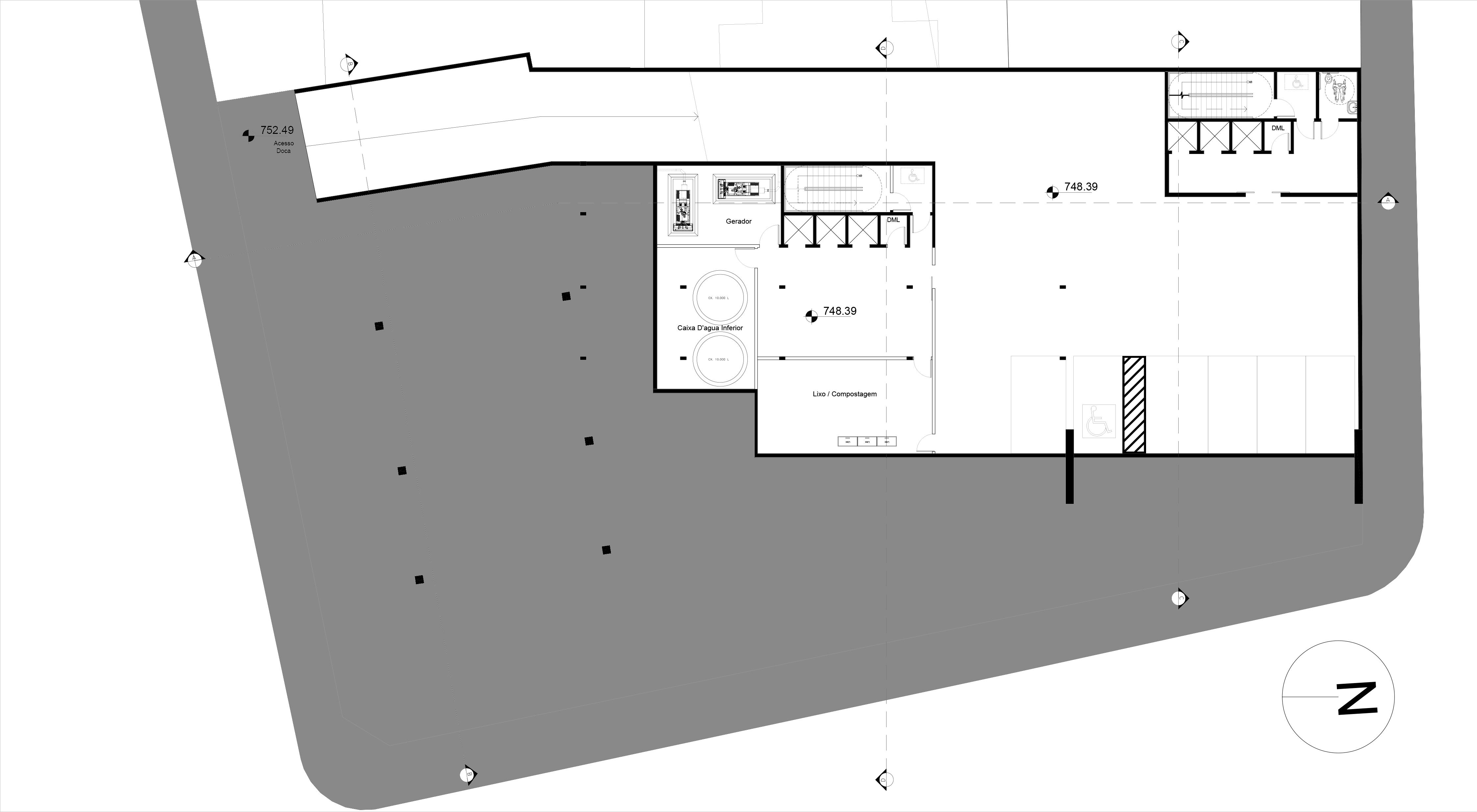
Terreno

O terreno escolhido, atualmente é um estacionamento com 1.670m² Localizando no cruzamento entre as ruas Major Sertório, Bento Ramos e Epitácio Pessoa. Próximo ao Elevado Pres. João Gurgel, Av, Ipiranga, Edifício Copan e a 300 metros da estação República.O terreno encontra-se em uma zona de centralidade, dentro da operação urbana Centro (OUC).

O TERRENO

A Operação Urbana Centro (OUC) foi criada com o objetivo de promover a melhoria e a revalorização da área central, para atrair investimentos imobiliários, turísticos e culturais e reverter o processo de deterioração do centro. Abrange as regiões dos chamados Centro Velho e Centro Novo, bem como parte de bairros históricos como Glicério, Brás, Bexiga, Vila Buarque e Santa Ifigênia.

39 07

O PROJETO

PROGRAMA DE NECESSIDADES

O programa proposto é dividido em três setores: Cultura, onde havera oficinas profissionalizantes para que a população consiga desenvolver atividades para trabalhar;

Acolhimento, com capacidade de abrigar 96 pessoas, por um periodo de 6 a 1 ano, onde terão atendimento psicológico, social e médico; e Auditório, desenvolvido para apresentações de espetáculos LGBTs, com intuito de gerar renda e oportunidades no mercado.

TOTAL DE AREA CONSTRUIDA: 3.423m²

C U L T U R A L A C O L H I M E N T O A U D I T Ó R I O
43 08
▶ ▶ ▶
45 44
Diagrama de partido
Laje Vigas e pilares Circulação Vertical 47 46
Diagrama Estrutural

Diagrama de Acessos

Fluxo Principal Fluxo Secundário

Circulação Zenital

49 48

Estudo feito pelo autor, através do Sunpath. Pela imagem conseguimos visualizar como o sol se comporta as 6h30 da manhã, Onde a toda a fachada leste fica exposta aos raios solares

Estudo feito pelo autor, através do Sunpath. Pela imagem conseguimos visualizar como o sol se comporta as 10h05 da manhã, onde os raios solares começam a cobrir a fachada oeste.

Estudo Solar
51 50

Estudo feito pelo autor, através do Sunpath. Pela imagem conseguimos visualizar como o sol se comporta as 14h05 da tarde, Onde a toda a fachada oeste fica exposta aos raios solares. Sendo assim, desenvolvi brises para proteção das janelas.

Estudo feito pelo autor, através do Sunpath. Pela imagem conseguimos visualizar como o sol se comporta as 17h05 da tarde, onde o sol quase se pondo. A fachada norte esta exposta a maior parte dia, por isso foram desenvoldidas placas metalicas para proteção solar.

53 52
ESC: 1/200 55 54
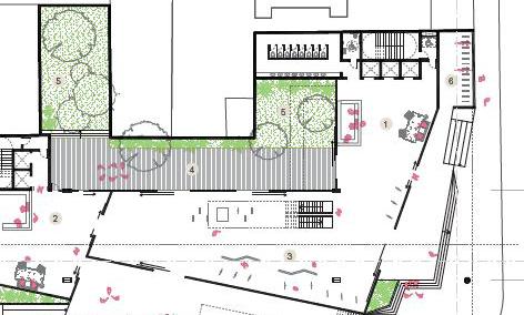
Implantação pelo térreo
Planta Subsolo ESC: 1/200 57 56

S 756.04

FabLab

Atendimento psicológico

Depósito

Atendimento psicológico

756.04

Atendimento Social Atendimento Social Atendimento Médico Atendimento Médico Copa Funcionários ADM

Cabine de Projeção

757.49 755.57 756.37

Palco

Area de Espera Camarim

S CAFÉ FILTRO
DML
S DML DML
A
C B
D Planta
ESC: 1/200 59 58
A
C
B D
1º Pavimento

S 763.14

DML Area de Exposição

Depósito

Rouparia

Depósito

Dormitório Individual

763.14

Dormitório Acessivel Dormitório Duplo Dormitório Duplo Dormitório Duplo Dormitório Quadruplo

S Lavanderia Cozinha
C B
D Planta tipo 2º e 3º Pavimento ESC: 1/200 61 60
A A C
B D

Depósito

Lavanderia Cozinha
Dormitório Individual Dormitório Acessivel Dormitório Duplo Dormitório Duplo Dormitório Duplo Dormitório
Quadruplo
DML Area de
S
A A C C B B D D Planta tipo 4º e 5º Pavimento ESC: 1/200 63 62
Rouparia
Exposição
Depósito
Planta 6º Pavimento ESC: 1/200 DML S Lavanderia Cozinha Depósito
Rouparia DML S
A A C C B B D D 773.79 773.79 65 64
Dormitório Individual Dormitório Duplo Dormitório Duplo Dormitório Casal Dormitório Quadruplo Dormitório Casal
Oficina Ateliê Livre
A C C B B
D
Planta 7º Pavimento ESC: 1/200 67 66
DML Area de Convivência Area de Convivência 777.34 777.34 759.59 Casa de Maquinas Caixa D'agua Superior A
D
778.64
DML S Lavanderia Cozinha Depósito Dormitório Individual Dormitório Duplo Dormitório Duplo Dormitório Casal Dormitório Quadruplo Dormitório Casal Rouparia A A C C B B D D Planta tipo 8º a 10º Pavimento ESC: 1/200 69 68

Caixa D'agua Superior A

C B B

795.54 Planta Cobertura

D

A C

D 791.34 ESC: 1/200 71 70

Casa de Maquinas
73 72
75 74
77 76
79 78

Corte Ampliado

Fachada Acolhimento

ESC: 1/25

Corte Ampliado Fachada Cultural

ESC: 1/25

81 80
Layout Dormitórios Dormitório Acessivel 14m² Dormitório Individual 12m² 83 82
Dormitório Duplo 14m² Dormitório Quadruplo 20m² 85 84

Dormitório Casal

16m² 87 86
PERSPECTIVA 88
PERSPECTIVA 91
PERSPECTIVA 92
PERSPECTIVA AREA DE CONVIVÊNCIA 95
PERSPECTIVA RECEPÇÃO ACOLHIMENTO 97

FINAIS

Após elaborar toda pesquisa sobre o tema desenvolvido, é possível notar que mesmo com tantas conquistas, o publico LGBT ainda sim sofre grande preconceito em uma sociedade extremamente homofóbica e machista. A intolerância, ignorância e fanatismo pela religião acabam causando traumas que jamais poderão ser reparados.

Desde pequeno, somos alvos de tamanha crueldade e mesmo sabendo que sexualidade NÃO é questão de escolha, as pessoas tentam nos moldar para que sejamos “normais”, afinal, homossexualismo em nossa sociedade é uma abominação.

Também podemos reparar que a falta de oportunidade no mercado de trabalho para nossa comunidade LGBT é absurda. Isso acaba levando as pessoas a procurarem modos de ganhar dinheiro fácil para que possam sobreviver, por isso no topo dos índices de prostituição em nosso país, estão travestis e gays. Meu intuito com a conclusão do trabalho, e mostrar para as pessoas que somos normais e que temos qualidades, valores e voz, para lutar e conquistar tudo que temos por direito.

BAZANI, Adamo. História: praça da república integrada com os transportes é retrato do desenvolvimento da cidade de São Paulo. Diário do Transporte, 2016. Disponível em: < https://diariodotransporte.com.br/2016/11/13/historia-praca-da-republica-integrada-com-os-transportes-e-retrato-do-desenvolvimento-da-cidade-de-sao-paulo/>. Acesso em 01 set. 2022

BELEM, Rafael, MUNEKATA, Thalita, RODRIGUES, Leon e BALLARINI, Heloisa. Fora de casa: a vida dos lgbtis expulsos pela família e acolhidos nas ruas. Casa Vogue, 2020. Disponível em: < https://casavogue.globo.com/Arquitetura/Cidade/noticia/2020/06/fora-de-casa-vida-dos-lgbtis-expulsos-pela-familia-e-acolhidos-nas-ruas.html>. Acesso em 03 dez. 2022

CASTEADO, Antia e TOMBESI, Cecilia. Mapa mostra como a homossexualidade é vista pelo mundo. BBC News Brasil, 2019. Disponível em: < https://www.bbc.com/portuguese/internacional-48801567>. Acesso em 01 dez. 2022

CONHEÇA A HISTÓRIA DO CENTRO NOVO DE SÃO PAULO, A REGIÃO DA REPÚBLICA. A vida no centro, 2020. Disponível em:< https://avidanocentro.com.br/cidades/centro-novo-de-sao-paulo-republica/>. Acesso em 05 set 2022

CONHEÇA O “STONEWALL” BRASILEIRO, O LEVANTE LIDERADO POR LÉSBICAS E APOIADO POR FEMINISTAS. Pt.org 2020. Disponível em https://pt.org.br/conheca-o-stonewall-brasileiro-o-levante-liderado-por-lesbicas-e-apoiado-por-feministas/>. Acesso em 27 nov. 2022

CUNHA, Lucas. Praça da república: um breve histórico sobre a praça da república. Outros urbanismos. Disponível em: < http://outrosurbanismos.fau.usp.br/lugares-memoria-lgbt-sao-paulo/praca-da-republica/>. Acesso em 10 out. 2022

ESPECIAL ZONEAMENTO: ENTENDA AS ZONAS DE CENTRALIDADE. Câmara Municipal de São Paulo. Disponível em:< https://www.saopaulo.sp.leg.br/blog/especial-zoneamento-entenda-as-zonas-de-centralidade/ >. Acesso em 04 dez. 2022.

FERREIRA, Heitor Antonio. Nem toda casa é abrigo: Cultura e acolhida lgbtia+. 83 p. Trabalho Final de Graduação - Centro Universitário Belas Artes, Arquitetura e Urbanismo, São Paulo 2020.

GESTÃO URBANA. Operação urbana centro. Gestão urbana prefeitura de sp. Disponível em: < https://gestaourbana.prefeitura.sp.gov.br/estruturacao-territorial/operacoes-urbanas/operacao-urbana-centro/>. Acesso em 28 set. 2022

GUEDES, Maria julia. Rebelião de Stonewall: qual a sua importância para o movimento lgbt+ nos dias atuais? Politize, 2021. Disponível em: < https://www.politize.com.br/ rebeliao-de-stonewall/>. Acesso em 04 dez. 2022

LACERDA, Larissa Cotrim. Centro de acolhimento e reinserção social para mulheres e lgbtqia+. 92 p. Trabalho Final de Graduação - Universidade de Mogi das cruzes, Arquitetura e Urbanismo, Mogi das cruzes 2019.

LEGISLAÇÃO MUNICIPAL. Decreto nº 59.047 de 29 de outubro de 2019. Nova regulação ao conselho municipal de políticas lbgt previsto nos artigos 239, inciso III, alínea “f”, e 259 da Lei nº 15.764, de 27 de maio de 2013.Disponível em:< http://legislacao.prefeitura.sp.gov.br/leis/decreto-59047-de-29-de-outubro-de-2019#:~:text=Confere%20 nova%20regulamenta%C3%A7%C3%A3o%20ao%20Conselho,27%20de%20maio%20de%202013.> . Acesso em 02 dez. 2022.

MODENA, João. Fora do armário: a importância da diversidade lgbti+ no setor público. República.org. Disponível em< https://republica.org/fora-do-armario-a-importancia-da-diversidade-lgbti-no-setor-publico/>. Acesso em 01 dez. 2022

PARTNERS, Overland. The bridge homeless assistance center. Archdaily. Disponível em: < https://www.archdaily.com/115040/the-bridge-homeless-assistance-center-overland-partners>. Acesso em 05 set. 2022

PONCIANO, Levino. República. SP Bairros Disponível em: < https://www.spbairros.com.br/republica/>. Acesso em 11 nov. 2022

REJEITADOS PELA FAMILIA E EXPULSOS DE CASA: ESSA É A REALIDADE DE MUITOS JOVENS QUE PERTENCEM A COMUNIDADE LGBT. Terra, 2019. Disponível em https:// www.terra.com.br/noticias/dino/rejeitados-pela-familia-e-expulsos-de-casa-essa-e-a-realidade-de-muitos-jovens-que-pertencem-a-comunidade-lgbt,b8739fb9a31ba6f8bfaefa5a1322ebe9f9wkzrwt.html>. Acesso em 03 dez. 2022

RELATÓRIOS ANIAIS DE MORTE LGBTI. Grupo Gay da Bahia. Disponível em:< https://grupogaydabahia.com/relatorios-anuais-de-morte-de-lgbti/>. Acesso em 28 ago 2022

RODRIGUES, Humberto e LIMA, Claudia de Castro. Homossexualidade na antiguidade: o que mudou? Guia do estudante 2022. Disponível em: < https://guiadoestudante. abril.com.br/estudo/vale-tudo-homossexualidade-na-antiguidade/>. Acesso em 02 dez. 2022

“Ninguem vai poder nos dizer como amar.”

- Liniker & Johnny Hooker

SÃO PAULO. Lei nº 12.349 de 6 de junho de 1997. Operação Urbana Centro. São Paulo, 1997. Disponível em: , https://leismunicipais.com.br/a/sp/s/sao-paulo/lei-ordinaria/1997/1235/12349/lei-ordinaria-n-12349-1997-estabelece-programa-de-melhorias-para-a-area-central-da-cidade-cria-incentivos-e-formas-para-sua-implantacao-e-da-outras-providencias>. Acesso em 01 ago. 2022.

SANTOS, Dandara. Centro de acolhimento temporário lgbtqia+. 119 p. Trabalho Final de Graduação - Universidade de Mogi das cruzes, Arquitetura e Urbanismo, Mogi das cruzes 2021.

SILVA, Alcinez. Acolhe habita: Acolhimento lgbtqia+ e Habitação de Interesse Social. 77 p. Trabalho Final de Graduação Centro Universitário Belas Artes de São Paulo, Arquitetura e Urbanismo, São Paulo 2022.

SOUSA, Rainer Gonçalves. História da homossexualidade. História do mundo. Disponível em< https://www.historiadomundo.com.br/idade-contemporanea/historiahomossexualidade.htm>. Acesso em 27 nov. 2022

VIEIRA, Willian. Linha do tempo direitos lgbt no brasil e no mundo. Gama Revista 2020. Disponível em: <https://gamarevista.uol.com.br/semana/orgulho-de-que/linha-do-tempo-direitos-lgbt-no-brasil-e-no-mundo/>. Acesso em 29 ago. 2022

CONSIDERAÇÕES
99 09
REFERÊNCIAS

Turn static files into dynamic content formats.

Create a flipbook
Issuu converts static files into: digital portfolios, online yearbooks, online catalogs, digital photo albums and more. Sign up and create your flipbook.