ARQFOLIO Fabian Avila

Page 1

Fabian Andres Avila Avila

I am passionate about architecture because it combines art and culture, allowing me to shape the environment in inspiring ways. I thrive on solving unique challenges with creative solutions that fulfill both aesthetic and practical goals.

Architecture also enables me to address global issues like climate change and urbanization through sustainable practices. I see architects as guardians of the future, creating spaces that promote well-being and community. In essence, I believe architecture is a transformative art that enriches lives and contributes positively to the world's culture.

about me Contact (+57) 3134919219 fabian08avila10@gmail.com Bogota,
#152-35 lenguas • Español - Nativo • Ingles - B2 • Italiano - A2
Colombia Cra 13
EDUCATION LANGUAGES • Pontifical Javierian University ARCHITECTURE PROGRAM Current • English Country High School HIGH SCHOOL 2018 • Language exchange MALTA EF EDUCATION FIRST MALTA 2022

Architecture Workshops

• ZULOARK ARCHITECTS

ARCHITECT LUIS GALÁN

Madrid, Spain 2023

• CABECERA ARCHITECTS

ARCHITECT SANTIAGO CIRUGEDA

Barcelona, Spain 2023

• BIANALE DI VENEZIA

ARCHITECT ALESSANDRO TASSARI

Venice, Italy 2023

SOFTWARE SKILLS

• SketchUp

• AutoCad

• Revit

• Twinmotion

• D5

• Ilustrator

• Photoshop

• InDesing

• Lightroom

Awards

• award mario hernandez

FINALIST

Bogotá, Colombia 2024

I collaborated in an urban furniture design and construction workshop with Zuloark architects. I prioritized the harmonious integration of the furniture with the natural environment. I used recycled wood as the main material to promote sustainability. I fostered community strengthening and pride in the improved urban environment.

I collaborated in a workshop with architect Santiago Cirugeda to improve the MACBA plaza. I identified the need for seating, developed flexible furniture solutions to promote green spaces, and delivered furniture adapted to various trees to enhance user experience.

I participated in a workshop in Venice that explored the Architecture Biennale. I organized exhibitions focused on the urban elements of Venice and the Biennale. I collaborated with architect Alessandro, who led the workshop and provided valuable insights into Venetian architecture and culture.

experiencia laboral

• Inversiones 2A 2020

Experience in real estate consulting and brokerage in Colombia. Managed property transactions and social media marketing. Skilled in property valuation, market analysis, and negotiation.

• Interior Design

Experience working in collaboration with interior design, particularly in designing a hotel and the interiors of luxury homes. 2021 - 2023

• MESA ARCHITECTS

Eight months of experience as a site supervisor and draftsman at Mesa Arquitectos, a firm specializing in the construction and management of large and small-scale projects. 2023 - 2024

AFFORDABLE HOUSING

Intervention in the Caracolí Neighborhood

Historically, informal settlements have emerged for various reasons, including the migration of people from rural areas to urban centers due to the country's violence situation that began in the 1950s and the pursuit of better opportunities for a dignified life.

The territory now recognized as Ciudad Bolívar was originally composed of a series of estates, which started to be subdivided by unscrupulous developers or land speculators who facilitated the acquisition of these plots, which still lacked public services and legal titles. In the book "Partir de los que somos," there are testimonies of the collective processes that the residents of these neighborhoods have undertaken to achieve the gradual construction and development of the territory, thus creating a dignified place to live.

All the circumstances that have shaped these areas have fostered strong community bonds and a profound connection to the territory, as evidenced by the inhabitants who ardently defend their space. Currently, Santa Viviana and Caracolí are located within UPZ 69, Ismael Perdomo, and are adjacent to the neighborhoods of La Isla, Robles, and Ciudadela Sucre in the municipality of Soacha. They have established robust commercial, labor, and social relationships, partially erasing the administrative boundaries between the two municipalities. Moreover, these neighborhoods have plans in place for improving public spaces, which are expected to enhance the living conditions in these areas and further solidify the collective practices of the residents.

MASTER PLAN

Urban Intervention

1-Rincón del Lago Wetland Intervention.

2-Neighborhood Facilities.

3-Park of Life.

4-Zanjón de la Muralla Promenade.

5-Metropolitain Connection Cable Car.

6-Zanjón del Ahorcado Promenade.

7-Habitat Intervention - Restructuring.

8-Habitat Intervention - Improvement and Densification.

9-Habitat Intervention - Adaptation.

10-Altos de la Estancia Park.

11-Commercial Axes.

12-Park Network and Caracolí Promenade.

13-Recycling Warehouses.

14-Market Square and Craftsmanship.

Memory pathw

Architectural intervention

The architectural intervention in Caracolí Neighborhood aims to design a low-income housing building, with a special focus on the established patterns within these popular communities. This design is carefully adapted to the social groups rooted in the area, including young families, large families, and particularly the predominant group of elderly individuals engaged in recycling and composting within the city.

The criteria for architectural intervention align with the concepts of protection, memory, sustainability, and fluidity. These principles are reflected in various aspects of the design: Firstly, protection is paramount. The building is conceived as a safe and welcoming refuge for its residents, providing security and privacy in its design. Secondly, the collective memory and cultural identity of the neighborhood are preserved through architectural elements that recall its history and heritage, thus strengthening its identity. Environmental sustainability is another essential component. The design incorporates environmentally friendly practices, such as energy-efficient systems, rainwater harvesting, and green areas that promote biodiversity and air quality. Lastly, fluidity in circulation both inside and around the building is prioritized. Features such as ramps, elevators, and spacious hallways are considered to allow elderly residents to move comfortably. Additionally, social and communal interaction is promoted through well-designed common spaces.

This housing building will not only provide a dignified home for its residents but will also serve as a symbol of revitalization and improvement for the community. With a focus on these core concepts, the architectural intervention aims to create a habitable and sustainable environment that honors the neighborhood's history and identity while providing comfort and security to the social groups residing within it.

floor plan Level 0
Structural Axonometry Facades
Sections

URBAN FACILITIES

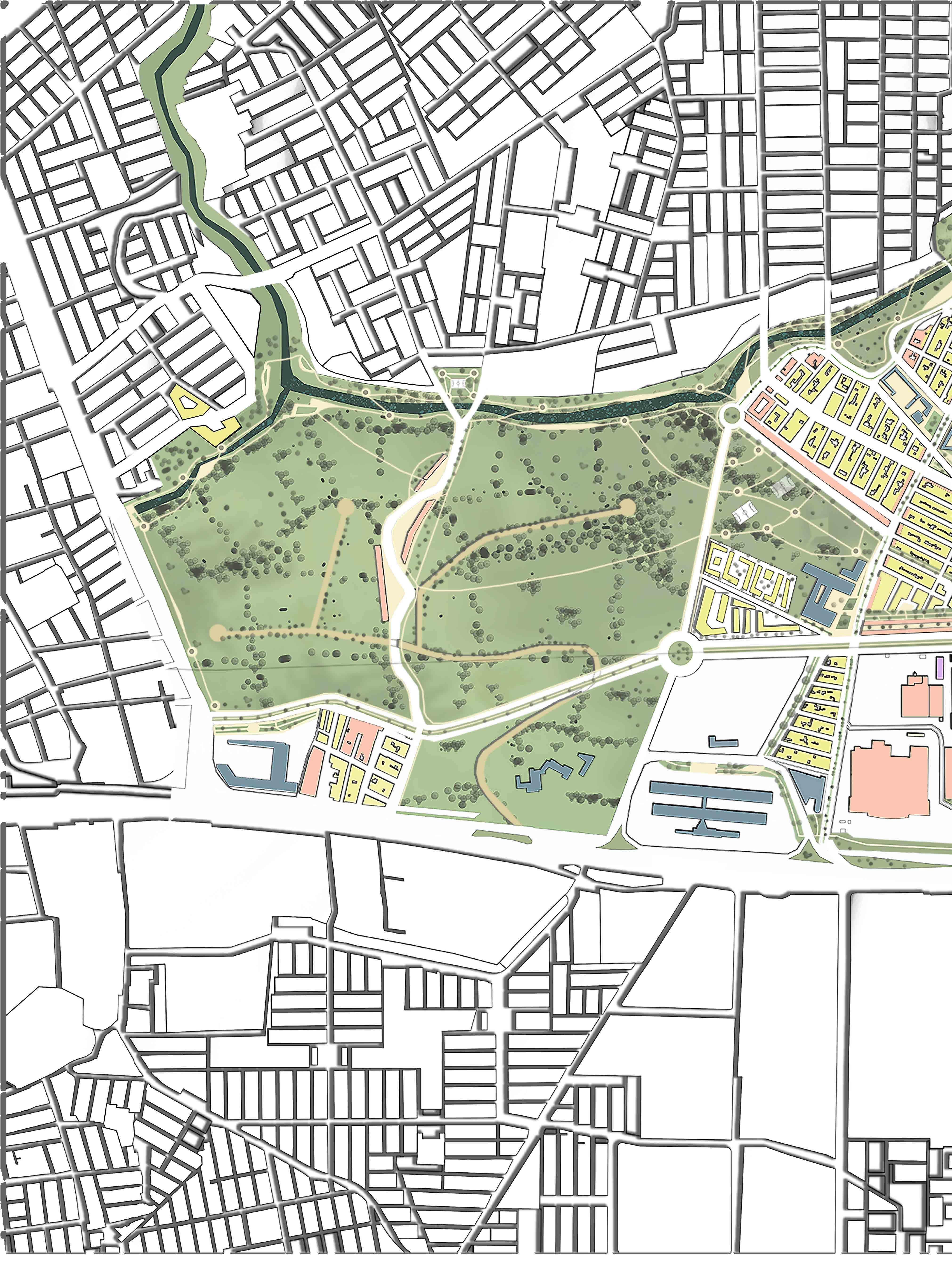
context

Bosa, located in the southwest of Bogotá, Colombia, is a prominent district known for its economic diversity, extensive industrial and commercial development, and a wide range of services and housing options. Its historical roots date back to pre-Columbian times, when indigenous communities, particularly the Muiscas, inhabited the high-altitude plains of the Bogotá savannah, leaving cultural legacies, including ancient settlements and innovative terrace farming systems. The 16th century brought Spanish colonization, which marked the beginning of territorial reorganization and the introduction of Spanish culture. During the colonial era, Bosa's economy focused on agriculture and livestock. In the 20th century, as Bogotápo's urban influence grew due to the violence that the country experienced in 1940, Bosa experienced rapid urbanization and development, becoming a suburban area and crucial expansion with the establishment of road networks and public services. vital.

Today, Bosa remains a dynamic district within Bogotá, characterized by a combination of residential neighborhoods, shopping centers and industrial zones. Its history, ranging from indigenous influences to Spanish colonialism and urbanization, reflects its resilience and adaptability. Bosa continues to play a vital role in Bogotá's cultural and economic landscape, with a rich history and a diverse and growing population.

Bosa

Urban Intervention MASTER PLAN

The locality of Bosa in Apogeo, in pursuit of sustainable development and a significant improvement in the quality of life for its residents, has conceived a Master Plan for Urban and Environmental Improvement that encompasses a wide range of transformative initiatives.

One of the primary focuses of this plan is the optimization of the road infrastructure, with the expansion of main roads to alleviate congestion and promote more efficient mobility within the locality.

To address the needs of the community, the plan proposes the creation of 12 key urban facilities. These include educational centers for community development and training, memory centers for the preservation of local history and culture, and healthcare centers that will offer high-quality medical services. It also establishes fairground venues to promote local culture and commerce, sports facilities to foster physical well-being, and spaces dedicated to public safety and food security.

Nodes

Roadways
Bike lanes/cycle paths

Memory Center of the Bosa Locality

Architectural intervention

The architectural and urban intervention aims to capture all the different eras that the Bosa Locality has experienced. An essential aspect to consider is that Bosa has its indigenous council, and this Memory Center is dedicated to them, providing a space for their activities, ceremonies, and administrative functions. Additionally, it is designed to serve the entire community of the locality, offering flexible areas for hosting markets and fostering a sense of belonging to the neighborhood. The space will also be made available to local artists, providing them with exhibition rooms, both permanent and temporary.

Moreover, the center will feature interactive rooms for children and a spacious auditorium with a capacity for 100 people, complemented by a large interior garden. Concerning the urban aspect, the building is situated within the El Apogeo Cemetery, serving as a place of remembrance for those who have passed away. The design incorporates a network of pathways and a plaza with a snail-shaped layout, symbolizing the gathering of people from different ethnic backgrounds, creating a central focal point.

The main plaza includes a prominent stone fountain with Muisca glyphs carved into it, with water and stone serving as mechanisms for Muisca memory preservation. Furthermore, the plaza will feature urban gardens shaped like water droplets, symbolizing the rebirth and perseverance of the people who arrived in this area during the 1940s. The central pathway will incorporate screens projecting images that narrate the history of the locality from its beginnings to the present day.

Sun path Winds Vegetation
Site Plan

floor plan Level 0

floor Level
3

HERITAGE ARCHITECTURE

context

FIRST MOMENT

COLOGNECENTURY XVII

Farmhouses in front of the Magdalena river where the block was in the Hamlet of the cacique Mompox. In the Cologne the block continues to present a high level of importance, it is located on alley 18, the axis of the city, and in front of the tamarind square and the royal square of conception, the founding square of Mompox.

Today we find a total consolidation of the block, where they appropriate the center of it and completely close the lots inside it. The street in the back is almost completely contemporary Mompox, or Santa Cruz de Mompox, is a historic Colombian town renowned for its colonial architecture and impressive cultural heritage. Its cobbled streets, charming squares, and beautiful pastel-colored colonial houses make Mompox a unique architectural gem. Additionally, the town is famous for its creative use of wrought-iron grilles adorning windows and balconies, giving it a romantic and nostalgic ambiance. Mompox has been designated a UNESCO World Heritage Site due to its rich architectural heritage and historical significance as a former trading hub in the region. Its architecture evokes a sense of time travel, transporting visitors to Colombia's colonial era. Sun path Winds Vegetation

REPUBLICCENTURY XIX

In the Republic and Transition we show thegrowth of the city of the River towards the cattle street, and the consolidation of the blocks on the back street, traditionally used as a service street for the Real del

CONTEMPORARY

Mompox

BLock Hostal Doña Manuela

COLOGNECENTURY XVII REPUBLICCENTURY XIX
CONTEMPORARY
Level 1 Level 2 Level 3 Level 4

Urban Intervention

The central courtyard was reconfigured by amalgamating existing courtyards and removing deteriorated structures. It comprises three sections: the first serves a public function, featuring controlled access from commercial spaces, new structures, a restaurant, and a children's play area. These elements adhere to a cohesive design language, referencing the existing volumes. This results in an elongated layout with three distinct sections.

The proposed urban layout extends from the elongated properties and walls in the vicinity. Horizontal elements from Alley 18 and vertical elements from the streets define the space. The layout incorporates green areas, water features, pathways, and plazas. Access from the public area to the residential zone is facilitated via an elevated walkway adorned with vegetation and water features, serving as a natural barrier instead of relying on walls.

In the second part of the central courtyard, a similar strategy is employed, allowing direct access for the structures in this section. Finally, the third part offers a more private environment, providing residents with a secluded space shielded from public view. This area is designed to ensure thermal comfort and offers the option of direct access from private residences.

DESIGNED BRICKS

In designing the brickwork, we drew inspiration from the iconic Mompox houses. Their distinctive architectural features served as a reference point for crafting the openings within the walls.

SUSTAINABILIT Y

We propose the incorporation of new commercial volumes, drawing inspiration from the architectural composition of existing, dilapidated houses. These new structures are designed with roofs that serve a dual purpose, functioning as both urban orchards and rainwater collection areas for the entire block. Additionally, these volumes serve as access points to the central area of the block, enhancing its functionality and aesthetic appeal.

TAMARIND WILLOW HELICONIA REED FLOOR TEXTURES RED
SOFT FLOOR
CONCRETE WATER MIRRORS BURSERA
VEGE TATION PROPOSAL
COBBLESTONE
PERMEABLE COBBLESTONE

HOUSING PROYECT

DOÑA MANUELA HOSTEL

Within the Doña Manuela Hostel project, to offer a unique blend of luxury accommodation while respectfully preserving the historical of the original house. We understand ce of this architectural gem and have designed our interventions to honor ge.

In the first segment of the house, which highest historical value and architectural ce, we have retained the original paying homage to the house's characte section, we've crafted two exquisite each featuring charming interior patios as tranquil oases within the bustling apartments are thoughtfully designed bedrooms, providing a cozy and intimate our guests.

Moving on to the second segment we've taken a more contemporary allowing us to explore creative possibilities harmonizing with the historical context. added an additional floor, a decision enhances the spatial dynamics but also thtaking views of the surroundings. this segment has been adorned with number of openings, embracing natural the scenic beauty of the area. Within rary section, you will find three spacious ments, each boasting three bedrooms. space is a testament to our commitment ding our guests with utmost comfort and space.

The third and final volume, which elegantly connects the historical and contemporary sections of the house, holds a special place in our design concept. Here, we've introduced a covered pool that immediately captivates with its graceful semicircular arches. These arches not only add an aesthetic dimension but also create a tranquil atmosphere around the pool area. To enhance the guest experience, we've incorporated a unique feature—a walkway that gracefully spans the pool. This not only facilitates easy access from one side to the other but also adds a delightful element of interaction with the water feature.

Furthermore, in this volume of arches, we've envisioned a dedicated social area. This space is designed to be versatile, offering a comfortable and inviting environment for guests to unwind, connect, and create lasting memories during their stay at the Doña Manuela Hostel. It serves as a vibrant hub within the hostel, bringing together travelers from diverse backgrounds to share stories and experiences.

In summary, our approach to the Doña Manuela Hostel project encapsulates a profound respect for the historical significance of the original house, combined with a contemporary vision that enhances the guest experience. We believe that our design harmoniously merges the past and the present, creating a unique and unforgettable setting for travelers seeking both comfort and cultural richness.

INTERNATIONAL PROGRAM - PEI

The third and final volume, which elegantly connects the historical and contemporary sections of the house, holds a special place in our design concept. Here, we've introduced a covered pool that immediately captivates with its graceful semicircular arches. These arches not only add an aesthetic dimension but also create a tranquil atmosphere around the pool area. To enhance the guest experience, we've incorporated a unique feature—a walkway that gracefully spans the pool. This not only facilitates easy access from one side to the other but also adds a delightful element of interaction with the water feature.

Furthermore, in this volume of arches, we've envisioned a dedicated social area. This space is designed to be versatile, offering a comfortable and inviting environment for guests to unwind, connect, and create lasting memories during their stay at the Doña Manuela Hostel. It serves as a vibrant hub within the hostel, bringing together travelers from diverse backgrounds to share stories and experiences.

In summary, our approach to the Doña Manuela Hostel project encapsulates a profound respect for the historical significance of the original house, combined with a contemporary vision that enhances the guest experience. We believe that our design harmoniously merges the past and the present, creating a unique and unforgettable setting for travelers seeking both comfort and cultural richness.

MADRID

In collaboration with the architects from Zuloark, we designed and constructed urban furniture in the Los Pinos orchard, located in the San Cristóbal neighborhood, Villaverde district, Madrid. Our approach was to create versatile and sturdy pieces that could adapt to the various activities taking place in the orchard. We used recycled wood to create a triangular platform, which we replicated in an elevated structure with trusses. After cutting, assembling, and painting the wood, we successfully integrated this urban garden in Villaverde into a spatially appropriate setting.

This project allowed us to provide an additional space for the neighborhood community, where concerts, meetings, and events could take place. Our goal was to have a positive impact on the community by offering them a space they previously lacked, while also activating the orchard to transform it into an event venue.

BARCELONA

We participated in two workshops that allowed us to explore Catalan culture. During the Feast of San Juan in the Gracia neighborhood, we observed how architecture integrates into this festive tradition. Additionally, we analyzed a problematic public square, seeking architectural solutions that would promote inclusivity and social cohesion. These experiences taught us about the transformative power of architecture in shaping meaningful public spaces and inspired us to consider the cultural and social context in our future work.

fiesta de gracia

The Fiesta Mayor de Gracia is an iconic event celebrated in the Gracia neighborhood of Barcelona. Each street in the neighborhood has the opportunity to choose a specific theme for decoration and organizing activities. This unique tradition allows each street to showcase its creativity and individual style, creating a visually stunning experience for visitors.

In the case of Berga Street, we collaborated with the local community to carry out a special project. Together, we created a vineyard as part of the street's decoration during the Fiesta Mayor. This vineyard not only provides a charming and thematic atmosphere but also serves as a way to invite attendees to participate in activities and enjoy the celebration on Berga Street.

Travel Sketchbook

M O L É CU L A

DESIGN CRITERIA

This is 'La Molécula,' an innovative architectural project for 'GENErAL.' Located on a 600-square-meter lot, this building unfolds over three floors, a terrace, and a basement. 'La Molécula' is much more than a retail space; it is a sensory experience that combines kinetic art and biophilic architecture. Every corner of the building reflects the industrial essence of 'GENErAL' and its commitment to creativity and sustainability. We offer a dynamic and stimulating experience that connects visitors with nature and art, creating an environment where fashion and innovation meet. Welcome to the future of retail with 'GENErAL.'

INNOVATION, DESIGN, AND BRAND EXPERIENCE

My design for 'GENErAL' creates a unique and memorable experience that emotionally connects customers with the brand.

The International Center of Bogotá is a thriving financial and business hub in the Colombian capital, known for its impressive skyscrapers, bustling commercial activity, and strategic location. It stands as a testament to Bogotá's dynamism and progress, with its distinctive architecture and pedestrian-friendly environment. In the charming La Merced neighborhood, historic houses initially designed for large families have a unique story to tell. Influenced by Frank Lloyd Wright's visit to Colombia, a local architect crafted these homes using brick as the primary material, which later inspired numerous architects to adopt this style.

The Parque Nacional master plan significantly shaped La Merced's urban layout, fostering a harmonious blend of architectural elements, green spaces, and nature integration. This neighborhood prioritizes the residents' quality of life, emphasizing a balanced coexistence between public and private spaces. Additionally, the iconic La Perseverancia Market Square, established in 1940, retains its historic charm with colorful, tall houses and traditional wooden doors. Today, it remains a cultural and commercial epicenter, reflecting the enduring spirit and resilience of the community.

Positioning the brand as a center of innovation and creativity.

By integrating technologies and sustainable practices, my design for 'GENErAL' not only beautifies the environment but also reflects a commitment to caring for the planet.

Modernity and Nature in the Workspace

A modern and functional office design that incorporates nature creates a welcoming and efficient environment, promoting collaboration and productivity.

Renders for the Construction of Guarigua House

The interior design of a house in Cajicá, Cundinamarca, presented an intriguing challenge, as it required preserving the integrity of the facade design of the residential complex. In this context, a design approach was devised to blend elements of minimalism and modernity, with the intention of granting each space in the house a unique and significant characteristic.

The surroundings of the dwelling, with its well-established facade ensemble, provided a solid foundation for conceptualizing the interior design. The importance of maintaining visual harmony with the environment while allowing the interior of the house to reflect the personality and needs of its occupants was recognized.

The fusion of minimalistic and modern styles proved to be the ideal choice to achieve this balance. Minimalism brought simplicity and elegance to the design, while modern elements added a touch of innovation and functionality. Every space within the house was carefully addressed to ensure it had a distinctive feature that set it apart, whether through furniture selection, space distribution, or material choice. The ultimate goal was to create a home that was not only visually appealing but also highly functional and comfortable for its occupants, thus meeting the expectations and needs of the interior design project.

At the Abadía de los Ángeles, a workshop was conducted with the objective of improving the MACBA square. During this community event, open to anyone interested, we had the opportunity to meet architect Santiago Cirugeda, who provided guidance on the work methods and expectations for our team.

Throughout the work process, as we explored the MACBA square and its surroundings, we observed an unusual pattern of behavior among visitors. The lack of seating and shaded areas led people to use parked bicycles as makeshift resting spots. We decided to address this issue and create a solution in line with our vision of promoting green spaces and offering flexible furniture that could adapt to various tree types, thereby providing proper resting areas. This is how the initial sketch for the green area furniture came to be.

truckers stopover hotel

On June 26, we began working on the design, creating sketches and cutting the necessary materials for the tree and the benches that would surround it. The following day, on June 27, we continued assembling the branches, which would be the central element of our project. On the third day, June 28, we successfully assembled the tree module and focused more on constructing the benches. On June 29, we transported the entire project to the exhibition site and, recognizing the importance of making it appealing to children, added a net and paint to cover the branches. Finally, on Saturday, July 1, the projects were presented to the public, and each group's proposals were made available for those who wished to participate

The architectural design project for an intermunicipal facility in La Plata, Huila, encompasses a diverse range of amenities, with one of the key components being a stopover hotel specifically designed for truck drivers passing through the region. Recognizing the importance of providing a functional and comfortable space for these travelers, we have devised a design that caters to their specific needs.

The hotel features a parking area strategically designed at a 45-degree angle, greatly facilitating the entry and exit of trucks. Additionally, an extensive commercial area has been incorporated, offering a variety of services and shops that cater to the demands of both truck drivers and local residents alike. This commercial space not only promotes economic activity within

The architectural design of the hotel stands out as a remarkable feature of this project. It showcases a creative and innovative approach by repurposing cargo containers, strategically arranged at a precise 45-degree angle. This design not only grants the hotel a distinctive and visually striking appearance but also serves as a symbolically rich nod to the world of truck drivers who regularly traverse through La Plata. The angular arrangement of the containers symbolizes the dynamic and interconnected nature of the trucking industry, reinforcing a strong sense of identity within the design.

Beyond its architectural ingenuity, this project has a more profound purpose. It has been meticulously planned to address the diverse needs of both the local community and the transient travelers passing through. By creating a welcoming and functional space for truck drivers to rest, rejuvenate, and access necessary services, it contributes to enhancing the overall infrastructure of the area. Simultaneously, the incorporation of an extensive commercial area fosters economic growth by providing opportunities for local businesses to thrive, thereby promoting sustained development and prosperity in the region.

The Indigenous Historic Center of Colombia

The Indigenous Historic Center of Colombia is strategically located in the city of Bogotá, specifically in the Teusaquillo locality, at the intersection of Diagonal 40 bis and Carrera 16. The primary aim of this architectural project is to make the most of its proximity to the Arzobispo River, thereby creating a vast urban plaza on the first level of the structure. This plaza not only serves as a meeting and activity space for the local community but also establishes a continuous connection with Colombia's rich indigenous heritage.

One of the most prominent features of this center is its commitment to preserving and promoting the indigenous cultures of Colombia. To achieve this, exhibition areas have been designed to house an impressive collection of photographs and sculptures representing the diversity and depth of these cultures. These exhibitions not only educate visitors about the history and traditions of indigenous peoples but also foster a greater appreciation and respect for their legacy within Colombia's cultural fabric.

The architectural design of the Indigenous Historic Center strives to create a space that is not only functional and aesthetically pleasing but also a living testament to Colombia's indigenous heritage. Through its strategic location, its engagement with the local community, and its focus on cultural preservation, this center becomes a beacon of diversity and cultural enrichment in the vibrant city of Bogotá.

fabian08avila10@gmail.com

Turn static files into dynamic content formats.

Create a flipbook
Issuu converts static files into: digital portfolios, online yearbooks, online catalogs, digital photo albums and more. Sign up and create your flipbook.