Bauprodukte digital 2024

Page 1

Bauprodukte digital 2024

– Die Küche der digitalen Transformation

– So funktioniert BIM im Betrieb: Data Driven Asset and Property Management

– openDBL – ein digitales Logbuch für transparentes Gebäudemanagement

– Digitalisierung legt Grundsteine für effiziente Schadenssanierungen

– Zusammenarbeit vor Digitalisierung

– Ist „Umsatz“ eine aussagekräftige Kennzahl zur Unternehmenssteuerung?

– Transparenz und Effizienz im BIM-Prozess

– Nachhaltigkeit am Bau: Ermittlung von CO2-Werten in GAEB-Positionen

Ernst & Sohn Special
2024
April
ISSN 2750-5030

Bauen

mit Betonfertigteilen im Hochbau

- ideale Bauweise für wirtschaftliches, schnelles und BIM-gerechtes Planen und Bauen

Das Buch gibt den aktuellen Stand des Betonfertigteilbaus wieder. Es zeigt die wirtschaftlichen Möglichkeiten auf und konzentriert sich auf die Tragwerks- und Fassadenelemente. Entwurf und Konstruktion sowie Aspekte der Herstellung und Montage werden behandelt. Mit Beispielen.

4. aktualisierte Auflage · 2024 · 336 Seiten · 80 Abbildungen ·

42 Tabellen

Softcover

ISBN 978-3-433-03452-1 € 59*

eBundle (Print + ePDF)

ISBN 978-3-433-03453-8 € 89*

BESTELLEN

+49 (0)30 470 31–236

marketing@ernst-und-sohn.de

www.ernst-und-sohn.de/3452

Hubert Bachmann, Mathias Tillmann, Susanne Urban
Bauingenieur-Praxis Bauen mit Betonfertigteilen im Hochbau H. Bachmann, M. Tillmann, S. Urban Bauen mit Betonfertigteilen im Hochbau
Auflage Bachmann Tillmann Urban
4.
* Der €-Preis gilt ausschließlich für Deutschland. Inkl. MwSt.

Zwischen Buzzwords und Bauablauf

Willkommen auf der Baustelle der digitalen Zukunft, wo wir zwischen BIM-Modellen und „digital tools“ jonglieren – und dabei das ein oder andere Schmunzeln nicht vergessen sollten. Doch dazu später mehr. Denn bevor wir uns in die Tiefen der digitalen Welt stürzen, lassen Sie uns zunächst einen Blick auf Ihr aktuelles Arbeitsumfeld werfen: Wie geht es Ihnen, wie sieht Ihr Arbeitsumfeld aus? Ich vermute, Sie haben beruflich mit der Baubranche zu tun, sprich mit der Organisation, der Planung oder der Pflege von Bauprojekten – gibt es also zufällig auf Ihrem Schreibtisch, Ihrem Handy oder in Ihrem Alltag gerade ein neues digitales Werkzeug, respektive Tool? Arbeiten Sie eventuell seit neuestem oder schon länger (Achtung, Trendbegriff!) „agil“? Oder gehören Sie eventuell zu denjenigen, die sich über all die verschiedenen Begrifflichkeiten aus der IT manchmal doch sehr wundern, sie teilweise gar nicht recht verstehen oder sogar als befremdlich empfinden?

Ich bin der Ansicht, wir sollten statt uns irritieren zu lassen, besser mal wieder herzlich über den einen oder anderen Begriff lachen – und zwar am liebsten miteinander. Schließlich entspannt gemeinsames Lachen und schafft eine konstruktive Atmosphäre, die wir alle brauchen.

Mein persönlicher Favorit in letzter Zeit ist das Wort „agil“. Es amüsiert mich, wenn Leute mir erklären, sie würden jetzt agil arbeiten. Ach wirklich – jetzt erst? Die Baubranche ist seit 5000 Jahren agil! Versuchen Sie mal, eine Garage zu bauen, ohne flexibel zu sein. Erstaunlicherweise bin ich schon einigen Software-Entwicklern begegnet, die den Bauprozess für linear halten; dabei läuft beim Bau doch so vieles parallel und iterativ ab.

Die Bestellungen starten oft parallel zur Planung. Das ist notwendig, um die Materialien pünktlich zum Baubeginn vor Ort zu haben. Zwischen diesen Schritten besteht jedoch eine Lücke, in der sich die Planung weiterentwickelt, während die Materialien bereits unterwegs sind. Ein Phänomen, das Risiken birgt – oft unvermeidbare. Die Methode, Arbeitsschritte parallel zu setzen, stößt natürlich auf Konflikte mit der Vorfertigung, die durch die Digitalisierung gefördert wird und für die Baubranche hoffentlich die dringend notwendigen Effizienzsteigerungen bringt.

Um ein konstruktives Miteinander zwischen agiler Software-Entwicklung und den gar nicht so linearen Bauabläufen zu stärken, sind Anpassungsfähigkeit und Dynamik gefragt – denn so wie sich die Softwareentwicklung als flexibel und iterativ sieht, erfordert auch die Entwicklung von Bauprojekten Anpassungsfähigkeit und dynamisches Handeln. Der Unterschied besteht im Wesentlichen nur darin,

dass Änderungszyklen bzw. Sprints im Baubereich länger und umfangreicher sind. Alles in allem entsteht dadurch eine Spannung, die es zu bewältigen gilt, um effektive digitale Lösungen im Bauprozess zu entwickeln.

Ist Ihnen etwas aufgefallen? Da waren sie wieder, die gängigen Buzzwords der IT: „Prozess“, „agil“, „iterativ“, „Methode“, „linear“ und „parallel“. Sie kennen die Begriffe? Gratuliere – dann hab sie den nötigen „IT-Reifegrad“ für die Inhalte dieses Hefts!

Und selbst wenn Sie die Vokabeln alle können, kommt es manchmal zwischen Anwendern und IT-Experten zu dem einen oder anderen Missverständnis. „Prozess“ zum Beispiel … als Architektin schießt da sofort mein Puls in die Höhe und ich rufe meinen Anwalt an. „Ablaufplan“ klingt in den Ohren von Bauschaffenden viel angenehmer und wir sparen uns alle einen Schreck. Und ich weiß ja nicht, wie es Ihnen geht – aber „User“ oder „Userin“? Für mich klingt „Kundin“ viel wertschätzender – denn die ist bekanntlich Königin.

In diesem Sinne, lassen Sie uns gemeinsam über die Tücken und Kuriositäten der digitalen Bauprojektwelt schmunzeln und lernen, mit ihnen umzugehen!

Hier ist mein BIM/Digital/IT-Buzzword-Bingo für Sie. Ich bin gespannt, wann Sie „BINGO“ rufen können. Viel Spaß beim Zocken – und nicht vergessen: Lachen ist erwünscht!

LOI BAP iterativ 3D, 4D, 5D KI/AI Garbage in garbage out Prozess Agil Methode iterativ

Sprint User  AIA smart

linear CDE Tool Digitaler Zwilling LOD

LOIN parallel openBIM VR/AR Modellcheck

Herzlichst, Ihre Kirstin Bunsendal, BIM-Expertin bei k-BIM.de und eingetragene Architektin

Editorial 3 Ernst & Sohn Special 2024 · Bauprodukte digital
B I N G O

Special 2024 Bauprodukte digital

Ernst & Sohn Special 2024 Bauprodukte digital

ISSN 2750-5030

Ernst & Sohn GmbH

Rotherstraße 21

D-10245 Berlin

Telefon: (030) 4 70 31-200

Fax: (030) 4 70 31-270

info@ernst-und-sohn.de www.ernst-und-sohn.de

Digitale Bauprodukte sind zur Genüge auf dem Wochenmarkt im Angebot. Doch welche Bauteilsuppe entsteht daraus im Projekt? Passen die Geschmacksrichtungen zusammen? Ein Fragenkatalog mit Auflösung. Was das alles mit konkreter Digitalisierung zu tun hat; welche Themen Hersteller auf dem Schirm haben sollten und wie eine schrittweise Umsetzung gelingen kann, ist das tägliche Business der ekkodale GmbH. Das Unternehmen arbeitet an der Seite seiner Kunden daran, die Zutatenliste und Gewürze eines gelungenen Menüs für den digitalen Konsumenten aufeinander abzustimmen. Die mit dem Bauprodukt­Hersteller erarbeitete Lösung ist so individuell wie die Geschmäcker. Sie kann ein liebevoll erstelltes Pausenbrot sein, oder auch ein 8­Gänge Menü im Haute Cuisine Restaurant. Appetit bekommen? Mehr dazu auf Seite 7 ff.

EDITORIAL

Kirstin Bunsendal

3 Zwischen Buzzwords und Bauablauf

ZUVOR

6 Digital – eine Blütenlese

DISKURS

Tim Hoffeller

7 Die Küche der digitalen Transformation

Ein Rezept für Hersteller: Mexikanische Schwarze Bohnen mit Speck

Annika Reiter, Dennis Geesen, Jens Bredehorn

14 So funktioniert BIM im Betrieb: Data Driven Asset and Property Management

Über BIM im Betrieb und die Frage, warum es bisher nicht funktioniert

Kai Oberste-Ufer, Jakob Martin

19 openDBL – ein digitales Logbuch für transparentes Gebäudemanagement

DISKURS – UNTERNEHMENSSTEUERUNG

GASTKOMMENTAR: Kourosh Ghaffari

25 Ist „Umsatz“ eine aussagekräftige Kennzahl zur Unternehmenssteuerung?

Jens Prömse

27 Zusammenarbeit vor Digitalisierung

Warum wir uns weniger um die Digitalisierung kümmern sollten, wenn wir mehr von ihr profitieren wollen

VR + AR

Ayline Herre

31 Bauwerke virtuell erleben!

Wie der Einsatz von VR und AR im Bauwesen unterstützt und wo die Technologien noch an ihre Grenzen stoßen

4 Ernst & Sohn Special 2024 · Bauprodukte digital Inhalt

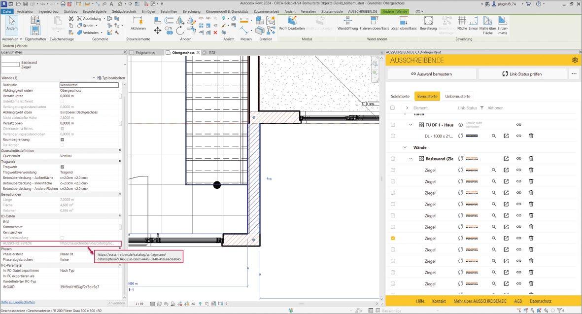
34 Transparenz und Effizienz im BIM-Prozess AUSSCHREIBEN.DE CAD-Plugin optimiert Workflow

36 BIM-Software Tekla Structures 2024 bietet optimierte Benutzerfreundlichkeit und vernetzte Arbeitsabläufe

39 Digitalisierung legt Grundsteine für effiziente Schadenssanierungen

Über ein in Deutschland einzigartiges Konzept

Regine Metzkes, Jonas Krämer

41 Bemessung von mit Combar® bewehrten Betonbauteilen in FRILO

45 Digitale Statikdokumente mit VCmaster 46 Nachhaltigkeit am Bau: Ermittlung von CO2-Werten in GAEB-Positionen 46 Impressum

Verändern Sie Ihre Arbeitsweise mit zuverlässigen, detaillierten Arbeitsabläufen für optimale Leistungen. Arbeiten Sie mit ausführungsreifen BIM-Modellen. So haben Sie Ihre Projekte jederzeit im Griff.

Ernst & Sohn Special 2024 · Bauprodukte digital Inhalt
PLANUNG
SOFTWARE UND
Christine Buschoff
www.tekla.com/de
Planen Fertigen Ausarbeiten Ausführen
Tekla Software von Trimble (Abb.: pxhere)

0101010101010101010101010101010101010101010101010101010101010101010101010101010101010101010101010

Digital – eine Blütenlese

Digital, lat. (digitalis von digitus, Finger, Zehe) die Finger und Zehen betreffend

(Johann Christian August Heyse, Allgemeines Fremdwörterbuch, Hannover 1922, Nachdruck der Ausgabe 1844, S. 196)

In Schritten

Digital <lat.-engl.>: Signale, Daten in Ziffern (d. h. in Schritten und nicht stufenlos bzw. analog) darstellend od. dargestellt

(Duden, Das Fremdwörterbuch, Mannheim 1998, S. 190 – kein Artikel zu Digitalisierung)

Diskrete Finger

Unter Digitalisierung (von lateinisch digitus ‚Finger‘ und englisch digit ‚Ziffer‘) versteht man die Umwandlung von analogen, d. h. stufenlos darstellbaren Werten bzw. das Erfassen von Informationen über physische Objekte in Formate, welche sich zu einer Verarbeitung oder Speicherung in digitaltechnischen Systemen eignen. Die Information wird hierbei in ein digitales Signal umgewandelt, das nur aus diskreten Werten besteht. (www.wikipedia.org//Digitalisierung)

Disruptiver Prozess

Die Digitalisierung begegnet uns überall – und hat die Art, wie wir arbeiten und leben, stark verändert. (…) Die Digitalisierung der Wirtschaft ist rasant und hat sich zunehmend beschleunigt: 3D-Drucker stellen Maschinenteile her, Roboter bauen diese zusammen, und der Vertrieb ist immer stärker digitalisiert. Insbesondere Künstliche Intelligenz hat das Potential, Prozesse auch in Industrie und Wirtschaft grundlegend zu verändern. Unsere Wirtschaftswelt befindet sich in einem disruptiven Prozess. (www.bmwk.de // Digitalisierung – Den digitalen Wandel gestalten)

Dritte Revolution

Der Begriff der Digitalisierung hat mehrere Bedeutungen. Er kann die digitale Umwandlung und Darstellung bzw. Durchführung von Information und Kommunikation oder die digitale Modifikation von Instrumenten, Geräten und Fahrzeugen ebenso meinen wie die digitale Revolution, die auch als dritte Revolution bekannt ist, bzw. die digitale Wende. (https://wirtschaftslexikon.gabler.de//Digitalisierung)

Breit und unscharf

Der Begriff Digitalisierung wird mittlerweile breit und unscharf für den Einsatz verschiedener digitaler Tech-

nologien und damit verbundenen Transformationsprozesse in der Gesellschaft und ihren gesellschaftlichen Teilsystemen, wie Wirtschaft und Arbeit, Bildung, Politik und Öffentlichkeit, verwendet.

(www.bidt.digital/glossar/digitalisierung)

Unumgänglich

Niemand kann verleugnen, dass unsere Gesellschaft sich in Richtung einer digitalisierten Zukunft bewegt. Gesteigerte Produktivität und Wettbewerb machen die Digitalisierung unumgänglich. Sie ermöglicht eine Optimierung der Benutzerfreundlichkeit und eine schnellere Interaktion zwischen Unternehmen und Kunden. Dadurch kann die Produktqualität verbessert und die Kosteneffizienz gesteigert werden.

(www.scrive.com/de/digitalisierung)

Mit der Zeit zu gehen

Ursprünglich bezieht sich Digitalisierung auf rein technische Abläufe – also den Wandel von analogen zu digitalen Abläufen oder Medien. Seit einigen Jahren hat sich die Bedeutung deutlich ausgeweitet: Ist von Digitalisierung die Rede, geht es meist um die Modernisierung des betroffenen Bereichs mit dem Ziel, mit der Zeit zu gehen und zukunftsträchtige Mechanismen zu implementieren. Mit Blick auf die Digitalisierung in Unternehmen handelt es sich um einen Sammelbegriff für die Nutzung von digitalen Informationen. In einem ersten Schritt wird eine geeignete Digitalisierungsstrategie erarbeitet, die dann etappenweise umgesetzt wird.

(www.yaveon.de/glossar/digitalisierung/)

Im Vagen

In der aufgeheizten Debatte mischen Pioniere, Trittbrettfahrer und ahnungslose mit – was die Orientierung nicht unbedingt erleichtert. Und diejenigen, denen man vertrauensvoll die Meinungs- und Wortführerschaft überlassen mag, bleiben gern im Vagen: Auf kostspieligen Konferenzen treten Berater und „DigitalStrategen“ mit mysteriösen Botschaften auf. Konkret werden sie nur ungern, dabei steht oft genau diese Frage im Raum, meist gestellt von Personen aus der Geschäftsleitung aus dem produzierenden bzw. zuliefernden industriellen Mittelstand:

„Ja, wir haben verstanden: Die Digitalisierung betrifft uns auch. Aber wo fangen wir an!?“

(www.pinuts.de/digitalisierung-definition, Text: Matthias Nowak)

b. t.

ZUVOR 6 Ernst & Sohn Special 2024 · Bauprodukte digital
1 1 0 0 1 1 0 0 1 1 0 0 1 1 0 0 1 1 0 0 1 1 0 0 1 1 0 0 1 1 0 0 1 1 0 0 1 1 0 0 1 1 0 0 1 1 0 0 1 1 0 0 1 1 0 0 1 1 0 0 1 1 0 0 1 1 0 0 1 1 0 0 1 1 0 0 1 1 0 0 1 1 0 0 1 1 0 0 1 1 0 0 1 1 0 0 1 1 0 0 1 1 0 0 1 1 0 0 1 1 0 0 1 1 0 0 1 1 0 0 1010101010101010101010101010101010101010101010101010101010101010101010101010101010101010101010101

Die Küche der digitalen Transformation

Ein Rezept für Hersteller: Mexikanische Schwarze Bohnen mit Speck

Was bitte haben schwarze Bohnen und die Bauindustrie miteinander zu tun? Die Digitalisierung der Bauindustrie ist ein nicht enden wollender Diskurs. Umso mehr lohnt sich ein Blick über den Tellerrand, um nicht den Appetit zu verlieren. Lassen Sie uns schauen, wie sich die Gastronomie im Gegensatz zur Bauindustrie mit dem Thema Digitalisierung in der Zwischenzeit aufgestellt hat. Speziell in Zeiten von Google Maps-Bewertungen ist ein kundenorientiertes Herangehen für die Gastronomie existenziell. Kein Kunde wird ein Restaurant besuchen, wenn die Bewertungen auf Google das Gegenteil suggerieren. Die einfache Formel: „Schlechte Bewertung = keine Kunden“ trifft hier definitiv zu. Doch wie stellt sich die Bauindustrie mit solchen disruptiven Technologien auf? Werden sie genutzt oder ignoriert?

stellt sich die Frage: Welches der Portale verglichen zu den Gastro Lieferservices hat sich durchgesetzt? Welches Portal bietet 100 % der Hersteller und deren gesamtes Planungsportfolio an? Welchen Lieferservice würden Sie nutzen als Kunde? Oder würden Sie doch lieber zur Restaurantwebsite gehen, um dort gezielt auswählen zu können, statt sich in der Fülle des Angebots, meist ungefiltert, zu verlieren. Ordnen Sie sich mit Ihren Produkten in der Premiumklasse ein? Dann sollten wir vielleicht schauen, ob wir die Sterneküche ebenfalls bei Lieferando finden oder doch lieber die eigene Webseite als DistributionsChannel nutzen.

– ii –

Snackification – Digitale Häppchen für den Kunden

Lieferservice

Die COVID-Pandemie führte in der Gastronomie zu einem drastischen Umdenken. Vom „der Kunde kommt sowieso zu uns“ entwickelte sich die Branche der Restaurants, Bistros, Cafés zu Full-Service-Providern. Fing die Digitalisierung mit einfachen QR-Tags an, um die Speisekarten zu ersetzen, ist ein Restaurant heute nicht mehr relevant, wenn es nicht im Internet gefunden wird. Allenfalls Insider zählen dann noch zur Kundschaft.

Kennen Sie den Begriff der GhostKitchen? Dieser steht für ein gänzlich neues Konzept für Restaurants. Sie haben keinen Gastraum mehr, sondern stellen nur noch Speisen zur Lieferung bereit, allerdings in hochpreisiger Form. Wer hätte das vor 4 Jahren – außer von der lokalen Dönerbude – erwartet? Somit wandelt sich die Branche zum Pull-Verhalten. Der Kunde ist umso mehr König und muss maximal unterstützt werden, um das Gewünschte zu finden und möglichst nicht zur Konkurrenz abzuspringen.

Sie sind Hersteller und liefern BIM-Content? Haben sie sich auch schon daran die Finger verbrannt? Warum sind Sie überhaupt dabei? Weil es die Konkurrenz tut? Oder hat ein Kunde angefragt und braucht digitale Zwillinge Ihrer Produkte für sein Planungsprojekt? Oder hat sich ein Markt gemeldet und von einem Kunden berichtet, der unbedingt digitalen Content benötigt?

Wie ist das denn in der Bauindustrie? Sie sind Hersteller und liefern BIM-Content? Haben Sie sich auch schon daran die Finger verbrannt? Warum sind Sie überhaupt dabei? Weil es die Konkurrenz tut? Oder hat ein Kunde angefragt und braucht digitale Zwillinge Ihrer Produkte für sein Planungsprojekt? Oder hat sich ein Markt gemeldet und von einem Kunden berichtet, der unbedingt digitalen Content benötigt? Immer mit der Drohung, dass das Projekt sonst an der Firma vorbei geht. Sicher haben auch Sie schon erste Versuchsballons gestartet, sind in einigen der gängigen Portale präsent und bieten einen Auszug ihres Sortimentes als BIM-Content an. Auch hier

Das Konzept der ‚Snackification‘ aus der Gastronomie, bei dem Konsumenten kleine, schnell konsumierbare Happen bevorzugen, lässt sich auf die Informationsbedürfnisse der Bauindustrie übertragen. Dies erfordert eine Strategie, die darauf abzielt, dass die Hersteller es schaffen sollten, Kunden genau das zu bieten, was sie suchen, und zwar dann, wenn sie es suchen. Es ist nicht der BIM-Content, sondern eine Vielzahl von Anforderungen, die orchestriert werden müssen. Umso wichtiger die Umsetzung in kleinen Dosen anzugehen, statt im Doing unterzugehen. Welche Ihrer Produkte sind planungsrelevant? Womit adressieren Sie welchen Kundenkreis? Auch sollten Sie klar trennen zwischen unstrukturierten Anfragen, die nur darauf hinzielen, das Feuer in einem Planer-Projekt zu löschen, versus einer breiten Basis von verifizierten Anforderungen, welche die Bedürfnisse vieler Planer abbilden. Sie benötigen also eine klare Roadmap und explizites Requirement Engineering, um Ihre Speisekarte gezielt aufzusetzen. Die Entscheidung, ob es auch Tagesgerichte gibt, obliegt einer klaren Priorisierung und den Ressourcen, welche Sie diesem digitalen Change-Projekt zuordnen.

– iii –

Es ist nicht der BIM-Content, sondern eine Vielzahl von Anforderungen, die orchestriert werden müssen. Umso wichtiger die Umsetzung in kleinen Dosen anzugehen, statt im Doing unterzugehen.

Die Vorspeise – BIM-Content als Einstieg hin zu digitalen Services

Beginnen wir mit dem ersten Gang, der Vorspeise. BIM wird aktuell vorwiegend in der Planung eingesetzt. Bedeutet, Ihr derzeitiger Content adressiert diese Phase. Sie haben sich also mit LOG und 3D-Modellen auseinandergesetzt. Haben Sie auch die Frage beantwortet, wie Sie von generischem, produktneutralen Content hin zu spezifischem den Planer unterstützen können? Wie gehen Sie

Diskurs 7 Ernst & Sohn Special 2024 · Bauprodukte digital
– i –

Jeder Planer, der sich bisher mit BIM-Prozessen auseinandergesetzt hat, dürfte seine eigene Parameter- und Merkmalssprache in seinen Planungsmodellen implementiert haben. Wie passt Ihre Sprache dazu oder reden Sie aneinander vorbei?

damit um, wenn ein Anwender bereits das komplette Modell mit neutralem Content modelliert hat und Sie nun Ihre eigenen Bauteile bereitstellen? Gibt es nur den Weg alles händisch zu ersetzen? Das bringt uns zu den Diskussionen rund um Informationen, dem „I“ in BIM. Jeder Planer, der sich bisher mit BIM-Prozessen auseinandergesetzt hat, dürfte seine eigene Parameter- und Merkmalssprache in seinen Planungsmodellen implementiert haben. Wie passt Ihre Sprache dazu oder reden Sie aneinander vorbei?

Daran schließt sich die Frage an: Wie bringe ich meinen Content unters Volk? Gehe ich über ein Liefer-Portal, den eigenen Web-Auftritt oder Online-Katalog; oder entwickle ich ein dediziertes Add-in für die jeweilige Planungssoftware? Das sind Fragen, die sich nicht pauschal beantworten lassen. Hängen die Antworten doch sehr stark von der Art Ihrer Produkte ab. Sind sie eher Artikelbasierend, sprich in einem Katalog abbildbar oder handelt es sich um das Ergebnis einer Konfiguration, welche durch Randparameter gesteuert wird? Über allem steht die Frage, ob der Content den Bedürfnissen der Anwender entspricht. Wie erfährt der Anwender überhaupt davon? Ist es die

Aufgabe des derzeitigen Sales-Teams nun auch zum Thema BIM-Content mit Rat und Tat zur Seite zu stehen? Sind Sie sicher, dass dies die richtigen Ansprechpartner sind? Denn dies bedeutet, dass das Sales-Team, bisher zuständig für Hardware-Produkte, nun auch als Sparringspartner in Großprojekten, Zentralmodellen, CDEs und ähnlichen technologischen Fragen qualifizierte Antworten geben muss.

Würden Sie einem Kellner vertrauen, der die Speisekarte nicht wirklich kennt und ständig in der Küche nachfragen muss, was genau die Speise enthält? Vielleicht wäre es eine Möglichkeit, mal mit denjenigen ins Gespräch zu kommen, die ohnehin in den Planungsbüros ein- und ausgehen und Training sowie Schulungen zum Thema BIM anbieten. Ich nenne sie mal BIM-fluencer, eben genau diese Personen, die technisch im Planungsprozess als Consultants unterwegs sind und somit auch oft ein sehr starkes Produkt Know-how aus ihrer Branchenerfahrung mitbringen.

Stellt sich abschließend die Frage, lohnt der ganze Aufwand? Wie wird mein Content genutzt? In den gängigen Portalen und auf der eigenen Website steht ein Download eines Produktes bereit. Im besten Fall wird dieses aber tausendfach in einem Projekt instanziiert und verwendet. Dieser eine Download spiegelt absolut nicht wider, was in der Projektumsetzung mit ihren Bauteilen pas-

Diskurs 8 Ernst & Sohn Special 2024 · Bauprodukte digital
Bild 1. In diesem Beitrag ist zu lesen, wie man als Hersteller nicht den Salat hat.

siert. Die Frage ist, wie komme ich an bessere Metriken?

In den gängigen Portalen und auf der eigenen Website steht ein Download eines Produktes bereit. Im besten Fall wird dieses aber tausendfach in einem Projekt instanziiert und verwendet. Dieser eine Download spiegelt absolut nicht wider, was in der Projektumsetzung mit ihren Bauteilen passiert. Die Frage ist, wie komme ich an bessere Metriken?

Der Kunde wird Ihnen nicht sagen, welche Bauteile er wie oft benutzt hat, solange Sie ihm keinen Mehrwert bieten. Lassen Sie mich hier wieder die Gastronomie anführen mit der Entwicklung hin zur Erlebnisgastronomie. Essen allein ist es nicht mehr, das Gesamterlebnis zählt. Bedeutet für Sie: Ohne Zusatzservices, Auslegungsmöglichkeiten, Validierungen oder Berechnungen bleibt es beim EinzelDownload. Es gilt also digitale Services zu entwickeln, welche Sie von der Konkurrenz abheben und den Kunden an Sie binden. So sind dann auch projektspezifische Aus-

Bild 2. Reiche Rezept­Auswahl

Speck

Bild 3. Arme Auswahl für passende Bauteile

wertungen Datenschutz-konform möglich, sofern Sie diese Zusatzleistungen in Form von webbasierten Services anbieten.

– iv –

Der Hauptgang – vom Modell zum nachhaltigen Betrieb

Im Baulebenszyklus ist BIM nur die Vorspeise. Von der Planung über die Errichtung hin zum Betrieb, wo liegt hier das meiste Potential?

Mit geschätzten 2 Mio. gewerblich genutzten Bestandsgebäuden in Deutschland dürfte die Antwort klar sein. Angesichts der aktuellen Krise der Bauwirtschaft und den übersichtlichen Zahlen der Neubauten ist ein Fokus auf

Angesichts der aktuellen Krise der Bauwirtschaft und den übersichtlichen Zahlen der Neubauten ist ein Fokus auf Bestandsimmobilien und Retrofit überlebenswichtig.

Diskurs 9 Ernst & Sohn Special 2024 · Bauprodukte digital
für leckere Bohnen mit

Bestandsimmobilien und Retrofit überlebenswichtig. Nun wird hoffentlich kein Bauherr, der alle Sinne beieinanderhat, Portfolien dreidimensional nachmodellieren lassen. Dies ist schlicht und ergreifend unbezahlbar.

Dem Portfoliobetreiber geht es vielmehr darum, digital verwertbare Produktinformationen mit beispielsweise einem dreidimensionalen Scan der Bestandsimmobilie und entsprechend verknüpften Hintergrundinformationen zu einem nutzbringenden Ganzen zu verbinden.

Wir müssen uns also die Frage stellen, was jenseits von BIM-Content benötigt wird. Welche Informationen müssen für FM und ERP-Systeme bereitgestellt werden? Dazu gehören ebenfalls Informationen bzw. Datensätze in maschinenlesbarer Form, welche das verfügbare Nachfolgeprodukt eines verbauten Produktes bereitstellen. Steht die Immobilie schon seit einiger Zeit und wird genutzt, steigt die Chance, dass die verbauten Produkte überhaupt nicht mehr verfügbar sind. Nun möchten Sie sicher nicht, dass statt Ihrer Komponente die der Konkurrenz verbaut wird, nur weil sie schneller auffindbar und damit verfügbar ist.

Viele Köche verderben bekanntlich den Brei – Einigkeit im Datenchaos

Was bedeutet es aber im Kontext der Produktinformation? Ist bei Ihnen auch jeweils ein Mitarbeiter mit der Erstellung eines spezifischen Formates betreut? Gibt es Abteilungen, welche die Ausschreibungstexte beispielsweise in Datanorm oder GAEB bereitstellen? Eine andere Abteilung wiederum ist zuständig für BMEcat oder etim Daten. Wiederum eine andere Abteilung erstellt VDI 38 05 Datensätze, da nur diese mit Geometrien umgehen können? Ach ja, dann gibt’s ja noch die 3 D-Darstellungen für den Online Katalog, damit der geneigte Besucher das Bauteil vorab schön dreidimensional drehen und von allen Seiten betrachten kann. Hierfür haben Sie einen externen Dienstleister beauftragt, der auch über jede Änderung im Produkt-Portfolio informiert, beauftragt und bezahlt werden muss. Was machen die lokalen Märkte, wenn Ihr Sortiment in mehreren Ländern oder am Ende noch weltweit verfügbar ist? Haben Sie da wirklich einen Überblick, wer mit diesen Aufgaben betraut ist? Gibt es Vertretungspersonal, wenn derjenige in Urlaub, Abwesenheit durch Krankheit oder schlimmstenfalls in Rente geht?

Verlässt das Know-how durch Kündigung oder Abwanderung das Unternehmen, sind sie mit den Produkten von einem auf den anderen Tag nicht mehr verfügbar und präsent. Der Kunde arbeitet in diesem Fall mit alten, nicht mehr aktuellen Daten. Was das für das Sales-Team bzw. den Support bedeutet, haben Sie wahrscheinlich schon am eigenen Leib erfahren. Sie sehen, es handelt sich hierbei um ein handfestes Problem.

Wie sähe hier ein Vergleich zur Gastronomie aus? Der Wandel vom Bistro zur Großküche ist kein Pappenstiel. Wer schon einmal in der Gastronomie gearbeitet hat, weiß, dass in der Küche oft ein Tonfall wie auf einem Kasernenhof herrscht. Das möchte niemand im Büroumfeld etablieren. Nichtsdestotrotz werden Sie um eine Top Down Strategie nicht herumkommen. Ohne eine strukturierte und wohlgeplante Automatisierung sowie Priorisierung der notwendigen Datenformate werden Sie des manuellen Chaos’ nicht Herr werden.

Sie benötigen eben den Blick auf die gesamte Speisekarte, nicht nur die Seite mit den Pasta-Gerichten. Wo entstehen die Änderungen, die ein Update der einzelnen Datenformate initiieren? Hoffentlich haben Sie bereits ein PIM-System eingeführt oder denken über eine solche Software nach. Dieses System ist die führende Single-Source Datenquelle, um Lokalisierungen, Übersetzungen sowie lokale Markt Sortimente zu verwalten. Soll dieses System auch für im Content und berechnungsnahe Formate verwendet werden, sollten Sie zwingend die Tauglichkeit Ihrer Informationen im PIM-System unter die Sie benötigen eben den Blick auf die gesamte Speisekarte, nicht nur die Seite mit den Pasta-Gerichten. Wo entstehen die Änderungen, die ein Update der einzelnen Datenformate initiieren? Hoffentlich haben Sie bereits ein PIM-System eingeführt oder denken über eine solche Software nach. Dieses System ist die führende SingleSource Datenquelle, um Lokalisierungen, Übersetzungen sowie lokale Markt Sortimente zu verwalten.

Diskurs 10 Ernst & Sohn Special 2024 · Bauprodukte digital
– v –
Bild 5. … gibt es leider noch nicht! Bild 4. Lösungen können schwer verdaulich sein, oder gar (Wort­)Monster erzeugen.

Lupe nehmen. Wenn sich Maßangaben im Prosatext zur Beschreibung eines Artikels verstecken, statt in dedizierten Parametern mit sauberen Einheiten Zuordnungen zur Verfügung zu stellen, haben Sie einiges an Arbeit vor sich. Es geht eben nicht mehr darum, Texte für den Onlinekatalog und das PDF bereitzustellen, sondern BIM-Systeme und Berechnungssoftware mit belastbaren Informationen zu versorgen. Dazu gehört dann auch das Thema des Kontextes. Wissen Sie in Ihrem PIM-System, welches Produkt genau was ist? Damit meine ich nicht Prosatext, der wortreich beschreibt, um was es sich handelt, sondern eine klare Taxonomie.

– vi –

Gemeinsame Sprache

In der Küche ist Französisch die Sprache und das Maß aller Dinge, zumindest in der Sterne- Gastronomie. Wir benötigen ebenfalls eine eindeutige Sprache, um Produkte und deren Artikel eindeutig klassifizieren und miteinander verknüpfen zu können.

Wer meinen Artikeln schon länger folgt, kennt meine Affinität zu Klassifikationssystemen, Merkmalen und deren Eigenschaften. Ohne diese Semantik, den Kontext hinter den Daten, sind sie als Speise versalzen und überwürzt, wenn Sie andere Standards anbinden möchten. Im BIMUmfeld werden Sie um das openBIM Format IFC nicht herumkommen. Haben Sie mit dem Großhandel zu tun, sind Formate wie etim und BMEcat Standard. Wir sprechen also von einem fein granularen, internen Klassifikationssystem, um Ihre Produkte möglichst gegen viele externe Standards mappen und zuordnen zu können. Wer nun hofft, dass es die KI schon richten wird, hat ohne eine saubere Taxonomie relativ wenig Chancen,

dem Prosatext eine Produktinformationen zu entlocken, den eine Maschine versteht. Wir haben bereits einige Versuche in diese Richtung unternommen und bisher keine annähernd 80 % Treffer erzeugen können. Diese Basisarbeit muss also intern im eigenen Betrieb vorgenommen werden, das bedeutet aber nicht, dass Sie das Rad neu erfinden müssen. Schließen Sie sich bestehenden Standardisierungen an wie beispielsweise der Initiative BIMeta.

– vii –

Neue Standards braucht das Land?

Wer nun hofft, dass es die KI schon richten wird, hat ohne eine saubere Taxonomie relativ wenig Chancen, dem Prosatext eine Produktinformationen zu entlocken, den eine Maschine versteht.

Ich höre ihn schon, den Schrei: „Wir brauchen dafür mehr Standards“. Ist es eine deutsche Eigenart so gerne Dinge bis aufs Letzte zu standardisieren? Oder eben wieder den deutschen Weg gehen zu müssen, da wir es mal wieder besser wissen. Ich möchte diese Diskussion hier nicht episch ausführen, sondern nur auf einen Artikel in der Süddeutschen Zeitung verweisen, der vor 2 Jahren erschienen ist unter dem Titel: „Kein Anschluss unter dieser Leitung“. Er geht darauf ein, wie Deutschland mit den frühen Zeiten des Internets umging. Ein Herr Zorn, dessen Name Programm ist, wurde in der Süddeutschen Zeitung interviewt. Er war von Beginn an mit dabei als die ersten Emails verschickt wurden und die Frage nach dem Standard-Protokoll für die Kommunikation im Internet von der wissenschaftlichen Welt erörtert wurde. Der Rest der Welt entschied sich damals für TCP/IP. Im Nachhinein wissen wir, dies ist der Standard, nach dem unser heutiges Internet tickt. Die deutsche Wissenschaft entschied sich für ein Anderes. An dieser Entscheidung wurde 10 Jahre festgehalten, bis zähneknirschend einzugestehen war, dass man zwar wunderbar mit sich selbst, mit dem Rest der Welt aber nicht kommunizieren konnte.

Diskurs 11 Ernst & Sohn Special 2024 · Bauprodukte digital
Bild 6. Oder doch lieber eigene Website? Bild 7. Beispiel eines adäquaten Produkt­Knotens?

Nach 10 Jahren wurde reumütig umgeschwenkt und seitdem folgt Deutschland ebenfalls dem weltweiten Standard. Nur eben mit 10 Jahren Verzögerung, die wir bis heute hinter uns herschleppen. Also bitte keine neuen Standards. Erst einmal schauen, was es schon gibt!

– viii –

Hunger? Rezepte für Hersteller sind schon Online

Das führt mich nun endlich zurück zum Titel des Beitrags und der Auflösung der Ihnen wahrscheinlich immer noch unter den Nägeln brennenden Frage, warum zum Teufel reden wir über schwarze Bohnen?

Neben der Hoffnung, dass Sie nun den nötigen Hunger mitbringen, wandelt sich der Artikel nun in ein Mitmachbeispiel: Bitte starten Sie den Browser Ihrer Wahl und suchen Sie auf der Suchmaschine Google nach einem Rezept für schwarze Bohnen mit Speck. In Bild 1 sehen Sie mein Suchergebnis. Was sehen wir hier? Die Suchmaschine bietet mir zuoberst Ergebnisse, die sie mit „Rezepte“ überschreibt. Um dies einschätzen zu können, suchen wir nun nach einem Bauprodukt. Als Beispiel nehmen wir uns ein Strang-Absperrventil aus der Haustechnik, es funktioniert leider für jedes Produkt, dass ich bisher probiert habe, somit wird hier keine Herstellergruppe an den Pranger gestellt.

Öffnen Sie also einen zweiten Tab und suchen auf Google nach einem Strang-Absperrventil mit eine Nennweite DN 32. Wie sehen Ihre Ergebnisse aus? Zuoberst kommen jede Menge Gesponsorte Links mit Verweisen in Shops. Was bedeutet das? Hier haben die Anbieter der zuoberst stehenden Ergebnis Geld in die Hand genommen, um auf dieser Position zu landen. Wir sehen also bezahlte Links, die mit gängigen SEO-Strategien erkauft

wurden. Die ersten organischen Treffer sind weit unten, wenn überhaupt auf der ersten Seite. Dominiert wird das Gesamtergebnis durch Shops der Großhändler. Was sagt uns dieses Beispiel? (Bild 2)

Bei den Rezepten versteht die Suchmaschine anscheinend, dass ich nach einem Rezept für schwarze Bohnen mit Speck gesucht habe. Bei unserer Produktsuche ist es eine Frage des Invests in SEO-Technologien, wie weit die Ergebnisse es nach oben schaffen. Da diese SEO-Schlachten in den seltensten Fällen von den Website-Anbietern selbst, sondern über externe, teuer bezahlte Agenturen erledigt werden, ist das Ergebnis umso dramatischer. Was steckt nun hinter dem ersten Ergebnis? Kennen Sie die Initiative Schema.org? Wenn nicht, dann sollten Sie das schleunigst nachholen.

Kennen Sie die Initiative Schema.org? Wenn nicht, dann sollten Sie das schleunigst nachholen. Schema.org stellt standardisierte Strukturen für die Beschreibung im Semantik Web bereit.

Schema.org stellt standardisierte Strukturen für die Beschreibung im Semantik Web bereit. Das ist exakt der Unterschied zwischen den Rezepten und den Produkten. Hinter jedem der Ergebnisse auf der Rezeptseite, welche unter dem Rezept-Knoten zusammengefasst werden, steckt eine Beschreibung in einer standardisierten Form. Das bedeutet, die Suchmaschine versteht, es handelt sich bei dieser Seite um ein Rezept. Keine der Ergebnisseiten für die Produktsuche stellt diese Informationen bereit. Weshalb kein Produkt-Knoten zuoberst erscheint, der uns die Strang-Absperrventile in dieser Form präsentiert? Nun fragen Sie sich wahrscheinlich zu Recht, wieso Ihre Agentur Sie auf solche Technologien nicht hinweist, oder? Meine Frage zu Beginn, werden disruptive Technologien genutzt, würde ich nun mit einem traurigen „Nein!“ beantworten …

– ix –

Beyond BIM, der Nachtisch

Darf es noch ein Nachtisch oder Espresso sein? Überzuckert, aber glücklich möchten wir schließlich unseren Restaurantbesuch beenden. Was könnte jetzt der Nachtisch sein? Wie Sie eben gesehen haben, ist das Potential in bestehenden, weltweit verwendeten Technologien immens. Ihr Kunde ist zufriedener, er findet die Informationen mit einer Standardsuchmaschine. Er muss sich nicht durch Ihren Onlinekatalog oder ein (vielleicht schon veraltetes) PDF graben. Hinter diesen Technologien hängen aber noch weitere interessante Möglichkeiten. Z. B. lassen sich Verbindungen von Produkten abbilden. Das könnte beispielsweise eine Kompatibilität sein. Stellen Sie sich einen Waschtisch und einen Unterschrank vor, beide sind kompatibel, wenn die Masse des Waschtischs zum Unterschrank passt. Bietet Ihr Online-Katalog diese Informationen? Oder folgt er der Strategie, Kunden, die kauften, kaufen auch …? Sie kennen das aus den Amazon-Vorschlägen. Diese haben nichts mit einer Kompatibilität zu

Diskurs 12 Ernst & Sohn Special 2024 · Bauprodukte digital
Bild 8. Viele Köche verderben den Kochtopf.

tun. Schon gar nicht werden darüber notwendige Montagesets, Ersatzteile oder ähnliches angeboten, die der Installateur oder Kunde mühsam heraussuchen muss. Auch der angesprochene Nachfolger eines ausgelaufenen Produkts ist eine solche Verknüpfung. Der geneigte Kunde bekommt sofort das Nachfolgeprodukt vorgeschlagen.

Ein schönes Beispiel, diesmal nicht aus der Gastronomie, sondern aus der Möbelbranche, ist ein uns allen bekanntes Einrichtungshaus, das uns seit den Studentenzeiten begleitet. Wenn Sie hier im gigantischen Artikelsortiment als Kunde selbstständig herausfinden müssen, welches Tischgestell zur Tischplatte passt und selbst die Mitarbeiter im Möbelhaus überfordert sind, schwindet Ihr Einkauferlebnis und Sie wünschen sich eine bessere Unterstützung oder Alternative. Hat der Kunde eine solche, ist er im Zweifelsfall weg. Denn durch diese fehlende Unterstützung entstehen Fehlkäufe und Bestellungen, die erst wieder aufwendig mit dem Support rückabgewickelt werden müssen.

Ganz im Sinne eines Full Service-Providers geht es eben darum, die Verantwortung nicht auf den Kunden abzuwälzen oder es dem Sales zu überlassen, dass der Kunde schon die richtigen Dinge zusammen bestellen wird (Wie war das mit dem Fachpersonal?).

Ganz im Sinne eines Full Service-Providers geht es eben darum, die Verantwortung nicht auf den Kunden abzuwälzen oder es dem Sales zu überlassen, dass der Kunde schon die richtigen Dinge zusammen bestellen wird (Wie war das mit dem Fachpersonal?).

Auch die vielgepriesene KI lebt von solchen strukturierten Daten. Ein Large Language Model liefert deutlich bessere Ergebnisse und weniger Halluzinationen, wenn ein sogenannter Wissensgraph, den wir durch solche Verknüpfungen aufbauen, unterstützt durch strukturierte Informationen, das Gerüst für Ergebnisse liefert. Oder so etwas wie die Leitplanken auf der Datenautobahn

So lassen sich dann auch intelligente Assistenz-Systeme entwickeln, die den Kunden bei seinem Einkauf wirklich unterstützen und nicht nur an den vermeintlich richtigen Mitarbeiter weiterleiten können.

– x –

Bleiben sie hungrig!

Ich hoffe, Sie haben Appetit bekommen. Der kleine Exkurs soll aufzeigen, dass Lösungen oft schon erfunden sind und nicht jahrelange Standardisierung benötigen. Das Beispiel der strukturierten Daten des Semantik Web zeigt, dass eine Umsetzung sehr trivial und schnell machbar ist. Mit einem vergleichsweise hohen Mehrwert. – In diesem Sinne, lassen Sie sich den Spaß an der Digitalisierung nicht verderben. Auch eine Salami-Taktik führt zum Ergebnis!

Und es ist wie beim Essen: Eine Lösung, wenn sie auch noch so lecker aussieht, kann schwer verdaulich sein, oder sogar nachhaltig ungesund. (Bild 3) Wenn Sie sich damit beschäftigen, bekommen Sie ein Gefühl dafür. Leider gibt es noch keinen Nutri-Score (Bild 4) für guten Digital-Content

Tim Hoffeller, ekkodale

Links:

Werner Zorn, Süddeutsche Zeitung: https://www.sueddeutsche. de/projekte/artikel/politik/digitalisierung-der-fatale-fehlerder-deutschen-e742471/?reduced=true (Leider hinter einer Paywall)

Schema.org, Rezepte: https://schema.org/Recipe BIMeta: https://www.bimeta.de

Nutri-score: https://de.wikipedia.org/wiki/Nutri-Score

www.ekkodale.com

AVA, Kosten, Controlling BIM Modellbasierte Projektsteuerung im Hoch- und Tiefbau

Mit RIB iTWO sind Sie digital perfekt aufgestellt

• Alle wichtigen fachlichen Funktionen und Schnittstellen

• Eine 360° Übersicht über alle Projekte im Data-Warehouse

• Flexibles Datenmanagement - optional in der Cloud

• Klassische 2D/3D und integrierte BIM 5D Arbeitsweise

Vereinbaren Sie eine persönliche Produktdemo zu RIB iTWO:

RIB Software GmbH

Stuttgart, Germany

www.rib-software.com

Diskurs

So funktioniert BIM im Betrieb: Data Driven Asset and Property Management Über BIM im Betrieb und die Frage, warum es bisher nicht funktioniert

In der Welt des Baubetriebs herrscht unbestreitbar eine gewisse Ineffizienz im täglichen Tun. Informationen sind nicht zum richtigen Zeitpunkt verfügbar, obwohl sie theoretisch im System vorhanden sind. So wird unverhältnismäßig viel Zeit darauf verwendet, diese Informationen zu suchen. Nach den Erfahrungswerten von VRAME werden im Schnitt 10 % der Arbeitszeit auf die Informationssuche verschwendet. Das ist nicht nur frustrierend, sondern auch eine Ressourcenverschwendung.

– i –

Warum funktioniert es nicht und was ist die Lösung?

Längst aber werden viele Stimmen laut, der erhoffte Heilsbringer BIM liefere im Betrieb nicht die erhofften Benefits.

Doch BIM ist hier die „neue“, vielversprechende Lösung. Durch die Implementierung von BIM sollen wir im Betrieb eine verbesserte Effizienz, Kosteneinsparungen, bessere Entscheidungsfindung und viele weitere Vorteile erlangen – ein unschlagbarer Deal … Längst aber werden viele Stimmen laut, der erhoffte Heilsbringer BIM liefere im Betrieb nicht die erhofften Benefits. Warum funktioniert es nicht wie erwartet und versprochen? Aus Erfahrungen der VRAME-Mitarbeiter bei verschiedenen Kunden liegt dies häufig an folgenden Punkten:

– Das aus der Bauphase übergebene Modell entspricht nicht den Anforderungen des Baubetriebs. Das führt zu internen Ressourcenaufwänden und Beauftragungen von Dritten zur Erhebung, Überarbeitung und Archivierung der Daten für den Betrieb.

– Die Bereitstellung des Modells erfolgt zu spät, obwohl es bereits zu Beginn der Betriebsphase benötigt wird. Aufgaben wie die Ausschreibung von FM-Leistungen werden dadurch verzögert.

– Es herrschen Interoperabilität und Medienbrüche vor. Die Implementierung einer technischen Umgebung für die lebenszyklusübergreifende Durchführung von BIM ist äußerst komplex. Es benötigt funktionierende Schnittstellen, um einen reibungslosen Datenaustausch zwischen den Bestands- und Neusystemen zu ermöglichen. Vorherrschend sind manipulierbare Exporte (bspw. Excel), die dann manuell wieder in Zielsystemen importiert werden. Falls es Schnittstellen gibt, sind diese häufig nicht nachverfolgbar, inkonsistent und erlauben keine durchgängige Aktualisierung der Daten.

– Es dominiert mangelhaftes Daten- und Informationsmanagement. Es werden nicht die Informationen abgefragt, die für ein technisches, infrastrukturelles und rechtsicheres Betreiben erforderlich sind. Aufgrund der inoperablen Schnittstellen werden unzuverlässige, veraltete

und unvollständige Daten weiterverarbeitet und führen zu verfälschten Auswertungsergebnissen.

– Standards wie ein durchgängiger Informationsschlüssel zur lebenszyklusübergreifenden Identifikation von Bauteilen und der dazugehörigen Anlagen werden mangelhaft umgesetzt. Dadurch sind die benötigten Grundlagen nicht gegeben.

– Die neue Arbeitsweise wird nicht umgesetzt, da eine Ablehnung ihr gegenüber im Team aufgrund von fehlendem Changemanagement überwiegt.

– Es liegt eine mangelnde Qualifikation im Team aufgrund einer unzureichenden Qualifizierung der Mitarbeitenden vor.

Aber was ist dann die Lösung? Wie kann ich dann die vorherrschenden Herausforderungen im Betrieb lösen?

Ganz einfach: Es benötigt nur ein effektives Daten- und Informationsmanagement und dazu braucht es eine operable technische Umgebung im Kontext einer, auf das Unternehmen abgestimmten, BIM2FMStrategie und professionelles Changemanagement im Zuge des Transformationsprozesses. In diesem Artikel möchten die Autoren Ihnen Einblick geben, wie das genau aussehen kann.

– ii –

Basics

Es benötigt nur ein effektives Daten- und Informationsmanagement und dazu braucht es eine operable technische Umgebung im Kontext einer, auf das Unternehmen abgestimmten, BIM2FM-Strategie und professionelles Changemanagement im Zuge des Transformationsprozesses.

Jetzt aber erst mal die Basics – AIM & ISO 19650. Unsere Grundlage für BIM im Betrieb ist die DIN-Norm ISO 19650 „Bauwerksinformations-modellierung (BIM) – Informationsmanagement mit BIM“. In diesem internationalen Standard wird die Verwaltung von Bauwerksinformationen über den gesamten Lebenszyklus geregelt und es wird dabei die Anforderungen an die Organisation, die Informationserstellung und -verwaltung sowie den Informationsaustausch festgelegt. Für das Informationsmanagement sind mit allen Stakeholdern abgestimmte Informationsanforderungen zu erstellen. Im Mittelpunkt dieser kollaborativen Aufgabe steht die Projekt- und Betriebssicht. (Bild 1)

In diesem Artikel konzentrieren die Autoren sich auf die Perspektive des Betriebs, bei der die Asset Information Requirements (AIR) eine zentrale Rolle spielen. Die AIR sind vertragliche Vereinbarungen, die die Informationsanforderungen zwischen der beauftragenden Organisation und dem Betrieb definieren. Sie legen detaillierte Anforde-

Diskurs 14 Ernst & Sohn Special 2024 · Bauprodukte digital

erkannt, klare Ziele und davon abgeleitet konkrete Maßnahmen formuliert. Es muss das Bewusstsein vorhanden sein, was durch die Methode BIM erreichbar ist und welche Erwartungen erfüllt werden können. Hier ist ausschlaggebend, dass die festgelegten Ziele realistisch und transparent sind, damit diese auch erreicht werden können und für alle Beteiligte nachvollziehbar sind.

Es muss das Bewusstsein vorhanden sein, was durch die Methode BIM erreichbar ist und welche Erwartungen erfüllt werden können. Hier ist ausschlaggebend, dass die festgelegten Ziele realistisch und transparent sind, damit diese auch erreicht werden können und für alle Beteiligte nachvollziehbar sind.

Im Zuge der Erstellung einer BIM2FM-Strategie sind sich eine Vielzahl an Fragen zu stellen. Z. B.: Wird ein AIM eingesetzt? Von wem wird es erstellt? Wie wird es geteilt? Wie wird es gepflegt?

rungen für Informationslieferungen fest, die erforderlich sind, um die internen Organizational Information Requirements (OIR) zu erfüllen. Die OIR beschreiben die strategischen Ziele, darunter kaufmännische, technische und prozessuale Aspekte, sowie die damit verbundenen Anforderungen für das unternehmensweite und projektübergreifende FM.

Während des Projekts werden Lieferobjekte erstellt, die sogenannten Project Information Models (PIM). Diese Modelle werden in den verschiedenen Projektphasen erstellt und schließlich bei Projektabschluss im as-built Zustand dokumentiert. Aus den PIMs wird im Laufe des Projekts ein Asset Information Model (AIM) entwickelt, das auch als Betreibermodell bezeichnet wird. Das AIM repräsentiert ein präzises digitales Abbild des Ist-Zustands der Liegenschaften. Es basiert auf parametrisierten und attribuierten Objekten, die Informationen über Objekteigenschaften und -beziehungen enthalten.

Zusätzlich zu den grafischen und alphanumerischen Daten enthält das AIM verlinkte Dokumente wie beispielsweise Wartungsverträge im PDF-Format und umfangreiche Metadaten. Das AIM dient als digitales Archiv für Informationen über eine Liegenschaft und fungiert als zentrale Bezugsquelle für geprüfte und freigegebene Daten, die während der Betriebsphase genutzt werden. Diese Daten werden aus dem AIM abgerufen, um die Verwaltung, den Betrieb und die Instandhaltung der Liegenschaften zu unterstützen sowie Änderungen an den Gebäuden wie Erhaltung, Verbesserung, Umbauten und Rückbauten zu ermöglichen. Ein gut strukturiertes und kontinuierliches AIM ist ein Schlüsselbaustein für BIM im Betrieb, da es den Anforderungen des Betriebs entspricht.

– iii –

Ohne eine Strategie geht nichts

Eine BIM2FM-Strategie legt den Fahrplan für die Nutzung von Daten und Informationen während des gesamten Lebenszyklus eines Bauwerks fest. Nur mit einer auf die Bedürfnisse der jeweiligen Organisation abgestimmten und nachhaltigen Strategie kann der volle Nutzen und Mehrwert aus den Gebäuden und Anlagen gezogen werden.

Im Zuge der Erstellung einer Strategie werden die individuellen Herausforderungen in einer Bestandsanalyse

Um solche Fragen zu beantworten, sind mehrere Themenfelder in einer Strategie zu betrachten:

– Use Cases: In den Use Cases wird festgelegt im welchen Fällen BIM angewendet werden soll und was hierzu gefordert wird (z. B. Flächenmanagement, Energiecontrolling).

– Technik: In einer Bestandsanalyse ist die Ausgangslage zu erfassen und darauf basierend eine BIM-fähige technische Umgebung aufzuzeigen, um die festgelegten Ziele und Use-Cases umzusetzen. Schnittstellen sind genau zu betrachten, damit ein lückenloser Informations- und Datenaustausch gewährleistet wird.

– Workflows: Die Zusammenarbeit der Kollaborationspartner ist in Bezug auf die Rollen und den Einsatz der technischen Umgebung zu definieren.

– Standards: Es sind vertraglich bindende Standards wie die AIR und unternehmensinterne Standards wir die OIR zu formulieren. Für die Umsetzung sind Standards wie die Modellierungsrichtlinie (Wie muss das AIM modelliert werden?), Parameterliste (Welche alphanumerische Informationen sind für die Bauteile zu hinterlegen?) und ein Identifikationsschlüssel (Wie kann ich die bauteilspezifischen Anlagen dem Bauteil zu ordnen?) zu entwickeln.

– Mensch: Die Rollen und deren Leistungsbilder sind zu definieren. Auch der Weg der Qualifizierung inkl. Schulungskonzept ist zu berücksichtigen, damit die Rollen einsatzfähig sind.

– Changemanagement: Es ist ein Vorgehen zu entwickeln, um alle Beteiligten auf allen Ebenen in den Transformationsprozess einzubeziehen und die Kommunikation sicherzustellen.

– iv –

So funktioniert BIM im Betrieb: Data Driven Asset and Property Management

(Bild 2) Ein sogenanntes Data Driven Asset and Property Management ermöglicht eine effektive Verwaltung von Daten und Informationen, die die Welten der Bau- und Betriebsphase zusammenbringt. Hierfür wird ein Data Broker implementiert, der alle relevanten Daten und Informationen für den Betrieb zentral sammelt, abbildet und

Diskurs 15 Ernst & Sohn Special 2024 · Bauprodukte digital
Bild 1. Datenmodell der ISO 19650, eigene Darstellung in Anlehnung an die DIN ISO 19650

verarbeiten kann und somit eine operable technische Umgebung bietet. Ein zentraler Bestandteil ist ein an die Anforderungen angepasstes und pflegbares AIM, das frühzeitig in den Data Broker integriert wird. Somit werden automatisiert alle qualitätsgeprüften Daten und Informationen über den Data Broker bereitgestellt. Verschiedene Workflows werden vom Data Broker koordiniert und es ist jederzeit möglich, aktuelle Daten abzurufen. Informationen werden im aktuellen Zustand generiert und über eine direkte Schnittstelle in Zielsysteme (z. B. EAM) übertragen. Die erzeugten Daten können auch für Analysen, wie beispielsweise Nachhaltigkeitsauswertungen, im Data Broker verwendet oder für Umbauprojekte weitergegeben werden.

Der Aufbau eines Data Broker streckt sich über mehrere Ebenen, um die Daten und Informationen zu generieren, bereitzustellen und zu nutzen. Die Grundlage des Data Broker sind einheitliche Datenmodelle und -strukturen, wobei überregional sowie internationale Standards beachtet werden müssen, um aus verschiedenen Quellen die Daten zu ziehen. Ausschlaggebend ist, dass hier Bestandsysteme als Datenquellen fungieren, da aus Gründen der Datenintegrität, historisch bedingt oder aufgrund eines unverhältnismäßigen wirtschaftlichen Aufwands ein Erhalt der Bestandsysteme als Datensilo erforderlich ist. Im nächsten Schritt werden die aus den Datenquellen extrahierten Daten in den Data Broker integriert und in sogenannte Data Assets strukturiert, die für Datennutzung und Bereitstellung an aufbauende Systeme (oder Drittsysteme, externe Partner und Benutzer) dienen. Aus den bereitgestellten Daten kann der Data Broker Informationen generieren und diese gezielt den vorgesehenen Use Cases zur Verfügung stellen. Das bedeutet, dass der Data Broker beispielsweise alle relevanten Informationen, die er aus Systemen wie SAP (u. a. Raumbelegung) und AIM (u.a. Raum-

fläche) bezieht, für den Use Case „Raumbuch“ aushändigt. Darüber hinaus können Analysen der generierten Daten und Informationen durchgeführt werden. Die Daten und Informationen können qualitätsgesichert, ausgewertet, mit Hilfe des AIM oder in Form von Dashboards visualisiert und anschließend Berichte erstellt werden. Auf diese Weise werden die vorhandenen Daten im Rahmen des Data Driven Asset and Property Management genutzt und für alle Beteiligten zugänglich gemacht. Weiterführend können ebenso Simulationen (Energetische Simulationen, Layoutund Nutzungssimulationen, baurechtliche Prüfung von Umbaumaßnahmen) auf Basis der generierten Daten durchgeführt werden und gezielt Nutzern und den Use Cases bereitgestellt werden. (Bild 3)

Diskurs 16 Ernst & Sohn Special 2024 · Bauprodukte digital
Bild 2. Dashboard eines beispielhaften Data Brokers, eigene Darstellung Bild 3. Systematischer Aufbau des Data Broker, eigene Darstellung (Abb.: VRAME)

„Meine Kollegen machen da sicher nicht mit!“ Kommunikation – Schlüssel im Transformationsprozess

Eine abwehrende Haltung gegenüber Veränderung ist natürlich. Der Mensch hält von Natur aus gerne an seinen gewohnten Abläufen und Strukturen fest. Bei dem Gewohnten kennen wir uns aus und wissen, was wir zu erwarten haben. Da wundert es nicht, wenn die Implementierung einer neuen technischen Umgebung eine Abwehrhaltung der Kollegen hervorruft. Doch das bedeutet nicht, dass wir alle Mitarbeitenden mit einer Anti-Einstellung in unseren Transformationsprozess verloren haben. Durch eine begleitende Kommunikation, aktive Beteiligung und abgestimmte Change-Maßnahmen können wir diese gezielt ansprechen und einen Wandel erreichen.

Eine Person muss die folgenden Zustände durchlaufen, um den Veränderungsprozess erfolgreich mitzugehen: Awareness (Bewusstsein), Desire (Wunsch), Knowledge (Wissen), Ability (Fähigkeit) und Reinforcement (Verstärkung).

Das ADKAR-Modell, von Jeff Hiatt entwickelt, bietet einen Leitfaden für die Schritte des individuellen Wandels. Eine Person muss die folgenden Zustände durchlaufen, um den Veränderungsprozess erfolgreich mitzugehen: Awareness (Bewusstsein), Desire (Wunsch), Knowledge (Wissen), Ability (Fähigkeit) und Reinforcement (Verstärkung). Das bedeutet, zuerst muss den Mitarbeitenden bewusst sein, dass eine Änderung bevorsteht und verstehen, warum sie notwendig ist. Nach dem die Person informiert ist, muss sie den Wunsch haben, diese Veränderung mitzutragen und zu unterstützen. Eine intrinsische Motivation ist das Ziel. Verschiedene Anreizmodelle können hier natürlich unterstützen, um den Wunsch nach Veränderung zu erreichen. Sobald dieser verinnerlicht ist, müssen die Mitarbeitenden das notwendige Wissen erwerben, um sie effektiv umzusetzen. Jedoch reicht Wissen allein nicht aus. Der Mitarbeitende muss auch die Fähigkeit haben, das Gelernte wirklich in die Praxis umzusetzen. Dies kann gelingen, indem etwa im Rahmen eines Piloten die neuen Rollen, Strukturen und Prozesse angewendet werden. Nach der Implementierung der Veränderung ist es wichtig sicherzustellen, dass die Neuerung nachhaltig ist. Durch das Aufzeigen von Erfolgen, kontinuierliches Sammeln von Feedback (um auf mögliche Problemstellungen schnell und adäquat zu reagieren) und weiterführende Qualifizierungsmöglichkeiten, kann sichergestellt werden, dass die Veränderung beibehalten wird.

Dieser Veränderungsprozess ermöglicht es, Veränderungen auch auf persönlicher Ebene effektiv zu bewältigen. Die Maßnahmen zur Kommunikation sind vielfältig und kreativ zu gestalten, um auf verschiedenen Kanälen möglichst viele Betroffene zu erreichen.

Der Faktor Mensch wird oftmals vernachlässigt, obwohl er der entscheidende Faktor für nachhaltigen Erfolg ist. Die beste operable technische Umgebung bringt nichts, wenn sie nicht akzeptiert und angewandt wird.

Der Faktor Mensch wird oftmals vernachlässigt, obwohl er der entscheidende Faktor für nachhaltigen Erfolg ist. Die beste operable technische Umgebung bringt nichts, wenn sie nicht akzeptiert und angewandt wird.

Building Information

Modeling – Grundlagen, Standards, Praxis

Digitales Denken im Ganzen

 breite Übersicht zum Building Information Modeling

 Einführung in alle relevanten Normen

 praktischer Start aus Sicht wichtiger Gewerke

Durchgängiges Informations-Management beim Planen, Bauen und Betreiben ist der Grundgedanke von BIM und Digitalisierung. Mit technischen Grundlagen, aktuellen Normen und einem praktischen Einstieg aus unterschiedlichen Perspektiven gelingt allen Akteuren das digitale Miteinander.

BESTELLEN

2022 · 584 Seiten · 161 Abbildungen · 15 Tabellen

Softcover

ISBN 978-3-433-03256-5 € 89*

eBundle (Softcover + ePDF)

ISBN 978-3-433-03302-9 € 115*

+49 (0)30 470 31–236 marketing@ernst-und-sohn.de www.ernst-und-sohn.de/3256

* Der €-Preis gilt ausschließlich für Deutschland. Inkl. MwSt.

Diskurs 17 Ernst & Sohn Special 2024 · Bauprodukte digital – v –
Ulrich Hartmann Building Information Modeling –Grundlagen, Standards und Praxis Digitales Denken im Ganzen Ulrich Hartmann Building Information Modeling Grundlagen, Standards und Praxis
1412.indd 17 27.10.2022 12:25:56

Aber das kostet doch nur Geld – lohnt sich BIM im Betrieb?

Durch ein korrekt implementiertes und angewendetes BIM im Betrieb werden mehrere Einsparungspotentiale wie Zeitersparnisse, verbesserte Prozesse, erhöhte Qualität in der Planung und Umsetzung, Verbesserung in der Gebäudeperformance und Energieeffizienz, Steigerung des Geschäftswerts erzielt.

Auch wenn angesichts der Investitionskosten bei der Einführung von BIM der Wunsch vieler Unternehmen nach konkreten Zahlen verständlich ist, ist es gleichzeitig kaum möglich, diese vorherzusagen. Dies hat unterschiedliche Gründe:

– Der Erfolg von BIM hängt maßgeblich davon ab, ob es wie oben beschrieben implementiert und umgesetzt wird. Dies wird den Erfolg beeinflussen.

– BIM wirkt präventiv. Durch BIM werden beispielsweise Planungsfehler mit möglicherweise gravierenden Folgen frühzeitig erkannt und erhebliche Kosten für die Korrektur dieser Fehler entstehen gar nicht.

– Genaue Zahlen ließen sich nur durch ein identisches Vergleichsprojekt ohne BIM generieren.

– Jedes Projekt ist unterschiedlich und bringt entsprechend unterschiedliches Optimierungspotenzial durch BIM mit sich.

Dennoch gibt es Prognosen und Erfahrungswerte, die den Mehrwert von BIM belegen: Teichholz zeigt 2013 in seinen Berechnungen auf, dass die potenziellen jährlichen Gesamteinsparungen für ein durchschnittliches Projekt bei 3,93 % liegen und sich in nur 1,56 Jahren amortisieren1 Eine aktuellere Studie aus dem Jahr 2018 von PwC kann bei Beispielprojekten eine Gesamteinsparung von 1,5–3,0 % nachweisen2

1 Teicholz P. (Hrsg.) (2013) BIM for Facility Managers. John Wiley & Sons, Inc., Hoboken, New Jersey, 2013

2 NN (2018) BIM Level 2 Benefits Measurement, Application of PwC’s BIM Level 2 Benefits Measurement Methodology https://www.cdbb.cam.ac.uk/news/2018JuneBIMBenefits (abgerufen am 26.09.2023)

Nach eigenen Erfahrungswerten aus Kundenprojekten wurden durch die Verwendung eines Data Brokers und eines AIMs erhebliche Einsparungspotentiale deutlich. Im Verglich zur klassischen Herangehensweise können durch die Nutzung eines Data Brokers in Verbindung mit einem AIM Einsparungen nachgewiesen werden um

– 90 % bei dem Aufwand für die Erstellung von Raumlisten

– 90 % bei dem Aufwand für die Erstellung von Anlagenverzeichnissen, Zusammenstellen von Dokumenten und Abstimmungen

– 85 % bei den Kosten für Bestandsaufnahmen

– 70 % bei dem Aufwand bei Vor-Ort-Begehungen

In Zeiten der Krise wie der steigenden Inflation, den enormen Bau- und Finanzierungskosten und den Klimawandel, ist ein Handeln erforderlich, um die Wirtschaftlichkeit sicherzustellen. Es ist offensichtlich, dass es nicht weitergehen kann wie bisher. Nur wer in die Digitalisierung und Innovation investiert, ist für derzeitige Herausforderungen gerüstet und kann einen langfristigen Erfolg erzielen.

– vii –

Fazit

Ja, BIM ist ein unschlagbarer Deal – wenn es richtig gemacht wird:

– Es benötigt ein effektives Daten- und Informationsmanagement. Dazu braucht es eine operable technische Umgebung in Form eines Data Driven Asset and Property Management und eine auf das Unternehmen abgestimmte BIM2FM-Strategie

– Der Transformationsprozess muss durch gezieltes Changemanagement begleitet werden.

Annika Reiter, Strategic BIM Consultant; Dr. Dennis Geesen, CEO vrame digital gmbh; Jens Bredehorn, CEO vrame consult gmbh

www.vrame.com

Diskurs 18 Ernst & Sohn Special 2024 · Bauprodukte digital – vi –

openDBL – ein digitales Logbuch für transparentes Gebäudemanagement

Die Digitalisierung des Planens, Bauens und Betreibens ist ein wichtiger und richtiger Schritt zur Schaffung effizienter und nachhaltiger Gebäude. Die EU ist hierbei Vorreiter und zeigt durch Initiativen wie dem Green Deal, der Renovation Wave oder dem Circular Economy Action Plan, wie hoch das Thema angesiedelt ist. Ein wichtiger Baustein dabei ist die Nutzung zentraler, digitaler Ablageorte für sämtliche Gebäudedaten, die über alle Lebensphasen hinweg Zugriff auf die Informationen bieten – ein digitales Gebäudelogbuch. Hier setzt das Projekt „openDBL“ an. Als Teil des Horizon Programms der EU wird im Projekt „openDBL“ ein auf offenen Standards basiertes, digitales Gebäudelogbuch entwickelt und an verschiedenen Gebäuden getestet. Die beiden Projektpartner aus Deutschland –dormakaba und IABI, stellen hier ihre Ansätze vor.

Übergeordnetes Ziel von openDBL ist es, durch die Entwicklung eines standardisierten digitalen Bautagebuchs, die Effizienz im Bauwesen zu steigern und gleichzeitig zu einer Reduzierung von Zeit und Ressourcen beizutragen. Hierbei sollen insbesondere die Abläufe innerhalb der Planungs-, Ausführungs-, und Betriebsprozesse optimiert werden. Um die Akzeptanz und Anwendung bei den unterschiedlichen Zielgruppen zu steigern, liegt ein besonderes Augenmerk zudem auf der Benutzerfreundlichkeit des Systems. (Bild 1)

Das Digitale Gebäudelogbuch

Ein digitales Gebäudelogbuch (Digital Building Logbook, DBL) ist im Wesentlichen eine elektronische Datenbank oder Plattform, die alle relevanten Informationen über ein Gebäude oder ein Bauprojekt enthält. Diese Informationen können verschiedene Dinge umfassen, wie z. B. Baupläne, technische Spezifikationen, Wartungsprotokolle, Inspektionsberichte, Energieverbrauchsdaten und vieles mehr.

In einem DBL werden alle relevanten Daten über ein Gebäude an einem zentralen Ort gespeichert und organisiert. Es wird dadurch für alle Beteiligten einfacher, auf diese Informationen zuzugreifen und sie zu verwalten, sowohl während der Bauphase als auch während des gesamten Lebenszyklus des Bauwerkes.

Der Nutzen, den man aus einem DBL ziehen will, ist vielfältig. Zum einen kann es die Effizienz und Transparenz im Bauprozess erhöhen, indem es den Informationsaustausch zwischen verschiedenen Parteien erleichtert und sicherstellt, dass alle Beteiligten Zugriff auf die neuesten Informationen haben. Darüber hinaus kann ein DBL dazu beitragen, die Betriebskosten eines Gebäudes zu senken, indem es dabei hilft, Wartungsarbeiten zu planen und vorbeugende Maßnahmen zu ergreifen, um die Lebensdauer der Gebäudetechnik zu verlängern. Insgesamt soll ein DBL dazu beitragen, die Qualität, Nachhaltigkeit und Effizienz von Bau- und Immobilienprojekten zu verbessern.

– ii –

Das Projekt openDBL

Das EU-Projekt openDBL ist Teil der vielfältigen und ambitionierten Initiativen, die darauf abzielen, die Digitalisierung im Bauwesen voranzutreiben und zu optimieren.

Neben der dauerhaften Speicherung und Verwaltung der Daten steht insbesondere auch die Anwendung moderner Technologien zur Datenauswertung und Informationsverarbeitung im Fokus der Forschung. Ontologien, Linked-Data oder maschinelles Lernen und KI sind nur einige Beispiele für Technologien, die im Projekt kombiniert werden, um eine neue Sicht auf die Daten des Gebäudes zu erlangen und Informationen zu gewinnen, die bisher verborgen oder ungenutzt waren.

– iii –Die Umsetzung

Ontologien, Linked-Data oder maschinelles Lernen und KI sind nur einige Beispiele für Technologien, die im Projekt kombiniert werden, um eine neue Sicht auf die Daten des Gebäudes zu erlangen und Informationen zu gewinnen, die bisher verborgen oder ungenutzt waren.

Im Kern von openDBL steht eine zentrale Datenbank, die als zentrale Plattform für die Speicherung und Verwaltung aller Gebäudeinformationen dient. Dazu zählen neben statischen Informationen wie strukturellen Details und einem Wartungsprotokoll auch dynamische Daten aus dem Betrieb des Gebäudes wie beispielsweise Luftqualitätsdaten oder Bewegungsdaten der Gebäudenutzer. Als Schnittstelle zu externen Systemen kommen offene APIs (Application Programming Interface) zum Einsatz. Gerade die Nutzung von offenen Schnittstellen steigert die Verfügbarkeit und Nutzbarkeit von Daten.

Die openDBL Plattform erlaubt es allen Stakeholdern, auf wichtige Informationen zuzugreifen und diese in Echtzeit zu aktualisieren. Neben den reinen technischen Zielen, erhebt openDBL auch den Anspruch auf

– Prozessvereinfachung: Durch die Zentralisierung von Daten an einem einheitlichen Zugangspunkt sollen Prozesse entlang der Lieferkette optimiert werden.

– Nutzerfreundlichkeit: Das System soll intuitiv gestaltet werden, um eine weite Verbreitung und Nutzung zu gewährleisten.

– Wirtschaftlichkeit: Mit einem Katalog an maßgeschneiderten Services und einer attraktiven Preisgestaltung, soll die zukünftige wirtschaftliche Lebensfähigkeit des Systems gesichert werden.

Diskurs 19 Ernst & Sohn Special 2024 · Bauprodukte digital
– i –

Zusätzlich zu diesen primären Zielen verfolgt das Projekt die Integration von Nachhaltigkeitsprinzipien und die Förderung von grünen Technologien im Bausektor.

openDBL setzt auf eine vollständige digitale Prozesskette zur Erfassung, Speicherung und Auswertung der Daten.

openDBL setzt auf eine vollständige digitale Prozesskette zur Erfassung, Speicherung und Auswertung der Daten. Es kommt beispielsweise Laser-Scanning zur Erfassung von bestehenden Gebäuden zum Einsatz oder es werden AI-Systeme zur automatisierten Erkennung von Merkmalen in 2D-Grundrissen verwendet. Die Daten werden dann als ifc-Modell abgelegt. IoT-Sensordaten werden als eigene Datenstruktur modelliert und mit den Elementen des Gebäudes verknüpft (Linked-Data Ansatz). Dazu werden entsprechende Ontologien genutzt bzw. neu entwickelt und untereinander verbunden (Ontologie Alignment)

Ein weiterer wichtiger Aspekt des Projekts ist die Durchführung von Pilotversuchen in verschiedenen europäischen Städten, wie Ruvo di Puglia in Italien, Kifissia in Griechenland und Mislata in Spanien. Diese Versuche sollen nicht nur die Vorteile des openDBL-Systems demonstrieren, sondern auch standardisierte Ansätze vorantreiben und das Potenzial von openDBL im Bereich der Gebäudebewirtschaftung aufzeigen.

– iv –Konsortium

Das Konsortium hinter openDBL vereint 13 Partner aus verschiedenen europäischen Ländern, darunter Deutschland, Griechenland, Italien, Lettland, Polen, Rumänien und Spanien. Diese Partner repräsentieren eine breite Palette von Disziplinen, die für die erfolgreiche Implementierung des Projekts notwendig sind, einschließlich Softwareentwicklung, Architektur und Systemintegration.

Aus Deutschland ist das IABI e. V. (Institute of Applied Building Informatics) aus München sowie die dormakaba Deutschland GmbH am Projekt beteiligt. Das IABI hat im Projekt seinen Schwerpunkt auf der Entwicklung semantischer Datenmodellierung und deren Auswertung.

Die Beiträge von dormakaba sind in erster Linie neue Konzepte zur Datenerfassung sowie die Bereitstellung von Produkten und Know-how für Türsysteme. Antrieb für eine Beteiligung am Projekt openDBL ist für den Hersteller der Wandel der Industrie in Richtung digitaler Systemlösungen und deren Integration in Plattformen sowie die zunehmende Digitalisierung des Bauwesens.

IABI

Das Engagement von IABI im Projekt konzentriert sich auf die innovative Entwicklung eines KI-basierten Werk-

Diskurs 20 Ernst & Sohn Special 2024 · Bauprodukte digital
Bild 1. Übersicht über die verschiedenen Beteiligten, Gebäudephasen und die Daten bzw. Informationen für das Projekt openDBL

zeugs, das darauf ausgerichtet ist, die Zuordnung und Klassifizierung von Informationen innerhalb von BIM-Datenmodellen, Katalogen und Klassifikationssystemen zu optimieren. Diese Systeme decken ein breites Spektrum semantischer Bereiche ab und sind entscheidend für die effiziente Handhabung und Verarbeitung von Gebäudedaten.

Das Hauptziel des IABI innerhalb von openDBL ist es, durch die Anwendung fortschrittlicher KI-Technologien, wie maschinelles Lernen und neuronale Netze, eine Verbindung zwischen den verschiedenen existierenden Klassifikationssystemen und Bauteilen eines Gebäudemodells herzustellen. Diese Technologien ermöglichen es, komplexe Datenstrukturen zu analysieren, semantische Zusammenhänge zu erkennen und die Daten so zu anzureichern, dass sie maschinenlesbar und -interpretierbar werden.

Ein besonderer Fokus liegt dabei auf der Entwicklung eines dynamischen Zuordnungsdienstes, der nicht nur die Interoperabilität zwischen unterschiedlichen Systemen verbessert, sondern auch die Basis für eine effiziente und präzise Datenverarbeitung und -analyse im Rahmen des digitalen Gebäudemanagements bildet.

Ein besonderer Fokus liegt dabei auf der Entwicklung eines dynamischen Zuordnungsdienstes, der nicht nur die Interoperabilität zwischen unterschiedlichen Systemen verbessert, sondern auch die Basis für eine effiziente und präzise Datenverarbeitung und -analyse im Rahmen des digitalen Gebäudemanagements bildet.

Ein weiteres wesentliches Ziel ist die Entwicklung einer benutzerfreundlichen Oberfläche, die es den Anwendern ermöglicht, auf diese innovativen Klassifizierungsund Zuordnungstools zuzugreifen. Damit streben die Beteiligten an, die Arbeit mit BIM-Datenmodellen erheblich

zu vereinfachen und die Genauigkeit der Datenpflege und -nutzung zu erhöhen. Dies soll insbesondere durch die Implementierung eines Services erreicht werden, der eine nahtlose Integration in die bestehende Architektur von openDBL ermöglicht und die Datenverwaltung innerhalb des digitalen Logbuchs unterstützt. (Bild 2)

In Zusammenarbeit mit dormakaba wurde für das openDBL-Projekt eine Türontologie entwickelt, die in einer Graphdatenbank implementiert ist. Diese strukturiert Informationen mittels Tripeln, die sich aus Subjekt, Prädikat und Objekt zusammensetzen, und bietet so eine differenzierte Abbildung von Zusammenhängen. Darüber hinaus war die Aufbereitung von semantischen Daten ein zentraler Aspekt der Forschung. Man hat dabei auf die Harmonisierung verschiedener Datenquellen geachtet, um eine konsistente Datengrundlage zu gewährleisten. Die Datenintegration umfasst eine Bandbreite von Formaten und Schnittstellen, einschließlich REST-APIs, relationalen und nicht-relationalen Datenbanksystemen, SQL-Abfragen und EXCEL-Tabellen. Diese methodische Konsolidierung ermöglicht eine homogene Datenlandschaft, die essenziell für die effiziente Anwendung und Analyse innerhalb des Projekts ist.

Diese Innovativen Methoden fördern die digitale Transformation im Bauwesen. Das IABI arbeitet konsequent an einer verbesserten Zugänglichkeit und Nutzbarkeit von Daten, um die Effizienz im Gebäudemanagement zu steigern und somit die Effizienz der Nachhaltigkeit von Bauprojekten zu fördern. Die Arbeit der Beteiligten im openDBL-Projekt betont dabei die Bedeutung einer engen Zusammenarbeit und eines gemeinsamen Engagements aller Projektpartner, um die Herausforderungen der digitalen Zukunft erfolgreich zu meistern und die Branche nachhaltig zu revolutionieren.

Diskurs 21 Ernst & Sohn Special 2024 · Bauprodukte digital
Bild 2. Graphische Darstellung der dormakaba Türontologie, die die Verbindungen in einer Graphdatenbank zwischen Produktmerkmalen aufzeigt.

dormakaba

Als Industriepartner im Konsortium ist dormakaba im Bereich der innovativen Lösungen für die Datenerfassung aktiv an der Entwicklung des Systems beteiligt. Es wird eine Lösung entwickelt, die eine einfache und schnelle Erfassung von Türen auf Basis von bestehenden 2D-Plänen ermöglicht. Das Ziel ist es, die Daten über die Türen schnell für den weiteren Prozess zur Verfügung zu stellen. Für die Umsetzung im Projekt wurde zusammen mit dem italienischen Konsortialpartner CETMA ein Konzept und Lösungsansatz entwickelt. In der Partnerschaft lieferte der Hersteller das Know-how zum Thema Spezifikationen von Türsystemen und stellte die notwendigen Trainingsund Testdaten bereit. CETMA entwickelte und trainierte das Neuronale Netzwerk und entwickelte einen openDBL Webservice für die Nutzung der Ergebnisse innerhalb des Projektes.

– v –

Motivation

Ohne Zweifel ist die Transformation des Bauwesens in Richtung einer digitalen und kollaborativen Industrie ein Prozess, der bereits begonnen hat und durch Technologie wie KI noch deutlich an Schwung gewinnen wird.

Ohne Zweifel ist die Transformation des Bauwesens in Richtung einer digitalen und kollaborativen Industrie ein Prozess, der bereits begonnen hat und durch Technologie wie KI noch deutlich an Schwung gewinnen wird. Dazu zählt auch die Vernetzung von Informationen, das Denken in fachübergreifenden Ökosystemen und ein optimiertes Datenmanagement. Diese Punkte sind die Motivation für dormakaba, sich als Konsortialpartner am Projekt zu beteiligen.

Gerade der Betrieb eines Gebäude wird durch die zentrale Zusammenführung von Informationen aus unterschiedlichen Quellen profitieren. Werden dann fortschrittliche Algorithmen und Methoden der Datenauswertung wie KI, Ontologien oder maschinelles Lernen auf die Daten angewendet, können Betriebsabläufe und das Management der verbauten Produkten verbessert werden. Gerade bei komplexen Dreh-, Schiebe- und Karusselltüren wirkt sich dies positiv im Sinne einer längeren Lebensdauer und eines geringen Energieverbrauches aus. Auch können durch intelligente Kontroll- und Steuerkonzepte Energieverluste durch z. B. offene Türen reduziert werden. Das freut den Nutzer, die Umwelt und den Geldbeutel.

Für dormakaba ist die Beteiligung am openDBL ein wichtiger Bestandteil der im Konzern eingeschlagenen digitalen Strategie. Die eigenen Konzepte zu validieren, mit der gesetzlichen Roadmap und Vision abzustimmen und letztendlich auch zu erweitern und anzupassen, sind die Hauptmotivationsgründe für das Unternehmen.

– vi –Anwendungsfall

Als Anwendungsfall wurde das Thema „Bestandserfassung“ gewählt. Hierbei werden innovative Services für die Erfassung der im Bestand verbauten Türen und deren Aus-

stattung entwickelt. Ziel ist es nicht, per 3D-Laserscan eine Punktwolke zu erzeugen und daraus ein Modell zu generieren. Es soll vielmehr eine einfache, nutzfreundliche und effiziente Methode erarbeitet werden, wie aus 2D-Grundrissen grundlegende Informationen zu den Türen in einem Gebäude automatisiert abgeleitet werden können.

Die Fokussierung auf 2D-Plänen hat den Vorteil einer einfachen Zugänglichkeit, hohen Verfügbarkeit und Integration mit bereits bestehenden Tools und digitalen Diensten. Zu den meisten Bestandsgebäuden existieren lediglich Grundrisse. Kann man die dort enthaltenen Informationen automatische extrahieren und nutzen, ist dies eine ideale Ausgangssituation für eine Bemusterung vor Ort. Per mobiler App kann dann später im Gebäude der Datensatz ergänzt und etwaige Unstimmigkeiten beseitigt werden.

Ziel ist es nicht, per 3D-Laserscan eine Punktwolke zu erzeugen und daraus ein Modell zu generieren. Es soll vielmehr eine einfache, nutzfreundliche und effiziente Methode erarbeitet werden, wie aus 2DGrundrissen grundlegende Informationen zu den Türen in einem Gebäude automatisiert abgeleitet werden können.

Gerade für die Renovierung von Gebäuden ist dies eine sehr sinnvolle Anwendung. Will man existierende Produkte durch neue, digitale und effizientere Lösungen austauschen, muss man zunächst den Bestand erfassen und die Ist-Situation für die Fachplanung erfassen. Dabei kann eine automatisierte Vorarbeit gute Dienste leisten.

– vii –

Türerkennung im Grundriss

Einfach formuliert bedeutet dies, dass man in einem Grundriss automatisch ermittelt, wo sich Türen befinden, diese Markiert und die Informationen maschinenlesbar dem openDBL System zur Verfügung stellt.

Aus technischer Sicht besteht die Kernherausforderung darin, in den digitalisierten Grundrissen (pdf oder jpg) automatisch Türsituationen zuverlässig zu erkennen. Obwohl die Darstellung von Türen in einem Grundriss allgemeinen Prinzipien folgt, ist aufgrund von lokalen Eigenheiten in der Darstellung (z. B. je nach verwendetem Softwaresystem), schlechter Planqualität oder der Art der Tür (Schiebe, Schwenk oder Karusselltür) die Ermittlung keine einfache Aufgabe. Gerade bei Daten mit hoher Variabilität und starken Unterschieden in der Darstellung bieten sich hier Methoden aus dem Bereich des maschinellen Lernens und der Bilderkennung zur Lösung des Problems an. Diese Techniken sind in der Lage auch wage und unscharfe Eingabedaten mit ausreichender Genauigkeit zu klassifizieren. (Bild 3)

Das Lösungskonzept für die Umsetzung beinhaltet daher die Entwicklung eines angepassten Datensatzes, die Auswahl und Feinabstimmung eines geeigneten Modells für die Objekterkennung und die Bewertung der Leistung anhand spezifischer Metriken. Im Anschluss wird das entwickelte System als Service in das openDBL System eingebunden und steht allen Projektpartnern für die Nutzung zur Verfügung.

Für die Experten: Als Lösung wurde die „Faster RCNN Architektur“ mit „ResNet-50“ und einem „Feature

Diskurs 22 Ernst & Sohn Special 2024 · Bauprodukte digital

Bild 3. Beispiele für Grundrisse, die für das Training des Modells genutzt wurden. Nicht nur die Art der Darstellung ist unterschiedlich, auch die Türen sind unterschiedlich abgebildet. In dieser Variabilität liegt die Herausforderung für eine zuverlässige Erkennung der Türen.

Diskurs 23 Ernst & Sohn Special 2024 · Bauprodukte digital

Pyramid Network (FPN)“ im Rahmen des „Detectron2Frameworks“ eingesetzt. Diese Architektur zeichnet sich insbesondere durch ihre Fähigkeit aus, Objekte verschiedener Größen erkennen zu können. Das Training des Netzwerkes erfolgte mittels eines Datensatz von vorqualifizierten Türsituationen. Für die Genauigkeit bzw. die Leistungsfähigkeit eines Neuronalen Netzwerkes ist die Auswahl geeigneter Setup-Parameter („Hyperparameter“) ein wichtiger Baustein. Durch das Feintuning der Parameter kann die Leistung des Netzwerkes verbessert, und eine optimale Anpassung an die gestellte Aufgabe erreicht werden.

Im ersten Schritt umfasste die Umsetzung die Erstellung eines maßgeschneiderten Datensatzes mit mehreren hundert Türsituationen, die Aufteilung in Trainings-, Validierungs- und Testbilder und die Konfiguration des Modells gemäß den ausgewählten Hyperparametern. Die Leistungsbewertung des Modells erfolgte anhand von speziellen Kriterien wie Total Loss, Klassifikationsverlust, Bounding Box, Regression Loss und weiteren spezifischen Metriken für die Objekterkennung.

Gerade das Training des Neuronalen Netzes ist ein kritischer Schritt im Gesamtprozess. Je mehr Trainingsdaten zur Verfügung stehen und je besser diese Klassifiziert wurden, desto besser auch das zu erwartende Gesamtergebnis. Das Neuronale Netz soll möglichst jede Tür erkennen, ohne dabei auch Strukturen im Grundriss zu finden, die lediglich einer Tür ähnlichsehen.

Gerade das Training des Neuronalen Netzes ist ein kritischer Schritt im Gesamtprozess. Je mehr Trainingsdaten zur Verfügung stehen und je besser diese Klassifiziert wurden, desto besser auch das zu erwartende Gesamtergebnis. Das Neuronale Netz soll möglichst jede Tür erkennen, ohne dabei auch Strukturen im Grundriss zu finden, die lediglich einer Tür ähnlichsehen.

– viii –Ergebnisse und Ausblick

Die ersten Testergebnisse zeigen eine gute, vielversprechende Fähigkeit des trainierten Modells zur Erkennung von Türen. Zwar liegt die durchschnittliche Genauigkeit AP (Average Precision) mit ca. 30 % nicht sehr hoch, dies

Bild 4. Automatisch durch das trainierte Modell identifizierte Türsituationen in einem Grundriss (Abb.: 1–3 IABI; 4 dormakaba)

ist aber auf die Ungenauigkeit der Positionsbestimmung der gefundenen Türen zurückzuführen. Die Erkennung einer Tür an sich ist bereits praxistauglich und lässt auf eine nutzbare Anwendung in der Praxis als Teil von openDBL hoffen. (Bild 4)

Natürlich gibt es Raum für weitere Verbesserungen des Netzwerkes. Beispielsweise durch die weitere Anreicherung des Datensatzes mit zusätzlichen Trainingsdaten, eine präzisere Klassendefinition oder einer systematischen Optimierung der verwendeten Hyperparameter.

– ix –

Fazit

Zusammenfassend lässt sich sagen, dass das Projekt openDBL eine wegweisende Initiative darstellt, die darauf abzielt, durch die Digitalisierung von Gebäudeinformationen und die Bereitstellung einer zentralen Plattform für das Datenmanagement die Art und Weise, wie Gebäude gewartet werden, revolutionieren. Durch die Reduzierung von Kosten, die Einsparung von Zeit und die Förderung der Nachhaltigkeit hat openDBL das Potenzial, ein GameChanger in der Gebäudeverwaltungsbranche zu werden.

Die Beteiligungen des IABI sowie von dormakaba stellen dabei einen wichtigen Baustein für den Erfolg des Projektes dar. Nicht nur für sich allein gesehen, sondern auch in der Zusammenarbeit untereinander. Nur durch die enge und abgestimmte Vorgehensweise mit einer gemeinsamen Vision konnten die bisherigen Ergebnisse erzielt werden. Auch für den Betrieb der ersten Pilotanwendungen ist eine sehr gute Basis gelegt.

Bleibt zu hoffen, dass sich Projekte wie openDBL bzw. der grundlegende Gedanke eines digitalen, durchgängigen und umfassenden Informationsmanagements am Gebäude durchsetzen und die digitale Transformation des Bauwesen nachhaltig positiv beeinflussen.

Dr. Kai Oberste-Ufer, dormakaba; Jakob Martin, IABI

www.iabi.eu/de; www.dormakaba.com

Diskurs 24 Ernst & Sohn Special 2024 · Bauprodukte digital
Ist „Umsatz“ eine aussagekräftige Kennzahl zur Unternehmenssteuerung?

Unternehmenswachstum ist wohl für viele das wichtigste strategische Ziel. Callcenter-Dienstleister, Verkaufstrainer, CRM-Anbieter, … so viele Anbieter sind auf dem Markt, die Unternehmen bei diesem Ziel unterstützen wollen. Für viele ist der Umsatz die wichtigste Kennzahl zur Messung des Wachstums. Im Folgenden wird aufgezeigt, warum diese Kennzahl ungeeignet ist.

Nur Bares ist Wahres Umsatz ist nicht gleich Zahlungseingang. Nur mit dem tatsächlich eingenommenen Geld kann das Unternehmen seine offenen Rechnungen autonom begleichen.

Liquiditätsmanagement ist keine Frage der Unternehmensgröße oder der Fähigkeit, sich gute Software und qualifiziertes Personal leisten zu können. Vielmehr korreliert es signifikant damit, ob das Top-Management „Liquidität“ als zentrales Element der Unternehmensstrategie betrachtet.

Deutlich wird dies beim Vergleich des durchschnittlichen Geldumschlags in (±)Tagen von Unternehmen, die miteinander im Wettbewerb stehen: Er wird wie folgt berechnet: (+) ∅ Lagerdauer für Roh-, Hilfs- und Betriebsstoffe; Halbfertig- und Fertigerzeugnisse (+) ∅ Zahlungsziel Kunde (–) ∅ Zahlungsziel Lieferant.

Ein Beispiel: Im Geschäftsjahr 2022 betrug der durchschnittliche Geldumschlag* bei Daimler (+)129 Tage, die vorfinanziert werden mussten. Der von Stellantis lag dagegen bei minus 33 Tagen! Die Kundenzahlungen standen dem Konzern im Durchschnitt mehr als einen Monat zur Verfügung, bevor die Lieferantenrechnungen beglichen wurden.*

Unternehmen, die ihre Liquidität vernachlässigen, haben in der Regel zu wenig Geld auf der hohen Kante. Sie leben und wachsen auf Pump und sind damit auf Gedeih und Verderb dem Wohlwollen der Fremdkapitalgeber ausgeliefert. Eine typische Situation für viele deutsche Unternehmen.

Profitabilität ist das Endergebnis abteilungsübergreifender Zusammenarbeit

Auch wenn mit dem Geldeingang sicher gerechnet werden kann, lebt ein Unternehmen streng genommen nicht vom

* Quelle: gurufocus.com

Geldeingang, sondern davon, dass der Auftrag unter dem Strich die erhoffte Gewinnmarge erwirtschaftet. Voraussetzung dafür ist, dass in der Produkt-/Preispolitik ein realistischer Arbeitsaufwand über Abteilungsgrenzen hinweg berücksichtigt wurde.

Und damit sind wir beim Kern der Sache: „Wirtschaftlichkeit“ ist eine abteilungsübergreifende Herausforderung. Klassische Führungskennzahlen lenken dagegen die Aufmerksamkeit der Mitarbeiter auf die Abteilungsziele, die typischerweise in der Berichtslinie definiert sind. Inwieweit die Abteilungsziele die Unternehmensmission unterstützen, bleibt offen.

Eine solche Diskrepanz entsteht z. B., wenn der Vertrieb einen Großauftrag akquiriert, ohne sichergestellt zu haben, dass die für eine termingerechte Auftragsabwicklung erforderlichen Material- und Personalkapazitäten zur Verfügung stehen. Die mögliche Folge ist, dass die Termine nicht eingehalten werden können und/oder der Kunde Einbußen bei der versprochenen Leistungsgüte hinnehmen muss, obwohl „zufriedene Kunden“ als Teil der Unternehmensmission deklariert sind.

Sollten Personalkosten als Fixkosten behandelt werden?

Hinzu kommt ein weiteres Phänomen: Löhne und Gehälter werden nicht selten als „Pauschalbetrag“ empfunden, der unabhängig vom Umfang der in Anspruch genommenen Leistung gezahlt wird. Daher spiegeln die in die Produkt-/Preispolitik einfließenden gebuchten Personalkosten nicht die wirtschaftliche Realität des Unternehmens wider.

In Wirklichkeit kauft das Unternehmen ein Zeitkontingent, z. B. 40 Stunden pro Woche, zu einem festen Stundensatz ein. Das ist ein großer Unterschied, denn dabei stellen sich die folgenden Fragen: „Wirtschaftlichkeit“ ist eine abteilungsübergreifende Herausforderung. Klassische Führungskennzahlen lenken dagegen die Aufmerksamkeit der Mitarbeiter auf die Abteilungsziele, die typischerweise in der Berichtslinie definiert sind.

Diskurs – Unternehmenssteuerung 25 Ernst & Sohn Special 2024 · Bauprodukte digital
GASTKOMMENTAR

– Wie effektiv und effizient nutzt das Unternehmen die ihm zur Verfügung gestellte Zeit?

– Was macht der Mitarbeiter in/mit dieser Zeit?

Wenn ein externer Dienstleister 40 Stunden für eine Aufgabe benötigt, die eigentlich nur vier Stunden dauern sollte, fällt die Diskrepanz spätestens bei seiner Rechnungsstellung auf. Wenn hingegen ein Mitarbeiter über mehrere Wochen hinweg 40 Stunden für die gleiche Aufgabe benötigt, fällt dies unter Umständen niemandem auf.

Unternehmer tun daher gut daran, einen realistischen Arbeitsaufwand, der mit realistischen Marktpreisen bewertet wird, in die Festlegung ihrer Produkt-/Preispolitik einzubeziehen.

Fazit

Liquidität ist Chefsache: Cashflow-Management sollte ein zentrales Element der Unternehmensstrategie und damit der Produkt-/Preispolitik sein.

Silodenken überwinden und die eingekaufte Zeit effektiv einsetzen: Für eine zielorientierte Mitarbeiterführung über Abteilungsgrenzen hinweg werden Kennzahlen benötigt, die den Output eines Mitarbeiters mit der Unter-

nehmensmission in Beziehung setzen. Die Richtigkeit der hierfür getroffenen Annahmen sollte in regelmäßigen Abständen gemeinsam überprüft werden.

Effizienz des Zeiteinsatzes: Vorgesetzter und Mitarbeiter sollten einen Konsens darüber anstreben, wie viel Leistung bei gegebener Leistungsgüte in einem bestimmten Zeitraum realistischerweise erwartet werden kann –und dabei genügend Zeitpuffer für Weiterbildung, Kommunikation und Unvorhergesehenes einplanen.

Liquidität ist Chefsache: Cashflow-Management sollte ein zentrales Element der Unternehmensstrategie und damit der Produkt-/Preispolitik sein.

Kultur finanzieller Eigenverantwortung: Von Vorteil ist dabei eine Unternehmenskultur, in der die Mitarbeiter ein Grundverständnis für die finanziellen Aspekte des Unternehmens haben und sich ihrer Rolle für die Produktivität und Rentabilität des Unternehmens bewusst sind.

www.gbcc.eu

Konrad Bergmeister, Frank Fingerloos, Johann-Dietrich Wörner (Hrsg.)

Beton-Kalender 2024

Schwerpunkte: Hochbau; Digitales Planen und Baurobotik

- Entwurf, Bemessung und Konstruktion von Hochhäusern aus Stahlbeton in Deutschland

- 3D-Architektur- und Tragwerksplanung, digitales Monitoring von Bauwerken, Anwendung von KI-Methoden in den frühen Phasen des Gebäudeentwurfs

- Bauautomatisierung und Robotik im Betonbau

Der Beton-Kalender 2024 ist solide Arbeitsgrundlage und ein topaktuelles, verlässliches Nachschlagewerk für die Planung und Ausführung von Betonbauwerken. Band 1 widmet sich dem Entwurf, Bemessung und Konstruktion von Hochbauten aus Stahlbeton nach den aktuellen Regelwerken. Band 2 thematisiert das Digitale Planen und die Baurobotik. Auch

BESTELLEN +49 (0)30 470 31-236

marketing@ernst-und-sohn.de www.ernst-und-sohn.de/3406

2023 · 892 Seiten · 696 Abbildungen · 140 Tabellen

Hardcover

ISBN 978-3-433-03406-4 € 184 *

Fortsetzungspreis € 164 *

eBundle (Print + ePDF)

ISBN 978-3-433-03407-1 € 234 *

Fortsetzungspreis eBundle € 194 *

Diskurs – Unternehmenssteuerung 26 Ernst & Sohn Special 2024 · Bauprodukte digital
gilt
* Der €-Preis
ausschließlich für Deutschland. Inkl. MwSt.
als eBundle 1499.indd 13 11.03.2024 10:08:02

Zusammenarbeit vor Digitalisierung

Warum wir uns weniger um die Digitalisierung kümmern sollten, wenn wir mehr von ihr profitieren wollen

Ein Beispiel soll hier zur Veranschaulichung dienen. In einem Eingabeprozess steuert ein Akteur die Daten eines Bauplanes bei. Ein anderer Akteur gibt Datenblätter und Betriebsanleitungen einzelner Bauteile ein. Ein wie auch immer ausgestalteter Datenverarbeitungsprozess verknüpft nun den Bauplan mit den Datenblättern und Betriebsanleitungen derart, dass der Bauplan nunmehr nicht bloß die Art und Weise anzeigt, wie zu bauen ist, sondern darüber hinaus als Zugriffswerkzeug auf weitere hilfreiche Informationen zu konkreten Bauteilen dienen kann. Im weiteren Verlauf des Projektes wird es der Bauplan einem dritten Akteur auf diese Weise ermöglichen, ohne Weiteres für ihn kritische Informationen aufzufinden, von denen er zunächst gar nicht ahnte, dass sie vorhanden sind.

Zusammenarbeit lässt sich nicht digitalisieren

Die Potenziale digitaler Technologien werden in der Baubranche derzeit nicht ansatzweise effektiv und effizient ausgeschöpft. Dieser Befund ist nichts Neues. Die Tatsache, dass dieser Befund nichts Neues ist, sollte uns jedoch zu denken geben. Wie kann es sein, dass wir Technologien nicht sinnvoll in Projektabläufe integrieren können, die offensichtlich die Produktivität und Profitabilität nachhaltig steigern? Und wie kann es sein, dass wir uns diese Frage seit Jahrzehnten stellen, ohne einer Antwort näher zu kommen, die uns technologieoffene und nachhaltig wirksame Vorgehensweisen aufzeigt?

Die Gründe hierfür sind mannigfaltig und sicherlich spielen die rasanten Entwicklungen des digital-technologischen Sektors eine wichtige Rolle. Ich bin jedoch der Auffassung, dass wir uns von diesen Entwicklungen nicht ablenken lassen und eine neue, gewissermaßen bodenständige Perspektive auf die Situation einnehmen sollten, um Erkenntnisse zu gewinnen, die uns voranbringen.

Digitale Kooperationsmittel

Den Perspektivenwechsel wollen wir damit einleiten, dass wir einen Schritt zurück machen und Abstand nehmen von den Debatten, die ins digitale Detail gehen. Es soll uns nicht um Digitalisierungsprozesse, Programme, Applikationen und Datenmanagement-Theorie gehen. Vielmehr möchte ich mit Ihnen ganz allgemein darüber nachdenken, warum digitale Kooperationsmittel in der Regel nicht maximal effektiv und effizient in die Prozesse zur Ent- und Abwicklung von Bauvorhaben integriert werden.

Unter digitalen Kooperationsmitteln soll Folgendes verstanden werden: Es findet ein wechselseitiger Prozess der Eingabe von Daten unterschiedlicher Akteure mit einem gemeinsamen Bezug statt. Ein digitaler Algorithmus verarbeitet diese Daten. Das Ergebnis der Datenverarbeitung weist gegenüber den eingegebenen Daten neue Qualitäten und Funktionen auf.

Digitale Kooperationsmittel erleichtern und verbessern die Zusammenarbeit autonomer Akteure. Das mag für sich genommen keine besondere Erkenntnis sein. Entscheidend ist jedoch, dass wir ein Prinzip ableiten können: Wir können Prozesse digitalisieren, um Zusammenarbeit zu fördern. Die Zusammenarbeit selbst können wir jedoch nicht digitalisieren. Vielmehr muss Zusammenarbeit stets verabredet, organisiert und durch Menschen umgesetzt werden. Und weil wir diesem einfachen Prinzip zu wenig Aufmerksamkeit und Sorgfalt zukommen lassen, versäumen wir es, digitale Kooperationsmittel effektiv und effizient in die Arbeitsabläufe komplexer Bauvorhaben zu integrieren.

Die Zusammenarbeit selbst können wir nicht digitalisieren. Vielmehr muss Zusammenarbeit stets verabredet, organisiert und durch Menschen umgesetzt werden.

anzeigt, wie zu bauen sei, darüber hinaus aber als Zugriffswerkzeug auf weitere hilfreiche Informationen zu konkreten Bauteilen dienen kann.

Diskurs – Unternehmenssteuerung 27 Ernst & Sohn Special 2024 · Bauprodukte digital
Bild 1. Die Datenverarbeitung durch den Algorithmus weist gegenüber den eingegebenen Daten neue Qualitäten und Funktionen auf. Bild 2. Durch den Datenverarbeitungsprozess wird der Bauplan mit den Datenblättern und Betriebsanleitungen so verknüpft, dass er zwar noch die Art und Weise

Die vorangegangenen Ausführungen lassen sich zu einer Schlussfolgerung verdichten: Wer besser mit digitalen Kooperationsmitteln umgehen will, sollte sich weniger um die Mittel und mehr um die Kooperation kümmern.

Die Gestaltung von Zusammenarbeit

Fraglich ist nun, was zu tun ist. Zunächst einmal hilft es bereits, sich vertiefend mit der Gestaltung von Zusammenarbeit auseinanderzusetzen. Hierfür möchte ich Ihnen nachfolgend drei Gedankenansätze anbieten. Als erstes möchte ich auf den für die Gestaltung von Zusammenarbeit maßgeblichen Zeitraum eingehen. Sodann wollen wir einen näheren Blick auf die Strukturen werfen, welche Gegenstand der Gestaltung von Zusammenarbeit sind. Und schließlich wollen wir uns kurz mit dem Paradoxon auseinandersetzen, dass die Verabredung und Organisation von Zusammenarbeit bereits Zusammenarbeit voraussetzt.

Wann Zusammenarbeit gestaltet werden kann

Allerdings entwickeln Projekte gerade in ihren frühen Phasen eine Eigendynamik, die dazu führt, dass über vieles nachgedacht und gesprochen wird, nur nicht darüber, wie man Zusammenarbeit zielführend organisieren und belastbar vereinbaren kann.

Der Zeitraum, in dem Zusammenarbeit gestaltet werden kann, beginnt, sobald die Bauherrin oder der Bauherr ihre Projektidee an Dritte kommuniziert, um anschlussfähige Tatsachen zu schaffen. So z. B., wenn erste Sondierungsgespräche mit Institutionen geführt werden, die eventuell für die Finanzierung sorgen könnten oder wenn informelle Gespräche mit Architekten, Genehmigungsbehörden oder Maklern geführt werden. Es ließen sich noch zahlreiche weitere Beispiele bilden. Entscheidend ist jedoch nicht, einen bestimmten Anfangszeitpunkt glasklar zu definieren. Es kommt vielmehr darauf an, uns bewusst zu machen, dass die Gestaltung von Zusammenarbeit nicht erst mit konkreten Vertragsverhandlungen beginnt oder gar erst in der Vorbereitung des Kick-Off Meetings zum Projektstart. Das mag selbstverständlich scheinen, allerdings entwickeln Projekte gerade in ihren

frühen Phasen eine Eigendynamik, die dazu führt, dass über vieles nachgedacht und gesprochen wird, nur nicht darüber, wie man Zusammenarbeit zielführend organisieren und belastbar vereinbaren kann. Oftmals werden im Fortgang dieser Dynamik dann bereits unbewusst geschäftliche und juristische Tatsachen geschaffen, welche die Gestaltungsmöglichkeiten im weiteren Projektverlauf stark einschränken oder ggf. sogar die sichere Ursache für spätere Ablaufstörungen darstellen. Aus Sicht eines Bauherrn bzw. einer Bauherrin sollte demnach gelten, dass ein Nachdenken über das Projekt von der ersten Sekunde an das Team und die Zusammenarbeit einschließt. Ein zielführender Gedankengang sieht demnach etwa wie folgt aus: Idee, Grundstück, Kapital, Zusammenarbeit, Qualität, Termine, Kosten.

Die Strukturen von Zusammenarbeit

Die Gestaltung von Zusammenarbeit muss systemisch und ganzheitlich erfolgen. Das bedeutet, dass in Zusammenhängen, Wechselwirkungen und über einzelne Fachrichtungen hinaus gedacht werden muss, wenn man belastbare Strukturen schaffen will, welche die Akteure zu zielführendem und kooperativem Verhalten veranlassen. Die besten Strukturen von Zusammenarbeit sind über drei Dimensionen hinweg stimmig ausgestaltet, und zwar über die ideelle, über die produktive sowie über die geschäftlich-rechtliche Dimension.

Die ideelle Dimension betrifft primär das Wollen der Akteure und umfasst insbesondere Prinzipien, Werte und Standards.

Die produktive Dimension betrifft primär das Können der Akteure und umfasst technische, technologische und organisatorische Methoden, Prozesse und Ergebnisse.

Die geschäftlich-rechtliche Dimension betrifft primär das Dürfen der Akteure und umfasst die geschäftlichen wie rechtlichen Vorbedingungen, Abhängigkeiten und Rechtfertigungen.

Die Dimensionen beeinflussen sich wechselseitig. Zur Veranschaulichung gehen wir davon aus, dass wir es mit ei-

Diskurs – Unternehmenssteuerung 28 Ernst & Sohn Special 2024 · Bauprodukte digital
Bild 3. Zusammenarbeit lässt sich nicht digitalisieren.

Das „Mindset“ der ausführenden Beteiligten stimmt. Folglich können und wollen alle gemeinsam erfolgreich abliefern. Allerdings nützt dies wenig, wenn die geschäftlich-rechtlichen Strukturen die Umsetzung des BIM-Modells nicht ausreichend abbilden oder sie schlimmstenfalls gar konterkarieren.

nem Projekt zu tun haben, in dem ein anspruchsvolles BIM-Modell zum Einsatz gebracht werden soll. Gehen wir ferner davon aus, dass in der produktiven Dimension sämtliche Voraussetzungen für eine nahezu perfekte Bewältigung dieser Aufgabe gegeben sind. Die Prozesse sind mit Blick auf das Datenmanagement und den Bauablauf genau und zutreffend definiert und die involvierten Mitarbeiterinnen und Mitarbeiter bringen die erforderlichen Kompetenzen mit. Zudem sind in der ideellen Dimension entsprechend förderliche Bedingungen vorhanden. Das „Mindset“ der ausführenden Beteiligten stimmt. Folglich können und wollen alle gemeinsam erfolgreich abliefern. Allerdings nützt dies wenig, wenn die geschäftlich-rechtlichen Strukturen die Umsetzung des BIM-Modells nicht ausreichend abbilden oder sie schlimmstenfalls gar konterkarieren. Unklare vertragliche Regelungen zu Rechten und Pflichten, die fehlleitende Verknüpfung der Terminkoordination mit haftungsauslösenden Tatbeständen, unzureichende Vergütung von erheblichem Datenmanagementaufwand, ungeregelte Zuweisung von Verantwortung in Schnittstellenbereichen und so weiter. Diese Aspekte werden die Akteure schließlich dazu zwingen, ihre Aufmerksamkeit und Kraft nicht in die Umsetzung des BIM-Modells sondern auf die Sicherung ihrer Profite und die Vermeidung von (existenzbedrohender) Haftung zu fokussieren. Was wiederum in unserem Beispiel zu folgendem Ergebnis führt: Alle können und wollen, sie dürfen jedoch nicht. Und so wird das BIM-Modell schlussendlich nicht effektiv und effizient umgesetzt. Durch eine ganzheitliche und sorgfältige Ausgestaltung der Strukturen von Zusammenarbeit über alle drei Dimensionen hinweg, lässt sich derartiges verhindern.

Zusammenarbeit zu gestalten braucht Zusammenarbeit

In gewisser Weise ist es paradox: Für die verlässliche und zielführende Verabredung, Organisation und verbindliche Regelung von Zusammenarbeit müssen die beteiligten Akteure bereits zusammenarbeiten. In der Baubranche tritt dieses allgemeine Phänomen in besonderer Klarheit zu Tage, wenn man beispielsweise die Problemstellungen um die Definition des bepreisten Leistungssolls genauer betrachtet. Die Bauherrin oder der Bauherr ist in der Regel nicht dazu in der Lage, genau zu definieren, was gebaut werden soll. Dies gilt um so mehr für die frühesten Projekt-

phasen. Erst im Dialog mit den weiteren, zwingend zu involvierenden Akteuren wie den Fachplanern und den ausführenden Unternehmen ergibt sich nach und nach ein (hoffentlich) immer besser werdendes Verständnis davon, wie der herzustellende Leistungserfolg überhaupt beschaffen ist. Dieser Umstand ist die wohl bedeutsamste Ursache für Konfliktfälle rund um den Bauvertrag und begründet den starken Bedarf einer verstärken Integration von Planung und Ausführung.

Für die Einrichtung von komplexen Arbeitsprozessen mit einer Vielzahl an Schnittstellen gilt nichts anderes. Nehmen wir zur Veranschaulichung wieder das zum Einsatz zu bringende BIM-Modell. Die Bauherrin mag anfangs die Prozesse für sich genauestens und nahezu perfekt definiert haben. Das nützt jedoch wenig, wenn sie diese Prozesse nicht hinreichend mit denjenigen überprüft und abstimmt, die sie (mit ihr) umsetzen müssen. Diese Prüfung und Abstimmung muss bereits in der Gestaltung der Zusammenarbeit hinreichend erfolgen, so dass entsprechend förderliche und verlässliche Regelungen getroffen

Diskurs – Unternehmenssteuerung 29 Ernst & Sohn Special 2024 · Bauprodukte digital
Bild 4. Schweinehundtheorie: zynischer Unsinn

ders aufzuzeigen und damit den Hinweis darauf zu verbinden, dass Sie sich anstrengen und bereit sein müssen, Risiken einzugehen, wenn Sie ökonomisch vernünftig agieren möchten. Denn Vertrauen und Offenheit sowie Dialogbereitschaft und Wohlwollen sind nicht der „Default-Mode“ in dem die Organisation von großen Bauprojekten grundsätzlich erfolgt.

Die Bauherrin mag anfangs die Prozesse für sich genauestens und nahezu perfekt definiert haben. Das nützt jedoch wenig, wenn sie diese Prozesse nicht hinreichend mit denjenigen überprüft und abstimmt, die sie (mit ihr) umsetzen müssen. Diese Prüfung und Abstimmung muss bereits in der Gestaltung der Zusammenarbeit hinreichend erfolgen, so dass entsprechend förderliche und verlässliche Regelungen getroffen werden können.

werden können. Andernfalls läuft man Gefahr, Anforderungen zu stellen und ggf. rechtswirksam verpflichtend werden zu lassen, die nicht erfüllt werden können. Oder es werden gar Anreize gesetzt, die die Umsetzung des BIM-Modells ignorieren. Für eine zielführende Zusammenarbeit über einen nicht gerade kurzweiligen Projektverlauf ist dies mit Sicherheit nicht besonders förderlich.

Die Gestaltung und Regelung von Zusammenarbeit setzt Zusammenarbeit voraus. D. h., es braucht einen offenen, ehrlichen und zielorientierten Umgang miteinander, um zu Regelungen zu gelangen, welche die bestmögliche Zusammenarbeit und damit auch den größtmöglichen Projekterfolg wahrscheinlicher machen. Problematisch ist jedoch, dass dieser Umgang weder in unserer geschäftlichen Kultur noch in den Grundstrukturen unserer rechtlichen Rahmenbedingungen als Grundprinzip angelegt ist. Die Prinzipien, die den Geschäfts- sowie den Rechtsverkehr prägen, sind vielmehr ganz andere: Agiere strategisch –Maximiere Deine Position – Verrate nicht zu viel von Dir –Rechne damit, übervorteilt zu werden – Versuche Haftung zu vermeiden, auch wenn du die Verantwortung trägst … Keinesfalls möchte ich damit suggerieren, dass die Menschen, die im Geschäfts- und Rechtsverkehr agieren, aus persönlicher Überzeugung so denken und handeln. Die sogenannte „Schweinehundtheorie“ halte ich für zynischen Unsinn. Es geht mir darum, die Wirkungen der Grundstrukturen des geschäftlich-rechtlichen Miteinan-

D. h. jedoch nicht, dass man es nicht wagen sollte. Ein erster Schritt ist bereits dann getan, wenn man die Grundstrukturen und ihre Auswirkungen so wahrnimmt, wie sie sind und daran anknüpfend neue Wege für die bessere Gestaltung von Zusammenarbeit entwickelt. Das Projektabwicklungsmodell IPA und das niedrigschwelligere Projektkonzept FAC-1 sind beispielsweise solche neuen Wege, die immer mehr Marktteilnehmer gerne beschreiten würden. Diese Modelle und Konzepte wurden im Übrigen auch vor dem Hintergrund entwickelt, den Einsatz digitaler Kooperationsmittel wie etwa BIM zielführend organisieren und regeln zu können. Hier wird nicht nur mehr Sorgfalt und Zeit auf die Einrichtung des Projektes verwendet, sondern es werden auch entsprechende Projektkulturbedingungen und juristische Regelungswerke zur Grundlage der Zusammenarbeit gemacht.

Fazit

Digitale Kooperationsmittel werden in der Regel nicht maximal effektiv und effizient in die Prozesse zur Ent- und Abwicklung von Bauvorhaben integriert, weil nicht angemessen berücksichtigt wird, dass es entscheidend auf die Kooperation und nicht auf die digitalen Mittel ankommt. Für eine angemessene Berücksichtigung dieses Umstandes bedarf es einer näheren Auseinandersetzung mit der Gestaltung von Zusammenarbeit. Macht man sich bewusst, dass sich die Gestaltung von Zusammenarbeit nicht in der Beschreibung von Arbeitsprozessen oder der Herstellung von Vertragswerken erschöpft, sondern eine ganzheitliche, systemische Vorgehensweise erfordert, die im Idealfall mit den ersten Gedanken zur Projektrealisierung ihren Anfang nimmt, ist man dem besseren Einsatz von digitalen Prozessen zur effektiven und effizienten Erledigung der Bauaufgabe ein gutes Stück näher gekommen.

Digitale Kooperationsmittel werden in der Regel nicht maximal effektiv und effizient in die Prozesse zur Ent- und Abwicklung von Bauvorhaben integriert, weil nicht angemessen berücksichtigt wird, dass es entscheidend auf die Kooperation und nicht auf die digitalen Mittel ankommt.

Dr. jur. Jens Prömse, LL. M., Geschäftsführer 3D2L www.3D2L.de

Diskurs – Unternehmenssteuerung 30 Ernst & Sohn Special 2024 · Bauprodukte digital
Bild 5. Zusammenarbeit zu gestalten, braucht Zusammenarbeit! (Fotos: 1 Markus Spiske; 2 Thisis Engineering RAEng; 3 Nakaharu Line; 4 Kimberly Lake; 5 FORTYTWO –alle Unsplash)

Bauwerke virtuell erleben!

Wie der Einsatz von VR und AR im Bauwesen unterstützt und wo die Technologien noch an ihre Grenzen stoßen

Virtual und Augmented Reality sind inzwischen keine neuen Technologien mehr, trotzdem kommen diese im Bauwesen noch selten zum Einsatz. Ob eine Anwendung in Bauprojekten sinnvoll ist und wenn ja, wie eine solche aussehen kann und wo sie zum Einsatz kommt, zeigen wir in diesem Artikel auf. Mithilfe eines konkreten Praxisbeispiels werden potenzielle Anwendungen von VR und AR vorgestellt. Es wird verdeutlicht, welche entscheidende Rolle diese Technologien insbesondere im Bauwesen spielen können.

Im Gegensatz zur VR, bei der eine computererzeugte Welt virtuell betrachtet wird, bleibt bei der AR die reale Welt sichtbar. Dabei werden virtuelle Elemente wie 3D-Modelle in der realen Umgebung visualisiert – dieser Vorgang wird als Overlay bezeichnet. In unserem Alltag sind diese Technologien oftmals schon integriert, so werden beispielsweise Speisekarten mithilfe von Smartphones und entsprechender AR-Funktion direkt am Bildschirm übersetzt oder Computerspiele, bei denen man mit Hilfe entsprechender VR-Technologie in eine fremde Welt eintauchen kann, erlebbar gemacht.

– i –

Einsatz von AR

Für den Einsatz von AR ist eine Kombination von Bildaufnahme – für die reale Umgebung – und Bildwiedergabe –für die digitale Erweiterung – notwendig, um 3D-Objekte samt dazugehöriger Informationen in jeder realen Umgebung virtuell zum Leben zu erwecken. Entweder als ARBrille, die über Kameras die reale Welt aufnimmt, diese mit digitalen Inhalten anreichert und im Sichtfeld anzeigt, oder durch entsprechende Apps am Smartphone oder Tablet. Eine Alternative sind Smart Glasses oder Mixed-Reality-Brillen, die durch halbtransparente Bildschirme bzw. Brillengläser den direkten Blick auf die reale Umgebung mit der digitalen Anzeige vereinen, ein Beispiel hierfür ist die MR-Brille Hololens.

– ii –

Einsatz von VR

Für den Einsatz von VR entfällt der Bezug zur realen Umgebung. Hier wird lediglich eine VR-Brille benötigt, um die virtuelle, nicht reale Welt darzustellen. Dabei gibt es sowohl computergestützte als auch autarke Modelle. Alternativ dazu sind Headsets mit Smartphone-Halterungen verfügbar, die eine virtuelle Welt erlebbar machen. Eine weitere Option ist die sogenannte „Cave“, bei der mehrere Monitore einen virtuellen Raum formen und sich mehrere Personen gleichzeitig in der virtuellen Welt aufhalten.

Gute AR- und VR-Brillen sind bereits ab 350 € erhältlich. Spitzenmodelle kosten bis zu 8.000 € und zeichnen sich durch eine höhere Auflösung im Vergleich zu den kostengünstigeren Varianten aus. Abhängig von der Komplexität der virtuellen Inhalte erfordert der Einsatz von Datenbrillen einen leistungsstarken Laptop, um die teilweise umfangreichen Datenmengen zu verarbeiten. Zudem ist eine gute Datenverbindung zwischen dem Laptop und der Brille empfehlenswert.

– iii –

Eine weitere Option ist die sogenannte „Cave“, bei der mehrere Monitore einen virtuellen Raum formen und sich mehrere Personen gleichzeitig in der virtuellen Welt aufhalten.

Ein neuer BIM-Anwendungsfall

Als Datengrundlage für die Visualisierung mittels AR und VR dienen im Bauwesen BIM-Modelle. Das geplante Bauwerk lässt sich so erlebbar machen und realitätsgetreu abbilden. In der Praxis entsteht damit ein neuer BIM-Anwendungsfall, welcher je nach Bedarf sowohl in den frühen Phasen zur Unterstützung der Entscheidungsfindung als auch in den späteren Phasen zur Dokumentation des Baufortschritts zum Einsatz kommen kann.

– iv –

„Drei Schulen Bremerhaven“

In unserem Praxisbeispiel „Allianz Drei Schulen Bremerhaven“ handelt es sich um ein Neubauprojekt dreier moderner und innovativer Schulen in Bremerhaven nach dem Verfahren der Integrierten Projektabwicklung (IPA) in Kombination mit BIM. Dieses Pilotprojekt ist das erste

VR + AR 31 Ernst & Sohn Special 2024 · Bauprodukte digital
Spezialist für Aufmaß und GAEB-Software www.mwm.de

IPA-Projekt im Hochbau und somit auch vertraglich ein Leuchtturmprojekt in Deutschland. Seitens des Bauherrn „STÄWOG Gruppe“ (Wohnungsgesellschaft der Stadt Bremerhaven) in Kooperation mit der „BIS“ (Bremerhavener Gesellschaft für Investitionsförderung und Stadtentwicklung mbH) als Projektmanager wurde der Anwendungsfall VR-Visualisierung mittels Brille in der Planungsphase angefragt. Diesen Wunsch hat, DT BAU BIM Beratung in seiner Rolle als BIM-Berater und BIM-Manager aufgegriffen und umgesetzt. Die Wahl fiel auf die VR-Brille Metaquest 2. Um die umfangreichen Datenmengen eines in diesem Fall komplexen und weitläufigen Gebäudes effizient zu verarbeiten, wurde ein leistungsstarker Laptop von Alienware eingesetzt. Der Import des BIM-Modells in die VR-Umgebung erfolgte über die Schnittstelle des 3D-Visualisierungstools Twinmotion, welches sich durch eine einfache Bedienung auszeichnet. Die VR-Brille wurde fest mit dem Laptop verbunden, um eine gute Performance sicherzustellen.

– v –

Planungsfehler identifizieren, Entscheidungsfindungen unterstützen

Das aus Revit in die VR-Umgebung importierte BIM-Modell ist in der Darstellung recht einfach und entspricht den Ansichten aus dem Modellierprogramm. Wer hier auf eine perfekte Darstellung mit bearbeiteten Oberflächenstrukturen wie bei einer gerenderten Darstellung hofft, muss leider enttäuscht werden. Dies ist nur durch eine intensive Nachbereitung des BIM-Modells möglich. Spezifische Softwaretools, wie z. B. Enscape, bieten eine schnelle und einfache Bearbeitung des ursprünglichen Modells und stellen bereits beim Import des Modells eine erste gerenderte Version bereit. Dies kann besonders für Werbezwecke sinnvoll sein. In unserem Praxisbeispiel war dies jedoch nicht erforderlich: hier ging es vor allem darum, Planungsfehler zu identifizieren, die Entscheidungsfindung zu unterstützen und einen unmittelbaren Eindruck zum jetzigen Planungsstand zu vermitteln.

Hier ging es vor allem darum, Planungsfehler zu identifizieren, die Entscheidungsfindung zu unterstützen und einen unmittelbaren Eindruck zum jetzigen Planungsstand zu vermitteln.

Diese Art der Anwendung kann somit als zusätzliches Instrument zur Evaluierung der Planung dienen und in die Regelprüfprozesse wie die Kollisionsprüfung am Koordina-

tionsmodell eingeplant werden. Änderungen werden dabei sofort mit übernommen. (Bild 1)

– vi –Vorteile für Bauherren

Mit Hilfe von Joysticks, der VRBrille und eines zuvor festgelegten Bewegungsraums hatten die Projektbeteiligten nun die Möglichkeit, sich durch das erstellte Modell zu bewegen und das Bauwerk in einem „live“ Erlebnis zu erfahren. Dadurch kann ein realistischer Eindruck der Proportionen und Verhältnisse der einzelnen Gebäudeteile gewonnen werden: zu dicke Säulen wurden etwa redimensioniert, um dem Gesamteindruck des Raums zu entsprechen, Planungsfehler wie zu niedrige Geländer wurden frühzeitig erkannt. Gerade Bauherren profitieren von diesem frühzeitigen Erlebnis des finalen Bauwerks, da Pläne diesen Eindruck oft nicht wiedergeben können. (Bild 2)

Gerade Bauherren profitieren von diesem frühzeitigen Erlebnis des finalen Bauwerks, da Pläne diesen Eindruck oft nicht wiedergeben können.

Grundsätzlich stieß der Anwendungsfall im Projekt auf positive Resonanz und wird in den folgenden Projektphasen weiterverfolgt. Bei der praktischen Umsetzung traten jedoch einige Herausforderungen auf, die berücksichtigt werden müssen. Bei großen Projekten treten große Datenmengen auf, deren Verarbeitung selbst mit leistungsstarken Laptops oft schwer zu handhaben ist. Um eine ansprechende Qualität in der Visualisierung zu ermöglichen, ist daher eine aufwendige Bereinigung des BIMModells vor dem Import oder eine Aufbereitung des Modells mithilfe eines entsprechenden Softwaretools erforderlich.

– vii –Bidirektionale Anwendung und direktes Einpflegen von Kommentaren

Zudem verkompliziert die Notwendigkeit des externen Schnittstellentools den Datentransfer zwischen Modell und Visualisierung. Verbesserungen dafür erfordern Weiterentwicklungen der bestehenden Tools, etwa die direkte Anwendung aus einem klassischen BIMViewer in Datenräumen heraus. Dies ermöglicht einen niederschwelligen Zugang zu VR-Erlebnissen, eine einfachere Visualisierung großer Daten-

Bild 2.

VR + AR 32 Ernst & Sohn Special 2024 · Bauprodukte digital
VR­Erlebnis im Allianzprojekt „Drei Schulen Bremerhaven“ (Fotos: DT Bau) Bild 1. Digitale Regelprüfprozesse

mengen und auch eine bidirektionale Anwendung, bei der Kommentare direkt in das Modell eingepflegt werden können.

Um die Anwendung von VR im Projekt weiterzuentwickeln, wird als einer der nächsten Schritte die Installation einer Cave mit mindestens drei Bildschirmen auf der Baustelle in Betracht gezogen.

Um die Anwendung von VR im Projekt weiterzuentwickeln, wird als einer der nächsten Schritte die Installation einer Cave mit mindestens drei Bildschirmen auf der Baustelle in Betracht gezogen. In diesem Fall entfällt die Schnittstelle zu einer VR-Brille und dem erforderlichen Visualisierungstool, zudem kann die virtuelle Darstellung gemeinsam betrachtet und direkt besprochen werden.

– viii –

Zunehmende Bedeutung von AR besonders während Bauausführung

Im weiteren Verlauf des Projekts, insbesondere während der Bauausführung und im Betrieb, gewinnt die Anwendung von AR zunehmend an Bedeutung gegenüber VR, beispielsweise um die 3D-Planung einfach und schnell in den Rohbau zu setzten. Auch hier gibt es verschiedene Möglichkeiten der Anwendung. Im Bauwesen bedeutet AR die Überlagerung von BIM-Modellen mit hinterlegten Informationen auf realen Flächen. Hierfür wird ein BIMModell entweder durch entsprechende Software auf eine MR-Brille, beispielsweise Microsoft Hololens, überspielt und bildet dieses in der realen Umgebung ab, oder das Modell kann über eine App, beispielsweise TwinBIM, auf das Smartphone oder Tablet überspielt und dort mit der realen Umgebung überdeckt werden. Auch Plattformen wie beispielsweise HoloBuilder, die Fotomodelle von Baustellen erzeugen und 3D-Modelle integrieren, sind am Markt verfügbar.

Kommen Smartphones oder Tablets zum Einsatz, kann das Modell entweder im Innenraum durch Projektion eines Hologramms auf eine Fläche oder im Außenraum durch Projektion eines Hologramms auf das Baugelände erlebbar gemacht werden. Vorteil im Vergleich zur AR-Brille ist auch hier die Möglichkeit, dass mehrere Nutzer parallel an dem AR-Erlebnis teilhaben können, was sich besonders gut für Marketingzwecke eignet.

Durch Simulation des Modells in die reale Umgebung werden Auswirkungen auf die Umgebung sichtbar gemacht und Bauprozesse optimiert.

Durch Simulation des Modells in die reale Umgebung werden Auswirkungen auf die Umgebung sichtbar gemacht und Bauprozesse optimiert. In der Bauüberwachung ermöglicht dies den Abgleich der tatsächlich erbrachten Leistungen mit dem Modell sowie die Dokumentation des Baufortschritts. Auch ein Einsatz bei der Inspektion im Betrieb ist denkbar.

Aber auch in früheren Phasen kann AR als Kommunikationsmittel unterstützen, beispielsweise um verschiedene Formen des Gebäudes in einen realen Kontext zu setzten und ein einheitliches Verständnis bei den Projektbeteiligten zu fördern.

Zusammenfassend lässt sich sagen, dass eine sinnvolle Integration moderner Technologien zu einer nachhaltigen Verbesserung der Arbeitsprozesse führt. Der Einsatz von VR und AR ermöglicht allen Projektbeteiligten eine verbesserte Vorstellung des zukünftigen Bauwerks und unterstützt die Entscheidungsfindung in allen Phasen des Projekts. Das macht sich besonders positiv bei der Virtuellen Entwurfsfreigabe bemerkbar.

Das rasante Fortschreiten digitaler Technologien eröffnet dem Bauwesen ein beträchtliches Optimierungspotential, wobei VR und AR als Anwendungsfälle im Bauwesen in Zukunft an Bedeutung gewinnen werden. Es bleibt daher spannend zu beobachten, wie neue Entwicklungen, wie beispielsweise die VR-Brille Vision Pro von Apple, der Thematik einen weiteren Schub geben werden und welchen weiteren Mehrwert sie für zukünftige Projekte und Arbeitsprozesse bieten können.

Ayline Herre, DT BAU Consulting GmbH

www.dtbau.com

Holcim entwickelt passgenaue Lösungen für innovative und nachhaltige Bauprodukte in den Bereichen Hochbau, Tiefbau und Infrastruktur – verbunden mit einem klaren Blick für nachhaltiges und CO 2-reduziertes Bauen, Ressourceneffizienz und Stoff-Kreisläufe.

Unsere Mission: BESSER BAUEN MIT WENIGER.

holcim_sued

Holcim Süddeutschland GmbH

www.holcim-sued.de

VR + AR 33 Ernst & Sohn Special 2024 · Bauprodukte digital
– ix –Fazit
Foto: Arnim Kilgus
ZUKUNFT NACHHALTIG BAUEN

Transparenz und Effizienz im BIM-Prozess

AUSSCHREIBEN.DE CAD-Plugin optimiert Workflow

Welcher Planer kennt das nicht: Der Bauherr äußert bereits in der Entwurfsphase einen Produktwunsch. Oder er selbst hat einen Geistesblitz, welches Produkt beim gerade modellierten Element passend wäre. Doch wo können diese Ideen fixiert werden, bevor sie im komplexen Planungsprozess untergehen? Die ORCA Software GmbH, Betreiber der Plattform AUSSCHREIBEN. DE, hat hier eine smarte Lösung entwickelt …

Ein neues CAD-Plugin ermöglicht den einfachen Zugriff auf AUSSCHREIBEN.DE, die führende Plattform für Bauproduktdaten, und verortet die Informationen bereits in einer frühen Planungsphase genau dort, wo sie hingehören: direkt am Bauteil im 3D-Modell. Ob Vorplanung oder Entwurfsphase: Über das Plugin können Wunschprodukte in AUSSCHREIBEN.DE gefunden, bemustert und mit

Software und Planung 34 Ernst & Sohn Special 2024 · Bauprodukte digital
Bild 1. Dank der neuen Anbindung können Anwender bereits im Revit­Modell Bauteile mit Produkten aus AUSSCHREIBEN.DE vorbemustern. Bild 2. Einfach gewünschte Bauteile – in diesem Beispiel Ziegel – selektieren, Plugin öffnen und bequem aus AUSSCHREIBEN.DE bemustern.

einem Positionslink in das CAD-Modell übernommen werden. Der Link zu den bemusterten Produkten kann über alle Leistungs- und Planungsphasen hinweg in einer IFC-

Bild 3. Nach der Bemusterung kann die IFC­ oder GAEB­Datei mit den verknüpften AUSSCHREIBEN.DE Links exportiert werden, z. B. für ORCA AVA.

Datei mitgeführt und im Modell aktualisiert werden. Nach der Übergabe – per IFC- oder GAEB-Datei – in eine AVASoftware können einfach und effizient detaillierte Positionen mit allen Informationen aus AUSSCHREIBEN.DE sowie Mengen im Leistungsverzeichnis erstellt werden.

Innovationstreiber für die BIM-Methodik

Diese Vorgehensweise entspricht dem grundlegenden Prinzip der BIM-Methodik und ermöglicht einen flexiblen, durchgängigen, digitalen Workflow. – Ein Vorhaben, das die ORCA Software mit ihren Partnern engagiert vorantreibt. „Unser Ziel ist es, Planern und Architekten die Arbeit so einfach wie möglich zu machen und die Anwender im BIM-Prozess zu unterstützen“, so Manfred Scholz, Geschäftsführer der ORCA Software GmbH, Betreiber der Plattform AUSSCHREIBEN.DE. „Mit dem neuen CADPlugin haben wir einen weiteren strategischen Meilenstein erreicht.“

Frühe Bemusterung: Die Vorteile

Die Vorteile einer Bemusterung bereits im 3D-CAD-Modell liegen auf der Hand: Der Ausschreibungsprozess beginnt früher, gewinnt an Dynamik, wird transparenter und sicherer. Die Modellierung und Ausschreibung ist ohne Informationsbruch realisierbar. Zudem können Anwender dank der Bemusterung die Ausführung für ihre Bauprojekte wesentlich früher und präziser kalkulieren.

Ein weiteres Plus: Die Positions-Links zu den bemusterten Bauteilen sind schlank – das Dateivolumen verändert sich mit der Bemusterung nur geringfügig.

Und – last but not least: Die Produktinformationen sind stets auf dem aktuell hinterlegten Stand des Herstel-

Bild 4. Nach dem Import der IFC­ oder GAEB­Datei in die AVA­Software kann über den mitgelieferten AUSSCHREIBEN.DE Link die Position vervollständigt werden. (Abb.: ORCA Software)

Software und Planung 35 Ernst & Sohn Special 2024 · Bauprodukte digital

lerkatalogs. Vor dem IFC-Export wird der Link-Status für alle Positionen geprüft. Falls eine Position im Verlauf der Planungsphase zwischenzeitlich aus dem Herstellerkatalog entfernt wurde, erhält der Anwender einen Hinweis.

Wegweisende Technologie-Partnerschaften

Aktuell ist das AUSSCHREIBEN.DE CAD-Plugin für die CAD-Software Revit von Autodesk verfügbar. Weitere AUSSCHREIBEN.DE CAD-Plugins sind in naher Zukunft verfügbar.

Neben der neuen Technologie-Partnerschaft mit Autodesk eröffnet AUSSCHREIBEN.DE durch weitere Kooperationen allen Akteuren der Baubranche neue Potentiale. Dank Verknüpfungen mit Anbietern von BIM-Objektdatenbanken wie 3Dfindit von CADENAS, CADclick von KiM und neuerdings auch von BIMobject stehen auf dem Portal neben über 1 Mio. Ausschreibungstexten und 3,3 Mio. weiteren Produktinformationen auch zahlreiche CAD- und

BIM-Daten zum kostenfreien Download bereit. Darüber hinaus ist AUSSCHREIBEN.DE mittels API-Schnittstelle mit über 50 verschiedenen Bausoftware-Lösungen, vor allem aus den Bereichen AVA und Handwerk, optimal vernetzt.

Weitere Informationen und Download

Das AUSSCHREIBEN.DE CAD-Plugin für Revit steht im Autodesk Appstore kostenfrei zur Verfügung und kann ab Version Revit 2024 installiert werden. Der DownloadLink, ein kurzes Informationsvideo und die Aufzeichnung des Webinars „AUSSCHREIBEN.DE & REVIT – Bemusterung von REVIT-Modellen“ findet sich auf dieser Website: https://info.ausschreiben.de/revit

Christine Buschoff

www.orca-software.com; www.ausschreiben.de

BIM-Software Tekla Structures 2024 bietet

optimierte Benutzerfreundlichkeit

und vernetzte Arbeitsabläufe

Trimble (NASDAQ: TRMB) kündigte Mitte März die Veröffentlichung der neuesten Version seiner Tekla®-Software für ausführungsreifes BIM und Tragwerksplanung an. Tekla Structures 2024 zeichnet sich durch eine optimierte Benutzerfreundlichkeit aus, von der sowohl neue als auch erfahrene Anwender profitieren, und ermöglicht eine bessere Zusammenarbeit für durchgängige, vernetzte Arbeitsabläufe zwischen allen am Bauprojekt Beteiligten.

Eine reibungslose Kollaboration ist einer der entscheidenden Faktoren für erfolgreiches BIM. Tekla Structures 2024 ermöglicht jetzt eine bessere Kommunikation auf Basis von Industriestandards. Anwendern steht eine größere Auswahl an Industrieformaten für die Erstellung von Baudokumentationen und Modellinformationen zur Verfügung. Vernetzte Arbeitsabläufe bilden die Grundlage nachhaltiger Baustrategien, die eine Effizienzsteigerung, Optimie-

Bild 1. Tekla Structures 2024: Einfacher Arbeitsablauf für die Konstruktion von Stahlverbindungen mit der Tekla Tedds­Software, indem man die integrierte Verknüpfung in Tekla Structures 2024 verwendet.

Software und Planung 36 Ernst & Sohn Special 2024 · Bauprodukte digital

rung der Ressourcenverteilung, Minimierung von Abfällen und eine umfassende Instandhaltung über den gesamten Lebenszyklus eines Bauwerks zum Ziel haben. Ausgangspunkt dafür ist ein ausführungsreifes 3D-Modell.

„Die Verbesserung der Zusammenarbeit zwischen allen Projektbeteiligten ist der Schlüssel, um sicherzustellen, dass die Branche ihre Projekte termingerecht, im Rahmen des Budgets und des Zeitplans ausführen kann. Die Tekla-Version 2024 ist ein weiterer wichtiger Schritt, um alle Beteiligten näher zusammenzubringen“, sagt Michael Evans, Senior Product Director, Trimble Engineering and BIM Solutions.

Tekla Structures 2024

Bild 2. Bessere Kontrolle über die Eigenschaften von Modellobjekten in den IFC­Exporten – alle Eigenschaften an einem Ort

dellieren. Die Optimierungen beim automatischen Klonen von Fertigungszeichnungen schaffen erhebliche Vorteile bei der Erstellung von Zeichnungen für Stahl- und Fertigteilkonstruktionen.

Die Optimierungen beim automatischen Klonen von Fertigungszeichnungen schaffen erhebliche Vorteile bei der Erstellung von Zeichnungen für Stahl- und Fertigteilkonstruktionen.

Die Version 2024 von Tekla Structures bietet eine verbesserte Benutzerführung und ermöglicht Ingenieuren und Konstrukteuren, auch bei Projekten mit komplexen Geometrien, intuitiver und mit weniger Arbeitsschritten zu mo-

Artikeldatenbank

Ein zuverlässiges Änderungsmanagement ermöglicht Anwendern zudem effizientes Arbeiten, die schnelle Lieferung von Zeichnungen entsprechend den gesetzlichen Normen und eine fehlerfreie Übermittlung von Modelldaten.

Unterstützung offener Industriestandards

Die Unterstützung offener Industriestandards wie dem BIM Collaboration Format (BCF) ermöglicht Tekla-Anwendern eine modellbasierte Kommunikation zwischen allen Projektbeteiligten in allen Projektphasen. In den verbesserten und erweiterten IFC- Eigenschaftensätzen werden nun auch die buildingSMART-Eigenschaften unterstützt.

 mehr als 31.000 Artikel aus allen Ernst & Sohn Zeitschriften

 zurück bis 1961

 einfache Recherche

 PDF-Download

 alle Ausgaben der Ernst & Sohn Sonderhefte

www.ernst-und-sohn.de/ artikeldatenbank

Software und Planung 37 Ernst & Sohn Special 2024 · Bauprodukte digital
xxx
ZS_1_4_quer_181x63_Artikeldatenbank.indd 1 16.05.2022 17:53:19

Bild 3. Der verbesserte und integrierte Bridge Creator bietet einen umfassenden Modellierungsworkflow für eine schnellere Modellierung und Detaillierung verschiedener Brückentypen – einschließlich der Platzierung von Spannkabeln.

Bild 4. Mehr in einer Ansicht machen – mit der neuen Art der Drehung des Modells und der besseren Fangoptionen. Arbeiten mit weniger Iterationen durch dir neue intuitive Art der Modellierung von Bolzen mit Vorschau.

Durchgängige Arbeitsabläufe

Durch die Verbesserung der Interoperabilität zwischen Trimble-Software, -Hardware und anderen Lösungen von Drittanbietern unterstützt Tekla Structures 2024 neue integrierte Arbeitsabläufe für eine bessere Zusammenarbeit.

Durch die Verbesserung der Interoperabilität zwischen Trimble-Software, -Hardware und anderen Lösungen von Drittanbietern unterstützt Tekla Structures 2024 neue integrierte Arbeitsabläufe für eine bessere Zusammenarbeit. Die Bewehrungsplanung wurde für Fertigung, Lieferung und Ausführung auf der Baustelle optimiert. Der Datenaustausch mit der Field- und Scan-Hardware von Trimble ermöglicht es Anwendern, „as-built“-Daten von der Baustelle abzurufen und genaue Pläne zurückzusenden. Trimble Connect Business Premium, Teil der Named-User Lizenz für Tekla Structures, bietet verbesserte Funktionen für kollaborative Arbeitsabläufe, wie z. B. die modellbasierte Statusfreigabe.

Erweitertes Angebot für neue Lizenzen

Tekla Structures-Anwender können jetzt drei Produkte in einem leistungsstarken Angebot nutzen. Eine Named-

5. Verbesserte Integration mit Tekla Structures zur Unterstützung des Arbeitsablaufs für die Detailplanung von Portalrahmen: Die Vouten­Geometrie und die Stützengrundplatten werden jetzt von Tekla Structural Designer an Tekla Structures übertragen.

Bild 6. Die neue Kellerwandberechnung nach US­Norm und EC berechnet jede Kellerwand, von einem kleinen Wohnkeller bis zu einer mehrstöckigen Tiefgarage. (Abb.: TEKLA)

User-Lizenz für Tekla Structures umfasst Trimble Connect Business Premium und die Cloud-Lösung Tekla Model Sharing als Komplettlösung.

Trimble Connect Business Premium bietet Zugang zu Workflow-Erweiterungen und fortschrittlichen BIM-Tools für eine schnellere und qualitativ hochwertige Projektabwicklung.

Informationssicherheit

Trimble arbeitet kontinuierlich daran, die erforderliche Sicherheit bei der gemeinsamen Nutzung von Daten auf Unternehmensebene zu gewährleisten. Alle Tekla-Produkte sind nach der ISO 27001, dem weltweit führenden Standard für IT-Sicherheitsmanagement, zertifiziert.

Verfügbarkeit und kostenlose Testversion: Weitere Informationen zur neuen Version sowie zum Download finden sich unter: www.tekla.com/de/2024. Tekla Structures ist zudem als kostenlose 30-tägige Testversion verfügbar.

www.tekla.com www.trimble.com

Software und Planung 38 Ernst & Sohn Special 2024 · Bauprodukte digital
Bild

Digitalisierung legt Grundsteine für effiziente Schadenssanierungen

Über ein in Deutschland einzigartiges Konzept

Digitale Prozesse zeichnen die Schadenssanierungen sowie alle weiteren planerischen Tätigkeiten des Bauexpertenzentrums aus. Die Profis aus Kaiserslautern und Umgebung haben es sich zur Aufgabe gemacht, ihren innovativen Ansatz kontinuierlich zu verbessern. Derzeit arbeiten Timo Uebel und sein Team an der Integration der RIB-Softwareprogramme RIB iTWO 5D sowie RIB Site, um sowohl Ausschreibung, Vergabe und Abrechnung als auch eine umfassende Dokumentation des Baustellengeschehens unmittelbar in den digitalen Workflow einzubinden.

Das Bauexpertenzentrum ist ein Zusammenschluss von qualifizierten Bauexpertinnen und -experten am Standort Kaiserslautern unter Federführung der Architekturbüro Uebel GmbH. Die Profis, die sich aus Architektur, Haustechnikplanung, Brandschutz, Elektroplanung, Tragwerksplanung und einer Anwaltskanzlei zusammensetzen, blicken allesamt auf langjährige Erfahrung in ihren individuellen Aufgabenbereichen zurück. Ihr Anliegen ist es, ihrem Kundenkreis eine fachliche, kompetente Beratung, Begleitung und Unterstützung bei ihren Bauvorhaben zu offerieren. Das Konzept ist in Deutschland einzigartig.

Effizienz als Schlüssel: Von der 3D-Punktwolke bis zur virtuellen Begehung

Schadenssanierungen decken ca. 80 % des Leistungsportfolios des Bauexpertenzentrums ab. 16 Mitarbeitende befassen sich aktuell mit ca. 400 laufenden Baumaßnahmen von über 300 Auftraggebenden. Ziel ist immerzu eine möglichst effiziente Sanierungsleistung bis hin zur Fertigstellung. Die Schadensarten, mit denen sich die Bauexpertinnen und -experten aus Kaiserslautern und Umgebung befassen, könnten unterschiedlicher nicht sein. Vom nassen Keller eines Einfamilienhauses bis zu einem Totalschaden bei 50 oder mehr Wohneinheiten einer Großinvestorenfirma steuert das Bauexpertenzentrum die Reparatur von Schäden unterschiedlichster Ausprägung und betreut dabei Bauverantwortliche mit ihren Maßnahmen aller Größenordnungen. Private Häuslebauerinnen und Häuslebauer profitieren gleichermaßen von den Sanierungen des

Bauexpertenzentrums wie auch große Unternehmen. „Effizienz ist für uns zu jeder Zeit entscheidend“, weiß Timo Uebel, Geschäftsführer der Architekturbüro Uebel GmbH. Der Grund: Ist ein Bauschaden entstanden, sind die Budgets in Teilen bereits erschöpft.

Um so effizient wie möglich zu sanieren, werden die Bauprojekte allesamt neu vermessen und dabei umfassend digitalisiert. Im ersten Schritt entsteht eine dreidimensionale Punktwolke, aus der sowohl Auftraggebende des Unternehmens als auch Handwerksbüros, die später mit den einzelnen Sanierungsarbeiten betraut werden, erste Maße ziehen können. In Schritt zwei werden die Punktwolken in ein 3D-CAD-System 1:1 eingelesen. Abschließend realisiert ein professionelles VR-Studio einen Live-Schnitt des CAD- bzw. BIM-Plans, wodurch Bauverantwortlichen die Möglichkeit offeriert wird, ihre eigene Baustelle virtuell zu begehen. Der gesamte Workflow, der bis hin zu Besprechungen in virtuellen Räumen reicht, bei der Avatare gemeinsam das BIM-Modell begehen und sich über individuelle Sanierungsmaßnahmen austauschen, entstand in einem Zeitraum von rund zwei Jahren. Dieser war, wie Timo Uebel verrät, zunächst sehr aufwändig und machte einige Investitionen auf Seite des Bauexpertenzentrums notwendig. Etwa 1,5 Jahre später hatten sich die Ausgaben allerdings schon amortisiert, wie der Architekt verrät. Doch eine Sache fehlte noch, um dem Leistungsangebot den letzten Schliff zu verleihen: Nämlich eine Ergänzung um die Sanierungskosten – vom Auftrag bis hin zur Abrechnung.

Software und Planung 39 Ernst & Sohn Special 2024 · Bauprodukte digital
Bild 1. Um so effizient wie möglich zu sanieren, werden sämtliche Bauprojekte allesamt neu vermessen und dabei umfassend digitalisiert. Bild 2. Das Bauexpertenzentrum realisiert in Zusammenarbeit mit dem internen, eigenen und professionellen VR­Studio einen Live­Schnitt des CADbzw. BIM­Plans, wodurch Bauverantwortlichen die Möglichkeit offeriert wird, ihre eigene Planung virtuell zu begehen.

Bild 3. Der digitale Workflow des Bauexpertenzentrums soll um die Themen Kosten und Positionen sowie um eine kontinuierliche Verbindung zum aktuellen Baugeschehen erweitert werden.

Kosten und Positionen ermitteln mit iTWO 5D

„Aktuell arbeiten wir daran, diesen wichtigen, finalen Part umzusetzen. Ausschreibung, Vergabe und Abrechnung, also sämtliche Aufgabenbereiche aus Leistungsphase 5 und späteren Phasen, sollen mit Hilfe der Software RIB iTWO 5D an unseren bestehenden, digitalen Workflow andocken“, erklärt Timo Uebel. Bereits aus früheren beruflichen Stationen waren die Softwareprodukte der RIB Software GmbH dem Architekten bekannt. „Wir zielen darauf ab, RIB iTWO 5D durchgängig mit unserem bestehenden System zu verzahnen. Die IFC-Modelle sollen als Fundament dienen, um daraus innerhalb von iTWO 5D die Kosten und Positionen zu ermitteln“, fügt der Geschäftsführer hinzu.

RIB Site für die durchgängige Baustellendokumentation

Neben der Software iTWO 5D soll außerdem RIB Site für die Baustelle den digitalen Workflow des Bauexpertenzentrums erweitern. Insbesondere die Fotodokumentation des aktuellen Baustellengeschehens soll dabei unterstützen, Aufgaben zeitnah und unmittelbar vor Ort zu erledigen und Informationen über den aktuellen Stand zu jeder Zeit zur Verfügung zu stellen. „Mit RIB site möchten wir den gesamten Schriftverkehr auf den Baustellen durchgängig dokumentieren“, konstatiert Timo Uebel. „Internetverbindung und Tablets sind schon lange Bestandteil unseres

Workflows. Auf diese Weise soll auch die Nacharbeit im Büro nochmals deutlich reduziert werden“, führt er weiter aus.

RIB iTWO 5D und RIB Site: Ideales Add-On für den digitalen Workflow

Die Produkte der RIB Software GmbH kristallisierten sich, wie Timo Uebel betont, als ideales Add-On für den digitalen Workflow des Bauexpertenzentrums heraus. Sie seien zwar komplexer in ihrer Beschaffenheit und Anwendung als andere, am Markt etablierte Bausoftwareprodukte, es gäbe aber aktuell kein weiteres IT-System für das digitale Planen und Bauen, das sämtliche Prozesse vom Auftrag bis zur Abrechnung derart durchgängig abdecken könne. „Selbstverständlich sind die Produkte – sowohl iTWO 5D als auch RIB Site, primär für große Planungsbüros und Projektsteuerer sowie Großbaustellen konzipiert. Trotzdem bieten sie die Option, exakt diejenigen Bausteine zu entnehmen, die für ein Unternehmen unserer Größenordnung entscheidend sind. Ein weiterer Vorteil besteht darin, dass wir für Anfragen jeder Art sehr schnell einen Ansprechpartner und Hilfestellung bei RIB finden, vom Verkauf über die Beratung bis hin zum Support. Die RIBSoftwareprogramme haben uns rundum überzeugt“, wie Timo Uebel abschließend zusammenfasst.

www.rib-software.com; www.bauexpertenzentrum.com

Software und Planung 40 Ernst & Sohn Special 2024 · Bauprodukte digital
Bild 4. Die Produkte RIB iTWO 5D und RIB Site kristallisierten sich als ideales Add­On für den digitalen Workflow des Bauexpertenzentrums heraus. (Abb.: RIB)

Bemessung von mit Combar ® bewehrten

Betonbauteilen in FRILO

geht so lange gut, bis chloridhaltiges Wasser und chloridhaltige Luft durch Risse im Beton bis zum Bewehrungsstahl vordringen. Denn dann beginnt dieser zu korrodieren. Deshalb wird als Korrosionsschutz üblicherweise eine Oberflächenbeschichtung auf die Stahlbetonbodenplatten aufgebracht, deren Einbau und Instandsetzung allerdings aufwendig und kostenintensiv sind.

– i –Combar® – wirtschaftliche Bewehrung in Bodenplatten

Überall dort, wo spezielle Anforderungen an den Korrosionsschutz, an die elektrische Leitfähigkeit, den Magnetismus, an die Zerspanbarkeit oder die thermische Isolierung gestellt werden, stößt die gewöhnliche Stahlbewehrung an ihre Grenzen. Für Einsatzbereiche wie den Grund- und Tunnelbau, den Bau von Tram-Systemen, von Strominfrastruktur und Forschungseinrichtungen steht deshalb mit der Glasfaserverbundbewehrung Schöck Combar® eine überlegene Alternative zur Verfügung, die in der Berechnungssoftware von FRILO bemessen werden kann.

Üblicherweise wird Stahl als Bewehrungsmaterial in Betonbauteilen verwendet. Die allermeisten Bodenplatten und Rampen in Tiefgaragen sowie in Fahrzeug-, Feuerwehr- oder Industriehallen bestehen aus Stahlbeton. Das

Mit dem bauaufsichtlich zugelassenen Glasfaserverbundwerkstoff Schöck Combar® steht Planungsbüros und Bauunternehmen eine wirtschaftlichere und planungsfreundlichere Alternative zur Stahlbewehrung zur Verfügung. Die Bewehrung Schöck Combar®, die im DBV-Merkblatt Nr. 42 und 46 als Variante „ROSTFREI: Nichtrostende chloridbeständige Bewehrung mit abZ“ aufgeführt ist [1] [2], kann in allen Umweltumgebungen mit minimaler Betondeckung gemäß DIN EN 1992-1 eingebaut werden. Weil die Glasfaserverbundbewehrung zu 100 % korrosionsbeständig ist, aufwändige Oberflächenbeschichtungen und Instandhaltungen aus Bewehrungskorrosionsgründen hinfällig. Auch in chemisch aggressiven Umgebungen konnte zudem nachgewiesen werden, dass die Lebenserwartung von Combar® mehr als 100 Jahre beträgt. Besonders deutlich zeigt sich der Vorteil der glasfaserverstärkten Bewehrung im Vergleich zur Stahlbewehrung beim Blick auf den Lebenszyklus der Bodenplatte und die Gesamtkostenrechnung (s. Diagramm „Lebenszykluskosten“): Da eine Instandsetzung entfällt, entsteht kein Entsorgungsmaterial, was beträchtlich an Ressourcen und Kosten spart.

FRILO SCHÖCK COMBAR®

Bild 1. Die schematische Wirtschaftlichkeitsdarstellung bezieht sich auf gering belastete Bodenplatten. WIR

BEMESSUNG VON MIT SCHÖCK COMBAR®

BEWEHRTEN BETONBAUTEILEN

Der Glasfaserverbundwerkstoff Combar® wurde von Schöck als innen liegende, schlaffe Bewehrung von Betonbauteilen mit sehr guter Korrosionsbeständigkeit konzipiert. Im FRILO-Programm Stahlbetonbemessung B2 lassen sich Combar® Stäbe als Zug- oder Biegezugbewehrung gemäß den Regelungen der allgemeinen bauaufsichtlichen Zulassung Nr. Z-1.6-238 einfach und schnell bemessen. Zusätzlich ist dort auch die Bemessung von Combar® als Querkraftbewehrung möglich.

Software und Planung
BAUEN AUF STABILITÄT JETZT INFORMIEREN & TESTEN www.frilo.eu/produkte/stahlbetonbemessung/

– ii –

Das Herstellungsverfahren von Combar®

Das Verfahren zur Herstellung dieses Bewehrungsmaterials ist zweiteilig und auf die Anforderungen von Bewehrungsstäben optimiert. Im ersten Schritt werden hochfeste Glasfasern dicht gebündelt und durch ein Werkzeug gezogen, in dem sie mit Vinylesterharz umschlossen werden. Dieser Teilprozess wird als Pultrusion bezeichnet. Die Profilierung umfasst im zweiten Schritt das Schneiden der Rippen in die ausgehärteten Stäbe sowie die Endbeschichtung. Das Ergebnis dieses Verfahrens ist ein Bewehrungsmaterial mit einzigartigen Eigenschaften.

– iii –

Weder magnetisierbar noch elektrisch leitfähig

Combar® ist nicht magnetisierbar und beeinträchtigt damit keine Magnetfelder. Diese Eigenschaft ist relevant für Forschungseinrichtungen, in denen Messungen unter Ausschluss von Störungen durch elektromagnetische Einflüsse stattfinden müssen. Weil Combar® zudem nicht elektrisch leitfähig ist, eignet sich der Verbundwerkstoff für Weichensperrkreise oder Start- und Landebahnen sowie Rollwege am Flughafen. Die Signalwirkung der sensiblen Sicherheitssysteme wird nicht behindert. Induktive Hochspan-

nungsanlagen operieren mit intensiven elektrischen Strömen und erzeugen starke Magnetfelder. Durch Induktion geht Energie verloren und üblicher Bewehrungsstahl erwärmt sich mitunter so sehr, dass er korrodiert und der Verbund mit dem Beton verloren geht. Mit Combar® lassen sich Fundamente, Wände und Decken hingegen platzund energiesparend nahe induktiver Elemente erbauen.

– iv –

Leicht zerspanbar und dauerhaft hochfest

Darüber hinaus weist Glasfaserverbundwerkstoff eine leichte Zerspanbarkeit auf. Diese Eigenschaft kommt insbesondere beim Tunnelbau zum Tragen, weil Tunnelbohrmaschinen nahtlos durch die mit Combar® bewehrten Wände fahren können. So lassen sich die Bauzeit und Baukosten reduzieren. Die Sicherheit für Mitarbeiter wird zugleich erhöht. Durch den hohen Glasfasergehalt von 75 % des Volumens (88 % des Gewichts) und das diffusionsdichte und korrosionsbeständige Vinylesterharz werden die hohe Zugfestigkeit und Dauerhaftigkeit des Glasfaserverbundwerkstoffes gewährleistet. Der charakteristische Wert der Dauerzugfestigkeit von Combar® Stäben beträgt nach Zulassung 580 N/mm2. Mit einem in Deutschland auf 1,3 festgelegten Materialfaktor ergibt sich für diese Form der Bewehrung eine Bemessungszugfestigkeit von

Software und Planung 42 Ernst & Sohn Special 2024 · Bauprodukte digital
Bild 2. Combar® ist als Bewehrung besonders bei korrosionsgefährdeten, gering belasteten oder nichttragenden Bodenplatten wirtschaftlich. Bild 3. Die Glasfasern werden im Pultrusionsverfahren gebündelt, gezogen und mit einem flüssigen Kunstharz imprägniert. Bild 4. Im Zentrum für Angewandte Quantentechnologie in Stuttgart wurden Hochpräzisionsräume mit Combar® bewehrt, um elektromagnetische Störungen bei Messungen zu vermeiden.

445 N/mm2. Diese Werte gelten für alle Anwendungen und Standzeiten von 100 Jahren.

– v –

Das Materialverhalten von Combar®

Das Bewehrungsmaterial zeigt ein zeitabhängiges, linear elastisches und anisotropes Verhalten und unterscheidet sich somit wesentlich von Betonstahl. So beeinflusst unter anderem die Nutzungsdauer maßgeblich die ansetzbare Zugfestigkeit des Kompositwerkstoffs. Während für gerade Combar® Stäbe mit einer Lebensdauer von 100 Jahren die charakteristische Dauerzugfestigkeit wie erwähnt 580 N/ mm2 beträgt, ist bei einer Nutzungsdauer von fünf Jahren ein deutlich höherer Wert von 680 N/mm2 ansetzbar. Auch das Verformungsverhalten von mit Combar® bewehrten Betonbauteilen weicht von dem eines Stahlbetonbauteils ab. Der E-Modul von Combar® liegt mit 60.000 N/ mm2 (gerader Stab) bei etwa einem Drittel des E-Moduls von Betonstahl. Folglich stellen sich in mit Combar® bewehrten Betonbauteilen größere Verformungen und Rissbreiten ein.

– vi –

Bemessung von mit Combar® bewehrten Betonbauteilen

Analog zum Stahlbetonbau erfolgt die Bemessung für Biegung und Normalkraft über die Iteration der Dehnungsebene. Aufgrund des geringen E-Moduls der GFK-Stäbe sind jedoch die Druckspannungen im Querschnitt vollständig vom Beton aufzunehmen. Combar® als Druckbewehrung ist nicht zulässig. Auch das Querkrafttragverhalten von mit diesem Glasfaserverbundwerkstoff bewehrten Bauteilen ist grundsätzlich mit dem von Stahlbetonbauteilen vergleichbar. Bei den einzelnen Traganteilen ergeben sich jedoch aufgrund der spezifischen Eigenschaften des Materials teilweise große Unterschiede, die in einem abgeänderten Bemessungskonzept abgebildet werden. Die Gleichungen gemäß EC 2-1-1, Abs. 6.2 sind nicht gültig. Das Berechnungsmodell von mit Combar® bewehrten Betonbauteilen ohne Querkraftbewehrung basiert auf dem Betontraganteil der ungerissenen Druckzone. Für Betonbauteile mit erforderlicher Querkraftbewehrung wird der Betontraganteil um einen Traganteil infolge Fachwerktragwirkung ergänzt. Dieser erfasst sowohl die Tragfähigkeit der Querkraftbewehrung als auch die der Betondruck-

Software und Planung 43 Ernst & Sohn Special 2024 · Bauprodukte digital
Bild 5. Das Rollfeld des Flughafens in Zürich wurde mit Combar® bewehrt – für eine störungsfreie Kommunikation des Sicherheitssystems. Bild 7. Aufgrund der guten Zerspanbarkeit von Combar® fährt die Tunnelbohrmaschine durch mit Combar bewehrte Schlitzwände nahtlos. Bild 6. Durch die Bewehrung der Gleistragplatten der Tram in München mit Combar® konnten Signalstörungen im Weichenbereich vermieden werden.

strebe. Der Druckstrebenwinkel ergibt sich in Abhängigkeit von der vorhandenen Querkraftbewehrung und dem einwirkenden Moment. Somit ist nicht zwangsläufig die maximale Querkraft mit zugehörigem Moment bemessungsrelevant und die Ermittlung der erforderlichen Querkraftbewehrung muss iterativ erfolgen.

– vii –

Integration von Combar® in B2 von FRILO

Das Programm Stahlbetonbemessung B2 von FRILO macht die Bemessung von mit Combar® bewehrten Betonbauteilen möglich. Tragwerksplaner können dabei GFKElemente als Längs- und Querkraftbewehrung in Kreisquerschnitten und beliebig polygonal begrenzten Querschnitten bemessen. Das Programm führt die Bemessung von Combar® Stäben als Zug- oder Biegezugbewehrung gemäß den Regelungen der allgemeinen bauaufsichtlichen Zulassung Nr. Z-1.6-238 durch. Seit vielen Jahren ist Combar® für den dauerhaften Einsatz statisch relevanter Betonkonstruktionen als einzige nichtmetallische stabförmige Bewehrung zugelassen. Die demnächst erscheinende DAFStb Richtlinie „Betonbauteile mit nichtmetallischer Bewehrung“ wird als Ergänzung der Zulassung dienen. Die umfangreichen Studien und Untersuchungen zum Erlangen der Combar® Zulassung haben maßgebend zur Entwicklung der Richtlinie beigetragen.

Sofern ein Querschnitt Querkraftbewehrung zur Erhöhung der Querkrafttragfähigkeit benötigt, ist die Zulassung nicht mehr anwendbar. Um Bemessungen über die

Bild 8. Die Bemessung von mit Combar® bewehrten Betonbauteilen im B2 von FRILO. (Fotos/Abb.: 1 u. 3 Schöck Bauteile GmbH; 2 u. 5 Thomas Entzeroth; 4 hammeskrause architekten bda; 6 Moritz Bernoully; 7 Société du Grand Paris / David Delaporte; 8 FRILO)

Zulassung hinaus zu ermöglichen, hat FRILO die Berechnung nach dem Verfahren von Prof. Dr.-Ing. Josef Hegger und Dr.-Ing. Martin Kurth [3] in das Programm integriert. Über Zustimmungen im Einzelfall haben Planungsbüros auf Grundlage dieses Bemessungskonzepts bereits zahlreiche Projekte umgesetzt. Die Combar® Querkraftbewehrung ist in Form von Bügeln erhältlich. Bei hochbewehrten Bauteilen ist die Kombination der Bügel mit Combar ® Doppelkopfbolzen sinnvoll. Beide Varianten lassen sich im B2 auswählen. Darüber hinaus berücksichtigt das Programm bei einer kurzen Einsatzzeit von maximal fünf Jahren verbesserte Materialkennwerte der Bewehrung. Und neben der geraden Längsbewehrung ist auch gebogene Bewehrung auswählbar.

Regine Metzkes, Jonas Krämer

Literatur:

[1] DBV-Heft 42 „Ausführungsvarianten für dauerhafte Bauteile in Parkbauten – Beispielsammlung“, Fassung Januar 2019

[2] DBV-Heft 46 „Dauerhaftigkeit von Betonbauteilen in Parkbauten – Hintergründe und Erläuterungen zum DBV-Merkblatt“, Fassung Januar 2021

[3] Bemessungskonzept für Querkraftbewehrung aus GFK (Kurth/Hegger, RWTH Aachen) veröffentlicht im „Bauingenieur“, Band 88, Oktober 2013 unter dem Titel „Zur Querkrafttragfähigkeit von Betonbauteilen mit Faserverbundkunststoff-Bewehrung – Ableitung eines Bemessungsansatzes“, „Bauingenieur“, Band 88, Oktober 2013

www.frilo.eu; www.schoeck.com

Software und Planung 44 Ernst & Sohn Special 2024 · Bauprodukte digital

Digitale Statikdokumente mit VCmaster

VCmaster ist ein umfassendes Werkzeug zur digitalen Dokumentation der Baustatik. Die Ausgaben sämtlicher Statik- und CADProgramme werden nahtlos integriert und es entsteht ein einheitliches und durchgehendes Dokument mit einheitlichen Formatierungen, wie der Seitennummerierung, den Kopf- und Fußzeilen und dem Inhaltsverzeichnis. VCmaster vereinfacht spätere Änderungen, da Positionen und Details automatisiert ausgetauscht und geänderte Seiten fachspezifisch indiziert werden.

Automatische Berechnungen

VCmaster kann Berechnungen ausführen und automatisiert dadurch das Erstellen von Einzelnachweisen und einfachen statischen Aufgaben. Mit VCmaster erstellte Nachweise können beliebig angepasst und kombiniert werden. Bereits durchdachte Lösungen werden einfach gefunden, schnell modifiziert und können immer wiederverwendet werden. Digitale VCmaster-Dokumente sparen dadurch Zeit und sichern wichtiges Know-how.

Professionelle PDF-Files

VCmaster bietet einen leistungsfähigen PDF-Export, der auf die speziellen Bedürfnisse in der Tragwerksplanung ausgerichtet ist. Da Statiken völlig unterschiedliche Daten enthalten, wird für jede einzelne Seite die beste Methode für eine optimale Komprimierung ermittelt. Für die üblichen Szenarien in der Praxis wurden Ausgabeprofile hinterlegt. Diese enthalten Angaben zur gewünschten Quali-

Digitale Statik als PDF­Dokument (Abb.: VCmaster)

tät und dem sich daraus ergebenden Speicherbedarf. Für einen Ausdruck werden die Vorgaben z. B. andere sein, als für den Email-Versand. Die erzeugten PDF-Dateien enthalten die Inhaltsstruktur als Lesezeichen, so dass Dritte (z. B. der Prüfer oder der Planer) effizient auf die Daten zugreifen können.

Schnittstelle zur elektronischen Prüfakte (ELBA)

VCmaster wurde im letzten Jahr durch eine PDF/ASchnittstelle zur elektronischen Prüfakte ELBA erweitert. ELBA ist eine webbasierte Kommunikationsplattform für bautechnische Nachweise. Die Erfahrungen der hoheitlich tätigen Prüfingenieure werden mit ELBA in eine digitale Arbeitsweise transformiert, die allen Beteiligten zur Verfügung steht. Die BVPI schafft damit eine bundeseinheitliche Lösung, die die Zusammenarbeit vereinfacht und eine Grundlage für einen sicheren und praxisorientierten Prüfvorgang schafft.

Eine besondere Herausforderung bei der Implementierung der Schnittstelle ergab sich daraus, dass einige Statikprogramme beim PDF-Export Daten erzeugen, die nicht PDF/A-konform sind und sich durch Standardwerkzeuge auch nicht wandeln lassen.

VCmaster übernimmt durch einen intelligenten Druckertreiber die Ausgaben von Statikprogrammen. Beim Export erkennt VCmaster automatisch alle Seiten, die nicht PDF/A-konform sind und wandelt diese in ein kompatibles Format um.

www.VCmaster.com

Software und Planung 45 Ernst & Sohn Special 2024 · Bauprodukte digital

Nachhaltigkeit am Bau: Ermittlung von CO 2-Werten in GAEB-Positionen

Abgerufene CO2­Werte verschiedener Betonqualitäten (Abb.: MWM Software & Beratung)

Für die Softwarehäuser anouri und MWM Software & Beratung ist die Nachhaltigkeit am Bau ein besonders wichtiges Thema. Daher haben die beiden Unternehmen, die von ihnen entwickelte Anwendung GAEB365/Aufmaß365 (https://mein.gaeb-365. online), die den Einheitspreis einer Position ermittelt, um eine neue Funktion erweitert.

Impressum

Ernst & Sohn Special: Bauprodukte digital

Ernst & Sohn GmbH

Rotherstraße 21, 10245 Berlin,

Tel. (030) 470 31-200, Fax (030) 470 31-270 www.ernst-und-sohn.de

Redaktion

Dr. Burkhard Talebitari (verantw.)

Tel. (030) 470 31-273, Fax (030) 470 31-229 btalebitar@wiley.com

Kunden-/Leserservice

Wiley-VCH Kundenservice für Ernst & Sohn

Boschstraße 12, D-69469 Weinheim

Tel.: +49 (0)800 1800 536 (innerhalb Deutschlands)

Tel.: +44 (0)1865476721 (außerhalb Deutschlands)

Fax: +49 (0)6201 606184

Schnelleinstieg: www.wileycustomerhelp.com

Einzelheft-Verkauf: CS-Germany@wiley.com

Einzelheft 25,– € inkl. MwSt. und Versand/Porto Bestellnummer 2134-2404

Beilagenhinweis:

Diese Ausgabe enthält folgende Beilagen:

Ernst & Sohn GmbH, 10245 Berlin

Mit dieser können Planer und ausführende Unternehmen die zu den Baumaterialien gehörenden CO2-Werte ermitteln und prüfen, welche der in Frage kommenden Materialien z. B. für eine Wand – Beton, Holz oder Kalksandstein – einen geringeren CO2-Verbrauch aufweisen. Präsentiert wird die Funktion auf der digitalBAU 2024 in Köln.

Die Ermittlung des CO2-Fußabdrucks einer Teilleistung lässt sich mit der Ermittlung des Einheitspreises vergleichen. In beiden Fällen ist aus dem jeweiligen Langtext zu ermitteln, aus welchen Teilen und Leistungen sich die Positionen zusammensetzt. Ist diese Stückliste als „Inhaltsangabe“ der Teilleistung fertig gestellt, sind 50 % der Arbeiten erledigt. Für die einzelnen Bestandteile der Stückliste existieren vielfältige Quellen sowohl für Einkaufspreise, Zeitaufwände als auch für CO2-Anteile. Dazu ist in der Anwendung GAEB365 ein Aufruf integriert, der in weltweiten Datenbanken recherchiert. Die dafür notwendige Technik liefert die Firma Emidat.

www.mwm.de, www.anouri.gmbh; www.emidat.com

Weitere Sonderhefte online bestellen auf: www.ernst-und-sohn.de/sonderhefte

Gesamtanzeigenleitung

Sigrid Elgner

Tel. (030) 470 31-254, Fax (030) 470 31-230, sigrid.elgner@wiley.com

Es gilt die Anzeigenpreisliste 2024.

Bankverbindung

J.P. Morgan AG Frankfurt

IBAN DE55 5011 0800 6161 5174 43 BIC/S.W.I.F.T.: CHAS DE FX

Gestaltung/Satz

LVD GmbH, Berlin

Druck

Westermann DRUCK | pva, Zwickau

© 2024 Ernst & Sohn GmbH, Berlin

Die im Special veröffentlichten Beiträge sind urheberrechtlich geschützt. Alle Rechte, insbesondere das der Übersetzung in fremde Sprachen, vorbehalten. Kein Teil dieses Specials darf ohne schriftliche Genehmigung des Verlages in irgendeiner Form – durch Fotokopie, Mikrofilm oder andere Verfahren – reproduziert oder in eine von Maschinen, insbesondere von Datenverarbeitungsanlagen, verwendbare Sprache übertragen werden. Auch die Rechte der Wiedergabe durch Vortrag, Funk oder Fernsehsendung, im Magnettonverfahren oder auf ähnlichem Wege bleiben vorbehalten. Warenbezeichnungen, Handelsnamen oder Gebrauchsnamen, die im Special veröffentlicht werden, sind nicht als frei im Sinne der Markenschutz- und Warenzeichen-Gesetze zu betrachten, auch wenn sie nicht eigens als geschützte Bezeichnungen gekennzeichnet sind.

Software und Planung 46 Ernst & Sohn Special 2024 · Bauprodukte digital

bauingenieur 24

Ein Stellenmarkt mit relevanten Beiträgen, spannenden Interviews und Diskussionen im Forum – dies alles bietet bauingenieur24 an.

Das Jobportal für das Bauingenieurwesen bauingenieur24.de

QR-Code scannen und Newsletter abonnieren

News – Seminare – Interviews

JOBS · KARRIERE · WISSEN

Ihr kostenfreies plus an Digitalisierung!

CAD-Plugin für Revit

Nutzen Sie 1,1 Mio. Ausschreibungstexte und über 3 Mio. zusätzliche Bauproduktdaten.

Bemusterung von Revit-Modellen

KOSTENFREIE

WEBINAR AUFZEICHNUNG

Weitere Informationen zum CAD-Plugin und Webinar:

ORCA Software GmbH • Georg-Wiesböck-Ring 9 • 83115 Neubeuern • orca-software.com • info@orca-software.com

Turn static files into dynamic content formats.

Create a flipbook
Issuu converts static files into: digital portfolios, online yearbooks, online catalogs, digital photo albums and more. Sign up and create your flipbook.