CASOS ANALAGOS - CENTRO DE CONVENCIONES UPAO G4 TALLER 6

Page 1

ANÁLISIS DE CASOS

CÁTEDRA

ARQ. PAULA FRANCISCA DAVELOUIS CASANA

INTEGRANTES

CASTILLO LEÓN, DIANA

CRUZ PONCE, PAULA

MEDINA HUAMÁN, SOFIA

RIOS VELASCO, BELÉN

ROSALES MORETTI, ANGHELINE

VEGA LEÓN, ENZO

VELÁSQUEZ AMANSIFUEN, DAFNE

T A L L E R D E D I S E Ñ O A R Q . V I
100% 100% 100% 100% 100% 100% 100%

CENTRO DE CONVENCIONES LLC

LIMA, PERÚ

FICHA TÉCNICA

DATOS

UBICACIÓN: San Borja - Lima - Perú

ESTILO ARQUITECTÓNICO: Arquitectura

Moderna

ESTUDIO DE ARQUITECTURA: IDOM

Estudio

INAUGURACIÓN: 2016

PISOS : 9

ÁREA DEL TERRENO : 7543.40 m²

ÁREA CONSTRUIDA: 86000 00 m2

AFORO: 9950 personas

USUARIO

HUESPEDES - NACIONALES E INTERNACIONALES

EJECUTIVOS

PUBLICÓ EN GENERAL

UBICACIÓN
LATINOAMERICA PERÚ LIMA SAN BORJA

Relacionarse de manera directa con los edificios aledaños, su cercanía les permite crear un nuevo espacio urbano donde las personas puedan disfrutar su paso por el lugar, generandose una especie de plaza.

Implementar en la planta baja un muro cortina corredizo, el cual permite realiza eventos en espacios abiertos con una conectividad directa al sector.

Ubicar el acceso vehicular en la parte este del edificio para evitar el congestionamiento vehicular, ya que es una zona secundaria, es decir presenta menor transito vehicular que las otras dos avenidas.

Crear un espacio libre para la circulación, sin bordes que limiten su visibilidad y su relación directa con las personas, lo que es un aspecto positivo en edificaciones de este tipo.

Emplazar el edificio en una zona cultural para permitir una relación de manera directa con las edificaciones culturas importantes de la ciudad de Lima.

PROYECTUALES
IDEAS

CONTEXTO MEDIATO: ACCESIBILIDAD

LEYENDA

1.Hotel Monte

Mulini

2.Restaurante

Wine Vault

3.Servicio de alquiler de bicicletas

4.Restaurante

Oleander

5.Servicio de Alquiler Dew Bicicletas

6.Hotel Eden

CONTEXTO INMEDIATO:

LEYENDA

1.Reniec

2.Ministerio de Educación

3.Banco de la Nación

4.Museo de la Nación

5.Estación de la Cultura

6.Centro de Convenciones

Internacional

7.SENSICO

8.TIENDA TAY

Esta estrategicamente situado en el Centro Cultural de la Nación (CCN) - junto al Museo de la Nación , el Ministerio de Educación , la nueva sede del Banco de la Nación o la huaca de San Borja , el LCC fue diseñado para responder a cuatro objetivos estrategicos

La topografía en Lima, exactamente en el distrito de San Borja están formadas por planicies, lo que hace que sea un terreno mayormente plano.

C O N T E X T O
LOY
A B B" A A" B B"
TOPOGRAFÍA A""

El centro de convenciones de Lima se encuentra alejados de los aeropuertos siendo el mas cercano el aeropuerto de LimaTambo , lo cual hara que no se genere ruidos molestos debido a su lejania

El CC no tiene acceso a una serie de hoteles que varian en distancia como en costo . La proximidad de estos hoteles al CC no es muy cercana , sin embargo existen dos de ellos que su distancia es considerable

El CC se encuentra dentro de una zona muy transitada debido a las edificaciones que presenta a su alrededor .

Tenemos calles principales que nos permiten el acceso a este pero tambien contamos con paradas de buses

Posee acceso vehicular en la parte este del edificio , esto ayuda a evitar el congestionamiento vehicular , ya que es una zona secundaria , es decir presenta menor transito vehicular que las otras dos avenidas cercanas

C O N T E X T O
CONTEXTO

ZONIFICACIÓN

OBSERVACIONES

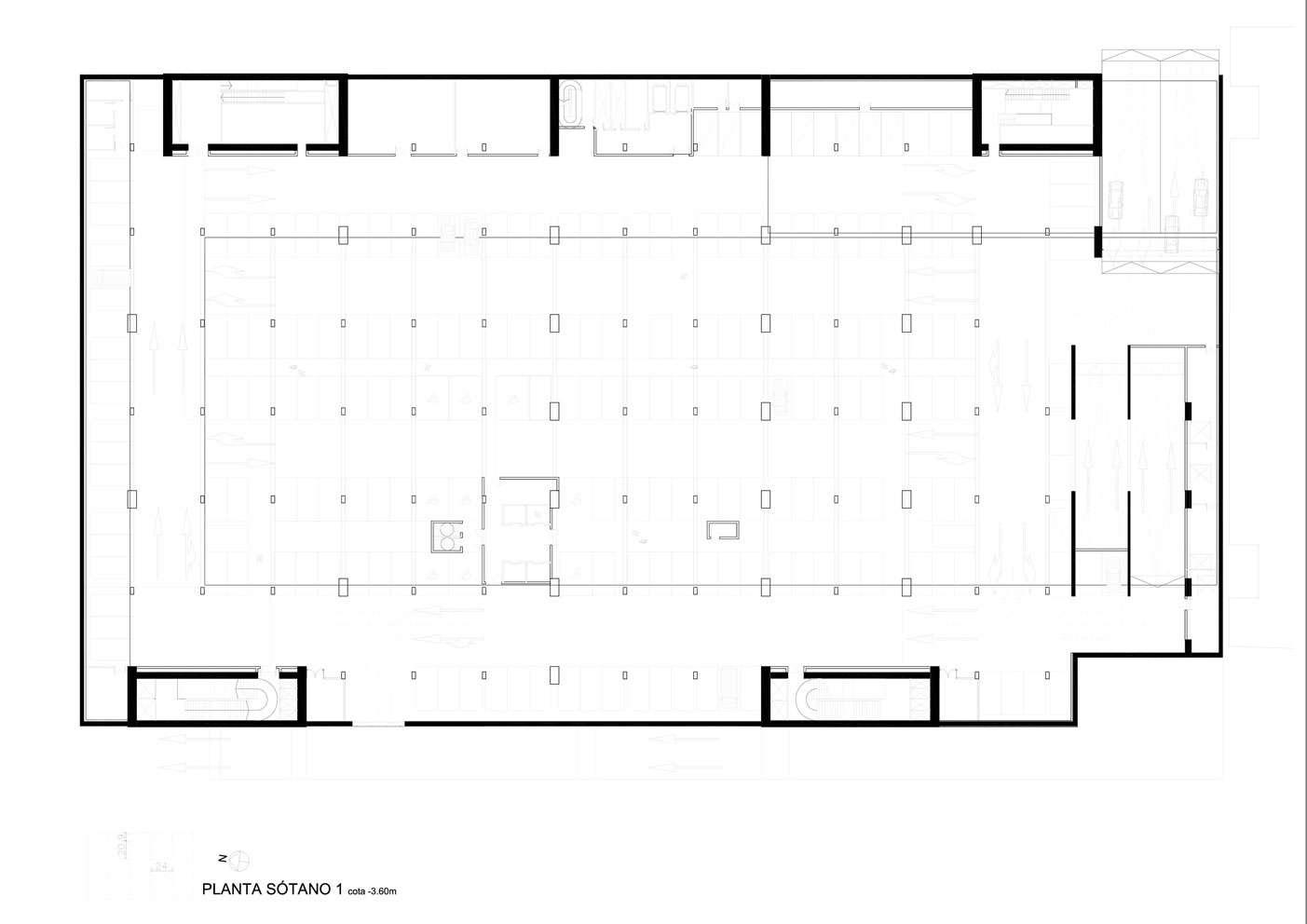
Este piso funciona solo para el servicio contando con diversos ambientes para un mejor aprovechamiento del subterráneo

OBSERVACIONES

Este piso funciona solo para servicio contando con diversos ambientes para un mejor aprovechamiento del subterráneo este cuenta con 7 espacios diferentes incluyendo numerosas plazas de estacionamiento

L I S I S F U N C I O N A L
A N A
CIRCULACION VERTICAL CIRCULACION VERTICAL
1 SOTANO 1 SOTANO 2-3 SOTANO 2-3 SOTANO

ZONIFICACIÓN

CIRCULACION VERTICAL CIRCULACION

OBSERVACIONES

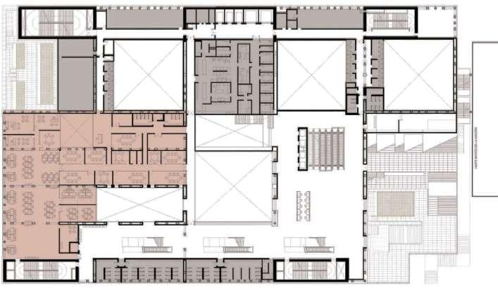
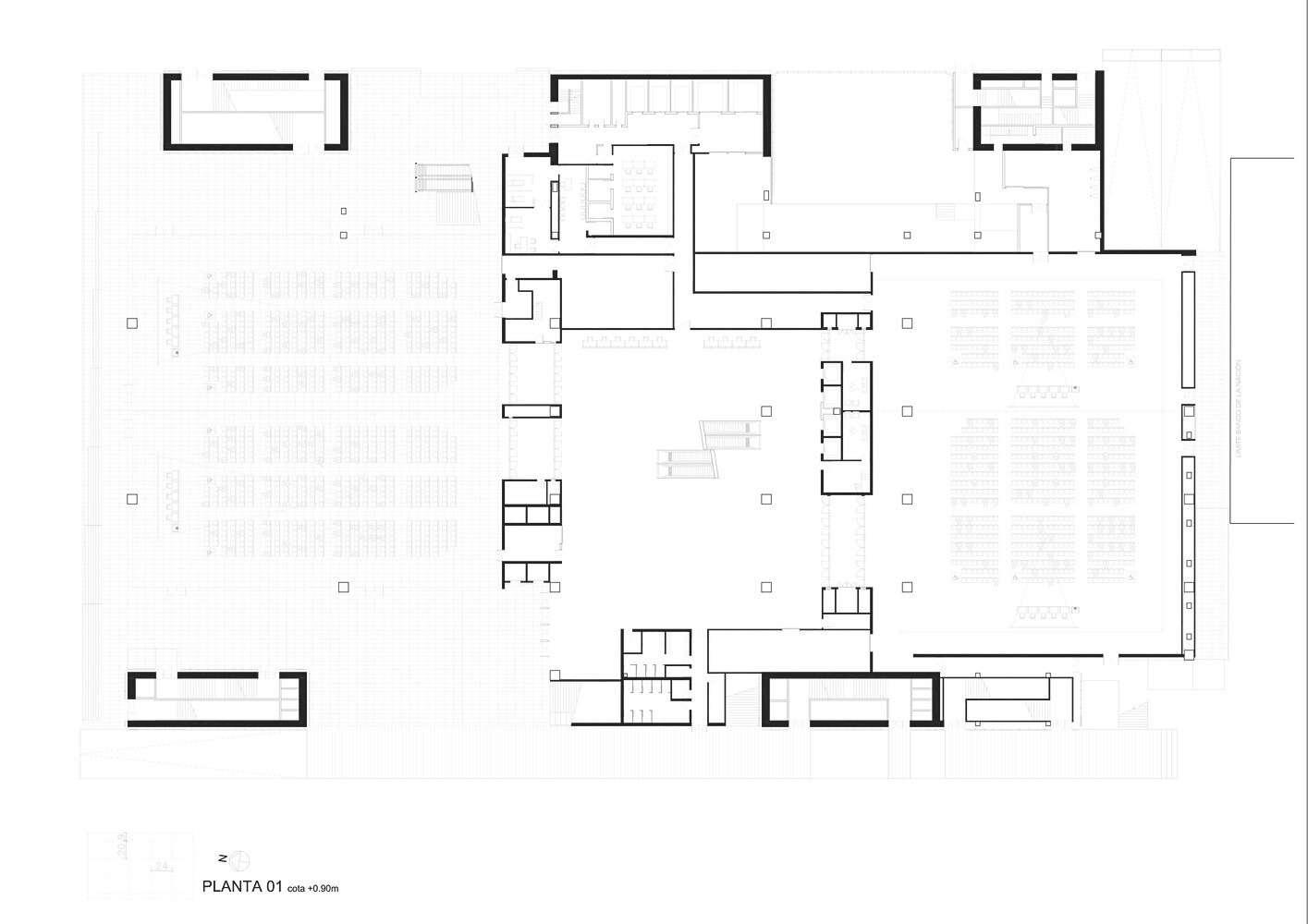
La zona social en esta primera planta es predominante y los ambientes como la sala de conferencias se encuentran ubicadas estratégicamente haciendo que el lobby quede como espacio céntrico repartiendo así hacia todos los ambientes

OBSERVACIONES

En este nivel podemos apreciar que las salas de conferencias responden a una triple altura generando una sensación de amplitud

A N A L I S I S F U N C I O N A L
1 NIVEL NIVEL 2 NIVEL 2 NIVEL

ZONIFICACIÓN

OBSERVACIONES

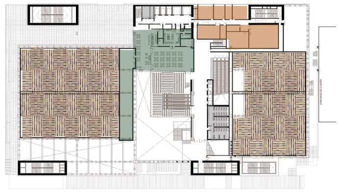
En este nivel un cielo raso con elementos decorativos de colores cubre la triple altura fortaleciendo la neuro arquitectura además de una cafeteria en una zona amplia

OBSERVACIONES

En este nivel esta distribuido por ocho salas de conferencia de doble altura, generando espacialidad en el interior y creando sanciones par alas personas que lo visitan

A N A L I S I S F U N C I O N A L
CIRCULACION VERTICAL CIRCULACION 3 NIVEL NIVEL 4 NIVEL NIVEL

ZONIFICACIÓN

OBSERVACIONES

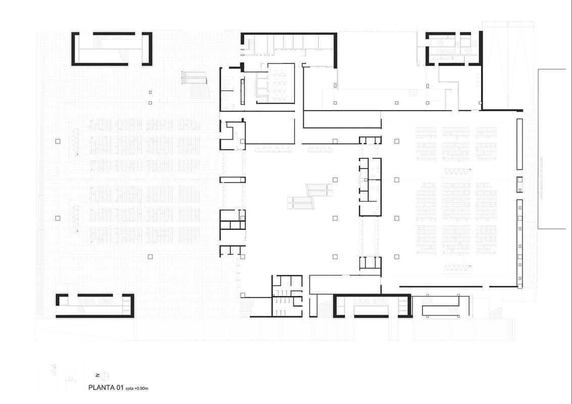
El nivel muestra las cabinas de control instaladas además de una segunda cafeteria con zona de comensales

OBSERVACIONES

EL NIVEL MUESTRA LAS CABINAS DE CONTROL

INSTALADAS ADEMÁS DE UNA SEGUNDA CAFETERIA CON

A N A L I S I S F U N C I O N A L
ZONA DE
CIRCULACION VERTICAL CIRCULACION 5 NIVEL NIVEL 6 NIVEL NIVEL
COMENSALES

ZONIFICACIÓN

OBSERVACIONES

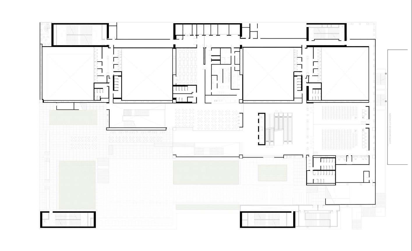
Se puede observar desde la planta sótano como es que la estructura nace de una modulación regular

OBSERVACIONES

En el octavo nivel se encuentra un gran auditorio principal el cual cuenta con todos los espacios necesarios para su buen funcionamiento

A N A L I S I S F U N C I O N A L
CIRCULACION VERTICAL CIRCULACION 7 NIVEL 7 NIVEL 8 NIVEL 8 NIVEL

ORGANIZACION ORGANIZACION

ESPACIAL ESPACIAL

La organizacion La organizacion espacial que presenta espacial que presenta el centro de el centro de convenciones es una convenciones es una organizacion radial organizacion radial debido a que a partir debido a que a partir del espacio central se del espacio central se van distribuyendo los van distribuyendo los espacios del proyecto. espacios del proyecto.

RELACIONES ESPACIALES RELACIONES ESPACIALES

ESPACIO ESPACIO INTERIOR A INTERIOR A

OTRO OTRO

ESPACIOS ESPACIOS CONTIGUOS CONTIGUOS

ESPACIOS ESPACIOS VINCULADO VINCULADO S POR UNO S POR UNO EN COMUN EN COMUN

A N A L I S I S F U N C I O N A L

CIRCULACIÓN

ACCESOS :

PRINCIPAL SECUNDARIO

SERVICIOS

VEHICULAR

CIRCULACIÓN :

SERVICIO

FLUJO MAYOR

FLUJO MENOR

HUESPED

FLUJO MAYOR

FLUJO MENOR

VERTICAL

CIR.VERTICAL

OBSERVACIONES

En el primer nivel encontramos la circulación principal que parte desde los costados para llegar al centro que viene hacer el nucleo principal d la circulación

La circulación en este nivel predomina en el area social

A N A L I S I S F U N C I O N A L

CIRCULACIÓN : SERVICIO

FLUJO MAYOR

FLUJO MENOR

HUESPED

FLUJO MAYOR

FLUJO MENOR

VERTICAL

CIR.VERTICAL

OBSERVACIONES

En el nivel 3-4 encontramos ya un tipo de circulación centralizada en la cual todo proviene de la zona centralizada para los huesedes

A N A L I S I S F U N C I O N A L
CIRCULACIÓN

CIRCULACIÓN :

SERVICIO

FLUJO MAYOR

FLUJO MENOR

HUESPED

FLUJO MAYOR

FLUJO MENOR

VERTICAL

CIR.VERTICAL

OBSERVACIONES

En el nivel 5-6 encontramos el mismo tipo de circulación que si bien se centra en el centro como medio principal , tambien posee circulaciones secundarias como la de servicio

A N A L I S I S F U N C I O N A L CIRCULACIÓN

CIRCULACIÓN :

SERVICIO

FLUJO MAYOR

FLUJO MENOR

HUESPED

FLUJO MAYOR

FLUJO MENOR

VERTICAL

CIR.VERTICAL

OBSERVACIONES

En el nivel 7-8 encontramos una circulación variada que no parte desde el centro si no de los costados

A N A L I S I S F U N C I O N A L
CIRCULACIÓN

CARACTERISTICAS FORMALES

COLOR:

Se uso una gama de colores neutros y grises, teniendo en cuenta el color de las ventanas y las texturas de los muros

ESCALA:

La escala que se presenta es una normal haciendo juego con la monumental creando espacios de doble altura.

PROPORCION: JERARQUIA

La proporcion que se dio es de un modulo de de 4 m para Sotanos y el primer nivel, de 3 m del 2° al 7 piso; y de 5 m el 8° piso donde esta el auditorio.

Las zonas publicas son aquellas que estan jerarquizadas como espacios importantes debido a sus dobles alturas.

A N A L I S I S F O R M A L

COMPOSICION VOLUMETRICA

Es asi que mediante su altura logra romper el perfil urbano establecido y el diseño , convirtiendolo en un hilo arquitectonico y en un motor cultural a traves de sus espacios logrados por sus destajos , tambien por su desplazamiento que esta relacionada con la historia del contexto

Compuesta por una sucesión de volumenes explicadas en slos siguientes graficos

A N A L I S I S V O L U M E T R I C O 1 2 3 4 5 6 7 8
SALAS DE 1800 M2 CAP. :1400 PERS. SALAS DE 225 M2 CAP.:68 PER. SALA DE 150 M2 CAP.: 15 PERS. SALAS DE 750 M2 CAP.: 450 PERS. SALA DE 300 M2 CAP: 135 PERS. SALA DE 5250 M2 CAP.: 5250 SALA DE 450 M2 CAP:225 PERS TOTAL: 14995 M2

TIPOS DE ESPACIOS

TIPOS

DE ESPACIO - (CONECTORES - PRINCIPALES -

SECUNDARIOS - RECEPTIVO)

Los espacios que encontramos en el primer y segundo nivel , son como ya mencionamos de zonas receptivas,sociales y de servicios y que a su vez se reparten atravez de un conector que funciona como un lobby y de esta manera correcta a los espacios planteados en las primeras 2 plantas de la edificación , por lo tanto decimos que los tipos de espacios que encontramos en estos niveles son espacios conectores y tambien todos los espacios son planteados como espacios abiertos y amplios por las funciones que se estan realizando en ellos y en numero de usuarios que hacen uso de este

Los espacios que encontramos en el tercer nivel son espacios en donde encontramos zonas sociales , en su mayor parte y de servicios que se encuentran propuestos de manera proporcional a la zona social ya que se encarga de abastecer a esa zona . En el segundo nivel encontramos espacios contiguos que son los espacios de la zona social y tambien un espacio conector que sería el espacio receptos encargado de distribuir a los espacios que lo rodean como son la zona social y la zona de servicio.

Los espacios en el quinto nivel son espacios que se encuentran dispersos en este piso de la edificación y a los que se puede acceder por el espacio conector receptivo que se encuentra en el centro de estos y que se encarga de repartir a los diferentes funciones dadas tambien se ven espacios vinculados que se encuentran separados por espacios separados que te llevan a las zonas de servicios . En el sexto nivel volvemos a encontrar en su mayor parte lo que son los espacios sociales continuos un espacio conector que se encuentra ubicado de manera central y espacios de circulación que son los que nos llevan a los servicios de este nivel

ESPACIOS PRINCIPALES ESPACIOS CONECTOR ESPACIO RECEPTIVO ESPACIOS SECUNDARIOS

A N A L I S I S E S P A C I A L

CONDICIONES CLIMATICAS

Por el lado de la ventilación existe salas ventiladas por sus fachadas pero al igual con iluminación pasa lo mismo en la parte central

ASOLEAMIENTO (O-S) : La dirección de los vientos predominantes es de suroeste a noreste , aprovechando la orientación estrategica al permitirle tener una ventilación cruzada

VIENTOS (SE-NO) : El asoleamiento se da por fachada de la calle del comercio mientras que en el solsticio de invierno, debido a la altura que presenta el banco de la nación no presenta un buen asoleamiento

A N A L I S I S T E C N O L O G I C O

ASOLEAMIENTO Y VENTILACIÓN

COORDENADAS CELESTES ANÁLISIS

Como podemos observar, la fachada está orientada hacia el lado noreste, lo que le confiere una exposición solar directa y una fuerte incidencia de vientos. Esta orientación fue considerada como una estrategia para proporcionar una buena iluminación y ventilación al proyecto.

SOLSTICIO DE INVIERNO SOLSTICIO DE VERANO

El solsticio de invierno, debido a la altura que presenta el Banco de la Nación no presenta un buen asoleamiento

Solsticio de verano se da por la Fachada de la Calle del Comercio

A N A L I S I S T E C N O L O G I C O
JUNIO DICIEMBRE

HORAS DE SOL

Fachada 1 - Orientacion: Oeste

Fachada 2 - Orientacion: Este

Fachada 3 - Orientacion: Norte

Fachada 4 - Orientacion: Sur

ANÁLISIS

En los gráficos podemos ver la incidencia del sol en diferentes horas de los solsticios de invierno, verano y equinoccio. Estos resultados nos ayudan a establecer el mejor diseño de las ventanas del edificio para un mayor confort. Podemos ver claramente cómo el sol incide en cada una de las fachadas y cómo esto afecta al proyecto. Se destaca especialmente la fachada noroeste que es la que recibe una mayor incidencia de sol y, por lo tanto, cuenta con un mayor número de vanos.

A N A L I S I S T E C N O L O G I C O

MATERIALIDAD :

Tanto los sistemas constructivos como los materiales empleados en las diversas fachadas del edificio - vidrio , paneles de grc y chapa metaliza - han sido concebidos para integrarse con el entorno urbano mas próximo.

SISTEMA ESTRUCTURAL : La estructuración conste en 5 nucleos o cajas de concreto que vienen desde el sotano y han sido ubicados en el perimetro de la obra para dar mayor rigidez a la estructura , puesto que en interior , tiene pocas columnas

Presenta una construcción mixta ; de concreto armado prefabricado y estructuras de acero sobre estos .

A N A L I S I S E S T R U C T U R A L

SISTEMA ESTRUCTURAL: APORTICADO

Tanto los sistemas constructivos como los materiales empleados en las diversas fachadas del edificio: vidrio, paneles de GRC y chapa metálica; han sido concebidos para integrarse con el entorno urbano más próximo, estableciendo una conexión en términos de materialidad con los edificios que componen el CCN.

Con un área construida de aproximadamente 86,000 m2, 32,300 m3 de concreto, 3,500 toneladas de acero de refuerzo, 8,000 toneladas de acero estructural, 36,000 m2 de placa colaborante y una participación de más de 16,000 personas; el Centro de Convenciones de Lima se trabajó tipo fast track donde los proyectos de las diferentes especialidades se desarrollaban conforme se iba construyendo.

A N A L I S I S E S T R U C T U R A L

Sala plenaria: La estructura espacial del acero del techo de la sala plenaria ubicada en el nivel más alto, que cubre un área de 5,250 m2, está sostenida sobre los cinco núcleos de concreto, debido a que no pasan las columnas interiores

SISTEMA ESTRUCTURAL

Sótanos: En las áreas del sótano se han usado elementos prefabricados, cuyas bases son de 7 m x 7 m con columnas de 16 m de altura. Las vigas fueron llenadas en dos etapas para lograr las adecuadas conexiones con las columnas y los techos fueron con prelosas de hasta 10 m de longitud

Niveles: A fin de disminuir las cargas a la estructura se utilizó un concreto liviano o ligero para los falsos pisos de las losas que están construidas con placa colaborante

A N A L I S I S E S T R U C T U R A L

GEOMETRIA ESTRUCTURAL

La geometria estructural de la edificacion se sostiene en una malla exclusiva para las columnas de grandes dimensiones y las placas de las escaleras, mientras que la otra malla proviene de las columnas de menor dimencion pero que a su vez son importantes ya que estas ayudan y refuerzan el sostenimiento de los pesos que cargan las de grandes dimensiones, siendo asi ambas mallas de forma ortogonal y tramado tipo damero.

A N A L I S I S E S T R U C T U R
L
A

SALAS DE NEGOCIOS

SALAS DE CONFERENCIA SÓTANO

ESPACIO CENTRAL

ESTACIONAMIENTO

SSHH

HALSS

ZONAS DE SERVICIO

ZONAS SOCIALES ALMACENES

TERRAZAS COCINA CAFETERÍA

D I
G R A M A D E R E L A C I O N E S
A

CENTRO DE CONVENCIONES AGORA

AGORA , BOGOTA

FICHA TÉCNICA

AMERICA DEL SUR

COLOMBIA BOGOTA

DATOS

UBICACIÓN: Ubicada en la ciudad de Bogota - Colombia

ESTILO ARQUITECTÓNICO: Arquitectura

Moderna

ESTUDIO DE ARQUITECTURA: Estudio

Herreros

INAUGURACIÓN: 2017

PISOS : 5

ÁREA DEL TERRENO : 70000 m²

USUARIO HUESPEDES - NACIONALES E INTERNACIONALES

PUBLICÓ EN GENERAL

UBICACIÓN

Implementar diferentes fachadas para crear miradores hacia aéreas ecológicas que conforman la ciudad, como los cerros y la sabana

Hacer uso de los cuerpos verdes de alta influencia que esten cercanos al Ágora, permitiendo asi la extension del espacio publico del edificio.

Hacer uso de la monumentalidad para permitir concebir al Ágora como un fragmento de la ciudad encapsulado que a través de la verticalidad genera un hito ciudadano.

Implementar la arquitectura internacional como conexión urbana y global. Cambiando la morfología habitual de la ciudad en un sector de diferenciación tipológico.

Crear una infraestructura asociada al poder económico visto cómo un contenedor de arquitectura efímera, que cuente con la flexibilidad espacial para adaptarse a las necesidades de la función.

PROYECTUALES
IDEAS

CONTEXTO INMEDIATO:

LEYENDA

1.Centro de Eventos

2.Cafeteria

3.Centro Comercial San Andresito

4.Mercado Paloquemao

5.Hospital Universitario Mayor Mederi

6.Universidad Nacional de Bogota

LEYENDA

1.Compañia Telefonica.

2.Servicio de Estacionamiento

3.Fabrica de Plásticos

4.Restaurante la campiña bar.

5.Centro de Eventos

6.Tienda OXXO

7.Hotel Bogota

8.Centro Cultural

Esta estrategicamente ubicado en AC. 24#28-47. Al costado de la Av Esperanza

CONTEXTO MEDIATO: TOPOGRAFÍA

La topografía en la ciudad de Bogotá, presenta relieves bajos, planos y montañosos, todos correspondient es a la cordillera Oriental en ambos flancos.

AV
Vía secundaria carrera 38 Vía secundaria carrera 40 C O N T E X T O
La Esperanza
A"" A B B" A A" B B"
ACCESIBILIDAD

El centro de convenciones AGORA se encuentra alejados de los aeropuertos siendo , lo cual hara que no se genere ruidos molestos debido a su lejania , ademas que posee una ubicación estrategica debido a que esta 4km del centro historico de Bogota siendo de mucha ayuda para la acogida del publico

El centro de convenciones AGORA hace uso de areas verdes para generar un micro aislamiento el transito en genera debido a su ubicación alado de una avenida y rodeado de 2 calles , en la cual su acceso peatonal y vehicular es por calles evitando asi la congestion en la avenida tanto peatonal como vehicular y asi generando una buena circulación

C O N T E X T O

Es lineal con secuencias de espacios interelacionados directamente , ya sea n importantes ,funcionales o simbolicamente conectando de una manera flexible y tambien un tipo de organización espiral en base a un sistema de escaleras

AMBIENTES

1 gran vestibulo principal

15 salas de encuentro de reunión

2 grandes salas de exposición

,banquetes o presentaciones

Un gran auditorio

Ágoras - vestíbulos - jardines -

terrazas que constituyen espacios abiertos.

Aparcamiento de vehículos

Bicicletas

19 ascensores

12 escaleras

1 gran cocina

A N A L I S I S F U N C I O N A L
ORGANIZACIÓN

ZONIFICACIÓN

La planta 1 es netamente receptiva permitiendo asi los grandres espacios para los huesped

A N A L I S I S F U N C I O N A L

ZONIFICACIÓN

Algunas zonas sociales se encuentran cerca de la zona de servicios obteniendo así una mala relacion con los espacios.

A N A L I S I S F U N C I O N A L

ZONIFICACIÓN

Algunas zonas sociales se encuentran cerca de la zona de servicios obteniendo así una mala relacion con los espacios.

A N A L I S I S F U N C I O N A L

ZONIFICACIÓN

La zona de servicio se encuentra a mas distancia del gran salón, obteniendo así una relación indirecta..

A N A L I S I S F U N C I O N A L

CIRCULACIÓN

ACCESOS :

PRINCIPAL SECUNDARIO

SERVICIOS

VEHICULAR

CIRCULACIÓN :

SERVICIO

FLUJO MAYOR

FLUJO MENOR

HUESPED

FLUJO MAYOR

FLUJO MENOR

VERTICAL

CIR.VERTICAL

Los flujos de circulación de servicios se distribuyen por los bordes de la edificación, mientras que la circulación del visitante es céntrica, din embargo en sus accesos hay intersecciones de ambos flujos

A N A L I S I S F U N C I O N A L

CIRCULACIÓN

CIRCULACIÓN :

SERVICIO

FLUJO MAYOR

FLUJO MENOR

PUBLICO

FLUJO MAYOR

FLUJO MENOR

VERTICAL

CIR.VERTICAL

Las circulaciones se manejan en torno al espacio central, teniendo los espacios de servicios circulando por los bordes del proyecto, con la intención que las visuales del visitante se aprovechen mas interna que externamente.

A N A L I S I S F U N C I O N A L

CIRCULACIÓN

CIRCULACIÓN :

SERVICIO

FLUJO MAYOR

FLUJO MENOR

PUBLICO

FLUJO MAYOR

FLUJO MENOR

VERTICAL

CIR.VERTICAL

Las circulaciones se manejan en torno al espacio central, teniendo los espacios de servicios circulando por los bordes del proyecto, con la intención que las visuales del visitante se aprovechen de la misma manera que el segundo nivel.

A N A L I S I S F U N C I O N A L

CIRCULACIÓN

CIRCULACIÓN :

SERVICIO

FLUJO MAYOR

FLUJO MENOR

PUBLICO

FLUJO MAYOR

FLUJO MENOR

VERTICAL

CIR.VERTICAL

Las circulaciones se manejan en torno al espacio central, se reduce el flujo de circulación de servicios y se dividen solo en los 4 extremos de la edificación para que se generen terrazas y espacios con visuales al exterior

A N A L I S I S F U N C I O N A L

El centro de convenciones es un volumen en forma de cubo destajado. su configuración es densa y vertical que permiten liberar una cantidad notable de espacios.

Podemos destacar que gracias a sus destajos logra una fachada que se comporta como una piel sensible de respuesta variable que reacciona a las condiciones cambiantes en temperatura, soleamiento y humedad del clima bogotano

A N A L I S I S F O R M A L

PROPORCIÓN Y ESCALA

Las fachadas aun son un esbozo de un mundo lleno de posibilidades pero ya manifiestan la vocación de hacer de las mismas un acontecimiento plástico que muestre tanto en la escala inmediata como en la larga distancia una impronta de marcada personalidad, reconocible como imagen internacional de la ciudad

El contraste que resalta e esta edificación esta en sus materiales en combinación con la luz ya que produce un color cálido y tonos oscuros en los vacíos y algunas caras del volumen donde son mas opacas que en las otras, en juego con los elementos verticales del acero y también con respecto al tamaño de la edificación con su entorno y sus pilares cuadrados de color rojo

A N A L I S I S F O R M A L
CONTRASTE

TRANSFORMACIONES VOLUMETRICAS

El volumen cuenta con sustracciones internas ademas de jugar con las alturas genera visuales, a este volumen se le a adiciona un paralelepípedo de menor escala que funciona como un puente peatonal.

A N A L I S I S F O R M A L

TIPOS DE ESPACIOS

AGORA ROMANA: La imagen nos muestra como es que nace la idea de la forma volumetrica y espacial de la edificación

PANTEON DE ATENAS: Observamos que el acceso al panteon de atenas fue inspiracion para luego ser plasmada en la edificacion..

Observamos que se trata la permeabilidad y continuidad como elementos configuradores de espacios de encuentro para la interacción social, ademas de funcionar como delimitadores estos espacios también funcionan como integradores. cuando hablamos de continuidad se busca configurar un espacio accesible que te permita ingresar, permanecer e irse de manera fluida mediante elementos arquitectonicos como galerias senderos, banquetas, cambios de nivel delimitan un gran espacio permitiendo a su vez la permeabilidad de este mismo.

ESPACIOS PRINCIPALES ESPACIOS CONECTOR ESPACIO RECEPTIVO ESPACIOS SECUNDARIOS

A N A L I S I S E S P A C I A L
RELACIÓN ESPACIAL

ASOLEAMIENTO Y VENTILACIÓN

VIENTOS (SE - NO): la direccion de los vientos predominantes son de Suroeste a Noroeste. aprovechando la orientacion estrategica permitiendo asi una ventilación cruzada

ASOLEAMIENTO (O - S): Se da mas por la fachada mientras que en el solsticio de invierno, debido a la altura que presenta el edificio no presenta un buen asoleamiento.

A N A L I S I S T E C N O L O G I C O

ASOLEAMIENTO Y VENTILACIÓN

COORDENADAS CELESTES

ANÁLISIS

Esta información es útil para entender mejor la ubicación y orientación del edificio y cómo estas influyen en el flujo de aire y el uso de la luz solar. Esto es importante para garantizar una buena ventilación y una adecuada cantidad de luz solar para el interior del edificio. Esto puede ayudar a asegurar que el edificio sea cómodo y saludable para los ocupantes.

VIENTOS (SE - NO) ASOLAMIENTO (O - S)

SOLSTICIO DE INVIERNO SOLSTICIO DE VERANO

Durante esta época del año, la luz del sol entra desde el lado O-S, haciendo que las fachadas más expuestas estén orientadas hacia el Suroeste Sureste

Durante esta época del año, la luz del sol entra desde el lado Norte, eso significa que las fachadas con mas sol son Noreste y noroeste.

A N A L I S I S T E C N O L O G I C O
JUNIO DICIEMBRE

HORAS DE SOL

Al observar la trayectoria del sol y la forma en que cae su sombra por medio de una volumetría, nos ofrece una comprensión clara de su impacto en el edificio a lo largo del día. Gracias a esto vemos que emplearon el proyecto con la mejor dirección y ubicación para las ventanas, lo que a su vez les permitia garantizar una buena ventilación y una adecuada cantidad de luz solar para el interior del edificio, logrando así un proyecto con confort.

A N A L I S I S T E C N O L O G I C O
ANÁLISIS 8am 3pm 12pm AGOSTO SEPTIEMBRE OCTUBRE 8am 3pm 12pm 8am 3pm 12pm

Los elementos utilizados se caracterizan por su sencillez y proporcionan una comprensión directa de cómo opera el edificio.

Materiales predominantes dentro y fuera de la edificación.

Con una arquitectura que se extiende por más de 70.000 metros cuadrados, el edificio es una vertical apilada con una intención de ser compacta. Los elementos que lo componen, desde la estructura, la fachada, los equipos y las instalaciones, se encuentran perfectamente integrados. La estructura se divide en cuatro grandes patas que sostienen el edificio, organizan sus recorridos y dejan espacios amplios.

A N A L I S I S C O N S T R U C T I V O
MATERIALIDAD
Concreto Acero
Vidrio
SISTEMA CONSTRUCTIVO

Turn static files into dynamic content formats.

Create a flipbook
Issuu converts static files into: digital portfolios, online yearbooks, online catalogs, digital photo albums and more. Sign up and create your flipbook.
CASOS ANALAGOS - CENTRO DE CONVENCIONES UPAO G4 TALLER 6 by Enzo Vega - Issuu