PORTAFOLIO - TALLER PRE PROFESIONAL DE CONSTRUCCION SOSTENIBLE - UPAO 2023-01

Page 1

POR TAFO LIO

INTROD

"ElpresenteportafoliodigitalcontienelaproducciónacadémicadelTallerPre ProfesionaldeConstrucciónSostenibledesarrolladoenelsemestre2023-01enla EscueladeArquitecturadelaUniversidadPrivadaAntenorOrrego.Eltallertuvo comoobjetivoeldesarrollodeunacoleccióndeviviendasdiseñadasconcriterios sostenibles,ecológicos,energéticosrenovablesybioclimáticos.Laspropuestasestán ubicadasendiversasregionesclimáticasdelPerú,principalmenteselvaysierra,cada unadeellasconsuspreexistenciasambientales,característicassocialesynecesidades térmicasparticulares.Esteejercicioaplicativobuscainstruiryejercitaralestudiante dearquitecturaenunametodologíadeanálisisqueinterrelacionalasdinámicasentre elmedioambiente,energíanaturalyarquitectura" Arq.JuanDiegoGarciaHonores

UCCIÓN

CERRODEPASCO ABANCAYHUARAZCHACHAPOYASPERENÉ1 2 3 4 5
ÍNDICE

ASPECTOS GENERALES

Ubicaciónylocalización

ANÁLISIS DE VARIABLES CLIMATICAS

Temperatura/Radicaciónsolar/Horasdesol/Humedad/ Precipitaciones/Vientosydirección/Nubosidad Consecuencias/RosadeVientos

ANÁLISIS PSICROMETRICO

AbacoP.Givoni/Estrategias

ANÁLISIS DE CASOS

Materiales/AnálisisGráfico/CuadroZonas-Ambientes/ Planimetría/Elementos/Ventajas

CARTA ESTEREOGRÁFICA

Orientación/Propuestas 05

01 06 02 07 03 08 04 09 10

PROPUESTA DE MATERIALES

Techo/Muro/Piso/Puertas

Proveedores

ELECCIÓN DEL TERRENO PROYECTUAL

Área/PerfilUrbano/Forma/Frentes/Latitud /Longitud/ Altitud

PERFIL DEL USUARIO

Población/Actividades/Edades/GradodeInstrucción/ ActividadesEconómicas

PROPUESTA

PlotPlant/Planosarquitectónicos/Cortes/Elevaciones/ Planosestructurales/PlanodeCimentación

CONCLUSIONES

CONTENIDO

A B A N C A Y

"Valledelaeternaprimavera"

UbicaciónyLocalización 0 1

Abancay

UBICACIÓNYLOCALIZACIÓN

PERÚ APURIMAC ABANCAY

DESCRIPCIÓN

Abancay,eslacapitaldeldepartamentodeApurimac seubicaalSURESTEdelPERU.

SelimitaporelSURconlaprovinciadeAntabamba, alSURESTEconlaProvinciadeGrau,Osteconla provinciadeAndahuaylasyporelNORTEconel departamentodeCuzco.

CARACTERÍSTICAS

DATOS

TEMPERATURA

Enelmesdejuliosepresentalas temperaturasmasbajasenAbancay llegandoa3.2°C

13

HORASDESOL

Se encuentra mayor cantidad de meses en las que hay mayor durabilidaddelsol.

O72°52'53"

RADIACIÓN

enAbancayseregistra3nivelesaltos deradiaciónsiendoelmasaltode 7.55enelmesdeEnero.

2.377m.s.n.m.

3447km2

INTERANDINOBAJO

HUMEDAD PRECIPITACIONES

En Abancay se encuentran porcentajesaltosdehumedad,siendo estosperjudicialesparalasalud.

Elnivelmásaltodeprecipitaciónes enEnerocon157mm

VIENTOS

Lavelocidadmáximaesde29.0km/h

LATITUD LONGITUD ALTITUD SUPERFICIE
Z.BIOCLIMÁTICA
AnálisisdeVariablesClimáticas 02

TABLADERESUMENDEVARIABLESCLIMATICAS

ENEROFEBREROMARZO ABRIL MAYO JUNIO JULIO AGOSTOSETIEMBRE OCTUBRENOVIEMBRE DICIEMBRE

TEMPERATURA

Temperaturamáx: Enero (14.9°C)

Temperaturamín: Agosto(3.2°C)

149mm 2mm 137mm 15 10 5 0 70% 81% 81% 82% 72% 71%
PRECIPITACIÓN
NUBOSIDAD
VIENTOS HUMEDAD RADIACIÓN nubo.máx:100% nubo.min28%: MAYORMENTENULADO MAYORMENTENULADO MAYORMENTEDESPEJADO Probabilidad:64% Máx:157mm Min:2mm 54mm 157mm 135mm 9mm 4mm 3mm 33mm 7mm 78mm 79% 73% 69% 72% Predominante: Noroeste velocidadmáx: 29.0km/h velocidadmín: 18.0km/h 18.0km/h 29.0km/h NO SSO NO N NNE ENE SO NNO SO ENE SE SSO Humedadmáx:82% Humedadmin:70% 6.9 Kwh 70 Kwh 64 Kwh 6.0 Kwh 6.3 Kwh 75 Kwh 6.5 Kwh 60 Kwh 59 Kwh 6.4 Kwh 71 Kwh 73 Kwh MayorRad.:Ene MenorRad.:Set 3.2°C 14.9°C zonadeconfort 25 15 5 76% 81%

CONSECUENCIAS

ROSADEVIENTOS

ALERGIAS RESPIRATORIAS

ASMA

PROBLEMAS EN LA PIEL PÉRDIDA DE CULTIVOS

Fuente:Meteoblue

Intensidad del viento Efectos

Calma (0-1 km/h) Nohaymovimientoperceptibledelaire.

Brisa suave (1-10 km/h) Elvientoesapenasperceptibleynocausaningúnimpacto.

BAJAS

TEMPERATURAS

INUNDACIONES

Brisa moderada (10-20 km/h) Sesienteunvientoagradableyrefrescante.

AnálisisPsicrométrico 03

ANÁLISISPSICROMETRICO-GIVONI

CONDICIONES METEREOLOGICAS ENE FEB MAR ABR MAY JUN JUL AGO SET OCT NOV DIC TEMPERATURA °C Max 14.9 14.7 14.8 14.7 14.6 14.4 14.4 15.4 15.9 16 16.1 15.3 Min 7.4 7.5 7.3 6.3 5.3 3.9 3.2 4.1 5.4 6.6 7.3 7.5 HUMEDAD % Max 92 94 93 91 92 93 93 91 91 90 90 92 Min 62 67 69 62 59 56 56 52 56 57 59 59

VENTILACIÓNCRUZADA

Tipodeventilaciónporefecto Venturi.Senecesitanfuertevientos, asícomounaorientaciónadecuada.

MUROSDEABSORCIÓN

Utilizacióndemurostrombes captadoresdecalorquepermitan brindarmayorconforten temperaturasbajas.

VENTANACENITAL

Mediantelautilizacióndeelementos virtualescomoelvidrio,permitiendo captarluzsolar.

TECHOSDOBLEAGUA

TipodeventilaciónporefectoVenturi. Senecesitanfuertesvientoscon orientaciónadecuada.

TECHOSELEVADOSDOBLEALTURA

aberturasrealizadasenfachadas opuestasdandoalexterior.

USOSDECUBIERTAS MADERA

Planteamientoestructurasdemadera paralacubiertaa2amásaguas

AnalisisdeCasos 04

ANÁLISISDECASOS

MATERIALES YESO ADOBE PAJA TEJAS

Muros(5%)

Pisos(10%)

ELEMENTOS VENTAJAS

Muros con grosor de 40 cm que estánreforzadascongeomallasde polímero.

Usodetechosadosaguas,quetieneun inclinaciónde20°.

Muros(95%)

MADERA

Techos(15%)

Tiene doble puerta y ventana para mejorar el aislamiento térmico, conservandoelcalor.

Acondicionamiento adecuado para climas muyfríos

Viviendaenmejorrespuestaantesismos.

Reducción de la contaminación intradomiciliaria

Adecuado aislamiento térmico interno condistintasestrategias.

ANÁLISISGRÁFICO

Techos(85%) (machimbrada)

RENOVACIÓNDEAIRE

PRECIPITACIONES AIREFRIÓ

ASOLEAMIENTO HUMEDAD

Malo Bueno

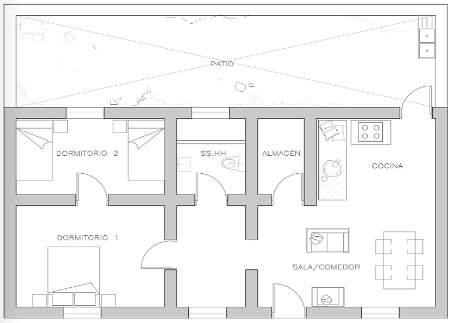
PLANTA1erPISO

CASO 01 - VIVIENDA MI ABRIGO

ZONAALTOANDINA- CERRODEPASCO

CUADROZONASYAMBIENTES

ZONA AMBIENTES AREA SOCIAL Vestibulo 2.10m2 Cocina-fogón 1.15m2 Comedor-Dormitorio 18.90m2 Patio-Tendal 12.50m2 SERVICIO SSHH 42m2 CIRCULACIONYMUROS 30%

ANÁLISISDECASOS

MATERIALES

ELEMENTOS VENTAJAS

Usodeinvernaderosparalacaptación

Muros(5%)

yalmacenamientodeenergíaparael aumento de la temperatura en el interiordelavivienda.

Se logra obtener espacios con un mejor conforttérmico.

Viviendas mas adecuadas para las familiaspobres.

Muros(95%)

Muros con grosor de 30 cm a base de adobeypiedra.

Uso de techos a doble agua con porcentajesdeinclinaciónvariables.

Viviendas ecoamigables al utilizar materialesnoindustriales.

Adecuado aislamiento térmico interno con distintas estrategias de captacion solar.

Techos(5%)

ANÁLISISGRÁFICO

Techos(95%)

Simple(invernadero)

PIEDRA ADOBE
TEJA MADERA VIDRIO
PRECIPITACIONES AIREFRIÓ ASOLEAMIENTO HUMEDAD
Malo Bueno

PLANTA1erPISO

CUADROZONASYAMBIENTES

CASO 02 - VIVIENDA ANTI HELADA

ZONAMESOANDINO- PUNO

ZONA AMBIENTES AREA SOCIAL Comedor 100m2 Cocina-Fogón 12.0m2 PRIVADA Dormitorio1 15.0m2 Dormitorio2 120m2 CIRCULACIONYMUROS 30%
CartaEstereográfica 05

CARTAESTEREOGRÁFICA

PROPUESTA PRELIMINAR DE AMBIENTES

FACHADANO-SW

Según el análisis de nuestra carta tomandoencuentalossolsticiosdeinv y verano, podemos ver que el mes má puedellegaralos3.2°C.

DORMITORIOS- SALA DE E

En esta propuesta obtenemos radiacion solar en 3 fachadas durante la mañana la fachadaorientadahacia el noroeste, recibe radiacionsolardurante lashorasdelamañana hasta las 12:40 del mediodia.

La orientacion y proporcion del volu pensado para obtener facahdas mas orientarlas hacia donde el sol tie insidencia durante el dia, de esta ma mayorareadecaptacionsolar.

21 Junio - solsticio de invierno.

21 May - Julio

21 Abril - Ago

ORIENTACIÓN NO - SW

-CAPTARINCIDENCIASOLAR

-BLOQUEO DE MASAS DE AIRE DIRECTAS

Debido a la necesidad de elevar la temperatura ubicamoslaviviendaenunaorientación(NO-SW)que puedacaptarmayorradiaciónsolarymenorráfagade vientofrioprovenientedeSE

SOLSTICIO DE INVIERNO

Lasfachadasnooesteysurestereciben radiaciondesdelas12:40hatalas5:32 delatarde.

SOLSTICIO DE VERANO

La fachada orientada hacia el sureste, no recibe radiacion solar durante todo el dia, podria ser aprovechada para renovacion de aire ya que los vientos dominantesvienenenesadireccion.

-COORDENADASCELESTES

Feb - Oct
Ene - Nov
21 Mar - Sep 21
21
solsticio
ORIENTACION Salida Puesta Total de horas Noreste 6:20 12:30 06:10 Noroeste 8:58 18.20 09:18 Suroeste 14:40 18:20 03 40 Sureste - - -
21 Dic -
de Verano.
PropuestadeMateriales 06

MATERIALES: TECHO LISTONES

TECHO A DOS AGUAS

El sistema esta basado en la colocación de los materiales estratégicamenteparaquefuncionedeacuerdoalclimaasí poderaprovecharmejorlatemperaturainteriorporesose utilizalapajaylalana.

El empleo de este tipo materiales cumple según la norma por ende cumple con su función de evitar la perdida de calordelinteriordelavivienda. Lanadeoveja

LEYENDA

Re:

Rsi:Resistencia

Superficialinterna

R:

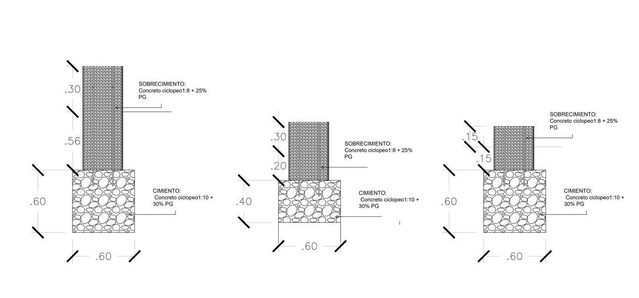
ZONABIOCLIMÁTICA TRANSMITANCIATÉRMICA MÁXIMADELMURO TRANSMITANCIATÉRMICA MÁXIMADELTECHO TRANSMITANCIA TÉRMICAMÁXIMADEL PISO InterandinoBajo 0.57 0.42 0.70
Material e (m) y= Coeficiemte de transmisión térmica (W/M K) Resistencia térmica (W/m².K) TEJADO 0.1 1.00 0.10 LISTONDEPINO 002 013 015 LISTONALISO 0.1 0.15 0.67 LANA 0.05 0.040 1.25 RSI (SEGÚN EM 110) 0.17 RSE(SEGÚN EM 110) 005 RESISTENCIA TOTAL 2.39 TRANASMITANCIA TÉRMICA(W/M².K) 0.42
Resistencia
Superficialexterna
Resistencia
de maderaaliso
U:Transmitencia Listones
DE ALISO LANA DE OVEJA TEJA ARTESAMAL
Tejaartesanal
depino
DE PINO
Listondemadera
LISTONES

MATERIALES: MURO

Elmuropropuestoesuntipoqueseencuentracompuesto de distintos materiales del centro de estudio ´´Abancay´´, conelfindelograrunconforttérmicoenlosambientesde laviviendaquesevaproponer.

Teniendo en cuenta el análisis climático del distrito de Abancay, se plantea el muro propuesto, que consiste en proponermaterialestermoaislantesyqueseencuentrenen lazona.

RSI (SEGÚN EM 110) 006

RSE(SEGÚN EM 110) 011

RESISTENCIA TOTAL 1.74

TRANASMITANCIA TÉRMICA(W/M².K) 0.57

LEYENDA

Re:

R:

ZONABIOCLIMÁTICA TRANSMITANCIATÉRMICA MÁXIMADELMURO TRANSMITANCIATÉRMICA MÁXIMADELTECHO TRANSMITANCIA TÉRMICAMÁXIMADEL PISO InterandinoBajo 0.57 0.42 0.70
Resistencia Superficialexterna
Rsi:Resistencia Superficialinterna
Resistencia
Material e (m) y= Coeficiemte de transmisión térmica (W/M K) Resistencia térmica (W/m².K) PIEDRACALIZA 0.10 1.3 0.77 PAJACONBARRO 0025 009 028 ADOBE 0.30 0.9 0.33 MADERAPINO 0.025 0.13 0.19
U:Transmitencia
MADERA DE PINO PAJA CON BARRO PIEDRA CALIZA Adobe30x15 Barroypaja Piedracaliza
MURO COMPUESTO POR ADOBE ADOBE
Listondemadera depino

MATERIALES: PISO

El sistema esta basado en la colocación de una capa de piedracalizasobreellosiraunacapadepajaparabrindar aislamiento térmico, seguido a ello se colocara un entabladodelistonesdemaderaparafinalmentecolocarel pisodemadera.

Elempleodeestetipodepisoevitaraquelatemperaturade la vivienda se fuge del ambiente hacia el suelo, por otro ladoimpediráelingresodehumedadalinterior.

R Su R Su R U
Material e ( m) Coeficiente de conductividad térmica ( W/MK ) Resistencia térmica ( W/m2.K) MADERAPINO 0.02 0.13 0.15 LISTONPINO 0.03 0.13 0.23 PAJA 002 009 022 PIEDRACALIZA 0.5 1.3 0.65 RSI ( Según Norma EM 110 ) 0.09 RSE ( Según Norma EM 110 ) 0.09 Resistencia Total 1.43 COF. TRANSMITANCIA TÉRMICA 0.70 MADERA DE PINO PAJA PIEDRA CALIZA Maderapino Listonesde maderapino Pajadetrigo Piedracaliza ZONABIOCLIMÁTICA TRANSMITANCIATÉRMICA MÁXIMADELMURO TRANSMITANCIATÉRMICA MÁXIMADELTECHO TRANSMITANCIA TÉRMICAMÁXIMADEL PISO InterandinoBajo 0.57 0.42 0.70
LISTONES DE ALISO

MATERIALES: PUERTA

PUERTA AISLANTE TERMICA

El sistema esta basado en una capa aislante dentro de la puertaabasedepaja,paraevitarlasperdidasdecalor. Alcontarconprotecciónadecuadaenlosvanos,seevitara laperdidadecalorexcesivadurantelanoche.

Material e (m)

y= Coeficiemte de transmisión térmica (W/M K) Resistencia térmica (W/m².K)

Listonpino 005 014 035

maderapino 0.03 0.12 0.25

pajadetrigo 004 009 044

RSI (SEGÚN EM 110) 017

RSE(SEGÚN EM 110) 013

RESISTENCIA TOTAL 1.34

TRANASMITANCIA TÉRMICA(W/M².K) 0.74

LEYENDA

Re: Resistencia

Superficialexterna

Rsi:Resistencia

Superficialinterna

R: Resistencia

U:Transmitencia

Pajadetrigo Hojademadera pino Marcodelistones maderapino MADERA DE PINO PAJA LISTONES DE PINO ZONABIOCLIMÁTICA TRANSMITANCIATÉRMICA MÁXIMADELMURO TRANSMITANCIATÉRMICA MÁXIMADELTECHO TRANSMITANCIA TÉRMICAMÁXIMADEL PISO InterandinoBajo 0.57 0.42 0.70

MADERA,PINOYALISO

Proveedorpino"MadereraMadredeDios"

Proveedoraliso"ServiciosGeneralesRedverSrl"

Preciopino$15.90soles(U)

Precioaliso$2490soles(U)

Horadeviajehastaelproyecto:20min

Proveedor"FabricadeyesoCheccllo" Precio$15soles(Saco)

Horadeviajehastaelproyecto:15min

PIEDRACALIZA

Proveedor"Proveedoresdelazona" Precio$50-100soles(T)

Horadeviajehastaelproyecto:30min

1 2 01 02 03
PROVE
YESO
3

PAJADETRIGO

Proveedor"AsociaciónAgroIndustrial EspigadeTrigoAbancay"

Precio$15soles(F)

Horadeviajehastaelproyecto:30min

Proveedor"Proveedordelazona"

Precio$-soles

LANADEOVEJA 06

Horadeviajehastaelproyecto:25min

VIDRIO

Proveedor"VidrieriaMyhomeSRL"

Precio$10285soles(m2)

Horadeviajehastaelproyecto:35min

4 5 6
EEDORES
04
05
TerrenosPropuestos 07

TERRENOSPROPUESTOS

CONTEXTO

ÁREA:

4,560.91m²

PERFILURBANO:

Viviendasde2niveles

FORMA:

RESTAURANTQUINTA

RECREACIONAL

DESCRIPCIÓN

FRENTES:

LATITUD:

VIVIENDASPROXIMAS

LONGITUD:

Elterreno"A"seencuentraubicadoalNortedelaciudaddeAbancaya unadistanciade2511mlaprox.delcentrodelaciudad.,seencuentran terrenoscongrandesáreasparacultivo.

Comocontextoinmediatotenemoscamposdecultivos,Restaurantes campestresyalgunasviviendas.

Serviciosbásicosconlosquecuentaelterreno:

ALTITUD:

HUERTOS

Accesibilidad:

Esunterrenoaccesible,yaqueseencuentraalasalidade Abancayyestacercaalasvíasprincipales,sucallecuenta con5.00metrosdeanchodevíaconposibleaccesibilidad atransporteterrestre.

IRREGULAR 13 12.377m.s.n.m

TERRENOSPROPUESTOS

CONTEXTO

ÁREA: 1945m²

PERFILURBANO:

Viviendasde2nivel

FORMA:

DESCRIPCIÓN

Elterreno"B"seencuentraubicadoalNorestedelaciudaddeAbancay a una distancia de 1612 ml aprox. del centro de la ciudad., se encuentranterrenoscongrandesáreasparacultivo. Comocontextoinmediatotenemoscementerio,camposdeportivos, viviendasyrestaurantes.

Serviciosbásicosconlosquecuentaelterreno:

VIVIENDASPROXIMAS

Accesibilidad:

Esunterrenoaccesible,yaqueseencuentraalasorillas deAbancayyestaenunadelasvíasprincipales,cuenta con 17.50 metros de ancho de vía con posible accesibilidadacualquiertipodetransporteterrestre.

HUERTOS

FRENTES:

LATITUD:

IRREGULAR 13

LONGITUD:

ALTITUD:

1 -

2.377m.s.n.m

CEMENTERIO

CONTEXTO

DESCRIPCIÓN

Elterreno"C"seencuentraubicadoalsurestedelaciudaddeAbancay a una distancia de 2783 ml aprox. del centro de la ciudad., se encuentranterrenoscongrandesáreasparacultivo. Comocontextoinmediatotenemosunmuseo,ferreterías,viviendas, grifosycircuitodecarrerasycanchasdefutbol.

Serviciosbásicosconlosquecuentaelterreno:

VIVIENDASPROXIMAS

ÁREA: 1945m²

Accesibilidad:

Esunterrenoaccesible,yaqueseencuentraalasalidade Abancay y esta rodeada de las vías principales y esta frenteaunaav.,suvíacuentacon8.00metrosdeancho devíaconposibleaccesibilidadatransporteterrestre.

PERFILURBANO:

Viviendasde2niveles

FORMA:

HUERTOS

FRENTES:

LATITUD:

REGULAR 13

LONGITUD:

ALTITUD:

1 -

2.377m.s.n.m

CRITERIODEELECCIÓNDETERRENOS TERRENO1 TERRENO2 TERRENO3 UBICACIÓN DISTANTEALACIUDAD 2 4 4 4 CERCANOALACIUDAD 4 ACCESIBILIDAD 1VÍADEACCESO 2 2 2 2 2VÍASDEACCESO 4 TOPOGRAFÍA PENDIENTE>a5m 2 2 2 4 PENDIENTE<a5m 4 ORIENTACIÓN N-O 2 6 8 8 NO-SE 4 N-S 6 NE-SO 8 EQUIPAMIENTOS BÁSICOSPRÓXIMOSAL ENTORNO 1DE5 2 8 4 10 2DE5 4 3DE5 6 4DE5 8 5DE5 10 RIESGOSNATURALES RIESGOSDEHUAYCOSE INUNDACIONES 2 4 4 4 SINRIESGOSDEHUAYCOSE INUNDACIONES 4 VEGETACIÓN CAMPOSDECULTIVO 2 4 4 4 CAMPOSSINVEGETACIÓN 4 SERVICIOSBÁSICOS CUENTACON1SERVICIO 2 2 6 6 CUENTACON2SERVICIOS 4 CUENTACON3SERVICIOS 6 TOTAL 32 36 42
PerfildelUsuario 08

PERFIL DE USUARIO

El60%dehombresse dedican a la actividad agropecuariay40%ala ganaderíaycomercio

ACTIVIDADESPORGENERO

El65%demujeresson amasdecasay35%se dedicanalcomercioy artesania.

0-2930-4445-59+60 40.000 30.000 20.000 10.000 0 URBANORURAL 75% 50% 25% 0%
AGRICULTURA 41.7% ARTESANIA 8.3% TURISMO 4.2% POBLACIÓNPOR GENERO 51.4% 35903hab. MUJERES 48.6% 33897hab. HOMBRES
EDAD
5808hab. TIPOLOGÍADEPOBLACIÓN
POBLACIÓNPOR
POBLACIÓN
URIS TA
ACTIVIDADE

ESECONÓMICAS

GRADODEINSTRUCCIÓN

Supera las 10,000 cabezas de ganadovacunoyovino,ademásla crianzadecerdosconunpromedio de1624porcinos.

La agricultura presenta gran variedadcomopapas,maíz,trigo, cebada,quinuayfréjol.

Sucapitalesunpuntoartesanal debido al turismo, destacando la elaboración de productos como tejidos, cerámica y tallado de madera.

ACTIVIDADESLOCALES SUP.UNIV SUP.NOUNIV SECUNDARIA PRIMARIA SINNIVEL 50% 40% 30% 20% 10% 0% COMERCIO 20.8% GANADERIA 16.7% MINERIA 8.3%
GANADERÍA TURISMO
AGRICULTURA

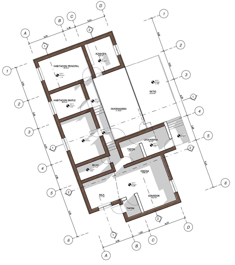
PROGRAMACIÓN

TOTAL 1562.20m2

ZONA SUBZONA AMBIENTE MODULODEVIVIENDA SOCIAL ÁREA-TAPÓN COCINA-COMEDOR SALA SERVICIOS ÁREA-TAPÓN PATIO-TENDAL LAVANDERÍA SSHH INTIMA DORMITORIOPRINCIPAL DORMITORIOSECUNDARIO DORMITORIODOBLE TRABAJODECAMPO AREADECULTIVO PARCELADEPAPA
PARCELADEMAIZ PARCELADECEBADA PARCELADEHABA PARCELADEALFALFA ALMACEN INVERNADERO PARCELAPARA ALMA AREADEGANADO CORRALGANADO CORRALPA CORRALPARA GALPÓN GALPÓNDE ALMACÉNDECOMIDA ÁREADEPASTEO ÁREADETERRENOTO
PARCELADEQUINUA
SOCIAL INTIMA SERVICIOS CULTIVOS GANADO 73m2 42m2 16.7m2 660m2 600m2
ÁREA:

La vivienda está planteada para una familia de agricultores y ganaderoscon3hijos.

Esta familia se dedica a la agricultura y ganadería tiene comonecesidades:

Undormitorioprincipalpara lospapás

Dosdormitoriosparalos3 hijos

Sala

Cocina

Comedor

Servicioshigiénicos

Espacioparaelcultivo.

Espacioparaguardarla cosecha.

Espacioparalacrianzadesu ganado. Almacéndealimentos

AFORO CANTIDAD ÁREATECHADA AREANOTECHADA SUBTOTAL FUENTE 1 1 31536.15 Proyect CerroPasco 6 1 20 - AnálisisdeCasos 5 1 13 - AnálisisdeCasos 1 1 5.519.51 1 - 301 1 8 - AnálisisdeCasos 1 1 6 - AnálisisdeCasos 2 1 1951 ViviendaAbancayypuno 1 1 12 - ViviendaAbancayypuno 2 1 20 - ViviendaAbancayypuno SUBTOTAL 30 106.65 MUROSYCIRCULACIÓN30% - 32 TOTAL 30 138.65 20SURCOS 1 - 150 68.85 Análisisdeusuarioactividadeconómica - 1 - 85 - 1 - 100 Análisisdeusuarioactividadeconómica - 1 - 150 - 1 - 100 Análisisdeusuarioactividadeconómica - 1 - 50 2 1 30 - Viviendapuno AHORTALIZAS 2 1 28 - Viviendapuno ACEN 2 1 10.85 - Viviendapuno ARAOVEJA 20 1 761775 Análisisdeusuario ACAMELIDOS 15 1 76 - Análisisdeusuario EGALLINAS 30 2 10.5 - Análisisdeusuario 1 15 - Análisisdeusuario 850 Análisisdeusuario SUBTOTAL 1485 246.35 MUROSYCIRCULACIÓN30% - 73.91 TOTAL 1485 320.26 ÁREALIBRE 1234.34TAL 3208.25
PropuestaPlanteada 09

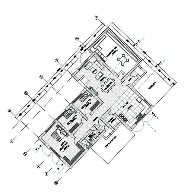
EMPLAZAMIENTO

PLANTA GENERAL

CORTES

CORTE 1 - 1' CORTE
LONGITUDINAL
CORTE 2 - 2' CORTE
LONGITUDINAL
CORTE 3 - 3' CORTE TRANSVERSAL
CORTE 4 - 4' CORTE TRANSVERSAL

ELEVACIONES

ELEVACIÓN SUR
ELEVACIÓN NORTE
ELEVACIÓN ESTE
ELEVACIÓN OESTE
PLANO ESTRUCTURAL

ESTRUCTURAGENERAL

Teja artesanal

Liston de madera rectangular 5 x 10

Paja de trigo

liston de madera 5 x x 15

viga de madera 15 x15 cm

Muro de carga de adobe 40 x 20

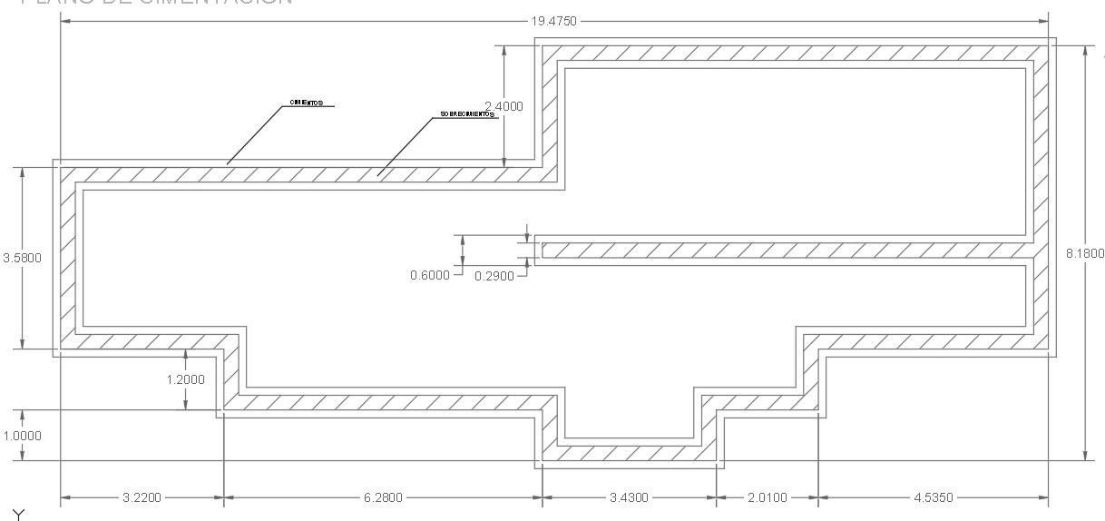
PLANODECIMIENTOS

DETALLE DE CIMIENTOS

ESC 1/50

DETALLE DE MUROS

DETALLE DE MURO EXTERIOR DETALLE DE MURO INTERIOR DETALLE DE MURO TROMBE

DETALLE DE PISO

MADERA ALISO

LISTONES DE MADERA

BARRO CON PAJA

PIEDRA CALIZA

DETALLE DE PUERTAS

PUERTA DE MADERA

VISTA DE ELEVACIÓN

SECCIÓN A-A

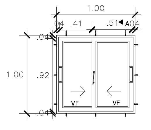
DETALLE DE VENTANA

VISTA DE PLANTA

VISTA DE ELEVACIÓN

A-A

VIDRIOTEMPLADO (0.08M)
POLIETIRENO 1.12X0.70M MARCODEMADERA TORNILLO0.08M
PLANCHADE
VENTANA-
TORNILLODE0.015M LISTONDEMADERA
PORTICÓN PLANCHADEMADERA
TORNILLO(1.04X0.04M)
SECCIÓN

DETALLE DE TECHO

DETALLE DE TECHO

10

VISTAS EXTERIORES

VISTAS INTERIORES

CONCLUSIONES

Benites Salinas, Kevin

ConcluimosqueAbancayseencuentraconmuchosdesafíosencuantoaelconfortclimáticodebidoasu altatemperaturayhumedad,paralocualsehapropuestounaestrategiadediseñoclimáticoysustentable queconsisteenelusodeMaterialeslocales.Buscamosmejorarlahabitabilidadyconfortdelavivienda.

ConcluimosquealdiseñarunproyectoenAbancay,esnecesarioconsiderarelclima.Porloque,se hanpropuestoestrategiasdediseñosustentableutilizandomaterialeslocalescomoeladobeytécnicas constructivasadecuadasparacombatirlasbajastemperaturasdelazonaybrindarleconfortalusuario.

Infantes Sánchez, Jonly

SehanpropuestoestrategiasdediseñoclimáticoparalograrviviendassustentablesenAbancay.Estas estrategiasincluyenelusodematerialeslocalescomotechosymurosanchosdeadobe,quetienenuna altatransmitanciatérmicaysonfácilmentedisponiblesenlazona

Mendieta Maldonado, Aldair

SepuedeconcluirqueAbancaynoseencuentraynollegaalazonadeconfort,porloqueesungran problemaparaeldistritoyaquecuentacontemperaturasmuyfrías,asímismolahumedades relativamentealtapuesessuperioral90%

Michelle Carrasco Miñano

RECORRIDOVIRTUAL

UNIVERSIDAD PRIVADA ANTENOR ORREGO

DOCENTE:

Arq.JuanDiegoGarciaHonores Arq.YsabelSachieKobashigawaZaha

GRUPO 01

BenitesSalinas,Kevin

CarrascoMiniano,Michelle

InfantesSánchez,Jonly

MendietaMaldonado,Aldair

UNIVERSIDADPRIVADAANTENORORREGO-2023

C E R R O

D E

P A S C O

"CiudadRealdelasminas"

UbicaciónyLocalización 0 1

CERRODEPASCO

UBICACIÓNYLOCALIZACIÓN

PERÚ PASCO CERRODEPASCO

DESCRIPCIÓN

UbicadaenlavertienteorientaldelosAndes,enla zona central del territorio peruano. Está vigilada serenamenteporlalagunadePatarcocha ytieneuna geografía privilegiada, con paisajes que incluyen nevados, lagunas, sitios arqueológicos, museos, santuariosybañostermales.

TEMPERATURA

LatemperaturadeHuantavaríaentre los-4°Cenelperiodomásfríoy 14°Cenelperiodomáscaliente.

HORASDESOL

Las horas de sol varían en 45 minutos, por lo que no se ven muchoscambiosconsiderables.

RADIACIÓN

EnCerrodePascoseregistraunaalta radiaciónsolarde6.7KWhduranteel mesdeseptiembre.

HUMEDAD PRECIPITACIONES

El porcentaje de humedad media promedioesde70.9%,elcualsupera elrangoaceptable(40%-60%)

Cerro de Pasco presenta una precipitaciónlíquidaequivalentea15 cmyunasólidade1cmdenieve.

VIENTOS

Lavelocidadmáximaesde10.1km/h

ALTITUD SUPERFICIE Z.BIOCLIMÁTICA 10°40’93"S 76°15’24"O 4330ms.n.m. 697.15km²
CARACTERÍSTICAS LATITUD LONGITUD
ALTOANDINO DATOS
AnálisisdeVariablesClimáticas 02

TABLADERESUMENDEVARIABLESCLIMATICAS

ENEROFEBREROMARZO ABRIL MAYO JUNIO JULIO AGOSTOSETIEMBRE OCTUBRENOVIEMBRE DICIEMBRE

NUBOSIDAD

TEMPERATURA

Temperaturamáx: Noviembre (6°C)

Temperaturamín: Agosto (3°C)

153mm 11mm 126mm 6 4 2 0 73% 80% 72% 77% 73% 74%
PRECIPITACIÓN
VIENTOS HUMEDAD RADIACIÓN Máxima:91% Mìnima:44% 81% 81% MAYORMENTENULADO MAYORMENTENULADO MAYORMENTEDESPEJADO Probabilidad:70% Máxima:153mm Minina:11mm 73mm 151mm 134mm 30mm 11mm 18mm 85mm 35mm 97mm 82% 78% 76% 74% Predominante: Noreste velocidadmáx: 11.7km/h velocidadmín: 9.1km/h 9.1km/h 117km/h NO SSO NO N NNE ENE SO NNO SO ENE SE SSO Humedadmáx:82% Humedadmin:72% 5.7 Kwh 57 Kwh 58 Kwh 5.8 Kwh 6.1 Kwh 58 Kwh 5.7 Kwh 65 Kwh 67 Kwh 6.4 Kwh 62 Kwh 59 Kwh MayorRad.:Dicie. MenorRad.:Enero 3°C 6°C zonadeconfort 30 28 26 24 22 20 18 16 14 12 10 8

CONSECUENCIAS

ALERGIAS RESPIRATORIAS

ASMA

PROBLEMAS EN LA PIEL PÉRDIDA DE CULTIVOS

Fuente:Meteoblue

BAJAS

TEMPERATURAS

INUNDACIONES

Calma (0-1 km/h) Nohaymovimientoperceptibledelaire.

Brisa suave (1-10 km/h) Elvientoesapenasperceptibleynocausaningúnimpacto.

Brisa moderada (10-20 km/h) Sesienteunvientoagradableyrefrescante.

Intensidad del viento Efectos
AnálisisPsicrométrico 03

ANÁLISISPSICROMETRICO-GIVONI

PROTECCIÓNSOLAR

ALTMASATERMICA

ENFRIAMENTOPOR EVAPORACIÓN

AIREACONDICIONADO

DESHUMIDIFICACION

MES ENERO FEBRERO MARZO ABRIL MAYO JUNIO JULIO AGOSTO SETIEMBRE OCTUBRE NOVIEMBRE DICIEMBRE TEMPERATURA Temperatura MAX. 14 10 12 12 12 10 12 14 13 13 14 13 Temperatura min -2 -2 -1 -4 -3 -4 -2 -3 -4 -2 -2 -4 HUMEDAD Humedad min 60 58 55 58 52 51 50 50 53 52 58 58 Humedad max 90 82 85 90 82 81 78 75 76 75 76 80
Z.DECONFORT Z. DE CONFORT PERMISIBLE GANANCIASINTERNAS CALEFACCIÓN SOLARPASIVA CALEFACCIÓN SOLARACTIVA HUMIDIFICACIÓN CALEFACCIÓN CONVENCIONAL
CONV.
TÉRMICAY VENTILACIÓNNOCTURNA VENTILACIÓNNATURALO MECANICA 1 2 3 4 5 6 7 8 9 10 11 12 13 14
MASA

ORIENTACIÒNDEVANOS

Seaconsejatenerlamínimacantidad deventanasquedanalsurestepara evitarrecibirlosvientosfríosy mantenerelcalordentrodelacasa.

TECHOSDOBLEAGUA

Estetipodecubiertacondos pendientes,permitequeelaguapluvial sedesliceysedrenedemanera eficiente,sinpermitirlaestancación.

VENTANASCON PORTICIONES

Aportarámayoraislamientoyuna barreraadicionaldeseguridad,que dependerádelmaterialelegido

REUTILIZACIONDE AGUASPLUVIALES

Estesistemacapta,filtrayreciclade lamismaparausoscomoelriegode plantasy/oelalmacenamientoen tanquesdeinodoros.

MUROTROMBE

Diseñadoparaaprovecharlaradiación solarconelfindecalefactarlas estanciasdeformapasivaeindirecta.

USODEPANELES SOLARES

Tomanlaluzsolarparageneraruna corrientedirecta,lacualestransferiday aprovechadaporlamayoríadelos equiposeléctricos.Haceusodelefecto fotovoltaico.

AnalisisdeCasos 04

ANALISISDECASOS

MATERIALES PIEDRA ADOBE PAJA

Muros(5%) Pisos(10%)

ELEMENTOS VENTAJAS

Muros anchos de 30.00 cm y 40.00 cmparaobtenerproteccióntérmica.

Tiposdetechos:1aguaconinclinación de8°y2aguasconinclinaciónde18°a 20°.

Muros(95%)

Ventanas pequeñas evitando la perdidadecalor.

Ejecución a base de técnicas para encontrar protección de las condiciones climatologicas. Usodematerialespropiosdelazona. No emplea alturas mayores para evitar perdidadecalorenlosambientes.

ANÁLISISGRÁFICO

Techos(5%)

CALAMINA

Techos(95%)

VIDRIO

Simple(perfilmetálico)

RENOVACIÓNDEAIRE

PRECIPITACIONES AIREFRIÓ

ASOLEAMIENTO HUMEDAD

Malo Bueno

CUADROZONASYAMBIENTES

CASO 01 - VIVIENDA RURAL

ZONAALTOANDINA- CERRODEPASCO

ZONA AMBIENTES AREA SOCIAL Patio 33.22m2 PRIVADA Cocina-DormitorioPrincipal 9.23m2 DormitorioDoble 9.23m2 SERVICIO Almacen 9.94m2 CocinaFogon 180m2 Baño-Letrina 1.80m2 A.DETRABAJO Recintodeanimales Aprox.25m2 CIRCULACIONYMUROS 30%
PLANTA1erPISO

ANALISISDECAS

MATERIALES

ELEMENTOS VENTAJAS

Muros anchos de 30.00 cm y 40.00 cmparaobtenerproteccióntérmica.

Muros(5%)

Pisos(10%)

Tiposdetechos:1aguaconinclinación de8°y2aguasconinclinaciónde18°a 20°.

Muros(95%)

Ventanaspequeñasevitandolaperdida decalor.

Ejecución a base de técnicas para encontrar protección de las condiciones climatologicas.

VIDRIO

Techos(5%)

Techos(95%)

Simple(perfilmetálico)

Usodematerialespropiosdelazona.

No emplea alturas mayores para evitar perdidadecalorenlosambientes.

PIEDRA ADOBE PAJA CALAMINA
RENOVACIÓNDEAIRE ANÁLISISGRÁFICO PRECIPITACIONES AIREFRIÓ ASOLEAMIENTO HUMEDAD
Malo Bueno

CUADROZONASYAMBIENTES

CASO 01 - VIVIENDA URBANA

ZONAALTOANDINA- CERRODEPASCO

ZONA AMBIENTES AREA SOCIAL Patio 3322m2 PRIVADA Cocina-DormitorioPrincipal 9.23m2 DormitorioDoble 9.23m2 SERVICIO Almacen 994m2 CocinaFogon 1.80m2 Baño-Letrina 180m2 A.DETRABAJO Recintodeanimales Aprox.25m2 CIRCULACIONYMUROS 30%
PLANTA1erPISO
CartaEsferica 05

CARTAESFERICA

PROPUESTA PRELIMINAR DE AMBIENTES

FACHADASSE-NNW

Según el análisis de nuestra carta solar, tomandoencuentalossolsticiosdeinvierno y verano, podemos ver que el mes más frío puedellegaralos-2°C.

Segúnelanálisisdenuestra carta solar, tomando en cuenta los solsticios de inviernoyverano,

DORMITORIOS- SALA DE ESTAR

FACHADASSE-NNW

Según el análisis de nuestra carta solar, tomando en cuenta los solsticios de inviernoyverano,

Según el análisis de nuestra carta solar, tomandoencuentalossolsticiosdeinvierno y verano, podemos ver que el mes más frío puedellegaralos-2°C.

ORIENTACIÓN SSE-NNW

Segúnelanálisisdenuestracartasolar,tomandoen cuentalossolsticiosdeinviernoyverano,podemos verqueelmesmásfríopuedellegaralos-2°C.

SOLSTICIO DE INVIERNO

Duranteestaépocadelaño,laluzdel sol entra desde el lado noreste, haciendo que las fachadas más expuestas estén orientadas hacia el NoresteyNoroeste

SOLSTICIO DE VERANO

Durante esta época del año, la luz del sol entra desde el lado Sur, eso significa que las fachadas con mas solsonSuresteySuroeste.

-COORDENADASCELESTES

-CAPTARINCIDENCIASOLAR -BLOQUEO DE MASAS DE AIRE DIRECTAS Horasdesol 9:00 12:00 16:00 AZ ALT AZ ALT AZ ALT 20dejunio 11h31min 52,74 33,06 -1,20 55,89 -58,38 23,67 21dediciembre 12h 112,47 47,57 -161,57 77,22 -111,08 32,45
PropuestadeMateriales 06

MATERIALES: TECHO

Eltechode2aguastermoaislanteestacompuestopordos capasdeaceroconunrellenodelanaderocaycubierto porunacapasuperiordepajadeIchu,estoapartirdelas condiciones climáticas siendo las temperaturas entre los 13°a-10°C.

TECHO UN AGUA

Material e (m) y= Coeficiemte de transmisión térmica (W/M K) Resistencia térmica (W/m².K)

PAJAICHU 0.05 1.00 0.05

LANADEROCA 005 0031 016

PAPELMETALICO 0.025 0.440 0.05

MADERA 005 0026 192

RSI (SEGÚN EM 110) 004

RSE(SEGÚN EM 110) 0.13

RESISTENCIA TOTAL 2.18

TRANASMITANCIA TÉRMICA(W/M².K) 0.42

Aislante, lana de roca plancha, Acero galvanizado

LEYENDA

Re: Resistencia

Superficialexterna

Rsi:Resistencia

Superficialinterna

R: Resistencia

U:Transmitencia

Cara exterior, Ichu plancha, Acero galvanizado

TRANSMITANCIA TÉRMICAMÁXIMADEL

Altoandino 1.00 0.83 3.26

ZONABIOCLIMÁTICA TRANSMITANCIATÉRMICA MÁXIMADELMURO TRANSMITANCIATÉRMICA MÁXIMADELTECHO
PISO
PAJA ICHU
MADERA ACERO GALVANI ZADO
LANA DE ROCA

MATERIALES: MURO

Este muro esta compuesto por diferentes números de materiales y diferentes características ,el cual su función consisteencrearunacámaradeaireentredosmateriales: adobeymadera,asicomotambiéneladobeiríareforzado concañadecarrizo

Otracaracterísticadelmuroesqueimpedirálaentradadel fríoexteriorytambiénlapérdidadelcalor.

Revestimiento de yesoe=0.03m

Refuerzo vertical caña carrizo

Bloque de Adobe de20x 30x10cm

LEYENDA

Re: Resistencia

Superficialexterna

Rsi:Resistencia

Superficialinterna

R: Resistencia

U:Transmitencia

Listones de maderatornillo e=0.05m

cámara de airede5cm

Refuerzo horizontal caña carrizo

CARA EXTERIOR DEL MURO Material e (m) y= Coeficiemte de transmisión térmica (W/M K) Resistencia térmica (W/m².K) RECUBRIMIENTO DEYESO 0.03 0.30 0.10 ADOBE 0.35 0.90 0.38 CAÑACARRIZO 0.025 0.122 0.20 AIRE 005 0026 192 MADERA TORNILLO 0.05 0.150 0.33 RSI (SEGÚN EM 110) 004 RSE(SEGÚN EM 110) 0.13 RESISTENCIA TOTAL 3.01 TRANASMITANCIA TÉRMICA(W/M².K) 0.33 CAÑA CARRIZO
YESO ADOBE
CAMARA
AIRE LISTON DE MADERA TORNILLO ZONABIOCLIMÁTICA TRANSMITANCIATÉRMICA MÁXIMADELMURO TRANSMITANCIATÉRMICA MÁXIMADELTECHO TRANSMITANCIA TÉRMICAMÁXIMADEL PISO Altoandino 1.00 0.83 3.26
MURO COMPUESTO POR
DE

MATERIALES: PISO

Seproponeunsistemabasadoenlacolocaciòndecimiento deenrocadorellenadoconpiedrasdecantorodado,sinla colocaciòndemorteroquepermitiràqueelaguanopueda ascenderporcapilaridad.Entrelascorreassecolocaràun capadebarroconpajaquebrindaràaislamientotèrmicoy sobreesteunentabladodemadera,apoyadoellistonesde

PISO PAJABARRO

Capa

LEYENDA

Re: Resistencia

Superficialexterna

Rsi:Resistencia

Superficialinterna

R: Resistencia

U:Transmitencia

PIEDRA DE CANTO RODADO PAJABAR RO
maderatornillo Material e (m) y= Coeficiemte de transmisión térmica (W/M K) Resistencia térmica (W/m².K) PIEDRADECANTO RODADO 025 350 007 BARROCONPAJA 0.02 0.09 0.22 LISTONESDE MADERATORNILLO 005 015 039 MADERATORNILLO MACHIHEMBRADA 002 015 013 RSI (SEGÚN EM 110) 0.04 RSE(SEGÚN EM 110) 0.13 RESISTENCIA TOTAL 093 TRANASMITANCIA TÉRMICA(W/M².K) 1.07
MADERA TORNILLO MACHIHEMBR ADA ZONABIOCLIMÁTICA TRANSMITANCIATÉRMICA MÁXIMADELMURO TRANSMITANCIATÉRMICA MÁXIMADELTECHO TRANSMITANCIA TÉRMICAMÁXIMADEL PISO Altoandino 1.00 0.83 3.26
MADERA TORNILLO
LISTON DE
de piedra de canto rodado sin mortero e = 0,10 m Capa de pajabarro e = 0,02 m
Entablado de Madera tornillo de
x 2.5
Listones de madera tornillo e = 0,02 m (Cada 50 cm)
15
cm e = 0.02 m

MATERIALES: PUERTA

Estesistematérmicoconsisteenubicarunacapadelanade rocaentrelashojasdelapuertaparaevitarlaentradade fríoalinteriordelespacio.Estacapadelanaderocaactúa comounaislantetérmico,manteniendoelcalordentrodel espacio en condiciones de temperaturas bajo cero y la maderaquetambienayudaaconservarelcalor.

PUERTA AISLANTE TERMICA

Resistencia
Material e (m) y= C transmi
002
0.04
0.03
MADERATORNILLO MACHIHEMBRADO 002 RSI (SEGÚN EM 110) 0.04 RSE(SEGÚN EM 110) 0.13 RESISTENCIA TOTAL 1.83 TRANASMITANCIA TÉRMICA(W/M².K) 0.5
mineral 1.00x0.49m
térmico)
R:
U:Transmitencia
PRIMERAHOJADE MADERATORNILLO MACHIHEMBRADO
LANADEROCA
LISTONDEMADERA TORNILLO
SEGUNDAHOJADE
Capadelana
(aislamiento
Listónde maderaTornillo 0.03x1.00m
ZONABIOCLIMÁTICA TRANSMITANCIATÉRMICA MÁXIMADELMURO TRANSMITANCIATÉRMICA MÁXIMADELTECHO TRANSMITANCIA TÉRMICAMÁXIMADEL PISO Altoandino 1.00 0.83 3.26
Madera Machihembrada Tornillo (e=0.02m) Marco contrachapode maderasólida Tornillo
TORNILLO LANA DE ROCA LISTON DE MADERA TORNILLO
MADERA

MATERIALES: VENTANA

Estesistematérmicoconsisteenubicarunacapadelanade rocaentrelashojasdelapuertaparaevitarlaentradade fríoalinteriordelespacio.Estacapadelanaderocaactúa comounaislantetérmico,manteniendoelcalordentrodel espacio en condiciones de temperaturas bajo cero y la maderaquetambienayudaaconservarelcalor.

VENTANA 1

Soporte de Madera Tornillo

Marco de Madera Tornillo e = 0,05 m

Tipo de abertura Oscibatiente

Vidrio doble acristalado ATR

e = 0,024 m

Resistencia Superficialexterna
Superficialinterna
Resistencia
Material e (m) y= Coeficiemte de transmisión térmica (W/M K) Resistencia térmica (W/m².K) VIDRIOSIMPLE 0.004 1.5 0.016 CAMARADEAIRE 0.04 VIDRIOSIMPLE 004 MADERA 0.05 0.026 1.92 RSI (SEGÚN EM 110) 004 RSE(SEGÚN EM 110) 0.13 RESISTENCIA TOTAL 1.936 TRANASMITANCIA TÉRMICA(W/M².K) 0.51 ZONABIOCLIMÁTICA TRANSMITANCIATÉRMICA MÁXIMADELMURO TRANSMITANCIATÉRMICA MÁXIMADELTECHO TRANSMITANCIA TÉRMICAMÁXIMADEL PISO Altoandino 1.00 0.83 3.26
LEYENDA Re:
Rsi:Resistencia
R:
U:Transmitencia
MADERA TORNILLO VIDRIO DOBLE ACRISTALADO CON AISLANTE TERMICO

MATERIALES: INVERNADERO

Este invernadero esta cubierto y acondicionado para mantener una temperatura regular que proteja las plantas de las inclemencias extremas propias del tiempo frío e invernal,heladas,vientosetc,yasievitaremoslasperdidas decultivoenesasépocas

LEYENDA Re: Resistencia Superficialexterna Rsi:Resistencia Superficialinterna R: Resistencia U:Transmitencia Material e (m) y= Coeficiemte de transmisión térmica (W/M K) Resistencia térmica (W/m².K) MADERATORNILLO 0.004 0.150 0.26 PLÁSTICO POLICARBONATO 002 020 01 RECUBRIMIENTO DEYESO 003 030 010 ADOBE 035 090 038 RSI (SEGÚN EM 110) 0.04 RSE(SEGÚN EM 110) 0.13 RESISTENCIA TOTAL 101 TRANASMITANCIA TÉRMICA(W/M².K) 0.99 ZONABIOCLIMÁTICA TRANSMITANCIATÉRMICA MÁXIMADELMURO TRANSMITANCIATÉRMICA MÁXIMADELTECHO TRANSMITANCIA TÉRMICAMÁXIMADEL PISO Altoandino 1.00 0.83 3.26
INVERNADERO
TORNILLO Recubriemto de yeso Plástico policarbonato Adobe madera tornillo ADOBE PLASTICO POLICARB ONATO YESO
MADERA

MADERA

Proveedor"CorporaciónFerreiraPalacios

Precio$73soles

Horadeviajehastaelproyecto:30min

Proveedor"CorporaciónFerreiraPalacios

Precio$73soles

Horadeviajehastaelproyecto:30min

ACERO

Proveedor"CorporaciónFerreiraPalacios

Precio$73soles

Horadeviajehastaelproyecto:30min

01 02 03
YESO

CAÑA

Proveedor"CorporaciónFerreiraPalacios

Precio$73soles

Horadeviajehastaelproyecto:30min

LANADEROCA

Proveedor"CorporaciónFerreiraPalacios

Precio$73soles

Horadeviajehastaelproyecto:30min

MADERA

Proveedor"ElBosqueMaderero"

PrecioS/13solesxplancha

Horadeviajehastaelproyecto:30min

04
05 06
TerrenosPropuestos 07

TERRENOSPROPUESTOS

CONTEXTO

ÁREA: 1.200.00m²

PERFILURBANO:

Viviendasde2niveles

FORMA:

DESCRIPCIÓN

Elterrenoseubicaenlacarretera100queconectaconzonaurbanasy seencuentranterrenoscongrandesáreasparacultivo.

Comocontextoinmediatotenemosunaiglesia,colegios,viviendasy algunasbodegas.

Serviciosbásicosconlosquecuentaelterreno:

VIVIENDAS PROXIMAS

Accesibilidad:

Esunterrenoaccesible,yaqueseencuentraalasalidade del anchodevíaconposibleaccesibilidadatodotipode transporteterrestre.

COLEGIO

FRENTES:

RREGULAR 10°41'44"

LATITUD:

LONGITUD:

4 76°15´48"

ALTITUD:

4340

IGLESIA

TERRENOSPROPUESTOS

CONTEXTO

ÁREA:

1.200.00m²

PERFILURBANO:

Viviendasde2niveles

FORMA:

DESCRIPCIÓN

FRENTES:

LATITUD:

REGULAR 10°40'59"

LONGITUD:

ALTITUD:

4 76°14´14" 4327

VIVIENDASPROXIMAS

Elterrenoseubicaenlacarretera100alasafuerasdelaciudad Comocontextoinmediatotenemoscomercio,áreaagrícola,viviendasy algunasbodegas.

Serviciosbásicosconlosquecuentaelterreno:

ACCESIBILIDAD:

HUERTOS

Esunterrenoaccesible,yaqueseencuentraalaafueras con9.33metrosdeanchodevíaconposibleaccesibilidad atodotipodetransporteterrestre.

COMERCIO

TERRENOSPROPUESTOS

CONTEXTO

DESCRIPCIÓN

Elterrenoseubicaenlacarretera100,seencuentraalasfuerasdel centrodelaciudadconuningresoindirectoalavíaprincipal Comocontextoinmediatotenemosindustria,zonaminerayviviendas.

Serviciosbásicosconlosquecuentaelterreno:

VIVIENDASPROXIMAS

ÁREA: 4,560.91m²

PERFILURBANO:

Viviendasde2niveles

FORMA:

ACCESIBILIDAD:

Esunterrenocondificilaccesibilidad,yaqueseencuentra frenteaunacarreteraangostanoasfaltadascon6metros de ancho de vía con accesibilidad a todo tipo de transporteterrestre.

ZONAMINERA

FRENTES:

IRREGULAR 10°41'40"

LATITUD:

LONGITUD:

4 76°16´02"

ALTITUD:

4320

INDUSTRIA
CRITERIODEELECCIÓNDETERRENOS TERRENO1 TERRENO2 UBICACIÓN DISTANTEALACIUDAD 2 2 2 CERCANOALACIUDAD 4 ACCESIBILIDAD 1VÍADEACCESO 2 4 2 2VÍASDEACCESO 4 TOPOGRAFÍA PENDIENTE>a5m 2 2 2 PENDIENTE<a5m 4 ORIENTACIÓN N-O 2 4 6 NO-SE 4 N-S 6 NE-SO 8 EQUIPAMIENTOS BÁSICOSPRÓXIMOSAL ENTORNO 1DE5 2 2 2 2DE5 4 3DE5 6 4DE5 8 5DE5 10 RIESGOSNATURALES RIESGOSDEHUAYCOSE INUNDACIONES 2 2 4 SINRIESGOSDEHUAYCOSE INUNDACIONES 4 VEGETACIÓN CAMPOSDECULTIVO 2 2 4 CAMPOSSINVEGETACIÓN 4 SERVICIOSBÁSICOS CUENTACON1SERVICIO 2 6 6 CUENTACON2SERVICIOS 4 CUENTACON3SERVICIOS 6 TOTAL 24 28

TERRENOSPROPUESTOS

TERRENO 1

TERRENO 2

TERRENO 3

PerfildelUsuario 08

PERFIL DE USUARIO ACTIVIDADE

El80%dehombresse dedicanalaactividad minera

ACTIVIDADESPORGENERO

El40%demujeresson amasdecasay60%se dedicanalcomercio

TIPOLOGÍADEPOBLACIÓN

20,000 15,000 10,000 5,000 0 URBANORURAL 60% 40% 20% 0% OCUPACION ELEMENTAL 17.8% MILITARES POLICIAS 5.9% CONSTRUCCIÓN 2% POBLACIÓNPOR GENERO 46% MUJERES 55% HOMBRES
0-14años15-29años30-64años+60años
510862hab.
POBLACIÓNPOR EDAD POBLACIÓN

ESECONÓMICAS

GRADODEINSTRUCCIÓN

57.3%

COMERCIANTES 7.9%

Pascoesunaregiónpequeñaque alberga una población de 300 mil habitantes (1% de la población del país).Laregiónconcentrael0,9%de la producción y el 1% de las exportacionesdelpaís.Laeconomía de Pasco está sustentada en actividades mineras y agropecuarias queconcentranel58%desuPBI.

Pascoeslasegundaregiónconmayor produccióndemaca.

Elritmodevidadeunminero puede ser duro y exigente debido a las largas horas de trabajo bajo tierra. Muchas historiassecuentansobrecómo pasan sus días en busca de brillantes piedras, relatos de valentía y cansancio en el mundosubterráneo.

LavidadiariaenCerrodePasco depende en gran medida de la actividad económica de cada persona. La extracción de minerales y piedras preciosas es unalaborfundamentalenlazona, lo que significa que muchos habitantes trabajan en esta actividad bajo condiciones exigentesypeligrosas.

TIPOSDECOMERCIO SUP.UNIV SUP.NOUNIV SECUNDARIA PRIMARIA SINNIVEL 50% 40% 30% 20% 10% 0%
MINERIA
Y
RITMODEVIDADEUN MINERO RITMODEVIDADELA POBLACIÓN
108.67m2
SOCIAL INTIMA SERVICIOS CULTIVOS GANADO 44m2 18.5m2 28015m2 293.8m2 TOTAL 28974.7m2 ÁREA:
PROGRAMACIÓN

La vivienda está planteada para una familia de agricultores y ganaderoscon2hijos.

Esta familia se dedica a la agricultura y ganadería tiene comonecesidades:

Undormitorioprincipalpara

lospapás

Dosdormitoriosparalos3

hijos

Sala

Cocina

Comedor

Servicioshigiénicos

Espacioparaelcultivo.

Espacioparaguardarla cosecha.

Espacioparalacrianzadesu ganado.

Almacéndealimentos

PropuestaPlanteada 09
LIMITEDELTERRENO
DETERCEROS PLANODEEMPLAZAMIENTO-ESC1/100
EMPLAZAMIENTO CARRETERA
PROPIEDAD
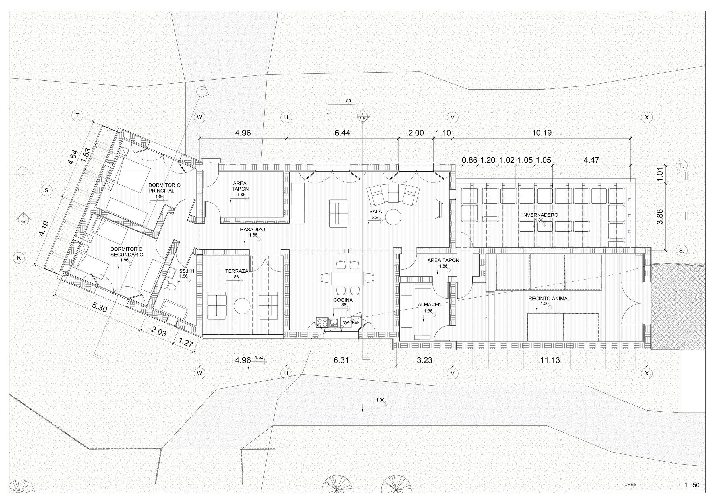
PLANTA GENERAL PLANO DE DISTRIBUCION-ESC 1/50

CORTES

CORTETRANSVERSALA-A"

CORTETRANSVERSALB-B"

ESC.

CORTES

ESC.1/50
CORTELONGITUDINALC-C" CORTELONGITUDINALD-D"

ELEVACIONES

VISTA ESTE
VISTA OESTE
VISTA NORTE
SUR
VISTA

PLANODECIMIENTOS

PLANO DE CIMIENTOS ESC 1/50

DETALLEDECIMIENTOS

C1 C-C" C3 A-A" C2 B-B"
PLANO DE TECHOS PLANO DE TECHOS ESC 1/50

PLANOESTRUCTURAL

PLANO ESTRUCTURAL ESC 1/50

DETALLE DE TECHOS

DETALLE DE TECHOS

DETALLE DE MURO

DETALLE DE MURO

DETALLE DE PISO

INVERNADERO

MURO TROMBE

RENDERS - EXTERIOR

RENDERS - EXTERIOR

RENDERS - EXTERIOR

RENDERS - EXTERIOR

RENDERS - EXTERIOR

RENDERS - EXTERIOR

RENDERS - EXTERIOR

RENDERS - EXTERIOR

RENDERS - EXTERIOR

RENDERS - EXTERIOR

RENDERS - EXTERIOR

RENDERS - EXTERIOR

RENDERS - INTERIOR

RENDERS - INTERIOR

RENDERS - INTERIOR

RENDERS - INTERIOR

RENDERS - INTERIOR

RENDERS - INTERIOR

RENDERS - INTERIOR

RENDERS - INTERIOR

RENDERS - INTERIOR

Conclusiones 10

CONCLUSIONES

DespuesdeanalizarlacuidaddeCerrodePascovemosquesecaracterizaportenerbajastemperaturasyporlo cualnolograalcanzarelconforttérmico,porloqueesfundamentalbuscarestrategiasquebusquenla captaciónyobtenciónsolarparacombatirlasbajastemperaturas.

DadoelanálisisdeCerrodePasco,pudimosobservarloimportantequeesconocersobreelementosy materialesdeconstrucciónsostenible,estonospermiteotorgarelmayorconfortalusuarioutilizando diversosherramientascomoelábaco,quenospermitehallarlastemperaturasyprecipitaciones,conello diseñarunaviviendaquecontrarrestelasbajastemperaturasasídarleunamejorcalidadalusuario

PiensoqueelestudiodecasosdeviviendasenestecasoruraleseneldepartamentodePasco,nos ayudayforjabastantecomoprofesionalesdebidoaquenosenseñaaaprenderadiseñaren circunstanciasespecialeslascualesnosenseñanmassobreelmundodelaarquitectura.

CerrodePascopresentaunclimamuyhúmedoconprecipitacionesanualesde900mmdebidoaelloes recomendableeldesarrollodetechosconvertienteparaevitarlaacumulaciónofiltreelaguaenlos techos,ademásdeimplementarelusodematerialesconunatransmitanciatérmicaquepermitaun mayorconfortyretencióndelcalorparacontrarrestarlasbajastemperaturasdelaciudad

Enconclusión,aunquelaextraccióndemineralesypiedraspreciosasesunaactividadimportanteen CerrodePascoymuchosdesushabitantestrabajanenestaindustria1,tambiénexperimentan dificultadesyproblemasambientalesrelacionadosconlamisma.Apesardeesto,lapoblaciónmantiene suritmodevidayluchapormejorarsuscondicionesycalidaddevida.

Dafne Velásquez Amasifuén José Merino Valladolid Enzo Vega León Willian Jimenez Torres Viviana Aguilar Carranza

RECORRIDOVIRTUAL

UNIVERSIDAD PRIVADA ANTENOR ORREGO

Arq.JuanDiegoGarciaHonores Arq.YsabelSachieKobashigawaZaha

GRUPO 01

EnzoVegaLeón

DafneVelásquezAmasifuén

VivianaAguilarCarranza

JoséMerinoValladolid

DOCENTE: UNIVERSIDADPRIVADAANTENORORREGO-2023

JimenezTorresWillian

H U A R A Z

"CapitaldelaAmistadInternacional"

UbicaciónyLocalización 0 1

HUARAZ

UBICACIÓNYLOCALIZACIÓN PERÚ ANCASH HUARAZ

DESCRIPCIÓN

UbicadaenelvalledelCallejóndeHuaylas,enel norte del Perú, está vigilada serenamente por el enorme nevado Huascarán y tiene una geografía privilegiada, con paisajes que incluyen nevados, lagunas, sitios arqueológicos, museos, santuarios y bañostermales.

CARACTERÍSTICAS

TEMPERATURA

Latemperaturavaríaentrelos4.8°C enelperiodomásfríoy13.5°Cenel periodomáscaliente.

HORASDESOL

Elmesmascortoconhorasdesoles enJunio,con11horasy34minutos, yelmesmaslargoesenDiciembre, con12horasy40minutosdeluz natural. Presenta una alta radiación en los meses de Noviembre, Diciembre, EneroyFebreropasandolos11Kwh.

RADIACIÓN

Esunazonamuyhúmedaenlacual llega al 80% de humedad relativa comomáximoenlosmesesdeverano ycomomínimoen46%.

HUMEDAD PRECIPITACIONES

EntreMayoySetiembrelaslluvias llegandesde 2-5mm.hasta10-20 mm. como máximo, la mayor precipitación esta entre los meses OctubreyAbrilllegandoalos50 mm.diariosamas.

VIENTOS

Las direcciones tienen una predominanciadeNorte-Esté,la velocidadpromedioseencuentraen 9.8 km/h. considerando la escala Beaufortseencuentraenbrisadébil.

LATITUD LONGITUD ALTITUD SUPERFICIE
Z.BIOCLIMÁTICA 9°32’38"S 77°32’00"O 3052ms.n.m. 2493km²
ALTOANDINO DATOS
AnálisisdeVariablesClimáticas 02

TABLADERESUMENDEVARIABLESCLIMATICAS

ENEROFEBREROMARZO ABRIL MAYO JUNIO JULIO AGOSTOSETIEMBRE OCTUBRENOVIEMBRE DICIEMBRE VIENTOS

TEMPERATURA

Temperaturamáx: (Agosto13.5°C)

Temperaturamín: (Julio2.5°C)

PRECIPITACIÓN 6012mm 58mm 13267mm 15 10 5 0 64% 78% 70% 74% 74% 69%
NUBOSIDAD
HUMEDAD RADIACIÓN NubosidadAlta: Octubre-Abril NubosidadBaja: Mayo-Setiembre 79% 77% MAYORMENTENULADO MAYORMENTENULADO MAYORMENTEDESPEJADO Probabilidad:70% Máx.:142.75mm Min:1.2mm 847mm 14275mm 14042mm 6068mm 28mm 484mm 7171 mm 941mm 80% 74% 67% 62% Predominante: Nor-Este velocidadmáx.: 18km/h velocidadmín.: 7.5km/h 8km/h 7.9km/h NO SSO NO N NNE ENE SO NNO SO ENE SE SSO Humedadmáx:80% Humedadmin:35% 11 Kwh 10 Kwh 6 Kwh 5 Kwh 5 Kwh 11 Kwh 8 Kwh 6 Kwh 8 Kwh 10 Kwh 11 Kwh 11 Kwh Ma.Rad.:Ene.Feb. Nov.Dic. Me.Rad.:Jun.Jul. 25 °C 13.5 °C ZONADECONFORT 25 15 5 18km/h 13.1km/h

CONSECUENCIAS

ROSADEVIENTOS

ALERGIAS RESPIRATORIAS

ASMA

PROBLEMAS EN LA PIEL PÉRDIDA DE CULTIVOS

Fuente:Meteoblue

Intensidad del viento Efectos

Calma (0-1 km/h) Nohaymovimientoperceptibledelaire.

Brisa suave (1-10 km/h) Elvientoesapenasperceptibleynocausaningúnimpacto.

BAJAS

TEMPERATURAS

INUNDACIONES

Brisa moderada (10-20 km/h) Sesienteunvientoagradableyrefrescante.

AnálisisPsicrométrico 03

ANÁLISISPSICROMETRICO-GIVONI

ZDECONFORT

Z. DE CONFORT PERMISIBLE

GANANCIASINTERNAS

CALEFACCIÓN SOLARPASIVA

CALEFACCIÓN SOLARACTIVA

HUMIDIFICACIÓN

CALEFACCIÓN

CONVENCIONAL

PROTECCIÓNSOLAR

ALTAMASATÉRMICA

ENFRIAMIENTO POR EVAPORACIÓN

AIREACONDICIONADO

DESHUMIDIFICACIÓN

CONV.

MASA TÉRMICA Y VENTILACIÓNNOCTURNA

VENTILACIÓNNATURALO

MECÁNICA

ARQUICTURACOMPACTA

Laarquitecturadebesercompacta puespermitiráconservarlaradiación yelairecaliente.

VIVIENDALIGERAMENTE ELEVADA

Dadoquelazonacuentaconmuchas lluvias,elquelaviviendanoestémuy adosadaevitarálasposibles inundaciones.

TECHOSCON INCLINACIONES

Losvanosyaberturasdebentenerun tamañomoderado,demodoque permitanlaentradadeluz.Ademásestos debenserdistribuidosestratégicamente evitandoqueelvientoingreseal proyecto.

USODEMATERIALESCON INERCIATÉRMICA

ENPUERTASYCUBIERTAS

Permitiráretenerelcalorlomás posible,sobretodolosmesesmásfríos.

MUROSGRUESOSENEL EXTERIOR

Empleodecompartimientosparael mejorempleodelcalor,murosgruesos comoelladrillodeadobedebidoala inerciatérmica.

VEGETACIÓN CONTROLADA

Implementacióndeunavegetación controladaparaevitarlosvientos fuertesdeciertasdirecciones.

AnalisisdeCasos 04

ANALISISDECASOS

MATERIALES

ELEMENTOS VENTAJAS

Muros(90%)

MORTEROPARAADOBE

ADOBE PAJA

Muros(60%)

PIEDRA

Muros anchos de 40.00 cm para obtenerproteccióntérmicayevitarla entradadelfrío.

Tiposdetechos:1aguaconinclinación de8°y12°.

Ventanas batientes pequeñas evitando la perdida de calor y la entradadefrío.

Techosconinclinacionesparaevitardaños porlluviasdelazona.

Usodematerialespropiosdelazona.

Muros gruesos para obtener inercia térmicayevitarpérdidadecalor.

ANÁLISISGRÁFICO

Techos(15%)

Muros(10%)

Pisos(15%)

CALAMINA

Techos(80%)

RENOVACIÓNDEAIRE

PRECIPITACIONES AIREFRIÓ

ASOLEAMIENTO HUMEDAD

Malo Bueno

CUADROZONASYAMBIENTES

CASO 01 - VIVIENDA RURAL

ZONAALTOANDINA -HUARAZ

ZONA AMBIENTES AREA SOCIAL Patio 33.22m2 PRIVADA Cocina-DormitorioPrincipal 9.23m2 DormitorioDoble 9.23m2 SERVICIO Almacen 9.94m2 CocinaFogon 180m2 Baño-Letrina 1.80m2 A.DETRABAJO Recintodeanimales Aprox.25m2 CIRCULACIONYMUROS 30%
PLANTA1erPISO

ANALISISDECASOS

MATERIALES

ELEMENTOS VENTAJAS

Muros(60%)

Muros anchos de 42.00 cm para obtenerproteccióntérmicayevitarla entradadelfrío.

Material utilizado principalmente es el adobe característico por su transmitancia térmica.

Tipodetecho:2aguasconinclinación de12°.

Muros(95%)

MORTEROPARAADOBE ADOBE CAÑABRAVA

Muros(50%)

CALAMINAGALVANIZADA

Techos(100%)

VIDRIO

Simple(perfilmetálico)

Ventanas pequeñas para evitar la pérdidadecalor.

Usodematerialespropiosdelazona. Ventana cenital que capta la radiación solarduranteeldía.

RENOVACIÓNDEAIRE ANÁLISISGRÁFICO PRECIPITACIONES AIREFRIÓ ASOLEAMIENTO HUMEDAD
Malo Bueno

PLANTA1erPISO

CUADROZONASYAMBIENTES

CASO 01 - VIVIENDA URBANA

ZONAALTOANDINA- CUSCO

ZONA AMBIENTES AREA SOCIAL Cocina-Comedor 15.12m2 PRIVADA Dormitorio1 6.25m2 Dormitorio2 780m2 SERVICIO Tapón 4.00m2 CIRCULACIONYMUROS 30%
CartaEstereográfica 05

CARTAESTEREOGRÁFICA

PROPUESTA PRELIMINAR DE AMBIENTES

FACHADANOR-ESTE

Según el análisis de nuestra carta solar, tomandoencuentalossolsticiosdeinvierno y verano, podemos ver que el mes más frío puedellegaralos7.9°C.

Segúnelanálisisdenuestra carta solar, tomando en cuenta el solsticio de invierno.

DORMITORIOS- SALA DE ESTAR

FACHADASUR-OESTE

Según el análisis de nuestra carta solar, tomando en cuentaelsolsticiodeverano.

Según el análisis de nuestra carta solar, tomandoencuentalossolsticiosdeinvierno y verano, podemos ver que el mes más calientepuedellegaralos13.5°C.

JULIO AGOSTO SEPTIEMBRE OCTUBRE NOVIEMBRE 10:00 10:00 13:00

ORIENTACIÓN NOR - ESTE

Segúnelanálisisdenuestracartasolar,tomandoen cuentalossolsticiosdeinviernoyverano,podemos verqueelmesmásfríopuedellegaralos7.9°C.

SOLSTICIO DE INVIERNO

Duranteestaépocadelaño,laluzdel sol entra desde el lado noreste, haciendo que las fachadas más expuestas estén orientadas hacia el Nor-esteyNoroeste

SOLSTICIO DE VERANO

Durante esta época del año, la luz delsolentradesdeelladoSur-Este, eso significa que las fachadas con massolsonSur-esteyNor-este.

Horasdesol 9:00 12:00 16:00 AZ ALT AZ ALT AZ ALT 20dejunio 11h31min 54,07 32,70 5,00 56,92 -58,32 25,29 21dediciembre 12h 113,28 43,13 172,57 75,97 -120,90 59,83
CAPTARINCIDENCIASOLAR BLOQUEODECORRIENTESDE AIREDIRECTASALAZONA PRIVADA -COORDENADASCELESTES
PropuestadeMateriales 06

MATERIALES: TECHO

Eltechode2aguastermoaislanteestacompuestopordos capasdeaceroconunrellenodelanaderocaycubierto porunacapasuperiordepajadeIchu,estoapartirdelas condiciones

TECHO A UN AGUA

Re:

Superficialexterna

Rsi:Resistencia

Superficialinterna

R:

U:Transmitencia

ZONABIOCLIMÁTICA TRANSMITANCIATÉRMICA MÁXIMADELMURO TRANSMITANCIATÉRMICA MÁXIMADELTECHO TRANSMITANCIA TÉRMICAMÁXIMADEL PISO Altoandino 1.00 0.26 0.40
Acero galvanizado
lana de roca
Acero galvanizado
TableroOSB plancha,
Aislante,
plancha,
e (m) y= Coeficiemte de transmisión térmica (W/M K) Resistencia térmica (W/m².K) TABLERO OSB 0.03 0.026 1.15 MADERA 0.015 0.035 0.33 FIBRADEVIDRIO 004 0035 033 ACERO GALVANIZADO 0.03 0.62 1.6 RSI (SEGÚN EM 110) 0.04 RSE(SEGÚN EM 110) 013 RESISTENCIA TOTAL 388 TRANASMITANCIA TÉRMICA(W/M².K) 0.26
Material
LEYENDA
Resistencia
Resistencia
FIBRA DE VIDRIO
TABLERO OSB MADERA MADERA DE ALGARROBO
climáticas siendo
temperaturas entre
13°a-10°C.
las
los

MATERIALES: MURO

MURO DE ABODE REFORZADO

Muro

por adobe y madera en el cual entre ambosmaterialessecreaunacámaradeaire Estemuroimpedirálaentradadelfríoexteriorytambiénla pérdidadecalor.

CAÑA

Re:

R:

ZONABIOCLIMÁTICA TRANSMITANCIATÉRMICA MÁXIMADELMURO TRANSMITANCIATÉRMICA MÁXIMADELTECHO TRANSMITANCIA TÉRMICAMÁXIMADEL PISO Altoandino 0.29 0.26 0.40
LEYENDA
Resistencia Superficialexterna
Superficialinterna
Rsi:Resistencia
Resistencia U:Transmitencia
de airede5cm Listones de maderatornillo e=0.05m Material e (m) y= Coeficiemte de transmisión térmica (W/M K) Resistencia térmica (W/m².K) ADOBE 0.002 0.90 0.38 RECBRIMIENTODE YESO 003 030 010 AIRE 0.05 0.026 1.92 MADERA TORNILLO 0.05 0.150 0.33 RSI (SEGÚN EM 110) 004 RSE(SEGÚN EM 110) 013 RESISTENCIA TOTAL 2.83 TRANASMITANCIA TÉRMICA(W/M².K) 0.29 Bloque de Adobe de 200 x 40x10cm
horizontal caña carrizo
cañacarrizo Revestimiento de yesoe=0.03m YESO
cámara
Refuerzo
Refuerzo vertical
LISTON DE MADERA ADOBE
compuesto
CARRIZO

MATERIALES: PISO

•Consisteencompactarelpisodetierra,colocarlacapade pisofalso,conpiedrasde5cmyconcreto,seguidodeel contrapiso,concretosinpiedrasrematadoporunacubierta depiso

LEYENDA

Re:

Rsi:Resistencia

R:

Capa de piedra de canto rodadosinmorteroe=0,10m

Entablado de Madera tornillode15x2.5cm e= 0.02m

Listonesdemadera tornillo e = 0,02 m(Cada50cm)

Capa de pajabarro e = 0,02 m

ZONABIOCLIMÁTICA TRANSMITANCIATÉRMICA MÁXIMADELMURO TRANSMITANCIATÉRMICA MÁXIMADELTECHO TRANSMITANCIA TÉRMICAMÁXIMADEL PISO Altoandino 0.29 0.26 0.40
Resistencia Superficialexterna
Superficialinterna
Resistencia
Material e (m) y= Coeficiemte de transmisión térmica (W/M K) Resistencia térmica (W/m².K) HORMIGÓN 2.5 0.290 1.5 LADILLORUSTICO 10 084 081 PIEDRA 50 200 186 RSI (SEGÚN EM 110) 004 RSE(SEGÚN EM 110) 0.13 RESISTENCIA TOTAL 3.88 TRANASMITANCIA TÉRMICA(W/M².K) 0.40
U:Transmitencia
CONCRETO
LADRILLO RUSTICO PIEDRA
PISO

MATERIALES: PUERTA

Sistemabasadoenelempleodeunaislantetérmicocomo una capa de lana mineral, que se encontraran entre las hojasdelapuertayquecontaráconuncierrehermético para evitar la penetración del frío hacia el interior del ambienteysiendoadecuadaparazonasclimáticasdondelas temperaturasdesciendenbajo0°.

PUERTA AISLANTE TERMICA

Madera Machihembrad a Tornillo (e= 0.02 m)

Capa

Marco contrachapo de madera sólida Tornillo

Listón de madera Tornillo 0.5 x 0.78 m

LEYENDA

Re: Resistencia Superficialexterna

Rsi:Resistencia Superficialinterna

R:

U:Transmitencia

ZONABIOCLIMÁTICA TRANSMITANCIATÉRMICA MÁXIMADELMURO TRANSMITANCIATÉRMICA MÁXIMADELTECHO TRANSMITANCIA TÉRMICAMÁXIMADEL PISO Altoandino 0.29 0.26 0.40
Resistencia
Material
K) Resistencia térmica (W/m².K)
MADERA TORNILLOMACH 0.02 0.12 0.17 LISTÓNDE M.TORNILLO 003 015 02 LANAMINERAL 0.03 0.037 0.81
MTORNILLO MACHIBRADO 002 012 017
RESISTENCIA TOTAL 1.44 TRANASMITANCIA TÉRMICA(W/M².K) 0.69
e (m) y= Coeficiemte de transmisión térmica (W/M
PRIMERAHOJADE
SEGUNDAHOJADE
RSI (SEGÚN EM 110) 004 RSE(SEGÚN EM 110) 013
de lana mineral 1.94 x 0.78 m (aislamiento térmico)
.
MADERA LANA DE MINERAL

MADERA

Proveedor"MadereraSalazar"

Precio$85soles

Horadeviajehastaelproyecto:40min

Proveedor"FerreteriaDeco"

Precio$15soles

Horadeviajehastaelproyecto:30min

ACERO

Proveedor"CorporaciónFerreiraPalacios

Precio$73soles

Horadeviajehastaelproyecto:30min

1 2 3 01 02 03
PROVE
YESO

CAÑA

Proveedor"Tiendeo"

Precio$60soles

Horadeviajehastaelproyecto:30min

LANADEROCA

Proveedor"Tiendeo2

Precio$105soles

Horadeviajehastaelproyecto:30min

MADERA

Proveedor"MadereraLoreto"

Precio$140soles

Horadeviajehastaelproyecto:20min

4 5 6 04
EEDORES
05 06
TerrenosPropuestos 07

TERRENOSPROPUESTOS

CONTEXTO

ÁREA: 4,560.91m²

PERFILURBANO:

Viviendasde2niveles

DESCRIPCIÓN

Seescogióunterrenoruralpuesexisteunamplioporcentajedela poblaciónquepertenecealaclasesocialbaja.

Esteterrenoseencuentralocalizadoenlosexterioresdelaciudadde Huaraz(a2.9kmdelcentro)tienecomocontextoinmediatoviviendas quetienencomomaterialpredominantealadobe. Serviciosbásicosconlosquecuentaelterreno.

UNIVERSIDAD

FORMA:

VIVIENDASPROXIMAS

Accesibilidad:

Es un terreno accesible , tiene como acceso una vía importante que conecta el exterior con el centro de la ciudad.Estavíaseencuentraasfaltadaengranpartedesu perímetro.

Orientación:

Fachadasol:Noroeste

Fachadasombra:sureste

ZONARURAL

FRENTES:

IRREGULAR 9°30´38”S

LATITUD:

LONGITUD:

1 77°32´27

ALTITUD:

3110

TERRENOSPROPUESTOS

CONTEXTO

ÁREA: 7,192.39m²

PERFILURBANO:

Viviendasde2niveles

FORMA:

UNIVERSIDAD

DESCRIPCIÓN

FRENTES:

LATITUD:

REGULAR 9°27´58.7”S

LONGITUD:

ALTITUD:

1 77°32´27'' 3105

VIVIENDASPROXIMAS

Seescogióunterrenoruralpuesexisteunamplioporcentajedela poblaciónquepertenecealaclasesocialbaja. Esteterrenoseencuentralocalizadoenlosexterioresdelaciudadde Huaraz(a2.9kmdelcentro)tienecomocontextoinmediatoviviendas quetienencomomaterialpredominantealadobe. Serviciobásicosconlosquecuentaelterreno:

ZONARURAL

Accesibilidad:

Es un terreno accesible , tiene como acceso una vía importante que conecta el exterior con el centro de la ciudad.Estavíaseencuentraasfaltadaengranpartede superímetro.

Orientación:

Fachadasol:sur-este

Fachadasombra:nor-oeste

TERRENOSPROPUESTOS

CONTEXTO

DESCRIPCIÓN

Seescogióunterrenoruralpuesexisteunamplioporcentajedela poblaciónquepertenecealaclasesocialbaja.

Esteterrenoseencuentralocalizadoenlosexterioresdelaciudadde Huaraz(a4.9kmdelcentro)tienecomocontextoinmediatoviviendas quetienencomomaterialpredominantealadobe. Serviciosbásicosconlosquecuentaelterreno.

Accesibilidad:

Es un terreno accesible , tiene como acceso una vía importante que conecta el exterior con el centro de la ciudad.Estavíaseencuentraasfaltadaengranpartede superímetro.

Orientación:

Fachadasol:oeste

Fachadasombra:sur

ÁREA: 3,717.17m²

PERFILURBANO:

Viviendasde2niveles

FORMA:

HUERTOS

FRENTES:

1

LATITUD:

IRREGULAR 9°30´32.3”S

LONGITUD:

77°28´14.1''

ALTITUD:

3122

CRITERIODEELECCIÓNDETERRENOS TERRENO1 TERRENO2 TERRENO3 UBICACIÓN DISTANTEALACIUDAD 2 4 2 2 CERCANOALACIUDAD 4 ACCESIBILIDAD 1VÍADEACCESO 2 2 2 2 2VÍASDEACCESO 4 TOPOGRAFÍA PENDIENTE>a5m 2 2 4 4 PENDIENTE<a5m 4 ORIENTACIÓN N-O 2 6 2 4 NO-SE 4 N-S 6 NE-SO 8 EQUIPAMIENTOS BÁSICOSPRÓXIMOSAL ENTORNO 1DE5 2 4 2 2 2DE5 4 3DE5 6 4DE5 8 5DE5 10 RIESGOSNATURALES RIESGOSDEHUAYCOSE INUNDACIONES 2 4 2 4 SINRIESGOSDEHUAYCOSE INUNDACIONES 4 VEGETACIÓN CAMPOSDECULTIVO 2 2 4 2 CAMPOSSINVEGETACIÓN 4 SERVICIOSBÁSICOS CUENTACON1SERVICIO 2 6 6 6 CUENTACON2SERVICIOS 4 CUENTACON3SERVICIOS 6 TOTAL 30 24 26

TERRENOSPROPUESTOS

TERRENO 1

TERRENO 2

TERRENO 3

PerfildelUsuario 08

PERFIL DE USUARIO ACTIVIDADE

El61%dehombresse dedicanalaactividad agropecuaria

ACTIVIDADESPORGENERO

El40%demujeresson amasdecasay60%se dedicanalcomercio

0-2930-4950-64+65 125,000 100,000 75,000 50,000 25,000 0 URBANORURAL 60 40 20 0 OCUPACION ELEMENTAL 17.8% MILITARES POLICIAS 5.9% CONSTRUCCIÓ N 2% POBLACIÓNPOR GENERO 51% 83837hab. MUJERES 49% 80090hab. HOMBRES
EDAD
POBLACIÓNPOR
POBLACIÓN 163936hab. TIPOLOGÍADEPOBLACIÓN

ESECONÓMICAS

GRADODEINSTRUCCIÓN

La ganadería en Huaraz no se presentaengranparte,yaqueson pocosloshabitantesquesededican alasactividadesganaderas,entre algunas especies podemos encontrarovejas,vacasycabras.

Hay 3 cultivos de mayor importancia:papaenlasierra,caña deazúcarymaízamarilloduroen lacosta;tambiéndestacan,peroen

menor escala, la alfalfa, maíz choclo,espárragoyarroz.

LaactividadturísticaenHuarazes una herramienta importante para alcanzar diversos objetivos de desarrollo,comolageneraciónde empleo descentralizado, la conservacióndenuestropatrimonio

ACTIVIDADESLOCALES SUP. UNIV SUP.NO UNIV SECUNDARI A PRIMARI A SIN NIVEL 50% 40% 30% 20% 10% 0% AGRICULTURA GANADERÍA TURISMO
AGRICULTORE S 57.3%
Y
COMERCIANTES 7.9%

PROGRAMACIÓN

SOCIAL INTIMA SERVICIOS CULTIVOS GANADO 91m2 47m2 33.9m2 4124m2 293.8m2 TOTAL 4,588.9m2 ÁREA: ZONA SUBZONA AMBIENTE MODULODE VIVIENDA SOCIAL SALA-COMEDOR-COCIN PATIO-TENDAL SERVICIOS ALMACÉN DUCHAYSS.HH INTIMA DORMITORIOPRINCIPAL DORMITORIODOBLE DORMITORIOSIMPLE TRABAJODECAMPO AREADE CULTIVO PARCELADEPAPA PARCELADEZANAHORIA PARCELADEMAIZ PARCELADETOMATE PARCELADEPASTIZAL ALMACEN INVERNADEROTERRAZA ÁREADE CRIANZA CORRALGANADO PORCINO GESTACIÓ MATE CRECI ENG ALMACEN

La vivienda está planteada para una familia de agricultores y ganaderoscon2hijos.

Esta familia se dedica a la agricultura y ganadería tiene comonecesidades:

Undormitorioprincipalpara lospapás

Dosdormitoriosparalos3

hijos

Sala

Cocina

Comedor

Servicioshigiénicos

Espacioparaelcultivo.

Espacioparaguardarla cosecha.

Espacioparalacrianzadesu ganado.

Almacéndealimentos

AFORO CANTIDAD ÁREATECHADA AREANOTECHADA SUBTOTAL FUENTE NA 7 1 3559 - 1 - 24 - 1 3033,9 - 1 3,92 1 1746.5 2 1 15.51 1 14SUBTOTAL 139.4 MUROSYCIRCULACIÓN30% 28,35 TOTAL 16775 1 - 800 4000 1 - 800 1 - 800 1 - 800 1 - 600 1 2001 30 - 30 N(JAULAS) 2 7,5658,76 RNIDAD 1 4,2MIENTO 1 14ORDE 1 181 15 - 15 SUBTOTAL 4103.76 MUROSYCIRCULACIÓN30% 64128 TOTAL 416788 TOTAL 4335.64
PropuestaPlanteada 09

EMPLAZAMIENTO

PLANTA GENERAL

CORTES

CORTE LONGITUDINAL

CORTE A -A' ESC.1/50

CORTES

CORTE TRANSVERSAL

CORTE B -B' ESC.1/50

ELEVACIONES

VISTA 1

ELEVACIONES

VISTA 2

ELEVACIONES

VISTA 3

ELEVACIONES

VISTA 1

PLANOESTRUCTURAL

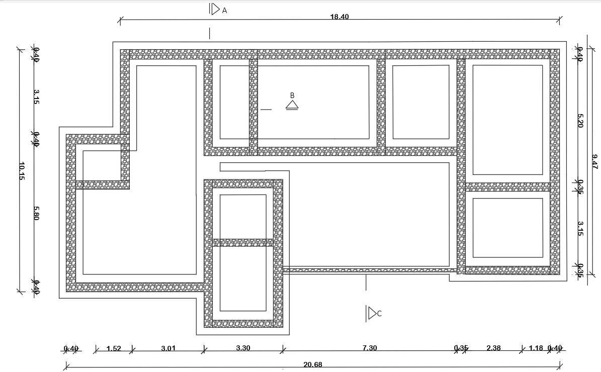
PLANO DE CIMIENTOS ESC 1/50
PLANO DE CIMIENTOS ESC 1/50
PLANOESTRUCTURAL

PLANODECIMIENTOS

PLANO DE CIMIENTOS ESC 1/50

DETALLE DE CIMIENTOS

ESC 1/50

DETALLE DE TECHO

DETALLE DE PISO

DETALLE DE MURO

DETALLE DE PUERTAS

DETALLE DE VENTANA

DETALLE DE VENTANA

RENDERS - EXTERIOR

RENDERS - EXTERIOR

RENDERS - EXTERIOR

RENDERS - EXTERIOR

RENDERS - EXTERIOR

RENDERS - EXTERIOR

RENDERS - EXTERIOR

RENDERS - EXTERIOR

RENDERS - EXTERIOR

RENDERS - EXTERIOR

RENDERS - INTERIOR

RENDERS - INTERIOR

RENDERS - INTERIOR

RENDERS - INTERIOR

RENDERS - INTERIOR

RENDERS - INTERIOR

RENDERS - INTERIOR

RENDERS - INTERIOR

RENDERS - INTERIOR

RENDERS - INTERIOR

Conclusiones 10

CONCLUSIONES

Laconstruccióndeviviendasruralessosteniblesesesencialparaabordarlosdesafíosactualesdela urbanización,elcambioclimáticoylapérdidadebiodiversidad.Estasviviendaspuedenreducirel consumodeenergía,elusodeaguaylageneraciónderesiduos,loquecontribuyealamitigacióndel cambioclimáticoyalaconservacióndelosrecursosnaturales.

PodemosdecirqueHuarazesunaciudadconbajastemperaturas,sinembargoesunazonaquecuenta conrecursosnaturalesdefáciladquisiciónquepuedenserusadosporlospobladoresparala construccióndeviviendasconfortables.

LaciudaddeChachapoyaspresentaunclimaconhumedadaltayteniendoaltastemperaturas,debidoa estolaspersonas,tienenqueadaptarsusviviendasparaquepuedanserconfortablesenlasdistintas variacionesdeclimayasuvezestosesumaalosmaterialesqueseutilizaráenlaviviendaparaadaptarse alclima.

Hemosaplicadodiversostiposdematerialesenlasestrategiasdediseñodelaviviendaparaoptarla mayorcaptacióndesolar,llegandoalaconclusiónqueconsistemasconstructivosrenovablesy sosteniblespodemosobtenerelconforttérmico,dandocalidaddevidaalospobladoresenlaszonascon climagélido.

AlestarubicadaenHuarazhemosimplementadoestrategiasbioclimáticasenlaviviendaparaacumularel mayorcalorposibleduranteeldíayemplearloenlanochequeescuandolastemperaturasbajanaunmás, utilizandomaterialesquetengangrancapacidadcaloríficayalavezseandelazona,comoporejemploel adobe.

Fátima Moreno Arévalo Danica Hoyle Jukic Mario León Jave Frank Chavez Fernandez Daniel Bueno Beltrán

RECORRIDOVIRTUAL

UNIVERSIDAD PRIVADA ANTENOR ORREGO

DOCENTE:

Arq.JuanDiegoGarciaHonores Arq.YsabelSachieKobashigawaZaha

GRUPO 03

MorenoArévalo,Fátima

HoyleJukicDanica

ChavezFernandez,Frank

BuenoBeltránDaniel

LeónJave,Mario

UNIVERSIDADPRIVADAANTENORORREGO-2023

"FidelísimaCiudaddeChachapoyas"

C H A C H A P O Y A S
UbicaciónyLocalización 01

CHACHAPOYAS

UBICACIÓNYLOCALIZACIÓN

PERÚ AMAZONAS CHACHAPOYAS

DESCRIPCIÓN

El clima de Chachapoyas es templado cálido y ligeramente húmedo, con temperatura promedio anualde14.7ºCyprecipitaciónpromediode868.1 mm/año.

LafisiografíadelaciudaddeChachapoyasesladela

cordillerasubandinaconmontañasaltasyonduladas

CARACTERÍSTICAS

DATOS

TEMPERATURA

LatemperaturadeChachapoyasvaría entrelos9°Cenelperiodomásfríoy 22°Cenelperiodomáscaliente.

LATITUD

HORASDESOL

Laduracióndeldíanovaríadurante elaño,solamentevaría29minutosde las12horasentodoelaño.

RADIACIÓN

EnChachapoyasseregistraunaalta radiaciónsolarde6.2KWhdurante elmesdeseptiembre.

HUMEDAD

SUPERFICIE

El porcentaje de humedad se encuentradentrodelasvariablesde aceptable(20%-80%).

PRECIPITACIONES

Sonengranpartedelaño,conuna altacantidad.Soloencuatromeses podemosverquedisminuye,

CEJADEMONTAÑA

VIENTOS

Lavelocidadmáximaesde15.5km/h

LONGITUD ALTITUD
77°52'21''O
Z.BIOCLIMÁTICA 6°13'46''S
2335ms.n.m. 5.4717km²
AnálisisdeVariablesClimáticas 02

TABLADERESUMENDEVARIABLESCLIMATICAS

ENEROFEBREROMARZO ABRIL MAYO JUNIO JULIO AGOSTOSETIEMBRE OCTUBRENOVIEMBRE DICIEMBRE

Temperaturamáx: Octubre (21°C)

Temperaturamín: Julio(9°C)

PRECIPITACIÓN 923mm 224mm 751mm
20 15 10 5 0 74% 65% 62%
25
Probabilidad:70% Máx:215mm
Humedadmáx:80% Humedadmin:60%
67% 63% 64% TEMPERATURA NUBOSIDAD
Min:180mm
MayorRad.:Agosto MenorRad.:Marzo
VIENTOS HUMEDAD RADIACIÓN nubosidadmáx: nubosidadmin: 78% 77% MAYORMENTENUBLADO MAYORMENTENULADO DESPEJADO 846mm 785mm 1392mm 373mm 278mm 20mm 877mm 58mm 832mm 80% 60% 63% 73% Predominante: Suroeste velocidadmáx: 11.0km/h velocidadmín: 8.0km/h 8.5km/h 84km/h N NO N NE SE SO 5.1 Kwh 51 Kwh 53 Kwh 5.4 Kwh 5.7 Kwh 53 Kwh 5.2 Kwh 62 Kwh 62 Kwh 5.8 Kwh 56 Kwh 55 Kwh 9°C 22°C zonadeconfort MAYORMENTEDESPEJADO MAYORMENTEDESPEJADO NO NE NE NE E S

CONSECUENCIAS

ROSADEVIENTOS

ALERGIAS RESPIRATORIAS

ASMA

PROBLEMAS EN LA PIEL PÉRDIDA DE CULTIVOS

Fuente:Meteoblue

Intensidad del viento Efectos

Calma (0-1 km/h) Nohaymovimientoperceptibledelaire.

Brisa suave (1-10 km/h) Elvientoesapenasperceptibleynocausaningúnimpacto.

BAJAS

TEMPERATURAS

INUNDACIONES

Brisa moderada (10-20 km/h) Sesienteunvientoagradableyrefrescante.

AnálisisPsicrométrico 03

ANÁLISISPSICROMETRICO-GIVONI

ZDECONFORT

Z. DE CONFORT PERMISIBLE

GANANCIASINTERNAS

CALEFACCIÓN SOLARPASIVA

CALEFACCIÓN SOLARACTIVA

HUMIDIFICACIÓN

CALEFACCIÓN CONVENCIONAL

PROTECCIÓNSOLAR

ALTAMASATÉRMICA

ENFRIAMIENTO POR EVAPORACIÓN

AIREACONDICIONADO

DESHUMIDIFICACIÓN

CONV.

MASA TÉRMICA Y VENTILACIÓNNOCTURNA

VENTILACIÓNNATURALO

MECÁNICA

MUROTROMBE

Murotrombeenelinteriordelas paredesdelaedificaciónpara conservarelcaloryretardarla transmisióndelairehaciaelexterior.

TECHOSDOBLEAGUA

Paraevitarelestancamientodelagua enlasviviendasalmomentodellovery asípuedacircularmejorestaagua.

MUROSGRUESOS

Sonunsistemaaislantequepermitirá queelcalorinteriordelaviviendano setransfierarápidamentealexterior porlotantoretendráelcalor haciendoelprocesodetransferencia deenergíahaciaelexteriormáslento.

VIVIENDACONDESNIVEL

Porlazonaclimáticaenlaquenos encontramos,existepresenciade lluviasintensasyseproducen inundaciones,estaelevaciónevitará estosdesastres.

INVERNADEROADOSADO

Conestructurademadera.,este sistemapermiteintroduciraire calientealavivienda,atravésdela radiaciónsolarquepasaporla superficietraslúcida.

MATERIALIDAD

Emplearelementosconstructivosde granmasatérmicaenelinteriordela edificaciónparaacumularelcalor obtenido

AnalisisdeCasos 04

ANALISISDECASOS

MATERIALES

PLÁSTICODEINVERNADERO

Ventanas(5%)

POLIALUMINIO

Techo(10%)

BLOQUETIERRATBC

Muros(95%)

ELEMENTOS VENTAJAS

Murospintadosdecolornegropara queabsorvanmásradiaciónsolar

Secuentaorientadaalsurysecierracon unasuperficietransparentepermitiendo grandes ganancias de calor al recibir radiacióntodoeldíadurante8mesesdel año.

MADERA

Pisos(20%)

VIDRIO

Simple(perfilmetálico)

Cocina de alta eficiencia :ahorra entre 30% - 60% de leña , reduciendo las emisionesdelmaterial

Usodematerialespropiosdelazona. El 50% de la basura son residuos orgánicosquepuedenreutilizarseenun ciclodecompostaje.

ANÁLISISGRÁFICO

RENOVACIÓNDEAIRE

PRECIPITACIONES

AIREFRIÓ

ASOLEAMIENTO

HUMEDAD

Malo Bueno

PLANTA1erPISO

CUADROZONASYAMBIENTES

CASO 01 - VIVIENDA RURAL

CEJADEMONTAÑA-BOGOTÁ,COLOMBIA

ZONA AMBIENTES AREA SOCIAL Sala-comedor 988m2 Cocina 4.45m2 Zonasocial 20.41m2 PRIVADA Dormitorio1 1641m2 Dormitorio2 16.89m2 SERVICIO Lavandería 4.47m2 Baño-Letrina 430m2 A.DETRABAJO Areadeproductividad 28.49m2 CIRCULACIONYMUROS 30%

ANALISISDECASOS

ELEMENTOS VENTAJAS

MATERIALES

POLIALUMINIO

Techo(10%)

BLOQUETIERRATBC

Muros(95%)

MADERA

Pisos(20%)

VIDRIO

Simple(perfilmetálico)

Elconceptodelmódulodevivienda sebasaenproporcionarunnúcleode material noble con los servicios básicos

Mantenerlaviviendaenconforttérmico aislándodelaincidenciasolar, secreó untechoquefuncionecomocaptadorde aireycolchón.

Protegerlodelasaltasprecipitaciones, inclinando el techo para evacuar de formaadecuadalaslluvias

Se estaría contando con todos los materialesenelrangoquecorrespondea estazonabioclimática Usodematerialespropiosdelazona.

Laviviendaseencuentraelevadaporlas fuerteslluvias

ANÁLISISGRÁFICO

Malo Bueno

RENOVACIÓNDEAIRE

PRECIPITACIONES

AIREFRIÓ

ASOLEAMIENTO

HUMEDAD

PLANTA1erPISO

CUADROZONASYAMBIENTES

CASO 02 - VIVIENDA RURAL

ZONA AMBIENTES AREA SOCIAL Sala-comedor 16.42m2 Cocina 779m2 Patio 10.57m2 PRIVADA Habitación1 1430m2 Habitación2 15.95m2 Habitación3 14.30m2 SERVICIO Lavandería 1566m2 Baño 3.15m2 A.DETRABAJO Ambiente 15.35m2 CIRCULACIONYMUROS 30%
CEJADEMONTAÑA- IQUITOS
CartaEstereográfica 05

CARTAESTEREOGRÁFICA

PROPUESTA PRELIMINAR DE AMBIENTES

FACHADASSE-NNW

Según el análisis de nuestra carta solar, tomandoencuentalossolsticiosdeinvierno y verano, podemos ver que el mes más frío puedellegaralos-2°C.

OCTUBRE

Segúnelanálisisdenuestra carta solar, tomando en cuenta los solsticios de inviernoyverano,

DORMITORIOS- SALA DE ESTAR

NOVIEMBRE

FACHADASSE-NNW

Según el análisis de nuestra carta solar, tomando en cuenta los solsticios de inviernoyverano,

Según el análisis de nuestra carta solar, tomandoencuentalossolsticiosdeinvierno y verano, podemos ver que el mes más frío puedellegaralos-2°C.

JULIO AGOSTO SEPTIEMBRE

ORIENTACIÓN SSE-NNW -CAPTARINCIDENCIASOLAR

Segúnelanálisisdenuestracartasolar,tomandoen cuentalossolsticiosdeinviernoyverano,podemos verqueelmesmásfríopuedellegaralos-2°C.

SOLSTICIO DE INVIERNO

Según lo observado la incidencia del sol se da con tendencia al norte, se plantea diseñar la vivienda orientándola al norte de forma que tenga más número de fachadas que reciban la mayor radiación del sol y evitando así las sombras.

SOLSTICIO DE VERANO

Elsoltiendeasalirporelsuresteyponerseal suroeste , por esto se propone colocar las habitaciones en el sureste para poder captar todo el calor en la hora de la mañana y en la nochesemantengaunahabitaciónaúncálida

-COORDENADASCELESTES

Horasdesol 8:00 12:00 17:00 AZ ALT AZ ALT AZ ALT 01dejunio 11h08min 66.35° 9.27° 30.43° 56.95° 298.7° 26.86° 01demarzo 12h10min 96.56°° 9.74° 94.49° 69.17° 265.86° 36.33° JUNIO MAYO ABRIL MARZO FEBRERO ENERO DICIEMBRE
-BLOQUEO DE
MASAS DE AIRE DIRECTAS
PropuestadeMateriales 06

MATERIALES: TECHO

Está conformado por vigas principales y secundarias que sirven para soportar el recubrimiento. Se usan uniones mecánicascomotornillos,placas,pasadores.paraadherirel corcho utilizaremos cola de contacto. El uso de tejas de arcillascurvasdanformaalacubierta,canalizandoelagua delluvias.

TECHO A DOS AGUAS

CORCHO

TEJADEARCILLA 0007 10 0007

RSI (SEGÚN EM 110) 0.05

RESISTENCIA TOTAL

LEYENDA

Re: Resistencia

Superficialexterna

Rsi:Resistencia

Superficialinterna

R: Resistencia

U:Transmitencia

ZONABIOCLIMÁTICA TRANSMITANCIATÉRMICA MÁXIMADELMURO TRANSMITANCIATÉRMICA MÁXIMADELTECHO TRANSMITANCIA TÉRMICAMÁXIMADEL PISO Cejademontaña 2.36 2.20 2.63 Tejasdearcilla Aislantede corcho Soporte de madera
Resistencia térmica (W/m².K)
0.67
0.10
Material e (m) y= Coeficiemte de transmisión térmica (W/M K)
MADERA TORNILLO 0.10 0.15
CORCHO 0.005 0.049
RSE(SEGÚN EM 110) 0.17
0.907
TRANASMITANCIA TÉRMICA(W/M².K) 1.10
TEJA ANDINA MADERA TORNILLO

MATERIALES: MURO

El uso de este muro ofrece ventajas como el aislamiento térmico y acústico, la eficiencia energética y la durabilidad. La combinación de estos materiales proporciona una transmitancia térmica favorable, lo que ayudaamantenerunatemperaturainteriorestableyreduce lapérdidaogananciadecalor.

Re:

Rsi:Resistencia Superficialinterna

R:

U:Transmitencia

LEYENDA
Resistencia
Superficialexterna
Resistencia
Material e (m) y= Coeficiemte de transmisión térmica (W/M K) Resistencia térmica (W/m².K) LADRILLO TERMOARCILLA 0.29 0.70 0.41 POLIESTIRENO EXPANDIDO 0.01 0.03 0.19 RSI (SEGÚN EM 110) 0.11 RSE(SEGÚN EM 110) 0.06 RESISTENCIA TOTAL 0.77 TRANASMITANCIA TÉRMICA(W/M².K) 1.30 ZONABIOCLIMÁTICA TRANSMITANCIATÉRMICA MÁXIMADELMURO TRANSMITANCIATÉRMICA MÁXIMADELTECHO TRANSMITANCIA TÉRMICAMÁXIMADEL PISO Cejademontaña 2.36 2.20 2.63
EXPANDIDO
POLIESTIRENO
LADRILLO TERMOARCILLA
TERMOARCILLA
MURO TÉRMICO
Y POLISESTIRENO

MATERIALES: MURO

Ofrece ventajas en aislamiento térmico, eficiencia energética,captacióndecalorsolaryconfortinterior.Esta combinación de elementos aprovecha las condiciones climáticaslocalesymejoralasostenibilidadyelconfortde losedificiosenlaciudad.

LEYENDA

Re:

Superficialexterna

Rsi:Resistencia Superficialinterna

R:

U:Transmitencia

Resistencia
Resistencia
Material e (m) y= Coeficiemte de transmisión térmica (W/M K) Resistencia térmica (W/m².K) VIDRIO 0.04 2.80 0.01 LADRILLODE TERMOARCILLA 005 003 167 MALLADEACERO 021 130 016 RSI (SEGÚN EM 110) 011 RSE(SEGÚN EM 110) 0.06 RESISTENCIA TOTAL 2.01 TRANASMITANCIA TÉRMICA(W/M².K) 0.50 ZONABIOCLIMÁTICA TRANSMITANCIATÉRMICA MÁXIMADELMURO TRANSMITANCIATÉRMICA MÁXIMADELTECHO TRANSMITANCIA TÉRMICAMÁXIMADEL PISO Cejademontaña 2.36 2.20 2.63
DE ACERO
MALLA
VIDRIO
TERMOARCILLA
MURO TROMBE LADRILLO

MATERIALES: PISO POLIESTIRENO

PISO DE MADERA

Seusaelmétododevigasnovisibles,laseparaciónentre lasvigasesmenor,lasvigassondepocoespesor.Lasvigas noquedanvisiblesalestarrecubiertasporlacapainferior.

Material e (m)

y= Coeficiemte de transmisión térmica (W/M K) Resistencia térmica (W/m².K) MADERA

LEYENDA

Re: Resistencia

Superficialexterna

Rsi:Resistencia

Superficialinterna

R: Resistencia

U:Transmitencia

TORNILLO
POLIESTIRENO EXPANDIDO
15
RSE(SEGÚN EM
RESISTENCIA TOTAL
TRANASMITANCIA TÉRMICA(W/M².K) 0.33 ZONABIOCLIMÁTICA TRANSMITANCIATÉRMICA MÁXIMADELMURO TRANSMITANCIATÉRMICA MÁXIMADELTECHO TRANSMITANCIA TÉRMICAMÁXIMADEL PISO Cejademontaña 2.36 2.20 2.63
TORNILLO
01 015 067 MADERAMOHENA 0.1 0.19 0.53
0015 0033
RSI (SEGÚN EM 110) 017
110) 013
304
MADERA
EXPANDIDO
MOHENA Soporte de madera Madera mohena Poliestireno expandido
MADERA

MATERIALES: PUERTA

La propuesta trabajada con materiales del lugar va a permitirunaadecuadaventilacióndelavivienda,también lograndoelconforttérmicodeseado.

PUERTA AISLANTE TERMICA

MADERA MOHENA

Material e (m)

y= Coeficiemte de transmisión térmica (W/M K) Resistencia térmica (W/m².K)

MADERAMOHANA 0.1 0.14 0.71

RSI (SEGÚN EM 110) 0.04

RSE(SEGÚN EM 110) 013

RESISTENCIA TOTAL 088

TRANASMITANCIA TÉRMICA(W/M².K) 1.14

LEYENDA

Re: Resistencia

Superficialexterna

Rsi:Resistencia

Superficialinterna

R: Resistencia

U:Transmitencia

ZONABIOCLIMÁTICA TRANSMITANCIATÉRMICA MÁXIMADELMURO TRANSMITANCIATÉRMICA MÁXIMADELTECHO TRANSMITANCIA TÉRMICAMÁXIMADEL PISO Cejademontaña 2.36 2.20 2.63

MATERIALES: VENTANA

Ofrece ventajas en aislamiento térmico, eficiencia energética,captacióndecalorsolaryconfortinterior.Esta combinación de elementos aprovecha las condiciones climáticaslocalesymejoralasostenibilidadyelconfortde losedificiosenlaciudad.

Material e (m)

y= Coeficiemte de transmisión térmica (W/M K) Resistencia térmica (W/m².K)

Marco:PVC 0.10 0.170 0.01

Vidriocrudode6mm 0006 - -

RSI (SEGÚN EM 110) 013

RSE(SEGÚN EM 110) 031

RESISTENCIA TOTAL 1.03

TRANASMITANCIA TÉRMICA(W/M².K) 0.97

LEYENDA

Re: Resistencia

Superficialexterna

Rsi:Resistencia

Superficialinterna

R: Resistencia

U:Transmitencia

TRANSMITANCIATÉRMICA
TRANSMITANCIA TÉRMICAMÁXIMADEL PISO Cejademontaña 2.36 2.20 2.63
ZONABIOCLIMÁTICA TRANSMITANCIATÉRMICA MÁXIMADELMURO
MÁXIMADELTECHO
PERFIL DE PVC
VIDRIO
VENTANA DOBLE ACRISTALAMIENTO
Vidriocrudo Marcopvc Cámaradeaire

MATERIALES:

Elairedelinvernaderofuncionacomouncolchóntérmico entreelinterioryelexteriordelavivienda,einfluyeenla cantidadydireccióndecalortransmitidoatravésdelmuro delafachada.

INVERNADERO ADOSADO

LEYENDA

Re:

Rsi:Resistencia

Superficialinterna

R:

U:Transmitencia

Resistencia
Superficialexterna
Resistencia
Material e (m) y= Coeficiemte de transmisión térmica (W/M K) Resistencia térmica (W/m².K) Transversalesde madera 0.05 0.15 0.33 Bastidordemadera 0.025 0.15 0.66 Policarbonato 020 003 033 RSI (SEGÚN EM 110) 004 RSE(SEGÚN EM 110) 0.13 RESISTENCIA TOTAL 1.27 TRANASMITANCIA TÉRMICA(W/M².K) 0.79 ZONABIOCLIMÁTICA TRANSMITANCIATÉRMICA MÁXIMADELMURO TRANSMITANCIATÉRMICA MÁXIMADELTECHO TRANSMITANCIA TÉRMICAMÁXIMADEL PISO Cejademontaña 2.36 2.20 2.63
DE MADERA
LISTONES
ONDULADO
INVERNADERO POLICARBONATO
AISLAMIENTO REFORZADO POLICARBONATO4mm
LISTONES DE MADERA

MATERIALES: SISTEMA PLUVIAL

La reutilización de elementos naturales contribuirá a un menorgastoenergético,haciendososteniblelapropuesta.

FUNCIONAMIENTO DE LA CAPTACIÓN DE LLUVIA PLUVIAL

SISTEMA DE DRENAJE PLUVIAL

TRATAMIENTO PRIMARIO: Rejillasquefrenan hojasyramas, desvían lasprimeras lluviasy los sedimentadores permitenquelatierra seasiente.

TANQUEDE ALMACENAMIENTO : Almacenaelaguade lluvialimpiadespués delafiltración.Ya puedevolvera usarse.

CANALETADE RECOLECCIÓN

Serecogeelaguade lluviadesdeel techoa unacanaleta adaptada conunarejillaque evitael pasode residuos

FILTRODEAGUA

Eliminarálaspartículas demayor tamañodel aguapluvial

TANQUEDE ROTOPLAS

Depósitode almacenamientoparael aguayafiltrada

BOMBADE IMPULSIÓN

Seusaráparala distribucióndelagua porlavivienda

MATERIALES: COCINA

Esaquellaquetienecomoprincipalcaracterísticaevacuar de manera eficiente los humos al exterior de la casa. No habríahumoenlacocina,nienotrosambientesdelhogar. Por lo tanto, los miembros de una familia, no estarían propensosacontraerenfermedadesrespiratorias.

COCINA MEJORADA

A través de la chimenea, libera de humo el aire que se respira dentro delacasa.

Centraelcalor

La cocina ubicada al centro del ambiente nos generagananciasinternas , porque el calor se reparteequitativamentea losdistintosambientesde lavivienda.

MATERIALES

.Adobe .Plataformametálica

.Chimenea

.Cámaradecombustión

.Barro

Ahorra combustible

MATERIALES: PANELES

Se optó por este tipo de panel ya que alcanza un rendimientoentre11%y15%,queadiferenciadelPanel Monocristalino que alcanza un rendimiento máximo del 17%,ladiferencianoesmucha.Tambiénseoptóporeste tipodepanelyaquesucostoesmenor.

PANELES FOTOVOLTAICOS

BATERÍAS

INVERSORDE CARGAS LAENERGÍASEUSA

CUANDOSE REQUIERA

PANEL FOTOVOLTAICO CONTROLADOR DECARGA

MADERA

Proveedor"MadereraSafezuSAC"

Precio$850p2

Horadeviajehastaelproyecto:4h23min

LADRILLOTERMOARCILLA

Proveedor"LadrilleraZumaeta"

Precio$470und

Horadeviajehastaelproyecto:2h13min

AISLANTES

Proveedor"DecoEspacio"

Precio$20.30und

Horadeviajehastaelproyecto:2h13min

1 2 3 01 02 03
PROVE
6

VIDRIO

Proveedor"CorporaciónLoja"

Precio$7520und

Horadeviajehastaelproyecto:30min

TEJAANDINA

Proveedor"GrupoMejíaFerretería"

Precio$2.20und Horadeviajehastaelproyecto:30min

POLICARBONATO

Proveedor"GRUPOFAMET"

Precio$80und

Horadeviajehastaelproyecto:30min

4 5 04
EEDORES
05
06
TerrenosPropuestos 07

TERRENOSPROPUESTOS

CONTEXTO

ÁREA: 130204m²

PERFILURBANO:

Viviendasde1nivel

FORMA:

DESCRIPCIÓN

Elterrenoesdeformarectangularconunatopografíade21mde diferenciaentreunpuntoyotro,ademáscuentaconunaaccesibilidad cercanaalacarreterayunaccesopeatonal.

Lazonadesueloenlaqueseencuentraestácaracterizadaporseruna zonaproductivadecultivoenlimpio.

Encuantoalainundabilidadnoseencuentraenunazonadepeligroa inundación.

Accesibilidad:

Esunterrenoaccesible,yaqueseconectarápidamentea unaviaprincipaldelaciudad.

FRENTES:

IRREGULAR 9°30´38”S

LATITUD:

LONGITUD:

1 77°32´27

ALTITUD:

3110

CAMPO AEROPUERTO

TERRENOSPR

ÁREA:

12217m²

PERFILURBANO:

Viviendasde1niveles

FORMA:

CONTEXTO

DESCRIPCIÓN

FRENTES:

IRREGULAR 9°30´38”S

LATITUD:

Elterrenoesdeformairregularconunatopografíade8mdediferencia entreunpuntoyotro. Lazonadesueloenlaqueseencuentraestácaracterizadaporseruna zonaproductivadecultivoenlimpio.

Encuantoalainundabilidadseencuentraenunazonadepeligroa inundaciónporlacuencaUtucumbaqueseencuentracerca.

LONGITUD:

1 77°32´27

ALTITUD:

3110

HUERTOS

Accesibilidad:

Esunterrenomedianamenteaccesible,yaquecuentacon doscaminoscercanaalacarreterayaccesospeatonales.

CAMPO CAMPO

TERRENOSPROPUESTOS

CONTEXTO

ÁREA: 11188m²

PERFILURBANO:

Viviendasde1niveles

FORMA:

DESCRIPCIÓN

Elterrenoesdeformacuadrangularconunatopografíade8mde diferenciaentreunpuntoyotro.

Lazonadesueloenlaqueseencuentraestácaracterizadaporseruna zonaproductivadecultivoenlimpio. Encuantoalainundabilidadnoseencuentraenunazonadepeligroa inundación.

INSTITUTOAGRARIO

Accesibilidad:

Esunterrenoaccesible,cuentaconunacaminocercanoa lacarreterayunaccesopeatonal.

FRENTES:

IRREGULAR 9°30´38”S

LATITUD:

LONGITUD:

1 77°32´27

ALTITUD:

3110

FUNDOVARE CAMPO
CRITERIODEELECCIÓNDETERRENOS TERRENO1 TERRENO2 TERRENO3 UBICACIÓN DISTANTEALACIUDAD 2 4 2 4 CERCANOALACIUDAD 4 ACCESIBILIDAD 1VÍADEACCESO 2 4 2 4 2VÍASDEACCESO 4 TOPOGRAFÍA PENDIENTE>a5m 2 2 2 4 PENDIENTE<a5m 4 ORIENTACIÓN N-O 2 6 6 8 NO-SE 4 N-S 6 NE-SO 8 EQUIPAMIENTOS BÁSICOSPRÓXIMOSAL ENTORNO 1DE5 2 8 8 8 2DE5 4 3DE5 6 4DE5 8 5DE5 10 RIESGOSNATURALES RIESGOSDEHUAYCOSE INUNDACIONES 2 2 4 4 SINRIESGOSDEHUAYCOSE INUNDACIONES 4 VEGETACIÓN CAMPOSDECULTIVO 2 4 2 4 CAMPOSSINVEGETACIÓN 4 SERVICIOSBÁSICOS CUENTACON1SERVICIO 2 6 6 6 CUENTACON2SERVICIOS 4 CUENTACON3SERVICIOS 6 TOTAL 36 32 42

TERRENOSPROPUESTOS

TERRENO 1

TERRENO 2

TERRENO 3

PerfildelUsuario 08

PERFIL DE USUARIO ACTIVIDADE

El52%dehombresse dedicanalaactividad agropecuaria

ACTIVIDADESPORGENERO

El20%demujeresson amasdecasay28%se dedicanalcomercio

0-2930-4445-59+60 300 200 100 0 URBANORURAL 100% 75% 50% 25% 0% OCUPACION ELEMENTAL 17.8% MILITARES POLICIAS 5.9% CONSTRUCCIÓ N 2% POBLACIÓNPOR GENERO 48% 270hab. MUJERES 52% 293hab. HOMBRES POBLACIÓNPOR EDAD POBLACIÓN 563hab. TIPOLOGÍADEPOBLACIÓN

ESECONÓMICAS

COMERCIANTES 7.9%

GRADODEINSTRUCCIÓN

Supera las 15,000 cabezas de ganadovacuno,ademáslacrianza decerdosconunpromediode3 617porcinos.

La agricultura presenta gran variedad como papas, arveja en granoseco,maízamiláceoyfrijol.

Sucapitalsehaconvertidoenun destinoobligatorioparaaccedera los circuitos turísticos como Kuélap.

ACTIVIDADESLOCALES SUP.UNIV SUP.NOUNIV SECUNDARIA PRIMARIA SINNIVEL 50 40 30 20 10 0
AGRICULTURA GANADERÍA TURISMO
AGRICULTORE S 57.3%
Y

PROGRAMACIÓN

ZONA SUBZONA AMBIENTE MODULODE VIVIENDA SOCIAL SALA-COMEDOR PATIO SERVICIOS COCINA LAVANDERIA+TENDAL SS.HH INTIMA DORMITORIOPRINCIPAL DORMITORIOSECUNDARIO TRABAJODECAMPO AREADE CULTIVO PARCELADEPAPA PARCELADEARVEJA PARCELADEMAIZ PARCELADEFREJOL PARCELADEPASTIZAL ALMACEN AREADE GANADO CORRALGANADO VACUNO CORRAL CORRALPAVIM INDIVI CORRALGANADO PORCINO GESTACIÓ MATE CRECI ENG ALMACEN
SOCIAL INTIMA SERVICIOS CULTIVOS GANADO 91m2 44m2 18.5m2 10015m2 176.48m2
ÁREA:
TOTAL 10344,98m2

La vivienda está planteada para una familia de agricultores y ganaderoscon2hijos.

Esta familia se dedica a la agricultura y ganadería tiene comonecesidades:

Undormitorioprincipalpara lospapás

Dosdormitoriosparalos3

hijos

Sala

Cocina

Comedor

Servicioshigiénicos

Espacioparaelcultivo.

Espacioparaguardarla cosecha.

Espacioparalacrianzadesu ganado.

Almacéndealimentos

AFORO CANTIDAD ÁREATECHADA AREANOTECHADA SUBTOTAL FUENTE - 1 3591 - 1 - 56 - 1 1218,5 - 1 - 3 - 1 3,52 1 2044 O 2 2 12SUBTOTAL 153,5 MUROSYCIRCULACIÓN30% 28,35 TOTAL 181,85 1 - 2000 10015 1 - 2000 1 - 2000 1 - 2000 1 - 2000 1 15DETIERRA 1 - 56 108 ENTADO/CAMAS DUALES 1 52N(JAULAS) 2 2,850,48 RNIDAD 1 14,88MIENTO 1 18ORDE 1 151 15 - 15 SUBTOTAL 10188,48 MUROSYCIRCULACIÓN30% 44,304 TOTAL 10247,984 TOTAL 10429,834
PropuestaPlanteada 09

EMPLAZAMIENTO

PARCELA DE MAIZ

PARCELA DE PAPA

PASTIZAL

PARCELA DE ARVEJA

PARCELA DE FREJOL

PLANTA GENERAL

CORTES

CORTE LONGITUDINAL

CORTE A -A' ESC.1/50

CORTE LONGITUDINAL

CORTE B -B' ESC.1/50

CORTES

CORTE TRANSVERSAL

CORTE C -C´ ESC.1/50 CORTE TRANSVERSAL CORTE D -D´ ESC.1/50

ELEVACIONES

ELEVACIÓN LATERAL DERECHA
ELEVACIÓN LATERAL IZQUIERDA

ELEVACIONES

ELEVACIÓN POSTERIOR
ELEVACIÓN FRONTAL

PLANODECIMIENTOS

PLANO DE CIMIENTOS ESC 1/50
1/50
DETALLE DE CIMIENTOS Y PISO ESC

PLANODEESTRUCTURADECUBIERTA

PLANO DE ESTRUCTURA DE CUBIERTA ESC 1/50

ISOMETRÍA DE CUBIERTA

TEJAANDINADEARCILLA

LÁMINAIMPERMEABILIZABLE

AISLAMIENTODECORCHO

PLANCHADEMADERATORNILLO

DETALLE DE CUBIERTA

DETALLE DE MURO

MURO DE TERMOARCILLA DETALLE MURO TROMBE
DETALLE

DETALLE DE PUERTA

DETALLE DE VENTANA

DETALLE DE INVERNADERO

RENDERS - EXTERIOR

RENDERS - EXTERIOR

RENDERS - EXTERIOR

RENDERS - EXTERIOR

RENDERS - EXTERIOR

RENDERS - EXTERIOR

RENDERS - EXTERIOR

RENDERS - EXTERIOR

RENDERS - EXTERIOR

RENDERS - INTERIOR

RENDERS - INTERIOR

RENDERS - INTERIOR

RENDERS - INTERIOR

RENDERS - INTERIOR

RENDERS - INTERIOR

RENDERS - INTERIOR

RENDERS - INTERIOR

RENDERS - INTERIOR

10
Conclusiones

CONCLUSIONES

Elanálisisdeloscasosanálogosfuerondegranimportanciapararealizaresteproyectoyaquenos permitiósaberqueestrategiasutilizaronparaconstruirviviendasenclimasconeldeChachapoyasy tambiénconlograronquelaviviendaseaconfortableparalosusuariosdellugar.

LapoblacióndeChachapoyaspresentacaracterísticasynecesidadesbásicasquerequierenparapoder tenerunestilodevidaadecuado,porlocualsetomóencuentatodosestosdatospararealizarla programaciónycumplacontodoslosfactoresqueserequiere.

LaciudaddeChachapoyaspresentaunclimaconhumedadaltayteniendoaltastemperaturas,debidoa estolaspersonas,tienenqueadaptarsusviviendasparaquepuedanserconfortablesenlasdistintas variacionesdeclimayasuvezestosesumaalosmaterialesqueseutilizaráenlaviviendaparaadaptarse alclima.

SehanpropuestoestrategiasdediseñoclimáticoparalograrviviendassustentablesenChachapoyas.

Estasestrategiasincluyenelusodematerialeslocalescomotechosymurosanchosdetermoarcilla,que tienenunaaltatransmitanciatérmicaysonfácilmentedisponiblesenlazona

Graciasalatipologíadeviviendadelazonabioclimáticadecejademontaña,sepudoobteneruna referenciaimportantequenosayudóalplanteamientodeldiseñodevivienda,dondeselogróunbuen diseñoambientalylaszonasplanteadassondeacuerdoalasnecesidadesrealesyestilosdevidadelos usuarios.

Katia Flores Pelaez Lucia Luperdi Angelats Jessy Paredes Leal Alejandro Pizarro Vásquez Leonardo Ruiz Michelini

RECORRIDOVIRTUAL

UNIVERSIDAD PRIVADA ANTENOR ORREGO

DOCENTE:

Arq.JuanDiegoGarciaHonores Arq.YsabelSachieKobashigawaZaha

GRUPO 02

KatiaFloresPelaez

LucíaLuperdiAngelats

JessyParedesLeal

AlejandroPizarroVásquez

LeonardoRuizMichelini

UNIVERSIDADPRIVADAANTENORORREGO-2023

P E R E N E

"CiudaddelasTresMesetas"

UbicaciónyLocalización 0 1

UBICACIÓNYLOCALIZACIÓN PERENÉ PERÚ CHANCHAMAYO

DESCRIPCIÓN

Ubicadaenelcentrooriental,enelcentrodelPerú,en elgranrecorridodelríoPerenédelaselvacentraly tieneunageografíaprivilegiada,conpaisajesexoticos que incluyen ríos, lagunas, sitios arqueológicos, museos,cataratasybañostermales.

PERENE

CARACTERÍSTICAS

DATOS

TEMPERATURA

LatemperaturadeHuantavaríaentre los14.3°Cenelperiodomásfríoy 25.2°Cenelperiodomáscaliente.

HORASDESOL

Presentaunavariaciónaltadehoras solenmesesdediciembreyenero

RADIACIÓN

En Perené se registra una alta radiaciónsolarde5.7KWhdurante elmesdeseptiembre.

HUMEDAD

El porcentaje de humedad se encuentrafueradelasvariablesde aceptable,hasta92%.

PRECIPITACIONES

Perenémantieneunaltoíndicede precipitación durante los meses de FebreroyMarzo.

SUBTROPICALHUMEDO

VIENTOS

Lavelocidadmáximaesde9.7km/h

LATITUD LONGITUD ALTITUD SUPERFICIE
10°57’38"11 75°13’32"O 620ms.n.m.
Z.BIOCLIMÁTICA
1224,15km²
AnálisisdeVariablesClimáticas 02

TABLADERESUMENDEVARIABLESCLIMATICAS

ENEROFEBREROMARZO ABRIL MAYO JUNIO JULIO AGOSTOSETIEMBRE OCTUBRENOVIEMBRE DICIEMBRE

NUBOSIDAD

TEMPERATURA

Temperaturamáx: Enero (25°C)

Temperaturamín: Agosto (14°C)

34mm 1mm 29mm 30 20 10 0 49% 95% 87% 95% 80% 65%
PRECIPITACIÓN
VIENTOS HUMEDAD RADIACIÓN nubosidadmáx: nubosidadmin: 80% 74% MAYORMENTENULADO MAYORMENTENULADO MAYORMENTEDESPEJADO Máx:29mm Min:1mm 19mm 27mm 35mm 5mm 1mm 1mm 12mm 2mm 25mm 68% 72% 61% 60% Predominante: Norte-Suroeste velocidadmáx: 9.9km/h velocidadmín: 7.7km/h 8.4km/h 9.9km/h Humedadmáx:95% Humedadmin:49% 5.0 Kwh 50 Kwh 50 Kwh 4.9 Kwh 5.1 Kwh 49 Kwh 5.0 Kwh 55 Kwh 57 Kwh 5.5 Kwh 53 Kwh 50 Kwh
MenorRad.:Enero Junio 15°C 23°C zonadeconfort 25 15 5
MayorRad.:Sept.

CONSECUENCIAS

ROSADEVIENTOS

ALERGIAS RESPIRATORIAS

ASMA

PROBLEMAS EN LA PIEL PÉRDIDA DE CULTIVOS

Fuente:Meteoblue

Intensidad del viento Efectos

Calma (0-1 km/h) Nohaymovimientoperceptibledelaire.

Brisa suave (1-10 km/h) Elvientoesapenasperceptibleynocausaningúnimpacto.

BAJAS

TEMPERATURAS

INUNDACIONES

Brisa moderada (10-20 km/h) Sesienteunvientoagradableyrefrescante.

AnálisisPsicrométrico 03

ANÁLISISPSICROMETRICO-GIVONI

ENE. FEB. MAR. ABR. MAY. JUN. JUL. AGO. SEPT. OCT. NOV. DIC. 25.3° 25.2° 25.2° 22.0° 20.2° 18.6° 17.4° 17.5° 17.6° 18.2° 21.1° 23.9° 20.2° 19.5° 19.0° 17.0° 15.7° 14.8° 14.7° 14.3° 14.4° 14.4° 16.4° 19.2° 95% 95% 94% 93% 92% 90% 87% 89% 90% 85% 87% 95% Mín. 75% 80% 68% 74% 72% 61% 60% 49% 60% 65% 56% 66%
ZDECONFORT Z. DE CONFORT PERMISIBLE GANANCIASINTERNAS CALEFACCIÓN SOLARACTIVA
CONVENCIONAL HUMIDIFICACIÓN PROTECCIÓNSOLAR ALTAMASATÉRMICA ENFRIAMIENTO POR EVAPORACIÓN AIREACONDICIONADO DESHUMIDIFICACIÓN CONV.
CALEFACCIÓN
VENTILACIÓNNATURALO MECÁNICA MASA TÉRMICA Y VENTILACIÓNNOCTURNA CALEFACCIÓN SOLARPASIVA

ELEVACIÓN

TECHOSINCLINADOS/ ALEROS

Proteccióndirectaderadiacióny alejamientodelluviademurosy vanosconvertientesde2o4aguas.

VENTILACIÓNCRUZADA PORVANOSMAYOR DIMENSIÓN

Renovacióndeaireporingresosde flujosmayoresenvanosconaltura.

ELEVACIÓNDEVIVIENDA

Conalturapromediode60cmpor debajodeviviendaparanoser afectadaporprecipitación.

GANANCIAPOR

ELECTRODOMESTICOS

Aprovechamientodecalorporuso funcionamientodeequiposalinterior delavivienda.

VENTILACIÓNCONTROLADA PORPARASOLESMÓVILES

Proteccióndeviviendasmanejando luzyventilacióninterior,captando caloreninviernoydisminuiren verano.

AMPLITUDDEALTURA

PISOATECHO

Perdidadecalorporconvección naturalyaberturasenestructurade techos.

AnalisisdeCasos 04

ANALISISDECASOS

MATERIALES HOJADEPLAMA

Techo

ELEMENTOS VENTAJAS

Viviendaelevadadesde40cm

MADERA

Estructura

MADERADEBAMBU

Tabiqueria

MADERADEPINO

Pisos

Aturadepisoatecho3.0cm

Usodemallasenvanos

Techosinlcinadosa2aguas

Ingreso de vientos desmesurados que cubren vanos y muros para que no sean afectados

Permitirá el aislamiento de calor adecuado

ANÁLISISGRÁFICO

Malo Bueno

RENOVACIÓNDEAIRE

PRECIPITACIONES

AIREFRIÓ

ASOLEAMIENTO HUMEDAD

CUADROZONASYAMBIENTES

CASO 01 - VIVIENDA RURAL

ZONAALTOANDINA- CERRODEPASCO

ZONA AMBIENTES AREA SOCIAL Sala 9.60m2 Comedor 5.40m2 PRIVADA DormitorioPrincipal 12.80m2 DormitorioSecundario 11.20m2 SERVICIO Lavanderia 180m2 Cocina 5.50m2 Baño-Letrina 4.50m2 CIRCULACIONYMUROS 30%
PLANTA1erPISO 1 2 6 7 3 4 5

ANALISISDECASOS

MATERIALES

ELEMENTOS VENTAJAS

CONCRETO CALAMINA LADRILLO TIERRA

Estructura

Altura de piso a techo 2.50 m para mayorcrucedeventilación

Mayordimensióndevanos(móviles)para iluminaciónyviento

Sistemaparadrenajedelluvias,debidoa susanomalíasoprecipitaciones

Techo

Ventanaspequeñasevitandolaperdida decalor.

Usodematerialespropiosdelazona.

Tabiqueria

Tabiqueria

Usodelucesdeelementosquereduzcan menorusodevivienda.

ANÁLISISGRÁFICO

Malo Bueno

RENOVACIÓNDEAIRE

PRECIPITACIONES

AIREFRIÓ

ASOLEAMIENTO

HUMEDAD

PLANTA1erPISO

CUADROZONASYAMBIENTES

CASO 01 - VIVIENDA URBANA

ZONAALTOANDINA- CERRODEPASCO

ZONA AMBIENTES AREA SOCIAL Patio 3322m2 PRIVADA Cocina-DormitorioPrincipal 9.23m2 DormitorioDoble 9.23m2 SERVICIO Almacen 994m2 CocinaFogon 1.80m2 Baño-Letrina 180m2 A.DETRABAJO Recintodeanimales Aprox.25m2 CIRCULACIONYMUROS 30%
SALA COMEDOR PATIO COCINA SS HH LAVANDERIA DORM PRINC DORMITORIO 1 DORMITORIO 2 PLANTA 1ER PISO
CartaEstereográfica 05

CARTAESTEREOGRÁFICA

PROPUES

solar, son solarideal y privados da.

COMEDOR

FACHADANW-WS

Según el análisis de nuestra carta solar, son fachadas con la mayor incidencia solar, prefiriendo ubicar los ambientes con menor usoodeservicio.

SERVICIO - COCINA

JULIO AGOSTO SEPTIEMBRE OCTUBRE
NOVIEMBRE

ORIENTACIÓN SSE-NNW

-CAPTARINCIDENCIASOLAR

-BLOQUEO DE MASAS DE AIRE DIRECTAS

Según el análisis de nuestra carta solar, la construcción de la vivienda es Noreste-Suroeste con45°conelfindelosmesesdemastemperatura controlarloconlaayudadelvientoylosmesesmas fríos,tenerradiacióndirecta.

SOLSTICIO DE INVIERNO

Duranteestatemporadaelingresodel solsedaporelNorte,porloquelas fachadas mas expuestas son Noroeste yNoreste

SOLSTICIO DE VERANO

Durante esta temporada el ingreso del sol se da por el Sur, por lo que las fachadas mas expuestas son la SuresteySuroeste.

-COORDENADASCELESTES

ES T° Horasdesol 10:00 12:00 15:00 AZ ALT AZ ALT AZ ALT RO 25.3° 12.8h 112.21° 57.10° 166.39° 79.48° -109.59° 48.19° ERO 252° 127h 9662° 5678° 11560° 8575° -9687° 4982° MARZO 252° 122h 7726° 56.52° 1663° 8091° -8140° 4705°
JUNIO MAYO ABRIL MARZO FEBRERO ENERO DICIEMBRE
PropuestadeMateriales 06

MATERIALES: TECHO

Lacubiertadelproyectoseutilizarámaterialestípicosdela zona, siendo la cubierta de paja y el bambú para la estructura.

Proponemoseltipodecubiertaadosaguas.

CAÑA BAMBÚ

Re:

R:

U:Transmitencia

ZONABIOCLIMÁTICA TRANSMITANCIATÉRMICA MÁXIMADELMURO TRANSMITANCIATÉRMICA MÁXIMADELTECHO TRANSMITANCIA TÉRMICAMÁXIMADEL PISO SubtropicalHúmedo 360 2.20 263 Hojadepalma Sobresaliente de alero Estructura de bambú avanzar TECHO Material e (m) y= Coeficiemte de transmisión térmica (W/M K) Resistencia térmica (W/m².K) HOJASDEPALMA 004 003 133 CAÑADEBAMBÚ 0.10 0.08 1.25 RSI (SEGÚN EM 110) 0.13 RSE(SEGÚN EM 110) 0.04 RESISTENCIA TOTAL 2.75 TRANASMITANCIA TÉRMICA(W/M².K) 0.36
LEYENDA
Resistencia
Superficialexterna
Rsi:Resistencia Superficialinterna
Resistencia
HOJA DE PLAMA

MATERIALES: MURO

El bahareque se basa en la fabricación de paredes construidasconunesqueletodebambúGuadua,obambú Guadua y madera, cubierto con un revoque (enlucido/pañete) de mortero de cemento aplicado sobre malla de alambre, clavada en caña picada, chancada o esterillaque,asuvez,seclavasobreelesqueletodelmuro

MURO

CAÑAN GUAYAQUIL

MORTERO DE CEMENTO

CañaGuayaquil

LEYENDA

Re: Resistencia

Superficialexterna

Rsi:Resistencia

Superficialinterna

R: Resistencia

U:Transmitencia

MATERIAL e (m) COEFICIENTE DE TRANSMISIÓN TÉRMICA RESISTENCIA TERMICA CAÑA GUADUA 0 15 0 09 1 67 MORTERO DE CEMENTO ARENA 0.05 1.40 0.04 RSI (SEGÚN NORMA) 0.04 RSE (SEGÚN NORMA) 0.13 RESISTENCIA TOTAL 1.88 COEFICIENTE DE TRANSMITANCIA (U9 0.53
ZONABIOCLIMÁTICA TRANSMITANCIATÉRMICA MÁXIMADELMURO TRANSMITANCIATÉRMICA MÁXIMADELTECHO TRANSMITANCIA TÉRMICAMÁXIMADEL PISO SubtropicalHúmedo 360 2.20 263
Mortero de cemento

MATERIALES: PISO

Esta propuesta para pisos consiste en el uso de una estructura de caña de Bambú elevada a 40 cm para la proteccióndemosquitosyposiblesinundaciones,cubierto portablonesdeQuinillaColorada.

CAÑA BAMBÚ

MATERIAL e (m) COEFICIENTE DE TRANSMISIÓN TÉRMICA RESISTENCIA TERMICA QUINILLA COLORADA 0.025 0.188 0.14 CAÑA DE BAMBÚ 0.10 0.08 1.25 RSI (SEGÚN NORMA) 0.13 RSE (SEGÚN NORMA) 0.04 RESISTENCIA TOTAL 1.56 COEFICIENTE DE TRANSMITANCIA (U) 0.64
PISO
TABLONES
ZONABIOCLIMÁTICA TRANSMITANCIATÉRMICA MÁXIMADELMURO TRANSMITANCIATÉRMICA MÁXIMADELTECHO TRANSMITANCIA TÉRMICAMÁXIMADEL PISO SubtropicalHúmedo 360 2.20 263 LEYENDA Re: Resistencia Superficialexterna Rsi:Resistencia Superficialinterna
Resistencia
Viga de soporte Tablones de Madera 0.2x1.5m
DE QUINILLA COLORADA
R:
U:Transmitencia

Esta

MATERIALES: PUERTA

LEYENDA

Re:

propuesta
p aislante térmico,
revestidademaderacedr
para
siendo
LANA MINERAL MATERIAL e (m) COEFICIENTE DE TRANSMISIÓN TÉRMICA RESISTENCIA TERMICA LANA MINERAL 0.03 0.038 0.79 CEDRO 0.10 0.13 0.77 RSI (SEGÚN NORMA) 0.13 RSE (SEGÚN NORMA) 0.04 RESISTENCIA TOTAL 1.73 COEFICIENTE DE TRANSMITANCIA (U) 0.58
TRANSMITANCIATÉRMICA MÁXIMADELMURO TRANSMITANCIATÉRMICA MÁXIMADELTECHO TRANSMITANCIA TÉRMICAMÁXIMADEL PISO SubtropicalHúmedo 360 2.20 263
PUERTA AISLANTE CEDRO
ZONABIOCLIMÁTICA
Resistencia Superficialexterna
Superficialinterna
Resistencia
Rsi:Resistencia
R:
U:Transmitencia
maderasólidaCedro
Cedro
Lana Mineral
Marco contrachapado
MaderaCedro Listón madera
Capa

MADERAQUINILLA COLORADA

Proveedor"MaderaAliaga"

Precio$12soles

Horadeviajehastaelproyecto:40min

CAÑABAMBÚ

Proveedor"VillaBambooPerú"

Precio$10soles

Horadeviajehastaelproyecto:45min

LANAMINERAL

Proveedor"CorporaciónFerreiraPalacios

Precio$50soles

Horadeviajehastaelproyecto:1día

01 02 0 1 2
PROVE

MADERACEDRO

Proveedor"MaderaTropicalesAndrea"

Precio$20soles

Horadeviajehastaelproyecto:3h30min

VIDRIOPOLIESTIRENO

Proveedor"VidriosAluminiosPerené"

Precio$40soles

Horadeviajehastaelproyecto:60min

CAÑAGUAYAQUIL

Proveedor"VillaBambooPerú"

Precio$10soles

Horadeviajehastaelproyecto:45min

04
06
EEDORES
05
5 4 6
TerrenosPropuestos 07

TERRENOSPROPUESTOS

CONTEXTO

ÁREA: 1225m²

PERFILURBANO:

PeriferiadePerené

FORMA:

DESCRIPCIÓN

Elterrenoseubicaenlacarreteraqueconectaconeldistritode Luricochaa2.50kmdelcentrodePerené,seencuentranterrenoscon grandesáreasparacultivo.

Comocontextoinmediatotenemosalmacenes,colegios,viviendasy algunasbodegas.

Serviciosbásicosconlosquecuentaelterreno:

VIVIENDASPROXIMAS

Accesibilidad:

Esunterrenoaccesible,yaqueseencuentraalasalidade Perené con 12.5 metros de ancho de vía con posible accesibilidadatodotipodetransporteterrestre.

HUERTOS

FRENTES:

RECTANGULAR 10°57´38”11

LATITUD:

LONGITUD:

ALTITUD:

4 75°13´32 636m.s.m

CIUDADPERENE

CONTEXTO

ÁREA: 2500m²

PERFILURBANO:

PeriferiadePerené

TERRENOSPROPUESTOS CIUDADPERENE

FORMA:

RECTANGULAR

FRENTES:

DESCRIPCIÓN

LATITUD:

10°57´38”11

LONGITUD:

4 75°13´32

ALTITUD:

636m.s.m

VIVIENDASPROXIMAS

Elterrenoseubicaenlacarreteraqueconectaconeldistritode Luricochaa2.50kmdelcentrodePerenéseencuentranterrenoscon grandesáreasparacultivo.

Comocontextoinmediatotenemosalmacenes,colegios,viviendasy algunasbodegas.

Serviciosbásicosconlosquecuentaelterreno:

HUERTOS

Accesibilidad:

Esunterrenoaccesible,yaqueseencuentraalasalidade Perené con 12.5 metros de ancho de vía con posible accesibilidadatodotipodetransporteterrestre.

TERRENOSPROPUESTOS

CONTEXTO

DESCRIPCIÓN

Elterrenoseubicaenlacarreteraqueconectaconeldistritode

Luricochaa2.50kmdelcentrodePerené,seencuentranterrenoscon grandesáreasparacultivo.

Comocontextoinmediatotenemosalmacenes,colegios,viviendasy algunasbodegas.

Serviciosbásicosconlosquecuentaelterreno:

CIUDADPERENE

Accesibilidad:

Esunterrenoaccesible,yaqueseencuentraalasalidade

Perené con 12.5 metros de ancho de vía con posible accesibilidadatodotipodetransporteterrestre.

VIVIENDASPROXIMAS HUERTOS

PERFILURBANO:

ÁREA: 900m² PeriferiadePerené

FORMA:

RECTANGULAR 4

FRENTES:

LATITUD:

10°57´38”11 75°13´32

LONGITUD:

ALTITUD:

636m.s.m

CRITERIODEELECCIÓNDETERRENOS TERRENO1 TERRENO2 TERRENO3 UBICACIÓN DISTANTEALACIUDAD 2 2 2 4 CERCANOALACIUDAD 4 ACCESIBILIDAD 1VÍADEACCESO 2 2 2 2 2VÍASDEACCESO 4 TOPOGRAFÍA PENDIENTE>a5m 2 2 2 4 PENDIENTE<a5m 4 ORIENTACIÓN N-O 2 4 2 4 NO-SE 4 N-S 6 NE-SO 8 EQUIPAMIENTOS BÁSICOSPRÓXIMOSAL ENTORNO 1DE5 2 4 2 6 2DE5 4 3DE5 6 4DE5 8 5DE5 10 RIESGOSNATURALES RIESGOSDEHUAYCOSE INUNDACIONES 2 2 2 2 SINRIESGOSDEHUAYCOSE INUNDACIONES 4 VEGETACIÓN CAMPOSDECULTIVO 2 2 2 2 CAMPOSSINVEGETACIÓN 4 SERVICIOSBÁSICOS CUENTACON1SERVICIO 3 3 3 6 CUENTACON2SERVICIOS 3 CUENTACON3SERVICIOS 6 TOTAL 21 13 30

TERRENOSPROPUESTOS

TERRENO 1

TERRENO 2

TERRENO 3

PerfildelUsuario 08

PERFIL DE USUARIO ACTIVIDADE

El61%dehombresse dedicanalaactividad agropecuaria

ACTIVIDADESPORGENERO

El40%demujeresson amasdecasay60%se dedicanalcomercio

TIPOLOGÍADEPOBLACIÓN

0-1415-2930-59+60 20,000 15,000 10,000 5,000 0 URBANORURAL 75% 50% 25% 0% OBRERO 24% EMPLEADO 12.9% POBLACIÓNPOR GENERO 48.8% 25791hab. MUJERES 51.2% 27083hab. HOMBRES
EDAD
POBLACIÓNPOR
POBLACIÓN 58923hab.

ESECONÓMICAS

DÉFICITDESERVICIOSBÁSICOS

Supera las15,000cabezas deganadovacuno,además lacrianzadecerdosconun promedio de 3 617 porcinos.

La agricultura presenta gran variedad como papas, arveja en grano seco, maíz amiláceo y frijol.

Sucapitalsehaconvertidoen un destino obligatorio para acceder a los circuitos turísticoscomoKuélap.

AGRICULTURA GANADERÍA TURISMO

TRAB.INDEPENDIENTE 55.6% EMPLEADOR 5.1% ACTIVIDADESLOCALES DESAGUE LUZ AGUA 2,500 2,000 1,500 1,000 500 0

PROGRAMACIÓN

SOCIAL INTIMA SERVICIOS CULTIVOS GANADO 64.70m2 39.65m2 23.40m2 28015m2 44.20m2 TOTAL 170.95m2 ÁREA:

La vivienda está planteada para una familia de agricultores y ganaderoscon2hijos.

Esta familia se dedica a la agricultura y ganadería tiene comonecesidades:

Undormitorioprincipalpara lospapás

Dosdormitoriosparalos3 hijos

Sala

Cocina

Comedor

Servicioshigiénicos

Espacioparaelcultivo.

Espacioparaguardarla cosecha.

Espacioparalacrianzadesu ganado.

Almacéndealimentos

PropuestaPlanteada 09

EMPLAZAMIENTO

CORTES

CORTE TRANSVERSAL

CORTE LONGITUDINAL

CORTE A -A' ESC.1/50 CORTE B -B' ESC.1/50

CORTES

CORTE TRANSVERSAL

CORTE LONGITUDINAL

CORTE C -C' ESC.1/50 CORTE D -D' ESC.1/50

ELEVACIONES

ELEVACIÓN 1

ESC.1/50

ELEVACIÓN 2

ESC.1/50

ELEVACIONES

ELEVACIÓN 3

ESC.1/50

ELEVACIÓN 4

ESC.1/50

PLANOESTRUCTURAL

ESC.1/50 PLANO
ESTRUCTURAL

ESTRUCTURA GENERAL

ISOMETRÍA ESTRUCTURAL

ESC.1/50

PLANODECIMIENTOS

ESC.1/50 PLANO CIMENTACIÓN

DETALLE DE MURO

PLANO DE TECHO

PLANO DE TECHO

ESC.1/50

ESTRUCTURA DE TECHO

ISOMETRÍA DE TECHO

ESC.1/50

RENDERS - EXTERIOR

RENDERS - EXTERIOR

RENDERS - EXTERIOR

RENDERS - EXTERIOR

RENDERS - EXTERIOR

RENDERS - EXTERIOR

RENDERS - EXTERIOR

RENDERS - EXTERIOR

RENDERS - EXTERIOR

RENDERS - EXTERIOR

RENDERS - INTERIOR

RENDERS - INTERIOR

RENDERS - INTERIOR

RENDERS - INTERIOR

RENDERS - INTERIOR

RENDERS - INTERIOR

RENDERS - INTERIOR

RENDERS - INTERIOR

RENDERS - INTERIOR

RENDERS - INTERIOR

Conclusiones 10

CONCLUSIONES

EldistritodePerenéesunaciudadcontemperaturasyhumedadelevadas,conelanálisisrealizado mediantelacartaestereográficayrecorridodelsol,llegamosaconcluirquelaorientaciónmás adecuadaendeNoreste-Suroestecon45°permitiendoenlosmesesdemastemperaturacontrolarlo conlaayudadelvientoylosmesesmasfríos,tenerradiacióndirecta.

Encontrastacióndelanálisisdevariablesycartaestereográfica,paralapropuestadeviviendaenPerené vamosadesarrollartechosaltoseinclinadosparafavorecerelflujodelluvias,elevacióndepisos,usode parasolesycelosías,ademasdealerosparagenerarsombrashaciamurosexterioresymaterialesligeros.

Paramayor ventilaciónsevaloraelabrirvanosentodaslasfachadas,yaquecomosabemoslavelocidad delvientonoesmuyrápidayporlacondicióndelazonabioclimática,subtropicalhúmero(selva), implicatenersiempreunaventilaciónorenovacióndevientoconstante,conellotambiénpodemosusar lavegetacióntalescomoárbolesoarbustosquepuedanredireccionarymantenerelviento.

Encuantoalestudioydefinicióndelusuario,eltipodeviviendaquepredominaenlaciudaddePerené escasaindependienteconunaalturamínimade3mparaaminorarlastemperaturas.Proyectandoal desarrollodeunaviviendafamiliarconlascaracterísticasadecuadasparaunhabitadyconfort satisfactorio

Paraaprovechamientodelaventilaciónsevaloraelabrirvanos),implicatenersiempreunaventilación orenovacióndevientoconstante,conellotambiénpodemosusarlavegetacióntalescomoárboleso arbustosquepuedanredireccionarymantenerelviento.

Mendieta Rojas, Victoria Reyes Rubio, Carlos Vasquez Eusebio, Ever Velásquez Díaz, Joana Villalobos Llatas, Franz

RECORRIDOVIRTUAL

UNIVERSIDAD PRIVADA ANTENOR ORREGO

DOCENTE:

Arq.JuanDiegoGarciaHonores Arq.YsabelSachieKobashigawaZaha

GRUPO 01

MendietaRojas,Victoria

ReyesRubio,Carlos

VasquezEusebio,Ever

VelásquezDíaz,Joana

VillalobosLlatas,Franz

Turn static files into dynamic content formats.

Create a flipbook
Issuu converts static files into: digital portfolios, online yearbooks, online catalogs, digital photo albums and more. Sign up and create your flipbook.