CASO 04 - CASOS ANALAGOS - HOTEL UPAO

Page 1

ANÁLISIS DE CASOS

CÁTEDRA

ARQ. PAULA FRANCISCA DAVELOUIS CASANA

INTEGRANTES

CASTILLO LEÓN, DIANA

CRUZ PONCE, PAULA

MEDINA HUAMÁN, SOFIA

RIOS VELASCO, BELÉN

ROSALES MORETTI, ANGHELINE

VEGA LEÓN, ENZO

VELÁSQUEZ AMANSIFUEN, DAFNE

T A L L E R D E D I S E Ñ O A R Q . V I
100% 100% 100% 100% 100% 100% 100%

THE WESTIN HOTEL LIMA,

PERÚ

FICHA TÉCNICA

UBICACIÓN: Cruce de la av.Javier Prado y las Begonias (San IsidroLima) - Las Begonias 450, Perú

ESTILO ARQUITECTÓNICO: Arquitectura Moderna

ESTUDIO DE ARQUITECTURA: Arq Bernardo Fort Brescia

INAUGURACIÓN: 2011

ÁREA DEL TERRENO : 7543.40 m²

ÁREA CONSTRUIDA: 74030.42m²

HABITACIONES: 311

PISOS: 30 Y 5 SÓTANOS

AFORO: H. 500 , C.Convenciones 200

PERÚ LIMA
LATINOAMERICA
UBICACIÓN DATOS

CONTEXTO INMEDIATO

El emplazamiento del The Westin Lima Hotel & Convention Center se encuentra a tan solo 15 kilómetros el Aeropuerto Internacional Jorge Chávez y a unos minutos de una espléndida selección de restaurantes, galerías y parques, además de bancos y oficinas corporativas centrales. Ubicado a corta distancia del distrito de Miraflores y el centro histórico de Lima, el hotel responde y se configura como un ícono de elegancia y diseño único en la ciudad.

C O N T E X T O
CONTEXTO
CLÍNICA CANTELLA SALUD LA POSITIVA SEGUROS BANCO GNB BANCO MINISTERIO DE CULTURA CLÍNICA INTERNACIONAL SALUD MUSEO HUACA PUCLLANA MUSEO DE SITIO 1 1 2 3 2 3 4 5 6 4 5 6
MEDIATO

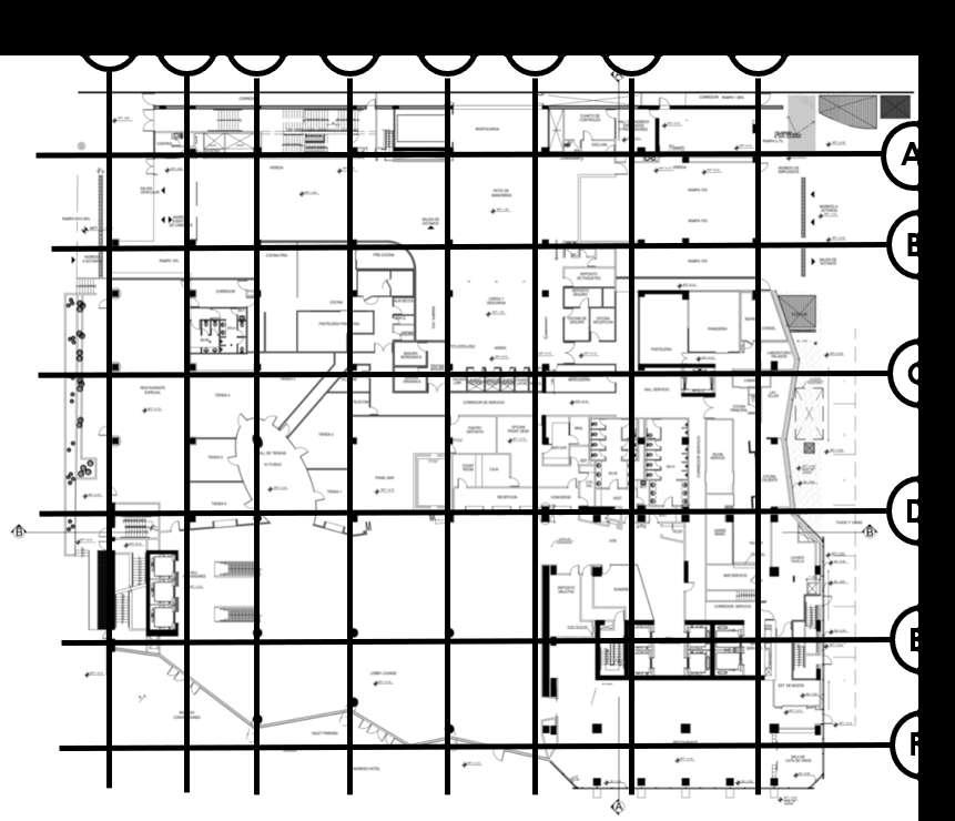
ANÁLISIS FUNCIONAL

ZONIFICACIÓN

ANÁLISIS FUNCIONAL

ZONIFICACIÓN

ANÁLISIS FUNCIONAL

CIRCULACIÓN

ACES ACCE

ACCESO PEATONAL SECUNDARIO

ACCESO PEATONAL DE SERVICIO

ACCESO VEHICULAR

FLUJO MENOR (HUÉSPED)

FLUJO MAYOR (SERVICIO)

FLUJO MENOR (SERVICIO)

CIRCULACIÓN VERTICAL

ANÁLISIS FUNCIONAL

CIRCULACIÓN

ACCESO PEATONAL PRINCIAL ACCESO PEATONAL SECUNDARIO

ACCESO PEATONAL DE SERVICIO

ACCESO VEHICULAR

(HUÉSPED)

FLUJO MENOR (HUÉSPED)

FLUJO MAYOR (SERVICIO)

FLUJO MENOR (SERVICIO)

CIRCULACIÓN VERTICAL

VOLUMEN 1

La torre esta representada por el paralilepipedo alargado con detalles de forma orgánica en las esquinas que generan movimiento dinámico al edificio , su escala depende mucho de su ubicación

VOLUMEN 2

El paralilepipedo menor en forma de “L” bordeando a la torre por dos de sus caras generando una organización agrupada convirtiéndola en una unidad

CONTRASTE:

Se puede evidenciar en la diferencia de tamaños y de materiales en los volúmenes

CARACTERÍSTICAS FORMALES

JERARQUÍA:

El volumen 1 es el de mayor jerarquía , que el volumen 2

VOLUMEN 1

VOLUMEN 2

PROPORCIÓN Y ESCALA:

El volumen 1 es de mayor jerarquía, y posee una escala monumental .

A N Á L I S I S F O R M A L
COMPOSICIÓN VOLUMÉTRICA

Desde la entrada principal del edificio se puede ingresar a los distintos ambientes de la edificación

En todos los niveles inferiores el área que en este caso más predomina y se lee como jerarquizante es la zonas complementarias.

En los pisos superiores tenemos como espacios jerarquizado las zonas como salones principales y secundarios .

En áreas privadas como las habitaciones tenemos ambientes continuos en altura y grandes ventanales que permiten un buena vista, ventilada e iluminada

ORGANIZACIÓN ESPACIAL INTERIOR

Los espacios se observan como áreas irregulares ya que no tienen forma, los tamaños de todos los espacios varían según las características y funciones que se realizan en estas.

La torre está totalmente revestida de cristal ocupando 16,000 m2 dejando pasar en un 100% la luz del sol al interior de las habitaciones.

A N Á L I S I S E S P A C I A L ESPACIAL - ESPACIOS INTERIORES
GRADO DE CERRAMIENTO

El diseño de la ventana de la habitación doble King permite el paso de la luz natural cumpliendo una función, lumínica y térmica del espacio.

En invierno, la incidencia solar en la zona comercial es mayor que en verano

A N Á L I S I S A M B I E N T A L ILUMINACIÓN NATURAL

SISTEMA CONSTRUCTIVO

La estructura está formada por concreto armado en su totalidad

El recubrimiento exterior de la edificación en su mayoría está hecho de vidrio doble, en el volumen menor está forrada con paneles grises.

Los acabados en su interior presentan un aspecto elegante con materiales de primera como mármol, granito y porcelanato. Se utilizó diferente tipos de maderas para acabado de mobiliario fijo, varía en textura y colores

CONSTRUCCIÓN

TRADICIONAL: está compuesto por estructura de paredes portantes u hormigón armado

SISTEMA DE MUROS: Se denomina muro de carga o muro portante a las paredes de una edificación que poseen función estructura

A N Á L I S I S C O N S T R U C T I V O

HOTEL LONE

ROVINJ, CROACIA

UBICACIÓN: UI. Luje Adamovica 31, 52210, Rovinj, Croacia

ESTILO ARQUITECTÓNICO: Arquitectura Moderna

ARQUITECTO: 3 DHL Oficina de Arquitectura

INAUGURACIÓN: 2013

SUPERFICIE: 29,476 m2

FICHA TÉCNICA

N° DE HABITACIONES: 261

AÑO DE CONSTRUCCIÓN: 2011

DATOS:

NOMBRE: Hotel Lone

Los profesionales de 3LHD se encargaron de todos los aspectos del diseño y construcción del hotel, el cual ofrece 236 habitaciones y 12 suites. 16 de estas habitaciones presentan una exclusiva experiencia de una piscina de masajes privada construida en la terraza de la habitación. Todas las habitaciones están diseñadas para satisfacer las necesidades de todos los huéspedes.

ACCESIBILIDAD

El lugar se halla en una ubicación privilegiada que facilita la llegada sin demoras. Está rodeado por diversas vías de acceso, entre ellas la Avenida Costera, lo que resulta en una mejora en la navegación alrededor del terreno y al litoral.

USUARIO

ANÁLISIS CONTEXTUAL

A. EMPLAZAMIENTO

Huéspedes

Nacionales e Internacionales

Ejecutivos

Empresarios

Publico en general

El terreno se encuentra en una superficie plana, rodeado de zonas verdes y un cuerpo de agua cercano.

B. IMPRESIÓN DEL LUGAR

El lugar ofrece una vista impresionante al mar y una amplia extensión de áreas verdes, además de una arquitectura singular que contribuye a su encanto.

CRITERIO DE DISEÑO DEL AUTOR

Este hotel fue diseñado para ajustarse al entorno circundante, creando una sinergia entre la construcción y el lugar, al mismo tiempo que se ofrecen vistas con una regulación de la entrada de luz solar en cada habitación. Esto proporciona un ambiente acogedor con una iluminación controlada.

U B I C A C I Ó N
ISTRIA
EUROPA CROACIA

CONTEXTO MEDIATO

1 2 3 4 5 6 1 2 3 4 5 6 1 2 3 4 5 6 6 5 4 1 2 3 C O N T E X T O
Restaurante
CONTEXTO INMEDIATO LEYENDA Hotel Monte Mullini
Wine Vault Mulini Beach
Tamaris Beach Bar Hotel Eden Geparkeerd
LEYENDA
Grand Park Hotel
Parking Stadion Parking
Plaža
Rovinj by Maistra Collection Boutique hotel Lili
Hotel Arupinum
Hotel Eden

ACCESO VEHICULAR

ORGANIZACIÓN

Circulación Vertical Organización Continua

Esta organización lineal de los pasillos se refiere a la disposición de los corredores dentro del espacio. Esto significa que los pasillos estarán alineados unos con otros para formar líneas rectas. Esto permite un flujo de circulación más eficiente y permite un fácil acceso a los espacios alrededor. Sin embargo, en algunos casos, la configuración del espacio puede generar una organización continua, lo que significa que los pasillos se enlazan unos con otros de manera fluida.

A N Á L I S I S F U N C I O N A L
PEATONAL
ACCESOS ACCESO
ACCESO PRINCIPAL

ZONIFICACIÓN

El hotel Lone ofrece a sus huéspedes una experiencia única al ofrecer una amplia variedad de zonas sociales para disfrutar. Estas zonas sociales permiten a los huéspedes relajarse y divertirse, ya sea nadando en la piscina, disfrutando de un almuerzo en el restaurante o simplemente pasando el rato en el lobby. Además, el hotel cuenta con una variedad de actividades para los huéspedes, como excursiones, deportes acuáticos, eventos musicales y mucho más. Esto garantiza que los huéspedes tendrán algo que hacer durante su estancia en el hotel.

A N Á L I S I S F U N C I O N A L

Este nivel de un centro de convenciones ofrece muchos servicios útiles para los asistentes. La zona de exposición brinda la oportunidad de presentar productos y servicios a clientes potenciales, mientras que la zona de alimentos ofrece una selección de comidas y bebidas para satisfacer las necesidades de los asistentes. Estas zonas se complementan entre sí para ofrecer una experiencia más completa y satisfactoria para los asistentes. Además, esta configuración seguramente contribuye a mejorar la experiencia general del usuario, ya que la combinación de los servicios de exposición y alimentos proporciona a los asistentes una variedad de opciones para aprovechar al máximo su tiempo en el centro de convenciones.

ZONIFICACIÓN
A N Á L I S I S F U N C I O N A L 1 2 2 2 3 3 4 5 6 7 8 9 10 11 12

ZONIFICACIÓN

El nivel administrativo del hotel ofrece una gran ventaja a los huéspedes, ya que proporciona un lugar conveniente para reuniones importantes, seminarios y otros eventos. El auditorio auxiliar también es útil para aquellos que buscan un espacio para presentaciones más informales. Esto puede resultar útil para aquellos que necesitan presentar una idea o una propuesta a un grupo de personas, ya que proporciona un lugar cómodo para reunirse. Además, el auditorio auxiliar también puede servir como un lugar para reuniones de negocios más informales, como reuniones de equipo o presentaciones de productos. Esto puede ser particularmente útil para aquellos que no quieren reservar un salón de conferencias más grande o caro. Estas instalaciones ayudan a mejorar la experiencia y la comodidad de los huéspedes

A N Á L I S I S F U N C I O N A L 1 2 3 4 5 6 11 10 12 8 9

ZONIFICACIÓN

Este lugar ofrece una variedad de opciones para aquellos que buscan hospedarse. Las habitaciones simples son una buena opción para los viajeros que prefieren algo más sencillo. Las habitaciones dobles ofrecen más espacio para aquellos que viajan en pareja o en grupo. Las suites son ideales para aquellos que quieren un poco de lujo adicional, mientras que la suite presidencial es una opción para aquellos que quieren una experiencia de lujo completa. Todas las habitaciones están equipadas con lo necesario para brindar una estancia cómoda. Esta zona de hospedaje también cuenta con un equipo de trabajo amable y profesional para ayudar a los huéspedes con cualquier necesidad.

A N Á L I S I S F U N C I O N A L 1 3 4 2

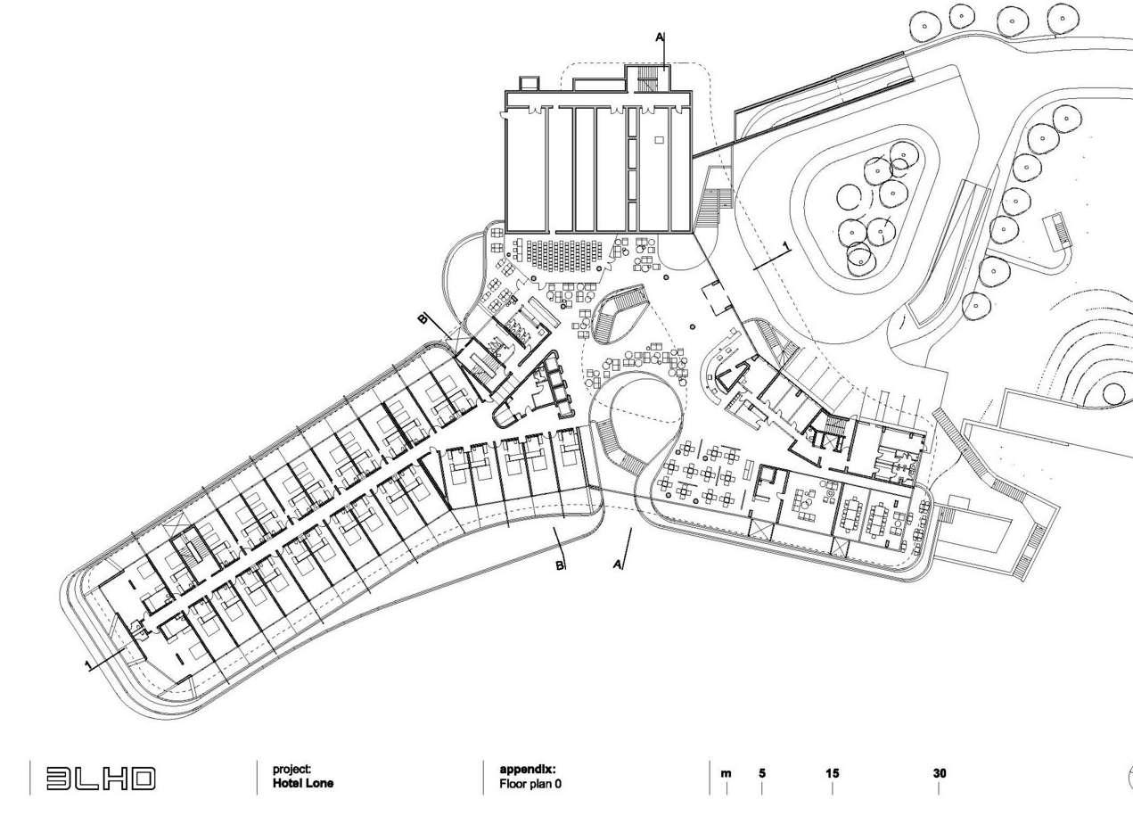
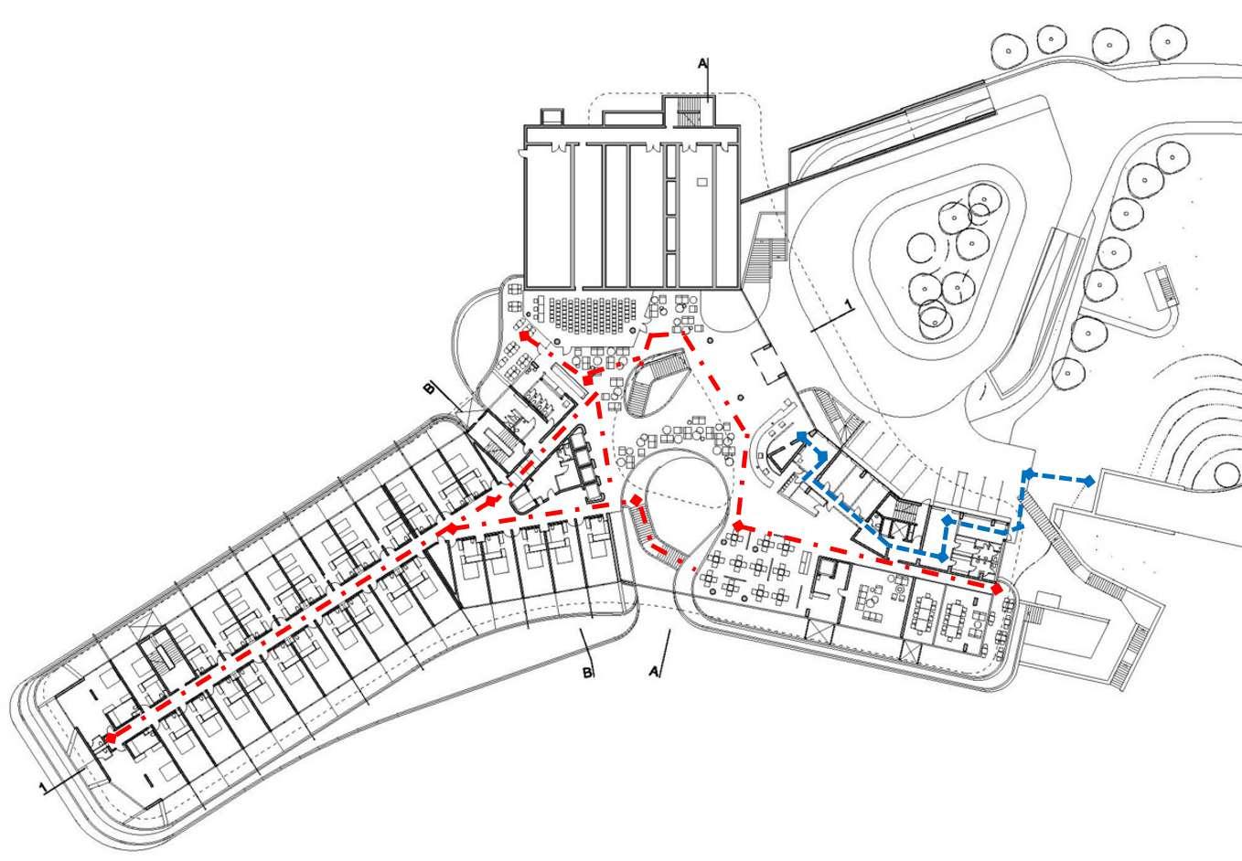
PLANTA

RECORRIDO PRINCIPAL

Las personas que llegan al hotel generalmente siguen el recorrido principal, haciendo de éste un camino muy transitado.

RECORRIDO DE SERVICIO

Este itinerario es utilizado principalmente por el personal de servicio que labora en el hotel, y se puede apreciar que no se sobrepone al trayecto principal.

A N Á L I S I S D E C I R C U L A C I Ó N
1 CONJUNTO

RECORRIDO PRINCIPAL

Las personas que llegan al hotel de forma inesperada normalmente toman el camino principal, por lo que es un trayecto muy frecuente.

RECORRIDO VEHICULAR

RECORRIDO DE SERVICIO

Este itirecorrido se usa principalmente por el Personal de Servicio del hotel, sin interrumpir el itinerario primordial.

A N Á L I S I S D E C I R C U L A C I Ó N
PLANTA 1 HOTEL

RECORRIDO PRINCIPAL

Las personas que llegan al hotel de forma inesperada normalmente toman

el camino principal, por lo que es un trayecto muy frecuente.

RECORRIDO DE SERVICIO

Este itirecorrido se usa principalmente por el

Personal de Servicio del hotel, sin interrumpir

el itinerario primordial.

A N Á L I S I S D E C I R C U L A C I Ó N
PLANTA 2
HOTEL

RECORRIDO PRINCIPAL

Las personas que llegan al hotel de forma inesperada normalmente toman el camino principal, por lo que es un trayecto muy frecuente.

RECORRIDO DE SERVICIO

Este itirecorrido se usa principalmente por el Personal de Servicio del hotel, sin interrumpir el itinerario primordial.

A N Á L I S I S D E C I R C U L A C I Ó N
PLANTA 3 -5 HOTEL

DOBLES ALTURAS

PLANTA 3

PLANTA 2

PLANTA 1

PLANTA 0

PLANTA -1

PLANTA -2

Circulación Vertical la doble altura ofrece una serie de beneficios estéticos. La presencia de un techo más alto añade una sensación de profundidad y amplitud a las habitaciones. Esto también da al edificio una apariencia más impresionante.

A N Á L I S I S E S P A C I A L

COMPOSICIÓN VOLUMÉTRICA

La fachada y toda envolvente del volum

predomina lo horizontal

predomina materiales cálid

Asimismo esta edificación

basa en los contrastes blanco, negro y madera

El Hotel Lone está formado por un voluminoso

paralelepípedo en el centro, que presenta varios relieves curvos en todas sus superficies, lo que permite conectarlo con el exterior e incluir una vía de acceso directa al área.

La forma de la estructura es en forma de Y, con líneas horizontales dominantes que forman la fachada, además de terrazas protectoras con un diseño que evoca la imagen de b d b l dos.

En el centro del hotel en forma de Y se encuentra el vestíbulo principal el cual conecta a los espacios comunes con todos los niveles

A N Á L I S I S V O L U M E T R I C O V O L U M E N D E S T A J A D O V O L U M E N D E S T A J A D O P A R A L E L E P Í P E D O P A R A L E L E P Í P E D O Y

La volumetria de esta edificación resalta de su entorno, principalmente por su forma y por el color blanco que contrasta con el verde de su entorno

El Hotel Lone cuenta con el color blanco en todos los alrededores, junto con el negro logran tener un contraste. Por la parte interior se utilizan colores mas calidos

ESCALA ESCALA

El hotel cuenta con una escala normal, tanto en las habitaciones y las doble alturas, teniendo al lobby con escala predominante y monumental

En general esta obra cuenta con una proporción equilibrada en todas sus áreas, asimismo al tener aspecto lineal da la apariencia de estabilidad y equilibrio.

A N Á L I S I S F O R M A L
O L O R C O L O R
C
R O P O R C I Ó N P R O P O R C
N
P
I Ó
J E R A R Q U I A J E R A R Q U I A

Esta obra esta hecha a base de una estructura de concreto armado en muros, columnas, losas, vigas y techos. Se asocia mucho con la vegetación, tanto de su entorno como en su interior, por ejemplo en las áreas públicas para dar la sensación de plantas circundantes.

Colores y materiales tenues para las habitaciones, el uso predominante de la madera y alfombras, acompañados de colores oscuros.

Cuenta con un área de trabajo, puesto que también va dirigido a ejecutivos

La fachada y el techo cuenta con hornillo blanco y vidrio de aluminio tintado, que le otorga esa particularidad de diseño al edificio.

El atrio central cuenta con una estructura de acero en la parte del techo, asimismo brinda una iluminación natural al interior de la edificacion

A N Á L I S I S C O N S T R U C T I V O Y
D
M A T E R I A L I D A

Se optó por un uso extensivo de hormigón armado con una cubierta de placas de vidrio expandido reciclado para adaptarse a una estructura de acero. En el techo y en la fachada se usaron placas blancas. Para el interior se eligieron textiles con texturas ricas y chapas de roble de calidad tratadas con lacas ecológicas.

Su sistema estructural está formado por hormigón armado en todos sus elementos como: muros, columnas, cimientos y losas de techo.

La estructura de la cimentación está hecha de tiras de hormigón armado.

El atrio central está cubierta por una estructura de acero ubicada en la parte superior

A N Á L I S I S C O N S T R U C T I V O Y
T E R I A L I D
D
M A
A
ARMADO MADERA PANELES STOVENTEC VIDRIO
HORMIGÓN

ASOLEAMIENTO

El asoleamiento del hotel Lone en Rovinj se refiere a la forma en que los rayos del sol inciden en la estructura. La dirección en la que está orientado el asoleamiento depende de la ubicación de las fachadas del edificio. La fachada sur-este recibe la mayor cantidad de luz solar, mientras que la fachada norte-oeste recibe la menor cantidad.

VIENTOS PRECIPITACIONES

La densa vegetación en el lugar donde se ubica el hotel puede influenciar la dirección de los vientos. En Rovinj, los vientos tienen una velocidad de 7-12 km/h y normalmente soplan de sur a noroeste. Esto significa que la dirección de los vientos en el lugar donde se ubica el hotel puede ser influenciada por la densa vegetación, ya que los árboles y la vegetación crean una barrera que afecta la dirección de los vientos.

Abril y Julio son los meses más extremos del año en cuanto a precipitaciones. Abril suele ser el mes con mayor cantidad de precipitaciones, debido a la llegada de lluvias y tormentas de primavera. Por otro lado, Julio suele ser el mes con menor cantidad de precipitaciones, ya que generalmente es el mes más caluroso y seco del año.

S I S T E C N O L O G I C O
I
A M B
E N T A L

COMPARATIVA HOTEL WESTIN VS HOTEL LONE

ESTACIONAMIENTOS

ZONA DE SERVICIOS

GENERALES

ALMACENES

CUARTO DE MÁQUINAS VESTIDORES COCINA

ZONA DE CONFERENCIAS

ACCESO PRINCIPAL

INGRESO Y LOBBY

ACCESO SECUNDARIO

BAR

ZONA DE CONVENCIONES

ZONA DE OCIO Y RECREACIÓN

HABITACIONES

PANADERÍA Y PASTELERÍA

RESTAURANTES

SUITES DIPLOMÁTICAS

HABITACIONES DOBLES

HABITACIONES KING

SUITE PRESIDENCIAL

GIMNASIO

HOTEL WESTIN
SPA PISCINA
BAR
CLUB LOUGE

CLUB DE JAZZ

CLUB DE NIÑOS SPA

GYM

PISCINA

SALA DE CALDERAS

COCINA

ESTACIÓN DE RIESGO

VESTUARIOS-PERSONAL

ZONA DE OCIO Y RECREACIÓN

ZONAS PRIVADAS

HABITACIONES DE LUJO

HABITACIONES CLÁSICAS

HABITACIONES

FAMILIARIARES

SERVICIOS GENERALES

ZONA DE COMERCIO

SALA DE CONVENCIONES

SALA DE CONFECCIONARIO

RESTAURANT

ZONAS PRIVADAS

HABITACIONES DE LUJO

HABITACIONES CLÁSICAS

ACCESO PRINCIPAL

INGRESO Y LOBBY

ESTACIONA.

ZONA DE COMERCIO

SALA DE CONVENCIONES

SALA DE NEGOCIOS

RESTAURANT

ESTACIONA.

SERVICIOS GENERALES

ACCESO SECUNDARIO

HOTEL LONE
E
E
P R O G R A M A S D
H O T E L
S

CONDICIONES MÍNIMAS DE DISEÑO

SIN TENER EN CUENTA EL CÁLCULO PARA DETERMINAR ANCHOS DE PASAJES CIRCULACIÓN Y DE ESCALERAS

PASAJES DE CIRCULACIÓN

Ancho libre mínimo de 1.20 m

Elementos estructurales y los equipos de emergencia pueden ocupar hasta 0.15 m de dicho ancho libre.

-Los servicios complementarios de administración destinados al funcionamiento del establecimiento de hospedaje, pueden ubicarse en el semisótano y/o sótanos del establecimiento de hospedaje.

Requisitos mínimos de ventilación, iluminación, accesibilidad y seguridad

CÁLCULO DE NÚMERO DE OCUPANTES

-Efectos del diseño de las salidas de emergencia, pasajes de circulación

Hoteles de 4 y 5 estrellas 18.0 m² por persona

-El número máximo de ocupantes en las áreas de habitaciones está en función al número de camas por habitación.

N O R M A T I V A A . 0 3 0 H O S P E D A J E

N O R M A T

I V
. 0
0
P E D A J E
A A
3
H O S

El área del servicio higiénico no se considera como parte del área de la habitación. Cuenta con pisos y paredes de material impermeable. El revestimiento de la pared tiene una altura mínima de 1.80m. Considerar lo siguiente por cada componente del servicio higiénico:

Ducha: Área útil mínima = 0.64 m2, con lados no menor a 0.80 m.

Inodoro: Distancia libre mínima entre la tangente de la taza y otro elemento (muro, aparato sanitario, mobiliario, entre otros.) = 0.50 m.

Distancia libre mínima a cada lado del eje longitudinal del inodoro = 0.40 m.

Lavatorio: Distancia libre mínima entre la tangente del lavatorio y otro elemento (muro, aparato sanitario, mobiliario, entre otros.) = 0.60 m.

Distancia libre mínima a cada lado del eje transversal del lavatorio = 0.40 m.

I V
.
E D
J E
N O R M A T
A A
0 3 0 H O S P
A

HOTEL WESTIN

UBICACIÓN: Cruce de la av.Javier Prado y las Begonias (San Isidro-

ÁREA DEL TERRENO : 7543.40 m²

ÁREA CONSTRUIDA: 74030.42m²

HABITACIONES: 311

En el hotel, se puede concluir que usan las primeras plantas para usos de gran demanda comercial, mientras que para el ingreso al hospedaje se utiliza pisos de transicion como los servicios y zonas sociales para generar un grado mas intimo hacia el acceso de las habitaciones

HOTEL LONE

UBICACIÓN: UI. Luje Adamovica 31, 52210, Rovinj, Croacia

SUPERFICIE: 29,476 m2

N° DE HABITACIONES: 261

El hotel Westin, al tener un terreno de 7543 m2, tiene tendencia al del e, el e ia mbos nen de es les su o o.

PLANTA SUPERIORES

El hotel Lone a diferencia del Westin, sus ambientes intimos de hospedaje se generan desde la primera planta, sin embargo estas se controlan mediante espacios de transicion como las zonas sociales y de servicio. Además de su espacio articulador que es su núcleo central.

EM
1 2 3 C línicaCantellaSalud positivaSeguro BancoGNBBanco A T I V A A L
PLAN
SÓTANO 1 SÓTANO 2-5 PLANTA 5 -30 PRIMERA PLANTA SUBTERRANEO

Leyenda

Escala normal - intima

Dobles alturas - usos comun

C O M P A R A T I V A

G E N E R A L

DOBLES ALTURAS

ESPACIAL FOR

VOLUMEN 1

Se puede concluir que en ambos casos se articulan por un nucleo vertical, ademas en cuanto a espacial, solo las zonas sociales o de uso comun.

Mientras que en las habitaciones se considera una escala normal.

La composicion formal se basa en la funcionalidad del proyecto.

En el Hotel Westin, el primer volumen es de comercio, sin embargo el volumnes 2 ya es de una funcion privada ,

HOTEL WESTIN HOTEL LONE
COLOR COLOR ERARQUIA POR FORMA ERARQUIA POR FORMA
VOLUMEN 2

C O M P A R A T I V A G E N E R A L

AMBIENTAL CONSTRUCTIVO

-Paredes portantes u hormigón armado.

-Muro portante.

TIPO DE SUELO:

Zona: 4 ; Z: 0.45

Perfil tipo S2, suelo intermedio

Suelo de estrato potente de grava fluvio-aluvial

En el Hotel Westin su sistema esta ompuesto por el sistema porticado, el cual es empleado en un suelo de tipo sismico nivel 4, de un perfil tipo S2. Este ultimo es un suelo cohesivo compacto.

MADERA

VIDRIO

HORMIGÓN ARMADO

En ambos casos el tratamiento de la incidencia solar con mayor intensidaud esta proyectado hacia zonas comerciales y sociales, mientras que en las zonas intimas se genera un control mas restringido de la penetracion solar

El sistema del Hotel Lone se basa al igual que el Westin en el sistem porticado, sin embargo este hace uso de los paneles Stoventec, que aporta mayor resistencia estructural.

PANELES STOVENTEC

HOTEL WESTIN HOTEL LONE VERANO INVIERNO

Turn static files into dynamic content formats.

Create a flipbook
Issuu converts static files into: digital portfolios, online yearbooks, online catalogs, digital photo albums and more. Sign up and create your flipbook.
CASO 04 - CASOS ANALAGOS - HOTEL UPAO by Enzo Vega - Issuu