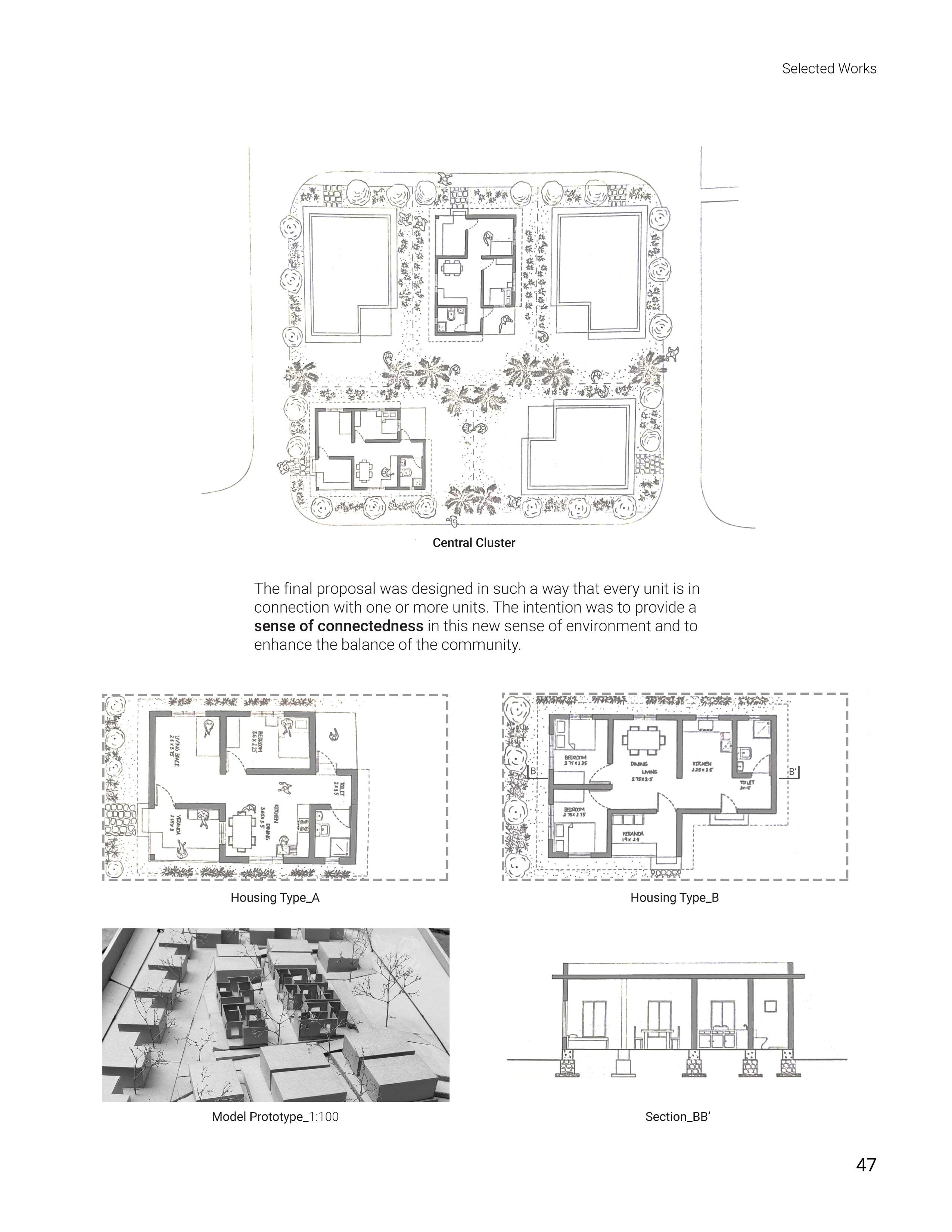
I'm Emad and this portfolio is an attempt to provide the reader with a brief insight into some of the projects I worked on during my 5 years of B.Arch (2017-2022), including academic and professional works. Through each project, there has been an exploration of how art and architecture are linked and what unites them in their design, their designer, and their meaning.
Glad to share these works with you…