Lohhofer & Landkreis Anzeiger 43/22

Page 1

Was gibt es Neues zur Covid-19-Impfung?

zige Impfstoffdosis für alle gesunden Kinder im Alter von 5 bis 11 Jahren. Für gesunde Kinder, in deren Umfeld sich allerdings enge Kontaktper sonen mit hohem Risiko für einen schweren Covid-19 Verlauf befinden wie z.B. die gelieb ten Großeltern, sollte eine zweite Impfung, also eine vollständige Grundimmunisierung durch geführt werden. Die empfohlenen Impfab

tigt. Der Abstand zwischen der 2. und 3. Impf dosis sollte mindestens sechs Monate betra gen.

LLA: Und bei den Erwachsenen zwischen 18 und 59 Jahren?

Kiener: Hier hat die gleiche Empfehlung Gültig keit, eine Grundimmunisierung und eine Auf frischung.

LLA: Gibt es in diesen beiden Personengrup pen, also bei den 12- bis 17-Jährigen und den 18- bis 59-Jährigen Ausnahmen?

Der LLA im Gespräch mit Dr. Friedrich Kiener vom Zentrum für Allgemeinmedizin

LLA: Herr Dr. Kiener, steht denn genügend Impfstoff für alle bereit?

Kiener: Erfreulicherweise ja! Die Hausarztpra xen sind gut bestückt. Die Patienten können ohne großen organisatorischen Aufwand bei ihren Hausärzten und Hausärztinnen die not wendige Impfung bekommen.

LLA: Müssen wir uns jetzt alle wieder impfen lassen, bevor der Winter kommt?

Kiener: Nein, das ist nicht der Fall.

LLA: Fangen wir mal bei den Kindern an. Wie viele Impfungen brauchen denn die Kinder zwischen 5 und 11 Jahren?

Kiener: Im Grunde genommen reicht eine ein

stände liegen hier je nach Impfstoff zwischen 3 und 6 Wochen. Übrigens, die europäische Arz neimittelagentur (EMA) hat Ende vergangener Woche die mRNA-Impfstoffe auch für Kleinkin der ab sechs Monaten zugelassen. Aber da wäre ich im Moment noch sehr zurückhaltend.

Die Stiko-Entscheidung hierzu steht noch aus.

LLA: Und wie sieht es mit den 12- bis 17-Jähri gen aus?

Kiener: Hier gilt die Empfehlung, dass dieser Personenkreis eine Grundimmunisierung, bestehend aus zwei Impfungen, und eine Auf frischungsimpfung, also eine 3. Impfung benö

Kiener: Die gibt es! Bewohner in Einrichtungen der Pflege sowie Personen mit einem erhöhten Risiko für Krankheitsverläufe in dieser Alters gruppe (zum Beispiel junge Personen mit chro nischen Herzerkrankungen, Leber- oder Nie renerkrankungen sowie Diabetes, Rheuma oder ähnlichen chronischen lebensbegleiten den Erkrankungen) sollten eine zweite Auffri schung bekommen, also viermal geimpft sein! Die gleiche Empfehlung gilt für Personal in medizinischen Einrichtungen und Pflegeein richtungen oder natürlich auch für Personen mit direktem Kontakt zu kranken Pflegebedürf tigen.

LLA: Wie ist es nun bei den älteren Personen ab 60 Jahren?

Kiener: Hier ist derzeit immer noch die aktuelle Stiko-Empfehlung gültig, dass insgesamt vier Impfungen ausreichend sind.

LLA: Sehr viele Personen aus diesem Altersbe reich wurden bereits viermal geimpft, bevor

Neueste Nachrichten aus den Städten Unterschleißheim und Garching sowie den Gemeinden Oberschleißheim, Haimhausen, Fahrenzhausen, Eching und Neufahrn Landkreis-Anzeiger GmbH · Einsteinstr. 4 · 85716 Unterschleißheim/Lohhof · Anzeigenannahme: Tel. (0 89) 32 18 40-0 · Fax (0 89) 3 17 11 76 · 67. Jahrgang Nr 43 · 29.10.2022 Verbreitet im nördlichen Landkreis München, im südlichen Landkreis Freising und im östlichen Landkreis Dachau · Gesamtauflage 34 580 · Erscheint wöchentlich Jahrgang 67 · Nummer 43 Ausgabe Nord · 29. Oktober 2022 Fortsetzung auf Seite 2 Seit 1987 www.schoettl.de

INHALT

Lions Club Schleißheim Adventskalender Update Seite 4

Förderverein St. Wilhelm e.V. Schleißheimer Kalender 2023 mit Highlights der Schlösser gemeinde Seite 5

Stadt Unterschleißheim Seite 6

Politischer Stammtisch der CSU Unterschleißheim Seite 11

Garching

Im Business Campus München : Garching

Rückenwindlauf brachte

10.000 Euro für Initiative für krebskranke Kinder Seite 18

Kirchentermine Seite 20

Eching und Neufahrn

Hoffnung auf weitere Normali sierung des Trainingsbetriebs

Zwei neue Vorstandsmitglie der beim SC Eching Karate Seite 22

Kleinanzeigen Seite 23 Sport Seite 31

IMPRESSUM

Landkreis-Anzeiger GmbH Einsteinstraße 4 85716 Unterschleißheim-Lohhof Telefon 0 89 / 32 18 40-0 Telefax 0 89 /3 17 11 76 info@landkreis-anzeiger.de

Druck: Mayer & Söhne Druckund Mediengruppe GmbH & Co. KG, Oberbernbacher Weg 7, 86551 Aichach

Zurzeit ist Preisliste Nr. 75 gültig.

Alle mit Namen gezeichneten Artikel geben die Meinung des Verfassers wieder und erscheinen ausschließlich unter dessen Ver antwortung. Für alle übrigen Artikel ist im Sinne des Pressegesetzes Herr Peter Zimmermann, Einsteinstr. 4, 85716 Unterschleißheim, verantwortlich. – Für unver langt eingesandte Manuskripte, Fotos und Berichte übernimmt der Verlag keine Gewähr, es erfolgt keine Rücksendung. © für Texte und von uns gestaltete Anzeigen beim Verlag. Nachdruck, Vervielfältigung und elektronische Speicherung, auch aus zugsweise, nur mit schriftlicher Genehmi gung des Verlags.

Gedruckt auf 100% Recyclingpapier.

UNABHÄNGIG – ÜBERPARTEILICH

AKTUELLES

Fortsetzung von Titelseite Lohhofer Anzeiger

Was gibt es Neues zur Covid-19 Impfung?

die neuen Impfstoffe, welche die Omikron-Varianten bein halten, auf den Markt gekommen sind. Was bedeutet das für diese Personen? Brauchen diese Personen eine 5. Impfung?

Kiener: Nach den bisher immer noch gültigen Empfehlun gen der Stiko sind vier Impfungen ausreichend! Man muss immer wieder hervorheben, dass die Impfung ja in erster Linie dafür gedacht ist, vor schweren Verläufen, die eine sta tionäre Aufnahme in einem Krankenhaus oder auf einer Intensivstation nach sich ziehen würden, zu schützen. Bei der Impfung handelt es sich um keinen 100-prozentigen Schutz vor der Erkrankung. Das haben wir ja alle in diesem Jahr mitbekommen. Viele von uns hatten sogar zweimal Covid-19. Erfreulicherweise waren jedoch die meisten Ver läufe so mild, dass so gut wie keine stationären Einweisun gen notwendig waren.

LLA: Nochmals zurück zu einer eventuellen 5. Impfung. Gibt es Personen, denen Sie entgegen der Stiko-Empfehlung auch eine fünfte Impfung empfehlen würden?

Kiener: Bei älteren Personen kann es aufgrund einer sehr schlechten immunologischen Situation sinnvoll sein. Diese 5. Impfung sollte allerdings mindestens in einem Abstand von sechs Monaten nach der 4. Impfung erfolgen. Die Indika tion zur Impfung sollte unter Berücksichtigung des Gesund heitszustandes und möglicher Kontraindikationen nur der behandelnde Hausarzt beziehungsweise der Arzt des Ver trauens des Patienten bzw. der Patientin treffen. Möglicher weise wird eine 5. Impfung an Bedeutung gewinnen, wenn sich die ganz neuen Omikron-Subvarianten BQ.1 und BQ 1.1 oder die momentan in Singapur grassierende XXB-Subva riante in Deutschland ausbreiten werden.

LLA: Wie schaut es denn dann aus, wenn geimpfte Personen auch schon eine Covid-19-Infektion hatten? Wird diese denn berücksichtigt? Bei eventuellen, noch notwendigen Impfun gen?

Kiener: Dies hat die Stiko in ihren Empfehlungen auch berücksichtigt. Man spricht im Zusammenhang mit CovidImpfungen und Covid-Infektionen von sogenannten Ereig nissen. Das heißt, eine Impfung beziehungsweise auch ein durch PCR gesicherter Covid-Infekt wird gleichgesetzt. Ich darf das vielleicht kurz an einem Beispiel erläutern. Eine 68jährige Person (diese Personengruppe sollte nach StikoEmpfehlungen insgesamt viermal geimpft sein), die im Jahr 2021 ihre beiden Impfungen zur Grundimmunisierung bekommen hat und daraufhin im Juni 2022 einen Covid-19-

Infekt hatte, sollte in einem Abstand von mindestens sechs Monaten (also im Dezember 2022) ihre vierte Impfung bekommen. In begründeten Einzelfällen könnte der Abstand auf vier Monate reduziert werden.

LLA: Wenn ich also eine komplette Grundimmunisierung mit zwei Impfungen in 2021 hatte und dann im März und Mai dieses Jahres zwei Covid-Infektionen, was es durchaus bei vielen Personen gegeben hat, dann hatte ich also vier Ereig nisse und bin damit vollständig immunisiert?

Kiener: Ganz so leicht ist es dann in der Medizin doch nicht immer! Zwischen zwei Covid-Infektionen muss ein Abstand von mehr als drei Monaten liegen, um immunologisch im Zusammenhang mit diesen von zwei getrennten Ereignis sen zu sprechen.

LLA: Wenn ich bisher nicht geimpft war und das große Glück hatte, bisher auch keinen Covid-19-Infekt gehabt zu haben, kann ich mich jetzt dann mit den neuen Impfstoffen, die die Omikron-Varianten beinhalten, impfen lassen?

Kiener: Für die sogenannte Grundimmunisierung, also die ersten beiden Impfungen, werden diese Impfstoffe nicht verwendet. Hier werden immer noch die Impfstoffe mit dem sogenannten Wild-Typ empfohlen.

LLA: Haben wir noch etwas vergessen?

Kiener: Sogar etwas sehr Wichtiges, wie ich meine! Aufgrund der erfreulicherweise weggefallenen Kontaktbeschränkun gen und des normalen Lebens, das wir wieder führen dürfen, bemerken wir Ärzte natürlich jetzt die jahreszeitlich übliche Häufung von Erkältungsinfekten. Insbesondere scheint die Influenza, also die Virusgrippe, heuer schon sehr früh ihren Einzug zu halten. Wir hatten dieses Jahr auf der Südhalbku gel, auf der der Winter jetzt schon langsam zu Ende geht, größere Influenza-Epidemien zu verzeichnen, zum Beispiel in Australien. Deshalb meine dringende Empfehlung, sich unbedingt gegen Grippe impfen zu lassen! Dies gilt vor allem für die über 60-Jährigen, Schwangere ab dem zweiten Trimenon, aber auch für jüngere Personen, die privat oder beruflich viele soziale Kontakte haben. Denn im Gegensatz zur Covid-19-Erkrankung, die bei gesunden jungen Men schen so gut wie nie tödlich verläuft, kann die Influenza auch für diesen Personenkreis mit fatal verlaufendem, tödlichem Ausgang enden. Zum Thema Impfungen gäbe es noch vieles zu sagen, aber das soll jeder mit seinem Hausarzt bespre chen!

LLA: Herr Dr. Kiener, wir danken für das Gespräch!

Sie finden den Landkreis-Anzeiger auch unter www.issuu.com/druckverlagzimmermann

Sonderseiten Kfz Wintercheck Seite 14 15 Samstag, 29. Oktober 20222 LANDKREIS-ANZEIGER

Carl-Orff-Gymnasium Unterschleißheim

Zwei Welten – eine Leidenschaft: Schultheater als Völkerverständigung!

Schülerinnen und Schüler aus Südafrika und aus Deutschland, die gemeinsam ein Theaterstück einstudieren, gemeinsam proben, übernachten, essen, tanzen und miteinander Spaß haben – so kann Völkerverständigung und interkulturelle

aussehen und genau das pla nen Stefanie Höcherl und Michael Blum mit ehe maligen und aktuellen Schülern und Schülerin nen. Bereits zum siebten Mal soll es zu einer Begegnung von Schülerinnen und Schülern des Carl-Orff-Gymnasiums in Unterschleißheim mit der befreundeten Eersterivier Secondary School, einer Gesamtschule aus einem unterprivilegier ten Vorort von Kapstadt in Südafrika, kommen. Ziel der Begegnung ist die Erstellung und Auf

HINWEIS

Die AWO Klawotte Unterschleißheim macht Ferien

Die Klawotte Unterschleißheim und ihr Team wünschen ihren Kunden und allen Spendern schöne Herbstferien. Wir haben ab 31. Okto ber geschlossen. Ab Dienstag, 8. November, sind wir für unsere Kundinnen und Kunden wieder da. Ab diesem Zeitpunkt haben wir auch Weihnachtsartikel im Sortiment. Lei tung Gabi Schmid-Scherr und ihr Team bedanken sich an dieser Stelle für die vielen, gut erhaltenen Sachspenden, die immer wie der abgegeben werden. Das Klawotte-Team bittet die Spender, generell keine Spenden vor dem Laden abzustellen. Es wäre sehr schade, wenn die Sachen Schaden nehmen würden und entsorgt werden müssten.

Öffnungszeiten der Klawotte Unter schleißheim bleiben wie gehabt: Dienstag 9 – 13 Uhr und 14 – 17 Uhr, Donnerstag 9 – 13 Uhr und 14 – 17 Uhr und Freitag 13 – 17 Uhr. Infos unter Klawotte Unterschleißheim, Gabriele Schmid-Scherr, Tel. 0176-16 72 08 82, www.klawotte.de

Gabi Schmid-Scherr, Einrichtungsleitung Klawotte Unterschleißheim

führung eines Theaterstückes zum Thema „Zukunft 2030“. Dass dieser kulturelle Austausch gelingen kann, das hat die mehrfach preisge krönte Partnerschaft der beiden Schulen bereits sechsmal von 2014 bis 2020 gezeigt. Es ist ein Projekt, das über Jahre bewiesen hat, dass soziale, ethnische und ökonomische Unter schiede überwunden werden können.

Nun sollen im Januar 2023 Zehntklässler und Zehntklässlerinnen, einige Ehemalige und Alumni die Partnerschule ein weiteres Mal besu chen, um gemeinsam zu wohnen, zu proben und die eigene Utopie auf die Bühne zu bringen. Im Zeitraum zwischen dem 23. Juni und 14. Juli 2023 soll es dann den Rückbesuch der südafrika nischen Freundinnen und Freunde geben, gekrönt von einer großen Aufführung am 6. Juli 2023 im Bürgerhaus als Gast des Forums Unter schleißheim. Die Theaterbegeisterten beider Hemisphären hoffen, mit ihrem Austausch ein Zeichen für Frieden und die partnerschaftliche Sorge um eine gemeinsame Zukunft zu setzen –eben dadurch, dass zwei unterschiedliche Lebenswelten miteinander im Theaterspiel ver bunden werden, und zwar in partnerschaftli cher Planung, mit gleichwertigem Hin- und

Rückbesuch als respektvolle Begegnung und als Ort gemeinsamen gegenseitigen Lernens. Da dieser Austausch – im Gegensatz zu vielen Schüleraustauschprogrammen mit Ländern des

globalen Südens – die unterprivilegierten Schü lerinnen und Schüler der Partnerschule nicht nur besucht, sondern eben auch auf einen ebenso langen Rückbesuch einlädt, suchen Ste fanie Höcherl und Michael Blum nach Fördern den und Unterstützenden für diesen finanziel len Kraftakt. Hilfe und Anregungen nehmen sie gerne unter michael.blum@carl-orff-gym.de entgegen.

Stefanie Höcherl und Michael Blum

GmbH,

Die
LANDKREIS-ANZEIGER 3Samstag, 29. Oktober 2022 AKTUELLES Tel. 0 81 76 / 93 100 www.moda-safe.de info@moda-safe.de Modahum
Weihermühle 2, 82544 Egling Heim+Handwerk, Messe München, Mi 30. Nov - So 04. Dez. 2022, Halle B, Stand B6.521
Zusammenarbeit

Lions Club Schleißheim

Adventskalender Update

Helfen und Gewinnen mit dem Kauf eines oder mehrerer Adventskalen der des Lions Clubs Schleißheim zum Preis von 5 Euro! Der Erlös der Aktion kommt wieder wohltätigen Zwecken zugute.

Insgesamt gibt es 800 Preise im Gesamtwert von 21.000 Euro zu gewin nen, unter anderem:

Eine Städtereise zu zweit 700 € Jahresabo für die Muckibude 730 € Eine Kino-Matinee mit Wunschfilm 300 € 50 Trainings in Fitness-Studios 4.900 € 190 x 1 Warengutschein 3.800 € 280 x 1 Verzehrgutschein 3.600 € 40 x 1 Massage/Wellness 1.800 € 13 x 1 Zahnreinigung 1.300 € 85 x 1 Buch 1.275 € 75 x eine Kino- bzw. Theaterkarte 680 € 16 x 1 Kegelgutschein 460 €

3 Zeitungsabonnements für E-Paper 600 €

3 x ein Auftritt der Stadtkapelle 300 € Ein herzliches Dankeschön allen Sponsoren! Der Kalender wird verkauft:

- auf dem Rathausplatz in Unterschleißheim am 4. November von 12 bis 16 Uhr

- auf dem Wochenmarkt in Unterschleißheim am 5. November von 8 bis 14 Uhr

- beim „Basar der Vereine“ in Oberschleißheim am 20. November von 11.30 bis 17 Uhr

- ab dem 31. Oktober in der Delphin-Apotheke in Oberschleißheim Vorbestellungen sind über unsere Homepage Lions Club Schleißheim (info@lions-schleissheim.de) möglich.

Die Gewinner werden unter notarieller Aufsicht gezogen und ab dem 1. Dezember tagesaktuell im Münchner Merkur, auf der Homepage des Lions Clubs Schleißheim und auf Facebook, sowie wöchentlich im Loh hofer & Landkreis Anzeiger veröffentlicht. Näheres zur Abholung der Gewinne/Gewinngutscheine im Januar wird rechtzeitig bekannt gegeben. C. Romanacci-Billig, LC Schleißheim

Nachruf

Es gibt Momente im Leben, da steht die Welt für einen Moment still und wenn sie sich weiterdreht, ist nichts mehr wie es war.

Am 21.09.2022 verstarb plötzlich und unerwartet unser Kassenwart

Klaus Brandstätter

Als wir von seinem Tod erfuhren, waren wir alle sehr betroffen. Klaus war voller Pläne und wollte noch so viel in unseren Verband „Bund der Selbstständigen Unterschleißheim/Haimhausen“ bewegen.

Mit großer Zuverlässigkeit und Genauigkeit hat Klaus viele Jahre sein Amt als Kassenwart ausgeübt. Mit vollem Engagement und vie len Ideen hat er den BDS Unterschleißheim/Haimhausen unter stützt.

Wir trauern mit seinen Angehörigen und nehmen in großer Dankbarkeit Abschied. Danke für den Weg, den du mit uns gegan gen bist.

Danke für die Hand, die uns so hilfreich war. Danke, dass es dich gab.

Der Vorstand mit allen Mitgliedern des Bund der Selbstständigen Unterschleißheim/Haimhausen e.V.

Schleißheimer KünstlerKalender 2023 ist da

Es war einmal, da ließ der Altbürgermeister Hermann Schmid den Malern in und um Schleißheim eine große Aufmerksamkeit zuteil werden. Doch dann wurde es um die Künstler immer stiller. Jetzt, mehr als zehn Jahre später, widmet sich der Schleißheimer Kulturpreisträger Hans Jürgen Treffer wieder diesem Thema. Für das kommende Jahr 2023 fertigte er einen DIN-A3-großen Kalender an mit dem Titel: „Schleißheimer Künst leransichten“. Hochtalentierte Maler wie u.a. Heinz Katzenberger, Ernst Haymann, S.L. Wenban, Eberhard Lorenz und Jürgen Pichler lassen die Schönheit des Ortes im Jahreslauf in neuem Glanz erstrahlen. Insgesamt umfasst das auf hochwertigem Papier im 4-Farbendruck erstellte Werk 13 Motive (mit ausführlichen Beschreibungen). Der Preis des in einer klei nen Auflage gedruckten Kalenders beträgt 20.- Euro. Bezugsquellen sind ab Mitte Oktober das Tourismusbüro in Oberschleißheim, Buchhandlung Art & Weise in Unterschleißheim und Buchhandlung Sirius in Garching.

Redaktionsschluss ist
am Montag, den 31.10.22, um 18 Uhr
Samstag, 29. Oktober 20224 LANDKREIS-ANZEIGER AKTUELLES
Anzeigenschluss ist am Mittwoch, 18.00 Uhr. Bei fertigen Druckunterlagen Donnerstag, 12.00 Uhr. Textänderungs- und Platzierungswünsche können nachher nicht berücksichtigt werden. Beim letztjährigen Verkauf in Unterschleißheim

Kalender

mit Highlights der Schlössergemeinde

bung, die deren Gesicht nachhaltig prägen und diese besonders attraktiv machen. Das Team des Schleißheimer Kalenders hat erneut Motive entdeckt, die in den bisherigen 19 Ausgaben noch nie berücksichtigt worden sind.

Trotz der aktuell hohen Inflation beträgt der Preis für den Schleißheimer Kalender 2023 wie im Vorjahr 9,00 Euro. Ab Montag, 24. Oktober, liegt er zum Verkauf aus bei Schreibwaren Heckenstaller, Am Stutenanger 6; Optik Partner K. Kloske, Feierabendstraße 53; Jürgen Malich Orthopädietechnik, Effnerstraße 3, Phoenix Apotheke, Am Fohlengarten 10a; Tourismus Schleißheim e.V., Wilhelmshof 4 sowie im Pfarr büro St. Wilhelm, Theodor-Heuss-Straße 25. Außerdem ist ein Verkauf auf dem Wochen markt am letzten Freitag im November (25.11.) geplant.

Der Förderverein unterstützt die Sanierung von St. Wilhelm:

Der Druck des Kalenders, der zum dritten Mal von der Unterschleißheimer Druckerei Digital druckmeister GmbH hergestellt worden ist, wurde erneut von Oberschleißheimer Bürgern und Unternehmen wie Hotel Kurfürst, Rau

Immobilienbewertung und der Schreiner Group unterstützt. Der Erlös des Kalenders kommt der Gemeindearbeit der Pfarrei St. Wil helm und ihren sozialen Einrichtungen wie dem Kindergarten St. Wilhelm zugute. Auch die noch nicht vollständig abgeschlossene Sanie rung und Modernisierung der Kirche St. Wil helm wird vom Förderverein unterstützt. Im Sommer hat er eine neue Schließanlage und weitere Infrastruktur mit 6000 Euro gefördert.

TERMINE

- Mi., 02.11.: Aubinger Lohe, 11 km, USH 9.12, Moosach 9.29 Bus. Anmeldung bei Ger hard Auer, Tel. 01 76/57 60 28 64

- So., 06.11.: Radltour nach Weihenstephan, 40 km, USH See 10.00, E-Biker bitte die Geschwindigkeit auf Biker anpassen. Einkehr, Weihenstephan. Anmeldung bei Gün ter Möchel, Tel. 0176/72 21 52 65

- Mi., 09.11.: Von Altomünster nach Erdweg, 11,5 km, USH 10.02, Bus 772 nach Markt Indersdorf, 10.53, S2 Altomünster. Anmeldung bei Niels Jörgensen, Tel. 3 10 85 24

- Fr., 11.11.: Kaffeekränzchen 15.00 Uhr im Vereinsheim, Anmeldung bis zum Vortag bei Renate Meindorfer, Tel. 3 11 10 45

- Mi., 16.11.: Unterbruck, 9,5 km, USH 9.27, Lohhof 9.40, Bus 771. Anmeldung bei Ger hard Auer, Tel. 01 76/57 60 28 64

- So., 20.11.: Ampertal-Runde – Teil 1, 9,7 km, 120 hm, USH 8.47, Lohhof 9.00, Bus 771. Einkehr, Gasthof Wenig. Anmeldung bei Gerhard Auer, Tel. 01 76/57 60 28 64

- Kesselfleischessen – Näheres und Termin wird noch bekannt gegeben. Anmeldung bei Günter Holzer, Tel. 310 8270

- Mi., 30.11.: Ampertal-Runde – Teil 2; 8,6 km, 120 hm, USH 8.47, Lohhof 9.00, Bus 771. Einkehr im Olive Garden. Anmeldung bei Gerhard Auer, Tel. 01 76/57 60 28 64 Bitte die Anmeldezeiten beachten:

Für Sonntagswanderungen: am Freitag vorher von 16 bis 19 Uhr

Für Wanderungen unter der Woche: zwei Tage vorher von 16 bis 19 Uhr Gäste herzlich willkommen!

LANDKREIS-ANZEIGER 5Samstag, 29. Oktober 2022 AKTUELLES Sie finden den Landkreis-Anzeiger auch unter www.icu-net.de Ihr häusliches Kranken- und Altenpflegeteam für Unterschleißheim, Oberschleißheim, Haimhausen, Eching, Garching, Neufahrn. Grundpflege, Behandlungspflege, Pflegeberatung nach § 37.3 SGB XI. Wir sind für Sie da, Abrechnung alle Kassen. Pflegedienstleitung Joyce Leahy Landshuter Str. 20 · 85716 Unterschleißheim T. 089-37 06 69 42 · www.joyce-pflegeteam.de 10 Jahre Förderverein St. Wilhelm e.V. gibt den Klassiker zum 20. Mal heraus Schleißheimer
2023
Der Schleißheimer Kalender feiert Jubiläum: Zum 20. Mal kann der Förderverein St. Wilhelm e.V. den beliebten Jahresbegleiter herausge ben. Die neue Ausgabe für 2023 zeigt High lights der Schlössergemeinde und ihrer Umge
Berg- und Wanderfreunde Lohhof e. V. Wander-Programm im November

Rathaus

DIE STADT INFORMIERT

Bauleitplanung

Freiflächen- und Gestaltungssatzung

In der letzten Sitzung des Grundstücks- und Bauausschusses am 10.10.2022 wurde der Erlass einer Freiflächen- und Gestaltungssat zung beschlossen (FGS). Sie stellt eine verbindliche Handreichung für Planende und Bauende im gesamten Stadtgebiet Unterschleiß heims dar.

Die Freiflächengestaltungssatzung stellt dabei den Grundanspruch an die Begrünung und Gestaltung der unbebauten Teile eines Baugrund stücks dar. Die Satzung enthält vorrangig qualitative (z. B. Begrünung der Vorgärten), aber auch quantitative Vorgaben an die Freiflächenge staltung (z. B. Anzahl der Baumpflanzungen). Mit der dazugehörigen Pflanzliste werden konkrete Hinweise zur Arten auswahl gegeben.

Die Satzung kann auf der städtischen Homepage www.unterschleiß heim.de/satzungen-verordnungen eingesehen werden. Bei Rückfragen stehen Ihnen die MitarbeiterInnen der Bauverwaltung selbstverständ lich gerne zur Verfügung.

Stadtgemeinschaft

Wirtschaftsforum 2022

Über Generationen

Einmal im Jahr findet ein Treffen zwischen der Stadt Unterschleiß heim und der Wirtschaft statt: das Wirtschaftsforum. Organisiert von der Wirtschaftsförderung, der Abteilung im Rathaus, die sich um Ansiedlung und Betreuung von Firmen kümmert. Am 20. Oktober 2022 war es wieder so weit: In der freundlichen Atmosphäre des Restaurants Freiraum am Business Campus tauschte man sich über die neuesten Entwicklungen aus. Und ließ sich anregen: Denn neben dem Einführungsvortrag des Ersten Bürgermeisters Christoph Böck gab es auch einen Blick auf die jüngere Generation – geworfen vom Jugendforscher und Speaker Simon Schnetzer. Erster Bürgermeister Christoph Böck begann und informierte über das, was die Stadt bewegt und für die Wirtschaft wichtig ist. Die Energiekrise: Ziel sind 15 % Einsparung, die Temperatur im Rathaus wurde herunter gedreht, das größte Potenzial steckt jedoch in der Umrüstung alter Beleuchtung in den Liegenschaften auf LED. Die Ukrainekrise: Böck berichtete von der Aufnahme von Geflüchteten in Unterschleißheim (Stand Juli: etwa 480 Menschen) und von ihrer Integration, beispiels weise in den Schulen. Dann der Stand der Bauvorhaben. Schön: Der Caritas-Hort ist fertig und wird in jeder Hinsicht bespielt. Und auch die Schaffung von Wohnraum hat für die Stadt hohe Priorität. Ein besonders innovatives Wohnquartier wird mit dem Gartenquartier in direkter Nachbarschaft zum Business Campus entstehen. Und auch schön: Am Business Campus befindet sich eine Blumenwiese. Hier tummeln sich seit Mai 2022 aktuell 600.000 Bienen.

Den Abschluss bildete ein Vortrag über „die Jugend von heute“, pardon, über die Generation Z, die die im Zeitraum von 1997 bis 2012 Gebore nen meint. Deren ältere VertreterInnen haben mittlerweile den Arbeits markt erreicht. Die Generation Z ist dafür bekannt, stets online zu sein

Samstag, 29. Oktober 20226 LANDKREIS-ANZEIGER STADT UNTERSCHLEISSHEIM
Rathausplatz 1, 85716 Unterschleißheim Telefon: +49 (0)89 310 09 - 0 Telefax: +49 (0)89 310 09 - 166 E-Mail: stadt@ush.bayern.de Internet: www.unterschleissheim.de www.facebook.com/unterschleissheim.de Verantwortlich: Erster Bürgermeister Christoph Böck
und Wert auf eine gute Work-Life-Balance zu legen. Das geht – mit den entsprechenden kreativen Angeboten. Jugendlich, mobil, spielerisch: Simon Schnetzer setzte den Ton.

Energie und Klima

Repair Café Unterschleißheim Herbstferien? Wir reparieren.

Auch möglicherweise trübes Novemberwetter und Herbstferien kön nen dem Eifer des Helferteams nichts anhaben und so ist das nächste Repair Café am 4. November 2022 von 14 bis 17 Uhr im Maria-Magda lena-Haus, Gerhart-Hauptmann-Straße 10 geplant.

Da sich die Situation jederzeit wieder ändern kann, finden Sie aktuelle Informationen zum Repair Café stets auf unserer Homepage: www.agenda21-ush.de Martin Birzl

Sprecher Team AGENDA21

Bekanntmachungen

Forum

Fotoausstellung „Urban Gardening“ eröffnet GärtnerInnen präsentieren Fotografien des Erfolgsprojekts

Am vergangenen Freitag, den 21. Oktober 2022, eröffnete Bürger meister Christoph Böck die Ausstellung „Urban Gardening“ im Bürgerhaus Unterschleißheim. Dort präsentieren GärtnerInnen des gleichnamigen Projekts Fotografien, die die Freude an der Natur einfangen.

Auf einer von der Stadt gepachteten Grünfläche zwischen Gymnasium und Friedhof bauen auf etwa 110 Parzellen HobbygärtnerInnen nun seit mehreren Jahren Obst, Blumen und Gemüse an. „In Unterschleißheim haben wir mit Urban Gardening ein Schmuckstück dazugewonnen, das sich noch dazu harmonisch in die Landschaft fügt“, lobt Erster Bürger meister Christoph Böck das Projekt, das politisch gar nicht so einfach durchzusetzen war. Umso mehr freut sich auch Michael Bauer, Initiator von „Urban Gardening Unterschleißheim“, dass er den Weg mit der Stadt gegangen ist und das Projekt so großen Anklang findet. Aus 2.400 Fotos der HobbygärtnerInnen rund um das Thema Urban Gardening in Unter schleißheim wurden 42 ausgewählt, die noch bis zum 9. November 2022 im Foyer des Bürgerhauses besichtigt werden können. Parallel werden auf sechs Wandtafeln Urban-Gardening-Alternativen aufgezeigt, die sich auf Gebäuden, wie z. B. im neuen Gartenquartier, umsetzen lassen. Wer sich gerne ein Stück Natur mit nach Hause nehmen möchte, kann die ausgestellten Bilder über den dort angebrachten QR-Code erstei gern. Der Erlös geht zugunsten der Bergl-Füchse, einer Kindergruppe des Bund Naturschutz.

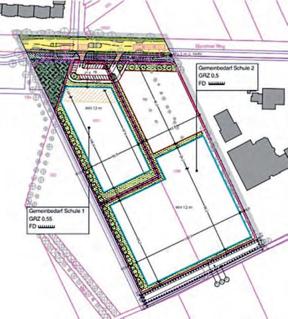
Der Grundstücks- und Bauausschuss der Stadt Unterschleißheim hat in seiner Sitzung am 12.07.2021 den Aufstellungsbeschluss für den Bebauungsplan Nr. 161 „Erweiterung Schulzentrum am Münchner Ring“ gefasst und in seiner Sitzung am 28.03.2022 den Bebauungs plan-Entwurf gebilligt. Der Aufstellungsbeschluss wurde am 12.05.2022 öffentlich bekannt gemacht und die öffentliche Ausle gung, sowie Beteiligung der Träger öffentlicher Belange fand vom 20.5.2022 bis 01.07.2022 statt. Der Grundstücks- und Bauausschuss der Stadt Unterschleißheim hat in seiner öffentlichen Sitzung vom 10.10.2022 die Stellungnahmen und Anregungen aus der letzten Öffentlichkeits- und Behördenbeteiligung behandelt.

Die Montessori-Schule Unterschleißheim ist seit einiger Zeit auf der Suche nach einem Grundstück zum Neubau ihres Schulzentrums und wurde seitens der Verwaltung dabei begleitet.

Aufgrund der Größe und Anbindung an die örtliche Infrastruktur ist die Wahl auf die Fl. Nr. 1051, in der Verlängerung des Carl-Orff-Gymnasiums gefallen. Das Grundstück ist grundsätzlich geeignet, hier eine kleinere Schule, Montessori plant derzeit mit ca. 220 Schülern, aufzunehmen.

Der gesamte Schulstandort wird dadurch auch aus Sicht der Verwaltung nicht überlastet. Vielmehr können durch die Ansiedlung einer Mittel schule, so wie sie Montessori derzeit betreibt, wertvolle Synergieeffekte genutzt werden.

Damit die planungsrechtlichen Voraussetzungen für eine mögliche Erweiterung des Carl-Orff-Gymnasiums geschaffen werden, umfasst der Geltungsbereich des Bebauungsplanes 161 „Erweiterung Schulzentrum am Münchner Ring“ zudem die Fl. Nr. 1050.

Das Verfahren findet als Regelverfahren nach BauGB statt. Folgende Arten umweltrelevanter Informationen liegen vor: Brutvogelkartierung vom Juli 2021

Im Planungsgebiet wurden keine Brutvögel nachgewiesen. Verkehrsuntersuchung vom November 2021 Verkehrszahlen Bestand und Prognose, Verkehrszahlen für Lärmberech nung.

Schalltechnische Untersuchung vom Februar 2022 Untersuchung zu Verkehr und Sport. Festsetzungsempfehlungen. Begründung mit Umweltbericht vom 10.10.2022

• Umweltbelang Mensch / Gesundheit / Bevölkerung

Im Geltungsbereich des Bebauungsplans sowie in seinem Umfeld tritt durch die Planung eine geringe Zunahme der bestehenden Lärmbelastung auf.

• Umweltbelang Tiere, Pflanzen und biologische Vielfallt Gegenwärtig wird die Fläche des Untersuchungsgebiets auf Grund ihrer landwirtschaftlichen Nutzung als Fläche mit geringer Bedeutung für Naturhaushalt und Landschaft eingestuft.

Der Eingriff wird in der Ausgleichsermittlung berücksichtigt.

• Umweltbelang Boden

Durch die geplante Versiegelung innerhalb des Planungsgebiets, findet ein erheblicher Eingriff statt. Dieser soll durch entsprechende Maßnahmen im Rahmen der Grünordnung reduziert werden. Die verbleibende Beeinträchtigung wird in der Ausgleichsermittlung berücksichtig.

• Umweltbelang Fläche

Das Gebiet liegt am Ortsrand zwischen bebauten Flächen, sodass keine Zersiedelung der freien Landschaft vorliegt. Der neu aufgestellte Flächennutzungsplan der Stadt Unterschleißheim stellt das Gebiet als Flächen für Gemeinbedarf mit Zweckbestimmung Bildung

LANDKREIS-ANZEIGER 7Samstag, 29. Oktober 2022 STADT UNTERSCHLEISSHEIM
1. BGM Christoph Böck, StR Lissy Meier, Mona Kunisch, Hedi Görg, Hermann Meier (Initiative Urban Gardening), Stephan Hof (GF Business Campus), Michael Bauer und Andreas Fend (ebenfalls Urban Gardening) (v.l.n.r.)
Bekanntmachung der Öffentlichkeitsbeteili gung des Bebauungsplanes 161 „Erweiterung Schulzentrum am Münchner Ring“ gem. § 3 Abs. 2 BauGB

und Kultur dar. Durch festgesetzte Maßnahmen werden die Auswirkungen auf das Schutzgut Landschaft minimiert. Der Eingriff in das Schutzgut Fläche wird in der Ausgleichsermittlung berücksichtigt.

• Umweltbelang Wasser

Im Planungsgebiet befinden sich keine Oberflächengewässer. Durch die im Rahmen des Bebauungsplans festgesetzten Maßnahmen zur Retention des Niederschlagswassers, können erhebliche Eingriffe reduziert werden. Der Eingriff in das Schutzgut Wasser wird in der Ausgleichsermittlung berücksichtigt

• Umweltbelang Klima und Luft

Die Überbauung der bisher unversiegelten Flächen innerhalb des Untersuchungsgebiets führt zu erheblichen Auswirkungen auf das Schutzgut Klima. Durch entsprechende Maßnahmen zur Vermeidung und Minimierung können diese Auswirkungen reduziert werden. Der verbleibende nicht zu minimierende Eingriff ist in der Ausgleichsermittlung berücksichtigt.

• Umweltbelang Landschaft

Das Planungsgebiet liegt am Rand des Siedlungsbereichs. Durch entsprechende Festsetzungen zu den Bauräumen und zur Höhenentwicklung wird gewährleistet, dass sich das Vorhaben in die Topographie einfügt. Der verbleibende nicht zu minimierende Eingriff ist in der Ausgleichsermittlung berücksichtigt.

• Umweltbelang Kulturgüter und sonstige Sachgüter

Im Untersuchungsgebiet befinden sich keine Kulturgüter wie Bauoder Bodendenkmäler.

• Erhaltungsziele und Schutzzweck von Natura 2000 Gebieten

Im Untersuchungsgebiet befinden sich keine Natura 2000 Gebiete.

• Wechselwirkung zwischen den Umweltbelangen Auf die auftretenden Wechselwirkungen wird durch die geplanten Vermeidungs-, Minimierungs- und Ausgleichsmaßnahmen bei den einzelnen Umweltbelangen reagiert.

• Artenschutz

Die Einschätzungen der Brutvogelkartierung kommt zu dem Ergebnis, dass keine saP-relevanten Arten im Planungsgebiet vorkommen. Daher sind keine Vermeidungs- und Minimierungsmaßnahmen zu berücksichtigen

• Prognose bei Nichtdurchführung der Planung Mittelfristig würde die landwirtschaftliche Nutzung weitergeführt werden. Die Bäume unterschiedlichen Alters würden zunächst erhalten bleiben. Für die Umweltbelange Tiere, Boden, Landschaft, Wasser, Klima und Luft würde sich der Ist-Zustand nicht verändern.

• Ausgleichsmaßnahmen

Unter Berücksichtigung der Ausgleichsflächen im Planungsgebiet verbleibt ein Kompensationsbedarf von 53.990 Wertpunkten, der auf externen Ausgleichsflächen hergestellt werden soll. Als externe Ausgleichsfläche soll das Grundstück mit der Flurnummer 1062, das südwestlich an das Planungsgebiet angrenzt, dienen. Stellungnahmen aus der Beteiligung der Behörden und Träger öffentlicher Belange zu umweltrelevanten Informationen

• Landratsamt München – SG Bauleitplanung vom 11.07.2022

• Landratsamt München – FB Naturschutz vom 27.06.2022, Abstimmung zu Ausgleichsmaßnahmen

• Landratsamt München – SG Immissionsschutz vom 03.08.2022, Ergänzung zu Festsetzungen

• Unterschleißheim - SG 54 Grünordnung vom 19.05.2022, Beachtung von Düngemitteln

• MVV vom 23.05.2022, Beachtung bestehender Haltestellen

• Amt für Ernährung, Landwirtschaft und Forsten: 02.06.2022, Beachtung der landwirtschaftlichen Flächen

• Telekom vom 10.06.2022, Leitungsschutz

• Bayernwerk Netz vom 21.06.2022, Leitungsschutz und Transformatorenstation

• GTU AG vom 29.06.2022, Leitungsschutz

• Bund Naturschutz vom 07.07.2022, Stadtklima, Grünordnung und Artenschutz

• Stadt Unterschleißheim - SG 57 Tiefbau vom 25.07.2022, Verkehrsgutachten und Erschließung.

Der Bebauungsplan Nr. 161 „Erweiterung Schulzentrum am Münch ner Ring“ in der Fassung vom 10.10.2022 liegt einschließlich Begründung mit Umweltbericht zur Einsichtnahme in der Zeit vom 28.10.2022 bis 02.12.2022

bei der Stadt Unterschleißheim, im Geschäftsbereich Bauleitpla nung, Bauverwaltung, Umwelt (1. Stock) Valerystr. 1, 85716 Unter schleißheim während der allgemeinen Öffnungszeiten aus. Während dieser Zeit können Stellungnahmen zur dargelegten Pla nung schriftlich oder zur Niederschrift vorgebracht werden. Nicht fristgerecht abgegebene Stellungnahmen können bei der Beschluss fassung über den Bebauungsplan unberücksichtigt bleiben. Ein Mit arbeiter des Bauamtes wird für Auskünfte und Erläuterungen zur Verfügung stehen.

Diese Unterlagen können auch im Internet auf der Homepage der Stadt Unterschleißheim unter www.unterschleissheim.de eingese hen werden. Auf die Richtlinie zum Datenschutz der Stadt Unter schleißheim www.unterschleissheim.de hinsichtlich der Verarbei tung personenbezogener Daten wird verwiesen.

Unterschleißheim, den 18.10.2022

Christoph Böck

1. Bürgermeister

Kurzerläuterung

Der Geltungsbereich im Bebauungsplan Nr. 161 „Erweiterung Schulzen trum am Münchner Ring“ umfasst die Fl. Nrn. 1050, 1050/1, 1050/3, 1050/4, 1050/5, 1051, 1051/1, 1051/3, 1051/4 und teilweise die Fl. Nrn. 1053/1, 1054, 165/7, 168/2.

Ein Teilstück des Münchner Rings ist im Geltungsbereich enthalten, um die Verkehrsanbindung für den Bebauungsplan darzustellen.

Der Bereich Gemeinbedarf Schule I ist für den Neubau einer MontessoriSchule mit Erschließung vorgesehen.

Die planungsrechtlichen Voraussetzungen für eine mögliche Erweite rung des Carl-Orff-Gymnasiums mit Stellplätzen für Fahrräder und PKW werden im Bereich Gemeinbedarf Schule II geschaffen.

In den Baufenstern werden Gebäude mit maximal 12 Metern Wandhöhe zulässig sein. Die festgesetzten Flachdächer sind zu begrünen und Anla gen zur Nutzung von Solarenergie werden darauf ermöglicht.

Samstag, 29. Oktober 20228 LANDKREIS-ANZEIGER STADT UNTERSCHLEISSHEIM

den bei der Stadt Unterschleißheim, im Geschäftsbereich Bauleitpla nung, Bauverwaltung, Umwelt (1. Stock) Valerystraße 1, 85716 Unter schleißheim, zu jedermanns Einsichtnahme aus. Unterschleißheim, 18.10.2022

TERMIN

Gala-Ball im Bürgerhaus Unterschleißheim Kartenvorverkauf verlängert

Der Kartenvorverkauf für den Gala-Ball des TanzSportClub Unterschleißheim am 5. November im Bürgerhaus Unterschleißheim wird aufgrund des Feiertags bis zum 01.11.2022 verlängert. Es sind noch Karten ver fügbar. Alle Tickets müssen im Vorverkauf erworben werden, es gibt keine Abendkasse.

Die Besucherinnen und Besucher des Balls kön

nen sich auf viel Tanzmusik der Band Mirage aus Landshut, auf begeisternde Shows und zwei kurze Final-Runden der beiden tagsüber ausgetragenen Turniere der besten deutschen Paare der Goldenen 55 und der Senioren IV SStandard freuen. Einlass ins Bürgerhaus zum Sektempfang ist um 18.15 Uhr, Ballbeginn um 19.00 Uhr. Der Eintrittspreis beträgt 63,00 € pro

Person, in dem 38,00 € für das 3-Gänge-Menü enthalten ist. Alle Informationen zum Gala-Ball und der Kartenbestellung finden Sie unter www.tsc-unterschleissheim.de. Wir freuen uns auf viele tanzbegeisterte Ball-Besucher. Um festliche Kleidung wird gebeten.

KARTEN Kartenvorverkauf unter capitol-lohhof.de CAPITOL KINO LOHHOF Alleestr. 24, 85716 Unterschleißheim, Telefon 089/1891 1921 FILM AB! D0. 3.11. 18:15 Uhr UNSERE HERZEN - EIN KLANG SO. 6.11. 19:15 Uhr KULTFILM: BODYGUARD - 30 JAHRE ab 16 J. DO. 10.11. 20:30 Uhr LA BRIGADE (DIE KÜCHENBRIGADE) FRZ. OMU SO. 13.11. 19:15 Uhr IM WESTEN NICHTS NEUES ab 16 J. MI. 16.11. 15:10 Uhr DIE SCHULE DER MAGISCHEN TIERE 2 MI. 16.11. 17:15 Uhr KINOKLUB GOLD: DIE KÜCHENBRIGADE SA. 26.11. 20:15 Uhr CALL JANE (PREVIEW) OMU = Originalversion mit deutschen Untertiteln LANDKREIS-ANZEIGER 9Samstag, 29. Oktober 2022 STADT UNTERSCHLEISSHEIM Der Grundstücks- und Bauausschuss hat in seiner Sitzung am 10.10.2022 den Erlass einer Freiflächen- und Gestaltungssatzung beschlossen. Die Freiflächen- und Gestaltungssatzung wurde am 18.10.2022 ausge fertigt und tritt am Tage nach ihrer Bekanntmachung in Kraft. Die Freiflächen- und Gestaltungssatzung liegt in der Zeit vom 20.10.2022 bis 10.11.2022 während der allgemeinen Geschäftsstun
Satzung der Stadt Unterschleißheim über die Gestaltung und Ausstattung unbebauter Flächen bebau ter Grundstücke und äußere Gestaltung baulicher Anlagen (Freiflächen- und Gestaltungssatzung)

LESERBRIEF

zum Leserbrief zu „Nachfolge gesucht, Postfiliale in der Bezirksstraße“ der Stadt Unterschleißheim im Lohhofer Anzeiger vom 22.10.2022

Ich bin fassungslos über die Nachricht, dass unsere Postfiliale in der Bezirksstraße ab Mon tag, 24.10.22 nur noch von 10 - 13 Uhr geöffnet haben wird. Und das Ende für den 31.3.2023 angekündigt ist.

TERMIN

Evangelische Kirchengemeinde Unterschleißheim-Haimhausen Bittgottesdienst für den Frieden am 6. November

Wer Herrn Winter erlebt hat, wird mit mir der Meinung sein, dass er unbedingt gehalten wer den sollte. Einen so kundigen, zugewandten, immer freundlichen und humorvollen „Post halter“ wird man nicht so einfach wiederfinden. Ich bin mit den seltsamsten Wünschen bei ihm aufgetaucht. Er hat immer ruhig und gelassen geholfen. Ob Rollen für Poster, eine Papp hülle aus dem Keller für Plakate, das fachgerechte Zukleben von schlampig abgeliefertem Paket, das Bekleben von Briefen mit Briefmarken (ich schreibe noch Briefe mit der Hand!): alles hat er im wahrsten Sinne des Wortes in die Hand genommen. Ich bin sicher, dass nicht nur ich Herrn Winter vermissen werde. Und ich bin auch ziemlich wütend, wie das lt. seinem Brief gehandhabt wurde und wird. Vielleicht geschieht ja behördenseits mal ein kleines Wunder?

TERMIN

Ingrid Riedmeier, Unterschleißheim

Im Bürgerhaus Unterschleißheim Autorenlesung „Sterbemund tut Wahrheit kund“

und mit Petra Frey, musikalische Begleitung: Manuel Ehrlich am Marimbafon, Don nerstag, 3. November um 20 Uhr im Bürgerhaus Unterschleißheim, Eintritt frei.

Am Sonntag, 6. November, 10.30 Uhr in der Maria-Mag dalena-Kirche mit anschließendem Kirchcafé und mehr. Seit über 40 Jahren engagiert sich die Ökumenische Frie densdekade für Gerechtigkeit, Frieden und die Bewah rung der Schöpfung. Auch in diesem Jahr finden vom 6. bis 16. November unter dem Motto Zusammen:Halt zahlreiche Gottesdienste und Veranstaltungen statt, in denen auf die Notwendigkeit internationaler Koopera tion und einer verstärkten Zusammenarbeit aufmerksam gemacht wird. Pfarrerin Manuela Urbansky widmet ihren Gottesdienst am 6. November dem diesjährigen Motto der Friedensdekade. Getrennt bzw. verbunden durch einen Doppelpunkt weisen die beiden Worte „Zusam men“ und „Halt“ einerseits auf die große Bedeutung von gesellschaftlichem Zusammenhalt und internationaler Zusammenarbeit hin. Andererseits ist überall dort Halt zu gebieten, wo Frieden, Gerechtigkeit und die Bewahrung der Schöpfung mit Füßen getreten werden.

Im Anschluss an den Gottesdienst (ab ca. 11.30 Uhr) bie tet der Förderverein ein warmes Mittagessen mit herbst lichen Quiches, Pizzen und Wähen und natürlich Kaffee und Kuchen. Lassen Sie sich von der Auswahl überra schen!

Hinweis: Falls Sie Kuchen mitnehmen möchten, bringen Sie entsprechende Boxen für den Transport mit. Das spart Verpackungsmaterial!

Heike Köhler, Mitglied des Kirchenvorstands

Lissy Meyer, Vorsitzende der Hospizgruppe Wegwarte

Mit viel Gefühl, Herz und feinem Humor erleben Sie Geschichten von der Hospizarbeit vor und hinter den Kulissen, den besonderen Momenten und persönlichen Erlebnissen. Sie bekommen wertvolle Informationen über den Sinn und Unsinn einer Patientenverfü gung oder wie Sie Ihren künftig Hinterbliebenen tatkräftig unter die Arme greifen kön nen. Ob der bühnenreife Abgang einer Diva, die Geheimnisse eines Metzgermeisters oder letzte Anweisungen eines Fußballspielers, Petra Frey erzählt mit einer leichten, lebensfrohen Sicht, authentisch und mit einem Augenzwinkern. Sie sind mittendrin im Hospizleben, werden überrascht schmunzeln, aber auch die eine oder andere kleine Träne vergießen. Die Lesung ist berührend, unterhaltsam, informativ. Petra Frey ist Schauspielerin, Moderatorin, Sprecherin für Hörspiele, Autorin, seit 2010 ehrenamtliche Hospizhelferin und seit 2014 Koordinatorin für Hospizhelfer und -helferin nen. Der Abend ist eine Kooperation von Forum Unterschleißheim und der Hospizgruppe Wegwarte.

druck-zimmermann.de Service á Datenprüfung á Lettershop á Kuvertieren maschinell und manuell á Konfektionierung von Drucksachen á Paketversand á Grafik & Design á Marketingberatung Qualität á Digital- & Offsetdruckspezialisten á Modernste Ausstattung á Umweltbewusstes Drucken á Digital-Weißdruck Leistung á Beratung durch Fachpersonal á Mailings aller Art á Lektorat/Korrektorat á Konfektionierung mit eigenem Lager á Termingerechte Lieferung Einsteinstraße 4 85716 Unterschleißheim tel +49 (0)89 321 840-0 fax +49 (0)89 317 11 76 e-mail info@druck-zimmermann.de info@landkreis-anzeiger.de 10 LANDKREIS-ANZEIGER Samstag, 29. Oktober 2022AKTUELLES
Von

Politischer Stammtisch der CSU Unterschleißheim

Am Freitag, 4. November findet der politische Stammtisch der CSU Unterschleißheim statt. Wir sind jeden ersten Freitag im Monat mit unserem politischen Stammtisch in der Parkgaststätte, Stadionstraße 1, zu Gast. Ab 19.00 Uhr geht es wieder um „Gott und die Welt“, keine feste Agenda, aber viele interessante Gespräche – das Erfolgs rezept unseres Stammtisches. „Egal, ob die große Politik in der Welt, Infla tion, Krieg in der Ukraine, Perfor mance der Regierung oder auch kommu nale Themen –unser Stamm tisch bietet die einmalige Gele genheit zum Austausch“, so CSU-Ortsvorsit zender Stefan Krimmer. Wer also Lust auf einen zwanglo sen Gedanken austausch hat, politische The men besprechen

oder einfach nur „ratschen“ möchte, ist herzlich zu uns eingeladen. Bei dem schönen Wetter sind wir selbstverständlich im Biergarten.

Julia Pettinger, Ortsgeschäftsführerin CSU Unterschleißheim

LANDKREIS-ANZEIGER 11Samstag, 29. Oktober 2022 AKTUELLES
schleißheim ist seit Sommer 2021 in der Parkgaststätte zu Hause

Samstag,

TERMINE

Unterschleißheimer Grüne im Haus der Vereine „Nachhaltige Ernährung“ am 7. November

Wie wir uns ernähren hat einerseits einen Einfluss auf den Klimawandel, andererseits hat es Einfluss auf die Lebensverhältnisse in anderen Ländern. So stellt sich die Frage, wie wir uns fair, nachhaltig und ressourcenspa rend ernähren können?

Dazu möchten wir euch herzlich zu unserer Veranstal tung einladen. Kommt vorbei und lernt drei Projekte kennen, die sich genau mit diesem Thema auseinander gesetzt und sich Lösungen für Unterschleißheim über legt haben.

Wer ist dabei:

- Sissy Melinz, Foodsharing München e.V.

- Christina Jung, Unverpackt Laden Lufthülle

- Stefan Honal, Fair Trade Team

Am Montag, 7. November, 19.00 Uhr im Haus der Ver eine, Grüner Saal, Birkenstr. 2.

Wir freuen uns auf Euch!

Catrin Lipcan, Sprecherin des Ortsverbandes der Grünen in Unterschleißheim

Heideflächenverein Münchener Norden e.V.

Selbst gemacht statt schnell gekauft

DIY-Seminar zur Müllvermeidung im Alltag am Samstag, 05.11., 13.30 bis 16.30 Uhr.

Der Kurs zeigt zahlreiche Möglichkeiten auf, wie Dinge des täglichen Bedarfs einfach selbst gemacht werden. Dadurch lässt sich Haushalts-Müll vermeiden und Spaß macht es auch noch. Es werden Verpackungsalternati ven vorgestellt und erprobte Zubereitungen für Reini gungsmittel und einfache Kosmetika erläutert. Die Teilnehmer fertigen im Rahmen des Seminars u.a. eine Alternative für Plastik- und Alufolien aus Stoff und Wachs an und erhalten eine Liste mit Buchempfehlun gen, Internet-Links und Quellen für den verpackungs freien Einkauf.

Ort/Treffpunkt: HeideHaus, ÖPNV: U6 Haltestelle Frött maning, ca. 3 Minuten Fußweg. Referentin: Stefanie Sau erland. Veranstalter: Heideflächenverein Münchener Norden e.V. in Kooperation mit: VHS Neufahrn, VHS Oberschleißheim. Zielgruppe: Jugendliche (14 bis 17 Jahre), Erwachsene. Kosten: Erwachsene 12.00 €. Anmel dung: erforderlich, Anmeldung bei: VHS Neufahrn, VHS Oberschleißheim. Wenn bei einer VHS keine Plätze mehr verfügbar sind, versuchen Sie es bitte bei der nächsten. Hinweis: bitte mitbringen (falls vorhanden): Bügeleisen, dünne Baumwollstoffreste mind. 15 x 15 cm groß, 6 Kastanien, 1 Glas (ca. 200 ml)

Christine Joas, Geschäftsführerin, Leitung HeideHaus

29. Oktober 2022
Bei Problemen und Fragen rund um die Verteilung wenden Sie sich bitte vertrauensvoll an unseren Verteilerservice unter der Telefonnummer 0 89/41 11 48 11 01 E-Mail: vertrieb@zpvs.de

Öffnungszeiten

Spezielle

Di., 01.11., Feiertag: Family Sportsbar: FC Bayern : Inter Mailand, ab 21 Uhr

02.11., Herbstferien Aktion: Do It Yourself – Kerzen, ab 12 Uhr (Kosten 5 €, Alter ab 10 Jahren)

Do., 03.11., Herbstferien Aktion: Bouldern, ab 10 Uhr (Kosten 10 €, Alter ab 10 Jahren)

Fr., 04.11., Herbstferien Aktion: Kochen und Backen ab 12 Uhr (Kosten 5 €, Alter ab 10 Jahren); Konzert Novasonic ab 20 Uhr

Sa., 05.11., Herbstferien Aktion: Bowling, ab 13 Uhr (Kosten 10 €, Alter ab 10 Jahren);

Family Sportsbar: Hertha BSC : FC Bayern, ab 15.30 Uhr

Nähere Informationen über unsere Veranstaltungen bzw. Anmeldungen finden Sie auf unserer Homepage. Whatsapp: 0171/831 22 67, E-Mail: info@gleis-1.de.

Markus Baier, JugendKulturHaus Gleis 1

CAPITOL Lohhof

Das Programm bis Mi., 02.11.2022

Freitag, 28.10.2022

14:40 Die Mucklas · 16:20 Schule der magischen Tiere 2 18:30 + 20:15 Der Nachname

Samstag, 29.10.2022

14:15 Die Mucklas · 16:00 Schule der magischen Tiere 2 18:10 + 20:00 Der Nachname

Sonntag, 30.10.2022

14:15 Die Mucklas · 16:00 Schule der magischen Tiere 2 18:10 + 20:00 Der Nachname

Montag, 31.10.2022

14:40 Die Mucklas · 16:20 Schule der magischen Tiere 2 18:30 + 20:15 Der Nachname

Dienstag, 01.11.2022

14:15 Die Mucklas · 16:00 Schule der magischen Tiere 2 18:10 + 20:00 Der Nachname

Mittwoch, 02.11.2022

10:15 + 16:20 Schule der magischen Tiere 2 14:40 Die Mucklas · 18:30 + 20:15 Der Nachname

NEU ab Do., 03.11.: Lyle Mein Freund, das Krokodil NUR am So., 06.11. um 19:15 Uhr: Bodyguard 30. Filmjubiläum

Alleestr. 24 · 85716

· Tel.: 089 18 91 19 21 www.capitol-lohhof.de

LANDKREIS-ANZEIGER 13Samstag, 29. Oktober 2022 AKTUELLES Senden Sie uns Ihre Texte an info@landkreis-anzeiger.de
USH
TERMIN Gleis 1 Unterschleißheim Öffnungszeiten Gleis 1 Mi. – Do.: 14.00 – 19.00 Uhr Fr.: 14.00 – 19.00 Uhr Sa.: 14.00 – 18.00 Uhr
Café Mi. – Do.: 14.00 – 21.00 Uhr Fr.: 14.00 – 22.00 Uhr Sa.: 14.00 – 18.00 Uhr
Angebote
Mi.,

Jetzt das Auto winterfest machen

YesAuto gibt praktische Tipps, um sicher und ent spannt durch den Winter zu kommen

(PresseBox) (München, 17.11.2021) Kurz bevor der kalenda rische Winter beginnt, gibt es für Autofahrer einiges zu erle digen. In der kalten Jahreszeit erfordert das Fahrzeug etwas mehr Aufmerksamkeit, um die Besitzer sicher durch die dunklen Monate zu bringen. YesAuto, der Online-Marktplatz für Neu- und Gebrauchtwagen, steht Autofahrern mit allen wichtigen Informationen zur Seite und gibt Tipps, wie sich die schwierigen Witterungsverhältnisse am besten meistern las sen.

Checkliste für mehr Sicherheit und Komfort im Winter Ob Kälte, Schnee oder Eis, mit den richtigen Maßnahmen können Autofahrer sich und ihren Wagen schützen, indem sie ihr Auto jetzt winterfest machen. Olaf Liu, General Manager bei YesAuto hat eine Checkliste zusammengestellt, damit nichts vergessen wird.

„Essentiell ist natürlich der Wechsel auf Winterreifen. In Deutschland gilt hier eine situative Pflicht. Das bedeutet, dass bei Glatteis, Schneeglätte, Schneematsch, Eis- oder Reifglätte nur das Fahren mit Winterreifen erlaubt ist. An mil den, trockenen Wintertagen greift diese Pflicht also nicht. Die Faustregel von O bis O, also von Oktober bis Ostern, stellt aber eine ganz gute Richtlinie dar für alle, die sich unsicher sind über den Zeitraum für Winterreifen“, sagt Liu.

Ausreichend Licht und klarer Durchblick Dringend notwendig ist es auch, die Scheiben und Schein werfer regelmäßig zu reinigen. In der dunklen Jahreszeit sind einwandfrei strahlende Scheinwerfer unverzichtbar für die eigene Sicherheit. Praktischer Tipp: Die Scheibenwischan lage betätigen, ehe das Auto über Nacht abgestellt wird. So können mögliche Streumittelreste nicht das Glas beschädi gen, wenn am nächsten Morgen der Eiskratzer zum Einsatz kommen sollte. „Dabei bitte unbedingt darauf achten, dass ausreichend Frostschutzmittel für Kühlungs- und Scheiben wischanlage vorhanden ist oder dieses gegebenenfalls nach füllen.“

Die niedrigen Temperaturen bedeuten auch einen Kraftakt für die Autobatterie. Durch die Kälte verliert sie an Leistungsfä higkeit. Bei Werten von minus zehn Grad und darunter büßt sie rund ein Drittel ihres üblichen Potenzials ein. Daher gilt, lieber einmal die Batterie frühzeitig kontrollieren, als plötzlich eine böse Überraschung zu erleben.

Gummidichtungen ausreichend fetten „Für Autohalter ohne Garagenplatz empfiehlt es sich, die Tür dichtungen winterfit zu machen. Dadurch lässt sich verhin dern, dass die Türen über Nacht zufrieren. Hierzu am besten die Gummilippen bereits vor dem ersten Frost gründlich rei nigen und anschließend ein spezielles Pflegemittel auftragen. Fettstifte, Glyzerin, Silikon oder Hirschtalg sorgen dafür, dass die Gummidichtungen geschmeidig bleiben und wirken zugleich als Frostschutz“, so Olaf Liu.

Zudem sollte die Ausstattung im Auto zum Winter überprüft beziehungsweise aufgestockt werden: Wertvolle Helfer sind unter anderem Eiskratzer, Handbesen, um das Fahrzeug von Schnee zu befreien, Abdeckfolie für die Frontscheibe und als Notfallausrüstung ein Starthilfekabel und eine warme Decke. „Wir wünschen allen Autofahrern, dass sie sicher und ent spannt durch den Winter kommen.“ Weitere hilfreiche Tipps und Infos rund ums Auto gibt es unter www.yesauto.de.

Kfz-Winter-Check Fahrzeuglackierung Fahrzeugtechnik Karosseriebau Hauptniederlassung Unterschleißheim Siemensstraße 9 – 11, 85716 Unterschleißheim Tel. +49 (0) 89/1 89 17 65-11, Fax +49 (0) 89/1 89 17 65-99 E-Mail: info@fahrzeuglackierung-gambs.de www.fahrzeuglackierung-gambs.de FAHRZEUGTECHNIK | KAROSSERIEBAU | LACKIERUNG | AUFBEREITUNG UNTER EINEM DACH Dann aber schnell zum Wintercheck FIT für den Winter? NEIN! 24,90 EURO checken wir für Sie ... – Winterreifen – Batterie (Belastungstest) – Beleuchtung mit Scheinwerferhöheneinstellung – Sämtliche Betriebsflüssigkeiten – Scheibenreinigung/Wischanlage – Bremsentest ... und geben Ihnen einen aktuellen Zustandsbericht zum Fahrzeug. Einfach vorbeischauen oder schnell einen Termin unter 089/1891765-11 vereinbaren und mit ruhigem Gewissen dem Winter entgegen steuern.

Auto Kölbl spendet 300 Erste-Hilfe-Kästen sowie 3.000€

sich nahezu täglich.

Bevölkerung ist auf Unterstützung in Form von Spenden und freiwilliger Hilfe angewiesen.

helfen, weiterhin steriles Verbandsmaterial und ErsteHilfe-Ausrüstung greifbar zu haben.“

trag

Kölbl

Menschen

der

mit seinen Kunden 300 Erste-Hilfe-Kästen. Die Hilfs güter wurden am Freitag, den 07.10.2022 an die LFV übergeben.

schnell wie möglich sollen Verbandsma terial und die Geldspenden nun in die Ukraine gebracht werden.

Lage in den Kriegsgebie ten der Ukraine verschlim

Kölbl hat sich deshalb ent schieden, mit dringend benötigtem Hilfsmaterial die Menschen in der Ukraine zu unterstützen.

„Wir alle sind von der Eskala tion der Gewalt in der Ukraine tief betroffen und können uns kaum eine Vor stellung davon machen, welches Leid dort herrscht“, sagt Klaus Philip, Geschäfts führer von Auto Kölbl. „Mit unserer Spende möchten wir den Menschen dabei

Auto Kölbl kooperiert bei dieser Aktion mit der Lan desFeuerwehrVerband Bay ern e.V., die beste Kontakte in die Ukraine und deren Nachbarländer unterhalten.

„Die Menschen in der Ukraine benötigen wei terhin dringend medizinisches Verbandsmate rial“, sagt Marius

Rabe, Referent für Bildungs arbeit. „Daher freuen wir uns ganz besonders über die Spende von Auto Kölbl und werden uns um einen raschen Transport in die Region in der Ukraine küm

mern. Damit die Hilfe genau dort ankommt, wo sie gebraucht wird.“

Auto Kölbl spendet – Auto Kölbl (autokoelbl.de)

Es ist wieder Zeit für den Winterreifenwechsel

Auch dieses Jahr bieten wir Ihnen wieder spezielle „Reifenwechsel Tage“ an.

Um auch im Winter die Sicherheit bei Aquaplaning und kurze Bremswege durch ausreichendes

AutoCrew bietet Ihnen ein umfangreiches Leistungsange bot rund ums Fahrzeug. Egal welche Marke oder welches Modell Sie fahren, die Auto Crew Werkstätten kümmern sich kompetent um Ihr Fahr zeug. Von der Inspektion bis zur Reparatur in den AutoCrew Werkstätten wird Ihnen unkom pliziert und schnell geholfen und das zum fairen Preis.

Der Einsatz moderns ter Bosch Diagnoseund Reparaturtech nik und die aus schließliche Verwen dung von Marken-Ersatzteilen garantie ren, dass Sie mit einem guten Gefühl durchstarten können. AutoCrew ist eine Werkstatt marke von Bosch, dem welt weit führenden Zulieferer von Automobilteilen in der Fahr zeug-Erstausrüstung. Auch in Ihrem Fahrzeug sind mit Sicherheit Bosch-Teile ver baut. Zur Wahrung des Auto Crew Qualitätsstandards wer

den alle AutoCrew Werkstätten regelmäßigen Qualitätsprüfun gen von einem externen Prüf institut unterzogen und neh men an Schulungen teil.

Was bietet Ihnen AutoCrew?

• Reparaturen + Service für alle Automarken

• Autorisierter Werkstattpart ner von Bosch

• Persönliche Beratung

• Bosch Marken-Ersatzteile und weitere Markenprodukte

• Geschultes und qualifiziertes Fachpersonal

• Hohe Qualität durch Einsatz von Bosch Diagnose- und Prüftechnik

Reifenwechsel und Einlagerung Service und Reparaturen aller Marken

Kfz-Winter-Check Senden Sie uns Ihre Texte an info@landkreis-anzeiger.de
Reifenprofil zu gewähren, wird eine Mindestprofiltiefe von 4 mm empfohlen. Bei Gerichtsurteilen wurde von Versicherungen bei Unfällen mit Profiltiefen unter 4 mm die Haftung ganz oder teilweise ausgeschlossen. Unsere Winterreifenangebote sowie Komplettradangebote finden Sie in unserem Onlineshop. Eine Terminvereinbarung unter Tel. 089 37001725 für die „Reifenwechsel Tage“ ist kurzfristig möglich oder nutzen Sie unsere Online Terminvereinbarung. Mehr zu unseren Dienstleistungen finden Sie unter www.hsmotorsport-technik.de oder unsere Tuning Dienstleistungen unter www.hsmotorsport.de Königsbergerstr. 9 85386 Eching bei München Tel.: +49 (0) 89 370 017 25 · E-Mail: info@hsmotorsport.de www.hsmotorsport-technik.de Unterschleißheimer Feuer wehr organisiert Transport direkt in die Ukraine Unterschleißheim, 17. Okto ber 2022. Das Autohaus Auto
leistet einen Bei
zur Unterstützung der
in
Ukraine und spendet gemeinsam
So
Die
mert
Die
Auto

K#(0$/DA!L'(*-8/0#$!60$5!MNJMMA!6,A!OP5OO5MMA! OQ5NNJMN5PN!H8$A!+#:F8$R!OSANNT! 2'34"563%')7)-./080)

H(-#$!D,*#$(#$!<&&0')!2F8$0!/(-!1DD#$! 91#*#$!*'./A!*'--!91$!/(-!-#8$!1D!</I#(! ,$1#(01#$#(!/(*!*':#1!*'-!+#-4F$!2F$!/(-! -#&:-0!;#$&1#$#(5!"':#1!1-0!#-!)'$!(1780!-,! -789#$A!91#*#$!1(!*1#!1((#$#!?100#!./! )#&'()#(5!@#9/--0!'/-)#2F8$0#! <0#DF:/()#(A!&#1780#!@#9#)/()#(!/(*! #1(2'78#!601DDF:/()#(!8#&2#(!/(-!*':#15!

H(0#$-78&#1I8#1DA!;8-JK#(0$/DA!L'(*-8/0#$! 60$5!MNJMMA!6'A!OQ5OO5MMA!ON5NNJOU5NN!H8$! +#:F8$R!PNANN!T!

9:;<6%+=>&,#?(,")-./0/8@)

B'78!*#$!3(0:1(*/()!#1(#-!%1(*#-!:$'/780! #1(#!?/00#$!K#10A!%>$4#$A!+#1-0!/(*!6##&#! 91#*#$!1(!31(=&'()!./!:$1()#(5!"/$78!

16 LANDKREIS-ANZEIGER Lesen Sie den Landkreis-Anzeiger vorab auf www.issuu.com/druckverlagzimmermann und www.icu-net.de !"#$%&"'%(&)*+"&,)-./0012) "#$!%&'()!*#$!+,()-!#$.#/)0!#1(#!01#2#! 3(0-4'((/()5!6#1(#!67891()/()#(!8':#(! 4,-101;#!</-91$=/()#(!'/2!*#(!%>$4#$!/(*!*1#! ?#$1*1'(#5!61#!=>((#(!@&,7='*#(!&>-#(A!*#(! %$#1-&'/2!/(*!*'-!B#$;#(-C-0#D!-0E$=#(!/(*! '=01;1#$#(!*'-!"$F-#(-C-0#D5!+#*'(=#(! =,DD#(!./$!G/8#A!#D,01,('&#!60$#--,$#(! =>((#(!-178!&>-#(5!H(0#$-78&#1I8#1DA!;8-J
%$E201)/()!*#-!@#7=#(:,*#(-!/(*! 3(0-4'((/()!D10!V,)'!/(*!?#*10'01,(!='((! -1#!91#*#$!./!-178!-#&:-0!21(*#(5! H(0#$-78&#1I8#1DA!;8-JK#(0$/DA!L'(*-8/0#$! 60$5!MNJMMA!WX!':!"1A!MQ5OO5MMA!ON5NNJOO5PN! H8$A!+#:F8$R!SNANN!T! A(,")B:5)C;DE"&,353)-./0/FG) "/$78!-4#.1#&&#A!'780-'D#!%>$4#$F:/()#(! 9#$*#(!*1#!:#&'-0#0#(!Y$)'(#!'=01;1#$0A!*1#! Z1$:#&-E/&#A!@E(*#$!/(*!6#8(#(!)#*#8(0!/(*! )#-0E$=05!"/$78!)#:/$0-;,$:#$#10#(*#!<0#DJ! /(*!3(0-4'((/()-0#78(1=#(A!-,91#! ?#*10'01,(!/(*!61()#(!-0E$=#(!91$!%>$4#$!/(*! +#1-0A!/D!)#&'--#(!1(!*1#!+#:/$0!./!)#8#(5! H(0#$-78&#1I8#1DA!;8-JK#(0$/DA!L'(*-8/0#$! 60$5!MNJMMA!WX!':!"1A!MQ5OO5MMA!O[5NNJOQ5PN! H8$A!+#:F8$R!WSANN!T! H3=%'"'%(&)-./0FI2) ?#*10'01,(A!#1(!@'*!2F$!*1#!6##&#!/(*!#1(!Z#)! ./$!1((#$#(!G/8#!/(*!%$'205!Z1$!&#$(#(! ;#$-781#*#(#!?#*10'01,(-2,$D#(!=#((#(A!91#! 610.J!/(*!+#8D#*10'01,(5!<0#DJ!/(*! 3(0-4'((/()-F:/()#(!8#&2#(!/(-A!/D!1(!*1#! 601&&#!./!=,DD#(5!H(0#$-78&#1I8#1DA!;8-J K#(0$/DA!L'(*-8/0#$!60$5!MNJMMA!6'A!NP5OM5MMA! OU5NNJO\5NN!H8$A!+#:F8$R!MSANN!T! JKD353)7&B(#)35D"+'3&)C%3)>&'35)L3+M) 0IN-FF0FO1P0)>&=)EEEMQD#P&(5=M=3

Im

:

Rückenwindlauf brachte 10.000 Euro für Initiative für krebskranke Kinder

Seit 2009 gehen jedes Jahr Hunderte von Läuferinnen und Läufern auf die Strecke beim Rückenwindlauf rund um den Business Campus München : Garching, um gemeinsam Geld für einen guten Zweck zu erlaufen. Nach dem der Rückenwindlauf 2020 aufgrund der Pandemie leider ausfallen musste und 2021 ein virtueller Rückenwindlauf stattfand, gingen in diesem Jahr wieder 600 Läuferinnen und Läufer an den Start im Business Campus München : Garching.

Durch die Startgebühren, Tombola-Erlöse und weitere Spenden kam die stolze Spendensumme von 10.000 Euro zusammen. Den Spendenscheck konnten nun Lars Dücker, Geschäftsführer der Business Campus Manage ment GmbH, und Rückenwindlauf-Organisationsleiterin Cornelia Pielniok an die Initiative krebskranke Kinder München e.V., vertreten durch Jessica Pöll und Vorstand Angelika Andreae-Kiel, übergeben. Seit 2009 konnten

damit bereits 165.000 Euro an Spendengeldern beim Rückenwindlauf gesammelt werden.

- Unterstützung für Familien mit krebskranken Kindern:

Mit dem Geld kann nun wieder die oftmals sehr belastende Situation von Familien mit krebskranken Kindern verbessert werden. Die Spendengelder fließen unter anderem in die klinische Betreuung und Versorgung. Dazu gehören die bei Bedarf schnelle und unbürokratische finanzielle Unterstüt zung genauso wie die Bereitstellung von Wohnungen in Kliniknähe für Eltern oder Geschwister. Ebenso hilft der gemeinnützige Verein bei der Finanzierung von Personal auf der Kinderkrebsstation wie etwa Sozialpäd agogen, Psychologen oder Therapeuten. Zudem ermöglicht die Initiative Aktivitäten, Gesprächsaustausch oder Beratung für Eltern. Auch das Projekt „Jugend & Zukunft“ profitiert vom Spendenerlös des Rückenwindlaufs. Das Projekt hilft jungen Erwachsenen nach einer Krebserkrankung bei der Berufswahl und der Ausbildungs- und Arbeitsplatzsuche. Infos zur wertvol len Arbeit der Initiative für krebskranke Kinder München e.V. gibt es unter www.krebs-bei-kindern.de.

- Besondere Aktion „Rückenwindlauf auf der Station“:

Eine ganz besondere Aktion gab es in diesem Jahr im Vorfeld des Rücken windlaufs. Unter dem Motto „Rückenwindlauf – wir laufen vorneweg“ zählte das Sportteam der Kinderonkologie-Station der München Klinik Schwabing zwei Wochen lang Schritte von Patientinnen und Patienten, begleitenden Eltern oder Klinikmitarbeitenden, die im Rahmen des Sportprogramms absolviert wurden. Jeder Schritt wurde in eine Spende umgewandelt. Das Ziel von 50.000 Schritten wurde mit unglaublichen 72.817 Schritten weit übertroffen. So konnte die HochHinaus-Stiftung im Zusammenhang mit dem Rückenwindlauf weitere 5.000 Euro an die Initiative krebskranke Kin der zur Verfügung stellen.

Alle Beteiligten freuen sich schon auf die 14. Auflage des Rückenwindlaufs am 23. Juli 2023. Aktuelle Infos zum Lauf und zur Online-Anmeldung unter www.rueckenwindlauf.de.

TERMINE

Öffentliche Sitzung des Integrationsbeirats Garching

Die nächste öffentliche Sitzung des Integrationsbeirats findet am Donnerstag, 3. Novem ber, um 19.00 Uhr im Bürgerhaus, Raum Dirnismaning/Forschungszentrum statt. Der Zugang zum Raum erfolgt über die Außentreppe links neben dem Stadtcafe. Alle Bürge rinnen und Bürger Garchings, die mit uns ins Gespräch kommen möchten, sind herzlich eingeladen. Claudio Cumani im Namen des Integrationsbeirats der Stadt Garching

Thea e. V. Garching „Der Ackermann und der Tod“ am 1. November im Bürgerhaus

Um nicht weiter „still“ zu sein, ermöglicht uns das Kulturreferat am 1. November um 19.30 Uhr einen ungewöhnlichen und spannenden Theaterabend im Bürgerhaus zu zeigen: „Der Ackermann und der Tod“ von Johannes von Tepl (um 1400). Ein Mann, genannt der Ackermann, verliert seine junge Frau und klagt den Tod vor dem Gericht Gottes an. Ein wortgewaltiges Streitgespräch mit ungeahnter Aktualität entwickelt sich ...

Zwei wunderbare bekannte TV-Schauspieler, Michael Vogtmann und Heiko Ruprecht, ziehen ihre Zuschauer in den Bann, musikalisch begleitet von Sirka Schwartz-Uppen dieck. Wir sind froh wieder aktiv sein zu dürfen und freuen uns sehr auf Ihr Kommen! Karten: kartenvorverkauf@garching.de; Telefon: 089-320 89 138, Mobil: 0179-109 15 87 oder 0177-320 42 10; www.theaterfuerkindergarching.de; www.facebook.com/ theaterfuerkindergarching; thea.garching@gmail.com. Ihr Thea-Team

Business Campus München
Garching
Übergabe des Spendenschecks mit Lars Dücker, Geschäftsführer der Busi ness Campus Management GmbH, Rückenwindlauf-Organisationsleiterin Cornelia Pielniok (re.) und Vertretern der Initiative krebskranke Kinder Mün chen e.V., Jessica Pöll (li.) und Vorstand Angelika Andreae-Kiel (2. v. re.)
Samstag, 29. Oktober 202218 LANDKREIS-ANZEIGER NEUES AUS GARCHING

Pfarrverband Unterschleißheim

St. Ulrich / St. Korbinian

St. Ulrich

Gottesdienste und Veranstaltungen

29.10., 19.00 Uhr Jahresversammlung Kir chenbauförderkreis im Pfarrsaal

So., 30.10., 8.30 Uhr Hl. Messe in der Neuen Kir che; 10.00 Uhr Pfarrgottesdienst in der Neuen Kirche

Di., 01.11., 8.30 Uhr Hl. Messe in der Neuen Kir che; 10.00 Uhr Pfarrgottesdienst in der Neuen Kirche; 13.30 Uhr Gräbersegnung im Friedhof Nelkenstraße; 14.30 Uhr Andacht mit anschlie ßender Gräbersegnung im Kirchenfriedhof St. Ulrich; 15.30 Uhr Gräbersegnung im Waldfried hof Unterschleißheim

Mi., 02.11., 18.30 Uhr Hl. Messe für die Verstor benen der Pfarrgemeinde, musikalische Gestal tung: Blockflöte und Orgel

Do., 03.11., 18.30 Uhr Heilige Messe in der Neuen Kirche

Fr., 04.11., 16.00 Uhr Rosenkranz in der Neuen Kirche

Vorschau

So., 06.11., 8.30 Uhr Hl. Messe in der Neuen Kir che; 10.00 Uhr Pfarrgottesdienst in der Neuen Kirche, anschließend Eine-Welt-Laden im Pfarr saal

St. Korbinian

Regelmäßige Gottesdienste

Sa., 18.00 Uhr Vorabendmesse

So., 10.00 Uhr Eucharistiefeier für die Pfarrgemeinde

Mi., 19.00 Uhr Hl. Messe

Do., 18.00 Uhr Rosenkranz

Fr., 9.00 Uhr Hl. Messe

Besondere Termine

Di., 01.11.: Pfarrgottesdienst für die Lebenden und Verstorbenen der Pfarrei; Gräbersegnung: 13.30 Uhr Friedhof an der Nelkenstraße; 15.30 Uhr Waldfriedhof

Mi., 02.11., 19.00 Uhr Hl. Messe für alle Verstor benen der Pfarrei

leben aus der Mitte – mitten im Leben Evang.-Luth. Kirchengemeinde

Unterschleißheim/Haimhausen

Genezareth-Kirche/-Haus

So., 30.10., 10.30 Uhr Gottesdienst, Pfarrerin

Pfeiffer

Vorschau

Maria-Magdalena-Kirche/Haus

So., 06.11., 10.30 Uhr Bittgottesdienst für den Frieden zur ökumenischen Friedensdekade mit Abendmahl, Pfarrerin Urbansky (im Anschluss Kirchcafé und mehr)

Schlosskapelle Haimhausen

So., 30.10., 9.00 Uhr Gottesdienst, Pfarrerin Pfeiffer

Im Anschluss an unsere Sonntags-Gottesdienste in Unterschleißheim laden wir Sie herzlich ein zum Kirchenkaffee! Bei einer Tasse Kaffee oder Tee ist hier jeden Sonntag Zeit und Gelegenheit, mitei nander ins Gespräch zu kommen.

Die Genezareth-Kirche ist von Dienstag bis Sonn tag zwischen 9 und 18 Uhr zum Gebet, zum Inne halten, zum Kraftschöpfen für Sie geöffnet. Auch in unserem Innenhof (Durchgang neben dem Turm) finden Sie einen Ort zum Atemholen.

Jederzeit können Sie sich auch an unsere Seel sorgerinnen wenden: Pfarrerin Pfeiffer: Tel. 0151 / 10 62 95 13, Pfarrerin Urbansky: Tel. 089 317 81 411.

Besondere Gottesdienste und Veranstaltungen Festgottesdienst zum Reformationstag der 14 Gemeinden des Prodekanats M-Nord am Mo., 31.10., 19.00 Uhr in der Dankeskirche München mit Dekan Reuter und Pfarrerin Bickhardt. Ökumenischer Kinderbibeltag „Zu Gast bei Abra ham“ am Mi., 16.11., 9.00 bis 14.30 Uhr in der katholischen Kirche St. Ulrich mit Pfarrerin Urbansky, Vikarin Albers, Pastoralreferent Wolters und Team. Die Anmeldung erfolgt über unsere Homepage.

Über unsere Homepage www.unterschleissheimevangelisch.de halten wir Sie immer auf dem Laufenden.

Christliche Gemeinde Unterschleißheim

Lise-Meitner-Str. 1 85716 Unterschleißheim

Gottesdienst: So., 10.45 Uhr mit parallelem Kin derprogramm (3 Altersgruppen)

Stehkaffee-Empfang: ab 10.15 Uhr www.cgush.com

Pfarrverband Oberschleißheim St. Wilhelm / Maria Patrona Bavariae

Regelmäßige Gottesdienste

Sa., 18.00 Uhr Maria Patrona Bavariae

So., 9.00 Uhr Maria Patrona Bavariae; 10.30 Uhr St. Wilhelm; 18.00 Uhr St. Wilhelm (keine Abend messe in den Ferien)

Di., 18.30 Uhr Maria Patrona Bavariae

Mi., 8.00 Uhr St. Wilhelm

Do., 8.00 Uhr Maria Patrona Bavariae

Fr., 18.30 Uhr St. Wilhelm

Rosenkranz

Mo., Di., Do., Fr., 18.00 Uhr St. Wilhelm

Sa., 17.15 Uhr Maria Patrona Bavariae

Mi., 16.30 Uhr Maria Patrona Bavariae; 17.30 Uhr Lustheim

Besondere Gottesdienste und Veranstaltungen So., 30.10., 17.00 Uhr Orgelreise durch das Dekanat in St. Agnes, Lerchenau

Di., 01.11., Allerheiligen, 10.30 Uhr Pfarrgottes dienst in MPB; 14.00 Uhr Gräbersegnung in Hochmutting

Mi., 02.11., Allerseelen, 18.30 Uhr Seelenmesse des Pfarrverbandes in StW

Evang.-Luth. Trinitatiskirche Oberschleißheim

So., 30.10., 10.15 Uhr Gottesdienst mit Abend mahl (Pfarrerin Martina Buck)

Vorschau

So., 06.11., 10.15 Uhr Gottesdienst (Lektorin Alrun Schliemann)

Ökumenischer Kinderkirchentag an Buß- und

Samstag, 29. Oktober 202220 LANDKREIS-ANZEIGER KIRCHENTERMINE/TRAUERANZEIGEN Wenn Sie die schmerzliche Pflicht haben, über den Tod eines lieben Menschen zu informieren, dann hilft Ihnen eine Traueranzeige im Landkreis-Anzeiger: Beratung: 32 18 40-32 info@landkreis-anzeiger.de TRAUERUND DANKKARTEN STERBEBILDER, SCHNELL UND PREISWERT Zimmermann GmbH Druck & Verlag Einsteinstraße 4 85716 Unterschleißheim Tel. (0 89) 32 18 40-0 Fax (0 89) 3 17 11 76 info@druck-zimmermann.de TRAUERANZEIGEN Das einzig Wichtige im Leben sind die Spuren der Liebe, die wir hinterlassen, wenn wir gehen (Albert Schweizer) Danksagung Wir bedanken uns ganz herzlich für die große Anteilnahme zum plötzlichen Tod von Gerd Jankus Ein besonderer Dank gilt Pastorin Frau Pfeiffer für die würdevolle und einfühlsame Gestaltung der Trauerfeier. Martina und Tim Bruckmannring 9·85764 Oberschleißheim·Tel. 0 89/315 54 38 Fax 0 89/315 40 96 · www.steinmetz-sturm.de • Große Grabmalausstellung • Kreuze aus Schmiedeeisen, Bronze, Edelstahl • Einfassungen, Abdeckplatten • Schriftgravuren, Restaurierung von Grabanlagen Umfassende individuelle Beratung »Seit1947«
Sa.,

Bettag Kinder im Grundschulalter sind herzlich eingeladen zum ökumenischen Kinderkirchen tag am Mittwoch, 16. November, ab 9 Uhr im Pfarrzentrum St. Wilhelm. Das Thema ist „Komm, mach mit!“. Mit Pastoralreferent Michael Raz und Pfarrerin Martina Buck. Bitte im Pfarramt melden.

Chor: Der Chor probt montags um 19.30 Uhr unter Leitung von Martina Wester, neue Chor mitglieder sind herzlich willkommen!

Schleißheimer Wichtelbande: Die offenen ElternKind-Gruppen der Nachbarschaftshilfe Ober schleißheim e. V. treffen sich freitags im Gemein desaal der evang. Trinitatiskirche: kleine Wichtel (3 Monate 1 Jahr) freitags von 9.00 bis 10.00 Uhr; große Wichtel (ca. 1 2 Jahre) freitags von 10.15 bis 11.30 Uhr. Das Angebot ist kostenfrei, um verbindliche Anmeldung wird gebeten unter wichtelbande-osh@gmx.de.

Allgemeine Hinweise:

Wenn Sie ein persönliches Gespräch mit Pfarre rin Martina Buck wünschen, melden Sie sich bitte im Pfarramt (Telefon 3150441).

Alle aktuellen Informationen finden Sie auf der Homepage www.trinitatiskirche.org

Ev.-Luth. Kirchengemeinde Eching

Bitte beachten Sie weiterhin unsere Empfehlun gen für den Gottesdienst:

- Empfehlung einer FFP2-/mediz. Maske

- Keine Teilnahme für aktuell Covid-19 positiv Getestete oder Personen, die unter Husten und Fieber leiden

- Bitte um Einhaltung der bekannten Hygieneund Abstandsempfehlungen

Vielen Dank für Ihr Verständnis!

So., 30.10., 11.00 Uhr Elfer-Gottesdienst (Pfrin M. Zahed)

Mo., 31.10., Reformationstag, 9.30 Uhr Frauen kreis, Kontakt Fr. Schubert, Tel.: 089-319 41 18 (nicht in den Schulferien); 19.00 Uhr Treffen der Anonymen Alkoholiker, Kontakt Hans, Tel.: 0175-400 34 36; 20.00 Uhr Gebetskreis, Magda lenenkirche

19.00 Uhr Zeitansage-Gottesdienst in Freising, Himmelfahrtskirche

Mi., 02.11., 14.30 Uhr Senioren- und SeniorinnenTreff im Gemeindezentrum; 19.30 Uhr Magdale nenchor, Gemeindezentrum, Kontakt A. Sachs, Tel.: 089-327 317 51

Do., 03.11., 19.00 Uhr Posaunenchor, Magdale nenkirche. Wir suchen neue Mitglieder! Kontakt A. Lösch, Tel.: 089-317 41 32 Internet: www.magdalenenkirche.de

Kath. Pfarramt Eching

St. Andreas

Sa., 29.10., 18.00 Uhr (bis 18.30 Uhr) Beichtgele genheit im Pfarrsaal; 18.15 Uhr Rosenkranzge bet für den Frieden; 19.00 Uhr Gedenkgottes dienst für Albert Neuhauser

So., 30.10., Kollekte für die Pfarrkirche, 10.00 Uhr Eucharistiefeier

Di., 01.11. Allerheiligen, 8.30 Uhr Wortgottesfeier in Dietersheim und anschließend Gräberseg nung; 10.00 Uhr Eucharistiefeier mit anschl. Grä

bersegnung Alt-Andreas; 14.00 Uhr Andacht auf beiden Friedhöfen mit anschließender Gräber segnung

Mi., 02.11., Allerseelen, 19.00 Uhr Eucharistie feier mit Verstorbenengedenken

Do., 03.11., 18.00 Uhr Eucharistiefeier mit Ver storbenengedenken in Dietersheim Fr., 04.11., 10.00 Uhr Eucharistiefeier mit Eucha ristischer Andacht Vorschau Sa., 05.11., 17.00 Uhr (bis 17.30 Uhr) Beichtgele genheit im Pfarrsaal; 17.15 Uhr Rosenkranzge bet für den Frieden; 18.00 Uhr Vorabendgottes dienst So., 06.11., Kollekte für den Korbiniansverein, 10.00 Uhr Eucharistiefeier, Kinder- und Frmilien gottesdienst, anschl. Kirchenkaffee Wir beten den Rosenkranz

- jeden Montag (außer an Feiertagen) um 14.00 Uhr in Neu-Andreas.

- jeden Mittwoch (außer an Feiertagen) eine Stunde vor dem abendlichen Gottesdienst. Ort und Zeit bitte dem Gottesdienstanzeiger ent nehmen.

- am Samstag eine Dreiviertelstunde vor der Vor abendmesse Veranstaltungen und weitere Angebote Mo., 02.11., Pfarrgemeinderatsitzung um 19.00 Uhr im Konferenzraum Di., 08.11., Seniorennachmittag um 14.00 Uhr im Pfarrheim Di., 08.11., Frauenbund, 8.00 Uhr Gottesdienst mit anschl. Frühstück Offener Kleiderschrank Ausgabe Do., 03.11., 17.30 - 19.00 Uhr Internet: www.st-andreas-eching.de

Evang.-Luth. Pfarramt Garching

Laudatekirche

So., 30.10., 10.00 Uhr Gottesdienst (Prädikantin Köhler) mit Kindergottesdienst; 19.00 Uhr Treffen der Anonymen Alkoholiker Mo., 31.10., 19.00 Uhr Gemeinsamer Gottesdienst zum Reformationsfest des Prodekanats Mün chen Nord mit Dekan Felix Reuter und Team, mit Abendmahl in der Dankeskirche München-Mil bertshofen, Keferloherstr. 66, 80807 München Di., 01.11., 19.30 Uhr Chorprobe

Kath. Pfarrgemeinde St. Severin

Garching

St. Severin Sa., 29.10., 18.15 Uhr Beichtgelegenheit bis 18.45 im Pfarrhaus oder nach tel. Vereinbarung, 326 74 20; 19.00 Uhr Vorabendmesse So., 30.10., 10.00 Uhr Pfarrgottesdienst Di., 01.11., Allerheiligen, 10.00 Uhr Pfarrgottes dienst mit besonderer musikalischer Gestal tung; 14.00 Uhr Gräbersegnung auf dem Kirch friedhof; 15.00 Uhr Gräbersegnung auf dem Stadtfriedhof

Mi., 02.11., Allerseelen, Kollekte für die Priester ausbildung in Mittel- u. Osteuropa „Renovabis“, 9.00 Uhr Hl. Messe mit besonderer musikali scher Gestaltung, anschl. Gräbersegnung auf

potheken-Notdienst Samstag, 29. Oktober 2022

für Ismaning, Garching, Haimhausen Oberschleißheim, Unterschleißheim, Eching und Neufahrn

Delphin-Apotheke

Feierabendstr. 51, Oberschleißheim 3 15 05 02 Sonntag, 30. Oktober 2022

Isar-Apotheke

Schleißheimer Str. 30a, Garching 24 41 60 60 Montag, 31. Oktober 2022

Apotheke am Bach Hauptstr. 66, Goldach 08 11/9 86 00 Amalien Apotheke

Bahnhofstr. 17, Ismaning 96 84 54 Dienstag, 1. November 2022

Stadt-Apotheke

Münchener Str. 7, Garching 32 90 91-0 Mittwoch, 2. November 2022

St.-Korbinians-Apotheke Bezirksstr. 32, Unterschleißheim 3 10 52 48 Donnerstag, 3. November 2022

Schloss-Apotheke Schlossstr. 9, Ismaning 96 91 45 Spitzweg-Apotheke Echinger Str. 13, Neufahrn 0 81 65/44 29 Schloß-Apotheke Hauptstr. 4, Haimhausen 0 81 33/20 20 Freitag, 4. November 2022 Götz-Apotheke

Untere Hauptstr. 5, Eching 3 19 21 19 Götz-Apotheke Hauptstr. 23, Fahrenzhausen 0 81 33/81 32

Notrufnummern

Polizei Notruf

Polizei Oberschleißheim

Feuerwehr/Notarzt

Frauen-Notruf

Giftnotruf

Tierrettung

dem Kirchfriedhof; 10.45 Uhr Hl. Messe im Seniorenzentrum; 19.00 Uhr Pfarr-Requiem (Chor St. Severin) mit besonderem Gedenken an die Verstorbenen

Do., 03.11., 19.00 Uhr Hl. Messe

Fr., 04.11., 9.00 Uhr Hl. Messe

Rosenkranz von Montag bis Freitag um 15.30 Uhr ab 02.11. wieder in St. Severin! St. Franziska Romana

So., 30.10., 8.30 Uhr Hl. Messe

Di., 01.11., Allerheiligen, 8.30 Uhr Hl. Messe Mi., 02.11., keine Hl. Messe in St. Franziska Romana

Termine/Infos/Veranstaltungen

Mo., 31.10., 18.30 Uhr Treffen der Legio Mariae (Legiozimmer)

Mi., 02.11., 19.00 Uhr Gebetskreis in St. Fran ziska Romana

LANDKREIS-ANZEIGER 21Samstag, 29. Oktober 2022 KIRCHENTERMINE/APOTHEKEN
110
PI 48 089 315 64 0
112
089 76 37 37
089 19 240
München e.V. 01805 84 37 73 Sucht-Hotline 089 28 28 22
Der Notdienst endet jeweils am Folgetag um 8.00 Uhr früh.

TERMINE

Hoffnung auf weitere Normalisierung des Trainingsbetriebs Zwei neue Vorstandsmitglieder beim SC Eching Karate

Der Echinger Karateverein hat die Coronazeit insgesamt recht gut überstanden. Dieses Fazit zog Christian Martin, erster Vorsitzender, bei der Mitgliederversammlung am 11. Oktober im ASZ. Trotz einiger Schwankungen ist die Mitgliederzahl in den letzten vier Jahren konstant geblieben. Der Verein hat derzeit 102 Mitglieder, 39 davon sind Kinder bis zu 14 Jahren. Einen großen Beitrag in der Zeit der Pandemie hat das Onlinetraining geleistet. Über das Internet waren dabei nicht nur Nachbarvereine aus Baden-Württemberg zu Gast, auch internationale Trainer aus Brasilien, Japan und Italien gaben dort spannende Trainingseinheiten. Bei der Versammlung wurde ein neuer Vorstand gewählt. Dieser hat nun zwei neue Gesich ter. Lisa Lamprechtinger übernimmt das Amt der Schriftführerin. Tobias Scheuermann ist Jugendwart. Beide neuen Vorstandsmitglieder sind seit Jahren im Kindertraining aktiv, so dass die Nachwuchsförderung jetzt auch im Vorstand einen großen Schwerpunkt bildet. Im Amt bestätigt wurden Christian Martin als erster Abteilungsleiter und Dr. Dietmar Wagner als zweiter Abteilungsleiter. Kassierin bleibt weiterhin Susanne Haro. Sie konnte auf der Ver sammlung darlegen, dass die Finanzen der Karateabteilung „in einem sehr guten Zustand“ sind. Aus dem Vorstand verabschiedet wurden Marco Fükelsberger und Gerhard Hroß, die nach zehn bzw. acht Jahren aus zeitlichen Gründen ausscheiden. Der Verein dankte beiden, die weiterhin als Ansprechpartner aktiv bleiben, mit einem Geschenkkorb.

Christian Martin drückte die Hoffnung aus, dass sich der Trainingsbetrieb weiter normalisiert. So seien in diesem Jahr bereits 38 Gürtelprüfungen möglich gewesen. Das jährliche Training mit Sensei Seiji Nishimura konnte Ende Juli stattfinden. Und 9 Karateka aus Eching besuchten das internationale Karatecamp in Langenau. Alle aktuellen Informationen auf sceching-karate.de.

Am Donnerstag, 3. November um 19.30 Uhr lädt Leon Eckert, Bundestags abgeordneter für Freising, Pfaffenhofen, Schrobenhausen, gemeinsam mit Johannes Becher, Landtagsabgeordneter, Jan Holze und Katarina Peranić, beide Vorsitzende der Deutschen Stiftung für Engagement und Ehrenamt (DSEE), Ehrenamtliche aus dem Landkreis Freising in das Stadtcafé Stüberl des Lindenkeller ein.

Bei der Veranstaltung zum Thema „Wie geht es weiter? Ehrenamt neu erfin den“ stehen nach einem kurzen Input die Erfahrungen und vor allem die Probleme und Hindernisse der Ehrenamtlichen im Mittelpunkt. In ihren Funktionen als Innenausschussmitglieder im Deutschen Bundestag und

im Bayerischen Landtag wollen Leon Eckert und Johannes Becher den Aus tausch nutzen, um konkrete Anknüpfungspunkte für eine Verbesserung der Arbeit der Ehrenamtlichen zu finden. Eckert, Stiftungsratsmitglied der DSEE, hat dazu auch die Stiftungsvorsitzenden Katarina Peranić und Jan Holze der DSEE nach Freising eingeladen. Eckert, Becher, Peranić und Holze freuen sich auf konstruktive Gespräche, die zur Verbesserung der prakti schen Arbeit im Ehrenamt im Landkreis Freising beitragen sollen. Alle Interessierten sind herzlichen eingeladen. Für eine bessere Planung ist eine kurze formlose Anmeldung an leon.eckert.wk@bundestag.de gewünscht, aber nicht verpflichtend. Emily Rumpf, Wahlkreisbüro Leon Eckert

Samstag, 29. Oktober 2022NEUES AUS ECHING UND NEUFAHRN22 LANDKREIS-ANZEIGER
Der neu gewählte Vorstand des SC Eching Karate (v.l.): Jugendwart Tobias Scheuermann, Kassierin Susanne Haro, Abteilungsleiter Christian Martin und zweiter Abteilungsleiter Dr. Dietmar Wagner. Nicht auf dem Bild zu sehen ist die neue Schriftführerin Lisa Lamprech tinger, die an dem Termin verhindert war.
Für Ehrenamtliche und Interessierte im Landkreis Freising Vereinsforum „Wie geht es weiter? Ehrenamt neu erfinden“

Exklusives Reihenhaus mit hochwertiger Ausstattung in familienfreundlicher Lage von Unterschleißheim Bj. 1986, ca. 140 m² Wfl.,ca. 162 m²

Grdst., 4,5 Zi.+ Hobbyraum, Winter garten, EBK mit Fußbodenheizung, Kamin, zwei Balkone mit Vergla sungsmöglichkeit, Einliegerwohnung möglich, zwei Terrassen, ab sofort bezugsfrei, V: 111,9 kWh, Erdgas, KP: 1.195.000,- €, zzgl. 40.000,- € TG-Stellplatz+Garage, zzgl. Käufer provision: 2,38 % inkl. MwSt. reineck@immo-mnord.de 089 / 31 90 16 79

3-Zi.Whg. in Münch.-Zamdorf, kompl. renov., seniorenger., TG, Auf zug, Tel. 0178/1805323

Attraktive 3-Zi-80m²-Wohnung in Ottobrunn von Privat zu verkaufen. Tel:0176/22630429

Einfamilienhaus Bargteheide mit sehr großem Garten 170/900 -reno víert und saniert 2018- 825.000,Euro. Info unter meyenborg@goo glemail.com Bitte keine Makler Lerchenau, idyll. RH , Bj. 92 , ca. 175 m² Wohn-/Nutzfl., EBK, E-Gge., 920.000,-, Schneider Immob. 089/ 3135815 o. 0172/9975520

3.5 Zi. Whg. Krailling, ca. 79m², 1.OG Balkon, verm. , VB, whg_Pentenrieder @ outlook.com

Wir SUCHEN Zinshäuser/MFH’s für den Eigenbestand. Munich REAL Invest GmbH Tel. 089-40908887 info@mreinv.de

Hobby Handwerker sucht sanie rungsbedürftige Wohnungen & Häu ser. Tel. 0172/3229843

4-köpf. Familie sucht Haus o. Bau grundstück i. Großhadern / Hadern / Blumenv./Gern von privat - Vermitt lungsprov. 8.000,- € Wir freuen uns über Ihre Nachricht! home4four @magenta.de

Bauträger sucht Grundstücke email: info@gfn-group.com mobil: 0172/8916265

Kaufe ETW/ Haus/ Grund, sofort. Kaufentscheidung, Tel. 089/ 663366

Privatmann sucht Wohnung zum Kauf. Tel. 0179/2945294

Mietgesuche privat und gewerblich

Su. ab sof. trockenen Abstellr., mind. 8 m², gerne mehr, Sendling, Westend, Maxvorst., mtl. max. € 100,- Tel. 0163/ 7711787

25 jähr. Angestellter sucht Zimmer bis 500.-€ Dawid Ghasemi, München Tel. 017664751973

Student sucht Zimmer, Privat Zim mer max. 450,- € warm.Tel: 0176/ 42734002

Münchner Ehepaar sucht 3-Zi.Whg. ab 01/2023. Wir, 36/33 Jahre alt, Aka demiker in Festanstellung freuen uns auf Nachwuchs und suchen eine 3Zi.Whg. in zentr. Lage ab 80 m² zur langfristigen Miete. Nichtraucher, ohne Haustiere. Danke für Ihren Anruf! Tel. 0176/64091928

Ben (32) & Lena (29) suchen ein naturnahes Zuhause ab 50 m², 1.400,€ warm, Tel. 0160/8057505

Beamtin(21)sucht ab sofort 1-2Zi.Whg im Zentrum Münchens, ab 30 m², bis ca. 800,- € warm, Tel. 0151/ 23260488

Nette kleine Familie, Heilp. Förderleh rerin (40) u. prom. Biologe (42) im öD, 5jähr. Tochter, 2 Katzen, sucht ruhige 3Zi.-Whg. im Mü. Norden, inkl. Umland, warm bis 1.500,- €, 01522/1670022, familie-oeder@gmx.de

Berufstätiges Paar sucht eine 2-3 ZiWhg. in Feldmoching/Lerchenau mit Balkon/Terrasse. Für max. 1450,- € warm. Wir freuen uns auf Ihren Anruf:015905301521

30J. sucht 2Zi-Whg, bis € 900,- WM ab 40qm, EBK, Balkon, Zentrum Tel. 0176/20067766

Die nächste Ausgabe erscheint am Samstag, 5. November 2022

Anzeigenschluss ist am Mittwoch, 16.00 Uhr. Bei fertigen Druckunterlagen Donnerstag, 12.00 Uhr. Textänderungs- und Platzierungswünsche können nachher nicht berücksichtigt werden.

Einsteinstraße 4 85716 Unterschleißheim web druck-zimmermann.de

Stellenangebote

email info@ druck-zimmermann.de tel +49 (0)89 321 840-0 fax +49 (0)89 317 11 76

2-Zi-Whg in OSH, 52 qm, teilmöb liert, EBK, Blk, 900 € + NK, TG 80 €, 2 MM Kaution, Mail: karl.statzber ger@freenet.de

1 ZW, 34 m², 810.-, 089/6806716

Wohnung Kitzbühel Zentrum, 75 m², € 1.495,-ink,T. +436801203085

Karlsfeld: 1-Zi-App., 33 m², 4.OG, EBK, Balk., Keller, KFZ-St., 600,— + NK 80,—, ab sofort, Tel. 089/ 7554402

Mü. Nord, möbl. Zi., WE-Heimf. bevorz., 470,- € + 60,- € Gas; Tel. 089/ 3165422

Möbl. Zimmer für 2 Monate , je 450,- € Tel. 089/3202100

WG-Zi, 360.-, Tel. 089/6806716

2-Zi-Whg ges., Ukrainische Flücht lingsfam., privat untergebr. su. drin gend Whg in USH, Tel. 089-3106794

Ehepaar sucht ab sofort kl. Haus/ DHH zum Kauf. Umkreis Fahrenzhau sen, Lohhof, Ush, Eching, Hohenkam mer. Tel./ Whatsapp 0163-4634676

Referentin bei Bosch, 30J. sucht helle, ruhige Whg. ab 40m², ideal. inkl. EBK, Blk, Kel. längerfristig bis max. 1200,- € warm. Vzw. Giesing o. Umgeb. Einzug flex., spät. 01.04.23 Tel. 01577/6620569

Festangestellter (33) sucht 1-2 Zi.Whg. bis 850,- € warm m. EBK u. Blk., Tel. 0151/64089217

Bärtiger Bursche sucht Bleibe bis € 1.200,- kalt, 2-3 Zimmer in Muc, + 4 km, Tel. 0176/96519160

Festangestellter sucht 1,5 - 2-Zi. Whg., 29 J., NR, keine Tiere, mit Blk. im Münchner Raum, bis € 1.000,- warm, Tel. 0176/57647403

Arztfamilie sucht neues Zuhause Wir suchen langfristig ein Haus mit kleinem Garten im Raum Fürsten ried, Solln, Hadern, Pullach. Wir sind eine ruhige Familie mit einer 15jäh rigen Tochter und benötigen drin gend etwas mehr Platz. Tel. 0172/ 3902081

Professor mit zwei Töchtern sucht RHa./Whg. mit 3 Zimmern oder mehr im Münchner Westen (Aubing, Karls feld, Lochh.) längerfristig zu mieten. Miete bis 1800 €. Email: miet suche1@gmail.com Tel. 089/20206090

IT-ler, 27, sucht in Schwabing Whg. bis 750,- €, 0157/53250178

LANDKREIS-ANZEIGER 23Samstag, 29. Oktober 2022 IMMOBILIEN-/STELLENANZEIGEN
Immobilien-Gesuche privat und gewerblich Immobilien-Angebote privat und gewerblich Mietgesuche privat und gewerblich Mietangebote privat und gewerblich
Samstag, 29. Oktober 202224 LANDKREIS-ANZEIGER info@landkreis-anzeiger.de IMMOBILIEN-/STELSTELLENANZEIGEN Stellenangebote

Wir sind ein ständig expandierendes Unternehmen und vertreiben verschiedene wöchentlich erscheinende Anzeigenblätter im Münchner Norden. Zur Stärkung unserer Verkaufsmannschaft suchen wir Sie als

Medienberater/in (m/w/d)

Juniormedienberater/ in (m/w/d)

für den Anzeigen- und Beilagenverkauf im Angestelltenverhältnis

Wir bieten einen zukunftssicheren Arbeitsplatz, Festgehalt plus Provision sowie einen Firmenwagen nach Einarbeitungszeit.

Ihre Aufgaben: – Pflege und Betreuung des bereits bestehenden Kundenstammes, Neukundenakquise mit dem Ziel, langfristige Geschäftsbeziehungen zu generieren.

Ihr Profil: Sie verfügen über eine abgeschlossene Berufsausbildung.

Erfahrung im Verkauf (idealerweise im Außendienst) haben Sie bereits oder fühlen sich dazu berufen.

Ihre aussagefähigen Bewerbungsunterlagen mit Angabe Ihrer Gehaltsvorstellungen senden Sie bitte an: Landkreis Anzeiger GmbH z.Hd. Herrn Zimmermann Einsteinstr. 4 85716 Unterschleißheim p.zimmermann@druck-zimmermann.de

Stellenangebote

Su. deutschspr. Putzfrau für 1 x Wo., (5 Std.), putzen u. bügeln, Tel. 01636781100

2 nette Kollegen/innen für Aussen dienst gesucht. Ohne Verkauf, KFZ, Prov., Festgehalt, tolles Team und Auf stieg. Tel. 089/5454350

Kiosk/Laden m.Post in Harlaching su. VZ/TZ u.450€,0176-649 557 61

Nebenberufliches Einkommen im Homeofce! Fa. Semmler Tel. 01573/ 7310784

Aushilfen für Konfektionier / Ver sandarbeiten in Ismaninger Druckerei gesucht! Hast du MO-SA Zeit und bist körperl. belastbar? Dann melde dich unter Tel. 089-689980-13 oder ofce@ druck-kultur.de

Biete 450€ Job für GA/LA ggf. FS3 Tel. 0175/1232650

KUNDENBERATER 40 € / Std. HauptNebenberuf! Tel. 089/2441153-19

Zuverl. erfahrene Haushaltshilfe (NR) zum Reinigen und Bügeln für gepflegten Haushalt in der Fasanerie Nord gesucht! Freitags, 3-4 Std. Gute Deutschkenntnisse, möglichst Auto, nur gegen Rechnung. Ansprechpart ner: FrauBaumann, Tel. 0175/4387507 oder Baumann@Schreiner-Innovation .com

Teamverstärkung gesucht! Hand werksbetrieb im Westend su. Elektro fachkraft (m/w/d), VZ, Firmenauto, freie Zeiteint. Wir freuen uns auf Sie! Fa. Pfeilstetter GmbH, Tel. 0179/2945081

MFA-Arzthelferin (m/w/d), Allge meinpraxis, Vollzeit, Teilzeit mögl., Wir freuen uns über ihre B ewerbung. Gemeinschaftspraxis Dr. Weber & Schlensog, Wörthstr. 12, 81667 Mün chen, Tel. 089/448416-0, weber.schlen sog@gmx.de

Physios (m/w/d) gesucht. Praxis in Nymph.-Neuh. sucht mehrere Phyisos, 20-40 Std. ab sofort/später. Näheres T.: 0171/7604324

Küchenhilfe ( m/w/d) auf € 520,- Basis ab 06:00 Uhr, 2 Tage/Woche Mo-Fr., gourmetkultur-breuer.de, Tel. 089/ 36090040, München-Freimann Fahrer (m/w/d) auf € 520,- Basis gerne auch Frühpensionisten für Einkauf und als Springer, Mo-Fr., gourmetkul tur-breuer.de Tel. 089/36090040 Mün chen-Freimann

Samstag, 29. Oktober 202226 LANDKREIS-ANZEIGER STELLENANZEIGEN
Unser wunderschöner familiärer Kindergarten sucht zum nächstmöglichen Zeitpunkt eine Kinderpflegerin/Erzieherin (m/w/d) für 35 Wochenstunden oder mehr

Küchenhilfe für unser Jugendwohn heim am Milbersthofener Platz 10 gesucht. Arbeitszeit von 15-21Uhr, (30Std.p.Wo) Kath. Sozialwerk e.V. da niela.boboc@kjsw.de Tel. 089/3563500

Reinigungsfirma sucht per sofort auf Minijob-Basis Mü. Stadtmitte Mo-Sa morgens zwischen ca. 8:30 - 10 Uhr Tel. 0151/12189368

Haush.Hilfe nur RECHG. oder MINI JOB, berufstät. Ehepaar in gepflegtem Haushalt 1x wöchentlich im Wechsel Fr/Sa. Taufkirchen Tel. 0173/9476555

Suche Reinigungskraft nach Unter schleißheim am morgen Tel. 089/ 96116967, info@dallmayer.net

Zuverl. Haushaltshilfe , jed. Die. 1418 Uhr Minijob Schwabing Nord, gute Bezahlung - Katze im Haus, Tel. 089/ 30779815

Winterdienst gesucht, auch Rentner, Feldmoching, Hasenbergl, OEZ; Tel. 0157/85552030

Priv. s. gute Putzfrau M-Nord 4 St alle 14 Tage Tel. 0162/1611795

Fahrzeugüberführung a. gew. Basis, Info unter Job@AJ-Services.de

Hausmeisterei su. Winterdienst (m/w/d) mit PKW, auf € 520,-Basis, T. 0160/7274754

Wir suchen Kaufmännische Mitar beiter (m/w/d) in TZ. Bewerbung an: info@viva-deluxe-reinigung.de

Feldmoching: Haushaltshilfe für älteren Herrn gesucht für Einkaufen & Kochen, 4 Tage, 2-3h am Tag, Tel. 089/ 255520141

*Zimmerreinigungskraft* oder *Frühstückskraft* (m/w/d) in einem der besten Hotels Mün- chens direkt am Ostbahnhof. Privatgeführtes Hotel, sehr gut zu erreichen mit MVV. MOMA1890 Boutique Hotel bewerbung@moma1890.com Tel: 089 4482424,Hr.Schlicht

Zahnarztpraxis Mü-Stadtmitte, sucht f. den Empfang Die. nachm. Mitarbei ter/in (m/w/d), gerne Rentner/in, Tel. 0151/25294016

Mitarbeiter/in (gerne Rentner) f. Winterdienst, Mü. Ost + Süd, nebenbe ruflich, mit FS gesucht, Tel. 089/ 7109090

Su. Bürokraft f. Werbeartikel, 4x4 Std., pro Wo., www.albene.de

Wir suchen einen Mitarbeiter auf Vollzeit für ein Sport- wetten Laden in München Ost. Führungszeugnis u. Fachkennt nisse sind erforderlich. Tel: 0172/6666777

Zuverlässige Putzhilfe für 2-3 Stun den in der Woche gesucht im Bereich Maxvorstadt Tel. 089/ 1234788 anna.roecker@t-online.de

Wir suchen dringend eine Erziehe rin/Kinderpflegerin oder pädagogisch qualifizierte Mitarbeiterinin Teilzeit mit 50 Tage Urlaubsanspruch. Die Kinder freuen sich auf deine Mail an kontakt@kidscare-muenchen.de Su. ab sofort Spül- u. Reinigungs kraft (m/w/d) in Teil- o. Vollzeit in Moosach. Globus Bau & Gebäudema nagement . T. 0152/28763325

MFA/KS (m/w/d) auf Minijob-Basis gesucht für kardiologische Praxis in Freimann/Kieferngarten, 8:00 - 12:00 Uhr, 1-2 Tage pro Wo. (flexibel) pra xis80939@gmx.de oder Tel. 0179/ 76522540

Reinigungskraft Minijob Mü.Gründwalder Str. Di.+Do. 07-09:30 oder 17-19:30 Uhr T:089/9043969

Wirtshaus am Hauptbahnhof sucht ab sofort zur Aushilfe Koch, Küchen hilfe mit Erfahrung und Servicekräfte (m/w/d) Tel. 017 3/3223743

Verkäufer Quereinsteiger , Großun ternehmen erweitert Premium Ver kaufsprodukte. Kurzinfo Tel. 0173/ 2601830, FS erforderlich Aral-Tankstelle Dachau sucht Unter stützung in Voll- und Teilzeit sowie Minijob. Ansprechpartner Alexander Spomer 0177/8344819 oder alexan derspomer@gmx.de

Putz- und Bügelfrau gesucht für 2Personen-HH in Nord-Schwabing, ca. 5h/Woche, € 19,-/h, nur auf Rechnung oder angemeldet, Sprachen D, E, F, Tel. 0151/61109353

Haushaltshilfe, deutschsprachig und zuverlässig baldmögl. für 2-Pers.Haushalt, U-Bahn Laimer Platz, lang fristig für 2 x 4 Std./Wo. auf MinijobBasis gesucht. Bewerbung an: syhe_de@yahoo.de o. Tel. 089/ 80924504

MECHANIKER (m/w/d) für Bauma schinen ab sofort gesucht. 450,- € oder VZ.Standort Markt Schwaben M.H. Preis GmbH, Tel. 089/45151964

LAGERIST (m/w/d) gesucht, € 450,oder Vollzeit. Standort Markt Schwa ben M.H. Preis GmbH,089/45151964

BAUHELFER Kanalbau gesucht. Gute Bezahlung und Zimmer vorhan den. M.H. Preis GmbH Tel.: 089 / 451 519 64

Wir suchen zum 09.01.2023 eine(n) Werkstattausbilder/in Elektrotechnik oder Schreinerei (Meister/in, m/w/d) für die fachpraktische Ausbildung in Technik (unbefristet; Teilzeit 50 % - 16 Werkstattstunden). Näheres zur Tätigkeit und zum Bewerbungsverfahren unter www.fosbos-ush.de.

Stellenangebote LANDKREIS-ANZEIGER 27Samstag, 29. Oktober 2022 STELLENANZEIGEN

Verwaltungsangestellte/n (m/w/d) in Teilzeit (ca. 85%)

Über uns Unser Leitbild: „Kompetent, engagiert und kundenfreundlich“ Wir – ein hochmotiviertes Team – verstehen uns als eine Dienstleistungseinheit für unsere Lehrstühle an der TUM School of Computation, Information an Technology (CIT), die zum 01.10.22 als Zusammenschluss der Fakultäten Informatik, Mathematik sowie Elektro- und Informationstechnik gegründet wurde. Wir verwalten Forschungsgelder der CIT von nationalen, europäischen und internationalen Geldgebern. Dazu gehören sowohl führende Industrieunternehmen als auch institutionelle Geldgeber wie Landes-/Bundesministerien, die Deutsche Forschungsgemeinschaft (DFG) und Stiftungen. Zudem stellt die Europäische Union Mittel in erheblichem Umfang für Spitzenforschung an unserer School bereit. Als eine der Säulen des School Office bilden wir die Schnittstelle zur zentralen Verwaltung der TUM.

Ihr Profil Wir wünschen uns eine/n Beschäftigte/n mit kundenfreundlicher Arbeitsweise, Freude im Umgang mit Menschen, Flexibilität, rascher Auffassungsgabe, Eigeninitiative sowie die Bereitschaft zur Einarbeitung in neue Aufgabengebiete. Sie bringen kaufmännische Kenntnisse mit und sind sicher im Umgang mit MS-Office und Internet. Für die Arbeit in einem internationalen wissenschaftlichen Umfeld erwarten wir solide Englisch-Kenntnisse sowie interkulturelle Kompetenzen. SAP Kenntnisse sind von Vorteil. Eine verwaltungsbezogene Ausbildung ist nicht zwingend erforderlich.

Ihr Aufgabengebiet umfasst die Finanzadministration unserer Forschungsvorhaben. Dies beinhaltet u. a. die Verbuchung sämtlicher Eingangs- und Ausgangsrechnungen mit SAP R/3 unter Beachtung der BayHO. Zudem generieren Sie Ausgangsrech- nungen für unsere Industriepartner. Ebenso gehört die Erstellung von Mittelanforderungen (bei unseren institutionellen Geldgebern) sowie von Zwischen- und Schlussverwendungsnachweise nach den Vorgaben der jeweiligen Dritt- mittelgeber zu Ihren Tätigkeitsfeldern.

Wir bieten Ihnen abwechslungsreiches Arbeiten durch eine Vielzahl interessanter Aufgaben in einem professionellen, kommunikativen und internationalen Arbeitsumfeld. Die Beschäftigung ist zunächst für 2 Jahre befristet, sofern dem keine rechtlichen Gründe entgegenstehen. Eine Entfristung wird angestrebt. Die Bezahlung erfolgt nach TV-L Tarifvertrag bis zur Entgeltgruppe E6. Grds. ist der Arbeitsplatz im Rahmen der an der TUM geltenden Regelungen Homeoffice-geeignet.

Die TUM strebt sowohl Diversität im Personal als auch eine Erhöhung des Frauenanteils in Bereichen, in denen Frauen unterrepräsentiert sind, an. Schwerbehinderte werden bei ansonsten im Wesentlichen gleicher Eignung und Qualifikation bevorzugt.

Bewerbung

Wir freuen uns auf Ihre aussagekräftigen Bewerbungsunterlagen. Senden Sie diese bitte vorzugsweise per E-Mail in einem einzigen PDF-Dokument an sb-personal@cit.tum.de unter Angabe von AZ: IN2022-23 bis spätestens 12.11.2022

Technische Universität München School Office – Service Personnel / TUM School of Computation, Information and Technology (CIT), z.Hd. Fr. Derbsch, Boltzmannstraße 3, 85748 Garching

Hinweis zum Datenschutz:

Im Rahmen Ihrer Bewerbung um eine Stelle an der Technischen Universität München (TUM) übermitteln Sie personenbezogene Daten. Beachten Sie bitte hierzu unsere Datenschutzhinweise gemäß Art. 13 Datenschutz-Grundverordnung (DSGVO) zur Erhebung und Verarbeitung von personenbezogenen Daten im Rahmen Ihrer Bewerbung. Durch die Übermittlung Ihrer Bewerbung bestätigen Sie, dass Sie die Datenschutzhinweise der TUM zur Kenntnis genommen haben.

Stellengesuche

Erf., zuverl. Putzfrau sucht Stelle nur auf Rechnung, 089/21547241

Objekte zum Reinigen gesucht, Büro, Treppe, Praxis, Gastro, usw., Tel. 0152/04901100

24h-Pflege / Haushaltshilfe Tel. 089/ 66653088 Frau Kraus

Hausmeister, Gart. (1 Zi.) Tel. 089/ 96176460

Maurermeister hat noch Termine frei, Tel. 0172/1312326

Su. Putzstelle auf Rechnung; Tel. 0176/26266111

Ich suche Putzstelle privat, Büro, Praxis, Tel. 0151/17287564

Su. Gartenarbeit; Heckenschneiden Tel. 0176/70595449

Suche Arbeit: Haushalt und Pflege, Tel. 0176/63800199

Erf. Frau su. Putzstelle mit Rechnung Tel. 0157/50457134

Handwerker aus Polen - Renovie rung, Tel. 0176/64654005

KASSIERERIN für Kantine sucht Nebenjob auf 520,- € TEL: 089-334510

Einsteinstraße 4 85716 Unterschleißheim tel +49 (0)89 321 840-0 fax +49 (0)89 317 11 76 email info@druck-zimmermann.de Der vor Erscheinungtermin jetzt auch online auf: www.issuu.com/ druckverlagzimmermann

Anzeigenschluss ist am Mittwoch, 16.00 Uhr.

Anzeigenschluss ist am Mitt woch, 16.00 Uhr.

Bei fertigen Druckunterlagen Donnerstag, 12.00 Uhr.

Textänderungs- und Platzierungswünsche können nachher nicht berücksichtigt werden.

Bei fertigen Druckunterlagen Donnerstag, 12.00 Uhr. Textänderungs- und Platzierungswünsche können nachher nicht berücksichtigt werden.

Samstag, 29. Oktober 2022
School Office – Service Finance School of Computation, Information and Technology (CIT) Technical University of Munich Wir suchen für unser Team zum nächstmöglichen Termin eine/n

Stellenangebote

Verschiedenes

Antiquitäten

Kaufe antike Möbel, alte Fotoapp., Münzen/Zinn aller Art, Römergl.,Mili taria, Blechspielz., Armband/Taschen uhren auch def. 089/67974020,0174 / 9847694

Kaufe alte Porzellanfiguren, Hum melfiguren u. Römergläser, Tel. 089/ 67974020, 0174/9847694

Kaufe alte Fotoapparate auch Objek tive, sofort BARGELD, Tel. 089/ 67974020, 0174/9847694

Verkäufe Sonstiges

Buchenbriketts & Brennholz Liefe rung mögl., Fa. Tel. 0151/25752628

BRENNHOLZ Tel. 0160/99808730

Staubsauger naß / trocken Schep pach, € 50,-, 089/3511178

Su. Massagegerät “Massator Super Picco”, Stoll ag, 089/3511178

Verschiedenes

Besticke fast alles 089/1231017

Hemden nähen, Änd., T. 1231017

Baum/Stock, entf. 089/6701170

Hecke schneiden,Fa.T.7233221

Wir bieten laufend frisches Wild und Geflügel aus Bayern Reitmayer Vik tualienmarkt 30 München Tel. 0151 59295452

Verschiedenes

SEO-Optimierung. Wer hilft mir dabei (Jimdo-Website)? München Nord, Tel. 6927011

Geldmarkt

Schnellkredit bis 50.000€ für Arbeitnehmer & Beamte ab eff. Jah reszins v. 0,99% z.B. 5.000,-€ mtl. Rate 44,63,- € oder 20.000,-€ mtl. Rate 178,54,-€. Tel. 08131/319025 oder info@rendivest.de

Wohnungsaufösungen

Münchner kauft Teil-u. kompl. Nach lässe aller Art 015202742216

Küche, 4 Jahre alt, U-Form, Bad, WZ, div. Möbel, HiFi, Elektro, Kleidung / Schuhe Gr. 37 uva. Samstag, 05.11.22 von 10-16 Uhr, Rambertweg 6, 80995

München-Feldmoching

Handwerker

Malern - Tapezieren - Bodenbeläge Renov. Bäder / WC’ s und Fliesen Fa. Tel. 089/7602447,0173/3510450

Elektroarbeiten 0172-9522009

Fa. Schuster: Maler- und Tapezierar beiten, Bodenbeläge aller Art, Fliesen arb., Tel. 0177-54 25 079

Elektro Schreinergeselle deutsch, mont. Lampen, Vorhänge, Möbel Kü., Ikea,Planung 0171/4512362

Malermeister Tel. 089/14002773

Malerarbeiten, Fliesenlegen, Bo denbelagsarbeiten, alle Arten von Renovierungen, komplette Fassaden sanierung 089/17103930

Ausführung sämtl. Malerarbeiten Renovierung, Fassaden, dekorative Wohngestaltung. Malerbetrieb Chris tian Scheller 08165/601446 Malerbe trieb.Scheller@t-online.de

ABBRUCH - Bagger - Erdarbeiten, Abwasser- u. Sickergrubenbau, Kanalsanierung, Firma Bogenrie der, Tel. 0170/3018836

DACHRINNENREINIGUNG, DACH ARBEITEN, Arbeitsbühnen, Spengler/ Zimmerer- / Maurer- / Fassaden- / Malerarbeiten, Firma Bogenrieder, Tel. 0170/3018836

Bodenleger und Malerbetrieb, preis wert und qualitativ, Tel. 0178/ 3757744 Bad/Haus/Umb. 0176/81292261

Ihre Messer sind Stumpf? Und Sie kommen in der Küche nicht mehr voran! Dann rufen Sie uns an, denn wir bringen unseren Service auch vor Ort! Euer Familienbetrieb Landsberger Messer Schleif Service aus der Region. Tel. 0179/4062349 messer schleifservice@gmx.de

Fassadenanstrich bis 11 m H. Holz schutz. Alle Innenarbeiten. Referen zen.Malermeisterbetr. Hausmann, Tel. 089/6888806

Entrümpelung

Entrümpeln, Haus- u. Wohnungs auflösungen, verwertbares Gutes wird angerechnet, schnell & preis wert . Tel. 089/8634706

1A Entrümpelungen zu fairen Prei sen. Beratung & Besichtigung kosten los. Verwertb. wird angerechnet. Fa. Winklmaier 089/45461411

LANDKREIS-ANZEIGER 29Samstag, 29. Oktober 2022 STELLENANZEIGEN/VERSCHIEDENES

Sperrmüllabh.

Gartenbau

Bäume fällen, auch schwierige, Abfuhr, Wurzelstöcke ausfräsen, Pflas terarb., Fa. H. Gruber Tel. 089-4704233, www.baum-faellen.de

Baumfällung / Baumpflege, Kletter technik Tel. 089/25004787 der baumspezialist@yahoo.de Baumfällung und Baumpflege, Wur zelstöcke ausfräsen, Rollrasen verle gen. Info Tel. 089-37505112 www.gar ten-staudinger.de www.die-baumexperten.de Pro blemfällung, Gartenpfl., Wurzel stockfr., Heckenschnitt, Abfuhr, zuverl. u. preisw., FA. Lachner Tel.: 089/90059770

BAUMFÄLLUNG Tel. 089/12075090

Gartenarbeiten, Hecken schneiden, inkl.Ents. Tel. 089/55293051

Baum-, Strauch- und Heckenschnei den, Tel.089/1411090

Platten / Pflasterverl. aller Art, Hecken / Strauchschn. 0171/8067770 Hecke schneiden,Fa.T.7233221

Gärtner sucht Gartenarbeit von pri vat, Tel. 0159/06847627

Gesundheit

Die Anonymen Alkoholiker treffen sich jeden Freitag, 19.30 Uhr in der Kaf kastr. 17, Kirche Philipp Neri

ZAHNIMPLANTAT: Kostenloses Be ratungsgespräch. Studie vergleicht Zahnimplantate der Renommeehersteller, so Zahnimplantate zum Selbstkostenpreis f. Sie. Termin für kostenl. Beratung. Untersuchung / Planung unter Tel. 0176/62862278 oder per mail: Implantatstudie@gmx.de 24-Pflege daheim durch poln. Betreuerinnen Tel. 089/87579060

Kaufgesuche

Suche alles von Märklin, zahle faire Preise! Tel. 089/57084349

Suche älteres Rennrad, Telefon: 08104/628696

Kaufe Comic-CD-LP-DVD, Nachlass und Spiele. Info`s Tel. 0179/5350087 u. 08105/7363111

!! Seriöser Ankauf von Pelzen, Beklei dung, Näh-/Schreibmaschinen, Spiri tuosen, Schallplatten, Musikinstru mente, Rollatoren, Teppiche, Bilder, Zinn, Porzellan, Jagdtrophäen, Pup pen, Bücher, Schmuck, Möbel, Tisch wäsche, Handtaschen, Cameras, Fern gläser !! 0178/2913248 Fr. Hartmann

Suche hochwertige Pelzmäntel/ Jacken, Porzellan, Bekleidung, Handta schen. Tel. 015755484656

Suche Massivholz Möbel und Bau ernmöbel Tel. 0163/8144833

Suche Porzellan Rosenthal, KPM, Hutschereuther, Meißen usw., Möbel, Zinn, Bleikristall, Pelze, Uhren, H. Peter T: 0151/25227392

Dienstleistungen

Fensterreinigung, sauber, zuverl., T.0157/85552030

Erotik

Sabine bes. T. 0151/63844238

Reife Sie besucht, 0176/84636620

Zu verschenken

Wir holen seit 30 Jahren kostenlos gebrauchte Möbel ab! Tel. 68074741 od. 0172/8536421

Hole kostenlos tägl. gebrauchte Möbel, Tel. 0172/9312486

Wir holen tägl. kostenlos Floh marktware ab. 0172 -9312486

Schuhschrank neuwertig weiss beschichtet, 2 Klappfächer 2 Schubla den 85cm lang, 90 cm hoch abzuholen in Schwabing t Tel. 089/335213

2 Gehhilfen (Krücken), 1 Keilsitzkis sen, 1 Kissen l(links abgesenkt), gegen Abholung Tel. 089/795923

Erotische Massagen

Charmante Lenee in Unterhaching, Tel. 0172/8927307

Heiße Blondine, 0178/2944649

Bekanntschaften

Hübsche, jugendl. Sie, 66 J. su. niveauvollen, deutschen Mann bis 68 J. für feste Bez., nur ernstgem. Anrufe, Tel. 01520-2095980

ER sucht SIE, Tel. 96176460

Er 53, sucht SIE zw. 40 + 60 J. für feste Beziehung 0152/52683831

Geschäftsmann in München 48 j. sucht hübsche Frau zwischen 25 j. und 39 j. auch gerne Südländerin. Whatsapp erwünscht. Tel.: 0163 3307107

Ich, m, 50 J., suche nette Dame für spontane Unternehmungen wie Bow ling, Stadtbummel, essen gehen, Spa ziergänge, Kino... Akzeptierst Du, dass ich Dir bestimmte, schicke Schuhe kaufe? Nur SMS: 0162/5877269

Gemeinsam genießen, getrennt wohnen attr. jungebl. Renter freut sich auf Nachricht AB /SMS Tel. 017659415259

Veranstaltungen

Familien System Aufstellung, wöchentlich in A-Kufstein, www.lit zenburger.at

Unterricht

Akkordeon, Steirische, Klavier Tel.: 0171/5003155

Erf. Gym. Lehrer, FOS, BOS und Real schullehrer erteilen Unterricht. in allen Fächern, T. 0171/3525523 KoRe/BWR/Mat.T.0173/5757805

Akkordeon, Steirische, Klavier u.a., Tel. 0171/5003155

Umzüge & Transporte

Umzüge, Entrümpelung, ab 20 € / Std. auch Sa./So. Tel. 089/2021559

HIN & WEG Entrümpelungen/ Umzüge, sauber, günstig u. seriös, Tel. 089/35464545

Entrümpeln, Tel. 089/21298716 Sperrmüllabh., Tel. 089/21298716

Der Münchner Seniorenumzugs dienst: Umzüge, Kleintransporte, Ent rümpel., Fa. Tel. 089/14340643

Computer / EDV

Mobile PC-Hilfe !! Unterstützung bei Problemen mit Computer, Smart phone und Internet. Biete auch Einzel schulungen mit Geduld zum fairen Preis für Senioren und Neueinsteiger. Telefon: 0176/51368535 (Mo.-Fr.)

Biete PC-Hilfe 089/22539826

Magda

Er, 65, gepflegt sucht aufgeschlos sene Frau, Tel. 0152/26907704

08636-7001

Tiefgaragen

Tel: 01739050377

Gottfried-Böhm-Ring

90,Tel. 0172/8283775

Wohnwägen / Wohnmobile

Werbemittellager Logistik Werbetechnik Digitaldruck Offsetdruck Einsteinstr. 4 · 85716 Unterschleißheim Tel. 089 32 18 40-0 · Fax 089 3 17 11 76 info@druck-zimmermann.de www.druck-zimmermann.de SAVE THE FUTURE Wir drucken umweltbewusst, mit Ökofarben, klimaneutral und mit 100% Ökostrom Verschiedenes Samstag, 29. Oktober 202230 LANDKREIS-ANZEIGER Kfz-Anzeigen STELLENANZEIGEN/VERSCHIEDEVERSCHIEDENES/KFZ-ANZEIGEN 1 Satz Winterreifen auf Alufelgen für BMW 5er F10/F11 oder BMW 6er F12/F13 zu verkaufen Tel.: 0172/8591900 KFZ-Zubehör 4 Winterreifen auf Alufelg. für Mer cedes GLC 6 mm Prof. 550.-€ VB Tel. 0177/7299439 Garagen USH, TG Stellplatz zu verm., T.
Isartor Autostellplatz.
Stellplatz. Duplex oben, ab sofort frei. € 100,- monatlich.
TG-Stellpl.
Privates Ehepaar sucht ein Wohnmo bil, Tel. 0178/2913248
Tel. 0175/4980644 Entrümpelung, T.089/55293051
0174-8635998

Sportmosaik Sportmosaik des

Hauptverein Bericht vom BLSV-Kreistag in Oberhaching

In der Sportschule in Oberhaching fand der Kreistag 2022 des Sportkreises München-Land statt. Der Sportverein Lohhof war mit acht Delegierten gut vertreten.

Zunächst gab die Kreisvorsitzende der vergangenen fünf Jahre, Elke Baumgärtner, ihren Bericht über die sen Zeitraum ab. Mit 103.805 Mitgliedern in 190 Ver einen ist der Kreis nach der Stadt München der zweitgrößte BLSV-Sportkreis in Oberbayern. Dann berichtete der Kreisschatzmeister über die soliden Finanzen. In beiden Berichten war natürlich Corona mit den Einschränkungen im Sportbetrieb und den daraus resultierenden rückgängigen Mitgliederzah len ein wichtiges Thema. Dennoch konnte das 50jährige Bestehen des Kreises gefeiert sowie eine Besuchergruppe aus Japan empfangen werden.

Nach dem Bericht der Kassenprüfung wurde die bis herige Vorstandschaft entlastet und dann eine neue Vorstandschaft gewählt. Hier herrschte große Ein stimmigkeit. Elke Baumgärtner wurde in ihrem Amt bestätigt, ebenso die Stellvertreterin Annette Plessl und der Stellvertreter Henry Halbig. Neu ins Amt gewählt wurde als Schatzmeister Noah Kotwan. Als SV Lohhof freuen wir uns dabei ganz besonders, dass mir Henry Halbig und Noah Kotwan jetzt zwei der vier Mitglieder des Kreisvorstandes aus unserem Verein kommen. Einen herzlichen Glückwunsch zur Wahl verbunden mit dem Dank für die Übernahme der Ämter an alle!

13 Judoka des SV Lohhof sind beim Randori-Turnier des VfR Garching auf die Matte gegangen. Im Gegensatz zu klassischen Turnieren geht es dabei weniger um Sieg und Niederlage, sondern um das Kämpfen

sich. Jeder

sucht sich

macht. Wer wie oft wirft oder festhält, ist egal. Für jedes Randori gab es einen Stempel. Und zum Abschluss erhielten alle Teilnehmer eine Medaille und eine Urkunde. So konnten die Lohhofer Judoka Wettkampfluft schnuppern und hatten alle viel Spaß dabei.

Anschließend wurden noch die Delegierten zum ordentlichen Bezirkstag und ordentlichen Verbands tag 2023 gewählt. Auch hier wird der SVL wieder gut vertreten sein.

LANDKREIS-ANZEIGER 31Samstag, 29. Oktober 2022 SPORT
SV Lohhofdes SV Lohhof Geschäftsstelle: Bezirksstraße 27, 85716 Unterschleißheim Telefon 0 89 / 3 10 15 90 Fax 0 89 / 3 10 09 699 Montag – Freitag von 9.00 – 11.00 Uhr, Donnerstag von 17.00 bis 19.00 Uhr Kampfsport Wettkampfluft schnuppern beim Randori-Turnier
an
Judoka
einen Geg ner, mit dem er zwei Minuten lang ein Randori Redaktionsschluss ist am Montag, 31. 10. um 18.00 Uhr
Politik und Sport im Landkreis München sind gut ver netzt von links: Brigitte Weinzierl (Kreisrätin und Präsi dentin SV Lohhof), Annette Plessl, Elke Baumgärtner, Henry Halbig, Karin Hobmeier (Kreisrätin und Bezirks rätin), Noah Kotwan, Friedl Häusler (Ehrenkreisvorsit zende)

Seat ARONA 1,0 TGI Style EU6 DG KLIMA ZV ALU BT FULL Geländewagen/Pickup, 4-Türer, 1. Hand, Scheckheftgepflegt, Garantie, Nevada Weiß, EZ 09/2020, 24.300 km, Erdgas, 66 kW (90 PS), Hubraum: 999 ccm, HU/AU: neu, 6-Gang Schaltgetriebe, Klimaanlage, Lichtsensor, MP3-Schnittstelle u.v.m. (Umsatzsteuer ausweisbar) € 14.990,

Volkswagen GOLF VII 1,6 TDI TREND LINE PDC GRA ZV BT KLIMAAU Limousine, 4-Türer, 1. Hand, Scheckheftge pflegt, Garantie, Pure White, EZ 11/2018, 66.900 km, Diesel, 85 kW (116 PS), Hub raum: 1.598 ccm, HU/AU: neu, 5-Gang Schaltgetriebe, Klimaautomatik 2 Zonen, Navigationssystem, USB-Schnittstelle u.v.m. € 16.990,

Volkswagen GOLF VII 1,0 TSI TREND LINE OPF LED NAV GRA MFA

Limousine, 3-Türer, Scheckheftgepflegt, Garantie, Importfahrzeug, Mietwagen, Indi umgrau, EZ 09/2019, 24.700 km, Benzin, 85 kW (116 PS), Hubraum: 999 ccm, HU/AU: neu, 6-Gang Schaltgetriebe, Klima anlage, Navigationssystem u.v.m. (Umsatzsteuer ausweisbar) € 18.990,

Volkswagen POLO 1,0 KLIMA LED APP

CON DIG SHZ BT DAB MFA LA

Kleinwagen, 5-Türer, 1. Hand, Scheckheft gepflegt, Garantie, Jahreswagen, Import fahrzeug, Ascot Grey, EZ 12/2021, 50 km, Benzin, 59 kW (80 PS), Hubraum: 999 ccm, HU/AU: neu, 5-Gang Schaltgetriebe, Klima anlage, Touchscreen, Lichtsensor u.v.m. (Umsatzsteuer ausweisbar) € 19.490,

Audi A3 SPORTBACK 1,0 TFSI STRONIC XEN NAV ACC PDC BT

Limousine, 4-Türer, 1. Hand, Scheckheftge pflegt, Garantie, Ibisweiß, EZ 06/2018, 44.600 km, Benzin, 85 kW (116 PS), Hub raum: 999 ccm, HU/AU: neu, 7-Gang Auto matik, LED-Tagfahrlicht, Lichtsensor, Rück fahrkamera, MP3-Schnittstelle u.v.m. (Umsatzsteuer ausweisbar) € 19.990,

Audi A4 AVANT 2,0 TDI 6 Gang XENON NAV PDC BT GRA ALU

Kombi, 5-Türer, Scheckheftgepflegt, Garan tie, Brillantschwarz, EZ 06/2018, 86.700 km, Diesel, 110 kW (150 PS), Hubraum: 1.968 ccm, HU/AU: neu, 6-Gang Schaltgetriebe, Klimaautomatik 3 Zonen, Navigationssys tem, Kopfairbags, MP3-Schnittstelle u.v.m. (Umsatzsteuer ausweisbar) € 21.990,

Audi A4 AVANT 40 2,0 TDI STRONIC XEN LEDER NAV PDC BT Kombi, 5-Türer, Scheckheftgepflegt, Garantie, Brillantschwarz, EZ 08/2019, 133.200 km, Diesel, 140 kW (190 PS), Hubraum: 1.968 ccm, HU/AU: neu, 7Gang Automatik, LED-Tagfahrlicht, Bord computer, Seitenairbags u.v.m. (Umsatzsteuer ausweisbar) € 22.990,

Seat LEON ST XCEL LED ACC NAV BEATS PDC FL ML SHZ BT

Kombi, 5-Türer, 1. Hand, Scheckheftge pflegt, Garantie, Pirineos Grau, EZ 03/2018, 30.950 km, Benzin, 132 kW (180 PS), Hubraum: 1.798 ccm, HU/AU: neu, 7-Gang Automatik, Kurvenlicht, Navigati onssystem, Sitzheizung u.v.m. (Umsatzsteuer ausweisbar) € 23.490,

Audi A3 LIM 35 1,5 TFSI S LINE LED PAN

AVC NAV PDC 18

Limousine, 4-Türer, 1. Hand, Scheckheft gepflegt, Garantie, Daytonagrau Perlef fekt, EZ 09/2020, 37.700 km, Benzin, 110 kW (150 PS), Hubraum: 1.498 ccm, HU/AU: neu, 6-Gang Schaltgetriebe, Kli maautomatik 2 Zonen, Sitzheizung u.v.m. (Umsatzsteuer ausweisbar) € 29.990,

Audi A6

50 3,0

QUATTRO LED NAV S

Kombi, 5-Türer, 1. Hand, Scheckheftge pflegt, Garantie, Vesuvgrau, EZ 11/2018, 95.100 km, Diesel, 210 kW (286 PS), Hubraum: 2.967 ccm, HU/AU: neu, 8-Gang Automatik, Sportsitze, Ambiente-Beleuch tung, Standheizung u.v.m. (Umsatzsteuer ausweisbar) € 36.990,

Audi A5 SPORTBACK 40 2,0 TFSI SPORT LED

NAV

Limousine, 5-Türer, 1. Hand, Scheckheft gepflegt, Garantie, Tangorot, EZ 04/2019, 41.600 km, Benzin, 140 kW (190 PS), Hubraum: 1.984 ccm, HU/AU: neu, 7-Gang Automatik, Scheinwerfer-Reinigungsan lage, Sportsitze, Bluetooth u.v.m. (Umsatzsteuer ausweisbar) € 37.990,00,

Volkswagen T6.1 KOMBI 6 SITZER KLIMA APP CON GRA ZV PDC BT

Kombi, Kleinbus bis 9 Sitze, 4-Türer, 1. Hand, Scheckheftgepflegt, Garantie, Jah reswagen, Importfahrzeug, Mojave Beige, EZ 03/2022, 100 km, Diesel, 110 kW (150 PS), Hubraum: 1.968 ccm, HU/AU: neu, 6Gang Schaltgetriebe, Klimaanlage u.v.m. (Umsatzsteuer ausweisbar) € 44.990,

Andreas

Hicklstr. 1 • 85764 Oberschleißheim Tel. (0 89) 31 77 58 65 • gebrauchtwagen@autokoelbl.de
Vereinbaren Sie einen Termin und nach gerade einmal 30 Minuten haben Sie einen garantierten Ankaufspreis.
Kontakt Montag bis Freitag 9.00 Uhr bis 18.00 Uhr Samstag 9.00 Uhr bis 13.00 Uhr Wir freuen uns über Ihre Kontaktaufnahme
Borutta Tel. 089 / 317 758 - 11 Rocco Ponta Tel. 089 / 317 758 - 12 Sie möchten Ihr Fahrzeug verkaufen?
LEDER PAN
AVANT
TDI SPORT
LINE
AUTO KÖLBL feiert 65. Jubiläum 65

Turn static files into dynamic content formats.

Create a flipbook
Issuu converts static files into: digital portfolios, online yearbooks, online catalogs, digital photo albums and more. Sign up and create your flipbook.