

![]()


ARQUITECTURA Y DISE Ñ O DE INTERIORES
Arq. Moises Juniors Fierro Mendoza
Especialista en diseño comercial


Universidad Privada del Norte
Título de Bachiller de arquitectura y diseño de interiores
Finalizado en 2022
CERTIFICACION DE ASISTENTE DE OBRA
Universidad privada del norte 2022
CERTIFICACION DE ASISTENTE DE
Arquitecto DiseÑador de interiores
Universidad privada del norte 2022
Arquitecto e interiorista con 3 años de experiencia en proyectos residenciales, comerciales, de salud e industriales. Especialista en diseño, desarrollo, inspección y modelado 3D. Ágil, resolutivo y con liderazgo para cumplir objetivos y plazos.
Habilidades destacadas:
– DISEÑO ARQUITECTÓNICO Y URBANÍSTICO
– GESTIÓN DE PROYECTOS Y PRESUPUESTOS
– RENDERISTA Y MODELADO EN 3D.

CONSTRUCTORA METANOIA SAC
PRACTICANTE DE ARQUITECTURA
Agosto 2021– Diciembre 2021
▪ Elaboración de presentaciones expositivas
▪ Apoyo en dibujo de planimetrías Y levantamientos de arquitectura
▪ Apoyo en elaboración de expedientes técnicos
Autocad
Nivel Avanzado
Sketchup
Nivel Intermedio
Lumion
Nivel Intermedio
Adobe: Photoshop, Premier, Nivel Intermedio
Arquitecto de Proyectos
Enero 2022 – Marzo 2025
▪ Diseño y desarrollo de planos arquitectónicos para proyectos
▪ Elaboración y gestión de expedientes de licencia de construcción, defensa civil, licencia de funcionamiento, sustentos técnicos.
▪ Renderista y modelado en 3d
▪ Coordinación con ingenieros civiles, estructurales y de instalaciones.
CONTACTO
CELULAR : +51 922 178 581
EMAIL: moises6698@gmail.com
MÓDULO DE CONTROL - INDUSTRIA PROCESADORA DEL PLÁSTICO
Arquitectura industrial
MERCADO LAS FLORES
Arquitectura comercial
MERCADO UNICACHI [PAG. 04]
Arquitectura comercial
09]
PLAZA UNICACHI [PAG. 12]
Arquitectura comercial
DiseÑo de modulos temporales

UBICACION: COMAS
AREA: 06.54 m2
TIPOLOGIA MODULO
Diseño de un módulo publicitario para una feria ocasional de empresas en el distrito de Comas, enfocado en los colores distintivos y la representación de un edificio de oficinas , el diseño se adapta al asoleamiento de la ubicación.




DiseÑo ArquitectÓnico Integral
ASOCIACION DE COMERCIANTES
UBICACION: SAN JUAN DE LURIGANCHO
AREA: 2120 m2
TIPOLOGIA COMERCIO
Proyecto desarrollado para la asociación de comerciantes del Mercado de Flores, con el objetivo de plantear un nuevo modelo de mercado en la zona que se formalice e implemente espacios de descanso para el visitante, se diseño la fachada a con la idea de que represente modernidad y tecnología.




AREACOMERCIAL
AREADESERVICIOS
CIRCULACIONES VERTICALES
Arquitectura comercial
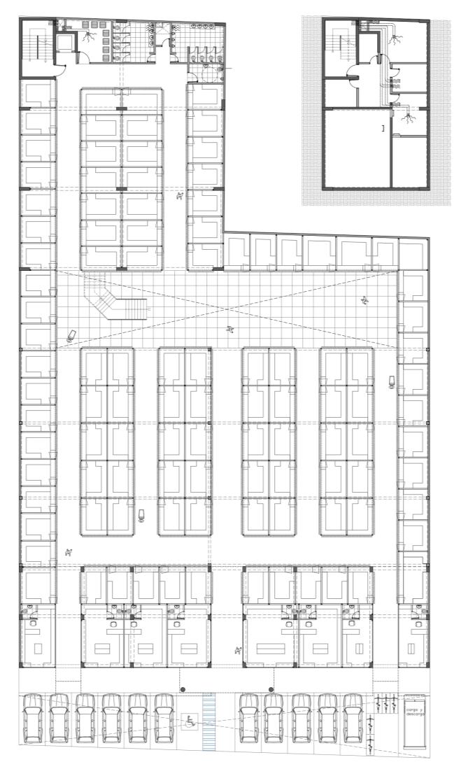
ASOCIACION DE COMERCIANTES
UBICACION: SAN JUAN DE LURIGANCHO
AREA: 5 550m2
TIPOLOGIA COMERCIO
El Complejo Comercial Unicachi encargo el diseño de un centro comercial con estacionamientos y entretenimiento en la azotea, logrando así renovar su imagen y poder competir con un mall moderno.







diseÑo INTERIOR COMERCIAL
ASOCIACION DE COMERCIANTES
UBICACION: CHICLAYO AREA: 27350 m2
TIPOLOGIA COMERCIO
Proyecto desarrollado a solicitud de una asociación de comerciantes, quienes buscaban modernizar y reorganizar los espacios del centro comercial Plaza Unicachi, uno de los más grandes de Chiclayo. sobre la base de un proyecto de centro comercial se rediseño la fachada y los interiores haciendo uso de los colores característicos de la marca Unicachi con la intención de darle una imagen mas llamativa y dinámica para los visitantes.






