301-TL Cherry Lane Madras Brochure

Page 1


Land MLS#220195170

301 TL Cherry Lane

Madras, OR 97741

County: Jefferson Section: Not Applicable

Parcel Number: 512 Property Sub Type: Agriculture

Subdivision Name: N/A

Zoning: A-1 Farm

Additional Parcels: No

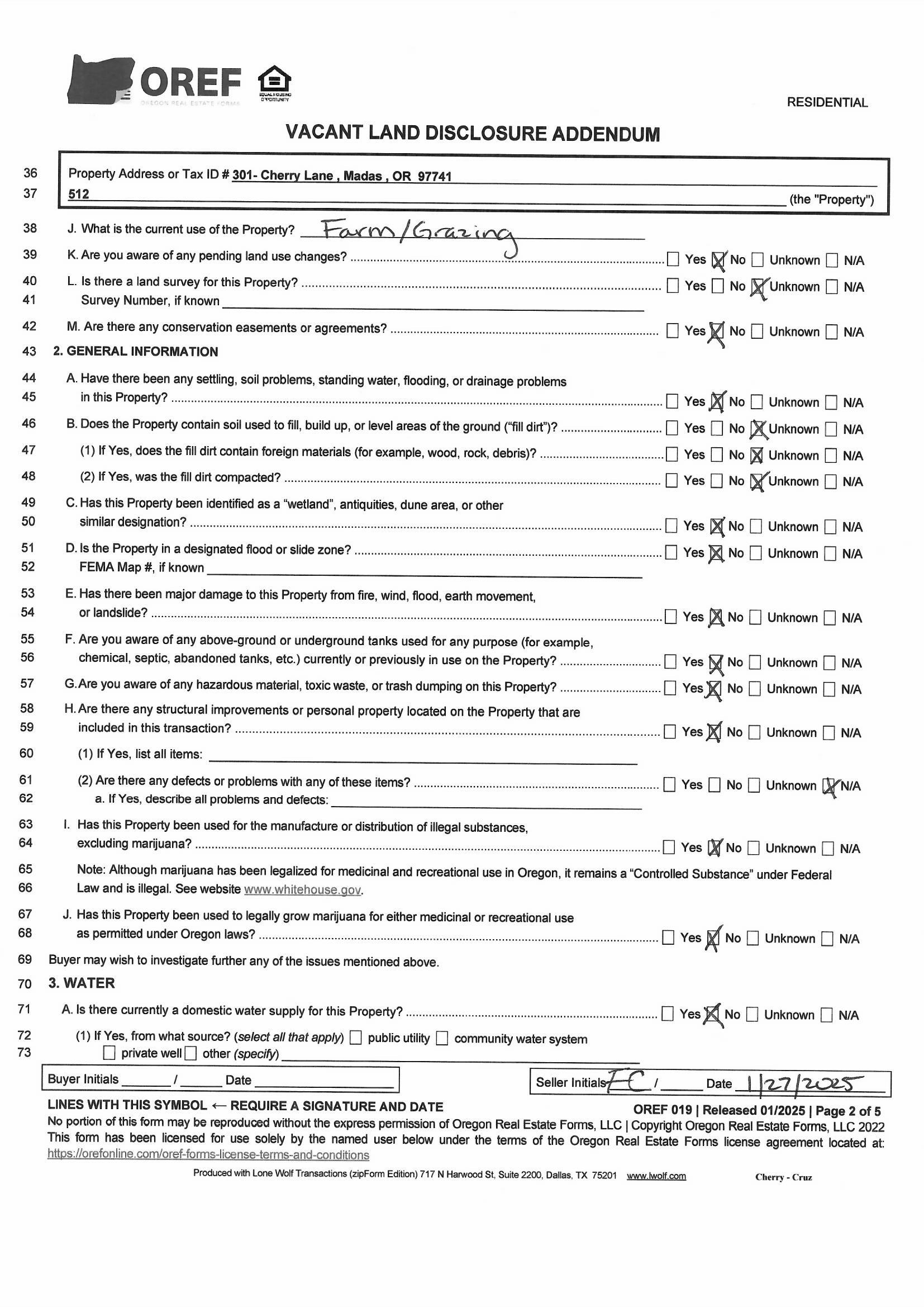
Public Remarks: This 97.83-acre property on the northern outskirts of Madras is a must-see! Boasting views of the Cascade Mountains, this property offers incredible potential for a variety of uses. A valuable 28.70 acres North Unit water rights irrigated with pond, 1 wheel line, hand lines, and an irrigation pump. The dry land is improved rangeland fenced for livestock grazing, this property is ready for your agricultural pursuits. Buyers are responsible for due diligence with Jefferson County regarding approved land usage and zoning.

General Property Information

CC&R's: No

FIRPTA: No

Association: No

Elementary School: Check with District Middle Or Junior School: Jefferson County Middle

High School: Check with District

Tax Annual Amount: $460.46

Tax Lot: 00301

Tax Map Number: 101431

Tax Year: 2024

Potential Tax Liability: Yes

Senior Community: No

Listing

Exterior Information

Lot Features: Fenced; Native Plants; Sloped Home/Build Site: None

Road Surface Type: Paved View: Cascade Mountains; Neighborhood

Land Information

Fencing: Barbed Wire

Acreage Details: Deeded Acres: 97.83

Current Use: Agricultural; Grazing Horse Property: Yes

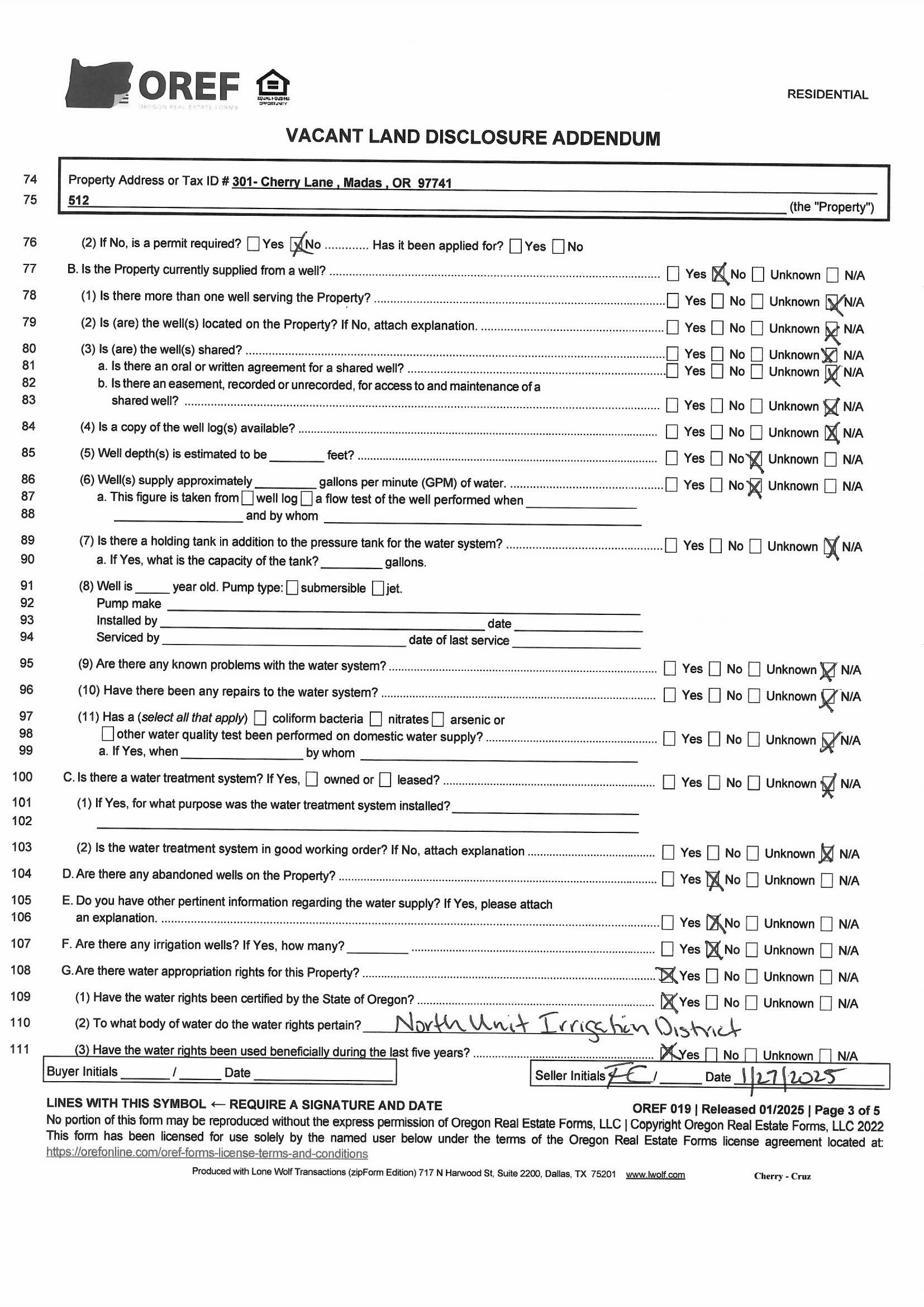
Irrigation Distribution: Hand Line(s); Pump(s); Wheel Line(s)

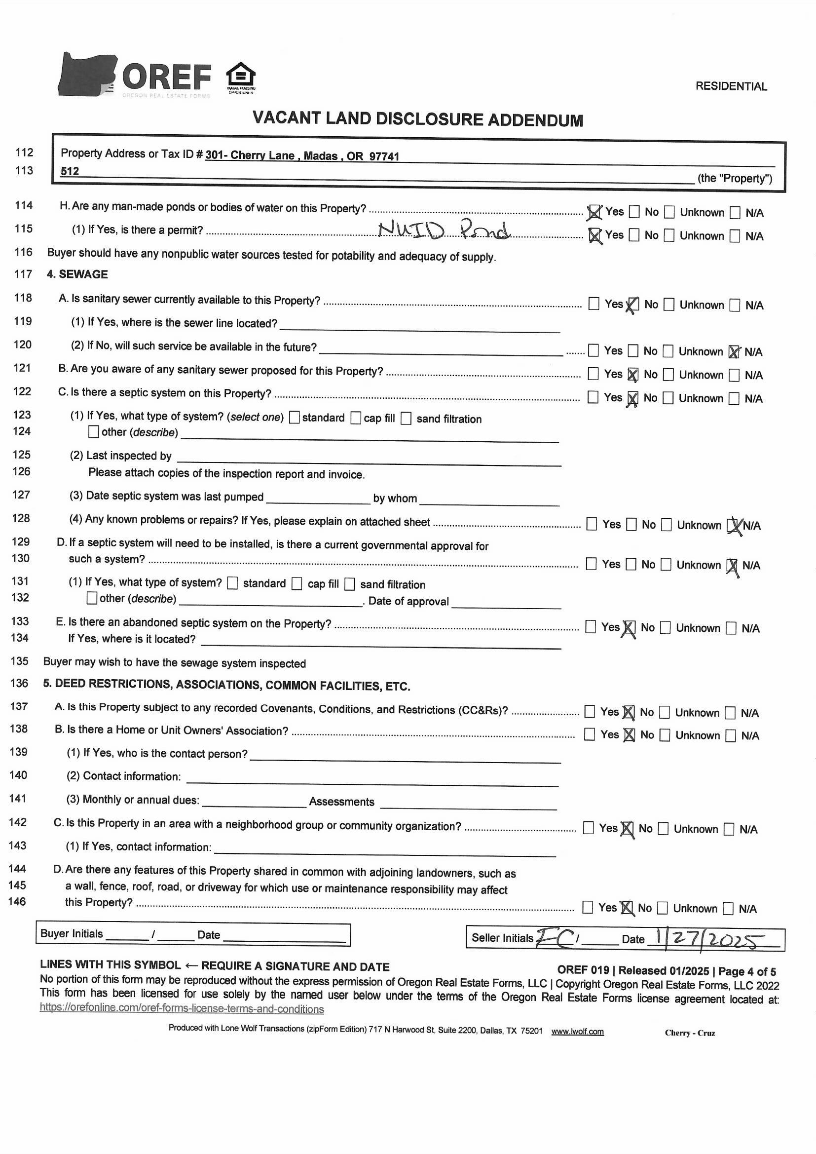
Irrigation Source: Pond

Soil Type: Mixed

Utilities: Electricity Connected Utilities Location: At Street; On Property

Listing/Contract

Original List Price: $390,000

List Price per Acre: $3,986.51

Listing Contract Date: 01/29/2025

Listing Terms: Cash; Conventional Preferred Escrow Company & Officer: Amerititle--Tiffany Hudson

Special Listing Conditions: Standard

Irrigation Source: Pond

Power Production: None

Utilities: Electricity Connected

Sewer: None

Water Source: None

Irrigation District: North Unit

Irrigation Water Rights Acres: 28.7

Irrigation Water Rights: Yes

Listing courtesy of:

Brook Havens License:200703371

Cascade Hasson SIR

650 SW Bond St Suite 100

Bend, OR 97702

541-604-0788

541-383-7600

541-604-0788

brookmhavens@gmail.com http://www.desertvalleygroup.com

Boundary Wetlands Riparian Stream, Intermittent River/Creek Water Body
Brook Havens

| Boundary 100.27 ac

(*) Total acres may differ in the second decimal compared to the sum of each acreage soil. This is due to a round error because we only show the acres of each soil with two decimal.

A-1 Agricultural District

1123.01 Purpose.

1123.02 Permitted uses.

1123.03 Accessory uses and structures.

1123 04 Special uses allowed

1123.05 Conditional uses allowed.

1123.06 Additional requirements.

CROSS REFERENCES

Agriculture defined - see P & Z 1103 03

Farmstead defined - see P. & Z. 1103.26

Livestock defined - see P & Z 1103 46, 1103 47

Plant cultivation defined - see P & Z 1103 65

1123.01 PURPOSE.

An A-1 Agricultural District provides for farmsteads, low density residences and areas for plant cultivation, livestock, greenhouses, and other related agricultural activities. The limitation that only one primary structure is permitted on a lot shall not apply to farmsteads. An A-1 Agricultural District also may be used as a holding district in which an area would be zoned A-1 Agricultural until urban development becomes appropriate and available At that time the area would be rezoned to accommodate urban or suburban densities which are consistent with the Master Plan This district is also appropriate for areas in the Master Plan designated for agricultural reserves

(Ord 164-1984 Passed 1-28-85 )

1123.02 PERMITTED USES.

A structure or lot within the A-1 District may be used for the following purposes. If a use is not expressly permitted, the use is prohibited

(a) Farmsteads

(b) Single-Family dwellings

(c) Plant cultivation

(d) Livestock

(e) Greenhouses

(f) Roadside stands for the display and sale of produce grown on the premises.

Bulk and Density Regulations Building Floor Area

Minimums

Minimum

Lot Area Building Setbacks Minimum Maximum Height Maximum One Story Two Story Per Family Lot Structure (sq ft ) (sq ft ) Frontage Coverage

Front Side Rear Feet Floors

Yard Yard Yard

1 Acres 50 30 50 200 35 3 N/A 1200 1300

Supplementary District Regulation exceptions to this Table are listed in Chapter 1153

(Ord 269-2001 Passed 12-17-01 )

1123.03 ACCESSORY USES AND STRUCTURES.

The following uses and structures are allowed in an A-1 District subject to the provisions and regulations of Title Five of this Zoning Ordinance.

(a) Accessory buildings, per Section 1155 01

(b) Fences, per Section 1155.02.

(c) Parking and storage of boats, recreational vehicles and utility equipment, per Section 1155 03

(d) Private swimming pool, per Section 1155 04

(e) Community or club pool, per Section 1155 05

(f) Stabling of horses, per Section 1155 06

(g) Tennis courts, per Section 1155 07

(h) Off-street parking and loading, per Chapter 1157

(i) Home occupations, per Chapter 1159.

(j) Uses, buildings or structures customarily incidental to a principal permitted use or conditionally permitted use located on the same lot therewith.

(Ord 269-2001 Passed 12-17-01 )

1123 04 SPECIAL USES ALLOWED

The uses eligible for consideration as special use exceptions set forth in Section 1113 06 are permitted in this district if approved pursuant to Chapter 1113.

(Ord 175-1990 Passed 11-12-90 )

1123.05 CONDITIONAL USES ALLOWED.

The following conditional uses are allowed in an A-1 District if their location and development are first approved by the Planning

Commission, according to the procedures set forth in Chapter 1107

(a) Airports and landing fields, per Section 1107.08(b)(3).

(b) Cemeteries, per Section 1107 08(b)(4)

(c) Golf or country club, lodge or private recreation club, per Section 1107 08(b)(8)

(d) Bed and breakfast establishments

(Ord 069-2017 Passed 5-22-17 )

1123.06 ADDITIONAL REQUIREMENTS.

Additional requirements for A-1 District can be found in the following sections:

(a) Supplemental district requirements as set forth in Chapter 1153

(Ord 269-2001 Passed 12-17-01 )

Turn static files into dynamic content formats.

Create a flipbook
Issuu converts static files into: digital portfolios, online yearbooks, online catalogs, digital photo albums and more. Sign up and create your flipbook.