Portfolio 2024 _ Dimitra Chantzakou

Page 1


DESIGN WORK

[ research ]

[ research ] WOOD FACTORY 2050 [ research ] TUMBLEWOOD

TOWNHOUSE [ residential ] GRAYSCALE [ residential ]

[ pavillion ]

ARCHITECTURAL PROJECTS

[ holistic regeneration diploma project WOOD DIVING

PHOENIX
LIGHTCANYON

OTHER DESIGN PROJECTS

[ cultural center ] competition ]

TOWER^2 [ architecture institute ] [ exhibition ] VIOLENT LIVING POWER CIRCLE

[ experimental ]

SHAPE OF WATER

TOPO-MORPHOSIS

[ landscape ] OASIS [ urban reform / social housing ]

SLIDE [ elementary school ]

This project is an apartment renovation in a luxury building on the Upper East Side. The renovation mainly consists of upgrades in surface finishes, new doors, new fan coil units and covers/cabinets for those units. All new fixtures and finishes will be installed in the bathrooms, and the kitchen area. The project demanded board and building management approvals, along with a DoB filling. The proposal was developed after several meetings with the clients, taking into consideration their needs and aesthetic. All drawings shown here were developed by me, with the direction of the principal of the firm, who is also my supervisor.

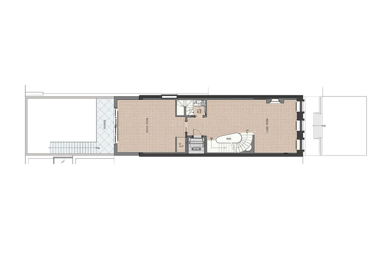
Townhouse on 67th

Jul ‘23 - Present | FAMILY HOME RENOVATION on the Upper East Side, NYC, NY

This project is an in-house development, converting an existing apartment building into a family home. The aim was to create a space that inspires the grandeur of classic NYC townhouses, while remaining modern in its details, creating a timeless, luxurious design. The building is located in a historic district, making it mandatory for the proposal to not make major alternations to the original facade. The proposed conversion will be the second one within the building’s lifespan, as it was originally built as a family home. The interior of the building is completely reconfigured, featuring 4 large bedrooms and a master suite, as well as a new terrace in the back, which is placed over a pool and a sauna room at the lower level. The roof terrace it fea tures an outdoor kitchen and a canopy, to create a protected patio. All drawings shown here were developed by me, and the proposal, as well as the specifications and detailing, were created with the direction of the principal of the firm.

ACADEMIC _ w/ Shenzhou Dai, Andres Morelli, Rayna Zhang

LightCanyon

Spring ‘23 | Daylighting in Architecture _ Light Pavilion

Interior Daylight Renders

This project aimed at exploring different ways of manipulating daylight, creating a space with high levels of diffused light. The design process was constantly informed by the use of daylighting simulations, which were conducted after every design alteration. The inspiration for this pavilion came from the Antelope Canyon in Arizona, which features concave and convex surfaces, and top and side lighting through curvilinear cracks. The main principles of the forms found in this canyon were used as guidelines for the conceptual development of this project.

The use of curves combined with thick walls and the goal of guiding daylight into the space while diffusing it, were our main design strategies. Most openings of the pavilion are concentrated in the south, utilizing the larger amounts of sun that come from this orientation. Additional openings are created on the north side, and a complex roof structure, with “tunnel-like” openings was introduced, to generate ample diffused light in the space while avoiding direct sunlight. The pavilion is placed in the Death Valley of southern California, providing a cool but magical refuge to the national park’s visitors. We select a red concrete material to imitate the natural color of the stones found in Antelope Canyon.

Lighting Simulations
Roof Plan
Elevations

ACADEMIC _ w/ Shenzhou Dai + Zizhao Zhou [ & Studio One ‘23 cohort for the installation ]

Wood Factory 2050

Spring ‘22 | UC Berkeley CED, MAAD 22-23’ _ Lignin and Lining — Director: M. Paz Gutierrez in collaboration w/ HOK architects

The lumber industry has become increasingly mechanized and optimized in the past 200 years, but its processes still generate a variety of material waste streams. However, the unique properties of these waste materials offer significant potential for a more circular processing model. In the harvesting of the trees, curved timbers are wasted. Before milling, bark is removed and downcycled to landscaping material. And the act of sawing lumber to create boards or other products is inherently inefficient, reducing a significant portion of wood volume to sawdust. This project interrogates each of these points in order to determine an alternate use for the waste product or an alternate process resulting in less waste, and how these redefined products or processes can be integrated into an architectural system.

Oroville area was analyzed in depth, to discover the best possible intervention scenario for the proposal of a circular wood factory in 2052. Decentralization of production, and adaptability were key aims, leading to the proposal of individual production units that would operate in a forest or riverine setting, harvesting wood and making use of its by-products.

Extensive research was conducted, looking at the different flora and fauna inhabiting the area, trying to find connections between the ecosystem and human intervention. The effects of the wood industry on the environment and their link to fire and flooding were studied through digital simulations, along with their possible prevention with the use of wood products.

The project concluded with the creation of a 1:1 scale physical installation at SPUR Urban Center in San Francisco, which demonstrated the different wood-waste and wood-minimization tectonic systems explored throughout the semester.

Study Models of Tectonic System
Full Scale Physical Installation at SPUR Urban Center

ACADEMIC _ w/Yiyao Guo + Zizhao Zhou

TumbleWood

Fall ‘22 | UC Berkeley CED, MAAD 22-23’ _ Lignin and Lining — Director: M. Paz Gutierrez in collaboration w/ HOK architects

Node density controls seepage. Node density controls light and air. Node density creates a barrier for wildfire smoke. Multiple node layers create a surface, which sits bending on the Oroville riverbank, ready to roll in. The global shape of the structure defines its performative properties, as the layers, created with coiled wood veneers, are stretched, or compressed depending on their position in the structure. Bark dust and fiber, added externally on and/or in between the wood coils, control the flexible and rigid parts of the structure.

Becoming a tumbleweed-like form, the node surface flexes forward when water starts running underneath it; it then becomes a tumble-wood. The tumblewood floats inside the river and stops in wetland areas, creating barriers, and providing protection against mega floods, benefiting the recovery process of the

Tumblewood Tumblewood

ACADEMIC _ Individual

Wood Diving

Fall ‘22 | UC Berkeley CED, MAAD 22-23’ _ Lignin and Lining — Director: M. Paz Gutierrez in collaboration w/ HOK architects

What will wood processing be like in 2050? How can wood processing be re-imagined in the context of environmental decay, with increasing wildfires and flooding incidents?

Wood-Mineral Composites

* soaked into | ** infused with syringe

Gypsum
Mineral Mix
Shattered Clay Models

Wood Factory _ Vision Board

Let us dive into scraps. Wildfire leaves an abundance of wood scraps behind. This project proposes the creation of a wood-mineral composite material, that utilizes burnt, worm-eaten wood that timber harvesters haven’t managed to save, and minerals taken from scrap material in the construction industry. Using a dipping technique, the wood gets covered with liquified minerals, which gradually fill the holes carved by the woodworms. After some spending some time in the oven, the minerals have infused the wood, creating a wood mineral composite. WoodDiving is wood silicification. This new wood-product has enhanced fire resistance, creating a more resilient material.

Circular
Wood-Mineral Analysis

ACADEMIC _ Team: w/ Elisabeth Bythania + Paola Gutierrez + Jason Park [Civil Eng]

WaveShell

Nov ‘22 _ Form + Structure | DRONE VERTIPORT at Mission Bay, San Fransisco, CA

The main idea for this project is to create a central space which will host passenger drones, while serving as a landmark on Pier 52 of the San Francisco Bay. The design separates the vertiport in two parts, which operate independently for both take-off and landing. Passengers enter the control and waiting area located in the small building on the side of the central structure and can freely walk across the canopy to board a drone, or go to the garden on the other side.

The central structure was created using kangaroo physics and its structural elements were optimized using the Karamba3D plug-in in Grasshopper. The project was completed in a timeframe of 3 weeks.

ACADEMIC _ Team: w/ Xenia Avgoustinou Sept ‘20- Feb ‘22 | Diploma Thesis: HOLISTIC REGENERATION OF MATI settlement, East Attica, Greece

Masterplan _ 1:2000 (m) [ total area: 450 acres ]

Mati was the protagonist of the 2018 wildfires in Attica, with fatal consequences. One of the main problems of the area is its lack of urban design and planning, leaving the built environment to develop arbitrarily. Our proposal considers the natural characteristics, as well as the “memorial” aspects regarding the wildfires, re-creating the urban tissue in its totality. We re-design the road network, focusing on safety and orientation. We create parks and open spaces to resurrect, preserve, and highlight existing natural areas that were trespassed, while adding some much needed public uses. We re-organize the plot distribution, designate buildable zones within each plot to control the void-solid ratio in the settlement, define height limit zones, and set the Floor Area Ratio, to maximize natural lighting and maintain the existing small building scale. Finally, sets of pedestrian streets are introduced locally in each urban block, creating internal centers and connections between plots. In an attempt to give a more holistic design proposal, we study the configuration of planting on streets and in the parks in a larger scale, selecting species and controlling their placement. We zoom in a bit further, in the urban design scale, to provide some examples of benches and flowerbeds, designed to match the overall concept and complete our proposal.

FINAL MODEL of selected zone (1:666 - 0.80X3.00 meters)

Remaining Buildings after expropriations CONNECTION

Previous Plot Distribution + Road Network

Selection of “model” urban blocks to replicate

Beachfront View

Different rules accoroding to plot category

Plot Categorization according to sides ratio

Park View

Pedestrian Streets _ Sections 1:250 (m)

CONCEPT SKETCHES Park
Coast
Urban Block
New Noli Plan + Height Variations

INDEPENDENT _ Team: w/ Xenia Avgoustinou

Power Circle

Spring ’21 _ Kaira Looro 2021 | International Competition for the Women’s House in Senegal

For the Women’s House in Senegal, we wanted to create a space that enhances collectivity, promotes dialogue, and inspires women to be empowered.

We chose to make the building completely round, surrounding it with offset walls to protect the space from the strong eastern and western winds. We also incorporated a cone-shaped roof, which was placed higher than the walls to promote air flow for the hot months.

The space is surrounded by earth brick walls and the central hall is marked by the bi-central opening on the roof which is also reflected on the floor with a small well. The space can be transformed with vertical panels that can be placed accordingly to accommodate the needs of the users.

Topomorphosis

Spring ’20 | LANDSCAPE DESIGN IN LAKE VOULIAGMENI Athens, Greece

ACADEMIC _ Team: w/ Xenia Avgoustinou + Anna Maria Lambrinopoulou

The main concept of the proposal is a mental continuation of the physical elements towards the man-made environment and back, in an effort to merge the two worlds together. The lines on the ground begin from the center, the lake, parallel to it, and evolve to the shape of the local bushes that surround the “hole”. The calm state of the lines is disturbed by certain central points, which cause them to separate and create circular “voids” on the grid.

amphitheater

the continuity of the water

3. Amphitheater
2. Changing Rooms
“big hall” lake tunnels sea

Conceptual Work

1. Entrance

Violent Living Exhibition

Fall ‘20

| The imaginary museum: Design and extended visual approach of curatorial practices [full booklet]

The exhibition aims to point out the violence found in different stages of life on earth. It is divided into 4 parts: Genesis, Naivete, Survival, Dominance and Evolution. Through these rooms, violence is shown as a force of life and creation, as well as survival and destruction.

1 2 3 4 5 6a 6a 6b Exhibition Posters

Exhibition Map - Exhibits’ placement

ACADEMIC _ Team: w/ Xenia Avgoustinou

Oasis

Fall ‘19 | REDESIGNING THE “TRIANGLE” OF KESSARIANI,
Athens, Greece

Kessariani triangle, an area of 22 acres in the heart of Kessariani in downtown Athens is re-imagined. Kessariani was one of the biggest neighborhoods that hosted immigrants from Asia Minor in 1922, and also features part of the undergrounded river Iridanos, which runs through the triangle. Considering the environmental and historic character of the area, we create new housing complexes, adding to, as well as recreating the urban tissue. The central idea of the proposal is the design of an internal park to form a communal space for the residents and the surrounding neighborhood, while bringing back the river to the city.

MASTERPLAN _ 1:1000 (m)

D-D SECTION _ scale 1:200 (m)

TYPICAL HOUSING FLOOR PLAN _ scale 1:200 (m)

(m)

Tower^2

2019-2020 | ARCHITECTURE INSTITUTE on Alexandras ave, Athens, Greece

The main idea for the building is the repetition of a tower-like volume, which from a “standing position” goes to a horizontal one. The two vol umes placed on the site are connected with a metallic structure, which runs through them and encloses the main movement pillars. Another metallic structure runs on the opposite site of the plot, on a lower level, carrying a cafe with access to the central yard. The secluded space in the middle is accessible via passages formed under the me tallic structures and the horizontal volume. Due to the -almost per fect- square shape of the plot, we decided to incorporate the square shape on the whole of our proposal. The tower’s plan dimensions are 8,5 X 8,5m, same as the horizontal volume’s front and back elevation.

Detailed construction drawings

Shape of Water

Jul ‘18 _ The Bartlett Summer Studio | Investigating forms: Experimental project

This project explores the properties of liquid form. Questioning the space we currently produce and trying to “capture” the space formed by running water, this was an effort to explore the possibility of casting water shapes. Producing still frames of fractions of water movement, a new space can be produced from something that is supposed to be in constant change, contradicting its natural characteristics. Using water as a casting tool combined with wax to capture water forms, I created a collection of mini “models”, which were then digitized, using Photogrammetry. This process allowed for further exploration of their spatial properties. Using the digital point clouds in Rhino, combinations of the models were put together, rendering images that remind us of water, waves, natural elements, and generally give us a sense of the “space” of water.

Shape

Fall ‘17 | ELEMENTARY SCHOOL & SPACES FOR COMMERCIAL USE in Ampelokipi Area

Athens, Greece

Combining two different functions, that of an elementary school and a small commercial space, the aim of this design was to create a guarded space in the center of the plot, placing the built volume on its perimeter. The organic, curved shape of the yard creates a playful, “child-friendly“ space. The roof unifies all the spaces underneath and follows the incline of Lycabettus hill. Classrooms surround the internal yard, which is a critical meeting and playing point for students. The library and auditorium are located on the turning points of the building -the “joints”, and are distinct, as they pop out from the curved roof. These spaces have separate entrances to be accessible to the community. Commercial uses are separated from those of the school by using different levels for each function.

The interior is organized with a 10 meter-grid, which also defines the placement of structural elements.

T h a n k y o u

June 2024

[

]

Turn static files into dynamic content formats.

Create a flipbook
Issuu converts static files into: digital portfolios, online yearbooks, online catalogs, digital photo albums and more. Sign up and create your flipbook.
Portfolio 2024 _ Dimitra Chantzakou by DemChantzakou - Issuu