Skip to main content

Trabalho final de graduação - O uso dos espaços pós pandemia Covid-19/ Coworking Plus Vila Olímpia

Page 1

ARQUITETURA E URBANISMO/ USCS

TRABALHO FINAL DE GRADUAÇÃO

O USO DOS ESPAÇOS PÓS

PANDEMIA COVID-19

COWORKING PLUS VILA OLÍMPIA

ALUNA: ANDRÉIA LIMA

architecture

TRABALHO FINAL DE GRADUAÇÃO APRESENTADO NA GRADUAÇÃO DE ARQUITETURA E

URBANISMO DA UNIVERSIDADE MUNICIPAL DE SÃO CAETANO DO SUL.

PROFº ORIENTADOR: PROF. DR. ÊNIO MORO JUNIOR

PROFª AVALIADORA INTERNA: PROFª DRA. DANIELA FLORES

PROFª AVALIADORA EXTERNA: PROFª DRA. AKEMI MORITA NAKAHARA (IAU/USP)

AGRADECIMENTOS…

Agradeço primeiramente a Deus por ter me ajudado a chegar até aqui, momento mais que esperado do curso. Por ter me dado saúde para correr atrás de cada objetivo, força de vontade e coragem nos momentos mais desafiadores, sem ele nada seria possível.

Agradeço a minha mãe Neide e meu pai Bil pelo suporte no decorrer da graduação, meus irmão André e minha irmã Angela por todo incentivo nos momentos mais difíceis, desafiadores e pelo apoio de sempre. Agradeço ao meu irmão Aléx e parceiro de sala, de trabalhos, aflições e muitas alegrias nesses anos de graduação. Agradeço aos meus amigos e colegas por serem respiro durante anos, por tornarem mais leve e prazeroso o processo da graduação.

Agradeço a todos os professores do curso desde os primeiros semestres até aqui, pela paciência, responsabilidade e comprometimento em cada aula ministrada. Todos colaboraram de forma direta para que chegasse até aqui.

Agradeço ao meu orientador Ênio Moro Júnior por todo esforço, paciência e dedicação durante meses, sempre pronto a me auxiliar e orientar em tudo que precisei.

1 SUMÁRIO 1 - INTRODUÇÃO 1 1 Tema do projeto 04 1.2 Objetivos………………………..…………………………………………………………….05 1 3 Justificativas 06 2 - REFERÊNCIAS 2 1 O que é pandemia? 08 2 2 Exemplos de pandemias 08 2 2 1 Gripe espanhola 08 2 2 2 H1n1 09 2 2 3 Covid-19 10 2 3 Como as pandemias afetaram a vida das pessoas 11 2.3.1 Gripe espanhola………………………………………………………………………….…11 2 3 2 H1n1 12 2 3 3 Covid-19 12 2.4 Formas de trabalho na pandemia…………………………………………………………...13 2 4 1 Gripe espanhola 13 2 4 2 H1n1 14 2 4 3 Covid-19 15 2.6 Surgimento do coworking no Brasil…………………………………………………………15 2 7 Impacto da pandemia covid-19 e o aumento da procura por coworkings 15 3 - REFERÊNCIAS PROJETUAIS 3 1 Impact Hub “O primeiro coworking do Brasil” 18 3.2 Paddington works - Londres………………………………………………………………….21 3 3 Sede do grupo editorial Record 24 3 4 Quadro comparativo - Referências projetuais 27 4 - APRESENTAÇÃO DA ÁREA PROJETUAL 4 1 Justificativa da escolha da área 27 4 2 Público alvo 28 4 3 Programa de necessidades 28 4 4 Legislação vigente 29 4 5 Contextualização da área 30 5 - PROPOSTA DE PROJETO 5 1 Imagens inciaiis 31 5 2 Implantação 31 5 3 Setorização 32 5 4 Plantas 33 5 5 Corte 37 5.6 Malha estrutural………………………………………………………………………………..37 5 7 Imagens 38 6 - CONSIDERAÇÕES FINAIS……………………………………………………………………………….40 7 - REFERÊNCIAS 41

RESUMO

O trabalho tem como objetivo discutir como a relação entre pandemia covid-19 e espaços de trabalho podem e devem ser minimamente seguros, do ponto de vista sanitário e como medidas simples do dia a dia podem minimizar os riscos de contaminação, sem abrir mão de espaços de convívio e relações entre as pessoas.

Baseado na junção da necessidade humana em ter espaços seguros e adaptados e nas necessidades que um ambiente de trabalho exige foi elaborada uma proposta de projeto para um coworking modernizado e adaptado para o uso pós covid-19 onde o projeto aponta soluções simples de usos na qual podemos adotar para o nosso dia a dia.

Palavras-chave: Arquitetura, pandemia, segurança, coworking, convivência.

2

ABSTRACT

The objective of this work is to discuss how the relationship between the covid-19 pandemic and workspaces can and should be minimally safe, from a health point of view, and how simple day-to-day measures can minimally the risks of contamination, without giving up spaces, of conviviality and relationship between people.

Based on the combination of the human need to have safe and adapted spaces and the needs that a work environment requires, a project proposal was elaborated for a modernized coworking space adapted for post-covid-19 use, where the project points to simples solutions of uses in which we can adopt for our day to day

Keywords: Architecture, pandemic, security, coworking, coexistence.

3

1.1 TEMA DO PROJETO

“Ainda existem “muitas incertezas e lacunas” para dizer que a pandemia de coronavírus acabou. Segundo Adhanom, embora o mundo vivencia um cenário “muito melhor” da doença em comparação a 2021, não há um bom entendimento sobre a mutação do vírus.” (Tedros Adhanom, Diretor-geral da OMS - Organização Mundial da Saúde, 21.dez.2022).

O trabalho final de graduação do curso de arquitetura e urbanismo é uma monografia em conjunto com um projeto, cujo tema é “NOVAS FORMAS DO USO DOS ESPAÇOS PÓS PANDEMIA COVID-19”.

O que me motivou a selecionar esse tema foi o momento atual vivenciado mundialmente. Momento esse em que diversas famílias perderam seus entes queridos, amigos e conhecidos que foram acometidos por esse terrível vírus que trouxe consigo uma crise sanitária devastadora.

Segundo dados do Ministério da Saúde (figura 1) a pior fase já passou porém não acabou, pessoas continuam sendo infectadas pela covid-19 e causando a transmissão em massa, ainda que de forma menos agressiva e mais silenciosa.

Esse acontecimento e disseminação do vírus pegou o mundo de surpresa. O que inicialmente existia apenas em uma parte do mundo, “do nada” tomou uma proporção imensa, atingindo o mundo inteiro e causando muito pânico, tristeza e incertezas.. Perdemos por um longo tempo conexões físicas de pessoas que até mesmo muitas das vezes não valorizamos esse contato, mas com a chegada do vírus nos vimos obrigados a manter um distanciamento, que nos fez refletir e nos indagar sobre como seria as relações dali para frente.

Na reportagem do jornal francês Le Monde publicada em 28 de abril, o designer Patrick Jouin resumiu brilhantemente o que está acontecendo com os restaurantes na pandemia ao redor do mundo, na reportagem: Qual será o design para amanhã?

Será necessário criar arquitetura de interiores com barreiras físicas, evitando que o amor não nos mate.

“Mais do que uma simples distância entre mesas para instalar confiança: é necessário recriar uma arquitetura de interiores com as barreiras físicas mais elegantes e leves possíveis, para evitar a morte do amor pelos restaurantes ou perder a alma do lugar"(PATRICK JOUIN,28 DE ABRIL ,2020).

4

A chegada da pandemia nos trouxe muitas dúvidas e uma das poucas certeza, a vida continua e as nossas relações, obrigações e deveres devem ser retomados, afinal de contas temos uma vida a ser seguida, precisamo nos alimentar, socializar, trabalhar, comprar e outras diversas atividades que fazem parte do nosso cotidiano.

figura 1 - Gráfico de período com mais óbitos por covid-19

Fonte:https://www.poder360.com.br/coronavirus/numero-de-mortes-mensais-por-covi d-caiu-90-desde-pico-em-marco/, acessado em 20 de março de 2023.

1.2 OBJETIVOS

O trabalho busca discutir como a pandemia do covid-19 limita o uso dos espaços de trabalho e pode dificultar a convivência, entendendo que a pandemia do covid-19 inseriu uma nova forma de fazer arquitetura, forma essa que chegou de uma hora para outra. Inicialmente trouxe dúvidas, adaptações e improvisos. Muitas pessoas se viram na necessidade de adaptarem suas rotinas, a improvisar o uso dos espaços de trabalho.

5

Este trabalho busca apresentar práticas e soluções arquitetônicas de espaços de trabalho integrados, que estimulem a convivência e espaços seguros e eficientes, quanto à disseminação do vírus da covid-19 e também apontem para um novo momento pós pandêmico. O trabalho tem como objetivo trazer uma conscientização de práticas e soluções de como nós arquitetos e urbanistas podemos contribuir e atuar nessa nova realidade e como essas mudanças e/ ou alterações podem beneficiar as pessoas e trazer prevenção e segurança. Através da análise feita por esse trabalho, com levantamento de dados, vamos perceber que é possível recriar e criar novos espaços após a pandemia, através de propostas que podem ser inseridas não só para o Brasil mas no mundo.

1.3 JUSTIFICATIVA

O momento que estamos vivendo, provavelmente teremos que conviver por um bom tempo e entender que todos os espaços estão tendo que se reinventar e se adaptar a essa nova realidade. A necessidade atual/ futura de repensar sobre os usos dos espaços sejam eles novos ou espaços já existentes que precisarão ser readaptados para a realidade foi o que me moveu a abordar a questão e entender que na hora de projetar, além de me preocupar com questões já existentes, como: distanciamento mínimo entre os elementos projetuais, layout e toda a estrutura de um projeto, temos um novo desafio para pensar, que é a relação do espaço x segurança das pessoas que usarão.

GRÁFICO 1 - PROCURA POR COWORKING NO INÍCIO DA PANDEMIA COVID-19

Fonte: https://hzcoworkingspace com br/blog/coworking-pegn/, acessado em 09 de maio de 2023.

Através do gráfico podemos ver que a procura por espaços alternativos de trabalho aumentou no início da pandemia.

6

GRÁFICO 2 - INSEGURANÇA DA VOLTA ÀS AULAS DURANTE A PANDEMIA COVID-19

Fonte:https://www.sinesp.org.br/noticias/aconteceu-no-sinesp/10475-reabertura-de-e scolas-agravara-a-pandemia-para-a-maioria-dos-brasileiros-mostra-datafolha, acessado em 03 de abril de 2023.

A preocupação de pais com o agravamento da pandemia na retomada de aulas presenciais também é algo visível apontado por pesquisas, preocupação essa por conta das condições dos espaços e incertezas se terá o distanciamento mínimo entre os estudantes.

GRÁFICO 3 - INSEGURANÇA A FREQUENTAR UM ESPAÇO SOCIAL

Fonte:https://www.meioemensagem.com.br/marketing/food-service-44-nao-voltariam -aos-restaurantes-em-breve, acessado em 20 de março de 2023.

7

A preocupação do distanciamento entre as mesas em ambientes de alimentação durante a pandemia esteve presente em 2º lugar, segundo pesquisas feitas no período do pico da doença, ficando atrás apenas da insegurança com a higiene em geral.

2- REFERÊNCIAS

2.1 O QUE É PANDEMIA?

Segundo a Organização Mundial da Saúde, pandemia é a disseminação mundial de uma nova doença e o termo passa a ser usado quando uma epidemia, surto que afeta uma região, se espalha por diferentes continentes com transmissão sustentada de pessoa para pessoa.

Uma pandemia é a disseminação mundial de uma doença. Ela pode surgir quando um agente infeccioso se espalha ao redor do mundo e a maior parte das pessoas não são imunes a ele. Em uma escala de gravidade, a pandemia é o pior dos cenários porque ela se estende a várias regiões do planeta. A pandemia, então, seria uma epidemia (menor escala) que quebrou barreiras territoriais, atingindo simultaneamente diversos países ou nações. Não há limitação geográfica na ocorrência da doença.

2.2 EXEMPLOS DE PANDEMIAS

Ao longo da história, muitas doenças surgiram e muitas foram caracterizadas como pandemia, que é a disseminação de uma doença numa escala ampla (OMSOrganização Mundial da Saúde). Muitas delas assolaram o mundo por um longo período, outras, embora tiveram uma duração menor de tempo, o impacto causado foi extenso.

2.2.1 GRIPE ESPANHOLA (1918-1919)

A gripe espanhola foi uma pandemia causada pelo vírus influenza que surgiu em 1918. Espalhou-se rapidamente pelo mundo, causando cerca de 50 milhões de mortes. A gripe espanhola foi o nome que recebeu uma pandemia de vírus influenza que se espalhou pelo mundo entre 1918 e 1919.

A gripe espanhola alastrou-se pelo mundo em três ondas:

● Primeira onda: iniciada em março de 1918;

● Segunda onda: iniciada em agosto de 1918;

● Terceira onda: iniciada em janeiro de 1919.

8

IMAGEM 1 - SOLDADOS CAMINHANDO USANDO MÁSCARAS DURANTE A GRIPE ESPANHOLA

2.2.2 O SURGIMENTO DA H1N1 NO BRASIL (2009)

Em abril de 2009, a Organização Mundial da Saúde (OMS) declarava pandemia de gripe A H1N1 mundial, na época ainda conhecida como gripe suína. O surto global caracterizou-se por uma variante de gripe suína cujos primeiros casos ocorreram no México, em meados do mês de março de 2009.

A gripe A H1N1 chegou no Brasil em maio de 2009, quando se registrou 20 casos da doença nos estados de Minas Gerais, Rio de Janeiro, Rio Grande do Sul, Santa Catarina, São Paulo e Tocantins.

O H1N1 é um tipo de vírus que também pode ser chamado de influenza H1N1, gripe H1N1, influenza A e de vírus H1N1. Esse é a variação de vírus da gripe responsável por causar a gripe suína. Ela recebeu esse nome por afetar porcos ao mesmo tempo em que afetava os seres humanos, mas o vírus H1N1 é, na verdade, uma combinação de diferentes tipos de vírus influenza, inclusive com a participação do vírus da gripe aviária.

De modo geral, essa é uma versão forte da gripe, que precisa ser tratada porque tem o potencial de causar complicações, podendo, inclusive, levar o paciente ao óbito.

9
Fonte:https://www.historiadomundo.com.br/idade-contemporanea/gripe-espanhola.ht m, acessado em 22 de março de 2023.

O H1N1 é transmitido de um indivíduo para o outro por meio do contato com secreções de uma pessoa que esteja infectada com a doença. Acredita-se que o vírus H1N1 possa sobreviver no ar, por isso, os ambientes sempre devem ficar bem arejados.

2.2.3 SURGIMENTO DO COVID-19 NO BRASIL (2020-2023)

O primeiro caso confirmado pelo Ministério da Saúde em pessoa com o novo coronavírus no Brasil ocorreu em 26 de fevereiro de 2020. Desde então, já foram registrados mais de 28 milhões de casos no país A covid-19 é uma doença causada por um tipo de coronavírus, que leva o nome de SARS-CoV-2. Ele pertence à família de vírus de mesmo nome que causa infecções respiratórias. O vírus possui esse esse nome uma vez que seu formato, quando observado em microscópio, é semelhante ao de uma coroa.

Fonte: https://covid saude govbr/, acessado em 26 de maio de 2023

10
FIGURA 1 - PAINEL CORONAVÍRUS COM MORTALIDADE

2.3 COMO AS PANDEMIAS AFETARAM A VIDA DAS PESSOAS

2.3.1 GRIPE ESPANHOLA

Na cidade de São Paulo, a gripe espanhola, ou apenas “a espanhola!”, como os moradores da cidade se referiam, em tom alarmado, à enfermidade durante os seus piores momentos, levou 5.429 vidas em 66 dias, o equivalente a 1% da população paulistana, que era de 523.196 pessoas na época, conforme dados levantados pelo historiador Claudio Bertolli Filho no livro A gripe espanhola em São Paulo, 1918.

“As epidemias seguem sempre o mesmo roteiro”, explicou Cláudio em um seminário do Instituto Nutes, da Universidade Federal do Rio de Janeiro (UFRJ). Um roteiro que, segundo o historiador, começa com uma fase da negação, em que as pessoas seguem vivendo suas vidas como sempre, acreditando que a doença pertence a uma terra distante e não vai alcançá-las; quando a peste se aproxima, acreditam que não terá força para fazer mal a ninguém; e, quando começa a matar, defendem que os sistemas de saúde serão suficientes para dar conta da situação.

IMAGEM

Fonte: https://wwwsaopaulo sp leg br/apartes/a-gripe-que-derrubou-sao-paulo/, acessado em 11 de março de 2023.

11
2 - Destaque da gripe espanhola no jornal “A gazeta”

2.3.2 H1N1

Para ser capaz de causar uma pandemia, como é chamada uma epidemia em escala global, um vírus precisa também conseguir se replicar em seres humanos, ser facilmente transmitido entre indivíduos da nossa espécie e causar uma doença grave.

Foi o que ocorreu com o novo subtipo de H1N1, que, quatro meses depois de ser descoberto, havia se disseminado pelo planeta em grande velocidade, por meio do sistema aéreo global, como ocorreu na pandemia atual, e chegou a mais de 120 países. Em 11 de junho, a OMS declarou que o mundo enfrentava uma pandemia de gripe suína. Seu fim só seria anunciado pela agência 14 meses depois. A OMS apontou em seu último relatório emitido durante aquela pandemia que 214 países e territórios registraram casos da gripe suína.

Com o Brasil, não foi diferente e, como afirma o secretário de Vigilância em Saúde, Wanderson de Oliveira, em um estudo realizado junto com outros cientistas brasileiros e publicado em 2009, o país foi "seriamente afetado".

2.3.3 COVID-19 - IMPACTOS SOCIAIS, ECONÔMICOS, CULTURAIS E POLÍTICOS DA PANDEMIA

Os efeitos da COVID-19 no aumento das desigualdades existentes foram já documentados, por exemplo, com aqueles em empregos não especializados, menor acesso à tecnologia e aqueles que tradicionalmente suportam o maior peso do trabalho doméstico, experimentando as maiores perdas.

A pandemia de Covid-19, causada pelo vírus SARS-CoV-2 ou Novo Coronavírus, vem produzindo repercussões não apenas de ordem biomédica e epidemiológica em escala global, mas também repercussões e impactos sociais, econômicos, políticos, culturais e históricos sem precedentes na história recente das epidemias.

A estimativa de infectados e mortos concorre diretamente com o impacto sobre os sistemas de saúde, com a exposição de populações e grupos vulneráveis, a sustentação econômica do sistema financeiro e da população, a saúde mental das pessoas em tempos de confinamento e temor pelo risco de adoecimento e morte, acesso a bens essenciais como alimentação, medicamentos, transporte, entre outros.Além disso, a necessidade de ações para contenção da mobilidade social como isolamento e quarentena, bem como a velocidade e urgência de testagem de medicamentos e vacinas evidenciam implicações éticas e de direitos humanos que merecem análise crítica e prudência.

12

2.4 FORMAS DE TRABALHO NA PANDEMIA

Durante as pandemias citadas no capítulo anterior, as formas de trabalho tiveram que ser adaptadas, visando a saúde da população. As mudanças da forma de trabalho passaram e ainda passam por alterações, levando em conta que cada segmento tem sua forma de trabalho e nem sempre a mudança que pode ser positiva para um determinado setor, será também para outro.

2.4.1 GRIPE ESPANHOLA

Segundo António José Marques, autor do livro “Trabalho e trabalhadores no Brasil durante a gripe espanhola de 1.918", o governo de São Paulo orientou aos proprietários de fábricas que tratassem dos operários enfermos, mas poucas indústrias atenderam esta orientação. Algumas delas colocaram carros à disposição da Diretoria Sanitária, mas a gasolina era fornecida pela própria repartição.

Por outro lado, eram as fábricas que pediam ajuda ao governo, como ocorreu em São Bernardo, quando foram notificados 18 casos de gripe entre os operários da Firma Souza Aranha & Companhia, que solicitou a intervenção da Diretoria do Serviço Sanitário, pois trabalhavam na empresa cerca de 400 operários, e o mal tendia a alastrar-se. Quando o governo decretou feriado em São Paulo devido à epidemia de gripe, a Associação Comercial de São Paulo, que reunia industriais e comerciantes, comunicou aos associados que não havia interferência na referida providência.

Aos operários restava trabalhar até morrer, culpa deles, como se percebe no comunicado da Diretoria Sanitária: “os casos fatais têm sido observados em operários que, embora já se percebem doentes, insistem em suas ocupações laboriosas, só as abandonando quando vencidos pela afecção.” Segundo o jornal O Combate, “o Serviço Sanitário declara que o maior número de óbitos se deve atribuir aos abusos dos operários que, embora sentindo-se enfermos, insistem em continuar no trabalho e só o abandonam quando o tratamento já não pode ser eficaz.”

Entretanto, em carta ao jornal, o professor anarquista João Penteado denunciava que as fábricas não sofriam fiscalização sanitária. E acrescentava que os trabalhadores ficavam aglomerados, sob o peso de trabalho extenuante e prolongado. 21 A primeira fábrica em São Paulo que criou um posto médico foi a Companhia Antarctica Paulista: “[...] é o que deviam fazer todas as fábricas [...] aos seus proprietários não podem faltar recursos, pois que os lucros da guerra são um fato que já hoje ninguém contesta.”

13

Somente mais cinco fábricas instalaram postos médicos: Cia. Nacional de Tecidos de Juta (em duas fábricas), Cotonifício Rodolpho Crespi, Fábrica Penteado, Crystaleria Ítala e Fábrica de Fumos Progredior A relação com os postos médicos e endereços era publicada na imprensa. A Cia. Vidraria Santa Marina, no bairro da Água Branca, em São Paulo, ofereceu o salão da escola à Diretoria Sanitária para instalar um posto médico.

Esta fábrica era bastante conhecida por explorar o trabalho de crianças. Noticiou-se ainda que, em São Bernardo, a Fábrica de Tecidos Lucinda abrira um posto médico, mas por estarem enfermos vários operários, a fábrica foi fechada, sendo uma das últimas a voltar a funcionar regularmente. Somente a 6 de novembro, a Associação Comercial de São Paulo abriu um posto de socorro para distribuição de medicamentos e alimentos. No interior de São Paulo, havia fábricas que abriram postos de socorro, como a Cia. Industrial de Taubaté e a Cia. de Fiação e Tecelagem São Pedro, em Itu.

2.4.2 H1N1

A Organização Mundial da Saúde estabeleceu uma nova denominação em razão da similaridade que o vírus da "gripe suína" possui em relação à transmissão com a do vírus da "gripe comum". Por tal situação, o vírus está relacionado cada vez mais com o ser humano e cada vez menos com o animal.

A preocupação reside no grande aumento de casos constatados no mundo inteiro, mas principalmente, nos países vizinhos do Brasil, o que vem colaborando, inclusive, para o assustador aumento de casos no país, após a grave difusão da doença em nosso país em 2009/2010.

Um dos motivos que contribui para este aumento é a circulação de pessoas que, no período de férias, acabam se deslocando para outros países e adquirindo a doença.

Bem próximo desta realidade, estão também os empregados que acabam fazendo parte deste grupo, ou seja, no exercício de sua função se deslocam entre um país e outro e também são contaminados pelo vírus.

Embora muitos atribuem a responsabilidade somente aos governos, na verdade todos somos responsáveis, inclusive as empresas, especificamente o setor de medicina e segurança do trabalho, que deve atuar como agente preventivo, ou seja, este deve, antecipadamente, alertar e orientar o seu empregado quando este necessitar sair do país para exercer qualquer atividade profissional.

Os profissionais como motoristas, consultores, agentes de marketing e propaganda, auditores, tripulantes de aeronaves e navios, entre outros, são pessoas que, no

14

exercício de sua atividade, muitas vezes são obrigados a se deslocar com frequência entre um país e outro, o que os tornam vulneráveis a adquirir a doença.

2.4.3 COVID-19

Migração de escritórios tradicionais para coworkings. Diversas empresas seguirão trabalhando dessa forma, já outras estão retornando ao presencial e há aquelas que encontraram um meio termo, uma maneira de manter a flexibilidade oferecida pelo seu home office, mas sem tanto distanciamento físico.

Algumas empresas viram na implementação do coworking uma forma de economizar os altos custos de manter uma estrutura própria, mas sem deixar os funcionários 100% em casa. As empresas encontram nesses locais uma estrutura adequada para trabalhar de forma produtiva, eficiente e mais econômica. Dessa forma, as empresas conseguem dar a liberdade para seus funcionários irem em determinados dias da semana. Assim a equipe alterna entre encontros online e presenciais.

2.6 SURGIMENTO DO COWORKING NO BRASIL

No Brasil, o primeiro coworking surgiu apenas em julho de 2008, em São Paulo. Foi o The Hub (atual The Impact Hub), uma filial de uma rede londrina de escritórios compartilhados. Meses depois, surge o Ponto de Contato, também em São Paulo. Esse foi o primeiro espaço de coworking realmente brasileiro aberto no país. Começou timidamente, com apenas 16 posições.

O último censo divulgado, em 2019 pelo Coworking Brasil, aponta a existência de 1.497 coworkings no Brasil. Os espaços estão espalhados por 195 municípios e por 26 unidades federativas. Em relação a 2018, o crescimento foi de 25% no número de espaços, o que é impressionante para apenas um ano. Muitos coworkings amadurecem nesse período, com aumento de lucratividade e faturamento. Coworking não é apenas uma indústria. É uma cultura. Seu espírito significa inovação, criatividade, dinamismo, acolhimento e, principalmente, adaptação ao futuro. Flexibilidade, colaboração e comunidade são os combustíveis que movem o trabalho dos coworkers no Brasil e no mundo.

2.7 IMPACTO DA PANDEMIA COVID-19 E O AUMENTO DA PROCURA POR COWORKINGS

Um dos desafios de se pensar arquitetura no momento que estamos vivendo é como encaramos até hoje todas as questões ensinadas de forma a incentivar o convívio e interação entre as pessoas, agora estamos tendo que repensar exatamente o contrário, como manter esse contato e ao mesmo tempo garantir a segurança das

pessoas.

15

"Provavelmente o fundamental é que, anteriormente, em termos de planejamento espacial, costumávamos fazer muito trabalho para unir as pessoas e socializar. É quase como se estivéssemos fazendo o inverso agora; estamos deliberadamente mantendo as pessoas separadas ” (PETE THOMPSON ,2020)

O coworking na pandemia de covid-19 acelerou o que já era tendência. A adoção repentina do home office, por força da política de distanciamento social para o combate à pandemia, abriu as portas para outra realidade no mundo do trabalho. A flexibilidade de poder trabalhar fora da empresa, que pode ser na residência ou mesmo nos espaços compartilhados, como os coworkings, mostrou seu valor tanto para as companhias quanto para os colaboradores. Mas o formato adotado por força da ocasião impõe uma série de desafios para manter as equipes motivadas e produtivas, e, com isso, a nova tendência no pós-pandemia de adoção do trabalho híbrido chegou como solução para esses problemas.

Dados do Censo Ancev 2021, realizado pela Associação Nacional dos Coworkings e Escritórios Virtuais com 206 respondentes, dos 1.647 espaços ativos nas 100 maiores cidades do país, confirmam a perspectiva de expansão do segmento atendendo a esta nova demanda por espaços compartilhados.

Do universo pesquisado, 40,3% dos coworkings estão em processo de expansão, 12,6% foram recém-criados e 36,9% se consideram consolidados. Nos últimos 12 meses, quase 50% dos espaços registraram lucro acima ou dentro do esperado. Sobre a adesão de clientes ao formato híbrido, 16,5% dos coworkings afirmaram que um quarto dos clientes já aderiu. Os espaços de trabalho compartilhados que relataram adesão entre 75% e 100% de seus clientes ao formato híbrido chegaram a 14,6%.

“Muitas empresas que colocaram os funcionários em home office exclusivo, agora começam a perceber que com o tempo pode ser uma medida improdutiva, que reduz a criatividade dos colaboradores e pode afetar a saúde mental e física, pelo trabalho em locais inadequados e a falta de interação presencial”, comenta Patrícia Coelho, diretora de operações e novos negócios do Club Coworking, explicando o bom momento vivido pelos espaços compartilhados, pela economia que oferecem e também ao permitirem que as pessoas se encontrem, trabalhem juntas e troquem informações.

“O coworking como nós pensamos se torna um ecossistema, um hub em que pessoas trocam informações e as empresas ali alocadas podem descobrir sinergias e possibilidades de negócios entre si. É um ambiente muito rico”, diz ela.

16

GRÁFICO 3 - Aumento de procura de espaços de coworking pré pandemia

Fonte: https://coworkingbrasil.org/censo/2019/, acessado em 25 de março de 2023.

GRÁFICO 4 - Aumento de procura de espaços de coworking pós pandemia

https://menafn.com/1100614835/The-Global-Coworking-Spaces-Market-To-Take-A-H it-As-Growing-Coronavirus-Cases-Force-People-To-Work-Remotely, acessado em 12 de abril de 2023.

Um levantamento da International Workplace Group (IWG), que gerencia espaços de coworking em todo o mundo, revela que houve um aumento de 93% na busca por locais de trabalho coletivo no primeiro trimestre de 2022, em relação ao mesmo período de 2021. O Brasil está entre os países em que esse fenômeno foi verificado, com alta de 97%. A demanda por salas de reunião no Brasil, por exemplo, registrou

17

216% de crescimento entre janeiro e março deste ano, também no comparativo com o mesmo período de 2021. O resultado é acima da média global, de 166%. Segundo a consultoria imobiliária Newmark, são mais de 1,6 mil unidades de coworkings no país.

3 - REFERÊNCIAS PROJETUAIS

3.1 IMPACT HUB “O PRIMEIRO COWORKING DO BRASIL”

Arquitetos: Luiz Paulo Andrade Arquitetos; Luiz Paulo Andrade Arquitetos

Local: Pinheiros/ SP/ Área: 1200m²/ Ano:2016

CONJUNTO DE IMAGENS 3 - IMPACT HUB “O 1º COWORKING DO BRASIL”

O projeto trata da remodelação completa de dois antigos armazéns (1950s e 1960s) de dois edifícios vizinhos. Os espaços são subsolos dos edifícios voltados para a rua Teodoro Sampaio, mas que estão em nível com um praça semi-pública na Rua Virgílio de Carvalho Pinto. Portanto, forma um espaço inusitado na malha urbana de SP. Ambos os edifícios estavam completamente descaracterizados.

O trabalho dos arquitetos foi unir os 2 andares de cada edifício, interligando e criando espaços amplos e conectados, possibilitando alta capacidade e se

18

ajustando, tendo como característica principal a flexibilidade. Foi necessário fazer uma completa adequação do imóvel, considerando ainda a necessidade de climatização e renovação da qualidade do ar Tudo dentro de uma lógica de qualidade ambiental e economia de recursos e energia.

As características de inovação e criatividade dos que ali trabalham nos inspiraram e motivaram a pensar nessa arquitetura do século XX, a Bauhaus. Tomamos partido de muitos dos conceitos fundamentais desta escola, o que resultou num projeto bastante específico e de muito sucesso para o que pretendiam os empreendedores.

Simplicidade, estética e qualidade técnica. Primeiro “depenamos” os edifícios, deixando apenas sua estrutura de concreto aparente, posteriormente inserimos as infraestruturas elétricas, hidráulicas e de refrigeração, que ficaram aparentes. Por último, colocamos o recheio, divisórias e painéis, além do mobiliário. As dificuldades foram muitas, em especial a necessidade de cortes e fechamento nas lajes existentes, para a inserção de novas escadas e acessos, além da integração entre os dos edifícios.

CONJUNTO DE IMAGENS 4 – PLANTAS “IMPACT HUB”

19
20

3.2 PADDINGTON WORKS - LONDRES

Localizado na região central de Londres. O Paddington Works é um espaço de coworking e eventos voltado para startups de tecnologia e foi projetado pelo escritório Threefold Architect.

CONJUNTO DE IMAGENS 5 - “PADDINGTON WORKS”

Apesar de ter sido desenvolvido antes da pandemia, o projeto foi adaptado não só para essa nova realidade a qual mudanças tiveram que ser realizadas, mas

21

pensando também no contexto pós Covid-19, atuando como um modelo acerca do futuro dos espaços de trabalho compartilhados. Contando com 15.000 m², a linha projetual seguida foi baseada nos princípios da arquitetura de bem-estar, ou seja, o objetivo era de criar espaços mais saudáveis e felizes, o que envolve uma boa iluminação, acústica e qualidade do ar. Essas características atuarão como uma boa diretriz para o desenvolvimento deste trabalho.

Em relação aos espaços, o Paddington possui dois andares onde estão dispostos estúdios privativos, espaços de trabalho coletivo, salas de reunião e um auditório multiuso. Para a disposição desses ambientes, foi levado em consideração a questão do uso pelas pessoas, desta forma o layout apresenta uma disposição organizada da seguinte forma: os espaços de trabalho são divididos em grupos o que possibilita gerar dentro do coworking pequenas comunidades. Esses grupos estão localizados em torno de uma cozinha e um espaço social - área de convívio e possui salas de reunião e áreas para descanso próprias.

Inspirado na estação de Brunel e seu galpão de trem, o projeto emprega uma paleta de material simples e robusta, com a intenção de dar ao espaço uma qualidade industrial.

O bem estar é a intenção dos espaços, os serviços do edifício são projetados com

22
23

3.3 SEDE DO GRUPO EDITORIAL RECORD

Projeto: Editora Record

Local: São Cristóvão/ Rio de Janeiro

Escritório responsável: Studio dLux

Início da obra: 2021 e foi finalizada no meio do ano Área: 595m²

CONJUNTO DE IMAGENS 7 “SEDE DO GRUPO EDITORIAL RECORD”

O escritório foi contratado ao final de 2019, um pouco antes do início da pandemia, cujo principal objetivo era reformar um dos pavimentos do edifício da editora. Porém, posteriormente, as demandas foram mudando e a ideia para a proposta foi reformular a divisão das áreas de trabalho dos funcionários dos setores de editorial

24

e de marketing. A mudança foi tão grande que impactou não somente na forma como a equipe pensava em relação aos espaços de trabalho, mas como também alterou o comportamento no dia a dia na editora.

O projeto passou a contemplar dois andares, o terceiro e quarto, de maneira que cada um possui suas peculiaridades e identidade, sendo o uso e as cores diferentes para cada um desses espaços. O 3º andar ficou para a equipe do editorial, espaço este que se alterou consideravelmente, pois antes os editores ficavam separados uns dos outros por grupos de livros.

No entanto, o que a editora desejava era que ter uma maior integração, no sentido de que as pessoas pudessem trabalhar vendo uns aos outros, tendo assim, uma maior troca e colaboração e também uma área mais reservada para reuniões. Isso foi permitido pela forma como foram distribuídas as estações de trabalho. Os tons predominantes no ambiente são o azul e o branco e o mobiliário no amadeirado, sendo que cada mesa de trabalho é iluminada por pendentes de sobrepor

Já no 4º andar fica a equipe de marketing e o layout possui um conceito mais aberto e também conta com salas de reuniões, as cores que são um pouco mais vibrantes que no outro andar e foram escolhidas pela própria equipe, sendo o laranja, o verde-água, o branco e detalhes no amadeirado.

A estética geral do projeto é um design mais limpo e aberto, as cores estão aplicadas, de modo mais pontual nas paredes e na tubulação instalada em cada área de trabalho, que fica responsável pela parte elétrica, e em alguns móveis. A divisão dos ambientes que requerem maior privacidade se dá principalmente por divisórias de vidro, que permitem manter uma conexão visual com todo o espaço. Além disso, é possível analisar que o edifício recebe uma boa quantidade de luz natural devido as janelas laterais, o que possibilita também uma boa ventilação nos espaços. Percebe-se, pela configuração do layout, que houve uma preocupação quanto ao distanciamento necessário devido ao Coronavírus, pois não dá mais para se pensar em ambientes de trabalho que não tragam esses e muitos outros pontos como características fundamentais no desenvolvimento de ambientes na atualidade.

O mobiliário também deve acompanhar e estar alinhado quanto às novas necessidades, por isso as mesas que estão em ambos os ambientes é da Mono Design, empresa de mobiliários, e é pensada principalmente para espaços de uso compartilhado e que necessitam de flexibilidade. Outro detalhe importante na concepção do espaço foi a participação ativa dos arquitetos na realidade da Editora Record, ou seja, diretamente com o usuário, podendo entendê-los e ajudá-los plenamente na reformulação e divisão das áreas de trabalho.

25

CONJUNTO DE IMAGENS 8 - “SEDE DO GRUPO EDITORIAL RECORD”

26

3.4 QUADRO COMPARATIVO - REFERÊNCIAS PROJETUAIS

PROJETO ESTRUTURA SETORIZAÇÃO SOLUÇÕES ADOTADAS

IMPACT HUB CONCRETO APARENTE

PADDINGTON WORKSLONDRES

CONCRETO APARENTE E INTERNAMENTE SEGUE O ESTILO INDUSTRIAL

INTEGRAÇÃO DE 2 EDIFÍCIOS ESPAÇOS FLEXÍVEIS E RENOVAÇÃO DA QUALIDADE DO AR

IDÉIA PRINCIPAL DE “CRIAR” GRUPOS DE CONVIVÊNCIA EM TODO O ESPAÇO

LED BRANCO INTELIGENTE QUE AJUSTA A TEMPERATURA DA COR DA LUZ AO LONGO DO DIA DE ACORDO COM OS RITMOS CIRCADIANOS.

SEDE DO GRUPO EDITORIAL RECORD

CONCRETO OPEN SPACE MOBILIÁRIOS ADAPTADOS E FLEXÍVEIS

CAPÍTULO 04 - APRESENTAÇÃO DA ÁREA PROJETUAL

4.1 JUSTIFICATIVA DA ESCOLHA DA ÁREA

O bairro da Vila Olímpia é uma excelente localização para quem busca desenvolver algum tipo de atividade profissional, por ter uma localização privilegiada, próximo ao metrô, shoppings centers, lojas de rua, bancos, mercados, academias, hotéis e etc.

O bairro é um dos mais desenvolvidos tendo muitos arranhas-céus de luxo e áreas comerciais bem movimentadas, além de uma vida noturna com muitas opções de pubs, bares e restaurantes sofisticados.

CONJUNTO DE IMAGENS 9 - ENTORNO DA ÁREA PROJETUAL

27

4.2 PÚBLICO ALVO

O público será bem diversificado, desde jovens recém formados que não possuem capital no inicial para arcar com os custos de um escritório até profissionais que já estão no mercado há algum tempo, mas que precisaram fechar seus escritórios para reduzir custos. O espaço poderá ser utilizado também para freelancers, por estar localizado próximo de vários hotéis pode servir para profissionais que estão de passagem pela cidade e procuram um local com uma infraestrutura básica para trabalhar esporadicamente. O diferencial do espaço será a possibilidade de jovens estudantes também poderem usufruir da estrutura, com áreas direcionadas a atividades de capacitação profissional a curto e médio prazo, e também espaços onde empreendedores poderão apresentar suas ideias a investidores e empresários que buscam inovação em diversas áreas.

4.3 CONTEÚDO DO PROGRAMA DE NECESSIDADES:

- Estacionamento

- Bicicletário

- Recepção

- Sala de reuniões

- Salas de descompressão

- Áreas de trabalho ao ar livre

- Salas multiuso

- Copa

- Almoxarifado

- Depósito

- Áreas de apoio

- Espaço com estações de trabalho individual

- Espaço com estações de trabalho coletiva

- Banheiros masc./ fem/ .pcd

- Vestiário

- Auditório flexível

- Espaço para café

- Salas de criação

- Espaços de convivência

28

4.4 LEGISLAÇÃO VIGENTE E ZONEAMENTO

Fonte: https://geosampa.prefeitura.sp.gov.br/PaginasPublicas/_SBC.aspx, acessado em 22 de março de 2023.

29

4.5 CONTEXTUALIZAÇÃO DA ÁREA

ÁREA = 1.680 m²

– 9 minutos ou 700m a pé do metrô até o coworking

fácil acesso para ruas e avenidas importantes da cidade

30

5 - O PROJETO - COWORKING PLUS VILA OLÍMPIA

5.1 IMAGENS

5.2 IMPLANTAÇÃO

31

5.3 SETORIZAÇÃO

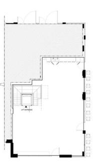
32 1 acesso de pedestre 5 salas privativas 9 - espaço de convivência 2 - acesso de veículos 6 - sanitários 10 - acesso área aberta 3 - recepção 7 - salas de reunião 11 - área aberta 4 - espaço aberto de trabalho 8 - copa 12 - cafeteria
33 5 4
34
35
36
37 5 5
SISTEMA ESTRUTURAL LAJE NERVURADA

5.7 IMAGENS

VISTA DA RECEPÇÃO - PAVIMENTO TÉRREO

VISTA DA ÁREA DE TRABALHO - 3º PAVIMENTO

VISTA DA ÁREA DE TRABALHO - 5º PAVIMENTO

38

VISTA DA ÁREA DE TRABALHO - 5º PAVIMENTO

39

6 CONSIDERAÇÕES FINAIS

Ao falarmos de usos de espaços compreendemos a importância que a arquitetura tem de trazer espaços funcionais, acolhedores e espaços onde as pessoas se sintam minimamente seguras, ainda mais levando em conta o longo período pandêmico que atravessamos.

A responsabilidade do arquiteto vai além de responsabilidades técnicas, nossa responsabilidade começa no momento que temos consciência que projetamos espaços para pessoas, com necessidades, expectativas e anseios como os nossos.

Ao analisar a situação atual mundial vemos a preocupação das pessoas quando se fala em espaços de trabalho onde tenha uma estrutura necessária para ser produtivo e também um ambiente confortável e seguro que remeta o aconchego de seu lar.

Assim, ao entendermos e relembrarmos outros períodos na história que passaram por situações similares à situação atual, compreendemos quais foram os desafios que as pessoas da época enfrentaram e quais foram as transformações e medidas adotadas.

Para entendermos como diminuir os danos causados por uma crise sanitária, temos acesso a informações de outras pandemias e como as pessoas se comportaram durante o período, como a sociedade em âmbito social, cultural e econômico conseguiu se desvencilhar dos obstáculos e como as medidas de proteção e segurança em seus espaços de trabalho foram adotadas.

Através disso tudo, entendemos que todos nós queremos apenas a sensação de bem estar seja onde estivermos, e principalmente no trabalho onde é o local que muitos de nós passamos a maior parte do nosso dia.

Com a adoção de algumas medidas, como a escolha de revestimentos e mobiliários específicos, é possível diminuir o risco de uma contaminação em massa no ambiente de trabalho.

40

7 REFERÊNCIAS

Espaços de escritórios compartilhados em São Paulo

https://www.regus.com/pt-br/brazil/sao-paulo?gclid=EAIaIQobChMIpt2596ag9wIVc3x vBB0IHQRxEAAYASAAEgJWy_D_BwE&gclsrc=aw.ds, acessado em 03 de março de 2023.

O que é um coworking?

https://www.contabilizei.com.br/contabilidade-online/o-que-e-coworking/, acessado em 05 de abril de 2023.

H1N1https://www.guiatrabalhista.com.br/tematicas/segtrab_prevencao.htm, acessado em 22 de março de 2023.

https://broffices.com.br/blog/o-crescimento-do-coworking-no-brasil/, acessado em 08 de abril de 2023.

Painel coronavírus

https://covid.saude.gov.br/, acessao em 06 de fevereiro de 2023.

Top 30 espaços de coworking em São Paulo

https://blog.beerorcoffee.com/2021/05/10/top-10-espacos-de-coworking-em-sp/, acessado em 14 de abril de 2023.

H1n1 - Sintomas

https://www.rededorsaoluiz.com.br/doencas/h1n1, acessado em 15 de maio de 2023.

Trabalho e trabalhadores no Brasil durante a gripe espanhola de 1918

https://www.researchgate.net/publication/348832998_Trabalho_e_trabalhadores_no _Brasil_durante_a_gripe_espanhola_de_1918, acessado em 18 de abril de 2023.

Delta business coworking

https://www.deltabc.com.br/blog/solucao-para-o-pos-pandemia4, acessado em 10 de abril de 2023.

O que é pandemia

https://guiadoestudante.abril.com.br/estudo/o-que-e-pandemia-definicao-historico-egravidade/, acessado em 02 de março de 2023.

Censo coworking Brasil 2019

https://coworkingbrasil.org/censo/2019/, acessado em 22 de março de 2023.

41

Diferenças entre pandemia, surto e epidemia

https://sindsaude.org.br/noticias/saude/saude-mundo/qual-e-a-diferenca-entre-pand emia-surto-endemia-e-epidemia/, acessado em 18 de abril de 2023.

Práticas na pandmeis covid 19

https://www.capterra.com.br/blog/2012/esgotamento-profissional, acessado em 14 de abril de 2023.

Projeto de interiores coworking adaptado pós pandemia

http://repositorio.ufu.br/bitstream/123456789/33500/4/ProjetoInterioresCoworking.pdf ,acessado em 22 de fevereiro de 2023.

Panorama dos coworking

https://clubcoworking.com.br/o-panorama-dos-coworkings-pos-pandemia/, acessado em 29 de março de 2023.

Incertezas sobre a pandemia - OMS

https://www.poder360.com.br/coronavirus/ainda-ha-incertezas-para-dizer-que-pande mia-acabou-diz-oms/, acessado em 12 de maio de 2023.

Impactos sociais e econômicos da pandemia

https://portal.fiocruz.br/impactos-sociais-economicos-culturais-e-politicos-da-pandem ia, acessado em 02 de maio de 2023.

Gripe H1N1

https://www.crfmg.org.br/farmaciarevista/66/10-anos-do-surto-global-de-H1N1#:~:tex t=A%20 gripe%20A%20H1N1%20 chegou,Catarina%2C%20S%C3%A3o%20Paulo%20 e%20 Tocantins, acessado em 25 de março de 2023.

Boletim epidemiológico

http://static.poder360.com.br/2021/08/boletim-epidemiologico-covid-76-20-ago-2021. pdf, acessado em 07 de maio de 2023.

Archdaily Brasil - referências de projetos de coworking

://www.archdaily.com.br/br/904027/coworking-impact-hub-luiz-paulo-andrade-arquite tos/5bc60a39f197cc91e1000326-coworking-impact-hub-luiz-paulo-andrade-arquiteto s-referencias?next_project=no, acessado em 06 de maio de 2023.

42

OBRIGADO!!

43
44

Turn static files into dynamic content formats.

Create a flipbook