Goodness Chinyere Portfolio

Page 1


PORTFOLIO CHINYERE GOODNESS

Resume

Relevant Experience

THE VICTORIA KING, NIGERIA

Part Time Personal Assistant

2022 - 2023

• Administrative Functions

• Quality Control

• Clientele Relations

• Clerical Responsibilities

• Human Resources

• Maintaining Workplace Efficiency

RUMIS ALTT (URBAN PRIMER LTD.)

Architecture Assistant Intern 2021

• Construction Site Supervisions

• Project Research

• Presentation Drawings

• Human Resources

• Clerical Responsibilties

WISDOM EXCELS MODEL SCHOOL

Volunteer

2019 - 2022

• Clerical Responsibilities

• Stock and Inventory

• Event Planning and Organisatsion

• Human Resources

• Record Keeping

Education

COVENANT UNIVERSITY, NIGERIA

Bachelor of Science; Architecture 2025

Key Modules in:

• Sustainability

• Design Studio

• Architectural History

• CAD and BIM Modelling

• Building Services and Construction

Skills

Illustrator Photoshop InDesign Revit

Microsoft Office Suite

Soft Skills

• Data Gathering, Analysis, Collation and Presentation

• Content Writing

• Cross-functional Team Play

• Critical Thinking

• Interpersonal Management

• Adaptability

Date of Birth - 31 May, 2001

Nationality - Nigerian

Contact

goodness.ogechinyere@gmail.com

+234 (0) 906 001 6950

OGUN STATE PUBLIC LIBRARY, OTA

Institutional Building

HABIB MAMA, OTA

Commercial Building

Residential Building

Specialised Home Recording Studio

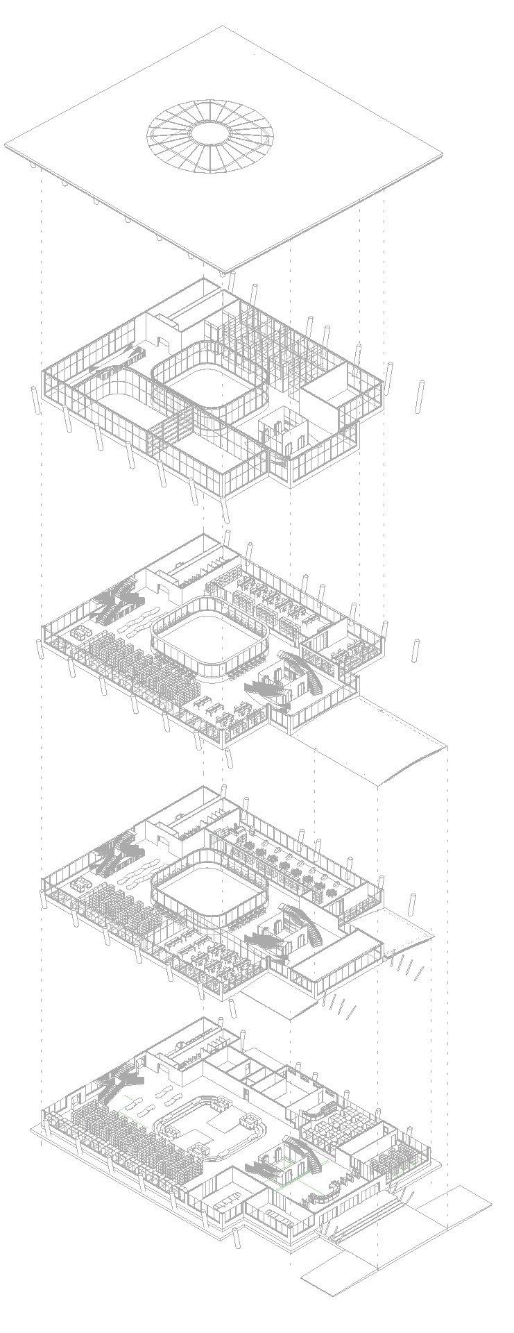
Ogun State Public Library, Ota

Institutional building | Ota, Ogun State | 6,345 sqm ROLES - SD, DD, BIM/Revit

The project is a design studio project proposed for the state government of Ogun State. The project will fulfill a need of the local community, especially for the student residents of Ota. The designer aims to redefine a comprehensive learning space throught this project. The design provides for smooth circulation, energy efficiency through natural lighting techniques, as well as accessibility for all.

The use of sandcrete blocks, curtain walls, and large steel columns allow for an ultra-modern look that serves as a landmark for the residents.

Ogun State Public Library, Ota

ROOF

Main building - Flat roof. Atrium - Pitched circular glazed roof.

3RD FLOOR

Conference hall.

Administrative offices. Toilet.

2ND FLOOR

Atrial Reading Area, General Reading Area, Adult ICT area, Teens section, Family Computers, Collaboration spaces, Toilet.

1ST FLOOR

Atrial reading area, Children’s section, Family Computers, General reading area, Collaboration spaces, Toilet.

GROUND FLOOR

Reception, Bookshop, Meeting rooms, Patisserie, Atrium, Reading area, Offices, Toilet.

The ground floor adopts an open floor design, combining the feel of a typical library space and a book cafe. It consists of a two level reception area, a sunken atrium that goes up to 4 stories high, meeting rooms, a bookshop and a patisserie located off the central area. The use of curtain walls on expanse of two of the walls as well as the glass roof of the atrium allows for proper lighing of the space and energy efficiency.

The 3rd floor has the same open design with glass partitions to demarcate space. The atrium is also enclosed to reduce the passage of noise to and from other floors. However, this floor has a higher floor to ceiling height to accomodate the theatre style seating of the 100- seater conference hall.

It also contains the building’s admistrative offices.

The 1st and 2nd floors also adopt an open floor design with the use of glass partition walls to demarcate spaces. The atrium is also enclosed with glass walls to reduce the noise filtering from the ground floor.

The first floor consists of a spacious reading area, an atrial-bar-style reading area, a children’s section and collaboration areas. The same layout is repeated on the second floor with the children’s section swapped out for a teens’ section and the reading area reduced to make space for an ICT area.

Avaia, Abuja

02 AVAIA, ABUJA

Residential building | Abuja | Approx. 1440 sqm. ROLES - SD, DD, BIM/Revit

‘AVAIA’ means of a kind; which is exactly what this home embodies. This project is a design studio project proposed for a renowned fashion designer and her architect husband. This 1440 sqm home is a blend of contemporary, modern and oriental elements which makes for the uniqueness that is this home design. The design provides for smooth circulation, energy efficiency through natural lighting techniques. The use of dark neutral tones create a sophicated, timeless and versatile ambience to the spaces.

Avaia, Abuja

ROOF

Main Residence - Hipped roof

Garage - Hipped roof

Breezeway - Glazed roof

1ST FLOOR

Family Living Room, Master Bedroom Ensuite, 4 Ensuite Bedrooms.

GROUND FLOOR

Front Porch, Foyer Powder room, Library, Media room, Conversation pit, Kitchen, Dining room, Offices, 2.5-car garage, Home gym, Laundry room, Pantry, Breezeway

The ground floor of the main building houses an oriental style foyer, a conversation pit that opens up to the top floor, a powder room, media room, a library that spans both floors, a joint office for the couple, as well as a large semi-open plan kitchen. This kitchen uses folding glass doors to separate the kitchen from the open dining area. It also houses a large enclosed laundry room and pantry. The northern wall on both floors has large expanse of glass to let in natural light. The use of curtain system

The main building is connected to the external modern industrial loft-style garage via a breezeway that can also act as an outdoor eating/seating area.

The 2.5-car garage houses a mezzanine level that contains the home gym and a shower area.

The garage was designed to accomodate two modified trucks/SUVs and two motorbikes. It also has space for shelving and storage.

and minimal block walls in the central space allows for a airy and open feel to the home.

The top floor houses a family room with a balcony overlooking the driveway, 4 ensuite bedrooms, and a master suite are coonected by a corridor that wraps around the void over the conversation pit.

The master suite contains a living area, a balcony, his and her walk-in-closet with the bathroom acting as a demarcation, the sleeping area with another balcony overlooking the driveway.

03 HABIB MAMA, OTA

Commercial building | Ota, Ogun State | Approx. 850 sqm

ROLES - SD, DD, BIM/Revit

‘HABIB MAMA’ means Mother’s Beloved. This project is a design studio project proposed for the family restaurant in Canaan City Estate, Ota. This project, the first of its kind in the estate, will fulfill a need of the residents of Canaan City Estate.

The designer aims to redefine a comprehensive dining space through this project. The design provides for smooth circulation, energy efficiency through natural lighting techniques, as well as accessibility for all. This one level, sleek contemporary design will be a landmark for the estate’s residents and will also function as a community melting pot for the various residents especially for the Sunday outings that are typical of the average Nigerian household.

Flat roof, Signage, Soffit

ROOF GROUND FLOOR

Reception, Patisserie, Kitchens, Stores, Offices, Main eating area, Outside eating area, Toilets

The 200-seater capacity family restaurant boasts one level with high floor-to-ceiling height that would enhance the dining experience.

The one-level plan allows for accessibilty while the curtain system allows for natural lighting which enhances energy efficiency. The use of booths allow for a semblance of privacy and promotes circulation ease.

The kitchen and staff area are located at the eastern side of the building which allows for easy access to the road to delivery of supplies. There is a dedicated parking area for 50 vehicles as the restaurant is an easy walking distance from most homes.

The restaurant is also located close to the Estate shuttle stand which also allows for customers to catch the Estate shuttle buses if they do not wish to walk home.

The separation of the patisserie from the main dining room and its position in the building allows for the ease of entry and exit of customers and prevents overcrowding. The patisserie also contains booths for customers to sit and enjoy their desserts and drinks.

The use of lowlights in the dining space at nights provides a cozy ambience for the late night diners which are usually adults or couples seeking private time.

04 HOME FOLEY STUDIO

Specialised Recording Studio | ARC410 Project | 81.78 sqm

ROLES - SD, DD, BIM/Revit

The brief was to provide befitting acoustic solutions to different hypothetical contexts. I was to form my own narrative around the context of a recording studio. The aim of this project was to assess a basic understanding of sound intelligibily, as well as focusing on other areas such as aesthetics.

This is a framework design for a foley studio at the home of an intermediate level animator. The space comprises of foley pits, stage, a control room, storage spaces as well as adequate space for the client to add more props over time.

The aim of the design is to create a framework that the client can modify as a project demands and his expertise increases. The design also provides ample storage for props to prevent the general clutter often attributed to foley studios as the client has a penchant for orderliness.

FLOOR PLAN

REFLECTED CEILING PLAN

SECTION

SECTION

A Foley artist is a person who re-creatses sounds for films, videos, and other media in post-production to enhance audio quality. They replace sounds that cannot be properly recorded on set.

Foley studios have viewing screens and props, as well as recording equipment to record sounds as they watch the film. These sounds include anything from the swishing of clothes, breaking of glass and footsteps.

The 6m by 12.5m space is covered with acoustic wall panels and have acoustic ceiling tiles. The space is divided into two unequal parts of 21% and 79% with the smaller part serving as the control room and the larger part as the Foley stage. The foley stage consists of 16 foley pits, ceiling hanging microphones and a large projector screen that unfolds from the ceiling, cupboards with covered with acoustic panels for storage, a tub for water, a table and a host of other props.

The Foley artists watch the film, projected on a stage against one wall, while making the sound effects with their hands and feet and an assortment of mechanical gadgets and props.

A typical Foley stage consists of a deadroom with walls and ceiling covered in broadband absorption and a hard-surface floor having multiple pits in which different walking surface materials are contained.

Turn static files into dynamic content formats.

Create a flipbook
Issuu converts static files into: digital portfolios, online yearbooks, online catalogs, digital photo albums and more. Sign up and create your flipbook.
Goodness Chinyere Portfolio by David David - Issuu