Studio 4_Tugas B2_222102179_Dave Gavrillo Juliadi

Page 1

Penyusunan Visi, Tema, Kriteria Perancangan serta Penentuan

Program Ruang dan Fasilitas - Tugas B.2

Dave Gavrillo Juliadi Chen

222102179

ASD2012 Studio Desain IV: Teknologi Bangunan Bertingkat Tinggi

Dosen Pembimbing: Azalia Yisrael, S.T., M.Pd.

Daftar Isi

Cover A bum

Daftar Isi dan Daftar Gambar (Cover)

Design Vision Statement

Tema, Kriteria Perancangan, dan Prinsip Desain

Program Ruang & Fasil tas

Variasi Denah Unit

Referensi

Daftar Gambar (Cover)

View of city with apartment bui dings and green vegetat on - Freepik, n d

Design Vision Statement: Kebayoran Green Apartment - en idei club, n d dan Freepik, n d

ii
------------------------------------------------------------------------------------------------------------------------------------------------------------------------------------------------------------------------------------------------------------------------------------------------------------------------------------------------------------------------------------------------------------------------------------------------------------------------------------------------------------------------------------------------------------------------------------------------------------------------------------------------------------------------------------------------------------------------------------------------------------------------------------------------------------------------------------------i ii
03 04 05
----------------------------------------------------------------------------------------------------------------------------------------
01 02
i 01 ---------------------------------------------------------------------------------------------------------------------------------------------------------

Design Vision Statement

01
Menciptakan Kebayoran Green Apartment yang meresponi tapak dan mampu menyediakan kebutuhan primer dan sekunder secara utuh dan seimbang.

Tema, Kriteria Perancangan, dan Prinsip Desain

Living in Abundance

Mendorong terciptanya kehidupan yang menyenangkan dan berkelimpahan dengan program ruang yang lengkap untuk memenuhi kebutuhan primer dan sekunder penghuni yang terintegrasi dengan unsur alam atau lanskap yang dibawa masuk ke dalam bangunan

Kesehatan Kekeluargaan Ketersediaan

Kesehatan merupakan kebutuhan primer fisik yang harus dipenuhi, sehingga harus diupayakan melalui desain-desain pasif seperti pencahayaan alami dan sirkulasi udara harus dipastikan cukup sesuai standar Selain itu, harus ada fasilitas penunjang kesehatan sederhana

Menerapkan desain-desain pasif

Menjamin sirkulasi dan filtrasi udara yang cukup serta pencahayaan alami yang memadai

Menyediakan fasilitas kesehatan sederhana

Kebutuhan primer sosial seperti komunikasi dan partisipasi hanya bisa didapatkan melalui kekeluargaan Kekeluargaan secara internal berarti keluarga yang harmonis, sedangkan kekeluargaan secara eksternal berarti terjalin hubungan sosial di luar keluarga, seperti komunitas Hal ini dapat terjadi jika fasilitas untuk bersosialisasi disediakan dengan baik dan memadai

Memusatkan desain unit hunian pada “dapur-ruang makan-ruang keluarga”

Menyediakan area komunal yang cukup leluasa untuk berbagai macam kegiatan komunitas bersama

Fasilitas-fasilitas untuk memenuhi kebutuhan dasar primer harus tersedia Selain itu, fasilitasfasilitas pemenuh kebutuhan sekunder juga dibutuhkan

Menyediakan fasilitas komersil sederhana yang menjual kebutuhan dasar penghuni. Menyediakan fasilitas pemenuh kebutuhan sosial.

Meningkatkan harga diri dan rasa aman melalui fasilitas-fasilitas yang tidak sekadar ada tapi lebih daripada itu.

One with Nature

Alam menjadi dasar dan penghubung yang menyatukan jawaban-jawaban dari kebutuhan primer dan sekunder manusia

Mendesain fasilitas-fasilitas dengan variasi yang mengintegrasikan unsur alam Mengintegrasikan alam ke dalam fasilitasfasilitas yang ada.

02
Fasilitas Penunjang Hunian Sumber: Archdaily, 2018
Desain Pasif yang Menyeluruh Sumber: Archdaily, 2015 Komunitas yang Aktif - Sumber: Archdaily, 2013 Fasilitas Komersil Sederhana Sumber: Archdaily, 2018 Menyatu dengan Alam - Sumber: Archdaily, 2018

Program Ruang & Fasilitas

Tabel Program Ruang dan Fasilitas

Ketentuan Intensitas Bangunan

Penataan Tower Hunian

03
Tabel Fasilitas Bangunan - Sumber: Pribadi, 2024
Luas Lahan GSB KDB KLB KTB KDH TB
Tabel FasilitasRuang Hijau atau Outdoor -Sumber:Pribadi, 2024
: : : : : : : 22524 85 m2 8m (Utara, Barat, Selatan, Timur) 55% 6 26 60% 20% 8 Lantai Sumber: jakartasatu; Pergub Jakarta No 31Tahun 2022 tentang RDTR
Unit Tipe Studio Unit Tipe 2BR Unit Tipe 3BR Green Balcony Basement Tower Hunian: Color Coded - Sumber: Pribadi, 2024
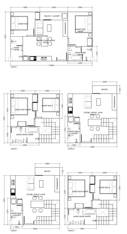
04 Tipe Studio Variasi Denah Unit Tipe 3BR Tipe 2BR Duplex (2 Lantai)
Masuk di Lantai Atas Duplex (2 Lantai)
di Lantai Bawah 1 Lantai 36m2 50m2 50m2 60m2 75m2 75m2 96m2 Variasi Denah Unit Hunian Studio, 2BR, dan 3BR - Sumber: Pribadi 2024
Pintu
Pintu Masuk

Referensi

Aguilar, C. (2015, January 26). Jardin / DP architects. ArchDaily. https://www.archdaily.com/589842/jardin-dp-architects?ad_source=search&ad_medium=projects_tab

https://freepik.com

https://peraturan.bpk.go.id/Details/228166/pergub-prov-dki-jakarta-no-31-tahun-2022

Alarc, J. (2013, November 7). 114 Public Housing Units / Sauquet Arquitectes Associats. ArchDaily. https://www.archdaily.com/445485/114-public-housing-units-sauquet-arquitectes-i-associats?ad_source=search&ad_medium=projects_tab

Caballero, P. (2018, October 25). Kampung Admiralty / Woha. ArchDaily. https://www.archdaily.com/904646/kampung-admiralty-woha

Green condominium. Cool ideas in photos. (n.d.). https://en.idei.club/24164-green-condominium.html

05

Turn static files into dynamic content formats.

Create a flipbook
Issuu converts static files into: digital portfolios, online yearbooks, online catalogs, digital photo albums and more. Sign up and create your flipbook.