ENTREGA PRIMER CORTE 7MO SEMESTRE B 2024

Page 1


Análisis Urbano

Obonuco
Daniel Patiño | Gabriela Pinzón

Altura: 2800 m.s.n.m

Temperatura: 12°c

Nariño

PASTO

Nariño

OBONUCO

Zona Consolidada | A 5km de la Ciudad

En las estribaciones del volcán galeras

COLOMBIA

En el año 2018 se determinó la estratificación del corregimiento de Obonuco. Al tratarse de un sector de carácter rural, predominan los estratos 1 y 2. Pocas edificaciones per tenecen a los estratos 3 y 4. Población

DANE

Población

Población actual 3.854

La mayoría de la población de la zona esta conformada por personas entre los 10 a 39 años.

Más del 50% de la población corresponde a mujeres

Las actividades económicas principales de la población son la construcción y la ebanistería. El número de hogares es casi directamente proporcional con las viviendas. El promedio entre ambos es del 94% de compatibilidad.

VIVIENDAS

1066

HOGARES

3854

Mapa de Riesgos Volcánicos
Santuario Flora y fauna Galeras
Riesgo implicito bajo
Riesgo implicito medio
Riesgo implicito alto
Volcan Galeras

Análisis predial para identificar las áreas con mayor concentración de

Análisis de las construcciones en el corregimiento mediante un conteo de las edificaciones existentes.

Analisis de Densidades

Se realiza un análisis de densidades con el fin de establecer las zonas de transición y consolidación en Obonuco.

Se proponen y establecen límites, indicando de manera precisa cuáles son las zonas del lugar.

Se determinan de manera más clara las zonas que se consideran de consolidación y transición.

Plano Obonuco limtes- Zona de consolidación- Zona de trancisión Plano de Obonuco con superposición
Plano Obonuco Analisis de construcciones

Análisis Sectorial

Factores Ambientales y Biodiversidad

Sistema Ambiental

El corregimiento de Obonuco posee extensas áreas de vegetación, con un entorno predominantemente rural y la presencia de varios cuerpos de agua, como la Quebrada Juanambu.

Los cuerpos de agua en esta zona representan una amenaza ambiental, ya que sirven como vías de transporte para lahares y otros flujos volcánicos. Esto supone un riesgo para muchas viviendas unifamiliares ubicadas en las cercanías de la Quebrada Juanambu, las cuales están expuestas al peligro de desaparición.

Espacios Abier tos Espacio Público

ESPACIO PÚBLICO NOMINAL

Área total: 24.819 M2 (Aprox)

ESPACIO PÚBLICO EFECTIVO

Área total: 5 278 M2 (Aprox)

Espacio público total: 30.097 M2

Equipamientos

Déficit de espacio público 7.8 M2/habitante

En el corregimiento de Obonuco, hay una notable falta de espacio público, con parques y andenes concentrados en la cabecera.

La infraestructura vial es deficiente y muchas vías están sin pavimentar, lo que limita la presencia de andenes. Hay áreas no construidas que podrían conver tirse en espacios públicos útiles.

Población total: 3.854 Falta de

Andenes Discontinuos

Cuenta con la presencia de equipamientos de primera necesidad como los de carácter educativo, religioso y de salud

Sin embargo se puede evidenciar la falta de cober tura en algunas zonas. Debido a que estos se concentran en el centro del corregimiento.

Mapa de Equipamien os
Parroquia Jesús Nazareno
IPS OBONUCO
I.E Obonuco
Mapa de Espacio Público y Espacios Abie tos

Visión Perceptual

Hitos, nodos, bordes, Limites

Centro de Salud Obonuco

Institución educativa Obonuco

Parque de Obonuco

Templo Parroquial Obonuco

Los bordes del lugar están delimitados por amplias zonas verdes y cuerpos hídricos que retienen el corregimiento.

Las vías separan lo natural de lo construido, y se ubican principalmente en el centro poblado, esto ha generado desconexión con otros sectores del Poblado que no cuentan con la misma infraestructura vial.

Los hitos y nodos se concentran también sobre el centro, y el cambio de imagen entre sectores es evidente

Morfología y Movilidad Trazados

infraestructura vial, las vías pavimentadas son escasas, y se concentran en el Parque del corregimiento.

El trazado irregular es resultado de el crecimiento no planificado, adecuaciones a la topografía, división de lotes y el carácter del sector enfocado a la agricultura y la ganadería.

Bordes de Límite

Bordes Artificiales

Bordes Ambientales

Aislamiento por bordes

Desconexión entre sectores

Mapa de Visión Perceptual

Vías en mal estado

Ausencia de andenes

Vías primarias

Vías secundarias

Trazados

Mapa de morfología y movilidad Trazados incompletos

Falta de conexión vehicular

Limite Hídrico

Los predios situados en el centro poblado muestran una adecuada compatibilidad de usos, ya que se encuentran usos mix tos, de ser vicios e institucionales.

Sin embargo, el constante crecimiento del corregimiento ha provocado una invasión de usos residenciales y comerciales en predios originalmente destinados a actividades agrícolas, generando zonas mix tas, es decir con presencia de uso agrícola y residencial.

Residencial

Mix to Insitucional

Recreativo

A grícola

Modificación del uso agrícola por residencial y comercial

Inmuebles Patrimoniales

Identificación

Obonuco cuenta con diversos elementos relevantes para el patrimonio arquitectonico y cultural.

El centro poblado se caracteriza por la presencia de la iglesia colonial y la mayoria de inmuebles con valor patrimonial.

Su uso es residencial y estan construidos en tapia y adobe.

Patrimonio

Implantación

Implantación urbana Lotes

G enerar espacio público y zonas de permanencia cercanas a la ronda hidrica.

Patrimonio

Mejorar el trazado urbano y la movilidad

Lote 1

- Adherencia a casa episcopal.

- Punto cercano al parque del poblado y a las dinamicas sociales y economicas que se desarrollan en este.

- Cercano a hitos y nodos relevantes como el templo, el centro de salud, etc

Lote 2

- Aprovechamiento de vacio urbano

- Punto cercano al parque del poblado y a las dinamicas sociales y economicas que se desarrollan en este.

- Cercano a hitos y nodos relevantes como el templo, el centro de salud, etc

Implementación de patio (Mor fologia).

- Posibilidad de generación de patios internos acordes a las viviendas tradicionales

Lote 1
Lote 2

VIVIENDA COLECTIVA PATRIMONIAL

Obonuco se encuentra a 5km de la Ciudad, en las estribaciones del volcán Galeras. Posee extensas áreas de vegetación y un entorno predominantemente rural.

Presencia de cuerpos hidricos y flujo de lahares, que representan riesgo para cier

Los parques y andenes se concentran en la cabecera corregimental. Falta de andenes, y existen vías sin pavimentar

EQUIPAMIENTOS

Presencia de equipamientos primera necesidad. De carácter educativo, religioso y de salud .

MOVILIDAD

Adecuada infraestructura vial en el centro poblado. Existen sectores con falta de conectividad.

IMPLANTACIÓN

Obonuco alberga diversas construcciones que son reconocidas como patrimonio, ya sea por su materialidad, su historia o su antigüedad. El proyecto tiene como objetivo el desarrollo de un área de 2000m2, en la que este presente un edificio de carácter patrimonial que en este caso es la Casa Parroquial del poblado. La edificación escogida está construida en tierra, y cumple con el objetivo de ser un elemento patrimonial al cual adherirse.

Este proyecto nace bajo la idea de poder preservar y respetar la esencia histórica de su entorno, y debido a esto se establecen las siguientes condiciones

EDIFICIO PATRIMONIAL CASA PARROQUIAL DE OBONUCO

ESTRATEGIAS DE INTERVENCIÓN

ÁREA DE OPORTUNIDAD

La ubicación del PROYECTO es beneficiosa, ya que se encuentra cerca del parque del poblado, que representa el principal punto de las dinámicas sociales y económicas que se desarrollan en el corregimiento. Además, se encuentra cercano a hitos y nodos de gran relevancia como el templo parroquial, el centro de salud, la institución educativa Obonuco, entre otros

Los cuerpos de agua son elementos ideales para el desplazamiento de flujos volcánicos, y existen muchas viviendas contiguas a las quebradas propensas a presentar riesgos. De acuerdo a lo anterior se propone liberar la ronda hídrica y reforestar el área, esto con el fin de generar un límite natural que evite futuras invasiones. También, se propone crear un sendero ecológico que contribuya a mejorar el déficit de espacio público que presenta el corregimiento.

Conectividad

Existen sectores con poco acceso vehicular y peatonal, dar continuidad al trazado existente permite consolidar las manzanas y refuerza la malla urbana. Se propone generar caminos peatonales que permitan mejorar la conectividad sin comprometer las zonas verdes existentes. Se generan vías de acceso restringido priorizando la movilidad peatonal.

Actualmente el espacio público es insuficiente y las zonas verdes están mal aprovechadas. Dentro de la estrategia, se propone conectar el parque del poblado con el sendero ecológico propuesto. También se ubican zonas de permanencia que faciliten las dinámicas sociales, ayuden a revitalizar la zona y contribuyan a potenciar el turismo.

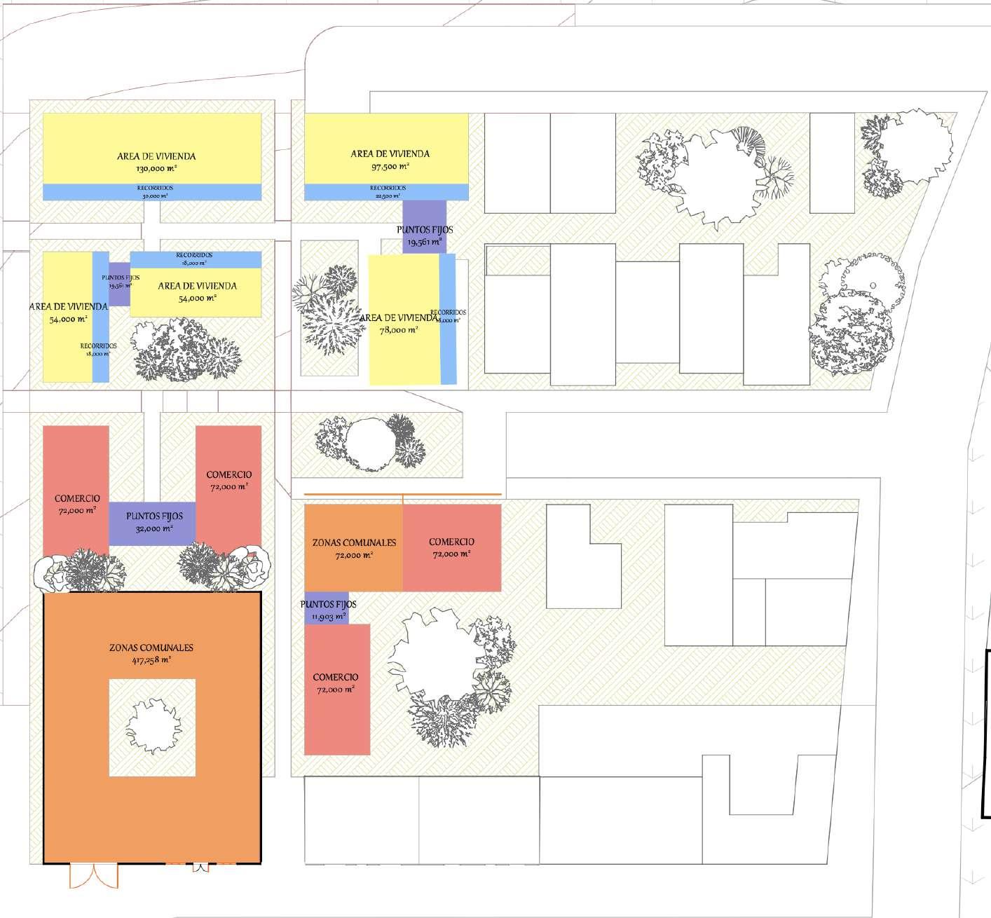
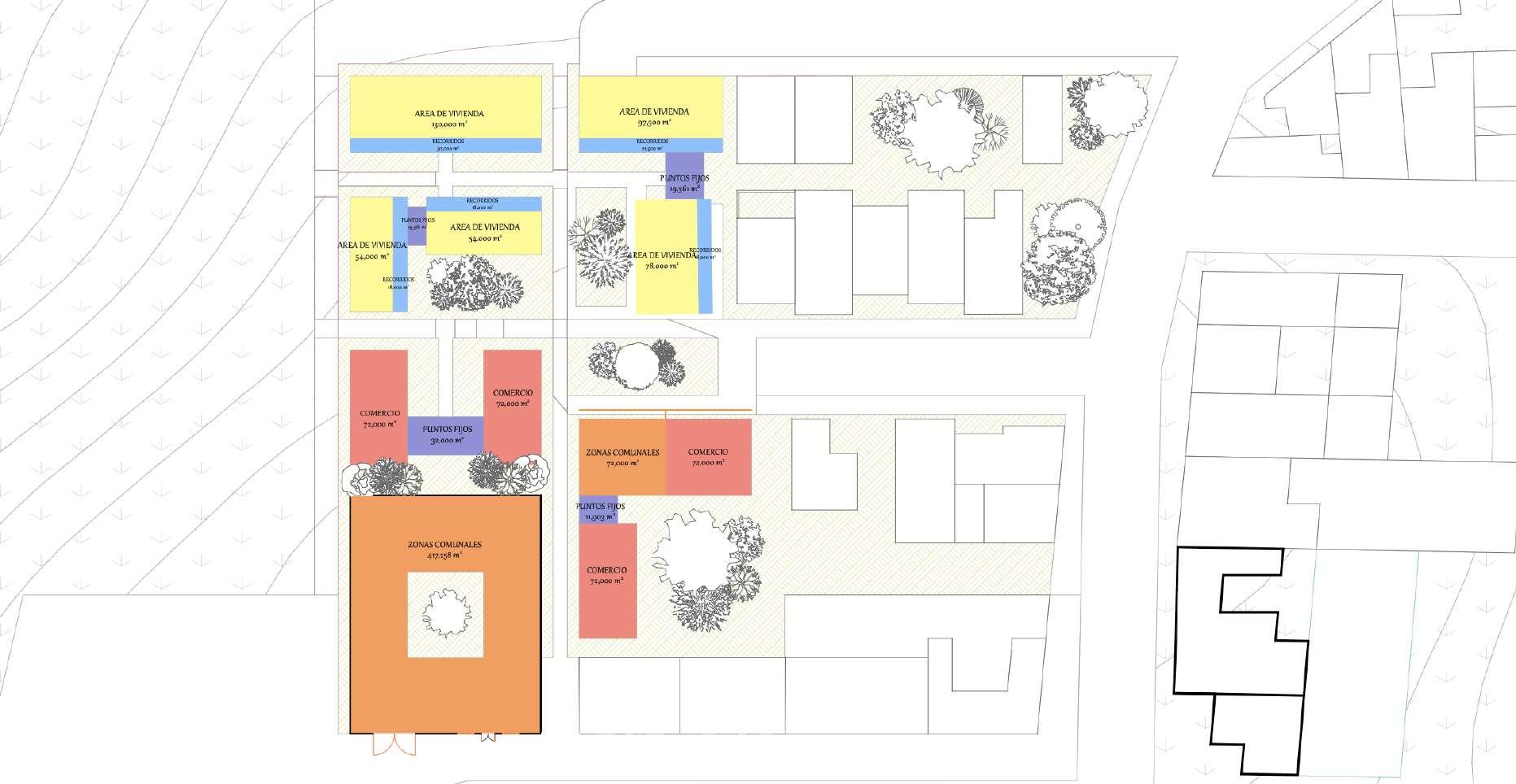
Se propone crear un plan de masas con alturas de 2-3 pisos, la configuración de la manzana corresponde al contexto morfológico, en donde el vacío es un elemento esencial para la Incorporación de patios y el desarrollo agrícola. La estrategia propone una configuración que se

Casa Parroquial de Obonuco

NORMATIVA Y CONCEPTO

Al momento de realizar la ARQUITECTÓNICA a la edificación patrimonial se tienen en cuenta los siguientes conceptos: CONSERVACIÓN - REHABILITACIÓN - CAMBIO DE USO

Para la intervención de la edificación se plantea el cambio de uso Este ajuste se justifica por la incorporación del edificio a una propuesta de vivienda colectiva, lo que implica adaptar sus funciones a nuevas dinámicas, en consecuencia, la Casa Episcopal se convierte en uno de los elementos del proyecto.

Este cambio no solo garantiza su conservación sino que también introduce dinámicas más públicas, transformando el espacio privado en un lugar accesible para la comunidad.

PROPUESTA DE VOLÚMENES PARA EL LOTE Se plantea la incorporación de volúmenes ortogonales organizados por dos ejes peatonales que atraviesan el lote. En planta esta disposición crea un juego de llenos y vacíos que permite una transición entre los espacios cerrados y abiertos.

DISTRIBUCIÓN Los pisos inferiores albergan actividades comunitarias, comerciales y de servicios, están dispuestos de forma que generan patios interiores y zonas abiertas. En los superiores se desarrollan las zonas privadas del proyecto, que corresponden las unidades habitacionales y zonas comunales.

Para la realización del proyecto de Coliving en Obonuco es necesario adherirse a una edificación patrimonial en el corregimiento.

Para el ejercicio se toma La casa Parroquial de Obonuco, debido a que es considerada una edificación patrimonial, y que además cuenta con características importantes como su material de construcción (Tapia), y distribución alrededor de un patio interno (morfología y tipologia) típicas de las casas patrimoniales.

Para el desarrollo del proyecto se preserva esta edificación y se utiliza como referente para el desarrollo de la vivienda colectiva, ademas de acoplarla a la edificación propuesta.

ADHERENCIA A EDIFICIO PATRIMONIAL CoLiving

El coliving es un modelo de vivienda en el cual los residentes comparten no solo el espacio de vivienda, sino también experiencias y recursos. En una configuración de coliving, los residentes ocupan unidades privadas o habitaciones individuales y comparten áreas comunes como cocinas, salas de estar, espacios de trabajo y, a veces, incluso servicios como comedores o actividades sociales.

IMPLANTACIÓN EN EL LOTE Los vacíos no son simples áreas de transición, sino espacios que se destinan a proyectos de permacultura. Estos patios, se convierten en áreas productivas y de cultivos para el consumo de la comunidad.

RECORRIDOS Y ZONAS VERDES Los caminos peatonales estructuran la disposición de los volúmenes, y refuerzan la conectividad dentro del proyecto. Las zonas verdes actúan como espacios de permaticulura y también como áreas de descanso. Estos espacios se plantean como extensiones de las actividades interiores, donde se fomenta la interacción social en un entorno natural.

El Personal educativo, administrativo y de salud, es esencial para el funcionamiento de los equipamientos en el corregimiento de Obonuco. Para fortalecer la oferta de servicios, es importante generar viviendas

Espacios Comunes: Los residentes comparten áreas comunes diseñadas para fomentar la interacción y la colaboración. Estas áreas incluyen cocinas compartidas, salas de estar, áreas de trabajo y espacios recreativos.

Comunidad: Uno de los objetivos clave del coliving es crear una comunidad entre los residentes. Esto puede lograrse mediante el diseño de espacios que fomenten la interacción y las dinámicas sociales dentro del proyecto.

Servicios Compartidos: la limpieza, el acceso a Internet de alta velocidad y cocina, son servicios que permiten que la vida diaria sea más conveniente.

Permacultura: el enfoque radica en la productividad, el desarrollo, ampliación y fortalecimiento de las actividades entorno a la permacultura. El proyecto se orienta hacia la continuación del entorno productivo y sostenible, mejorando la calidad de vida de sus habitantes.

ESPACIO PÚBLICO
Protección
Potencializar

COMPONENTE DE MATERIALIDAD.

Las construcciones en tierra tienen varias ventajas, como su sostenibilidad, ya que utilizan materiales naturales y abundantes, lo que ayuda a reducir la huella de carbono. También ofrecen un buen aislamiento térmico, lo que puede resultar en un ambiente interior más cómodo y en un menor consumo de energía. Además, pueden ser más económicas de construir, especialmente en áreas donde la tierra es fácilmente accesible.

Culturalmente, muchas comunidades han utilizado técnicas de construcción en tierra durante

El presente semestre se centra en el patrimonio de los diferentes sectores analizados, fundamentándose en construcciones realizadas con tierra, así como en la utilización de la madera

CONJUNTO DE VIVIENDA COLECTIVA PATRIMONIAL

EDIFICIO PATRIMONIAL

SISTEMA CONSTRUCTIVO EN TIERRA

Materialidad.

En las construcciones patrimoniales, los materiales juegan un papel crucial para preservar la autenticidad y el valor histórico de la edi cación. Por lo que es clave la uttilizacion de TIERRA Y MADERA.

En una construcción patrimonial, el uso de madera, tierra y tejas de barro es esencial para mantener la autenticidad y la funcionalidad del edi cio.

La madera, empleada en estructuras, vigas y techos, aporta exibilidad y resistencia, además de una estética cálida y natural. La tierra, utilizada en técnicas como el adobe o el tapial, proporciona un excelente aislamiento térmico y acústico, siendo un material sostenible y económico que se encuentra en los muros de muchas edi caciones patrimoniales. Las teja de barro, colocadas en las cubiertas, ofrecen protección frente a la lluvia y un buen aislamiento térmico, además de mantener la esté-

Propuesta de sistema constructivo.

Se opta por alguno de estos sistemas constructivos, ya que aparte de ser de los mas caracteristicos para la construccion con tierra, resultan ser buenas opciones para mostrar una construccion patrimonial completamente nueva, ya que se plantea la TAPIA

La tapia es un sistema constructivo tradicional que consiste en la construcción de muros mediante la compactación de tierra encofrada. Una de las características principales de este sistema es el grosor de los muros, que varía entre 50 cm y 1 m. Aunque este grosor puede parecer poco práctico, al adaptar esta técnica constructiva a la actualidad, se busca la creación de muros más delga-

BAHAREQUE

es una técnica de construcción tradicional que combina una estructura de madera o bambú con rellenos de materiales como barro, tierra, o mezcla de tierra con paja. Este sistema es una opción viable debido a la practicidad de los muros, que son de un grosor consi-

Sistemas de transporte vertical

EDIFICACIONES DE 2 O 3 PISOS

UTILIZACION DE RAMPAS

CONTEXTO PATRIMONIAL: OBONUCO

Si bien hoy en dia existen construcciones hechas en tierra que pueden contar con elevadores, gradas electricas, bandas, etc. Para esta construcción se opta por NOnes de su entorno y su historia. En este caso, el uso de estos sistemas constructivos no es necesario.

Los usuarios del proyecto no requieren este tipo de sistemas, ya que está enfocado en personal docente, administrativo e incluso personal médico del corregimiento. Estos son profesionales que trabajan en la zona, muchos de los cuales están comenzando su carrera laboral y, por tanto, son jóvenes con expectativas de un trabajo temporal en el sector.

La altura proyectada no justi ca el uso de estos sistemas: Las edi caciones plani cadas no su-

TEJA DE BARRO

Turn static files into dynamic content formats.

Create a flipbook
Issuu converts static files into: digital portfolios, online yearbooks, online catalogs, digital photo albums and more. Sign up and create your flipbook.
ENTREGA PRIMER CORTE 7MO SEMESTRE B 2024 by Daniel Patiño - Issuu