Studi Menyusun Visi, Tema, Kriteria Perancangan serta Penentuan Program Ruang dan Fasilitas.

Page 1

Studi Menyusun Visi, Tema, Kriteria Perancangan serta Penentuan Program Ruang dan Fasilitas. Perumahan Berkepadatan Tinggi Tugas B2 Cynthia Natalia Kurniawan - 212100150 Dosen Pembimbing : Karen Wijaya, M.P.W.K. Calvin Institute of Technology

Latar Belakang

Proyek ini berada di kawasan Jl. Mesjid Al

Huda No.12, Kby. Lama Utara, Kec. Kby. Lama, Kota Jakarta Selatan, Daerah Khusus Ibukota

Jakarta 12220. Telah diamati bahwa sekitar

lahan terdapatStasiun Kebayoran, SkyBridge, jalan utama dan apartemen lainnya.

Luas lahan = 20.000m2

KDB : 50% = 10.000M2

KB = 8 Lantai

KDH : 30% = 6.000m2

KTB : 55% = 11.000M2

2
Studi Menyusun Visi, Tema, Kriteria Perancangan serta Penentuan Program Ruang dan Fasilitas.

Tema

“ Menciptakan apartemen yang memberikan ruang pada penghuni untuk memiliki komunitas untuk bersosialisasi tanpa melupakan aspek keberlanjutan bangunan”
Liveability bioclimatic garden.
Source : Behance.net

Kriteria Perancangan

Merespon iklim

Bangunan dapat merespon dan memanfaatkan iklim lokal dengan baik.

Area Komunal

memberikan ruang untuk penguni untuk dapat lebih aktif bersosialisasi dengan lingkungan sekitar.

Akif dalam penggunaan tanaman hijau pada bangunan sebagai filtrasi udara yang berada di

Konservasi Energi

Meminimalisir penggunaan energi yang berlebihan.

4
Penggunaan Aktif Tanaman Hijau Studi Menyusun Visi, Tema, Kriteria Perancangan serta Penentuan Program Ruang dan Fasilitas.

Program Ruang

Lantai Dasar =Semi publik

Lantai 2- 8 = privat

5
Studi Menyusun Visi, Tema, Kriteria Perancangan serta Penentuan Program Ruang dan Fasilitas.

Program Ruang Tipikal

6
Studi Menyusun Visi, Tema, Kriteria Perancangan serta Penentuan Program Ruang dan Fasilitas.
7
Studi Menyusun Visi, Tema, Kriteria Perancangan serta Penentuan Program Ruang dan Fasilitas. Denah Unit Diagram unit tipe Studio 32 m2 Diagram unit tipe 2 BR
64 m2
8
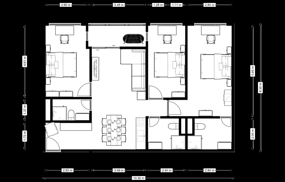
Diagram unit tipe 3 BR 96 m2 Studi Menyusun Visi, Tema, Kriteria Perancangan serta Penentuan Program Ruang dan Fasilitas.

REFERENSI

https://digilib.uns.ac.id/dokumen/download/56043/MjUwMDUx/Apartemen-dengan-Pendekatan-Desain-Biophilik-di-Jakarta-Selatan-BAB-V.pdf Behance.net

http://landscapecollaboration.com/work/mega-food-walk-mega-bangna/ https://www.archdaily.com/121743/green-light-tower-uarchitects/8_piraeus_section-and-sustainbility

Turn static files into dynamic content formats.

Create a flipbook
Issuu converts static files into: digital portfolios, online yearbooks, online catalogs, digital photo albums and more. Sign up and create your flipbook.
Studi Menyusun Visi, Tema, Kriteria Perancangan serta Penentuan Program Ruang dan Fasilitas. by CynthiaNatalia_212100150 - Issuu