Studi Preseden

Page 1

STUDI PRESEDEN

Perumahan Berkepadatan Tinggi

Tugas A1

Cynthia Natalia - 212100150

Dosen Pembimbing: Giska Raissa, M.U.P.

The Beaver Barracks Community Housing,

Ottawa, Canada

Area: 17.384 m ²

Lantai: 7

Arsitek: Barry J. Hobin & Associates Architects

Konsep design yang ingin dicapai pada

bangunan menggunakan elemen utama: sustainability, affordability dan accessibility.

Photographs :Doublespace Photography
Perspektif bangunan 1

Pendekatan Bangunan

Tim proyek Barry J. Hobin dan Associates

merancang bangunan ini berfokus pada

Sustainbility Dengan sustainbility, penggunaan energi pada bangunan 40% lebih sedikit dari

bangunan yang serupa dengan bangunan ini.

Seperti penggunaan cahaya matahari dengan

efisiensi yang tinggi dapat mengurangi

penggunaan energi pada bangunan. Penggunaan

green roof dan taman dapat membantu

penyerapan air dan udara secara alami.

Pengunaan batu bata pada beberapa bagian

fasad tidak hanya membuat bangunan terasa

lebih sejuk tetapi juga penggunaan material yang

relatif lebih murah

Accessbility yang memudahkan setiap kalangan umur agar lebih nyaman dalam beraktifvitas.

Penguhuni berada dalam jarak yang dapat ditempuh dengan berjalan kaki ke fasilitas umum.

Penghuni mendapatkan akses cara bagaimana menghemat energi, gratis penyimpanan sepeda, VrtuCar parking dan gratis ember compos untuk menanam tanaman dan program taman yang telah ditata di sekitar bangunan

Perspektif Unit Doublespace Photography Perspektif Unit Doublespace Photography Green Roof Bangunan Doublespace Photography Sisi Bangunan Yang Menggunakan Material Batu Bata dan Jendela Pada Tiap Unit Doublespace Photography
2

Affordability pada tiap unit yang ditujukan pada penduduk yang berpenghasilan rendah dan menengah. The Beaver Barracks menerapkan filosofi harga campuran yang artinya harga dari setiap unit akan berbeda-beda sesuai dengan ekonomi penyewa. Dengan keanekaragaman penghuni tersebut dapat mengilangkan stigma perumahan sosial yang kurang baik menjadi perumahan sosial dengan perekonomian yang merata.

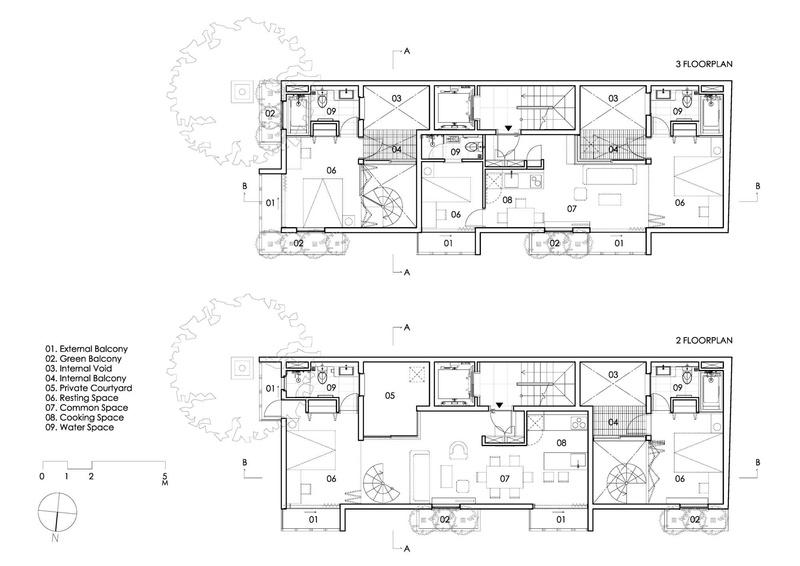
Denah Unit Level 2 (Archdaily,2014)

Denah Lantai Dasar

(Archda Denah Unit Level 1 (Archdaily,2014)

Kelebihan dari bangunan ini memiliki fokus pada

sustainbility yang membuat bangunan ini dapat

dikatakan sebagai bangunan yang hemat energi

karena bangunan tidak menggunakan AC maupun

lift. Udara disekitar bangunan akan terasa lebih

sejuk karena banyak penghijauan seperti adanya

taman di sekitar bangunan dan green roof dan

penggunaan material batu bata pada sebagian

fasad bangunan.

Kekurangan dari bangunan ini kurangnya

perancangan pada pedestrian pada sekitar bangunan. Karena pedestrian yang kurang menarik, kurangnya dorongan untuk penghuni bisa saling bersosialisasi.

Kesimpulan yang dapat dipelajari dari bangunan ini memfokuskan pada sustainbility dan penghijauan, membuat bangunan ini dapat menghemat penggunaan energi 40% lebih sedikit.

Pedestrian juga salah satu hal yang harus di pikirkan dan dirancang dengan baik, karena pedestrian sangat membantu bagaimana penghuni meresponi. Jika suatu bangunan memiliki pedestrian yang baik, design tersebut dapat membentuk kebiasaan penghuni untuk lebih banyak berjalan kaki dari pada menggunakan kendaraan umum.

3
Sisi Bangunan Yang Menggunakan Material Batu Bata Doublespace Photography Pedestrian Doublespace Photography

Residence

Ho Chi Minh, Vietnam

Area: 700 m ²

Lantai: 7

Arsitek: Trinhvieta-Architects

Rumah menjadi tempat untuk melayani

pemiliknya dengan cara menjadi

tempat perlindungan yang nyaman, aman dan memiliki suasana yang menyenangkan. Fasad

CC
Photographs: Hiroyuki Oki
5 4
bangunan

Proses Desain

Konsep yang ingin disampaikan dari bangunan ini 'dekat dengan alam' dan pemanfaatan sumber energi alami.

Bangunan ini berada di kota beriklim tropis dan dikelilingi oleh bangunan lama, tetapi desain perancangan berusaha untuk memperkanalkan jenis arsitektur baru tanpa mendeskriminasi bangunan sekitar.

Gubahan massa bangunan ini di rancangan dengan mengatur ulang volume bagian dalam bangunan dan volume dari bagian dalam bangunan tersebut dibagi menjadi beberapa volume yang lebih kecil dan memasang volume tersebut ke perimter bangunan yang berfungsi sebagai balkon setiap unit.

Balkon di design nuansa tropis dengan dinding balkon yang menggunakan bata berongga agar udara dapat mengalir memalui rongga tersebut dan tanaman hijau yang menjadi penghalang masuknya cahaya matahari secara langsung.

Dengan design tersebut dapat menciptakan suasana ruang yang santai dan nyaman.

(Archdaily,2018)

Diagram Gubahan Massa

Hiroyuki Oki Lingkungan Sekitar Bangunan
5
Hiroyuki Oki Design Balkon Hiroyuki Oki

Aspek keberlanjutan dari bangunan ini adalah banyaknya tanaman di sekeliling fasad bangunan, lalu penggunaan green roof yang bermanfaat untuk meningkatkan kualitas udara bangunan yang berada di perkotaan.

Kelebihan dari CC Residence ini berusaha untuk memberikan gaya arsitektur yang baru tetapi tetap dapat meyeimbangi dengan bangunan di sekitarnya. Lalu tiap unit memiliki ruang yang yang cukup luas untuk ditempati oleh keluarga.

Kekurangan dari CC Residence ini maintenance dari fasad bangunan seperti warna cat yang akan pudar seiring berjalannya waktu lalu membersihkan ventilasi yanng ada.

Kesimpulan yang didapatkan dari bangunan ini adalah proses design gubahan massa yang mengatur ulang volume dari gubahan massa internal menjadi suatu ruangan yang baru. Dari ruangan baru tersebut menciptakan estetika sebagai fasad bangunan dan fungsi yang berfungsi sebagai balkon untuk tiap unit pada bangunan.

6

Social Housing

Ivry-Sur-Seine, France

Area: 4100m²

Lantai: 6

Arsitek: Atelier du Pont

Berusaha untuk merevitalisasi

kawasan bekas indutri yang ingin mengembangkan perkotaan di kota Ivry, pinggiran Paris bagian selatan.

Perspektif Bangunan

Photographs: Takuji Shimmura
8 7

(Archdaily,2017)

Fasad Bangunan

Proses Desain

Tujuan dari bangunan ini dirancang untuk merevitalisasi daerah pinggiran kota Paris bagian selatan yang merupakan kawasan bekas industri. Social Housing menjadi salah satu solusi dalam merevitalisasi kota dengan memberikan tempat tinggal yang layak di daerah perkotaan yang padat penduduk. `

Bangunan dirancang dengan mempertahankan elemen

perkotaan dengan bangunan tinggi dan bangunan rumah yang sebagian besar memiliki ketinggian satu sampai dua lantai. Dengan mempertimbangkan transisi antara tipologi bangunan perkotaan dengan bangunan rumah. Pertimbangan tersebut menghasilkan perancangan bangunan yang memiliki ketinggian yang beragam yaitu dua lantai sampai tujuh lantai.

Perancangan ini bertujuan untuk menonjolkan kesatuan dan kesamaan pada bangunan yang akan dirancang.

Transisi ketinggian banguanan dari tinggi ke rendah ini tidak hanya mempertahankan elemen saja, tetapi juga tetapi juga memberikan pandangan yang mengarah pada alun-alun kecil di sisi selatan. Tipologi ini berusaha untuk mengikatkan hubungan antara kawasan penduduk yang harmonis dengan kualitas rumah individu yang mencerminkan masa lalu lingkungan masyarakat yang selalu tinggal di daerah tersebut.

Pada saat perancangan bangunan juga memperhatikan keadaan lokasi bangunan yang memiliki pontensi rawan banjir yang cukup tinggi, dengan cara menaikan unit di atas permukaan tanah. Lantai dasar dimanfaatkan sebagai tempat parkir dan area publik. Sebagian area publik tidak menggunakan perkerasan, agar adanya penyerapan air pada saat banjir.

8
Eye Bird View Bangunan Photographs: Takuji Shimmura

Material yang diguanakan ada tiga macam

batu bata yaitu, panel batu bata, batu bata dan

batu bata mashrabiya. Setiap material memiliki

manfaat dan kegunaannya sendiri. Untuk panel

bricks membantu dalam meminimalkan biaya

dan tenaga kerja.Material ini tahan terhadap

lingkungan yang ekstrim tanpa memerlukan

perawatan yang mahal, karena material mudah

untuk dibersihkan. Lalu pengabungan material

batu bata biasa dengan batu bata mashrabiya

yang membuat ruangan menjadi lebih sejuk dan

udara dapat masuk ke dalam ruangan memalui

cela batu bata mashrabiya.

Kelebihan dari bangunan ini memiliki lantai

dasar yang seperti menyatu dengan alam

karena flying bridge yang melayang di atas

permukaan yang memerikan pengalaman ruang

yang baru.

Penggunaan aksen warna biru yang simpel untuk menyatukan bangunan ini dengan kelompok

sekolah yang ada di sekitarnya.

Kekurangan dari bangunan ini penggunaan

kaca yang cukup besar pada tiap unit yang

menyebabkan cahaya matahari dapat langsung

masuk ke dalam ruangan

Kesimpulan yang didapatkan dari bangunan ini

adalah proses design dari gubahan massa yang

memberikan pandangan ke arah alun-alun kota

dan berusaha untuk menggabungkan elemen

bangunan tinggi perkotaan dengan bangunan

rumah untuk menghubungkan kualitas tempat

tinggal yang baik dengan masa lalu lingkungan

masyarakat yang selalu tinggal di daerah tersebut.

Bangunan dirancang dengan memperhatikan

lokasi bangunan yang rawan banjir dengan

membiarkan beberapa bagian lantai dasar tidak diberi perkerasan dan banyaknya pepohonan

agar penyererapan air pada saat banjir dapat lebih maksimal.

(Archdaily,2017)

tiga macam material batu batu yang berbeda. Photographs: Takuji Shimmura Tangga menuju ke unit Photographs: Takuji Shimmura Lingkungan Sekitar Bangunan Photographs: Takuji Shimmura Perspektif Unit
9
Photographs: Takuji Shimmura

Turn static files into dynamic content formats.

Create a flipbook
Issuu converts static files into: digital portfolios, online yearbooks, online catalogs, digital photo albums and more. Sign up and create your flipbook.