Information Memorandum -1 Bonavita Court Chirnside Park

Page 1


As Melbourne’s leading independent commercial property agency, we take pride in creating worth across all four points of this city.

01. Point of Interest 02. Point of View 03. Property Features

04. Property Particulars

05. Location

06. Sales Process

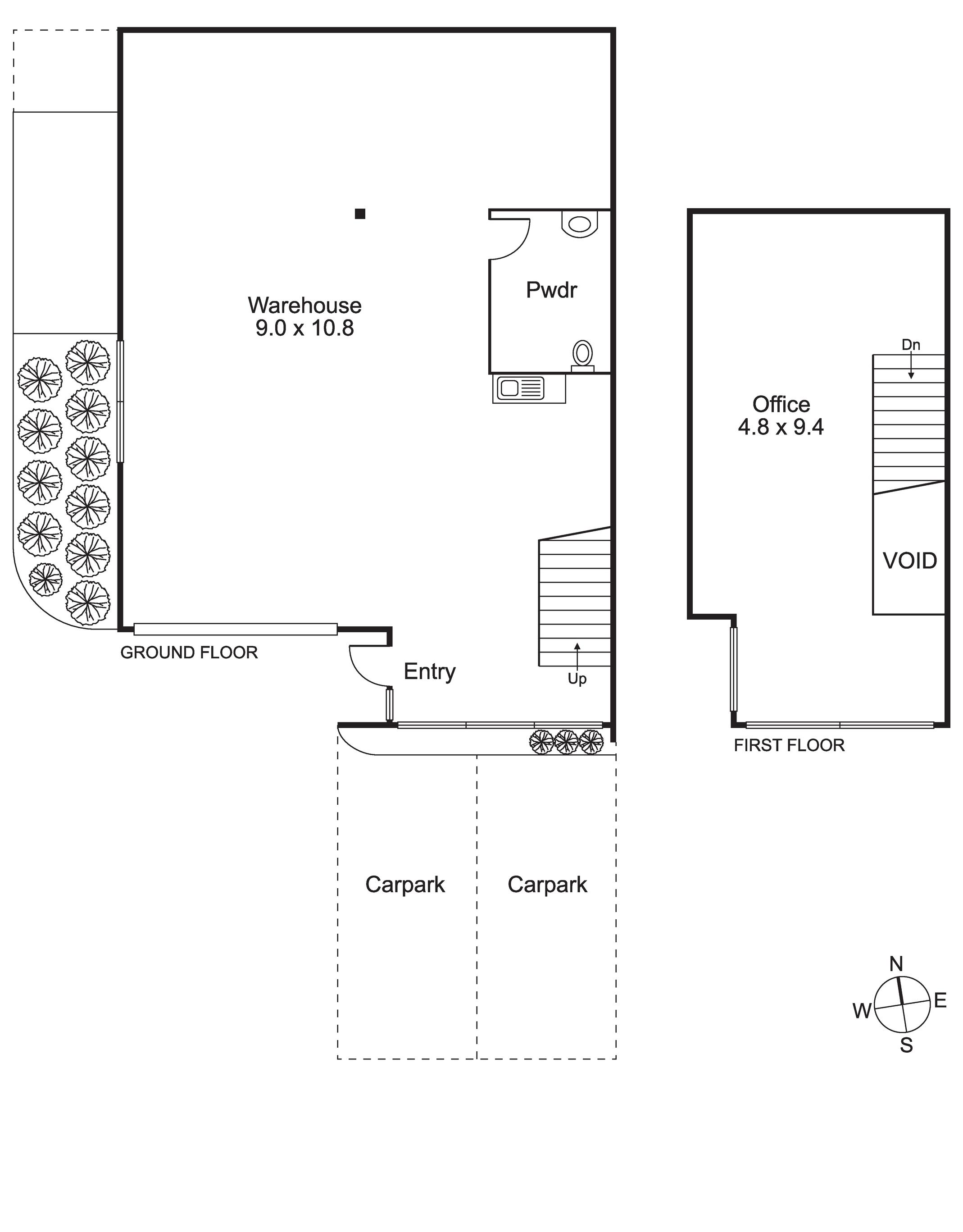
07. Appendices Floor Plan

POINT OF INTEREST

PRIVATE SALE BY CLOSING DATE - THURSDAY 14TH AUGUST 2025 AT 3PM.

Front of the pack and primed for business, this high-clearance warehouse-office combo makes a compelling case for owner-occupiers wanting presence, practicality and postcode. Totaling 145 sqm* and positioned at the gateway of a secure, well-kept estate, Unit 1 balances warehousing efficiency with a comfortable, air-conditioned office — perfect for expanding locals, online operators or storage-heavy trades.

Set on Industrial 3 zoning with 2 car spaces and visitor parking within the gated complex, this is the kind of entry-level investment your accountant would approve of. Whether you’re warehousing, shipping, packing or growing, the end-of-court setting keeps things quiet while still connecting you quickly to Maroondah Highway and the surrounding commercial drawcards — including the Chirnside Showroom Centre and its

Industrial 3 Zone 2 Car spaces car spaces.

Total building area.
Office space.
To Maroondah Highway.
To Chirnside homemaker and large retail precinct. Zoning.

High visibility, low overheads and one turn from national neighboursthis is a prime front-row seat for any operator looking to scale up or settle in.

Stan Dawidowski | 0400 448 755

stan.dawidowski@cva.melbourne

“Front row, front foot, front of the pack”

It’s old school work ethic meets new school adaptability. The diligence that Stan brings to your property transaction is one that cannot be taught — only developed over time. He’s a specialist in project work, off-theplan sales and the current status of the market. It’s his willingness to share this professional advice with you that has Stan’s customers transitioning to clients before final contracts are signed.

Charlie Hicks | 0420 643 202 charlie.hicks@cva.melbourne

“Business begins where visibility meets versatility”

Naturally business and strategy minded, but with the credentials to back it up — Charlie has a Bachelor of Business and Arts that keeps his processes sharp and campaigns organised. In saying that, his intuition has driven a large part of his success, from his relationship-building to the trust he fosters between colleagues and clients alike. It’s why CVA knew they had a leading Property Executive on their hands, and why Charlie channelled his media experience into creating worth across all points of Melbourne. Hardworking. Organised. Reliable. But those around him for more than a moment would say that he has a way of getting along with everyone. And while the saying ‘fail to plan, plan to fail’ is used by many, they’re words Charlie lives by — and it’s exactly how he got here.

The property at 1 Bonavita Court, Chirnside Park showcases a clean, modern industrial space with a range of practical and stylish improvements. The high-clearance warehouse features a clearspan layout with polished concrete flooring and exposed concrete walls, creating a robust and low-maintenance environment. A container-height motorised roller door provides easy access for deliveries and logistics. Internally, a sleek kitchenette is positioned beneath a timber staircase with stainless steel balustrading, which leads to a lightfilled first-floor office.

The office includes commercial-grade carpet, a suspended ceiling with integrated lighting and fullheight windows offering estate views—ideal for administration or client meetings. Additional features include a dedicated restroom, secure entry points and a professional finish throughout, making this a versatile and functional space for a range of business uses.

Principle Outgoings

Site Details

Title particulars

Council Rates:

$2,999.00 p.a approx. (2025)

Water Rates: $1,172.00 p.a approx. (2025)

Owners Corporation: $2,091p.a. approx. (2025)

Land Tax: $975 p.a approx. (2025) (Single Holding)

Frontage to street

8.99 metres*

Western side boundary 13.32 metres*

Eastern side boundary 14.29 metres*

Southern side boundary 9.18 metres*

Total site area 145 sqm*

Certificate of Title — Volume 11622 Folio 852

Lot 101 on Plan of Subdivision 640868J

Zoning Industrial 3 Zone (IN3Z)

Planning Overlays

Development Contributions Plan Overlay - Schedule 1 (DCP01)

Design And Development Overlay - Schedule 11 (DDO11)

All signs point to: Bonavita Court

Located in one of Chirnside Park’s most accessible and well-established industrial pockets, Bonavita Court offers an ideal setting for thriving business operations.. Here are some notable aspects and benefits of buying property in this area:

Established Industrial Precinct:

Bonavita Court is positioned within a well-regarded and growing industrial estate in Chirnside Park. The surrounding area supports a mix of light industrial, warehousing, and trade-based businesses, creating strong synergy and opportunity for collaboration or walk-in clientele.

Strategic Access to Major Roads:

The estate offers excellent connectivity to key arterials such as Maroondah Highway and Eastlink, allowing for smooth transport of goods and easy access for staff and clients travelling from across Melbourne’s eastern suburbs.

Modern, Purpose-Built Facilities:

Properties in Bonavita Court typically feature high-clearance warehouses, professional office fit-outs, container-height roller doors, and modern amenities—ideal for businesses that require a balance of storage, operations, and client-facing space.

Proximity to Residential Catchments:

With growing residential communities nearby, businesses in Bonavita Court benefit from a strong local workforce and potential customer base. It’s especially attractive for service-based or trade-related operations that rely on proximity to households.

Clean and Secure Environment:

The area offers wide internal roads, ample parking, and a well-maintained environment that reflects a professional image—important for businesses wanting to impress clients or ensure operational safety.

AND THE POINT?

Strategic. Visible. Connected.

Bonavita Court in Chirnside Park offers a prime location for businesses, combining modern facilities with excellent access to Maroondah Highway and Eastlink. Surrounded by a mix of trade and industrial operators and close to growing residential areas, it provides strong operational convenience, local workforce access, and a professional, secure environment.

All signs point to: Chirnside Park

Chirnside Park offers a strategic location in Melbourne’s eastern suburbs, with strong road connectivity via Maroondah Highway and Eastlink. Its growing residential catchment provides a reliable workforce and potential customer base, making it ideal for service, trade, or warehousebased businesses. The area features modern industrial estates with affordable space, clean surrounds, and access to nearby commercial amenities—delivering both convenience and longterm business value.

With continued development and strong local demand, Chirnside Park presents a stable and growth-friendly environment for new or expanding operations. Businesses benefit from proximity to retail centres, childcare, food outlets, and essential services, creating added convenience for staff and clients. The area’s well-maintained infrastructure and professional streetscapes enhance the overall image of businesses based

here. Supported by a proactive local council and increasing investment, Chirnside Park continues to evolve as a key commercial hub. It’s an ideal choice for businesses seeking both practicality and potential in a high-growth corridor.

And the point?

Doing business in Chirnside Park means positioning your operations in a high-growth, accessible, and business-friendly environment. With affordable industrial spaces, a strong local workforce, and proximity to key transport links, it provides the practical foundations for long-term success. The area’s blend of residential expansion, commercial amenities, and modern infrastructure makes it a strategic choice for businesses looking to grow, scale, or establish a strong presence in Melbourne’s Eastern corridor.

SALES PROCESS

PRIVATE SALE BY CLOSING

DATE

Private Sale by Closing Date Process

At CVA, we provide prospective purchasers full transparency, fairness, and respect during the Private Sale process.

To make our point, we’ve defined and outlined the process below so you’re across it prior to submitting an offer.

1. Submitting Offers:

Offers are due no later than the date and time advertised for the Private Sale campaign. They must be submitted through this form with every section completed, signed and emailed to the relevant contact persons by campaign closure. Any offers submitted after this time will be deemed as noncompliant.

Our point of view: we recommend all interested parties submit their best offer, as the vendor reserves the right to accept an initial offer or to deal exclusively with certain offers in a second round. If you can do so, we strongly encourage submitting an offer signed on a Contract of Sale as this may influence the vendors feedback and/or decision.

2. Review Process:

All offers will be compiled and presented to the vendor for their consideration after the closing of the Private Sale campaign.

Upon feedback, we will contact all parties promptly to communicate the vendors instructions relating to their offer.

In the event of a second round, we will request all offers to be provided on a contract of sale with a deposit payable to the CVA Trust account, for the vendor’s consideration.

3. Contract and Settlement

Following the acceptance of an offer, a contract of sale will be prepared. At this stage, a deposit will typically be required to secure the property. The terms of the sale, including the settlement date, will then be finalised between the vendor and the successful buyer.

We are dedicated to maintaining clear communication and ensuring that all participants are fully informed throughout the private sale process by closing date. Our goal is to provide a seamless and respectful transaction for all parties involved.

For more information, contact

Stan Dawidowski

0400 448 755 stan.dawidowski@ cva.melbourne

Charlie Hicks

0420 643 202 charlie.hicks@ cva.melbourne

Private Sale Form

Point of interest: 1 Bonavita Court, Chirnside Park

Complete this form and return it to our office via email or post by Thursday 14th August at 3pm.

ADDRESS TO: CVA Property Consultants Attention: Stan Dawidowski

POST or HAND DELIVER 18-20 Russell Street, Melbourne VIC 3000

E-MAIL

Please submit your offer to the agent you have been working with throughout the campaign.

stan.dawidowski@cva.melbourne charlie.hicks@cva.melbourne

Purchasing Entity Entity/Individual: Address:

Attention:

ABN: Telephone:

Email:

Proposed Purchase Terms

Purchase Price: Deposit (%): Settlement Period: Conditions:

Solicitor Company: Attention: Address:

Telephone:

Email:

Additional information or special conditions, which supports or clarifies a Registrant’s submission, may be annexed to this ‘Private Sale Form’. The Contract of Sale & Vendor’s Statement has been available during the marketing campaign and parties acknowledge that they have received a copy

Signed for and on behalf of the Purchasing Entity Date

Name of Signatory (PLEASE PRINT)

NOTE: The Vendor has the right, at its sole discretion, to vary the sales process, to postpone or cancel the sale of the property and to modify or add any terms and conditions to any proposed contract of sale or Vendor’s Statement which may be made available to a potential purchaser.

Turn static files into dynamic content formats.

Create a flipbook
Issuu converts static files into: digital portfolios, online yearbooks, online catalogs, digital photo albums and more. Sign up and create your flipbook.