Information Memorandum- 21 Clements Avenue, Bundoora

Page 1


As Melbourne’s leading independent commercial property agency, we take pride in creating worth across all four points of this city.

01. Point of Interest

02. Point of View

03. Property Features

05. Property Particulars

06. Location

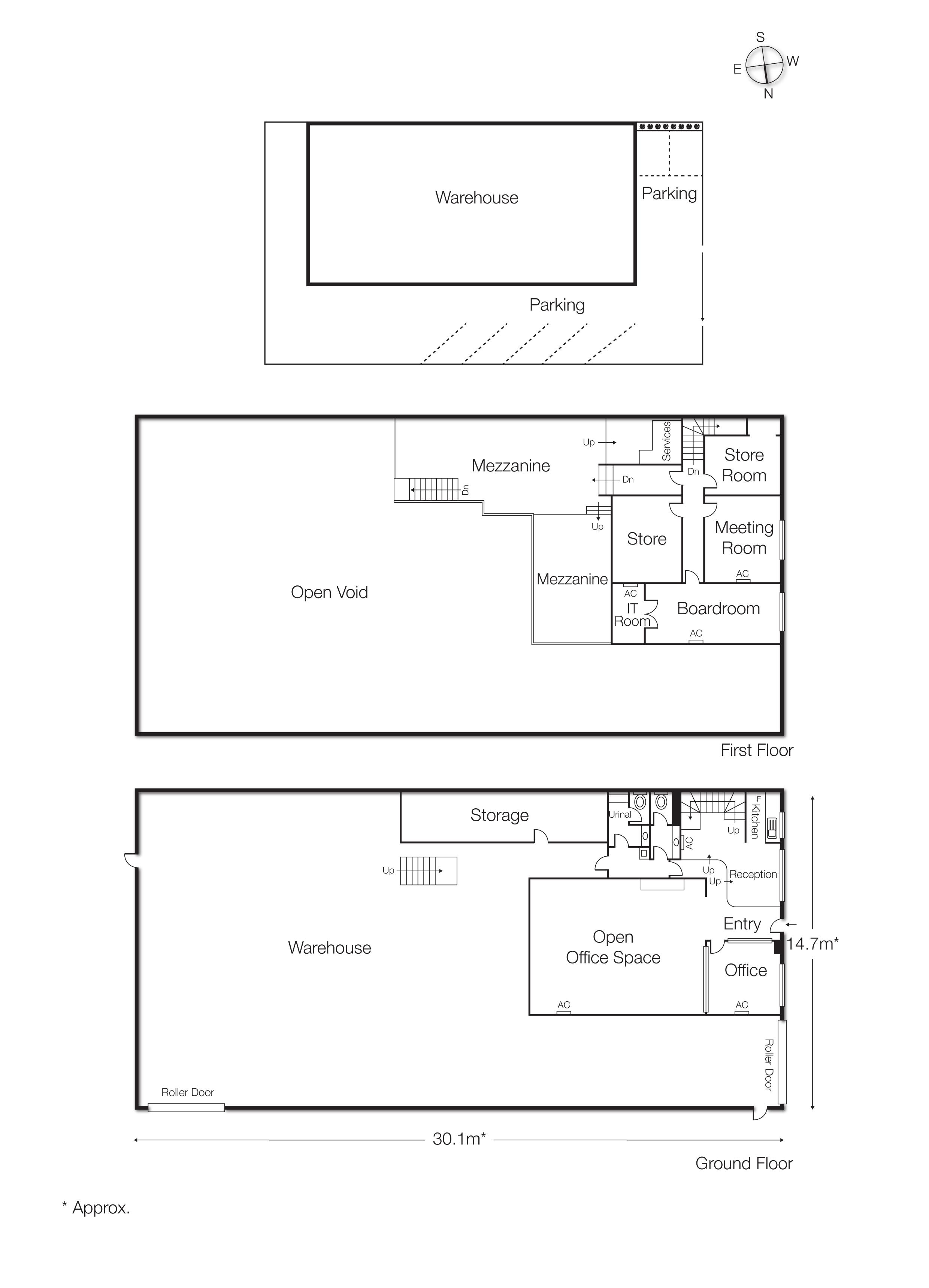
07. Floor Plan

08. Appendices Sales process

For owner-occupiers who’ve built their reputation and are ready to build equity, this is where ownership meets serious opportunity — investors, that means you, too. At 21 Clements, you’re looking at a 929 sqm* landholding with a 533 sqm* facility that’s as versatile as it is valuable. Inside, the clear-span warehouse (355 sqm*) comes with front and side roller door access — perfect for smooth vehicle flow and loading — while the 178 sqm* office (split over two levels) keeps operations sharp and climate-controlled.

Step outside and you’ve got what most northern operators dream about: a secure side yard, hardstand, and space to park, store or load, plus 6 allocated car parks. With a 20KW solar system cutting the bills and seamless access to Melbourne’s northern arterials cutting the commute, this freehold sets up perfectly for engineering, construction, manufacturing, or logistics groups who know how hard it is to get into Bundoora’s tightly held industrial scene.

Total land area.
Total building area.
Office space.
To the M80. Allocated car spaces
Zoning 20KW high-powered solar system.
Additional mezzanine storage.

With power to amplify, access from both sides, and a secure yard that doubles your options, this property keeps your operation running faster than the CityLink at 3am.

Jarrod Moran | 0413 251 621 jarrod.moran@cva melbourne

“Take your business to the next level with this Bundoora unicorn.”

The key word you’re looking for is knowledge. It’s Jarrod’s established market understanding, extensive business experience and strong work ethic defined by motivation and dedication, that makes him a seasoned asset not just to CVA but to your day to day. And it’s this energy that amplifies opportunity — in Melbourne, in the market and in the minds of his clients.

Anthony Comand | 0408 846 335 anthony.comand@cva.melbourne

“High clearance, high performance, high potential.”

Curious, driven, and never without a strategy — Anthony Comand brings a fresh edge to Melbourne’s northern commercial scene. With a background in premium residential sales and fastmoving brand marketing, he knows how to win trust, negotiate smart, and keep things moving. Anthony thrives on the thrill of the deal but stays focused on what matters most: helping clients make confident decisions that stand the test of time. Straight-talker. Detail-digger. Big-picture thinker. If there’s value to uncover, he’ll find it — and make sure you’re the first to know.

The property at 2 Clements Avenue, Bundoora, offers an excellent mix of modern office accommodation and functional warehouse space, providing a practical setup for a variety of business uses.

The office component is professionally fitted with built-in workstations, ergonomic seating, and ample natural light throughout. Reverse-cycle air conditioning ensures year-round comfort, while overhead storage, cabinetry, and data cabling create a ready-to-use and efficient workspace. A welcoming reception area with timber flooring and two modern kitchenette provides convenience for staff and visitors.

The warehouse area features a clear-span layout with high internal clearance, durable concrete flooring and a container-height roller doors for smooth loading and unloading. Heavy-duty shelving and a mezzanine level offer additional storage flexibility, while high-bay LED lighting ensures a safe and well-lit environment.

Additional features include on-site parking, a secure gated frontage and an overall layout designed to support smooth day-to-day operations. Well-maintained and thoughtfully upgraded, this property provides an ideal setting for businesses seeking space, functionality and accessibility in one of Bundoora’s most established industrial precincts.

Principle Outgoings

Site Details

Title particulars

Zoning

Planning Overlays

Municipality

Council

p.a approx. (2025) Water Rates:

p.a approx. (2025)

Land Tax (Single Holding): $3,930 p.a approx. (2025)

Frontage to street

Total site area 929.06 sqm*

Certificate of Title - Volume 09456 Folio 898

Lot 5 LP139907

Industrial 3 Zone (IN3Z)

Development Contributions Plan OverlaySchedule 1 (DCP01)

Merri-bek City Council

All signs point to: Clements Avenue.

Clements Avenue is a prime industrial address in the heart of Bundoora’s thriving business corridor. Surrounded by established operators and backed by strong transport links, education hubs, and a growing local economy, it offers the ideal foundation for businesses seeking connectivity, talent access, and long-term growth:

Strategic Industrial Location:

Clements Avenue sits within one of Bundoora’s key commercial and industrial pockets, providing an ideal setting for businesses seeking visibility and operational convenience. The area hosts a variety of warehouses, service providers and trade businesses, creating a supportive ecosystem where collaboration and referrals often flourish. Its location within the City of Banyule’s business corridor ensures strong local demand and access to established suppliers.

Excellent Transport Connectivity:

Businesses on Clements Avenue enjoy easy access to major arterials such as Plenty Road and the Metropolitan Ring Road (M80), offering smooth links to Melbourne’s north, east, and western suburbs. The route also connects efficiently to key freight and distribution hubs. Public transport options—bus routes and the nearby tram line 86-make it convenient for staff and customers to reach the area. This accessibility enhances logistics efficiency and employee satisfaction.

Access to Skilled Workforce and Education Hubs:

Located just minutes from La Trobe University and RMIT Bundoora, the area provides access to a large pool of skilled graduates and professionals. Businesses benefit from a continuous talent pipeline for technical, administrative and research roles. This proximity also opens opportunities for industry partnerships, internships and innovation collaborations with educational institutions.

Growing Local Economy and Population:

Bundoora continues to evolve as one of Melbourne’s most active northern suburbs, with steady residential and commercial development driving population and market growth. This expansion fuels demand for a variety of services—from logistics and retail to technology and healthcare—making Clements Avenue a strategic location for businesses looking to tap into a thriving, mixed customer base.

Strong Lifestyle and Amenity Value:

Beyond its business appeal, Bundoora offers an excellent lifestyle setting with parks, shopping centres, dining options and family-friendly amenities. This balanced environment attracts both employees and customers who appreciate convenience and livability. Establishing a business in Clements Avenue allows owners to operate in a professional yet welcoming community, combining work efficiency with lifestyle comfort.

AND THE POINT?

Doing business in Clements Avenue, Bundoora, puts you in a well-connected industrial hub with easy access to major roads, universities and a growing local market. It’s a strategic location that combines convenience, visibility and long-term business potential.

All signs point to: Bundoora.

Bundoora is one of Melbourne’s most dynamic and well-connected northern suburbs, offering a balanced mix of residential, educational and commercial growth. Its strategic location near major arterials such as the M80 Ring Road and Plenty Road provides seamless access to Melbourne’s CBD and surrounding industrial corridors, making it a prime choice for businesses seeking visibility and convenience. The suburb’s strong infrastructure, coupled with excellent transport links and accessibility, ensures that logistics, staffing, and customer access remain efficient and reliable.

Adding to its appeal, Bundoora is home to La Trobe University and RMIT, creating a steady flow of skilled graduates and professionals that support local business growth and innovation. The suburb continues to evolve with new developments, vibrant retail hubs, and a growing population that fuels consumer demand.

With its combination of accessibility, talent, and long-term investment potential, Bundoora presents an exceptional opportunity for both investors and business owners looking to establish a strong foothold in Melbourne’s thriving north.

And the point?

Bundoora is that it offers the perfect combination of strategic location, economic growth and long-term potential. With its strong transport connections, access to major universities and an expanding local market, Bundoora provides both stability and opportunity for growth. It’s an area where businesses can thrive, investors can expect consistent returns and future development continues to strengthen its value in Melbourne’s northern corridor.

At CVA, we provide prospective purchasers full transparency, fairness, and respect during the Private Sale process.

To make our point, we’ve defined and outlined the process below so you’re across it prior to submitting an offer.

1. Submitting Offers:

Offers are due no later than the date and time advertised for the Private Sale campaign. They must be submitted through this form with every section completed, signed and emailed to the relevant contact persons by campaign closure. Any offers submitted after this time will be deemed as non-compliant and rejected.

Our point of view: we recommend all interested parties submit their best offer, as the vendor reserves the right to accept an initial offer or to deal exclusively with certain offers in a second round. If you are in a position to do so, we strongly encourage submitting an offer signed on a Contract of Sale as this may influence the vendors feedback and/or decision.

2. Review Process:

All offers will be compiled and presented to the vendor for their consideration after the closing of the Private Sale campaign. Upon feedback, we will contact all parties promptly to communicate the vendors instructions relating to their offer.

In the event of a second round, we will request all offers to be provided on a contract of sale with a deposit to CVA for the vendor’s consideration.

For more information, contact

Jarrod Moran

0413 251 621

jarrod.moran@cva.melbourne

Anthony Comand 0408 846 335 anthony.comand@cva.melbourne

Private Sale Form

Point of interest: 21 Clements Avenue, Bundoora

Complete this form and return it to our office via email or post by Wednesday 12th November 2025 at 3pm.

ADDRESS TO: CVA Property Consultants Attention: Jarrod Moran

POST or HAND DELIVER 18-20 Russell Street, Melbourne VIC 3000

E-MAIL

Please submit your offer to the agent you have been working with throughout the campaign.

jarrod.moran@cva.melbourne anthony.comand@cva.melbourne

Purchasing Entity

Entity/Individual: Address:

Attention:

Telephone: Email:

Proposed Purchase Terms

Purchase Price:

Deposit (%): Settlement Period: Conditions:

Solicitor Company:

Attention: Address:

Telephone:

Email:

Additional information or special conditions, which supports or clarifies a Registrant’s submission, may be annexed to this ‘Private Sale Form’. The Contract of Sale & Vendor’s Statement has been available during the marketing campaign and parties acknowledge that they have received a copy

Signed for and on behalf of the Purchasing Entity Date

Name of Signatory (PLEASE PRINT)

NOTE: The Vendor has the right, at its sole discretion, to vary the sales process, to postpone or cancel the sale of the property and to modify or add any terms and conditions to any proposed contract of sale or Vendor’s Statement which may be made available to a potential purchaser.

Turn static files into dynamic content formats.

Create a flipbook
Issuu converts static files into: digital portfolios, online yearbooks, online catalogs, digital photo albums and more. Sign up and create your flipbook.
Information Memorandum- 21 Clements Avenue, Bundoora by CVA Property Consultants - Issuu