As Melbourne’s leading independent commercial property agency, we take pride in creating worth across all four points of this city.
01. Point of Interest 02. Point of View 03. Property Features
04. Property Particulars
05. Location
06. Sales Process
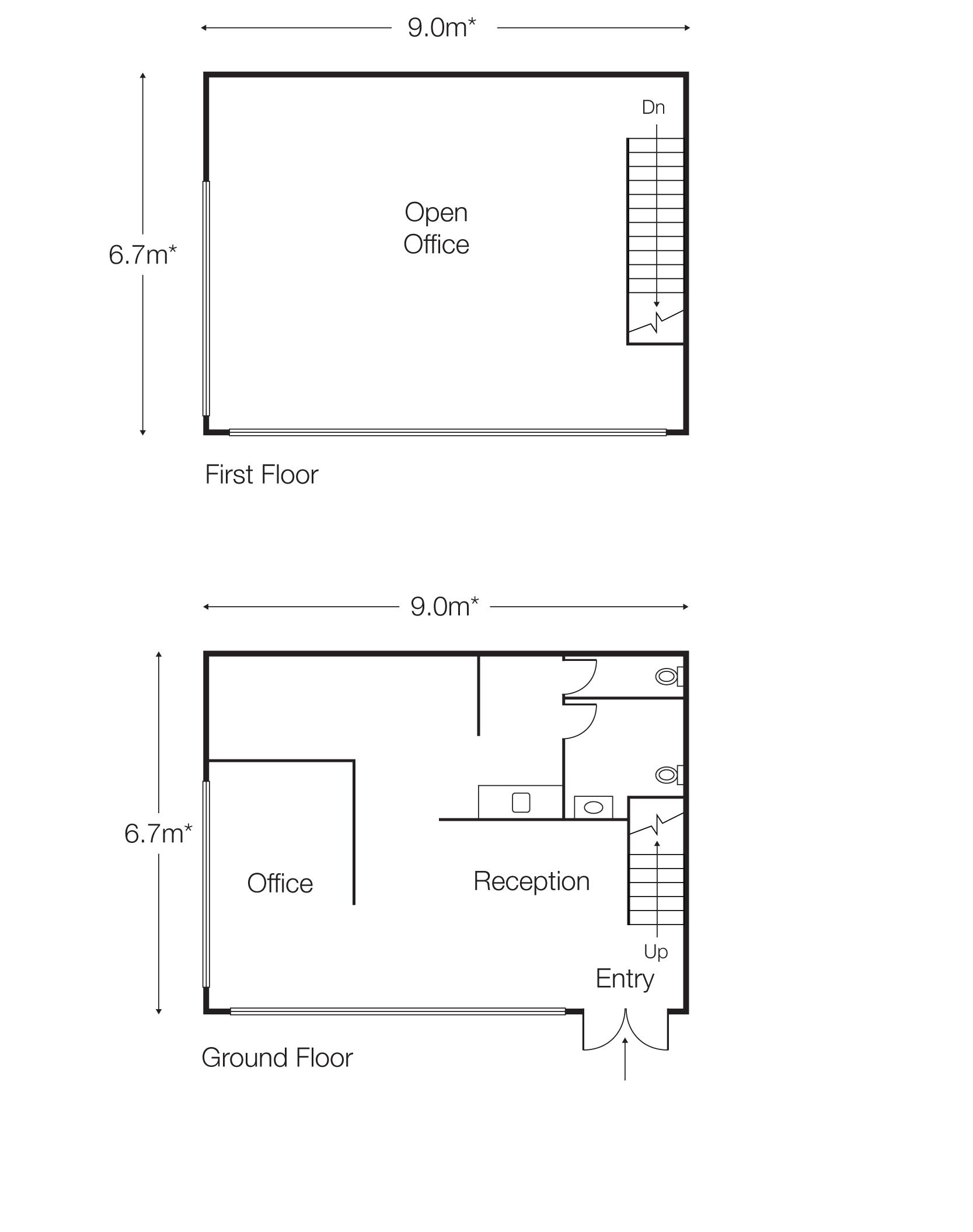
07. Appendices Floor Plan

POINT
Private sale by closing date: Thursday 13th November 2025 at 3pm.
Not every corner office comes with its own corner title, but this classy Port Melbourne investment does. 8/3 Westside Avenue stands proudly on a prominent corner, packaging visibility, convenience and reliability into one neat commercial asset. Inside, 130sqm* unfolds across two self-contained levels — light-filled, cleverly laid out and complete with modern amenities, a kitchenette and ducted climate control.
Outside, 5 on-site car parks and the Nexus Café & Function Centre make it tenant-friendly without lifting a finger. The real clincher? A freshly inked lease to Whales Regional Workforce Pty Ltd returning $30,000 pa + GST + outgoings, locked in until 2028 with options beyond. With the CBD and freeways at your doorstep and capital growth baked into the location, your returns are about as seamless as getting onto the Citylink. Total building area. Per annum + GST + Outgoings. New agreement commenced 14/7/2025.
130 sqm*
$30,000
Three (3) Years Air Conditioned

Connectivity here isn’t a perk, it’s the whole point. Businesses thrive on the access and investors thrive on the stability it brings.


Charlie Hicks | 0420 643 202 charlie.hicks@cva.melbourne
“Your business deserves the spotlight. Start with this corner office”
Naturally business and strategy minded, but with the credentials to back it up — Charlie has a Bachelor of Business and Arts that keeps his processes sharp and campaigns organised. In saying that, his intuition has driven a large part of his success, from his relationship-building to the trust he fosters between colleagues and clients alike. It’s why CVA knew they had a leading Property Executive on their hands, and why Charlie channelled his media experience into creating worth across all points of Melbourne. Hardworking. Organised. Reliable. But those around him for more than a moment would say that he has a way of getting along with everyone. And while the saying ‘fail to plan, plan to fail’ is used by many,

Jordan Carroll | 0467 628 951 jordan.carroll@cva.melbourne
“Built for business. Bought for investment.”
Some things about real estate can’t be taught — like innovative marketing tactics, effortless relationship building, and unwavering ethical standards — and Jordan has naturally brought all of these to the table. Passionate. Principled. Charismatic. His personable and genuine nature will see your trust in him stay sky-high, while your needs and ambitions get the same treatment at the top of his priority list. Jordan’s deep commitment to excellence and continuous improvement underpins his every move, making your next one in the market the strongest so far.

The property at Westside Avenue showcases a modern, versatile and well-maintained office environment. From the moment you step inside, you’re greeted by a spacious and professional reception area designed to make a strong first impression on clients and visitors. Beyond the reception lies a thoughtfully planned office layout, featuring open-plan work areas that encourage collaboration, along with private offices and meeting rooms for focused discussions.
A bright, glass-partitioned boardroom captures plenty of natural light through large windows, creating a refreshing atmosphere that promotes productivity. The entire space is fully carpeted and complemented by ducted heating and cooling to provide comfort all year round. High-quality finishes, suspended ceilings and recessed lighting contribute to the property’s polished and professional appeal.
Included is a well-appointed kitchenette and amenities designed to support day-to-day operations. The building also includes ample on-site parking, making it ideal for both staff and visitors, with easy access for deliveries or client meetings. The premises are secured and well-lit, ensuring safety after hours.
Strategically located in one of Port Melbourne’s most accessible commercial hubs, the property benefits from proximity to major arterial roads, the West Gate Freeway and the Melbourne CBD. Its position within a thriving business precinct offers excellent exposure and convenience, surrounded by established enterprises, cafes and lifestyle facilities. If you are looking to invest this property delivers a complete package of accessibility, comfort and long-term growth potential — a truly smart choice for any modern business.


Principle Outgoings
Title particulars
Council Rates:
$2,200 p.a* + GST (2025). Water Rates: $1,100 p.a* + GST (2025)
Owners Corporation:
$2,800 p.a* + GST (2025) Land Tax: TBC
Certificate of Title — Volume 10797 Folio 540 Lot. 108 PS300001
Zoning Commercial 2 Zone (C2Z)
Planning Overlays
Municipality
Design And Development Overlay - Schedule 74 (DDO74) Environmental Significance Overlay - Schedule 1 (ESO1)
City of Melbourne

All signs point to: Westide Avenue
Westside Avenue offers a prime business location combining modern facilities, great accessibility and strong investment potential.. Here are some notable aspects and benefits of buying property in this area:
Great Location:
Westside Avenue offers easy access to major roads and transport routes, making it convenient for staff, clients and deliveries. Its close proximity to key business hubs and main freeways ensures smooth connectivity to the city and surrounding areas.
Modern Area:
The avenue is lined with well-maintained, contemporary commercial buildings — perfect for offices, showrooms, or service-based businesses. The environment feels professional and organized, creating a good impression for both clients and partners.
High Visibility:
Being positioned along main avenue gives businesses strong street exposure and branding opportunities. The steady flow of passing traffic helps attract attention, making it ideal for companies that benefit from visibility and accessibility.
Convenient Amenities:
Westside Avenue is surrounded by cafés, restaurants, and local services, offering convenience for employees and visitors alike. This balance of business and lifestyle amenities supports productivity and provides a pleasant working environment.
Growing Value:
The area continues to attract investors and tenants due to its strategic location and modern infrastructure. Property values and rental demand are on the rise, making it a solid choice for both business operations and long-term investment potential.
AND THE POINT?
Doing business in Westside Avenue offers prime exposure, modern facilities and seamless access to major transport routes — ideal for growth and visibility.


