TRABAJO DE INVESTIGACIÓN 2

Page 1

43

MOHR LIFE RESORT

Título: Morh Life Resort.

Autor: noa* network of architecture.

Ubicación: Lermoos, Australia.

Año: 2018.

Área: 430 m2

Categoría: Comercial Subcategoría: Spa

El estudio del Tirol del Sur ha sabido aprovechar la asombrosa belleza natural del corazón de Tirol, Austria, al diseñar un edificio contemporáneo que cautiva los sentidos. En octubre de 2018, se inauguró la nueva zona de bienestar del Mohr Life Resort en Lermoos, una de las zonas de esquí más antiguas.

46 MOHR LIFE RESORT

CONCEPTO

El proyecto fue meticulosamente concebido teniendo en cuenta el terreno de suave pendiente, desplegándose en dos niveles que generan una diferencia de altura crucial para la construcción de la piscina. El resultado es un edificio sobrio y ligero que se integra armoniosamente en el paisaje circundante. Esta integración se logra mediante la combinación de formas simples: cubos de vidrio dispuestos en los dos niveles conforman la estructura básica del edificio, creando una cuadrícula que define su esqueleto arquitectónico.

47

PROYECTO

La nueva estructura de vidrio y cemento fue cuidadosamente construida de forma orgánica en una suave pendiente. Desde esta posición privilegiada, ofrece una vista panorámica única del espacioso valle. La nueva zona de bienestar se despliega en una expansión de 600 m², destacando una infraestructura techada erigida desde cimientos y una zona al aire libre con piscina. Esta última, conecta ambos edificios mediante una extensión central hacia el spa. La estructura de vidrio y cemento se proyecta horizontalmente para formar una inclinación artificial, la cual encuentra su eco en los muros de piedra seca.

48 MOHR LIFE RESORT

SOBRE EL PROYECTO

El uso de una superficie de vidrio reflectante proporciona un efecto escénico inesperado. Pero hay más. La piscina discurre a lo largo del frente de cristal del spa, duplicando así la imagen de la montaña y creando impactantes efectos. Este diseño no solo realza la conexión visual con el entorno natural, sino que también crea una experiencia sensorial única para los huéspedes.

Aunque la estructura exterior se define por líneas y formas marcadas, sus rasgos se suavizan y vuelven más orgánicos una vez que el espectador entra en el edificio. Las zonas de relajación fueron diseñadas para transmitir la sensación de estar en un escenario teatral con vistas a la gran montaña que se encuentra delante. Este enfoque no solo realza la conexión con el entorno natural, sino que también brinda una experiencia estética y sensorialmente.

La planta baja también cuenta con un salón privado; un Spa y sauna escénica para aproximadamente 20 personas con un mini bistró que recuerda a las salas de cine. Por último, se encontraría una escalera de caracol que se ubicaría en el centro del edificio y donde lleva a los clientes a la primera planta donde les esperan 10 "escenarios" chill-outs simétricos.

La piscina representa la extensión natural de la zona de bienestar. Se extiende al aire libre y cuenta con zonas chill-out que ofrecen diferentes experiencias sensoriales. Seis "cajas de islas" situadas al borde de la piscina.Se utilizaron fuentes de luz específicas para proporcionar iluminación, incluidas luces ambientales inspiradas en un único motivo: las luminarias se presentan en diferentes versiones: pueden ser lámparas escénicas o un hilo de bombillas que recuerda las luces de un camerino de teatro.

49

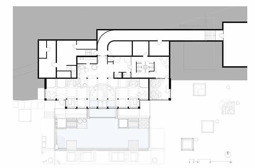
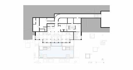
PLANO VACÍO

PLANTA I PLANTA BAJA

50 MOHR LIFE RESORT

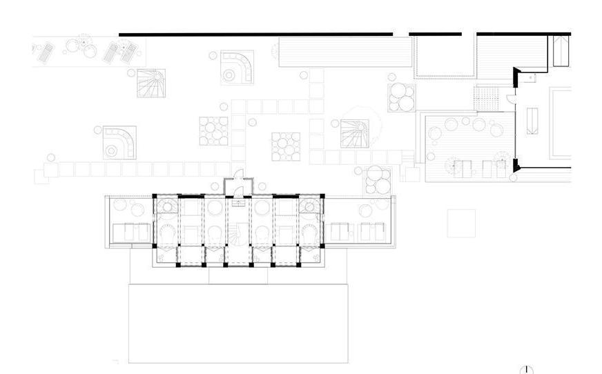
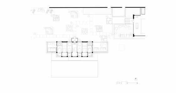
ANÁLISIS CIRCULACIONES

PLANTA I PLANTA BAJA
51

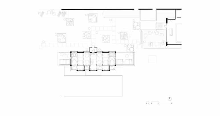
ANÁLISIS ILUMINACIÓN NATURAL

PLANTA I PLANTA BAJA
52 MOHR LIFE RESORT

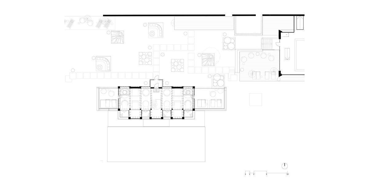
ANÁLISIS ACESSOS

ANÁLISIS DISTRIBUCIÓN

Recepción

Zona de descanso

Zona de duchas

Sauna

Vestuarios

Piscina Piscina

Acceso Principal
53

ANÁLISIS ESPACIOS Y MATERIALES

Cemento pulido
54 MOHR LIFE RESORT
Cemento con resina Senza Azulejo Pacal gris efecto cemento
55

Turn static files into dynamic content formats.

Create a flipbook
Issuu converts static files into: digital portfolios, online yearbooks, online catalogs, digital photo albums and more. Sign up and create your flipbook.
TRABAJO DE INVESTIGACIÓN 2 by Cristal Mínguez - Issuu