1. Wetgevend kader groenschermen
Vergunningsplicht
De vergunningsplicht wordt als basisvertrekpunt gebruikt om de wetsopbouw te verduidelijken.
Met het decreet van 25 april 2014 betreffende de omgevingsvergunning maakte de Vlaamse overheid komaf met de splitsing tussen de verschillende vergunningen (stedenbouwkundige-, verkavelings-, milieu-, sociaaleconomische- en natuurvergunning) en zijn deze nu verenigd in de omgevingsvergunning met de verschillende addenda die als bijlage worden gevoegd (Vlaanderen, z.d.).
Elk bedrijf is volgens art. 6van het OVD verplicht tebeschikken over een omgevingsvergunning voor projecten die onderworpen zijn aan de vergunningsplicht vermeld in art. 5 van het decreet.
Daarbij moet de vergunning onder andere voldoen aan de stedenbouwkundige voorschriften die omschreven staan in de toepasselijke ruimtelijke plannen De vergunning kan namelijk volgens art. 4.3.1. §1 VCRO worden geweigerd alsde voorschriften niet worden vervuld. Deze voorschriften hebben dus een verordenende kracht en leggen onder andere de aanleg van een groenscherm op
Daarnaast is er ook de goede ruimtelijke ordening (art. 4.3.1. §2 VCRO) die gerespecteerd moet worden. Deze beoordelingsgrond is voor interpretatie vatbaar en daarom specifiek te bekijken per bedrijf.
De voorwaarde voor een groenscherm wordt opgenomen als bijzondere voorwaarde in de omgevingsvergunning. Dit wordt veelal verplicht vanuit de stedenbouwkundige voorschriften in de ruimtelijke plannen (stedenbouwkundig luik). Daarnaast wordt dit als sectorale milieuvoorwaarde opgenomen voor rubriek 2 (afvalstoffen) en rubriek 63 (opslag en ontwatering vanbagger- en ruimingsspecie) van VLAREM II (art. 5.2.1.5. §5 & art. 5.63.4.1. §2 VLAREM II).
Er kan worden afgeweken van de aanplanting van een groenscherm, maar dan moet dit wel uitdrukkelijk omschreven staan in de ruimtelijke plannen (J. Van Den Eeckhout, persoonlijke communicatie, 5 april 2024).
Een zonevreemd bedrijf (vb. een industrieel bedrijf in agrarisch gebied) (Departement Omgeving, z.d.), zal steeds een groenscherm opgelegd krijgen. Zeker in woongebied is dit noodzakelijk om visuele hinder te vermijden ten opzichte van de omwonenden (J. Van Den Eeckhout, persoonlijke communicatie, 1 april 2024).
Voor de werken met betrekking tot de aanleg van een groenscherm kan het zijn dat er een vergunningsplicht is voor de vegetatiewijziging of de wijziging van kleine landschapselementen of de vegetatie ervan via het addendum V1 van de omgevingsvergunning. Deze wettelijke bepaling is omgeschreven in de artikelen 13. §4, §5 van het NatD en 8. §1, §2 van het NatB. Aansluitend bepaalt art. 9 van het NatB de mogelijkheden tot vrijstelling of afwijking.
De beoordelingsgronden in art. 15. §2.1°, 2° NatB bepalen dat er in de omgevingsvergunning opgelegd wordt rekening te houden met de bestaande toestand van de natuur in de omgeving en dat het nieuw aan teplanten groenscherm hierin moet worden geïntegreerd.
Nu een beeld is geschetst van de vergunningsplicht als basis, worden de wettelijke bepalingen die betrekking hebben op groenschermen, verder uitgewerkt. Er wordt uitgegaan van de planologische-, stedenbouwkundige- en milieuwetgeving.
1.1.Wetgevend kader ruimtelijke planning
Gewestplan:
Het Koninklijk Besluit (KB) van 28 december 1972 betreffende de inrichting en toepassing van de (ontwerp)gewestplannen bepaalt voor het Vlaamse Gewest de algemene regels voor de opmaak van deze plannen. De (ontwerp)gewestplannen omschrijven de bestemmingsgebieden en het gebruik van de grond.
Aanvullend kunnen stedenbouwkundige voorschriften worden opgenomen (Departement Omgeving, 1972)
In deze verordende stedenbouwkundige voorschriften zijn gebieden bestemd als “industriegebied” verplicht een bufferzone te omvatten (art. 7.2.0 K.B. 28 december 1972). Deze bufferzone moet in zijn staat bewaard worden of als groene ruimte ingericht worden om te dienen als overgangsgebied tussen gebieden waarvan de bestemmingen niet met elkaar teverenigen zijn of die ten behoeve van de goede plaatselijke ordening van elkaar moeten gescheiden worden (Departement Ruimte Vlaanderen, 1997).
Verder zijn zowel een regionaal alseen lokaal bedrijventerrein met openbaar karakter eveneens verplicht een bufferzone te omvatten volgens het KB Bij de inrichting van het gebied wordt rekening gehouden met de natuurlijke en landschappelijke kwaliteiten van het terrein en de onmiddellijke omgeving. Hierbij wordt er aandacht besteed aan een aantal zaken waaronder ook de breedte en de wijze van aanleg van deze omringende bufferzone Het is de Vlaamse Regering die kan bepalen dat een bijzonder plan van aanleg dient goedgekeurd te worden voorafgaand aan de ontwikkeling van dat gebied (art. 7.4.2.4° VCRO) (Departement Omgeving, 2017).
Als laatste zijn KMO-zones en transportzones nog de belangrijkste bestemmingsgebieden die een bufferzone moeten omvatten (Departement Omgeving, 2017).
Uit bovenstaande blijkt dat er heel wat bedrijven vanuit hun bestemming in het gewestplan verplicht worden om een bufferzone te voorzien rondom hun bedrijventerrein. De stedenbouwkundige voorschriften zijn bindend voor overheid en burger (art. 4.3.1. §1.1° VCRO) en behouden hun verordenende kracht tot zolang de plannen niet worden vervangen (art. 7.4.4. §1 VCRO)
Bijzonder plan van aanleg (BPA):
Dit plan geeft op gemeentelijk niveau een gedetailleerde bestemming aan een specifiek gedeelte van het gemeentelijk grondgebied. Hierbij worden ook stedenbouwkundige voorschriften omschreven die eveneens bindend zijn voor overheid en burger (art. 4.3.1. §1.1° VCRO).
De bufferzone wordt als bestemmingsgebied op het grafisch plan aangeduid en in het groen ingekleurd, vaak rondom een industrieterrein. Verder specifiëren de stedenbouwkundige voorschriften hoe deze bufferzone er moet uitzien (J. Van Den Eeckhout, persoonlijke communicatie, 12 maart 2024):
Voorbeeld
Bij de stedenbouwkundige voorschriften van het BPA Geeroms nv wordt in art. 3 de bufferzone beschreven volgens onderstaande (DSI – Departement Omgeving, 2008):
❖ BESTEMMING
De definitie van een bufferzone wordt omschreven zoals eerder aangehaald bij het gewestplan. In dit geval is eral beplanting aanwezig langs de grote steenwegen dient de buffer hierop te worden afgestemd.
❖ INVULLING
De groenvoorzieningen moeten bestaan uit streekeigen beplanting en er moet voldoende diversiteit in de beplantingssoorten zitten. Daarnaast moet de hoogte van deze beplantingen variëren en wordt een minimumhoogte bepaald. Verder dient de bufferzone in de landschappelijke omgeving te worden geïntegreerd en verweven.
❖ TOEGELATEN GEBOUWEN EN CONSTRUCTIES
Erwordt eenverbod opgelegd voor alle gebouwen, constructies en verhardingen. Enkel eendoorgang met een zekere breedte is toegelaten om de toegankelijkheid van de site te waarborgen.
In bijlage XI zijn er nog een aantal andere voorbeelden opgenomen van stedenbouwkundige voorschriften voor groenschermen in BPA’s waaruit kan worden gesteld dat het aan te leggen groenscherm moet bestaan uit streekeigen beplanting met een percentage bladhoudende beplanting om een permanente visuele afscherming te voorzien met een dichte begroeiing
Normaliter kan er niet worden afgeweken van de stedenbouwkundige voorschriften in het BPA, behalve als een afwijking wordt goedgekeurd voor een BPA ouder dan 15 jaar voor privégroen (art. 4.4.9/1 VCRO). Ook voor de delen die als “overdruk” overkleurd zijn, tenminste als dit tekstueel beschreven staat. Sowieso kan een bestaand BPA niet worden aangepast, maar dient er een planologisch attest te worden opgemaakt en ingediend bij de gemeente (J. Van Den Eeckhout, persoonlijke communicatie, 12 maart 2024). Hiermee vraagt een zonevreemd bedrijf of zonevreemd wil uitbreiden aan de lokale overheid of zij een planwijziging wil overwegen. Deze bezorgt nadien een attest met de uitspraak over het behoud van het bedrijf en de ontwikkelingsmogelijkheden en geeft aan of een planwijziging (impliceert opmaak gRUP) al dan niet wordt opgestart (Departement Omgeving, z.d.). Het opmaken van het planologisch attest neemt wel veel tijd in beslag door de gedetailleerde beschrijving van de planologische context en het wettelijke kader van toepassing op het bedrijf (J. Van Den Eeckhout, persoonlijke communicatie, 12 maart 2024).
Ruimtelijke uitvoeringsplannen:
In zo’n RUP wordt de beschrijving van de bufferzone opgenomen in de stedenbouwkundige voorschriften (tekstueel) van de gebieden die als overdruk zijn aangeduid langs de rand en wordt dit in de meeste gevallen niet ingekleurd op het grafisch plan. Dit heeft als voordeel dat het nadien veel beter aan te passen is (J. Van Den Eeckhout, persoonlijke communicatie, 12 maart 2024).
In bijlage XI zijn er stedenbouwkundige voorschriften opgenomen van bufferzones in verschillende ruimtelijke plannen over de diverse regio’s in Vlaanderen Zo kunnen deze worden geanalyseerd en vergeleken per hiërarchisch niveau en regio.
Daarbij kan algemeen worden aangenomen dat de stedenbouwkundige voorschriften in de verscheidene ruimtelijke uitvoeringsplannen niet veel van elkaar verschillen, enkel in die mate dat er specificaties zijn in zonering op basis van het toepasselijke hiërarchisch niveau.
Gewestelijk Ruimtelijk Uitvoeringsplan (GRUP):
In de stedenbouwkundige voorschriften voor GRUP’s is omschreven dat de bufferzone minstens een bepaalde breedte moet omvatten, moet bestaan uit streekeigen beplanting en uiterlijk moet worden beplant in het plantseizoen dat volgt op het verlenen van de stedenbouwkundige vergunning. Naast de aanleg en het onderhoud van de buffer zijn vaak geen andere werken of handelingen toegelaten. In het grootstedelijk gebied Antwerpen dient de buffer naast visuele afscherming ook te voldoen aan de voorwaarden voor geluidsafscherming, landschappelijke inpassing, afstand en beheersing van veiligheidsrisico’s.
Provinciaal Ruimtelijk Uitvoeringsplan (PRUP):
De omschrijving van de stedenbouwkundige voorschriften in PRUP’s gelijken sterk op die van de GRUP’s (streekeigen beplanting, planthoogte, breedte zone, ) met dat verschil dat er almeer in detail wordt gegaan met bijvoorbeeld straatnamen omdat dit zich op provinciaal niveau situeert.
Gemeentelijk Ruimtelijk Uitvoeringsplan (gRUP):
De gemeentelijke stedenbouwkundige voorschriften zijn gericht op de landschappelijke inpassing met de lokale groenelementen en de keuze van streekeigen beplanting.
Met toepassing van art. 7.4.3 VCRO kunnen de eerder besproken bijzondere plannen van aanleg niet meer worden aangevat nadat een eerste gemeentelijk ruimtelijk uitvoeringsplan (gRUP) definitief is vastgesteld. Vanaf dan geldt het BPA niet meer enzijn de voorschriften uit het gRUP vantoepassing waarbij erwel rekening moet gehouden worden met de onderlinge hiërarchie tussen de verschillende ruimtelijke uitvoeringsplannen (art. 2.2.18. §1 lid 3 VCRO).
1.2.Stedenbouwkundige verordeningen van toepassing op groenschermen
De Vlaamse Regering kan gewestelijke stedenbouwkundige verordeningen vaststellen die onder andere de nodige stedenbouwkundige voorschriften bevatten voor de aanleg van groen en beplantingen (art. 2.3.1.10° VCRO). Dit is op heden niet het geval voor de Vlaamse gewestelijke stedenbouwkundige verordeningen, maar wel op gemeentelijk niveau. Er zijn namelijk zo’n 118 gemeentelijke stedenbouwkundige verordeningen inzake beplantingen (Departement Omgeving, z.d.).
Een belangrijke verordening waar ook rekening mee gehouden moet worden voor het groenscherm, is de hemelwaterverordening die sinds 2 oktober 2023 in werking is getreden. Deze geeft een invulling aan de leidende principes van het Integraal Waterbeleid (vasthouden, bergen en pas dan afvoeren). De weersextremen komen steeds frequenter voor met enerzijds extreme regenval en anderzijds langdurige droogteperiodes. De doelstelling hierbij is het om het water opnieuw een plaats te geven en maximaal lokaal te houden om de droogteperiodes te overbruggen en overstromingen te vermijden door de impact van onze verharde oppervlakten te minimaliseren (Departement Omgeving, z.d.). Dit zou bijvoorbeeld een wadi zijn voor de vertraagde waterafvoer die in de groenzone wordt ingericht.
1.3.Relevante milieuwetgeving
Bij hemelwaterafvoer moet de onderstaande prioriteitenhiërarchie worden toegepast (VLAREM II):
1) opvang voor hergebruik;
2) infiltratie op eigen terrein;
3) buffering met vertraagd lozen in een oppervlaktewater of een kunstmatige afvoerweg voor hemelwater;
4) lozing in de regenwaterafvoerleiding (RWA) in de straat
Slechts wanneer de best beschikbare technieken (BBT’s) geen van bovenstaande afvoerwijzen toelaten, mag het hemelwater worden geloosd in de openbare riolering overeenkomstig de wettelijke bepalingen (art. 4.2.1.3. §5 VLAREM II).
Verder wordt voor de opslag in open lucht van stuivende stoffen van stuifcategorie SC2 en SC3 een ommuring of een groenscherm als bijkomende maatregel genomen (art. 4.4.7.2.5. §1.2° VLAREM II).
Daarnaast zijn ingedeelde inrichtingen die onder rubriek 2 (afvalstoffen) en rubriek 63 (opslag en ontwatering van bagger- en ruimingsspecie) vallen verplicht een groenscherm rondom hun inrichting te hebben met een breedte van minstens 5 m. Het groenscherm bestaat daarbij uit streekeigen laag- en hoogstammige dichtgroeiende gewassen. De nodige maatregelen voor het bekomen van een efficiënt groenscherm moeten door de exploitant zo snel mogelijk worden genomen. De aanplantingen gebeuren in het eerstvolgende plantseizoen (art. 5.2.1.5. §5 & art. 5.63.4.1. §2 VLAREM II).
1.4.Andere toepasselijke wetgeving
Een aantal gemeenten in Vlaanderen hebben een gemeentelijke bouw- of stedenbouwkundige verordening inzake beplantingen om het groen in hun gemeente zoveel mogelijk te beschermen (Departement Omgeving, z.d.)
Daarbovenop zijn er gemeenten zoals bijvoorbeeld Nazareth en Lanaken, maar ook Ternat die een groenwaarborg opleggen waarbij het bedrijf een financiële waarborg dient te stellen na goedkeuring van het beplantingsplan. Deze maatregel heeft tot doel bedrijfsgebouwen en verkavelingen te integreren in de omgeving en de infiltratiemaatregelen te voorzien. Er wordt een financiële waarborg opgelegd aan de bouwheer vooraleer hij zijn bouwvergunning verkrijgt ter realisatie van de verplicht aan te leggen groenzone rond zijn bedrijf of verkaveling. In Ternat dient de groenzone binnen een termijn van één jaar te worden aangelegd na verlening van de stedenbouwkundige vergunning. Het reglement is van toepassing op alle omgevingsvergunningsaanvragen en het dossier dient te worden aangevuld met een beplantingsplan (Gemeente Ternat, z.d.) (J. Van Den Eeckhout, persoonlijke communicatie, 12 maart 2024).
Algemeen moeten fauna en flora worden beschermd en geeft het Soortenbesluit hieraan een invulling. Dit besluit geeft uitvoering aan de Vogel- en Habitatrichtlijn die beide instaan voor soortenbescherming in de Europese Unie van wilde dieren en planten en hun natuurlijk leefmilieu in Europa (Vlaamse Regering, 2009)
Aangezien een groenscherm beschermde soorten kan aantrekken, moet er rekening worden gehouden met de bepalingen van dit besluit (J. Quartier, persoonlijke communicatie, 23 april 2024).
2. Ontwerpstrategie
Naastde wettelijke bepalingen spelen er tevens andere aspecten een rol met betrekking tot groenschermen. De wetgeving ligt dan wel aan de basis, maar de in-house toepassing moet ook in de praktijk toepasbaar zijn. Zo wordt het milieuaspect bodem als startpunt gebruikt met daaropvolgend water en lucht en aangevuld met de aspecten biodiversiteit en inkijk in de directe omgeving.
2.1. Welke bodemparameters bepalen de plantenkeuze van een groenscherm?
De standplaats van een plant is vaak de oorzaak van problemen met de plantengroei waarbij zowel ondergronds als bovengronds verschillende problemen kunnen voorkomen. Daarom is het belangrijk om bij een aanplant de standplaatseigenschappen op voorhand te bekijken en te onderzoeken zoals te zien is op Figuur 1 (PCS, 2022):
Figuur 1: De verschillende standplaatseigenschappen bepalen het succes van een aanplant en helpen je de juiste plantenkeuze te maken (PCS, 2022)
Bodemkwaliteit
Het bodembeleid van de Vlaamse overheid is vastgelegd in het Bodemdecreet. Daarbij heeft de Vlaamse overheid tot doelstelling een duurzaam bodembeheer te houden dat zowel aan de behoeften van de huidige generaties als van de toekomstige generaties voldoet (art. 3. §1 Bodemdecreet).
Om dit te realiseren dient het beleid een optimale bodemkwaliteit te verzekeren, te behouden en te herstellen door bodemsanering en bodembescherming toe te passen. Zo kunnen zoveel mogelijk functies uitgeoefend blijven worden en blijven verschillende types landgebruik mogelijk (art. 3. §1 Bodemdecreet).
Daarnaast is het beleid er ook op gericht een zo breed mogelijk maatschappelijk draagvlak te scheppen door de stimulatie van educatie en voorlichting van de verschillende doelgroepen (art. 3. §1 Bodemdecreet).
Daarom lanceerde OVAM (Openbare Vlaamse Afvalstoffenmaatschappij) vorig jaar een website rond bodemkwaliteit (https://ovam.vlaanderen.be/web/bodemkwaliteit/) waarbij alle beschikbare info over de bodemkwaliteit in Vlaanderen openbaar wordt gemaakt (Kenniscentrum Vlaamse Steden, 2024).
De biologische, fysische en chemische eigenschappen van een bodem beïnvloeden elkaar en bepalen samen de bodemkwaliteit (PCS, 2022).
Figuur 2: De interactie tussen de chemische, fysische en biologische eigenschappen bepaalt de bodemkwaliteit (PCS, 2022)
De levende organismen in de bodem bepalen de biologische bodemkwaliteit. Het bodemleven zorgt voor het vrijstellen van mineralen, de vorming van bodemstructuur en de ziekteweerbaarheid, wat belangrijk is voor de planten (PCS, 2022)
De structurele eigenschappen van een bodem (bodemdeeltjes, poriën) geven de fysische bodemkwaliteit weer. Zo bepalen de verhoudingen van zand, leem en klei het waterbufferend vermogen van de bodem, de luchtuitwisseling en de bodemdoordringbaarheid (PCS, 2022)
De beschikbaarheid van voedingsstoffen is dan nog van belang voor de chemische bodemkwaliteit waarbij de zuurtegraad een grote invloed heeft (PCS, 2022).
Wat is bodemzorg?
Onze bodem vervult belangrijke economische, maatschappelijke en ecologische functies die ook wel ecosysteemdiensten worden genoemd. Enkele voorbeelden zijn voedsel- en biomassaproductie, waterhuishouding, bron van grondstoffen, habitat voor biodiversiteit, … Om deze diensten te blijven garanderen, is het essentieel om te zorgen voor gezonde bodems (Grondbank, z.d.).
Zo wordt er met de term bodemzorg gestreefd naar een gezonde bodem binnen het kader van een bouw- of infrastructuurproject met een multidisciplinaire aanpak zoals onder andere rekening houden met de grondverzetsregeling. Deze legt de nadruk op het voorkomen van verspreiding van bodemverontreiniging als gevolg van grondverzet. Hoe dan ook dient er eveneens aandacht te worden besteed aan enkele fysische en biologische parameters zoals waterdoorlatendheid, geschiktheid voor vegetatie, …
Uiteraard zijn er verschillende actoren betrokken bij dit gegeven omdat zij met hun activiteiten een zekere impact hebben op de bodemkwaliteit (Grondbank, z.d.)
Organische stof
Het organische stofgehalte in de bodem speelt een sleutelrol en zorgt onder andere voor een betere en stabielere bodemstructuur, een verhoogd waterbergend vermogen, een hogere porositeit/doorlatendheid, een aanlevering van nutriënten, de weerstand tegen erosie, stimulatie van het bodemleven en een positieve bijdrage in de strijd tegen klimaatverandering door koolstofopslag (PCS, 2022)
Zuurtegraad
De pH-waarde van een bodem bepaalt de beschikbaarheid van nutriënten en heeft verder een effect op de mineralisatie, de bodemstructuur en het bodemleven. De meeste planten kunnen een waarde tussen de 5,8 en 7,2 aan Een bodemanalyse geeft de pH-waarde van de bodem weer (PCS, 2022)
Bodemverdichting en bodemverontreiniging
Bodemverdichting zorgt ervoor dat de bodemstructuur verloren gaat door er bijvoorbeeld met zware machines over te rijden. Dit bemoeilijkt onder meer de doorworteling. Het kan hersteld worden door organische stof in de bodem te injecteren, al kan bodemverdichting beter eerst worden voorkomen. Indien er daarnaast een verontreiniging aanwezig is, moet er eerst een bodemsanering gebeuren (PCS, 2022).
Grondwaterstand en ondergrondse groeiruimte
Het is ook belangrijk om een idee te hebben wat de grondwaterstand per seizoen is zodat de juiste plant gekozen kan worden afhankelijk van de waterbehoeften. Daarnaast is de groeiruimte die een plant heeft van belang voor de beworteling en vochtvoorziening (PCS, 2022).
Bodemanalyse
Om de bodemparameters te bepalen, kan een bodemanalyse worden uitgevoerd. Deze bekijkt de zuurtegraad, grondsoort, aanwezigheid van verschillende voedingselementen en het humusgehalte. Zo kan
een inzicht in de bodemstatus worden bekomen en afhankelijk van welke planten er zullen worden geplant, een bemestings- of bekalkingsplan worden opgesteld (Tuinadvies, 2016).
Link met andere aspecten
De bodem beschikt over een breed scala aan ecosysteemdiensten die zij levert en vormt op die manier de basis voor de andere te bespreken aspecten (OVAM, z.d.)
Ruimtelijke ordening:
Over het Vlaamse grondgebied zitten er historische verontreinigingen in de bodem die gebruiksbeperkingen met zich meebrengen. Desalniettemin zijn de bestemmingen die aan bepaalde gronden werden gegeven hier niet steeds op afgestemd. Vanuit de ruimtelijke ordening zou er een betere afstemming moeten zijn tussen de aangewezen bestemmingstypes en de bodemkarakteristieken zodat deze op elkaar zijn afgestemd en de optimale functies kunnen worden vervuld. Zo kan onze bodem een sturende factor vormen voor de ruimtelijke ontwikkeling in Vlaanderen (OVAM, 2021).
Water:
De bodem beschikt over een omvangrijke wateropslagcapaciteit die het regenwater opvangt en werkt als een spons. Een stabiele bodem heeft een goede waterdoorlaatbaarheid wat zowel voor minder wateroverlast zorgt alsook voor bescherming tegen erosie. Daarbij betekent deze infiltratie een aanvulling van de ondergrondse watervoorraden en zo worden de steeds extremer wordende droogtes bestreden. Deze infiltratie is afhankelijk van de waterdoorlaatbaarheid van de bodem en hangt af van het bodemtype. Daarnaast voorziet het opgeslagen grondwater in deze voorraden de mens van drinkwater dat steeds schaarser wordt door de klimaatverandering (Departement Omgeving, z.d.).
Lucht:
De bodem is een koolstofput met zelfs dubbel zoveel koolstof in vergelijking met de lucht om ons heen. De koolstofopslag gebeurt door planten die CO₂ vastleggen uit de lucht en gebruiken om te kunnen groeien. Bij sterfte van deze planten of delen ervan, wordt het plantmateriaal omgezet naar organische stof die de koolstof in de bodem opgeslagen houdt (Departement Omgeving, z.d.).
Biodiversiteit:
De bodem vormt een habitat voor tal van organismen en herbergt een groot deel van de biodiversiteit en de genetische diversiteit. Het is een gezonde bodem met een divers bodemleven die zorgt voor een gunstige leefomgeving voor planten en dieren. Deze organismen leveren op hun beurt een cruciale bijdrage aan heel wat bodemfuncties (OVAM, z.d.).
Conclusie
Er kan worden geconcludeerd dat de standplaatseigenschappen en de bodemkwaliteit van cruciaal belang zijn voor de plantenkeuze. Eerst dient de bodemstatus te worden bepaald aan de hand van een bodemanalyse Nadien kunnen maatregelen worden genomen (vb. bemesten of bekalken, …) afhankelijk van de beplanting die zal worden gebruikt Uiteindelijk kan de beplanting gebeuren. Met deze bodemkennis kan een gefundeerde plantenkeuze worden gemaakt om het gewenste groenscherm te bekomen. Daarnaast kan de bodem duidelijk worden gelinkt aan andere omgevingsaspecten (vb. water, lucht, biodiversiteit).
2.2.Waar moet er op gelet worden bij het milieuaspect water?
Water is een essentieel component voor de vegetatie van het groenscherm omdat die de juiste hoeveelheid water nodig heeft om te kunnen groeien (MiraFlex, 2024).
Bij de keuze van de geschikte vegetatie moet er in het kader van water gelet worden op het klimaat waarin de aanplant gebeurt. Zo moet er rekening gehouden worden met de pluviale omstandigheden, de hoeveelheid zonlicht en het bodemtype dat gekenmerkt wordt door een bepaalde waterdoorlatendheid
België, dus ook Vlaanderen, bevindt zich in een gematigd klimaat dat gekenmerkt wordt door frisse, vochtige zomers en zachte, regenachtige winters (KMI, z.d.). De onderstaande figuren (Figuur 3 en Figuur 4) geven daarbij de pluviale omstandigheden en de hoeveelheid zonnestraling weer (op jaarbasis). Wel moet de kanttekening worden gemaakt dat ons klimaat in de toekomst zal wijzigen door toedoen van de klimaatverandering (A. Loncke, persoonlijke communicatie, 27 mei 2024):
Figuur 3: Jaarlijkse gemiddelde neerslaghoeveelheid (KMI, z.d.)
Figuur 4: Zonneschijnduur op jaarbasis (KMI, z.d.)
In Vlaanderen zijn er ruwweg 3 bodemtypes: klei-, leem- en zandgrond. Deze bodemtypes zijn verspreid over het grondgebied en hebben een verschillende waterdoorlatendheid:
6: Eigenschappen bodemtypes (Curieuze Neuzen, 2021)
Wadi (= Water Afvoer Drainage Infiltratie):
De hemelwaterverordening en de principes van het Integraal Waterbeleid zetten maximaal in op infiltratie en buffering van het water als het niet kan worden hergebruikt. Daarbij richten de bedrijven vaak een wadi in waar hun afwatering van de dakoppervlakken heen loopt (Blauw Groen Vlaanderen, z.d.).
Wadi’s kunnen perfect deel uitmaken van de groenvoorzieningen rondom het bedrijventerrein en bijdragen tot meer biodiversiteit. Om de bevordering van de biodiversiteit in de hand te werken, moet een natuurvriendelijke wadi worden ingericht met aangepaste vegetatie die de plek aantrekkelijk en functioneel maakt voor de fauna. Dit kan bijvoorbeeld met hoogstaande vegetatie voor kleine zoogdieren, amfibieën en insecten zoals dagvlinders en sprinkhanen. Op deze wijze kan de wadi als een ecologische verbindingszone fungeren en een plaats hebben in de groenblauwe infrastructuur (Blauw Groen Vlaanderen, z.d.).
De gebruikte planten moeten gewend zijn aan wisselende waterstanden en van nature voorkomen in beekdalen en oevers. Vandaag de dag wordt er vaak voor een robuust grasmengsel gekozen, al geeft dit nog
Jonathan De Smet
Eindwerk milieucoördinator B
Figuur 5: Bodemtypes Vlaanderen (DOV Portaal, z.d.)
Figuur
problemen tijdens droogteperiodes. Daarom is een gevarieerde beplanting aangewezen met grasmengsels en hogere beplanting waardoor de wadi’s meer functies kunnen invullen dan enkel waterbeheer. Dit geeft ook als voordeel dat er minder regulier onderhoud vereist is doorheen het jaar. Bij een extensief grasland bijvoorbeeld volstaan 2 maaibeurten per jaar met afvoer van het maaisel (Blauw Groen Vlaanderen, z.d.)
Het inrichten van een wadi heeft verschillende positieve effecten (Blauw Groen Vlaanderen, z.d.):
✓ Overstorten worden geminimaliseerd, de oppervlaktewaterkwaliteit verbetert en de verdroging wordt beperkt door de buffering en infiltratie van regenwater in de wadi;
✓ Het effect van hittestress wordt aangepakt;
✓ Het water- en vegetatieoppervlak heeft een positief effect op de luchtkwaliteit (fijnstof);
✓ De inrichting van groen en water wordt algemeen door passanten als positief ervaren
Conclusie
Bij de inrichting van het groenscherm moet de te voorziene wadi ook een plaats krijgen om te komen tot een groenblauwe bufferzone. De vegetatie in de nabijheid van de wadi zal verschillen van de vegetatie wat verder verwijderd. Door deze combinatie kan het groenscherm een biodiverse plek zijn die opportuniteiten biedt voor fauna en flora
2.3. Waar moet er op gelet worden bij het milieuaspect lucht?
Naast de andere ecosysteemdiensten die planten leveren, zuiveren ze ook de lucht. Zo kunnen de groenschermen van bedrijven fungeren als een natuurlijke filter en zorgen voor een netto-afname van concentraties aan fijn stof. Dat is ook waarom dit als maatregel wordt voorgesteld bij bedrijven die opslag hebben in open lucht van stuivende stoffen (art. 4.4.7.2.5.§1.2° VLAREM II). Deafname iswel sterk afhankelijk van de lokale situatie en de eigenschappen van het groen. Toch wijzen studies uit dat het effect van groen op de luchtvervuiling voor lokale reducties kan zorgen die variëren van 1 tot 60% (ILVO, z.d.). De industrie is één van de oorzaken voor de verspreiding van fijn stof en daarnaast ook het verkeer die de industrie genereert (VMM, z.d.)
Figuur 7: Bronnen fijn stof (VMM, z.d.)
De operationele groep van de UGent bio-ingenieurs, Green Air, die het effect van groen op de luchtkwaliteit in de stad en de huiskamer onderzoekt, heeft een top 10-lijst gemaakt met plantensoorten die beter geschikt zijn om fijn stof af te vangen (UGent, 2016). Zo omvat de top 10: vlinderstruik (Buddleja davidii), gelderse roos (Viburnum opulus), haagbeuk (Carpinus betulus), steeneik (Quercus ilex), wollige sneeuwbal (Vibernum lantana), Japanse bottelroos (Rosa rugosa), meelbes (Sorbus aria), witte paardenkastanje (Aesculus hippocastanum), douglasspar (Pseudotsuga menziesii) en veldesdoorn (Acer campestre) (ILVO, 2019) Daarvan behoren vier van de tien plantensoorten tot de voorgestelde plantensoorten van Lieven Van De Velde voor het groenscherm, wat verder nog besproken wordt.
Conclusie
De plaatsing van een groenscherm kan bijdragen aan de algemene luchtkwaliteit in de omgeving. Daarbij zijn er een aantal plantensoorten die beter geschikt zijn om fijn stof af te vangen. Een aantal van deze plantensoorten (Carpinus betulus, Acer campestre, Viburnum opulus en Quercus ilex) zijn daarbij ook uiterst geschikt om een groenscherm te bekleden en kunnen dus worden gebruikt.
2.4. Hoe kan een groenscherm bijdragen aan de biodiversiteit op een bedrijventerrein?
Om de bijdrage van een groenscherm aan de huidige biodiversiteit te kunnen inschatten, moet de actuele toestand eerst gekend zijn. Daarnaast wordt ook het wettelijke kader bekeken.
Actuele toestand biodiversiteit:
Het gaat niet goed met onze biodiversiteit en de gezondheid van onze natuur. Dat blijkt uit het Living Planet Report 2022 dat aantoont dat de populatiegrootte van vissen, vogels, zoogdieren, amfibieën en reptielen wereldwijd gemiddeld met 69% is afgenomen sinds 1970 (WWF, z.d.). Daarom is het belangrijk om actie te ondernemen en dit opnieuw te herstellen.
Figuur 8: Grafiek Living Planet Index (LPI) (WWF, z.d.)
Europees kader:
De Europese Unie heeft een biodiversiteitsstrategie uitgestippeld voor 2030 waarbij de EU-lidstaten zich moeten inzetten om de natuur en haar biologische diversiteit te behouden en te herstellen. Deze strategie vormt de basis van de Europese natuurbescherming en is ook een belangrijk onderdeel van de Europese Green Deal (Raad van de Europese Unie, z.d.)
Een belangrijke actie is onder meer om de bestaande Natura 2000-gebieden uit te breiden en te zorgen voor meer beschermde gebieden op het zee- en landoppervlak. Een ander puntje is het herstel van aangetaste ecosystemen via afspraken en maatregelen zoals bijvoorbeeld het beperken van het gebruik van pesticiden Om dit herstel te bewerkstelligen heeft de Europese Unie met de Natuurherstelwet een reeks herstelmaatregelen uitgewerkt die in 2030 minstens 20% van de land- en zeegebieden moeten omvatten (Raad van de Europese Unie, z.d.) Het Europees Parlement keurde de Natuurherstelwet finaal goed op dinsdag 27 februari 2024 (De Maeseneer, 2024).
Vlaamse ambities:
Het Departement Omgeving heeft met ‘Omgeving voor de Toekomst’ enkele ambities voor de toekomst waaronder ook biodiversiteit. Door ons landgebruik, de vervuiling, de klimaatverandering en de introductie van uitheemse invasieve soorten brengen we onze biodiversiteit schade toe. Nochtans is biodiversiteit belangrijk voor de levering van een heleboel ecosysteemdiensten. Daarnaast is een derde van de ruimte in Vlaanderen bebouwd, wat de natuurlijke habitats van organismen doet verdwijnen. Anderzijds gedijen sommige van deze organismen goed in een stedelijke omgeving en is het daarom belangrijk om groenblauwe aders in deze omgeving te behouden of te implementeren om het biodiversiteitsherstel in Vlaanderen te bekomen (Departement Omgeving, z.d.).
Wetenschappelijk kader:
Johan Rockström publiceerde in 2009 een eerste versie van zijn kader over de negen planetaire grenzen. Deze grenzen worden beschouwd als de regulerende factoren van de biosfeer om onze planeet in een stabiele toestand te houden en continue ontwikkeling mogelijk te maken voor de huidige alsook de toekomstige generaties. De grenzen zijn in onderlinge verbinding via diverse processen binnenin de biosfeer. Een goed begrip van deze interacties is noodzakelijk met extra aandacht voor biodiversiteit en klimaatverandering als ‘sleutelgrenzen’. Er wordt namelijk verondersteld dat als deze twee planetaire grenzen in een goede staat worden gehouden, de andere zeven grenzen ook in evenwicht zijn (Stockholm University, z.d.).
Met de laatste update in 2023 van het kader zijn voor het eerst alle negen planetaire grenzen gekwantificeerd en is in kaart gebracht dat er zes grenzen overschreden zijn. Het overschrijden van een grens houdt in dat er een verhoogd risico is op het creëren van grootschalige abrupte en onomkeerbare veranderingen in het milieu. Het is hoogstnoodzakelijk om het tij te keren en actie te ondernemen om hier verandering in te brengen (Stockholm University, z.d.)
Nuttige planten voor onze natuur:
Ecopedia stelde een plantenlijst op met vrij veel soorten die nuttig kunnen zijn voor onze natuur bijvoorbeeld voor de vlinders en de bijen. De inheemse soorten liggen aande basis van deze lijsten omdat die het nuttigste zijn voor onze wilde dieren en de meeste insecten aangepast zijn aan plantensoorten die hier van nature voorkomen. Daarnaast zijn de lijsten aangevuld met uitheemse soorten die evenzeer van nut zijn voor onze natuur. Uiteraard zijn deze lijsten niet volledig, maar vormen ze alvast een goede basis om op verder te bouwen (Ecopedia, z.d.).
De planten die Lieven Van De Velde heeft voorgesteld zijn getoetst aan deze soortenlijst vanEcopedia. Daaruit blijkt dat de inheemse voorgestelde plantensoorten allemaal zijn opgenomen in de lijst, maar de uitheemse voorgestelde soorten niet (zie bijlage IX).
Objectief meetsysteem van biodiversiteitsdeskundige Wouter Rommens:
Wouter Rommens, erkend deskundige in biodiversiteit, heeft een objectief meetsysteem ontwikkeld om de biodiversiteitswaarde van een terrein te bepalen en maatregelen te nemen (zie bijlage XIII).
Zo wordt een rooster over een oppervlak gelegd en ingedeeld in vierkanten die bestaan uit homogene eenheden bijvoorbeeld parking, gras, gebouw, … De gebruikte biodiversiteitsschaal gaat van 0 (= parking) tot 1 (= een ongerept bos van 100 jaar oud). Zo krijgt elke plek op het terrein een score om verbeteringsmogelijkheden te identificeren. Daarna worden maatregelen (vb. streven naar een hogere graslandfase voor grasperk) toegepast die de biodiversiteitswaarde verhogen Vervolgens wordt een nieuwe beoordeling gemaakt. Finaal krijgt het bedrijf een globale biodiversiteitsscore toegekend die een gewogen gemiddelde is van de scores inclusief de terreinoppervlakte (W. Rommens, persoonlijke communicatie, 19 april 2024).
Bovenstaand scoresysteem kan worden toegepast in het eindwerk, waarbij de verschillende modules met vegetatie een bepaalde biodiversiteitsscore verkrijgen op basis van de biodiversiteitsschaal. Aan de klant kan dan op een objectieve manier worden gemotiveerd dat het groenscherm bijdraagt aan een betere biodiversiteit naast het louter naleven van de vergunningsvoorwaarden (W. Rommens, persoonlijke communicatie, 19 april 2024).
Figuur 9: Framework Planetaire Grenzen (Larmuseau, 2024)
Biodiversiteit op bedrijventerreinen:
Steeds meer bedrijven kiezen ervoor om hun omgeving natuurlijker in te richten en de natuur een plaats te geven in de nabije buurt (Ecopedia, z.d.). Een mooi voorbeeld hiervan is het Europese 2B Connect project dat begin 2016 werd opgestart voor meer biodiversiteit op minstens 70 bedrijventerreinen in de grensstreek België-Nederland. Het doel was om een groene infrastructuur in te richten op de bedrijventerreinen zodat die konden dienen als natuurverbindingsplekken voor planten en dieren (2B Connect, z.d.).
Voordelen van biodiversiteit op bedrijventerreinen:
Meer natuur rondom het bedrijf brengt voordelen met zich mee die een meerwaarde bieden in de relatie met de voornaamste stakeholders zoals werknemers, klanten, de overheid en de buurtbewoners in de omgeving. Er zijn voordelen van economische aard, voor het bedrijfsimago en op vlak van leef- en werkomgeving De relevantste voordelen in verband met het groenscherm worden aangehaald:
✓ Vlottere implementatie van wet- en regelgeving
Bedrijven die kiezen voor biodiversiteit op hun bedrijventerreinen kunnen zich vlotter in regel stellen met eventuele nieuwe regelgeving op het vlak van pesticidengebruik, invasieve exoten, waterberging- en infiltratie, … De wereld is constant in verandering, denk maar aan nieuwe uitdagingen en technieken, strengere milieuwetgeving, evolutie ruimtelijke vereisten enzovoort. Daarom is het voor een bedrijf interessant om de toekomst zelf in handen te nemen en bij de inrichting van het bedrijventerrein rekening te houden met de toekomstige eisen om achteraf kosten te vermijden. Het nadien openbreken van verhardingen om aan de nieuwe eisen van de hemelwaterverordening te voldoen, is bijvoorbeeld een dubbele kost. Dezelfde redenering kan worden gemaakt voor de andere aspecten (Ecopedia, z.d.).
✓ Diefstalpreventie = industriepreventie
Investeren in biodiversiteit is een effectief middel tegen diefstal en vandalisme. Bijvoorbeeld de beplanting van hagen van slee- en meidoorn zijn quasi ondoordringbaar en vormen een alternatief voor een robuuste omheining (Ecopedia, z.d.)
✓ Betere relatie met omwonenden en de lokale overheid
InVlaanderen wonen er heel wat mensen nabij bedrijventerreinen waarbij de bedrijven soms zorgen voor overlasten onder de vorm van lawaai, geur, licht, stof en visuele hinder. Dit kan voor bedrijven leiden tot klachten, gespannen relaties, problemen bij vergunningsaanvragen of zelfs rechtszaken. De nabijheid van bewoning brengt dus uitdagingen met zich mee, maar biedt tegelijk ook kansen (Ecopedia, z.d.).
De overlast van de bedrijven kan met de investeringen in biodiversiteit worden geremedieerd. Bomen en struiken langs de perceelsgrens zuiveren de lucht en verminderen de visuele hinder en overlast door stof, geur en lawaai. Naast de zuivere remediëring van overlast naar de omgeving kunnen bedrijven de vergroening van terreinen gebruiken om bij te dragen aan de realisatie van doelen uit een gemeentelijk groen- of klimaat(adaptatie)plan. Een bedrijf kan zo proactief een goede relatie opbouwen met de buurtbewoners en de lokale overheid. Dit vertaalt zich in een beter imago, meer begrip en een mogelijk vlottere vergunningsverlening (Ecopedia, z.d.).
Nadelen van biodiversiteit op bedrijventerreinen:
De nadelen zijn eerder beperkt en wegen niet op tegen de voordelen die het investeren van biodiversiteit op bedrijventerreinen hebben. De relevantste nadelen worden besproken:
✓ Hypothekeert uitbreidingsplannen
De kans bestaat dat de groenvoorzieningen op een bedrijventerrein Europees beschermde soorten aantrekken waardoor het bedrijf in kwestie niet zomaar zijn activiteiten kan uitbreiden, als het dat zou willen. Daarvoor bestaat er in Vlaanderen een regeling rond tijdelijke natuur. Op die manier hoeft biodiversiteit de uitbreidingsplannen van bedrijven niet in de weg te staan (Ecopedia, z.d.).
Het is zo dat bij aanwezigheid van beschermde soorten op een terrein, de snelle ontwikkeling van een bedrijventerrein minder evident is. Het kan zorgen voor vertragingen, procedures en dure compensatieverplichtingen. Daarom is er in Vlaanderen een oplossing bedacht in de vorm van een ‘vergunning tijdelijke natuur’. Daarbij laat je als bedrijfsleider natuurontwikkeling toe gedurende een bepaalde tijd en krijg je in ruil van de overheid rechtszekerheid dat je de natuur terug kunt wegnemen, die zich op het terrein heeft ontwikkeld, zonder vervelende procedures of dure compensatieverplichtingen (Ecopedia, z.d.)
Conclusie
Door aandacht te besteden aan biodiversiteitsbehoud en -herstel bij de inplanting van een groenscherm rondom het bedrijventerrein kan in eerste instantie worden bijgedragen aan de lokale ambities en de internationale natuurdoelstellingen. Dit is bijvoorbeeld de Europese biodiversiteitsstrategie 2030 die EUlidstaten aanspoort om de natuur en biodiversiteit te behouden en te herstellen. Daarnaast kan er gestreefd worden naar een hogere biodiversiteit door te kiezen voor planten die van nut zijn voor onze biodiversiteit en dit op een objectieve manier te laten bepalen aan de hand van een scoresysteem. Er kaneveneens worden besloten dat er talvan voordelen zijn verbonden aanbiodiversiteit op een bedrijventerrein die zekerzwaarder doorwegen dan de luttele nadelen die er zijn
2.5. Hoe kan visuele afscherming worden bekomen door de beplantingskeuze?
Om de geschikte visuele afscherming te bekomen met een groenscherm tussen het bedrijventerrein en de nabije bewoning dienen er een aantal zaken in rekening te worden gebracht bij de aanplant en nadien bij het snoeibeheer van het groenscherm.
Aanplant groenscherm:
Het groenscherm moet hoog genoeg zijn opdat een visuele afscherming verkregen wordt. Er moet dus gekeken worden naar de maximale groeihoogte die een plantensoort kan bereiken. Daarnaast is de aanplanthoogte belangrijk. Die bepaalt hoe snel de maximale groeihoogte kan worden bereikt. Uiteraard hoe groter de plant reeds is, hoe duurder deze zal zijn bij de aankoop. Dit maakt onderdeel uit van het financiële plaatje voor de aanleg van een groenscherm en een budget moet op voorhand worden ingeschat. De motivering voor een hogere aanplanthoogte kan natuurlijk zijn dat eventuele klachten van buurtbewoners over inkijk zo, quasi direct, zullen opgelost zijn na het eerstvolgende plantseizoen. Daarnaast moet er nog rekening gehouden worden met de groeisnelheid van de plant. Verder is het behoud van de groeidichtheid noodzakelijk zodat er niet door het groenscherm heen kan worden gekeken (L. Van De Velde, persoonlijke communicatie, 14 maart 2024). Finaal ishet logischerwijze van belang dat de planten correct worden ingepast


op het inrichtingsplan van het bedrijventerrein zodat de visuele afscherming zeker wordt gegarandeerd op de plekken die zorgen voor de meeste visuele hinder.
Snoeibeheer groenscherm:
Om een blijvend resultaat te hebben op langere termijn is het noodzakelijk dat er een goed onderhoud wordt toegepast op het groenscherm. Zo moeten onder andere de juiste snoeihoogtes worden gerespecteerd opdat de visuele afscherming en het gewenste groenbeeld blijft (L. Van De Velde, persoonlijke communicatie, 14 maart 2024).
De Vereniging voor openbaar groen (VVOG) heeft hiervoor een Snoei-Wijzer voor het snoeien van heesters gepubliceerd dat een handig zakboekje is met de basis voor groenbeheerders (VVOG, 2020).
Landschappelijke inpassing:
Een landschappelijke inpassing kan rondom het bedrijventerrein worden gesitueerd met als doel het opvallende bedrijfsgebouw uit het zicht te onttrekken. Door deze landschappelijke inpassing door te trekken op het bedrijventerrein zelf ontstaat er een geleidelijke overgang tussen bewoond of agrarisch gebied naar het bedrijventerrein wat een meerwaarde biedt ten opzichte van alleen maar een harde, groene buitengrens. Door de groenzone voldoende plaats te geven, is er ruimte voor geleidelijke overgangen van hoge naar lage vegetatie en moeras in combinatie met waterberging Dit bevordert de biodiversiteit des te meer als er dan ook gekozen wordt voor inheemse bomen en struiken (Ecopedia, z.d.).
Conclusie
Het is duidelijk dat de aanplantingsfase cruciaal is om de visuele afscherming te kunnen realiseren. Daarbij moeten de plantensoorten getoetst worden aan verschillende criteria zoals maximale groeihoogte, groeisnelheid en groeidichtheid van de plant. Nadien is het belangrijk dat het groenscherm behouden blijft in zijn gewenste staat door een goed snoeibeheer toe te passen. Daarbij kan gebruik gemaakt worden van een handige Snoei-Wijzer voor groenbeheerders van de VVOG. Het is daarnaast ook nog van belang dat het groenscherm opgaat in zijn omgeving door voldoende groenruimte te voorzien en het groen op een strategische manier in het landschap in te passen.
2.6. Welke plantensoorten komen in aanmerking voor de in-house toepassing?
In de eerste plaats is er inspiratie opgedaan uit de praktijk. Daarbij heeft deskundige Lieven Van De Velde een toelichting gegeven bij de documentatie die hij in opdracht van Sove had opgemaakt Zijn papieren tekeningen werden digitaal omgezet door tekenaar Luc Van Tornhout.
Deskundigheid
Voorbereidend werk Lieven Van De Velde (zie bijlage III):
Lieven is tuinontwerper voor privétuinen (particulieren) en zit reeds vele jaren in het vakgebied. Zo heeft hij een grote plantenkennis opgebouwd en kwam hij op die manier in contact met Sonny. Daarom werd er hem gevraagd een aantal modules op papier uit te tekenen met vegetatie die goed gedijt in het volledige grondgebied Vlaanderen. De basis van deze opdracht lag bij klanten die klachten krijgen over inkijk met betrekking tot hun groenscherm.
De documentatie komt voort uit Lieven zijn eigen kennis en ervaring en is als volgt samen te vatten:
De tekeningen op papier zijn iedere maal een uitgetekende strook van 50 m die is opgedeeld in vijf zones van 10 m met telkens een andere plantensoort per zone en dit voor verschillende breedtes gaande van 2 tot 10 m.
Bij de keuze van de vegetatie is er een opdeling gemaakt tussen groenblijvende planten die hun bladeren behouden in de winter (groen ingekleurd op de tekening) en bladverliezende planten die bladval hebben tijdens de winterperiode (zwart-wit ingekleurd op de tekening). Deze tekeningen zijn in bijlage VIII ingevoegd.
Enerzijds bestaat de selectie aanbeplanting bij de bladverliezende planten enkel uit inheemse plantensoorten die goed gedijen in onze grondsoort en wintervast zijn. Anderzijds bestaan de groenblijvende modules hoofdzakelijk uit uitheemse vegetatie. Aangezien er vanuit de vergunningverlenende instantie wordt verplicht om tekiezen voor streekeigen beplanting, dient hiervoor een motivatie te worden opgemaakt. Dit komt voort uit de zorgplicht en het integratiebeginsel (art. 14 en 16 NatD) die iedere natuurlijke of rechtspersoon verplichten om de huidige natuur zoveel mogelijk in stand tehouden door vernietiging ervan of schade eraan te voorkomen, te beperken of te herstellen. De oplossing kan erin bestaan om een smalle strook langs de perceelsgrens te beplanten met groenblijvende vegetatie en de overige oppervlakte van het groenscherm te voorzien van inheemse plantensoorten.
De stroken zijn uitgetekend in modules voor een goede inpasbaarheid op het bedrijventerrein afhankelijk van de beschikbare oppervlakte voor een groenscherm.
Elke tekening beschikt verder over een bijhorend detaildocument met de beschrijving van de gebruikte planten per module en het aantal planten dat hiervan per 100 m² zou moeten worden aangeplant. Zo kan er gemakkelijk worden omgerekend naar de totale hoeveelheid benodigde planten per soort. Daarnaast is er een korte uitleg per plantensoort met hun kenmerken en voordelen. Algemeen is er nog een minimale omschrijving van het volledige groenscherm (zie bijlage VIII).
Er zijn ook documenten opgesteld met tabellen voor het groeioverzicht van de verschillende gebruikte groenblijvende en bladverliezende planten. Daarop wordt aangegeven wat de groei per jaar is in cm, het aantal jaren tot volwassen hoogte van de plant en de maximale hoogte in meter (zie bijlage VIII). (L. Van De Velde, persoonlijke communicatie, 14 maart 2024)
Tekenwerk Luc Van Tornhout (zie bijlage VII):
Luc deed opzoekwerk om digitale figuren van de voorgestelde planten terug te vinden in zowel 2-D als 3-D en deze te verwerken in zijn tekenprogramma Microstation Bentley.
In het tekenprogramma werkt hij met een laag per plantensoort (L. Van Tornhout, persoonlijke communicatie, 22 maart 2024). Zo zijn er modules opgemaakt van alle voorgestelde plantensoorten die elk op een tekenlaag staan, zodat deze kunnen verwerkt worden in verschillende gecombineerde groenzones. Met deze diverse lagen bomen en planten kunnen ontwerpen worden ingevuld waar groenzones van verschillende vormen en breedtes nodig zijn om zo tot een volledige inplanting van het terrein te komen.
Om de nodige achtergrondkennis te verzamelen over de verschillende planten- en boomsoorten en plantfiguren, zijn enkele websites geraadpleegd die in bijlage VII beschreven staan (L. Van Tornhout, persoonlijke communicatie, 2 april 2024).
Streekeigen beplanting
In de stedenbouwkundige voorschriften van de ruimtelijke plannen wordt er vaak opgelegd om streekeigen beplanting aan teplanten. Soms is er enkel de keuze tussen de plantensoorten die in een lijst als bijlage zitten
gevoegd bij de stedenbouwkundige voorschriften. Anders is er de keuzevrijheid en kan er beroep gedaan worden op de lijst van Vlaamse inheemse bomen en struiken (zie bijlage X).
Daarnaast wordt er opgelegd om een permanent groenscherm tebekomen voor de visuele afscherming door een percentage van bijvoorbeeld 20% blad- of naaldhoudende beplanting te voorzien aan de perceelsgrens bijvoorbeeld aan de hand van een coniferenrij.
In zeldzame gevallen zijn geen uitheemse soorten toegelaten en moet een permanent groenscherm worden bekomen met enkel inheemse soorten. In de overzichtslijst in de bijlage IX is te zien dat de keuze dan nog maar beperkt blijft (Fagus sylvatica, Ilex aquifolium, Taxus baccata).
Toetsing aan criteria met plantengids
De plantengids van bomenkwekerij Willaert geeft een goed overzicht van de geschikte plantensoorten volgens de gewenste criteria waaraan een groenscherm zou moeten voldoen (Willaert Boomkwekerij, z.d.):
Figuur 10: Ingestelde filters met plantengids Willaert (Willaert, z.d.)
Als de vergelijking wordt gemaakt met de voorgestelde plantensoorten van Lieven Van De Velde, komt dit nagenoeg overeen, weliswaar aangevuld met een aantal soorten. Daarvan is in bijlage IX een overzichtslijst opgemaakt die dus, zoals eerder besproken, getoetst is aan de plantenlijst van Ecopedia.
Deze plantensoorten zouden het in alle bodemtypes goed moeten doen en een groenscherm bekomen van minimaal 3 meter hoogte zodoende de visuele afscherming te garanderen. Bovendien behouden ze hun bladeren ook in de winter zodat doorkijk in alle seizoenen praktisch onmogelijk is. Met deze verzameling aan plantensoorten kan er een bepaalde zekerheid worden geboden dat het gewenste groenscherm zal worden gerealiseerd mits rekening te houden met bijvoorbeeld de standplaatseigenschappen en de bedrijfseigen vereisten
Plantenkeuze op basis van standplaats en oriëntatie
Elke plant heeft zijn ideale standplaats om optimaal in te groeien. De belangrijkste standplaatseigenschappen zijn reeds besproken. Daarnaast is de oriëntatie belangrijk (zon, halfschaduw of schaduw). Andere factoren
die nog een rol spelen in de sortimentskeuze zijn: Wind – ziekten en plagen – strooizout – temperaturen –winterhardheid (PCS; 2022).
Ook de factoren luchtverontreiniging, gewenste grootte van de planten, bijdrage aan biodiversiteit en landschappelijke integratie moeten opgenomen worden in de criteria (PCS, 2022). Deze zijn besproken geweest in de verschillende delen van relevante aspecten.
Conclusie
De verschillende besproken aspecten gelden als criteria voor de plantenkeuze. Door deze in te geven in een plantengids, zoals bijvoorbeeld die vanplantenkwekerij Willaert, worden de plantensoorten weergegeven die hieraan voldoen. Er kan daarbij worden vastgesteld dat deze in grote mate overeenkomen met de plantensoorten die Lieven Van De Velde reeds had voorgesteld, weliswaar aangevuld met een aantal soorten. Een overzichtslijst is terug te vinden in bijlage IX. Deze lijst is uiteraard niet eindig, maar vormt wel een goede basis om te voldoen aan alle criteria die verwacht worden bij de inrichting van een groenscherm en kan gebruikt worden in het advies dat Sove verleent.
2.7. Hoe kan het groenscherm worden ingevuld met de plantensoorten?
Er zou uitgegaan worden van twee varianten:
✓ Een formeler groenscherm dat meer afgelijnd onderhouden wordt (geschoren haag) om voornamelijk de visuele hinder te remediëren. Dit is qua biodiversiteit wel minder waardevol.
✓ Een wilder groenscherm waarbij ingezet wordt op maximale biodiversiteit met een grotere diversiteit aan planten. Dit kan dan worden ingevuld naar de wensen van het bedrijf.
Afhankelijk vande beschikbare oppervlakte die zal worden ingericht als groenscherm op het bedrijventerrein, kan de keuze voor een bepaalde variant worden gemaakt. Zo maakt een zone van 2 m breedte het bijvoorbeeld moeilijker om verschillende plantlagen te voorzien als rondom het volledige bedrijventerrein een permanent groenscherm moet bekomen worden. Bij bredere zones kan, zoals eerder besproken, een permanent groenscherm worden voorzien op de perceelsgrens en daarachter een verscheidenheid aan beplantingen worden geplant. Dit zijn dan streekeigen hoog- en laagstammige beplantingen zoals die vaak worden voorgeschreven in de stedenbouwkundige voorschriften (W. Rommens, persoonlijke communicatie, 19 april 2024)
Het is ook zo dat de keuze voor streekeigen en autochtone planten een beter resultaat garandeert omdat deze bomen en struiken al geruime tijd in onze gebieden vertoeven en goed zijn aangepast aan de lokale leefomstandigheden, waardoor ze grotere overlevingskansen hebben (W. Rommens, persoonlijke communicatie, 19 april 2024). Ten opzichte van een formeel groenscherm, heeft een gemengd haagpakket tevens een ecologische meerwaarde (Behaag je tuin, z.d.).
Conclusie
Per bedrijf moet er gekeken worden wat de mogelijkheden zijn om een formeel of eerder een gevarieerder groenscherm in te richten afhankelijk van de beschikbare oppervlakte en breedte van het groenscherm. Daarbij kande overzichtslijst in bijlage IXalseen goede basis dienen. Sowieso dient erwel gestreefd teworden naar een zo hoog mogelijke biodiversiteitswaarde en kan Sove de klant adviseren om hierop te letten gezien het belang van biodiversiteit in de toekomst.
3. Hoe kunnen de groenvoorzieningen in een toekomstgericht inrichtingsplan van terreinontwikkeling worden ingepast?
Bij de ontwikkelingen van bedrijventerreinen worden (stedenbouwkundige) inrichtingsplannen opgemaakt om de mogelijkheden in een gebied te bekijken en af te tasten welke de best mogelijke ruimtelijke invulling is.
3.1. Wat houdt zo’n (stedenbouwkundig) inrichtingsplan in?
Een stedenbouwkundig inrichtingsplan (Dienst Stedenbouw en Ruimtelijke Planning Stad Gent, 2022):
➢ Wordt gebruikt om een inzicht te geven in de toekomstige ruimtelijke structuur van een projectsite en de samenhang met de omgeving
➢ Bepaalt de ambities en randvoorwaarden
➢ Vormt de inhoudelijke basis voor de omgevingsvergunningsaanvraag
Zo’n inrichtingsplan bevat concreet de invullingen van het volledige bedrijventerrein (bedrijfsgebouwen, groene zones enz.) en een deel van de omliggende omgeving.
Soms wordt een apart beplantingsplan voor de aanleg van een groenscherm opgelegd in de stedenbouwkundige voorschriften zoals bijvoorbeeld bij het RUP Industrie Eilandjes in Harelbeke (zie bijlage XI) Dit wordt in de ruimtelijke ordening gebruikt om in detail de plaatsing van de diverse plantensoorten weer te geven en hoeveel van welke soort en de onderlinge plantafstand (zie bijlage VIII) (Wikipedia, 2023).
Conclusie
Een inrichtingsplan geeft op een planologische wijze aanhoe de verschillende zones van een bedrijventerrein zullen worden ingevuld en bepaalt de voorwaarden Dit vormt cruciale input voor de omgevingsvergunning.
3.2. Over welke termijn moeten deze plannen worden bekeken?
Korte termijn wordt volgens het besluit tot bepaling van de nadere regels inzake het planologisch attest gedefinieerd als de ontwikkelingen waarvoor een bedrijf de werken wil aanvatten binnen 2 jaar na de afgifte van het attest (art. 1.3°) Datzelfde besluit definieert de lange termijn als de ontwikkelingen andere dan de ontwikkelingen op korte termijn (art. 1.4°).
Voor de lange termijn hebben bedrijven vaak investeringstrajecten lopen die de toekomstplannen van de bedrijfsontwikkelingen projecteren in de toekomst. Daaraan gekoppeld zijn er bepaalde afschrijvingstermijnen waarmee rekening moet gehouden worden. De wetgever heeft ter bepaling van de afschrijvingsperiode diverse richttermijnen voorgesteld die de fiscus hanteert als uitgangspunt. Zo is de afschrijvingstermijn voor kantoren en gebouwen 33 jaar en voor nijverheidsgebouwen 20 jaar (Risack, 2019) Het art. 99. §1 OVD vermeldt ook in welke gevallen de verleende omgevingsvergunning van rechtswege vervalt. Zo vervalt de vergunning bijvoorbeeld als de verwezenlijking van de vergunde stedenbouwkundige handelingen niet wordt gestart binnen de twee jaar na het verlenen van de definitieve omgevingsvergunning (art. 99. §1.1° OVD) en binnen de vijf jaar als de exploitatie van de vergunde activiteit of inrichting niet is aangevangen (art. 99. §1.4° OVD).


Aangezien dit aanzienlijke termijnen zijn, is het noodzakelijk om aan toekomstbestendige terreinontwikkeling te doen en toekomstige wettelijke bepalingen in rekening te brengen. Zo is het tevens de bedoeling de in te richten groenvoorzieningen mee op te nemen in deze langetermijninvesteringen en de budgetten op voorhand in te schatten naar aanleg en onderhoud toe.
Conclusie
Op de korte termijn gebeuren de bouwwerken en zo ook de aanplantingswerken van de groenvoorzieningen Dit is gewoonlijk binnen een termijn van maximaal 2 jaar. De beplantingen moeten tevens gebeuren in het eerstvolgende plantseizoen na verlening van de vergunning. Op de lange termijn moeten de uitbreidingsmogelijkheden in rekening worden gebracht en waar er nog ruimtelijke ontwikkelingsmogelijkheden zijn. Deze termijnen situeren zich tussen de 5 à 10 jaar.
4.
Hoe
kan maximale flexibiliteit voor toekomstige terreinontwikkelingen behouden worden?
Het is noodzakelijk om rekening te houden met toekomstige bedrijfsuitbreidingen en daarin een zekere flexibiliteit te voorzien om een dynamische bedrijfsgroei toe te laten. Onder flexibiliteit kan worden verstaan:
• Een strategische inplanting van de groenvoorzieningen in een eerste ontwikkelingsfase.
Dit betekent voldoende ruimte voorzien voor het bedrijfsgroen en hier eerst over na te denken vooraleer de gebouwen op het bedrijventerrein in te passen (T. Vander Auwermeulen, persoonlijke communicatie, 22 mei 2024).
• Een plantenrecuperatie in een verdere ontwikkelingsfase door het verplanten van de beplantingen.
Dit betekent de haagkluiten verplaatsen naargelang de nodige ruimte voor de bedrijfsontwikkeling. Echter is dit eenvoudiger met jonge planten dan met volwassen planten aangezien het wortelstelsel zich met de jaren stevig met de bodem verweeft. Het verplaatsen gebeurt best steeds in de rustperiode van de plant. Dit is wanneer de plant bijvoorbeeld weinig water nodig heeft en weinig nieuwe wortels zal aanmaken. Zo wordt de plant zo minimaal mogelijk beschadigd en krijgt die de kans om zich te herstellen na de verplaatsing (Tuincentrum.be, z.d.). Bij het verplanten van de beplantingen moet er een vergelijking worden gemaakt tussen de kosten van het verplanten of het aankopen van nieuwe vegetatie. Het iswel aan teraden om zoveel mogelijk in te zetten de huidige beplantingen te behouden.
Conclusie
Een combinatie van beide aspecten (strategische inplanting en plantenrecuperatie) is nodig om doorheen de tijd flexibiliteit te garanderen voor bedrijfsontwikkelingen.
5. Case study
De verzamelde informatie uit dit rapport kan worden gebruikt bij de praktijkomzetting van de in-house toepassing aan de hand van een case study. Dit betreft het bedrijf Moespom nv.
5.1. Bedrijfsvoorstelling
Wie is Moespom nv?
Moespom is een familiebedrijf in de derde generatie en gespecialiseerd in de eigen teelt van regionale aardappelen, de aanvullende inkoop van smakelijke rassen, de omzichtige productverwerking en de verpakking van consumptieaardappelen. Met hun ervaring en enthousiasme voor de beste aardappelen zorgen zij elke dag voor een gezond, lekker en waardevol product (Moespom, z.d.).
Ruimtelijke situering
Het bedrijf heeft 2 vestigingen: Killestraat 6 en Bootdijkstraat 37 in Hamme. De projectsite voor de case study situeert zich op het adres Killestraat 6 te Hamme.
Figuur 11: Projectsite Moespom nv (Killestraat 6, Hamme) dd 17 mei 2024 (Geopunt, z.d.)
5.2.Probleem
Omgevingscheck
Planologische context
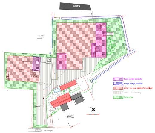
Om te weten welke ruimtelijke plannen er van toepassing zijn op de projectsite, is een omgevingscheck uitgevoerd die terug te vinden is in bijlage XII Daaruit blijkt dat het bedrijventerrein grotendeels in landschappelijk waardevol agrarisch gebied is gelegen en daarnaast ook in gebied voor ambachtelijke bedrijven en kmo’s volgens het gewestplan. Echter is er ook een BPA voor sectoraal zonevreemde bedrijven van toepassing voor een gedeelte van het bedrijventerrein. Dit gemeentelijk bestemmingsplan geeft een verfijning aan het gewestplan op lokaal niveau (Temse, z.d.). De voorwaarden met betrekking tot het groenscherm worden beschreven in de stedenbouwkundige voorschriften van dit ruimtelijk bestemmingsplan.
In de stedenbouwkundige vergunning, die werd toegekend op 21 januari 2003, is te lezen dat de stedenbouwkundige voorschriften van het BPA stipt te volgen zijn (zie bijlage XII) en zo moet de bufferzone in het eerstvolgende plantseizoen aangeplant worden Hoewel de bufferzone is opgelegd, kan er worden vastgesteld dat de werkelijke situatie te weinig voorziet in een bufferzone zoals te zien is op onderstaande Figuur 12. Één van de problemen is bijvoorbeeld een brandweg die is ingericht (gele pijl) en die niet zomaar kan worden vervangen door beplanting. Daarom zal de motivatie zijn om zoveel mogelijk buffer te voorzien op andere plekken op het bedrijventerrein.
Figuur 12: Inplantingsplan op orthofoto werkelijke toestand
Planologisch attest
Momenteel leggen de regels van het geldende BPA beperkingen op aan de site van de Killestraat zodat er niet meer kan uitgebreid of geoptimaliseerd worden. Aangezien de eigenaar graag alle verwerking op één site wil samenbrengen, namelijk op de Killestraat, geeft dit voor het bedrijf aanleiding om een planologisch attest op te maken en een planwijziging aan te vragen. De loodsen en gronden links van het bedrijf kunnen op korte termijn opgekocht worden waardoor de bedrijfsoppervlakte zal toenemen Dit planologisch attest omvat gedetailleerde informatie met argumentatie over de planologische context en de toepasselijke wettelijke bepalingen. Voor de korte termijn zal ook de beplanting worden opgenomen in de motivatie aangezien dit bij verschillende rondgangen meermaals is aangekaart, maar nog niet in orde is gebracht zoals het zou moeten (J. Van Den Eeckhout, persoonlijke communicatie, 17 mei 2024)
Huidige groenvoorzieningen
De huidige beplantingen voldoen niet aan de voorschriften van de bufferzone en functioneren niet bepaald als visuele afscherming. Zo is Zone C op Figuur 14 ingericht als siertuin met een tuinhuis en padjes en kan dit niet doorgaan als bufferzone (J. Van Den Eeckhout, persoonlijke communicatie, 17 mei 2024).
Buurtbewoners
Het bedrijf isvlak naast een woongebied gelegen. Hetis daarbij belangrijk om zowel devergunningverlenende overheid alsook de buurtbewoners in de directe omgeving gunstig te blijven stemmen. Daarom is het in dit geval noodzakelijk om voldoende te investeren in een bufferzone langs Zone A (Figuur 14) om de visuele hinder ten opzichte vande rechtstreekse buur zoveel mogelijk tebeperken. (J. Van Den Eeckhout, persoonlijke communicatie, 17 mei 2024).
5.3. In-house toepassing
Wettelijke voorschriften
In de huidige situatie zijn de stedenbouwkundige voorschriften in het BPA van toepassing voor de inrichting van de bufferzones (zie bijlage XII). Echter is momenteel de aanvraag voor een planologisch attest in opmaak, waarmee aan de gemeente gevraagd wordt om een gemeentelijk ruimtelijk uitvoeringsplan op te maken. Daarin wordt onder andere aangevraagd om de bestemming industriegebied om te zetten naar overdruk agrarisch gebied. Aan de ingang vooraan is ook een niet vervallen verkaveling aanwezig waarvoor de bestemming parking in functie van het bedrijf wordt aangevraagd. Na stopzetting van de bedrijfsactiviteiten zou dit de nabestemming kunnen krijgen van een eengezinswoning in open verband (zie bijlage XII) (J. Van Den Eeckhout, persoonlijke communicatie, 24 mei 2024).
De voorwaarden voor een groenscherm in de nieuwe omgevingsvergunning zullen gebaseerd zijn op de stedenbouwkundige voorschriften uit dit nieuwe gRUP. In agrarisch gebied wordt echter geen bufferzone opgelegd, al zal er gekeken worden naar de huidige beplantingen en de landschappelijke inpassing.
Aan de oostkant van het bedrijventerrein loopt er een publieke gracht waarbij de gemeente een erfdienstbaarheidszone van maximum vijf meter landinwaarts van de rand van de gracht kan bepalen (art. 23ter. §2 Wet Onbevaarbare Waterlopen) (VVPW, z.d.). De gemeente heeft voor de gracht langs Moespom (onbevaarbare waterloop categorie 3) wel degelijk de maximale erfdienstbaarheid van vijf meter opgelegd aan beide kanten, wat te zien is op onderstaande Figuur 13 (VMM, z.d.) (J. Van Den Eeckhout, persoonlijke communicatie, 12 maart 2024).
Figuur 13: Digitale Atlas Waterloopkaarten (VMM, z.d.)
Dat verklaart waarom er langs zone C een graszone is voorzien langs de gracht.
Bodemparameters
Om de bodemparameters te bepalen dient er een bodemanalyse te gebeuren om een zicht te verkrijgen op de standplaatseigenschappen van de beplantingen. Aangezien Moespom met zijn bedrijfsactiviteiten in de aardappelteelt zit, wordt er aangenomen dat er enige deskundigheid aanwezig is op het bedrijf zelf om de bodem te analyseren op het bedrijventerrein. Daarnaast zijn er aannames gemaakt op basis van online bronnen zoals Geopunt en Google Maps. Onderstaande tabel geeft een overzicht van de standplaatseigenschappen van de verschillende beplantingszones:
STANDPLAATSEIGENSCHAPPEN
BODEMTYPE
ORGANISCHE STOF
ZUURTEGRAAD
ZONE A ZONE B
Onbekend, maar vermoedelijk ook natte zandleembodem
Nader te bepalen
Nader te bepalen
BODEMVERDICHTING
Nader te bepalen Vermoedelijk hoog door aanwezigheid parking met zwaar verkeer (vrachtwagens)
Overgang natte zandleembodem → Sterk gleyige kleibodem
Nader te bepalen
Nader te bepalen
Vermoedelijk hogere zuurtegraad door aanwezigheid van akker (NO₃⁻, PO₄³⁻)
Nader te bepalen Vermoedelijk laag door weinig betreding
ZONE C
Matig gleyige kleibodem
Nader te bepalen
Nader te bepalen
Nader te bepalen Vermoedelijk laag door weinig betreding (enkel via padjes die er nu liggen)
BODEMVERONTREINIGING Afwezig Afwezig Afwezig
GRONDWATERSTAND
Nader te bepalen
Vermoedelijk zeer hoog door hoge grondwaterstandindicatoren
Nader te bepalen Vermoedelijk zeer hoog door hoge grondwaterstandindicatoren
Nader te bepalen Vermoedelijk zeer hoog door hoge grondwaterstandindicatoren
ONDERGRONDSE GROEIRUIMTE
Aanplantzone
overal in Vlaanderen en nabije aanwezigheid van de Schelde (zie bijlage XII)
Nader te bepalen Vermoedelijk voldoende na ontharding → letten op doorbraak wortels onder parking
overal in Vlaanderen en nabije aanwezigheid van de Schelde (zie bijlage XII)
Nader te bepalen Vermoedelijk ruim voldoende
overal in Vlaanderen en nabije aanwezigheid van de Schelde (zie bijlage XII)
Nader te bepalen Vermoedelijk ruim voldoende
Op Figuur 14 hieronder zijn de zones aangeduid die zeker een bufferzone moeten vormen.
Zone A
Beschrijving:
De woning naast zone A beschikt over een privacyhaag bestaande uit de plantensoort ‘Cupressocyparis leylandii’ (Google Maps, 2023). Een haagconifeer die het goed doet in alle grondsoorten en vaak wordt geplaatst op een zonnige standplaats. De plant heeft de eigenschap wintergroen te zijn en behoudt zo zijn groene bladkleur in de winter (Plantentuin Esveld, z.d.) Er zou kunnen voorgesteld worden om de bufferzone A in te richten met dezelfde plantensoort, al draagt de plant niet bepaald bij aan de inheemse biodiversiteit Hij produceert namelijk geen bloemen of vruchten De haagplant geeft wel beschutting en nestgelegenheid voor vogels en andere kleine dieren door de dichte groeiwijze (Yarinde, z.d.).
Eerst dient een deel van de parking te worden onthard. Hiervoor moeten er grondwerken gebeuren. Daarna is het belangrijk om de bodemomstandigheden te bewerkstelligen in functie van de beplanting die er komt. Een goede communicatie tussen de verschillende partijen (exploitant, aannemer onthardingswerken, tuinarchitect, …) is noodzakelijk (T. Vander Auwermeulen, persoonlijke communicatie, 22 mei 2024).
Figuur 14: In te richten zones als bufferzone (Geopunt, z.d.)
Zone A
Zone B
Zone C
Voorstel plantensoorten:
Met de plantengids van boomkwekerij Willaert zijn de criteria uit onderstaande tabel toegepast (Willaert, z.d.):
Criteria
Categorie Hoogte
Standplaats
Grondsoort Haagplanten Groter dan 2 m Zon Alle/zand/leem + nat
De plantensoorten die voldoen aan de criteria zijn vervolgens getoetst aan de modules in bijlage VIII en de plantenlijst van Ecopedia. Verder is er gekeken of de planten inheems zijn of niet. Zo is de keuze gemaakt om zone A te beplanten met de plantensoorten Ligustrum vulgare, Fagus sylvatica, Acer campestre en Crataegus monogyna zoals in bijlage XV te zien is.
Motivering:
Al deze planten zijn oorspronkelijk inheems waardoor er aan de voorwaarde in het BPA wordt voldaan om enkel streekeigen beplanting te voorzien. Daarnaast zijn ze ook allemaal geschikt voor een geschoren haag wanneer Moespom dit zo zou willen onderhouden (Ecopedia, z.d.) Bovendien is Hamme gelegen in het Regionaal Landschap Schelde-Durme (Regionaal Landschap Schelde-Durme, z.d.) waarbij de voorgestelde plantensoorten geschikt zijn voor de regio volgens de praktische gids voor hagen (Regionaal Landschap Schelde-Durme, z.d.).
Voordelen
Plantensoort Inkijk Ecologie
Ligustrum vulgare Wintergroen (bijlage IX) Produceert zwarte bessen die eetbaar zijn voor vogels, maar giftig zijn voor de mens en is een nectarbron voor zweefvliegen, bijen, kevers en vlinders (Regionaal Landschap Schelde-Durme, z.d.)
Fagus sylvatica Veel zijtakken (bijlage VIII) Is de waardplant van de meikever en het vliegend hert
Acer campestre Veel kleine vertakkingen (bijlage VIII)
(Regionaal Landschap Schelde-Durme, z.d.)
Trekt diverse vogelsoorten aan met zijn vleugelnootjes (Arborix, z.d.)
Crataegus monogyna Dichte structuur (bijlage VIII) Is een belangrijke schuil- en broedplaats voor vogels
(Regionaal Landschap Schelde-Durme, z.d.)
Zone B
Beschrijving:
Deze zone is achteraan het bedrijf gelegen vlak naast een akker. Er zijn reeds enkele bomen geplaatst, maar er is inkijk vanop de straat door afwezigheid van een dicht groenscherm (Figuur 15)
Voorstel plantensoorten:
Met de plantengids van boomkwekerij Willaert zijn de criteria uit onderstaande tabel toegepast (Willaert, z.d.):
Criteria
Haagplanten Groter dan 2 m Zon/halfschaduw Alle/zand/leem + zuur + nat De plantensoorten die voldoen aan de criteria zijn vervolgens getoetst aan de modules in bijlage VIII en de plantenlijst van Ecopedia. Verder is er gekeken of de planten inheems zijn of niet. Zo is de keuze gemaakt om zone B te beplanten met de plantensoorten Ligustrum vulgare, Ilex aquifolium, Carpinus betulus, Corylus avellana en Viburnum opulus zoals in bijlage XV te zien is.
Motivering:
Al deze planten, behalve Viburnum opulus, zijn oorspronkelijk inheems waardoor er aan de voorwaarde in het BPA wordt voldaan om streekeigen beplanting te voorzien (Ecopedia, z.d.) De Viburnum opulus is oorspronkelijk inheems in Nederland, maar komt ook van nature voor in de Benelux (Cruydt-Hoeck, z.d.).
Deze plantensoorten zijn bestand tegen een zure bodem die er vermoedelijk is door de landbouwactiviteiten op de akker ernaast. De Ligustrum vulgare en Ilex aquifolium zorgen voor een dicht groenscherm op de kale plekken en de andere plantensoorten zorgen samen met de bomen voor een dichte begroeiing (zie bijlage VIII).
Voordelen
Plantensoort Inkijk Ecologie
Ligustrum vulgare Wintergroen (bijlage IX)
Ilex aquifolium Wintergroen (bijlage VIII)
Carpinus betulus Veel zijtakken die inkijk minimaliseren (bijlage VIII)
Corylus avellana Vormt een dichte struik (Regionaal Landschap Schelde-Durme, z.d.)
Produceert zwarte bessen die eetbaar zijn voor vogels, maar giftig zijn voor de mens en is een nectarbron voor zweefvliegen, bijen, kevers en vlinders (Regionaal Landschap Schelde-Durme, z.d.)
Lokt bijen, vlinders en tal van vogels (Willaert, z.d.)
De zaden trekken de Appelvink aan en het is de waardplant van de meikever (Regionaal Landschap Schelde-Durme, z.d.)
Trekt eekhoorns aan met zijn hazelnootjes (Regionaal Landschap Schelde-Durme, z.d.)
Figuur 15: Straatzicht vanop Kasteellaan (Google Maps, 2023).
Viburnum opulus Vormt schermvormige bloemen (bijlage VIII)
Zone C
Beschrijving:
Vergroot de aantrekkingskracht van bestuivers (zweefvliegen, kevers en vlinders) (Flora van Nederland, z.d.)
Deze zone is reeds groen ingericht, maar vormt geen echte bufferzone en is eerder ingericht als een siertuin met padjes en een tuinhuis
Voorstel plantensoorten:
Met de plantengids van boomkwekerij Willaert zijn de criteria uit onderstaande tabel toegepast (Willaert, z.d.):
Criteria
Haagplanten Groter dan 2 m Zon Alle/klei + nat
De plantensoorten die voldoen aan de criteria zijn vervolgens getoetst aan de modules in bijlage VIII en de plantenlijst van Ecopedia. Verder is er gekeken of de planten inheems zijn of niet. Zo is de keuze gemaakt om zone C te beplanten met de plantensoorten Ligustrum vulgare, Ilex aquifolium, Crataegus monogyna, Prunus rotundifolia en Viburnum opulus zoals in bijlage XV te zien is.
Motivering:
De Ligustrum vulgare, Ilex aquifolium en Crataegus monogyna zijn oorspronkelijk inheemse planten om te voldoen aan de voorwaarde in het BPA om streekeigen beplanting te voorzien (Ecopedia, z.d.) De Viburnum opulus is oorspronkelijk inheems in Nederland, maar komt ook van nature voor in de Benelux (Cruydt-Hoeck, z.d.). De Prunus rotundifolia is afkomstig uit het Midden-Oosten, maar wordt tegenwoordig vaak gebruikt in Europese tuinen (Gardline, 2021). De Ligustrum vulgare en Ilex aquifolium zorgen voor een dicht groenscherm De andere plantensoorten zorgen voor een mooie opvulling.
Voordelen
Plantensoort Inkijk Ecologie
Ligustrum vulgare Wintergroen (bijlage IX)
Ilex aquifolium Wintergroen (bijlage VIII)
Crataegus monogyna Dichte structuur (bijlage VIII)
Prunus rotundifolia
Viburnum opulus
Vormt een gesloten groenscherm (bijlage VIII)
Vormt schermvormige bloemen (bijlage VIII)
Produceert zwarte bessen die eetbaar zijn voor vogels, maar giftig zijn voor de mens en is een nectarbron voor zweefvliegen, bijen, kevers en vlinders (Regionaal Landschap Schelde-Durme, z.d.)
Lokt bijen, vlinders en tal van vogels (Willaert, z.d.)
Is een belangrijke schuil- en broedplaats voor vogels (Regionaal Landschap Schelde-Durme, z.d.)
Vormt de ideale zone voor zangvogels (bijlage VIII) en lokt vlinders en bijen (Willaert, z.d.)
Aantrekkingskracht van bestuivers vergroten (zweefvliegen, kevers en vlinders) (Flora van Nederland, z.d.)
Om de overige oppervlakte van zone C in te vullen zal de bruikbare bestaande beplanting worden geheroriënteerd. Daarnaast kunnen inheemse heesters worden geplant in functie van de keuze van het bedrijf.
Andere aspecten
Water
Op de site zaler maximaal worden ingezet op hemelwateropvang in een bufferbekken om dit te hergebruiken op het land voor de aardappelteelt. Volgens de hiërarchie voor de afvoer van hemelwater staat dit op de eerste plaats (art. 4.2.1.3. §5 VLAREM II)en hoeft er geen bijgevolg geen wadi teworden voorzien (J. Van Den Eeckhout, persoonlijke communicatie, 27 mei 2024).
Lucht
Enkele van de voorgestelde plantensoorten (Viburnum opulus, Carpinus betulus en Acer campestre) staan in de top 10 om fijn stof af te vangen en bij te dragen aan een betere luchtkwaliteit (ILVO, 2019).
Biodiversiteit
De biodiversiteitswaarde van het bedrijventerrein van Moespom is op een objectieve manier nagegaan aan de hand van het objectief meetsysteem. Daarvan is in bijlage XIII een achtergronddocument terug te vinden. Elke zone op het bedrijf kreeg een score voor de huidige situatie en de toekomstige situatie (zie bijlage XIV). Daarna zijn ook de oppervlaktes uit bijlage XV in rekening gebracht om te komen tot een gewogen gemiddelde score (zie bijlage XIV). Aangezien zo’n 80% van de volledige oppervlakte nog verhard is en ook zo zal blijven, is detotale verandering in biodiversiteitswaarde minimaal. Als ernaar de zones A, B en C apart wordt gekeken, is er toch een duidelijkere verandering.
Erfgoed
Moespom ligt vlakbij het landschappelijk geheel ‘Vlassenbroekse polder en polder van Kastel, Mariekerke en Sint-Amands’ zoals te zien is op onderstaande Figuur 16 Deze uniek biotoop bestaat uit slikken en schorren die specifieke flora en fauna aantrekken en als biologisch zeer waardevol gebied worden aanschouwt (Inventaris Onroerend Erfgoed, z.d.). Zo kunnen de beplantingen op het bedrijventerrein van Moespom eveneens een kleine habitat vormen voor deze vogels en insecten
Moespom nv
Figuur 16: Landschappelijk geheel 'Vlassenbroekse polder en polder van Kastel, Mariekerke en Sint-Amands' (Inventaris Onroerend Erfgoed, z.d.)
Conclusie
Het uitgewerkte voorstel uit de case study kan worden opgenomen in het planologisch attest.
Conclusie
De onderzoeksvraag van dit onderzoek, “Hoe kan een in-house toepassing voor Sove BV worden ontwikkeld voor de inplanting van groenschermen rond bedrijventerreinen conform de vigerende wetgeving in Vlaanderen?”, kan bij deze worden beantwoord.
In dit onderzoek is een analyse uitgevoerd op het wettelijke kader voor de inrichting van een groenscherm op een bedrijventerrein. Zo kon de toepassing conform de Vlaamse wetgeving worden uitgewerkt. Daaruit is gebleken dat de wettelijke voorschriften vastgelegd zijn in de geldende ruimtelijke plannen Deze worden verwerkt in de voorwaarden van de omgevingsvergunning die door het bedrijf moeten worden nageleefd. Zo niet, kan de uitbating van de exploitatie worden gehypothekeerd door bijvoorbeeld klachten van buurtbewoners in de directe omgeving over visuele hinder
Verder zijn een aantal relevante aspecten meer in detail besproken die verbonden zijn aan de beplantingen. Om de geschikte vegetatiekeuze te maken, is het noodzakelijk de bedrijfsspecifieke omstandigheden te onderzoeken met betrekking tot de bodem, het water, de lucht en de omgeving. De mogelijkheid bestaat dat de exploitant hierin zelf info aanlevert en anders kandit gebeuren bij een plaatsbezoek dat Sove steeds houdt bij de aanstelling als externe milieucoördinator. Als er eventueel extra deskundigheid nodig zou zijn, kan er beroep gedaan worden op mensen uit het netwerk (vb. bodem- of biodiversiteitsdeskundige, tekenaar, …).
Daarnaast is vastgesteld dat bedrijven dikwijls weinig belangstelling tonen voor hun groenvoorzieningen en dit vaak louter vanuit economisch oogpunt bekijken. Het is belangrijk dat Sove in zijn adviserende rol de nodige aandacht hierop kan vestigen om alle voorwaarden van de omgevingsvergunning te borgen. Zo kan het bedrijf zich voorbereiden op een toekomst waarin steeds meer belang wordt gehecht aan biodiversiteit.
Als laatste is de in-house toepassing reeds gebruikt in een case study voor het bedrijf Moespom. Daarbij is het wettelijke kader grotendeels bepaald met de omgevingscheck van het Omgevingsloket. Daarnaast zijn de relevante aspecten besproken en getoetst aan de bedrijfsomstandigheden. Zo is finaal een voorstel voor de beplantingen tot stand gekomen om te verwerken in het planologisch attest en eventueel in een advies naar de klant. Het gebruik van de in-house toepassing in de praktijk leidt tot de conclusie dat Sove zich niet op een derde partij hoeft te beroepen om een eerste advies te formuleren inzake een groenscherm.
Nu heeft Sove zelf een toepassing ter beschikking om de klanten ook in verband met hun groenscherm op een beargumenteerde manier te kunnen adviseren
Aanbevelingen
Met de in-house toepassing als output van dit onderzoek is het wel aanbevolen dat Sove nog verder onderzoek doet naar de financiële aspecten. Zo moet per bedrijf worden nagegaan wat het budget is om te investeren in de groenvoorzieningen zodat de inrichting van het groenscherm daarbinnen kan worden uitgewerkt.
Ook het aspect geluid moet verder onderzocht worden. Dit kan in samenwerking met een geluidsdeskundige gebeuren.
Sove moet zijn klanten zeker adviseren om voldoende ruimte tevoorzien voor hun groenvoorzieningen zodat hun investeringen op lange termijn niet verloren gaan door kapotgaande beplantingen. Daarnaast is het belangrijk om de aandacht te vestigen op de biodiversiteit (vb. inheemse vegetatie) omdat er in de toekomst steeds meer bindende wetgeving hierover zal komen. Het is daarbij aangewezen om een combinatie te voorzien van hagen en bomen.
Met dit eindwerk ter beschikking kan Sove ook eens polsen bij beroepsfederatie VMx of andere externe milieucoördinatoren met dezelfde problematiek worden geconfronteerd en of er een mogelijkheid zou zijn om tot meer systematische oplossingen te komen. Dit in samenwerking met de lokale besturen door na te denken over wetgeving die in de praktijk consistenter is over de grondgebieden heen.
Bronnen
• 2B Connect. (z.d.). Het project. https://www.2b-connect.eu/
• Arborix. (z.d.). Acer Campestre. https://www.arborix.be/nl/acer-campestre
• Behaag je tuin. (z.d.). Over deze actie. https://www.behaagjetuin.be/about.php
• Blauw Groen Vlaanderen. (z.d.). Wadi’s. https://blauwgroenvlaanderen.be/professionals/maatregelen/wadis/
• Cruydt-Hoeck. (z.d.). Gelderse Roos – Viburnum opulus. https://www.cruydthoeck.nl/Gelderse-RoosViburnum-opulus
• Curieuze Neuzen. (2021, 9 juli). Klei, zand of leem? Je bodemtype zegt veel over de droogteresistentie van je bodem. https://curieuzeneuzen.be/klei-zand-of-leem-je-bodemtype-zegt-veel-over-dedroogteresistentie-van-je-bodem/
• De Maeseneer, W. (2024, 27 februari). Natuurherstelwet dan toch goedgekeurd in Europees Parlement. https://www.vrt.be/vrtnws/nl/2024/02/27/natuurherstelwet-goedgekeurd-in-europees-parlement/
• Departement Omgeving (1972, 28 december). Koninklijk besluit betreffende de inrichting en de toepassing van de ontwerp-gewestplannen en gewestplannen. In Koninklijk Besluit (pp. 2–19). https://omgeving.vlaanderen.be/sites/default/files/2021-11/Gewestplan_KB_1972.pdf
• Departement Omgeving. (2017, 6 oktober). Stedenbouwkundige voorschriften. https://assets.vlaanderen.be/image/upload/v1670408109/Stbvoors_GWP_wsjdhi.pdf
• Departement Omgeving. (z.d.). Ambities. https://omgeving.vlaanderen.be/nl/ambities
• Departement Omgeving. (z.d.). Belang van organische koolstof in de bodem. https://www.omgeving.vlaanderen.be/nl/belang-van-organische-koolstof-in-de-bodem
• Departement Omgeving. (z.d.). De gewestelijke hemelwaterverordening 2023. https://omgeving.vlaanderen.be/nl/verordeningen/de-gewestelijke-hemelwaterverordening-2023
• Departement Omgeving. (z.d.). Geoportaal ruimtelijke plannen en verordeningen. https://geoplannen.omgeving.vlaanderen.be/roviewer?t=21&m=1&category=2
• Departement Omgeving. (z.d.). Plannen en verordeningen. https://dsi.omgeving.vlaanderen.be/ficheoverzicht?trefwoord=beplanting&code=gemSVO
• Departement Omgeving. (z.d.). Plannen en verordeningen – Bijzonder plan van aanleg. https://dsi.omgeving.vlaanderen.be/fiche-overzicht?trefwoord=industrie&code=BPA
• Departement Omgeving. (z.d.). Plannen en verordeningen – Gemeentelijk ruimtelijk uitvoeringsplan. https://dsi.omgeving.vlaanderen.be/ficheoverzicht?status=DEFINITIEF&trefwoord=industrie&code=gemRUP
• Departement Omgeving. (z.d.). Plannen en verordeningen – Gewestelijk ruimtelijk uitvoeringsplan. https://dsi.omgeving.vlaanderen.be/ficheoverzicht?status=DEFINITIEF&trefwoord=afbakening&code=gewRUP
• Departement Omgeving. (z.d.). Plannen en verordeningen – Provinciaal ruimtelijk uitvoeringsplan. https://dsi.omgeving.vlaanderen.be/ficheoverzicht?status=DEFINITIEF&trefwoord=afbakening&code=proRUP
• Departement Omgeving. (z.d.). Planologisch attest. https://omgeving.vlaanderen.be/nl/decreten-enuitvoeringsbesluiten/wetwijzer/planologisch-attest
• Departement Omgeving. (z.d.). Verordeningen. https://omgeving.vlaanderen.be/nl/verordeningen
• Departement Omgeving. (z.d.). Zonevreemde bedrijfsactiviteiten. https://omgeving.vlaanderen.be/nl/zonevreemde-bedrijfsactiviteiten
• Departement Ruimte Vlaanderen. (1997, 8 juli). Omzendbrief betreffende de inrichting en de toepassing van de ontwerp-gewestplannen en gewestplannen. https://omgeving.vlaanderen.be/sites/default/files/2021-11/omzendbrief1997_gewestplan_b.pdf
• Dienst Stedenbouw en Ruimtelijke Planning Stad Gent. (2022, 1 november). Samen naar een kwaliteitsvol stedenbouwkundig inrichtingsplan.
https://stad.gent/sites/default/files/media/documents/20221101_NO_SAMEN%20NAAR%20EEN%20K WALITATIEF%20STEDENBOUWKUNDIG%20INRICHTINGSPLAN_0.pdf
• DOV – Databank Ondergrond Vlaanderen. (z.d.). Actuele grondwaterstandindicator. https://www.dov.vlaanderen.be/page/actuele-grondwaterstandindicator
• DOV Portaal – Databank Ondergrond Vlaanderen. (z.d.). Digitale bodemkaart van het Vlaams Gewest: bodemtypes.
https://www.dov.vlaanderen.be/portaal/?module=verkenner&pos=117979.5%2C170196.7&res=1.4000 000000044093&layers=n%3Aomwrgbmrvl%3Bo%3Aref%2Cn%3Abodemkaart%5C%3Abodemtypes%3B o%3Adov%3Bt%3Awms%2Cn%3Abodemkaart%5C%3Asubstraten%3Bo%3Adov%3Bt%3Awms%2Cn%3A bodemkaart%5C%3Afasen%3Bo%3Adov%3Bt%3Awms%2Cn%3Abodemkaart%5C%3Avar_moedermater iaal%3Bo%3Adov%3Bt%3Awms%2Cn%3Abodemkaart%5C%3Avar_profielontwikkeling%3Bo%3Adov%3 Bt%3Awms%2Cn%3Ato%5C%3Ato_topnzw_2009_raster_10k_tr%3Bo%3Aref%3Bt%3Awms%3Bv%3An% 2Cn%3Agrb_sel%3Bo%3Aref&do=doorprik
• DSI – Departement Omgeving. (2008, 10 november). BPA Geeroms NV – Herinterpretatie op andere referentiekaart. https://dsi.omgeving.vlaanderen.be/fiche-detail/d18a3dfc-111f-43ce-a7b31b6b74561ce2
• DSI – Departement Omgeving. (2016, 10 oktober). RUP – Specifiek economisch knooppunt Ternat. https://dsi.omgeving.vlaanderen.be/fiche-detail/de2adabc-441f-4a21-922e-b9cf34593e4c
• Ecopedia. (z.d.). Biodiversiteit op bedrijventerreinen. https://www.ecopedia.be/biodiversiteit-opbedrijventerreinen
• Ecopedia. (z.d.). Geef je terrein een landschappelijke inpassing. https://www.ecopedia.be/biodiversiteitop-bedrijventerreinen/geef-je-terrein-een-landschappelijke-inpassing
• Ecopedia. (z.d.). Nadelen van biodiversiteit op bedrijventerreinen. https://www.ecopedia.be/biodiversiteit-op-bedrijventerreinen/nadelen-van-biodiversiteit-op
• Ecopedia. (z.d.). Plantenlijsten voor een tuin vol leven https://www.ecopedia.be/de-natuurlijketuin/plantenlijsten-voor-een-tuin-vol-leven
• Ecopedia. (z.d.). Voordelen van biodiversiteit op bedrijventerreinen. https://www.ecopedia.be/biodiversiteit-op-bedrijventerreinen/voordelen-van-biodiversiteit-op-4
• Flora van Nederland. (z.d.). Gelderse Roos. https://www.floravannederland.nl/planten/gelderse_roos
• Gardline. (2021, 3 september). Prunus laurocerasus Rotundifolia herkomst. https://www.gardline.nl/blog/prunus-laurocerasus-rotundifolia-herkomst-n62
• Gemeente Ternat. (z.d.). Verordeningen. https://www.ternat.be/verordeningen
• Geopunt. (z.d.). Luchtfoto https://www.geopunt.be/
• Goodplanet. (2017). Lijst van Vlaamse inheemse bomen en struiken. https://www.goodplanet.be/pimpje-speelplaats/docs/2017/10_soortenlijst-inheemse-bomen-struiken.pdf
• Google Maps. (2023, juni). Google Street View – Kasteellaan 23 Hamme. https://www.google.be/maps/@51.0609891,4.1556877,3a,25.9y,238.45h,91.45t/data=!3m6!1e1!3m4! 1sN-qRxeRcnc7gQuSyUj989g!2e0!7i16384!8i8192?coh=205409&entry=ttu
• Google Maps. (2023, juni). Google Street View – Killestraat 6 Hamme. https://www.google.be/maps/@51.059113,4.1515605,3a,75y,31.64h,89.24t/data=!3m7!1e1!3m5!1s6L ZvfFKPe9lc7z_960r6Jw!2e0!6shttps:%2F%2Fstreetviewpixelspa.googleapis.com%2Fv1%2Fthumbnail%3Fpanoid%3D6LZvfFKPe9lc7z_960r6Jw%26cb_client%3Dmaps _sv.tactile.gps%26w%3D203%26h%3D100%26yaw%3D72.10632%26pitch%3D0%26thumbfov%3D100!7 i16384!8i8192?coh=205409&entry=ttu
• Grondbank. (z.d.). Bodemzorg – Algemeen https://www.grondbank.be/bodemzorg/algemeen/
• ILVO. (2019, 8 mei). Het luchtzuiverend effect van planten. https://ilvo.vlaanderen.be/nl/nieuws/hetluchtzuiverend-effect-van-planten
• Inventaris Onroerend Erfgoed. (z.d.). Erfgoedobject – Vlassenbroekse polder en polder van Kastel, Mariekerke en Sint-Amands. https://inventaris.onroerenderfgoed.be/erfgoedobjecten/135064
• Kenniscentrum Vlaamse Steden. (2024, 3 maart). Website bodemkwaliteit. https://www.kenniscentrumvlaamsesteden.be/Paginas/Website-bodemkwaliteit.aspx
• KMI. (z.d.). Het Belgische klimaat – Algemeen. https://www.meteo.be/nl/klimaat/klimaat-vanbelgie/het-belgische-klimaat-maand-na-maand/algemeen
• KMI. (z.d.). Klimaatatlas https://www.meteo.be/nl/klimaat/klimaat-vanbelgie/klimaatatlas/klimaatkaarten/neerslag/neerslaghoeveelheid/jaarlijks
• KMI. (z.d.). Klimaatnormalen te Ukkel. https://www.meteo.be/nl/klimaat/klimaat-vanbelgie/klimaatnormalen-te-ukkel/zonnestraling/zonneschijnduur
• Larmuseau, I. (2024, 20 april). Hoe een pijplijn opblazen? We vragen het aan de rechter!. MO*. https://www.mo.be/wereldblog/hoe-een-pijplijn-opblazen-we-vragen-het-aan-de-rechter
• MiraFlex. (2024, 12 maart). Wat hebben planten nodig om te groeien. https://miraflex.be/wat-hebbenplanten-nodig-om-te-groeien/
• Moespom. (z.d.). Home. https://www.moespom.be/nl
• Omgevingsloket. (z.d.). Omgevingscheck. https://omgevingsloket.omgeving.vlaanderen.be/?omgevingscheck#PAGE_OMGEVINGSCHECK
• OVAM. (2021, 3 december). Videonarratieven: bodem https://vlaanderencirculair.pageflow.io/videonarratieven-bodem#293416
• OVAM. (z.d.). Bodem en ecosysteemdiensten. https://ovam.vlaanderen.be/ecosysteemdiensten
• OVAM. (z.d.). Zorgen voor de bodem, zorgen voor jezelf. https://ovam.vlaanderen.be/web/bodemkwaliteit/bodemkwaliteit-bodemzorg
• PCS. (2022, 17 juni). Brochure ‘Groen, vol van water – Technische gids voor efficiënt waterbeheer in groenzones’
https://www.viaverda.be/Groenvoorziening/ArtMID/563/ArticleID/8331/CategoryID/65/CategoryName /Publicaties/Brochure-Groen-vol-van-water Technische-gids-voor-effici235nt-waterbeheer-ingroenzones
• Plantentuin Esveld. (z.d.). Cupressocyparis leylandii. https://esveld.nl/a/product/cupressocyparisleylandii/
• Raad van de Europese Unie. (z.d.). Biodiversiteit: hoe de EU de natuur beschermt. https://www.consilium.europa.eu/nl/policies/biodiversity/#restoration
• Regionaal Landschap Schelde-Durme. (z.d.). Hagen, heggen en houtkanten – Een praktische gids. https://www.rlsd.be/publicaties/hagen-heggen-houtkanten-rlsd
• Regionaal Landschap Schelde-Durme. (z.d.). Regio. https://www.rlsd.be/over-ons/regio
• Risack, L. (2019, 25 juni). Wat is afschrijven? https://www.zelfstandige.vlaanderen/afschrijven/
• Stockholm University. (z.d.). Planetary boundaries. https://www.stockholmresilience.org/research/planetary-boundaries.html
• Temse. (z.d.). Bijzondere Plannen van Aanleg https://www.temse.be/bijzondere-plannen-van-aanleg
• Tuinadvies. (2016, 22 december). Zelf een bodemanalyse uitvoeren – bodemtest. https://www.tuinadvies.be/artikels/zelf_bodemanalyse_doen
• Tuincentrum.be. (z.d.). Beukenhaag verplanten: wanneer en hoe doe je dat?. https://tuincentrum.be/groenhulp/beukenhaag-verplanten
• UGent. (2016, 31 oktober). Een betere luchtkwaliteit via planten dankzij Green Air https://www.ugent.be/bw/nl/onderzoek/ugent-crelanleerstoel/overzicht-artikels/luchtkwaliteitplanten-stad-huiskamer-greenair.htm
• Vlaamse Regering. (2009, 15 mei). Besluit van de Vlaamse Regering met betrekking tot soortenbescherming en soortenbeheer. https://codex.vlaanderen.be/PrintDocument.ashx?id=1018227&geannoteerd=false
• Vlaanderen. (z.d.). Beheer van de onbevaarbare waterlopen. https://www.vlaanderen.be/beheer-vande-onbevaarbare-waterlopen
• Vlaanderen. (z.d.). Omgevingsvergunning. https://www.vlaanderen.be/omgevingsvergunning
• VMM. (z.d.). Digitale Atlas – Waterloopkaarten. https://www.vmm.be/data/waterloopkaarten
• VMM. (z.d.). Lucht – Fijn stof. https://www.vmm.be/lucht/fijn-stof
• VVOG. (2020). Snoei-Wijzer. https://vvog.info/publicaties/snoei-wijzer
• VVPW. (z.d.). Wetgevend kader. https://www.vvpw.be/thema's/wetgevend-kader.html
• Wikipedia. (2023, 13 mei). Beplantingsplan. https://nl.wikipedia.org/wiki/Beplantingsplan
• Willaert. (z.d.). Plantengids. https://www.willaert.be/nl/plantengids
• Willaert. (z.d.). Plantengids – Ilex aquifolium. https://www.willaert.be/nl/plant/ilex-aquifolium/ilaquifo
• Willaert. (z.d.). Plantengids – Prunus laurocerasus ‘Rotundifolia’. https://www.willaert.be/nl/plant/prunus-laurocerasus-rotundifolia/prlrotun
• WWF. (z.d.). Living Planet Report. https://www.wwf.nl/wat-we-doen/focus/biodiversiteit/living-planetreport
• Yarinde. (z.d.). Leylandcipres – Cupressocyparis leylandii ‘Castlewellan Gold’. https://yarinde.nl/products/leylandcipres-cupressocyparis-leylandii-castlewellan-gold
Bijlagen
BIJLAGE I: VERSLAG INWERKING THEMA BAP
*Zie (sub-)vragen in ‘Onderzoekstechnisch Ontwerp’
*Zie bronnen in ‘Bevindingen literatuuronderzoek’
Algemeen:
Zoals in het Onderzoekstechnisch Ontwerp wordt aangehaald, zit er een bepaalde logica in de volgorde van de hoofd- en subvragen. In eerste instantie moet er worden bekeken welke wetgeving er van toepassing is. Hiervan zijn er reeds bronnen verzameld. Deze staan nog los van de milieuwetgeving en ruimtelijke ordening waarover meer kennis zal verworven worden tijdens de eerste weken van de stage. Dit onder meer aan de hand van gespreken met deskundigen. Eveneens zullen deze deskundigen worden betrokken bij de uitwerking van het modulaire groenpakket om met hun expertise aan de slag te gaan op de verschillende milieudisciplines.
Probleem/onderwerp bacherlorproef:
In het conceptuele ontwerp staat een pagina met de beschrijving van het probleem, wat een volledige en duidelijke uitleg inhoudt. Deze tekst is nog aangevuld met een uitgebreid praktijkvoorbeeld via mail dat het probleem schetst waarvoor een oplossing moet worden uitgewerkt. Tijdens het kennismakingsgesprek en het eerste feedbackgesprek werd dit nog duidelijker omdat er al meer verdieping in het thema was.
Bedrijfseigen bronnen:
Sonny heeft ervoor gezorgd dat een tuinontwerper al voorbereidend werk leverde met een reeks documenten als output: beeldmateriaal van de verschillende potentiële plantensoorten, het groeioverzicht in detail van de plantensoorten en ook verschillende formaten van de groenzones (diverse lengtes en breedtes met andere combinaties van vegetatie).
Wetgeving (zie vragencluster 1):
Een groenscherm/groenzone rond een bedrijf (vaak aan de rand van een bedrijfsterrein) is een regel die voortkomt uit de omgevingsvergunning (OVD & OVB) die als doel heeft het bedrijf te integreren in de omgeving. Met deze omgeving moet er ook rekening worden gehouden voor wat betreft de afstandsregels voor de beplanting met de nabijgelegen percelen.
De aangebrachte beplanting op het bedrijfsterrein moet/mag (?) worden uitgetekend op een gedetailleerd beplantingsplan dat aangeeft waar welke vegetatie werd aangeplant. Dit kan vanuit een gemeente worden opgelegd via een bouwverordening.
Inzake ruimtelijke ordening (VCRO) moet er gekeken worden welke plannen er telkens van toepassing zijn op het bedrijventerrein. Deze plannen zijn digitaal te raadplegen via het Omgevingsloket, Geopunt, Geoportaal, … Er moet voldaan worden aan de stedenbouwkundige voorschriften die hier telkens in worden opgelegd. Hierbij is bijvoorbeeld de hemelwaterverordening, die sinds kort van toepassing is, belangrijk voor de bovengrondse infiltratie in combinatie met de aangelegde vegetatie.
Inzake milieu is VLAREM II wellicht van toepassing voor water en lucht: water in het kader van de hemelwaterverordening en lucht betreffende de eventuele luchtzuivering door de beplanting. Voor bodem kan er gekeken worden naar VLAREBO. Het Natuurdecreet en -besluit zullen ook van toepassing zijn voor de vegetatiewijziging bijvoorbeeld.
Vegetatie:
Op websites als Natuurpunt, Ecopedia, Agentschap voor Natuur en Bos en het Instituut voor Natuur- en Bosonderzoek (INBO) is er veel info terug te vinden over mogelijke vegetatie die zou kunnen worden ingepast in het groenpakket. Dit zal worden getoetst met de reeds uitgetekende plannen van de tuinontwerper waarin verschillende combinaties van vegetatie zijn verwerkt.
Milieudisciplines: Water – Lucht – Bodem – Klimaat – Biodiversiteit
Voor de ontwikkeling van het groenpakket moet er een afstemming gebeuren tussen de verschillende disciplines. Water en lucht zijn al eerder besproken. Bij bodem kan er ook gekeken worden naar bodemzorg op de website van OVAM. Klimaat is een vrij overkoepelende discipline waarbij de andere milieuaspecten allemaal aan bod komen. Biodiversiteit is vaak een laatste stap, maar moet zeker de nodige aandacht krijgen omdat het steeds belangrijker wordt en voor verschillende partijen gunstige effecten kan teweegbrengen. Ruimer kader:
De output van dit eindwerk kadert binnen het beleid dat door de Vlaamse Overheid gevoerd wordt bij omgevingsvergunningen, maar ook binnen meer biodiversiteit, minder verhardingen enzoverder die eveneens passen binnen de langetermijndoelstellingen vanuit de Europese Unie.
BIJLAGE II: VERSLAG GESPREK MET JAN VAN DEN EECKHOUT 12-03-2024
Welke wetgeving i.v.m. ruimtelijke ordening is er van toepassing op een groenzone/groenscherm?
Onderstaande uitleg werd geformuleerd a.d.h.v. het project Moespom
Vanuit een BPA (Bijzonder Plan van Aanleg) wordt een groenzone als een bestemmingsvoorschrift op het grafisch plan aangeduid en ingekleurd als zone voor (groen-)buffer rondom het industrieterrein.
Voorbeeld:
(DSI, 2008)
De bufferzone dient om de scheiding te maken tussen de verschillende bestemmingen in de ruimte. Hier kan niet van worden afgeweken, tenzij van de delen die als “overdruk” overkleurd zijn, tenminste als dit in de tekst beschreven staat. Sowieso kunnen er geen aanpassingen gebeuren aan een bestaand BPA, maar dient er een planologisch attest (Departement Omgeving, z.d.) teworden opgemaakt en ingediend voor de opmaak van een RUP (Ruimtelijk Uitvoeringsplan). Dit neemt vaak veel tijd in beslag zoals dat bij Moespom het geval is.
In zo’n RUP wordt de beschrijving van de bufferzone opgenomen in de stedenbouwkundige voorschriften (tekstueel) van de gebieden die als overdruk zijn aangeduid langs de rand en wordt dit niet ingekleurd (in het groen) op het grafisch plan. Dit heeft als voordeel dat het nadien veel beter aan te passen is.
Voorbeeld:
(DSI, 2016)
Om strategische redenen kan dit toch worden ingekleurd op een grafisch plan als deze zone sowieso moet gevrijwaard worden. Dit is bij Moespom het geval aangezien het bedrijf is omgeven door een beek waarbij artikel 1.3.2.2. §1.4° van het Decreet Integraal Waterbeleid (18 juli 2003) oplegt een constructievrije zone te voorzien voor de ruimingsdiensten langs beide kanten van de waterloop. Deze verwijderen namelijk het slib uit de waterloop met een kraan die rijdt langs deze zone. Het is daarnaast ook ‘goed’ om het groen planologisch te visualiseren omdat er wellicht een grote oppervlakte aan verharding zal komen.
Daarnaast bepaalt artikel 19 van het Uitvoeringsbesluit Wet onbevaarbare waterlopen (VVPW, z.d.) dat aanplantingen binnen die 5 m-zone enkel mogelijk zijn na een schriftelijke toelating van de waterbeheerder, behalve voor opgaande bomen (zie definitie in besluit). Dit is niet geldig voor bestaande beplanting.
De waterbeheerder is afhankelijk van de categorie van de waterloop. In het geval van Moespom is het een onbevaarbare waterloop categorie 3 waarbij de gemeente wordt aangeduid alswaterbeheerder (Vlaanderen, z.d.)
GROENBEHOUD IN GEMEENTEN:
Veel gemeenten in Vlaanderen hebben een verordening inzake beplantingen om het groen in hun gemeente te behouden. Zo heeft ook Ternat een verordening die een vergunning verplicht voor het ontbossen, alsmede voor het vellen van alleenstaande hoogstammige bomen binnen de groene ruimten van een goedgekeurd plan van aanleg (Gewestplan – BPA), evenals voor bomen die staan in een goed, waarvoor een verkavelingsvergunning is afgegeven (zie ook art. 4.2.1 VCRO) (Gemeente Ternat, z.d.).
EXTRA:
De gemeente Ternat voorziet ook in een waarborgregeling met betrekking tot groenaanleg en infiltratiemaatregelen bij vergunningen voor bedrijfsgebouwen en verkavelingen. De juridische grond betreft de vele omgevingsvergunningen die afgeleverd worden bij de gemeente inzake het rooien van kleine landschapselementen (KLE’s). Dezemaatregel heeft als doel bedrijfsgebouwen en verkavelingen teintegreren in de omgeving en het voorzien van de infiltratiemaatregelen. Erwordt een financiële waarborg opgelegd aan de bouwheer vooraleer hij zijn bouwvergunning verkrijgt ter realisatie van de verplicht aan te leggen groenzone rond zijn bedrijf of verkaveling. In Ternat dient de groenzone binnen een termijn van één jaar te worden aangelegd na verlening van de stedenbouwkundige vergunning. Het reglement is van toepassing op alle omgevingsvergunningsaanvragen en het dossier dient te worden aangevuld met een beplantingsplan.
BIJLAGE III: VERSLAG GESPREK MET LIEVEN VAN DE VELDE 14-03-2024
HISTORIEK:
Lieven is tuinontwerper voor privétuinen (particulieren) en zit 40 jaar in het vakgebied. Hij heeft veel plantenkennis en werd door Sonny gevraagd om een aantal zaken uit te tekenen (zie documentatie project Groen – Sove).
Het is zo dat het aanplanten van een groenzone/groenscherm een verplicht nummertje is vanuit de omgevingsvergunning waarbij er op vandaag reeds bij de omgevingsvergunningsaanvraag ook moet worden nagedacht over de aan te brengen beplantingen en niet pas nadien. Momenteel schuilt de problematiek in het feit dat er een grote willekeur is in de opgelegde wetgeving vanuit openbare besturen (vnl. gemeentes) waarin er telkens verschillende breedtes voor de groenzones voorgeschreven staanin de stedenbouwkundige voorschriften van de RUP’s of deze nog in BPA’s zitten.
Het ontwerp zou een basisoplossing moeten vormen op dit perikel in die zin dat er een vorm van standaardisering in zou zitten met een modulair ontwerp.
2 types bedrijven i.v.m. zonering/ligging:
- Para-agrarisch bedrijf in agrarisch gebied
Het bedrijf moet ingepast worden in de omgeving.
- Bedrijf naast woonzone
Dit geeft conflicten met betrekking tot inkijk bij de buren.
Om rekening te houden met de inkijk bij de buren, moet er worden gekeken naar de max. groeihoogte van de aan te planten beplanting en moet deze zo strategisch mogelijk worden uitgezet. Daarnaast speelt bladverlies hier ook een belangrijke rol in, wat opnieuw zorgt voor inkijk. Bij de keuze van alleen maar inheemse soorten, wat erg gewild is bij een omgevingsvergunningsaanvraag (Lijst Vlaamse inheemse soorten), is er vaak bladverlies. Er kan echter wel gemotiveerd worden om in beperkte mate uitheemse soorten te gebruiken die bladhoudend zijn (aan de rand van de zone) die de visuele hinder aanpakken. Hierbij zou direct de geschikte hoogte van de planten moeten aangekocht worden om het probleem zo snel mogelijk te verhelpen in het geval er klachten zijn. De overige oppervlakte wordt dan beplant met inheemse soorten. Zo kan voldaan worden aan de wensen van het bedrijf, de buren en de lokale overheid. 2 types bedrijven i.v.m. kijk op groenzone:
- Het merendeel van de bedrijven ervaart dit als een last omdat het puur een verplichting is vanuit de omgevingswetgeving.
Het modulair groenpakket zou voor hen een basisvoorstel zijn om te voldoen aan de wetgeving met vrij grote zekerheid op een goed eindresultaat. Dit gaat dan geen “wow-effect” geven, maar is wel functioneel op vlak van visuele hinder en in mindere mate ook geluiddempend.
- Een klein deel van de bedrijven ziet dit als een opportuniteit om hiermee aan de slag te gaan en er een echt een punt van te maken. Bedrijven die het gegeven op deze manier benaderen, zien hun groenzone als groene ader op het bedrijventerrein die ze samen met het gebouw in the picture zetten. Dit kan bijvoorbeeld bijdragen aan het bedrijfsimago, de biodiversiteit en een verbeterd welzijn van de werknemers.
BESPREKING TEKENINGEN:
De tekeningen zijn iedere keer een uitgetekende strook van 50 m die is opgedeeld in zones van 10 m met telkens een andere plantensoort per zone en dit voor verschillende breedtes. Er is een opdeling gemaakt tussen bladhoudende (groen ingekleurd) en bladverliezende planten (ingekleurd zwart-wit). De stroken zijn modulair uitgetekend voor een goede inpasbaarheid op het bedrijventerrein, afhankelijk van de beschikbare oppervlakte voor een groenzone.
*Heester = struik met bladeren vanaf de grond tot op een lage hoogte
*Hoogstam boom = eerste 2 m circa een kale stam met vanaf dan pas takken met bladeren
➔ De bomen worden tussen de heesters ingeplant zodat de onderlaag wordt begroeid door de heesters en daarboven de kruinen van de bomen uitsteken. Zo zitten de boomstammen ook verborgen in de heesters.
➔ Wetgeving bomen: er moet 2 m van de rooilijn worden gebleven waardoor er bijvoorbeeld geen bomen worden voorzien in de tekening met een groenzone van 2 m breed.
De toelichtende documenten die zijn opgemaakt, kunnen worden gebruikt voor volgende zaken:
- De tekstjes horend bij de verschillende plantensoorten met beschrijvingen over de bloei, bloemen, geuren, bessen, aantrekkelijkheid voor vogels en insecten, … kunnen meegenomen worden in de motivatie voor het planten van bepaalde soorten.
- De formule kan worden toegepast om te bepalen hoeveel planten er moeten worden aangekocht en geplant (gegevens over aantal planten per 100 m²).
- Het groeioverzicht kan bepalen in welke grootte de verschillende planten zullen moeten worden aangekocht afhankelijk van de beschikbare tijd en het budget en de nood aan het verhelpen van het probleem in het kader van inkijk bij de buren.
ONDERHOUD:
Na de aanplantingen van de groenzone is het onderhoud minstens even belangrijk voor een behoud ervan. Dit onderhoud kan gebeuren door lokale overheden of door een aangestelde tuinaannemer voor het bedrijf.
Uit Lieven Van De Velde zijn ervaring is het wel zo dat aangeplante, korte plantscheuten het vaak niet overleven door slecht maaibeheer (met vb. een bosmaaier) van de lokale onderhoudsdienst, wat zorgt voor een verlies van deze begroeiing op langere termijn. Hiervoor zou een korte instructietekst met eventueel beeldmateriaal kunnen worden voorzien om het gewenste groenbeeld te behouden.
2 opties:
- Prachtige beplantingen die meteen een mooi resultaat geven, maar nadien slecht onderhouden worden waardoor dit op termijn opnieuw verloederd geraakt.
- ‘Simpele’ beplantingen die goed onderhouden worden, zorgen voor een blijvend resultaat op langere termijn.
LOSSE ASPECTEN:
✓ Grasdallen: Door sommige overheden wordt dit als waterdoorlatend aanzien, door andere niet.
✓ Financieel: In eerste instantie best uitgaan van de duurste optie waarbij de planten op hun grootste hoogte worden aangekocht en er bij aanplant meteen resultaat is (motivatie kost aanplant <-> bedrijfssluiting). Als men hier in meegaat is dit goed, anders kan er nadien nog worden afgezwakt afhankelijk van het budget.
✓ Bij de inrichting van de groenzone rondom het bedrijf (benaamd als “bedrijfstuin”) kan er inspiratie worden opgedaan bij de architecturale aspecten van het bedrijfsgebouw zelf. Deze elementen kunnen dan verwerkt worden in het groengedeelte om een bepaald beeld te creëren.
Voorbeeld: Smalle, hoge ramen → zuilbomen
Zorgen dat er een bepaald idee achter de beplanting zit dat kan worden gedragen door de bedrijfsleiding/beslissingsnemer
✓ Vermelden dat er 25-30 cm teelaarde (kwaliteitsvol) moet voorzien worden vooraleer aan te planten om een goed resultaat te bekomen in industriezone, want daar is er vaak geen of dode grond aanwezig.
✓ Plantseizoen: Vanaf november tot ergens half april voor het planten van blote wortels. Eigenlijk nadat de bladeren van de bomen zijn gevallen en voordat ze er terug aangroeien. Door de zachtere winters die er in de toekomst zitten aan te komen, kan het wel zijn dat deze periode korter wordt.
✓ Verwerking andere bedrijfselementen in het groen → De groenzone kan best niet louter als een aparte zone worden bekeken, maar als een deel van het bedrijfsterrein waarbij er een verweving is tussen het bedrijfsgebouw en deze groenzone. Elementen zoals bijvoorbeeld een fietsenstalling of parkeerplaatsen kunnen daarbij ook in het groen worden verwerkt.
✓ In de gekozen plantensoorten van de tekeningen zitten geen planten verwerkt met wortelscheuten. Dit wil zeggen dat de planten enkel baas zijn binnen hun eigen zone waarbinnen ze geplant worden en ze de overige plantensoorten niet gaan domineren door zich te verspreiden.
✓ Grassen die het water van wadi’s zuiveren alvorens vertraagde lozing. Het NO₂ wordt door het gras opgenomen in grote hoeveelheden en zo kunnen deze groeien en kan het water worden gezuiverd.
BIJLAGE IV: VERSLAG GESPREK MET WOUTER ROMMENS 19-04-2024
Jonathan: Voorstelling opleiding, kadering eindwerk, toelichting documentatie Sove
Het keuzepakket dat Lieven Van de Velde opstelde, zouden planten moeten zijn die goed gedijen binnen het volledige grondgebied Vlaanderen.
Opmerking Wouter:
Vanuit de stedenbouwkundige voorschriften wordt op gemeentelijk niveau opgelegd om inheemse, autochtone en streekeigen beplanting aan te planten voor het groenscherm. In Vlaanderen zijn er een aantal streken met hun eigen groensoorten. Daarom stelt Wouter voor om een verfijning te doen naar streekgebonden groen in het eindwerk omdat dit vaak iets is wat over het hoofd wordt gezien. Dit kan dan worden bekeken op basis van de ligging van het bedrijf. Er kan vertrokken worden vanuit een bredere waaier aan mogelijke plantensoorten en dan gespecifieerd worden in de regio waarin het bedrijf is gelegen.
Jonathan: Toelichting tekeningen
Opmerking Wouter:
Bij de bredere groenzones raad Wouter aan om de planten niet per module te planten, maar door elkaar aan te planten. Dit vormt een meerwaarde voor de natuur, bijvoorbeeld gemengde houtkanten. Bij deze bredere zones is het snoeibeheer ook niet zo’n probleem omdat dit vaak minder wordt gesnoeid
Oplossing Jonathan en Lieven voor inkijk:
De perceelrand van het bedrijventerrein beplanten met uitheemse, groenblijvende beplanting die dichtbegroeid is en zorgt voor een permanent groenscherm. Daarachter kan er inheemse vegetatie worden geplant om te voldoen aan de voorwaarden en zo een combinatie te bekomen.
Wouter: Oké voor deze oplossing. Kan inderdaad zo gemotiveerd worden.
Opmerking Wouter:
Er zou kunnen geopteerd worden om twee varianten te maken van het aangeboden groenpakket.
1) Een formeler pakket waarbij het groenscherm strak onderhouden wordt met het snoeibeheer. Dit is qua biodiversiteit wel minder waardevol.
2) Een ruiger/wilder pakket waarbij ingezet wordt op een maximale biodiversiteit met een grote diversiteit aanplanten. Dit kan dan binnen de visie van het bedrijf worden ingepast alsmen dit wenst (vb. extensieve graslanden).
Jonathan: In het eindwerk zal het aspect van de hemelwaterverordening ook worden opgenomen.
Wouter: Bij de wadi’s is het aangeraden om het eenvoudig te houden:
1) Zorgen voor een grasmengsel
2) Zo weinig mogelijk verharding
3) De natuur zijn werk laten doen
Hiervoor kunnen aangepaste zaadmengsels worden gekocht bij bijvoorbeeld Ecoflora waarbij de planten zich schikken naar de omgeving waarin ze groeien.
Achtergrond Wouter:
Wouter heeft een doctoraat in de ecologie en is momenteel zelfstandige biodiversiteit en water. Zo geeft hij onder andere in de Antwerpse haven advies aan grote bedrijven die zich de vraag stellen om hun bedrijventerrein zo in te richten dat er weinig werk aan is, dat de biodiversiteit een boost krijgt en dat de risico’s op verdere uitbreidingsplannen worden geminimaliseerd.
Objectief meetsysteem:
Bekijk een bedrijventerrein als een rooster dat ingedeeld wordt in allemaal vierkanten (elk vierkant bestaat uit een homogene eenheid bijvoorbeeld parking, gras, gebouw, …). De biodiversiteitsschaal die gehanteerd wordt gaat van 0 tot 1 met 0 = parkeerterrein en 1 = ongerept bos van 100 jaar oud. Zo wordt aan elke plek op het bedrijventerrein = elk vierkant in het rooster, een score gegeven en zo wordt een scoresysteem opgezet. Daarna wordt er gekeken waar er maatregelen kunnen genomen worden om de biodiversiteit te verbeteren en worden de scores opnieuw toegekend bijvoorbeeld bij een stuk gras kan er naar een hogere graslandfase worden gestreefd of het aanleggen van een groendak. Daarnaast wordt er ook een globale biodiversiteitsscore aan het bedrijf gegeven dat een gewogen gemiddelde is van de gegeven scores en de in rekening gebrachte bedrijfsoppervlakte.
Opmerking Wouter:
Dit kan zeker in het eindwerk worden toegepast. Er kan bijvoorbeeld aan het groenpakket al een bepaalde biodiversiteitsscore gegeven worden aan de hand van de schaal en zo objectief worden gemotiveerd aan de klant dat dit naast het naleven de vergunningsvoorwaarden ook bijdraagt aan een betere biodiversiteit.
Extra toevoeging Wouter op varianten:
Belangrijk is bij een houtkant dat deze kronkeling/golvend is. Zo kan er misschien een derde variant worden uitgewerkt waarbij het groenscherm daarom niet zo ruig is, maar wel de juiste vormen heeft om een betere biodiversiteit te hebben.
Takenpakket Wouter:
1) Wouter is een erkend mer-deskundige biodiversiteit. Hij neemt deel als deskundige aan mer-studies en natuurtoetsen met hierin ook de bestudering van beschermde soorten. Hij heeft ook grote dossiers over stikstof en is bijgevolg ook een expert in dit vakgebied.
2) Daarnaast doet hij beleidswerk in verband met water en biodiversiteit op Europees niveau.
3) Als laatste werkt hij samen met ontwikkelaars die zijn expertise in biodiversiteit kunnen gebruiken bij de landschapsinrichting zodat de ecologische insteek hierin ook wordt verwerkt. Hierbij wordt telkens een landschapsplan opgesteld.
Jonathan: Inderdaad, bij de omgevingsvergunning moet er in het kader van de groenbeplanting vaak een beplantingsplan worden bijgevoegd. Hierbij kan de omgeving van het bedrijf in rekening worden gebracht.
Voorbeeld Wouter: In Herent, bij Leuven, was er een bedrijventerrein gelegen tussen twee gebieden waarin er beschermde soorten zitten vb. de kamsalamander. Bij dit bedrijf werd de groenbuffer dan gebruikt als corridor om de beide populaties met elkaar te verbinden en ervoor te zorgen dat het tussengelegen bedrijf geen harde grens vormt voor de organismen.
BIJLAGE V: VERSLAG GESPREK MET JELLE QUARTIER 23-04-2024
Soms is er het probleem van vergraven bodem. Bijvoorbeeld in de haven van Antwerpen is er grond afgegraven en daarna opgespoten met zandgrond. In se zouden de planten dus kunnen groeien in de oorspronkelijke bodem, maar niet op de zandgrond. Daarbij moet er gekeken worden naar de diepte van het grondwater zodat de wortels van de planten diep genoeg zitten om te kunnen groeien.
De planten moeten ook afgestemd worden op de vereisten van het bedrijf. Daarbij moet er gekeken worden naar de kenmerken van de planten vb. vrouwelijke wilg of populier geven pluisjes af → bij aanzuiging van lucht zorgen de pluisjes voor verstopping van de filters. Dat kan zeker niet de bedoeling zijn en moet dus voorafgaand worden besproken.
Een ander belangrijk aspect is het aanbrengen van een goede bodembedekker opdat er geen onkruid zou moeten worden gewied. Dat zorgt er ook voor dat de bodem minder uitdroogt (vasthoudendheid) en zorgt zo ook voor meer biodiversiteit. Er kan gekeken worden naar planten die elkaar beconcurreren zodat het onkruid sowieso niet kan doorgroeien. De bodem moet voedselarm zijn om er een goede biodiversiteit te kunnen bekomen.
Toevoeging Sonny:
• Het reliëf van het omliggende landschap kan belangrijk zijn voor de inplanting van het groenscherm en hoe er rekening moet gehouden worden met de inkijk in de directe omgeving.
Er zijn nog een aantal zaken die missen qua wetgeving:
- Soortenbesluit
- Habitat- en Vogelrichtlijn (Natura 2000-gebieden) (passende beoordeling)
- VEN-gebied (verscherpte natuurtoets)
Er zijn verschillende niveaus waarop er advies wordt gegeven en waarop de soortenlijsten worden bekeken vanuit de overheid, bijvoorbeeld richtlijnprogramma in de provincie Antwerpen voor de inrichting van een landschap. Daarbij staat de provincie het bedrijf bij in de uitwerking van het inrichtingsplan.
Er bestaan verschillende niveaus van advies:
- Adviesniveau: kaartlaag in Gis reeks plant- en diersoorten die er potentieel voorkomen vb. voor een vlindersoort die wordt nagestreefd → meenemen in de keuze van beplanting
- Prioriteiten soortenlijst per provincie
Voorbeeld Sonny:
Normec in Beveren → één specifieke vlindersoort → verharding met kasseien zodat er ietstussen kangroeien (toegang) → vlinder toelaten op het bedrijventerrein
Relictlandschap: Lys-foolies
BIJLAGE VI: VERSLAG GESPREK MET THOMAS VANDER AUWERMEULEN 22-05-2024
*Medezaakvoerder Exteria in Melle
Hoe gaat Exteria tewerk?
Als de klant met een vraag komt om zijn bedrijfstuin in te richten, zal er eerst een akkoord nodig zijn over de prijs via een offerte. Zo zal de prijs uiteraard verschillen tussen bedrijven die dit louter willen inrichten als een gazon met een haag versus een uitgewerkt design in lijn met het bedrijfsgebouw om het bedrijf zijn visitekaartje af te geven.
Na akkoord wordt een plaatsbezoek gehouden bij het bedrijf om alles op te meten, de perceelsgrenzen te bepalen, te bepalen welke voorschriften er gelden en om te kijken hoe de hemelwaterafvoer gebeurt en kan worden ingericht om de hemelwaterverordening in rekening te brengen.
Thomas stelt vast dat bedrijven hier niet voor staan te springen om hun kostbare grond deels in te richten als groenzones omdat hun groenvoorzieningen vaak louter vanuit economisch oogpunt worden bekeken. Het is namelijk ook het management dat beslist over de investeringen. Zo wil het bedrijf vaak zo weinig mogelijk onderhoud, de goedkoopste oplossing, dat de bedrijfsparking goed toegankelijk is en er voldoende ruimte is om te parkeren en er rekening wordt gehouden met de leveringen die er gebeuren. De mening vanuit het management zal vaak zijn dat geen groen voorzien beter is omdat elke meter telt gezien de kostprijs van de gronden.
Exteria ervaart de inrichtingen van bedrijfstuinen dikwijls als het volgen van een protocol om te voldoen aan de strenge regels die vanuit de overheid worden opgelegd. Inheemse plantensoorten krijgen daarbij de voorkeur van de overheid, algeeft dit beperkingen om er variatie in te krijgen. Bedrijven willen dan ook weer enkel het hoogst noodzakelijke doen in verband met hun bufferzones.
De stukken die voor de wadi’s moeten dienen, worden vaak ook aanschouwt als plaatsverlies om andere activiteiten op te doen.
In industriegebieden zijn er regelmatig grote grondwerken nodig bij de aanleg van groenvoorzieningen door de slechte kwaliteit van de grond door vb. bodemverdichting (zwaar verkeer).
Vb. op de Bierhalle in Melle heeft Exteria grasdallen voorzien waarvan ze eigenlijk wisten dat die het niet lang zouden rekken. Zo voldoen de bedrijven initieel wel aan de omgevingsvergunningsvoorwaarden op het moment van de vergunningsaanvraag, maar verdwijnen de groenvoorzieningen in de loop van de tijd omdat zekapot zijn gegaan door slechte inplanting of onderhoud. Daarna worden geen nieuwe investeringen gedaan om de groenvoorzieningen opnieuw aan te planten en wordt hier niet naar gekeken wegens het gebrek aan toezicht vanuit de toezichthoudende overheid.
Het standpunt van de bedrijven is dat de groenvoorzieningen economisch niet rendabel zijn.
Thomas stelt vast dat er nu in projectontwikkelingen steeds vaker een beplantingsplan aanwezig moet zijn, maar dit vaak nog op de laatste plaats komt. Als het van hem zou afhangen, zouden de groenvoorzieningen in de eerste plaats moeten worden uitgetekend op plan en daarna de gebouwen pas inpassen. Zo kan voldoende ruimte worden voorzien voor het groen.
De oorzaak vande kapotgaande beplanting isregelmatig omdat het bij de aanplantfase alverkeerd isgelopen. Zo willen bedrijven de goedkoopste oplossing en kiezen ze vb. de goedkoopste wegenwerker in de regio uit. Daarbij wordt vb. een parking voorzien met stootranden aan de parkeerplaatsen waarbij de groenruimte minimaal blijft en er slechts een V-opening over blijft die de planten beperken op een degelijke manier uit te
groeien. Er is dus sprake van een gedrongen groei dat voortkomt uit de slechte onderlinge communicatie tussen de tuinarchitect en de wegenwerker.
Thomas geeft ook aan dat er door bedrijven te weinig geld wordt besteed aan bedrijfsgroen.
Om het probleem van inkijk aan te pakken zouden wintergroene plantensoorten moeten worden voorzien, al zegt men steeds dat wintergroen = poen door het vele werk dat kruipt in de kweek, het onderhoud en het transport van de kluiten.
*Als de Fagus Sylvatica in zijn natuurlijke vorm uitgroeit, zal deze zijn bladeren verliezen in de winter. Als haag zou dit niet zo moeten zijn.
Thomas denkt aan een verplichting om bedrijven op teleggen dat zij voldoende oppervlakte moeten voorzien in groen ten opzichte van de oppervlakte van hun bedrijventerrein. Vb. aan de achterkant van brouwerij Huyghe in Melle staan er Quercus Ilex bomen en daar vlak tegen worden er paletten gestapeld. Er wordt daarbij te weinig ruimte voorzien.
Gemengde haag → ecologische meerwaarde, maar kakafonie in uitzicht?
De haag vertoont vlekken van de verschillende plantensoorten en heeft daarmee het nadeel van er slordig uit te zien. Er dient dus een goed snoeibeheer te zijn door rekening te houden met de verschillende groeisnelheden van de plantensoorten.
Sowieso moeten er op een bedrijventerrein schaduwplaatsen worden gecreëerd en is het zo dat groen wel degelijk zorgt voor een gevoel van rust bij de werknemers als zij hierop kunnen kijken vanuit hun bureau.
De beste oplossing bestaat er dus in om een combinatie te voorzien van hagen en bomen, maar wel met een voldoende breedte. Een groenscherm van vb. 1 m breed en 4 m hoog heeft weinig waarde en komt over als een muur dan dat het levend plantmateriaal is.
*Winterrood
Om van bedrijventerreinen echt iets moois te maken, ervaart Exteria dat de regels het hen moeilijk maakt nog iets te kunnen doen en het gevoel geeft dat een tuinarchitect quasi overbodig is.
Thomas stelt voor om op gemeentelijk niveau een vast stramien op te leggen voor gelijksoortige bedrijven in kader van het groen en verder dat de beperking van bomen langs de rooilijn (algemene regel voor hoogstam van 2 m) moet worden herbekeken voor bedrijven. Zo kan een beperkte groenzone toch met bomen worden ingericht en zijn de bomen een soort van gemeenschappelijk groen met de buren. Met deze buren moet er daarnaast ook rekening worden gehouden met betrekking tot de keuze van plantensoorten zodat er geen kakafonie ontstaat tussen de verschillende hagen naast elkaar.
BIJLAGE VII: UITLEG BIJ OPMAAK PLANNEN PROJECT GROEN – LUC VAN TORNHOUT
De plannen voor het project groen werden opgemaakt met een tekenprogramma Microstation Bentley, dit is een tekenprogramma dat DGN files aflevert en waarmee verschillende andere formaten (waaronder DWG files) mee kunnen verwerkt worden.
Er werden modules opgemaakt van alle voorgestelde plantensoorten zowel bladverliezende als bladhoudende die elk op een tekenlaag staan. Ook de verschillende boomsoorten staan elk op een tekenlaag. Deze kunnen zo verwerkt worden in verschillende gecombineerde groenzones.
Om de nodige info te verzamelen over de planten zijn websites van plantenkwekerijen geraadpleegd (Belleplant, Willaert Boomkwekerij, Heynen-planten) en Ecopedia. Verder werd er ook gebruik gemaakt van de zoekmachine Google om de nodige info van de desbetreffende planten terug te vinden.
De gebruikte tekeningen en symbolen voor de planten en bomen werden via het internet opgehaald uit bestanden van websites voor tekenprogramma’s (Cadcollege, Freepik en DWGlab).
Sommige van deze symbolen werden ook zelf opgemaakt a.d.h.v. gevonden symbolen die bijgewerkt zijn.
Met deze verschillende lagen bomen en planten kunnen ontwerpen ingevuld worden waar groenzones van verschillende vormen en breedtes nodig zijn om tot een volledige inplanting van een bedrijventerrein te komen.
De plantenfiguren en symbolen vormen wel zware bestanden als deze worden omgezet naar pdf of ander files omdat elk van deze figuren uit een groot aantal pixels bestaat. Het kan dus een even duren alvorens de volledige tekening is opgeladen afhankelijk van hoeveel figuren er gebruikt zijn en het document kan bekeken en/of verwerkt worden.
m breed
Deze groenzone is opgebouwd uit vijf verschillende heesters:
• Fagus sylvatica en Carpinus betulus hebben de eigenschap om veelzijtakken tevormen waardoor de inkijk minimaal wordt.
• Ligustrum vulgare heeft het voordeel dat deze ook tijdens de wintertijd groenblijvend is. Dit is ideaal voor de zangvogels die er dan bescherming in vinden. Een andere meerwaarde zijn de witte bloemen die in het voorjaar sterk geurend zijn en uitgroeien tot zwarte bessen in de herfst. Deze zijn eetbaar voor de vogels, maar giftig voor de mens.
• Cornus mas is een zeer vroege lichtgele voorjaarsbloeier waardoor er vroeg in het jaar bloemen zijn. De breed uitgroeiende heester zorgt in korte tijd voor een duidelijke afscheiding.
• Viburnum opulus is een sterk uitgroeiende heester die in het voorjaar witte schermvormige bloemen draagt. In het najaar groeien die uit tot rode bessen. Dit geeft een grote meerwaarde aan de border.
Tijdens de herfst krijgen de bladeren een rode kleur
De samenstelling van deze border zorgt er niet alleen voor dat het een groenscherm is, maar de plantkeuze komt ook ten goede aan kleine insecten en vogels die er hun habitat in kunnen vinden.
Er is een beplantingsplan van standaard 50 m mee opgenomen in het voorstel. Om de 10 m komt er een andere plantengroep. Zo heeft iedere plantengroep 10 m om individueel uit te groeien en kan die zo niet onderdrukt worden door een sterkere groep ernaast. Indien de afstand langer is, wordt er gewoon een veelvoud genomen.
De plantenlijst is samengesteld uit inheemse plantensoorten die goed gedijen in onze grondsoort en wintervast zijn.
Groenzone 3 m breed
A Tilia cordata H.S. Iedere 5 m
Deze groenzone is opgebouwd uit vijf verschillende heesters en één rij bomen (linden). Deze rij bomen dient op 2 m van de rooilijn te worden aangeplant:
• Fagus sylvatica heeft de eigenschap om veel zijtakken te vormen waardoor de inkijk minimaal wordt.
• Ligustrum vulgare heeft het voordeel dat deze ook tijdens de wintertijd groenblijvend is. Dit is ideaal voor de zangvogels die er dan bescherming in vinden. Een andere meerwaarde zijn de witte bloemen die in het voorjaar sterk geurend zijn en uitgroeien tot zwarte bessen in de herfst. Deze zijn eetbaar voor de vogels, maar giftig voor de mens.
• Acer campestre is een plant met een mooi uitgesneden blad. Deze plant is makkelijk snoeibaar waardoor er kleine vertakkingen ontstaan die voor een losse kroon zorgen. In de herfst heeft ze een goudgele gloed en deze plant is ideaal als windscherm.
• Cornus mas is een zeer vroege lichtgele voorjaarsbloeier waardoor er vroeg in het jaar bloemen zijn. De breed uitgroeiende heester zorgt in korte tijd voor een duidelijke afscheiding.
• Crataegus monogyna is een plant met stekels met als mooie meerwaarde de overvloedige bloei in de maand mei en de rode vruchten in de winter. Deze zijn heel voedzaam voor de vogels en insecten. Daarnaast voorkomt de dichte structuur de inkijk.
• Tilia cordata is een hoogstamboom die in enkele jaren een mooi ronde kruin vormt. De boom stelt ook weinig eisen aan de grondsoort. Deze plant is ideaal voor de biodiversiteit. Er moet wel opgelet worden deze boven parkeerzones te planten aangezien er honingdauw (vochtafscheiding van bladluizen) op de hieronder geparkeerde auto’s kanterechtkomen. Het geeft namelijk een vervelend en plakkend effectdat de sfeer en gezelligheid van de bezoekers niet ten goede komt (J. Quartier, persoonlijke communicatie, 24 mei 2024).
Deze samenstelling van de border zorgt er niet alleen voor dat het een groenscherm is, maar de plantkeuze komt ook ten goede aan kleine insecten en vogels die er hun habitat in kunnen vinden.
Er is een beplantingsplan van standaard 50 m mee opgenomen in het voorstel. Om de 10 m komt er een andere plantengroep. Zo heeft iedere plantengroep 10 m om individueel uit te groeien en kan die zo niet onderdrukt worden door een sterkere groep ernaast. Indien de afstand langer is, wordt er gewoon een veelvoud genomen.
De plantenlijst is samengesteld met inheemse plantensoorten die goed gedijen in onze grondsoort en die wintervast zijn.
Groenzone 4 m breed
A Tilia cordata H.S. Iedere 5 m
Deze groenzone is opgebouwd uit vijf verschillende heesters en één rij bomen (linden). Deze rij bomen staat centraal in de zone:
• Cornus mas is een zeer vroege lichtgele voorjaarsbloeier waardoor er vroeg in het jaar bloemen zijn. De breed uitgroeiende heester zorgt in korte tijd voor een duidelijke afscheiding.
• Fagus sylvatica en Carpinus betulus hebben de eigenschap om veelzijtakken tevormen waardoor de inkijk minimaal wordt.
• Ligustrum vulgare heeft het voordeel dat deze ook tijdens de wintertijd groenblijvend is. Dit is ideaal voor de zangvogels die er dan bescherming in vinden. Een andere meerwaarde zijn de witte bloemen die in het voorjaar sterk geurend zijn en uitgroeien tot zwarte bessen in de herfst. Deze zijn eetbaar voor de vogels, maar giftig voor de mens.
• Acer campestre is een plant met een mooi uitgesneden blad. Deze plant is makkelijk snoeibaar waardoor er kleine vertakkingen ontstaan die voor een losse kroon zorgen. In de herfst heeft ze een goudgele gloed en deze plant is ideaal als windscherm.
• Tilia cordata is een hoogstamboom die in enkele jaren een mooi ronde kruin vormt. De boom stelt ook weinig eisen aan de grondsoort. Deze plant is ideaal voor de biodiversiteit. Er moet wel opgelet worden deze boven parkeerzones te planten aangezien er honingdauw (vochtafscheiding van bladluizen) op de hieronder geparkeerde auto’s kanterechtkomen. Het geeft namelijk een vervelend en plakkend effectdat de sfeer en gezelligheid van de bezoekers niet ten goede komt (J. Quartier, persoonlijke communicatie, 24 mei 2024).
Deze samenstelling van de border zorgt er niet alleen voor dat het een groenscherm is, maar de plantkeuze komt ook ten goede aan kleine insecten en vogels die er hun habitat in kunnen vinden.
Er is een beplantingsplan van standaard 50 m mee opgenomen in het voorstel. Om de 10 m komt er een andere plantengroep. Zo heeft iedere plantengroep 10 m om individueel uit te groeien en kan die zo niet onderdrukt worden door een sterkere groep ernaast. Indien de afstand langer is, wordt er gewoon een veelvoud genomen.
De plantenlijst is samengesteld met inheemse plantensoorten die goed gedijen in onze grondsoort en die wintervast zijn.
Groenzone 5 m breed
robur
Deze groenzone is opgebouwd uit vijf verschillende heesters en één boomsoort:
• Crataegus monogyna is een plant met stekels met als mooie meerwaarde de overvloedige bloei in de maand mei en de rode vruchten in de winter. Deze zijn heel voedzaam voor de vogels en insecten. Daarnaast voorkomt de dichte structuur de inkijk.
• Carpinus betulus heeft de eigenschap om veel zijtakken te vormen waardoor de inkijk minimaal wordt.
• Ligustrum vulgare heeft het voordeel dat deze ook tijdens de wintertijd groenblijvend is. Dit is ideaal voor de zangvogels die er dan bescherming in vinden. Een andere meerwaarde zijn de witte bloemen die in het voorjaar sterk geurend zijn en uitgroeien tot zwarte bessen in de herfst. Deze zijn eetbaar voor de vogels, maar giftig voor de mens.
• Cornus mas is een zeer vroege lichtgele voorjaarsbloeier waardoor er vroeg in het jaar bloemen zijn. De breed uitgroeiende heester zorgt in korte tijd voor een duidelijke afscheiding.
• Corylus avellana is een sterk groeiende plant met zeer grote bladeren die zorgen voor een mooi scherm. Ze siert de omgeving al in februari door de vorming van lange katjes. De noten van de hazelaar zorgen voor voedsel voor veel dieren in de winter.
• Quercus robur is een hoogstamboom die met zijn dicht bebladerde takken ervoor zorgt dat de inkijk op grotere hoogte minimaal is. De vruchten van de zomereik zijn voedsel voor kleine dieren. Dezegroenzone is niet alleen mooi, maar ook nuttig. De eik zit vol met leven. Meer dan 100 verschillende insecten en andere dieren leven er op en rond.
Deze samenstelling van de border zorgt er niet alleen voor dat het een groenscherm is, maar de plantkeuze komt ook ten goede aan kleine insecten en vogels die er hun habitat in kunnen vinden.
Er is een beplantingsplan van standaard 50 m mee opgenomen in het voorstel. Om de 10 m komt er een andere plantengroep. Zo heeft iedere plantengroep 10 m om individueel uit te groeien en kan die zo niet onderdrukt worden door een sterkere groep ernaast. Indien de afstand langer is, wordt er gewoon een veelvoud genomen.
De plantenlijst is samengesteld met inheemse plantensoorten die goed gedijen in onze grondsoort en wintervast zijn.
Groenzone 6 m breed
Quercus robur Iedere 5 m
Deze groenzone is opgebouwd uit vijf verschillende heesters en één boomsoort:
• Crataegus monogyna is een plant met stekels met als mooie meerwaarde de overvloedige bloei in de maand mei en de rode vruchten in de winter. Deze zijn heel voedzaam voor de vogels en insecten. Daarnaast voorkomt de dichte structuur de inkijk.
• Carpinus betulus heeft de eigenschap dat die veel zijtakken vormt waardoor de inkijk minimaal wordt.
• Ligustrum vulgare heeft het voordeel dat deze ook tijdens de wintertijd groenblijvend is. Dit is ideaal voor de zangvogels die er dan bescherming in vinden. Een andere meerwaarde zijn de witte bloemen die in het voorjaar sterk geurend zijn en uitgroeien tot zwarte bessen in de herfst. Deze zijn eetbaar voor de vogels, maar giftig voor de mens.
• Cornus mas is een zeer vroege lichtgele voorjaarsbloeier waardoor er vroeg in het jaar bloemen zijn. De breed uitgroeiende heester zorgt in korte tijd voor een duidelijke afscheiding.
• Corylus avellana is een sterk groeiende plant met zeer grote bladeren die zorgen voor een mooi scherm. Ze siert de omgeving al in februari door de vorming van lange katjes. De noten van de hazelaar zorgen voor voedsel voor veel dieren in de winter.
• Quercus robur is een hoogstamboom die met zijn dicht bebladerde takken ervoor zorgt dat de inkijk op grotere hoogte minimaal is. De vruchten van de zomereik zijn voedsel voor kleine dieren. Dezegroenzone is niet alleen mooi, maar ook nuttig. De eik zit vol met leven. Meer dan 100 verschillende insecten en andere dieren leven er op en rond.
Deze samenstelling van de border zorgt er niet alleen voor dat het een groenscherm is, maar de plantkeuze komt ook ten goede aan kleine insecten en vogels die er hun habitat in kunnen vinden.
Er is een beplantingsplan van standaard 50 m mee opgenomen in het voorstel. Om de 10 m komt er een andere plantengroep. Zo heeft iedere plantengroep 10 m om individueel uit te groeien en kan die zo niet onderdrukt worden door een sterkere groep ernaast. Indien de afstand langer is, wordt er gewoon een veelvoud genomen.
De plantenlijst is samengesteld met inheemse plantensoorten die goed gedijen in onze grondsoort en wintervast zijn.
Groenzone 8 m breed
A Tilia cordata H.S. Iedere 5 m
Deze groenzone is opgebouwd uit vijf verschillende heesters en één rij bomen (linden). Deze rij bomen staat centraal in de zone:
• Viburnum opulus is een sterk uitgroeiende heester die in het voorjaar schermvormige witte bloemen draagt. In het najaar groeien die uit tot rode bessen. Dit biedt een meerwaarde aan de border. Tijdens de herfst krijgen de bladeren een rode kleur.
• Cornus mas is een zeer vroege lichtgele voorjaarsbloeier waardoor er vroeg in het jaar bloemen zijn. De breed uitgroeiende heester zorgt in korte tijd voor een duidelijke afscheiding.
• Crataegus monogyna is een plant met stekels met als mooie meerwaarde de overvloedige bloei in de maand mei en de rode vruchten in de winter. Deze zijn heel voedzaam voor de vogels en insecten. Daarnaast voorkomt de dichte structuur de inkijk.
• Acer campestre is een plant met een mooi uitgesneden blad. Deze plant is makkelijk snoeibaar waardoor er kleine vertakkingen ontstaan die voor een losse kroon zorgen. In de herfst heeft ze een goudgele gloed en deze plant is ideaal als windscherm.
• Corylus avellana is een sterk groeiende plant met zeer grote bladeren die zorgen voor een mooi scherm. Ze siert de omgeving al in februari door de vorming van lange katjes. De noten van de hazelaar zorgen voor voedsel voor veel dieren in de winter.
• Tilia cordata is een hoogstamboom die in enkele jaren een mooie ronde kruin vormt. Die boom stelt ook weinig eisen aan de grondsoort. Deze plant is ideaal voor de biodiversiteit. Er moet wel opgelet worden deze boven parkeerzones te planten aangezien er honingdauw (vochtafscheiding van bladluizen) op de hieronder geparkeerde auto’s kanterechtkomen. Het geeft namelijk een vervelend en plakkend effectdat de sfeer en gezelligheid van de bezoekers niet ten goede komt (J. Quartier, persoonlijke communicatie, 24 mei 2024).
Deze samenstelling van de border zorgt er niet alleen voor dat het een groenscherm is, maar de plantkeuze komt ook ten goede aan kleine insecten en vogels die er hun habitat in kunnen vinden.
Er is een beplantingsplan van standaard 50 m mee opgenomen in het voorstel. Om de 10 m komt er een andere plantengroep. Zo heeft iedere plantengroep 10 m om individueel uit te groeien en kan die zo niet onderdrukt worden door een sterkere groep ernaast. Indien de afstand langer is, wordt er gewoon een veelvoud genomen.
De plantenlijst is samengesteld met inheemse plantensoorten die goed gedijen in onze grondsoort en die wintervast zijn.
Quercus palustris boom
Deze groenzone is opgebouwd uit vijf verschillende heesters en één boomsoort:
• Cornus mas is een zeer vroege lichtgele voorjaarsbloeier waardoor er vroeg in het jaar bloemen zijn. De breed uitgroeiende heester zorgt in korte tijd voor een duidelijke afscheiding.
• Corylus avellana is een sterk groeiende plant met zeer grote bladeren die zorgen voor een mooi scherm. Ze siert de omgeving al in februari door de vorming van lange katjes. De noten van de hazelaar zorgen voor voedsel voor veel dieren in de winter.
• Carpinus betulus heeft de eigenschap om veel zijtakken te vormen waardoor de inkijk minimaal wordt.
• Ligustrum vulgare heeft het voordeel dat deze ook tijdens de wintertijd groenblijvend is. Dit is ideaal voor de zangvogels die er dan bescherming in vinden. Een andere meerwaarde zijn de witte bloemen die in het voorjaar sterk geurend zijn en uitgroeien tot zwarte bessen in de herfst. Deze zijn eetbaar voor de vogels, maar giftig voor de mens.
• Acer campestre is een plant met een mooi uitgesneden blad. Deze plant is makkelijk snoeibaar waardoor er kleine vertakkingen ontstaan die voor een losse kroon zorgen. In de herfst heeft ze een goudgele gloed en deze plant is ideaal als windscherm.
• Quercus palustris boom HS heeft een meer open kruin met bijna horizontale takken. De boom kan best gedijen in droge grond Een meerwaarde is de kleur in de herfst; een rode gloed siert de omgeving net voor de bladval.
Deze samenstelling van de border zorgt er niet alleen voor dat het een groenscherm is, maar de plantkeuze komt ook ten goede aan kleine insecten en vogels die er hun habitat in kunnen vinden.
Er is een beplantingsplan van standaard 50 m mee opgenomen in het voorstel. Om de 10 m komt er een andere plantengroep. Zo heeft iedere plantengroep 10 m om individueel uit te groeien en kan die zo niet onderdrukt worden door een sterkere groep ernaast. Indien de afstand langer is, wordt er gewoon een veelvoud genomen.
De plantenlijst is samengesteld met inheemse plantensoorten die goed gedijen in onze grondsoort en wintervast zijn.
Groenzone groenblijvend 2 m breed
5 Osmanthus burkwoodii
Deze groenzone is opgebouwd vijf verschillende heesters die zowel in de winter als in de zomer een bladhoudend groenscherm vormen:
• Viburnum rhytidophyllum is een plant die weinig eisen stelt aan de grond. Ze kan 2.5 à 3 m hoog uitgroeien. De witte, schermvormige bloemen uit het voorjaar groeien in de herfst uit tot bessen die ideaal zijn voor de zangvogels.
• Quercus ilex is zeer geschikt als windscherm aan de kust of in een open landschap. De bladeren zijn licht stekelig en vormen een dicht scherm dat inkijk onmogelijk maakt. In het najaar draagt deze plant eikels die kunnen dienen als voedsel voor kleine dieren.
• Elaeagnus ebbengei (schijnolijf) zorgt voor een afscherming met zilvergroene bladeren van 10 cm lang. De kleine, witte bloemen zijn in het najaar in trosjes tezien. Deze geven een sterke, zoete geur af die heel sterk in de omgeving aanwezig is.
• Ilex aquifolium heeft een stekelig donkergroen blad. De plant groeit in piramidevorm en vraagt een goed doorlatende grond. Felrode bessen sieren de plant in de herfst. Deze hulst is een inheemse plant.
• Osmanthus burkwoodii (schijnhulst) heeft een donkergroen glanzend blad dat voor een fraai uitzicht zorgt. De witte, sterk geurende bloemen zijn een meerwaarde in het voorjaar.
De samenstelling van deze border zorgt ervoor dat het een permanent groenscherm is. Deze planten behouden ook in de winter hun blad waardoor de inkijk minimaal is. Daarnaast dient de plantenborder ideaal als windscherm.
Insecten en kleine dieren zoals egels en vogels vinden er ook een goede beschermingsplaats om in te overwinteren. Tijdens de gure wintermaanden zien ze deze als hun biotoop.
Er is een beplantingsplan van standaard 50 m mee opgenomen in het voorstel. Om de 10 m komt er een andere plantengroep. Zo heeft iedere plantengroep 10 m om individueel uit te groeien en kan die zo niet onderdrukt worden door een sterkere groep ernaast. Indien de afstand langer is, wordt er gewoon een veelvoud genomen.
Groenzone groenblijvend 3 m breed
A Quercus ilex HS boom
Om de 5 m
Deze groenzone is opgebouwd uit vijf verschillende heesters en één rij bomen die zowel in de winter als in de zomer een bladhoudend groenscherm vormen. De rij bomen dient op 2 m van de rooilijn te worden aangeplant
• Prunus laurocerasus rotundifolia iseen lichtgroene, sterk groeiende plant. De10 cm lange bladeren geven vrij snel een gesloten scherm en vormen zo een ideale zone voor zangvogels.
• Ligustrum ovalifolium heeft het voordeel dat deze ook tijdens de wintertijd groenblijvend is. Dit is ideaal voor de zangvolgels die er dan bescherming in vinden. Een andere meerwaarde zijn de witte bloemen die in het voorjaar sterk geurend zijn en uitgroeien tot zwarte bessen in de herfst. Deze zijn eetbaar voor de vogels, maar giftig voor de mens.
• Elaeagnus ebbengei (schijnolijf) zorgt voor een afscherming met zilvergroene bladeren van 10 cm lang. De kleine witte bloemen zijn in het najaar in trosjes te zien. Deze geven een sterke, zoete geur af die heel sterk in de omgeving aanwezig is.
• Osmanthus burkwoodii (schijnhulst) heeft een donkergroen glanzend blad dat voor een fraai uitzicht zorgt. De witte, sterk geurende bloemen zijn een meerwaarde in het voorjaar.
• Ilex aquifolium heeft een stekelig donkergroen blad. De plant groeit in piramidevorm en vraagt een goed doorlatende grond. Felrode bessen sieren de plant in de herfst. Deze hulst is een inheemse plant.
• Quercus ilex HS boom (steeneik) is één van de weinige bomen die ook in de winter een gesloten kruin heeft. Deze boom is zeer geschikt als windscherm. In de herfst draagt deze boom eikels die ideaal zijn als voedsel voor vogels en dieren.
De samenstelling van deze border zorgt ervoor dat het een permanent groenscherm is. Deze planten behouden ook in de winter hun blad waardoor de inkijk minimaal is. Daarnaast dient de plantenborder ideaal als windscherm.
Insecten en kleine dieren zoals egels en vogels vinden er ook een goede beschermingsplaats om in te overwinteren. Tijdens de gure wintermaanden zien ze deze als hun biotoop.
Er is een beplantingsplan van standaard 50 m mee opgenomen in het voorstel. Om de 10 m komt er een andere plantengroep. Zo heeft iedere plantengroep 10 m om individueel uit te groeien en kan die zo niet onderdrukt worden door een sterkere groep ernaast. Indien de afstand langer is, wordt er gewoon een veelvoud genomen.
Groenzone groenblijvend 4 m breed
A Quercus ilex HS boom Om de 5 m
Deze groenzone is opgebouwd uit vijf verschillende heesters en één rij bomen (steeneik) die zowel in de winter als in de zomer een bladhoudend groenscherm vormen. Deze rij bomen staat centraal in de zone:
• Osmanthus burkwoodii (schijnhulst) heeft een donkergroen glanzend blad dat voor een fraai uitzicht zorgt. De witte, sterk geurende bloemen in het voorjaar zijn een meerwaarde.
• Prunus laurocerasus rotundifolia iseen lichtgroene, sterk groeiende plant. De10 cm lange bladeren geven vrij snel een gesloten scherm en vormen zo een ideale zone voor zangvogels.
• Ligustrum ovalifolium heeft het voordeel dat deze ook tijdens de wintertijd groenblijvend is. Dit is ideaal voor de zangvolgels die er dan bescherming in vinden. Een andere meerwaarde zijn de witte bloemen die in het voorjaar sterk geurend zijn en uitgroeien tot zwarte bessen in de herfst. Deze zijn eetbaar voor de vogels, maar giftig voor de mens.
• Ilex aquifolium heeft een stekelig donkergroen blad. De plant groeit in piramidevorm en vraagt een goed doorlatende grond. Felrode bessen sieren de plant in de herfst. Deze hulst is een inheemse plant.
• Viburnum rhytidophyllum is een plant die weinig eisen stelt aan de grond. Ze kan 2.5 à 3 m hoog uitgroeien. De witte, schermvormige bloemen uit het voorjaar groeien in de herfst uit tot bessen die ideaal zijn voor de zangvogels.
• Quercus ilex HS boom (steeneik) is één van de weinige bomen die ook in de winter een gesloten kruin heeft. Deze boom is zeer geschikt als windscherm. In de herfst draagt deze boom eikels die ideaal zijn als voedsel voor vogels en dieren.
De samenstelling van deze border zorgt ervoor dat het een permanent groenscherm is. Deze planten behouden ook in de winter hun blad waardoor de inkijk minimaal is. Daarnaast dient de plantenborder ideaal als windscherm.
Insecten en kleine dieren zoals egels en vogels vinden er ook een goede beschermingsplaats om in te overwinteren. Tijdens de gure wintermaanden zien ze deze als hun biotoop.
Er is een beplantingsplan van standaard 50 m mee opgenomen in het voorstel. Om de 10 m komt er een andere plantengroep. Zo heeft iedere plantengroep 10 m om individueel uit te groeien en kan die zo niet onderdrukt worden door een sterkere groep ernaast. Indien de afstand langer is, wordt er gewoon een veelvoud genomen.
Groenzone groenblijvend 5 m breed
A Quercus ilex HS boom
Om de 5 m
Deze groenzone is opgebouwd uit vijf verschillende heesters en één rij bomen (steeneik) die zowel in de winter als in de zomer een bladhoudend groenscherm vormen. Deze rij bomen staat centraal in de zone:
• Prunus laurocerasus rotundifolia iseen lichtgroene, sterk groeiende plant. De10 cm lange bladeren geven vrij snel een gesloten scherm en vormen zo een ideale zone voor zangvogels.
• Elaeagnus ebbengei (schijnolijf) zorgt voor een afscherming met zilvergroene bladeren van 10 cm lang. De kleine witte bloemen zijn in het najaar in trosjes te zien. Deze geven een sterke, zoete geur af die heel sterk in de omgeving aanwezig is.
• Ilex aquifolium heeft een stekelig donkergroen blad. De plant groeit in piramidevorm en vraagt een goed doorlatende grond. Felrode bessen sieren de plant in de herfst. Deze hulst is een inheemse plant.
• Ligustrum ovalifolium heeft het voordeel dat deze ook tijdens de wintertijd groenblijvend is. Dit is ideaal voor de zangvolgels die er dan bescherming in vinden. Een andere meerwaarde zijn de witte bloemen die in het voorjaar sterk geurend zijn en uitgroeien tot zwarte bessen in de herfst. Deze zijn eetbaar voor de vogels, maar giftig voor de mens.
• Osmanthus burkwoodii (schijnhulst) heeft een donkergroen glanzend blad dat voor een fraai uitzicht zorgt. De witte, sterk geurende bloemen zijn een meerwaarde in het voorjaar
• Quercus ilex HS boom (steeneik) is één van de weinige bomen die ook in de winter een gesloten kruin heeft. Deze boom is zeer geschikt als windscherm. In de herfst draagt deze boom eikels die ideaal zijn als voedsel voor vogels en dieren.
De samenstelling van deze border zorgt ervoor dat het een permanent groenscherm is. Deze planten behouden ook in de winter hun blad waardoor de inkijk minimaal is. Daarnaast dient de plantenborder ideaal als windscherm.
Insecten en kleine dieren zoals egels en vogels vinden er ook een goede beschermingsplaats om in te overwinteren. Tijdens de gure wintermaanden zien ze deze als hun biotoop.
Er is een beplantingsplan van standaard 50 m mee opgenomen in het voorstel. Om de 10 m komt er een andere plantengroep. Zo heeft iedere plantengroep 10 m om individueel uit te groeien en kan die zo niet onderdrukt worden door een sterkere groep ernaast. Indien de afstand langer is, wordt er gewoon een veelvoud genomen.
Groenzone groenblijvend 6 m breed
A Quercus ilex HS boom Om de 5 m
Deze groenzone is opgebouwd uit vijf verschillende heesters en één rij bomen (steeneik) die zowel in de winter als in de zomer een bladhoudend groenscherm vormen. Deze rij bomen staat centraal in de zone:
• Ligustrum ovalifolium heeft het voordeel dat deze ook tijdens de wintertijd groenblijvend is. Dit is ideaal voor de zangvolgels die er dan bescherming in vinden. Een andere meerwaarde zijn de witte bloemen die in het voorjaar sterk geurend zijn en uitgroeien tot zwarte bessen in de herfst. Deze zijn eetbaar voor de vogels, maar giftig voor de mens.
• Ilex aquifolium heeft een stekelig donkergroen blad. De plant groeit in piramidevorm en vraagt een goed doorlatende grond. Felrode bessen sieren de plant in de herfst. Deze hulst is een inheemse plant.
• Osmanthus burkwoodii (schijnhulst) heeft een donkergroen glanzend blad dat voor een fraai uitzicht zorgt. De witte, sterk geurende bloemen zijn een meerwaarde in het voorjaar.
• Prunus laurocerasus rotundifolia iseen lichtgroene, sterk groeiende plant. De10 cm lange bladeren geven vrij snel een gesloten scherm en vormen zo een ideale zone voor zangvogels.
• Viburnum rhytidophyllum is een plant die weinig eisen stelt aan de grond. Ze kan 2.5 à 3 m hoog uitgroeien. De witte, schermvormige bloemen uit het voorjaar groeien in de herfst uit tot bessen die ideaal zijn voor de zangvogels.
• Quercus ilex HS boom (steeneik) is één van de weinige bomen die ook in de winter een gesloten kruin heeft. Deze boom is zeer geschikt als windscherm. In de herfst draagt deze boom eikels die ideaal zijn als voedsel voor vogels en dieren.
De samenstelling van deze border zorgt ervoor dat het een permanent groenscherm is. Deze planten behouden ook in de winter hun blad waardoor de inkijk minimaal is. Daarnaast dient de plantenborder ideaal als windscherm.
Insecten en kleine dieren zoals egels en vogels vinden er ook een goede beschermingsplaats om in te overwinteren. Tijdens de gure wintermaanden zien ze deze als hun biotoop.
Er is een beplantingsplan van standaard 50 m mee opgenomen in het voorstel. Om de 10 m komt er een andere plantengroep. Zo heeft iedere plantengroep 10 m om individueel uit te groeien en kan die zo niet onderdrukt worden door een sterkere groep ernaast. Indien de afstand langer is, wordt er gewoon een veelvoud genomen.
Groenzone groenblijvend 8 m breed
5 Ilex aquifolium
A Quercus ilex HS boom Om de 5 m
Deze groenzone is opgebouwd uit vijf verschillende heesters en één rij bomen (steeneik) die zowel in de winter als in de zomer een bladhoudend groenscherm vormen. Deze rij bomen staat centraal in de zone:
• Osmanthus burkwoodii (schijnhulst) heeft een donkergroen glanzend blad dat voor een fraai uitzicht zorgt. De witte, sterk geurende bloemen zijn een meerwaarde in het voorjaar.
• Ligustrum ovalifolium heeft het voordeel dat deze ook tijdens de wintertijd groenblijvend is. Dit is ideaal voor de zangvolgels die er dan bescherming in vinden. Een andere meerwaarde zijn de witte bloemen die in het voorjaar sterk geurend zijn en uitgroeien tot zwarte bessen in de herfst. Deze zijn eetbaar voor de vogels, maar giftig voor de mens.
• Quercus ilex is zeer geschikt als windscherm aan de kust of in een open landschap. De bladeren zijn licht stekelig en vormen een dicht scherm dat inkijk onmogelijk maakt. In het najaar draagt deze plant eikels die kunnen dienen als voedsel voor kleine dieren.
• Elaeagnus ebbengei (schijnolijf) zorgt voor een afscherming met zilvergroene bladeren van 10 cm lang. De kleine witte bloemen zijn in het najaar in trosjes te zien. Deze geven een sterke, zoete geur af die heel sterk in de omgeving aanwezig is.
• Ilex aquifolium heeft een stekelig donkergroen blad. De plant groeit in piramidevorm en vraagt een goed doorlatende grond. Felrode bessen sieren de plant in de herfst. Deze hulst is een inheemse plant.
• Quercus ilex HS boom (steeneik) is één van de weinige bomen die ook in de winter een gesloten kruin heeft. Deze boom is zeer geschikt als windscherm. In de herfst draagt deze boom eikels die ideaal zijn als voedsel voor vogels en dieren.
De samenstelling van deze border zorgt ervoor dat het een permanent groenscherm is. Deze planten behouden ook in de winter hun blad waardoor de inkijk minimaal is. Daarnaast dient de plantenborder ideaal als windscherm.
Insecten en kleine dieren zoals egels en vogels vinden er ook een goede beschermingsplaats om in te overwinteren. Tijdens de gure wintermaanden zien ze deze als hun biotoop.
Er is een beplantingsplan van standaard 50 m mee opgenomen in het voorstel. Om de 10 m komt er een andere plantengroep. Zo heeft iedere plantengroep 10 m om individueel uit te groeien en kan die zo niet onderdrukt worden door een sterkere groep ernaast. Indien de afstand langer is, wordt er gewoon een veelvoud genomen.
Groenzone groenblijvend 10 m breed
A Quercus ilex HS boom
Om de 5 m
Deze groenzone is opgebouwd uit vijf verschillende heesters en één rij bomen (steeneik) die zowel in de winter als in de zomer een bladhoudend groenscherm vormen. Deze rij bomen staat centraal in de zone:
• Elaeagnus ebbengei (schijnolijf) zorgt voor een afscherming met zilvergroene bladeren van 10 cm lang. De kleine witte bloemen zijn in het najaar in trosjes te zien. Deze geven een sterke, zoete geur af die heel sterk in de omgeving aanwezig is.
• Osmanthus burkwoodii (schijnhulst) heeft een donkergroen glanzend blad dat voor een fraai uitzicht zorgt. De witte, sterk geurende bloemen in het voorjaar zijn een meerwaarde.
• Prunus laurocerasus rotundifolia iseen lichtgroene, sterk groeiende plant. De10 cm lange bladeren geven vrij snel een gesloten scherm en vormen zo een ideale zone voor zangvogels.
• Quercus ilex is zeer geschikt als windscherm aan de kust of in een open landschap. De bladeren zijn licht stekelig en vormen een dicht scherm dat inkijk onmogelijk maakt. In het najaar draagt deze plant eikels die kunnen dienen als voedsel voor kleine dieren.
• Ligustrum ovalifolium heeft het voordeel dat deze ook tijdens de wintertijd groenblijvend is. Dit is ideaal voor de zangvolgels die er dan bescherming in vinden. Een andere meerwaarde zijn de witte bloemen die in het voorjaar sterk geurend zijn en uitgroeien tot zwarte bessen in de herfst. Deze zijn eetbaar voor de vogels, maar giftig voor de mens.
• Quercus ilex HS boom (steeneik) is één van de weinige bomen die ook in de winter een gesloten kruin heeft. Deze boom is zeer geschikt als windscherm. In de herfst draagt deze boom eikels die ideaal zijn als voedsel voor vogels en dieren.
De samenstelling van deze border zorgt ervoor dat het een permanent groenscherm is. Deze planten behouden ook in de winter hun blad waardoor de inkijk minimaal is. Daarnaast dient de plantenborder ideaal als windscherm.
Insecten en kleine dieren zoals egels en vogels vinden er ook een goede beschermingsplaats om in te overwinteren. Tijdens de gure wintermaanden zien ze deze als hun biotoop.
Er is een beplantingsplan van standaard 50 m mee opgenomen in het voorstel. Om de 10 m komt er een andere plantengroep. Zo heeft iedere plantengroep 10 m om individueel uit te groeien en kan die zo niet onderdrukt worden door een sterkere groep ernaast. Indien de afstand langer is, wordt er gewoon een veelvoud genomen.
INHEEMS
GROEIOVERZICHT AANPLANTHOOGTE ONGEVEER 1 METER
PER JAAR IN CM
BLADHOUDEND
GROEIOVERZICHT AANPLANTHOOGTE ONGEVEER 1 METER
HAKHOUT BERMEN EN BRUGGEN
JAAR IN CM
Toelichting bij tabellen
Bij het eerste groeijaar na het aanplanten dient er rekening te worden gehouden dat de groeihoogte max. 50% van de normale groeilengte bedraagt (zie tabel). De planten moeten zich namelijk aanpassen aan de ondergrond (inwortelen tot in diepere gronden). Op basis van het ontworpen plan, is het de bedoeling om een gesloten structuur te bekomen na een drie- à viertal jaar, en dit bij een aanplanting van planten van ongeveer 1 m. Om sneller een gesloten structuur te bekomen, dient men te investeren in grotere planten, waardoor het onkruid ook onderdrukt wordt. De meerprijs die dit als gevolg heeft, moet dan overwogen worden.
Voorbeeld beplantingsplan
Jonathan De Smet Eindwerk milieucoördinator B Pagina | 75
Groenzone 2 m breed
Groenzone 3 m breed
Groenzone 4 m breed
Groenzone 5 m breed
Groenzone 6 m breed
Groenzone 8 m breed
Groenzone 10 m breed
Groenzone groenblijvend 2 m breed
Groenzone groenblijvend 3 m breed
Groenzone groenblijvend 4 m breed
Groenzone groenblijvend 5 m breed
Groenzone groenblijvend 6 m breed
Groenzone groenblijvend 8 m breed
Groenzone groenblijvend 10 m breed
BIJLAGE IX: OVERZICHTSLIJST PLANTENSOORTEN ~ ECOPEDIA
BIJLAGE X: LIJST VAN VLAAMSE INHEEMSE BOMEN EN STRUIKEN
Bron: LNE – MOS (Goodplanet, 2017)
Lijst van Vlaamse inheemse bomen en struiken
• “Archaeofieten”. De soorten met een sterretje zijn niet inheems, maar sinds de Romeinse tijd bij ons ingevoerd uit het Mediterrane gebied. Gezien overeenkomstige typische bodem- en vochtvereisten en het microklimaat in een stad behandelen we deze geselecteerde soorten hier ook bij de inheems soorten.
• Andere houtige inheemse soorten. Er zijn ook tal van inheemse rozen- en bramenstruiken, deze zijn vanwege het ingewikkelde karakter niet opgenomen in de lijst, maar perfect toepasbaar in sneukelhagen, houtkanten en vogelbosjes.
• Berkenpollen. Enkel windbloeiers zijn verantwoordelijk voor boompollenallergieën. Vooral berk en in veel mindere mate els en hazelaar zijn hiervoor verantwoordelijk. Boompollen zijn zo licht dat ze van zeer ver komen. Stedelingen hebben er evenveel last van als mensen van het platteland. Dus het heeft niet zoveel zin om deze bomen volledig te gaan weren! Plant ze alleen niet massaal aan.
Nederlandse naam Wetenschappelijke naam Waar toepassen? Toepassing Aandachtspunt Wintergroen?
Beuk Fagus sylvatica leem- en zandleemstreek solitaire boom, schaduw creëren, - liever niet bij kleuters, - gevoelige schors (licht, kerven)! Ja
Bosaalbes Ribes rubrum leem- en zandleemstreek sneukelhaag, nachtvlinders, bijen, vogelbosje, bloem, houtkanten lekkere bessen Nee
Boswilg Salix carprea algemeen (pionierssoort), zon houtkant, bosrand, bijen en hommels Nee
Brem Cytisus scoparius zandbodems of voedselarme bodems, zon insecten! bijen, bloem, niet bij kleuters Nee
Duindoorn Hippophae rhamnoides duinsoort, vogelbosje, bijen, doornen Nee
Jonathan De Smet Eindwerk milieucoördinator B Pagina | 81
Jonathan De Smet Eindwerk milieucoördinator B Pagina | 82 kuststeden houtkant Wintergroen?
Eenstijlige meidoorn Crataegus monogyna zon, geen specifieke bodemeisen
Es (gewone) Fraxinus excelsior overal, op rijkere, natte bodem
vogelbosje, haag en houtkant, bes en bloem, herfstkleur
hakhoutbosje, solitaire (knot-) boom speelplaats
Gelderse roos Viburnum opulus vochtige bodems vogelbosje, bes, bloem, insecten, haag en houtkant
Gele kornoelje Cornus mas Voerstreek vogelbosje, bijen, onderdeel van haag en houtkant,
Gewone esdoorn Acer pseudoplatanus leem- of zandleemstreek, ook in schaduw
Gewone vlier Sambucus nigra voedselrijke bodems, overal
niet bij kleuters, doornen Nee
helikopterzaadjes, speelplaatsboom Nee
niet bij kleuters Nee
Gewone vogelkers Prunus padus voedselrijke zand- en leembodems, halfschaduw
houtwal, haag, speelplaatsboom, bijvriendelijk
vogelbosje, gemengde haag, bloem, bes, vlinders, keuken,
niet bij kleuters Nee
helikopterzaadjes, speelplaatsboom Nee
niet bij kleuters, vlierbloesemthee, vliersiroop Nee
vogelbosje, gemengde haag, Houtkant niet bij kleuters Nee
Grootvruchtige meidoorn Crateagus x macrocarpa leem- en zandleem vogelbosje, haag en houtkant, bes en bloem niet bij kleuters Nee
Haagbeuk Carpinus betulus leem- of zandleemstreek te scheren haag, speelplaatsboom, hakhoutbosje weinig snoeiafval in gewicht, speelplaatsboom Nee
Hazelaar Corylus avellana rijkere, vochtige gronden, niet in polders
sneukelhaag, haag, houtkant, keuken, vogelbosje
hazelnoten en toepassingen Nee
Hulst Ilex aquifolium Voerstreek en haag en houtkant, niet bij kleuters, Ja
Iep (Gladde- /veldof ruwe-/berg)
Vlaamse Ardennen Wintergroen ?
Ulmus sp. (U.minor of U.glabra) (leem en zandleem) (knot)boom, haag of houtkant Nee
Jeneverbes Juperinus communis Voerstreek, Noord en Midden Limburg Antwerpse Kempen
Kraakwilg Salix fragilis vochtige bodems
Kruipwilg Salix repens zandbodems
alleenstaande boom, ijle haag en houtkant, keuken -toepassing niet bij kleuters Ja
knotboom, alleen, in rijen, bijen, hoge ecologische waarde, perceelsranden niet bij voetbalzone, jonge twijgen breken makkelijk af Nee
laagblijvende struiken op plaatsen waar overzicht belangrijk is Nee
Kruisbes Ribes uva-crispa leembodems enduinen sneukelhaag, nachtvlinders, bijen vogelbosje, bloem, houtkanten lekkere bessen Nee
Okkernoot* Juglans regia voedselrijke, goed gedraineerde warme standplaats speelplaatsboom, sneukeltuin, vogelbosje noten Ja
Plataan* Platanus oriëntalis overleeft verharde oppervlakken
stadsboom, dreven kan voor allergische reacties zorgen (haartjes bladen en takken: dus niet te veel aanplanten!) speelplaatsboom Ja
Ratelpopulier Populus tremula algemeen, liefst zandige gronden, zon houtkant, bomenrij, alleenstaande boom, bijen Nee
Rode kornoelje Cornus sanguinea op rijkere bodems vogelbosje, bijen, onderdeel van haag en houtkant, niet bij kleuters: bes is matig giftig niet bij kleuters Nee
Jonathan De Smet Eindwerk milieucoördinator B Pagina | 83
Ruwe berk Betula pendula droge voedselarme bodems, zandgronden
Schietwilg Salix alba vochtige bodems, cultuurlandschappen
Sleedoorn Prunus spinosa licht en halfschaduw, geen arme zandgrond
Spaanse aak (ook: Veldesdoorn) Acer campestre leem- of zandleemstreek Verdraagt schaduw
sierboom, vogelbosje, pollen (dus niet te veel aanplanten!), kan boven grasplein (laat licht door) Nee
knotboom, alleen, in rijen, bijen, hoge ecologische waarde, perceelsranden, vlechten met wilgentenen, houtsnijden, geriefhout, klompen, takkenhutten… Nee
vogelbosje, haag en houtkanten, herfstkleur
houtwal, haag, herfstkleur, leuke vruchten
Tamme kastanje* Castanea sativa droge, matig voedselarme bodems speelplaatsboom, bijenplant, lekkere vrucht, sneukeltuin paddestoelen, hakhoutbosje
Taxus Taxus baccata lemige bodems solitaire boom, te scheren, bijen wintergroene haag (niet bij kleuters of naast wei: naalden en zaad giftig!)
Tweestijlige meidoorn Crataegus laevigata ietwat vochtige leem-en kleibodems
Vuilboom (=Sporkehout) Rhamnus frangula overal toepasbaar(zeker zandgrond)
vogelbosje, haag en houtkant, bes en bloem, herfstkleur
niet bij kleuters, doornen Nee
helikopterzaadjes Nee
kastanjes Nee
niet bij kleuters, niet op speelplaatsen, heel giftig, toepassing kankerbehandelingen Ja
niet bij kleuters, doornen Nee
vogelbosje, haag en houtkanten, bijvriendelijk, niet bij kleuters Nee
Wegedoorn Rhamnus cathartica leem-, klei-, en vogelbosje, haag en niet bij kleuters, Nee
Jonathan De Smet Eindwerk milieucoördinator B Pagina | 84
Jonathan De Smet Eindwerk milieucoördinator B Pagina | 85 kalkhoudende bodems houtkant doornen
Wilde appel Malus sylvestris vooral leemstreek, lichtminnend vogelbosje, ijle houtwal
Wilde gagel Myrica gale
Kempen, natte zandige bodems
Wilde kardinaalsmuts Euonymus europaeus leem- en zandleemstreek, elders in beekdalen, niet in polders
veel lekkere cultivars / soorten Nee
geurenpad, houtkant, vogelbosje Nee
vogelbosje, haag en houtkant niet bij kleuters Nee
Wilde liguster Ligustrum vulgare West- & OostVlaanderen, Kempen, basische bodems haag! (weinig snoeiafval in gewicht), houtkant, vogelbosje, bijen niet bij kleuters Semi
Wilde lijsterbes Sorbus aucuparia eerder arme gronden vogelbosje, houtkant, solitaire boom, niet bij kleuters: bes licht giftig niet bij kleuters Nee
Wilde mispel* Mespelius germanica (Reeds lang ingeburgerde mediterraan) leemachtige bodems sneukelhaag, bloem, houtkant, of alleenstaand in onbruik geraakte vrucht Nee
Wilde peer Pyrus pyraster lichtminnend, voedselarme zand, ook leembodems
bosrand, haag en houtkanten veel lekkere cultivars / soorten Nee
Wilg Salix sp. vochtige bodems knotboom, alleen, in rijen, bijen, hoge ecologische waarde, perceelsranden vlechten met wilgentenen, hout snijden, klompen, geriefhout, takkenhutten, … Nee
Wintereik Quercus petraea leemstreek, Voerstreek, Kempen solitaire (knot) bomen, bomenrij, (hak)houtkant hoge ecologische waarde, speelplaatsboom Nee
Winterlinde Tilia cordata geringe eisen (knot)boom, thee, rijboom, houtkant, geurige bloesems, bijvriendelijk, speelplaatsboom
niet op parkings (zoete afscheiding van bladluizen op carrosserie), thee Nee
Witte Els Alnus incana leem- of zandleemstreek, natte bodem vogelbosje, leuke vruchtjes Nee
Zachte berk Betula pubescens natte, voedselarmebodems, zandgronden sierboom, vogelbosje, paddenstoele n pollen (dus niet te talrijk aanplanten!), kan boven grasveld (laat licht door) Nee
Zoete kers (Boskers) Prunus avium leem- en zandleemstreek bloemen, vogelbosje(bessen), alleenstaande boom Nee
Zomereik Quercus robur algemeen behalve kust, lichtboomsoort solitaire (knot-) boom, bomenrij, insecten, houtkant, hoge ecologische rijkdom hoge ecologische waarde, speelplaatsboom Nee
Zomerlinde Tilia platyphyllos meestal rijkerebodems, vroegere dorps- of boerderijboom, nu speelplaatsboom, geurige bloesems, thee, bijvriendelijk niet op parkings (zoete afscheiding van bladluizen op carrosserie), thee, speelplaatsboom Nee
Zwarte bes Ribes nigrum natte, voedselrijkegronden sneukelhaag, nachtvlinders, bijen, vogelbosje, bloem, houtkanten lekkere bessen Nee
Zwarte els Alnus glutinosa geheel Vlaanderen natte bodem vogelbosje, leuke vruchtjes speelplaatsboom, oeverboom Nee
Zwarte moerbei* Morus nigra losse vochthoudende bodem, alle types sneukeltuin, bes, keuken, opgelet voor lekkere bessen, niet op speelplaatsen: Nee
Jonathan De Smet Eindwerk milieucoördinator B Pagina | 86
De Smet Eindwerk milieucoördinator B
vlekken op de kleren! bes maakt heel moeilijke vlekken op kleren
Jonathan
BIJLAGE XI: VERGELIJKING RUIMTELIJK PLANNEN VLAANDEREN
(Departement Omgeving, z.d.)
Jonathan De Smet Eindwerk milieucoördinator B
(Departement Omgeving, z.d.)
De Smet Eindwerk milieucoördinator B
Jonathan
Locatie: Willebroek
BPA: BPA_12040_224_00018_00001 (BPA 18 Industriezone Tisselt Oost)
Stedenbouwkundige voorschriften:
Art. 2: Achter de tuinen van de woonhuizen … wordt een bufferzone aangelegd met een breedte van 30 m. Deze bufferzone zal integraal beplant, alsmede in de toekomst instand gehouden worden met streekeigen bomen, struiken en heesters.
Locatie: Ardooie
BPA: BPA_37020_224_00010_00001(BPA Bedrijvenzone voor Agro-Industrie Muizeputweg)
Stedenbouwkundige voorschriften:
Jonathan De Smet Eindwerk milieucoördinator B Pagina | 90
Jonathan De Smet Eindwerk milieucoördinator B
Locatie: Ardooie
BPA: BPA_37020_224_00008_00002 (BPA Industriegebied Gapaardstraat Gedeeltelijke Herziening A)
Stedenbouwkundige voorschriften:
Jonathan De Smet Eindwerk milieucoördinator B Pagina | 92
Locatie: Lummen
BPA: BPA_71037_224_00015_00002 (BPA Blanklaar industriezone Herziening)
Stedenbouwkundige voorschriften:
De Smet Eindwerk milieucoördinator B Pagina | 93
Jonathan
Locatie: Lichtervelde
BPA: BPA_36011_224_00005_00003 (BPA Industriegebied I 5A)
Stedenbouwkundige voorschriften:
De Smet Eindwerk milieucoördinator B Pagina | 94
Jonathan
Locatie: Hoeselt
BPA: BPA_73032_224_00008_00001 (BPA Industriezone III)
Stedenbouwkundige voorschriften:
De Smet Eindwerk milieucoördinator B Pagina | 95
Jonathan
Jonathan De Smet Eindwerk milieucoördinator B
Locatie: Bornem
BPA: BPA_12007_224_00100_00002 (BPA Landelijk Gebied centrale en zuidelijke strook Industriezones)
Stedenbouwkundige voorschriften:
De Smet Eindwerk milieucoördinator B Pagina | 97
Jonathan
Jonathan De Smet
Locatie: Dilbeek
BPA: BPA_23016_224_00001_00001(BPA nr. 6 Industriezone)
Stedenbouwkundige voorschriften:
De Smet Eindwerk milieucoördinator B Pagina | 99
Jonathan
Locatie: Duffel
BPA: BPA_12009_224_00004_00001(BPA Zone voor Industrie II Oude Liersebaan)
Stedenbouwkundige voorschriften
Locatie: Aalst
BPA: BPA_41002_224_00012_00001 (Hofstade - Denderland en industriezone)
Stedenbouwkundige voorschriften:
Jonathan De Smet Eindwerk milieucoördinator B Pagina | 100
Locatie: Beernem
BPA: BPA_31003_224_00014_00001(Industriepark Oost)
Stedenbouwkundige voorschriften:
Jonathan De Smet Eindwerk milieucoördinator B Pagina | 101
Locatie: Tongeren
BPA: BPA_73083_224_00016_00002 (Industrieterrein Tongeren-Oost deel 2 Blauw Geit partiele herziening 1 sporthal)
Stedenbouwkundige voorschriften:
Locatie: Tessenderlo
BPA: BPA_71057_224_00050_00001(Industriezone 1 Binnenhaven)
Stedenbouwkundige voorschriften:
Jonathan De Smet Eindwerk milieucoördinator B Pagina | 102
BPA: BPA_24020_224_00008_00001(Industriezone Molenstede)
Stedenbouwkundige voorschriften:
Jonathan De Smet Eindwerk milieucoördinator B
Pagina | 103
Locatie: Diest
Locatie: Arendonk
BPA: BPA_13001_224_00006_00001(Klavervelden)
Stedenbouwkundige voorschriften:
Jonathan De Smet Eindwerk milieucoördinator B Pagina | 104
Locatie: Genk
BPA: BPA_71016_224_00069_00000 (Zwartberg Industrie 1)
Stedenbouwkundige voorschriften:
De Smet Eindwerk milieucoördinator B Pagina | 105
Jonathan
(Departement Omgeving, z.d.)
De Smet Eindwerk milieucoördinator B
Jonathan
Locatie: Antwerpen
GRUP: RUP_02000_212_00195_00001 (Afbakening grootstedelijk gebied Antwerpen)
Stedenbouwkundige voorschriften:
Jonathan De Smet Eindwerk milieucoördinator B
Pagina | 107
Locatie: Gent
GRUP: RUP_02000_212_00126_00001 (Afbakening grootstedelijk gebied Gent)
Stedenbouwkundige voorschriften:
De Smet Eindwerk milieucoördinator B Pagina | 108
Jonathan
Locatie: Aalst
GRUP: RUP_02000_212_00001_00001 (Afbakening regionaalstedelijk gebied Aalst)
Stedenbouwkundige voorschriften:
Jonathan De Smet Eindwerk milieucoördinator B Pagina | 109
Locatie: Brugge
GRUP: RUP_02000_212_00118_00002 (Afbakening regionaalstedelijk gebied Brugge)
Stedenbouwkundige voorschriften:
Jonathan De Smet Eindwerk milieucoördinator B Pagina | 110
Locatie: Hasselt – Genk
GRUP: RUP_02000_212_00209_00001 (Afbakening regionaalstedelijk gebied Hasselt – Genk)
Stedenbouwkundige voorschriften:
De Smet Eindwerk milieucoördinator B Pagina | 111
Jonathan
Locatie: Kortrijk
GRUP: RUP_02000_212_00005_00001 (Afbakening regionaalstedelijk gebied Kortrijk)
Stedenbouwkundige voorschriften:
De Smet Eindwerk milieucoördinator B Pagina | 112
Jonathan
Locatie: Antwerpen
GRUP: RUP_02000_212_00202_00001 (Afbakening zeehavengebied Antwerpen)
Stedenbouwkundige voorschriften:
Jonathan De Smet Eindwerk milieucoördinator B Pagina | 113
(Departement Omgeving, z.d.)
Jonathan De Smet Eindwerk milieucoördinator B Pagina | 114
Locatie: Aarschot
PRUP: RUP_20001_213_04009_00001 (Afbakening kleinstedelijk gebied Aarschot)
Stedenbouwkundige voorschriften:
De Smet Eindwerk milieucoördinator B
Pagina | 115
Jonathan
Locatie: Deinze
PRUP: RUP_40000_213_00002_00001 (Afbakening kleinstedelijk gebied Deinze)
Stedenbouwkundige voorschriften:
Jonathan De Smet Eindwerk milieucoördinator B Pagina | 116
Locatie: Dendermonde
PRUP: RUP_40000_213_00106_00001 (Afbakening kleinstedelijk gebied Dendermonde)
Stedenbouwkundige voorschriften:
Jonathan De Smet Eindwerk milieucoördinator B Pagina | 117
Locatie: Diest
PRUP: RUP_20001_213_04009_00002 (Afbakening kleinstedelijk gebied Diest)
Stedenbouwkundige voorschriften:
Jonathan De Smet Eindwerk milieucoördinator B
Pagina | 118
Jonathan De Smet Eindwerk milieucoördinator B
Locatie: Diksmuide
PRUP: RUP_30000_213_00093_00001 (Afbakening kleinstedelijk gebied Diskmuide)
Stedenbouwkundige voorschriften:
Jonathan De Smet Eindwerk milieucoördinator B
Pagina | 120
(Departement Omgeving, z.d.)
De Smet Eindwerk milieucoördinator B
Jonathan
Locatie: Aalter
gRUP: RUP_44001_214_00016_00001 (Bufferzone industriegebied Lakeland)
Stedenbouwkundige voorschriften:
Jonathan De Smet Eindwerk milieucoördinator B Pagina | 122
Locatie: Arendonk
gRUP: RUP_13001_214_00002_00001 (Hoge Mauw)
Stedenbouwkundige voorschriften:
Jonathan De Smet Eindwerk milieucoördinator B Pagina | 123
Locatie: Harelbeke
gRUP: RUP_34013_214_00027_00001 (Industrie Eilandjes)
Stedenbouwkundige voorschriften:
De Smet Eindwerk milieucoördinator B
Pagina | 124
Jonathan
Locatie: Destelbergen
gRUP: RUP_44013_214_00005_00001 (RUP Achterhaalde industriezones)
Stedenbouwkundige voorschriften:
Jonathan De Smet Eindwerk milieucoördinator B Pagina | 125
Locatie: Brakel
gRUP: RUP_45059_214_00006_00001 (RUP Industrieterrein)
Stedenbouwkundige voorschriften:
Jonathan De Smet Eindwerk milieucoördinator B Pagina | 126
Locatie: Hoeselt
gRUP: RUP_73032_214_00004_00001 (RUP Industriezone IV)
Stedenbouwkundige voorschriften:
Jonathan De Smet Eindwerk milieucoördinator B Pagina | 127
BIJLAGE XII: CASE STUDY – MOESPOM
Projectsite: Raadpleging Geopunt dd 17 mei 2024 (Luchtfoto) (Geopunt, z.d.)
Omgevingscheck (Omgevingsloket, z.d.)
Planologische context
• Gewestplan
Conclusie
De projectsite is volgens het gewestplan grotendeels gelegen in landschappelijk waardevol agrarisch gebied en daarnaast ook in gebied voor ambachtelijke bedrijven en kmo’s. Enkel in deze laatste bestemming wordt een bufferzone opgelegd aan het bedrijf.
• BPA
Conclusie
Het BPA geldt boven het gewestplan. Daarbij leggen de stedenbouwkundige voorschriften op dat een bufferzone volgens bovenstaande voorwaarden moet worden ingericht.
Jonathan De Smet Eindwerk milieucoördinator B
• APA
Er is geen Algemeen Plan van aanleg aanwezig.
• GRUP
Er is geen Gewestelijk Ruimtelijk Uitvoeringsplan aanwezig.
• PRUP
Er is geen Provinciaal Ruimtelijk Uitvoeringsplan aanwezig.
• gRUP
Er is geen Gemeentelijk Ruimtelijk Uitvoeringsplan.
Stedenbouwkundige vergunning 2003
Jonathan De Smet Eindwerk milieucoördinator B
Verkaveling
De verharde zone links vooraan aan de Killestraat is gevat in een niet vervallen verkaveling.
Bron: gegevens van de gemeente
De aanvrager wenst zijn rechten op de bouwgrond te behouden. Dit zou kunnen als nabestemming binnen het RUP, gelet op “Besluit van de Vlaamse Regering tot vaststelling van de nadere regels met betrekking tot de vorm en de inhoud van de ruimtelijke uitvoeringsplannen”:
“Als de huidige bedrijfsactiviteiten worden stopgezet, geldt de nabestemming bestemming. Als de huidige bedrijfsactiviteiten worden stopgezet, wordt op basis van eenuitgewerkte visie aan de hand van eenruimtelijk uitvoeringsplan op gewestelijk, provinciaal of gemeentelijk niveau beslist over de inrichting van dit xxxxgebied. In afwachting van de goedkeuring van een dergelijk ruimtelijk uitvoeringsplan kunnen geen stedenbouwkundige vergunningen worden verleend na de stopzetting van de huidige bedrijfsactiviteiten.” (eigen onderlijning)
Vandaar de uitdrukkelijke vraag om het voorschrift op te nemen binnen het RUP in navolging van dit planologisch attest als volgt:
Bestemming: parking in functie van bedrijf, waarbij 100% verhard mag worden.
Nabestemming: verkaveling is terug van toepassing: zone voor een eengezinswoning in open verband.
Dit kan verantwoord worden daar er heden een niet vervallen verkaveling op dit perceel aanwezig is. Ruimtelijk is dit aanvaardbaar daar dit een opvulling kan zijn aan de straatzijde tussen de bestaande woningen.
De bestemming parking in functie van het bedrijf kan verantwoord worden door het feit dat momenteel achterliggend bedrijven gelegen zijn en deze parking ook aansluit op de bestaande site van Moespom.
Inplantingsplan Moespom
Jonathan De Smet Eindwerk milieucoördinator B
Vergelijking inplantingsplan Moespom met werkelijke situatie
Jonathan