munch y muna

Page 1

MUNCH Y MUNA (CENTROS CULTURALES DE ARTES ESCÉNICAS Y PLÁSTICAS)
"La arquitectura es el jue magnífico de las formas e - Le Co

Cátedra: Luisa Enith Chafloque Pinedo

Curso: El Hombre y

Rocío Mishell

Angelly

Tatiana Milagros

Claudia Camila Chong García Mayra Estephany

su Contexto Integrantes:
Mendoza Tuesta
Antonella Zamora Reategui
Valera Torres
Flores Ramírez ego aprendido, correcto y ensambladas en la luz" rbusier

Revisión teórica

Aproximación Proyectual

Estrategias Proyectuales Generales

1 2 3
ÍNDICE

Programa Arquitectónico

Conclusiones

Estrategias Proyectuales Generales

4 5 6

INTRODUCCIÓN

El presente trabajo de investigación se vincula con nuestro tema que se basa en los Centros culturales de artes escénicas y plásticas Munch y Muna.

Muchas Instituciones Culturales afirman que la cultura tiene mucha relación estrecha con el entorno al desarrollo, ya que esta brinda mucho valor a la sociedad en aspectos de esta, que también contribuyen al desarrollo social y económico de un país o ciudad. Es por esto, la importancia de desarrollar equipamientos culturales netamente como espacios que incentiven al desarrollo económico y social. “La sencillez y naturalidad son el supremo y último fin de la cultura" (Friedrich Nietzsche).

Actualmente es un ícono turístico de gran interés para diferentes ciudades. Estas artes surgieron como una forma de comunicación y de transmisión de mensajes mediante el uso de recursos tanto sonoros como visuales. Lo que caracteriza a las artes es que materializan estéticamente un orden de significación y lo hacen así comunicable, promoviendo diversas interpretaciones. Es por ello que la interacción de las artes con el contexto es algo vivo y en constante evolución. (Editorial Etecé, 2021, párr. 15)

T E Ó R I C A

R E V I S I Ó N

DEFINICIÓN DE CENTROS CULTURALES

Teniendo en cuenta que centro viene del latín centrum refiere al se reúnen personas con alguna finalidad, y cultural viene del vo cultus, refiriéndose a la cultura entablada de cierta forma con las intelectuales del hombre y su espiritualidad. Por ende, centro cu siendo un espacio adecuado a compartir y participar en actividade para promoverlos en comunidad. Destinado para la preservación, transmisión y fomento de culturales de la comunidad. Facilita la enseñanza y la práctica como: danza, teatro, música, pintura, literatura y artes plásticas

lugar donde ocablo latino s facultades ultural viene es culturales e muestras de las artes s.

T I P O S D E C E N T R O S C U L T U R A L E S MUSEOS. instituciones de carácter perma exhiben para fines de estudio, conjuntos y BIBLIOTECAS. Lugar de almacenamiento de FUNDACIONES CULTURALES. Organización comunidades CENTROS DE DOCUMENTACIÓN E INFORM documentación y de manejo y difusión de i Centros de Patrimonio Centros de Artes Escénicas, Audiov TEATROS. Actividad escénica que tiene luga AUDITORIOS Y RECINTOS ESCÉNICOS. Sala des SALONES DE ACTOS. Varios usos: únicamen multipropósito GALERÍAS DE ARTE. Sitio destinado a la exhib Centros de Desarrollo Comunitari CASAS DE CULTURA. institución abierta y a generar procesos de desarrollo cultural CENTROS CÍVICOS. Equipamientos sociocult CENTROS CULTURALES POLIVALENTES Equip usos.

nente que adquieren, conservan, investigan, y colecciones de valor libros o cualquier otro soporte de información. n cuyo objetivo es preservar la cultura de MACIÓN. Organismo que desarrolla tareas de nformación en diversos grados visuales y Pláticas r en un escenario. stinada a conciertos, recitales, tec. te para conferencias y presentaciones, teatro, bición y a la venta de obras artísticas o accesible al público, se encarga de turales de carácter público. pamiento cultural con infinidad de

APROXIMACIÓN PROYECTUAL CENTRO MUNCH
NORUEGA EUROPA OSLO UBICACIÓN

Nuevo museo Munch / Estudio Herreros

Se encuentra con un hermoso recorrido vertic conectando poco a poco los espacios públicos que comerciales, culturales y de restauración con las in terrazas que dejan ver una magnífica vista. El concebir un paseo ascendente es la esencia de heteroxodo. Uniendo distintos espacios como restauración, dependencias administrativas, bib centros educativos, teniendo una complejidad prog que por mucho supera al típico museo lleno de salas.

PAÍS: Noruega ANÁLISIS REFERENTE 01

RESUMEN BREVE DEL PROYECTO

El museo Munch desarrolla un concepto contemporáneo de museo nutrido de un trascendental rol urbano y una responsabilidad histórica como elemento cohesivo de la comunidad, no solo de Oslo sino de toda la nación.

Su recorrido ascendente conecta el espacio público cubierto del vestíbulo que aloja usos lúdicos, comerciales, culturales y de restauración, con las terrazas/observatorio/club de la cubierta, ofreciendo en paralelo al descubrimiento de la obra de Edvard Munch los diferentes estratos históricos de la ciudad de Oslo. Este gesto de concebir el sistema vertical de comunicaciones como un espacio público/mirador ascendente es la esencia del carácter heterodoxo que supone desarrollar un museo en vertical.

N T E X T O U R B A N O

Niños

C O
ACCESOS PROGRES
Adultos Adulto Mayor

Accesibilidadvehicular

Vehicular Principal

Vehicular

Secundario

AccesibilidadPeatonal Peatonal Secundario

Peatonal Principal

Una BIBLIOTECA.
1 2 3 4

ANÁLISIS FUNCIONAL

Circulación

El centro cultural MUNCH es un proyecto que nos muestra una circulación vertical y horizontal. En la parte horizontal nos muestra un recorrido Lineal que se da en el mismo nivel, y se realiza a través de pasillos, atrios, entradas y salidas, los cuales permiten el acceso a las distintas salas de exposición. En la parte Vertical nos muestra un recorrido que se realiza a través de rampas, escaleras y ascensores.

Auditorio

ZONIFICACIÓN

La zona dinámica posee una fachada transparente y abierta, con vistas a la ciudad y donde los visitantes pueden moverse entre las diferentes zonas de exhibición. De esta forma, el museo se transformó en un punto de referencia para el paisaje costero de Oslo.

Estática

La zona estática de la torre es una estructura cerrada de hormigón, la que cumple con “estrictos requisitos de seguridad, humedad y requerimientos de luz natural para asegurar la protección de las obras de arte que se encuentran en su interior” comentaron desde el m

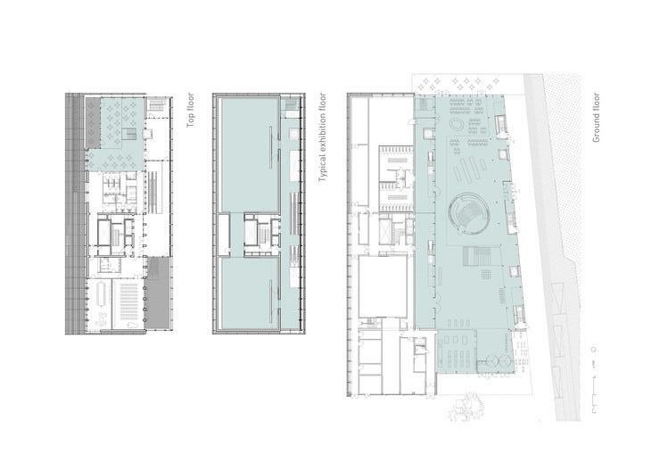
El Museo Munch se compone de un podio de tres pisos .

Parte
Podio

Leyenda

Área Pública Salas de Exposicion Administración Talleres de Trabajo Circulacion Vertical Salas Técnicas

Zonas de Acceso Restringido

PROGRA rio
ura bras de Arte licas y Recepcion ion Acceso arte/mercancía/empleados Sala Técnicas Mantiendo

Zonas de circulación y recreación

Terrazas

Restaurante

Área de circulación Escalera eléctrica Circulación del podio

Zonas de acceso Restringido

Sala VIP Sala técnicas

Almacen

Almacén de papel y de fotografía

Estudio de pintura Conservación de papel

Conservación de pintura

Estudio de fotografia

Almacén de pintura

Almacén de papel conservación de papel Estudio de fotografia

Zonas de Publicas

Salas de reuniones Salas de exposiciones

MASA Y VACIO

El edificio cumple con las estrictas demandas de energía y conciencia ambiental de Noruega a través de un concepto holístico en el que la estructura, el equipamiento y la construcción trabajan juntos dentro del marco del concepto de Casa Pasiva.

MASA VACÍO

ANÁLISIS

FORMAL

Su vigorosa actividad desplaza el centro de gravedad de Oslo a su lugar de encuentro con los fiordos y, a través de la fuerza de la cultura y la sociedad civil, reconstruye el puerto vikingo original del que surgió la ciudad.

MASA VACIO

ELEMENTOS FORMALES

Líneas rectas Las lìneas rectas son destacadas por lìneas horizontales

Repetición de elementos

El movimiento a través y alrededor del nuevo edificio lo entrelaza con el tejido del campus.

Este gesto de captar el sistema d comunicación vertical como un espacio/punto de vista público as está en el corazón de la naturalez inconformista del desarrollo del vertical.

Volumetría Sobresalindo del primer elemento horizontal

El Volumen cuenta con una construcción Modular que conforma la unidad de la estructura dando pase a una armonía entre dos módulos.

MODULACION e scendente za museo

o 01 Módulo 02

CARACTERISTICAS DE COMPOSICION

El proyecto se construyó con criterios de conciencia ecológica, donde la estructura, los sistemas de ventilación y la construcción colaboran de acuerdo con el concepto de Casa Pasiva. Las fachadas están revestidas con aluminio perforado de diferentes opacidades que "dan lugar a una percepción enigmática y evanescente del edificio", que corresponden a los leves cambios que genera el clima de Oslo para crear diferentes tonalidades a lo largo del día.

MUNCH es un proyecto de prestigio para la ciudad de Oslo y se ha planificado de acuerdo con los criterios de FutureBuilt. Dichos edificios deben reducir al menos a la mitad sus emisiones de gases de efecto invernadero en comparación con los edificios modernos convencionales en relación con el transporte, el consumo de energía y la elección de materiales.

Otro de los aspectos interesantes del Museo Munch es que, para su construcción, se utilizó “hormigón con baja huella de carbono y acero reciclado para la fachada. Además, su estructura se diseñó para una vida útil de 200 años.

El edificio corresponde a una demanda energética visualmente y a la conciencia medioambiental que muchos han optado en abarcar. teniendo el concepto de Passive House, a lo que se refiere con una menor cantidad de huella de carbono.

La sostenibilidad, reciclabilidad, y mantenimiento constructivo se basa mayormente en la experimentación e innovación.. Uno de los materiales mas usados en el edificio sin duda por su mayor rendimiento fueron los encofrados de hormigón.

ESTRU
CTURA

Acabados y Materiales (EXTERIOR)

Aluminio Hormigón
SISTEMA

CONSTRUCTIVO

Acabados y Materiales (INTERIOR)

Metal Pintura Blanca VPasamanosPidrio intura Palo CRosa ubierta Piso

A.090

Artículo 2

Están dentro de los alcances de la siguiente norma los siguientes tipos de edificaciones: Servicios Culturales: Museos, Galerías de arte, Bibliotecas y Salones comunales.

Artículo 8

Las edificaciones para servicios comunales deberán contar con iluminación natural o artificial suficiente para garantizar la visibilidad y prestación de los servicios.

Artículo 10

Las edificaciones para servicios comunales deberán cumplir con las condiciones de seguridad establecidas en la norma A 130 (Requisitos de seguridad)

NORMATIVA Y

Artículo 1

Se denomin Recreación y las actividade a la presenta

Artículo 4

Las edificacio se ubicarán e plan urban evacuación d

Artículo 5

Se deberá circulaciones

Deberán ex público, per jueces y perio

A.100

REGLAMENTACION

an edificaciones para fines de y Deportes aquellas destinadas a es de esparcimiento, recreación ación de espectáculos artísticos.

ones para recreación y deportes en los lugares establecidos en el o: Facilidad de acceso y de las personas.

diferenciar los accesos y s de acuerdo al uso y capacidad. istir accesos separados para rsonal, actores, deportistas y odistas.

Artículo 3

Se denomina Bien cultural inmueble a toda aquella edificación declarada como integrante del patrimonio cultural de la nación por el Ministerio de cultura.

A.140Artículo 16

La volumetría de las construcciones debe adaptarse a la topografía de la zona y no debe alterar el medio físico (natural y artificial) del ambiente monumental.

Artículo 20

En las Monumentos y Ambientes Urbano Monumentales, se autorizarán trabajos de conservación, restauración, consolidación estructural, rehabilitación y mantenimiento, remodelación y ampliación.

APROXIMACIÓN PROYECTUAL CENTRO MUNA

AMÉRICA DEL SUR

PERÚ LIMA - LURÍN UBICACIÓN

ANÁLISIS REFERENTE 02

Museo Nacional del Perú (MUNA) / leonmarcial arquitectos

Ubicada por lado oeste del santuario arqueológico de Pachacamac, un lugar con bastantes años de historia y cultura. El Santuario Arqueológico de Pachacamac muestra a través de su arquitectura un largo proceso histórico de transformación de ese territorio que incluye Formación Tardía (200 a.C.-200 d.C.). Con una intrigante infraestructura que se logra integrar en el valle, en la cual se puede apreciar el paso de los años entrelazándose con la modernidad.

ARQUITECTOS: Alexia León y Lucho Marcial ÁREA: 75308 m² AÑO: 2021

DIRECTOR DEL PROYECTO: Mareika Kardum, Francisco Rodriguez, Alejandra Carreras, María Huamán CIUDAD: Lurín PAÍS: Perú

RESUMEN BREVE DEL PROYECTO

en

se

esta

e

andina en

en

se

e

el

con el

que se concibe como

como:

y

trata de

se

y

Ubicada
Lurín, Lima
encuentra ubicada
extraordinaria infraestructura llena de cultura
identidad nacional, Un lugar
una kancha
la cual
teje
integra
impresionante paisaje desertico dejando en evidencia
paso de los años en tan solo un flexible cuadrangular de 75 308 m2. La intervención de este edificio
este particular lugar
la intervención y restauración de un espacio degradado . El edificio
organiza por distintos sitos
Centros de investigación
conservación, almacenamientos
áreas técnicas junto con las áreas públicas y las sociales.
Niños Adultos Adulto Mayor C O N T E X T O U R B A N O ACCESOS PROGRESO PORCENTUAL

Vehicular Principal

Accesibilidad vehicular Vehicular Secundario

Accesibilidad Peatonal Peatonal Secundario

Peatonal Principal

Radio de influencia del Museo Muna a Parques EJE COMERCIAL EJE AMBIENTAL EJE CULTURAL PARQUES MUSEO MUNA CANTIDAD DE PARQUES EN CADA RADIO Un Parque.4 RADIO DE INFLUENCIA
1 2 3 4

ANÁLISIS FUNCIONAL

Circulación

El museo cultural del MUNA es un proyecto que nos muestra una circulación horizontal en cada planta que poco a poco nos da paso libre a seguir avanzando, con las rampas que existen como métodó de subida. Excelente manejo inclusivo y una maginifica forma no convencional para llegar a cada sala de exhibición

ZONIFICACIÓN
Auditorio Restaurante Biblioteca Escaleras Sala de uso no programado Sala de uso no programado Cocina Auditorios/ sala de exposiciones Administración Talleres Espacios públicos

PROGRAMACIÓN ARQUITECTÓNICA

Zonas de Acceso Restringido

Sala Técnicas Mantiendo

Recepción de Obras de Arte Administración

Oficinas

Zonas Públicas Biblioteca Administracion y Recepcion Salas de exposicion

Auditorio

Vestíbulo

Tienda

Acceso al Museo Acceso al Auditorio Aulas

Terraza

Zonas de circulación y recreación

Terrazas

Restaurante

Área de circulación

Escalera eléctrica

Circulación del podio

MASA Y VACÍO ANÁLISIS

Formal

Aquellos espacios vacíos, están creados para el pase de la luz natural muy bien dispersada dentro del pabellón, siendo así que se cumplen con las medidas necesarias que nos manda el R.N.E.

Por otra partes se muestra una maza compacta y sencilla como lo es el cuadrado, optando por la sencillez y eficacia en el equipamiento, construcción mantenimiento y circulación.

LEYENDA:

MASA VACÍO

ELEMENTOS FORMALES

La inf posibi d colect interac

Inscrib flexible 126m vacío i

Un volumen nítido y compacto en la hoyada árida existente que presenta el terreno resultado de la extracción de arena realizada durante décadas en el lugar.

El museo juega un papel cultural fundamental en el desarrollo de la identidad nacional contemporánea en conexión con los paisajes históricamente variados del Perú

MODULACIÓN

El Equipamiento cuenta con una construcción modular que consta de dos unidades que se repiten, teniendo como resultado dos modulaciones de construcción.

Módulo 01 Módulo 02

CARACTERÍSTICAS DE COMPOSICIÓN

El MUNA pensado como centro y sede del Sistema Nacional de Museos tiene como objetivo principal preservar, conservar, restaurar, exponer y conectar la cultura arqueológica nacional a la cultura viva del presente. La nueva infraestructura limita la presencia visual al construir el 70% de su programa bajo tierra: una decisión que beneficia a la infraestructura con resistencia sísmica (8 placas estructurales conectadas a un área técnica subterránea) y estabilidad térmica.

La propuesta termodinámica ge MUNA es pasiva debido a la im naturalmente aisladas (que contie superficies horizontales exterior

“adobes” móviles de concreto en regulan el asoleamiento y el vien del muro cortina interior que p segundo nivel y dan acceso a los a su vez permiten el acceso al mir

eneral de la infraestructura del mplementación de losas gruesas enen tierra y plantas) en todas las res, y con la colocación de la fachada (estructura textil) ,que nto, estos están separados 4,5 m rotege los espacios públicos del patios que iluminan el subsuelo y ador en la azotea.

El MUNA inscribe una gran cancha flexible cuadrangular de 126m x126m con un gran vacío interior, un volumen nítido y compacto en la hoyada árida existente que presenta el terreno resultado de la extracción de arena realizada durante décadas en el lugar. La intervención estabiliza y restaura un espacio degradado y vulnerable ocupando la excavación; libera a su vez un gran espacio abierto entre ella y la duna que la rodea.

La infraestructura contiene el 70% de edificio bajo en tierra, siendo así que se beneficia con una adecuada resistencia sísmica ya que, contiene 8 placas estructurales conectadas a una técnica subterránea y una estabilidad térmica adecuada.

ESTRU

CTURA

Siendo de tal forma que la propuesta termodinámica de proyecto es pasiva porque se implementaron las losas gruesas en su terminación naturalmente gruesas. En la ejecución está resaltado los destacados estándares de innovación y sostenibilidad.

Los pisos se encuentran conectadas con rampas alrededor del área central que se encuentra libre debido a que su función consta de un lucernario para aprovechar la iluminación natural, siendo así un espacio con acristalamiento sobre una estructura de acero estructural

MUNA tiene tres patios en esquina y su vegetación se integra a los espacios interiores del edificio. Además, las superficies verticales de vidrio están protegidas por una rejilla exterior de concreto pulido que permite que el flujo de aire enfríe naturalmente el espacio del edificio.

SISTEMA

CONSTRUCTIVO

Alta demanda arquitectónica, diseño de pasada de barra y trama de juntas para cada elemento a realizar.

Solución integral de encofrados y andamios para el proyecto. Provisión de grandes cantidades de material. Selección del sistema específico y optimo en cada caso, para que coincida con diferentes requisitos.

A.090

Artículo 2

NORMATIVA

Están dentro de los alcances de la siguiente norma los siguientes tipos de edificaciones: Servicios Culturales: Museos, Galerías de arte, Bibliotecas y Salones comunales.

Artículo 8

Las edificaciones para servicios comunales deberán contar con iluminación natural o artificial suficiente para garantizar la visibilidad y prestación de los servicios

Artículo 10

Las edificaciones para servicios comunales deberán cumplir con las condiciones de seguridad establecidas en la norma A.130. (Requisitos de seguridad).

Y
A.100

Artículo 1

Se denominan edificaciones para fines de Recreación y Deportes aquellas destinadas a las actividades de esparcimiento, recreación a la presentación de espectáculos artísticos.

Artículo 4

REGLAMENTACION A.140

Las edificaciones para recreación y deportes se ubicarán en los lugares establecidos en el plan urbano: Facilidad de acceso y evacuación de las personas

Artículo 5

Se deberá diferenciar los accesos y circulaciones de acuerdo al uso y capacidad.

Deberán existir accesos separados para público, personal, actores, deportistas y jueces y periodistas

Artículo 3

Se denomina Bien cultural inmueble a toda aquella edificación declarada como integrante del patrimonio cultural de la nación por el Ministerio de cultura

Artículo 16

La volumetría de las construcciones debe adaptarse a la topografía de la zona y no debe alterar el medio físico (natural y artificial) del ambiente monumental.

Artículo 20

En las Monumentos y Ambientes Urbano Monumentales, se autorizarán trabajos de conservación, restauración, consolidación estructural, rehabilitación y mantenimiento, remodelación y ampliación

ESTRATEGIAS PROYE

CTUALES GENERALES

CENTRALIZACIÓN

Es interesante observar los puntos que tiene este proyecto, en medio de este se logra apresiar una circulación en vertical, en donde particularmente logra comprender la importancia de la inclusión. Al ser una rampa, muchas personas con uso de sillas de ruedas o similares, no se mantendrán alejados de la experiencia que otorga el MUNA.

JERARQUIA

La jerarquía visual es el principio de diseño que consiste en dotar de un orden a los elementos de una interfaz según su importancia, para facilitar la interacción a la persona usuaria.

ÁREAS LIBRES

Al estar en medio de un paisaje desértico, no hace de mucha presencia las áreas verdes o un lugar aptop para los menores. Si bien es cierto que hay espacios que se están adaptando para tener mayor diversidad natural, Se deben de tomar en cuenta la adaptación de las plantas con el suelo y ver un ligar estratégico para la sombra, ya que de esa forma el museo se verá mucho más cómodo y atractivo.

RITMO EN LA FACHADA

Cada componente de la ejecución de este interesante proyecto, tiene su propia esencia, lo vemos reflejado en el ritmo que proyecta la fachada principal, un patrón que se repite en ocasiones, generando armonía y satisfacción al ver cada pieza en su respectivo lugar.

Lo cual, hace que resalte en el paisaje.

Jefatura Laboratorio central de conservación Laboratorio de rayos x Gabinetes de investigación Depósito de insumos químicos controlados Depósito cerámico Depósito textil Depósito metales Circulación y muros: 5253.60 m2 PROGRAMA AR

Ediciones

Servicios internos: almacén de equipos y vestuario de personal

Circulación y muros: 5253.60 m2

Depósito de réplicas

Centro de capacitación: aulas y laboratorios

Depósito restos humanos

Depósito de fragmentería y material sin clasificar

QUITECTÓNICO

CONCLUSIONES

El presente análisis nos ha permitido deducir que los centros culturales son construidos con materiales según el clima de la zona donde se encuentra y el tipo de suelo adquiriendo una importancia singular, en el que se busca el confort de sus visitantes. Es por ello que es fundamental tener en cuenta los ambientes que tendrán ya que cada uno de ellos obtendrá diferentes funciones como auditorios, bibliotecas, salas de exposición, etc. En este sentido, destacamos la planeación y ordenamiento proyectual en ambos centros culturales, ya que eso los llevó a posicionarse como uno de los centros más relevantes y atractivos de su ciudad. Mediante su creatividad hicieron sostenible la construcción.

Turn static files into dynamic content formats.

Create a flipbook
Issuu converts static files into: digital portfolios, online yearbooks, online catalogs, digital photo albums and more. Sign up and create your flipbook.
munch y muna by Claudia Camila Chong García - Issuu