portafolio

Page 1

PORTAFOLIO Arq.

Universidad César Vallejo

"La Arquitectura es cuestión de Armonías, una pura creación

Le Corbusier

del espíritu."

Mi nombre es Claudia Camila Chong García, tengo 19 años y actualmente estoy en el IV ciclo de la carrera de Arquitectura la cual desempeño con mucha perseverancia y amor a la carrera ya que algún día sueño con ser una exitosa profesional.

C E R C A D E M Í

A
DATOS: FACULTAD: Arquitectura y Urbanismo ASIGNATTURA: Expresión Arquitectónica Virtual CÁTEDRA: Arq Mg Luisa Enith Chafloque Pinedo CICLO: IV

ÍNDICE:

ARQUITECTOS

CARÁTULA PRESETACIÓN DEL PROYECTO

UBICACIÓN

ESPACIOS VERDES

MATERIALIDAD ELEVACIONES -ISOMETRÍA

3D- CORTES

CONCLUSIONES

T

A R Q
U I T E C
O S BAK ARQUITECTOS

María Victoria Besonías nació el 18 de octubre de 1947 en Madrid, España. Recibida en la Facultad de Arquitectura y Urbanismo de la UBA en 1975. Es profesora adjunta de la FADU, UBA. Es miembro del Cuerpo de Jurados de FADEA (Federación Argentina de Entidades de Arquitectura). Invitada conferenciaste del XIV Congreso Internacional de Arquitectura de Monterrey 2009. Ha sido asesora en temas urbanísticos y en concursos de arquitectura.

Guillermo de Almeida nació el 12 de noviembre de 1945 en Buenos Aires. Recibido en la Facultad de Arquitectura y Urbanismo de la UBA en 1975. Ha sido docente de la Universidad de Buenos Aires y profesor asociado de la Universidad de Morón en el área de Arquitectura. Ha sido miembro del Consejo Superior del Colegio de Arquitectos de la Provincia de Buenos Aires y es miembro del Cuerpo de Jurados de la misma institución. Participó como invitado conferencista en la Bienal de Brasilia 2006. Invitado al ciclo de conferencias 2007 organizado por CPAU joven.

Luciano Kruk nació el 20 de Julio de 1974, en Buenos Aires. Recibido en la FADU, UBA en el año 2000. Es docente de Arquitectura de la UBA. Es miembro del Cuerpo de Jurados del Colegio de Arquitectos de la Provincia de Buenos Aires. Ejerce la profesión como arquitecto integrante del estudio BAK arquitectos desde el año 2000. Invitado al ciclo de conferencias 2007 organizado por CPAU joven. Invitado conferencista en la Expo Diseño Patagonia 2007 organizada por TVD canal 7 de Neuquén.

R E S E N T A C I Ó N

P

Mar Azul es un balneario de la costa bonaerense, ubicado a 12 km al sur de Villa Gesell, con una extensa playa de médanos vírgenes y un frondoso bosque de coníferas. Los propietarios, integrantes del estudio y conocedores desde hace años de este lugar eligieron precisamente el paisaje del espléndido bosque para construir una pequeña casa de veraneo. Las características ambientales y de paisaje del lugar de emplazamiento, la particularidad de uso al que está destinada y la falta de un cliente que condicione el proyecto, permitió abordar esta obra como una posibilidad de experimentar, tanto con temas funcionales, como con soluciones estético-constructivas.

E L P R O Y E C T O

D

A C I Ó N MUNDO

I

SUDAMÉRICA

U B
C

ARGENTINA

MAR - AZUL

VIDRIO

MADERA FIERRO HORMIGÓN

METAL ALUMINIO

A T E R I A L I D A D

M

I O S

E S P A C

Las zonas de vegetación o "espacios verdes" son muy concurridos en el espacio del proyecto, y este se construyó respetando los espacios de todos los árboles dándonos así una armonía con la arquitectura y la naturaleza.

V E
R D E S
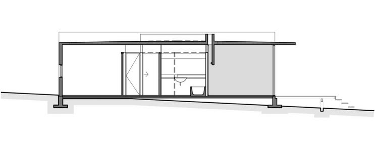
3 DC
O R T E S

I O N E S

A

E L E
V
C

O M E T R Í A

I
S

U S I O N E S

El Proyecto Casa Mar es muy intere demuestra que en poco espacio po que sean prácticas pero a la vez es Es muy importante reconocer el es arquitectos para construir este pro Realizar el portafolio para tener un del proyecto fue bastante satisfact influenciar a otros profesionales lo lo mucho que tiene que ser respeta

C
O N C L

esante, ya que nos odemos hacer estructuras stéticas a la vista. sfuerzo de estos oyecto. n resumen más dinámico torio ya que podemos o que significa la carrera y ada.

Turn static files into dynamic content formats.

Create a flipbook
Issuu converts static files into: digital portfolios, online yearbooks, online catalogs, digital photo albums and more. Sign up and create your flipbook.
portafolio by Claudia Camila Chong García - Issuu