RIBA 2 Portfolio: Chinmay

Page 1


Chinmay Kale
Part 2 Architectural Assistant

Practice projects

July 2022 – April 2023

January 2023 – March 2023 01 OSM MARRAKECH

University projects

5 double semester

PORTFOLIO CHINMAY KALE

This portfolio contains selected works from my time at the Welsh School of Architecture, Cardiff University as well as in practice. Studying the BSc Arch (RIBA 1) course at Cardiff University has been immensely rewarding It has imparted upon me the necessary skills and knowledge required for understanding the impact of the everyday built environment on our relationships with natural environment and the wider community Through more insightful and sustainable design, architecture can play a key role in tackling the numerous issues facing today s society, from resource scarcity to the climate emergency.

Personal statement

I am a sincere and hardworking designer, with a keen eye in the functionality and sustainability of architecture

I aspire to create more sustainable, resilient and affordable spaces that meet the growing and altering requirements, especially within the developing world

I have experience working on a range of projects both small scale and domestic to larger scale public buildings I am committed to go above and beyond to deliver designs to the highest standards

key interests and hobbies

• Blogging and Poetry

• Hiking and park runs on weekends

• Badminton and table tennis

• Travel photography

• History and geopolitics

EDUCATION

MArch ARB / RIBA Part 2 (2:1)

2022 - 2024

Welsh School of Architecture

Cardiff University

BSc Architecture ARB / RIBA Part 1 (2:1)

2019 - 2022

Welsh School of Architecture

Cardiff University

PROFESSIONAL EXPERIENCE

Article 25 is a leading humanitarian architecture practice based in Canary Wharf, London It specialises in designing buildings schools, hospitals and social housing across the global South Projects undertaken as Part 1 Architecture Assistant:

Comprehensive cleft care centre, Marrakech

• Designing a new cleft lip treatment center in Marrakech, Morocco on behalf of Operation Smile Morocco (stage 4)

• The drafting and development of structural floor plans, window and door schedules, detailed 3D model and rendered flythrough

Volcanic exhibition museum, Montserrat

• A museum extension to exhibit the volcanic eruption of 1997 (stage 2)

• Production of multiple massing iterations based around the museum's rood design along with conceptual renders

National Hospital, Montserrat

• Rebuilding the national hospital destroyed in the 1997 volcanic eruption (stage 3-4)

Chinmay Kale

UNIVERSITY PROJECTS

Year 5: Market Quarter (Pontypridd, Wales)

• Regenerating an old theatre and elements of the wider market quarter in the Welsh town of Pontypridd

• Developing a multi-functional program based on collective action to help facilitate a circular economy

Year

4: RMW hall (Resolven, Wales)

• Renovating a Miners Welfare hall in the Welsh village of Resolven with an Art Deco theatre

• Improving the building’s services and layout while providing a new library space for the local community

Year 3: Liveable Urbanism (Kochi,

India)

• Address the issue of waste in Kochi, India as an aspect of liveability by developing an upcycling plant

• Transform the organic waste from nearby markets into useful products based on cottage industry and raise awareness about recycling to develop a circular economy

Year 2: Retrofit (Mumbai, India)

• Renovating a 1960’s bungalow near Mumbai to provide an efficient layout with modern amenities

• Maintaining the overall structure and surrounding garden It is tailored with specific needs for a family of five

SOFTWARE AND SKILLS

contact

email chinmaykale1408@gmail.com

Phone +44 (0) 7493 138135

• Modelling the building’s exterior massing as complex site topography Leprosy mission clinic, Muzaffarpur, India

• Proposed extension of The Leprosy Mission centre increasing patient capacity (stage 1)

• Creating a detailed feasibility study to outline the context and need for additional facilities to the local government

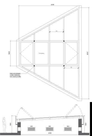
OSM Marrakech

BRIEF

Designing a new cleft lip treatment center in Marrakech, Morocco on behalf of Operation Smile Morocco with a £1.1 million budget. The clinic has five floors with a total floor area of 777 square meters

Exploded clinic layout

North main entrance view

Link to flythrough: Video of the clinic’s spatial experience

Technical detailing

KEY TASKS

• Edit structural plans based on engineers' drawings

• Draw key room detail plans and elevations

• Create and update window type schedules

• 3D model and rendered flythrough of clinic

Window screen types
Ground floor layout plan

Volcanic exhibition museum

BRIEF

Designing an extension to an existing museum space to exhibit the catastrophic eruption of 1997 and its impact on the island of Monserrat. Work revolved around the creation of new roof and bridge design options

Roof options:

I created multiple roof options for the new extension space that would roughly match the form of a volcano It would use exposed concrete and local stone to convey a more geological atmosphere while avoiding timbers due a local shortage

Conceptual design works

Bridge renders:

I produced basic renders of the bridge concepts that connected the new extension to the existing museum Our team wanted to clearly depict the materiality and the quality of natural light when entering the space for our client presentation

Pontypridd market quarter

Transform Pontypridd’s former theatre to foster circular economies and support the council's goal of net zero by 2030.. The scheme promotes a repair and reuse philosophy, challenging consumerism and enhancing equitable access to tools and materials.

The various functionalities make the scheme more versatile and able to cater to a wider demographic within the community

Programmatic outline

West section through former theater
New unit insertions

The existing theatre space would be repurposed as a library of things and repair café on the ground floor with a triple height opening above The old theatre ceiling would be removed, and the original roof trusses would help to display the building’s original construction

The restoration of the historic windows as well as a new glazed lightwell, would allow plenty of natural light and help facilitate natural ventilation during summers

Building overview

The aim of the intervention was to improve the accessibility and overall approach towards the market quarter from Penuel Lane

Key interventions above Penuel Way consist of pre-fab blocks functioning as steps, planter and seating To support this intervention, it would require the insertion of a new steel structure that wouldn’t damage or interfere with the historic light steel roof structure

Liveable urbanism

BRIEF

To reduce the quantity of waste in Kochi by creating a localised upcycling plant and sustainable waste management practices by local vendors and upgrading key infrastructure to minimise the impact of garbage on residents’ quality of life and provide local employment

Building program

YouTube link of factory model walk through: Video depicting customer experience

Cut through the manufacturing space.

Factory shop overview

Design summary

The Factory’s arrangement was based around its manufacturing processes, This was made to be transparent to visitors to promote the traditional crafts and resource upcycling

An open plan triple height layout of the building offered unobstructed views of the textile’s s being woven and rolled out This also improves natural light and ventilation inside

Conceptual fragment of the shop and weaving space.

East perspective section through factory

Key design features

1. Vegetable market stalls maintain existing location

2. The thick load bearing wall provides a thermal mass against the harsh afternoon heat

3. Rollers carry material from the weavers to the top floor shop via the design studio

4. A large overhang provides improved shading and protection against heavy rains

5. Solar panels on the roof generate renewable electricity for most of the building's operations

6. The high floor to ceiling height coupled with louvres help to passively cool and ventilate the space

7. The lightweight corrugated steel roof is cheap easy to install and highly durability

8. The shop floor is supported by a series of concrete columns that support the steel roof structure above

9. The factory’s manufacturing space utilises a perforated wall to improve natural ventilation

View West from the second-floor textile shop

BRIEF

Improve local community facilities and celebrate the local mining heritage in the village of Resolven by renovating the Miners Welfare Hall and adding a new library extension The project aims to address the needs of multiple stakeholders and be financially sound.

Technical development

Exploded isometric diagram

1:100 structural study
1:100 lighting louvre study
Timber frame joining methods
Welfare hall entrance fragment

Retrofit project

BRIEF

Renovating a 1960’s bungalow on the outskirts of Mumbai to provide a more efficient layout with modern amenities while maintaining the overall structure and surrounding garden It is tailored with specific needs for a family of five

The project expanded the kitchen into the veranda It also added new a central courtyard consisting of a green wall and pond The former bedrooms were combined with a new staircase to form an open-plan dining room with a mezzanine An additional floor was built for bedrooms and a study The roof became a large terrace with solar panels for electricity and a green roof to mitigate the urban heat island effect

Retrofit outline

Turn static files into dynamic content formats.

Create a flipbook
Issuu converts static files into: digital portfolios, online yearbooks, online catalogs, digital photo albums and more. Sign up and create your flipbook.