Construction Noise and Vibration (including Site Specific plans) (1)

Page 1


T with installation of temporary struts and ground anchors as the depth increases.

As excavation progresses, steel waler beams and struts led in combination with ground anchors to support the piled trench walls. In addition, or rockfall mesh with pins will be applied to the sides of the trench to stabilise the excavation face. Shotcrete will be spray applied, rockfall mesh is

As the trench becomes deeper, excavators and loaders will be located inside the trench to break material from the natural face of the trench and transport material to stockpiles. On the construction deck above, cranes and excavators will reach down to remove material from the trench to load onto trucks for offsite disposal.

Figure

Connectus Construction Noise and Vibration Delivery Work Plan

Project #: 2665 Doc. No. CRL-PAT-ENV-CON-PLN-000903

Client: Auckland Transport

2.1.5 Waterproofing and tunnel construction

Revision: 06, Date: 3 June 2016

The construction of the rail tunnels will be a rolling process with multiple work faces progressing simultaneously. The tunnel works will start at the southern end of Albert Street when the excavation plant is clear of the base of the tunnel.

Tunnel construction will be broken into 12m lengths, and comprises the following tasks:

- Base drainage and blinding

- Waterproofing

- Base foundation and construction

- Wall construction

- Roof construction - Roof waterproofing.

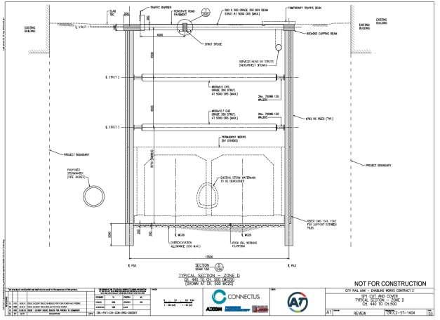
Figure 5 shows a typical cross section for the cut and cover tunnels.

Concrete will be pumped to the works by pump machinery that is initially located at the compound on the southern side of Albert Street. The pump machinery is moved onto the construction deck as the works proceed further north.

Figure 5 Typical cross section for the Albert Street Cut and Cover Tunnels

2.1.6 Trench backfilling

As the construction of the tunnels progresses, back filling of the cut and cover excavation in the Custom Street Intersection and Albert Street trench will occur. The trench backfill will be placed on top of the tunnel structure after construction has been completed for a sufficient length (approximately 50m), including the installation of the waterproofing membrane, and will continue to follow the tunnel

Connectus Construction Noise and Vibration Delivery Work Plan

Project #: 2665

Client: Auckland Transport

Doc. No. CRL-PAT-ENV-CON-PLN-000903

Revision: 06, Date: 3 June 2016

construction as it progresses. A layer of concrete blinding (or similar) will be placed over the roof membrane for protection from the trench backfill works. Material will be delivered to site by trucks on the construction deck. Trucks will deposit the fill material onto the floor of the deck structure and it will be collected and tipped into the trench by a loader.

Works to complete new utility routes or reinstate existing utilities will be co-ordinated with the filling operation as it reaches the upper layers. Finally, the construction of the new permanent road pavement will occur in stages after the trench backfill has been completed.

2.1.7 Temporary Pavement

Where required in order to maintain traffic movements, it will be necessary to put down a temporary pavement. Temporary pavements will consist of unbound granular material with a bituminous seal, concrete panels or steel plates on the surface.

2.2 HOURS OF OPERATION

Works will generally be undertaken between 7am and 7pm Monday to Saturday. Designation

Condition 36.3(b) requires that piling and road cutting will be restricted to between the hours of 7am to 7pm, Monday to Saturday.

Night time works are proposed for installation of the permanent wearing course at the Customs Street intersection (2 nights total)

Connectus

Project #: 2665

Client: Auckland Transport

Construction Noise and Vibration Delivery Work Plan

Doc. No. CRL-PAT-ENV-CON-PLN-000903

Revision: 06, Date: 3 June 2016

3 ROLES AND RESPONSIBILITIES

The key personnel responsible for this CNV DWP are identified Table 2. However, all site personnel are responsible for following the requirements of the CNV DWP.

Table 2 Key Personnel

Role

Person Responsible for CNV DWP

Project Director

Communication and Consultation Manager

Acoustics Specialist

Noise and Vibration Monitoring

Noise MonitoringTrained Site Personnel

Auckland Council –Team Leader Central Monitoring

Alasdair Mawdsley Connectus 021 2404153

Chris Powell Connectus 021 596 036

Allan HowardSmith Connectus 021 361158

Claire Drewery AECOM 021 821 025

Nick Henrys AECOM 021 993 730

Alasdair Mawdsley Connectus 021 240 4153

Adam Duncan Auckland Council 09 353 9041

Public complaint contact number - Auckland Transport 09 447 4343

Senior Monitoring Inspector

Fiona Harte Auckland Council 021828369

Alasdair.mawdsley@mcdgroup. com

Chris.Powell@mcdgroup.com

alan.howardsmith@hawkins.co.nz

Claire.drewery@aecom.com

Nick.Henrys@aecom.com

Alasdair.Mawdsley@mcdgroup. com

adam.duncan@aucklandcouncil .govt.nz

CRLProject@aucklandtransport .govt.nz

Fiona.Harte@aucklandcouncil.g ovt.nz

All personnel working on the Project, including contractor employees and subcontractors, are responsible for following the requirements of this CNV DWP. They must be briefed on this CNV DWP and sign an induction form such as the one provided in Appendix F, and any noise and vibration schedules that relate to the work they will be carrying out.

3.1 CNV DWP AUTHOR

This CNV DWP has been prepared by Claire Drewery, Principal Acoustic Consultant at AECOM and the nominated Acoustics Specialist for the Project. Claire has 14 years’ professional experience as an acoustic consultant and she holds a Diploma in Acoustics and Noise Control. Claire is a Member of the Institute of Acoustics.

Connectus

Project #: 2665

Client: Auckland Transport

Construction Noise and Vibration Delivery Work Plan

Doc. No. CRL-PAT-ENV-CON-PLN-000903

Revision: 06, Date: 3 June 2016

4 NOISE AND VIBRATION

CRITERIA

4.1 NOISE CRITERIA

Construction noise will be measured and assessed in accordance with New Zealand Standard NZS6803:1999 “Acoustics – Construction Noise”. Construction noise will be managed to comply with the Project Standards (unless otherwise provided for in an approved SSCNMP). The Project Standards for construction noise are detailed in Table 3 and are applicable 1m from any building façade. Section 5.1 of the CNV DWP details equipment and associated noise levels for construction activities. Section 10 of the CNV DWP details how construction activities will be measured/ assessed against the noise criteria If any construction activity cannot practicably comply with these limits, a SSCNMP will be produced in accordance with Section 8.1 of this CNV DWP.

Table 3 Construction Noise Limits

Early Childhood Education Centres (whilst occupied during normal opening hours)

35 dB LAeq in sleeping areas

Note: Sensitive receivers (usually building occupants) whose amenity needs to be considered with regards to noise and/or vibration effects; includes but is not limited to dwellings, hotels, educational facilities (including day care facilities), hospitals, places of worship, laboratories, studios, theatres and auditoria.

4.2 VIBRATION CRITERIA – BUILDING DAMAGE

Construction vibration will be measured and assessed in accordance with German Standards DIN 4150-3:1999 “Structural Vibration – Part 3 Effects of Vibration on Structures”. Construction vibration will be managed to comply with the Project Standards for building damage (unless otherwise provided for in an approved SSCVMP). The limits for construction vibration are detailed in Table 4 Section 5.2 of the CNV DWP details equipment and vibration regression curves for construction activities Section 10 of the CNV DWP details how construction activities will be measured/ assessed against the vibration criteria. If any construction activity cannot practicably comply with these limits, a SSCVMP will be produced in accordance with Section 8.2 of this CNV DWP

Project #: 2665

Client: Auckland Transport Revision: 06, Date: 3 June 2016

Table 4 Construction Vibration Limits – Building Damage Type of structure

(transient) vibration *

* DIN 4150-3:1999 defines short-term (transient) vibration as “vibration which does not occur enough to cause structural fatigue and which does not produce resonance in the structure being evaluated” Long-term (continuous) vibration is defined as all other vibration types not covered by the short-term vibration definition.

4.3 VIBRATION CRITERIA – AMENITY

4.3.1 Night time criteria

Between the hours of 10pm and 7am vibration generated by construction activities (excluding blasting) shall not exceed:

a) a Peak Particle Velocity (PPV) of 0.3mm/s when measured at any part of the floor of any bedroom;

b) a noise level of 35 dB LAeq(15min) when measured in any bedroom.

4.3.2 Day time criteria

Between the hours of 7am and 10pm vibration generated by construction activities (excluding blasting) shall not exceed:

a) A Peak Particle Velocity (PPV) of 1mm/s as measured on the floor of the receiving room for residentially occupied habitable rooms, bedrooms in temporary accommodation and medical facilities; and

b) A Peak Particle Velocity (PPV) of 2mm/s as measured on the floor of the receiving room for retail and office spaces (including work areas and meeting rooms);

Designation Condition 34.3 states that the limits identified in Sections 4.3.1 and 4.3.2 of this CNV DWP need only be investigated and applied upon the receipt of a complaint from any building occupant. They shall not be applied where there is no concern from the occupant of the building.

When a complaint occurs, and the limits are found (through measurement) to be exceeded then a SSCVMP shall be prepared for that receiver.

Project #: 2665

Client: Auckland Transport

06, Date: 3 June 2016

5 EQUIPMENT AND NOISE AND VIBRATION SOURCE DATA

5.1 NOISE SOURCES

Various construction processes and pieces of equipment will act as noise sources on site. Table 5 details predicted noise levels from proposed significant noise sources at various receiver setback distances. The noise data has been taken from British Standard 5228-1:2009 “Code of practice for noise and vibration control on construction and open sites”, manufacturers data or the AECOM database of noise measurements. The noise levels do not account for mitigation.

The noise levels detailed in Table 5 are placeholders All equipment will be measured operating independently and then actual equipment noise levels and model numbers will be recorded and updated within the table. These updates to the information that is detailed in Table 5 will be provided in Appendix C as schedules to the CNV DWP. Providing that the noise effects at the affected properties are either reduced or maintained at the same level with the mitigation measures identified in this CNV DWP implemented, it is not intended to re-submit the CNV DWP for review/approval.

This information allows identification of the need for mitigation or management to achieve compliance with the Project noise criteria. Section 7 of this CNV DWP provides details of management procedures and mitigation measures.

The work activities described in "work phase" CEP 308-001 Customs Street Intersection Piling and Road Deck Construction are specific to that construction area. The work activities described in the other "work phases" will occur throughout the Albert St and Custom St construction areas..

5 Equipment noise levels

Table

It should be noted that although mains power will be utilised where practicable, backup generators will be on site for safety reasons and to ensure completion of critical activities in a timely fashion in case of a loss of mains power. Noise from generators has therefore been considered in this CNV DWP.

5.1.1

Cumulative noise sources

During the construction works it is likely that several items of equipment will be operating simultaneously in the same area. Table 6 below gives indicative cumulative noise levels from equipment items that may be operating at the same time, based on the worst-case assumption that all equipment items are located at the same point. Table 7 details distances from the construction activities where the noise limits are predicted to be achieved with no mitigation.

Table 6 Indicative cumulative equipment noise levels

Excavator 14t

Front

Excavators

Front

Bobcat

Telehandlers

Diesel

Diesel

Rough

Telehandlers

Excavator-mounted drill rig

Connectus Construction Noise and Vibration Delivery Work Plan

Project #: 2665

Client: Auckland Transport

Doc. No. CRL-PAT-ENV-CON-PLN-000903

Revision: 06, Date: 3 June 2016

All construction activities detailed in Table 7 are likely to require mitigation to comply with the noise limits.

5.2 VIBRATION SOURCES

Some construction activities are predicted to generate high levels of vibration including piling, excavation, compaction and breaking. Figure 6 shows the regression curves for the most significant vibration generating activities. Table 8 summarises the setback distance from each of these activities inside of which exceedance of the building damage criteria detailed in Section 4.2 of this CNV DWP may occur at the foundation of receiving buildings The table will be kept up to date and be representative of the actual equipment on-site and include the results of on-site vibration monitoring. The updates to the information that is detailed in Table 8 will be provided in Appendix B as schedules to the CNV DWP.Providing that the vibration effects at the affected properties are either reduced or maintained at the same level with the mitigation measures identified in this CNV DWP implemented, it is not intended to re-submit the CNV DWP for review/approval. The vibration monitoring procedure is detailed in Section 10 of this CNV DWP.

Hand held pneumatic breakers are not included in the regression curves but they typically generate vibration levels of 1mm/s at 10 metres. Vibration monitoring will be carried out on site, in accordance with Section 10.2 of this CNV DWP, once vibration generating activities commence.

Figure 6 Regression curves for significant vibration generating activities

Table 8 Vibration emission radii for building damage criteria

6 AFFECTED PARTIES

6.1 NOISE

Table 9 identifies buildings where construction activities are predicted to exceed the noise limits before mitigation has been applied Figure 7 shows the location of these noise affected buildings

Table 9 Buildings predicted to receive noise levels exceeding the Project noise limits before mitigation is applied

Project #: 2665

Client: Auckland Transport Revision: 06, Date: 3 June 2016

Address

Building

Section 7 of this CNV DWP details general mitigation and management measures that will be implemented in respect of these exceedances. Appendix C contains noise schedules for each construction activity and identifies which of the receivers identified in Table 9 are affected by that activity, the noise level at the receiver due to the activity and specific mitigation/ management measures.

A Site Specific Construction Noise Management Plan (SSCNMP) will be prepared in accordance with Section 8.1 of this CNV DWP for receivers where noise is predicted to exceed the noise limits (refer Appendix I of this CNV DWP)

Figure 7 Location of the noise affected parties.

6.2 VIBRATION – BUILDING DAMAGE

Some buildings fall within the predicted building damage emission radii identified in Table 8. These buildings may be at risk of exceeding the building damage vibration limits. Table 10 summarises the buildings that may be at risk. Figure 8 shows the location of these vibration affected buildings. The building classification has been determined from the building condition and structural surveys that have been carried out by AECOM.

Table 10: Buildings predicted to receive noise levels exceeding the Project noise limits before mitigation is applied

34-36 Wyndham Street

Bluestone Wall

Section 7 of this CNV DWP details general mitigation and management measures that will be implemented. Appendix B contains vibration schedules for construction activities and identifies which of the receivers identified in Table 10 are affected by that activity, the noise level at the receiver due to the activity and specific mitigation/ management measures.

Connectus Construction Noise and Vibration Delivery Work Plan

Project #: 2665

Client: Auckland Transport

Doc. No. CRL-PAT-ENV-CON-PLN-000903

Revision: 06, Date: 3 June 2016

A Site Specific Construction Vibration Management Plan (SSCVMP) will be prepared in accordance with Section 8.2 of this CNV DWP for receivers where vibration is predicted to exceed the building damage vibration limits (refer Appendix I of this CNV DWP).

Figure 8 Location of the vibration affected parties

6.2.1

Vibration Effects on Infrastructure Assets

Infrastructure assets, such as underground pipework, that are located near high vibration generating activities will be identified prior to commencing construction and included as the Schedule in Appendix B.

Risk assessments of relevant infrastructure assets will be undertaken, and be managed through SSCVMPs (Section 8.2 of this CNV DWP).

Connectus

Project #: 2665

Client: Auckland Transport

Construction Noise and Vibration Delivery Work Plan

Doc. No. CRL-PAT-ENV-CON-PLN-000903

Revision: 06, Date: 3 June 2016

7 GENERAL MANAGEMENT PROCEDURES AND MITIGATION MEASURES

The proposed works have the potential to exceed the relevant construction noise and vibration limits at the closest receivers. To avoid/minimise exceedances it is vital that appropriate mitigation and management measures are utilised. Best Practicable Option (BPO) mitigation will be implemented throughout the construction programme to avoid exceedances of the noise and vibration criteria. This will include, but not be limited to the mitigation measures detailed in this section of the CNV DWP Mitigation of the effects of noise and vibration on affected parties in proximity to the Project is also outlined in sections 4.2 and 5.2 of the Project Social Impact and Business Disruption Delivery Work Plan (Appendix D of the Project CEMP), as a result of consultation with affected parties.

7.1 CONSTRUCTION NOISE AND VIBRATION MANAGEMENT SCHEDULES

Construction noise and vibration management schedules to this CNV DWP have been prepared for the construction activities listed in Table 6 – refer Appendix B for vibration and Appendix C for noise. The schedules identify the potentially affected neighbours, the noise and vibration levels at these neighbours, the proposed methodology and equipment to be used and specific mitigation/ management measures.

The schedules will be checked and updated as necessary prior to commencement of each phase of construction works and at regular intervals (monthly as a minimum) throughout the duration of the works.

7.2 TRAINING

Procedures relating to environmental training, including noise and vibration site management procedures are detailed within Section 4.2 of the Project CEMP. As a minimum before commencing work on site all personnel will receive training based on this CNV DWP and relevant to their scope of works. If required, specific training will be provided for site personnel. Training will cover:

 Roles and responsibilities for managing noise and vibration

 Familiarisation with noise and vibration limits

 Details of noise and vibration sources on-site

 Noise and vibration mitigation and management procedures

 Location of sensitive receivers

 Construction noise and vibration effects on receivers

 Details of any operational requirements and constraints identified through communication and consultation

 Complaints management procedures

Other administrative and training procedures that will be adopted are:

 Ensure site personnel communicate using the radio/phone rather than shouting.

 Include clauses that require compliance with this CNV DWP in subcontractor agreements.

Project #: 2665

Client: Auckland Transport Revision: 06, Date: 3 June 2016

 Provide a protocol for handling noise and vibration complaints that includes recording, reporting and acting on complaints. Further detail is provided in the Communication and Consultation Plan (Appendix O of the Project CEMP)

 Organise work to be undertaken during the Standard hours where reasonable and practical and safe to do so. Exceptions include works associated with installation of the permanent wearing course at the Customs Street intersection and steel fixing of the tunnel roof, which are proposed to take place during the night time, and works that may require full road closure, such as moving large equipment between work sites.

7.3 CONSTRUCTION TRAFFIC AND DELIVERIES

Noise mitigation and management procedures for construction traffic and deliveries shall include:

 Fit engine exhausts with silencers.

 Use broadband reversing alarms.

 Avoid slamming doors.

 Minimise speed and engine revs.

 No stereos operated on site.

 Minimise the use of horns.

 Turn engines off when stationary for extended periods of time.

 Place bedding layer or resilient liner in truck trays.

 Use rubber seals around tailgates.

 Minimise track squeal from tracked equipment such as excavators by greasing the tracks regularly.

7.4 PLANT AND EQUIPMENT

Designation Condition 21.1 (m) requires that site offices and less noisy construction activities be located at the edge of the construction yards where practicable.

Plant and equipment noise and vibration mitigation and management procedures shall include:

 Select plant and equipment based on noise and vibration emission levels.

 Turn off plant and equipment or throttle them down to a minimum when not in use.

 Select appropriately sized equipment for the task.

 Use mufflers and engine covers/screens where appropriate.

 Ensure equipment is operated in the correct manner and correctly maintained including replacement of engine covers, repair of defective silencing equipment, tightening of rattling components, repair of leakages in compressed air lines and shutting down of equipment not in use.

 Avoid where possible the night-time use of equipment which generates impulsive noise:

o impact piling

o dropping materials from a height

o metal-to-metal contact on equipment.

 Minimise drop height of materials when transferring (e.g. loading and unloading vehicles and storage areas).

 Enclose generators with an effective muffler.

Project #: 2665

Client: Auckland Transport Revision: 06, Date: 3 June 2016

 Use power from Vector Electricity Network rather than from generators where practicable.

 Reduce noise and vibration emissions from plant that has the potential to exceed the criteria by installing silencers, vibration isolation or other appropriate mitigation.

 Maximise the distance between the engine exhausts of fixed plant and the nearest sensitive building façade.

 Place tools and equipment on the ground – do not drop.

 Cover surfaces with resilient material where tools/equipment are placed.

 Do not drag equipment on the ground.

 Avoid striking bare metal with tools.

 Where spoil is being removed into a dump truck, or fill materials are being scooped from a dump truck, position the dump truck to minimise tracking movements.

 When using concrete mixers on site do not let aggregates fall from excessive height and do not hammer the drum.

 Use broadband reversing alarms on all mobile equipment.

7.5 PNEUMATIC BREAKERS

Noise and vibration mitigation and management procedures for breaking activities shall include:

 Select the right size equipment for the job to minimise the length of time taken to complete the operation.

 Use the lowest noise equipment available.

 Do not “blank” fire the hammer. The activating valve should only be operated with the hammer in contact with the surface to be broken.

 Keep breaker bushes and shaft greased as necessary.

 Use correct chisel / tip shape for the type of material being broken.

 Where work is contained within a compact area, use acoustic screens which block line of sight between breaker and sensitive receivers.

7.6 PILING AND COMPACTION

Noise and vibration mitigation and management procedures for piling and compaction activities shall include:

 Avoid dynamic compaction using large tamping weights.

 Minimise cable slap and chain clink.

 Provide mufflers and engine covers/screens where appropriate.

 Remove obstructions which may exacerbate vibration transmission where appropriate, prior to piling operations.

Project #: 2665

Client: Auckland Transport Revision: 06, Date: 3 June 2016

7.7 NOISE BARRIERS AND ENCLOSURES

Noise barriers or enclosures will be used in areas where the noise limits are predicted to be exceeded, and where they provide effective mitigation

Noise barriers will generally only be effective for ground floor receivers where noise levels would be reduced by approximately 10 dB. For a noise barrier to be effective it must cut line of sight between the source and receiver. Receivers on the first floor and above will be able to see over the noise barrier and it will provide little attenuation.

Noise barriers will be required around all work areas . The noise barriers should be a minimum of 1.8m high.

An effective noise barrier is constructed as follows:

 Positioned to cut line of sight between the construction work and receiver

 Positioned as close as practicable to the noisy construction activity

 Abutted or overlapped to provide a continuous screen with no gaps at the base or between panels.

Noise barriers will generally be constructed from plywood with a minimum surface mass of 10kg/m2 However, proprietary products such as Flex Shield are available that have a lower surface mass but provide the same or better levels of noise attenuation. Flex Shield barriers will be utilised during utilities relocation and piling due to the temporary/ mobile nature of these works.

Relocatable noise barriers will be erected around all utilities relocation work sites and around all piling sites. Permanent noise barriers will be erected around the southern construction compound as soon as it is set up and around the perimeter of the excavation works, see Figure 9.

Noise enclosures should be utilised where practicable as they provide better attenuation to receivers above ground floor level. Noise enclosures, with suitable ventilation, are likely to be required for concrete cutting, breaking and compacting

Where enclosures are proposed they shall be designed by the Acoustics Specialist - refer to Table 2 in Section 3 of this CNV DWP.

Figure 9 Location of Noise Barriers

Project #: 2665

7.8 TRAFFIC TYRE NOISE

The Project requires public traffic to be routed over temporary traffic decks or through road works at various stages. Vehicle movements may cause temporary decks, steel plates and manholes to rock or move – giving rise to nuisance noises. Sharp changes in the level of the road surface may result in tyre noise. Connectus will use the following methods to reduce these issues so far as reasonably practicable, especially where the noise source will exist for long periods:

 Firmly fix traffic decks to the road or other structural elements to prevent motion.

 Place rubber beneath traffic decks and steel road plates where movement occurs.

 Provide smooth transitions between changes in road surface level.

 Ensure manhole covers are re-fitted correctly.

7.9 SCHEDULING OF ACTIVITIES

Scheduling of construction activities can be a key tool for managing construction noise and vibration effects. The time of day and the duration of the construction activities will be adjusted after consultation, where possible, to avoid particularly sensitive times for affected receivers. Consideration will also be given to respite periods and avoidance of activity on certain days (if requested by affected neighbours), where practicable.

Night time disturbance to nearby residential receivers will be reduced by carrying out noisy activities during the day However, the majority of affected properties are commercial, so night works may be preferable in some specific locations.

Project #: 2665

Client: Auckland Transport

8 SITE SPECIFIC CONSTRUCTION MANAGEMENT PLANS

8.1 SITE SPECIFIC CONSTRUCTION NOISE MANAGEMENT PLAN (SSCNMP)

The objective of a SSCNMP is to detail the best practicable option to avoid, remedy or mitigate adverse effects on a receiver resulting from construction noise that does not comply with the Project Noise Standards.

A SSCNMP will be prepared for any receiver or activity where construction noise is either predicted or measured to exceed the Project Noise Standards identified in Section 4 of this CNV DWP, except where the exceedance is less than 5 decibels and does not exceed:

a. 0700-2200: 1 period of up to 2 consecutive weeks in any 2 months

b. 2200-0700: 1 period of up to 2 consecutive nights in any 10 days

For predicted exceedances of less than 5 decibels monitoring shall be undertaken to confirm the actual noise levels. If exceedance is shown to be more than 5 decibels, or the period exceeds those detailed, then a SSCNMP must be prepared (refer designation Condition 37.3)

The SSCNMP will identify:

a) The extent to which noise may exceed the Project Noise Standards in designation Condition 31;

b) The timing and duration of any exceedance;

c) Details of the type of activity causing any exceedance;

d) The summary of the communication and consultation undertaken with the receiver. The summary must include a clear explanation of where any comments have not been incorporated and the reasons why not. This information must be included in the SSCNMP provided to both the Independent Peer Review Panel and Auckland Council as part of the Outline Plan process specified in Condition 11;

e) The methods and measures to mitigate noise effects, including but not limited to, potential to offer temporary relocation of affected receivers, alternative ventilation, façade sound insulation improvements, building condition surveys in the case of overpressure generated by blast events, or other offers made by the Requiring Authority and whether these have been agreed to by the affected receiver;

f) The reasons why the management and mitigation measures and methods reflect best practicable option.

The SSCNMP will be submitted for review to Auckland Council prior to commencing the works included in the SSCNMP as part of the Outline Plan. The works shall then be undertaken in accordance with the SSCNMP confirmed by the Requiring Authority as part of the Outline Plan.

A SSCNMP will be prepared for the only notable receiver (Auckland District Court) affected by the works covered in this CNV DWP and for 23-29 Albert Street in accordance with Condition 37.4. In addition, SSCNMPs will be prepared for Stamford Plaza and Stamford Residences in accordance with the agreements they have in place with Auckland Transport

Project #: 2665

Client: Auckland Transport

8.2 SITE SPECIFIC CONSTRUCTION VIBRATION MANAGEMENT PLAN (SSCVMP)

The objective of a SSCVMP is to detail the best practicable option to avoid, remedy or mitigate adverse effects on a receiver resulting from vibration that does not comply with the Project Vibration Standards.

A SSCVMP will be prepared:

a) For any unoccupied building, structure or infrastructure for which construction vibration is either predicted or measured to exceed the Project Vibration Standards as detailed in Section 4.2 of this CNV DWP;

b) Where a complaint or concern is raised and the vibration level exceeds the amenity levels as detailed in Section 4.3 of this CNV DWP.

c) In response to other concerns or complaints where required (refer designation Condition 17).

Where the amenity limits are exceeded:

a) Best practicable management of vibration will be applied; and

b) The vibration activity will be scheduled to avoid disturbance. If this is not practicable then reasonable respite periods will be provided to reduce vibration exposure.

The limits identified in Section 4.2 of this CNV DWP may be relaxed by a SSCVMP but only for a building, structure or infrastructure that has been assessed by a suitably qualified and experienced structural engineer and where it has been deemed to be capable of withstanding higher vibration levels without sustaining building or structural damage, and where appropriate vibration and building condition monitoring regimes are in place.

The SSCVMP will identify:

a) The timing and duration of the exceedance;

b) Details of the type of activity giving rise to the exceedance;

c) Site Specific vibration criteria that addresses the issue(s) of concern (i.e. building damage, amenity and sensitive equipment). Site Specific criteria shall be determined by a suitably qualified independent vibration expert;

d) The summary of the communication and consultation undertaken with the receiver. The summary must include a clear explanation of where any comments have not been incorporated, and the reasons why not. This information must be included in the SSCVMP provided to both the Independent Peer Review Panel and Auckland Council as part of the Outline Plan process specified in Condition 11;

e) The methods and measures to mitigate vibration effects, including but not limited to, investigating alternative low-vibration construction methods, undertaking high-vibration works outside sensitive times, vibration barriers, building condition surveys, potential to offer temporary relocation of affected receivers, or other offers made by the Requiring Authority and agreed to by the affected receiver.

The SSCVMP will be submitted for review to Auckland Council prior to commencing the works included in the SSCVMP as part of the Outline Plan. The works shall then be undertaken in accordance with the SSCVMP confirmed by the Requiring Authority as part of the Outline Plan.

A SSCVMP will be prepared for the only notable receiver (Auckland District Court) affected by the works covered in this CNV DWP and for 23-29 Albert Street in accordance with Condition 37.4. In addition, SSCVMPs will be prepared for Stamford Plaza and Stamford Residences in accordance with the agreements they have in place with Auckland Transport.

Project #: 2665 Doc. No. CRL-PAT-ENV-CON-PLN-000903

Client: Auckland Transport Revision: 06, Date: 3 June 2016

8.3 SITE SPECIFIC CONSTRUCTION NOISE AND VIBRATION MANAGEMENT PLAN (SSCNVMP)

The conditions allow for SSCNMPs and SSCVMPs to be combined to form SSCNVMPs. Some site specific plans may therefore consider both noise and vibration.

The SSCNVMPs that have been prepared for the Project cover a particular construction activity, a specific area of works or an individual building and are summarised in Table 11 and are included in full in Appendix I of this CNV DWP

Table 11 SSCNVMPs

CRL-PAT-ENV-CONPLN-001182

CRL-PAT-ENV-CONPLN-001263

CRL-PAT-ENV-CONPLN-001189

CRL-PAT-ENV-CONPLN-001187

CRL-PAT-ENV-CONPLN-001184

CRL-PAT-ENV-CONPLN-001188

CRL-PAT-ENV-CONPLN-001264

CRL-PAT-ENV-CONPLN-001265

CRL-PAT-ENV-CONPLN-001186

CRL-PAT-ENV-CONPLN-001185

Project #: 2665

Client: Auckland Transport Revision: 06, Date: 3 June 2016

9 COMMUNICATON

9.1 COMMUNICATION

Good community communication practices are a key component for the management of disruption from construction activities. Prior to construction commencing, clear communication channels will be established between the project team and those in the community potentially most affected by construction activities. It is important that information is provided in a transparent and consistent manner in relation to exposure, duration, mitigation and management measures.

Designation Condition 36.3(g) requires a record to be kept of communication and consultation with sensitive receivers with regard to construction noise and vibration impacts A template for keeping this record is provided in Appendix D of this CNV DWP. The record includes details of when the communication/ consultation occurred, what the comments were from the sensitive receivers, where the comments have been incorporated into the CNV DWP and an explanation of where any comments from sensitive receivers have not been incorporated in the CNV DWP, including the reasons why not.

Designation Condition 16.1 requires that communication and consultation is undertaken, as soon as reasonably practicable (and at least once following confirmation of construction timing and methodology), with any Notable Noise and Vibration Receivers located within 100 metres of the designation footprint. Again the template for keeping a record of communication and consultation with Notable Noise and Vibration Receivers is provided in Appendix D of this CNV DWP. On-going communication and consultation will be undertaken with notable noise and vibration receivers throughout the duration of construction occurring in the vicinity. This communication will be reported back to the “key contacts” (see designation Condition 13) and the Auckland Council Consent Monitoring officer for their review and confirmation of any further action to be undertaken.

The Communication and Consultation Manager for the Project has a key responsibility to keep the community informed of construction activities. The following methodology sets out best practice communication to the community with regards to Noise and Vibration generated by the Project. Further detail on communications procedures for the Project is provided in the Communication and Consultation Plan.

 There will always be a contact person available on site during works, and their contact details will be prominently displayed at the entrance to the site(s) so that they are clearly visible to the public.

 Where the contact details for stakeholders are already known (i.e. sensitive receivers and Notable Noise and Vibration Receivers), Connectus’ Communication and Consultation Manager will make contact to engage in a consultative process. This may involve a face to face meeting or may be carried out over the phone as suits the needs of the stakeholder.

Through this discussion and an information pack, Connectus will provide stakeholders the following information:

The nature of the project

The site and facilities layout

Dates for key milestones (road closures, site establishments and disestablishment etc.)

Contact details for the communication process,

The complaints management process.

Connectus Construction Noise and Vibration Delivery Work Plan

Project #: 2665

Client: Auckland Transport

Doc. No. CRL-PAT-ENV-CON-PLN-000903

Revision: 06, Date: 3 June 2016

Where changes are made to any of the above items, in particular to hours of operation or to likely duration of the operation, affected residents and property owners will be notified.

 Individual notification shall be provided and meetings offered to all neighbours that are predicted to experience noise or vibration levels that exceed the limits detailed in Section 4 of the CNV DWP after the BPO mitigation as detailed in Section 6 has been applied. Where it is impractical to avoid an exceedance, consultation shall be undertaken to avoid significant adverse effects.

 Ongoing consultation will be continued throughout the works with Notable Noise and Vibration receivers and any other neighbours raising concerns

 Further information will be regularly provided to affected parties with an update on the progress of the works, and the specific activities (including locations) due to be undertaken next. Updates will be provided every month.

 A record will be kept of all communications

 All concerns and complaints regarding construction noise and vibration will be dealt with in accordance with Section 9.2 of this CNV DWP.

9.2 COMPLAINTS PROCEDURE

Procedures relating to environmental complaints are detailed within Section 6 of the Communication and Consultation Plan (Appendix O of the Project CEMP). All complaints will be recorded in a Project Complaints Register.

Connectus will provide Auckland Council's Noise Complaints Team with contact details for the CRL Complaints Team to ensure Auckland Council can pass CRL related noise complaints to the Project quickly. This is intended to minimise the resolution time in the event that a member of the public does not call the CRL Complaints Team directly.

Connectus Construction Noise and Vibration Delivery Work Plan

Project #: 2665

Client: Auckland Transport

10MONITORING

Doc. No. CRL-PAT-ENV-CON-PLN-000903

Revision: 06, Date: 3 June 2016

A B&K 2250 Sound Level Meter will be located at the site office for the duration of the works. A B&K 2250 Sound Level Meter and two Rion NL21s noise loggers will also be available for use on the Project and stored at the AECOM office (8 Mahuhu Crescent) An Instantel Minimate Plus vibration logger will be stored at the AECOM office.

10.1 NOISE

Construction noise will be measured and assessed in accordance with the requirements of New Zealand Standard NZS 6803: 1999 “Acoustics - Construction Noise”

Noise monitoring will be conducted by the Acoustic Specialist or trained noise monitoring staff as identified in Section 3 of this CNV DWP

The equipment noise levels detailed in Table 5 are placeholders. All equipment that is predicted to exceed 75 dB LAeq at 5m will be measured operating off-site prior to operation on site, where practicable. Where this is not practicable it will be measured when first operating on site. Actual equipment noise levels at 5m and equipment model numbers will be recorded. This information will be used to update the noise schedules in Appendix C of this CNV DWP within one week of the measurements being undertaken The SSCNVMPs identify monitoring locations and the timing of monitoring at the most affected receivers. In addition to the monitoring identified in the SSCNVMPs noise monitoring will be carried out at positions representative of noise sensitive locations, see Figure 11, at least every month, to check ongoing compliance with the construction noise limits. The monitoring position will be at first floor level.

Figure 11 Noise monitoring locations

Connectus Construction Noise and Vibration Delivery Work Plan

Project #: 2665

Client: Auckland Transport

Doc. No. CRL-PAT-ENV-CON-PLN-000903

Revision: 06, Date: 3 June 2016

Noise should be measured 1m from the most affected façade of the building, or in the area which relates to a noise complaint. If it is not practicable to measure at this position, measurements can be taken at a representative location and adjusted for distance and façade reflections if necessary Measurements should also be taken at a known distance, such as 5m, from the noise generating equipment to establish source noise levels.

Additional measurement positions may be necessary if the initial measurement results indicate that noise may exceed criteria at other areas of the building façade. These measurements may be undertaken 1m from the façade if windows are normally open or inside the building if windows are normally closed. Where internal measurements are required it will be necessary to control noise from local sources, such as people using the telephone, to ensure only construction noise is measured.

Noise monitoring will be conducted for 10-15 minutes at each measurement position, during representative construction activity.

The noise level will be reported with the measurement duration (e.g. 65 dB LAeq (15min))

Noise monitoring will also be undertaken in response to reasonable noise complaints, or if the construction methodology changes such that noise criteria may be exceeded at other locations

Figure 12 outlines the process to be followed when monitoring noise.

Connectus Construction Noise and Vibration Delivery Work Plan

Project #: 2665

Client: Auckland Transport

12 Noise Monitoring Flowchart

Doc. No. CRL-PAT-ENV-CON-PLN-000903

Revision: 06, Date: 3 June 2016

Figure

Connectus Construction Noise and Vibration Delivery Work Plan

Project #: 2665

Client: Auckland Transport

10.2 VIBRATION

Doc. No. CRL-PAT-ENV-CON-PLN-000903

Revision: 06, Date: 3 June 2016

Construction vibration levels will be measured and assessed in accordance with the requirements of German Standard DIN 4150-3:1999 “Structural vibration – Part 3: Effects of vibration on structures”

Prior to construction, trial measurements of high-vibration activities will be undertaken to establish Project specific ground attenuation characteristics and safe distances.

The SSCNVMPs identify vibration monitoring locations and the timing of monitoring at the most affected receivers. In addition to the monitoring identified in the SSCNVMPs vibration monitoring will be carried out at positions representative of vibration sensitive locations, see Figure 13, at least every month, to check ongoing compliance with the construction vibration limits.

Figure 13 Vibration monitoring locations

Vibration monitoring shall only be undertaken by the Acoustic Specialist or trained vibration monitoring staff as identified in Section 3 of this CNV DWP

Vibration shall initially be measured at the closest building foundations (usually at basement or ground floor level) and this requires consent to access the building of interest. Additional measurement positions may be necessary if the initial measurement results indicate that vibration may exceed criteria within other areas of the building. It may also be necessary to measure vibration levels in the habitable areas of buildings in response to a complaint.

Vibration monitoring will be conducted during representative construction activities and comprise measurements of peak particle velocity (PPV) at one second intervals.

The duration of the vibration measurements will be sufficient to capture the highest vibration level from the source.

The vibration monitoring equipment (geophones) will be fixed to building structural members (e.g. with clamps, cable ties, or weighed down with sandbags).

Connectus Construction Noise and Vibration Delivery Work Plan

Project #: 2665

Client: Auckland Transport

Doc. No. CRL-PAT-ENV-CON-PLN-000903

Revision: 06, Date: 3 June 2016

The geophones will ideally be located at or near the façade of the building facing the vibration source and will be located away from areas where extraneous vibration (e.g. from footfall or building services) could affect the results.

The monitoring results shall be used to update the vibration schedules in Appendix B of this CNV DWP within one week of the measurements being undertaken

Vibration monitoring shall also be undertaken in response to reasonable vibration complaints, or if the construction methodology changes such that vibration criteria may be exceeded at other locations

Figure 14 outlines the process to be followed when monitoring vibration.

Connectus Construction Noise and Vibration Delivery Work Plan

Project #: 2665

Client: Auckland Transport

14 Vibration monitoring flowchart

Doc. No. CRL-PAT-ENV-CON-PLN-000903

Revision: 06, Date: 3 June 2016

Figure

Project #: 2665

10.3 REPORTING

All noise and vibration monitoring shall be summarised in a report and submitted to the Communication and Consultation Manager and the Environment and Sustainability Manager (ESM) within one week of the assessment. The reports shall be kept at the site office and made available to AT or Auckland Council upon request.

10.4 BUILDING CONDITION SURVEYS

A detailed pre-construction building condition survey will be undertaken at all of the identified buildings and services detailed in the vibration schedules, Appendix B, before construction begins on the Project.

Designation Condition 46 describes the process for building condition surveys. The building condition surveys will generally be undertaken as follows:

 The building surveys will be undertaken by an independent senior qualified person

 The survey shall include:

o Any information about the type of foundations

o Existing levels of damage (aesthetic, superficial, affecting levels of serviceability)

o Whether observed damage is associated with structural damage

o Susceptibility of building or structure to further movement

o Photographic evidence

 The consent holder will provide the building condition survey structure survey report to the property owner and the Council within 15 working days of the survey being undertaken

 If requested by a building or structure owner where a pre-construction survey was undertaken, Connectus will undertake a visual inspection. This is in addition to monthly visual inspections until the completion of Dewatering of the Project

 Connectus shall carry out visual inspections of the surrounding ground and external building facades of the listed buildings adjacent to the tunnel trench to monitor any deterioration or movement of any pre-existing cracks

The building condition surveys will be conducted by a suitably qualified person as identified in Section 4.1.2 of the Project CEMP.

During the pre-construction building condition survey, it will be determined if the building is classified as Commercial / Industrial / School or a Historic or sensitive structure in terms of designation Condition 33. The foundation type of the building or service will also be determined.

The buildings and services may require further surveys during construction if complaints are made or if the vibration criteria have been exceeded.

A post-construction condition survey of the same buildings and services will be conducted a week after the conclusion of works in the area that have the potential to generate vibration at levels approaching or exceeding the limits in Condition 33. A report will then be prepared.

Where a post-construction building condition survey confirms that the building has deteriorated as the result of construction the damage will be rectified.

Project #: 2665

Client: Auckland Transport Revision: 06, Date: 3 June 2016

11CONTINGENCY MEASURES

This section describes contingency measures to be implemented in the event that the noise and/or vibration limits specified in an approved SSCNVMP are exceeded. The Communication and Consultation Manager will liaise with affected parties (refer Section 9 of this CNV DWP) throughout the following processes.

11.1 MANAGEMENT PROCESS

Where any construction activity is predicted and/or measured to exceed the construction noise or vibration limits the following process will be applied:

 Check that the BPO and all relevant management measures have been implemented (refer Section 7 of this CNV DWP and Section 5 of the relevant SSCNVMP)

 Communication and Consultation Manager to consult with all affected parties, as defined in Section 9, to understand their particular sensitivities, including times, activities and locations. The Communication and Consultation Manager or their representative shall be available 24/7.

 Carry out noise and/or vibration monitoring of the construction activity to verify the extent of any adverse effects (refer Section 10 of this CNV DWP)

 Implement further mitigation and/or contingency measures to avoid significant adverse effects as agreed with the affected party (refer Sections 11.2 to 11.5 of this CNV DWP)

11.2 NOISE

If noise monitoring demonstrates non-compliance with the noise limits identified in the approved SSCNVMP, the following procedures shall be implemented:

 Undertake additional noise measurements, as necessary, to determine the extent of the exceedance.

 Discuss additional mitigation options with the Project Manager as soon as the extent of the exceedance has been determined. This may include immediately stopping works.

 Undertake noise measurements once recommended mitigation measures have been implemented to confirm that the mitigation has been effective and the noise limits are now being met.

 Preparation of a report recording the findings of the survey and detailing additional mitigation or management options. Copies of the report will be provided to AT, the Project Manager, Communication and Consultation Manager and Sustainability Manager.

11.3 VIBRATION – BUILDING DAMAGE

If vibration monitoring demonstrates non-compliance with the vibration building damage limits identified in the approved SSCNVMP, the construction activity responsible for the exceedance shall cease as soon as safe and practicable to do so. A detailed building condition survey shall then be undertaken by a suitably qualified engineer. The survey shall include, but not be limited to, the following:

 Determination of building specific vibration damage risk thresholds;

 Existing condition of building including existing levels of any aesthetic damage or structural damage;

Connectus Construction Noise and Vibration Delivery Work Plan

Project #: 2665 Doc. No. CRL-PAT-ENV-CON-PLN-000903

Client: Auckland Transport

Revision: 06, Date: 3 June 2016

 Recording (including photographs) the major features of the buildings including location, type, construction, age and present condition, including defects (cracks);

 Identifying foundation type of the building;

 Preparation of a report recording the findings of the survey. A copy of the report will be given to the building owner and another copy will be kept at the site office.

If damage has not occurred then that activity can continue provided the measured vibration level is not exceeded further.

If minor damage has occurred, such as cosmetic cracks, further mitigation will be applied if practicable. However, the activity can continue provided the measured vibration level is not exceeded further.

If moderate or severe damage has occurred and the best practicable option has been implemented, it will be necessary to stop work, if safe to do so, and investigate alternative construction methods.

All damage due to construction activities will be repaired within a reasonable timeframe after the construction phase ceases.

11.4 VIBRATION – AMENITY

If a complaint is made by a building occupant with regard to vibration levels, vibration monitoring will be conducted in the relevant rooms of the building. If the limits are found to be exceeded then a SSCVMP will be prepared for that receiver.

11.5 DISCUSSION

Where noise and vibration impacts are unavoidable and significant after all reasonable and practicable measures are implemented, alternative mitigation measures, such as temporary relocation or the provision of architectural treatments, will be considered.

Temporary relocation involves the relocation of affected occupants for short periods of time where all reasonable and practicable measures and respite periods are implemented and further mitigation is impractical.

Architectural treatments may also be sought and involve the provision of alternative ventilation where windows are to remain closed in order to further mitigate noise effects.

Connectus Construction Noise and Vibration Delivery Work Plan

Project #: 2665

Client: Auckland Transport

APPENDIX A: ISCA REQUIREMENTS

Doc. No. CRL-PAT-ENV-CON-PLN-000903

Revision: 06, Date: 3 June 2016

Connectus Construction Noise and Vibration Delivery Work Plan

Project #: 2665

Client: Auckland Transport

Doc. No. CRL-PAT-ENV-CON-PLN-000903

Revision: 06, Date: 3 June 2016

AT and Connectus are seeking an Infrastructure Sustainability Council of Australia (ISCA) Infrastructure Sustainability (IS) Rating for the CRL Enabling Works. This appendix details IS requirements that are different, or additional to the Project’s Consent Requirements. It is essential that these requirements are met to achieve the Project’s sustainability goals, however they are not consent requirements to be certified by Auckland Council. These IS rating requirements are included as an appendix because they are not yet fixed. They remain subject to change as the Project’s sustainability program evolves.

Applicable ISCA requirements that relate to this CNV DWP are listed below along with their associated target Levels.

ISCA Category Target Level Construction Requirements How we aim to achieve this

DIS 2 - Noise 2

DIS 3Vibration 2

Predictions for noise have been developed for construction of the project AND

Measures to mitigate noise during construction have been identified and implemented AND

Monitoring of noise is undertaken at appropriate intervals and in response to complaints during construction AND

Modelling and monitoring demonstrates no recurring or major divergence from the noise management process as outlined in the project consents and this CNVMP

Stretch Target (to achieve level three) Modelling and Monitoring demonstrates no divergence from the noise management process.

Dilapidation surveys have been undertaken for properties potentially impacted by vibration AND

Predictions for vibration have been developed for construction of the project AND

Measure to mitigate vibration during construction have been identified and implemented. AND

Compliance with the CNV DWP

Completed in the AEE

Changes dealt with in Section 4 and Site Specific Plans

Section 7

Section 10

Modelling – Section 5, 6, and 8 and Appendix B and C

Monitoring – Section 9

Section 11 – Noise management process we should not diverge from.

Section 10.4

Appendix B + Largely done in the AEE

Section 7

Project

Client: Auckland Transport

Monitoring of vibration is undertaken at appropriate intervals and in response to complaints during construction. AND

Sensitive facilities that may be impacted by vibration have been identified and baseline vibration studies have been carried out AND

Modelling and monitoring demonstrates no exceedances of vibration goals for structural damage to buildings and structures AND

No physical damage has been caused to any building or structures by vibration caused by construction.

Revision: 06, Date: 3 June 2016

How we aim to achieve this

Section 10

Baseline vibration studies in the AEE

Sections 10 and 11

Section 11

APPENDIX B: Schedule of Identified At-Risk Receivers, Structures and Services (Vibration)

Connectus

Project #: 2665

Client: Auckland Transport

Advanced Utilities Relocation

Revision: 06, Date: 3 June 2016

This is a schedule to the Construction Noise and Vibration DWP for the CRL Contract 2 Enabling Works project. This schedule provides specific assessment of the following activity:

Swanson St East Stormwater WorksANZ Connection

Wyndham St Stormwater Works

Kingston-Wyndham St Stormwater Works

Combined Service Trench – Western Footpath including crossings

Wyndham St Chorus Works

Connectus

Project #: 2665

Client: Auckland Transport Revision: 06, Date: 3 June 2016

Piling

This is a schedule to the Construction Noise and Vibration DWP for the CRL Contract 2 Enabling Works project. This schedule provides specific assessment of the following activity:

Pile Caps and Traffic Decks

Project #: 2665

At-risk Services (e.g. roads, underground pipes etc.)

Reference

Excavation

This is a schedule to the Construction Noise and Vibration DWP for the CRL Contract 2 Enabling Works project. This schedule provides specific assessment of the following activity:

Connectus Construction Noise and Vibration Delivery Work Plan

Project #: 2665 Doc. No. CRL-PAT-ENV-CON-PLN-000903

Client: Auckland Transport

At-risk Services (e.g. roads, underground pipes etc.)

Revision: 06, Date: 3 June 2016

Trench Backfilling and Reinstatement

This is a schedule to the Construction Noise and Vibration DWP for the CRL Contract 2 Enabling Works project. This schedule provides specific assessment of the following activity:

Trench Backfill

Road surface reinstatement

– 7pm Mon – Sat Swanson to Wolfe 05 Mar 2018 03 Jul 2018 Wolfe to North end 16 Aug 2018 22 Nov 2018

South end to Swanson 13 Apr 2018 09 Jul 2018 7am – 7pm Mon – Sat Swanson to Wolfe 04 Jul 2018 11 Sep 2018

Wolfe to North end 23 Nov 2018 25 Jan 2019 Vibration

Project #: 2665

Client: Auckland Transport Revision: 06, Date: 3 June 2016

APPENDIX C: Schedule of Identified At-Risk Receivers (Noise)

Connectus Construction Noise and Vibration Delivery Work Plan

Project #: 2665 Doc. No. CRL-PAT-ENV-CON-PLN-000903

Client: Auckland Transport

Advanced Utilities Works

Revision: 06, Date: 3 June 2016

This is a schedule to the Construction Noise and Vibration DWP for the CRL Contract 2 Enabling Works project This schedule provides specific assessment of the following activity: Construction

Swanson St West Stormwater Works

Swanson St East

Stormwater Works

Swanson St East Stormwater WorksANZ Connection

September 15 days

Wyndham St Stormwater Works Early May 25 days

Kingston-Wyndham St Stormwater Works Early May 35 days

Combined Service Trench – Western Footpath including crossings

Wyndham St Chorus Works

Project #: 2665

Mitigation

Mitigation is required to meet the noise criteria at the nearest sensitive receivers. The general noise control measures outlined in Section 7 of the CNV DWP will be implemented. Where additional mitigation is required to meet the noise criteria it is detailed in the Advanced Utilities Works SSCNVMP or the SSCNVMPs for specific receivers.

Intersection Piling and Road Deck Construction

This is a schedule to the Construction Noise and Vibration DWP for the CRL Contract 2 Enabling Works project. This schedule provides specific assessment of the following activity:

The activity involves service location and exposure, installation of CFA piles, jet grouting, excavation and support of exposed services, binding and fixing of reinforcement, placement of concrete and installation of permanent wearing course (night) The activity also includes demolition of the stormwater pumping station and stormwater line Equipment Noise Levels

Project #: 2665

No. CRL-PAT-ENV-CON-PLN-000903

Client: Auckland Transport Revision: 06, Date: 3 June 2016

Mitigation

Mitigation is required to meet the noise criteria at the nearest sensitive receivers. The general noise control measures outlined in Section 7 of the CNV DWP will be implemented. Where additional mitigation is required to meet the noise criteria it is detailed in the Customs Street Intersection SSCNVMP.

Project #: 2665

Albert Street Piling and Capping Beam

This is a schedule to the Construction Noise and Vibration DWP for the CRL Contract 2 Enabling Works project This schedule provides specific assessment of the following activity:

&

The activity involves service location and exposure, installation of CFA piles and installation of pile caps.

Mitigation

Mitigation is required to meet the noise criteria at the nearest sensitive receivers. The general noise control measures outlined in Section 7 of the CNV DWP will be implemented. Where additional mitigation is required to meet the noise criteria it is detailed in the Albert Street Piling SSCNVMP or the SSCNVMPs for specific receivers.

Trench Excavation

This is a schedule to the Construction Noise and Vibration DWP for the CRL Contract 2 Enabling Works project This schedule provides specific assessment of the following activity:

Remove existing road surface

Excavation 1st Layer

South end to Ch550 23 Mar 2017 28 Mar 2017 7am – 7pm Mon - Sat

Ch550 to Swanson 23 Mar 2017 27 Mar 2017 Swanson to Wolfe 26 May 2017 30 May 2017

Wolfe to North end 03 Jul 2017 05 Jul 2017

Ch550 to Swanson 28 Mar 2017 19 Apr 2017

Swanson to Wolfe 31 May 2017 28 Jun 2017

South end to Ch550 29 Mar 2017 04 Apr 2017 7am – 7pm Mon - Sat

Wolfe to North end 06 Jul 2017 02 Aug 2017

Project #: 2665 Doc. No. CRL-PAT-ENV-CON-PLN-000903

Client: Auckland Transport

Construction Activity Area of works

Excavation 2nd to Bottom

Revision: 06, Date: 3 June 2016

South end to Ch550 21 Apr 2017 01 Sep 2017

Ch550 to Swanson 20 Apr 2017 07 Sep 2017

Swanson to Wolfe 29 Jun 2017 05 Dec 2017

Wolfe to North end 03 Aug 2017 23 Mar 2018

7am – 7pm Mon - Sat

The activity involves removal of the existing road surface, trench excavation and installation of ground support struts. Two steel temporary construction platforms will be installed at CH350 and CH480 These platforms will be used to provide spoil loading points for the material being excavated from the trench. The platforms will be of a sufficient size to support 10-tonne trucks accessing from Albert St, and an 80T crane operating with a clamshell bucket.

Equipment Noise Levels

Project #: 2665

No. CRL-PAT-ENV-CON-PLN-000903 Client: Auckland Transport Revision: 06, Date: 3 June 2016

Mitigation

Mitigation is required to meet the noise criteria at the nearest sensitive receivers. The general noise control measures outlined in Section 7 of the CNV DWP will be implemented. Where additional mitigation is required to meet the noise criteria it is detailed in the Excavation SSCNVMP or the SSCNVMPs for specific receivers.

Connectus Construction Noise and Vibration Delivery Work Plan

Project #: 2665 Doc. No. CRL-PAT-ENV-CON-PLN-000903

Client: Auckland Transport

Waterproofing and Tunnel Construction

Revision: 06, Date: 3 June 2016

This is a schedule to the Construction Noise and Vibration DWP for the CRL Contract 2 Enabling Works project.This schedule provides specific assessment of the following activity:

South end to Swanson 28 Aug 2017 26 Jan 2018

Swanson to Wolfe 01 Dec 2017 05 Jun 2018

Wolfe to North end 26 Mar 2018 15 Aug 2018

The activity includes construction of the tunnel which will be a rolling process with multiple work faces progressing together. The works will start at the south end of Albert Street, once the excavation plant is clear of the base of the tunnel and all the TW have been installed and signed off. The tunnel construction will be broken into 12m lengths and into the following tasks:

 Base drainage and blinding

 Waterproofing

 Base foundation construction

 Wall construction – side walls and dividing walls poured at the same time.

 Roof construction

 Roof waterproofing

Equipment Noise Levels

Mitigation

Mitigation is required to meet the noise criteria at the nearest sensitive receivers. The general noise control measures outlined in Section 7 of the CNV DWP will be implemented. Where additional mitigation is required to meet the noise criteria it is detailed in the Tunnel Construction SSCNVMP or the SSCNVMPs for specific receivers.

Trench Backfilling

This is a schedule to the Construction Noise and Vibration DWP for the CRL Contract 2 Enabling Works project This schedule provides specific assessment of the following activity:

Project #: 2665

Client: Auckland Transport

Construction Activity Area of works

Trench Backfill

Swanson to Wolfe 05 Mar 2018 03 Jul 2018

Road surface reinstatement

06, Date: 3 June 2016

South end to Swanson 27 Nov 2017 12 Apr 2018 7am – 7pm Mon - Sat

Wolfe to North end 16 Aug 2018 22 Nov 2018

Swanson to Wolfe 04 Jul 2018 11 Sep 2018

South end to Swanson 13 Apr 2018 09 Jul 2018 7am – 7pm Mon - Sat

Wolfe to North end 23 Nov 2018 25 Jan 2019

The activity involves backfilling the trench once the tunnel construction works have progressed sufficiently to provide a suitable length for the filling operation to be carried out (approximately 50m). The backfilling will then continue to follow the tunnel construction as it progresses. Delivery of the granular backfill material into the trench will be primarily by a conveyor system mounted at ground level (at the top of the trench). Within the trench the fill material will be spread using small to medium sized excavators and bobcat loaders, and compacted in layers using a combination of roller compactors and plate compactors. The two steel temporary construction platforms installed at CH350 and CH480 will be used to provide loading points for the construction works within the trench.

Mitigation

Mitigation is required to meet the noise criteria at the nearest sensitive receivers. The general noise control measures outlined in Section 7 of the CNV DWP will be implemented. Where additional mitigation is required to meet the noise criteria it is detailed in the Trench backfilling and Reinstatement SSCNVMP or the SSCNVMPs for specific receivers.

APPENDIX D: RECORD OF COMMUNICATION / CONSULTATION WITH NOTABLE AND SENSITIVE RECEIVERS

Project #: 2665

Client: Auckland Transport Revision: 06, Date: 3 June 2016

Address of Sensitive Receiver Representatives

41 Albert Street (Albert Street Apartments)

12-26 Swanson Street (NZ trade Centre)

Interview on site with building manager, Body Corporate Chair, and a further resident representative 9/11/15

1. Some residents are at home during the daytime period so will be affected by day time construction activities.

2. All apartments are naturally ventilated so windows overlooking Albert Street are open in most apartments during the day.

3. Ground floor is commercial and currently vacant but the owner is looking to sell it.

4. Concern about the cumulative effects of noise from the Project and noise from construction on 2 adjacent sites.

5. They would like a SSCNVMP for the building

Interview on site with building owner representatives, and representatives of all major tenants 11/11/15 1. Raised general concerns about noise intrusion into the office areas that would prevent them from working.

2. Raised general concerns about the vibration effects of piling

With the mitigation and management measures detailed in Section 7 of the CNV DWP and Sections 5.1 and 5.2 of the 41 Albert Street SSCNVMP implemented, works may be audible but will not be at a level that disturbs residents.

Vibration may be felt but will not be at a level that damages the building.

Further discussions have taken place with the affected residents during week commencing 14th March 2016 to discuss the proposed resolution.

With the mitigation and management measures detailed in Section 7 of the CNV DWP and Sections 5.1 and 5.2 of the SSCNVMPs (Albert Street Piling, Excavation, Tunnel Construction and Trench Backfilling) implemented, works may be audible but will not be at a level that interferes with business operations. Vibration may be felt but will not be at a level that damages the building.

This resolution was discussed at the meeting on 11th November 2015.

Connectus

Project #: 2665

Client: Auckland Transport Revision: 06, Date: 3 June 2016

Address of Sensitive Receiver Representatives

22 Customs Street DFS Galleria

Interview on site with building owner representative, Australasian Operations Manager, and New Zealand Deputy Store Manager 11/11/15 1. Raised general concerns about noise impact on the business

2. Raised concerns about vibration effects on the building

3. Building owner wants on-site noise and vibration monitoring throughout construction.

With the mitigation and management measures detailed in Section 7 of the CNV DWP and Sections 5.1 and 5.2 of the SSCNVMPs (Customs Street Intersection, Albert Street Piling, Excavation, Tunnel Construction and Trench Backfilling) implemented, works may be audible but will not be at a level that interferes with business operations.

Secondary glazing has been specified for some rooms.

Vibration may be felt but will not be at a level that damages the building.

Section 7 of the SSCNVMPs (Customs Street Intersection, Albert Street Piling, Excavation, Tunnel Construction and Trench Backfilling) provides details of the proposed noise and vibration monitoring.

This resolution has been discussed with the building owner and manager via emails during January and March 2016.

8a Albert Street CityMed Doctors Interview with building owners and representatives 11/11/15 1. Activities taking place on site are highly sensitive to vibration, and these include surgery and blood collection. Other activities include: radiology, pharmacy, and physiotherapy.

63 Albert Street (AMI Insurance) Interview with business operator on site 16/11/15 1. Raised general concerns about noise and vibration impact on their operation.

During further consultation with the City Med doctors representatives and a site visit it was established that most of the noise and vibration sensitive activities take place in the centre of the building or towards the back so will not be affected by the construction works.

With the mitigation and management measures detailed in Section 7 of the CNV DWP and Sections 5.1 and 5.2 of the SSCNVMPs (Customs Street Intersection,

Project #: 2665

Client: Auckland Transport Revision: 06, Date: 3 June 2016

Address of Sensitive Receiver Representatives

22/26 Albert Street

Expresso Coffee School

22/26 Albert Street

United Travel

Follow up discussion with business owner and general inspection of façade, ventilation etc

Follow up discussion with business owner and general inspection of façade, ventilation etc

17/11/15 1. Noise concerns as door is open all day

2. Noise impact on outside seating area

17/11/15 1. Concerned about noise impacting their operations. They speak to customers all day in person or on the telephone so need reasonably quiet working environment

2. Noise break-in through the door could be an issue as there is a 1-2cm gap around the perimeter of the door. The landlord is proposing to install some seals to rectify this.

Albert Street Piling, Excavation, Tunnel Construction and Trench Backfilling) implemented, works may be audible but will not be at a level that interferes with business operations. Vibration may be felt but will not be at a level that damages the building.

This resolution was discussed at the meeting on 16th November 2015.

With the barriers installed as specified in Section 7 of the CNV DWP and Section 4 of this SSCNVMP noise from all construction activities will comply with the Project Noise Standards at this receiver.

With the barriers installed as specified in Section 7 of the CNV DWP and Section 4 of this SSCNVMP noise from all construction activities will comply with the Project Noise Standards at this receiver.

With door seals fitted, as currently proposed by the landlord, construction noise will not be at a level that impacts the business operations of this receiver.

22/26 Albert Street

Thai Massage

Follow up discussion with business owner and general inspection of façade, ventilation etc

20/11/15 1. Needs a quiet environment for clients

2. Treatment rooms are adjacent to the façade overlooking Swanson Street

3. Also concerned about vibration

60 Albert Street

City Gardens Apartments

Interview on site with Body Corporate Committee

17/11/15 1. Not too concerned about noise and vibration as they are set back from the street

2. Happy that piling is CFA rather than

With the barriers installed as specified in Section 7 of the CNV DWP and Section 4 of this SSCNVMP noise from all construction activities will comply with the Project Noise Standards at this receiver.

Vibration is unlikely to be at perceptible levels in this receiver.

Noise and vibration are unlikely to be at perceptible levels in any area of this building from the Albert Street Piling works.

Project #: 2665

Client: Auckland Transport Revision: 06, Date: 3 June 2016

Address of Sensitive

23-29 Albert Street

ANZ Tower Vero

23-29 Albert Street

ANZ Tower

Chapman Tripp

17d Albert Street

7 Mart

8a Albert Street

Sebel Hotel

Interview on site with operations manager 19/11/15 1. No concerns over predicted noise and vibration levels

Interview on site with operations manager 20/11/15 1. No concerns over predicted noise and vibration levels

Noise and vibration due to the Project are unlikely to be at perceptible levels in the area of this building occupied by Vero. This was discussed during the meeting on 19th November 2015.

Noise and vibration due to the Project are unlikely to be at perceptible levels in the area of this building occupied by Chapman Tripp. This was discussed during the meeting on 20th November 2015.

Interview on site with business owner

20/11/15 1. Doors always open during summer

2. Not too concerned about noise and vibration

Interview on site with operations manager 24/11/15 1. General concerns about noise and vibration and impact on their business. Office space and café on 1st floor, swimming pool on 5th floor, floors 5 to 29 are hotel rooms

General inspection of some of the hotel rooms, office area and café with operations and maintenance managers

30/11/15 1. Hotel rooms – with balcony doors closed the rooms are quiet. Very little traffic noise break-in. All rooms are mechanically ventilated

2. Pool area – glass door with no seals opens onto the balcony overlooking Albert Street. Traffic noise levels are masked by mechanical services noise and noise from patrons using the pool.

3. Conference room on levels 5 does not overlook Albert Street

4. Café – doors open onto balcony where there is a seating area. 1-2cm gap around the perimeter of the doors when

No comments to incorporate as owner has no noise or vibration concerns.

With the mitigation and management measures detailed in Section 7 of the CNV DWP and Sections 5.1 and 5.2 of the SSCNVMPs (Customs Street Intersection, Albert Street Piling, Excavation, Tunnel Construction and Trench Backfilling) implemented, works will be audible but will generally not be at a level that interferes with business operations or disturbs guests. In the SSCNVMPs recommendations have been made to provide acoustic seals to the reception and café doors facing onto Albert Street

Further consultation will take place with the affected parties before works begin to determine if the works can be scheduled for a time that least impacts them.

Project #: 2665

Client: Auckland Transport Revision: 06, Date: 3 June 2016

Address of Sensitive Receiver Representatives

17a Albert Street iDarts

9-11 Albert Street Food Alley

3 Albert Street Bakery

closed. Doors sometimes left open depending on the weather. Music is played reasonably loudly and masks traffic noise.

5. Office areas – Single glazing. No door or window openings in the façade.

6. Reception – glass doors with 1-2cm gap around the perimeter. Ventilation noise quite loud and music playing. Traffic noise is barely audible.

Interview on site with Body Corporate Committee 1/12/15 1. General concerns about noise and vibration impacts

Interview on site with business owner 30/11/15 1. Operates between 3pm and 2am

2. Not concerned about noise and vibration. The bar area is towards the back of the building. They play music quite loud so construction noise is likely to be inaudible.

Interview on site with operations manager 1/12/15 1. General concerns about noise and vibration.

2. Doors are automated but they open frequently and are sometimes left permanently open during the summer months.

3. There is a reasonable amount of background noise from cooking and other operations within the space. Traffic noise is barely audible.

4. 16 residential apartments on floors 6 and 7 which are all naturally ventilated.

Interview with owner 4/12/15 1. Not concerned about noise and vibration

2. Doors open all day so already exposed to high levels of traffic noise.

Vibration may be felt but will not be at a level that damages the building.

Section 7 of the SSCNVMPs (Customs Street Intersection, Albert Street Piling, Excavation, Tunnel Construction and Trench Backfilling) provides details of the proposed noise and vibration monitoring.

No comments to incorporate as owner has no noise or vibration concerns.

With the mitigation and management measures detailed in Section 7 of the CNV DWP and Sections 5.1 and 5.2 of the SSCNVMPs (Customs Street Intersection, Albert Street Piling, Excavation, Tunnel Construction and Trench Backfilling) implemented, works will be audible but will generally not be at a level that interferes with business operations or disturbs the residents. Vibration may be felt but will not be at a level that damages the building. This resolution was discussed during the meeting on 1st December 2015.

No comments to incorporate as owner has no noise or vibration concerns.

Project #: 2665

Client: Auckland Transport Revision: 06, Date: 3 June 2016

Address of Sensitive Receiver Representatives

17 Albert Street

 Kerry Harding, Chair of the Body Corporate, Floor 5

 Stephen Ingram, Floor 8

 Inna Benitez, Floor 4

 Catherine Ellman, Floor 11

 Chris Laycock, Building Manager

 Ashley Bottles, Level 7

 Victoria Toon, level 12

 Phil Bussant, from Quay West who operates car parks to level 17

 David Haines, from Haines Planning

23 – 29 Albert Street ANZ Tower

Interview at CRL project offices with the building manager, body corporate chair and tenants representatives

Particularly heavy vehicles pulling away from the traffic lights.

3. Radio playing loudly so it can be heard over the traffic noise.

7/12/15 1. Mostly offices with a few residential apartments

2. Particular concerns regarding vibration.

3. Already experiencing rattling windows and building vibration from nearby construction works.

4. Building is mechanically ventilated during business hours

With the mitigation and management measures detailed in Section 7 of the CNV DWP and Sections 5.1 and 5.2 of the SSCNVMPs (Customs Street Intersection, Albert Street Piling, Excavation, Tunnel Construction and Trench Backfilling) implemented, works will be audible but will not be at a level that interferes with business operations or disturbs the residents.

In the SSCNVMPs recommendations have been made to inspect the window seals and replace as necessary. Secondary glazing is also recommended for the Language School classrooms overlooking Albert Street. The recommendations will help mitigate airborne noise ingress and should also help prevent the windows from rattling.

Vibration may be felt but will not be at a level that damages the building.

Interview on site with the facilities lead, senior support services representative and senior work place manager

8/12/15

1. They occupy the building from the ground floor to floor 31

2. They work from 8am to 6pm with some late functions and VIP events

3. Mostly concerned about noise impact on the ground floor Pavilion Meeting Suites, the café area and the ground floor reception

4. Noise break in through the revolving

With the mitigation and management measures detailed in Section 7 of the CNV DWP and Sections 5.1 and 5.2 of the SSCNVMPs (Customs Street Intersection, Albert Street Piling, Excavation, Tunnel Construction and Trench Backfilling) implemented, works may be audible in the lower levels of the building but will not be at a level that interferes with business

Project #: 2665

Client: Auckland Transport Revision: 06, Date: 3 June 2016

Address of Sensitive Receiver Representatives

doors a concern

5. If they have an important meeting they would like to inform Connectus so that noisy works can be scheduled outside of this time.

operations. The only exception is the ground floor reception / café area where high noise levels may be experienced when works are directly outside of the building.

Vibration may be felt but will not be at a level that damages the building.

Further consultation has taken place with this receiver on 4th March 2016 to discuss the potential noise levels in the ground floor area. The café operator took part in the discussion. Noise measurements were taken simultaneously on both sides of the revolving doors. Noise break-in through the doors was found to be less than predicted. Both ANZ and the café owner are willing to accept noise levels of up to 65 dB LAeq for short durations providing that they are well informed of the works.

The café owner would appreciate it if noisy works immediately outside of the building stopped during the lunch time period as that is the busiest time for them. ANZ will inform Connectus of any special functions that they may have in the ground floor area and would appreciate it if noisy works could be avoided at these times.

They occupy the ground floor of the AMP building

Operating from 7am until 6pm

External playground adjacent to Customs Street

4. Babies area is closest to the works and they sleep for longer so impact on them

Vibration from construction activities associated with the Customs Street intersection works will not be at a level that interferes with business operations and or disturbs the children.

Noise from construction activities associated

Project #: 2665

Client: Auckland Transport

Address of Sensitive Receiver Representatives

is the main concern

5. Buildings mechanically ventilated but door is open for access to the playground area all day.

6. Although exposed to high traffic noise levels they don’t find it intrusive

5 Albert Street NZ Gifts

Interview on site with the business owner

74 Albert Street Barclay Suites

Interview on site with the general manager

10/12/15 1. Building is mechanically ventilated. They have automatic doors which are not kept open. Background music playing at a low volume

2. Operational hours are 9.30am to 9.30pm

3. General noise concerns

4. Concerned about vibration rattling items on the shelves

11/12/15 1. Hotel is mechanically ventilated. Front doors leading into the reception are good and reasonably loud background music is playing so traffic noise is not audible.

2. Rooms have sliding doors opening onto balconies and windows are single glazed laminate.

3. Not too concerned about noise and vibration as long as communication is good

Revision: 06, Date: 3 June 2016

with the Customs Street intersection works will generally be lower than the current traffic noise levels experienced by the child care facility. In sleeping areas the noise level due to construction activities will be 35 dB LAeq or below.

This resolution was discussed during the meeting on 8th December 2015.

With the mitigation and management measures detailed in Section 7 of the CNV DWP and Sections 5.1 and 5.2 of the SSCNVMPs (Customs Street Intersection, Albert Street Piling, Excavation, Tunnel Construction and Trench Backfilling) implemented, works may be audible but will generally not be at a level that interferes with business operations.

Vibration may be felt but will not be at a level that damages the building.

This resolution was discussed during the meeting on 10th December 2015.

Section 9.1 of the Project CNV DWP details the communication procedures that will be implemented on the Project.

Project #: 2665

Client: Auckland Transport Revision: 06, Date: 3 June 2016

Address

of Sensitive Receiver Representatives

65-71 Albert Street

District Court

38 Wyndham Street

Hollywood Bakery

Interview on site with the Auckland Programme Manager 16/12/15

1. The courts generally operate from 8am to 5pm

2. Courts on level 2 and above. They use electronic transcription and the microphones are extremely sensitive to noise and vibration so low background noise levels are required.

3. All windows are single glazed and the building is mechanically ventilated

4. Layout drawings for each floor were provided so we can see the location of all noise sensitive areas

Interview on site with the manager 16/12/15 1. Operating hours are 6.30am -4.30pm

2. Front doors are permanently open onto Wyndham Street. Traffic noise quite loud especially when vehicles pull away from the traffic lights. Low level background noise music

3. They have some external seating on Albert Street.

4. The bakery sits mostly below the level of Albert Street.

Secondary glazing is recommended for the second and third floor court rooms on the Albert Street façade.

Scheduling of construction activities is of particular importance at this location to avoid adverse noise and vibration impacts.

With the mitigation and management measures detailed in Section 7 of the CNV DWP and Sections 5.1 and 5.2 of the District Court SSCNVMP implemented, works may be audible but will not be at a level that interferes with the courts operations.

Discussions with the District Court are ongoing with regard to the mitigation and management measures.

No comments to incorporate as no noise or vibration concerns were raised.

8a Albert Street

CityMed Doctors

Interview on site with doctors representatives 22/12/15 1. Operating hours are from 8am to 5.30pm Monday to Friday

2. Doctor consultation rooms run along the Mills Lane façade of the building. The façade is fully glazed. All rooms are mechanically ventilated.

3. The 2 operating theatres are at the

The noise and vibration sensive areas of the building are generally located in the centre of the building or at the back away from the Albert Street façade.

With the mitigation and management measures detailed in Section 7 of the CNV DWP and Sections 5.1 and 5.2 of the

Project #: 2665

Client: Auckland Transport Revision: 06, Date: 3 June 2016

Address of Sensitive Receiver Representatives

back of the building near the car park ramp, furthest from Albert Street. They perform minor operations under local anaesthetic.

4. The radiology area is on the Mills Lane façade in the corner furthest from Albert Street.

5. The radiology operators have no concerns over noise or vibration

6. ECG and audiometry sit within the building away from the façades. These are the activities that are most sensitive to noise and vibration.

7. To get to the reception you currently go through the front doors then through another set of doors. However, they are renovating in the New Year and the reception area will be moved closer to the Albert Street façade and will be accessed through the front doors.

8. The front doors are glass sliding doors with a large gap at the bottom and no seals.

SSCNVMPs (Customs Street Intersection, Albert Street Piling, Excavation, Tunnel Construction and Trench Backfilling) implemented, works may be audible but will generally not be at a level that interferes with business operations.

Vibration may be felt but will not be at a level that damages the building.

This resolution was discussed during the meeting on 22nd December 2015.

Project

Client: Auckland Transport Revision: 06, Date: 3 June 2016

APPENDIX E: RECORD OF CLG & INDEPENDENT PEER REVIEW COMMENTS

Connectus

Project #: 2665

No. CRL-PAT-ENV-CON-PLN-000903

Client: Auckland Transport Revision: 06, Date: 3 June 2016

CLG COMMENTS

1 13/10/2015 1730-1900 CLG Meeting Tim Coffey The plan doesn't identify how noise complaints made to Auckland Council will be directed to the project and managed in a timely fashion. The concern is that many people will follow a traditional course of action and phone AC with noise complaints instead of contacting the CRL project directly.

2 13/10/2015 1730-1900 CLG Meeting Tim Coffey Will people contacting the CRL project to make complaints be issued with a 'complaint reference number' or similar to make it easy to complain again about the same issue?

3 13/10/2015 1730-1900 CLG Meeting Tim Coffey Traffic noise - There is concern that traffic going over bumps or causing temporary pavement components to move will generate noise. This should be addressed in the plan.

The CRL Project team work closely with Auckland Council and will provide the CRL contact details to the AC Noise Complaints Team.

Section 9 of the CNV DWP will have the following text added: "Connectus will ensure Auckland Council's Noise Complaints Team are provided with contact details for the CRL complaints team to ensure CRL related noise complaints received by AC are passed on quickly"

This opportunity is being investigated by Connectus. It is more relevant to the Communications plan than the CNV DWP.

No change is proposed to the CNV DWP

The CNV DWP will be modified to address this issue. A new subsection (Section 7.8) will be added to the plan. Mitigation measures will include securing loose manhole covers and traffic decks to avoid movement where practicable, or to reduce noise/movement via the inclusion of rubber pads where practicable. In addition, efforts will be made to avoid bumps in the road surface which could lead to tyre noise.

Connectus

Project #: 2665 Doc. No. CRL-PAT-ENV-CON-PLN-000903

Client: Auckland Transport

INDEPENDENT PEER REVIEW – CNV DWP

Peer Reviewer: Dr Stephen Chiles

Date: 10th November 2015 and 3rd March 20162

Dr Stephen Chiles

10/11/15 Independent Peer Review 1

Dr Stephen Chiles

10/11/15 Independent Peer Review 1.1

The high level split of content between the CEMP, CNV DWP and other DWPs is not clear in the introduction (e.g. communications and complaints procedures are detailed in other parts of the CEMP)

Add a brief summary to section 1 setting out those aspects of construction noise and vibration management which are detailed outside the CNV DWP.

Revision: 06, Date: 3 June 2016

Dr Stephen Chiles

10/11/15 Independent Peer Review 3

The CNV DWP is subject to prescriptive review and approval conditions. The process needs to be recorded in the CNV DWP or at least referenced to the relevant place in the CEMP.

The comment that the CNVMP is a living document is in accordance with good practice, but this is constrained in this instance by the prescriptive conditions. The timeframes needed for review and approval prevent timely updating of some information so alternative methods may be required.

Expand the second paragraph of 1.1 to make explicit reference to the processes set out in conditions 22 and 23 (which may limit the extent this can effectively be a living document).

If it is intended that schedules in the Appendix will be updated without review/approval that should be explicitly stated.

Section 1.1 expanded to include the additional information

Details or explanation of induction forms and ‘relevant schedules’ should be added.

Details added as requested and an example of an induction form has been included in Appendix F

2 A second peer review was undertaken on 03/03/16 in conjunction with the SSCVMP’s and also due the inclusion of utilities and an updated traffic deck methodology.

Summary added to Section 1

Project #: 2665 Doc. No. CRL-PAT-ENV-CON-PLN-000903

Client: Auckland Transport

Dr Stephen Chiles

10/11/15 Independent Peer Review 5.1

Dr Stephen Chiles

10/11/15 Independent Peer Review 5.1

The second paragraph references updated information being included in Appendix C, but that provides data in a different format.

Technically it is not necessary for updates to equipment data to be reviewed or approved. However, this might be required under the conditions.

Mains power should be used as good practice noise and vibration management. Generators are included in the equipment list but this contradicts section 7.4 which lists use of mains power as a mitigation measure in section.

The process should either be for Table 5 to be updated directly or a duplicate table should be set out in an appendix. Ideally Table 5 would be updated. Any required reviews/approvals associated with updating the information should be set out in the CNV DWP.

Revision: 06, Date: 3 June 2016

Dr Stephen Chiles

10/11/15 Independent Peer Review 5.1

Condition 36.3(d) requires identification of construction areas

Clarify to what extent mains power will be used, and if so remove generators from the equipment list.

Appendix C has been update to include Tables in the same format as Table 5

Dr Stephen Chiles

10/11/15 Independent Peer Review 5.1.1

Table 7 indicates that all construction activities would be likely to exceed the noise limits without mitigation.

It should be clarified that most works phases set out in tables 5 and 6 will occur throughout the construction area.

Add note that all activities are likely to require mitigation.

Clarification has been added.

Dr Stephen Chiles

10/11/15 Independent Peer Review 5.2 Reference is made to Table 8 being updated but no details are provided as to how this will occur.

As for updates to Table 5, there should be a process set out for updates to Table 8. Reference should be made to Appendix B.

Clarification has been added.

Note added

Further information has been added as requested.

Project #: 2665

Client: Auckland Transport

Dr Stephen Chiles

10/11/15 Independent Peer Review 5.2

Dr Stephen Chiles

10/11/15 Independent Peer Review 6.1

Dr Stephen Chiles 10/11/15 Independent Peer Review 6.2

Dr Stephen Chiles

10/11/15 Independent Peer Review 7

Dr Stephen Chiles 10/11/15 Independent Peer Review 7.2

Dr Stephen Chiles

Dr Stephen Chiles

10/11/15 Independent Peer Review 7.4

10/11/15 Independent Peer Review 7.7

Scheduling of activities can be a key tool for managing construction noise and vibration effects. This might include respite periods during the day and avoidance of activity on certain days, as well as limiting night works. Given that many neighbours are commercial, in some specific locations night works might be preferable.

Vibration sources should be related to works phases (as has occurred for noise sources).

Add building addresses to Figure 8

Add building addresses to Figure 9

Add a subsection on how scheduling may be used to mitigate noise and vibration effects.

Vibration

Doc. No. CRL-PAT-ENV-CON-PLN-000903

Revision: 06, Date: 3 June 2016

Table containing vibration sources now relates to work phases

Addresses added

Addresses added

Subsection added

Added information as requested

Add requirement for training to include familiarisation with noise and vibration limits and resulting effects on neighbours.

Broadband reversing alarms should be used for all mobile equipment.

Show where noise barriers will be located on plans and specify their construction details.

Provide details of relocatable noise barriers and enclosures that will be kept on site.

Added information as requested

Figure showing noise barriers has been added. Further details regarding barrier construction and enclosures has been added

Connectus

Project #: 2665

Client: Auckland Transport

Dr Stephen Chiles

10/11/15 Independent Peer Review 8

Dr Stephen Chiles

10/11/15 Independent Peer Review 8

Dr Stephen Chiles

10/11/15 Independent Peer Review 10

The conditions allow for combined SSCVMPs and SSCNMPs as SSCNVMPs. For specific locations identified in both 8.1 and 8.2 it would be preferable to use combined SSCNVMPs.

Statements are made about how equipment data will be updated following measurements but no timeframes are set.

Add a list of all SSCNVMPs/SSCNMPs/SSCVMPs.

Add a subsection noting that some site specific plans may cover both noise and vibration.

Vibration

Doc. No. CRL-PAT-ENV-CON-PLN-000903

Revision: 06, Date: 3 June 2016

List added

Dr Stephen Chiles

10/11/15 Independent Peer Review 10

Subsection added

Dr Stephen Chiles 10/11/15 Independent Peer Review 10

Noise and vibration monitoring locations are only loosely defined as including all receivers, although routine monitoring is at unspecified representative positions. It would be better to mark specific monitoring locations to be used on a plan. Additional locations could be used in response to specific complaints or activities, but the use of standardised positions will assist in monitoring through the duration of the works.

It should be specified that all equipment (predicted to exceed a certain noise level) will be measured off site, prior to operation on site where practicable, and when first operating on site if this is not practicable. The equipment tables/schedules should be updated within one week of the measurements.

Add figures showing standard noise and vibration monitoring positions that will be used (not simply all receivers).

Information added as requested

Add details of noise and vibration monitoring equipment and where it will be stored during the works.

Figures added

Equipment details added

Connectus

Noise and Vibration Delivery Work Plan

Project #: 2665 Doc. No. CRL-PAT-ENV-CON-PLN-000903

Client: Auckland Transport

Dr Stephen Chiles

10/11/15 Independent Peer Review 10.1

Dr Stephen Chiles 10/11/15 Independent Peer Review Appendices B & C

Dr Stephen Chiles

Dr Stephen Chiles

Consideration could be given to use of continuous noise monitoring stations with remote access and alarms.

03/03/16 Independent Peer Review 2.2 Any road cutting outside the hours of 7am to 7pm would breach condition 36.3(b)

03/03/16 Independent Peer Review 7.7 Most receivers are multi-storey buildings which will not receive screening from a 1.8m high barrier.

Dr Stephen Chiles 03/03/16 Independent Peer Review 8.3

Dr Stephen Chiles 03/03/16 Independent Peer Review 10.1

Dr Stephen Chiles

03/03/16 Independent Peer Review Appendices B & C

Dr Stephen Chiles 03/03/16 Independent Peer Review Appendices B & C

Monitoring positions should be representative of floors of buildings that are not screened by the perimeter barrier.

Due to the quantity of information, the linear presentation is hard to navigate.

Tables in Appendices B & C are duplicated in SSCNVMPs. It is likely to lead to inconsistencies if information is maintained in two separate documents.

Add details on timing of activities.

Investigate higher perimeter barriers, in addition to localised screening of specific activities.

Revision: 06, Date: 3 June 2016

Continuous noise and vibration monitoring stations will be set up at Stamford Plaza

Timing details added

Road cutting will not occur outside of these hours

2m high noise barriers have been considered and they provide less than 1 dB of additional attenuation at the receivers. Connectus have indicated that going higher than this will be problematic due to space restrictions. Taller barriers will require greater structural support and there is no space for this.

Added

Add a table of document reference numbers, versions and dates for all SSCNVMPs

Specify the height for the monitoring positions in Figure 11 to be at first floor level.

Condense the tables of predictions and ‘at risk’ receivers into matrices of results to allow quicker reference to key information.

Use cross references between the CNV DWP and SSCNVMPs to avoid duplicate tables appearing in both.

Added

Amended as requested

Cross references added

Connectus

Project #: 2665

Client: Auckland Transport

Dr Stephen Chiles

03/03/16 Independent Peer Review Appendix D

In several cases the “resolution” to concerns raised by stakeholders is that no action is required as noise and vibration levels will be reasonable. It is not clear whether this outcome has been explained to the stakeholders who raised the concerns.

INDEPENDENT PEER REVIEW – SSCNVMP

Peer Reviewer: Dr Stephen Chiles

Date: 3rd March 2016 Commenter

Dr Stephen Chiles

Dr Stephen Chiles

Dr Stephen Chiles

Dr Stephen Chiles

03/03/16 Independent Peer Review all/multiple SSCNVMPs

Glossary

03/03/16 Independent Peer Review all/multiple SSCNVMPs

Section 1

03/03/16 Independent Peer Review all/multiple SSCNVMPs

Section 2

03/03/16 Independent Peer Review all/multiple SSCNVMPs

Sections 3 and 4

Conditions 38.4 and 38.5(c) set out how specific vibration criteria should be determined.

Tables in SSCNVMPs are duplicated in Appendices B & C of the CNV DWP. It is likely to lead to inconsistencies if information is maintained in two separate documents.

Record when the resolution was discussed with the stakeholder.

Revision: 06, Date: 3 June 2016

Dates of these discussions added

Deleted as requested

Delete glossary and cross reference the CNV DWP.

Add the document reference number, version and date for the CNV DWP

Add assessment of vibration affected buildings and specific criteria adopted.

Use cross references between the CNV DWP and SSCNVMPs to avoid duplicate tables appearing in both.

Added as requested

Added

Dr Stephen Chiles

03/03/16 Independent Peer Review all/multiple SSCNVMPs

Section 5

Before detailing mitigation, it is necessary to set out the specific effects that are being mitigated. In some cases this is partly addressed

Add details of specific effects on receivers that might result from exceedances of the noise and vibration criteria.

Cross references added

Effects added

Project #: 2665

Client: Auckland Transport

Dr Stephen Chiles

Dr Stephen Chiles

03/03/16 Independent Peer Review all/multiple SSCNVMPs

Section 5

03/03/16 Independent Peer Review all/multiple SSCNVMPs

Section 5.1

when discussing internal levels but it does not always explicitly set out residual noise and vibration effects.

Various mitigation measures are listed as “if possible”. The SSCNVMPs should detail specific mitigation that will be implemented and not general good practice measures that are already in the CNV DWP.

Major sound sources in many of the SSCNVMPs are mobile machinery, which can often be attenuated with additional exhaust silencers.

Update the mitigation tables to list specific measures that will be implemented.

No. CRL-PAT-ENV-CON-PLN-000903

Revision: 06, Date: 3 June 2016

Tables updated

Dr Stephen Chiles

Dr Stephen Chiles

03/03/16 Independent Peer Review all/multiple SSCNVMPs

Section 5.1

03/03/16 Independent Peer Review all/multiple SSCNVMPs

Section 5.1

Dr Stephen Chiles

Dr Stephen Chiles

03/03/16 Independent Peer Review all/multiple SSCNVMPs

Section 5.1

03/03/16 Independent Peer Review all/multiple SSCNVMPs

Section 6

There are recommendations relating to treating buildings but no actions.

The same treatment for the same buildings is recommended in several SSCNVMPs. There needs to be a single place where the treatment for each building is documented.

Determine whether it is practical to fit additional exhaust silencers to equipment and, if so, add this as an action to the list of noise control measures.

Connectus considers that it is not practical to fit additional exhaust silencers to equipment as it causes other problems such as decreasing engine efficiency, increase fuel burn and void warranties. Connectus will require that all machinery brought to site has exhaust silencers fitted that are free from rust holes and function as intended.

Actions added

There should be actions set out for all building treatment required.

Only include details of treatment for each building in one SSCNVMP and then cross reference from other SSCNVMPs where relevant.

Specify that for secondary glazing the existing window must be sealed before installing the secondary window.

Cross references added

Added

The table of stakeholder consultation duplicates information in Appendix D of the CNV DWP and in other SSCNVMPs.

Remove the table of stakeholder communication from the SSCNVMPs and replaced with cross references to the relevant lines of Appendix D of the CNV DWP, together with a brief summary of actions arising.

Table removed and cross references added

Connectus Construction Noise and Vibration Delivery Work Plan

Project #: 2665 Doc. No. CRL-PAT-ENV-CON-PLN-000903

Client: Auckland Transport Revision: 06, Date: 3 June 2016

Dr Stephen Chiles

Dr Stephen Chiles

03/03/16 Independent Peer Review all/multiple SSCNVMPs

Section 7.1

03/03/16 Independent Peer Review Customs Street Intersection

Section 5.2

Dr Stephen Chiles 03/03/16 Independent Peer Review Customs Street Intersection

Section 5.2

Dr Stephen Chiles

03/03/16 Independent Peer Review Customs Street Intersection

Section 6

Dr Stephen Chiles 03/03/16 Independent Peer Review Customs Street Intersection

Section 6

Dr Stephen Chiles

Dr Stephen Chiles

03/03/16 Independent Peer Review Trench Backfilling

Section 5.2

03/03/16 Independent Peer Review 41 Albert Street

Section 5.2

Dr Stephen Chiles

03/03/16 Independent Peer Review 41 Albert Street

Section 5.3

Added

Specify that monitoring is at first floor level (unless a specific location at a higher level is specified.

Control of compactor vibration should include consideration of the frequency as well as mass.

Cross reference building condition surveys required by the CNV DWP.

Added

Cross reference added

An issue raised with the 8a Albert Street CityMed Doctors front door and reception relocation has not been addressed.

Equating construction noise to existing traffic noise at the Kindercare facility at 29 Albert Street might understate the potential effects due to the different character of the sound. Potential mitigation, if required, might involve scheduling.

Improved sound insulation of the reception area should be investigated with CityMed Doctors.

Add more detail on the effects of construction noise on children sleeping.

This was discussed with CityMed. We have offered to review their design once they have it in place and advise on sound insulation improvements where necessary.

Added

Ventilation meeting G4 of the Building Code is not sufficient to prevent residents having to open windows.

Added

Control of compactor vibration should include consideration of the frequency as well as mass.

Specify that ventilation systems installed will with the requirements in the Transport Agency State highway guide to acoustic treatment of buildings

Add reference to CNV DWP relating to building condition surveys, and the process for these being repeated

Added

Added

Connectus Construction Noise and Vibration Delivery Work Plan

Project #: 2665 Doc. No. CRL-PAT-ENV-CON-PLN-000903

Client: Auckland Transport Revision: 06, Date: 3 June 2016

APPENDIX F: CONSTRUCTION

NOISE AND VIBRATION

INDUCTION

Project #: 2665

Client: Auckland Transport Revision: 06, Date: 3 June 2016

Project: CRL Contract 2 Enabling Works

1. There are numerous residential and commercial neighbours in close proximity to the works, where noise and vibration limits apply. To ensure limits are achieved, all staff are responsible for good noise and vibration management.

2. When arriving at work, please drive slowly on site and keep revs to a minimum. Keep stereos off and do not slam doors.

3. No shouting or swearing on site. Either walk over and talk to somebody or use a radio/phone.

4. Be careful with tools and equipment. Place them down and do not drop them.

5. Do not drag materials on the ground. Place them down when you arrive at the work area.

6. Equipment and vehicles should not be left running when not in use.

7. When loading trucks try not to drop material from a height. Load softer material at the bottom.

8. Noise enclosures should always have all doors/hatches closed when the equipment is in use.

9. All equipment is to be well maintained.

10. No work shall be conducted outside the hours of 0700h to 2200h without specific approval (contact the site manager) and all staff involved in the task have read and signed the Construction Noise Management Schedule for that task.

11. All staff will read and sign the Construction Noise Management Schedule for a particular task.

12. If you see anything/anyone making unnecessary noise or vibration then stop it/them. If the source cannot be stopped then report it to the site manager.

13. It is essential that good relationships are maintained with the local community. Any queries from members of the public should be responded to politely and referred to the site manager or Communication and Consultation Manager. Staff shall assist the public to make contact with this person. Staff shall not enter into debate or argue with members of the public.

Connectus Construction Noise and Vibration Delivery Work Plan

Project #: 2665 Doc. No. CRL-PAT-ENV-CON-PLN-000903

Client: Auckland Transport Revision: 06, Date: 3 June 2016

APPENDIX G: NOISE MONITORING

TEMPLATE

Connectus Construction Noise and Vibration Delivery Work Plan

Project #: 2665

Client: Auckland Transport

Date: _ _ / _ _ / 20 _ _

Equipment set used Model:

Date of last calibration: _ _ / _ _ / 20 _ _

MEASUREMENT DESCRIPTION

Operator:

Doc. No. CRL-PAT-ENV-CON-PLN-000903

Revision: 06, Date: 3 June 2016

Serial No. :

 Machinery / operational noise (Not at a receiver)  Noise at a receiver location

Construction location:

Distance to machinery / operation: (m)

Receiver address:

Distance to receiver: (m)

Describe noise sources (e.g. roller, piling, generator) and the location relative to the receiver:

Describe any other unrelated noises (e.g. traffic noise) and the location relative to the receiver:

Describe any reflecting surfaces (e.g. walls, buildings) and the location relative to the receiver:

Describe any other factors such as barriers/terrain, or relative elevations of sources and receivers:

It is useful to attach an aerial photograph where possible. If this is done include the following details:

 Location of site activity

 Relative heights

 Measurement Locations

 Location of reflecting surfaces

 Locations of unrelated sources  Intervening barriers/terrain

It is also useful to include photographs or diagrams of the measurement location, the major sound sources, and any other details you believe may be useful.

 Additional documents attached

Connectus

Project #: 2665

Construction Noise and Vibration Delivery Work Plan

Doc. No. CRL-PAT-ENV-CON-PLN-000903

Client: Auckland Transport Revision: 06, Date: 3 June 2016

MEASUREMENT DETAILS

Location reference Time Measurement duration, t LAeq(t) L

Adjustment for façade reflection Equipment operating on site

Sounds heard at measurement location (note dominant and LAFmax sounds) Compliance achieved (y/n) Construction equipment Other sources

 Constant noise

Cyclic noise

Constant noise

Cyclic noise

Constant noise

Cyclic noise

 Constant noise

Cyclic noise

NOTES

Please include any issues that were encountered during the measurements or other factors that may influence the validity of this measurement.

FURTHER ACTIONS

Update the noise schedules in Appendix C of this CNV DWP to reflect the measured noise levels.

Update the SSCNVMPs that are applicable to the specific construction activities that were taking place during the monitoring with the measurement results

Connectus Construction Noise and Vibration Delivery Work Plan

Project #: 2665 Doc. No. CRL-PAT-ENV-CON-PLN-000903

Client: Auckland Transport Revision: 06, Date: 3 June 2016

APPENDIX H: VIBRATION MONITORING TEMPLATE

Connectus Construction Noise and Vibration Delivery Work Plan

Project #: 2665

Client: Auckland Transport

Date: _ _ / _ _ / 20 _ _

Equipment set used

Date of last calibration: _ _ / _ _ / 20 _ _

MEASUREMENT DESCRIPTION

Model:

Operator:

Doc. No. CRL-PAT-ENV-CON-PLN-000903

Revision: 06, Date: 3 June 2016

Serial No. :

 Machinery / operational vibration (Not at a receiver)  Vibration at a receiver location

Construction location:

Distance to machinery / operation: (m)

Receiver address:

Horizontal Distance to receiver: (m)

Floor Number:

Describe vibration sources (e.g. roller, piling, concrete breaking) and the location relative to the receiver:

Describe any other unrelated vibration (e.g. traffic, other construction, footfall, lifts) and the location relative to the receiver:

Describe geometry of foundation (e.g. walls, buildings) and the location relative to the receiver:

Describe the coupling method (geophone to structure)

Describe approximate composition of ground between source and receiver (e.g. basalt, sandstone)

Describe structural resonance observed, if any. For example swaying at higher floors – note the approximate frequency and magnitude.

It is useful to attach an aerial photograph where possible. If this is done include the following details:

 Location of site activity

 Relative heights

 Measurement Locations

 Locations of unrelated sources

 Location of intervening geometry

 Changes in composition of terrain

It is also useful to include photographs or diagrams of the measurement location including building plans where available, the major vibration sources, and any other details you believe may be useful. It is important to note whether the measurement was at the foundation, or in the plane of the highest floor.

 Additional documents attached

Connectus Construction Noise and Vibration Delivery Work Plan

Project #: 2665

Doc. No. CRL-PAT-ENV-CON-PLN-000903

Client: Auckland Transport Revision: 06, Date: 3 June 2016

MEASUREMENT DETAILS

Location reference Time Measurement

Connectus

Project #: 2665

Construction Noise and Vibration Delivery Work Plan

Doc. No. CRL-PAT-ENV-CON-PLN-000903

Client: Auckland Transport Revision: 06, Date: 3 June 2016

NOTES

Please include any issues that were encountered during the measurements or other factors that may influence the validity of this measurement.

FURTHER ACTIONS

Update the vibration schedules in Appendix B of this CNV DWP to reflect the measured vibration levels.

Project #: 2665

Client: Auckland Transport Revision: 06, Date: 3 June 2016

APPENDIX I: SITE SPECIFIC CONSTRUCTION NOISE AND VIBRATION MANAGEMENT PLANS

This page intentionally left blank.

DOCUMENT INFORMATION

Organisation: Connectus

Document Title: Site Specific Construction Noise and Vibration Management Plan: Customs Street Intersection

Fulcrum Document Number: CRL-PAT-ENV-CON-PLN-001182

Document based on MMS No: n/a

Client: Auckland Transport

Project: CRL Enabling Works: Contract Two

Location: Auckland CBD

Project No:

REVISION HISTORY

This document remains the property of Connectus. Its contents are confidential and shall not be reproduced, destroyed or given away without the express, written permission of Connects. The electronic version of this document in MMS Database on designated server(s) is the Master Copy and is a controlled document. Unless specifically noted thereon, other copies of this document are uncontrolled.

This page intentionally left blank

Connectus Site Specific Construction Noise and Vibration Management Plan

Project #: 2665

Client: Auckland Transport

This page intentionally left blank

Doc. No. CRL-PAT-ENV-CON-PLN-001182

Revision: 04, Date: 3 June 2016

Connectus

Project #: 2665

Client: Auckland Transport

Site Specific Construction Noise and Vibration Management Plan

Doc. No. CRL-PAT-ENV-CON-PLN-001182

Revision: 04, Date: 3 June 2016

1 INTRODUCTION

This plan is a Site Specific Construction Noise and Vibration Management Plan (SSCNVMP) and forms part of the Construction Noise and Vibration Delivery Work Plan (CNV DWP) for the CRL Contract 2 Enabling Works (the ‘Project’). This SSCVNMP provides specific assessment of construction noise and vibration effects from the Customs Street Intersection component of the Project The SSCNVMP should be read in conjunction with the CNV DWP, Document Ref: CRL-PATENV-CON-PLN-000903 Revision 6 dated 3rd June 2016, as it contains further details of the Project, noise criteria, monitoring, general mitigation measures and other information. Details of the construction methodology are contained in the Project Construction Environmental Management Plan (CEMP).

Acoustic terms are defined in the Acoustic Glossary in the CNV DWP.

1.1 OBJECTIVE

The objective of this SSCNVMP is to detail the best practicable option to avoid, remedy or mitigate adverse effects on sensitive receivers resulting from construction noise and vibration that does not comply with the Project Standards defined in Section 1.2 of the CNV DWP.

1.2 SITE PLAN

Figures 1 and 2 show the location and stages of construction for the Customs Street Intersection traffic deck.

Figure 1 Site Plan

Customs Street Intersection Work Area

Project #: 2665 Doc. No. CRL-PAT-ENV-CON-PLN-001182

Client: Auckland Transport

2 Concrete deck construction stages

Revision: 04, Date: 3 June 2016

2 RECEIVERS

Receivers where noise levels due to Customs Street Intersection works have the potential to exceed project noise standards are listed in Table 1, along with building use. The building at 11-27 Customs Street is going to be demolished with tenants beginning to move out early this year so it has not been considered in this SSCNVMP.

Table 1 Affected receivers

* This is the Monday to Saturday 07:00 to 22:00 noise criteria. The majority of works will be carried out during this period. For residential receivers the noise limit is reduced to 65 dB LAeq & 80 dB LAFmax on Sundays and Public Holidays between 07:00 to 22:00 and to 60 dB LAeq & 75 dB LAFmax at all other times.

Figure

Connectus

Project #: 2665

Client: Auckland Transport

Revision: 04, Date: 3 June 2016

Designation Condition 38.4 allows for the Project vibration limits to be relaxed by a SSCVMP but only for a building, structure or infrastructure that has been assessed by a suitably qualified and experienced structural engineer and where it has been deemed to be capable of withstanding higher vibration levels without sustaining building or structural damage, and where appropriate vibration and building condition monitoring regimes are in place. Based on the building condition surveys and the initial assessments by the structural engineer the vibration limits will not be reduced.

3 ACTIVITIES

Construction activities along with proposed start and end dates, and hours of operation, are shown in Table 2 below. Table 2 Construction activities

Project #: 2665

Client: Auckland Transport

Construction Activity Area of works Activity Start Date Activity End Date Hours be located in various positions within the intersection dependent on traffic control requirements.

Details of construction equipment that is likely to be used for each of the above activities and the associated noise levels can be found in Appendix C of the CNV DWP. Details of the equipment that is expected to generate high levels of vibration can be found in Appendix B of the CNV DWP. The equipment levels detailed in Appendices B and C of the CNV DWP are placeholders. All equipment will be measured operating independently and then actual equipment noise/ vibration levels and model numbers will be recorded and updated within the table.

4 PREDICTED NOISE AND VIBRATION LEVELS

4.1 NOISE

The predicted worst case noise levels from each activity received at the most exposed part of the receiver are shown below in Table 3. These levels correspond to the construction equipment being located at its nearest position to the receiver and assume there is no physical mitigation between the noise source and the façade of the building. The predicted noise levels take into account whether works are being carried out at ground level or below the ground.

Table 3 Predicted noise levels (no mitigation)

4.2 VIBRATION

Vibration regression curves and emission radii for the vibration sources can be found in Section 5.2 of the CNV DWP. The emission radius is the distance at which vibration levels from an activity/equipment item are expected to exceed the Project Vibration Standards for a particular type of building.

A receiver is classified as ‘high risk’ if it is located within the emission radius for an activity, and ‘medium risk’ if it is close to the contour with possible intermittent exceedance. Buildings which are classed as high or medium risk of damage as a result of the Customs Street Intersection works are shown in Table 4.

Table 4 Vibration risk class

We note that the emission radii are based on generic data based on conservatively sized equipment and ground conditions. Vibration levels from actual equipment at the site may differ and are likely to be

Connectus

Project #: 2665

Client: Auckland Transport

Site Specific Construction Noise and Vibration Management Plan

Doc. No. CRL-PAT-ENV-CON-PLN-001182

Revision: 04, Date: 3 June 2016

less than assumed for the emission radius. Monitoring will be carried out at the earliest opportunity on site to determine the adjustments for ground conditions and actual equipment items.

5 MITIGATION

5.1 NOISE

Mitigation is required to meet the noise criteria at the nearest sensitive receivers. In addition to the general noise and vibration control measures outlined in Section 7 of the CNV DWP, the following specific noise mitigation measures should be implemented (Table 5):

Table 5 Specific Noise Mitigation Measures

Equipment/process

Excavators, bobcats, loaders

Crane

Concrete Cutting

Vacuum Excavation

Dewatering system

Grease tracks regularly

Use straps rather than chains unless a risk assessment deems the use of straps unsafe.

Use a mobile acoustic enclosure where practicable. Use of a mobile acoustic enclosure may not be practicable when:

 Cutting within 300mm of a kerb or canopy structure

 Saw cuts need to be made around an obstruction that protrudes above surface level, such as a light pole or street sign.

 The road saw needs to be manoeuvred around in a tight space that would be obstructed by the acoustic enclosure

When use of a mobile acoustic enclosure is not practicable works will be planned so that saw cutting directly in front of a receiver is completed within a total of two working days The building owner will be contacted prior to this occurring to see if the works can be scheduled for a time that least impacts them

Locate the vehicle so the pump is facing away from the closest noise sensitive properties

Erect 1.8m noise barriers around the dewatering system.

Fully enclose the pumps and generator that will operate through the night to achieve a noise level of 75 dB(A) at 5m or locate the pumps and generator more than 100m from the closest façade of 8 Albert Street during the night time period.

In addition to these measures, noise barriers/hoardings between the work site and the receiver will be used to reduce noise levels. These will be least 1.8m high and have a mass equal to or greater than 10 kg/m2. Panels will be abutted or overlapped to provide a continuous screen with no gaps. It may be acceptable to use a proprietary barrier with a reduced mass providing the required attenuation can be achieved. The contractor will seek approval from the Project Acoustic Specialist before using a proprietary barrier product on site. Indicative location of noise barriers is shown in green in Figure 3 below.

Project #: 2665

Client: Auckland Transport

Doc. No. CRL-PAT-ENV-CON-PLN-001182

Revision: 04, Date: 3 June 2016

5.1.1 Internal noise levels

With the above mitigation and management measures implemented and barriers installed, the noise levels at the most exposed façade of 22 Customs Street and 3 Albert Street will still exceed the noise criteria by more than 5 dB during some Project construction activities.

The building at 3 Albert Street comprises a ground floor podium with a tower on top. The tower is occupied by offices. It has a glass façade and all offices are mechanically ventilated. The attenuation provided by the façade is predicted to be 35 dB Rw. Noise levels in the tower section of the building will remain below 45 dB LAeq for the majority of the works. Façade sound insulation improvements are therefore not considered necessary at this receiver.

The bakery / cafe on the ground floor of 3 Albert Street is the most exposed area of the building. The doors are kept wide open all day and so they are already exposed to high levels of traffic noise, particularly heavy vehicles pulling away from the traffic lights. The radio plays loudly so it can be heard over the traffic noise. To reduce construction noise levels further it would be necessary to fit acoustic seals around the door and to keep it shut during construction activities, except to allow for the timely entry and egress of customers. The business owner indicated that he is not concerned about construction noise and is likely to keep the doors open as usual. Façade sound insulation improvements are therefore not currently being considered for this receiver.

The building at 22 Customs Street houses a number of retail outlets. It is a masonry building with single glazed timber sash windows. All areas are mechanically ventilated. Music is played in the retail areas masking external noise ingress. Construction noise is unlikely to be an issue in the retail areas as it will be masked by the background music and general operational noise. Traffic noise was clearly audible in the meeting room overlooking Albert Street. The window in this room does not seal adequately when shut and noise break in around the window frame was noticeable. Details of the building treatment that is required for this receiver is detailed in the Albert Street Piling SSCNVMP Document Ref: CRL-PAT-ENV-CON-PLN-001189. With the building treatment applied noise levels in the office/ meeting rooms will meet the AS/NZS 2107:2000 criterion of 45 dB LAeq

Connectus Site Specific Construction Noise and Vibration Management Plan

Project #: 2665

Client: Auckland Transport

5.2 VIBRATION

Doc. No. CRL-PAT-ENV-CON-PLN-001182

Revision: 04, Date: 3 June 2016

In addition to the general noise and vibration control measures outlined in Section 7 of the Project CNV DWP the following specific vibration mitigation measures (Table 6) should be implemented if the initial on site vibration monitoring demonstrates that the building damage vibration limits will be exceeded:

Table 6 Specific Vibration Mitigation Measures

Equipment/process Vibration control measures

Excavator mounted rock breaker Use lower vibration generating equipment such as a hand held jack hammer when within 20m of 22 Customs Street.

Roller compactor (17t) Use a smaller compactor, less than 10t, when within 20m of 22 Customs Street. The frequency of the compactor should also be considered. It may be acceptable to use a bigger compactor depending on the frequency it is being operated at.

A detailed pre-construction building condition survey will be undertaken at all of the identified buildings in accordance with Section 10.4 of the CNV DWP.

6 COMMUNICATION AND CONSULTATION

Section 9.1 of the Project CNV DWP details the communication procedures for the Project. The complaints process is detailed in Section 9.2 of the CNV DWP.

Consultation with the stakeholders identified in this SSCNVMP took place from mid-November to midDecember 2015 Topics that were covered included:

 Sequencing of construction activities

 Likely equipment and associated noise and vibration levels

 Proposed mitigation and management measures

 Construction of their buildings

 Operational hours of their businesses

 Operating environment that is required by the businesses

Further details of the meetings and comments made by the stakeholders are provided in Appendix D of the CNV DWP.

Project #: 2665

Client: Auckland Transport

7 MONITORING

Revision: 04, Date: 3 June 2016

Section 10 of the Project CNV DWP provides details of the methodology for noise and vibration monitoring.

7.1 NOISE MONITORING

Noise monitoring will be carried out 1m from the façade of the Bakery at 3 Albert Street when Project works commence on Customs Deck 1 to confirm noise levels are as predicted. Further monitoring will be carried out at this location when piling, jet grouting and rock breaking commence on Customs Deck 1.

Noise monitoring will be carried out at 22 Customs Street when Project works begin on Customs Deck 3 to confirm that noise levels both externally, 1m from the façade, and internally, in the most exposed retail area and the level 2 meeting/ training room overlooking Albert Street, are as predicted. Further monitoring will be carried out at these locations when piling, jet grouting and rock breaking begin at Customs Deck 3.

7.2 VIBRATION MONITORING

Vibration monitoring will be carried out at 22 Customs Street, for 2 weeks initially, when Project works commence on Customs Deck 3. Depending on the levels of vibration measured it may be necessary to extend the monitoring period to cover the full duration of the Customs Deck 3 works (approximately 2 months). A location at basement or ground floor level close to the Customs Street intersection will be used but the exact location of the monitoring equipment within the building is yet to be finalised as the tenant will soon be carrying out a refit of the building. Discussions with the building owner are ongoing and the final location will be influenced by the timing of the monitoring. They have asked to be contacted a month before the monitoring takes place to finalise a location.

8 STAFF

Before working on these activities all staff will receive training in accordance with Section 7.2 of the CNV DWP and will read and comply with this SSCNVMP.

This page intentionally left blank.

DOCUMENT INFORMATION

Organisation: Connectus

Document Title: Site Specific Construction Noise Management Plan

Fulcrum Document Number: CRL-PAT-ENV-CON-PLN-001263

Document based on MMS No: n/a

Client: Auckland Transport

Project: CRL Enabling Works: Contract Two

Location: Auckland CBD Project No: 2665

REVISION HISTORY

This document remains the property of Connectus. Its contents are confidential and shall not be reproduced, destroyed or given away without the express, written permission of Connects. The electronic version of this document in MMS Database on designated server(s) is the Master Copy and is a controlled document. Unless specifically noted thereon, other copies of this document are uncontrolled.

This page intentionally left blank

Connectus Construction Noise and Vibration Delivery Work Plan

Project #: 2665

Client: Auckland Transport

This page intentionally left blank

Doc. No. CRL-PAT-ENV-CON-PLN-000903

Revision: 03, Date: 3rd June 2016

Connectus Construction Noise and Vibration Delivery Work Plan

Project #: 2665

Client: Auckland Transport

1 INTRODUCTION

Doc. No. CRL-PAT-ENV-CON-PLN-000903

Revision: 03, Date: 3rd June 2016

This is a Site Specific Construction Noise and Vibration Management Plan (SSCNVMP) and forms part of the Construction Noise and Vibration Delivery Work Plan (CNV DWP) for the CRL Contract 2 Enabling Works (the ‘Project’). This SSCNVMP provides specific assessment of construction noise and vibration from advanced utilities works within the project designation This SSCNVMP should be read in conjunction with the CNV DWP (Document Ref: CRL-PAT-ENV-CON-PLN-000903 Revision 6 dated 3rd June 2016) as it contains further details of the project, noise criteria, monitoring, general mitigation measures and other information. Details of the construction methodology are contained in the Project Construction Environmental Management Plan (CEMP).

Acoustic terms are defined in the Acoustic Glossary in the CNV DWP.

1.1 OBJECTIVE

The objective of this SSCNVMP is to detail the best practicable option to avoid, remedy or mitigate adverse effects on sensitive receivers resulting from construction noise and vibration that does not comply with the Project Standards defined in Section 1.2 of the CNV DWP.

1.2

SITE PLAN

The locations of the advanced utilities works are shown on Figure 1. Figure 1 Site Plan

2 RECEIVERS

Receivers where noise levels due to the advanced utility works within the project designation have the potential to exceed project noise or vibration standards are listed below, along with building use.

Table 1 Affected receivers

* This is the Monday to Saturday 07:00 to 22:00 noise criteria. The majority of works will be carried out during this period. For residential receivers the noise limit is reduced to 65 dB LAeq & 80 dB LAFmax on Sundays and Public Holidays between 07:00 to 22:00 and to 60 dB LAeq & 75 dB LAFmax at all other times.

Designation Condition 38.4 allows for the Project vibration limits to be relaxed by a SSCVMP but only for a building, structure or infrastructure that has been assessed by a suitably qualified and experienced structural engineer and where it has been deemed to be capable of withstanding higher vibration levels without sustaining building or structural damage, and where appropriate vibration and building condition monitoring regimes are in place. Based on the building condition surveys and the initial assessments by the structural engineer the vibration limits will not be reduced.

2.1.1 Bluestone Wall

In addition to the buildings along Albert Street there is a wall with heritage status, refered to as the Bluestone Wall. The wall is located towards the southern end of the Project area opposite the District Court.

The vibration criteria of 3mm/s from DIN 4550:3 is applicable to heritage structures. DIN 4150:3 states that “Experience has shown that if these values are complied with, damage that reduces the serviceability of the building will not occur”. It also states that exceeding the values does not necessarily lead to damage. Table 2 details categories of damage and a description of the damage that could be expected in that category. Providing the vibration criteria of 3mm/s is achieved at the Bluestone Wall the Category of Damage will be 2 or below.

Table 2 Categories of Damage

1 Very Slight

2 Slight

Fine cracks easily treated during normal redecoration. Perhaps isolated slight fracture in building. Cracks in exterior visible upon close inspection.

Cracks easily filled. Redecoration probably required. Several slight fractures inside building. Exterior cracks visible, some repainting may be required for weathertightness. Doors and windows may stick slightly.

3 Moderate Cracks may require cutting out and patching. Recurrent cracks can be masked by suitable Serviceability Damage

Project #: 2665

Client: Auckland Transport

Revision: 03, Date: 3rd June 2016

linings. Brick pointing and possible replacement of a small amount of exterior brickwork may be required. Doors and windows sticking.

3 ACTIVITIES

Construction activities along with proposed start and end dates, and hours or operation, are shown in Table 3 below.

Table 3 Construction activities

St Intersection Stormwater Works

Swanson St West Stormwater Works

Swanson St East Early Stormwater Works Early August 20 days

Swanson St East Stormwater WorksANZ Connection Early September 15 days

Wyndham St Stormwater Works Early May 25 days

Kingston-Wyndham St Stormwater Works Early May 35 days

Combined Service Trench – Western Footpath including crossings

Wyndham St Chorus Works Early June 15 days Vector Electricity from Swanson Street West across Albert Street down Swanson Street East

7am – 7pm Mon - Sat

Details of construction equipment that is likely to be used for each of the above activities and the associated noise levels can be found in Appendix C of the CNV DWP. Details of the equipment that is expected to generate high levels of vibration can be found in Appendix B of the CNV DWP. The equipment levels detailed in Appendices B and C of the CNV DWP are placeholders. All equipment will be measured operating independently and then actual equipment noise/ vibration levels and model numbers will be recorded and updated within the table.

4 PREDICTED NOISE AND VIBRATION LEVELS

4.1 NOISE

The predicted worst case noise levels from each activity received at the most exposed part of each receiver are shown below in Table 4. These levels correspond to the construction equipment being located at its nearest position to the receiver and assume there is no physical mitigation between the noise source and the façade of the building.

Table 4 Predicted noise levels (no mitigation)

4.2 VIBRATION

Buildings which are classed as high or medium risk of damage as a result of the Advanced Utilities works are shown in Table 5 A receiver is classified as ‘high risk’ if it is located within the emission radius for an activity, and ‘medium risk’ if it is close to the contour with possible intermittent exceedance.

It can be seen from the table above that a number of the buildings may experience vibration that exceeds the building damage vibration limits during use of the excavator mounted concrete breaker Vibration monitoring will be carried out when works begin on site to determine actual equipment vibration levels and the attenuation provided by the local ground conditions.

Project #: 2665

Client: Auckland Transport

5 MITIGATION

5.1 NOISE

Revision: 03, Date: 3rd June 2016

Mitigation is required to meet the noise criteria at the nearest sensitive receivers. In addition to the general noise and vibration control measures outlined in Section 7 of the CNV DWP, the following specific noise mitigation measures should be implemented (Table 6):

Table 6 Specific Noise Mitigation Measures

Equipment/process Noise control measures

Excavators, bobcats, loaders Grease tracks regularly

Concrete cutting Use a mobile acoustic enclosure where practicable. Use of a mobile acoustic enclosure may not be practicable when:

 Cutting within 300mm of a kerb or canopy structure

 Saw cuts need to be made around an obstruction that protrudes above surface level, such as a light pole or street sign.

 The road saw needs to be manoeuvred around in a tight space that would be obstructed by the acoustic enclosure

When use of a mobile acoustic enclosure is not practicable works will be planned so that saw cutting directly in front of a receiver / receivers is completed within a total of two working days. The building owner(s) will be contacted prior to this occurring to see if the works can be scheduled for a time that least impacts them.

Vacuum Excavation

Locate the vehicle so the pump is facing away from the closest noise sensitive properties

In addition to these measures, noise barriers/hoardings between the work site and the receiver will be used to reduce noise levels. These will be least 1.8m high and have a mass equal to or greater than 10 kg/m2. Panels will be abutted or overlapped to provide a continuous screen with no gaps. It may be acceptable to use a proprietary barrier with a reduced mass, such as Flex Shield providing the required attenuation can be achieved. The contractor will seek approval from the Project Acoustic Specialist before using a proprietary barrier product on site.

5.1.1 Internal noise levels

With the above mitigation and management measures implemented and barriers installed, the noise levels at the most exposed façade of a number of properties will still exceed the noise criteria by more than 5 dB during some Project construction activities. Building mitigation has been recommended for 22 Customs Street to achieve acceptable internal noise levels over the duration of the Project. The recommendations can be found in the SSCNVMP for the Albert Street piling works (Document Reference CRL-PAT-ENV-CON-PLN-001189).

The advanced utilities relocation works are located so close to the receviers that internal noise levels will be high, even in 22 Customs Street where building modifications are proposed. Cutting and breaking, where required, are the noisiest activities but an enclosure is unlikely to be practicable in the majority of locations due to space restrictions. The works are of a relatively short duration and cutting and breaking will only take place for a fraction of the time. It will be necessary to consult further with each affected receiver before works begin outside of their building and schedule the noisy activities, where possible, for a time that least impacts them.

Connectus Construction Noise and Vibration Delivery Work Plan

Project #: 2665

Client: Auckland Transport

5.2 VIBRATION

Doc. No. CRL-PAT-ENV-CON-PLN-000903

Revision: 03, Date: 3rd June 2016

In addition to the general noise and vibration control measures outlined in Section 7 of the Project CNV DWP the following specific vibration mitigation measures (Table 7) should be implemented if the initial on site vibration monitoring demonstrates that the building damage vibration limits will be exceeded:

Table 7 Specific Vibration Mitigation Measures

Equipment/process Vibration control measures

Excavator mounted rock breaker Use lower vibration generating equipment such as a hand held jack hammer

Roller compactor (17t) Use a smaller compactor, less than 10t

Excavator mounted rock breakers must not be used within 16m of the Bluestone Wall unless on site measurements demonstrate vibration levels are lower than predicted from this item of plant. Hand held jack hammers or alternative low vibration generating equipment should be used within this distance. Similarly, small compactors, less than 10t should be used when within 15m of the Bluestone Wall.

6 COMMUNICATION AND CONSULTATION

Section 9.1 of the Project CNV DWP details the communication procedures in relation to construction noise and vibration effects.. The complaints process is detailed in Section 9.2 of the CNV DWP.

Consultation with the stakeholders identified in this SSCNVMP took place from mid-November to midDecember 2015. Topics that were covered included:

 Sequencing of construction activities

 Likely equipment and associated noise and vibration levels

 Proposed mitigation and management measures

 Construction of their buildings

 Operational hours of their businesses

 Operating environment that is required by the businesses

Further details of the meetings and comments made by the stakeholders are provided in Appendix D of the CNV DWP.

Project #: 2665

Client: Auckland Transport Revision: 03, Date: 3rd June 2016

7 MONITORING

Section 10 of the Project CNV DWP provides details of the methodology for noise and vibration monitoring.

7.1 NOISE MONITORING

Noise monitoring will be carried out when concrete breaking and begins within 20m of the building at the locations detailed in Table 8. The monitoring will be carried out at first floor level unless a location at a higher level is specified.

Table 8 Noise Monitoring Locations Receiver

3 Albert Street 1m from façade of building

22 Customs Street 1m from façade of building

In the most exposed retail area

In the Level 2 meeting/ training room overlooking Albert Street

63 Albert Street 1m from façade of building

61 Albert Street 1m from façade of building

70-74 Albert Street 1m from façade of building

12-26 Swanson Street 1m from façade of building

In addition to the above site-specific monitoring locations, overall project noise levels will be monitored on a monthly basis at six standard monitoring locations identified in the CNV DWP.

7.2 VIBRATION MONITORING

Vibration monitoring will be carried out when works begin on site to determine actual equipment vibration levels and the attenuation provided by the local ground conditions. If the initial vibration monitoring demonstrates that the emission radius for the excavator mounted concrete breaker are similar to those detailed in Section 5.2 of the CNV DWP then the monitoring as detailed below will be carried out. If the monitoring demonstrates that vibration levels are significantly lower then less properties may require monitoring, if they are higher then more properties may require monitoring.

Vibration monitoring will be carried out at the following receivers when concrete breaking begins within 16m of the building:

 22 Customs Street

 55 Albert Street

 61 Albert Street

 57 Albert Street

Vibration monitoring will be carried out at the following receivers when concrete breaking begins within 10m of the building:

 70-74 Albert Street

Connectus Construction Noise and Vibration Delivery Work Plan

Project #: 2665

Client: Auckland Transport

Doc. No. CRL-PAT-ENV-CON-PLN-000903

Revision: 03, Date: 3rd June 2016

Vibration monitoring will be carried out at the following receivers when concrete breaking begins within 7m of the building:

 3 Albert Street

 38 Wyndham Street

 58 Albert Street

 63 Albert Street

In addition to the above site-specific vibration monitoring locations, overall project vibration levels will be monitored on a monthly basis at six standard monitoring locations identified in the CNV DWP.

8 STAFF

Before working on these activities all staff will receive training in accordance with Section 7.2 of the CNV DWP and will read and comply with this SSCNVMP.

This page intentionally left blank.

DOCUMENT INFORMATION

Organisation: Connectus

Document Title: SITE SPECIFIC CONSTRUCTION NOISE AND VIBRATION MANAGEMENT PLAN: ALBERT STREET PILING

Fulcrum Document Number:

Document based on MMS No: n/a

Client: Auckland Transport

Project: CRL Enabling Works: Contract Two

Location: Auckland CBD Project No: 2665

REVISION HISTORY

This document remains the property of Connectus. Its contents are confidential and shall not be reproduced, destroyed or given away without the express, written permission of Connects. The electronic version of this document in MMS Database on designated server(s) is the Master Copy and is a controlled document. Unless specifically noted thereon, other copies of this document are uncontrolled.

This page intentionally left blank

Connectus Site Specific Construction Noise and Vibration Management Plan

Project #: 2665

Client: Auckland Transport

This page intentionally left blank

Doc. No. CRL-PAT-ENV-CON-PLN-001189

Revision: 03, Date: 3rd June 2016

Connectus Site Specific Construction Noise and Vibration Management Plan

Project #: 2665

Client: Auckland Transport

1 INTRODUCTION

Doc. No. CRL-PAT-ENV-CON-PLN-001189

Revision: 03, Date: 3rd June 2016

This is a Site Specific Construction Noise and Vibration Management Plan (SSCNVMP) and forms part of the Construction Noise and Vibration Delivery Work Plan (CNV DWP) for the CRL Contract 2 Enabling Works (the ‘Project’). This SSCNVMP provides specific assessment of construction noise and vibration effects from the Albert Street Piling component of the Project This SSCNVMP should be read in conjunction with the CNV DWP (Document Ref: CRL-PAT-ENV-CON-PLN-000903 Revision 6 dated 3rd June 2016) as it contains further details of the project, noise criteria, monitoring, general mitigation measures and other information. Details of the construction methodology are contained in the Project Construction Environmental Management Plan (CEMP).

Acoustic terms are defined in the Acoustic Glossary in the CNV DWP.

1.1

OBJECTIVE

The objective of this SSCNVMP is to detail the best practicable option to avoid, remedy or mitigate adverse effects on sensitive receivers resulting from construction noise and vibration that does not comply with the Project Standards defined in Section 1.2 of the CNV DWP.

1.2 SITE PLAN

Figure 1 shows the location of the piling works.

Figure 1 Site Plan

2 RECEIVERS

Receivers where noise levels due to the Albert Street piling works have the potential to exceed project noise or vibration standards are listed below, along with building use.

Table 1 Affected receivers

Albert Street This building has its own SSCNVMP so is not included in this plan

* This is the Monday to Saturday 07:00 to 22:00 noise criteria. The majority of works will be carried out during this period. For residential receivers the noise limit is reduced to 65 dB LAeq & 80 dB LAFmax on Sundays and Public Holidays between 07:00 to 22:00 and to 60 dB LAeq & 75 dB LAFmax at all other times.

Designation Condition 38.4 allows for the Project vibration limits to be relaxed by a SSCVMP but only for a building, structure or infrastructure that has been assessed by a suitably qualified and experienced structural engineer and where it has been deemed to be capable of withstanding higher vibration levels without sustaining building or structural damage, and where appropriate vibration and building condition monitoring regimes are in place. Based on the building condition surveys and the initial assessments by the structural engineer the vibration limits will not be reduced.

3 ACTIVITIES

Construction activities along with proposed start and end dates, and hours or operation, are shown in Table 2 below.

Table 2 Construction activities

Install CFA piles

Build pile cap & deck

South East Quarter 26 Oct 2016 12 Dec 2016

South West Quarter 22 Dec 2016 07 Mar 2017

Customs Deck 1 through to Wolfe Street - West side 20 Sep2016 05 Oct 2016 7am – 7pm Mon - Sat

North East Quarter 10 Mar 2017 06 Apr 2017

Wolfe Street - West side 24 Apr 2017 26 Apr 2017

Pile Caps and Traffic Decks

Customs Deck 1 through to Wolfe Street - West side 27 Sep 2016 18 Oct 2016 7am – 7pm Mon - Sat

South East Quarter 02 Nov 2016 23 Dec 2016

South West Quarter 12 Jan 2017 03 Mar 2017

Build

North East Quarter 17 Mar 2017 24 Apr 2017

Build deck ANZ to Wolfe Street 13 Apr 2017 08 May 2017

Details of construction equipment that is likely to be used for each of the above activities and the associated noise levels can be found in Appendix C of the CNV DWP. Details of the equipment that is expected to generate high levels of vibration can be found in Appendix B of the CNV DWP. The equipment levels detailed in Appendices B and C of the CNV DWP are placeholders. All equipment will be measured operating independently and then actual equipment noise/ vibration levels and model numbers will be recorded and updated within the table.

4 PREDICTED NOISE AND VIBRATION LEVELS

4.1 NOISE

The predicted worst case noise levels from each activity received at the most exposed part of each receiver are shown below in Table 3. These levels correspond to the construction equipment being located at its nearest position to the receiver and assume there is no physical mitigation between the noise source and the façade of the building.

Table 3 Predicted noise levels (no mitigation)

4.2 VIBRATION

Buildings which are classed as high or medium risk of damage as a result of the Albert Street Piling works are shown in Table 4. A receiver is classified as ‘high risk’ if it is located within the emission radius for an activity, and ‘medium risk’ if it is close to the contour with possible intermittent exceedance.

Table 4 Vibration risk class

Connectus

Project #: 2665

Client: Auckland Transport

Site Specific Construction Noise and Vibration Management Plan

Doc. No. CRL-PAT-ENV-CON-PLN-001189

Revision: 03, Date: 3rd June 2016

8 Albert Street Residential 8 High

70-74 Albert Street Residential 8 High

It can be seen from the table above that a number of the buildings may experience vibration that exceeds the building damage vibration limits when a concrete breaker is used during utilities location and installation of pile caps. Vibration monitoring will be carried out when works begin on site to determine actual equipment vibration levels and the attenuation provided by the local ground conditions.

5 MITIGATION

5.1 NOISE

Mitigation is required to meet the noise criteria at the nearest sensitive receivers. In addition to the general noise and vibration control measures outlined in Section 7 of the CNV DWP, the following specific noise mitigation measures should be implemented (Table 5):

Table 5 Specific Noise Mitigation Measures

Equipment/process

Excavators, bobcats, loaders

Crane

Concrete cutting

Vacuum Excavation

Noise control measures

Grease tracks regularly

Use straps rather than chains unless a risk assessment deems the use of straps unsafe.

Use a mobile acoustic enclosure where practicable. Use of a mobile acoustic enclosure may not be practicable when:

 Cutting within 300mm of a kerb or canopy structure

 Saw cuts need to be made around an obstruction that protrudes above surface level, such as a light pole or street sign.

 The road saw needs to be manoeuvred around in a tight space that would be obstructed by the acoustic enclosure

When use of a mobile acoustic enclosure is not practicable works will be planned so that saw cutting directly in front of a receiver / receivers is completed within a total of two working days. The building owner(s) will be contacted prior to this occurring to see if the works can be scheduled for a time that least impacts them.

Locate the vehicle so the pump is facing away from the closest noise sensitive properties

Construction Vehicles Tonal reversing alarms will not be used. Broadband alarms will be used instead.

In addition to these measures, noise barriers/hoardings between the work site and the receiver will be used to reduce noise levels. These will be least 1.8m high and have a mass equal to or greater than 10 kg/m2. Panels will be abutted or overlapped to provide a continuous screen with no gaps. It may be acceptable to use a proprietary barrier with a reduced mass providing the required attenuation can be achieved. The contractor will seek approval from the Project Acoustic Specialist before using a proprietary barrier product on site. Indicative location of noise barriers is shown in green in Figure 2 below.

Project #: 2665

Client: Auckland Transport Revision: 03, Date: 3rd June 2016

5.1.1 Internal noise levels

With the above mitigation and management measures implemented and barriers installed, the noise levels at the most exposed façade of a number of properties will still exceed the noise criteria by more than 5 dB during some Project construction activities. These properties are detailed in Table 6 along with any further mitigation necessary to achieve acceptable internal noise levels.

9 Albert Street The bottom floors of the building are occupied by Food Alley. Specific effects on this receiver that could result from exceedances of the noise criteria include the annoyance of staff and patrons and patrons choosing to eat elsewhere.

The floors of the building that are occupied by food alley are mechanically ventilated. The glass doors are automated but they open frequently and are sometimes left permanently open during the summer months. The doors are the weak point when considering noise ingress. There is a reasonable amount of background noise from cooking and other operations within the space. Traffic noise is barely audible over background noise. Construction noise is unlikely to be an issue for the majority of the piling works as it will be masked by mechanical services noise and general operational noise. When piling or utilities location works are taking place immediately outside of the building construction noise levels will be elevated and will be audible above background. Utilities location works will be directly outside of the building for approximately 3 days on each side of the road. Piling will be taking place directly outside of the building for approximately 3 days on each side of the road. Further consultation will take place with this receiver before works begin outside of the building and where possible noisy activities will be scheduled

None

Figure 2 Noise barriers
Table 6 Building Mitigation Measures

Project #: 2665 Doc. No. CRL-PAT-ENV-CON-PLN-001189

Client: Auckland Transport

outside of the lunch time period when Food Alley is at its busiest.

Revision: 03, Date: 3rd June 2016

5 Albert Street (NZ Gifts)

There are 16 residential apartments on floors 6 and 7 which are all naturally ventilated. Worst case noise levels at these floors are predicted exceed the noise criteria by less than 5 dB. As this exceedance will be for a short duration façade sound insulation improvements are not considered necessary.

Specific effects on this receiver that could result from exceedances of the noise criteria include the annoyance of staff and patrons and patrons choosing to shop elsewhere.

The building is mechanically ventilated. They have automatic doors which are not kept open. Background music plays at a low volume. Operational hours are 9.30am to 9.30pm

Construction noise is unlikely to be an issue for the majority of the piling works as it will be masked by the background music. When piling or utilities location works are taking place immediately outside of the building construction noise levels will be elevated and will be audible above background. Further consultation will take place with this receiver before works begin outside of the building and where possible noisy activities will be scheduled to avoid their busiest times.

3 Albert Street The bakery/ cafe on the ground floor is the most exposed area of the building Specific effects on this receiver that could result from exceedances of the noise criteria include the annoyance of staff and patrons and patrons choosing to eat elsewhere. However, the doors are kept wide open all day so they are already exposed to high levels of traffic noise, particularly heavy vehicles pulling away from the traffic lights. The radio plays loudly so it can be heard over the traffic noise. To reduce construction noise levels further it would be necessary to fit acoustic seals around the door and to keep it shut during construction activities, except to allow for the timely entry and egress of customers. The business owner indicated that he is not concerned about construction noise and is likely to keep the doors open as usual.

The tower is occupied by offices. Specific effects on this receiver that could result from exceedances of the noise criteria include the annoyance of staff and loss of concentration. This part of the building has a glass façade and all offices are mechanically ventilated. The attenuation provided by the façade is predicted to be 35 dB Rw. AS/NZS 2107:2000 “Acoustics – Recommended design sound levels and reverberation times for building interiors” recommends a maximum noise level of 45 dB LAeq for general office areas. Noise levels in the tower section of the building will remain below 45 dB LAeq for the majority of the works. Façade sound insulation improvements are therefore not considered necessary at this receiver.

17 Albert Street The convenience store on the ground floor is the most exposed area of the building. Specific effects on this receiver that could result from exceedances of the noise criteria include the annoyance of staff and patrons and

None

None

For all windows on the Albert Street façade (up to the 7th Floor) and those on the North and

Project #: 2665 Doc. No. CRL-PAT-ENV-CON-PLN-001189

Client: Auckland Transport

patrons choosing to shop elsewhere. The doors are kept wide open all day during the summer and they are already exposed to high levels of traffic noise. The business owner indicated that he is not concerned about construction noise and is likely to keep the doors open as usual.

The rest of this building contains mostly offices with a few residential apartments. Specific effects on this receiver that could result from exceedances of the noise criteria include the annoyance of staff, loss of concentration and reduction in speech intelligibility The whole building is mechanically ventilated during business hours. The windows on all levels are single glazed in aluminium frame. Seals are in a variable condition, some are slightly perished. The tenants have commented that they currently experience rattling windows due to nearby construction works.

Noise measurements were carried out in rooms located on the Albert Street façade to establish the sound reduction performance of the façade with windows closed. A reduction of 25 to 30 dB(A) was measured.

When piling or utilities location works are taking place immediately outside of the building construction noise levels will be elevated and will be clearly audible above background. The internal noise level may reach 65 dB LAeq on the first floor and 60 dB LAeq on the second floor during piling if the window seals are deteriorated in these areas. Utilities location works will be directly outside of the building for approximately 5 days on each side of the road. Piling will be taking place directly outside of the building for approximately 5 days on each side of the road. Further consultation will take place with this receiver before works begin outside of the building and where possible noisy activities will be scheduled outside of the most sensitive times.

There is a language school at first floor level which requires low background noise levels to operate. Specific effects on this receiver that could result from exceedances of the noise criteria include the annoyance of staff and students, loss of concentration and reduction in speech intelligibility. AS/NZS 2107:2000 “Acoustics –Recommended design sound levels and reverberation times for building interiors” recommends a sound level of 35 to 45 dB LAeq for teaching spaces.

Revision: 03, Date: 3rd June 2016

South façades that are within 10m of the Albert Street façade (up to the 7th Floor) the window seals should be checked and replaced where perished.

Secondary glazing is recommended for the following areas:

 The classrooms of the 1st Floor language school that are located on the Albert Street façade

 The classrooms of the 1st Floor language school that are located on the North and South façades within 10m of the Albert Street façade

Secondary glazing will be designed to achieve an internal piling noise level of less than 45 dB LAeq within teaching spaces.

22 Customs Street

The building houses a number of retail outlets. Specific effects on this receiver that could result from exceedances of the noise criteria include the annoyance of staff and patrons and patrons choosing to shop elsewhere. It is a masonry building with single glazed timber sash windows. All areas are mechanically ventilated. Music is played in the retail areas masking any external noise ingress. Construction noise is unlikely to be an issue in the retail areas as it will be masked by the background music and general operational noise. Traffic noise was clearly audible in the meeting room overlooking Albert Street. The window in this room does not seal adequately when shut and noise break in

Secondary glazing is recommended for the following areas:

 The ground floor office overlooking Albert Street

 The level 2 meeting/ training room overlooking Albert Street

 The level 3 VIP lounge overlooking Customs Street

Project #: 2665 Doc. No. CRL-PAT-ENV-CON-PLN-001189

Client: Auckland Transport

around the window frame was noticeable. 51 Albert Street Building soon to be demolished

Revision: 03, Date: 3rd June 2016

None 23-29 Albert Street This is the ANZ building. It is occupied by a number of businesses including Chapman Tripp, Vero and ANZ. Specific effects on this receiver that could result from exceedances of the noise criteria include the annoyance of staff, loss of concentration productivity and reduction in speech intelligibility. ANZ occupy the lower floors of the building that will be most affected by noise. The building has a glazed façade and it is mechanically ventilated. The attenuation provided by the façade is predicted to be 35 dB Rw. AS/NZS 2107:2000

“Acoustics – Recommended design sound levels and reverberation times for building interiors” recommends a maximum noise level of 45 dB LAeq for general office areas. Noise levels in all office areas of the building are predicted to remain at or below 45 dB LAeq for the full duration of the works.

The most affected area of the building will be the ground floor atrium that houses the reception area and café. The atrium is extremely reverberant due to its size and the reflective nature of the surface finishes. Once construction noise gets into this space it will build up. The amount of noise in the space is largely dependent on the how much noise breaks in through the revolving door. On 4th March 2016 noise measurements were taken simultaneously on both sides of the revolving doors. Noise break-in through the doors was found to be less than predicted but levels could still reach 65 dB LAeq during the noisiest works immediately outside of the building. Both ANZ and the café owner are willing to accept noise levels of up to 65 dB LAeq for short durations providing that they are well informed of the works.

Further consultation will also take place with this receiver before works begin outside of the building and where possible noisy activities will be scheduled outside of the most sensitive times.

None

38 Wyndham Street

This building is occupied by the Hollywood Bakery at ground floor level and offices above. Specific effects on this receiver that could result from exceedances of the noise criteria include the annoyance of staff and patrons and patrons choosing to eat elsewhere. The operating hours of the bakery are 6.30am to 4.30pm. The front doors are permanently open onto Wyndham Street so they are already exposed to high levels of traffic noise, particularly heavy vehicles pulling away from the traffic lights. They play background noise music at a low volume The manager indicated that she is not too concerned about construction noise and is likely to keep the doors open as usual.

Despite numerous attempts we were unable to gain access to the main part of the building above the bakery. It is assumed that the building contains offices and is mechanically ventilated throughout. The first three floors above the bakery will be most affected by construction noise. When piling or utilities location works are taking place immediately outside of the building construction

None

Project #: 2665

Client: Auckland Transport

noise levels on these three floors will likely be audible above background. Utilities location works will be directly outside of the building for approximately 10 days. Piling will be taking place directly outside of the building for approximately 12 days.

46 to 58 Albert Street Buildings soon to be demolished.

63 Albert Street This building is occupied by AMI insurance at ground floor level and a number of other companies in the offices above. Specific effects on this receiver that could result from exceedances of the noise criteria include the annoyance of staff, loss of concentration and reduction in speech intelligibility. The building has a glazed façade and it is mechanically ventilated. The attenuation provided by the façade is predicted to be 35 dB Rw When piling is taking place directly outside of the building internal noise levels are predicted to reach 50 dB LAeq in offices overlooking Albert Street on the ground to the 5th floor and then reduce to 45 dB LAeq on the remaining floors of the building.

61 Albert Street This building is occupied by the Shakespeare Hotel and Brewery. There is a bar at ground level which operates from 8am to 4am, a restaurant at first floor level and hotel rooms on the second floor. Loud music is played in the bar area.

The owner of this business is not concerned about noise and vibration from the works. Their busiest times are in the evening and through the night when there will be no construction activities taking place.

57 Albert Street Carpark

37-39 Albert Street Construction site

35 Albert Street Construction site

8 Albert Street Sebel Hotel

Revision: 03, Date: 3rd June 2016

This building contains the Sebel Hotel. There is an office space and café on the 1st floor, a swimming pool on the 5th floor and floors 5 to 29 are hotel rooms. There is a conference room on level 5 but it does not overlook Albert Street. Specific effects on this receiver that could result from exceedances of the noise criteria include the annoyance of staff and guests, loss of concentration, reduction in speech intelligibility and annoyance of café patrons who may then choose to eat elsewhere.

The reception area has a glass door leading out on to Albert Street. The door has a 1-2cm gap around the perimeter. Ventilation noise in the reception area is quite loud and background music is played. Traffic noise is barely audible. This area of the building will get the most benefit from the noise barrier but the noise level at the façade is still predicted to be 80 dB LAeq. During the four days of piling directly outside of the building noise level in the reception area are predicted to be 55 dB LAeq. The reception area is going to be exposed to reasonably high noise levels for the duration of the Project. The doors are the weak point in the façade. It is recommended that the gaps around the doors are reduced and acoustic seals fitted.

The hotel rooms are mechanically ventilated with sliding doors leading out to the balconies overlooking Albert Street. When the balcony doors are closed the rooms

None

None

None

None

None

None

It is recommended that the gaps around the main doors are reduced and acoustic seals fitted.

It is recommended that the gaps around the balcony doors in the café are reduced and acoustic seals fitted. These doors should remain shut during construction works immediately outside of the building

Project #: 2665

Client: Auckland Transport

are quiet with very little traffic noise break-in. Only the rooms overlooking Albert Street on levels 5 and 6 will experience noise levels at the façade that exceed the noise criteria by more than 5 dB during piling activities on the east side of Albert Street. With a predicted façade noise reduction of 30 dB Rw the noise levels in these rooms could reach 55 dB LAeq when piling activities are taking place directly outside of the building. The duration of the piling activities that will affect these rooms is 4 days.

The pool area has a glass door with no seals opening onto the balcony overlooking Albert Street. Traffic noise levels are masked by mechanical services noise and noise from patrons using the pool. Noise levels due to piling may be audible above the background noise but will not be at a level that interferes with the patron’s use of the pool.

The café on the first floor has doors opening onto the balcony overlooking Albert Street where there is a seating area. There is a 1-2cm gap around the perimeter of the doors when closed and the doors are sometimes left open depending on the weather. Music is played reasonably loudly and masks the traffic noise. For four days whilst piling is directly outside of the building construction noise will be audible inside the café even with the music playing. It is recommended that the gaps around the balcony doors in the café are reduced and acoustic seals fitted. Providing that the balcony doors are not left open noise levels should not impact on the cafes operations Patrons that use the balcony seating area during this four day period will experience noise levels in the region of 85 dB LAeq. Further consultation will take place with the café owner before works begin outside of the building and where possible noisy activities will be scheduled to avoid their busiest times.

The office area is on the first floor overlooking Albert Street. The façade is glazed with no window openings. Noise levels in the office are predicted to reach 55 dB LAeq during piling directly outside of the building.

Revision: 03, Date: 3rd June 2016

8 Albert Street City Med

The City Med operating hours 8am to 5.30pm Monday to Friday Specific effects on this receiver that could result from exceedances of the noise criteria include the annoyance of staff and patients, loss of concentration and reduction in speech intelligibility making consultations difficult.

To get to the reception area you currently go through the front doors then through another set of doors. However, they are renovating this year and the reception area will be moved closer to the Albert Street façade and will be accessed through the front doors only. The front doors are glass sliding doors with a large gap at the bottom and no seals. The noise impact of piling activities on the reception/ waiting area will depend upon the timing of their renovation works. With the reception/ waiting area in its current location there is unlikely to be any increase in internal noise levels when piling works are being

None

Project #: 2665

Client: Auckland Transport

carried out. However, if it moves closer to the Albert Street façade construction noise may be an issue. Further advice cannot be given on this area until the exact details of the renovation works are known.

There are two operating theatres located at the back of the building near the car park ramp, furthest from Albert Street. Minor operations are conducted here under local anaesthetic. The radiology area is on the Mills Lane façade in the corner furthest from Albert Street. There is unlikely to be any increase in noise levels in these areas.

ECG and audiometry are located within the building away from the façades. These are the activities that are most sensitive to noise but there is unlikely to be any increase in noise levels in these areas due to piling works.

The doctor’s consultation rooms run along the Mills Lane façade of the building. The façade is fully glazed and all rooms are mechanically ventilated. Noise levels due to piling are predicted to meet the noise criteria along this area of the façade.

The pharmacy is located at the front of the building and is the area that will be most affected by noise from piling activities. Internal noise levels are predicted to reach 55 dB LAeq during piling directly outside of the building on the east side of Albert Street. Piling in this location is expected to last for three days.

Revision: 03, Date: 3rd June 2016

70-74 Albert Street

12-26 Swanson Street

This building is a hotel. It is mechanically ventilated. Specific effects on this receiver that could result from exceedances of the noise criteria include annoying and disturbing staff or guests. The front doors leading into the reception are good and reasonably loud background music is playing so traffic noise is not audible. The rooms have sliding doors opening onto balconies and windows are single glazed laminate. The piling works do not extend to the area in front of this building. They will only be exposed to noise from piling when it is at the southern tip of the site for approximately 5 days. Only three apartments will be affected (those on the first, second and third floor on the northern end of the Albert Street façade)

The general manager is not concerned about noise and vibration providing that there is good communication about the timing and nature of activities that he can pass onto the guests.

This building is occupied by the NZ Trade Centre. All areas of the building are mechanically ventilated. Specific effects on this receiver that could result from exceedances of the noise criteria include the annoyance of staff, loss of concentration and reduction in speech intelligibility.

The section of the building closest to the works is two stories with a retail/ product display area on the ground floor and parking on the first floor. This part of the building will be most affected by noise from the piling

None

None

Site Specific Construction Noise and Vibration Management Plan

Project #: 2665 Doc. No. CRL-PAT-ENV-CON-PLN-001189

Client: Auckland Transport

works. Noise levels at the first floor are predicted to be 80 to 85 dB LAeq during piling works but as this is a car park no further mitigation is required. Worst case noise levels at the ground floor retail/ product display area are predicted to exceed the noise criteria by no more than 5 dB so no further no further mitigation is required.

The main tower section of the building is located further down Swanson Street away from the works. Noise levels at the most exposed façade of this section of the building will not exceed the noise criteria by more than 5 dB during the piling works.

Revision: 03, Date: 3rd June 2016

Where building modification is recommended the following actions will be undertaken:

 The building owner will be contacted to discuss details of the recommended building mitigation.

 If the building owner wishes to proceed with the recommended building mitigation, arrangements will be made to visit the property to inspect the areas of the building where acoustic treatment is proposed and identify any issues that could affect installation of the mitigation. Additional noise measurements will be taken, where necessary, to confirm the acoustic performance requirements of the mitigation.

 Any approvals required for the works under the Resource Management Act, Building Act and Historic Place Act will be obtained.

 A legal agreement will be prepared for the installation of the acoustic treatment. The agreement will contain an explicit description of the acoustic treatment to be installed. Under the agreement Auckland Transport will take responsibility for commissioning the works (such as airflow and noise from ventilation systems) and for ensuring any required building consent inspections occur. The agreement includes a form to be signed by the property owner following commissioning to acknowledge that the works specified have been completed.

 On completion of the mitigation works the property will be reinstated to a similar condition to that existing immediately prior to the works commencing.

Where secondary glazing is recommended the following should be implemented:

 The existing window must be sealed before the secondary window is installed.

 The secondary window shall be installed in a separate frame to the primary window, with no direct connections between the two frames.

 The reveals between the primary and secondary windows shall be lined with an acoustically absorbent material having at least absorption class C in accordance with ISO 11654:1997.

 Opening sections of the secondary window shall be aligned with openings in the primary window.

5.2 VIBRATION

In addition to the general noise and vibration control measures outlined in Section 7 of the Project CNV DWP the following specific vibration mitigation measures (Table 7) should be implemented if the initial on site vibration monitoring demonstrates that the building damage vibration limits will be exceeded:

Connectus

Project #: 2665

Client: Auckland Transport

Table 7 Specific Vibration Mitigation Measures

Site Specific Construction Noise and Vibration Management Plan

Doc. No. CRL-PAT-ENV-CON-PLN-001189

Revision: 03, Date: 3rd June 2016

Equipment/process Vibration control measures

Excavator mounted rock breaker Use lower vibration generating equipment such as a hand held jack hammer

6 COMMUNICATION AND CONSULTATION

Section 9.1 of the Project CNV DWP details the communication procedures in relation to construction noise and vibration effects. The complaints process is detailed in Section 9.2 of the CNV DWP.

Consultation with the stakeholders identified in this SSCNVMP took place from mid-November to late December 2015. Topics that were covered included:

 Sequencing of construction activities

 Likely equipment and associated noise and vibration levels

 Proposed mitigation and management measures

 Construction of their buildings

 Operational hours of their businesses

 Operating environment that is required by the businesses

Further details of the meetings and comments made by the stakeholders are provided in Appendix D of the CNV DWP.

Project #: 2665

Client: Auckland Transport

7 MONITORING

Doc. No. CRL-PAT-ENV-CON-PLN-001189

Revision: 03, Date: 3rd June 2016

Section 10 of the Project CNV DWP provides details of the methodology for noise and vibration monitoring.

7.1 NOISE MONITORING

Noise monitoring will be carried out when concrete breaking begins within 20m of the building and when piling begins within 15m of the building at the locations detailed in Table 8 The monitoring will be carried out at first floor level unless a location at a higher level is specified.

Table 8 Noise Monitoring Locations Receiver Monitoring Location

9 Albert Street 1m from façade of building

5 Albert Street 1m from façade of building

Inside the gift shop

3 Albert Street 1m from façade of building

17 Albert Street 1m from façade of building

In a Language School classroom overlooking Albert Street. In one of the offices on Level 2

22 Customs Street 1m from façade of building

In the most exposed retail area

In the Level 2 meeting/ training room overlooking Albert Street

23-29 Albert Street 1m from façade of building

In the ground floor reception/ café area

63 Albert Street 1m from façade of building

61 Albert Street 1m from façade of building

8 Albert Street Sebel Hotel 1m from façade of building

In the hotel reception In the café

In one of the Level 5 rooms overlooking Albert Street

8 Albert Street City Med 1m from façade of building

70-74 Albert Street 1m from façade of building

12-26 Swanson Street 1m from façade of building

7.2 VIBRATION MONITORING

Vibration monitoring will be carried out when works begin on site to determine actual equipment vibration levels and the attenuation provided by the local ground conditions. If the initial vibration monitoring demonstrates that the emission radius for the hydraulic rotary rig and the excavator mounted rock breaker are similar to those detailed in Section 5.2 of the CNV DWP then the monitoring

Connectus Site Specific Construction Noise and Vibration Management Plan

Project #: 2665

Client: Auckland Transport

Doc. No. CRL-PAT-ENV-CON-PLN-001189

Revision: 03, Date: 3rd June 2016

as detailed below will be carried out. If the monitoring demonstrates that vibration levels are significantly lower then less properties may require monitoring, if they are higher then more properties may require monitoring.

Vibration monitoring will be carried out at the following receivers when CFA piling begins within 5m of the building:

 22 Customs Street

 5 Albert Street

 9 Albert Street

 17 Albert Street

Vibration monitoring will be carried out at the following receivers when concrete breaking begins within 16m of the building:

 22 Customs Street

 5 Albert Street

 9 Albert Street

 17 Albert Street

 55 Albert Street

 61 Albert Street

 57 Albert Street

Vibration monitoring will be carried out at the following receivers when concrete breaking begins within 10m of the building:

 8 Albert Street

 70-74 Albert Street

Vibration monitoring will be carried out at the following receivers when concrete breaking begins within 7m of the building:

 3 Albert Street

 23-29 Albert Street

 38 Wyndham Street

 58 Albert Street

 63 Albert Street

8 STAFF

Before working on these activities all staff will receive training in accordance with Section 7.2 of the CNV DWP and will read and comply with this SSCNVMP.

This page intentionally left blank.

DOCUMENT INFORMATION

Organisation: Connectus

Document Title: SITE SPECIFIC CONSTRUCTION NOISE AND VIBRATION MANAGEMENT PLAN: EXCAVATION

Fulcrum Document Number:

Document based on MMS No: n/a

Client: Auckland Transport

Project:

Location: Auckland CBD Project No:

REVISION

HISTORY

This document remains the property of Connectus. Its contents are confidential and shall not be reproduced, destroyed or given away without the express, written permission of Connects. The electronic version of this document in MMS Database on designated server(s) is the Master Copy and is a controlled document. Unless specifically noted thereon, other copies of this document are uncontrolled.

This page intentionally left blank

Connectus Site Specific Construction Noise and Vibration Management Plan

Project #: 2665

Client: Auckland Transport

This page intentionally left blank

Doc. No. CRL-PAT-ENV-CON-PLN-001187

Revision: 03, Date: 3rd June 2016

Connectus

Project #: 2665

Client: Auckland Transport

Site Specific Construction Noise and Vibration Management Plan

Doc. No. CRL-PAT-ENV-CON-PLN-001187

Revision: 03, Date: 3rd June 2016

1 INTRODUCTION

This is a Site Specific Construction Noise and Vibration Management Plan (SSCNVMP) and forms part of the Construction Noise and Vibration Delivery Work Plan (CNV DWP) for the CRL Contract 2 Enabling Works (the ‘Project’). This SSCNVMP provides specific assessment of construction noise and vibration from trench excavation and spoil handling, including shotcrete, strip drain and rock dowel installation This SSCNVMP should be read in conjunction with the CNV DWP (Document Ref: CRLPAT-ENV-CON-PLN-000903 Revision 6 dated 3rd June 2016) as it contains further details of the project, noise criteria, monitoring, general mitigation measures and other information. Details of the construction methodology are contained in the Project Construction Environmental Management Plan (CEMP).

Acoustic terms are defined in the Acoustic Glossary in the CNV DWP.

1.1 OBJECTIVE

The objective of this SSCNVMP is to detail the best practicable option to avoid, remedy or mitigate adverse effects on sensitive receivers resulting from construction noise and vibration that does not comply with the Project Standards defined in Section 1.2 of the CNV DWP.

1.2 SITE PLAN

The excavation area is shown in Figure 1. Excavation in the Customs Street Intersection will be below the traffic decks while the remainder of Albert Street will be an open trench.

Figure 1 Site Plan

2 RECEIVERS

Receivers where noise levels due to excavation works have the potential to exceed project noise or vibration standards are listed below, along with building use.

Table 1 Affected receivers

Connectus

Project #: 2665

Client: Auckland Transport

Site Specific Construction Noise and Vibration Management Plan

Doc. No. CRL-PAT-ENV-CON-PLN-001187

Revision: 03, Date: 3rd June 2016

* This is the Monday to Saturday 07:00 to 22:00 noise criteria. The majority of works will be carried out during this period. For residential receivers the noise limit is reduced to 65 dB LAeq & 80 dB LAFmax on Sundays and Public Holidays between 07:00 to 22:00 and to 60 dB LAeq & 75 dB LAFmax at all other times.

Designation Condition 38.4 allows for the Project vibration limits to be relaxed by a SSCVMP but only for a building, structure or infrastructure that has been assessed by a suitably qualified and experienced structural engineer and where it has been deemed to be capable of withstanding higher vibration levels without sustaining building or structural damage, and where appropriate vibration and building condition monitoring regimes are in place. Based on the building condition surveys and the initial assessments by the structural engineer the vibration limits will not be reduced.

3 ACTIVITIES

Construction activities along with proposed start and end dates, and hours or operation, are shown in Table 2 below. Shotcrete, strip drain and rock dowel installation are contained within the excavation start and end dates for the respective areas and layers shown.

Details of construction equipment that is likely to be used for each of the above activities and the associated noise levels can be found in Appendix C of the CNV DWP. Details of the equipment that is expected to generate high levels of vibration can be found in Appendix B of the CNV DWP. The equipment levels detailed in Appendices B and C of the CNV DWP are placeholders. All equipment will be measured operating independently and then actual equipment noise/ vibration levels and model numbers will be recorded and updated within the table.

4 PREDICTED NOISE AND VIBRATION LEVELS

4.1 NOISE

The predicted worst case noise levels from each activity received at the most exposed part of each receiver are shown below in Table 3. These levels correspond to the construction equipment being located at its nearest position to the receiver and assume there is no physical mitigation between the noise source and the façade of the building.

Table 3 Predicted noise levels (no mitigation)

Client: Auckland Transport Revision: 03, Date: 3rd June 2016

4.2 VIBRATION

Buildings which are classed as high or medium risk of damage as a result of rock dowel pre-drilling are shown in Table 4 A receiver is classified as ‘high risk’ if it is located within the emission radius for an activity, and ‘medium risk’ if it is close to the contour with possible intermittent exceedance.

Table 4 Vibration risk class

Project #: 2665 Doc. No. CRL-PAT-ENV-CON-PLN-001187

Client: Auckland Transport

5 MITIGATION

5.1 NOISE

Revision: 03, Date: 3rd June 2016

Mitigation is required to meet the noise criteria at the nearest sensitive receivers. In addition to the general noise and vibration control measures outlined in Section 7 of the CNV DWP, the following specific noise mitigation measures should be implemented (Table 5):

Table 5 Specific Noise Mitigation Measures

Equipment/process

Excavators, bobcats, loaders

Grease tracks regularly

Crane Use straps rather than chains unless a risk assessment deems the use of straps unsafe.

In addition to these measures, noise barriers/hoardings between the work site and the receiver will be used to reduce noise levels. These will be least 1.8m high and have a mass equal to or greater than 10 kg/m2. Panels will be abutted or overlapped to provide a continuous screen with no gaps. It may be acceptable to use a proprietary barrier with a reduced mass providing the required attenuation can be achieved. The contractor will seek approval from the Project Acoustic Specialist before using a proprietary barrier product on site. Indicative location of noise barriers is shown in green in Figure 2 below.

Figure 2 Noise barriers

5.1.1 Internal noise levels

With the above mitigation and management measures implemented and barriers installed, the noise levels at the most exposed façade of a number of properties will still exceed the noise criteria by more than 5 dB during some Project construction activities. These properties are detailed in Table 6 along with any further mitigation necessary to achieve acceptable internal noise levels.

Table 6 Building Mitigation Measures

Address

15

13

9 Albert Street

5 Albert Street (NZ Gifts)

The bottom floors of the building are occupied by Food Alley and are mechanically ventilated. Specific effects on this receiver that could result from exceedances of the noise criteria include the annoyance of staff and patrons and patrons choosing to eat elsewhere.

The glass doors are automated but they open frequently and are sometimes left permanently open during the summer months. The doors are the weak point when considering noise ingress. There is a reasonable amount of background noise from cooking and other operations within the space. Traffic noise is barely audible over background noise Construction noise is unlikely to be an issue for the majority of the excavation works as it will be masked by mechanical services noise and general operational noise. In addition to this as the works get deeper into the trench the noise level at the façade of the building will reduce.

The noisiest activity during the excavation phase will be removal of the road surface which will only take two days outside of this receiver.

There are 16 residential apartments on floors 6 and 7 which are all naturally ventilated. Worst case noise levels at these floors are predicted exceed the noise criteria by less than 5 dB. As this exceedance will be for a short duration façade sound insulation improvements are not considered necessary.

Specific effects on this receiver that could result from exceedances of the noise criteria include the annoyance of staff and patrons and patrons choosing to shop elsewhere.

The building is mechanically ventilated. They have automatic doors which are not kept open. Background music plays at a low volume Operational hours are 9.30am to 9.30pm.

Construction noise is unlikely to be an issue for the majority of the excavation works as it will be masked by the background music When the road surface is being removed immediately outside of the building construction noise levels will be elevated and will be audible above background. This activity will only take place for two days outside of this receiver.

3 Albert Street The bakery/ cafe on the ground floor is the most exposed area of the building. Specific effects on this receiver that could result from exceedances of the noise criteria include the annoyance of staff and patrons and patrons choosing to eat elsewhere. The doors are kept wide open all day and so they are already exposed to high levels of traffic noise, particularly heavy vehicles pulling away from the traffic lights. The radio plays loudly

None

None

None

Project #: 2665

Client: Auckland Transport

Site Specific Construction Noise and Vibration Management Plan

Doc. No. CRL-PAT-ENV-CON-PLN-001187

Revision: 03, Date: 3rd June 2016

so it can be heard over the traffic noise. The business owner indicated that he is not concerned about construction noise and is likely to keep the doors open as usual.

The tower is occupied by offices. Specific effects on this receiver that could result from exceedances of the noise criteria include the annoyance of staff and loss of concentration. It has a glass façade and all offices are mechanically ventilated. Noise levels in the tower section of the building will remain below 45 dB LAeq during the excavation works. Façade sound insulation improvements are therefore not considered necessary at this receiver.

17 Albert Street The convenience store on the ground floor is the most exposed area of the building. Specific effects on this receiver that could result from exceedances of the noise criteria include the annoyance of staff and patrons and patrons choosing to shop elsewhere.

The rest of this building contains mostly offices, a few residential apartments and a language school. Specific effects on this receiver that could result from exceedances of the noise criteria include the annoyance of staff, loss of concentration and reduction in speech intelligibility

Recommendations for façade sound insulation improvements are given in the SSCNVMP for the Albert Street piling works (Document Reference CRL-PAT-ENVCON-PLN-001189). With this mitigation implemented noise levels in all areas of the building will be acceptable and will not impact business operations or disturb residents.

22 Customs Street The building houses a number of retail outlets. Specific effects on this receiver that could result from exceedances of the noise criteria include the annoyance of staff and patrons and patrons choosing to shop elsewhere.

Recommendations for façade sound insulation improvements are given in the SSCNVMP for the Albert Street piling works (Document Reference CRL-PAT-ENVCON-PLN-001189). With this mitigation implemented noise levels in all areas of the building will be acceptable and will not impact business operations.

51 Albert Street Building soon to be demolished

23-29 Albert Street

This is the ANZ building. It is occupied by a number of businesses including Chapman Tripp, Vero and ANZ. Specific effects on this receiver that could result from exceedances of the noise criteria include the annoyance of staff, loss of concentration productivity and reduction in speech intelligibility. ANZ occupy the lower floors of the building that will be most affected by noise. The building has a glazed façade and it is mechanically ventilated. Noise levels in all office areas of the building are predicted to remain at or below 45 dB LAeq for the full duration of the works.

The most affected area of the building will be the ground floor atrium that houses the reception area and café. Both ANZ and the café owner are willing to accept elevated noise levels for short durations providing that they are well informed of the works. Further consultation will also take place with this receiver before works begin outside of the building and where possible noisy activities will be scheduled outside of the most sensitive times.

None

None

38 Wyndham Street

This building is occupied by the Hollywood Bakery at ground floor level and offices above. Specific effects on this receiver that could result from exceedances of the None

Project #: 2665

Client: Auckland Transport

noise criteria include the annoyance of staff and patrons and patrons choosing to eat elsewhere. The operating hours of the bakery are 6.30am to 4.30pm. The front doors are permanently open onto Wyndham Street so they are already exposed to high levels of traffic noise, particularly heavy vehicles pulling away from the traffic lights. They play background noise music at a low volume. The manager indicated that she is not too concerned about construction noise and is likely to keep the doors open as usual.

Despite numerous attempts we were unable to gain access to the main part of the building above the bakery. It is assumed that the building contains offices and is mechanically ventilated throughout. The first three floors above the bakery will be most affected by construction noise. When road surface removal works are taking place immediately outside of the building construction noise levels on these three floors will likely be audible above background. Road surface removal will be directly outside of the building for approximately two days.

46 to 58 Albert Street Buildings soon to be demolished

63 Albert Street This building is occupied by AMI insurance at ground floor level and a number of other companies in the offices above. Specific effects on this receiver that could result from exceedances of the noise criteria include the annoyance of staff, loss of concentration and reduction in speech intelligibility. The building has a glazed façade and it is mechanically ventilated. The attenuation provided by the façade is predicted to be 35 dB Rw When road surface removal is taking place directly outside of the building internal noise levels are predicted to reach 50 dB LAeq in offices overlooking Albert Street on the ground to the 5th floor and then reduce to 45 dB LAeq on the remaining floors of the building. For all other excavation activities the internal noise levels will be further reduced.

61 Albert Street This building is occupied by the Shakespeare Hotel and Brewery. There is a bar at ground level which operates from 8am to 4am, a restaurant at first floor level and hotel rooms on the second floor. Loud music is played in the bar area.

The owner of this business is not concerned about noise and vibration from the works. Their busiest times are in the evening and through the night when there will be no construction activities taking place.

57 Albert Street Carpark

37-39 Albert Street Construction site

35 Albert Street Construction site

8 Albert Street Sebel Hotel

Revision: 03, Date: 3rd June 2016

None

None

None

None

None

None

This building contains the Sebel Hotel. There is an office space and café on the 1st floor, a swimming pool on the 5th floor and floors 5 to 29 are hotel rooms. There is a conference room on level 5 but it does not overlook Albert Street Specific effects on this receiver that could result from exceedances of the noise criteria include the annoyance of staff and guests, loss of concentration, reduction in speech intelligibility and annoyance of café patrons who may then choose to eat elsewhere.

During the two days of road surface removal directly outside of the building noise level in the reception area are predicted to be 55 dB LAeq As the works get deeper into the trench the noise level at the façade of the building will reduce and internal

Project #: 2665

Client: Auckland Transport

Site Specific Construction Noise and Vibration Management Plan

Doc. No. CRL-PAT-ENV-CON-PLN-001187

Revision: 03, Date: 3rd June 2016

8 Albert Street City Med

noise levels will reduce accordingly.

Only the hotel rooms overlooking Albert Street on levels 5 and 6 will experience noise levels at the façade that exceed the noise criteria by more than 5 dB during removal of the road surface in front of the building. With a predicted façade noise reduction of 30 dB Rw the noise levels in these rooms could reach 55 dB LAeq when the road surface is being removed directly outside of the building. The duration of the road surface removal works that will affect these rooms is two days.

For two days whilst road surface removal works are directly outside of the building construction noise will be audible inside the café even with the music playing. It is recommended that the gaps around the balcony doors in the café are reduced and acoustic seals fitted. Providing that the balcony doors are not left open noise levels should not impact on the cafes operations. Patrons that use the balcony seating area during this two day period will experience noise levels in the region of 85 dB LAeq. Further consultation will take place with the café owner before works begin outside of the building and where possible noisy activities will be scheduled to avoid their busiest times. As the works get deeper into the trench the noise level at the façade of the building will reduce and internal noise levels will reduce accordingly.

Noise levels in the office are predicted to reach 55 dB LAeq during road surface removal directly outside of the building. As the works get deeper into the trench the noise level will reduce.

Recommendations for façade sound insulation improvements are given in the SSCNVMP for the Albert Street piling works (Document Reference CRL-PAT-ENVCON-PLN-001189).

The City Med operating hours 8am to 5.30pm Monday to Friday Specific effects on this receiver that could result from exceedances of the noise criteria include the annoyance of staff and patients, loss of concentration and reduction in speech intelligibility making consultations difficult.

With the reception/ waiting area in its current location there is unlikely to be any increase in internal noise levels when excavation works are being carried out. However, if it moves closer to the Albert Street façade during renovation of the space, construction noise may be an issue. Further advice cannot be given on this area until the exact details of the renovation works are known.

There is unlikely to be any increase in noise levels in the radiology area, operating theatres, ECG and audiometry during excavation works.

Noise levels due to excavation activities are predicted to meet the noise criteria along the area of the Mills Lane façade where the doctors’ consultation rooms are located

Internal noise levels are predicted to reach 55 dB LAeq in the pharmacy during road surface removal directly outside of the building. This activity is expected to last for two days then noise levels will begin to reduce as the works get deeper into the trench

70-74 Albert Street This building is a hotel. Specific effects on this receiver that could result from exceedances of the noise criteria include annoying and disturbing staff or guests. It is mechanically ventilated. The excavation works do not

None

None

Project #: 2665 Doc. No. CRL-PAT-ENV-CON-PLN-001187

Client: Auckland Transport

extend to the area in front of this building. They will only be exposed to noise from excavation when it is at the southern tip of the site. Only three apartments will be affected (those on the first, second and third floor on the northern end of the Albert Street façade). The general manager is not concerned about noise and vibration providing that there is good communication about the timing and nature of activities that he can pass onto the guests.

12-26 Swanson Street This building is occupied by the NZ Trade Centre. All areas of the building are mechanically ventilated. Specific effects on this receiver that could result from exceedances of the noise criteria include the annoyance of staff, loss of concentration and reduction in speech intelligibility.

The section of the building closest to the works is two stories with a retail/ product display area on the ground floor and parking on the first floor. This part of the building will be most affected by noise from the excavation works. Noise levels at the first floor are predicted to be 80 to 85 dB LAeq during road surface removal but as this is a car park no further mitigation is required. Worst case noise levels at the ground floor retail/ product display area are predicted to exceed the noise criteria by no more than 5 dB so no further no further mitigation is required.

The main tower section of the building is located further down Swanson Street away from the works. Noise levels at the most exposed façade of this section of the building will not exceed the noise criteria by more than 5 dB during the piling works.

5.2 VIBRATION

Revision: 03, Date: 3rd June 2016

None

In addition to the general noise and vibration control measures outlined in Section 7 of the Project CNV DWP the following specific vibration mitigation measures (Table 7) should be implemented if the initial on site vibration monitoring demonstrates that the building damage vibration limits will be exceeded:

Table 7 Specific Vibration Mitigation Measures

Equipment/process Vibration control measures

Excavator mounted rock breaker Use lower vibration generating equipment such as a hand held jack hammer

Connectus Site Specific Construction Noise and Vibration Management Plan

Project #: 2665

Client: Auckland Transport

Doc. No. CRL-PAT-ENV-CON-PLN-001187

Revision: 03, Date: 3rd June 2016

6 COMMUNICATION AND CONSULTATION

Section 9.1 of the Project CNV DWP details the communication procedures in relation to construction noise and vibration effects. The complaints process is detailed in Section 9.2 of the CNV DWP.

Consultation with the stakeholders identified in this SSCNVMP took place from mid-November to late December 2015. Topics that were covered included:

 Sequencing of construction activities

 Likely equipment and associated noise and vibration levels

 Proposed mitigation and management measures

 Construction of their buildings

 Operational hours of their businesses

 Operating environment that is required by the businesses

Further details of the meetings and comments made by the stakeholders are provided in Appendix D of the CNV DWP.

Project #: 2665 Doc. No. CRL-PAT-ENV-CON-PLN-001187

Client: Auckland Transport

7 MONITORING

Revision: 03, Date: 3rd June 2016

Section 10 of the Project CNV DWP provides details of the methodology for noise and vibration monitoring.

7.1 NOISE MONITORING

Noise monitoring will be carried out when road surface removal begins within 20m of the building at the locations detailed in Table 8 Further monitoring will take place in these locations at regular intervals (monthly as a minimum). The monitoring will be carried out at first floor level unless a location at a higher level is specified.

Table 8 Noise Monitoring Locations Receiver Monitoring

9 Albert Street 1m from façade of building

5 Albert Street 1m from façade of building

3 Albert Street 1m from façade of building

17 Albert Street 1m from façade of building

22 Customs Street 1m from façade of building

23-29 Albert Street 1m from façade of building

63 Albert Street 1m from façade of building

61 Albert Street 1m from façade of building

8 Albert Street (Sebel Hotel) 1m from façade of building

8 Albert Street (City Med) 1m from façade of building

70-74 Albert Street 1m from façade of building

12-26 Swanson Street 1m from façade of building

7.2 VIBRATION MONITORING

Vibration monitoring will be carried out when works begin on site to determine actual equipment vibration levels and the attenuation provided by the local ground conditions. If the initial vibration monitoring demonstrates that the emission radius for the excavator mounted concrete breaker is similar to that detailed in Section 5.2 of the CNV DWP then the monitoring as detailed below will be carried out. If the monitoring demonstrates that vibration levels are significantly lower then less properties may require monitoring, if they are higher then more properties may require monitoring.

Vibration monitoring will be carried out at the following receivers when concrete breaking begins within 16m of the building:

 22 Customs Street

 5 Albert Street

 9 Albert Street

 17 Albert Street

 55 Albert Street

Connectus Site Specific Construction Noise and Vibration Management Plan

Project #: 2665

Client: Auckland Transport

 61 Albert Street

 57 Albert Street

Doc. No. CRL-PAT-ENV-CON-PLN-001187

Revision: 03, Date: 3rd June 2016

Vibration monitoring will be carried out at the following receivers when concrete breaking begins within 10m of the building:

 8 Albert Street

 70-74 Albert Street

Vibration monitoring will be carried out at the following receivers when concrete breaking begins within 7m of the building:

 3 Albert Street

 23-29 Albert Street

 38 Wyndham Street

 58 Albert Street

 63 Albert Street

8 STAFF

Before working on these activities all staff will receive training in accordance with Section 7.2 of the CNV DWP and will read and comply with this SSCNVMP.

This page intentionally left blank.

DOCUMENT INFORMATION

Organisation: Connectus

Document Title: Site Specific Construction Noise and Vibration Management Plan: Tunnel Construction

Fulcrum Document Number: CRL-PAT-ENV-CON-PLN-001184

Document based on MMS No: n/a

Client: Auckland Transport

Project: CRL Enabling Works: Contract Two

Location: Auckland CBD

Project No: 2665

REVISION HISTORY

This document remains the property of Connectus. Its contents are confidential and shall not be reproduced, destroyed or given away without the express, written permission of Connects. The electronic version of this document in MMS Database on designated server(s) is the Master Copy and is a controlled document. Unless specifically noted thereon, other copies of this document are uncontrolled.

This page intentionally left blank

Connectus Site Specific Construction Noise and Vibration Management Plan

Project #: 2665

Client: Auckland Transport

This page intentionally left blank

Doc. No. CRL-PAT-ENV-CON-PLN-001184

Revision: 03, Date: 3rd June 2016

Connectus

Project #: 2665

Client: Auckland Transport

Site Specific Construction Noise and Vibration Management Plan

Doc. No. CRL-PAT-ENV-CON-PLN-001184

Revision: 03, Date: 3rd June 2016

1 INTRODUCTION

This is a Site Specific Construction Noise and Vibration Management Plan (SSCNVMP) and forms part of the Construction Noise and Vibration Delivery Work Plan (CNV DWP) for the CRL Contract 2 Enabling Works (the ‘Project’). This SSCNVMP provides specific assessment of construction noise and vibration from waterproofing and tunnel construction. This SSCNVMP should be read in conjunction with the CNV DWP (Document Ref: CRL-PAT-ENV-CON-PLN-000903 Revision 6 dated 3rd June 2016) as it contains further details of the project, noise criteria, monitoring, general mitigation measures and other information. Details of the construction methodology are contained in the Project Construction Environmental Management Plan (CEMP).

Acoustic terms are defined in the Acoustic Glossary in the CNV DWP.

1.1 OBJECTIVE

The objective of this SSCNVMP is to detail the best practicable option to avoid, remedy or mitigate adverse effects on sensitive receivers resulting from construction noise and vibration that does not comply with the Project Standards defined in Section 1.2 of the CNV DWP.

1.2 SITE PLAN

The tunnel construction area is shown in Figure 1. Tunnel construction in the Customs Street Intersection will be below the traffic decks while the remainder of Albert Street will be in an open trench.

Figure 1 Site Plan

2 RECEIVERS

Receivers where noise levels due to tunnel construction works have the potential to exceed project noise or vibration standards are listed below, along with building use.

Table 1 Affected receivers

* This is the Monday to Saturday 07:00 to 22:00 noise criteria. The majority of works will be carried out during this period. For residential receivers the noise limit is reduced to 65 dB LAeq & 80 dB LAFmax on Sundays and Public Holidays between 07:00 to 22:00 and to 60 dB LAeq & 75 dB LAFmax at all other times.

Connectus

Project #: 2665

Client: Auckland Transport

Site Specific Construction Noise and Vibration Management Plan

Doc. No. CRL-PAT-ENV-CON-PLN-001184

Revision: 03, Date: 3rd June 2016

Designation Condition 38.4 allows for the Project vibration limits to be relaxed by a SSCVMP but only for a building, structure or infrastructure that has been assessed by a suitably qualified and experienced structural engineer and where it has been deemed to be capable of withstanding higher vibration levels without sustaining building or structural damage, and where appropriate vibration and building condition monitoring regimes are in place. Based on the building condition surveys and the initial assessments by the structural engineer the vibration limits will not be reduced.

3 ACTIVITIES

Construction activities along with proposed start and end dates, and hours or operation, are shown in Table 2 below.

Table 2 Construction activities

Construction

Tunnel Box Construction

Swanson to Wolfe 01 Dec 2017 05 Jun 2018

South end to Swanson 28 Aug 2017 26 Jan 2018 7am – 7pm Mon - Sat

Wolfe to North end 26 Mar 2018 15 Aug 2018

Details of construction equipment that is likely to be used for each of the above activities and the associated noise levels can be found in Appendix C of the CNV DWP. None of the equipment proposed for these works is expected to generate high levels of vibration The equipment levels detailed in Appendix C of the CNV DWP are placeholders. All equipment will be measured operating independently and then actual equipment noise levels and model numbers will be recorded and updated within the table.

4 PREDICTED NOISE LEVELS

The predicted worst case noise levels from each activity received at the most exposed part of each receiver are shown below in Table 3. These levels correspond to the construction equipment being located at its nearest position to the receiver and assume there is no physical mitigation between the noise source and the façade of the building.

Table 3 Predicted noise levels (no mitigation)

5 MITIGATION

5.1 NOISE

Mitigation is required to meet the noise criteria at the nearest sensitive receivers. In addition to the general noise and vibration control measures outlined in Section 7 of the CNV DWP, the following specific noise mitigation measures should be implemented (Table 4):

Table 4 Specific Noise Mitigation Measures

Equipment/process

Excavators, bobcats, loaders

Crane

Noise control measures

Grease tracks regularly

Use straps rather than chains unless a risk assessment deems the use of straps unsafe.

In addition to these measures, noise barriers/hoardings between the work site and the receiver will be used to reduce noise levels. These will be least 1.8m high and have a mass equal to or greater than 10 kg/m2. Panels will be abutted or overlapped to provide a continuous screen with no gaps. It may be acceptable to use a proprietary barrier with a reduced mass providing the required attenuation can be achieved. The contractor will seek approval from the Project Acoustic Specialist before using a proprietary barrier product on site. Indicative location of noise barriers is shown in green in Figure 2 below.

Project #: 2665

Client: Auckland Transport Revision: 03, Date: 3rd June 2016

5.1.1 Internal noise levels

With the above mitigation and management measures implemented and barriers installed, the noise levels at the most exposed façade of a number of properties will still exceed the noise criteria by more than 5 dB during some Project construction activities. These properties are detailed in Table 5 along with any further mitigation necessary to achieve acceptable internal noise levels.

Table 5 Building Mitigation Measures

Address Comments

22 Customs Street

Recommended Building Mitigation

The building houses a number of retail outlets. Specific effects on this receiver that could result from exceedances of the noise criteria include the annoyance of staff and patrons and patrons choosing to shop elsewhere.

Recommendations for façade sound insulation improvements are given in the SSCNVMP for the Albert Street piling works (Document Reference CRL-PAT-ENVCON-PLN-001189). With this mitigation implemented noise levels in all areas of the building will be acceptable and will not impact business operations.

63 Albert Street This building is occupied by AMI insurance at ground floor level and a number of other companies in the offices above. Specific effects on this receiver that could result from exceedances of the noise criteria include the annoyance of staff, loss of concentration and reduction in speech intelligibility. The building has a glazed façade and it is mechanically ventilated. The attenuation provided by the façade is predicted to be 35 dB Rw When the tunnel construction is taking place directly outside of the building internal noise levels are predicted to be no more than 45 dB LAeq in all areas of the building.

8 Albert Street Sebel Hotel

None

This building contains the Sebel Hotel. There is an office space and café on the 1st floor, a swimming pool on the 5th floor and floors 5 to 29 are hotel rooms. There is a conference room on level 5 but it does not overlook Albert Street. Specific effects on this receiver that could result from exceedances of the noise criteria include the annoyance of staff and guests, loss of concentration, reduction in speech intelligibility and annoyance of café patrons who may then choose to eat elsewhere.

The reception area of the building will get the most benefit from the noise barrier but the noise level at the façade is still predicted to be 80 dB LAeq when the crane is working on the traffic deck directly outside of the building It is recommended that

Figure 2 Noise barriers

Connectus

Project #: 2665

Client: Auckland Transport

8 Albert Street City Med

70-74 Albert Street

12-26 Swanson Street

Site Specific Construction Noise and Vibration Management Plan

Doc. No. CRL-PAT-ENV-CON-PLN-001184

Revision: 03, Date: 3rd June 2016

the gaps around the main doors are reduced and acoustic seals fitted. This would reduce noise levels in the reception area to approximately 50 dB LAeq.

Noise levels at the façade of the most exposed hotel rooms are predicted to exceed the noise criteria by no more than 5 dB. Providing that the balcony doors are not left open noise levels should not impact on the cafes operations. Patrons that use the balcony seating could experience noise levels in the region of 85 dB LAeq. Noise levels in the office are predicted to reach 55 dB LAeq when the crane is working on the traffic deck directly outside of the building.

Recommendations for façade sound insulation improvements are given in the SSCNVMP for the Albert Street piling works (Document Reference CRL-PAT-ENVCON-PLN-001189).

The City Med operating hours 8am to 5.30pm Monday to Friday. Specific effects on this receiver that could result from exceedances of the noise criteria include the annoyance of staff and patients, loss of concentration and reduction in speech intelligibility making consultations difficult.

With the reception/ waiting area in its current location there will not be any increase in internal noise levels when tunnel construction works are being carried out. However, if it moves closer to the Albert Street façade during renovation of the space, construction noise may be an issue. Further advice cannot be given on this area until the exact details of the renovation works are known.

There is unlikely to be any increase in noise levels in the radiology area, operating theatres, ECG and audiometry during excavation works.

Noise levels due to tunnel construction activities are predicted to meet the noise criteria along the area of the Mills Lane façade where the doctors’ consultation rooms are located.

Internal noise levels are predicted to reach 55 dB LAeq in the pharmacy when the crane is working on the traffic deck directly outside of the building.

This building is a hotel. Specific effects on this receiver that could result from exceedances of the noise criteria include annoying and disturbing staff or guests. The tunnel construction works do not extend to the area in front of this building. They will only be exposed to noise from tunnel construction works when it is at the southern tip of the site. Only three apartments will be affected (those on the first, second and third floor on the northern end of the Albert Street façade).

The general manager is not concerned about noise and vibration providing that there is good communication about the timing and nature of activities that he can pass onto the guests.

This building is occupied by the NZ Trade Centre. All areas of the building are mechanically ventilated. Specific effects on this receiver that could result from exceedances of the noise criteria include the annoyance of staff, loss of concentration and reduction in speech intelligibility.

None

None

None

Project #: 2665

Client: Auckland Transport

The section of the building closest to the works is two stories with a retail/ product display area on the ground floor and parking on the first floor. This part of the building will be most affected by noise from the tunnel construction works. Noise levels at the first floor are predicted to be 80 to 85 dB LAeq during these works but as this is a car park no further mitigation is required. Worst case noise levels at the ground floor retail/ product display area are predicted to exceed the noise criteria by no more than 5 dB so no further no further mitigation is required.

The main tower section of the building is located further down Swanson Street away from the works. Noise levels at the most exposed façade of this section of the building are not predicted to exceed the noise criteria during the tunnel construction works.

5.2 VIBRATION

Revision: 03, Date: 3rd June 2016

The proposed equipment items are not expected to generate vibration levels at receiver locations that exceed the Project criteria. If the initial on site vibration monitoring demonstrates otherwise, mitigation measures will be determined and put in place.

6 COMMUNICATION AND CONSULTATION

Section 9.1 of the Project CNV DWP details the communication procedures in relation to construction noise and vibration effects. The complaints process is detailed in Section 9.2 of the CNV DWP.

Consultation with the stakeholders identified in this SSCNVMP took place from mid-November to late December 2015. Topics that were covered included:

 Sequencing of construction activities

 Likely equipment and associated noise and vibration levels

 Proposed mitigation and management measures

 Construction of their buildings

 Operational hours of their businesses

 Operating environment that is required by the businesses

Further details of the meetings and comments made by the stakeholders are provided in Appendix D of the CNV DWP.

Project #: 2665 Doc. No. CRL-PAT-ENV-CON-PLN-001184

Client: Auckland Transport

7 MONITORING

Revision: 03, Date: 3rd June 2016

Section 10 of the Project CNV DWP provides details of the methodology for noise and vibration monitoring.

7.1 NOISE MONITORING

Noise monitoring will be carried out when the Telehandlers or Crawler Crane begin working on the construction deck within 15m of the building at the locations detailed in Table 6 Further monitoring will be carried out at these locations at regular intervals (monthly as a minimum). The monitoring will be carried out at first floor level unless a location at a higher level is specified.

Table 6 Noise Monitoring Locations

Receiver Monitoring Location

22 Customs Street 1m from façade of building

23-29 Albert Street 1m from façade of building In the ground floor reception/ café area

63 Albert Street 1m from façade of building

61 Albert Street 1m from façade of building

8 Albert Street Sebel Hotel 1m from façade of building

8 Albert Street City Med 1m from façade of building

70-74 Albert Street 1m from façade of building

12-26 Swanson Street 1m from façade of building

7.2 VIBRATION MONITORING

Vibration monitoring is not specifically required for these construction activities.

8 STAFF

Before working on these activities all staff will receive training in accordance with Section 7.2 of the CNV DWP and will read and comply with this SSCNVMP.

This page intentionally left blank.

Connectus Site Specific Construction Noise and Vibration Management Plan

Project #: 2665

Client: Auckland Transport

Doc. No. CRL-PAT-ENV-CON-PLN-001188

Revision: 03, Date: 3rd June 2016

DOCUMENT INFORMATION

Organisation: Connectus

Document Title: SITE SPECIFIC CONSTRUCTION NOISE AND VIBRATION MANAGEMENT PLAN: BACKFILL AND REINSTATEMENT

Fulcrum Document Number: CRL-PAT-ENV-CON-PLN-001188

Document based on MMS No: n/a

Client: Auckland Transport

Project: CRL Enabling Works: Contract Two

Location: Auckland CBD

Project No: 2665

REVISION

HISTORY

Drewery C Hind

C. Drewery C Hind

This document remains the property of Connectus. Its contents are confidential and shall not be reproduced, destroyed or given away without the express, written permission of Connects. The electronic version of this document in MMS Database on designated server(s) is the Master Copy and is a controlled document. Unless specifically noted thereon, other copies of this document are uncontrolled.

Connectus Site Specific Construction Noise and Vibration Management Plan

Project #: 2665

Client: Auckland Transport

This page intentionally left blank

Doc. No. CRL-PAT-ENV-CON-PLN-001188

Revision: 03, Date: 3rd June 2016

Connectus Site Specific Construction Noise and Vibration Management Plan

Project #: 2665

Client: Auckland Transport

This page intentionally left blank

Doc. No. CRL-PAT-ENV-CON-PLN-001188

Revision: 03, Date: 3rd June 2016

Connectus

Project #: 2665

Client: Auckland Transport

Site Specific Construction Noise and Vibration Management Plan

Doc. No. CRL-PAT-ENV-CON-PLN-001188

Revision: 03, Date: 3rd June 2016

1 INTRODUCTION

This is a Site Specific Construction Noise and Vibration Management Plan (SSCNVMP) and forms part of the Construction Noise and Vibration Delivery Work Plan (CNV DWP) for the CRL Contract 2 Enabling Works (the ‘Project’). This SSCNVMP provides specific assessment of construction noise and vibration from trench backfilling and road surface reinstatement This SSCNVMP should be read in conjunction with the CNV DWP (Document Ref: CRL-PAT-ENV-CON-PLN-000903 Revision 6 dated 3rd June 2016) as it contains further details of the project, noise criteria, monitoring, general mitigation measures and other information. Details of the construction methodology are contained in the Project Construction Environmental Management Plan (CEMP).

Acoustic terms are defined in the Acoustic Glossary in the CNV DWP.

1.1 OBJECTIVE

The objective of this SSCNVMP is to detail the best practicable option to avoid, remedy or mitigate adverse effects on sensitive receivers resulting from construction noise and vibration that does not comply with the Project Standards defined in Section 1.2 of the CNV DWP.

1.2 SITE PLAN

The trench backfill area is shown in Figure 1. Note that reinstatement of the road surface in the Customs Street Intersection area is covered in the separate SSCNVMP for that area of works.

Figure 1 Site Plan

Project #: 2665 Doc. No. CRL-PAT-ENV-CON-PLN-001188

Client: Auckland Transport Revision: 03, Date: 3rd June 2016

2 RECEIVERS

Receivers where noise levels due to trench backfill and road surface reinstatement works have the potential to exceed project noise or vibration standards are listed below, along with building use.

Table 1 Affected receivers

* This is the Monday to Saturday 07:00 to 22:00 noise criteria. The majority of works will be carried out during this period. For residential receivers the noise limit is reduced to 65 dB LAeq & 80 dB LAFmax on Sundays and Public Holidays between 07:00 to 22:00 and to 60 dB LAeq & 75 dB LAFmax at all other times.

Connectus

Project #: 2665

Client: Auckland Transport

Revision: 03, Date: 3rd June 2016

Designation Condition 38.4 allows for the Project vibration limits to be relaxed by a SSCVMP but only for a building, structure or infrastructure that has been assessed by a suitably qualified and experienced structural engineer and where it has been deemed to be capable of withstanding higher vibration levels without sustaining building or structural damage, and where appropriate vibration and building condition monitoring regimes are in place. Based on the building condition surveys and the initial assessments by the structural engineer the vibration limits will not be reduced.

3 ACTIVITIES

Construction activities along with proposed start and end dates, and hours or operation, are shown in Table 2 below.

Table 2 Construction activities

Details of construction equipment that is likely to be used for each of the above activities and the associated noise levels can be found in Appendix C of the CNV DWP. Details of the equipment that is expected to generate high levels of vibration can be found in Appendix B of the CNV DWP. The equipment levels detailed in Appendices B and C of the CNV DWP are placeholders. All equipment will be measured operating independently and then actual equipment noise/ vibration levels and model numbers will be recorded and updated within the table.

4 PREDICTED NOISE AND VIBRATION LEVELS

4.1 NOISE

The predicted worst case noise levels from each activity received at the most exposed part of each receiver are shown below in Table 3. These levels correspond to the construction equipment being located at its nearest position to the receiver and assume there is no physical mitigation between the noise source and the façade of the building.

Table 3 Predicted noise levels (no mitigation)

4.2 VIBRATION

Buildings which are classed as high or medium risk of damage as a result of the road surface reinstatement works are shown in Table 4. A receiver is classified as ‘high risk’ if it is located within the emission radius for an activity, and ‘medium risk’ if it is close to the contour with possible intermittent exceedance.

Table 4 Vibration risk class

Project #: 2665

5 MITIGATION

5.1 NOISE

Mitigation is required to meet the noise criteria at the nearest sensitive receivers. In addition to the general noise and vibration control measures outlined in Section 7 of the CNV DWP, the following specific noise mitigation measures should be implemented (Table 5):

Table 5 Specific Noise Mitigation Measures

Equipment/process Noise control measures

Excavators, bobcats, loaders Grease tracks regularly

In addition to these measures, noise barriers/hoardings between the work site and the receiver will be used to reduce noise levels. These will be least 1.8m high and have a mass equal to or greater than 10 kg/m2. Panels will be abutted or overlapped to provide a continuous screen with no gaps. It may be acceptable to use a proprietary barrier with a reduced mass providing the required attenuation can be achieved. The contractor will seek approval from the Project Acoustic Specialist before using a proprietary barrier product on site. Indicative location of noise barriers is shown in green in Figure 2 below.

Figure 2 Noise barriers

5.1.1 Internal noise levels

With the above mitigation and management measures implemented and barriers installed, the noise levels at the most exposed façade of a number of properties will still exceed the noise criteria by more than 5 dB during some Project construction activities. These properties are detailed in Table 6 along with any further mitigation necessary to achieve acceptable internal noise levels.

9 Albert Street The bottom floors of the building are occupied by Food Alley and are mechanically ventilated. Specific effects on this receiver that could result from exceedances of the noise criteria include the annoyance of staff and patrons and patrons choosing to eat elsewhere. Construction noise is unlikely to be an issue for the majority of the trench backfill works as it will be masked by mechanical services noise and general operational noise. When these works are taking place immediately outside of the building construction noise levels will be elevated and will be audible above background. Further consultation will take place with this receiver before works begin outside of the building and where possible noisy activities will be scheduled outside of the lunch time period when Food Alley is at its busiest.

There are 16 residential apartments on floors 6 and 7 which are all naturally ventilated. Worst case noise levels at these floors are predicted exceed the noise criteria by less than 5 dB. As this exceedance will be for a short duration façade sound insulation improvements are not considered necessary.

None

5 Albert Street (NZ Gifts)

3 Albert Street

Specific effects on this receiver that could result from exceedances of the noise criteria include the annoyance of staff and patrons and patrons choosing to shop elsewhere.

The building is mechanically ventilated. They have automatic doors which are not kept open. Background music plays at a low volume. Operational hours are 9.30am to 9.30pm.

Construction noise is unlikely to be an issue for the majority of the trench backfilling works as it will be masked by the background music. When works are taking place immediately outside of the building construction noise levels will be elevated and will be audible above background. Further consultation will take place with this receiver before works begin outside of the building and where possible noisy activities will be scheduled to avoid their busiest times.

The bakery/ cafe on the ground floor is the most exposed area of the building. Specific effects on this receiver that could result from exceedances of the noise criteria include the annoyance of staff and patrons and patrons choosing to eat elsewhere. The doors are kept wide open all day and so they are already exposed to

None

None

Project #: 2665 Doc. No. CRL-PAT-ENV-CON-PLN-001188

Client: Auckland Transport

high levels of traffic noise, particularly heavy vehicles pulling away from the traffic lights. The radio plays loudly so it can be heard over the traffic noise. The business owner indicated that he is not concerned about construction noise and is likely to keep the doors open as usual.

The tower is occupied by offices. Specific effects on this receiver that could result from exceedances of the noise criteria include the annoyance of staff and loss of concentration. The building has a glass façade and all offices are mechanically ventilated. Noise levels in the tower section of the building will remain below 45 dB LAeq for the majority of the works. Façade sound insulation improvements are therefore not considered necessary at this receiver.

Revision: 03, Date: 3rd June 2016

17 Albert Street The convenience store on the ground floor is the most exposed area of the building. Specific effects on this receiver that could result from exceedances of the noise criteria include the annoyance of staff and patrons and patrons choosing to shop elsewhere.

The rest of this building contains mostly offices, a few residential apartments and a language school. Specific effects on this receiver that could result from exceedances of the noise criteria include the annoyance of staff, loss of concentration and reduction in speech intelligibility.

Recommendations for façade sound insulation improvements are given in the SSCNVMP for the Albert Street piling works (Document Reference CRL-PAT-ENVCON-PLN-001189). With this mitigation implemented noise levels in all areas of the building will generally be acceptable and will not impact business operations or disturb residents.

22 Customs Street The building houses a number of retail outlets. Specific effects on this receiver that could result from exceedances of the noise criteria include the annoyance of staff and patrons and patrons choosing to shop elsewhere.

Recommendations for façade sound insulation improvements are given in the SSCNVMP for the Albert Street piling works (Document Reference CRL-PAT-ENVCON-PLN-001189). With this mitigation implemented noise levels in all areas of the building will be acceptable and will not impact business operations.

51 Albert Street Building soon to be demolished

23-29 Albert Street This is the ANZ building. It is occupied by a number of businesses including Chapman Tripp, Vero and ANZ. Specific effects on this receiver that could result from exceedances of the noise criteria include the annoyance of staff, loss of concentration productivity and reduction in speech intelligibility. ANZ occupy the lower floors of the building that will be most affected by noise. The building has a glazed façade and it is mechanically ventilated. The attenuation provided by the façade is predicted to be 35 dB Rw. AS/NZS 2107:2000 “Acoustics – Recommended design sound levels and reverberation times for building interiors” recommends a maximum noise level of 45 dB LAeq for general office areas. Noise levels in all office areas of the building are predicted to remain at or below 45 dB LAeq for the full duration of the works.

The most affected area of the building will be the ground floor atrium that houses the reception area and café.

None

None

Project #: 2665

Client: Auckland Transport

No. CRL-PAT-ENV-CON-PLN-001188

Revision: 03, Date: 3rd June 2016

38 Wyndham Street

Both ANZ and the café owner are willing to accept elevated noise levels for short durations providing that they are well informed of the works. Further consultation will also take place with this receiver before works begin outside of the building and where possible noisy activities will be scheduled outside of the most sensitive times.

This building is occupied by the Hollywood Bakery at ground floor level and offices above. Specific effects on this receiver that could result from exceedances of the noise criteria include the annoyance of staff and patrons and patrons choosing to eat elsewhere. The operating hours of the bakery are 6.30am to 4.30pm. The front doors are permanently open onto Wyndham Street so they are already exposed to high levels of traffic noise, particularly heavy vehicles pulling away from the traffic lights. They play background noise music at a low volume. The manager indicated that she is not too concerned about construction noise and is likely to keep the doors open as usual.

Despite numerous attempts we were unable to gain access to the main part of the building above the bakery. It is assumed that the building contains offices and is mechanically ventilated throughout. The first three floors above the bakery will be most affected by construction noise. When trench backfilling works are taking place immediately outside of the building construction noise levels on these three floors will likely be audible above background.

46 to 58 Albert Street Buildings soon to be demolished.

63 Albert Street This building is occupied by AMI insurance at ground floor level and a number of other companies in the offices above. Specific effects on this receiver that could result from exceedances of the noise criteria include the annoyance of staff, loss of concentration and reduction in speech intelligibility. The building has a glazed façade and it is mechanically ventilated. The attenuation provided by the façade is predicted to be 35 dB Rw When trench backfilling works are taking place directly outside of the building internal noise levels are predicted to reach 50 dB LAeq in offices overlooking Albert Street on the ground to the 5th floor and then reduce to 45 dB LAeq on the remaining floors of the building.

61 Albert Street This building is occupied by the Shakespeare Hotel and Brewery. There is a bar at ground level which operates from 8am to 4am, a restaurant at first floor level and hotel rooms on the second floor. Loud music is played in the bar area.

The owner of this business is not concerned about noise and vibration from the works. Their busiest times are in the evening and through the night when there will be no construction activities taking place.

57 Albert Street Carpark

37-39 Albert Street Construction site

35 Albert Street Construction site

None

None

None

None

None

None

None

8 Albert Street This building contains the Sebel Hotel. There is an office space and café on the 1st

Project #: 2665 Doc. No. CRL-PAT-ENV-CON-PLN-001188

Client: Auckland Transport

Revision: 03, Date: 3rd June 2016

Sebel Hotel floor, a swimming pool on the 5th floor and floors 5 to 29 are hotel rooms. There is a conference room on level 5 but it does not overlook Albert Street. Specific effects on this receiver that could result from exceedances of the noise criteria include the annoyance of staff and guests, loss of concentration, reduction in speech intelligibility and annoyance of café patrons who may then choose to eat elsewhere.

The reception area of the building will get the most benefit from the noise barrier but the noise level at the façade is still predicted to be 80 dB LAeq. During the trench backfilling works directly outside of the building noise level in the reception area are predicted to be 55 dB LAeq. The reception area is going to be exposed to reasonably high noise levels for the duration of the Project. The doors are the weak point in the façade. It is recommended that the gaps around the doors are reduced and acoustic seals fitted.

Only the rooms overlooking Albert Street on levels 5 and 6 will experience noise levels at the façade that exceed the noise criteria by more than 5 dB during trench backfilling activities on the east side of Albert Street. With a predicted façade noise reduction of 30 dB Rw the noise levels in these rooms could reach 55 dB LAeq when these works are taking place directly outside of the building.

When trench backfilling works are being carried out directly outside of the building, construction noise will be audible inside the café even with the music playing. It is recommended that the gaps around the balcony doors in the café are reduced and acoustic seals fitted. Providing that the balcony doors are not left open noise levels should not impact on the cafes operations. Patrons that use the balcony seating area during this four day period will experience noise levels in the region of 85 dB LAeq. Further consultation will take place with the café owner before works begin outside of the building and where possible noisy activities will be scheduled to avoid their busiest times.

Noise levels in the office are predicted to reach 55 dB LAeq during trench backfilling works directly outside of the building.

Recommendations for façade sound insulation improvements are given in the SSCNVMP for the Albert Street piling works (Document Reference CRL-PAT-ENVCON-PLN-001189).

8 Albert Street City Med

The City Med operating hours 8am to 5.30pm Monday to Friday. Specific effects on this receiver that could result from exceedances of the noise criteria include the annoyance of staff and patients, loss of concentration and reduction in speech intelligibility making consultations difficult.

With the reception/ waiting area in its current location there is unlikely to be any increase in internal noise levels when these works are being carried out. However, if it moves closer to the Albert Street façade during renovation of the space, construction noise may be an issue. Further advice cannot be given on this area until the exact details of the renovation works are known.

There is unlikely to be any increase in noise levels in the radiology area, operating theatres, ECG and audiometry during backfilling and reinstatement works.

Noise levels due to trench backfilling are predicted to meet the noise criteria along the area of the Mills Lane façade where the doctors’ consultation rooms are located.

None

Project #: 2665

Client: Auckland Transport

Internal noise levels are predicted to reach 55 dB LAeq in the pharmacy when these works are directly outside of the building.

70-74 Albert Street This building is a hotel. It is mechanically ventilated. Specific effects on this receiver that could result from exceedances of the noise criteria include annoying and disturbing staff or guests. The trench backfilling works do not extend to the area in front of this building. They will only be exposed to noise from these works when it is at the southern tip of the site. Only three apartments will be affected (those on the first, second and third floor on the northern end of the Albert Street façade).

The general manager is not concerned about noise and vibration providing that there is good communication about the timing and nature of activities that he can pass onto the guests.

12-26 Swanson Street This building is occupied by the NZ Trade Centre. All areas of the building are mechanically ventilated. Specific effects on this receiver that could result from exceedances of the noise criteria include the annoyance of staff, loss of concentration and reduction in speech intelligibility.

The section of the building closest to the works is two stories with a retail/ product display area on the ground floor and parking on the first floor. This part of the building will be most affected by noise from the trench backfilling works. Noise levels at the first floor are predicted to be 80 to 85 dB LAeq during these works but as this is a car park no further mitigation is required. Worst case noise levels at the ground floor retail/ product display area are predicted to exceed the noise criteria by no more than 5 dB so no further no further mitigation is required.

The main tower section of the building is located further down Swanson Street away from the works. Noise levels at the most exposed façade of this section of the building will not exceed the noise criteria by more than 5 dB during the trench backfilling works.

5.2 VIBRATION

Revision: 03, Date: 3rd June 2016

None

None

In addition to the general noise and vibration control measures outlined in Section 7 of the Project CNV DWP the following specific vibration mitigation measures (Table 7) should be implemented if the initial on site vibration monitoring demonstrates that the building damage vibration limits will be exceeded:

Table 7 Specific Vibration Mitigation Measures

Equipment/process Vibration control measures

Roller compactor (17t) Use a smaller compactor, less than 10t. The frequency of the compactor should also be considered. It may be acceptable to use a bigger compactor depending on the frequency it is being operated at.

Connectus

Project #: 2665

Client: Auckland Transport

Site Specific Construction Noise and Vibration Management Plan

Doc. No. CRL-PAT-ENV-CON-PLN-001188

Revision: 03, Date: 3rd June 2016

6 COMMUNICATION AND CONSULTATION

Section 9.1 of the Project CNV DWP details the communication procedures in relation to construction noise and vibration effects. The complaints process is detailed in Section 9.2 of the CNV DWP.

Consultation with the stakeholders identified in this SSCNVMP took place from mid-November to late December 2015. Topics that were covered included:

 Sequencing of construction activities

 Likely equipment and associated noise and vibration levels

 Proposed mitigation and management measures

 Construction of their buildings

 Operational hours of their businesses

 Operating environment that is required by the businesses

Further details of the meetings and comments made by the stakeholders are provided in Appendix D of the CNV DWP.

Vibration

Project #: 2665 Doc. No. CRL-PAT-ENV-CON-PLN-000903

Client: Auckland Transport

7 MONITORING

Revision: 02, Date: 21 March 2016

Section 10 of the Project CNV DWP provides details of the methodology for noise and vibration monitoring.

7.1 NOISE MONITORING

Noise monitoring will be carried out when trench backfilling activities begin within 20m of the building and when compacting begins within 20m of the building at the locations detailed in Table 8 The monitoring will be carried out at first floor level unless a location at a higher level is specified.

Table 8 Noise Monitoring Locations

Receiver Monitoring Location

9 Albert Street 1m from façade of building

5 Albert Street 1m from façade of building

3 Albert Street 1m from façade of building

17 Albert Street 1m from façade of building

In a Language School classroom overlooking Albert Street.

In one of the offices on Level 2

22 Customs Street 1m from façade of building

In the most exposed retail area

In the Level 2 meeting/ training room overlooking Albert Street

23-29 Albert Street 1m from façade of building

In the ground floor reception/ café area

63 Albert Street 1m from façade of building

61 Albert Street 1m from façade of building

8 Albert Street

Sebel Hotel 1m from façade of building

In the hotel reception In the café

In one of the Level 5 rooms overlooking Albert Street

8 Albert Street City Med 1m from façade of building

70-74 Albert Street 1m from façade of building

12-26 Swanson Street 1m from façade of building

7.2 VIBRATION MONITORING

Vibration monitoring will be carried out when works begin on site to determine actual equipment vibration levels and the attenuation provided by the local ground conditions. If the initial vibration monitoring demonstrates that the emission radius for the compactor is similar to that detailed in Section 5.2 of the CNV DWP then the monitoring as detailed below will be carried out. If the

Connectus Construction Noise and Vibration Delivery Work Plan

Project #: 2665

Client: Auckland Transport

Doc. No. CRL-PAT-ENV-CON-PLN-000903

Revision: 02, Date: 21 March 2016

monitoring demonstrates that vibration levels are significantly lower then less properties may require monitoring, if they are higher then more properties may require monitoring.

Vibration monitoring will be carried out at the following receivers when the compactor is first used within 15m of the building at:

 22 Customs Street

 5 Albert Street

 9 Albert Street

 17 Albert Street

 55 Albert Street

 61 Albert Street

 57 Albert Street

Vibration monitoring will be carried out at the following receivers when concrete breaking begins within 8m of the building at:

 8 Albert Street

 70-74 Albert Street

Vibration monitoring will be carried out at the following receivers when concrete breaking begins within 5m of the building at:

 3 Albert Street

8 STAFF

Before working on these activities all staff will receive training in accordance with Section 7.2 of the CNV DWP and will read and comply with this SSCNVMP.

This page intentionally left blank.

DOCUMENT INFORMATION

Organisation: Connectus

Document Title: Site Specific Construction Noise Management Plan

Fulcrum Document Number: CRL-PAT-ENV-CON-PLN-001264

Document based on MMS No: n/a

Client: Auckland Transport

Project: CRL Enabling Works: Contract Two

Location: Auckland CBD Project No: 2665

REVISION HISTORY

This document remains the property of Connectus. Its contents are confidential and shall not be reproduced, destroyed or given away without the express, written permission of Connects. The electronic version of this document in MMS Database on designated server(s) is the Master Copy and is a controlled document. Unless specifically noted thereon, other copies of this document are uncontrolled.

This page intentionally left blank

Connectus Site Specific Construction Noise and Vibration Management Plan

Project #: 2665

Client: Auckland Transport

This page intentionally left blank

Doc. No. CRL-PAT-ENV-CON-PLN-001264

Revision: 03, Date: 3 June 2016

Connectus Site Specific Construction Noise and Vibration Management Plan

Project #: 2665

Client: Auckland Transport

1 INTRODUCTION

Doc. No. CRL-PAT-ENV-CON-PLN-001264

Revision: 03, Date: 3 June 2016

This is a Site Specific Construction Noise and Vibration Management Plan (SSCNVMP) and forms part of the Construction Noise and Vibration Delivery Work Plan (CNV DWP) for the CRL Contract 2 Enabling Works (the ‘Project’). This SSCNVMP provides specific assessment of construction noise and vibration effects on the ‘Prince Albert Apartments’ at 41 Albert Street This SSCNVMP should be read in conjunction with the CNV DWP (Document Ref: CRL-PAT-ENV-CON-PLN-000903 Revision 6 dated 3rd June 2016) as it contains further details of the Project, noise criteria, monitoring, general mitigation measures and other information. Details of the construction methodology are contained in the Project Construction Environmental Management Plan (CEMP).

Acoustic terms are defined in the Acoustic Glossary in the CNV DWP.

1.1

OBJECTIVE

The objective of this SSCNVMP is to detail the best practicable option to avoid, remedy or mitigate adverse effects on the residents of 41 Albert Street, resulting from construction noise and vibration that does not comply with the Project Standards defined in Section 1.2 of the CNV DWP.

1.2 SITE PLAN

Figure 1 shows the location of the main works in relation to 41 Albert Street.

Figure 1 Site plan

Project #: 2665

Client: Auckland Transport

2 RECEIVERS

The property is a split-level terraced, five storey property consisting of lobby and retail (currently under refurbishment) space on the ground floor with the first to fifth level consisting of residential apartments. All apartments are currently naturally ventilated.

Table 1 Receiver information

Albert Street Mixed use (commercial/ residential) Y

* This distance relates to piling, trench excavation and other works within the trench area. Advanced utilities relocation works may be carried out within approximately 2m of the building.

** This is the Monday to Saturday 07:00 to 22:00 noise criteria. The majority of works will be carried out during this period. For residential receivers the noise limit is reduced to 65 dB LAeq & 80 dB LAFmax on Sundays and Public Holidays between 07:00 to 22:00 and to 60 dB LAeq & 75 dB LAFmax at all other times.

Designation Condition 38.4 allows for the Project vibration limits to be relaxed by a SSCVMP but only for a building, structure or infrastructure that has been assessed by a suitably qualified and experienced structural engineer and where it has been deemed to be capable of withstanding higher vibration levels without sustaining building or structural damage, and where appropriate vibration and building condition monitoring regimes are in place. Based on the building condition surveys and the initial assessments by the structural engineer the vibration limits will not be reduced.

3 ACTIVITIES

Construction activities along with proposed start and end dates, and hours of operation, are shown in Table 2 below.

Table 2 Construction activities

in early May for 60

7am to 7pm Mon - Sat

Electricity from Swanson Street West across Albert Street down Swanson Street East Start in early June for 20 days

Client: Auckland Transport

Albert Street Piling and Capping Beam

and exposure

Installation of CFA piles

Installation of pile cap

Excavation and Spoil Handling and Shotcrete and Strip Drain Installation and Rock Dowel Installation

existing road surface

Waterproofing and Tunnel Construction Waterproofing and tunnel construction

Trench Backfilling Trench backfilling and reinstatement

Details of construction equipment that is likely to be used for each of the above activities and the associated noise levels can be found in Appendix C of the CNV DWP. Details of the equipment that is expected to generate high levels of vibration can be found in Appendix B of the CNV DWP. The equipment levels detailed in Appendices B and C of the CNV DWP are placeholders. All equipment will be measured operating independently and then actual equipment noise/ vibration levels and model numbers will be recorded and updated within the table.

4 PREDICTED NOISE AND VIBRATION LEVELS

4.1 NOISE

The predicted worst case noise levels from each activity received at the most exposed part of the building are shown below in Table 3 These levels correspond to the construction equipment being located at its nearest position to 41 Albert St and assume there is no physical mitigation between the noise source and the façade of the building. The predicted noise levels take into account whether works are being carried out at ground level or below the ground.

Connectus Site Specific Construction Noise and Vibration Management Plan

Project #: 2665 Doc. No. CRL-PAT-ENV-CON-PLN-001264

Client: Auckland Transport

Table 3 Predicted noise levels

Revision: 03, Date: 3 June 2016

Noise levels will decrease with distance from the noise source such that noise levels at higher floors and at facades not directly exposed to the noise source will be lower than those shown above. This is illustrated in Figure 2 showing noise levels due to CFA pile installation decreasing with increasing floor level.

Figure 2 CFA Piling - facade noise levels

Project #: 2665 Doc. No. CRL-PAT-ENV-CON-PLN-001264

Client: Auckland Transport

4.2 VIBRATION

Revision: 03, Date: 3 June 2016

Vibration regression curves and emission radii for the vibration sources can be found in Section 5.2 of the CNV DWP. The emission radius is the distance at which vibration levels from an activity/equipment item are expected to exceed the Project Vibration Standards for a particular type of building. For the purposes of assessing vibration, 41 Albert St is classed as Historic / Vibration sensitive. A receiver is classified as ‘high risk’ if it is located within the emission radius for an activity, and ‘medium risk’ if it is close to the contour with possible intermittent exceedance.

The emission radii and risk class associated with each vibration source at 41 Albert Street are shown in Table 4.

Table 4 Vibration risk class

We note that the emission radii are based on generic data based on conservatively sized equipment and ground conditions. Vibration levels from actual equipment at the site may differ and are likely to be less than assumed for the emission radius. Monitoring will be carried out at the earliest opportunity on site to determine the adjustments for ground conditions and actual equipment items.

Project #: 2665

Client: Auckland Transport

5 MITIGATION

5.1 NOISE

Revision: 03, Date: 3 June 2016

Mitigation is required to meet the noise criteria at the 41 Albert Street. In addition to the general noise and vibration control measures outlined in Section 7 of the CNV DWP, the following specific noise mitigation measures should be implemented (Table 5):

Table 5 Specific Noise Mitigation Measures

Equipment/process Noise control measures

Excavators, bobcats, loaders

Grease tracks regularly

Crane Use straps rather than chains unless a risk assessment deems the use of straps unsafe.

Concrete cutting

Vacuum Excavation

Use a mobile acoustic enclosure where practicable. Use of a mobile acoustic enclosure may not be practicable when:

 Cutting within 300mm of a kerb or canopy structure

 Saw cuts need to be made around an obstruction that protrudes above surface level, such as a light pole or street sign.

 The road saw needs to be manoeuvred around in a tight space that would be obstructed by the acoustic enclosure When use of a mobile acoustic enclosure is not practicable works will be planned so that saw cutting directly in front of a receiver is completed within a total of two working days. The building owner will be contacted prior to this occurring to see if the works can be scheduled for a time that least impacts them.

Locate the vehicle so the pump is facing away from the closest noise sensitive properties

Construction vehicles Tonal reversing alarms will not be used. Broadband alarms will be used instead.

In addition to these measures, noise barriers/hoardings between the work site and the receiver will be used to reduce noise levels. These will be least 1.8m high and have a mass equal to or greater than 10 kg/m2. Panels will be abutted or overlapped to provide a continuous screen with no gaps. It may be acceptable to use a proprietary barrier with a reduced mass providing the required attenuation can be achieved. The contractor will seek approval from the Project Acoustic Specialist before using a proprietary barrier product on site. Indicative location of noise barriers is shown in Figure 3 below.

Project #: 2665

Client: Auckland Transport Revision: 03, Date: 3 June 2016

Figure 3 Noise barriers

Noise barriers are generally most effective when placed as close to the noise source as possible, and blocking line of sight between the source and receiver. Barriers are therefore most effective for noise sources located at or below ground level, and received at ground floor level. Little reduction is provided for receivers located at Level 3 and above.

5.2 INTERNAL NOISE LEVELS

Noise measurements were carried out at the 41 Albert Street to determine existing ambient noise levels and the sound reduction provided by the façade. The noise measurements were taken on 7th December between 10am and 11am. The measurement results are detailed in Table 6

Table 6 41 Albert Street Ambient Noise Levels

Measurement

Outside (0.5m from façade) 68

Inside – windows open 53

Inside – windows closed 43

Traffic, construction at 35-39 Albert

Traffic, construction

Traffic noise dominant, construction (hammering) intermittent

Traffic noise dominant, construction (hammering) intermittent

Traffic Low frequency from buses etc dominant. Construction barely audible

It can be seen from Table 6 that the façade achieves a sound reduction of 15 dB with windows ajar and 25 dB with windows closed. The building is naturally ventilated so windows are usually open during the day. Residents that are home during the day currently experience noise levels in the region of 53 dB LAeq.

Open windows are the weak point of the façade. It is recommended that the living rooms of apartments on the Albert Street façade are fitted with mechanical ventilation so that residents who are home during the day can close their windows and still get the required amount of fresh air.

Some of the advanced utilities works outside of the trench alignment are within close proximity to the building at 41 Albert Street. The closest works are the Combined Service Trench (Western Footpath). Internal noise levels due to these advanced utilities works are predicted to be up to 70 dB(A) even with mechanical ventilation installed and windows shut These works will only be directly outside of the

Project #: 2665

Client: Auckland Transport

Revision: 03, Date: 3 June 2016

building for a limited duration. Further consultation will take place with the affected parties before these works begin to determine if the works can be scheduled for a time that least impacts them.

An alternative option that has been suggested during consultation with the residents is to provide a HOP card for use by residents who are normally home during the day so that when noisy works are closest to the building they can go out for the day. This option should be discussed further with the residents particularly when considering the advanced utilities works.

5.2.1 Building Modification

Where building modification is recommended the following actions will be undertaken:

 The building owner will be contacted to discuss details of the recommended building mitigation.

 If the building owner wishes to proceed with the recommended building mitigation, arrangements will be made to visit the property to inspect the areas of the building where acoustic treatment is proposed and identify any issues that could affect installation of the mitigation. Additional noise measurements will be taken, where necessary, to confirm the acoustic performance requirements of the mitigation.

 Any approvals required for the works under the Resource Management Act, Building Act and Historic Place Act will be obtained.

 A legal agreement will be prepared for the installation of the acoustic treatment. The agreement will contain an explicit description of the acoustic treatment to be installed. Under the agreement Auckland Transport will take responsibility for commissioning the works (such as airflow and noise from ventilation systems) and for ensuring any required building consent inspections occur. The agreement includes a form to be signed by the property owner following commissioning to acknowledge that the works specified have been completed.

 On completion of the mitigation works the property will be reinstated to a similar condition to that existing immediately prior to the works commencing.

Where mechanical ventilation is recommended it will be designed to achieve the requirements of Clause G4 of the New Zealand Building Code. At the same time as meeting this minimum requirement, the sound of the system shall not exceed 30 dB LAeq(30s) when measured 1 m away from any grille or diffuser.

The occupant must be able to control the ventilation rate in increments up to a high air flow setting that provides at least 6 air changes per hour. At the same time as meeting this requirement, the sound of the system shall not exceed 35 dB LAeq(30s) when measured 1 m away from any grille or diffuser.

5.3 VIBRATION

In addition to the general noise and vibration control measures outlined in Section 7 of the Project CNV DWP the following specific vibration mitigation measures (Table 7) should be implemented if the initial on site vibration monitoring demonstrates that the building damage vibration limits will be exceeded:

Table 7 Specific Vibration Mitigation Measures

Equipment/process Vibration control measures

Excavator mounted rock breaker Use lower vibration generating equipment such as a hand held jack hammer

Roller compactor (17t) Use a smaller compactor, less than 10t

Connectus

Project #: 2665

Client: Auckland Transport

Site Specific Construction Noise and Vibration Management Plan

Doc. No. CRL-PAT-ENV-CON-PLN-001264

Revision: 03, Date: 3 June 2016

A detailed pre-construction building condition survey will be undertaken in accordance with Section 10.4 of the CNV DWP. A post-construction condition survey will be conducted a week after the conclusion of works in the area that have the potential to generate vibration at levels approaching or exceeding the limits in Condition 33.

6 COMMUNICATION AND CONSULTATION

Section 9.1 of the CNV DWP details the communication procedures in relation to construction noise and vibration effects. The complaints process is detailed in Section 9.2 of the CNV DWP.

Consultation with the 41 Albert Street took place from mid-November to mid-February. Topics that were covered included:

 Sequencing of construction activities

 Likely equipment and associated noise and vibration levels

 Mitigation & management measures that will be implemented

 Construction of the building

Further details of the meetings and comments made by the stakeholders are provided in Table 8

Connectus

Project #: 2665

Client: Auckland Transport Revision: 03, Date: 3 June 2016

Table 8 Stakeholder Consultations

Address of Sensitive Receiver Representatives

41 Albert Street (Albert Street Apartments) 9/11/15

Interview on site with building manager, Body Corporate Chair, and a further resident representative

Issue raised or comment provided How comment was incorporated (or if not incorporated, reason why not)

Some residents are at home during the daytime period so will be affected by day time construction activities.

All apartments are naturally ventilated so windows overlooking Albert Street are open in most apartments during the day.

Ground floor is commercial and currently vacant but the owner is looking to sell it.

Concern about the cumulative effects of noise from the Project and noise from construction on 2 adjacent sites.

They would like a SSCNVMP for the building

Mechanical ventilation is recommended for living rooms on the Albert Street façade.

A HOP card is an alternative option for residents who are home during the day to use when particularly noisy works are taking place directly outside of the building.

With the mitigation and management measures detailed in Section 7 of the CNV DWP and Section 5 of this SSCNVMP implemented, works may be audible but generally will not be at a level that disturbs residents.

Email sent to all affected receivers with apartments on the Albert Street façade to get feedback on the option of installing mechanical ventilation. Responses below

31/01/16

Email from the owner of Unit 3A

29/01/16

Email from owner of 4B

Email from owner of 3B

I would be open to having mechanical ventilation installed in the living area to appease the tenant so she did not have to open the windows facing onto Albert Street during the CRL works period. I am unaware of any other options.

I am affected, as I am home a lot during the day and therefore a bit worried about the upcoming works. Of course having my ranch-slider open is my main means of ventilation during the summer.

Mechanical ventilation- This option is not appealing, because I am sceptical that it would bring enough air in and I think in the long term it

Noise levels during the advanced utilities works will be intrusive but for a limited duration. Further consultation will take place with the affected parties before the advanced utilities works begin to determine if the works can be scheduled for a time that least impacts them.

Vibration may be felt but will not be at a level that damages the building.

Section 7 of this SSCNVMP provides details of the proposed noise and vibration monitoring.

This SSCNVMP is for their building.

Project #: 2665 Doc. No. CRL-PAT-ENV-CON-PLN-001264

Client: Auckland Transport Revision: 03, Date: 3 June 2016

would lower the value of our apartment. Would it be removed when construction is complete? We do have the heat pump bringing air from the south side of the building. We have used the fan during the hottest period and it helps, but I don't think it is effective enough to make up for closing the windows. I have someone coming in to service it next week. We will then try the cooler. This of course wouldn't help if they start demolition on 51-53 Albert Street before you have finished with Albert Street. We have very good Windows on this side of the building, and would like to see any construction on that site delayed for 5 years. The property is for sale, perhaps Auckland Transport would like to purchase it and add it to their portfolio of car parks.

Scheduling- The number one thing you can do for scheduling is not to do the major work on our block during the height of the summer. Even with the limited construction going on now the impact is far worse during hot and humid weather. Certainly if all the most disruptive work was done in the winter, we would be very happy.

Relocation- this is too complicated and disruptive to appeal. Since we are dealing with Auckland Transport an easier and cheaper solution would be for them to provide us with concession HOP cards, so we can escape during the day when the work will be at its worst.

Secondary Glazing- this could work if we can get the fresh air we need from the heat pump. Replacing the existing Windows with double glazed Windows would be a huge improvement to this apartment.

Connectus

Project #: 2665

Site Specific Construction Noise and Vibration Management Plan

Doc. No. CRL-PAT-ENV-CON-PLN-001264

Client: Auckland Transport Revision: 03, Date: 3 June 2016

3/02/16

Email from owner of 2A

When will the work begin outside 41 Albert st

How long will the work take from begin to end outside our building

How many days a week will the workers there ( are you planning on working Saturdays )

What hour of the day will work begin and end

Are you offering to help with air filtration, and noise barrier

Connectus Site Specific Construction Noise and Vibration Management Plan

Project #: 2665 Doc. No. CRL-PAT-ENV-CON-PLN-001264

Client: Auckland Transport

7 MONITORING

Revision: 03, Date: 3 June 2016

Section 10 of the Project CNV DWP provides details of the methodology for noise and vibration monitoring.

7.1 NOISE MONITORING

Noise monitoring will be carried out when concrete breaking begins within 20m of the building and when piling begins within 15m of the building. Measurements will be taken 1m from the façade of the building at first floor level and in one of the apartments overlooking Albert Street. The exact location of the internal measurements will be determined closer to commencement of the works in consultation with the affected receivers.

7.2 VIBRATION MONITORING

Vibration monitoring will be carried out when works begin on site to determine actual equipment vibration levels and the attenuation provided by the local ground conditions.

Vibration monitoring will be carried out at the ground floor level of 41 Albert Street when concrete breaking begins within 16m of the building. The duration of the monitoring will depend upon the initial results. If levels are lower than predicted further monitoring may not be required. If levels are higher than predicted it may be necessary to set up a continuous logger for the duration of the concrete breaking works in the vicinity.

8

STAFF

Before working on these activities all staff will receive training in accordance with Section 7.2 of the CNV DWP and will read and comply with this SSCNVMP.

This page intentionally left blank.

DOCUMENT INFORMATION

Organisation: Connectus

Document Title: Site Specific Construction Noise Management Plan

Fulcrum Document Number: CRL-PAT-ENV-CON-PLN-001265

Document based on MMS No: n/a

Client: Auckland Transport

Project: CRL Enabling Works: Contract Two

Location: Auckland CBD Project No: 2665

REVISION HISTORY

This document remains the property of Connectus. Its contents are confidential and shall not be reproduced, destroyed or given away without the express, written permission of Connects. The electronic version of this document in MMS Database on designated server(s) is the Master Copy and is a controlled document. Unless specifically noted thereon, other copies of this document are uncontrolled.

This page intentionally left blank

Connectus Site Specific Construction Noise and Vibration Management Plan

Project #: 2665

Client: Auckland Transport

This page intentionally left blank

Doc. No. CRL-PAT-ENV-CON-PLN-001265

Revision: 03, Date: 3rd June 2016

Connectus

Project #: 2665

Client: Auckland Transport

Site Specific Construction Noise and Vibration Management Plan

Doc. No. CRL-PAT-ENV-CON-PLN-001265

Revision: 03, Date: 3rd June 2016

1 INTRODUCTION

This is a Site Specific Construction Noise and Vibration Management Plan (SSCNVMP) and forms part of the Construction Noise and Vibration Delivery Work Plan (CNV DWP) for the CRL Contract 2 Enabling Works (the ‘Project’). This SSCNVMP provides specific assessment of construction noise and vibration received at the District Court located at 65-71 Albert Street. This SSCNVMP should be read in conjunction with the CNV DWP (Document Ref: CRL-PAT-ENV-CON-PLN-000903 Revision 6 dated 3rd June 2016) as it contains further details of the project, noise criteria, monitoring, general mitigation measures and other information. Details of the construction methodology are contained in the Project Construction Environmental Management Plan (CEMP).

Acoustic terms are defined in the Acoustic Glossary in the CNV DWP.

1.1 OBJECTIVE

The objective of this SSCNVMP is to detail the best practicable option to avoid, remedy or mitigate adverse effects on sensitive receivers resulting from construction noise and vibration that does not comply with the Project Standards defined in Section 1.2 of the CNV DWP.

1.2 SITE PLAN

Figure 1 Site plan

Main works area
Site compound
District Court

Client: Auckland Transport

2 RECEIVERS

The District Court occupies the building at 65-71 Albert Street The building contains a number of court rooms, offices and meeting rooms. The courts generally operate from 8am to 5pm and are located on level 2 and above. They use electronic transcription and the microphones are extremely sensitive to noise and vibration so low background noise levels are essential.

All windows are single glazed and the building is mechanically ventilated throughout. The District Court is located approximately 11m from the proposed cut and cover works. A construction works area is proposed to be located directly outside of the District Court approximately 6m from the building. The advanced utilities works come within 2m of the building.

3 ACTIVITIES

3.1 NOISE

Construction activities which have the potential to give rise to an exceedance of the Project Noise Standards (detailed in Section 1 of the CNV DWP) at the District Court are shown in Table 1 below. Start/end dates and hours of operation are also provided for each area of works. Start and end dates relate to the wider construction works area, and it is expected that activities around the trench itself will only generate significant noise in the vicinity of the District Court for a fraction of the overall activity duration. The main noise sources affecting the District Court will be those located within the construction compound area directly outside of the Court building. This construction works area will be in use for the full duration of the Project.

Table 1 Construction activities

3.1.1 Equipment

Construction equipment used for each of the above activities is shown in Table 2 with sound pressure level at 5m resulting from individual equipment items, as well as cumulative sound pressure level from simultaneous use of multiple equipment items during each activity

Construction equipment within the construction compound area is shown separately as these noise sources are closest to the District Court. These equipment items may also be included in one or more construction activities.

Table 2 Construction Equipment

3.2 VIBRATION

Construction activities and equipment which are expected to generate significant vibration levels in the vicinity of the District Court are shown in Table 3 below along with start and end dates, and hours of operation. The start and end dates relate to the wider construction works area, and it is expected that activities will only generate significant vibration in the vicinity of the District Court for a fraction of the overall activity duration.

Table 3 Vibration sources

4 PREDICTED NOISE AND VIBRATION LEVELS

4.1

NOISE

The predicted worst case noise levels from each activity received at the most exposed part of the District Court building are shown below in Table 4 These levels correspond to the construction equipment being located at its nearest position relative to the building and assume there is no physical mitigation between the noise source and the façade of the building. The predicted noise levels take into account whether works are being carried out at ground level or below the ground.

Noise from the southern construction compound directly outside the District Court has been predicted separately although the relevant equipment items have also been included in predicted noise from other activities.

Table 4 Predicted noise levels

Project #: 2665

Client: Auckland Transport Revision: 03, Date: 3rd June 2016

Noise levels will decrease with distance from the noise source such that noise levels at higher floors and at facades not directly exposed to the noise source will be lower than those shown above. g with increasing floor level.

Figure 2 2 shows noise levels due to CFA pile installation decreasing with increasing floor level.

Figure 2 CFA Piling - facade noise levels

Project #: 2665 Doc. No. CRL-PAT-ENV-CON-PLN-001265

Client: Auckland Transport

4.2 VIBRATION

Revision: 03, Date: 3rd June 2016

Vibration regression curves and emission radii for the vibration sources in Table 3 can be found in the CNV DWP Section 5.2. The emission radius is the distance at which vibration levels from an activity/equipment item are expected to exceed the Project Vibration Standards for a particular type of building. For the purposes of assessing vibration, the District Court building is classed as historic/ vibration sensitive structure. A receiver is classified as ‘high risk’ if it is located within the emission radius for an activity, and ‘medium risk’ if it is close to the contour with possible intermittent exceedance.

The emission radii and risk class associated with each vibration source at the District Court are shown in Table 5

Table 5 Vibration risk class

We note that the emission radii are based on generic data based on conservatively sized equipment and ground conditions. Vibration levels from actual equipment at the site may differ and are likely to be less than assumed for the emission radius.

Monitoring will be carried out at the earliest opportunity on site to determine the adjustments for ground conditions and actual equipment items. Additional monitoring will be conducted within the District Court to determine the building response. If necessary, equipment selections will be modified to ensure that the risk of vibration exceeding the building damage criteria is minimised as far as practicable.

5 MITIGATION

5.1 NOISE

Mitigation is required to meet the noise criteria at the District Court In addition to the general noise and vibration control measures outlined in Section 7 of the CNV DWP, the following specific noise mitigation measures should be implemented (Table 6):

Table 6 Specific Noise Mitigation Measures

Equipment/process Noise control measures

Excavators, bobcats, loaders Grease tracks regularly

Crane Use straps rather than chains unless a risk assessment deems the use of straps unsafe.

Connectus Site Specific Construction Noise and Vibration Management Plan

Project #: 2665

Client: Auckland Transport

Concrete cutting

Vacuum Excavation

Construction Vehicles

Doc. No. CRL-PAT-ENV-CON-PLN-001265

Revision: 03, Date: 3rd June 2016

Use a mobile acoustic enclosure where practicable. Use of a mobile acoustic enclosure may not be practicable when:

 Cutting within 300mm of a kerb or canopy structure

 Saw cuts need to be made around an obstruction that protrudes above surface level, such as a light pole or street sign.

 The road saw needs to be manoeuvred around in a tight space that would be obstructed by the acoustic enclosure

When use of a mobile acoustic enclosure is not practicable works will be planned so that saw cutting directly in front of a receiver / receivers is completed within a total of two working days. The building owner(s) will be contacted prior to this occurring to see if the works can be scheduled for a time that least impacts them.

Locate the vehicle so the pump is facing away from the closest noise sensitive properties

Tonal reversing alarms will not be used. Broadband alarms will be used instead.

In addition to these measures, noise barriers/hoardings between the work site and the receiver will be used to reduce noise levels. These will be least 1.8m high and have a mass equal to or greater than 10 kg/m2. Panels will be abutted or overlapped to provide a continuous screen with no gaps. It may be acceptable to use a proprietary barrier with a reduced mass providing the required attenuation can be achieved. The contractor will seek approval from the Project Acoustic Specialist before using a proprietary barrier product on site. Indicative location of noise barriers is shown in green in Figure 3 below.

Noise barriers are generally most effective when placed as close to the noise source as possible, and blocking line of sight between the source and receiver. Barriers are therefore most effective for noise

Figure 3 Noise barriers
Temporary barrier during piling

Project #: 2665 Doc. No. CRL-PAT-ENV-CON-PLN-001265

Client: Auckland Transport

Revision: 03, Date: 3rd June 2016

sources located at or below ground level, and received at ground floor level. Little reduction is provided for receivers located at Level 3 and above.

With the above mitigation and management measures implemented and barriers installed, the noise levels at the most exposed façade of the District Court will still exceed the noise criteria by more than 5 dB during some Project construction activities. Further mitigation is therefore necessary to achieve acceptable internal noise levels.

5.2 INTERNAL NOISE LEVELS

Noise measurements were carried out at the District Court to determine existing ambient noise levels. The noise measurements were taken on 21st January between 11am and 12pm. The measurement results are detailed in Table 7.

Table 7 District Court Ambient Noise Levels

Measurement

Court Room 4 - 2m from window

Court Room 4Centre of room 33

Albert St footpath outside ADC, 1m from Kerb

Traffic - cars barely audible; low frequency noise buses/trucks dominant. HVAC on but barely audible

Traffic - cars barely audible; low frequency noise buses/trucks dominant. HVAC on but barely audible

Traffic, pedestrians

It can be seen from Table 7 that the background noise levels in the Court Rooms when empty are very low. Low background noise levels are required for the electronic transcription service to operate effectively. It is expected that background noise levels will be slightly higher when the court rooms are occupied. An internal construction noise limit of 40 dB LAeq is recommended for the court rooms on the Albert Street façade.

The building façade currently provides a sound reduction of approximately 30 dB(A). The windows are the weak point. The building is mechanically ventilated in all areas.

The southern construction compound will be in use for the duration of the Project. The noise sources associated with the compound include construction vehicles, generators and loading/ unloading of steel and other construction materials. The noise level at the façade of the second and third floor court rooms is predicted to be 83 dB LAeq due to noise from the construction compound. With the current glazing this would give an internal noise level of approximately 53 dB LAeq which is too high when the courts are operating. It is recommended that the court rooms on the second and third floor that overlook Albert Street (Court 4, Court 15, Court 10 and Court13) and any Jury retiring rooms attached to these court rooms on the Albert Street façade are fitted with secondary glazing. The secondary glazing should be designed so that an internal level of 40 dB LAeq is achieved when the southern construction compound is in use.

The following actions will be undertaken with regard to building modification:

 The building owner will be contacted to discuss details of the recommended building mitigation.

Project #: 2665

Client: Auckland Transport Revision: 03, Date: 3rd June 2016

 If the building owner wishes to proceed with the recommended building mitigation, arrangements will be made to visit the property to inspect the areas of the building where acoustic treatment is proposed and identify any issues that could affect installation of the mitigation. Additional noise measurements will be taken, where necessary, to confirm the acoustic performance requirements of the mitigation.

 Any approvals required for the works under the Resource Management Act, Building Act and Historic Place Act will be obtained.

 A legal agreement will be prepared for the installation of the acoustic treatment The agreement will contain an explicit description of the acoustic treatment to be installed. Under the agreement Auckland Transport will take responsibility for commissioning the works (such as airflow and noise from ventilation systems) and for ensuring any required building consent inspections occur. The agreement includes a form to be signed by the property owner following commissioning to acknowledge that the works specified have been completed.

 On completion of the mitigation works the property will be reinstated to a similar condition to that existing immediately prior to the works commencing.

Where secondary glazing is recommended the following should be implemented:

 The existing window must be sealed before the secondary window is installed.

 The secondary window shall be installed in a separate frame to the primary window, with no direct connections between the two frames.

 The reveals between the primary and secondary windows shall be lined with an acoustically absorbent material having at least absorption class C in accordance with ISO 11654:1997.

 Opening sections of the secondary window shall be aligned with openings in the primary window.

The installation of secondary glazing in these areas will mitigate all other construction activities in the trench alignment to acceptable levels.

Some of the advanced utilities works outside of the trench alignment are within close proximity to the District Court building. The closest works are Kingston to Wyndham Street Stormwater Works, the Combined Service Trench (Western Footpath) and the Wyndham Street Stormwater Works. Internal noise levels due to these advanced utilities works are predicted to be 50 to 60 dB(A) even with secondary glazing fitted. It will therefore be necessary to work closely with the District Court to schedule these activities for a time that will least impact the court and not disrupt court proceedings.

5.3 VIBRATION

In addition to the general noise and vibration control measures outlined in Section 7 of the Project CNV DWP the following specific vibration mitigation measures (Table ) should be implemented if the initial on site vibration monitoring demonstrates that the building damage vibration limits will be exceeded:

Table 8 Specific Vibration Mitigation Measures

Connectus

Site Specific Construction Noise and Vibration Management Plan

Project #: 2665 Doc. No. CRL-PAT-ENV-CON-PLN-001265

Client: Auckland Transport

6 COMMUNICATION AND CONSULTATION

Revision: 03, Date: 3rd June 2016

Section 9.1 of the CNV DWP details the communication procedures in relation to construction noise and vibration effects The complaints process is detailed in Section 9.2 of the CNV DWP.

Consultation with Auckland Programme Manager at the District Court took place on 16/12/15. Topics that were covered included:

 Sequencing of construction activities

 Likely equipment and associated noise and vibration levels

 Mitigation & management measures that will be implemented

 Construction of the building

 Operating hours

 Locations of particularly noise and vibration sensitive areas in the building

The Auckland Programme Manager raised general concerns about noise and vibration impacts. In particular the Courts on level 2 and above use electronic transcription and the microphones are extremely sensitive to noise and vibration so low background noise levels are required.

As indicated in Section 5.2 ongoing consultation is going to be required to schedule the advanced utilities works in the vicinity of the District Court for a time that will not impact court operations.

7 MONITORING

In addition to the external noise and vibration monitoring detailed in the CNV DWP, internal noise and vibration measurements will be taken in the most exposed court room when the construction area immediately outside of the building is set up and in use and when piling is occurring within 25m of the building.

7.1 NOISE MONITORING

The Youth Court (Court 15) on Level 2 has been provisionally selected for noise monitoring as it is on the area of the façade most exposed to expected construction noise, taking into account the effect of the noise barriers as described in Section 5.1 and is one of the most noise sensitive areas Noise levels will also be measured in the ground floor victim advisors area and 1st floor offices at critical phases of construction (at the commencement of services location and exposure, CFA piling and set up/ use of the construction area outside of the building) to ensure that the noise barriers are providing the required level of noise mitigation in these areas and to check regenerated noise is not an issue. The final location will be confirmed in consultation with District Court to ensure that the measurements do not impede court operations.

A microphone and ancillary equipment (logger, battery, case) will be set up in the selected location(s) before the commencement of construction activities in the defined area. Background noise will be measured prior to construction to determine the contribution of extraneous noise sources such as traffic and building services.

Connectus Site Specific Construction Noise and Vibration Management Plan

Project #: 2665

Client: Auckland Transport

Doc. No. CRL-PAT-ENV-CON-PLN-001265

Revision: 03, Date: 3rd June 2016

If the initial internal measurements show noise to be at or close to levels that may impede operations it may be necessary to install continuous noise loggers in the District Court building.

7.2 VIBRATION MONITORING

Vibration from construction activities in the trench alignment is not predicted to exceed the building damage criteria. Vibration monitoring will only be necessary during the advanced utilities works where vibration levels are predicted to exceed the Project criteria. The monitoring will be carried out at ground floor level. The northern end of the corridor outside the victim advisors area has been provisionally selected for monitoring

8 STAFF

Before working on these activities all staff will receive training in accordance with Section 7.2 of the CNV DWP and will read and comply with this SSCNVMP.

This page intentionally left blank.

DOCUMENT INFORMATION

Organisation: Connectus

Document

Client:

REVISION HISTORY

This document remains the property of Connectus. Its contents are confidential and shall not be reproduced, destroyed or given away without the express, written permission of Connects. The electronic version of this document in MMS Database on designated server(s) is the Master Copy and is a controlled document. Unless specifically noted thereon, other copies of this document are uncontrolled.

This page intentionally left blank

Connectus

Project #: 2665

Client: Auckland Transport

Site Specific Construction Noise and Vibration Management Plan

Doc. No. CRL-PAT-ENV-CON-PLN-001186

Revision: 07, Date: 25 May 2016

1 INTRODUCTION

This is a Site Specific Construction Noise and Vibration Management Plan (SSCNVMP) and forms part of the Construction Noise and Vibration Delivery Work Plan (CNV DWP) for the CRL Contract 2 Enabling Works (the ‘Project’). This SSCNVMP provides specific assessment of construction noise and vibration effects on the Stamford Plaza Hotel located at 22-26 Albert Street. This SSCNVMP should be read in conjunction with the CNV DWP (Document Ref: CRL-PAT-ENV-CON-PLN-000903 Revision 5 dated 24th March 2016) as it contains further details of the Project, noise criteria, monitoring, general mitigation measures and other information. Details of the construction methodology are contained in the Project Construction Environmental Management Plan (CEMP).

Acoustic terms are defined in the Acoustic Glossary in the CNV DWP.

1.1

OBJECTIVE

The objective of this SSCNVMP is to detail the Best Practicable Option to avoid, remedy or mitigate adverse effects on the Stamford Plaza, including itsguests and/or visitors, resulting from construction noise and vibration

1.2

SITE PLAN

Figure 1 shows the location of the works in relation to the Stamford Plaza hotel.

Figure 1 Site plan

Project #: 2665 Doc. No. CRL-PAT-ENV-CON-PLN-001186

Client: Auckland Transport

2 RECEIVERS

Revision: 07, Date: 25 May 2016

The Stamford Plaza Hotel occupies the building at 22-26 Albert Street from the basement up to Level 10. Level 11 and above is occupied by Stamford Residences. The basement level is used for car parking; Ground Floor/Mezzanine for lobby, reception, bar/restaurant, function and conference rooms; Levels 3 and 4 are used for car parking and hotel rooms; and Levels 5 to 10 are used for hotel rooms.

All spaces are mechanically ventilated. Measurements by Marshall Day Acoustics (MDA) as documented in the Third Supplementary Statement of Evidence of Craig Michael Fitzgerald, dated 23 October 2013, indicate that the external to internal noise level difference in hotel suites is in the order of 35 dB.

22-26 Albert Street Mixed use (commercial/ residential) N 9

0.3mm/s and 35 dBA (10pm-7am in bedrooms)

1.0 mm/s (7am-10pm in bedrooms)

2.0 mm/s (7am-10pm in retail and office spaces (including work areas and meeting rooms)

* This is the Monday to Saturday 07:00 to 22:00 noise criteria. The majority of works will be carried out during this period. For residential receivers the noise limit is reduced to 65 dB LAeq & 80 dB LAFmax on Sundays and Public Holidays between 07:00 to 22:00 and to 60 dB LAeq & 75 dB LAFmax at all other times.

Stamford Plaza has a number of tenant businesses at ground floor level. These include Grasshopper restaurant, BaaBaaBlack Sheep Café, United Travel, Expresso Coffee School, Izakya Kintano Japenese Restaurant, Imagine Fitness Centre and Thai Massage.

Designation Condition 38.4 allows for the Project Vibration Standards to be relaxed by a SSCVMP but only for a building, structure or infrastructure that has been assessed by a suitably qualified and experienced structural engineer and where it has been deemed to be capable of withstanding higher vibration levels without sustaining building or structural damage, and where appropriate vibration and building condition monitoring regimes are in place. Based on the building condition surveys and the initial assessments by the structural engineer the building vibration limits could be relaxed. However, it is considered prudent to keep the Project Vibration Building Damage Standards to better enable compliance with the Project Vibration Amenity Standards.

Table 1 Receiver information

Project #: 2665

3 ACTIVITIES

Construction activities which have the potential to give rise to an exceedance of the Project Noise and/ or Vibration Standards (detailed in Section 1 of the CNV DWP) at the Stamford Plaza are shown in Table 2 below. Start/end dates and hours of operation are also provided for each area of works. The start and end dates relate to the wider construction works area, it is expected that activities will only generate significant noise and/or vibration in the vicinity of the Stamford Plaza for a fraction of the overall activity duration.

Table 2 Construction activities Works

Advanced Utilities Works Utilities relocation (including saw cutting and vacuum excavation)

Albert Street Piling and Capping Beam Utilities location and exposure (including saw cutting and vacuum excavation)

Installation of CFA piles

Between Points A and B: Vector Electricity across Albert Street at Swanson Street

Between Points A and B: Both sides of

Between Points A and B:

8 non consecutive weeks between 10 Oct 2016 and 04 May 2017 as shown in the programme in Appendix A Installation of pile cap

Both sides of Albert Street

Excavation and Spoil Handling and Shotcrete and Strip Drain Installation and Rock Dowel Installation

Trench Backfilling Trench backfilling and reinstatement

490)

Connectus

Project #: 2665

Client: Auckland Transport

Site Specific Construction Noise and Vibration Management Plan

Doc. No. CRL-PAT-ENV-CON-PLN-001186

Revision: 07, Date: 25 May 2016

* The dates shown in Table 2 are dependent on the Stamford Plaza SSCNVMP being finalised and subsequently agreed to by Auckland Council. If the timeframe for this is delayed then the start of construction will be delayed accordingly.

* Up to 5 additional days (which may consist of Saturdays during the period 13 Jun – 5 Aug 2016, or consecutive construction work days immediately following that period) and up to 2 additional weeks may be required as a contingency for the ‘Advanced Utilities Works’ and the ‘Installation of CFA Piles and Installation of Pile Cap’ respectively.

Piling, saw cutting and any other activity that produces noise in excess of the Project Noise Criteria (see Table 1) will only be carried out between the hours of 07:30 and 18:00 Monday to Saturday in the area between 20m north of Mills Lane (Point A, shown of Figure 1 above) and 20m south of Swanson Street (Point B, shown of Figure 1 above)

Saw cutting, hydro excavation, concrete breaking (if required) and any other activity associated with the prepatory works between Points A and B that produces noise in excess of the Project Noise Criteria will be complete within 40 days as indicated in Table 2 Connectus may continue less noisy activities that comply with the Project Noise Standards, such as completing pavement reinstatement, cable pulling beyond the 40 day period.

The piling works on each side of the road will be undertaken in two – three different stages, in order to manage traffic and access into the Stamford site, but the total duration of these different stages will not exceed the specified period as indicated in Table 2

3.1.1 Equipment

Construction equipment used for each of the above activities is shown in Table 3 with sound pressure level at 5m resulting from individual equipment items. These equipment levels are placeholders. All equipment will be measured operating independently and then actual equipment noise levels and model numbers will be recorded and updated within the table. Figure 2 details the process that will be followed once actual equipment noise levels have been measured.

Table 3 Construction Equipment

Connectus Site Specific Construction Noise and Vibration Management Plan

Project #: 2665

Client: Auckland Transport

Doc. No. CRL-PAT-ENV-CON-PLN-001186

Revision: 07, Date: 25 May 2016

Figure 2 Process to follow once actual equipment noise levels have been measured

4 MITIGATION

4.1 NOISE

Specific effects on this receiver that could result from exceedances of the noise criteria include the annoyance of staff and guests, loss of concentration, reduction in speech intelligibility and annoyance of café/ restaurant patrons who may then choose to eat elsewhere.

Project #: 2665

Client: Auckland Transport

Site Specific Construction Noise and Vibration Management Plan

Doc. No. CRL-PAT-ENV-CON-PLN-001186

Revision: 07, Date: 25 May 2016

Mitigation is required to meet the Project Noise Standards at the Stamford Plaza Hotel In addition to the general noise and vibration control measures outlined in Section 7 of the CNV DWP, the specific noise mitigation measures detailed in Table 4 will be implemented. These mitigation measures represent the Best Practicable Option to avoid, remedy or mitigate adverse effects on the Stamford Plaza Property, its guests and/or visitors. The mitigation measures detailed in Table 4 and in Section 7 of the CNV DWP reflect BPO as they represent everything that can practicably be done to mitigate noise at the source.

Table 4 Specific Noise Mitigation Measures

Equipment/process

Noise control measures

Concrete cutting Use a mobile acoustic enclosure where practicable. Use of a mobile acoustic enclosure may not be practicable when:

 Cutting within 300mm of a kerb or canopy structure

 Saw cuts need to be made around an obstruction that protrudes above surface level, such as a light pole or street sign.

 The road saw needs to be manoeuvred around in a tight space that would be obstructed by the acoustic enclosure

When use of a mobile acoustic enclosure is not practicable works will be planned so that saw cutting directly in front of a receiver is completed within a total of two working days. The building owner will be contacted prior to this occurring to see if the works can be scheduled for a time that least impacts them.

Concrete breaking It is assumed that all concrete can be removed by saw cutting and lifting with an excavator. Concrete breakers will not be used in the vicinity of the Stamford Plaza Hotel unless something is encountered in the ground that cannot be removed by any other method. In this case the smallest breaker capable of completing the task will be used and where practicable the works will be carried out in a mobile acoustic enclosure. Alternatively, muffled breakers will be used.

Vacuum Excavation

Piling

Excavators, bobcats, loaders

Locate the vehicle so the pump is facing away from the closest noise sensitive properties

The new design has reduced the number of piles within the zone (20m north of Mills Lane to 20m South Of Swanson) on the East side of Albert Street considerably. The original design as presented in the Notice of Requirement hearings used approximately 87 piles. Connectus have been able to reduce this to only 60 piles.

The method of piling has also changed from the original design. Piling will now be by Continuous Flight Auger which produces less noise and vibration.

Excavators of 15t or less will be used in the vicinity of Stamford Plaza Hotel unless it can be demonstrated by measurement that bigger excavators will meet the noise criteria. Tracks will be greased regularly.

Crane Straps rather than chains will be used unless a risk assessment deems the use of straps unsafe.

Excavator mounted drilling rig

Construction Deck

Localised screening will be used where required. The screens will be positioned to cut line of site between the noisy elements of the drilling rig and locations on the Stamford Plaza façade where the Project Noise Standards would otherwise be exceeded.

The original construction methodology presented at the Notice of Requirement hearings showed a single deck structure being built across Albert Street in front of Stamford Plaza Hotel It was proposed that all materials for constructing the tunnel came in and out of this point during the

Connectus Site Specific Construction Noise and Vibration Management Plan

Project #: 2665

Client: Auckland Transport

Doc. No. CRL-PAT-ENV-CON-PLN-001186

Revision: 07, Date: 25 May 2016

excavation, tunnel construction and backfilling phases. The new design has switched to a continuous deck structure, which has reduced the requirement for plant to be located near Stamford Plaza by at least 50%.

Construction vehicles Tonal reversing alarms will not be used. Broadband alarms will be used instead.

In addition to these measures, noise barriers/hoardings between the work site and the receiver will be used to reduce noise levels. These will be at least 1.8m high during the advanced utilities works and piling and 2m high during the remainder of the works. There will be the ability to increase barrier height during the main trenching works should it be found that items of equipment are significantly noisier than what is authorised by this plan and higher barriers are required to meet the Project Noise Standards. The barriers will have a mass equal to or greater than 10 kg/m2. Panels will be abutted or overlapped to provide a continuous screen with no gaps. It may be acceptable to use a proprietary barrier with a reduced mass providing the required attenuation can be achieved. The contractor will seek approval from the Project Acoustic Specialist before using a proprietary barrier product on site. Indicative location of noise barriers is shown in Figure 3 below.

3 Noise barriers

1.8m noise barriers during advanced utilities works, 2m for remainder

Noise barriers are generally most effective when placed as close to the noise source as possible, and blocking line of sight between the source and receiver. Barriers are therefore most effective for noise sources located at or below ground level, and received at ground floor level. Little reduction is provided for receivers located at Level 3 and above.

Table 5 below shows maximum expected noise levels received at each floor level due to installation of CFA piles, with no mitigation and with 1.8m high noise barriers in the location shown in Figure 3 above. The effect of the barriers is also shown in Figure 4

Table 5 Noise levels from CFA piling, with and without noise barriers

Figure

Site Specific Construction Noise and Vibration Management Plan

Project #: 2665 Doc. No. CRL-PAT-ENV-CON-PLN-001186

Client: Auckland Transport

Revision: 07, Date: 25 May 2016

A similar level of noise reduction from noise barriers at each floor can be expected for all other construction activities where the dominant noise source is close to ground level.

Different barrier heights (2.4m and 3m) were modelled. Increasing the barrier height had very little effect on the noise levels at the building which reduced by only 1-2 dB This reduction in noise level would not be perceptible. When considering this limited effect against the structural constraints of increasing the barrier height and the additional cost it is not consider to be practicable to increase the barrier height.

Noise levels at the entrance were assessed to determine if installation of a sound lock lobby and/or a revolving door would represent the BPO. Noise levels during piling, which is one of the noisiest activities, are predicted to be 76 dB LAeq at the entrance to the building. This noise level will occur when the piling rig is in the closest location to the entrance and will only be this high for 2-3 pile locations which will take less than a day to complete. At all other pile locations the noise level at the front door will be reduced and will meet the Project Noise Standards. As the Project Noise Standard will be met, other than during a day of piling as indicated above, at the entrance to the hotel, installation of a sound lock lobby or a revolving door is not considered to represent the BPO.

4.2 VIBRATION

In addition to the general noise and vibration control measures outlined in Section 7 of the Project CNV DWP the following specific vibration mitigation measures (Table 6) should be implemented if the initial on site vibration monitoring demonstrates that the building damage vibration limits will be exceeded:

Table 6 Specific Vibration Mitigation Measures

Excavator mounted concrete breaker Concrete breakers will not be used unless something is encountered in the ground that cannot be removed by saw cutting. Should breakers be required a hand held jack hammer rather than an excavator mounted breaker will be used when within 10m of the Stamford Plaza Hotel.

5 PREDICTED NOISE AND VIBRATION LEVELS

5.1 NOISE

The predicted worst case noise levels from each activity received at the most exposed part of the Stamford Plaza building are shown below in Table 7 These levels correspond to the construction

Connectus Site Specific Construction Noise and Vibration Management Plan

Project #: 2665

Client: Auckland Transport

Doc. No. CRL-PAT-ENV-CON-PLN-001186

Revision: 07, Date: 25 May 2016

equipment being located at its nearest position to Stamford Plaza Hotel and assume that all mitigation detailed in Section 7 of the CNV DWP and Section 4.1 of this SSCNVMP has been implemented. The predicted noise levels take into account whether works are being carried out at ground level or below the ground.

*This exceedance is caused by saw cutting

**This exceedance is caused by the piling rig

*** This level is at the most exposed area of the façade, not directly outside a bedroom or conference room. The level outside of the most exposed bedroom/ conference room is 85 dB LAeq

Noise levels will decrease with distance from the noise source such that noise levels at higher floors and at facades not directly exposed to the noise source will be lower than those shown above. This is illustrated in Figure 4 showing noise levels due to CFA pile installation decreasing with increasing floor level.

Table 7 Predicted noise levels

Project #: 2665

Client: Auckland Transport

Revision: 07, Date: 25 May 2016

5.1.1 Internal noise levels

Assuming all mitigation and management measures detailed in Section 7 of the CNV DWP and Section 4.1 of this SSCNVMP are implemented, and an external to internal noise level difference of 35 dB is achieved, internal noise levels are predicted to be 50 dB LAeq or below in all hotel rooms and conference rooms during all construction activities Façade sound insulation improvements are therefore not considered necessary for the Stamford Plaza Hotel.

With regard to the tenant businesses, BaaBaa Black Sheep Café and the Grasshopper restaurant will be most affected as they are located on the Albert Street façade. They are mechanically ventilated with glazed façades. The glass doors are the weak point when considering noise ingress as they do not have seals and there are big gaps around the perimeter of the door. Acoustic seals (bulb seals) should be fitted to the doors They would not provide much benefit during busy times when the doors are being frequently opened but would provide a noticeable benefit when the doors are shut. When piling or utilities location works are taking place immediately outside construction noise levels will be audible above background and have the potential to annoy staff and customers. Further consultation will take place with these businesses before works begin outside of the building and where possible noisy activities will be scheduled outside of their busiest times

United Travel, Expresso Coffee School, Izakya Kintaro Japenese Restaurant and Thai Massage are located on the Swanson Street façade of the building. Swanson Street is a reasonably steep hill. As these receivers sit below the level of Albert Street the noise barriers detailed in Section 5 of this SSCNVMP will provide a greater level of sound reduction when compared to the tenant businesses located on the Albert Street façade. The noise level at these receivers will meet the Project Noise Standards.

Project #: 2665 Doc. No. CRL-PAT-ENV-CON-PLN-001186

Client: Auckland Transport Revision: 07, Date: 25 May 2016

5.2 VIBRATION

Vibration regression curves and emission radii for the vibration sources can be found in Section 5.2 of the CNV DWP. The emission radius is the distance at which vibration levels from an activity/equipment item are expected to exceed the Project Vibration Standards for a particular type of building. For the purposes of assessing vibration, the Stamford Plaza Hotel building is classed as Residential.

We note that the emission radii are based on generic data, conservatively sized equipment and ground conditions. Vibration levels from actual equipment at the site may differ and are likely to be less than assumed for the emission radius.

The only equipment predicted to exceed the Project Vibration Standards is the excavator mounted concrete breaker if used within 10m of the building. As discussed previously this equipment will only be used if something is found during the works that cannot be removed by saw cutting. If something is found that requires the use of a breaker within 10m of the building, Stamford Plaza will be immediately notified and arrangements will be made to monitor vibration in the most affected part of the building for the duration of the breaker activity in this area.

Monitoring will be carried out at the earliest opportunity on site to determine the adjustments for ground conditions and actual equipment items. If the initial vibration monitoring demonstrates that the emission radii are similar to those detailed in Section 5.2 of the CNV DWP the mitigation detailed in Section 4.2 of this SSCNVMP will be implemented.

Vibration from construction activities will be continuously measured in the Stamford Plaza building to monitor compliance with the Project Vibration Standards, as detailed in Section 7.2 of this SSCNVMP. Section 8 of this SSCNVMP details the process that will be followed if vibration levels in excess of the Project Vibration Standards are measured.

5.3 COMPLIANCE WITH THE PROJECT NOISE AND VIBRATION STANDARDS

This SSCVNMP authorises piling, saw cutting and concrete breaking (should it be required) to exceed the Project Noise Standards. The maximum predicted exceedance is 12 dB, refer to Table 7.

This SSCNVMP authorises concrete breaking (should it be required) to exceed the Project Vibration Amenity Standards when carried out within 10m of the building

All other construction activities are predicted to, and must comply with the Project Noise and Vibration Standards

6 COMMUNICATION AND CONSULTATION

Section 9.1 of the CNV DWP details the communication procedures in relation to construction noise and vibration effects The complaints process is detailed in Section 9.2 of the CNV DWP The Communication and Consultation Manager for the Project is Alan Howard-Smith, telephone number 021 361158, email alan.howard-smith@hawkins.co.nz. All communications and complaints should be directed to him in the first instance either electronically or via telephone. Alternatively the project will be contactable 24/7 through the freephone number, 0800 CRL TALK (275 8255). All complaints, meetings and actions will be recorded on the CRM database.

Connectus Site Specific Construction Noise and Vibration Management Plan

Project #: 2665

Client: Auckland Transport

Doc. No. CRL-PAT-ENV-CON-PLN-001186

Revision: 07, Date: 25 May 2016

Consultation with the Stamford Plaza Hotel took from mid-November to mid-February. Topics that were covered included:

 Sequencing of construction activities

 Likely equipment and associated noise and vibration levels

 Mitigation & management measures that will be implemented

 Construction of the hotel building

 Location of the various tenants and the sensitive spaces in the hotel

 Operational hours of the tenants businesses

 Operating environment that is required by the hotel and its tenants

Further details of the meetings and comments made by the stakeholders are provided in Table 8

Connectus

Site Specific Construction Noise and Vibration Management Plan

Project #: 2665 Doc. No. CRL-PAT-ENV-CON-PLN-001186

Client: Auckland Transport Revision: 07, Date: 25 May 2016

Table 8 Stakeholder Consultations

Address of Sensitive Receiver Representatives

16/11/15

22/26 Albert Street

Stamford Plaza Hotel and Tenants:

 United Travel

 Espresso Coffee School

 BaaBaa Black Sheep Café

 Grasshopper

 Thai Restaurant

 Taiko Japanese Restaurant

 Imagine Fitness

22/26 Albert Street

Expresso Coffee School

Interviews with all business owners, and hotel General Manager

Issue raised or comment provided How comment was incorporated (or if not incorporated, reason why not)

Concern about generator noise

Concern from some parties about noise in general as they have doors facing onto Swanson Street that remain open.

Thai Massage needs quiet conditions to operate

With the mitigation and management measures detailed in Section 7 of the CNV DWP and Section 4 of this SSCNVMP implemented, works may be audible but will not be at a level that interferes with business operations. Vibration may be felt but will not be at a level that damages the building.

Section 7 of this SSCNVMP provides details of the proposed noise and vibration monitoring.

22/26 Albert Street

United Travel

17/11/15

Follow up discussion with business owner and general inspection of façade, ventilation etc

17/11/15

Follow up discussion with business owner and general inspection of façade, ventilation etc

Noise concerns as door is open all day

Noise impact on outside seating area

Concerned about noise impacting their operations. They speak to customers all day in person or on the telephone so need reasonably quiet working environment

Noise break-in through the door could be an issue as there is a 1-2cm gap around the perimeter of the door. The landlord is proposing to install some seals to rectify this.

With the barriers installed as specified in Section 7 of the CNV DWP and Section 4 of this SSCNVMP noise from all construction activities will comply with the Project Noise Standards at this receiver.

With the barriers installed as specified in Section 7 of the CNV DWP and Section 4 of this SSCNVMP noise from all construction activities will comply with the Project Noise Standards at this receiver.

With door seals fitted, as currently proposed by the landlord, construction noise will not be at a level that impacts the business operations of this receiver.

Connectus

Project #: 2665

Site Specific Construction Noise and Vibration Management Plan

Doc. No. CRL-PAT-ENV-CON-PLN-001186

Client: Auckland Transport Revision: 07, Date: 25 May 2016

22/26 Albert Street

Thai Massage

22/26 Albert Street

Stamford Plaza Hotel

22/26 Albert Street

Stamford Plaza Hotel

20/11/15

Follow up discussion with business owner and general inspection of façade, ventilation etc

Needs a quiet environment for clients

Treatment rooms are adjacent to the façade overlooking Swanson Street

Also concerned about vibration

Meeting with the hotels building engineer

26/02/16

Meeting with new General Manager

Meeting to determine where the noise and vibration monitoring equipment could be located in the hotel.

Meeting with the new General Manager to provide an overview of the noise and vibration management plans.

Concerns raised over the potential noise and vibration impact on hotel guests.

Confirmed that the chosen locations for noise and vibration monitoring are acceptable.

With the barriers installed as specified in Section 7 of the CNV DWP and Section 4 of this SSCNVMP noise from all construction activities will comply with the Project Noise Standards at this receiver.

Vibration is unlikely to be at perceptible levels in this receiver.

The monitoring locations detailed in Section 7 of this SSCNVMP are the ones agreed with Stamford Plaza Hotel.

With the mitigation and management measures detailed in Section 7 of the CNV DWP and Section 4 of this SSCNVMP implemented internal noise levels are predicted not to trigger the compensation provisions in the Agreement with Stamford Plaza during all construction activities.

Vibration may be felt but will not be at a level that damages the building.

Connectus Site Specific Construction Noise and Vibration Management Plan

Project #: 2665

Client: Auckland Transport

7 MONITORING

Doc. No. CRL-PAT-ENV-CON-PLN-001186

Revision: 07, Date: 25 May 2016

In addition to the noise and vibration monitoring detailed in the CNV DWP, noise and vibration from construction activities will be continuously measured to monitor compliance with the Project Noise and Vibration Standards.

7.1 NOISE MONITORING

The location shown in Figure 5 (Level 3 Room 342) has been selected for noise monitoring as it is a laundry storage area, not a room that is used by guests This location has been agreed with Stamford Plaza Hotel as the equipment will not impede hotel operations.

Additional monitoring positions will be utilised, subject to approval by Stamford Plaza, to measure noise in the most exposed locations as work progresses in front of the building.

Figure 5 Proposed noise monitoring location

A microphone and ancillary equipment (logger, battery, case) will be set up by a suitably qualified professional in the selected location before the commencement of construction activities. Background noise will be measured prior to construction to determine the contribution of extraneous noise sources such as traffic and building services.

Noise levels will be measured continuously in 15 minute intervals for the duration of construction works. Audio may be recorded (with the permission of Stamford Plaza Hotel) along with noise levels to help exclude extraneous sources such as guest conversation, traffic and building services from the results. Noise level data will be downloaded periodically to monitor ongoing compliance with the Project Noise Standards. Noise levels during the 40 consecutive day construction period for the preparatory works will be reported to Stamford Plaza at least every 48 hours. Outside of this period, noise levels will be reported to Stamford Plaza no less than every 7 days. The reports will describe how the noise levels compare to the Project noise Standards.

Proposed noise monitoring location

Connectus Site Specific Construction Noise and Vibration Management Plan

Project #: 2665

Client: Auckland Transport

Doc. No. CRL-PAT-ENV-CON-PLN-001186

Revision: 07, Date: 25 May 2016

Simultaneous measurements will be taken 1m from the building façade when work commences to determine the level of sound reduction provided by the façade in this area. This level will then be used to adjust internal noise levels for comparison with the external Project Noise Standards.

Noise levels will also be measured in the ground floor conferencing and lobby/bar areas at critical phases of construction (at the commencement of services location and exposure, CFA piling and rock dowel drilling) to ensure that the noise barriers are providing the required level of noise mitigation in these areas.

7.2 VIBRATION MONITORING

The location shown in Figure 6 has been selected for vibration monitoring as it is at ground floor level in an area not used by staff or guests. This location has been agreed with Stamford Plaza Hotel as the equipment will not impede hotel operations. The proposed monitoring location is representative of the western façade of the building where PPV is expected to be highest.

Vibration levels will be measured prior to construction to determine the contribution of extraneous vibration sources such as traffic.

Additional monitoring positions will be utilised, subject to approval by Stamford Plaza, to measure vibration in the most exposed locations as work progresses in front of the building.

Vibration monitoring will also be undertaken at the highest level of the hotel in accordance with the requirements of DIN4150-3 to monitor horizontal motion.

Due to the need to ensure the best practicable measures to avoid damage and also manage occupant concerns, vibration levels will be monitored in person when a new activity is undertaken which may produce readily perceptible vibration in the hotel space. Activities that will continue to produce readily perceptible vibration logging results will be reported to Stamford no less thatn every 7 days in

Figure 6 Proposed vibration monitoring location
Proposed vibration monitoring location

Connectus

Project #: 2665

Client: Auckland Transport

Site Specific Construction Noise and Vibration Management Plan

Doc. No. CRL-PAT-ENV-CON-PLN-001186

Revision: 07, Date: 25 May 2016

accordance with the requirements of DIN 4150-3. The reports will describe how the vibration levels compare to the Project vibration Standards.

8 CONTINGENCY MEASURES

Section 11 of the CNV DWP describes the contingency measures to be implemented in the event that noise and vibration limits are exceeded. A summary of those measures is detailed below.

Where any construction activity is predicted and/or measured to exceed the Project Noise Standards or the Project Vibration Standards and is not authorised to do so by this SSCNVMP, see Section 5.3, the following process will be applied:

 Check that the BPO and all relevant management measures have been implemented (refer Section 7 of the CNVMP and Section 4 of this SSCNVMP)

 Communication and Consultation Manager to consult with all affected parties, to understand their particular sensitivities, including times, activities and locations. The Communication and Consultation Manager or their representative shall be available 24/7.

 Carry out noise and/or vibration monitoring of the construction activity to verify the extent of any adverse effects.

 Implement further mitigation and/or contingency measures to avoid significant adverse effects as agreed with the affected party.

In addition to the measures detailed above, where there is an exceedance of the noise and vibration standards set out in Conditions 31, 33 and 34 of the Designation, the Auckland Council Consent Monitoring Officer has the ability to call for an immediate cessation of the work(s) that is giving rise to the exceedance.

8.1 NOISE

If noise monitoring demonstrates non-compliance with the noise limits the following procedures shall be implemented:

 Undertake additional noise measurements, as necessary, to determine the extent of the exceedance. Where additional measurements are required they will be taken immediately.

 Discuss additional mitigation options with the Project Manager as soon as the extent of the exceedance has been determined. This may include immediately stopping works.

 Implement those additional mitigation options.

 Undertake noise measurements within 24 hours of the recommended mitigation measures being implemented to confirm that the mitigation has been effective and the noise limits are now being met.

 Preparation of a report recording the findings of the survey and detailing additional mitigation or management options. Copies of the report will be provided to Stamford Plaza, AT, the Project Manager, the Communication and Consultation Manager and the Sustainability Manager within 48 hours of the survey

Project #: 2665

Client: Auckland Transport Revision: 07, Date: 25 May 2016

8.2 VIBRATION – BUILDING DAMAGE

If vibration monitoring demonstrates non-compliance with the vibration building damage limits, the construction activity responsible for the exceedance will cease as soon as safe and practicable to do so. A detailed building condition survey will then be undertaken by a suitably qualified engineer at Connectus’ expense. The survey will be carried out as defined in Section 10.4 of the CNV DWP. This building condition survey is in addition to the building condition survey that will be carried out before work begins.

If damage has not occurred then that activity can continue provided the measured vibration level is not exceeded further.

If minor damage has occurred, such as cosmetic cracks, further mitigation will be applied if practicable. However, the activity can continue provided the measured vibration level is not exceeded further.

If moderate or severe damage has occurred and the best practicable option has been implemented, it will be necessary to stop work, if safe to do so, and investigate alternative construction methods.

All damage due to construction activities will be repaired within a reasonable timeframe after the construction phase ceases.

8.3 VIBRATION - AMENITY

If vibration monitoring demonstrates non-compliance with the vibration amenity limits the following procedures shall be implemented:

 Undertake additional vibration measurements, as necessary, to determine the extent of the exceedance. Where additional measurements are required they will be taken immediately.

 Discuss additional mitigation options with the Project Manager as soon as the extent of the exceedance has been determined. This may include immediately stopping works.

 Implement those additional mitigation options.

 Undertake vibration measurements within 24 hours of the recommended mitigation measures being implemented to confirm that the mitigation has been effective and the vibration limits are now being met.

 Preparation of a report recording the findings of the survey and detailing additional mitigation or management options. Copies of the report will be provided to Stamford Plaza, AT, the Project Manager, the Communication and Consultation Manager and the Sustainability Manager within 48 hours of the survey.

9 STAFF

Before working on these activities all staff will receive training in accordance with Section 7.2 of the CNV DWP and will read and comply with this SSCNVMP.

Project

Client: Auckland Transport Revision: 07, Date: 25 May 2016

APPENDIX A: UTILITIES AND PILING PROGRAMME (AS ISSUED TO STAMFORD PLAZA ON 5TH MAY 2016)

Connectus

Project #: 2665

Client: Auckland Transport

Site Specific Construction Noise and Vibration Management Plan

Doc. No. CRL-PAT-ENV-CON-PLN-001186

Revision: 07, Date: 25 May 2016

This page intentionally left blank.

DOCUMENT INFORMATION

Document Title: Site Specific Construction Noise and Vibration Management Plan: Stamford Residences Fulcrum Document Number:

Document based on MMS No: n/a Client: Auckland Transport

REVISION HISTORY

This document remains the property of Connectus. Its contents are confidential and shall not be reproduced, destroyed or given away without the express, written permission of Connects. The electronic version of this document in MMS Database on designated server(s) is the Master Copy and is a controlled document. Unless specifically noted thereon, other copies of this document are uncontrolled.

This page intentionally left blank

Connectus

Project #: 2665

Client: Auckland Transport

Site Specific Construction Noise and Vibration Management Plan

Doc. No. CRL-PAT-ENV-CON-PLN-001185

Revision: 09, Date: 3rd June 2016

1 INTRODUCTION

This is a Site Specific Construction Noise and Vibration Management Plan (SSCNVMP) and forms part of the Construction Noise and Vibration Delivery Work Plan (CNV DWP) for the CRL Contract 2 Enabling Works (the ‘Project’). This SSCNVMP provides specific assessment of construction noise and vibration effects on the Stamford Residences located at 22-26 Albert Street and has been prepared after reviewing the Agreement between Auckland Transport and Stamford Residences dated 19 August 2015 This SSCNVMP should be read in conjunction with the CNV DWP (Document Ref: CRL-PAT-ENV-CON-PLN-000903 Revision 6 dated 3rd June 2016) as it contains further details of the project, noise criteria, monitoring, general mitigation measures and other information. Where there is inconsistency between the CNV DWP and this SSCNVMP, then the provisions of the SSCNVMP shall prevail. Details of the construction methodology are contained in the Project Construction Environmental Management Plan (CEMP).

Acoustic terms are defined in the Acoustic Glossary in the CNV DWP.

1.1 OBJECTIVE

The objective of this SSCNVMP is to detail the best practicable option to avoid, remedy or mitigate adverse effects on Residents1 resulting from construction noise and vibration

1.2 SITE PLAN

Figure 1 shows the location of the works in relation to the Stamford Residences.

Figure 1 Site plan

1 ‘Resident’ means an owner or occupier of part of the Property. ‘Property’ means the property at Levels 12-23, including ancillary areas and common areas owned, used or occupied by the Stamford Residences at 22-26 Albert Street, Auckland Central.

Project #: 2665

2 RECEIVERS

The Stamford Residences occupies the building at 22-26 Albert Street from Level 12 to Level 23 The lower levels of the building are occupied by the Stamford Plaza Hotel.

All apartments have mechanical ventilation. The apartments have enclosed balcony areas along the Albert Street façade that have openable louvres for ventilation.

Table 1 Receiver information

Stamford Residences

0.3mm/s and 35 dBA (10pm-7am in bedrooms)

1.0 mm/s (7am-10pm in habitable rooms)

* This is the Monday to Saturday 07:00 to 22:00 noise criteria. The majority of works will be carried out during this period. For residential receivers the noise limit is reduced to 65 dB LAeq & 80 dB LAFmax on Sundays and Public Holidays between 07:00 to 22:00 and to 60 dB LAeq & 75 dB LAFmax at all other times.

Designation Condition 38.4 allows for the Project Vibration Standards to be relaxed by a SSCVMP but only for a building, structure or infrastructure that has been assessed by a suitably qualified and experienced structural engineer and where it has been deemed to be capable of withstanding higher vibration levels without sustaining building or structural damage, and where appropriate vibration and building condition monitoring regimes are in place. Based on the building condition surveys and the initial assessments by the structural engineer the building vibration limits could be reduced. However, it is considered prudent to keep the Project Vibration Building Damage Standards to better enable compliance with the Project Vibration Amenity Standards.

3 ACTIVITIES

Construction activities which have the potential to give rise to an exceedance of the Project Noise and/ or Vibration Standards (detailed in Section 1 of the CNV DWP) at the Stamford Residences are shown in Table 2 below. Start/end dates and hours of operation are also provided for each area of works. The start and end dates relate to the wider construction works area, it is expected that activities will only generate significant noise and/or vibration in the vicinity of the Stamford Residences for a fraction of the overall activity duration.

Project #: 2665

Table 2 Construction activities

Works Phase Construction Activity Area of

Advanced Utilities Works Utilities relocation

Between Points A and B:

Vector Electricity across Albert Street at Swanson Street and part of the Combined Service Trench Swanson Street to Wyndham Street

Albert Street Piling and Capping Beam Utilities location and exposure along piling line

Installation of CFA piles

Installation of pile cap

Excavation and Spoil Handling and Shotcrete and Strip Drain Installation and Rock Dowel Installation

Waterproofing and Tunnel Construction Waterproofing and tunnel construction

Trench Backfilling Trench

Between Points A and B:

Both sides of Albert Street

Between Points A and B: Both sides of Albert Street

10 non consecutive weeks between 10 Oct 2016 and 04 May 2017

490)

and reinstatement Swanson

490)

* The dates shown in Table 2 are dependent on the Stamford Plaza SSCNVMP being finalised and subsequently agreed to by Auckland Council. If the timeframe for this is delayed then the start of construction will be delayed accordingly.

Auckland Transport will use best endeavours to provide written notice six months prior to any predicted exceedances of the Project Noise and/or Vibration Standards and otherwise as soon as reasonably practicable. This notice shall include the start and end date of the period for which exceedances are predicted to arise from:

Project #: 2665

Client: Auckland Transport

(i) Preparatory activities (including road cutting);

(ii) Piling on the western side of the CRL trench; and (iii) Piling on the eastern side of the CRL trench.

Revision: 09, Date: 3rd June 2016

Piling, saw cutting and any other activity that produces the same noise level as piling will only be carried out between the hours of 07:30 and 18:00 Monday to Saturday in the area between 20m north of Mills Lane (Point A) and 20m south of Swanson Street (Point B). Those components of the preparatory works between Points A and B that exceed the Project Noise and/or Vibration Standards will be completed over a total of 40 days. Connectus may continue activities that do not exceed the Project Noise and/or Vibration Standards, such as completing pavement reinstatement and cable pulling, beyond the 40 day period. Between Points A and B piling will take no longer than 6 weeks on each side of the road The piling works on each side of the road will be undertaken in two – three different stages, in order to manage traffic and access into the Stamford site, but the total duration of these different stages will not exceed the specified 6 weeks on each side of the road.

3.1.1 Equipment

Construction equipment used for each of the above activities is shown in Table 3 with sound pressure level at 5m resulting from individual equipment items. These equipment levels are placeholders. All equipment will be measured operating independently and then actual equipment noise levels and model numbers will be recorded and updated within the table.

Table 3 Construction Equipment

3.2

VIBRATION

Construction activities and equipment which are expected to generate significant vibration levels in the vicinity of Stamford Residences are shown in Table 4 along with start and end dates, and hours of operation. The start and end dates relate to the wider construction works area, and it is expected that activities will only generate significant vibration in the vicinity of the Stamford Residences for a fraction of the overall activity duration.

Table 4 Vibration sources

4 MITIGATION

4.1

NOISE

Specific effects on this receiver that could result from exceedances of the noise criteria include the annoyance and disturbance of residents.

Mitigation is required to meet the noise criteria at the Stamford Residences. In addition to the general noise and vibration control measures outlined in Section 7 of the CNV DWP, the specific noise mitigation measures detailed in Table 5 will be implemented. These mitigation measures represent the Best Practicable Option to avoid, remedy or mitigate adverse effects on the Stamford Residences.

Project #: 2665

Client: Auckland Transport Revision: 09, Date: 3rd June 2016

Table 5 Specific Noise Mitigation Measures

Equipment/process

Concrete cutting

Concrete breaking

Vacuum Excavation

Piling

Excavators, bobcats, loaders

Noise control measures

Use a mobile acoustic enclosure where practicable. Use of a mobile acoustic enclosure may not be practicable when:

 Cutting within 300mm of a kerb or canopy structure

 Saw cuts need to be made around an obstruction that protrudes above surface level, such as a light pole or street sign.

 The road saw needs to be manoeuvred around in a tight space that would be obstructed by the acoustic enclosure

When use of a mobile acoustic enclosure is not practicable works will be planned so that saw cutting directly in front of a receiver is completed within a total of two working days. The building owner will be contacted at least one week prior to this occurring to see if the works can be scheduled for a time that least impacts them.

It is assumed that all concrete can be removed by saw cutting and lifting with an excavator. Concrete breakers will not be used in the vicinity of the Stamford Residences unless something is encountered in the ground that cannot be removed by any other method. In this case the smallest breaker capable of completing the task will be used and where practicable the works will be carried out in a mobile acoustic enclosure.

Locate the vehicle so the pump is facing away from the closest noise sensitive properties

The new design has reduced the number of piles within the zone (20m north of Mills Lane to 20m South Of Swanson) on the East side of Albert Street considerably. The original design as presented in the Notice of Requirement hearings used approximately 87 piles. Connectus have been able to reduce this to only 60 piles.

The method of piling has also changed from the original design. Piling will now be by Continuous Flight Auger which produces less noise and vibration.

Excavators of 15t or less will be used in the vicinity of Stamford Plaza Hotel unless it can be demonstrated by measurement that bigger excavators will meet the noise criteria. Tracks will be greased regularly.

Crane Straps rather than chains will be used unless a risk assessment deems the use of straps unsafe.

Excavator mounted drilling rig

Construction Deck

Construction vehicles, plant and equipment

Localised screening will be used where required. The screens will be positioned to cut line of site between the noisy elements of the drilling rig and the Stamford Residences.

The original construction methodology presented at the Notice of Requirement hearings showed a single deck structure being built across Albert Street in front of Stamford Residences It was proposed that all materials for constructing the tunnel came in and out of this point during the excavation, tunnel construction and backfilling phases. The new design has switched to a continuous deck structure, which has reduced the requirement for plant to be located near Stamford Residences by at least 50%.

Tonal alarms will not be used during the movement of construction vehicles, plant and equipment. Broadband alarms will be used instead.

Connectus

Project #: 2665

Client: Auckland Transport

Site Specific Construction Noise and Vibration Management Plan

Doc. No. CRL-PAT-ENV-CON-PLN-001185

Revision: 09, Date: 3rd June 2016

Noise barriers/hoardings will be installed around the work site but they will provide no attenuation to the Stamford Residences which begin at Level 12. Little reduction is provided for receivers located at Level 3 and above.

4.2 VIBRATION

In addition to the general noise and vibration control measures outlined in Section 7 of the Project CNV DWP the following specific vibration mitigation measures (Table 6) should be implemented if the initial on site vibration monitoring demonstrates that the building damage vibration limits will be exceeded:

Table 6 Specific Vibration Mitigation Measures

Excavator mounted rock breaker

4.3 HABITATION

Concrete breakers will not be used unless something is encountered in the ground that cannot be removed by saw cutting. Should breakers be required a hand held jack hammer rather than an excavator mounted breaker will be used when within 10m of the Stamford Residences building.

If notwithstanding any mitigation measures set out above and additional to the contingency measures set out in Section 8 of this SSCNVMP, the noise and/or vibration effects on the Residents exceeds the levels set out in Table 7 so as to unreasonably interfere with the Residents habitation and/or renders the relevant space uninhabitable, then temporary relocation and/or the payment of the cost of the temporary relocation shall be offered to the Residents concerned.

Table 7 Internal level at which noise and vibration effects may unreasonably interfere with habitation and/or render the relevant space uninhabitable

4.4 RESIDUAL EFFECTS

The intention is that after taking into account the mitigation measures set out above, together with other provisions of this SSCNVMP that (unless Section 4.3 applies) the residual effects of the construction are not likely to cause significant disruption to the activities of the Residents.

Project #: 2665

Client: Auckland Transport Revision: 09, Date: 3rd June 2016

5 PREDICTED NOISE AND VIBRATION LEVELS

5.1 NOISE

The predicted worst case noise levels from each activity received at the most exposed part of the Stamford Residences (level 12) are shown below in Table 8 These levels correspond to the construction equipment being located at its nearest position relative to the receiver and assume that all mitigation detailed in Section 7 of the CNV DWP and Section 4.1 of this SSCNVMP has been implemented. The predicted noise levels take into account whether works are being carried out at ground level or below the ground.

Table 8 Predicted noise levels

Construction Activity Project Noise Standard, dB LAeq

Predicted noise level with all mitigation measures implemented, dB LAeq

*This exceedance is caused by saw cutting and will occur during the 40 day period for preparatory works.

**This exceedance is caused by the piling rig and will occur during the 12 week period for piling works.

Noise levels will decrease with distance from the noise source such that noise levels at higher floors and at facades not directly exposed to the noise source will be lower than those shown above. This is illustrated in Figure 2 showing noise levels due to CFA pile installation decreasing with increasing floor level.

Project #: 2665 Doc. No. CRL-PAT-ENV-CON-PLN-001185

Client: Auckland Transport

Revision: 09, Date: 3rd June 2016

5.1.1 Internal noise levels

Apartment Environment

The façade of the building is mostly glazed and all apartments are mechanically ventilated. The apartments have enclosed balcony areas along the Albert Street façade that have openable louvres for ventilation. An external to internal noise level difference of 35 dB is predicted in all areas except for the enclosed balconies where the level difference is predicted to be 15-20 dB when the louvres are open.

Assuming all mitigation and management measures detailed in Section 7 of the CNV DWP and Section 4.1 of this SSCNVMP are implemented, and an external to internal noise level difference of 35 dB is achieved, internal noise levels noise levels in the most exposed apartments on Level 12 may reach 50 dB LAeq when utilities works are being carried out directly in front of the building on the east side of Albert Street. All other activities associated with the Project will be result in noise levels of 45 dB LAeq or below.

Balcony Environment

When utilities works and piling are immediately outside of the building noise levels in the enclosed balcony areas of the most exposed apartments on Level 12 may reach 65 dB LAeq The works in this area will be of a limited duration. The most effective way to reduce noise levels further will be to close the louvres. With the louvres closed the noise levels in the enclosed balcony areas of the most exposed apartments on Level 12 may reach 55 - 60 dB LAeq

Façade sound insulation improvements are not considered necessary for the Stamford Residences.

Figure 2 CFA Piling - facade noise levels

Connectus Site Specific Construction Noise and Vibration Management Plan

Project #: 2665 Doc. No. CRL-PAT-ENV-CON-PLN-001185

Client: Auckland Transport

5.2 VIBRATION

Revision: 09, Date: 3rd June 2016

Vibration regression curves and emission radii for the vibration sources can be found in Section 5.2 of the CNV DWP. The emission radius is the distance at which vibration levels from an activity/equipment item are expected to exceed the Project Vibration Standards for a particular type of building. For the purposes of assessing vibration, the Stamford Residences building is classed as Residential.

We note that the emission radii are based on generic data, conservatively sized equipment and ground conditions. Vibration levels from actual equipment at the site may differ and are likely to be less than assumed for the emission radius.

The only equipment predicted to exceed the Project Vibration Standards is the excavator mounted concrete breaker if used within 10m of the building. As discussed previously this equipment will only be used if something is found during the works that cannot be removed by saw cutting.

Monitoring will be carried out at the earliest opportunity on site to determine the adjustments for ground conditions and actual equipment items. If the initial vibration monitoring demonstrates that the emission radii are similar to those detailed in Section 5.2 of the CNV DWP the mitigation detailed in Section 4.2 of this SSCNVMP will be implemented

Vibration from construction activities will be continuously measured in the Stamford Residences building to monitor compliance with the Project Vibration Standards, as detailed in Section 7 of this SSCNVMP. Section 8 of this SSCNVMP details the process that will be followed if vibration levels in excess of the Project Vibration Standards are measured.

6 COMMUNICATION AND CONSULTATION

Section 9.1 of the CNV DWP details the communication procedures in relation to construction noise and vibration effects The Communication and Consultation Manager for the Project is Alan HowardSmith, telephone number 021 361158. All communications and complaints should be directed to him in the first instance. Alternatively the project will be contactable 24/7 through the freephone number, 0800 CRL TALK (275 8255)

Consultation with the Stamford Residences took place on 17th November 2015. The building manager and representatives of the residents were present. Topics that were covered included:

 Sequencing of construction activities

 Likely equipment and associated noise and vibration levels

 Mitigation & management measures that will be implemented

 Construction of the building

The residents representatives raised general concerns about noise and vibration impacts although they were pleased that the predicted noise and vibration levels are lower than indicated during the NoR process. They were also pleased that the piling method is CFA rather than driven piles which they had been told were necessary.

A further meeting was held with representatives of Stamford Residences on `18th February 2016 to discuss monitoring requirements and suitable locations for noise and vibration monitoring.

Project #: 2665 Doc. No. CRL-PAT-ENV-CON-PLN-001185

Client: Auckland Transport

7 MONITORING

Revision: 09, Date: 3rd June 2016

Section 10 of the CNV DWP provides details of the noise and vibration monitoring procedure that will be implemented for the duration of the Project. It includes details of monitoring that will be conducted in response to complaints. In addition to the noise and vibration monitoring detailed in the CNV DWP, noise and vibration levels from construction activities in the area between 20m north of Mills Lane and 20m south of Swanson Street will be continuously monitored to inform assessment of compliance with the noise and vibration standards set out in Conditions 31, 33 and 34 of the Designation. Automated noise and vibration loggers will be located at positions that will represent the noise and vibration level in the relevant space for the relevant limits. A suitably qualified professional will set up the noise and vibration loggers and will be responsible for reviewing/ assessing the data from the loggers for the duration of the works.

The location shown in Figure 3 (Level 12 Lift Lobby) has been selected for noise monitoring as it is on the most exposed façade of the building. This location has been agreed with Stamford Residences as the equipment will not impede residents Alternative monitoring positions may be utilised subject to approval by Stamford Residences.

A microphone and ancillary equipment (logger, battery, case) will be set up in the selected location before the commencement of construction activities in the area between 20m north of Mills Lane and 20m south of Swanson Street. Background noise will be measured prior to construction to determine the contribution of extraneous noise sources such as traffic and building services.

Noise levels will be measured continuously in 15 minute intervals for the duration of construction works in the area between 20m north of Mills Lane and 20m south of Swanson Street. Audio may be recorded (with the permission of Stamford Residences) along with noise levels to help exclude extraneous sources such as conversation, traffic and building services from the results.

Simultaneous measurements will be taken 1m from the building façade when work commences to determine the level of sound reduction provided by the façade in this area. This level will then be used to adjust internal noise levels for comparison with the external Project Noise Standards.

Vibration monitoring will be conducted in a similar location but at ground floor level. The selected location is representative of the western façade of the building where PPV is expected to be highest This location has been agreed with Stamford Residences as the equipment will not impede residents. Alternative monitoring positions may be utilised subject to approval by Stamford Residences.

Vibration monitoring will also be carried out at the top floor of the Residences to check compliance with the Project Vibration Standards. This monitoring will be carried out during works that are predicted to generate the highest levels of vibration. The duration and frequency of monitoring on the top floor level will be determined by the initial measurement results.

Connectus

Project #: 2665

Client: Auckland Transport

Site Specific Construction Noise and Vibration Management Plan

Doc. No. CRL-PAT-ENV-CON-PLN-001185

Revision: 09, Date: 3rd June 2016

Figure 3 Proposed noise and vibration monitoring location

Proposed noise and vibration monitoring location

Noise and vibration level data will be downloaded periodically to monitor ongoing compliance with the Project Noise Standards. Noise and vibration levels during the advanced utilities works and the preparatory works for piling will be reported to Stamford Residences at least every 48 hours. Outside of that period, noise and vibration levels will be reported to Stamford Residences no less than every 7 days. The reports will detail how the noise and vibration levels compare to the Project Noise and Vibration Standards.

8 CONTINGENCY MEASURES

Section 11 of the CNV DWP describes the contingency measures to be implemented in the event that the Project Noise and Vibration standards are exceeded. A summary of those measures is detailed below.

Where any construction activity is measured to exceed the Project Construction Noise or Vibration Standards the following process will be applied:

 Check that the BPO and all relevant management measures have been implemented (refer Section 7 of the CNVMP and Section 4 of this SSCNVMP)

 Communication and Consultation Manager to consult with all affected parties, to understand their particular sensitivities, including times, activities and locations. The Communication and Consultation Manager or their representative shall be available 24/7.

 Carry out noise and/or vibration monitoring of the construction activity to verify the extent of any adverse effects.

 Implement further mitigation and/or contingency measures to avoid significant adverse effects as agreed with the affected party.

In addition to the measures detailed above, where there is an exceedance of the noise and vibration standards set out in Conditions 31, 33 and 34 of the Designation, the Auckland Council Consent

Connectus

Project #: 2665

Client: Auckland Transport

Site Specific Construction Noise and Vibration Management Plan

Doc. No. CRL-PAT-ENV-CON-PLN-001185

Revision: 09, Date: 3rd June 2016

Monitoring Officer has the ability to call for an immediate cessation of the work(s) that is giving rise to the exceedance.

8.1 NOISE

If noise monitoring demonstrates non-compliance with the Project Noise Standards the following procedures shall be implemented:

 Undertake additional noise measurements, as necessary, to determine the extent of the exceedance. Where additional measurements are required they will be taken immediately.

 Discuss additional mitigation options with the Project Manager as soon as the extent of the exceedance has been determined. This may include immediately stopping works.

 Undertake noise measurements within 24 hours of the recommended mitigation measures being implemented to confirm that the mitigation has been effective and the noise limits are now being met.

 Preparation of a report recording the findings of the survey and detailing additional mitigation or management options. Copies of the report will be provided to Stamford Residences, AT, the Project Manager, Communication and Consultation Manager and Sustainability Manager within 48 hours of the survey.

8.2 VIBRATION – BUILDING DAMAGE

If vibration monitoring demonstrates non-compliance with the vibration building damage limits, the construction activity responsible for the exceedance will cease as soon as safe and practicable to do so. A detailed building condition survey will then be undertaken by a suitably qualified engineer. The survey will be carried out as defined in Section 10.4 of the CNV DWP. This building condition survey is in addition to the building condition survey that will be carried out before work begins.

If damage has not occurred then that activity can continue provided the measured vibration level is not exceeded further.

If minor damage has occurred, such as cosmetic cracks, further mitigation will be applied if practicable. However, the activity can continue provided the measured vibration level is not exceeded further.

If moderate or severe damage has occurred and the best practicable option has been implemented, it will be necessary to stop work, if safe to do so, and investigate alternative construction methods.

All damage due to construction activities will be repaired within a reasonable timeframe after the construction phase ceases.

9 STAFF

Before working on these activities all staff will receive training in accordance with Section 7.2 of the CNV DWP and will read and comply with this SSCNVMP.

Turn static files into dynamic content formats.

Create a flipbook
Issuu converts static files into: digital portfolios, online yearbooks, online catalogs, digital photo albums and more. Sign up and create your flipbook.