
Mt Eden Main Works
Construction Noise and Vibration Delivery Work Plan –
Appendix C – Site Specific Construction Noise and Vibration Management Plans (SSCNVMPs)
CRL-MTE-RME-LKA-PLN-800036 – Appendix C SSCNVMPs
Revision: 001B
Date: 30 July 2020
Construction Noise and Vibration Delivery Work Plan –
Appendix C – Site Specific Construction Noise and Vibration Management Plans (SSCNVMPs)
CRL-MTE-RME-LKA-PLN-800036 – Appendix C SSCNVMPs
Revision: 001B
Date: 30 July 2020
CRL-MTE-RME-LKA-PLN-800036 – Appendix C SSCNVMPs
This document contains the Site Specific Management Plans identified in Table 3.1 of the CRL Mount Eden Main Works CNV DWP (CRL-MTE-RME-LKA-PLN-800036)
The triggers for a Site Specific Management Plan (e.g. SSCNMP, SSCVMP and SSCNVMP) are set out in CNV DWP Sections 4.1.2 and 4.2.3 for noise and vibration respectively.
The objective of a SSCNVMP is to detail the best practicable option(s) (BPO) to avoid, remedy or mitigate adverse effects on a receiver resulting from construction noise and/or vibration that does not comply with Project Noise and/or Vibration Standards. CRL designation conditions 37.5 and 38.5 specify matters that each SSCNVMP must identify.
Table 1 provides a summary of each matter and indicates where the relevant information is located, either in the CNV DWP or individual SSCNVMP.
For example, where activity-specific BPO measures are implemented at source, rather than at the receiver, they are described in the CNV DWP only and not reproduced in each SSCNVMP. This avoids repetition and ensures that when the BPO is updated, it only needs to be updated in the CNV DWP.
Each SSCNVMP includes a summary of the consultation undertaken with individual noise and vibration receivers, particularly sensitive activities or times, agreed mitigation or management measures, and preferred method of engagement going forward. The consultation previously undertaken for each Mt Eden Enabling and Normanby Early Works SSCNVMP is also included for information. This ensures the consultation builds on previous outcomes and enables consistency.
Table 1: SSCNVMP components
Conditions 37.5 and/or 38.5
a) The extent of the exceedance
b) The timing and duration of the exceedance
Relevant Section of DWP and/or SSCNVMP
CNV DWP Section 7 identifies predicted noise and/or vibration exceedances using the modelling outputs in insert hyperlink to the GIS maps here. It identifies the need for an SSCNVMP.
Each SSCNVMP summarises the consultation undertaken with individual receivers regarding the predicted exceedances.
CNV DWP Section 2.3 refers to the project staging described in the Construction Environmental Management Plan (CEMP) to avoid potential conflicts when either document is updated
CNV DWP Section 9.2.1 sets out timing, with normal construction hours between 7am –10pm, Monday to Friday and 7am to 7pm Saturday.
CNV DWP Section 10 sets out the communication requirements for any exceedances. This is addressed further in d) below.
Each SSCNVMP summarises the consultation regarding general programme and the relevant activities addressed in a) above.
c) The activity causing the exceedance Identified in a) above.
d) Communication and consultation with the receiver
CNV DWP Section 10 sets out the communication requirements. It refers to the Communication and Consultation Plan (CCP) to avoid potential conflicts when either document is updated It specifically requires general monthly updates and communication of timeframes for works with the potential to exceed the relevant limits.
e) The methods and measures to mitigate noise and/or vibration effects
f) The reasons why the management and mitigation measures and methods reflect BPO
The monthly “works update” emails generally include information about upcoming activities, location, timeframes, hours of works, anticipated effects, associated mitigation measures and contact details. Supplementary targeted communications are more specific.
Each SSCNVMP summarises the consultation with the receiver. In most cases, advanced communication of works with the potential to exceed the relevant Standards is an acceptable means of managing effects. In more specific cases, they include specific times to avoid or prioritise.
The CNV DWP sets out the BPO measures, including the mitigation and management measures in Section 9, the engagement in Section 10 and monitoring in Section 11.
Each SSCNVMP refers to the relevant measures in Section 9 and summarises the consultation with the receiver. In more specific cases, they include specific criteria that addresses an identified issue of concern (e.g. sensitive equipment).
Detailed by addressing a) through e) above, and set out in each SSCNVMP
All SSCNVMPs for the Mt Eden Main Works follow overleaf.
C1.1
This Site Specific Construction Noise and Vibration Management Plan (SSCNVMP) is for the MediaWorks Building at 3 Flower Street. It is required to satisfy CRL designation conditions 35, 39 and 40.
As Appendix C1 of the Mt Eden Main Works Construction Noise and Vibration Delivery Work Plan (CNV DWP), this SSCNVMP is a supplementary document that builds on the CNV DWP, and therefore, directly references relevant sections of the CNV DWP to avoid repetition. Together, the CNV DWP and MediaWorks SSCNVMP are consistent with the draft MediaWorks SSCNVMP1. It will be implemented for works within 100m and blasting activities within 200m of the MediaWorks Building.
The objective of this SSCNVMP is to detail the best practicable option(s) (BPO) to avoid, remedy or mitigate the identified adverse effects on MediaWorks. It contains, or references:
• Details of those responsible for implementing this SSCNVMP (CNV DWP Section 3)
• MediaWorks noise and vibration sensitive spaces (Section C1.3)
• The relevant standards (the general requirements in CNV DWP Section 4 and the MediaWorks specific requirements for Studio 1 are summarised in Section C1.2)
• Predicted construction noise and vibration levels and transfer functions (Section C1.4)
• Mitigation and management measures (CNV DWP Section 9)
• Communication protocol (CNV DWP Section 10)
• Monitoring (CNV DWP Section 11 and Section C1.5 specifically for Studio 1)
• Contingency measures (CNV DWP Section 12.3 and Section C1.6 specifically for Studio 1).
• SSCNVMP review process (CNV DWP Section 1.6 and CRL designation condition 40.13)
This SSCNVMP has been prepared by Marshall Day Acoustics and forms part of the Construction Environmental Management Plan (CEMP) for the Mt Eden Main Works. It builds on the SSCNVMP previously prepared and implemented for the Mt Eden Enabling Works.
1 Project Agreement in respect of the City Rail Link between Auckland Transport (AT) and MediaWorks Holdings Limited (Mediaworks), reference item 6 and Appendix 1.
The relevant construction noise standards are summarised in Table C1.2.1.
Table C1.2.1: Construction Noise – MediaWorks
31.1
Studio 1 (Sensitive Times)
The relevant construction vibration standards are summarised in Table C1.2.2.
Table C1.2.2: Construction Vibration – MediaWorks
32.4 Amenity (blasting) 10 mm/s PPV for 95% of events 15 mm/s PPV for 100% of events
33.1 Building Damage8 Refer DWP Section 5.2.1
35.3 Studio 1 0.1 mm/s PPV9 construction 0.25mm/s PPV demolition only
35.6 Amenity (excluding blasting) 1 mm/s PPV
Floor of occupied areas.
Building foundations or Top floor
Floor of Studio 1 (Sensitive Times). If compliant in Studio 1, vibration in other studios will be acceptable.
Floor of office areas, meeting rooms and technical suites (occupied times).
35.8 Sensitive equipment 5–500Hz: 200mg (2 m/s2) Floor supporting sensitive equipment
The operational requirements and constraints provided by MediaWorks for Studio 1 are detailed in CRL designation conditions 35.1 – 35.3 and summarised as follows: • Sensitive Times are defined as:
2 Measured and assessed in accordance with the provisions of New Zealand Standard NZS 6803:1999 “AcousticsConstruction Noise”
3 Measured and assessed in accordance with the provisions of Australian Standard AS 2187.2-2006 “Explosives – Storage and use – Use of explosives”. Refer Section 5.3
4 Sensitive times defined in CRL designation conditions 35.1 – 35.3 and summarised below
5 Limits may be up to 5 decibels higher for defined periods with the specified notifications detailed in condition 35.2
6 Position representative main presenter(s) microphone and with the doors and windows closed (conditions 35.4/5)
7 These are the measurement locations where required by the Standard. For monitoring, proxy locations can be used with established transfer functions (refer condition 40.9)
8 Measured and assessed in accordance with the provisions of German Standard DIN 4150-3:1999 “Structural vibration – Part 3: Effects of vibration on structures”
9 Limit may be elevated by agreement with MediaWorks as per demolition works detailed in C1.3 dated 25 Nov 2019
9 | Mt Eden Main Works CNV DWP – Appendix C SSCNVMPs
- During scheduled live broadcasting
- During emergency/breaking news live broadcasting
- During scheduled recording sessions
• Live Broadcasting Periods are defined as:
- Weekdays: 0600 – 0900 hrs, 1200 – 1230 hrs, 1730 – 1930 hrs and 2230 – 2330 hrs. However, these have been updated by MediaWorks in the consultation overleaf.
- Christmas holiday season (Saturday prior to Christmas Day to Sunday following New Year’s Day inclusive): 1730 – 1900 hrs
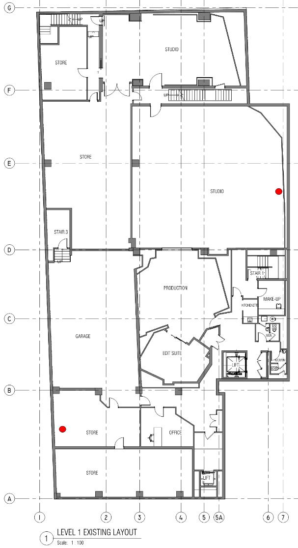
The building is a terraced commercial building. It features basement car parking beneath 2 –4 levels of office areas overlooking the portal and worksite on the Nikau Street façade. The west façade includes a basement truck dock (lobbied access to Studio 1) beneath office areas at the south end off Ruru Street and editing suites further north, away from the worksite. Studio 1 is in the basement in the middle of the block (i.e. it does not have direct road frontage or access). Other smaller recording studios (including radio and TV) are spread across multiple floors, but also do not front Nikau Street and the worksite.
Link Alliance representatives Sonya Leahy, Matt Goldring, Aidan Kirkby-McLeod, Duncan Whyte and Craig Fitzgerald (Marshall Day Acoustics) met with MediaWorks representatives Richard Paul (Property), Darryn Fouhy (Operations) and Emma Michell (Facilities) on 18 September 2019. The matters discussed included:
• An overview of the project
• General programme, demolition, piling, rock breaking/blasting and tunnelling activities
• Overview of the CNV DWP and this SSCNMP, communications triggers and protocol
• Confirmed knowledge of noise and vibration sensitive spaces, including Studios
• Noise and vibration monitor locations agreed and described in Section C1.5
• MediaWorks confirmed that the Sensitive Times in the CRL designation conditions do not reflect current operations. MediaWorks provided updated Sensitive Times (received 18 September 2019):
o Monday – Friday: 0600 – 0915, 1600 – 1700, 1730 – 1915, 2020 – 2330
o Saturday: 0900 – 1230, 1700 – 1915
o Sunday: 1700 – 1915
Fortnightly meeting (22 November 2019). The discussion focused on the results of attended demolition noise and vibration monitoring in Studio 1 to assess the impact of reradiated noise on broadcast quality. It was agreed that vibration controls applying to Studio 1 could be relaxed to 0.25mm/s PPV during Sensitive Times for demolition activities only (confirmed by email from Darryn Fouhy on 25 November 2019).
In addition, the following specific management measures were recommended for demolition phases 1a and 1b only:
• Concrete breaking shall not occur during Sensitive Times
• Concrete ripping should be limited to 20T excavator
The same monitoring process will be repeated for subsequent construction activities before any relaxation is extended (e.g. bored piling, rock breaking, vibro piling).
Fortnightly meeting (17 January 2020) The discussion focused on the results of trial vibro roller vibration monitoring. The closest works are predicted to exceed the vibration amenity limit of 1mm/s PPV (discussed further in section C1.4). The proposed period of use of the vibro roller spans approximately 3 weeks. It was agreed that vibro rolling will be timed outside Sensitive Times only.
Fortnightly meeting (31 January 2020) The upcoming trial blasting vibration monitoring was discussed. The following were agreed with MediaWorks, Link Alliance and Red Bull:
• Blasting times will be at 10.32am and/or 2.32pm.
• Red Bull will use GPS time to ensure exact timing to align with radio pre-recorded news broadcast. Blasting envelope is approximately 14 seconds but will still be within the 3minute window provided.
• Red Bull will confirm the radio channel to listen in to the countdown sequence (in addition to the audible site sirens).
Fortnightly meeting (31 January 2020) We discussed the upcoming trial blasting vibration monitoring. The following were agreed with MediaWorks, Link Alliance and Red Bull:
• Blasting times will be at 10.32am and/or 2.32pm.
• Red Bull will use GPS time to ensure exact timing to align with radio pre-recorded news broadcast. Blasting envelope is approximately 14 seconds but will still be within the 3minute window provided.
• Red Bull will confirm the radio channel to listen in to the countdown sequence (in addition to the audible site sirens).
Fortnightly meetings (31 January 2020). We discussed the upcoming trial blasting vibration monitoring. The following were agreed with MediaWorks, Link Alliance and Red Bull:
• Blasting times will be at 10.32am and/or 2.32pm.
• Red Bull will use GPS time to ensure exact timing to align with radio pre-recorded news broadcast. Blasting envelope is approximately 14 seconds but will still be within the 3minute window provided.
• Red Bull will confirm the radio channel to listen in to the countdown sequence (in addition to the audible site sirens).
Fortnightly meetings (18 and 28 February 2020). We provided an overview on monitoring results from trial blasting, bored piling and vibro roller operations. We also met with Radio Tarana on 27 February (MediaWorks radio station based in a building at 155 New North Road). We met with Robert Khan to discuss the project and better understand how Radio Tarana operates. Mr Khan advised they have not noticed any impacts from the project to date, and did not have any concerns about upcoming works. Craig explained the potential impacts from noise and vibration and how LA mitigates these impacts with MediaWorks, who are in very close proximity to the project. Mr Khan advised that Radio Tarana is comfortable to be included under the same conditions and mitigations used with MediaWorks. They do not wish to have any special controls. Link Alliance Mt Eden agreed to add Radio Tarana to the C3 distribution list and newsletter list.
Meeting (19 June 2020). We reviewed blasting monitoring results, vibration alerts and upcoming works. In summary:
• Blasting results discussed, including two proximate production blast. One blast event was delayed by an hour due to technical difficulties, and the liaison with MediaWorks to agree alternative blasting time an hour later worked well. No impact on MediaWorks operations. Prerecording of the radio news no longer required because no effect on presenters, guests or broadcast quality
• Review of large number of vibration alerts, mostly false positives. To ensure relevant alert response the following protocol was agreed based on dominant frequency content:
o 0 – 2 Hz (earthquake or similar – ignore)
o 5 – 40 Hz (credible construction vibration – investigate)
o 48 – 50 Hz (local event within building – ignore)
• Sheet piling trial in Water St site scheduled for 1 – 2 July. Noted that driving to be complete by 4pm to avoid Sensitive Times at Boston Road site.
• MediaWorks happy to extend demolition alert threshold of 0.25mm/s PPV during Sensitive Times in Studio 1 to all construction activities going forward.
• All proximate construction activities ok. Next activity of note that will require in Studio attended monitoring will likely be excavation of the tunnel stubs using a road header or similar Attended monitoring at MediaWorks to ramp back in near-term
Mt Eden Main Works
Continue monitoring and engagement, including fortnightly meetings.
C1.4 Predicted Construction Noise and Vibration Levels
This is SSCNVMP necessary because it is within 100m of the works and 200m of blasting activities. CRL Main Works activities are predicted to comply with the noise and vibration limits at MediaWorks site, provided blasting is undertaken at times agreed for the Mt Eden Enabling Works The following subsections are reproduced from the Mt Eden Enabling Works CNV DWP to ensure consistency.
Noise (excluding Studio 1)
Figures B.1, B.3 and B.5 in Appendix B of the Mt Eden Enabling Works CNV DWP show that the south façade is predicted to be exposed to noise levels between 70 – 80 dB LAeq during the closest demolition, bored piling and concrete breaking activities, exceeding the 75 dB LAeq noise limit.
The building has a masonry façade with sealed windows, which will mitigate noise received in adjacent office areas. Furthermore, secondary glazing has been installed to further mitigate residual noise levels in office areas on level 2 of the MediaWorks building10
The estimated sound level difference across the façade with the windows and doors closed is in excess of 30 decibels. The predicted construction noise effects from Table 12-1 in Section 12.1 are predicted to be typically acceptable, but with the potential for some intermittent
10 Project Agreement in respect of the City Rail Link between Auckland Transport (AT) and MediaWorks Holdings Limited (Mediaworks), reference item 7 and Appendix 2.
disturbance for occupants on the southern façade. The performance will be reconfirmed during attended monitoring of early works.
TBM, road header, concrete breaking and rock breaking vibration received in the MediaWorks building office areas, meeting rooms and technical suites is predicted to comply with the 1mm/s PPV amenity limit in CRL designation condition 35.5 (discussed further for Studio 1 below).
Vibro rolling is required to form the benching for the portal piling rig. It will be timed outside Sensitive Times only. The relevant area requiring compaction is between 10m and 80m from the MediaWorks Nikau Street façade. Best practice measures to minimise vibration are set out in Section 9.10. Vibration levels of 2.5mm/s PPV are predicted at 10m from the MediaWorks building, exceeding the amenity limit of 1mm/s PPV
A pre-construction building condition survey in accordance with CRL designation condition 46 has been undertaken and will ensure any damage is identified for remediation.
In accordance with CRL designation condition 35.3, if the limits are complied with in Studio 1, the noise and vibration levels in all other Studios will be acceptable.
In accordance with CRL designation condition 40.1, high noise and vibration equipment items are identified in Sections 6 and 7 of the CNV DWP respectively
The closest concrete breaking works associated with demolition are approximately 40m from Studio 1 on the south side of Nikau Street. The vibration level from a small excavator mounted concrete breaker (5T) received in Studio 1 is predicted to be 0.1mm/s PPV at 40m, which is at the Studio 1 limit specified in CRL designation condition 35.3. However, it should be acknowledged that these predictions are indicative only and are beyond the reliable tolerances of the prediction method.
The closest rock breaking works are approximately 60m from Studio 1 on the south side of Nikau Street. The vibration level from a large excavator mounted concrete breaker (20-40T) received in Studio 1 is predicted to be 0.3mm/s PPV at 60m, which is above the Studio 1 limit specified in CRL designation condition 35.3. However, it should be acknowledged that these predictions are indicative only and are beyond the reliable tolerances of the prediction method. Furthermore, similar C6 rock breaking works were approximately 90m from the Studio with no known effects or vibration exceedances of the 0.1mm/s PPV limit in the Studio.
CRL designation condition 35.2A limits rock breaking used for tunnel excavation within 100 metres during defined Sensitive Times (as defined in CRL designation condition 35.2) unless compliance with the limits in CRL designation condition 35.2 can be demonstrated. While concrete breaking is neither rock breaking nor for tunnel excavation, the first instance of both concrete and rock breaking within 100m will be timed to occur outside Sensitive Times to enable measurement and demonstration of compliance with CRL designation condition 35.2 prior to expanding the works period. This approach aligns with the requirements of CRL designation conditions 40.3 and 40.8 and addresses any residual risk of exceedance.
TBM and road header activities also have the potential to marginally exceed the Studio 1 limit specified in CRL designation condition 35.3 depending on the finalised alignment. These tunnelling activities have the potential to generate vibration induced reradiated noise (a low frequency rumble). The vibration transfer function will need to be established once the
project starts as it cannot be readily predicted with any accuracy. This will be monitored to ensure compliance.
It is noted that the 0.1mm/s PPV vibration limit primarily controls reradiated noise levels to below 30 dB LAeq (5 min) and 33 dB LAeq (1 sec) specified in CRL designation condition 35.2. This relationship was established in an SLR report during the CRL hearings process11. It determined that the airborne noise component received in the Studio was negligible (transfer function in the order 80 decibels) and that the only residual noise effect would be from reradiated noise. This relationship will be used as the initial basis to satisfy designation conditions 40.2 and 40.3, however, will be reviewed following monitoring of the first occurrence of concrete breaking (described in the previous paragraph).
Blasting and vibro rolling will be timed to avoid sensitive times.
Noise and vibration monitoring inside Studio 1 shall be undertaken by a suitably qualified and experienced acoustic specialist in accordance conditions 35 and 40. This shall include continuous automated monitoring in accordance with CRL designation condition 40.9. The data shall be available in real time to City Rail Link Limited, Link Alliance, Auckland Council and MediaWorks.
Any additional proxy noise and vibration controls shall be determined, and agreed upon by MediaWorks, that enable on-site compliance management. The proxy controls shall be determined in accordance with designation conditions 40.2 and 40.3 and included for reference in the Tables C1.2.
The automated monitoring systems measure continuously. The data is uploaded to a secure website (or similar) for access by key personnel. The systems also generate automated email/text alerts for any exceedances.
In addition to the automated monitoring, attended monitoring will be undertaken during the first occurrence of concrete breaking activities within 100m of MediaWorks. This will enable verification of the measured levels in Studio 1 and inform subjective impressions of resulting effects. It will also inform the transfer functions for this activity between the demolition sites and Studio 1. The transfer functions may allow subsequent measurements during the remainder of construction period to be undertaken at other locations. These would be the ‘proxy’ locations and would be reviewed and agreed upon by MediaWorks prior to their use.
Monitoring may occur at locations simultaneously or sequentially provided the vibration sources of interest are captured, and compliance with the conditions can be demonstrated. The monitoring locations may change over time to accommodate different phases of construction, but throughout there will be a consistent focus on Studio 1.
Vibration measurements are likely to be influenced by other activities causing vibration in the building (e.g. people walking past the transducers, moving equipment, doors slamming etc.). These ‘false positives’ can be managed in the first instance through appropriate placement of the monitors but can also be managed by processing the data statistically or comparing simultaneous monitoring data from the two vibration monitors in the building to ensure these anomalous events are not interpreted as construction events. The trigger
11 SLR report Mediaworks Investigations Borehole and Studio Vibration, 610.12219.00400-R1, dated 21 October 2013
threshold for text/email alerts may also be modified as appropriate to reduce the number of ‘false positives’ in accordance with CRL designation condition 35.3 by agreement of both the Requiring Authority and MediaWorks.
The monitoring locations agreed in consultation with MediaWorks are as follows:
Studio 1 Vibration monitor
L1 Store Vibration monitor
Roof Noise monitor
Construction vibration will be monitored using Syscom MR3000C units. The units would typically be placed on the basement floor near the façade closest to the construction works and/or in Studio 1. Alternatively, they may be placed on the top floor near the same façade. They do not require fixings (i.e. clamps, adhesives) to be installed, however weighing down with a sandbag is recommended. They are best located away from foot traffic to avoid being bumped. The units record numerical vibration levels. The data is accessed remotely via the 3G network. If a preset monitoring trigger level is exceeded, it will alert the monitoring manager.
Construction noise will be measured using a Svantek SV307 Noise Monitoring Terminal (NMT). An external microphone will be placed on the outside of the façade that faces the construction works. The unit records numerical noise levels. The data is accessed remotely via the 3G mobile phone network. If a preset monitoring trigger level is exceeded, it will capture a short audio recording and alert the monitoring manager.
Review of the monitoring data and audio may help identify the source and inform construction methodology, mitigation opportunities and communication.
With mains power, the units operate autonomously, only requiring access for yearly maintenance and calibration. The units use a conventional house plug and draw between 2 and 3.6 watts of power, which is similar to a mobile phone charger.
A separate document will detail the people who are setup to receive the text and/or email alerts, provides access to the vibration web monitoring system, and the alert response protocol. It will be provided separately from this SSCNVMP because it contains sensitive information.
As required by CRL designation condition 40.11, where any of the noise and vibration limits for Studio 1 in conditions 35.2, 35.3, 35.7 and 35.8 are exceeded, and where the noise and/or vibration levels are unacceptable to MediaWorks, the following corrective action measures shall apply:
• Cease the work giving rise to the exceedance as soon as safe and practicable to do so
• Review the construction methodology, mitigation and management strategies to ensure they represent the BPO and reduce the noise or vibration levels
• Monitor to determine compliance once the remediation works are complete
• Ensure that the work responsible for the exceedance is not recommenced during Sensitive Times
This SSCNVMP will be updated in accordance with CRL designation condition 40.13, with consideration given to the following:
• The extent to which noise and/or vibration may exceed the designation noise standards
• The timing and duration of any exceedance
• The type of activity causing any exceedance
• A summary of the communication and consultation with the MediaWorks
• The methods and measures to mitigate noise and/or vibration effects
• A statement of why they reflect best practicable option
Communications records are contained in the communication and consultation plan (CCP). This SSCNVMP will be updated to summarise engagement and any agreed site-specific measures.
C2.1 Introduction
This Site Specific Construction Noise and Vibration Management Plan (SSCNVMP) is for the residential building located at 12-14 Nikau Street. It is reproduced from the Mt Eden Enabling Works CNV DWP, where construction was predicted to exceed the standards in CRL designation conditions 31 and 33 A SSCNVMP is not required for the Mt Eden Station Main Works. It is included for information to ensure consistency across project stages.
This SSCNVMP has been prepared in accordance with CRL designation conditions 37 and 38 and is Appendix C2 of the Mt Eden Main Works Construction Noise and Vibration Delivery Work Plan (CNV DWP). It is a supplementary document that builds on the CNV DWP, and therefore directly references relevant sections of the CNV DWP to avoid repetition. The objective of this SSCNMP is to detail the best practicable option(s) (BPO) to avoid, remedy or mitigate the identified adverse effects from noise and vibration exceedances at 12-14 Nikau Street.
This SSCNMP has been prepared for the Link Alliance and forms part of the Construction Environmental Management Plan (CEMP) for the Mt Eden Station Main Works.
C2.2 Engagement
Mt Eden
Link Alliance representatives Sonya Leahy, Thibaut L'Hopital, Rick Galli, Aidan Kirkby-McLeod and Craig Fitzgerald met with Rod Pratt (building owner) on 3 September 2019. The matters discussed included:
• An overview of the project
• General programme, demolition, piling, rock breaking/blasting and tunnelling activities
• Overview of the CNV DWP and this SSCNMP, communications triggers and protocol
• Building layout and identification of any noise sensitive spaces
The double level commercial building has been converted into a block of 13 residential units above a basement car park. The neighbouring building will be demolished to maintain access to Flower and Shaddock Streets. It is adjacent to the portal piling and excavation works.
Figures B.1 and B.3 in Appendix B of the Mt Eden Enabling Works CNV DWP shows that the south façade is predicted to be exposed to noise levels up to 93 dB LAeq during the closest demolition and bored piling activities, exceeding the 75 dB LAeq noise limit. Activity specific mitigation and management measures are included in Section 9 of the CNV DWP and not repeated here (e.g. Section 9 8 piling).
The building has a concrete block wall with no windows on the western façade facing the works, which will mitigate noise received inside adjacent apartments. The north and south façades include operable glazing and appear to have a shallow pitched steel roof. The estimated sound level difference across the façade with the windows and doors closed is in excess of 30 decibels. The predicted construction noise effects from Table 12-1 in Section 12.1 are predicted to be typically acceptable, but with the potential for some disturbance in the western most apartments during demolition of the neighbouring building Physical receiver mitigation, such as temporary relocation of affected receivers, alternative
ventilation and façade sound insulation improvements, have been considered, but are not required as part of the BPO for the C3 enabling works.
Tunnelling activities have the potential to generate vibration induced reradiated noise (a low frequency rumble). The vibration transfer function will need to be established once the project starts as it cannot be readily predicted with any accuracy. This will be monitored to ensure compliance and inform effects on sleep.
Mr Pratt agreed that prior communication of timeframes for works with the potential to exceed the relevant noise limits was an acceptable means of managing effects. No further activity specific consultation is necessary over and above regular communication (Section 10)
Subsequently, vibratory roller vibration (Section 6.2 of the Enabling Works CNV DWP) from adjacent temporary road forming works is predicted to exceed the thresholds for the potential of cosmetic building damage. Cosmetic building damage effects are deemed ‘minor damage’ in the DIN Standard (Section 5.2), such as cracking in paint or plasterwork, and can generally be easily repaired. A pre-construction building condition survey in accordance with CRL designation condition 46 has been undertaken and will ensure any damage is identified for remediation.
None required for the Mt Eden Station Main Works However, noting Mr Pratt previously agreed that prior communication of timeframes for works with the potential to exceed the relevant noise limits was an acceptable means of managing effects. No further activity specific consultation is necessary over and above regular communication (Section 10).
If Mr Pratt requests consultation in the future, this SSCNVMP will be updated in accordance with CRL designation condition 37.5 and 38.5, with consideration given to the following:
• The extent to which noise may exceed the designation standards
• The timing and duration of any exceedance
• The type of activity causing any exceedance
• A summary of the communication and consultation with the receiver
• The methods and measures to mitigate effects
• A statement of why they reflect best practicable option
Communications records are contained in the communication and consultation plan (CCP). This SSCNMP will be updated to summarise engagement and any agreed site-specific measures.
C3.1 Introduction
This Site Specific Construction Noise and Vibration Management Plan (SSCNVMP) is for the residential building located at 10 Flower Street. It is reproduced from the Mt Eden Enabling Works CNV DWP, where construction was predicted to exceed the standards in CRL designation conditions 31 and 32 A SSCNVMP is not required for the Mt Eden Station Main Works. It is included for information to ensure consistency across project stages.
This SSCNVMP has been prepared in accordance with CRL designation conditions 37 and 38 and is Appendix C3 of the CRL Mt Eden Main Works Construction Noise and Vibration Delivery Work Plan (CNV DWP). It is a supplementary document that builds on the CNV DWP, and therefore directly references relevant sections of the CNV DWP to avoid repetition. The objective of this SSCNVMP is to detail the best practicable option(s) (BPO) to avoid, remedy or mitigate the identified adverse effects from noise and/or vibration exceedances at 10 Flower Street.
This SSCNVMP has been prepared for the Link Alliance and forms part of the Construction Environmental Management Plan (CEMP) for the Mt Eden Station Main Works.
C3.2 Engagement
Mt Eden Enabling Works (for
Link Alliance representatives Sonya Leahy, Thibaut L'Hopital, Aidan Kirkby-McLeod, Duncan Whyte and Craig Fitzgerald met with building representative Wayne Brown (building manger) on 5 September 2019. The matters discussed included:
• An overview of the project
• General programme, demolition, piling, rock breaking/blasting and tunnelling activities
• Overview of the CNV DWP and this SSCNVMP, communications triggers and protocol
The modern multi-level terraced apartment building features basement car parking beneath three levels of apartments with balconies on all sides. The car parking basement is block and concrete tilt slab construction. The apartments above are a built with a timber structure. There are 42 apartments in total.
Figures B.1 – B.7 in Appendix B of the Mt Eden Enabling Works CNV DWP shows that the south and west façades are predicted to be exposed to noise levels between 75 – 80 dB LAeq during the closest demolition, bored piling, rock breaking and vibro piling activities, exceeding the 75 dB LAeq noise limit. Activity specific mitigation and management measures are included in Section 9 of the CNV DWP and not repeated here (e.g. Section 9.7 concrete and rock breaking and 9.8 piling).
The top floor apartments (most exposed to site noise) are primarily occupied by university students. Mr Brown commented that the scheduling of blasting activities, indicatively timetabled for February – March 2020, would avoid normal exam study periods. There are 5 families, but only one is located on the most exposed western façade at first level. The perimeter site hoardings will effectively mitigate noise for this family.
The building façade features fibre cement cladding, well-sealed operable glazing and a flat steel roof. The estimated sound level difference across the façade with the windows and doors closed is 25 – 30 decibels. The predicted construction noise effects from Table 12-1 in
Section 12.1 are predicted to be typically acceptable, but with the potential for some disturbance in the apartments on the south and west façades during the demolition, portal construction and rock removal works Physical receiver mitigation, such as temporary relocation of affected receivers, alternative ventilation and façade sound insulation improvements, have been considered, but are not required as part of the BPO for the C3 enabling works.
Preliminary vibratory roller and blasting vibration level predictions (Sections 6.2 and 6.3 of the Enabling Works CNV DWP) identify that there is potential to exceed the residential cosmetic building damage thresholds. Cosmetic building damage effects are deemed ‘minor damage’ in the DIN Standard (Section 5.2), such as cracking in paint or plasterwork, and can generally be easily repaired. A pre-construction building condition survey in accordance with CRL designation condition 46 has been undertaken ensure any damage is identified for remediation.
Mr Brown agreed that prior communication of timeframes for works with the potential to exceed the relevant noise limits was an acceptable means of managing effects. No further activity specific consultation is necessary over and above regular communication (Section 10).
None required for the Mt Eden Station Main Works. However, noting Mr Brown previously agreed that prior communication of timeframes for works with the potential to exceed the relevant noise limits was an acceptable means of managing effects. No further activity specific consultation is necessary over and above regular communication (Section 10).
If Mr Brown or affected site representatives request consultation in the future, this SSCNVMP will be updated in accordance with CRL designation conditions 37.5 and 38.5, with consideration given to the following:
• The extent to which noise may exceed the designation standards
• The timing and duration of any exceedance
• The type of activity causing any exceedance
• A summary of the communication and consultation with the receiver
• The methods and measures to mitigate effects
• A statement of why they reflect best practicable option
Communications records are contained in the communication and consultation plan (CCP). This SSCNVMP will be updated to summarise engagement and any agreed site-specific measures.
C4.1 Introduction
This Site Specific Construction Noise and Vibration Management Plan (SSCNVMP) is for the residential building located at 10 Ruru Street. It is reproduced from the Mt Eden Enabling Works CNV DWP, where construction was predicted to exceed the standards in CRL designation conditions 31 and 32 A SSCNVMP is not required for the Mt Eden Station Main Works. It is included for information to ensure consistency across project stages.
This SSCNVMP has been prepared in accordance with CRL designation conditions 37 and 38 and is Appendix C4 of the Mt Eden Main Works Construction Noise and Vibration Delivery Work Plan (CNV DWP). It is a supplementary document that builds on the CNV DWP, and therefore directly references relevant sections of the CNV DWP to avoid repetition. The objective of this SSCNVMP is to detail the best practicable option(s) (BPO) to avoid, remedy or mitigate the identified adverse effects from noise and/or vibration exceedances at 10 Ruru Street.
This SSCNVMP has been prepared for the Link Alliance and forms part of the Construction Environmental Management Plan (CEMP) for the Mt Eden Station Main Works.
C4.2 Engagement
Mt Eden Enabling Works (for
Link Alliance representatives Sonya Leahy, Thibaut L'Hopital, Aidan Kirkby-McLeod, Duncan Whyte and Craig Fitzgerald met with site representatives Dr Helen Gaeta and Megan Ottley on 4 September 2019. The matters discussed included:
• An overview of the project
• General programme, demolition, piling, rock breaking/blasting and tunnelling activities
• Overview of the CNV DWP and this SSCNMP, communications triggers and protocol
The basement level fronting Nikau St is a storage business and car park (activities are not considered noise sensitive), above which double level townhouses (noise sensitive when occupied) encircle a common courtyard area.
Figure B.5 in Appendix B of the Mt Eden Enabling Works CNV DWP shows that the south façade is predicted to be exposed to noise levels between 75 – 80 dB LAeq during the closest rock breaking activities, exceeding the 75 dB LAeq noise limit. Activity specific mitigation and management measures are included in Section 9 of the CNV DWP and not repeated here (e.g. Section 9.7 concrete and rock breaking).
The townhouses have linear weatherboard façades with operable glazing and a steel pitched roof. The estimated sound level difference across the façade with the windows and doors closed is 30 decibels. The predicted construction noise effects from Table 12-1 in Section 12.1 are predicted to be typically acceptable, but with the potential for some disturbance in the southern most apartments during the closest rock breaking works Physical receiver mitigation, such as temporary relocation of affected receivers, alternative ventilation and façade sound insulation improvements, have been considered, but are not required as part of the BPO for the C3 enabling works.
Preliminary blasting vibration level predictions (Section 6.3 of the Enabling Works CNV DWP) identify that there is potential to exceed the residential cosmetic building damage
thresholds. Cosmetic building damage effects are deemed ‘minor damage’ in the DIN Standard (Section 5.2), such as cracking in paint or plasterwork, and can generally be easily repaired. A pre-construction building condition survey has been undertaken accordance with CRL designation condition 46 to ensure any damage is identified for remediation. This is the same process implemented for the previous C6 blasting works on the corner of Nikau and Ruru Streets.
Dr Gaeta and Ms Ottley agreed that prior communication of timeframes for works with the potential to exceed the relevant noise limits was an acceptable means of managing effects. No further activity specific consultation is necessary over and above regular communication (Section 10).
None required for the Mt Eden Station Main Works. However, noting Dr Gaeta and Ms Ottley previously agreed that prior communication of timeframes for works with the potential to exceed the relevant noise limits was an acceptable means of managing effects. No further activity specific consultation is necessary over and above regular communication (Section 10)
If Dr Gaeta and Ms Ottley or affected site representatives request consultation in the future, this SSCNVMP will be updated in accordance with CRL designation conditions 37.5 and 38.5, with consideration given to the following:
• The extent to which noise may exceed the designation standards
• The timing and duration of any exceedance
• The type of activity causing any exceedance
• A summary of the communication and consultation with the receiver
• The methods and measures to mitigate effects
• A statement of why they reflect best practicable option
Communications records are contained in the communication and consultation plan (CCP). This SSCNVMP will be updated to summarise engagement and any agreed site-specific measures.
C5.1
This Site Specific Construction Noise and Vibration Management Plan (SSCNVMP) is for the commercial building located at 24 Mt Eden Road. A SSCNVMP is required because construction is predicted to exceed the noise and vibration standards in CRL designation condition 31 and 33
This SSCNVMP has been prepared in accordance with CRL designation condition 37 and 38 and is Appendix C5 of the Mt Eden Main Works Construction Noise and Vibration Delivery Work Plan (CNV DWP). It is a supplementary document that builds on the CNV DWP, and therefore directly references relevant sections of the CNV DWP to avoid repetition. The objective of this SSCNVMP is to detail the best practicable option(s) (BPO) to avoid, remedy or mitigate the identified adverse effects from noise exceedances at 24 Mt Eden Road.
This SSCNMP has been prepared for the Link Alliance and forms part of the Construction Environmental Management Plan (CEMP) for the Mt Eden Station Main Works. It builds on the SSCNMP previously prepared and implemented for the Mt Eden Enabling Works.
Mt Eden Enabling Works (for information)
Link Alliance representatives Sonya Leahy, Thibaut L'Hopital, Aidan Kirkby-McLeod, Duncan Whyte and Craig Fitzgerald (Marshall Day Acoustics) met with John Fryer on 11 September 2019. The matters discussed included:
• An overview of the project
• General programme, demolition, piling and rock breaking/blasting activities
• Overview of the CNV DWP and this SSCNMP, communications triggers and protocol
The site is used for commercial purposes, with the House of Knives cookware shop fronting Mt Eden Road. Shop opening hours are generally 9.30am – 5pm, Monday to Saturday. Mr Fryer voiced concerns about vibration associated with previous C6 piling works. From Mr Fryer’s description, the source of the vibration was from vibrated pile casings installed on the adjacent site and from vertically dropping an auger from height onto the ground. Mr Fryer was advised that vibro piling was not part of the current piling methodology for the new Mt Eden Road bridge and that dropping an auger bit was most likely avoidable with good practice.
Figure B.4 in Appendix B of the Mt Eden Enabling Works CNV DWP shows that the south and west façades are predicted to be exposed to noise levels between 75 – 80 dB LAeq during the closest bored piling activities, exceeding the 75 dB LAeq noise limit. Activity specific mitigation and management measures are included in Section 9 of the CNV DWP and not repeated here (e.g. Section 9.8 piling).
The buildings at 24 Mt Eden Road are primarily single story with either weatherboard or brick façades, operable glazing and a steel pitched roof. The estimated sound level difference across the façade with the windows and doors closed is 25 decibels. The predicted construction noise effects from Table 12-1 in Section 12.1 are predicted to be typically acceptable, but with the potential for some disturbance during installation of the closest bridge piling and demolition works Physical receiver mitigation, such as temporary relocation of affected receivers, alternative ventilation and façade sound insulation
improvements, have been considered, but are not required as part of the BPO for the C3 enabling works.
During further consultation on 10 October 2019, a pre construction building condition survey in accordance with CRL designation condition 46 will be undertaken to provide confidence that any vibration damage is identified for remediation.
Mr Fryer agreed that prior communication of timeframes for works with the potential to exceed the relevant noise limits was an acceptable means of managing effects. No further activity specific consultation is necessary over and above regular communication (refer Section 10).
Link Alliance representatives Helen Jansen and Craig Fitzgerald (Marshall Day Acoustics) met with building representative John Fryer and his son on 24 July 2020. The matters discussed included:
• Summary of works and engagement to date (e.g. Mt Eden Enabling Works)
• A brief overview of the next project phases (Mr Fryer is well informed and in regular contact with the comms team)
• General programme, adjacent piling platform compaction, excavation, piling, and potential rock removal works
• General review of CNV DWP and this SSCNVMP, communications triggers and monitoring
• Attended noise and vibration monitoring of adjacent compaction works on 14 July. The primary effect related to reradiated noise from crockery in the shop at vibration levels above ~0.7mm/s. The effect was prominent during ramp up and ramp down of the vibro unit in the roller. The outcomes included review of vibro rolling management measures and ensuring ramp up/down of roller is undertaken away from House of Knives.
Mr Fryer provided updates on two matters:
• Shop opening hours are 9.30am – 5pm Monday to Friday and 9.30am – 2pm on Saturday
• It was clarified that previous concerns about vibration from C6 works related to banging an auger bit on the ground to dislodge spoil. In response, it was noted that vibration from the described activity is avoidable and not acceptable as part of the main works contract.
CNV DWP Section 7 identifies the potential scale of noise and/or vibration exceedances using the modelling outputs in insert hyperlink to the GIS maps here. The relevant stages are summarised below. Activity specific mitigation and management measures are included in Section 9 of the CNV DWP, and referenced in brackets, rather than repeated.
Noise
• Retaining walls (refer piling in Section 9.8)
• Excavation (refer concrete and rock breaking in Section 9.7)
The existing perimeter hoardings on the south boundary provide effective screening for site works, aided by the lower site ground level. It was noted that utilities works were currently being undertaken in the footpath outside House of Knives without perimeter noise mats. However, Mr Fryer preferred no noise mats to ensure better street viability for the shop frontage.
The predicted construction airborne noise effects from Table 12.1 in Section 12.1 are predicted to result in typically acceptable noise effects. The primary residual effect relates to reradiated noise, induced by vibration (discussed below). Further physical receiver mitigation, such as temporary relocation of affected receivers, alternative ventilation and façade sound insulation improvements, have been considered, but are not required as part of the BPO for the Mt Eden Station Main Works.
We discussed the potential to locate a noise monitor on the façade of House of Knives for relevant periods of works. Mr Fryer is happy to accommodate this, but equally happy if it is located on another site, such as the Horse and Trap.
Vibration
• Excavation and piling (refer breaking, piling and compaction in Sections 9.7, 9.8 and 9.10)
The above activities are predicted to have the potential to exceed the commercial cosmetic building damage thresholds. Cosmetic building damage effects are deemed ‘minor damage’ in the DIN Standard (Section 5.2), such as cracking in paint or plasterwork, and can generally be easily repaired. A pre construction building condition survey has been undertaken in accordance with CRL designation condition 46 will ensure any damage is identified for remediation.
Monitoring from nearby compaction activities resulted in management outcomes (refer previous page). We discussed the potential to locate a long-term vibration monitor within the shop, near the south façade during relevant periods of construction (e.g. adjacent piling works). The monitor would provide real-time feedback to LA and act as a proxy for the wider community, then be moved elsewhere thereafter. Mr Fryer is happy to accommodate this. A location within the shop was identified and subsequent conversations will follow when the monitor is available for installation. In the meantime, targeted vibration monitoring will continue, starting with attended monitoring for the commencement of nearby piling in early August.
Mr Fryer agreed that prior communication of timeframes for works with the potential to exceed the relevant noise and vibration limits was an acceptable means of managing effects. No further activity specific consultation is necessary over and above regular communication (Section 10).
If Mr Fryer requests consultation in the future, this SSCNVMP will be updated in accordance with CRL designation condition 37.5 and 38.5, with consideration given to the following:
• The extent to which noise may exceed the designation noise standards
• The timing and duration of any exceedance
• The type of activity causing any exceedance
• A summary of the communication and consultation with the receiver
• The methods and measures to mitigate noise effects
• A statement of why they reflect best practicable option
Communications records are contained in the communication and consultation plan (CCP). This SSCNVMP will be updated to summarise engagement and any agreed site-specific measures.
C6.1 Introduction
This Site Specific Construction Noise Management Plan (SSCNMP) is for the commercial building located at 110 New North Road occupied by Soar printing. A SSCNMP is required because construction is predicted to exceed the noise standards in CRL designation condition 31.
This SSCNMP has been prepared in accordance with CRL designation condition 37 and is Appendix C6 of the Mt Eden Main Works Construction Noise and Vibration Delivery Work Plan (CNV DWP). It is a supplementary document that builds on the CNV DWP, and therefore directly references relevant sections of the CNV DWP to avoid repetition. The objective of this SSCNMP is to detail the best practicable option(s) (BPO) to avoid, remedy or mitigate the identified adverse effects from noise exceedances at 110 New North Road.
This SSCNMP has been prepared for the Link Alliance and forms part of the Construction Environmental Management Plan (CEMP) for the Mt Eden Station Main Works. It builds on the SSCNMP previously prepared and implemented for the Mt Eden Enabling Works.
In the absence of contact details, Link Alliance representatives Jarrod Snowsill and Craig Fitzgerald spoke to reception staff member on the door on 29 August 2019. Unfortunately, the appropriate person was not available. A general information pack with contact details was left with the intention that the appropriate staff member would call back. No response has been received to date to undertake further consultation.
Figure B 5 in Appendix B of the Mt Eden Enabling Works CNV DWP shows that the south façade is predicted to be exposed to noise levels between 75 – 80 dB LAeq during the rock breaking activities, exceeding the 75 dB LAeq noise limit. Activity specific mitigation and management measures are included in Section 9 of the CNV DWP and not repeated here (e.g. Section 9.7 concrete and rock breaking).
The building is occupied by Soar printing. They have printing and warehousing areas on the south façade, closest to the works. Office areas on the upper level of the northern building look over the southern printing and warehouse building. The estimated sound level difference across the façade with the windows and doors closed is 25 decibels. The predicted construction noise effects from Table 12-1 in Section 12.1 are predicted to be typically acceptable Physical receiver mitigation, such as temporary relocation of affected receivers, alternative ventilation and façade sound insulation improvements, have been considered, but are not required as part of the BPO for the C3 enabling works.
Consultation engagement has not been successful to date. Prior communication of timeframes for works with the potential to exceed the relevant noise limits will be provided where practicable (Section 10)
Link Alliance representatives XXX met with building representative XXX on XXX date. The matters discussed included:
• An overview of the next project phases
• General programme, rock removal, excavation, piling, and utilities relocation activities
• General review of CNV DWP and this SSCNMP, communications triggers and monitoring
CNV DWP Section 7 identifies summarise the potential scale of noise and/or vibration exceedances using the modelling outputs in insert hyperlink to the GIS maps here The relevant stages are summarised below. Activity specific mitigation and management measures are included in Section 9 of the CNV DWP, and referenced in brackets, rather than repeated
• Retaining walls (refer piling in Section 9.8)
• Fenton and Porters Ave (refer rock breaking and piling in Sections 9.7 and 9.8)
The predicted construction noise effects from Table 12.1 in Section 12.1 are predicted to result in XXX noise effects Physical receiver mitigation, such as temporary relocation of affected receivers, alternative ventilation and façade sound insulation improvements, have been considered, but are not required as part of the BPO for the Mt Eden Station Main Works.
XXX agreed that prior communication of timeframes for works with the potential to exceed the relevant noise limits was an acceptable means of managing effects. No further activity specific consultation is necessary over and above regular communication (Section 10).
C6.3 Review Process
If the property representatives requests consultation in the future, this SSCNMP will be updated in accordance with CRL designation condition 37.5, with consideration given to the following:
• The extent to which noise may exceed the designation noise standards
• The timing and duration of any exceedance
• The type of activity causing any exceedance
• A summary of the communication and consultation with the receiver
• The methods and measures to mitigate noise effects
• A statement of why they reflect best practicable option
Communications records are contained in the communication and consultation plan (CCP). This SSCNMP will be updated to summarise engagement and any agreed site-specific measures.
C7.1
This Site Specific Construction Noise Management Plan (SSCNMP) is for the commercial building located at 75 Mt Eden Road It is reproduced from the Mt Eden Enabling Works CNV DWP, where construction was predicted to exceed the standards in CRL designation conditions 31. A SSCNMP is not required for the Mt Eden Station Main Works. It is included for information to ensure consistency across project stages.
This SSCNMP has been prepared in accordance with CRL designation condition 37 and is Appendix C7 of the Mt Eden Main Works Construction Noise and Vibration Delivery Work Plan (CNV DWP). It is a supplementary document that builds on the CNV DWP, and therefore directly references relevant sections of the CNV DWP to avoid repetition. The objective of this SSCNMP is to detail the best practicable option(s) (BPO) to avoid, remedy or mitigate the identified adverse effects from noise exceedances at 75 Mt Eden Road.
This SSCNMP has been prepared for the Link Alliance and forms part of the Construction Environmental Management Plan (CEMP) for the Mt Eden Station Main Works.
Link Alliance representatives Jarrod Snowsill and Craig Fitzgerald met with Brian Jong (Bok Mart) and Louise Wightman (Adsel) on 29 August 2019. The basement office of Glass Resources was unoccupied. The matters discussed included:
• An overview of the project
• General project programme, demolition and rock breaking/blasting activities
• Overview of the CNV DWP and this SSCNMP, communications triggers and protocol
• Building layout and identification of any noise sensitive spaces
Bok Mart operate a supermarket on the top floor of the building, accessed from Mt Eden Road. Their most noise sensitive areas relate to the shop front areas opening out to Mt Eden Road. The areas at the back of the shop, overlooking the works are not noise sensitive.
Adsel operated an office from the basement level, accessed from 6 Shaddock Street. They were in the process of moving out, with their tenancy finishing in May 2020 (unoccupied in the meantime). Their sub tenant, Glass Resources was not available.
Figure B.5 in Appendix B of the Mt Eden Enabling Works CNV DWP shows that the south façade is predicted to be exposed to noise levels between 75 – 80 dB LAeq during the closest rock breaking activities, exceeding the 75 dB LAeq noise limit. Activity specific mitigation and management measures are included in Section 9 of the CNV DWP and not repeated here (e.g. Section 9.7 concrete and rock breaking).
The concrete building has operable glazing and a flat steel roof. The estimated sound level difference across the façade with the windows and doors closed is 25 – 30 decibels. The predicted construction noise effects from Table 12-1 in Section 12.1 are predicted to be typically acceptable, but with the potential for some disturbance for nearby rock breaking Physical receiver mitigation, such as temporary relocation of affected receivers, alternative ventilation and façade sound insulation improvements, have been considered, but are not required as part of the BPO for the C3 enabling works.
Mr Jong agreed that prior communication of timeframes for works with the potential to exceed the relevant noise limits was an acceptable means of managing effects. No further activity specific consultation is necessary over and above regular communication (Section 10)
Vibration is predicted to comply with the relevant standards (Section 6.2 of the Enabling Works CNV DWP). Nonetheless, it is noted that a pre construction building condition survey has been undertaken.
None required for the Mt Eden Station Main Works. However, noting Mr Jong previously agreed that prior communication of timeframes for works with the potential to exceed the relevant noise limits was an acceptable means of managing effects. No further activity specific consultation is necessary over and above regular communication (Section 10)
If Mr Jong requests consultation in the future, this SSCNMP will be updated in accordance with CRL designation condition 37.5, with consideration given to the following:
• The extent to which noise may exceed the designation noise standards
• The timing and duration of any exceedance
• The type of activity causing any exceedance
• A summary of the communication and consultation with the receiver
• The methods and measures to mitigate noise effects
• A statement of why they reflect best practicable option
Communications records are contained in the communication and consultation plan (CCP). This SSCNMP will be updated to summarise engagement and any agreed site-specific measures.
C8.1 Introduction
This Site Specific Construction Noise Management Plan (SSCNMP) is for the commercial building located at 83 Mt Eden Road It is reproduced from the Mt Eden Enabling Works CNV DWP, where construction was predicted to exceed the standards in CRL designation conditions 31. A SSCNMP is not required for the Mt Eden Station Main Works. It is included for information to ensure consistency across project stages.
This SSCNMP has been prepared in accordance with CRL designation condition 37 and is Appendix C8 of the Mt Eden Main Works Construction Noise and Vibration Delivery Work Plan (CNV DWP). It is a supplementary document that builds on the CNV DWP, and therefore directly references relevant sections of the CNV DWP to avoid repetition. The objective of this SSCNMP is to detail the best practicable option(s) (BPO) to avoid, remedy or mitigate the identified adverse effects from noise exceedances at 83 Mt Eden Road.
This SSCNMP has been prepared for the Link Alliance and forms part of the Construction Environmental Management Plan (CEMP) for the Mt Eden Station Main Works.
Link Alliance representatives Jarrod Snowsill and Craig Fitzgerald met with Steve Bohling (MPM) on 29 August 2019. The matters discussed included:
• An overview of the project
• General project programme, demolition and rock breaking/blasting activities
• Overview of the CNV DWP and this SSCNMP, communications triggers and protocol
• Building layout and identification of any noise sensitive spaces
MPM offices occupy the middle level of the building, facing west over the works. The top floor is unoccupied (for lease) and the basement level was unoccupied during the visit, but is understood to be occasionally occupied by Direct Control.
MPM were previously opposite the C6 site in Shaddock Street. There main concern was rock breaking and blasting vibration effects on their building and stock of cameras. It was explained that they would feel vibration, however, it is currently not predicted to be at a level that would require pre-construction building condition survey or effect stored cameras. However, triggers in the CNV DWP and monitoring during these events would inform the need for such steps.
Figure B.5 in Appendix B of the Mt Eden Enabling Works CNV DWP shows that the south façade is predicted to be exposed to noise levels between 75 – 80 dB LAeq during the closest rock breaking activities, exceeding the 75 dB LAeq noise limit. Activity specific mitigation and management measures are included in Section 9 of the CNV DWP and not repeated here (e.g. Section 9.7 concrete and rock breaking).
The concrete building has operable glazing and a shallow pitched steel roof. The estimated sound level difference across the façade with the windows and doors closed is 25 – 30 decibels. The predicted construction noise effects from Table 12-1 in Section 12.1 are predicted to be typically acceptable, but with the potential for some disturbance for nearby rock breaking Physical receiver mitigation, such as temporary relocation of affected
receivers, alternative ventilation and façade sound insulation improvements, have been considered, but are not required as part of the BPO for the C3 enabling works.
Mr Bohling agreed that prior communication of timeframes for works with the potential to exceed the relevant noise limits was an acceptable means of managing effects. No further activity specific consultation is necessary over and above regular communication (Section 10).
Vibration is predicted to comply with the relevant standards (Section 6.2 of the Enabling Works CNV DWP). Nonetheless, it is noted that a pre construction building condition survey has been undertaken.
None required for the Mt Eden Station Main Works. However, noting Mr Bohling previously agreed that prior communication of timeframes for works with the potential to exceed the relevant noise limits was an acceptable means of managing effects. No further activity specific consultation is necessary over and above regular communication (Section 10)
If Mr Bohling requests consultation in the future, this SSCNMP will be updated in accordance with CRL designation condition 37.5, with consideration given to the following:
• The extent to which noise may exceed the designation noise standards
• The timing and duration of any exceedance
• The type of activity causing any exceedance
• A summary of the communication and consultation with the receiver
• The methods and measures to mitigate noise effects
• A statement of why they reflect best practicable option
Communications records are contained in the communication and consultation plan (CCP). This SSCNMP will be updated to summarise engagement and any agreed site-specific measures.
C9.1 Introduction
This Site Specific Construction Noise and Vibration Management Plan (SSCNVMP) is for the commercial building located at 2 Porters Ave. A SSCNVMP is required because construction is predicted to exceed the standards in CRL designation conditions 31 and 33
This SSCNVMP has been prepared in accordance with CRL designation condition 37 and 38 and is Appendix C9 of the Mt Eden Main Works Construction Noise and Vibration Delivery Work Plan (CNV DWP). It is a supplementary document that builds on the CNV DWP, and therefore directly references relevant sections of the CNV DWP to avoid repetition. The objective of this SSCNVMP is to detail the best practicable option(s) (BPO) to avoid, remedy or mitigate the identified adverse effects from noise and vibration exceedances at 2 Porters Ave.
This SSCNVMP has been prepared for the Link Alliance and forms part of the Construction Environmental Management Plan (CEMP) for the Mt Eden Station Main Works. It builds on the SSCNVMP previously prepared and implemented for the Mt Eden Enabling Works.
Mt Eden Enabling Works (for information)
In the absence of contact details, Link Alliance representatives Duncan Whyte, Hilary Konigkramer and Richard Deane knocked on the door on 10 September 2019. Unfortunately, there was no answer. A general information pack with contact details was left. No response has been received to date to undertake further consultation.
Rock breaking activities are required in close proximity to this building for short periods.
Figures B 7 and B.8 in Appendix B of the Mt Eden Enabling Works CNV DWP predict rock breaking noise levels of up to 80 – 90 dB LAeq on the west façade. While this significantly exceeds the 75 dB LAeq noise limit, levels will reduce rapidly as works migrate away. Other utilities works will generally be compliant. Activity specific mitigation and management measures are included in Section 9 of the CNV DWP and not repeated here (e.g. Section 9.7 concrete and rock breaking).
The concrete building has small areas of glazing, a roller door and a shallow pitched steel roof. The estimated sound level difference across the façade with the windows and doors closed is 20 – 30 decibels. The predicted construction noise effects from Table 12.1 in Section 12.1 are predicted to result in short-term disturbance. Physical receiver mitigation, such as temporary relocation of affected receivers, alternative ventilation and façade sound insulation improvements, have been considered, but are not required as part of the BPO for the C3 enabling works.
Preliminary large excavator mounted rock breaker vibration level predictions (Section 6.2 of the Enabling Works CNV DWP) identify that there is also potential to exceed the commercial cosmetic building damage thresholds and will be clearly perceptible. Cosmetic building damage effects are deemed ‘minor damage’ in the DIN Standard (Section 5.2), such as cracking in paint or plasterwork, and can generally be easily repaired. A pre construction building condition survey in accordance with CRL designation condition 46 will ensure any damage is identified for remediation.
Consultation engagement has not been successful to date. Prior communication of timeframes for works with the potential to exceed the relevant noise limits will be provided where practicable (Section 10)
Mt Eden Main Works
Link Alliance representatives XXX met with building representative XXX on XXX date. The matters discussed included:
• An overview of the next project phases
• General programme, rock removal, excavation, piling, and utilities relocation activities
• General review of CNV DWP and this SSCNVMP, communications triggers and monitoring
CNV DWP Section 7 identifies summarise the potential scale of noise and/or vibration exceedances using the modelling outputs in insert hyperlink to the GIS maps here. The relevant stages are summarised below. Activity specific mitigation and management measures are included in Section 9 of the CNV DWP, and referenced in brackets, rather than repeated.
Noise
• Retaining walls (refer piling in Section 9.8)
• Excavation (refer concrete and rock breaking in Section 9.7)
• Utilities and drainage (refer concrete cutting and breaking in Sections 9.6 and 9.7)
• Fenton and Porters Ave (refer rock breaking and piling in Sections 9.7 and 9.8)
The predicted construction noise effects from Table 12.1 in Section 12.1 are predicted to result in XXX noise effects. Physical receiver mitigation, such as temporary relocation of affected receivers, alternative ventilation and façade sound insulation improvements, have been considered, but are not required as part of the BPO for the Mt Eden Station Main Works.
Vibration
• Utilities and drainage (refer breaking, piling and compaction in Sections 9.7, 9.8 and 9.10)
The above activities are predicted to have the potential to exceed the commercial cosmetic building damage thresholds. Cosmetic building damage effects are deemed ‘minor damage’ in the DIN Standard (Section 5.2), such as cracking in paint or plasterwork, and can generally be easily repaired. A pre construction building condition survey in accordance with CRL designation condition 46 will ensure any damage is identified for remediation.
XXX agreed that prior communication of timeframes for works with the potential to exceed the relevant noise and vibration limits was an acceptable means of managing effects. No further activity specific consultation is necessary over and above regular communication (Section 10).
If the property representatives request consultation in the future, this SSCNVMP will be updated in accordance with CRL designation conditions 37.5 and 38.5, with consideration given to the following:
• The extent to which noise may exceed the designation standards
• The timing and duration of any exceedance
• The type of activity causing any exceedance
• A summary of the communication and consultation with the receiver
• The methods and measures to mitigate effects
• A statement of why they reflect best practicable option
Communications records are contained in the communication and consultation plan (CCP). This SSCNVMP will be updated to summarise engagement and any agreed site-specific measures.
C10.1 Introduction
This Site Specific Construction Noise and Vibration Management Plan (SSCNVMP) is for the commercial building located at 3 Porters Ave. A SSCNVMP is required because construction is predicted to exceed the standards in CRL designation conditions 31 and 33
This SSCNVMP has been prepared in accordance with CRL designation condition 37 and 38 and is Appendix C10 of the Mt Eden Main Works Construction Noise and Vibration Delivery Work Plan (CNV DWP). It is a supplementary document that builds on the CNV DWP, and therefore directly references relevant sections of the CNV DWP to avoid repetition. The objective of this SSCNVMP is to detail the best practicable option(s) (BPO) to avoid, remedy or mitigate the identified adverse effects from noise and vibration exceedances at 3 Porters Ave.
This SSCNVMP has been prepared for the Link Alliance and forms part of the Construction Environmental Management Plan (CEMP) for the Mt Eden Station Main Works. It builds on the SSCNVMP previously prepared and implemented for the Mt Eden Enabling Works.
Link Alliance representatives Duncan Whyte, Hilary Konigkramer and Richard Deane knocked on the door on 10 September 2019. Unfortunately, there was no answer. A general information pack with contact details was left. No response has been received to date to undertake further consultation.
Rock breaking activities are required in close proximity to this building for short periods. Figures B 7 and B.8 in Appendix B of the Mt Eden Enabling Works CNV DWP predict rock breaking noise levels of up to 75 – 85 dB LAeq on the west façade. While this exceeds the 75 dB LAeq noise limit, levels will reduce rapidly as works migrate away. Other utilities works will generally be compliant. Activity specific mitigation and management measures are included in Section 9 of the CNV DWP and not repeated here (e.g. Section 9.7 concrete and rock breaking).
The concrete building is occupied by Kennards Self Storage. The office areas are located on the north side of the building, facing away from the works at ground floor level. The predicted construction noise effects from Table 12.1 in Section 12.1 are predicted to be typically acceptable, but with the potential for some disturbance for nearby rock breaking. Physical receiver mitigation, such as temporary relocation of affected receivers, alternative ventilation and façade sound insulation improvements, have been considered, but are not required as part of the BPO for the C3 enabling works.
Preliminary large excavator mounted rock breaker vibration level predictions (Section 6.2 of the Enabling Works CNV DWP) identify that there is also potential to exceed the commercial cosmetic building damage thresholds. Cosmetic building damage effects are deemed ‘minor damage’ in the DIN Standard (Section 5.2), such as cracking in paint or plasterwork, and can generally be easily repaired. A pre-construction building condition survey in accordance with CRL designation condition 46 will ensure any damage is identified for remediation.
Consultation engagement has not been successful to date. Prior communication of timeframes for works with the potential to exceed the relevant noise limits will be provided where practicable (Section 10).
Link Alliance representatives XXX met with building representative XXX on XXX date. The matters discussed included:
• An overview of the next project phases
• General programme, rock removal, excavation, piling, and utilities relocation activities
• General review of CNV DWP and this SSCNVMP, communications triggers and monitoring
CNV DWP Section 7 identifies summarise the potential scale of noise and/or vibration exceedances using the modelling outputs in insert hyperlink to the GIS maps here. The relevant stages are summarised below. Activity specific mitigation and management measures are included in Section 9 of the CNV DWP, and referenced in brackets, rather than repeated.
Noise
• Retaining walls (refer piling in Section 9.8)
• Excavation (refer concrete and rock breaking in Section 9.7)
• Utilities and drainage (refer concrete cutting and breaking in Sections 9.6 and 9.7)
• Fenton and Porters Ave (refer rock breaking and piling in Sections 9.7 and 9.8)
• Night Works (refer cranage night works in Section 9.2)
The predicted construction noise effects from Table 12.1 in Section 12.1 are predicted to result in XXX noise effects. Physical receiver mitigation, such as temporary relocation of affected receivers, alternative ventilation and façade sound insulation improvements, have been considered, but are not required as part of the BPO for the Mt Eden Station Main Works.
Vibration
• Excavation and piling (refer breaking, piling and compaction in Sections 9.7, 9.8 and 9.10)
• Porters Bridge (refer rock breaking in Section 9.7)
• Utilities and drainage (refer breaking, piling and compaction in Sections 9.7, 9.8 and 9.10)
The above activities are predicted to have the potential to exceed the commercial cosmetic building damage thresholds. Cosmetic building damage effects are deemed ‘minor damage’ in the DIN Standard (Section 5.2), such as cracking in paint or plasterwork, and can generally be easily repaired. A pre construction building condition survey in accordance with CRL designation condition 46 will ensure any damage is identified for remediation.
XXX agreed that prior communication of timeframes for works with the potential to exceed the relevant noise and vibration limits was an acceptable means of managing effects. No further activity specific consultation is necessary over and above regular communication (Section 10).
If the property representatives request consultation in the future, this SSCNVMP will be updated in accordance with CRL designation conditions 37.5 and 38.5, with consideration given to the following:
• The extent to which noise may exceed the designation standards
• The timing and duration of any exceedance
• The type of activity causing any exceedance
• A summary of the communication and consultation with the receiver
• The methods and measures to mitigate effects
• A statement of why they reflect best practicable option
Communications records are contained in the communication and consultation plan (CCP). This SSCNVMP will be updated to summarise engagement and any agreed site-specific measures.
C11.1 Introduction
This Site Specific Construction Noise and Vibration Management Plan (SSCNVMP) is for the commercial building located at 4 Porters Ave. A SSCNVMP is required because construction is predicted to exceed the standards in CRL designation conditions 31 and 33
This SSCNVMP has been prepared in accordance with CRL designation condition 37 and 38 and is Appendix C11 of the Mt Eden Main Works Construction Noise and Vibration Delivery Work Plan (CNV DWP). It is a supplementary document that builds on the CNV DWP, and therefore directly references relevant sections of the CNV DWP to avoid repetition. The objective of this SSCNVMP is to detail the best practicable option(s) (BPO) to avoid, remedy or mitigate the identified adverse effects from noise and vibration exceedances at 4 Porters Ave.
This SSCNVMP has been prepared for the Link Alliance and forms part of the Construction Environmental Management Plan (CEMP) for the Mt Eden Station Main Works. It builds on the SSCNVMP previously prepared and implemented for the Mt Eden Enabling Works.
Link Alliance representatives Duncan Whyte, Hilary Konigkramer and Richard Deane met with Minka Johnson IP (ADFW) on 10 September 2019 The matters discussed included:
• An overview of the project
• General programme of works, rock breaking activities
• Overview of the CNV DWP and this SSCNVMP, communications triggers and protocol
• Building layout and identification of any noise sensitive spaces/activities
Whilst ADFW own the building, they share the ground floor and 1st Level with 3 other businesses (jade sculptor, metal worker, fashion designer respectively). ADFW themselves fabricate models for architecture and design.
Rock breaking activities are required in close proximity to this building for short periods.
Figures B.7 and B.8 in Appendix B of the Mt Eden Enabling Works CNV DWP predict rock breaking noise levels of up to 93 dB LAeq on the west façade. While this significantly exceeds the 75 dB LAeq noise limit, levels will reduce rapidly as works migrate away. Other utilities works will generally be compliant. Activity specific mitigation and management measures are included in Section 9 of the CNV DWP and not repeated here (e.g. Section 9.7 concrete and rock breaking).
The concrete building has small areas of glazing, a roller door and a shallow pitched steel roof. The estimated sound level difference across the façade with the windows and doors closed is 20 – 30 decibels. The predicted construction noise effects from Table 12.1 in Section 12.1 are predicted to result in short-term noise disturbance. Physical receiver mitigation, such as temporary relocation of affected receivers, alternative ventilation and façade sound insulation improvements, have been considered, but are not required as part of the BPO for the C3 enabling works.
Preliminary large excavator mounted rock breaker vibration level predictions (Section 6.2 of the Enabling Works CNV DWP) identify that there is also potential to exceed the commercial
cosmetic building damage thresholds and will be clearly perceptible. Cosmetic building damage effects are deemed ‘minor damage’ in the DIN Standard (Section 5.2), such as cracking in paint or plasterwork, and can generally be easily repaired. A pre-construction building condition survey in accordance with CRL designation condition 46 will ensure any damage is identified for remediation.
Minka Johnson IP agreed that prior communication of timeframes for works with the potential to exceed the relevant noise limits was an acceptable means of managing effects. No further activity specific consultation is necessary over and above regular communication (Section 10)
Mt Eden Main Works
Link Alliance representatives XXX met with building representative XXX on XXX date. The matters discussed included:
• An overview of the next project phases
• General programme, rock removal, excavation, piling, and utilities relocation activities
• General review of CNV DWP and this SSCNVMP, communications triggers and monitoring
CNV DWP Section 7 identifies summarise the potential scale of noise and/or vibration exceedances using the modelling outputs in insert hyperlink to the GIS maps here. The relevant stages are summarised below. Activity specific mitigation and management measures are included in Section 9 of the CNV DWP, and referenced in brackets, rather than repeated.
Noise
• Retaining walls (refer piling in Section 9.8)
• Excavation (refer concrete and rock breaking in Section 9.7)
• Utilities and drainage (refer concrete cutting and breaking in Sections 9.6 and 9.7)
• Fenton and Porters Ave (refer rock breaking and piling in Sections 9.7 and 9.8)
The predicted construction noise effects from Table 12.1 in Section 12.1 are predicted to result in XXX noise effects. Physical receiver mitigation, such as temporary relocation of affected receivers, alternative ventilation and façade sound insulation improvements, have been considered, but are not required as part of the BPO for the Mt Eden Station Main Works.
Vibration
• Utilities and drainage (refer breaking, piling and compaction in Sections 9.7, 9.8 and 9.10)
The above activities are predicted to have the potential to exceed the commercial cosmetic building damage thresholds. Cosmetic building damage effects are deemed ‘minor damage’ in the DIN Standard (Section 5.2), such as cracking in paint or plasterwork, and can generally be easily repaired. A pre construction building condition survey in accordance with CRL designation condition 46 will ensure any damage is identified for remediation.
XXX agreed that prior communication of timeframes for works with the potential to exceed the relevant noise and vibration limits was an acceptable means of managing effects. No further activity specific consultation is necessary over and above regular communication (Section 10).
If Minka Johnson IP, or other building representatives, this SSCNVMP will be updated in accordance with CRL designation conditions 37.5 and 38.5, with consideration given to the following:
• The extent to which noise may exceed the designation standards
• The timing and duration of any exceedance
• The type of activity causing any exceedance
• A summary of the communication and consultation with the receiver
• The methods and measures to mitigate effects
• A statement of why they reflect best practicable option
Communications records are contained in the communication and consultation plan (CCP). This SSCNVMP will be updated to summarise engagement and any agreed site-specific measures.
C12.1 Introduction
This Site Specific Construction Noise and Vibration Management Plan (SSCNVMP) is for the commercial building located at 5 Porters Ave. A SSCNVMP is required because construction is predicted to exceed the standards in CRL designation conditions 31 and 33
This SSCNVMP has been prepared in accordance with CRL designation condition 37 and 38 and is Appendix C12 of the Mt Eden Main Works Construction Noise and Vibration Delivery Work Plan (CNV DWP). It is a supplementary document that builds on the CNV DWP, and therefore directly references relevant sections of the CNV DWP to avoid repetition. The objective of this SSCNVMP is to detail the best practicable option(s) (BPO) to avoid, remedy or mitigate the identified adverse effects from noise and vibration exceedances at 5 Porters Ave.
As required under CRL designation conditions 37.5 and 38.5, Section C12.3 presents:
• The extent to which noise may exceed the designation standards (Table C12.3.1)
• The timing and duration of any exceedance (Table C12.3.1)
• The type of activity causing any exceedance (Table C12.3.1)
• A summary of the communication and consultation with the receiver (Table C12.3.2)
• The methods and measures to mitigate effects (Table C12.3.3)
• A statement of why they reflect best practicable option (Table C12.3.3)
This SSCNVMP has been prepared for the Link Alliance and forms part of the Construction Environmental Management Plan (CEMP) for the Mt Eden Station Main Works. It builds on the SSCNVMP previously prepared and implemented for the Mt Eden Enabling Works.
The building is a three-level office block with underground carpark. The façade incorporates vertical concrete columns with float glass façade, and plastered hardboard lintels. There are balconies with doors on the eastern façade. The estimated sound level difference across the façade in general is 20 – 25 decibels with balcony doors closed. The predicted construction noise effects from Table 12.1 in Section 12.1 are predicted to result in significant noise disturbance.
ADHB have recently completed a fitout of the building for use as a mental health support clinic. It will house offices, therapy rooms, a call centre, quiet rooms and other staff and patient-oriented facilities.
It is understood that patients will visit the clinic generally during business hours, but some staff will regularly work into the late evening and emergency care situations may arise from time to time.
Rock breaking activities are required in close proximity to this building for weeks at time –cumulatively up to 3 months. Figures B.7 and B.8 in Appendix B of the Mt Eden Enabling Works CNV DWP predict rock breaking noise levels of up to 91 dB LAeq on the east façade. This significantly exceeds the 75 dB LAeq noise limit, when works are occurring directly
outside. Levels will reduce rapidly as works migrate away. Other utilities works will generally be compliant.
The work will take place in stages, specifically trenching, tie-ins, soak pits and road reinstatement. Each stage will require periods of rock breaking.
Preliminary large excavator mounted rock breaker vibration level predictions (Section 6.2 of the Enabling Works CNV DWP) identify that there is also potential to exceed the commercial cosmetic building damage thresholds and will be clearly perceptible. Cosmetic building damage effects are deemed ‘minor damage’ in the DIN Standard (Section 5.2), such as cracking in paint or plasterwork, and can generally be easily repaired. A pre-construction building condition survey and monitoring during construction in accordance with CRL designation condition 46 will ensure any damage is identified for remediation.
In previous meetings with C5 personnel, the potential to upgrade the building façade (secondary glazing, improved internal linings etc.) was discussed. The Link Alliance have committed to providing this, on the basis that this receiver is unique in its noise and vibration sensitivity. The potential impact of construction effects on mental-health patients is incalculable, so non-typical mitigation measures are justified.
These upgrades are not intended to achieve a particular internal level, but are considered the BPO for minimising noise. We expect there will still be impacts on the building occupants at times.
Mt Eden Main Works
Link Alliance representatives Aidan Kirkby-McLeod, Sonya Leahy, Hilary Konigkramer, Philip Young and James Whitlock (Marshall Day Acoustics) met with Lynne Edmonds and Brendon Porter of ADHB on 20 September 2019. The matters discussed are shown in Table 12.3.1
In addition, James Whitlock and Richard Deane (Marshall Day Acoustics) have visited the building to:
- Discuss (16 July 2019 and 2 March 2020) and review installation of (10 July 2020), the recommended façade improvements with the building owner Martin Van Zonneveld, his builder and architect
- Deploy (2 March 2020) and retrieve (10 March 2020) ambient noise and vibration monitors. Noise was measured at the building facade and vibration was measured in the basement carpark
CNV DWP Section 7 identifies summarise the potential scale of noise and/or vibration exceedances using the modelling outputs in insert hyperlink to the GIS maps here The relevant stages are summarised below. Activity specific mitigation and management measures are included in Section 9 of the CNV DWP, and referenced in brackets, rather than repeated.
Noise
• Retaining walls (refer piling in Section 9.8)
• Excavation (refer concrete and rock breaking in Section 9.7)
• Utilities and drainage (refer concrete cutting and breaking in Sections 9.6 and 9.7)
• Fenton and Porters Ave (refer rock breaking and piling in Sections 9.7 and 9.8)
• Night Works (refer cranage night works in Section 9.2)
The predicted construction noise levels may be as high as 84 – 97 dB LAeq at the building façade (depending on the stage) and during these times effects inside the building would be unacceptable given the potential sensitivities of their patients and the nature of the medical service the ADHB provide. These levels may occur when piling and rock breaking activities are right outside the building.
Mitigation and management measures are set out in Section 9 of the CNV DWP, and the key management tool will be ongoing consultation and timing of works – to minimise the periods they occur while the building is occupied.
Link Alliance has committed to making certain improvements to the building façade. These were recommended and overseen by Marshall Day Acoustics. Details are shown in table 12.3.3.
Vibration
• Porters Bridge (refer rock breaking in Section 9.7)
• Utilities and drainage (refer breaking, piling and compaction in Sections 9.7, 9.8 and 9.10)
The above activities have the potential to exceed the commercial cosmetic building damage thresholds. Cosmetic building damage effects are deemed ‘minor damage’ in the DIN Standard (Section 5.2), such as cracking in paint or plasterwork, and can generally be easily repaired. A pre-construction building condition survey in accordance with CRL designation condition 46 will ensure any damage is identified for remediation.
The primary vibration concern expressed by ADHB is the potential for jolts to startle their patients.
Regular consultation will be required prior to, and during, construction. Table C13.3.2 provides a summary of consultation with the building owner and ADHB, and identifies agreed methods and measures to mitigate noise effects and a statement of why they reflect best practicable option.
Table C12.3.1: Activity Detail
1 Activity: Period: Duration: Days: Hours: Early works –trenching, rock breaking Alliance to fill out
2 Activity: Period: Duration: Days: Hours: Main works –concrete cutting, piling, rock breaking Alliance to fill out “
Location: External noise level: Façade performance:
Internal noise level: Potential noise effects: Fenton St and Wynyard Rd
80 – 90 dB
Estimated 20 dB (balcony doors are not well-sealed)
Estimated 60 – 70 dB
Difficulty concentrating and communicating in therapy rooms, offices and telecommunications
Impact on patients’ wellbeing
Location: External noise level: Façade performance:
Rail corridor, Fenton St and Wynyard Rd
84 – 97 dB on north and east facades
North-façade: estimated 25 dB prior to improvements (predominantly glass with lightweight lintels). Estimated 35 dB with improvements (refer Table 12.3.3)
East-façade: estimated 20 dB prior to
3 Activity:
Period: Duration: Days:
Hours: Rock breaking, blasting, piling Alliance to fill out
Internal noise level: Potential noise effects:
1
Receiver: Date:
Name:
Phone:
Email: CRL rep:
ADHB – 5 Porters Ave 20 September 2019
Lynne Edmonds
Brendon Porter lynnee@adhb.govt.nz
Aidan Kirkby-McLeod
Sonya Leahy
Hilary Konigkramer
Philip Young
James Whitlock (MDA)
Location: Vibration level on building: Potential vibration effects:
improvements (balcony doors are not well-sealed). Estimated 25-30 dB with improvements
Estimated 55 – 70 dB
Difficulty concentrating and communicating in therapy rooms, offices and telecommunications Impact on patients’ wellbeing
Fenton St and Wynyard Rd > 10 mm/s PPV
Potential for cosmetic building damage to occur. Also, startle and loss of amenity effects for ADHB employees and patients
2
Receiver: Date: Name: Phone: Email:
CRL rep:
3 Receiver: Date: Name:
Fitout architect – 5 Porters Ave 16 July 2019
Matthew Fleming matt@bravearchitects. co.nz
James Whitlock (MDA)
Owner – 5 Porters Ave 16 July 2019
Martin Van Zonneveld, Matthew Fleming, Builder
• An overview of the project, including presentation of the “what’s happening on site” leaflet
• A detailed programme of works, including blasting and rock breaking activities
• Overview of the CNV DWP and this SSCNVMP, communications triggers and protocol for monitoring and pre-construction building condition surveys
• Identification of noise sensitive activities – specifically the clinic patients, their particularly sensitivities to noise, patient consultations and phone calls
• Potential mitigation measures – secondary glazing and improving north-facing lintels
• Review of current façade construction
• Identifying the acoustic weak points
• Discussion about practicable improvements – particularly to the façade glazing, lintels, fake column boxing and east-facing balcony doors
• Discussion about practicability of lintel improvements, and which lintels need to be upgraded
• Discussion about products – particularly secondary glazing and acoustic sealants
4
Phone: Email:
CRL rep:
Receiver:
Date: Name:
Phone: Email: CRL rep:
antonvanzon@gmail.c om
Jayesh Makan, James Whitlock (MDA)
Owner – 5 Porters Ave 16 July 2019
Martin Van Zonneveld
antonvanzon@gmail.c om
James Whitlock (MDA)
# Actions / specific mitigation measures
• Review of improvements installed so far – lintels, boxing of columns, acoustic sealant, ceiling blankets, magnets for secondary glazing
• Discussion of some areas that need attention – particularly some areas of acoustic sealant and door seals around east-facing balcony doors
1 Development of SSCNVMP and improved communication re: timeframes and mitigation measures
2 Building condition survey prior to construction
3 Optimise design of barrier mitigation for concrete cutting, rock breaking etc. This may involve rolling enclosures, tilting barriers etc.
Ongoing consultation
4 Long-term monitoring of noise and vibration levels
5 The following building modifications:
- Magnetite secondary glazing to north and east-facing windows.
- Upgrading the sound insulation of the lintels (above the ceiling on all levels) to reduce sound entering offices via the ceiling path. This involved removing existing lintels, installing insulation batts and replacing internal linings, adding plasterboard boxing around structural columns and steel roofing elements
- Adding cavity insulation to ceiling voids that did not have insulation installed as part of the building fitout
- Improving the perimeter seals of the east-facing balcony doors on level 1 and 2
This Site Specific Construction Noise and Vibration Management Plan (SSCNVMP) is for the residential building located at 6 Porters Ave. A SSCNVMP is required because construction is predicted to exceed the standards in CRL designation conditions 31 and 33
This SSCNVMP has been prepared in accordance with CRL designation condition 37 and 38 and is Appendix C13 of the Mt Eden Main Works Construction Noise and Vibration Delivery Work Plan (CNV DWP). It is a supplementary document that builds on the CNV DWP, and therefore directly references relevant sections of the CNV DWP to avoid repetition. The objective of this SSCNVMP is to detail the best practicable option(s) (BPO) to avoid, remedy or mitigate the identified adverse effects from noise and vibration exceedances at 6 Porters Ave.
This SSCNVMP has been prepared for the Link Alliance and forms part of the Construction Environmental Management Plan (CEMP) for the Mt Eden Station Main Works. It builds on the SSCNVMP previously prepared and implemented for the Mt Eden Enabling Works.
Mt Eden Enabling Works (for information)
Link Alliance representatives Sonya Leahy, Hilary Konigkramer, Aidan Kirby-McLeod, Phil Young and Craig Fitzgerald (Marshall Day Acoustics) met with building representative Diane Gribben (Body Corporate Chair of North Eden Apartments) and Daniel (Building manager) on 18 September 2019. The matters discussed included:
• An overview of the project
• General programme, demolition, blasting, rock breaking and utilities relocation activities
• Overview of the CNV DWP and this SSCNVMP, communications triggers and protocol and for monitoring and pre-construction building condition surveys
The modern multi-level terraced apartment building features basement car parking beneath 48 apartments across two buildings, some with balconies on the south side overlooking the rail corridor and worksite. There are approximately 2-3 families with young children.
Rock breaking activities are required in close proximity to this building for short periods.
Figures B 7 and B.8 in Appendix B of the Mt Eden Enabling Works CNV DWP predict rock breaking noise levels of up to 75 – 80 dB LAeq on the south façade and 80 – 90 dB LAeq on the west façade. While this significantly exceeds the 75 dB LAeq noise limit on the west façade, levels will reduce rapidly as works migrate away. Other utilities works will generally be compliant. Activity specific mitigation and management measures are included in Section 9 of the CNV DWP and not repeated here (e.g. Section 9.7 concrete and rock breaking).
The modern concrete building has well sealed openable glazing. The estimated sound level difference across the façade with the windows and doors closed is 25 – 30 decibels. The predicted construction noise effects from Table 12.1 in Section 12.1 are predicted to result in short-term noise disturbance Physical receiver mitigation, such as temporary relocation of affected receivers, alternative ventilation and façade sound insulation improvements, have been considered, but are not required as part of the BPO for the C3 enabling works.
Preliminary excavator mounted rock breaker vibration level predictions (Section 6.2 of the Enabling Works CNV DWP) identify that there is potential to exceed the commercial cosmetic building damage thresholds. Cosmetic building damage effects are deemed ‘minor damage’ in the DIN Standard (Section 5.2), such as cracking in paint or plasterwork, and can generally be easily repaired. A pre construction building condition survey in accordance with CRL designation condition 46 will ensure any damage is identified for remediation.
Ms Gribben agreed that prior communication of timeframes for works with the potential to exceed the relevant noise limits was an acceptable means of managing effects. No further activity specific consultation is necessary over and above regular communication (Section 10)
Link Alliance representatives XXX met with building representative XXX on XXX date. The matters discussed included:
• An overview of the next project phases
• General programme, rock removal, excavation, piling, and utilities relocation activities
• General review of CNV DWP and this SSCNVMP, communications triggers and monitoring
CNV DWP Section 7 identifies summarise the potential scale of noise and/or vibration exceedances using the modelling outputs in insert hyperlink to the GIS maps here. The relevant stages are summarised below. Activity specific mitigation and management measures are included in Section 9 of the CNV DWP, and referenced in brackets, rather than repeated
Noise
• Retaining walls (refer piling in Section 9.8)
• Excavation (refer concrete and rock breaking in Section 9.7)
• Utilities and drainage (refer concrete cutting and breaking in Sections 9.6 and 9.7)
• Fenton and Porters Ave (refer rock breaking and piling in Sections 9.7 and 9.8)
• Night Works (refer cranage night works in Section 9.2)
The predicted construction noise effects from Table 12.1 in Section 12.1 are predicted to result in XXX noise effects Physical receiver mitigation, such as temporary relocation of affected receivers, alternative ventilation and façade sound insulation improvements, have been considered, but are not required as part of the BPO for the Mt Eden Station Main Works.
Vibration
• Excavation and piling (refer breaking, piling and compaction in Sections 9.7, 9.8 and 9.10)
• Fenton Bridge (refer rock breaking in Section 9.7)
• Porters Bridge (refer rock breaking in Section 9.7)
• Utilities and drainage (refer breaking, piling and compaction in Sections 9.7, 9.8 and 9.10)
The above activities are predicted to have the potential to exceed the commercial cosmetic building damage thresholds. Cosmetic building damage effects are deemed ‘minor damage’ in the DIN Standard (Section 5.2), such as cracking in paint or plasterwork, and can generally
be easily repaired. A pre construction building condition survey in accordance with CRL designation condition 46 will ensure any damage is identified for remediation.
XXX agreed that prior communication of timeframes for works with the potential to exceed the relevant noise and vibration limits was an acceptable means of managing effects. No further activity specific consultation is necessary over and above regular communication (Section 10).
If Ms Gribben or affected site representatives request consultation in the future, this SSCNVMP will be updated in accordance with CRL designation conditions 37.5 and 38.5, with consideration given to the following:
• The extent to which noise may exceed the designation standards
• The timing and duration of any exceedance
• The type of activity causing any exceedance
• A summary of the communication and consultation with the receiver
• The methods and measures to mitigate effects
• A statement of why they reflect best practicable option
Communications records are contained in the communication and consultation plan (CCP). This SSCNVMP will be updated to summarise engagement and any agreed site-specific measures.
C14.1 Introduction
This Site Specific Construction Noise Management Plan (SSCNMP) is for the residential building located at 1 Wynyard Road. A SSCNVMP is required because construction is predicted to exceed the noise standards in CRL designation condition 31.
This SSCNVMP has been prepared in accordance with CRL designation condition 37 and is Appendix C14 of the Mt Eden Main Works Construction Noise and Vibration Delivery Work Plan (CNV DWP). It is a supplementary document that builds on the CNV DWP, and therefore directly references relevant sections of the CNV DWP to avoid repetition. The objective of this SSCNVMP is to detail the best practicable option(s) (BPO) to avoid, remedy or mitigate the identified adverse effects from noise exceedances at 1 Wynyard Road
This SSCNMP has been prepared for the Link Alliance and forms part of the Construction Environmental Management Plan (CEMP) for the Mt Eden Station Main Works. It builds on the SSCNMP previously prepared and implemented for the Mt Eden Enabling Works.
In the absence of contact details, Link Alliance representatives Duncan Whyte, Hilary Konigkramer and Richard Deane knocked on the door on 10 September 2019. Unfortunately, there was no answer. A general information pack with contact details was left. No response has been received to date to undertake further consultation.
Figure B.5 in Appendix B of the Mt Eden Enabling Works CNV DWP shows that the south façade is predicted to be exposed to noise levels between 75 – 80 dB LAeq during the closest rock breaking activities, exceeding the 75 dB LAeq noise limit. Activity specific mitigation and management measures are included in Section 9 of the CNV DWP and not repeated here (e.g. Section 9.7 concrete and rock breaking).
The residential building has a weatherboards façade with openable windows pitched steel roof. The estimated sound level difference across the façade with the doors closed is 25 decibels. The predicted construction noise effects from Table 12.1 in Section 12.1 are predicted to be typically acceptable, but with the potential for some disturbance for nearby rock breaking. Physical receiver mitigation, such as temporary relocation of affected receivers, alternative ventilation and façade sound insulation improvements, have been considered, but are not required as part of the BPO for the C3 enabling works.
Consultation engagement has not been successful to date. Prior communication of timeframes for works with the potential to exceed the relevant noise limits will be provided where practicable (Section 10)
Link Alliance representatives XXX met with building representative XXX on XXX date. The matters discussed included:
• An overview of the next project phases
• General programme, rock removal, excavation, piling, and utilities relocation activities
• General review of CNV DWP and this SSCNMP, communications triggers and monitoring
CNV DWP Section 7 identifies summarise the potential scale of noise and/or vibration exceedances using the modelling outputs in insert hyperlink to the GIS maps here The relevant stages are summarised below. Activity specific mitigation and management measures are included in Section 9 of the CNV DWP, and referenced in brackets, rather than repeated
• Excavation (refer concrete and rock breaking in Section 9.7)
• Utilities and drainage (refer concrete cutting and breaking in Sections 9.6 and 9.7)
• Normanby Rd (refer piling in Section 9.8)
The predicted construction noise effects from Table 12.1 in Section 12.1 are predicted to result in XXX noise effects. Physical receiver mitigation, such as temporary relocation of affected receivers, alternative ventilation and façade sound insulation improvements, have been considered, but are not required as part of the BPO for the Mt Eden Station Main Works.
XXX agreed that prior communication of timeframes for works with the potential to exceed the relevant noise limits was an acceptable means of managing effects. No further activity specific consultation is necessary over and above regular communication (Section 10).
If the property representatives request consultation in the future, this SSCNMP will be updated in accordance with, CRL designation condition 37.5, with consideration given to the following:
• The extent to which noise may exceed the designation standards
• The timing and duration of any exceedance
• The type of activity causing any exceedance
• A summary of the communication and consultation with the receiver
• The methods and measures to mitigate effects
• A statement of why they reflect best practicable option
Communications records are contained in the communication and consultation plan (CCP). This SSCNMP will be updated to summarise engagement and any agreed site-specific measures.
C15.1 Introduction
This Site Specific Construction Noise Management Plan (SSCNMP) is for the residential building located at 2 Wynyard Road. A SSCNMP is required because construction is predicted to exceed the noise standards in CRL designation condition 31.
This SSCNMP has been prepared in accordance with CRL designation condition 37 and is Appendix C15 of the Mt Eden Main Works Construction Noise and Vibration Delivery Work Plan (CNV DWP). It is a supplementary document that builds on the CNV DWP, and therefore directly references relevant sections of the CNV DWP to avoid repetition. The objective of this SSCNMP is to detail the best practicable option(s) (BPO) to avoid, remedy or mitigate the identified adverse effects from noise exceedances at 2 Wynyard Road
This SSCNMP has been prepared for the Link Alliance and forms part of the Construction Environmental Management Plan (CEMP) for the Mt Eden Main Works. It builds on the SSCNMP previously prepared and implemented for the Mt Eden Enabling Works.
In the absence of contact details, Link Alliance representatives Duncan Whyte, Hilary Konigkramer and Richard Deane knocked on the door on 10 September 2019. Unfortunately, the tenants were moving out. A general information pack with contact details was left. No response has been received to date to undertake further consultation.
Figure B.5 in Appendix B of the Mt Eden Enabling Works CNV DWP shows that the south façade is predicted to be exposed to noise levels between 75 – 80 dB LAeq during the closest rock breaking activities, exceeding the 75 dB LAeq noise limit. Activity specific mitigation and management measures are included in Section 9 of the CNV DWP and not repeated here (e.g. Section 9.7 concrete and rock breaking).
The residential building has a brick façade with wooden framed openable windows and pitched concrete tile roof. The estimated sound level difference across the façade with the doors closed is 25 decibels. The predicted construction noise effects from Table 12.1 in Section 12.1 are predicted to be typically acceptable, but with the potential for some disturbance for nearby rock breaking. Physical receiver mitigation, such as temporary relocation of affected receivers, alternative ventilation and façade sound insulation improvements, have been considered, but are not required as part of the BPO for the C3 enabling works.
Consultation engagement has not been successful to date. Prior communication of timeframes for works with the potential to exceed the relevant noise limits will be provided where practicable (Section 10)
Link Alliance representatives XXX met with building representative XXX on XXX date. The matters discussed included:
• An overview of the next project phases
• General programme, rock removal, excavation, piling, and utilities relocation activities
• General review of CNV DWP and this SSCNMP, communications triggers and monitoring
CNV DWP Section 7 identifies summarise the potential scale of noise and/or vibration exceedances using the modelling outputs in insert hyperlink to the GIS maps here The relevant stages are summarised below. Activity specific mitigation and management measures are included in Section 9 of the CNV DWP, and referenced in brackets, rather than repeated
• Excavation (refer concrete and rock breaking in Section 9.7)
• Utilities and drainage (refer concrete cutting and breaking in Sections 9.6 and 9.7)
• Normanby Rd (refer piling in Section 9.8)
The predicted construction noise effects from Table 12.1 in Section 12.1 are predicted to result in XXX noise effects. Physical receiver mitigation, such as temporary relocation of affected receivers, alternative ventilation and façade sound insulation improvements, have been considered, but are not required as part of the BPO for the Mt Eden Station Main Works.
XXX agreed that prior communication of timeframes for works with the potential to exceed the relevant noise limits was an acceptable means of managing effects. No further activity specific consultation is necessary over and above regular communication (Section 10).
If the property representatives request consultation in the future, this SSCNMP will be updated in accordance with CRL designation condition 37.5, with consideration given to the following:
• The extent to which noise may exceed the designation standards
• The timing and duration of any exceedance
• The type of activity causing any exceedance
• A summary of the communication and consultation with the receiver
• The methods and measures to mitigate effects
• A statement of why they reflect best practicable option
Communications records are contained in the communication and consultation plan (CCP). This SSCNMP will be updated to summarise engagement and any agreed site-specific measures.
C16.1 Introduction
This Site Specific Construction Noise and Vibration Management Plan (SSCNVMP) is for the commercial building located at 3 Fenton Street. A SSCNVMP is required because construction is predicted to exceed the standards in CRL designation conditions 31 and 33
This SSCNVMP has been prepared in accordance with CRL designation condition 37 and 38 and is Appendix C16 of the Mt Eden Main Works Construction Noise and Vibration Delivery Work Plan (CNV DWP). It is a supplementary document that builds on the CNV DWP, and therefore directly references relevant sections of the CNV DWP to avoid repetition. The objective of this SSCNVMP is to detail the best practicable option(s) (BPO) to avoid, remedy or mitigate the identified adverse effects from noise and vibration exceedances at 3 Fenton Street.
This SSCNVMP has been prepared for the Link Alliance and forms part of the Construction Environmental Management Plan (CEMP) for the CNV DWP. It builds on the SSCNVMP previously prepared and implemented for the Mt Eden Enabling Works.
Link Alliance representatives Duncan Whyte, Hilary Konigkramer and Richard Deane met with Alex Ross (Dawsons) on 10 September 2019. The matters discussed included:
• An overview of the project
• General programme of works, rock breaking activities
• Overview of the CNV DWP and this SSCNVMP, communications triggers and protocol
• Building layout and identification of any noise sensitive spaces/activities
Dawson’s offices occupy the first and second level of the building, facing north over the works. The ground level was unoccupied during the visit. Glassware and crockery inventory was generally secured in boxes or crates on the floor (rather than shelves). Showroom areas on the second floor level may include unsecured glassware and crockery on table settings for the purpose of showcasing menus.
Rock breaking activities are required in close proximity to this building for short periods.
Figures B.7 and B.8 in Appendix B of the Mt Eden Enabling Works CNV DWP predict rock breaking noise levels of up to 92 dB LAeq on the north façade. While this significantly exceeds the 75 dB LAeq noise limit, levels will reduce rapidly as works migrate away. Other utilities works will generally be compliant. Activity specific mitigation and management measures are included in Section 9 of the CNV DWP and not repeated here (e.g. Section 9.7 concrete and rock breaking).
The building is a mixture of lightweight and masonry façade, operable glazing and a shallow pitched steel roof. The estimated sound level difference across the façade with the doors and windows closed is 25 – 30 decibels. The predicted construction noise effects from Table 12.1 in Section 12.1 are predicted to result in short-term noise disturbance. Physical receiver mitigation, such as temporary relocation of affected receivers, alternative ventilation and façade sound insulation improvements, have been considered, but are not required as part of the BPO for the C3 enabling works.
Alex Ross raised concerns over levels of vibration resulting in damage in the company’s glassware and crockery. Preliminary large excavator mounted rock breaker vibration level predictions (Section 6.2 of the Enabling Works CNV DWP) identify that there is potential to exceed the commercial cosmetic building damage thresholds and will be clearly perceptible Cosmetic building damage effects are deemed ‘minor damage’ in the DIN Standard (Section 5.2), such as cracking in paint or plasterwork, and can generally be easily repaired. A preconstruction building condition survey in accordance with CRL designation condition 46 will ensure any damage is identified for remediation.
To avoid vibration effects on glassware and crockery, vibration monitoring will be undertaken for the first instance of proximate rock breaking. In addition, it is recommended that showroom table settings are secured for these works and then the effects reviewed.
Alex Ross agreed that prior communication of timeframes for works with the potential to exceed the relevant noise limits was an acceptable means of managing effects. No further activity specific consultation is necessary over and above regular communication (Section 10)
Mt Eden Main Works
Link Alliance representatives XXX met with building representative XXX on XXX date. The matters discussed included:
• An overview of the next project phases
• General programme, rock removal, excavation, piling, and utilities relocation activities
• General review of CNV DWP and this SSCNVMP, communications triggers and monitoring
CNV DWP Section 7 identifies summarise the potential scale of noise and/or vibration exceedances using the modelling outputs in insert hyperlink to the GIS maps here The relevant stages are summarised below. Activity specific mitigation and management measures are included in Section 9 of the CNV DWP, and referenced in brackets, rather than repeated
Noise
• Retaining walls (refer piling in Section 9.8)
• Excavation (refer concrete and rock breaking in Section 9.7)
• Utilities and drainage (refer concrete cutting and breaking in Sections 9.6 and 9.7)
• Fenton and Porters Ave (refer rock breaking and piling in Sections 9.7 and 9.8)
The predicted construction noise effects from Table 12.1 in Section 12.1 are predicted to result in XXX noise effects. Physical receiver mitigation, such as temporary relocation of affected receivers, alternative ventilation and façade sound insulation improvements, have been considered, but are not required as part of the BPO for the Mt Eden Station Main Works.
Vibration
• Excavation and piling (refer breaking, piling and compaction in Sections 9.7, 9.8 and 9.10)
The above activities are predicted to have the potential to exceed the commercial cosmetic building damage thresholds. Cosmetic building damage effects are deemed ‘minor damage’ in the DIN Standard (Section 5.2), such as cracking in paint or plasterwork, and can generally be easily repaired. A pre construction building condition survey in accordance with CRL designation condition 46 will ensure any damage is identified for remediation.
XXX agreed that prior communication of timeframes for works with the potential to exceed the relevant noise and vibration limits was an acceptable means of managing effects. No further activity specific consultation is necessary over and above regular communication (Section 10).
If Alex Ross request consultation in the future, this SSCNVMP will be updated in accordance with CRL designation conditions 37.5 and 38.5, with consideration given to the following:
• The extent to which noise may exceed the designation standards
• The timing and duration of any exceedance
• The type of activity causing any exceedance
• A summary of the communication and consultation with the receiver
• The methods and measures to mitigate effects
• A statement of why they reflect best practicable option
Communications records are contained in the communication and consultation plan (CCP). This SSCNVMP will be updated to summarise engagement and any agreed site-specific measures.
This Site Specific Construction Noise and Vibration Management Plan (SSCNVMP) is for the commercial building located at 5a Fenton Street. A SSCNVMP is required because construction is predicted to exceed the Project Standards in CRL designation conditions 31 and 33
This SSCNVMP has been prepared in accordance with CRL designation condition 37 and 38 and is Appendix C17 of the Mt Eden Main Works Construction Noise and Vibration Delivery Work Plan (CNV DWP). It is a supplementary document that builds on the CNV DWP, and therefore directly references relevant sections of the CNV DWP to avoid repetition. The objective of this SSCNVMP is to detail the best practicable option(s) (BPO) to avoid, remedy or mitigate the identified adverse effects from noise and vibration exceedances at 5a Fenton Street.
This SSCNVMP has been prepared for the Link Alliance and forms part of the Construction Environmental Management Plan (CEMP) for the Mt Eden Main Works. It builds on the SSCNVMP previously prepared and implemented for the Mt Eden Enabling Works.
Mt Eden Enabling Works (for information)
Link Alliance representatives Duncan Whyte, Hilary Konigkramer and Richard Deane met with Danny Bracks (Office Relocations) on 10 September 2019. The matters discussed included:
• An overview of the project
• General programme of works, rock breaking activities
• Overview of the CNV DWP and this SSCNVMP, communications triggers and protocol
• Building layout and identification of any noise sensitive spaces/activities
Office Relocations offices occupy the ground level of the building, facing north to the works.
Rock breaking activities are required in close proximity to this building for short periods.
Figures B.7 and B.8 in Appendix B of the Mt Eden Enabling Works CNV DWP predict rock breaking noise levels of up to 80 – 90 dB LAeq on the west façade. While this significantly exceeds the 75 dB LAeq noise limit, levels will reduce rapidly as works migrate away. Other utilities works will generally be compliant. Activity specific mitigation and management measures are included in Section 9 of the CNV DWP and not repeated here (e.g. Section 9.7 concrete and rock breaking).
The building is a masonry façade, openable windows and a shallow pitched steel roof. The estimated sound level difference across the façade with the doors closed is 25 – 30 decibels. The predicted construction noise effects from Table 12.1 in Section 12.1 are predicted to result in short-term noise disturbance. Physical receiver mitigation, such as temporary relocation of affected receivers, alternative ventilation and façade sound insulation improvements, have been considered, but are not required as part of the BPO for the C3 enabling works.
Danny Bracks raised concerns over levels of vibration resulting in damage in the companies glassware and crockery. Preliminary large excavator mounted rock breaker vibration level predictions (Section 6.2 of the Enabling Works CNV DWP) identify that there is potential to
exceed the commercial cosmetic building damage thresholds and will be clearly perceptible. Cosmetic building damage effects are deemed ‘minor damage’ in the DIN Standard (Section 5.2), such as cracking in paint or plasterwork, and can generally be easily repaired. A preconstruction building condition survey in accordance with CRL designation condition 46 will ensure any damage is identified for remediation.
Danny Bracks agreed that prior communication of timeframes for works with the potential to exceed the relevant noise limits was an acceptable means of managing effects. No further activity specific consultation is necessary over and above regular communication (Section 10)
Mt Eden Main Works
Link Alliance representatives XXX met with building representative XXX on XXX date. The matters discussed included:
• An overview of the next project phases
• General programme, rock removal, excavation, piling, and utilities relocation activities
• General review of CNV DWP and this SSCNVMP, communications triggers and monitoring CNV DWP Section 7 identifies summarise the potential scale of noise and/or vibration exceedances using the modelling outputs in insert hyperlink to the GIS maps here. The relevant stages are summarised below. Activity specific mitigation and management measures are included in Section 9 of the CNV DWP, and referenced in brackets, rather than repeated.
Noise
• Retaining walls (refer piling in Section 9.8)
• Excavation (refer concrete and rock breaking in Section 9.7)
• Utilities and drainage (refer concrete cutting and breaking in Sections 9.6 and 9.7)
• Fenton and Porters Ave (refer rock breaking and piling in Sections 9.7 and 9.8)
The predicted construction noise effects from Table 12.1 in Section 12.1 are predicted to result in XXX noise effects. Physical receiver mitigation, such as temporary relocation of affected receivers, alternative ventilation and façade sound insulation improvements, have been considered, but are not required as part of the BPO for the Mt Eden Station Main Works.
Vibration
• Utilities and drainage (refer breaking, piling and compaction in Sections 9.7, 9.8 and 9.10)
The above activities are predicted to have the potential to exceed the commercial cosmetic building damage thresholds. Cosmetic building damage effects are deemed ‘minor damage’ in the DIN Standard (Section 5.2), such as cracking in paint or plasterwork, and can generally be easily repaired. A pre construction building condition survey in accordance with CRL designation condition 46 will ensure any damage is identified for remediation.
XXX agreed that prior communication of timeframes for works with the potential to exceed the relevant noise and vibration limits was an acceptable means of managing effects. No further activity specific consultation is necessary over and above regular communication (Section 10).
If Danny Bracks request consultation in the future, this SSCNVMP will be updated in accordance with CRL designation conditions 37.5 and 38.5, with consideration given to the following:
• The extent to which noise may exceed the designation standards
• The timing and duration of any exceedance
• The type of activity causing any exceedance
• A summary of the communication and consultation with the receiver
• The methods and measures to mitigate effects
• A statement of why they reflect best practicable option
Communications records are contained in the communication and consultation plan (CCP). This SSCNVMP will be updated to summarise engagement and any agreed site-specific measures.
C18.1 Introduction
This Site Specific Construction Noise and Vibration Management Plan (SSCNVMP) is for the commercial building located at 5 Fenton Street. A SSCNVMP is required because construction is predicted to exceed the standards in CRL designation conditions 31 and 32
This SSCNVMP has been prepared in accordance with CRL designation condition 37 and 38 and is Appendix C18 of the Mt Eden Main Works Construction Noise and Vibration Delivery Work Plan (CNV DWP). It is a supplementary document that builds on the CNV DWP, and therefore directly references relevant sections of the CNV DWP to avoid repetition. The objective of this SSCNVMP is to detail the best practicable option(s) (BPO) to avoid, remedy or mitigate the identified adverse effects from noise and vibration exceedances at 5 Fenton Street.
This SSCNVMP has been prepared for the Link Alliance and forms part of the Construction Environmental Management Plan (CEMP) for the Mt Eden Main Works. It builds on the SSCNVMP previously prepared and implemented for the Mt Eden Enabling Works.
C18.2 Engagement
In the absence of contact details, Link Alliance representatives Duncan Whyte, Hilary Konigkramer and Richard Deane knocked on the door on 10 September 2019. Unfortunately, the appropriate representative of Fraser Powerie Barristers and Solicitors was not available A general information pack with contact details was left. No response has been received to date to undertake further consultation.
Rock breaking activities are required in close proximity to this building for short periods. Figures B 7 and B.8 in Appendix B of the Mt Eden Enabling Works CNV DWP predict rock breaking noise levels of up to 80 – 90 dB LAeq on the west façade. While this significantly exceeds the 75 dB LAeq noise limit, levels will reduce rapidly as works migrate away. Other utilities works will generally be compliant. Activity specific mitigation and management measures are included in Section 7 of the CNV DWP and not repeated here (e.g. Section 7.7 concrete and rock breaking).
The concrete building has operable glazing and a shallow pitched steel roof. The estimated sound level difference across the façade with the windows and doors closed is 25 – 30 decibels. The predicted construction noise effects from Table 12.1 in Section 12.1 are predicted to result in short-term noise disturbance Physical receiver mitigation, such as temporary relocation of affected receivers, alternative ventilation and façade sound insulation improvements, have been considered, but are not required as part of the BPO for the C3 enabling works.
Preliminary large excavator mounted rock breaker vibration level predictions (Section 6.2 of the Enabling Works CNV DWP) identify that there is potential to exceed the commercial cosmetic building damage thresholds. Cosmetic building damage effects are deemed ‘minor damage’ in the DIN Standard (Section 5.2), such as cracking in paint or plasterwork, and can generally be easily repaired. A pre-construction building condition survey in accordance with CRL designation condition 46 will ensure any damage is identified for remediation.
Consultation engagement has not been successful to date. Prior communication of timeframes for works with the potential to exceed the relevant noise limits will be provided where practicable (Section 10)
Link Alliance representatives XXX met with building representative XXX on XXX date. The matters discussed included:
• An overview of the next project phases
• General programme, rock removal, excavation, piling, and utilities relocation activities
• General review of CNV DWP and this SSCNVMP, communications triggers and monitoring
CNV DWP Section 7 identifies summarise the potential scale of noise and/or vibration exceedances using the modelling outputs in insert hyperlink to the GIS maps here. The relevant stages are summarised below. Activity specific mitigation and management measures are included in Section 9 of the CNV DWP, and referenced in brackets, rather than repeated.
Noise
• Retaining walls (refer piling in Section 9.8)
• Excavation (refer concrete and rock breaking in Section 9.7)
• Utilities and drainage (refer concrete cutting and breaking in Sections 9.6 and 9.7)
• Fenton and Porters Ave (refer rock breaking and piling in Sections 9.7 and 9.8)
The predicted construction noise effects from Table 12.1 in Section 12.1 are predicted to result in XXX noise effects. Physical receiver mitigation, such as temporary relocation of affected receivers, alternative ventilation and façade sound insulation improvements, have been considered, but are not required as part of the BPO for the Mt Eden Station Main Works.
Vibration
• Utilities and drainage (refer breaking, piling and compaction in Sections 9.7, 9.8 and 9.10)
The above activities are predicted to have the potential to exceed the commercial cosmetic building damage thresholds. Cosmetic building damage effects are deemed ‘minor damage’ in the DIN Standard (Section 5.2), such as cracking in paint or plasterwork, and can generally be easily repaired. A pre construction building condition survey in accordance with CRL designation condition 46 will ensure any damage is identified for remediation.
XXX agreed that prior communication of timeframes for works with the potential to exceed the relevant noise and vibration limits was an acceptable means of managing effects. No further activity specific consultation is necessary over and above regular communication (Section 10).
If the property representatives request consultation in the future, this SSCNVMP will be updated in accordance with CRL designation conditions 37.5 and 38.5, with consideration given to the following:
• The extent to which noise may exceed the designation standards
• The timing and duration of any exceedance
• The type of activity causing any exceedance
• A summary of the communication and consultation with the receiver
• The methods and measures to mitigate effects
• A statement of why they reflect best practicable option
Communications records are contained in the communication and consultation plan (CCP). This SSCNVMP will be updated to summarise engagement and any agreed site-specific measures.
C19.1
This Site Specific Construction Noise and Vibration Management Plan (SSCNVMP) is for the residential building located at 11 Fenton Street. A SSCNVMP is required because construction is predicted to exceed the standards in CRL designation conditions 31 and 32
This SSCNVMP has been prepared in accordance with CRL designation condition 37 and 38 and is Appendix C19 of the Mt Eden Main Works Construction Noise and Vibration Delivery Work Plan (CNV DWP). It is a supplementary document that builds on the CNV DWP, and therefore directly references relevant sections of the CNV DWP to avoid repetition. The objective of this SSCNVMP is to detail the best practicable option(s) (BPO) to avoid, remedy or mitigate the identified adverse effects from noise and vibration exceedances at 11 Fenton Street.
This SSCNVMP has been prepared for the Link Alliance and forms part of the Construction Environmental Management Plan (CEMP) for the Mt Eden Main Works. It builds on the SSCNVMP previously prepared and implemented for the Mt Eden Enabling Works.
Mt Eden Enabling Works (for information)
Link Alliance representatives Sonya Leahy, Hilary Konigkramer, Aidan Kirkby-McLeod, Phil Young and Craig Fitzgerald met with building representative Tim Harding (body corporate chair of Station R Apartments) on 18 September 2019. The matters discussed included:
• An overview of the project
• General programme, demolition, rock breaking and utilities relocation activities
• Overview of the CNV DWP and this SSCNVMP, communications triggers and protocol and for monitoring and pre-construction building condition surveys
The modern multi-level terraced apartment building features basement car parking beneath 36 apartments with balconies on the north side overlooking the rail corridor and worksite. There are approximately 2-3 families with young children.
Rock breaking activities are required in close proximity to this building for short periods.
Figures B.7 and B.8 in Appendix B of the Mt Eden Enabling Works CNV DWP predict rock breaking noise levels of 80 – 90 dB LAeq on the west façade. While this significantly exceeds the 75 dB LAeq noise limit, levels will reduce rapidly as works migrate away. Other utilities works will generally be compliant. Activity specific mitigation and management measures are included in Section 9 of the CNV DWP and not repeated here (e.g. Section 9.7 concrete and rock breaking).
The modern concrete building has well sealed openable glazing. The estimated sound level difference across the façade with the windows and doors closed is 30 decibels. The predicted construction noise effects from Table 12.1 in Section 12.1 are predicted to result in shortterm noise disturbance Physical receiver mitigation, such as temporary relocation of affected receivers, alternative ventilation and façade sound insulation improvements, have been considered, but are not required as part of the BPO for the C3 enabling works.
Preliminary excavator mounted rock breaker vibration level predictions (Section 6.2 of the Enabling Works CNV DWP) identify that there is potential to exceed the commercial cosmetic
building damage thresholds. Cosmetic building damage effects are deemed ‘minor damage’ in the DIN Standard (Section 5.2), such as cracking in paint or plasterwork, and can generally be easily repaired. A pre construction building condition survey in accordance with CRL designation condition 46 has been undertaken to ensure any damage is identified for remediation.
Mr Harding agreed that prior communication of timeframes for works with the potential to exceed the relevant noise limits was an acceptable means of managing effects. No further activity specific consultation is necessary over and above regular communication (Section 10).
Mt Eden Main Works
Link Alliance representatives XXX met with building representative XXX on XXX date. The matters discussed included:
• An overview of the next project phases
• General programme, rock removal, excavation, piling, and utilities relocation activities
• General review of CNV DWP and this SSCNVMP, communications triggers and monitoring CNV DWP Section 7 identifies summarise the potential scale of noise and/or vibration exceedances using the modelling outputs in insert hyperlink to the GIS maps here. The relevant stages are summarised below. Activity specific mitigation and management measures are included in Section 9 of the CNV DWP, and referenced in brackets, rather than repeated.
Noise
• Retaining walls (refer piling in Section 9.8)
• Excavation (refer concrete and rock breaking in Section 9.7)
• Utilities and drainage (refer concrete cutting and breaking in Sections 9.6 and 9.7)
• Fenton and Porters Ave (refer rock breaking and piling in Sections 9.7 and 9.8)
• Night Works (refer cranage night works in Section 9.2)
The predicted construction noise effects from Table 12.1 in Section 12.1 are predicted to result in XXX noise effects Physical receiver mitigation, such as temporary relocation of affected receivers, alternative ventilation and façade sound insulation improvements, have been considered, but are not required as part of the BPO for the Mt Eden Station Main Works.
Vibration
• Excavation and piling (refer breaking, piling and compaction in Sections 9.7, 9.8 and 9.10)
• Fenton Bridge (refer rock breaking in Section 9.7)
• Utilities and drainage (refer breaking, piling and compaction in Sections 9.7, 9.8 and 9.10)
The above activities are predicted to have the potential to exceed the commercial cosmetic building damage thresholds. Cosmetic building damage effects are deemed ‘minor damage’ in the DIN Standard (Section 5.2), such as cracking in paint or plasterwork, and can generally be easily repaired. A pre construction building condition survey in accordance with CRL designation condition 46 will ensure any damage is identified for remediation.
XXX agreed that prior communication of timeframes for works with the potential to exceed the relevant noise and vibration limits was an acceptable means of managing effects. No further activity specific consultation is necessary over and above regular communication (Section 10).
If Mr Harding or affected site representatives request consultation in the future, this SSCNVMP will be updated in accordance with CRL designation conditions 37.5 and 38.5, with consideration given to the following:
• The extent to which noise may exceed the designation standards
• The timing and duration of any exceedance
• The type of activity causing any exceedance
• A summary of the communication and consultation with the receiver
• The methods and measures to mitigate effects
• A statement of why they reflect best practicable option
Communications records are contained in the communication and consultation plan (CCP). This SSCNVMP will be updated to summarise engagement and any agreed site-specific measures.
C20.1 Introduction
This Site Specific Construction Noise Management Plan (SSCNMP) is for the commercial building located at 2 Haultain Street. A SSCNMP is required because construction is predicted to exceed the noise standards in CRL designation condition 31.
This SSCNMP has been prepared in accordance with CRL designation condition 37 and is Appendix C20 of the Mt Eden Main Works Construction Noise and Vibration Delivery Work Plan (CNV DWP). It is a supplementary document that builds on the CNV DWP, and therefore directly references relevant sections of the CNV DWP to avoid repetition. The objective of this SSCNMP is to detail the best practicable option(s) (BPO) to avoid, remedy or mitigate the identified adverse effects from noise exceedances at 2 Haultain Street
This SSCNMP has been prepared for the Link Alliance and forms part of the Construction Environmental Management Plan (CEMP) for the Mt Eden Main Works. It builds on the SSCNMP previously prepared and implemented for the Mt Eden Enabling Works.
Link Alliance representatives Duncan Whyte, Hilary Konigkramer and Richard Deane knocked on the door on 10 September 2019.
Unfortunately, the appropriate representative of Bootleg Design (unit 1) was not available. A general information pack with contact details was left. No response has been received to date to undertake further consultation.
Craig and Susanne Meldrum of WiPath (unit 2) offices occupy the ground and first level of the building, facing north over the works
Figure B.8 in Appendix B of the Mt Eden Enabling Works CNV DWP shows that the north façade is predicted to be exposed to noise levels between 75 – 80 dB LAeq during the closest rock breaking activities, exceeding the 75 dB LAeq noise limit. Activity specific mitigation and management measures are included in Section 9 of the CNV DWP and not repeated here (e.g. Section 9.7 concrete and rock breaking).
The building is a lightweight façade, glazing and a flat steel roof. The estimated sound level difference across the façade with the doors closed is 20 – 25 decibels. The predicted construction noise effects from Table 12.1 in Section 12.1 are predicted to be typically acceptable, but with the potential for some disturbance for nearby rock breaking. Physical receiver mitigation, such as temporary relocation of affected receivers, alternative ventilation and façade sound insulation improvements, have been considered, but are not required as part of the BPO for the C3 enabling works.
Mr and Ms Meldrum agreed that prior communication of timeframes for works with the potential to exceed the relevant noise limits was an acceptable means of managing effects. No further activity specific consultation is necessary over and above regular communication (Section 10)
Link Alliance representatives XXX met with building representative XXX on XXX date. The matters discussed included:
• An overview of the next project phases
• General programme, rock removal, excavation, piling, and utilities relocation activities
• General review of CNV DWP and this SSCNMP, communications triggers and monitoring CNV DWP Section 7 identifies summarise the potential scale of noise and/or vibration exceedances using the modelling outputs in insert hyperlink to the GIS maps here. The relevant stages are summarised below. Activity specific mitigation and management measures are included in Section 9 of the CNV DWP, and referenced in brackets, rather than repeated.
• Retaining walls (refer piling in Section 9.8)
• Excavation (refer concrete and rock breaking in Section 9.7)
• Utilities and drainage (refer concrete cutting and breaking in Sections 9.6 and 9.7)
• Fenton and Porters Ave (refer rock breaking and piling in Sections 9.7 and 9.8)
The predicted construction noise effects from Table 12.1 in Section 12.1 are predicted to result in XXX noise effects. Physical receiver mitigation, such as temporary relocation of affected receivers, alternative ventilation and façade sound insulation improvements, have been considered, but are not required as part of the BPO for the Mt Eden Station Main Works.
XXX agreed that prior communication of timeframes for works with the potential to exceed the relevant noise limits was an acceptable means of managing effects. No further activity specific consultation is necessary over and above regular communication (Section 10).
If Mr or Ms Meldrum or other property representatives request consultation in the future, this SSCNMP will be updated in accordance with CRL designation condition 37.5, with consideration given to the following:
• The extent to which noise may exceed the designation noise standards
• The timing and duration of any exceedance
• The type of activity causing any exceedance
• A summary of the communication and consultation with the receiver
• The methods and measures to mitigate noise effects
• A statement of why they reflect best practicable option
Communications records are contained in the communication and consultation plan (CCP). This SSCNMP will be updated to summarise engagement and any agreed site-specific measures.
C21.1 Introduction
This Site Specific Construction Noise Management Plan (SSCNMP) is for the Bear Park childcare centre located at 32 Akiraho Street. A SSCNMP is not required for the Mt Eden enabling works because construction is predicted to comply with the noise standards in CRL designation condition 31. Nonetheless, this precautionary SSCNMP sets up the process to address specific conditions and ensure good effective communication with Bear Park in advance of any potential exceedances from future stages of works.
This SSCNMP has been prepared in accordance with CRL designation condition 37 and is Appendix C21 of the Mt Eden Enabling Works Construction Noise and Vibration Delivery Work Plan (CNV DWP). It is a supplementary document that builds on the CNV DWP, and therefore directly references relevant sections of the CNV DWP to avoid repetition. The objective of this SSCNMP is to detail the best practicable option(s) (BPO) to avoid, remedy or mitigate the identified adverse effects from noise exceedances at 32 Akiraho Street.
This SSCNMP has been prepared for the Link Alliance and forms part of the Construction Environmental Management Plan (CEMP) for the Mt Eden Enabling Works. It builds on the SSCNMP previously prepared and implemented for the Mt Eden Enabling Works.
C21.2 Building Details
Mt Eden Enabling Works (for information)
Link Alliance representatives Sonya Leahy, Thibaut L'Hopital, Aidan Kirkby-McLeod, Simon Titter and Craig Fitzgerald met with Paloma Poliko (Centre Manager) on 14 October 2019. The matters discussed included:
• An overview of the project
• General project programme, demolition and rock breaking/blasting activities
• Overview of the CNV DWP and this SSCNMP, communications triggers and protocol
Bear Park caters for nearly 100 families. The site buildings and outdoor play areas are screened from the NAL and site works by the new Station R apartments. Sleep times for junior children are between 12 noon and 2pm. Blasting times avoid sleep disturbance.
Figure B.8 in Appendix B of the Mt Eden Enabling Works CNV DWP shows that the north façade is predicted to be exposed to noise levels between 60 – 65 dB LAeq during the closest rock breaking activities, complying with the 65 dB LAeq noise limit in CRL designation condition 31.1 Activity specific mitigation and management measures are included in Section 9 of the CNV DWP and not repeated here (e.g. Section 9.7 concrete and rock breaking).
The modern brick building has sealed glazing and a pitched fibre cement roof. The estimated sound level difference across the façade with the doors closed is 30 decibels. The predicted construction noise effects from Table 12.1 in Section 12.1 are predicted to be typically acceptable and the noise level inside comply with 35 dB LAeq in CRL designation condition 31.1 with the windows and doors closed and air conditioning on. Physical receiver mitigation, such as temporary relocation of affected receivers, alternative ventilation and façade sound insulation improvements, have been considered, but are not required as part of the BPO for the C3 enabling works.
Ms Poliko agreed that prior communication of timeframes for works with the potential to exceed the relevant noise limits was an acceptable means of managing effects. No further activity specific consultation is necessary over and above regular communication (Section 10)
Link Alliance representatives XXX met with building representative XXX on XXX date. The matters discussed included:
• An overview of the next project phases
• General programme, rock removal, excavation, piling, and utilities relocation activities
• General review of CNV DWP and this SSCNMP, communications triggers and monitoring
CNV DWP Section 7 identifies summarise the potential scale of noise and/or vibration exceedances using the modelling outputs in insert hyperlink to the GIS maps here.
The predicted construction noise effects from Table 12.1 in Section 12.1 are predicted to result in XXX noise effects Physical receiver mitigation, such as temporary relocation of affected receivers, alternative ventilation and façade sound insulation improvements, have been considered, but are not required as part of the BPO for the Mt Eden Station Main Works.
XXX agreed that prior communication of timeframes for works with the potential to exceed the relevant noise limits was an acceptable means of managing effects. No further activity specific consultation is necessary over and above regular communication (Section 10).
If Ms Poliko or other Bear Park representatives request consultation in the future, this SSCNVMP will be updated in accordance with CRL designation condition 37.5, with consideration given to the following:
• The extent to which noise may exceed the designation noise standards
• The timing and duration of any exceedance
• The type of activity causing any exceedance
• A summary of the communication and consultation with the receiver
• The methods and measures to mitigate noise effects
• A statement of why they reflect best practicable option
Communications records are contained in the communication and consultation plan (CCP). This SSCNVMP will be updated to summarise engagement and any agreed site-specific measures.
C22.1 Introduction
This Site Specific Construction Noise Management Plan (SSCNMP) is for the residential building located at 140 New North Road. A SSCNMP is required because construction is predicted to exceed the noise standards in CRL designation condition 31.
This SSCNMP has been prepared in accordance with CRL designation condition 37 and is Appendix C23 of the Mt Eden Enabling Works Construction Noise and Vibration Delivery Work Plan (CNV DWP). It is a supplementary document that builds on the CNV DWP, and therefore directly references relevant sections of the CNV DWP to avoid repetition. The objective of this SSCNMP is to detail the best practicable option(s) (BPO) to avoid, remedy or mitigate the identified adverse effects from noise exceedances at 140 New North Road
This SSCNMP has been prepared for the Link Alliance and forms part of the Construction Environmental Management Plan (CEMP) for the Mt Eden Enabling Works. It builds on the SSCNMP previously prepared and implemented for the Mt Eden Enabling Works.
Link Alliance representatives Duncan Whyte, Hilary Konigkramer and Richard Deane met with Ash Woods on 10 September 2019. The matters discussed included:
• An overview of the project
• General project programme, demolition and rock breaking/blasting activities
• Overview of the CNV DWP and this SSCNMP, communications triggers and protocol
• Building layout and identification of any noise sensitive spaces
The ground floor of the building contains apartments, with a boarding house and additional apartments on the first floor.
Figure B.8 in Appendix B of the Mt Eden Enabling Works CNV DWP shows that the west façade is predicted to be exposed to noise levels between 75 – 80 dB LAeq during the closest rock breaking activities, exceeding the 75 dB LAeq noise limit. Activity specific mitigation and management measures are included in Section 9 of the CNV DWP and not repeated here (e.g. Section 9.7 concrete and rock breaking).
The building is a masonry façade, glazing and a flat steel roof. The estimated sound level difference across the façade with the doors closed is 25 – 30 decibels. The predicted construction noise effects from Table 12.1 in Section 12.1 are predicted to be typically acceptable, but with the potential for some disturbance for nearby rock breaking. Physical receiver mitigation, such as temporary relocation of affected receivers, alternative ventilation and façade sound insulation improvements, have been considered, but are not required as part of the BPO for the C3 enabling works.
If Mr Woods agreed that prior communication of timeframes for works with the potential to exceed the relevant noise limits was an acceptable means of managing effects. No further activity specific consultation is necessary over and above regular communication (Section 10).
Link Alliance representatives XXX met with building representative XXX on XXX date. The matters discussed included:
• An overview of the next project phases
• General programme, rock removal, excavation, piling, and utilities relocation activities
• General review of CNV DWP and this SSCNMP, communications triggers and monitoring
CNV DWP Section 7 identifies summarise the potential scale of noise and/or vibration exceedances using the modelling outputs in insert hyperlink to the GIS maps here. The relevant stages are summarised below. Activity specific mitigation and management measures are included in Section 9 of the CNV DWP, and referenced in brackets, rather than repeated.
• Excavation (refer concrete and rock breaking in Section 9.7)
• Utilities and drainage (refer concrete cutting and breaking in Sections 9.6 and 9.7)
• Fenton and Porters Ave (refer rock breaking and piling in Sections 9.7 and 9.8)
• Night Works (refer cranage night works in Section 9.2)
The predicted construction noise effects from Table 12.1 in Section 12.1 are predicted to result in XXX noise effects. Physical receiver mitigation, such as temporary relocation of affected receivers, alternative ventilation and façade sound insulation improvements, have been considered, but are not required as part of the BPO for the Mt Eden Station Main Works.
XXX agreed that prior communication of timeframes for works with the potential to exceed the relevant noise limits was an acceptable means of managing effects. No further activity specific consultation is necessary over and above regular communication (Section 10).
If Mr Woods or affected site representatives request consultation in the future, this SSCNMP will be updated in accordance with CRL designation condition 37.5, with consideration given to the following:
• The extent to which noise may exceed the designation noise standards
• The timing and duration of any exceedance
• The type of activity causing any exceedance
• A summary of the communication and consultation with the receiver
• The methods and measures to mitigate noise effects
• A statement of why they reflect best practicable option
Communications records are contained in the communication and consultation plan (CCP). This SSCNMP will be updated to summarise engagement and any agreed site-specific measures.
C23.1 Introduction
This Site Specific Construction Noise Management Plan (SSCNMP) is for 101 Mt Eden Road. A SSCNMP is required because construction is predicted to exceed the standards in CRL designation conditions 31.
This SSCNMP has been prepared in accordance with CRL designation condition 37 and is Appendix C23 of the Mt Eden Main Works Construction Noise and Vibration Delivery Work Plan (CNV DWP). It is a supplementary document that builds on the CNV DWP, and therefore directly references relevant sections of the CNV DWP to avoid repetition. The objective of this SSCNMP is to detail the best practicable option(s) (BPO) to avoid, remedy or mitigate the identified adverse effects from noise exceedances at 101 Mt Eden Road
This SSCNMP has been prepared for the Link Alliance and forms part of the Construction Environmental Management Plan (CEMP) for the Mt Eden Station Main Works
C23.2 Engagement
Mt Eden Main Works
Link Alliance representatives XXX met with building representative XXX on XXX date. The matters discussed included:
• An overview of the next project phases
• General programme, rock removal, excavation, piling, and utilities relocation activities
• General review of CNV DWP and this SSCNMP, communications triggers and monitoring
The modern three-level commercial building adjacent to the NAL and Mt Eden Station platform access ramp.
CNV DWP Section 7 identifies summarise the potential scale of noise and/or vibration exceedances using the modelling outputs in insert hyperlink to the GIS maps here The relevant stages are summarised below. Activity specific mitigation and management measures are included in Section 9 of the CNV DWP, and referenced in brackets, rather than repeated.
• Retaining walls (refer piling in Section 9.8)
• Excavation (refer concrete and rock breaking in Section 9.7)
The estimated sound level difference across the façade with the windows and doors closed is XX decibels. The predicted construction noise effects from Table 12.1 in Section 12.1 are predicted to result in XXX noise effects Physical receiver mitigation, such as temporary relocation of affected receivers, alternative ventilation and façade sound insulation improvements, have been considered, but are not required as part of the BPO for the Mt Eden Station Main Works.
XXX agreed that prior communication of timeframes for works with the potential to exceed the relevant noise limits was an acceptable means of managing effects. No further activity specific consultation is necessary over and above regular communication (Section 10).
If XXX or affected site representatives request consultation in the future, this SSCNMP will be updated in accordance with CRL designation conditions 37.5, with consideration given to the following:
• The extent to which noise may exceed the designation standards
• The timing and duration of any exceedance
• The type of activity causing any exceedance
• A summary of the communication and consultation with the receiver
• The methods and measures to mitigate effects
• A statement of why they reflect best practicable option
Communications records are contained in the communication and consultation plan (CCP). This SSCNMP will be updated to summarise engagement and any agreed site-specific measures.
C24.1
This Site-Specific Construction Noise and Vibration Management Plan (SSCNVMP) is for The Project building at 71 Boston Road. It is required to satisfy CRL designation conditions 16 and 39 because the building is considered to be a “notable noise and vibration receiver”
As Appendix C24 of the Mt Eden Main Works Construction Noise and Vibration Delivery Work Plan (CNV DWP), this SSCNVMP is a supplementary document that builds on the Project CNV DWP, and therefore, directly references relevant sections of the DWP to avoid repetition.
The objective of this SSCNVMP is to detail the best practicable option(s) (BPO) to avoid, remedy or mitigate the identified adverse effects on MediaWorks. It contains, or references:
• Details of those responsible for implementing this SSCNVMP (CNV DWP Section 4)
• MediaWorks noise and vibration sensitive spaces (Section C24 2)
• Predicted construction noise levels (Section C24 3)
• Mitigation and management measures (CNV DWP Section 9)
• Communication protocol (CNV DWP Section 10)
• SSCNMP review process (CRL designation condition 39.6)
This SSCNVMP has been prepared for the Link Alliance and forms part of the Construction Environmental Management Plan (CEMP) for the Project. It builds on the SSCNVMP previously prepared and implemented for the Normanby Rd Early Works.
The relevant Construction Noise Project Standards are summarised in Table C24.2.1.
Table C24.2.1: Construction Noise
Measured and assessed in accordance with the provisions of New Zealand Standard NZS 6803:1999 “AcousticsConstruction Noise” 13 These are the measurement locations where required by the Standard. For monitoring, proxy locations can be used with established transfer functions (refer condition 40.9) 14 Measured and assessed in accordance with the provisions of German Standard DIN 4150-3:1999 “Structural vibration –Part 3: Effects of vibration on structures”
34.2 (b) Amenity
2 mm/s PPV
Floor of retail and office areas (including work areas and meeting rooms).
The above Project Standards apply to typical office/retail buildings. The studio at 71 Boston Road was not identified during consenting and is not reflected in the consent conditions relating to other MediaWorks studios. However, it is recognised that, as the building is being used as a television studio, it is more sensitive to internal noise and vibration than a typical office building. Therefore, the following internal criteria were determined during the CRL C6 works and included in the SSCNVMP for that project.
Table C24.2.3: Construction Noise – The Project Studio
39.4 Internal noise for filming 40 dB LAeq Inside The Project studio (16:00-21:00)
The relevant Construction Vibration Project Standards are summarised in Table C24.2.2.
Table C24.2.4: Construction Vibration – The Project Studio
39.4 Vibration for filming 0.20 mm/s (approximately 1mm/s PPV) On the floor of The
Normanby Rd Early Works (for information)
Consultation was undertaken with MediaWorks for existing studio spaces prior to the C6 works. Following this a site visit of the building at 71 Boston Road on 3 May 2018. Notes from that visit include:
• The site features a series of connected buildings. A loading dock and double level lightweight building used primarily by office space front Boston Road (plus several edit suites and meeting rooms on the top floor). “The Project” TV studio, control room and voice over room are in a connected masonry building at the north end of the site, away from Boston Road.
• The offices are used during normal office hours, but extended to 8pm, Monday to Friday
• Pre-recorded segments filmed in the TV studio from 4 to 7pm, Monday to Friday
• Live show recorded in the TV studio from 7pm to 8pm, Monday to Friday 15
• The primary effect on the building currently relates to reradiated noise from vibration. The studio space is located on the concrete slab (on grade) with a direct laid flooring layer (plywood or similar). There is no specific isolation between the ground and studio floor finish.
• In addition to regular communication, specific consultation should be undertaken should the Standards in C24.2 be exceeded. The consultation process is set out in Section 8 of the CNV DWP. In general, management of any exceedance may include avoiding the activity during sensitive times (i.e. between 4pm and 9pm weekdays).
Engagement to continue via the MediaWorks SSCNVMP (C1).
Noise & vibration levels at 71 Boston Road as a result of works on the Normanby Road worksite are not predicted to exceed limits.
Where any of the noise and vibration standards in C24.2 for The Project Studio are exceeded, and where the noise and/or vibration levels are unacceptable to MediaWorks, the following corrective action measures shall apply:
• Cease the work giving rise to the exceedance as soon as safe and practicable to do so
• Review the construction methodology, mitigation and management strategies to ensure they represent the BPO and reduce the noise or vibration levels.
• Monitor to determine compliance once the remediation works are complete
• Ensure that the work responsible for the exceedance is not recommenced during Sensitive Times
If site representatives request consultation in the future, this SSCNVMP will be updated in accordance with CRL designation conditions 39.4, with consideration given to the following:
• The extent to which noise may exceed the Project Standards
• The timing and duration of any exceedance
• The type of activity causing any exceedance
• A summary of the communication and consultation with the receiver
• The methods and measures to mitigate effects
• A statement of why they reflect best practicable option
Communications records are contained in the communication and consultation plan (CCP). This SSCNVMP will be updated to summarise engagement and any agreed site-specific measures.
C25.1 Introduction
This Site Specific Construction Noise Management Plan (SSCNMP) is for 3 Enfield Street. A SSCNMP is required because construction is predicted to exceed the standards in CRL designation conditions 31.
This SSCNMP has been prepared in accordance with CRL designation condition 37 and is Appendix C25 of the Mt Eden Main Works Construction Noise and Vibration Delivery Work Plan (CNV DWP). It is a supplementary document that builds on the CNV DWP, and therefore directly references relevant sections of the CNV DWP to avoid repetition. The objective of this SSCNMP is to detail the best practicable option(s) (BPO) to avoid, remedy or mitigate the identified adverse effects from noise exceedances at 3 Enfield Street
This SSCNMP has been prepared for the Link Alliance and forms part of the Construction Environmental Management Plan (CEMP) for the Mt Eden Station Main Works
C25.2 Engagement
Mt Eden Main Works
Link Alliance representatives XXX met with building representative XXX on XXX date. The matters discussed included:
• An overview of the next project phases
• General programme, rock removal, excavation, piling, and utilities relocation activities
• General review of CNV DWP and this SSCNMP, communications triggers and monitoring
The three-level masonry commercial building is occupied by the Horse and Trap bar and restaurant. The outdoor areas open to the existing NAL and car parking areas.
CNV DWP Section 7 identifies summarise the potential scale of noise and/or vibration exceedances using the modelling outputs in insert hyperlink to the GIS maps here The relevant stages are summarised below. Activity specific mitigation and management measures are included in Section 9 of the CNV DWP, and referenced in brackets, rather than repeated.
• Retaining walls (refer piling in Section 9.8)
The predicted construction noise effects from Table 12.1 in Section 12.1 are predicted to result in XXX noise effects. Physical receiver mitigation, such as temporary relocation of affected receivers, alternative ventilation and façade sound insulation improvements, have been considered, but are not required as part of the BPO for the Mt Eden Station Main Works.
XXX agreed that prior communication of timeframes for works with the potential to exceed the relevant noise limits was an acceptable means of managing effects. No further activity specific consultation is necessary over and above regular communication (Section 10).
If XXX or affected site representatives request consultation in the future, this SSCNMP will be updated in accordance with CRL designation conditions 37.5, with consideration given to the following:
• The extent to which noise may exceed the designation standards
• The timing and duration of any exceedance
• The type of activity causing any exceedance
• A summary of the communication and consultation with the receiver
• The methods and measures to mitigate effects
• A statement of why they reflect best practicable option
Communications records are contained in the communication and consultation plan (CCP). This SSCNMP will be updated to summarise engagement and any agreed site-specific measures.
C26.1 Introduction
This Site-Specific Construction Noise Management Plan (SSCNMP) is for commercial buildings located at 8 – 12 Boston Road. A SSCNMP is required because construction is predicted to exceed the Project Standards in CRL designation conditions 31
This SSCNMP has been prepared in accordance with CRL designation conditions 37 and is Appendix C26 of the Mt Eden Main Works Construction Noise and Vibration Delivery Work Plan (CNV DWP). It is a supplementary document that builds on the Project CNV DWP, and therefore directly references relevant sections of the DWP to avoid repetition. The objective of this SSCNMP is to detail the best practicable option(s) (BPO) to avoid, remedy or mitigate the identified adverse effects from noise exceedances at 8 – 12 Boston Road
This SSCNMP has been prepared for the Link Alliance and forms part of the Construction Environmental Management Plan (CEMP) for the Project. It builds on the SSCNMP previously prepared and implemented for the Normanby Rd Early Works.
Link Alliance representatives Sonya Leahy, Hilary Konigkramer and Craig Fitzgerald met with Dale De Penning and Steve Morris (representatives for Aspec Construction and the building’s owners – 8-10 Boston Road), Mark Hall (MSH Architects), Guy Whately and Biddy Dunlop (Saturday – 8 Boston Road) and Camilo (Float Culture – 12 Boston Road) on 10 October 2019, and Michael (RGIS – 12 Boston Road) on 14 October 2019. The matters discussed included:
• An overview of the Normanby Road early works.
• General programme, sewer trenching in their car park fronting Water Street, and the wider Normanby Road early work activities.
• Overview of the CNV DWP and this SSCNMP, communications triggers and protocol
It is noted that Mr Kuznetsov (Float Culture) was not available, but previously raised concerns about noise and vibration as part of the CRL Contract 6 construction works (stormwater main realignment – in particular, piling activity associated with these works). His business provides sensory deprivation experiences for clients using water tanks located in water tanks within the building basement, and away from the exposed external façade of the building. For this reason, it is predicted that vibration is the primary concern. They take bookings from 8am - 10pm most days and are usually busiest on Saturdays.
While the Figures in Appendix B of the Normanby Rd Early Works CNV DWP don’t show any predicted exceedances, the south and east façades are predicted to be exposed to noise levels between 75 – 80 dB LAeq during sewer trenching in their rear carpark over a series of days in May 2020. Due the proximity of these trenching works, the resulting noise levels are predicted to briefly exceed the 75 dB LAeq noise limit Activity specific mitigation and management measures are included in Section 9 of the CNV DWP and not repeated here (e.g. Section 9 4 general mitigation measures).
The buildings at 8 – 12 Boston Road are commercial buildings constructed from a mix of masonry and timber framed walls with sealed glazing. The estimated sound level difference across the façade with the windows and doors closed is 30 decibels. The predicted construction noise effects from Table 12-1 in Section 12.1 are predicted to be typically
acceptable, but with the potential for short term disturbance for the trenching works in their car park Other more distant works are not predicted to impact activities on this site. Physical receiver mitigation, such as temporary relocation of affected receivers, alternative ventilation and façade sound insulation improvements, have been considered, but are not required as part of the BPO for the C5 enabling works.
All agreed that prior communication of timeframes for works with the potential to exceed the relevant noise limits was an acceptable means of managing effects. No further activity specific consultation is necessary over and above regular communication (Section 10).
Link Alliance representatives XXX met with building representative XXX on XXX date. The matters discussed included:
• An overview of the next project phases
• General programme, rock removal, excavation, piling, and utilities relocation activities
• General review of CNV DWP and this SSCNMP, communications triggers and monitoring
CNV DWP Section 7 identifies summarise the potential scale of noise and/or vibration exceedances using the modelling outputs in insert hyperlink to the GIS maps here. The relevant stages are summarised below. Activity specific mitigation and management measures are included in Section 9 of the CNV DWP, and referenced in brackets, rather than repeated.
• Retaining walls (refer piling in Section 9.8)
• Excavation (refer concrete and rock breaking in Section 9.7)
• Utilities and drainage (refer concrete cutting and breaking in Sections 9.6 and 9.7)
• Normanby Rd (refer piling in Section 9.8)
The predicted construction noise effects from Table 12.1 in Section 12.1 are predicted to result in XXX noise effects. Physical receiver mitigation, such as temporary relocation of affected receivers, alternative ventilation and façade sound insulation improvements, have been considered, but are not required as part of the BPO for the Mt Eden Station Main Works.
XXX agreed that prior communication of timeframes for works with the potential to exceed the relevant noise limits was an acceptable means of managing effects. No further activity specific consultation is necessary over and above regular communication (Section 10).
If any site representatives or affected site representative’s requests consultation in the future, this SSCNMP will be updated in accordance with CRL designation conditions 37.5, with consideration given to the following:
• The extent to which noise may exceed the Project Standards
• The timing and duration of any exceedance
• The type of activity causing any exceedance
• A summary of the communication and consultation with the receiver
• The methods and measures to mitigate effects
• A statement of why they reflect best practicable option
Communications records are contained in the communication and consultation plan (CCP). This SSCNMP will be updated to summarise engagement and any agreed site-specific measures.
C27.1
This Site-Specific Construction Noise Management Plan (SSCNMP) is for the commercial building located at 5 Water Street. A SSCNMP is required because construction is predicted to exceed the Project Noise Standards in CRL designation condition 31.
This SSCNMP has been prepared in accordance with CRL designation condition 37 and is Appendix C27 of the Mt Eden Main Works Construction Noise and Vibration Delivery Work Plan (CNV DWP). It is a supplementary document that builds on the Project CNV DWP, and therefore directly references relevant sections of the DWP to avoid repetition. The objective of this SSCNMP is to detail the best practicable option(s) (BPO) to avoid, remedy or mitigate the identified adverse effects from noise exceedances at 5 Water Street
This draft SSCNMP has been prepared by Marshall Day Acoustics and forms part of the Construction Environmental Management Plan (CEMP) for the Project. It builds on the SSCNMP previously prepared and implemented for the Normanby Rd Early Works.
Link Alliance representatives Sonya Leahy, Hilary Konigkramer and Craig Fitzgerald (Marshall Day Acoustics) met with Rhys Williams (I Measure U) on 10 October 2019. The matters discussed included:
• An overview of the Normanby Road early works.
• General work programme.
• Overview of the CNV DWP and this SSCNMP, communications triggers and protocol.
The site is used for commercial purposes, with the large open plan office space for I Measure U in a converted warehouse above basement car parking. Mr Williams key concern was vibration due to camera equipment used on-site. It was explained that the adjacent low-rise buildings would be dismantled to minimise vibration, but the concrete foundations may need to be broken up which may be perceptible. The CNV DWP has specific measures to minimise vibration. Of interest to Mr Williams was that this activity would be short in duration and advanced communication would be provided with timing of breaking works.
The south and east façades are predicted to be exposed noise levels exceeding the 75 dB LAeq noise limit from the demolition of 11 Water Street in February 2020, and the sewer trenching works adjacent to 5 Water Street in May 2020. Activity specific mitigation and management measures are included in Section 9 of the CNV DWP and not repeated here (e.g. Section 9 4 general mitigation measures).
The building at 5 Water Street is a double level industrial building with blockwork façade, small sealed windows, but steel pitched roof with no internal ceiling. The estimated sound level difference across the façade with the windows and doors closed is 20 – 25 decibels. The predicted construction noise effects from Table 12-1 in Section 12.1 are predicted to be typically acceptable, but with the potential for some isolated disturbance during adjacent sewer connection works Physical receiver mitigation, such as temporary relocation of affected receivers, alternative ventilation and façade sound insulation improvements, have been considered, but are not required as part of the BPO for the C5 enabling works.
Mr Williams agreed that prior communication of timeframes for works with the potential to exceed the relevant noise limits was an acceptable means of managing effects. No further activity specific consultation is necessary over and above regular communication (refer Section 10).
Subsequently, Craig Fitzgerald (Marshall Day Acoustics) met with Kat Kinghorn and Rakesh Vallabh (I Measure U) on 7 July 2020. Noise and vibration from adjacent demolition and rock breaking works had affected data capture quality due to induced camera shake. It was explained that previous concerns about camera vibration sensitivity were interpreted to relate to the storage of camera equipment, rather vibration effects on video capture due to camera shake. The discussion focused on addressing this residual matter.
‘Data capture’ typically involves a series of cameras setup in a circle to take 360 degree video. The setup is located on first floor level, on a suspended concrete floor. To provide context of sensitivity, walking within the room can affect data capture quality. It is understood that transient bumps (e.g. activity within the tenancy or single events on the construction site) are post edited out as a matter of course, but continuous vibration (e.g. vibro roller) can render the data set unusable. While it is the latter continuous vibration activities of primary concern, it was noted that transient events can be minimised with good site management and training (refer Section 7).
The data capture is undertaken for approximately 30min – 1hr every 7 – 10 days. There is flexibility to arrange compatible timing to avoid close proximity works that generate continuous vibration. This would include vibro rolling/compaction, sheet piling and potentially concrete/rock breaking. It was noted that a similar arrangement was in place for Float Culture, and they preferred such works to be undertaken before midday when they had less customers. This timing would be acceptable to I Measure U.
Ms Kinghorn and Mr Vallabh agreed that prior communication of timeframes for close proximity works with the potential to generate continuous vibration was an acceptable means of managing effects. No further activity specific consultation is necessary over and above regular communication (refer Section Error! Reference source not found.).
Mt Eden Main Works
Link Alliance representatives XXX met with building representative XXX on XXX date. The matters discussed included:
• An overview of the next project phases
• General programme, rock removal, excavation, piling, and utilities relocation activities
• General review of CNV DWP and this SSCNMP, communications triggers and monitoring
CNV DWP Section 7 identifies summarise the potential scale of noise and/or vibration exceedances using the modelling outputs in insert hyperlink to the GIS maps here The relevant stages are summarised below. Activity specific mitigation and management measures are included in Section 9 of the CNV DWP, and referenced in brackets, rather than repeated
• Retaining walls (refer piling in Section 9.8)
The predicted construction noise effects from Table 12.1 in Section 12.1 are predicted to result in XXX noise effects. Physical receiver mitigation, such as temporary relocation of affected receivers, alternative ventilation and façade sound insulation improvements, have been considered, but are not required as part of the BPO for the Mt Eden Station Main Works.
XXX agreed that prior communication of timeframes for works with the potential to exceed the relevant noise limits was an acceptable means of managing effects. No further activity specific consultation is necessary over and above regular communication (Section 10).
If I Measure U representatives request consultation in the future, this SSCNMP will be updated in accordance with CRL designation condition 37.5, with consideration given to the following:
• The extent to which noise may exceed the Project Noise Standards
• The timing and duration of any exceedance
• The type of activity causing any exceedance
• A summary of the communication and consultation with the receiver
• The methods and measures to mitigate noise effects
• A statement of why they reflect best practicable option
Communications records are contained in the communication and consultation plan (CCP). This SSCNMP will be updated to summarise engagement and any agreed site-specific measures.
C28.1 Introduction
This Site-Specific Construction Noise and Vibration Management Plan (SSCNVMP) is for the residential building located at 25 Enfield Street. A SSCNVMP is required because construction is predicted to exceed the Project Standards in CRL designation conditions 31 and 33
This SSCNVMP has been prepared in accordance with CRL designation conditions 37 and 38 and is Appendix C28 of the Mt Eden Main Works Construction Noise and Vibration Delivery Work Plan (CNV DWP). It is a supplementary document that builds on the Project CNV DWP, and therefore directly references relevant sections of the DWP to avoid repetition. The objective of this SSCNVMP is to detail the best practicable option(s) (BPO) to avoid, remedy or mitigate the identified adverse effects from noise and vibration exceedances at 25 Enfield Street.
This SSCNVMP has been prepared for the Link Alliance and forms part of the Construction Environmental Management Plan (CEMP) for the Project. It builds on the SSCNMP previously prepared and implemented for the Normanby Rd Early Works.
C28.2 Engagement
Normanby Rd Early Works (for information)
Link Alliance representatives Sonya Leahy, Hilary Konigkramer and Craig Fitzgerald met with Carlos Chung (Director and Body Corporate Manger) on 10 October 2019. The matters discussed included:
• An overview of the Normanby Road early works.
• General programme, utility diversion works in Normanby Road, and specifically night works to lift the bridge into place over the NAL.
• Overview of the CNV DWP and this SSCNMP, communications triggers and protocol
The modern multi-level apartment building features basement car parking beneath four levels of apartments with balconies on all sides. There are 96 apartments in total.
While the Figures in Appendix B of the Normanby Rd Early Works CNV DWP generally don’t show any predicted exceedances, the north and east façades are predicted to be exposed to noise levels close to the 60 dB LAeq night-time noise limit. There is potential marginal exceedance of 61 dB LAeq on one small section of the façade. This relates to back fill of a stormwater trench in the driveway of 32 Normanby Road, programmed over a single night (section 6.1). This is considered to be acceptable with prior communication As such, this SSNCMP is more precaution than requirement and is setup to ensure good effective communication with residents in advance of any potential noise complaints. Activity specific mitigation and management measures are included in Section 9 of the CNV DWP and not repeated here (e.g. Section 9 4 general mitigation measures).
The façade is primarily steel and concrete with large areas of sealed glazing. The estimated sound level difference across the façade with the windows and doors closed is 30 decibels. The predicted construction noise effects from Table 12-1 in Section 12.1 are predicted to be acceptable. Physical receiver mitigation, such as temporary relocation of affected receivers, alternative ventilation and façade sound insulation improvements, have been considered, but are not required as part of the BPO for the C5 enabling works.
Mr Chung agreed that prior communication of timeframes for works with the potential to exceed the relevant noise limits was an acceptable means of managing effects. No further activity specific consultation is necessary over and above regular communication (Section 10).
Mt
Link Alliance representatives XXX met with building representative XXX on XXX date. The matters discussed included:
• An overview of the next project phases
• General programme, rock removal, excavation, piling, and utilities relocation activities
• General review of CNV DWP and this SSCNVMP, communications triggers and protocol and for monitoring and pre-construction building condition surveys
CNV DWP Section 7 identifies summarise the potential scale of noise and/or vibration exceedances using the modelling outputs in insert hyperlink to the GIS maps here. The relevant stages are summarised below. Activity specific mitigation and management measures are included in Section 9 of the CNV DWP, and referenced in brackets, rather than repeated.
Noise
• Retaining walls (refer piling in Section 9.8)
The predicted construction noise effects from Table 12.1 in Section 12.1 are predicted to result in XXX noise effects. Physical receiver mitigation, such as temporary relocation of affected receivers, alternative ventilation and façade sound insulation improvements, have been considered, but are not required as part of the BPO for the Mt Eden Station Main Works.
Vibration
• Excavation and piling (refer breaking, piling and compaction in Sections 9.7, 9.8 and 9.10)
The above activities are predicted to have the potential to exceed the commercial cosmetic building damage thresholds. Cosmetic building damage effects are deemed ‘minor damage’ in the DIN Standard (Section 5.2), such as cracking in paint or plasterwork, and can generally be easily repaired. A pre construction building condition survey in accordance with CRL designation condition 46 will ensure any damage is identified for remediation.
XXX agreed that prior communication of timeframes for works with the potential to exceed the relevant noise and vibration limits was an acceptable means of managing effects. No further activity specific consultation is necessary over and above regular communication (Section 10).
If Mr Chung or affected site representatives request consultation in the future, this SSCNVMP will be updated in accordance with CRL designation conditions 37.5 and 38.5, with consideration given to the following:
• The extent to which noise may exceed the Project Standards
• The timing and duration of any exceedance
• The type of activity causing any exceedance
• A summary of the communication and consultation with the receiver
• The methods and measures to mitigate effects
• A statement of why they reflect best practicable option
Communications records are contained in the communication and consultation plan (CCP). This SSCNVMP will be updated to summarise engagement and any agreed site-specific measures.
C29.1 Introduction
This Site-Specific Construction Noise Management Plan (SSCNMP) is for the residential building located at 22/24 Normanby Road. A SSCNMP is required because construction is predicted to exceed the Project Noise Standards in CRL designation condition 31.
This SSCNMP has been prepared in accordance with CRL designation condition 37 and is Appendix C29 of the Mt Eden Main Works Construction Noise and Vibration Delivery Work Plan (CNV DWP). It is a supplementary document that builds on the Project CNV DWP, and therefore directly references relevant sections of the DWP to avoid repetition. The objective of this SSCNMP is to detail the best practicable option(s) (BPO) to avoid, remedy or mitigate the identified adverse effects from noise exceedances at 22/24 Normanby Road
This SSCNMP has been prepared for the Link Alliance and forms part of the Construction Environmental Management Plan (CEMP) for the Project. It builds on the SSCNMP previously prepared and implemented for the Normanby Rd Early Works.
In the absence of contact details, Link Alliance representative Sonya Leahy spoke to Sharron O’Sullivan (Normanby Mews Body Corporate Manger) on 17 October 2019. Unfortunately, Ms O’Sullivan was not interested in discussing the project, it’s effects or how to effectively engage with the Normanby Mews owners and occupiers
The apartments at 24 Normanby Road have linear weatherboard façades with operable glazing and a steel pitched roof. The estimated sound level difference across the façade with the windows and doors closed is 30 decibels.
Figure B.5 in Appendix B of the Normanby Rd Early Works CNV DWP shows that the south façade is predicted to be exposed to noise levels between 75 – 80 dB LAeq during the closest rock breaking activities, exceeding the 75 dB LAeq noise limit. Activity specific mitigation and management measures are included in Section 7 of the CNV DWP and not repeated here (e.g. Section 9.7 concrete and rock breaking). The predicted daytime construction noise effects from Table 12-1 in Section 12.1 are predicted to be typically acceptable, but with the potential for short term disturbance for the utilities works locally in Normanby Road
In addition, night-time exceedances are predicted while back filling a stormwater trench in the driveway of 32 Normanby Road, programmed over a single night (section 6.1 of the Enabling Works CNV DWP). The northern façade may be exposed to up to 69 dB LAeq, 10 decibels above the night-time noise limit of 60 dB LAeq The exceedance only relates to the eastern extent of this trench, during the tie in on Normanby Road. Effective screening (Section 9.5) will further mitigate received noise levels. The predicted night-time construction noise effects from Table 12-2 in Section 12.1 are annoyance and potentially sleep disturbance for some noise sensitive receivers Any exceedance would be brief and is considered to be acceptable with prior communication and where mitigated with the use of effective noise barriers (Section 9.5). Physical receiver mitigation, such as temporary relocation of affected receivers, alternative ventilation and façade sound insulation improvements, have been considered, but are not required as part of the BPO for the C5 enabling works due to the short duration of night works.
Consultation engagement has not been successful to date. Prior communication of timeframes for works with the potential to exceed the relevant noise limits will be provided where practicable (Section 10)
Mt Eden Main Works
Link Alliance representatives XXX met with building representative XXX on XXX date. The matters discussed included:
• An overview of the next project phases
• General programme, rock removal, excavation, piling, and utilities relocation activities
• General review of CNV DWP and this SSCNMP, communications triggers and monitoring
CNV DWP Section 7 identifies summarise the potential scale of noise and/or vibration exceedances using the modelling outputs in insert hyperlink to the GIS maps here. The relevant stages are summarised below. Activity specific mitigation and management measures are included in Section 9 of the CNV DWP, and referenced in brackets, rather than repeated.
• Retaining walls (refer piling in Section 9.8)
• Excavation (refer concrete and rock breaking in Section 9.7)
• Utilities and drainage (refer concrete cutting and breaking in Sections 9.6 and 9.7)
• Normanby Rd (refer piling in Section 9.8)
• Night Works (refer cranage night works in Section 9.2)
The predicted construction noise effects from Table 12.1 in Section 12.1 are predicted to result in XXX noise effects. Physical receiver mitigation, such as temporary relocation of affected receivers, alternative ventilation and façade sound insulation improvements, have been considered, but are not required as part of the BPO for the Mt Eden Station Main Works.
XXX agreed that prior communication of timeframes for works with the potential to exceed the relevant noise limits was an acceptable means of managing effects. No further activity specific consultation is necessary over and above regular communication (Section 10).
C29.3 Review Process
If the property representatives request consultation in the future, this SSCNMP will be updated in accordance with CRL designation condition 37.5, with consideration given to the following:
• The extent to which noise may exceed the Project Noise Standards
• The timing and duration of any exceedance
• The type of activity causing any exceedance
• A summary of the communication and consultation with the receiver
• The methods and measures to mitigate noise effects
• A statement of why they reflect best practicable option
Communications records are contained in the communication and consultation plan (CCP). This SSCNMP will be updated to summarise engagement and any agreed site-specific measures.
C30.1 Introduction
This Site-Specific Construction Noise Management Plan (SSCNMP) is for the commercial building located at 26 Normanby Road A SSCNMP is required because construction is predicted to exceed the Project Standards in CRL designation condition 31
This SSCNMP has been prepared in accordance with CRL designation condition 37 and is Appendix C30 of the Mt Eden Main Works Construction Noise and Vibration Delivery Work Plan (CNV DWP). It is a supplementary document that builds on the Project CNV DWP, and therefore directly references relevant sections of the DWP to avoid repetition. The objective of this SSCNMP is to detail the best practicable option(s) (BPO) to avoid, remedy or mitigate the identified adverse effects from noise exceedances at 26 Normanby Road
This SSCNMP has been prepared for the Link Alliance and forms part of the Construction Environmental Management Plan (CEMP) for the Project. It builds on the SSCNMP previously prepared and implemented for the Normanby Rd Early Works.
Link Alliance representatives Hilary Konigkramer and Craig Fitzgerald met with Bo (Owner of Sen Restaurant) on 10 October 2019. The matters discussed included:
• An overview of the Normanby Road early works.
• General programme and utilities trenching works in Normanby Road.
• Overview of the CNV DWP and this SSCNVMP, communications triggers and protocol.
The building is a double level industrial building that has been converted into a restaurant called Sen Vietnamese Kitchen & Bar. The restaurant is open Monday to Saturday, 10am – 3pm and 5pm – 10pm.
Figure B.2 in Appendix B of the of the Normanby Rd Early Works CNV DWP shows that the east and south façades are predicted to be exposed to noise levels between 75 – 85 dB LAeq during the closest utilities works, exceeding the 75 dB LAeq noise limit. Activity specific mitigation and management measures are included in Section 9 of the CNV DWP and not repeated here (e.g. Section 9.4 general mitigation measures).
The masonry building has a small number of small windows and a flat steel roof over timber sarking. The estimated sound level difference across the façade with the windows and doors closed is 25 – 30 decibels. The predicted construction noise effects from Table 12-1 in Section 12.1 are predicted to be typically acceptable, but with the potential for short term disturbance for the utilities works locally in Normanby Road. Other more distant works are not predicted to impact activities on this site. Physical receiver mitigation, such as temporary relocation of affected receivers, alternative ventilation and façade sound insulation improvements, have been considered, but are not required as part of the BPO for the C5 enabling works.
Preliminary compaction vibration level predictions (Section 6.2 of the Enabling Works CNV DWP) identify that there is potential to exceed the Heritage cosmetic building damage thresholds at the South eastern end of the building. Cosmetic building damage effects are deemed ‘minor damage’ in the DIN Standard (Section 5.2), such as cracking in paint or
plasterwork, and can generally be easily repaired. A pre-construction building condition survey in accordance with condition 46 will ensure any damage is identified for remediation.
Mr Bo agreed that prior communication of timeframes for works with the potential to exceed the relevant noise/vibration limits was an acceptable means of managing effects. No further activity specific consultation is necessary over and above regular communication (Section 10).
Link Alliance representatives XXX met with building representative XXX on XXX date. The matters discussed included:
• An overview of the next project phases
• General programme, rock removal, excavation, piling, and utilities relocation activities
• General review of CNV DWP and this SSCNMP, communications triggers and monitoring
CNV DWP Section 7 identifies summarise the potential scale of noise and/or vibration exceedances using the modelling outputs in insert hyperlink to the GIS maps here. The relevant stages are summarised below. Activity specific mitigation and management measures are included in Section 9 of the CNV DWP, and referenced in brackets, rather than repeated.
• Excavation (refer concrete and rock breaking in Section 9.7)
• Utilities and drainage (refer concrete cutting and breaking in Sections 9.6 and 9.7)
The predicted construction noise effects from Table 12.1 in Section 12.1 are predicted to result in XXX noise effects Physical receiver mitigation, such as temporary relocation of affected receivers, alternative ventilation and façade sound insulation improvements, have been considered, but are not required as part of the BPO for the Mt Eden Station Main Works.
XXX agreed that prior communication of timeframes for works with the potential to exceed the relevant noise limits was an acceptable means of managing effects. No further activity specific consultation is necessary over and above regular communication (Section 10).
If Mr Bo requests consultation in the future, As required under CRL designation condition 37.5, with consideration given to the following:
• The extent to which noise and/or vibration may exceed the Project Standards
• The timing and duration of any exceedance
• The type of activity causing any exceedance
• A summary of the communication and consultation with the receiver
• The methods and measures to mitigate effects
• A statement of why they reflect best practicable option
Communications records are contained in the communication and consultation plan (CCP). This SSCNMP will be updated to summarise engagement and any agreed site-specific measures.
C31.1 Introduction
This Site-Specific Construction Noise and Vibration Management Plan (SSCNVMP) is for the commercial building located at 32 Normanby Road. A SSCNVMP is required because construction is predicted to exceed the Project Standards in CRL designation conditions 31 and 33
This SSCNVMP has been prepared in accordance with CRL designation condition 37 and 38 and is Appendix C31 of the Mt Eden Main Works Construction Noise and Vibration Delivery Work Plan (CNV DWP). It is a supplementary document that builds on the Project CNV DWP, and therefore directly references relevant sections of the DWP to avoid repetition. The objective of this SSCNVMP is to detail the best practicable option(s) (BPO) to avoid, remedy or mitigate the identified adverse effects from noise and vibration exceedances at 32 Normanby Road.
This SSCNVMP has been prepared for the Link Alliance and forms part of the Construction Environmental Management Plan (CEMP) for the Project. It builds on the SSCNVMP previously prepared and implemented for the Normanby Rd Early Works.
C31.2 Engagement
Normanby Rd Early Works (for information)
Link Alliance representatives Sonya Leahy, Hilary Konigkramer, Maree Drury, Hilary Konigkramer, Aidan Kirkby-McLeod, Phil Young, Jack Wan and Craig Fitzgerald met with building representatives Ryan Kennedy and Daniel Scott (Tramco), Rachel Beer and Tom Morton (Morton Property), and representatives of tenants OfficeMax, AHS Security and Active Electrical on 17 October 2019. The matters discussed included:
• An overview of the Normanby Road early works.
• General programme and utilities trenching works in Normanby Road over a six-month period, and specifically within the site car park over a two-month period (approximately).
• Overview of the CNV DWP and this SSCNVMP, communications triggers and protocol
The buildings are single level commercial retail/office spaces with associated industrial warehousing. The buildings are generally occupied during business hours, Monday to Saturday. Opportunity to utilise evening window until 10pm to minimise effects on operations (primarily traffic). The primary noise and vibration effects relate to the close proximity works at the site entrance in relation to the OfficeMax building. Figure B.2 in Appendix B of the Normanby Rd Early Works CNV DWP shows that the north façade is predicted to be exposed to noise levels between 75 – 85 dB LAeq during the closest concrete cutting activities, exceeding the 75 dB LAeq noise limit. In addition, trenching works close to the other tenants’ buildings would be undertaken over 2-3 days, resulting in short-term disruption. Activity specific mitigation and management measures are included in Section 9 of the CNV DWP and not repeated here (e.g. Section 9.7 concrete and rock breaking).
The OfficeMax building features an extensive sealed glazing façade. The estimated sound level difference across the façade with the windows and doors closed is 30 decibels. The predicted construction noise effects from Table 12.1 in Section 12.1 are predicted to be typically acceptable, but with the potential for short term disturbance for the utilities trenching works immediately adjacent to the OfficeMax building. Physical receiver mitigation, such as temporary relocation of affected receivers, alternative ventilation and façade sound insulation
improvements, have been considered, but are not required as part of the BPO for the C5 enabling works.
Preliminary compaction vibration level predictions (Section 6.2 of the Enabling Works CNV DWP) identify that there is potential to exceed the commercial cosmetic building damage thresholds at the eastern end of the OfficeMax building. Cosmetic building damage effects are deemed ‘minor damage’ in the DIN Standard (Section 5.2), such as cracking in paint or plasterwork, and can generally be easily repaired. A pre-construction building condition survey in accordance with condition 46 will ensure any damage is identified for remediation.
Site representatives agreed that prior communication of timeframes for works with the potential to exceed the relevant noise limits was an acceptable means of managing effects. No further activity specific consultation is necessary over and above regular communication (Section 10).
Link Alliance representatives XXX met with building representative XXX on XXX date. The matters discussed included:
• An overview of the next project phases
• General programme, rock removal, excavation, piling, and utilities relocation activities
• General review of CNV DWP and this SSCNVMP, communications triggers and monitoring
CNV DWP Section 7 identifies summarise the potential scale of noise and/or vibration exceedances using the modelling outputs in insert hyperlink to the GIS maps here. The relevant stages are summarised below. Activity specific mitigation and management measures are included in Section 9 of the CNV DWP, and referenced in brackets, rather than repeated
Noise
• Retaining walls (refer piling in Section 9.8)
• Excavation (refer concrete and rock breaking in Section 9.7)
• Utilities and drainage (refer concrete cutting and breaking in Sections 9.6 and 9.7)
• Ground improvements (refer piling in Section 9.8)
• Normanby Rd (refer piling in Section 9.8)
The predicted construction noise effects from Table 12.1 in Section 12.1 are predicted to result in XXX noise effects Physical receiver mitigation, such as temporary relocation of affected receivers, alternative ventilation and façade sound insulation improvements, have been considered, but are not required as part of the BPO for the Mt Eden Station Main Works.
Vibration
• Excavation and piling (refer breaking, piling and compaction in Sections 9.7, 9.8 and 9.10)
The above activities are predicted to have the potential to exceed the commercial cosmetic building damage thresholds. Cosmetic building damage effects are deemed ‘minor damage’ in the DIN Standard (Section 5.2), such as cracking in paint or plasterwork, and can generally be easily repaired. A pre construction building condition survey in accordance with CRL designation condition 46 will ensure any damage is identified for remediation.
XXX agreed that prior communication of timeframes for works with the potential to exceed the relevant noise and vibration limits was an acceptable means of managing effects. No further activity specific consultation is necessary over and above regular communication (Section 10).
If site representatives request consultation in the future, this SSCNVMP will be updated in accordance with CRL designation conditions 37.5 and 38.5, with consideration given to the following:
• The extent to which noise may exceed the Project Standards
• The timing and duration of any exceedance
• The type of activity causing any exceedance
• A summary of the communication and consultation with the receiver
• The methods and measures to mitigate effects
• A statement of why they reflect best practicable option
Communications records are contained in the communication and consultation plan (CCP). This SSCNVMP will be updated to summarise engagement and any agreed site-specific measures.
C32.1
This Site-Specific Construction Noise Management Plan (SSCNMP) is for the commercial buildings located at 51 – 63 Normanby Road. A SSCNMP is required because construction is predicted to exceed the Project Noise Standards in CRL designation condition 31.
This SSCNMP has been prepared in accordance with CRL designation condition 37 and is Appendix C32 of the CRL Mt Eden Enabling Construction Noise and Vibration Delivery Work Plan (CNV DWP). It is a supplementary document that builds on the Project CNV DWP, and therefore directly references relevant sections of the DWP to avoid repetition. The objective of this SSCNMP is to detail the best practicable option(s) (BPO) to avoid, remedy or mitigate the identified adverse effects from noise exceedances at 57 Normanby Road
This SSCNMP has been prepared for the Link Alliance and forms part of the Construction Environmental Management Plan (CEMP) for the Project. It builds on the SSCNMP previously prepared and implemented for the Normanby Rd Early Works.
Link Alliance representatives Sonya Leahy, Hilary Konigkramer, Aidan Kirkby-McLeod, Phil Young Jack Wan and Craig Fitzgerald met with building representatives Farquhar Somerville and Mischa Gildenhuys (Dilworth Trust Board), Ian Brown (Corys), Aaron King (Big Colour) and John Robertson (Sabato) on 10 October 2019. Representatives from Wok’n Noodle were invited but did not attend. The matters discussed included:
• An overview of the Normanby Road early works.
• General programme and utilities trenching works in Normanby Road.
• Overview of the CNV DWP and this SSCNMP, communications triggers and protocol
The building is a double level industrial building that has been converted into a restaurant called Sen Vietnamese Kitchen & Bar. The restaurant is open Monday to Saturday, 10am – 3pm and 5pm – 10pm. Figure B.1 in Appendix B of the Normanby Rd Early Works CNV DWP shows that the south façade is predicted to be exposed to noise levels between 75 – 80 dB LAeq during the closest rock breaking activities, exceeding the 75 dB LAeq noise limit. Activity specific mitigation and management measures are included in Section 9 of the CNV DWP and not repeated here (e.g. Section 9.7 concrete and rock breaking).
The buildings at 51 – 63 Normanby Road are commercial buildings with extensive sealed glazing façade. The estimated sound level difference across the façade with the windows and doors closed is 30 decibels. The predicted construction noise effects from Table 12.1 in Section 12.1 are predicted to be typically acceptable, but with the potential for short term disturbance for the utilities works locally in Normanby Road Other more distant works are not predicted to impact activities on this site Physical receiver mitigation, such as temporary relocation of affected receivers, alternative ventilation and façade sound insulation improvements, have been considered, but are not required as part of the BPO for the C5 enabling works.
Site representatives agreed that prior communication of timeframes for works with the potential to exceed the relevant noise limits was an acceptable means of managing effects. No further activity specific consultation is necessary over and above regular communication (Section 10).
Link Alliance representatives XXX met with building representative XXX on XXX date. The matters discussed included:
• An overview of the next project phases
• General programme, rock removal, excavation, piling, and utilities relocation activities
• General review of CNV DWP and this SSCNMP, communications triggers and monitoring
CNV DWP Section 7 identifies summarise the potential scale of noise and/or vibration exceedances using the modelling outputs in insert hyperlink to the GIS maps here. The relevant stages are summarised below. Activity specific mitigation and management measures are included in Section 9 of the CNV DWP, and referenced in brackets, rather than repeated.
• Excavation (refer concrete and rock breaking in Section 9.7)
• Utilities and drainage (refer concrete cutting and breaking in Sections 9.6 and 9.7)
The predicted construction noise effects from Table 12.1 in Section 12.1 are predicted to result in XXX noise effects Physical receiver mitigation, such as temporary relocation of affected receivers, alternative ventilation and façade sound insulation improvements, have been considered, but are not required as part of the BPO for the Mt Eden Station Main Works.
XXX agreed that prior communication of timeframes for works with the potential to exceed the relevant noise limits was an acceptable means of managing effects. No further activity specific consultation is necessary over and above regular communication (Section 10).
If site representatives request consultation in the future, this SSCNMP will be updated in accordance with CRL designation condition 37.5, with consideration given to the following:
• The extent to which noise may exceed the Project Noise Standards
• The timing and duration of any exceedance
• The type of activity causing any exceedance
• A summary of the communication and consultation with the receiver
• The methods and measures to mitigate noise effects
• A statement of why they reflect best practicable option
Communications records are contained in the communication and consultation plan (CCP). This SSCNMP will be updated to summarise engagement and any agreed site-specific measures.
C33.1 Introduction
This Site Specific Construction Noise and Vibration Management Plan (SSCNMP) is for 2 - 42 Harold Street. A SSCNMP is required because construction is predicted to exceed the standards in CRL designation conditions 31.
This SSCNMP has been prepared in accordance with CRL designation condition 37 and is Appendix C33 of the Mt Eden Main Works Construction Noise and Vibration Delivery Work Plan (CNV DWP). It is a supplementary document that builds on the CNV DWP, and therefore directly references relevant sections of the CNV DWP to avoid repetition. The objective of this SSCNMP is to detail the best practicable option(s) (BPO) to avoid, remedy or mitigate the identified adverse effects from noise exceedances at 2 - 42 Harold Street
This SSCNMP has been prepared for the Link Alliance and forms part of the Construction Environmental Management Plan (CEMP) for the Mt Eden Station Main Works
C33.2 Engagement
Mt Eden Main Works
Link Alliance representatives XXX met with building representative XXX on XXX date. The matters discussed included:
• An overview of the project
• General programme, demolition, blasting, rock breaking and utilities relocation activities
• Overview of the CNV DWP and this SSCNMP, communications triggers and monitoring
The modern three-level terraced townhouses include balconies overlooking the rail corridor and worksite.
CNV DWP Section 7 identifies summarise the potential scale of noise and/or vibration exceedances using the modelling outputs in insert hyperlink to the GIS maps here The relevant stages are summarised below. Activity specific mitigation and management measures are included in Section 9 of the CNV DWP, and referenced in brackets, rather than repeated.
• Retaining walls (refer piling in Section 9.8)
The estimated sound level difference across the façade with the windows and doors closed is 25 - 30 decibels. The predicted construction noise effects from Table 12.1 in Section 12.1 are predicted to result in XXX noise effects. Physical receiver mitigation, such as temporary relocation of affected receivers, alternative ventilation and façade sound insulation improvements, have been considered, but are not required as part of the BPO for the Mt Eden Station Main Works.
XXX agreed that prior communication of timeframes for works with the potential to exceed the relevant noise limits was an acceptable means of managing effects. No further activity specific consultation is necessary over and above regular communication (Section 10).
C33.3 Review Process
If XXX or affected site representatives request consultation in the future, this SSCNMP will be updated in accordance with CRL designation conditions 37.5, with consideration given to the following:
• The extent to which noise may exceed the designation standards
• The timing and duration of any exceedance
• The type of activity causing any exceedance
• A summary of the communication and consultation with the receiver
• The methods and measures to mitigate effects
• A statement of why they reflect best practicable option
Communications records are contained in the communication and consultation plan (CCP). This SSCNMP will be updated to summarise engagement and any agreed site-specific measures.
C34.1 Introduction
This Site Specific Construction Noise and Vibration Management Plan (SSCNMP) is for 2 Enfield Street. A SSCNMP is required because construction is predicted to exceed the standards in CRL designation conditions 31.
This SSCNMP has been prepared in accordance with CRL designation condition 37 and is Appendix C34 of the Mt Eden Main Works Construction Noise and Vibration Delivery Work Plan (CNV DWP). It is a supplementary document that builds on the CNV DWP, and therefore directly references relevant sections of the CNV DWP to avoid repetition. The objective of this SSCNMP is to detail the best practicable option(s) (BPO) to avoid, remedy or mitigate the identified adverse effects from noise exceedances at 2 Enfield Street
This SSCNMP has been prepared for the Link Alliance and forms part of the Construction Environmental Management Plan (CEMP) for the Mt Eden Station Main Works
C34.2 Engagement
Mt Eden Main Works
Link Alliance representatives XXX met with building representative XXX on XXX date. The matters discussed included:
• An overview of the project
• General programme, demolition, blasting, rock breaking and utilities relocation activities
• Overview of the CNV DWP and this SSCNMP, communications triggers and monitoring
The modern two-level commercial building overlooks the rail corridor and worksite.
CNV DWP Section 7 identifies summarise the potential scale of noise and/or vibration exceedances using the modelling outputs in insert hyperlink to the GIS maps here The relevant stages are summarised below. Activity specific mitigation and management measures are included in Section 9 of the CNV DWP, and referenced in brackets, rather than repeated.
• Retaining walls (refer piling in Section 9.8)
The estimated sound level difference across the façade with the windows and doors closed is 30 decibels. The predicted construction noise effects from Table 12.1 in Section 12.1 are predicted to result in XXX noise effects. Physical receiver mitigation, such as temporary relocation of affected receivers, alternative ventilation and façade sound insulation improvements, have been considered, but are not required as part of the BPO for the Mt Eden Station Main Works.
XXX agreed that prior communication of timeframes for works with the potential to exceed the relevant noise limits was an acceptable means of managing effects. No further activity specific consultation is necessary over and above regular communication (Section 10).
If XXX or affected site representatives request consultation in the future, this SSCNMP will be updated in accordance with CRL designation conditions 37.5, with consideration given to the following:
• The extent to which noise may exceed the designation standards
• The timing and duration of any exceedance
• The type of activity causing any exceedance
• A summary of the communication and consultation with the receiver
• The methods and measures to mitigate effects
• A statement of why they reflect best practicable option
Communications records are contained in the communication and consultation plan (CCP). This SSCNMP will be updated to summarise engagement and any agreed site-specific measures.
C35.1 Introduction
This Site Specific Construction Noise Management Plan (SSCNMP) is for 49 Normanby Rd. A SSCNMP is required because construction is predicted to exceed the standards in CRL designation conditions 31.
This SSCNMP has been prepared in accordance with CRL designation condition 37 and is Appendix C35 of the Mt Eden Main Works Construction Noise and Vibration Delivery Work Plan (CNV DWP). It is a supplementary document that builds on the CNV DWP, and therefore directly references relevant sections of the CNV DWP to avoid repetition. The objective of this SSCNMP is to detail the best practicable option(s) (BPO) to avoid, remedy or mitigate the identified adverse effects from noise exceedances at 49 Normanby Rd
This SSCNMP has been prepared for the Link Alliance and forms part of the Construction Environmental Management Plan (CEMP) for the Mt Eden Station Main Works
C35.2 Engagement
Mt Eden Main Works
Link Alliance representatives XXX met with building representative XXX on XXX date. The matters discussed included:
• An overview of the project
• General programme, demolition, blasting, rock breaking and utilities relocation activities
• Overview of the CNV DWP and this SSCNMP, communications triggers and monitoring
The single-level commercial building features a masonry façade fronting Normanby Rd.
CNV DWP Section 7 identifies summarise the potential scale of noise and/or vibration exceedances using the modelling outputs in insert hyperlink to the GIS maps here The relevant stages are summarised below. Activity specific mitigation and management measures are included in Section 9 of the CNV DWP, and referenced in brackets, rather than repeated.
• Excavation (refer concrete and rock breaking in Section 9.7)
• Utilities and drainage (refer concrete cutting and breaking in Sections 9.6 and 9.7)
The estimated sound level difference across the façade with the windows and doors closed is 30 – 35 decibels. The predicted construction noise effects from Table 12.1 in Section 12.1 are predicted to result in XXX noise effects Physical receiver mitigation, such as temporary relocation of affected receivers, alternative ventilation and façade sound insulation improvements, have been considered, but are not required as part of the BPO for the Mt Eden Station Main Works.
XXX agreed that prior communication of timeframes for works with the potential to exceed the relevant noise limits was an acceptable means of managing effects. No further activity specific consultation is necessary over and above regular communication (Section 10).
If XXX or affected site representatives request consultation in the future, this SSCNMP will be updated in accordance with CRL designation conditions 37.5, with consideration given to the following:
• The extent to which noise may exceed the designation standards
• The timing and duration of any exceedance
• The type of activity causing any exceedance
• A summary of the communication and consultation with the receiver
• The methods and measures to mitigate effects
• A statement of why they reflect best practicable option
Communications records are contained in the communication and consultation plan (CCP). This SSCNMP will be updated to summarise engagement and any agreed site-specific measures.
C36.1 Introduction
This Site Specific Construction Noise and Vibration Management Plan (SSCNVMP) is for 1 Akiraho Street. A SSCNVMP is required because construction is predicted to exceed the standards in CRL designation conditions 31 and 33.
This SSCNVMP has been prepared in accordance with CRL designation condition 37 and 38 and is Appendix C36 of the Mt Eden Main Works Construction Noise and Vibration Delivery Work Plan (CNV DWP). It is a supplementary document that builds on the CNV DWP, and therefore directly references relevant sections of the CNV DWP to avoid repetition. The objective of this SSCNVMP is to detail the best practicable option(s) (BPO) to avoid, remedy or mitigate the identified adverse effects from noise and vibration exceedances at 1 Akiraho Street.
This SSCNVMP has been prepared for the Link Alliance and forms part of the Construction Environmental Management Plan (CEMP) for the Mt Eden Station Main Works.
C36.2 Engagement
Mt Eden Main Works
Link Alliance representatives XXX met with building representative XXX on XXX date. The matters discussed included:
• An overview of the project
• General programme, demolition, blasting, rock breaking and utilities relocation activities
• Overview of the CNV DWP and this SSCNVMP, communications triggers and monitoring
The modern multi-level terraced apartment building has a blank façade fronting the rail corridor and worksite. But extensive glazing and balcony areas facing east.
CNV DWP Section 7 identifies summarise the potential scale of noise and/or vibration exceedances using the modelling outputs in insert hyperlink to the GIS maps here. The relevant stages are summarised below. Activity specific mitigation and management measures are included in Section 9 of the CNV DWP, and referenced in brackets, rather than repeated.
Noise
• Retaining walls (refer piling in Section 9.8)
• Excavation (refer concrete and rock breaking in Section 9.7)
• Station platform (refer piling in Section 9.8)
The estimated sound level difference across the façade with the windows and doors closed is 25 – 30 decibels. The predicted construction noise effects from Table 12.1 in Section 12.1 are predicted to result in XXX noise effects Physical receiver mitigation, such as temporary relocation of affected receivers, alternative ventilation and façade sound insulation improvements, have been considered, but are not required as part of the BPO for the Mt Eden Station Main Works.
Vibration
• Excavation and piling (refer breaking, piling and compaction in Sections 9.7, 9.8 and 9.10)
The above activities are predicted to have the potential to exceed the commercial cosmetic building damage thresholds. Cosmetic building damage effects are deemed ‘minor damage’ in the DIN Standard (Section 5.2), such as cracking in paint or plasterwork, and can generally be easily repaired. A pre construction building condition survey in accordance with CRL designation condition 46 will ensure any damage is identified for remediation.
XXX agreed that prior communication of timeframes for works with the potential to exceed the relevant noise and vibration limits was an acceptable means of managing effects. No further activity specific consultation is necessary over and above regular communication (Section 10).
If XXX or affected site representatives request consultation in the future, this SSCNVMP will be updated in accordance with CRL designation conditions 37.5 and 38.5, with consideration given to the following:
• The extent to which noise may exceed the designation standards
• The timing and duration of any exceedance
• The type of activity causing any exceedance
• A summary of the communication and consultation with the receiver
• The methods and measures to mitigate effects
• A statement of why they reflect best practicable option
Communications records are contained in the communication and consultation plan (CCP). This SSCNVMP will be updated to summarise engagement and any agreed site-specific measures.
C37.1 Introduction
This Site Specific Construction Noise and Vibration Management Plan (SSCNMP) is for 3 Akiraho Street. A SSCNMP is required because construction is predicted to exceed the standards in CRL designation conditions 31.
This SSCNMP has been prepared in accordance with CRL designation condition 37 and is Appendix C37 of the Mt Eden Main Works Construction Noise and Vibration Delivery Work Plan (CNV DWP). It is a supplementary document that builds on the CNV DWP, and therefore directly references relevant sections of the CNV DWP to avoid repetition. The objective of this SSCNMP is to detail the best practicable option(s) (BPO) to avoid, remedy or mitigate the identified adverse effects from noise exceedances at 3 Akiraho Street
This SSCNMP has been prepared for the Link Alliance and forms part of the Construction Environmental Management Plan (CEMP) for the Mt Eden Station Main Works
C37.2 Engagement
Mt Eden Main Works
Link Alliance representatives XXX met with building representative XXX on XXX date. The matters discussed included:
• An overview of the project
• General programme, demolition, blasting, rock breaking and utilities relocation activities
• Overview of the CNV DWP and this SSCNMP, communications triggers and monitoring
The converted commercial building includes apartments over multiple levels fronting the rail corridor and worksite, including extensive openable glazing.
CNV DWP Section 7 identifies summarise the potential scale of noise and/or vibration exceedances using the modelling outputs in insert hyperlink to the GIS maps here The relevant stages are summarised below. Activity specific mitigation and management measures are included in Section 9 of the CNV DWP, and referenced in brackets, rather than repeated.
• Retaining walls (refer piling in Section 9.8)
The estimated sound level difference across the façade with the windows and doors closed is 25 – 30 decibels. The predicted construction noise effects from Table 12.1 in Section 12.1 are predicted to result in XXX noise effects. Physical receiver mitigation, such as temporary relocation of affected receivers, alternative ventilation and façade sound insulation improvements, have been considered, but are not required as part of the BPO for the Mt Eden Station Main Works.
XXX agreed that prior communication of timeframes for works with the potential to exceed the relevant noise limits was an acceptable means of managing effects. No further activity specific consultation is necessary over and above regular communication (Section 10).
If XXX or affected site representatives request consultation in the future, this SSCNMP will be updated in accordance with CRL designation conditions 37.5, with consideration given to the following:
• The extent to which noise may exceed the designation standards
• The timing and duration of any exceedance
• The type of activity causing any exceedance
• A summary of the communication and consultation with the receiver
• The methods and measures to mitigate effects
• A statement of why they reflect best practicable option
Communications records are contained in the communication and consultation plan (CCP). This SSCNMP will be updated to summarise engagement and any agreed site-specific measures.
C38.1 Introduction
This Site Specific Construction Noise Management Plan (SSCNMP) is for 5 Akiraho Street. A SSCNMP is required because construction is predicted to exceed the standards in CRL designation conditions 31.
This SSCNMP has been prepared in accordance with CRL designation condition 37 and is Appendix C38 of the Mt Eden Main Works Construction Noise and Vibration Delivery Work Plan (CNV DWP). It is a supplementary document that builds on the CNV DWP, and therefore directly references relevant sections of the CNV DWP to avoid repetition. The objective of this SSCNMP is to detail the best practicable option(s) (BPO) to avoid, remedy or mitigate the identified adverse effects from noise and vibration exceedances at 5 Akiraho Street
This SSCNMP has been prepared for the Link Alliance and forms part of the Construction Environmental Management Plan (CEMP) for the Mt Eden Station Main Works
C38.2 Engagement
Mt Eden Main Works
Link Alliance representatives XXX met with building representative XXX on XXX date. The matters discussed included:
• An overview of the project
• General programme, demolition, blasting, rock breaking and utilities relocation activities
• Overview of the CNV DWP and this SSCNVMP, communications triggers and monitoring
The commercial warehouse includes a brewery, warehouse areas and bar/restaurant in a single volume space, with outdoor areas fronting the rail corridor and worksite.
CNV DWP Section 7 identifies summarise the potential scale of noise and/or vibration exceedances using the modelling outputs in insert hyperlink to the GIS maps here The relevant stages are summarised below. Activity specific mitigation and management measures are included in Section 9 of the CNV DWP, and referenced in brackets, rather than repeated.
• Excavation (refer concrete and rock breaking in Section 9.7)
The estimated sound level difference across the façade with the windows and doors closed is 20 – 25 decibels. The predicted construction noise effects from Table 12.1 in Section 12.1 are predicted to result in XXX noise effects. Physical receiver mitigation, such as temporary relocation of affected receivers, alternative ventilation and façade sound insulation improvements, have been considered, but are not required as part of the BPO for the Mt Eden Station Main Works.
XXX agreed that prior communication of timeframes for works with the potential to exceed the relevant noise limits was an acceptable means of managing effects. No further activity specific consultation is necessary over and above regular communication (Section 10).
If XXX or affected site representatives request consultation in the future, this SSCNMP will be updated in accordance with CRL designation conditions 37.5, with consideration given to the following:
• The extent to which noise may exceed the designation standards
• The timing and duration of any exceedance
• The type of activity causing any exceedance
• A summary of the communication and consultation with the receiver
• The methods and measures to mitigate effects
• A statement of why they reflect best practicable option
Communications records are contained in the communication and consultation plan (CCP). This SSCNMP will be updated to summarise engagement and any agreed site-specific measures.
C39.1 Introduction
This Site Specific Construction Noise and Vibration Management Plan (SSCNVMP) is for 7 – 9 Akiraho Street. A SSCNVMP is required because construction is predicted to exceed the standards in CRL designation conditions 31 and 33.
This SSCNVMP has been prepared in accordance with CRL designation condition 37 and 38 and is Appendix C39 of the Mt Eden Main Works Construction Noise and Vibration Delivery Work Plan (CNV DWP). It is a supplementary document that builds on the CNV DWP, and therefore directly references relevant sections of the CNV DWP to avoid repetition. The objective of this SSCNVMP is to detail the best practicable option(s) (BPO) to avoid, remedy or mitigate the identified adverse effects from noise and vibration exceedances at 7 – 9 Akiraho Street.
This SSCNVMP has been prepared for the Link Alliance and forms part of the Construction Environmental Management Plan (CEMP) for the Mt Eden Station Main Works.
C39.2 Engagement
Mt Eden Main Works
Link Alliance representatives XXX met with building representative XXX on XXX date. The matters discussed included:
• An overview of the project
• General programme, demolition, blasting, rock breaking and utilities relocation activities
• Overview of the CNV DWP and this SSCNVMP, communications triggers and monitoring
The commercial warehouse and office areas front the rail corridor and worksite.
CNV DWP Section 7 identifies summarise the potential scale of noise and/or vibration exceedances using the modelling outputs in insert hyperlink to the GIS maps here The relevant stages are summarised below. Activity specific mitigation and management measures are included in Section 9 of the CNV DWP, and referenced in brackets, rather than repeated.
Noise
• Retaining walls (refer piling in Section 9.8)
• Excavation (refer concrete and rock breaking in Section 9.7)
• Fenton and Porters Ave (refer rock breaking and piling in Sections 9.7 and 9.8)
The estimated sound level difference across the façade with the windows and doors closed is 20 – 25 decibels. The predicted construction noise effects from Table 12.1 in Section 12.1 are predicted to result in XXX noise effects Physical receiver mitigation, such as temporary relocation of affected receivers, alternative ventilation and façade sound insulation improvements, have been considered, but are not required as part of the BPO for the Mt Eden Station Main Works.
Vibration
• Excavation and piling (refer breaking, piling and compaction in Sections 9.7, 9.8 and 9.10)
The above activities are predicted to have the potential to exceed the commercial cosmetic building damage thresholds. Cosmetic building damage effects are deemed ‘minor damage’ in the DIN Standard (Section 5.2), such as cracking in paint or plasterwork, and can generally be easily repaired. A pre construction building condition survey in accordance with CRL designation condition 46 will ensure any damage is identified for remediation.
XXX agreed that prior communication of timeframes for works with the potential to exceed the relevant noise and vibration limits was an acceptable means of managing effects. No further activity specific consultation is necessary over and above regular communication (Section 10).
If XXX or affected site representatives request consultation in the future, this SSCNVMP will be updated in accordance with CRL designation conditions 37.5 and 38.5, with consideration given to the following:
• The extent to which noise may exceed the designation standards
• The timing and duration of any exceedance
• The type of activity causing any exceedance
• A summary of the communication and consultation with the receiver
• The methods and measures to mitigate effects
• A statement of why they reflect best practicable option
Communications records are contained in the communication and consultation plan (CCP). This SSCNVMP will be updated to summarise engagement and any agreed site-specific measures.
C40.1 Introduction
This Site Specific Construction Noise Management Plan (SSCNMP) is for 11 Akiraho Street. A SSCNMP is required because construction is predicted to exceed the standards in CRL designation conditions 31.
This SSCNMP has been prepared in accordance with CRL designation condition 37 and is Appendix C40 of the Mt Eden Main Works Construction Noise and Vibration Delivery Work Plan (CNV DWP). It is a supplementary document that builds on the CNV DWP, and therefore directly references relevant sections of the CNV DWP to avoid repetition. The objective of this SSCNMP is to detail the best practicable option(s) (BPO) to avoid, remedy or mitigate the identified adverse effects from noise exceedances at 11 Akiraho Street
This SSCNMP has been prepared for the Link Alliance and forms part of the Construction Environmental Management Plan (CEMP) for the Mt Eden Station Main Works
C40.2 Engagement
Mt Eden Main Works
Link Alliance representatives XXX met with building representative XXX on XXX date. The matters discussed included:
• An overview of the project
• General programme, demolition, blasting, rock breaking and utilities relocation activities
• Overview of the CNV DWP and this SSCNMP, communications triggers and monitoring
The three-level commercial building overlooks the rail corridor and worksite. It appears to have a lightweight facade and openable windows.
CNV DWP Section 7 identifies summarise the potential scale of noise and/or vibration exceedances using the modelling outputs in insert hyperlink to the GIS maps here The relevant stages are summarised below. Activity specific mitigation and management measures are included in Section 9 of the CNV DWP, and referenced in brackets, rather than repeated.
• Retaining walls (refer piling in Section 9.8)
• Fenton and Porters Ave (refer rock breaking and piling in Sections 9.7 and 9.8)
The estimated sound level difference across the façade with the windows and doors closed is 20 – 25 decibels. The predicted construction noise effects from Table 12.1 in Section 12.1 are predicted to result in XXX noise effects Physical receiver mitigation, such as temporary relocation of affected receivers, alternative ventilation and façade sound insulation improvements, have been considered, but are not required as part of the BPO for the Mt Eden Station Main Works.
XXX agreed that prior communication of timeframes for works with the potential to exceed the relevant noise limits was an acceptable means of managing effects. No further activity specific consultation is necessary over and above regular communication (Section 10).
If XXX or affected site representatives request consultation in the future, this SSCNMP will be updated in accordance with CRL designation conditions 37.5, with consideration given to the following:
• The extent to which noise may exceed the designation standards
• The timing and duration of any exceedance
• The type of activity causing any exceedance
• A summary of the communication and consultation with the receiver
• The methods and measures to mitigate effects
• A statement of why they reflect best practicable option
Communications records are contained in the communication and consultation plan (CCP). This SSCNMP will be updated to summarise engagement and any agreed site-specific measures.
C41.1
This Site Specific Construction Noise and Vibration Management Plan (SSCNVMP) is for 13 Akiraho Street. A SSCNVMP is required because construction is predicted to exceed the standards in CRL designation conditions 31 and 33.
This SSCNVMP has been prepared in accordance with CRL designation condition 37 and 38 and is Appendix C41 of the Mt Eden Main Works Construction Noise and Vibration Delivery Work Plan (CNV DWP). It is a supplementary document that builds on the CNV DWP, and therefore directly references relevant sections of the CNV DWP to avoid repetition. The objective of this SSCNVMP is to detail the best practicable option(s) (BPO) to avoid, remedy or mitigate the identified adverse effects from noise and vibration exceedances at 13 Akiraho Street.
This SSCNVMP has been prepared for the Link Alliance and forms part of the Construction Environmental Management Plan (CEMP) for the Mt Eden Station Main Works.
C41.2
Mt Eden Main Works
Link Alliance representatives XXX met with building representative XXX on XXX date. The matters discussed included:
• An overview of the project
• General programme, demolition, blasting, rock breaking and utilities relocation activities
• Overview of the CNV DWP and this SSCNVMP, communications triggers and monitoring
The modern single-level commercial warehouse has a blank concrete façade overlooking the rail corridor and worksite.
CNV DWP Section 7 identifies summarise the potential scale of noise and/or vibration exceedances using the modelling outputs in insert hyperlink to the GIS maps here. The relevant stages are summarised below. Activity specific mitigation and management measures are included in Section 9 of the CNV DWP, and referenced in brackets, rather than repeated.
Noise
• Retaining walls (refer piling in Section 9.8)
• Excavation (refer concrete and rock breaking in Section 9.7)
• Utilities and drainage (refer concrete cutting and breaking in Sections 9.6 and 9.7)
• Fenton and Porters Ave (refer rock breaking and piling in Sections 9.7 and 9.8)
The estimated sound level difference across the façade with the windows and doors closed is 30 decibels. The predicted construction noise effects from Table 12.1 in Section 12.1 are predicted to result in XXX noise effects. Physical receiver mitigation, such as temporary relocation of affected receivers, alternative ventilation and façade sound insulation improvements, have been considered, but are not required as part of the BPO for the Mt Eden Station Main Works.
Vibration
• Excavation and piling (refer breaking, piling and compaction in Sections 9.7, 9.8 and 9.10)
The above activities are predicted to have the potential to exceed the commercial cosmetic building damage thresholds. Cosmetic building damage effects are deemed ‘minor damage’ in the DIN Standard (Section 5.2), such as cracking in paint or plasterwork, and can generally be easily repaired. A pre construction building condition survey in accordance with CRL designation condition 46 will ensure any damage is identified for remediation.
XXX agreed that prior communication of timeframes for works with the potential to exceed the relevant noise and vibration limits was an acceptable means of managing effects. No further activity specific consultation is necessary over and above regular communication (Section 10).
If XXX or affected site representatives request consultation in the future, this SSCNVMP will be updated in accordance with CRL designation conditions 37.5 and 38.5, with consideration given to the following:
• The extent to which noise may exceed the designation standards
• The timing and duration of any exceedance
• The type of activity causing any exceedance
• A summary of the communication and consultation with the receiver
• The methods and measures to mitigate effects
• A statement of why they reflect best practicable option
Communications records are contained in the communication and consultation plan (CCP). This SSCNVMP will be updated to summarise engagement and any agreed site-specific measures.
C42.1 Introduction
This Site Specific Construction Noise and Vibration Management Plan (SSCNVMP) is for 1 Fenton St. A SSCNVMP is required because construction is predicted to exceed the standards in CRL designation conditions 31 and 33.
This SSCNVMP has been prepared in accordance with CRL designation condition 37 and 38 and is Appendix C42 of the Mt Eden Main Works Construction Noise and Vibration Delivery Work Plan (CNV DWP). It is a supplementary document that builds on the CNV DWP, and therefore directly references relevant sections of the CNV DWP to avoid repetition. The objective of this SSCNVMP is to detail the best practicable option(s) (BPO) to avoid, remedy or mitigate the identified adverse effects from noise and vibration exceedances at 1 Fenton St.
This SSCNVMP has been prepared for the Link Alliance and forms part of the Construction Environmental Management Plan (CEMP) for the Mt Eden Station Main Works.
C42.2 Engagement
Mt Eden Main Works
Link Alliance representatives XXX met with building representative XXX on XXX date. The matters discussed included:
• An overview of the project
• General programme, demolition, blasting, rock breaking and utilities relocation activities
• Overview of the CNV DWP and this SSCNVMP, communications triggers and monitoring
The modern two-level commercial masonry building with openable windows overlooks the rail corridor and worksite.
CNV DWP Section 7 identifies summarise the potential scale of noise and/or vibration exceedances using the modelling outputs in insert hyperlink to the GIS maps here. The relevant stages are summarised below. Activity specific mitigation and management measures are included in Section 9 of the CNV DWP, and referenced in brackets, rather than repeated.
Noise
• Retaining walls (refer piling in Section 9.8)
• Excavation (refer concrete and rock breaking in Section 9.7)
• Utilities and drainage (refer concrete cutting and breaking in Sections 9.6 and 9.7)
• Fenton and Porters Ave (refer rock breaking and piling in Sections 9.7 and 9.8)
The estimated sound level difference across the façade with the windows and doors closed is 25 – 30 decibels. The predicted construction noise effects from Table 12.1 in Section 12.1 are predicted to result in XXX noise effects. Physical receiver mitigation, such as temporary relocation of affected receivers, alternative ventilation and façade sound insulation improvements, have been considered, but are not required as part of the BPO for the Mt Eden Station Main Works.
Vibration
• Excavation and piling (refer breaking, piling and compaction in Sections 9.7, 9.8 and 9.10)
• Utilities and drainage (refer breaking, piling and compaction in Sections 9.7, 9.8 and 9.10)
The above activities are predicted to have the potential to exceed the commercial cosmetic building damage thresholds. Cosmetic building damage effects are deemed ‘minor damage’ in the DIN Standard (Section 5.2), such as cracking in paint or plasterwork, and can generally be easily repaired. A pre construction building condition survey in accordance with CRL designation condition 46 will ensure any damage is identified for remediation.
XXX agreed that prior communication of timeframes for works with the potential to exceed the relevant noise and vibration limits was an acceptable means of managing effects. No further activity specific consultation is necessary over and above regular communication (Section 10).
If XXX or affected site representatives request consultation in the future, this SSCNVMP will be updated in accordance with CRL designation conditions 37.5 and 38.5, with consideration given to the following:
• The extent to which noise may exceed the designation standards
• The timing and duration of any exceedance
• The type of activity causing any exceedance
• A summary of the communication and consultation with the receiver
• The methods and measures to mitigate effects
• A statement of why they reflect best practicable option
Communications records are contained in the communication and consultation plan (CCP). This SSCNVMP will be updated to summarise engagement and any agreed site-specific measures.
C43.1 Introduction
This Site Specific Construction Noise and Vibration Management Plan (SSCNVMP) is for 1 Porters Ave. A SSCNVMP is required because construction is predicted to exceed the standards in CRL designation conditions 31 and 33.
This SSCNVMP has been prepared in accordance with CRL designation condition 37 and 38 and is Appendix C43 of the Mt Eden Main Works Construction Noise and Vibration Delivery Work Plan (CNV DWP). It is a supplementary document that builds on the CNV DWP, and therefore directly references relevant sections of the CNV DWP to avoid repetition. The objective of this SSCNVMP is to detail the best practicable option(s) (BPO) to avoid, remedy or mitigate the identified adverse effects from noise and vibration exceedances at 1 Porters Ave.
This SSCNVMP has been prepared for the Link Alliance and forms part of the Construction Environmental Management Plan (CEMP) for the Mt Eden Station Main Works.
C43.2 Engagement
Mt Eden Main Works
Link Alliance representatives XXX met with building representative XXX on XXX date. The matters discussed included:
• An overview of the project
• General programme, demolition, blasting, rock breaking and utilities relocation activities
• Overview of the CNV DWP and this SSCNVMP, communications triggers and monitoring
The modern two-level commercial lightweight building includes openable windows overlooking the rail corridor and worksite.
CNV DWP Section 7 identifies summarise the potential scale of noise and/or vibration exceedances using the modelling outputs in insert hyperlink to the GIS maps here. The relevant stages are summarised below. Activity specific mitigation and management measures are included in Section 9 of the CNV DWP, and referenced in brackets, rather than repeated.
Noise
• Retaining walls (refer piling in Section 9.8)
• Excavation (refer concrete and rock breaking in Section 9.7)
The estimated sound level difference across the façade with the windows and doors closed is 25 decibels. The predicted construction noise effects from Table 12.1 in Section 12.1 are predicted to result in XXX noise effects Physical receiver mitigation, such as temporary relocation of affected receivers, alternative ventilation and façade sound insulation improvements, have been considered, but are not required as part of the BPO for the Mt Eden Station Main Works.
Vibration
• Excavation and piling (refer breaking, piling and compaction in Sections 9.7, 9.8 and 9.10)
The above activities are predicted to have the potential to exceed the commercial cosmetic building damage thresholds. Cosmetic building damage effects are deemed ‘minor damage’ in the DIN Standard (Section 5.2), such as cracking in paint or plasterwork, and can generally be easily repaired. A pre construction building condition survey in accordance with CRL designation condition 46 will ensure any damage is identified for remediation.
XXX agreed that prior communication of timeframes for works with the potential to exceed the relevant noise and vibration limits was an acceptable means of managing effects. No further activity specific consultation is necessary over and above regular communication (Section 10).
If XXX or affected site representatives request consultation in the future, this SSCNVMP will be updated in accordance with CRL designation conditions 37.5 and 38.5, with consideration given to the following:
• The extent to which noise may exceed the designation standards
• The timing and duration of any exceedance
• The type of activity causing any exceedance
• A summary of the communication and consultation with the receiver
• The methods and measures to mitigate effects
• A statement of why they reflect best practicable option
Communications records are contained in the communication and consultation plan (CCP). This SSCNVMP will be updated to summarise engagement and any agreed site-specific measures.
C44.1 Introduction
This Site Specific Construction Noise and Vibration Management Plan (SSCNVMP) is for 1A Porters Ave. A SSCNVMP is required because construction is predicted to exceed the standards in CRL designation conditions 31 and 33.
This SSCNVMP has been prepared in accordance with CRL designation condition 37 and 38 and is Appendix C44 of the Mt Eden Main Works Construction Noise and Vibration Delivery Work Plan (CNV DWP). It is a supplementary document that builds on the CNV DWP, and therefore directly references relevant sections of the CNV DWP to avoid repetition. The objective of this SSCNVMP is to detail the best practicable option(s) (BPO) to avoid, remedy or mitigate the identified adverse effects from noise and vibration exceedances at 1A Porters Ave.
This SSCNVMP has been prepared for the Link Alliance and forms part of the Construction Environmental Management Plan (CEMP) for the Mt Eden Station Main Works.
C44.2 Engagement
Mt Eden Main Works
Link Alliance representatives XXX met with building representative XXX on XXX date. The matters discussed included:
• An overview of the project
• General programme, demolition, blasting, rock breaking and utilities relocation activities
• Overview of the CNV DWP and this SSCNVMP, communications triggers and monitoring
The commercial warehouse features a lightweight façade and openable windows overlooking the rail corridor and worksite.
CNV DWP Section 7 identifies summarise the potential scale of noise and/or vibration exceedances using the modelling outputs in insert hyperlink to the GIS maps here. The relevant stages are summarised below. Activity specific mitigation and management measures are included in Section 9 of the CNV DWP, and referenced in brackets, rather than repeated.
Noise
• Retaining walls (refer piling in Section 9.8)
• Excavation (refer concrete and rock breaking in Section 9.7)
The estimated sound level difference across the façade with the windows and doors closed is 20 decibels. The predicted construction noise effects from Table 12.1 in Section 12.1 are predicted to result in XXX noise effects Physical receiver mitigation, such as temporary relocation of affected receivers, alternative ventilation and façade sound insulation improvements, have been considered, but are not required as part of the BPO for the Mt Eden Station Main Works.
Vibration
• Excavation and piling (refer breaking, piling and compaction in Sections 9.7, 9.8 and 9.10)
The above activities are predicted to have the potential to exceed the commercial cosmetic building damage thresholds. Cosmetic building damage effects are deemed ‘minor damage’ in the DIN Standard (Section 5.2), such as cracking in paint or plasterwork, and can generally be easily repaired. A pre construction building condition survey in accordance with CRL designation condition 46 will ensure any damage is identified for remediation.
XXX agreed that prior communication of timeframes for works with the potential to exceed the relevant noise and vibration limits was an acceptable means of managing effects. No further activity specific consultation is necessary over and above regular communication (Section 10).
If XXX or affected site representatives request consultation in the future, this SSCNVMP will be updated in accordance with CRL designation conditions 37.5 and 38.5, with consideration given to the following:
• The extent to which noise may exceed the designation standards
• The timing and duration of any exceedance
• The type of activity causing any exceedance
• A summary of the communication and consultation with the receiver
• The methods and measures to mitigate effects
• A statement of why they reflect best practicable option
Communications records are contained in the communication and consultation plan (CCP). This SSCNVMP will be updated to summarise engagement and any agreed site-specific measures.
C45.1 Introduction
This Site Specific Construction Noise Management Plan (SSCNMP) is for 14 Haultain St. A SSCNMP is required because construction is predicted to exceed the standards in CRL designation conditions 31.
This SSCNMP has been prepared in accordance with CRL designation condition 37 and is Appendix C45 of the Mt Eden Main Works Construction Noise and Vibration Delivery Work Plan (CNV DWP). It is a supplementary document that builds on the CNV DWP, and therefore directly references relevant sections of the CNV DWP to avoid repetition. The objective of this SSCNMP is to detail the best practicable option(s) (BPO) to avoid, remedy or mitigate the identified adverse effects from noise exceedances at 14 Haultain St
This SSCNMP has been prepared for the Link Alliance and forms part of the Construction Environmental Management Plan (CEMP) for the Mt Eden Station Main Works
C45.2 Engagement
Mt Eden Main Works
Link Alliance representatives XXX met with building representative XXX on XXX date. The matters discussed included:
• An overview of the project
• General programme, demolition, blasting, rock breaking and utilities relocation activities
• Overview of the CNV DWP and this SSCNMP, communications triggers and monitoring
The modern two-level commercial building features a lightweight façade and openable windows overlooking the rail corridor and worksite.
CNV DWP Section 7 identifies summarise the potential scale of noise and/or vibration exceedances using the modelling outputs in insert hyperlink to the GIS maps here The relevant stages are summarised below. Activity specific mitigation and management measures are included in Section 9 of the CNV DWP, and referenced in brackets, rather than repeated.
• Retaining walls (refer piling in Section 9.8)
• Excavation (refer concrete and rock breaking in Section 9.7)
The estimated sound level difference across the façade with the windows and doors closed is 25 decibels. The predicted construction noise effects from Table 12.1 in Section 12.1 are predicted to result in XXX noise effects Physical receiver mitigation, such as temporary relocation of affected receivers, alternative ventilation and façade sound insulation improvements, have been considered, but are not required as part of the BPO for the Mt Eden Station Main Works.
XXX agreed that prior communication of timeframes for works with the potential to exceed the relevant noise limits was an acceptable means of managing effects. No further activity specific consultation is necessary over and above regular communication (Section 10).
If XXX or affected site representatives request consultation in the future, this SSCNMP will be updated in accordance with CRL designation conditions 37.5, with consideration given to the following:
• The extent to which noise may exceed the designation standards
• The timing and duration of any exceedance
• The type of activity causing any exceedance
• A summary of the communication and consultation with the receiver
• The methods and measures to mitigate effects
• A statement of why they reflect best practicable option
Communications records are contained in the communication and consultation plan (CCP). This SSCNMP will be updated to summarise engagement and any agreed site-specific measures.
C46.1 Introduction
This Site Specific Construction Noise Management Plan (SSCNMP) is for 14 Haultain St. A SSCNMP is required because construction is predicted to exceed the standards in CRL designation conditions 31.
This SSCNMP has been prepared in accordance with CRL designation condition 37 and is Appendix C46 of the Mt Eden Main Works Construction Noise and Vibration Delivery Work Plan (CNV DWP). It is a supplementary document that builds on the CNV DWP, and therefore directly references relevant sections of the CNV DWP to avoid repetition. The objective of this SSCNMP is to detail the best practicable option(s) (BPO) to avoid, remedy or mitigate the identified adverse effects from noise exceedances at 12 Haultain St
This SSCNMP has been prepared for the Link Alliance and forms part of the Construction Environmental Management Plan (CEMP) for the Mt Eden Station Main Works
C46.2 Engagement
Mt Eden Main Works
Link Alliance representatives XXX met with building representative XXX on XXX date. The matters discussed included:
• An overview of the project
• General programme, demolition, blasting, rock breaking and utilities relocation activities
• Overview of the CNV DWP and this SSCNMP, communications triggers and monitoring
The modern three-level commercial building features a lightweight façade and openable windows overlooking the rail corridor and worksite.
CNV DWP Section 7 identifies summarise the potential scale of noise and/or vibration exceedances using the modelling outputs in insert hyperlink to the GIS maps here The relevant stages are summarised below. Activity specific mitigation and management measures are included in Section 9 of the CNV DWP, and referenced in brackets, rather than repeated.
• Retaining walls (refer piling in Section 9.8)
The estimated sound level difference across the façade with the windows and doors closed is 25 decibels. The predicted construction noise effects from Table 12.1 in Section 12.1 are predicted to result in XXX noise effects. Physical receiver mitigation, such as temporary relocation of affected receivers, alternative ventilation and façade sound insulation improvements, have been considered, but are not required as part of the BPO for the Mt Eden Station Main Works.
XXX agreed that prior communication of timeframes for works with the potential to exceed the relevant noise limits was an acceptable means of managing effects. No further activity specific consultation is necessary over and above regular communication (Section 10).
If XXX or affected site representatives request consultation in the future, this SSCNMP will be updated in accordance with CRL designation conditions 37.5, with consideration given to the following:
• The extent to which noise may exceed the designation standards
• The timing and duration of any exceedance
• The type of activity causing any exceedance
• A summary of the communication and consultation with the receiver
• The methods and measures to mitigate effects
• A statement of why they reflect best practicable option
Communications records are contained in the communication and consultation plan (CCP). This SSCNMP will be updated to summarise engagement and any agreed site-specific measures.
C47.1 Introduction
This Site Specific Construction Noise Management Plan (SSCNMP) is for 10 Haultain St. A SSCNMP is required because construction is predicted to exceed the standards in CRL designation conditions 31.
This SSCNMP has been prepared in accordance with CRL designation condition 37 and is Appendix C47 of the Mt Eden Main Works Construction Noise and Vibration Delivery Work Plan (CNV DWP). It is a supplementary document that builds on the CNV DWP, and therefore directly references relevant sections of the CNV DWP to avoid repetition. The objective of this SSCNMP is to detail the best practicable option(s) (BPO) to avoid, remedy or mitigate the identified adverse effects from noise exceedances at 10 Haultain St
This SSCNMP has been prepared for the Link Alliance and forms part of the Construction Environmental Management Plan (CEMP) for the Mt Eden Station Main Works
C47.2 Engagement
Mt Eden Main Works
Link Alliance representatives XXX met with building representative XXX on XXX date. The matters discussed included:
• An overview of the project
• General programme, demolition, blasting, rock breaking and utilities relocation activities
• Overview of the CNV DWP and this SSCNMP, communications triggers and monitoring
The modern two-level commercial building features a lightweight façade and openable windows overlooking the rail corridor and worksite.
CNV DWP Section 7 identifies summarise the potential scale of noise and/or vibration exceedances using the modelling outputs in insert hyperlink to the GIS maps here The relevant stages are summarised below. Activity specific mitigation and management measures are included in Section 9 of the CNV DWP, and referenced in brackets, rather than repeated.
• Retaining walls (refer piling in Section 9.8)
The estimated sound level difference across the façade with the windows and doors closed is 25 decibels. The predicted construction noise effects from Table 12.1 in Section 12.1 are predicted to result in XXX noise effects. Physical receiver mitigation, such as temporary relocation of affected receivers, alternative ventilation and façade sound insulation improvements, have been considered, but are not required as part of the BPO for the Mt Eden Station Main Works.
XXX agreed that prior communication of timeframes for works with the potential to exceed the relevant noise limits was an acceptable means of managing effects. No further activity specific consultation is necessary over and above regular communication (Section 10).
If XXX or affected site representatives request consultation in the future, this SSCNMP will be updated in accordance with CRL designation conditions 37.5, with consideration given to the following:
• The extent to which noise may exceed the designation standards
• The timing and duration of any exceedance
• The type of activity causing any exceedance
• A summary of the communication and consultation with the receiver
• The methods and measures to mitigate effects
• A statement of why they reflect best practicable option
Communications records are contained in the communication and consultation plan (CCP). This SSCNMP will be updated to summarise engagement and any agreed site-specific measures.
C48.1 Introduction
This Site Specific Construction Noise Management Plan (SSCNMP) is for 8 Haultain St. A SSCNMP is required because construction is predicted to exceed the standards in CRL designation conditions 31.
This SSCNMP has been prepared in accordance with CRL designation condition 37 and is Appendix C48 of the Mt Eden Main Works Construction Noise and Vibration Delivery Work Plan (CNV DWP). It is a supplementary document that builds on the CNV DWP, and therefore directly references relevant sections of the CNV DWP to avoid repetition. The objective of this SSCNMP is to detail the best practicable option(s) (BPO) to avoid, remedy or mitigate the identified adverse effects from noise exceedances at 8 Haultain St
This SSCNMP has been prepared for the Link Alliance and forms part of the Construction Environmental Management Plan (CEMP) for the Mt Eden Station Main Works
C48.2 Engagement
Mt Eden Main Works
Link Alliance representatives XXX met with building representative XXX on XXX date. The matters discussed included:
• An overview of the project
• General programme, demolition, blasting, rock breaking and utilities relocation activities
• Overview of the CNV DWP and this SSCNMP, communications triggers and monitoring
The modern two-level commercial building features a lightweight façade and openable windows overlooking the rail corridor and worksite.
CNV DWP Section 7 identifies summarise the potential scale of noise and/or vibration exceedances using the modelling outputs in insert hyperlink to the GIS maps here The relevant stages are summarised below. Activity specific mitigation and management measures are included in Section 9 of the CNV DWP, and referenced in brackets, rather than repeated.
• Retaining walls (refer piling in Section 9.8)
The estimated sound level difference across the façade with the windows and doors closed is 25 decibels. The predicted construction noise effects from Table 12.1 in Section 12.1 are predicted to result in XXX noise effects. Physical receiver mitigation, such as temporary relocation of affected receivers, alternative ventilation and façade sound insulation improvements, have been considered, but are not required as part of the BPO for the Mt Eden Station Main Works.
XXX agreed that prior communication of timeframes for works with the potential to exceed the relevant noise limits was an acceptable means of managing effects. No further activity specific consultation is necessary over and above regular communication (Section 10).
If XXX or affected site representatives request consultation in the future, this SSCNMP will be updated in accordance with CRL designation conditions 37.5, with consideration given to the following:
• The extent to which noise may exceed the designation standards
• The timing and duration of any exceedance
• The type of activity causing any exceedance
• A summary of the communication and consultation with the receiver
• The methods and measures to mitigate effects
• A statement of why they reflect best practicable option
Communications records are contained in the communication and consultation plan (CCP). This SSCNMP will be updated to summarise engagement and any agreed site-specific measures.
C49.1 Introduction
This Site Specific Construction Noise Management Plan (SSCNMP) is for 1 Ngahura St. A SSCNMP is required because construction is predicted to exceed the standards in CRL designation conditions 31.
This SSCNMP has been prepared in accordance with CRL designation condition 37 and is Appendix 49 of the Mt Eden Main Works Construction Noise and Vibration Delivery Work Plan (CNV DWP). It is a supplementary document that builds on the CNV DWP, and therefore directly references relevant sections of the CNV DWP to avoid repetition. The objective of this SSCNMP is to detail the best practicable option(s) (BPO) to avoid, remedy or mitigate the identified adverse effects from noise exceedances at 1 Ngahura St
This SSCNMP has been prepared for the Link Alliance and forms part of the Construction Environmental Management Plan (CEMP) for the Mt Eden Station Main Works
C49.2 Engagement
Mt Eden Main Works
Link Alliance representatives XXX met with building representative XXX on XXX date. The matters discussed included:
• An overview of the project
• General programme, demolition, blasting, rock breaking and utilities relocation activities
• Overview of the CNV DWP and this SSCNMP, communications triggers and monitoring
The modern two-level commercial building features a masonry façade and openable windows.
CNV DWP Section 7 identifies summarise the potential scale of noise and/or vibration exceedances using the modelling outputs in insert hyperlink to the GIS maps here The relevant stages are summarised below. Activity specific mitigation and management measures are included in Section 9 of the CNV DWP, and referenced in brackets, rather than repeated.
• Retaining walls (refer piling in Section 9.8)
• Fenton and Porters Ave (refer rock breaking and piling in Sections 9.7 and 9.8)
The estimated sound level difference across the façade with the windows and doors closed is 25 decibels. The predicted construction noise effects from Table 12.1 in Section 12.1 are predicted to result in XXX noise effects Physical receiver mitigation, such as temporary relocation of affected receivers, alternative ventilation and façade sound insulation improvements, have been considered, but are not required as part of the BPO for the Mt Eden Station Main Works.
XXX agreed that prior communication of timeframes for works with the potential to exceed the relevant noise limits was an acceptable means of managing effects. No further activity specific consultation is necessary over and above regular communication (Section 10).
If XXX or affected site representatives request consultation in the future, this SSCNMP will be updated in accordance with CRL designation conditions 37.5, with consideration given to the following:
• The extent to which noise may exceed the designation standards
• The timing and duration of any exceedance
• The type of activity causing any exceedance
• A summary of the communication and consultation with the receiver
• The methods and measures to mitigate effects
• A statement of why they reflect best practicable option
Communications records are contained in the communication and consultation plan (CCP). This SSCNMP will be updated to summarise engagement and any agreed site-specific measures.
C50.1 Introduction
This Site Specific Construction Noise Management Plan (SSCNMP) is for 65 Boston Rd. A SSCNMP is required because construction is predicted to exceed the standards in CRL designation conditions 31.
This SSCNMP has been prepared in accordance with CRL designation condition 37 and is Appendix C50 of the Mt Eden Main Works Construction Noise and Vibration Delivery Work Plan (CNV DWP). It is a supplementary document that builds on the CNV DWP, and therefore directly references relevant sections of the CNV DWP to avoid repetition. The objective of this SSCNMP is to detail the best practicable option(s) (BPO) to avoid, remedy or mitigate the identified adverse effects from noise exceedances at 65 Boston Rd
This SSCNMP has been prepared for the Link Alliance and forms part of the Construction Environmental Management Plan (CEMP) for the Mt Eden Station Main Works
C50.2 Engagement
Mt Eden Main Works
Link Alliance representatives XXX met with building representative XXX on XXX date. The matters discussed included:
• An overview of the project
• General programme, demolition, blasting, rock breaking and utilities relocation activities
• Overview of the CNV DWP and this SSCNMP, communications triggers and monitoring
The modern two-level commercial building features a lightweight façade and openable windows overlooking the rail corridor and worksite.
CNV DWP Section 7 identifies summarise the potential scale of noise and/or vibration exceedances using the modelling outputs in insert hyperlink to the GIS maps here The relevant stages are summarised below. Activity specific mitigation and management measures are included in Section 9 of the CNV DWP, and referenced in brackets, rather than repeated.
• Utilities and drainage (refer concrete cutting and breaking in Sections 9.6 and 9.7)
• Normanby Rd (refer piling in Section 9.8)
The estimated sound level difference across the façade with the windows and doors closed is 25 – 30 decibels. The predicted construction noise effects from Table 12.1 in Section 12.1 are predicted to result in XXX noise effects Physical receiver mitigation, such as temporary relocation of affected receivers, alternative ventilation and façade sound insulation improvements, have been considered, but are not required as part of the BPO for the Mt Eden Station Main Works.
XXX agreed that prior communication of timeframes for works with the potential to exceed the relevant noise limits was an acceptable means of managing effects. No further activity specific consultation is necessary over and above regular communication (Section 10).
If XXX or affected site representatives request consultation in the future, this SSCNMP will be updated in accordance with CRL designation conditions 37.5, with consideration given to the following:
• The extent to which noise may exceed the designation standards
• The timing and duration of any exceedance
• The type of activity causing any exceedance
• A summary of the communication and consultation with the receiver
• The methods and measures to mitigate effects
• A statement of why they reflect best practicable option
Communications records are contained in the communication and consultation plan (CCP). This SSCNMP will be updated to summarise engagement and any agreed site-specific measures.
C51.1 Introduction
This Site Specific Construction Noise Management Plan (SSCNMP) is for 57 Boston Rd. A SSCNMP is required because construction is predicted to exceed the standards in CRL designation conditions 31.
This SSCNMP has been prepared in accordance with CRL designation condition 37 and is Appendix C51 of the Mt Eden Main Works Construction Noise and Vibration Delivery Work Plan (CNV DWP). It is a supplementary document that builds on the CNV DWP, and therefore directly references relevant sections of the CNV DWP to avoid repetition. The objective of this SSCNMP is to detail the best practicable option(s) (BPO) to avoid, remedy or mitigate the identified adverse effects from noise exceedances at 57 Boston Rd
This SSCNMP has been prepared for the Link Alliance and forms part of the Construction Environmental Management Plan (CEMP) for the Mt Eden Station Main Works
C51.2 Engagement
Mt Eden Main Works
Link Alliance representatives XXX met with building representative XXX on XXX date. The matters discussed included:
• An overview of the project
• General programme, demolition, blasting, rock breaking and utilities relocation activities
• Overview of the CNV DWP and this SSCNMP, communications triggers and monitoring
The modern two-level commercial building features a masonary façade and openable windows overlooking the rail corridor and worksite.
CNV DWP Section 7 identifies summarise the potential scale of noise and/or vibration exceedances using the modelling outputs in insert hyperlink to the GIS maps here The relevant stages are summarised below. Activity specific mitigation and management measures are included in Section 9 of the CNV DWP, and referenced in brackets, rather than repeated.
• Retaining walls (refer piling in Section 9.8)
• Excavation (refer concrete and rock breaking in Section 9.7)
• Utilities and drainage (refer concrete cutting and breaking in Sections 9.6 and 9.7)
• Normanby Rd (refer piling in Section 9.8)
The estimated sound level difference across the façade with the windows and doors closed is 25 – 30 decibels. The predicted construction noise effects from Table 12.1 in Section 12.1 are predicted to result in XXX noise effects. Physical receiver mitigation, such as temporary relocation of affected receivers, alternative ventilation and façade sound insulation improvements, have been considered, but are not required as part of the BPO for the Mt Eden Station Main Works.
XXX agreed that prior communication of timeframes for works with the potential to exceed the relevant noise limits was an acceptable means of managing effects. No further activity specific consultation is necessary over and above regular communication (Section 10).
If XXX or affected site representatives request consultation in the future, this SSCNMP will be updated in accordance with CRL designation conditions 37.5, with consideration given to the following:
• The extent to which noise may exceed the designation standards
• The timing and duration of any exceedance
• The type of activity causing any exceedance
• A summary of the communication and consultation with the receiver
• The methods and measures to mitigate effects
• A statement of why they reflect best practicable option
Communications records are contained in the communication and consultation plan (CCP). This SSCNMP will be updated to summarise engagement and any agreed site-specific measures.
C52.1 Introduction
This Site Specific Construction Noise Management Plan (SSCNMP) is for 55 Boston Rd. A SSCNMP is required because construction is predicted to exceed the standards in CRL designation conditions 31.
This SSCNMP has been prepared in accordance with CRL designation condition 37and is Appendix C52 of the Mt Eden Main Works Construction Noise and Vibration Delivery Work Plan (CNV DWP). It is a supplementary document that builds on the CNV DWP, and therefore directly references relevant sections of the CNV DWP to avoid repetition. The objective of this SSCNMP is to detail the best practicable option(s) (BPO) to avoid, remedy or mitigate the identified adverse effects from noise exceedances at 55 Boston Rd
This SSCNMP has been prepared for the Link Alliance and forms part of the Construction Environmental Management Plan (CEMP) for the Mt Eden Station Main Works
C52.2 Engagement
Mt Eden Main Works
Link Alliance representatives XXX met with building representative XXX on XXX date. The matters discussed included:
• An overview of the project
• General programme, demolition, blasting, rock breaking and utilities relocation activities
• Overview of the CNV DWP and this SSCNMP, communications triggers and monitoring
The two-level commercial building features a masonry façade and modern openable windows overlooking the rail corridor and worksite.
CNV DWP Section 7 identifies summarise the potential scale of noise and/or vibration exceedances using the modelling outputs in insert hyperlink to the GIS maps here The relevant stages are summarised below. Activity specific mitigation and management measures are included in Section 9 of the CNV DWP, and referenced in brackets, rather than repeated.
• Retaining walls (refer piling in Section 9.8)
• Excavation (refer concrete and rock breaking in Section 9.7)
• Utilities and drainage (refer concrete cutting and breaking in Sections 9.6 and 9.7)
• Normanby Rd (refer piling in Section 9.8)
The estimated sound level difference across the façade with the windows and doors closed is 25 decibels. The predicted construction noise effects from Table 12.1 in Section 12.1 are predicted to result in XXX noise effects. Physical receiver mitigation, such as temporary relocation of affected receivers, alternative ventilation and façade sound insulation improvements, have been considered, but are not required as part of the BPO for the Mt Eden Station Main Works.
XXX agreed that prior communication of timeframes for works with the potential to exceed the relevant noise limits was an acceptable means of managing effects. No further activity specific consultation is necessary over and above regular communication (Section 10).
If XXX or affected site representatives request consultation in the future, this SSCNMP will be updated in accordance with CRL designation conditions 37.5, with consideration given to the following:
• The extent to which noise may exceed the designation standards
• The timing and duration of any exceedance
• The type of activity causing any exceedance
• A summary of the communication and consultation with the receiver
• The methods and measures to mitigate effects
• A statement of why they reflect best practicable option
Communications records are contained in the communication and consultation plan (CCP). This SSCNMP will be updated to summarise engagement and any agreed site-specific measures.
C53.1 Introduction
This Site Specific Construction Noise and Vibration Management Plan (SSCNVMP) is for 1 Lauder Rd. A SSCNVMP is required because construction is predicted to exceed the standards in CRL designation conditions 31 and 33.
This SSCNVMP has been prepared in accordance with CRL designation condition 37 and 38 and is Appendix C53 of the Mt Eden Main Works Construction Noise and Vibration Delivery Work Plan (CNV DWP). It is a supplementary document that builds on the CNV DWP, and therefore directly references relevant sections of the CNV DWP to avoid repetition. The objective of this SSCNVMP is to detail the best practicable option(s) (BPO) to avoid, remedy or mitigate the identified adverse effects from noise and vibration exceedances at 1 Lauder Rd.
This SSCNVMP has been prepared for the Link Alliance and forms part of the Construction Environmental Management Plan (CEMP) for the Mt Eden Station Main Works.
C53.2 Engagement
Mt Eden Main Works
Link Alliance representatives XXX met with building representative XXX on XXX date. The matters discussed included:
• An overview of the project
• General programme, demolition, blasting, rock breaking and utilities relocation activities
• Overview of the CNV DWP and this SSCNVMP, communications triggers and monitoring
The series of multi-level masonry buildings overlook the rail corridor and worksite, including a large car park, commercial office areas and residential wings.
CNV DWP Section 7 identifies summarise the potential scale of noise and/or vibration exceedances using the modelling outputs in insert hyperlink to the GIS maps here. The relevant stages are summarised below. Activity specific mitigation and management measures are included in Section 9 of the CNV DWP, and referenced in brackets, rather than repeated.
Noise
• Retaining walls (refer piling in Section 9.8)
• Excavation (refer concrete and rock breaking in Section 9.7)
• Utilities and drainage (refer concrete cutting and breaking in Sections 9.6 and 9.7)
The estimated sound level difference across the façades of occupied areas with the windows and doors closed is 25 – 30 decibels. The predicted construction noise effects from Table 12.1 in Section 12.1 are predicted to result in XXX noise effects Physical receiver mitigation, such as temporary relocation of affected receivers, alternative ventilation and façade sound insulation improvements, have been considered, but are not required as part of the BPO for the Mt Eden Station Main Works.
Vibration
• Excavation and piling (refer breaking, piling and compaction in Sections 9.7, 9.8 and 9.10)
The above activities are predicted to have the potential to exceed the commercial cosmetic building damage thresholds. Cosmetic building damage effects are deemed ‘minor damage’ in the DIN Standard (Section 5.2), such as cracking in paint or plasterwork, and can generally be easily repaired. A pre construction building condition survey in accordance with CRL designation condition 46 will ensure any damage is identified for remediation.
XXX agreed that prior communication of timeframes for works with the potential to exceed the relevant noise and vibration limits was an acceptable means of managing effects. No further activity specific consultation is necessary over and above regular communication (Section 10).
If XXX or affected site representatives request consultation in the future, this SSCNVMP will be updated in accordance with CRL designation conditions 37.5 and 38.5, with consideration given to the following:
• The extent to which noise may exceed the designation standards
• The timing and duration of any exceedance
• The type of activity causing any exceedance
• A summary of the communication and consultation with the receiver
• The methods and measures to mitigate effects
• A statement of why they reflect best practicable option
Communications records are contained in the communication and consultation plan (CCP). This SSCNVMP will be updated to summarise engagement and any agreed site-specific measures.
C54.1 Introduction
This Site Specific Construction Noise Management Plan (SSCNMP) is for 2 Akiraho St. A SSCNMP is required because construction is predicted to exceed the standards in CRL designation conditions 31.
This SSCNMP has been prepared in accordance with CRL designation condition 37 and is Appendix C54 of the Mt Eden Main Works Construction Noise and Vibration Delivery Work Plan (CNV DWP). It is a supplementary document that builds on the CNV DWP, and therefore directly references relevant sections of the CNV DWP to avoid repetition. The objective of this SSCNMP is to detail the best practicable option(s) (BPO) to avoid, remedy or mitigate the identified adverse effects from noise exceedances at 2 Akiraho St
This SSCNMP has been prepared for the Link Alliance and forms part of the Construction Environmental Management Plan (CEMP) for the Mt Eden Station Main Works
C54.2 Engagement
Mt Eden Main Works
Link Alliance representatives XXX met with building representative XXX on XXX date. The matters discussed included:
• An overview of the project
• General programme, demolition, blasting, rock breaking and utilities relocation activities
• Overview of the CNV DWP and this SSCNMP, communications triggers and monitoring
This single level villa has a narrow view of Mt Eden Rd and the NAL rail corridor and worksite.
CNV DWP Section 7 identifies summarise the potential scale of noise and/or vibration exceedances using the modelling outputs in insert hyperlink to the GIS maps here The relevant stages are summarised below. Activity specific mitigation and management measures are included in Section 9 of the CNV DWP, and referenced in brackets, rather than repeated.
• Retaining walls (refer piling in Section 9.8)
The estimated sound level difference across the façade with the windows and doors closed is 20 – 25 decibels. The predicted construction noise effects from Table 12.1 in Section 12.1 are predicted to result in XXX noise effects. Physical receiver mitigation, such as temporary relocation of affected receivers, alternative ventilation and façade sound insulation improvements, have been considered, but are not required as part of the BPO for the Mt Eden Station Main Works.
XXX agreed that prior communication of timeframes for works with the potential to exceed the relevant noise limits was an acceptable means of managing effects. No further activity specific consultation is necessary over and above regular communication (Section 10).
If XXX or affected site representatives request consultation in the future, this SSCNMP will be updated in accordance with CRL designation conditions 37.5, with consideration given to the following:
• The extent to which noise may exceed the designation standards
• The timing and duration of any exceedance
• The type of activity causing any exceedance
• A summary of the communication and consultation with the receiver
• The methods and measures to mitigate effects
• A statement of why they reflect best practicable option
Communications records are contained in the communication and consultation plan (CCP). This SSCNMP will be updated to summarise engagement and any agreed site-specific measures.
C55.1 Introduction
This Site Specific Construction Noise Management Plan (SSCNMP) is for 4 Haultain St. A SSCNMP is required because construction is predicted to exceed the standards in CRL designation conditions 31.
This SSCNMP has been prepared in accordance with CRL designation condition 37 and is Appendix C55 of the Mt Eden Main Works Construction Noise and Vibration Delivery Work Plan (CNV DWP). It is a supplementary document that builds on the CNV DWP, and therefore directly references relevant sections of the CNV DWP to avoid repetition. The objective of this SSCNMP is to detail the best practicable option(s) (BPO) to avoid, remedy or mitigate the identified adverse effects from noise exceedances at 4 Haultain St
This SSCNMP has been prepared for the Link Alliance and forms part of the Construction Environmental Management Plan (CEMP) for the Mt Eden Station Main Works
C55.2 Engagement
Mt Eden Main Works
Link Alliance representatives XXX met with building representative XXX on XXX date. The matters discussed included:
• An overview of the project
• General programme, demolition, blasting, rock breaking and utilities relocation activities
• Overview of the CNV DWP and this SSCNMP, communications triggers and monitoring
The modern three-level commercial building features a lightweight façade and openable windows overlooking the rail corridor and worksite.
CNV DWP Section 7 identifies summarise the potential scale of noise and/or vibration exceedances using the modelling outputs in insert hyperlink to the GIS maps here The relevant stages are summarised below. Activity specific mitigation and management measures are included in Section 9 of the CNV DWP, and referenced in brackets, rather than repeated.
• Retaining walls (refer piling in Section 9.8)
• Excavation (refer concrete and rock breaking in Section 9.7)
• Utilities and drainage (refer concrete cutting and breaking in Sections 9.6 and 9.7)
• Fenton and Porters Ave (refer rock breaking and piling in Sections 9.7 and 9.8)
The estimated sound level difference across the façade with the windows and doors closed is 20 – 25 decibels. The predicted construction noise effects from Table 12.1 in Section 12.1 are predicted to result in XXX noise effects. Physical receiver mitigation, such as temporary relocation of affected receivers, alternative ventilation and façade sound insulation improvements, have been considered, but are not required as part of the BPO for the Mt Eden Station Main Works.
XXX agreed that prior communication of timeframes for works with the potential to exceed the relevant noise limits was an acceptable means of managing effects. No further activity specific consultation is necessary over and above regular communication (Section 10).
If XXX or affected site representatives request consultation in the future, this SSCNMP will be updated in accordance with CRL designation conditions 37.5, with consideration given to the following:
• The extent to which noise may exceed the designation standards
• The timing and duration of any exceedance
• The type of activity causing any exceedance
• A summary of the communication and consultation with the receiver
• The methods and measures to mitigate effects
• A statement of why they reflect best practicable option
Communications records are contained in the communication and consultation plan (CCP). This SSCNMP will be updated to summarise engagement and any agreed site-specific measures.
C56.1 Introduction
This Site Specific Construction Noise Management Plan (SSCNMP) is for 6 Haultain St. A SSCNMP is required because construction is predicted to exceed the standards in CRL designation conditions 31.
This SSCNMP has been prepared in accordance with CRL designation condition 37 and is Appendix C56 of the Mt Eden Main Works Construction Noise and Vibration Delivery Work Plan (CNV DWP). It is a supplementary document that builds on the CNV DWP, and therefore directly references relevant sections of the CNV DWP to avoid repetition. The objective of this SSCNMP is to detail the best practicable option(s) (BPO) to avoid, remedy or mitigate the identified adverse effects from noise exceedances at 6 Haultain St
This SSCNMP has been prepared for the Link Alliance and forms part of the Construction Environmental Management Plan (CEMP) for the Mt Eden Station Main Works
C56.2 Engagement
Mt Eden Main Works
Link Alliance representatives XXX met with building representative XXX on XXX date. The matters discussed included:
• An overview of the project
• General programme, demolition, blasting, rock breaking and utilities relocation activities
• Overview of the CNV DWP and this SSCNMP, communications triggers and monitoring
The modern three-level commercial building features a lightweight façade and openable windows overlooking the rail corridor and worksite.
CNV DWP Section 7 identifies summarise the potential scale of noise and/or vibration exceedances using the modelling outputs in insert hyperlink to the GIS maps here The relevant stages are summarised below. Activity specific mitigation and management measures are included in Section 9 of the CNV DWP, and referenced in brackets, rather than repeated.
• Retaining walls (refer piling in Section 9.8)
• Excavation (refer concrete and rock breaking in Section 9.7)
• Utilities and drainage (refer concrete cutting and breaking in Sections 9.6 and 9.7)
• Fenton and Porters Ave (refer rock breaking and piling in Sections 9.7 and 9.8)
The estimated sound level difference across the façade with the windows and doors closed is 20 – 25 decibels. The predicted construction noise effects from Table 12.1 in Section 12.1 are predicted to result in XXX noise effects. Physical receiver mitigation, such as temporary relocation of affected receivers, alternative ventilation and façade sound insulation improvements, have been considered, but are not required as part of the BPO for the Mt Eden Station Main Works.
XXX agreed that prior communication of timeframes for works with the potential to exceed the relevant noise limits was an acceptable means of managing effects. No further activity specific consultation is necessary over and above regular communication (Section 10).
If XXX or affected site representatives request consultation in the future, this SSCNMP will be updated in accordance with CRL designation conditions 37.5, with consideration given to the following:
• The extent to which noise may exceed the designation standards
• The timing and duration of any exceedance
• The type of activity causing any exceedance
• A summary of the communication and consultation with the receiver
• The methods and measures to mitigate effects
• A statement of why they reflect best practicable option
Communications records are contained in the communication and consultation plan (CCP). This SSCNMP will be updated to summarise engagement and any agreed site-specific measures.
C57.1 Introduction
This Site Specific Construction Noise Management Plan (SSCNMP) is for 18 Mt Eden Rd. A SSCNMP is required because construction is predicted to exceed the standards in CRL designation conditions 31.
This SSCNMP has been prepared in accordance with CRL designation condition 37 and is Appendix C57 of the Mt Eden Main Works Construction Noise and Vibration Delivery Work Plan (CNV DWP). It is a supplementary document that builds on the CNV DWP, and therefore directly references relevant sections of the CNV DWP to avoid repetition. The objective of this SSCNMP is to detail the best practicable option(s) (BPO) to avoid, remedy or mitigate the identified adverse effects from noise exceedances at 18 Mt Eden Rd
This SSCNMP has been prepared for the Link Alliance and forms part of the Construction Environmental Management Plan (CEMP) for the Mt Eden Station Main Works
C57.2 Engagement
Mt Eden Main Works
Link Alliance representatives XXX met with building representative XXX on XXX date. The matters discussed included:
• An overview of the project
• General programme, demolition, blasting, rock breaking and utilities relocation activities
• Overview of the CNV DWP and this SSCNMP, communications triggers and monitoring
The single level industrial building is used as an automotive repairs workshop. It is not noise sensitive.
CNV DWP Section 7 identifies summarise the potential scale of noise and/or vibration exceedances using the modelling outputs in insert hyperlink to the GIS maps here The relevant stages are summarised below. Activity specific mitigation and management measures are included in Section 9 of the CNV DWP, and referenced in brackets, rather than repeated.
• Retaining walls (refer piling in Section 9.8)
The estimated sound level difference across the façade with the windows and doors closed is 20 decibels. The predicted construction noise effects from Table 12.1 in Section 12.1 are predicted to result in XXX noise effects. Physical receiver mitigation, such as temporary relocation of affected receivers, alternative ventilation and façade sound insulation improvements, have been considered, but are not required as part of the BPO for the Mt Eden Station Main Works.
XXX agreed that prior communication of timeframes for works with the potential to exceed the relevant noise limits was an acceptable means of managing effects. No further activity specific consultation is necessary over and above regular communication (Section 10).
If XXX or affected site representatives request consultation in the future, this SSCNMP will be updated in accordance with CRL designation conditions 37.5, with consideration given to the following:
• The extent to which noise may exceed the designation standards
• The timing and duration of any exceedance
• The type of activity causing any exceedance
• A summary of the communication and consultation with the receiver
• The methods and measures to mitigate effects
• A statement of why they reflect best practicable option
Communications records are contained in the communication and consultation plan (CCP). This SSCNMP will be updated to summarise engagement and any agreed site-specific measures.
C58.1 Introduction
This Site Specific Construction Noise Management Plan (SSCNMP) is for 20 – 22 Mt Eden Rd A SSCNMP is required because construction is predicted to exceed the standards in CRL designation conditions 31.
This SSCNMP has been prepared in accordance with CRL designation condition 37 and is Appendix C58 of the Mt Eden Main Works Construction Noise and Vibration Delivery Work Plan (CNV DWP). It is a supplementary document that builds on the CNV DWP, and therefore directly references relevant sections of the CNV DWP to avoid repetition. The objective of this SSCNMP is to detail the best practicable option(s) (BPO) to avoid, remedy or mitigate the identified adverse effects from noise exceedances at 20 – 22 Mt Eden Rd
This SSCNMP has been prepared for the Link Alliance and forms part of the Construction Environmental Management Plan (CEMP) for the Mt Eden Station Main Works
C58.2 Engagement
Mt Eden Main Works
Link Alliance representatives XXX met with building representative XXX on XXX date. The matters discussed included:
• An overview of the project
• General programme, demolition, blasting, rock breaking and utilities relocation activities
• Overview of the CNV DWP and this SSCNMP, communications triggers and monitoring
The single level industrial building is used as an automotive repairs workshop. It is not noise sensitive.
CNV DWP Section 7 identifies summarise the potential scale of noise and/or vibration exceedances using the modelling outputs in insert hyperlink to the GIS maps here The relevant stages are summarised below. Activity specific mitigation and management measures are included in Section 9 of the CNV DWP, and referenced in brackets, rather than repeated.
• Retaining walls (refer piling in Section 9.8)
• Excavation (refer concrete and rock breaking in Section 9.7)
The estimated sound level difference across the façade with the windows and doors closed is 20 decibels. The predicted construction noise effects from Table 12.1 in Section 12.1 are predicted to result in XXX noise effects Physical receiver mitigation, such as temporary relocation of affected receivers, alternative ventilation and façade sound insulation improvements, have been considered, but are not required as part of the BPO for the Mt Eden Station Main Works.
XXX agreed that prior communication of timeframes for works with the potential to exceed the relevant noise limits was an acceptable means of managing effects. No further activity specific consultation is necessary over and above regular communication (Section 10).
If XXX or affected site representatives request consultation in the future, this SSCNMP will be updated in accordance with CRL designation conditions 37.5, with consideration given to the following:
• The extent to which noise may exceed the designation standards
• The timing and duration of any exceedance
• The type of activity causing any exceedance
• A summary of the communication and consultation with the receiver
• The methods and measures to mitigate effects
• A statement of why they reflect best practicable option
Communications records are contained in the communication and consultation plan (CCP). This SSCNMP will be updated to summarise engagement and any agreed site-specific measures.
C59.1 Introduction
This Site Specific Construction Noise and Vibration Management Plan (SSCNVMP) is for 103 Mt Eden Rd. A SSCNVMP is required because construction is predicted to exceed the standards in CRL designation conditions 31 and 33.
This SSCNVMP has been prepared in accordance with CRL designation condition 37 and 38 and is Appendix C59 of the Mt Eden Main Works Construction Noise and Vibration Delivery Work Plan (CNV DWP). It is a supplementary document that builds on the CNV DWP, and therefore directly references relevant sections of the CNV DWP to avoid repetition. The objective of this SSCNVMP is to detail the best practicable option(s) (BPO) to avoid, remedy or mitigate the identified adverse effects from noise and vibration exceedances at 103 Mt Eden Rd.
This SSCNVMP has been prepared for the Link Alliance and forms part of the Construction Environmental Management Plan (CEMP) for the Mt Eden Station Main Works.
C59.2 Engagement
Mt Eden Main Works
Link Alliance representatives XXX met with building representative XXX on XXX date. The matters discussed included:
• An overview of the project
• General programme, demolition, blasting, rock breaking and utilities relocation activities
• Overview of the CNV DWP and this SSCNVMP, communications triggers and monitoring
This single level villa fronting Mt Eden Road, and has a distant narrow view of the NAL rail corridor and worksite.
CNV DWP Section 7 identifies summarise the potential scale of noise and/or vibration exceedances using the modelling outputs in insert hyperlink to the GIS maps here. The relevant stages are summarised below. Activity specific mitigation and management measures are included in Section 9 of the CNV DWP, and referenced in brackets, rather than repeated.
Noise
• Retaining walls (refer piling in Section 9.8)
• Station platform (refer piling in Section 9.8)
The estimated sound level difference across the façade with the windows and doors closed is 20 – 25 decibels. The predicted construction noise effects from Table 12.1 in Section 12.1 are predicted to result in XXX noise effects Physical receiver mitigation, such as temporary relocation of affected receivers, alternative ventilation and façade sound insulation improvements, have been considered, but are not required as part of the BPO for the Mt Eden Station Main Works.
Vibration
• Excavation and piling (refer breaking, piling and compaction in Sections 9.7, 9.8 and 9.10)
The above activities are predicted to have the potential to exceed the commercial cosmetic building damage thresholds. Cosmetic building damage effects are deemed ‘minor damage’ in the DIN Standard (Section 5.2), such as cracking in paint or plasterwork, and can generally be easily repaired. A pre construction building condition survey in accordance with CRL designation condition 46 will ensure any damage is identified for remediation.
XXX agreed that prior communication of timeframes for works with the potential to exceed the relevant noise and vibration limits was an acceptable means of managing effects. No further activity specific consultation is necessary over and above regular communication (Section 10).
If XXX or affected site representatives request consultation in the future, this SSCNVMP will be updated in accordance with CRL designation conditions 37.5 and 38.5, with consideration given to the following:
• The extent to which noise may exceed the designation standards
• The timing and duration of any exceedance
• The type of activity causing any exceedance
• A summary of the communication and consultation with the receiver
• The methods and measures to mitigate effects
• A statement of why they reflect best practicable option
Communications records are contained in the communication and consultation plan (CCP). This SSCNVMP will be updated to summarise engagement and any agreed site-specific measures.
C60.1 Introduction
This Site Specific Construction Noise and Vibration Management Plan (SSCNVMP) is for 8 Ruru St It is required to satisfy CRL Conditions 16 and 39 because the building is considered to be a “notable noise and vibration receiver” within 100m of the worksite
This SSCNVMP has been prepared in accordance with CRL designation condition 39 and is Appendix C60 of the Mt Eden Main Works Construction Noise and Vibration Delivery Work Plan (CNV DWP). It is a supplementary document that builds on the CNV DWP, and therefore directly references relevant sections of the CNV DWP to avoid repetition. The objective of this SSCNVMP is to detail the best practicable option(s) (BPO) to avoid, remedy or mitigate the identified adverse effects from noise and vibration exceedances at 8 Ruru St
This SSCNVMP has been prepared for the Link Alliance and forms part of the Construction Environmental Management Plan (CEMP) for the Mt Eden Station Main Works
C60.2 Engagement
Mt Eden Main Works
Link Alliance representatives Thibaut L'Hopital, Annabelle Wrigley, Craig Campbell and Craig Fitzgerald met with Woodcut Productions representative Aaron Christie on 11 June 2020. The meeting was initiated in response to a noise complaint on 26 May 2020. The complaint related to noise generated from trucks accessing the worksite from Ruru Street. The truck noise was affecting studio operations.
The matters discussed included:
• An overview of the project
• Truck movements on Ruru Street (key concern) and blasting / breaking activities on site
• Overview of the CNV DWP and this SSCNVMP, communications triggers and monitoring
This double level villa has a narrow view of the worksite from residential areas fronting Ruru St. However, the studio and voice booth are located in the basement, accessed from the rear of the building, which is relatively well screened from site noise. The studios are used for speech recording using microphones, as well as audio mixing and editing. The studio is not used for recording large groups or musicians.
CNV DWP Section 7 identifies summarise the potential scale of noise and/or vibration levels using the modelling outputs in insert hyperlink to the GIS maps here. There are no predicted exceedances at 8 Ruru Street. The noise from truck movements on Ruru St (a public road) is not a compliance issue, but is a noise effects issue.
Mr L'Hopital advised that trucks would start using the Ngahura St for site access next week, dramatically reducing the truck movements on Ruru Street. This addressed the key concern. No offers of relocation or façade mitigation were made, or considered necessary, to address the truck noise effects.
Mr Fitzgerald advised that blasting and rock breaking activities were the other activities most likely to affect studio activities. The known timing of the blast events (10.32am and/or 2.32pm) was considered suitable to avoid associated effects. If residual rock breaking was an issue, Mr Christie would be in contact and further evaluation of the studio sensitivity would
be undertaken. In such a case, Thibaut L'Hopital acknowledged that LA would try to be accommodating with the timing of those works.
Mr Christie agreed that prior communication of timeframes for works with the potential to exceed the relevant noise limits was an acceptable means of managing effects. No further activity specific consultation is necessary over and above regular communication (Section 10).
If Mr Christie or affected site representatives request consultation in the future, this SSCNVMP will be updated in accordance with CRL designation conditions 39.4, with consideration given to the following:
• The extent to which noise may exceed the designation standards
• The timing and duration of any exceedance
• The type of activity causing any exceedance
• A summary of the communication and consultation with the receiver
• The methods and measures to mitigate effects
• A statement of why they reflect best practicable option
Communications records are contained in the communication and consultation plan (CCP). This SSCNVMP will be updated to summarise engagement and any agreed site-specific measures.
C61.1 Introduction
This Site Specific Construction Noise Management Plan (SSCNMP) is for 4 Boston Rd. A SSCNMP is required because construction is predicted to exceed the standards in CRL designation conditions 31.
This SSCNMP has been prepared in accordance with CRL designation condition 37 and is Appendix C61 of the Mt Eden Main Works Construction Noise and Vibration Delivery Work Plan (CNV DWP). It is a supplementary document that builds on the CNV DWP, and therefore directly references relevant sections of the CNV DWP to avoid repetition. The objective of this SSCNMP is to detail the best practicable option(s) (BPO) to avoid, remedy or mitigate the identified adverse effects from noise exceedances at 4 Boston Rd
This SSCNMP has been prepared for the Link Alliance and forms part of the Construction Environmental Management Plan (CEMP) for the Mt Eden Station Main Works
C61.2 Engagement
Mt Eden Main Works
Link Alliance representatives XXX met with building representative XXX on XXX date. The matters discussed included:
• An overview of the project
• General programme, demolition, blasting, rock breaking and utilities relocation activities
• Overview of the CNV DWP and this SSCNMP, communications triggers and monitoring
The two-level industrial building features a masonry façade and openable windows fronting Water St, with a narrow view of the rail corridor and worksite.
CNV DWP Section 7 identifies summarise the potential scale of noise and/or vibration exceedances using the modelling outputs in insert hyperlink to the GIS maps here The relevant stages are summarised below. Activity specific mitigation and management measures are included in Section 9 of the CNV DWP, and referenced in brackets, rather than repeated.
• Retaining walls (refer piling in Section 9.8)
• Excavation (refer concrete and rock breaking in Section 9.7)
The estimated sound level difference across the façade with the windows and doors closed is 25 – 30 decibels. The predicted construction noise effects from Table 12.1 in Section 12.1 are predicted to result in XXX noise effects Physical receiver mitigation, such as temporary relocation of affected receivers, alternative ventilation and façade sound insulation improvements, have been considered, but are not required as part of the BPO for the Mt Eden Station Main Works.
XXX agreed that prior communication of timeframes for works with the potential to exceed the relevant noise limits was an acceptable means of managing effects. No further activity specific consultation is necessary over and above regular communication (Section 10).
If XXX or affected site representatives request consultation in the future, this SSCNMP will be updated in accordance with CRL designation conditions 37.5, with consideration given to the following:
• The extent to which noise may exceed the designation standards
• The timing and duration of any exceedance
• The type of activity causing any exceedance
• A summary of the communication and consultation with the receiver
• The methods and measures to mitigate effects
• A statement of why they reflect best practicable option
Communications records are contained in the communication and consultation plan (CCP). This SSCNMP will be updated to summarise engagement and any agreed site-specific measures.
C62.1 Introduction
This Site Specific Construction Noise Management Plan (SSCNMP) is for 69 Boston Rd. A SSCNMP is required because construction is predicted to exceed the standards in CRL designation conditions 31.
This SSCNMP has been prepared in accordance with CRL designation condition 37 and is Appendix C62 of the Mt Eden Main Works Construction Noise and Vibration Delivery Work Plan (CNV DWP). It is a supplementary document that builds on the CNV DWP, and therefore directly references relevant sections of the CNV DWP to avoid repetition. The objective of this SSCNMP is to detail the best practicable option(s) (BPO) to avoid, remedy or mitigate the identified adverse effects from noise exceedances at 69 Boston Rd
This SSCNMP has been prepared for the Link Alliance and forms part of the Construction Environmental Management Plan (CEMP) for the Mt Eden Station Main Works
C62.2
Link Alliance representatives XXX met with building representative XXX on XXX date. The matters discussed included:
• An overview of the project
• General programme, demolition, blasting, rock breaking and utilities relocation activities
• Overview of the CNV DWP and this SSCNMP, communications triggers and monitoring
The two-level commercial building openable windows fronting Boston Rd, with a narrow view of the rail corridor and worksite.
CNV DWP Section 7 identifies summarise the potential scale of noise and/or vibration exceedances using the modelling outputs in insert hyperlink to the GIS maps here The relevant stages are summarised below. Activity specific mitigation and management measures are included in Section 9 of the CNV DWP, and referenced in brackets, rather than repeated.
• Utilities and drainage (refer concrete cutting and breaking in Sections 9.6 and 9.7)
The estimated sound level difference across the façade with the windows and doors closed is 25 decibels. The predicted construction noise effects from Table 12.1 in Section 12.1 are predicted to result in XXX noise effects. Physical receiver mitigation, such as temporary relocation of affected receivers, alternative ventilation and façade sound insulation improvements, have been considered, but are not required as part of the BPO for the Mt Eden Station Main Works.
XXX agreed that prior communication of timeframes for works with the potential to exceed the relevant noise limits was an acceptable means of managing effects. No further activity specific consultation is necessary over and above regular communication (Section 10).
If XXX or affected site representatives request consultation in the future, this SSCNMP will be updated in accordance with CRL designation conditions 37.5, with consideration given to the following:
• The extent to which noise may exceed the designation standards
• The timing and duration of any exceedance
• The type of activity causing any exceedance
• A summary of the communication and consultation with the receiver
• The methods and measures to mitigate effects
• A statement of why they reflect best practicable option
Communications records are contained in the communication and consultation plan (CCP). This SSCNMP will be updated to summarise engagement and any agreed site-specific measures.
C63.1 Introduction
This Site Specific Construction Noise Management Plan (SSCNMP) is for 31 Boston Rd. A SSCNMP is required because construction is predicted to exceed the standards in CRL designation conditions 31.
This SSCNMP has been prepared in accordance with CRL designation condition 37 and is Appendix C63 of the Mt Eden Main Works Construction Noise and Vibration Delivery Work Plan (CNV DWP). It is a supplementary document that builds on the CNV DWP, and therefore directly references relevant sections of the CNV DWP to avoid repetition. The objective of this SSCNMP is to detail the best practicable option(s) (BPO) to avoid, remedy or mitigate the identified adverse effects from noise exceedances at 31 Boston Rd
This SSCNMP has been prepared for the Link Alliance and forms part of the Construction Environmental Management Plan (CEMP) for the Mt Eden Station Main Works
C63.2 Engagement
Mt Eden Main Works
Link Alliance representatives XXX met with building representative XXX on XXX date. The matters discussed included:
• An overview of the project
• General programme, demolition, blasting, rock breaking and utilities relocation activities
• Overview of the CNV DWP and this SSCNMP, communications triggers and monitoring
The two-level industrial building features a masonry façade and openable windows fronting Boston Rd, the rail corridor and worksite.
CNV DWP Section 7 identifies summarise the potential scale of noise and/or vibration exceedances using the modelling outputs in insert hyperlink to the GIS maps here The relevant stages are summarised below. Activity specific mitigation and management measures are included in Section 9 of the CNV DWP, and referenced in brackets, rather than repeated.
• Retaining walls (refer piling in Section 9.8)
The estimated sound level difference across the façade with the windows and doors closed is 25 – 30 decibels. The predicted construction noise effects from Table 12.1 in Section 12.1 are predicted to result in XXX noise effects. Physical receiver mitigation, such as temporary relocation of affected receivers, alternative ventilation and façade sound insulation improvements, have been considered, but are not required as part of the BPO for the Mt Eden Station Main Works.
XXX agreed that prior communication of timeframes for works with the potential to exceed the relevant noise limits was an acceptable means of managing effects. No further activity specific consultation is necessary over and above regular communication (Section 10).
If XXX or affected site representatives request consultation in the future, this SSCNMP will be updated in accordance with CRL designation conditions 37.5, with consideration given to the following:
• The extent to which noise may exceed the designation standards
• The timing and duration of any exceedance
• The type of activity causing any exceedance
• A summary of the communication and consultation with the receiver
• The methods and measures to mitigate effects
• A statement of why they reflect best practicable option
Communications records are contained in the communication and consultation plan (CCP). This SSCNMP will be updated to summarise engagement and any agreed site-specific measures.
C64.1 Introduction
This Site Specific Construction Noise Management Plan (SSCNMP) is for 33 Boston Rd. A SSCNMP is required because construction is predicted to exceed the standards in CRL designation conditions 31.
This SSCNMP has been prepared in accordance with CRL designation condition 37 and is Appendix C64 of the Mt Eden Main Works Construction Noise and Vibration Delivery Work Plan (CNV DWP). It is a supplementary document that builds on the CNV DWP, and therefore directly references relevant sections of the CNV DWP to avoid repetition. The objective of this SSCNMP is to detail the best practicable option(s) (BPO) to avoid, remedy or mitigate the identified adverse effects from noise exceedances at 33 Boston Rd
This SSCNMP has been prepared for the Link Alliance and forms part of the Construction Environmental Management Plan (CEMP) for the Mt Eden Station Main Works
C64.2 Engagement
Mt Eden Main Works
Link Alliance representatives XXX met with building representative XXX on XXX date. The matters discussed included:
• An overview of the project
• General programme, demolition, blasting, rock breaking and utilities relocation activities
• Overview of the CNV DWP and this SSCNVMP, communications triggers and monitoring
The two-level industrial building features a masonry façade and openable windows fronting Boston Rd, the rail corridor and worksite.
CNV DWP Section 7 identifies summarise the potential scale of noise and/or vibration exceedances using the modelling outputs in insert hyperlink to the GIS maps here The relevant stages are summarised below. Activity specific mitigation and management measures are included in Section 9 of the CNV DWP, and referenced in brackets, rather than repeated.
• Retaining walls (refer piling in Section 9.8)
The estimated sound level difference across the façade with the windows and doors closed is 25 – 30 decibels. The predicted construction noise effects from Table 12.1 in Section 12.1 are predicted to result in XXX noise effects. Physical receiver mitigation, such as temporary relocation of affected receivers, alternative ventilation and façade sound insulation improvements, have been considered, but are not required as part of the BPO for the Mt Eden Station Main Works.
XXX agreed that prior communication of timeframes for works with the potential to exceed the relevant noise limits was an acceptable means of managing effects. No further activity specific consultation is necessary over and above regular communication (Section 10).
If XXX or affected site representatives request consultation in the future, this SSCNMP will be updated in accordance with CRL designation conditions 37.5, with consideration given to the following:
• The extent to which noise may exceed the designation standards
• The timing and duration of any exceedance
• The type of activity causing any exceedance
• A summary of the communication and consultation with the receiver
• The methods and measures to mitigate effects
• A statement of why they reflect best practicable option
Communications records are contained in the communication and consultation plan (CCP). This SSCNMP will be updated to summarise engagement and any agreed site-specific measures.
C65.1 Introduction
This Site Specific Construction Noise Management Plan (SSCNMP) is for 35 Boston Rd. A SSCNMP is required because construction is predicted to exceed the standards in CRL designation conditions 31.
This SSCNMP has been prepared in accordance with CRL designation condition 37 and is Appendix C65 of the Mt Eden Main Works Construction Noise and Vibration Delivery Work Plan (CNV DWP). It is a supplementary document that builds on the CNV DWP, and therefore directly references relevant sections of the CNV DWP to avoid repetition. The objective of this SSCNMP is to detail the best practicable option(s) (BPO) to avoid, remedy or mitigate the identified adverse effects from noise exceedances at 35 Boston Rd
This SSCNMP has been prepared for the Link Alliance and forms part of the Construction Environmental Management Plan (CEMP) for the Mt Eden Station Main Works
C65.2 Engagement
Mt Eden Main Works
Link Alliance representatives XXX met with building representative XXX on XXX date. The matters discussed included:
• An overview of the project
• General programme, demolition, blasting, rock breaking and utilities relocation activities
• Overview of the CNV DWP and this SSCNMP, communications triggers and monitoring
The two-level industrial building features a masonry façade and openable windows fronting Boston Rd, the rail corridor and worksite.
CNV DWP Section 7 identifies summarise the potential scale of noise and/or vibration exceedances using the modelling outputs in insert hyperlink to the GIS maps here The relevant stages are summarised below. Activity specific mitigation and management measures are included in Section 9 of the CNV DWP, and referenced in brackets, rather than repeated.
• Retaining walls (refer piling in Section 9.8)
The estimated sound level difference across the façade with the windows and doors closed is 25 – 30 decibels. The predicted construction noise effects from Table 12.1 in Section 12.1 are predicted to result in XXX noise effects. Physical receiver mitigation, such as temporary relocation of affected receivers, alternative ventilation and façade sound insulation improvements, have been considered, but are not required as part of the BPO for the Mt Eden Station Main Works.
XXX agreed that prior communication of timeframes for works with the potential to exceed the relevant noise limits was an acceptable means of managing effects. No further activity specific consultation is necessary over and above regular communication (Section 10).
If XXX or affected site representatives request consultation in the future, this SSCNMP will be updated in accordance with CRL designation conditions 37.5, with consideration given to the following:
• The extent to which noise may exceed the designation standards
• The timing and duration of any exceedance
• The type of activity causing any exceedance
• A summary of the communication and consultation with the receiver
• The methods and measures to mitigate effects
• A statement of why they reflect best practicable option
Communications records are contained in the communication and consultation plan (CCP). This SSCNMP will be updated to summarise engagement and any agreed site-specific measures.
C66.1 Introduction
This Site Specific Construction Noise Management Plan (SSCNMP) is for 39 Boston Rd. A SSCNMP is required because construction is predicted to exceed the standards in CRL designation conditions 31.
This SSCNMP has been prepared in accordance with CRL designation condition 37 and is Appendix C66 of the Mt Eden Main Works Construction Noise and Vibration Delivery Work Plan (CNV DWP). It is a supplementary document that builds on the CNV DWP, and therefore directly references relevant sections of the CNV DWP to avoid repetition. The objective of this SSCNMP is to detail the best practicable option(s) (BPO) to avoid, remedy or mitigate the identified adverse effects from noise exceedances at 39 Boston Rd
This SSCNMP has been prepared for the Link Alliance and forms part of the Construction Environmental Management Plan (CEMP) for the Mt Eden Station Main Works. It builds on the SSCVMP previously prepared and implemented for the Mt Eden Stormwater Realignment Works.
C66.2
Lloyd Chen (MBJV) and Craig Fitzgerald (Marshall Day Acoustics) met with tenant representative Sara Beasley (Seventh Day Studio) on 20 April 2018. The matters discussed in both meetings included an overview of the project, general project programme, sheet piling, overview of the CNV DWP and this SSCNMP, communications triggers and protocol, building layout and identification of noise and vibration sensitive spaces.
The double level building is as a tattoo studio. It features social, office and studio spaces in a largely open plan industrial occupancy. Tattooing machinery is a relatively loud activity and high levels of ambient music are a normal feature, therefore, their activities are not considered noise sensitive.
Of particular relevance to this SSCVMP is the sheet piling associated with GPT1. It was noted that the predicted noise levels marginally exceeded the noise limits, but based on their façade construction and activity sensitivity, was not expected to result in disturbance (noting that vibration may also be perceptible during this activity). The occupied periods for the studio are Tuesday to Saturday, from 11am on each day. It was explained that timing the sheet piling for Saturday(s) appeared to be there preferred option for most proximate receivers and that Sundays were difficult to justify for a range of compliance and effects reasons. The main concern related to parking rather than noise or vibration.
The building at 39 Boston is a commercial building with concrete block walls and limited sealed glazing. The estimated sound level difference across the façade with the windows and doors closed is 30 decibels. On this basis, the predicted construction noise effects can be determined from Table 7 in Section 8.1.2 of the Mt Eden Stormwater Realignment CNV DWP
MS Beasley indicated that prior communication of timeframes for works with the potential to exceed the relevant noise limits was an acceptable means of managing effects. No further activity specific consultation is necessary over and above regular communication. This is to be satisfied through monthly email updates, supplemented by activity specific emails in advance of identified works.
Link Alliance representatives XXX met with building representative XXX on XXX date. The matters discussed included:
• An overview of the project
• General programme, demolition, blasting, rock breaking and utilities relocation activities
• Overview of the CNV DWP and this SSCNMP, communications triggers and monitoring
The two-level industrial building features a masonry façade and openable windows fronting Boston Rd, the rail corridor and worksite.
CNV DWP Section 7 identifies summarise the potential scale of noise and/or vibration exceedances using the modelling outputs in insert hyperlink to the GIS maps here. The relevant stages are summarised below. Activity specific mitigation and management measures are included in Section 9 of the CNV DWP, and referenced in brackets, rather than repeated.
• Retaining walls (refer piling in Section 9.8)
• Excavation (refer concrete and rock breaking in Section 9.7)
• Utilities and drainage (refer concrete cutting and breaking in Sections 9.6 and 9.7)
The estimated sound level difference across the façade with the windows and doors closed is 30 decibels. The predicted construction noise effects from Table 12.1 in Section 12.1 are predicted to result in XXX noise effects Physical receiver mitigation, such as temporary relocation of affected receivers, alternative ventilation and façade sound insulation improvements, have been considered, but are not required as part of the BPO for the Mt Eden Station Main Works.
XXX agreed that prior communication of timeframes for works with the potential to exceed the relevant noise limits was an acceptable means of managing effects. No further activity specific consultation is necessary over and above regular communication (Section 10).
If XXX or affected site representatives request consultation in the future, this SSCNMP will be updated in accordance with CRL designation conditions 37.5, with consideration given to the following:
• The extent to which noise may exceed the designation standards
• The timing and duration of any exceedance
• The type of activity causing any exceedance
• A summary of the communication and consultation with the receiver
• The methods and measures to mitigate effects
• A statement of why they reflect best practicable option
Communications records are contained in the communication and consultation plan (CCP). This SSCNMP will be updated to summarise engagement and any agreed site-specific measures.
C67.1 Introduction
This Site Specific Construction Noise Management Plan (SSCNMP) is for 41 Boston Rd. A SSCNMP is required because construction is predicted to exceed the standards in CRL designation conditions 31
This SSCNMP has been prepared in accordance with CRL designation condition 37 and is Appendix C67 of the Mt Eden Main Works Construction Noise and Vibration Delivery Work Plan (CNV DWP). It is a supplementary document that builds on the CNV DWP, and therefore directly references relevant sections of the CNV DWP to avoid repetition. The objective of this SSCNMP is to detail the best practicable option(s) (BPO) to avoid, remedy or mitigate the identified adverse effects from noise exceedances at 41 Boston Rd
This SSCNMP has been prepared for the Link Alliance and forms part of the Construction Environmental Management Plan (CEMP) for the Mt Eden Station Main Works. It builds on the SSCNMP previously prepared and implemented for the Mt Eden Stormwater Realignment Works.
C67.2 Engagement
Mt Eden C6 Stormwater Realignment Works
Graeme Inglis (MBJV) and Craig Fitzgerald (Marshall Day Acoustics) met with iLabb representative Jeremy Johnston on 10 April 2018. The matters discussed in both meetings included an overview of the project, general project programme, sheet piling, overview of the CNV DWP and this SSCNMP, communications triggers and protocol, building layout and identification of noise and vibration sensitive spaces.
The south façade of iLabb includes office areas and a retail shop with modern façade and extensive glazing. The warehouse and communal areas within the centre and rear of the building have simple long run steel roofing with no insulation or separate ceiling.
The building is constructed from a mix of masonry and timber framed walls, roller doors, sealed glazing and a skillion roof. The estimated sound level difference across the façade with the windows and doors closed is 25 decibels for the retail and office areas. On this basis, the predicted construction noise effects can be determined from Table 7 in Section 8.1.2 of the Mt Eden Stormwater Realignment CNV DWP The warehouse areas are not noise sensitive.
Mr Johnston indicated that prior communication of timeframes for works with the potential to exceed the relevant noise limits was an acceptable means of managing effects. No further activity specific consultation is necessary over and above regular communication. This is to be satisfied through monthly email updates, supplemented by activity specific emails in advance of identified works.
Link Alliance representatives XXX met with building representative XXX on XXX date. The matters discussed included:
• An overview of the project
• General programme, demolition, blasting, rock breaking and utilities relocation activities
• Overview of the CNV DWP and this SSCNMP, communications triggers and monitoring
The two-level industrial building features extensive glazing and roller door to shop front and warehouse areas, and a lightweight façade with openable windows in office areas fronting Boston Rd, the rail corridor and worksite.
CNV DWP Section 7 identifies summarise the potential scale of noise and/or vibration exceedances using the modelling outputs in insert hyperlink to the GIS maps here. The relevant stages are summarised below. Activity specific mitigation and management measures are included in Section 9 of the CNV DWP, and referenced in brackets, rather than repeated
• Retaining walls (refer piling in Section 9.8)
• Excavation (refer concrete and rock breaking in Section 9.7)
• Utilities and drainage (refer concrete cutting and breaking in Sections 9.6 and 9.7)
The estimated sound level difference across the façade with the windows and doors closed is 25 decibels. The predicted construction noise effects from Table 12.1 in Section 12.1 are predicted to result in XXX noise effects. Physical receiver mitigation, such as temporary relocation of affected receivers, alternative ventilation and façade sound insulation improvements, have been considered, but are not required as part of the BPO for the Mt Eden Station Main Works.
XXX agreed that prior communication of timeframes for works with the potential to exceed the relevant noise limits was an acceptable means of managing effects. No further activity specific consultation is necessary over and above regular communication (Section 10).
If XXX or affected site representatives request consultation in the future, this SSCNMP will be updated in accordance with CRL designation conditions 37.5, with consideration given to the following:
• The extent to which noise may exceed the designation standards
• The timing and duration of any exceedance
• The type of activity causing any exceedance
• A summary of the communication and consultation with the receiver
• The methods and measures to mitigate effects
• A statement of why they reflect best practicable option
Communications records are contained in the communication and consultation plan (CCP). This SSCNMP will be updated to summarise engagement and any agreed site-specific measures.
C68.1 Introduction
This Site Specific Construction Noise Management Plan (SSCNMP) is for 43 Boston Rd. A SSCNMP is required because construction is predicted to exceed the standards in CRL designation conditions 31.
This SSCNMP has been prepared in accordance with CRL designation condition 37 and is Appendix C68 of the Mt Eden Main Works Construction Noise and Vibration Delivery Work Plan (CNV DWP). It is a supplementary document that builds on the CNV DWP, and therefore directly references relevant sections of the CNV DWP to avoid repetition. The objective of this SSCNMP is to detail the best practicable option(s) (BPO) to avoid, remedy or mitigate the identified adverse effects from noise exceedances at 43 Boston Rd
This SSCNMP has been prepared for the Link Alliance and forms part of the Construction Environmental Management Plan (CEMP) for the Mt Eden Station Main Works. It builds on the SSCNMP previously prepared and implemented for the Mt Eden Stormwater Realignment Works.
C68.2 Engagement
Graeme Inglis (MBJV) and Craig Fitzgerald (Marshall Day Acoustics) met with Boxing Central representative Dean Evans on 16 April 2018. The matters discussed in both meetings included an overview of the project, general project programme, sheet piling, overview of the CNV DWP and this SSCNMP, communications triggers and protocol, building layout and identification of noise and vibration sensitive spaces.
The Boxing Central gym features a large open plan gym on the ground floor, extending from the front façade to the rear of the property. Mr Evans said the activities are not noise or vibration sensitive. In support of this, it was identified that the gym is open to the street, music was playing moderately loudly and instruction was generally one-on-one (close distance). Classes that involve instruction to more than one person are scheduled at 6am –7am, 12.30pm – 1.30pm and 5.30pm – 6.30pm weekdays. Mr Inglis noted that the timing of sheet piling and concrete cutting activities could be undertaken to avoid the class periods to reduce noise and vibration related amenity effects. Alternatively, Mr Evans suggested the classes could be relocated to the rear of the gym further away from the construction activities. Furthermore, a single office on the south façade on the first floor level is used by Mr Evans wife intermittently and she could work from home if required.
The building is constructed from a mix of masonry and timber framed walls, roller doors, sealed glazing and a skillion roof. The estimated sound level difference across the façade with the windows and doors closed is 25 decibels for the retail and office areas. On this basis, the predicted construction noise effects can be determined from Table 7 in Section 8.1.2 of the Mt Eden Stormwater Realignment CNV DWP. The gym and warehouse areas are not noise sensitive.
Mr Evans indicated that prior communication of timeframes for works with the potential to exceed the relevant noise limits was an acceptable means of managing effects. No further activity specific consultation is necessary over and above regular communication. This is to be satisfied through monthly email updates, supplemented by activity specific emails in advance of identified works.
Link Alliance representatives XXX met with building representative XXX on XXX date. The matters discussed included:
• An overview of the project
• General programme, demolition, blasting, rock breaking and utilities relocation activities
• Overview of the CNV DWP and this SSCNMP, communications triggers and monitoring
The single-level industrial warehouse houses a gymnasium with roller doors opening to Boston Rd, the rail corridor and worksite. Retail and office areas are further back from the Boston Road frontage.
CNV DWP Section 7 identifies summarise the potential scale of noise and/or vibration exceedances using the modelling outputs in insert hyperlink to the GIS maps here. The relevant stages are summarised below. Activity specific mitigation and management measures are included in Section 9 of the CNV DWP, and referenced in brackets, rather than repeated.
• Retaining walls (refer piling in Section 9.8)
• Excavation (refer concrete and rock breaking in Section 9.7)
• Utilities and drainage (refer concrete cutting and breaking in Sections 9.6 and 9.7)
The estimated sound level difference across the façade with the windows and doors closed is 25 decibels for the retail and office areas. The predicted construction noise effects from Table 12.1 in Section 12.1 are predicted to result in XXX noise effects Physical receiver mitigation, such as temporary relocation of affected receivers, alternative ventilation and façade sound insulation improvements, have been considered, but are not required as part of the BPO for the Mt Eden Station Main Works.
XXX agreed that prior communication of timeframes for works with the potential to exceed the relevant noise limits was an acceptable means of managing effects. No further activity specific consultation is necessary over and above regular communication (Section 10).
If XXX or affected site representatives request consultation in the future, this SSCNMP will be updated in accordance with CRL designation conditions 37.5, with consideration given to the following:
• The extent to which noise may exceed the designation standards
• The timing and duration of any exceedance
• The type of activity causing any exceedance
• A summary of the communication and consultation with the receiver
• The methods and measures to mitigate effects
• A statement of why they reflect best practicable option
Communications records are contained in the communication and consultation plan (CCP). This SSCNMP will be updated to summarise engagement and any agreed site-specific measures.
C69.1 Introduction
This Site Specific Construction Noise Management Plan (SSCNMP) is for 45 – 53 Boston Rd. A SSCNMP is required because construction is predicted to exceed the standards in CRL designation conditions 31.
This SSCNMP has been prepared in accordance with CRL designation condition 37 and is Appendix C69 of the Mt Eden Main Works Construction Noise and Vibration Delivery Work Plan (CNV DWP). It is a supplementary document that builds on the CNV DWP, and therefore directly references relevant sections of the CNV DWP to avoid repetition. The objective of this SSCNMP is to detail the best practicable option(s) (BPO) to avoid, remedy or mitigate the identified adverse effects from noise exceedances at 45 – 53 Boston Rd
This SSCNMP has been prepared for the Link Alliance and forms part of the Construction Environmental Management Plan (CEMP) for the Mt Eden Station Main Works. It builds on the SSCNMP previously prepared and implemented for the Mt Eden Stormwater Realignment Works.
C69.2
Graeme Inglis (MBJV) and Craig Fitzgerald (Marshall Day Acoustics) met with Warren Goodall (J. A. Russell Branch Manager) and their architect Malcolm Ewart (MOAI) on 16 April 2018. The matters discussed in both meetings included an overview of the project, general project programme, sheet piling, overview of the CNV DWP and this SSCNMP, communications triggers and protocol, building layout and identification of noise and vibration sensitive spaces.
The eastern most building on this site is approximately 4-5m from the closest edge of the GPT2 site and was the focus of the noise and vibration effects. The modern masonry building was built in approximately 2004. The street level basement includes a pump and generator room beyond which is car parking. The first-floor level includes a showroom on the street façade, behind which is office and retail areas. The second level is open plan and enclosed office spaces.
Potential vibration from sheet piling activities was the primary focus of the discussions. The vibration levels are predicted to comply with the cosmetic building damage thresholds for a commercial building. However, occupants would likely find the noise and vibration levels uncomfortable and potentially disconcerting.
Mr Goodall advised that the buildings were fully occupied during weekdays, but only retail areas in other buildings were occupied on Saturdays. Therefore, Mr Inglis and Mr Goodall considered that timing the sheet piling activities on Saturdays would avoid noise and vibration related amenity effects. Furthermore, and despite predicted compliance with the cosmetic building damage vibration limits, a pre construction building condition survey would be offered to provide confidence that any attributable damage would be captured and enable it to be remedied by MBJV accordingly. Lastly, vibration monitoring would be undertaken to verify the predictions and enable the implementation of adaptive management measures if required.
Mark Merrie (MBJV), Jenny Chu (CRLL), Aidan Kirby-McLeod (CRLL) and Craig Fitzgerald (Marshall Day Acoustics), met with Shane Smales (J.A. Russell), Adam Parker (J.A. Russell) and
Rory Bishop (Alta) on 26 June 2018 to discuss their vibration complaint. The complaint related to GPT1 sheet piling works and their concerns about similar effects from the future GPT2 sheet piling works. In summary:
• Prior to the meeting commencing, Mr Parker identified the server room in the north west corner of the level 1 office area (a floor plan was provided subsequently). The server is in metal racks resting directly on a raised floor above the level 1 concrete floor. A UPS and telephone system is also in the server room on rubber mounts.
• The meeting commenced with Mr Smales and Mr Parker providing a summary of their complaint, which related to vibration amenity effects for occupants during sheet piling works and concerns about the vibration effects on their server.
• Mark Merrie provided a summary of the sheet piling works. It was noted that unforeseen issues extended sheet piling from 1-2 days to more than 10 days. As a result, the works were undertaken when the J.A. Russell office was occupied.
• Craig Fitzgerald provided a summary of sheet piling vibration monitoring, showing that the cosmetic building damage vibration limits were complied with, but acknowledged that the vibration levels of 2 – 3 mm/s PPV would be uncomfortable and potentially disconcerting. The GPT2 sheet piling works would be closer and the vibration levels higher. Cosmetic building damage vibration limits are predicted to be complied with, however, a pre construction building condition survey has been undertaken regardless. It is highly recommended that the works be undertaken on weekends when the building is largely unoccupied.
• Vibration sensitivity for IBM servers is provided in a separate MDA memo 0016. Construction vibration will be monitored on the server floor (in addition to the building foundations and top floor) during further vibration monitoring of sheet piling to ensure compliance. This will occur during GPT1 sheet pile extraction. MBJV to provide 1 week notice to JA Russell for GPT1 sheet pile extraction.
• Review noise and vibration monitoring results from GPT1 and determine the construction methodology response required for GPT2. The methodology planned test pile for GPT 2 will be pre-drilled and then the sheet pile will be vibrated in using the proposed plant currently on site.
• Noise and vibration monitoring will also be undertaken during a test pile for GPT 2 at a location that is closest to the façade of JA Russell (worst case scenario).
• The group will review the N&V monitoring results and determine the construction methodology response required.
• At this stage MBJV targets to finish GPT 1 by end July 2018 (weather dependent), then demobilise and wait till Oct 2018 to recommence with GPT 2 and 3 such that weather effects on productivity can be mitigated.
• Aidan will discuss with Council regarding working on Sunday (conditions do not allow piling works on Sunday)
The building at 47 – 49 Boston Road is a commercial building occupied by offices and a retail shop. The building is of masonry construction and sealed glazing. The estimated sound level difference across the façade with the windows and doors closed is 30 decibels. On this basis,
the predicted construction noise effects can be determined from Table 7 in Section 8.1.2 of the Mt Eden Stormwater Realignment CNV DWP
Mr Goodall indicated that prior communication of timeframes for works with the potential to exceed the relevant noise limits was an acceptable means of managing effects. Apart from the matters addressed above, no further activity specific consultation is necessary over and above regular communication. This is to be satisfied through monthly email updates, supplemented by activity specific emails in advance of identified works.
Link Alliance representatives XXX met with building representative XXX on XXX date. The matters discussed included:
• An overview of the project
• General programme, demolition, blasting, rock breaking and utilities relocation activities
• Overview of the CNV DWP and this SSCNMP, communications triggers and monitoring
The two to three-level commercial and industrial buildings feature a mixture of masonry and lightweight façades and sealed windows. Some office areas front Boston Rd, the rail corridor and worksite.
CNV DWP Section 7 identifies summarise the potential scale of noise and/or vibration exceedances using the modelling outputs in insert hyperlink to the GIS maps here. The relevant stages are summarised below. Activity specific mitigation and management measures are included in Section 9 of the CNV DWP, and referenced in brackets, rather than repeated
• Retaining walls (refer piling in Section 9.8)
• Normanby Rd (refer piling in Section 9.8)
The estimated sound level difference across the façade with the windows and doors closed is 30 decibels. The predicted construction noise effects from Table 12.1 in Section 12.1 are predicted to result in XXX noise effects Physical receiver mitigation, such as temporary relocation of affected receivers, alternative ventilation and façade sound insulation improvements, have been considered, but are not required as part of the BPO for the Mt Eden Station Main Works.
XXX agreed that prior communication of timeframes for works with the potential to exceed the relevant noise limits was an acceptable means of managing effects. No further activity specific consultation is necessary over and above regular communication (Section 10).
If XXX or affected site representatives request consultation in the future, this SSCNMP will be updated in accordance with CRL designation conditions 37.5, with consideration given to the following:
• The extent to which noise may exceed the designation standards
• The timing and duration of any exceedance
• The type of activity causing any exceedance
• A summary of the communication and consultation with the receiver
• The methods and measures to mitigate effects
• A statement of why they reflect best practicable option
Communications records are contained in the communication and consultation plan (CCP). This SSCNMP will be updated to summarise engagement and any agreed site-specific measures.
C70.1 Introduction
This Site Specific Construction Noise Management Plan (SSCNMP) is for 7 Fenton St. A SSCNMP is required because construction is predicted to exceed the standards in CRL designation conditions 31.
This SSCNMP has been prepared in accordance with CRL designation condition 37 and is Appendix C80 of the Mt Eden Main Works Construction Noise and Vibration Delivery Work Plan (CNV DWP). It is a supplementary document that builds on the CNV DWP, and therefore directly references relevant sections of the CNV DWP to avoid repetition. The objective of this SSCNMP is to detail the best practicable option(s) (BPO) to avoid, remedy or mitigate the identified adverse effects from noise exceedances at 7 Fenton St
This SSCNMP has been prepared for the Link Alliance and forms part of the Construction Environmental Management Plan (CEMP) for the Mt Eden Station Main Works
C70.2 Engagement
Mt Eden Main Works
Link Alliance representatives XXX met with building representative XXX on XXX date. The matters discussed included:
• An overview of the project
• General programme, demolition, blasting, rock breaking and utilities relocation activities
• Overview of the CNV DWP and this SSCNMP, communications triggers and monitoring
The two-level industrial building features a masonry façade, roller door and openable windows fronting Fenton St, the rail corridor and worksite.
CNV DWP Section 7 identifies summarise the potential scale of noise and/or vibration exceedances using the modelling outputs in insert hyperlink to the GIS maps here The relevant stages are summarised below. Activity specific mitigation and management measures are included in Section 9 of the CNV DWP, and referenced in brackets, rather than repeated.
• Retaining walls (refer piling in Section 9.8)
• Excavation (refer concrete and rock breaking in Section 9.7)
• Utilities and drainage (refer concrete cutting and breaking in Sections 9.6 and 9.7)
• Fenton and Porters Ave (refer rock breaking and piling in Sections 9.7 and 9.8)
The estimated sound level difference across the façade with the windows and doors closed is 25 decibels. The predicted construction noise effects from Table 12.1 in Section 12.1 are predicted to result in XXX noise effects. Physical receiver mitigation, such as temporary relocation of affected receivers, alternative ventilation and façade sound insulation improvements, have been considered, but are not required as part of the BPO for the Mt Eden Station Main Works.
XXX agreed that prior communication of timeframes for works with the potential to exceed the relevant noise limits was an acceptable means of managing effects. No further activity specific consultation is necessary over and above regular communication (Section 10).
If XXX or affected site representatives request consultation in the future, this SSCNMP will be updated in accordance with CRL designation conditions 37.5, with consideration given to the following:
• The extent to which noise may exceed the designation standards
• The timing and duration of any exceedance
• The type of activity causing any exceedance
• A summary of the communication and consultation with the receiver
• The methods and measures to mitigate effects
• A statement of why they reflect best practicable option
Communications records are contained in the communication and consultation plan (CCP). This SSCNMP will be updated to summarise engagement and any agreed site-specific measures.
C71.1 Introduction
This Site Specific Construction Noise Management Plan (SSCNMP) is for 27 Brentwood Ave. A SSCNMP is required because construction is predicted to exceed the standards in CRL designation conditions 31.
This SSCNMP has been prepared in accordance with CRL designation condition 37 and is Appendix C71 of the Mt Eden Main Works Construction Noise and Vibration Delivery Work Plan (CNV DWP). It is a supplementary document that builds on the CNV DWP, and therefore directly references relevant sections of the CNV DWP to avoid repetition. The objective of this SSCNMP is to detail the best practicable option(s) (BPO) to avoid, remedy or mitigate the identified adverse effects from noise exceedances at 27 Brentwood Ave.
This SSCNMP has been prepared for the Link Alliance and forms part of the Construction Environmental Management Plan (CEMP) for the Mt Eden Station Main Works
C71.2 Engagement
Mt Eden Main Works
Link Alliance representatives XXX met with building representative XXX on XXX date. The matters discussed included:
• An overview of the project
• General programme, demolition, blasting, rock breaking and utilities relocation activities
• Overview of the CNV DWP and this SSCNMP, communications triggers and monitoring
This single level villa backs onto the NAL rail corridor and worksite.
CNV DWP Section 7 identifies summarise the potential scale of noise and/or vibration exceedances using the modelling outputs in insert hyperlink to the GIS maps here The relevant stages are summarised below. Activity specific mitigation and management measures are included in Section 9 of the CNV DWP, and referenced in brackets, rather than repeated.
• Retaining walls (refer piling in Section 9.8)
The estimated sound level difference across the façade with the windows and doors closed is 20 – 25 decibels. The predicted construction noise effects from Table 12.1 in Section 12.1 are predicted to result in XXX noise effects. Physical receiver mitigation, such as temporary relocation of affected receivers, alternative ventilation and façade sound insulation improvements, have been considered, but are not required as part of the BPO for the Mt Eden Station Main Works.
XXX agreed that prior communication of timeframes for works with the potential to exceed the relevant noise limits was an acceptable means of managing effects. No further activity specific consultation is necessary over and above regular communication (Section 10).
If XXX or affected site representatives request consultation in the future, this SSCNMP will be updated in accordance with CRL designation conditions 37.5, with consideration given to the following:
• The extent to which noise may exceed the designation standards
• The timing and duration of any exceedance
• The type of activity causing any exceedance
• A summary of the communication and consultation with the receiver
• The methods and measures to mitigate effects
• A statement of why they reflect best practicable option
Communications records are contained in the communication and consultation plan (CCP). This SSCNMP will be updated to summarise engagement and any agreed site-specific measures.
C72.1 Introduction
This Site Specific Construction Noise Management Plan (SSCNMP) is for 29 Brentwood Ave. A SSCNMP is required because construction is predicted to exceed the standards in CRL designation conditions 31.
This SSCNMP has been prepared in accordance with CRL designation condition 37 and is Appendix C72 of the Mt Eden Main Works Construction Noise and Vibration Delivery Work Plan (CNV DWP). It is a supplementary document that builds on the CNV DWP, and therefore directly references relevant sections of the CNV DWP to avoid repetition. The objective of this SSCNMP is to detail the best practicable option(s) (BPO) to avoid, remedy or mitigate the identified adverse effects from noise exceedances at 29 Brentwood Ave
This SSCNMP has been prepared for the Link Alliance and forms part of the Construction Environmental Management Plan (CEMP) for the Mt Eden Station Main Works
C72.2 Engagement
Mt Eden Main Works
Link Alliance representatives XXX met with building representative XXX on XXX date. The matters discussed included:
• An overview of the project
• General programme, demolition, blasting, rock breaking and utilities relocation activities
• Overview of the CNV DWP and this SSCNMP, communications triggers and monitoring
This single level villa backs onto the NAL rail corridor and worksite.
CNV DWP Section 7 identifies summarise the potential scale of noise and/or vibration exceedances using the modelling outputs in insert hyperlink to the GIS maps here The relevant stages are summarised below. Activity specific mitigation and management measures are included in Section 9 of the CNV DWP, and referenced in brackets, rather than repeated.
• Retaining walls (refer piling in Section 9.8)
• Excavation (refer concrete and rock breaking in Section 9.7)
The estimated sound level difference across the façade with the windows and doors closed is 20 – 25 decibels. The predicted construction noise effects from Table 12.1 in Section 12.1 are predicted to result in XXX noise effects Physical receiver mitigation, such as temporary relocation of affected receivers, alternative ventilation and façade sound insulation improvements, have been considered, but are not required as part of the BPO for the Mt Eden Station Main Works.
XXX agreed that prior communication of timeframes for works with the potential to exceed the relevant noise limits was an acceptable means of managing effects. No further activity specific consultation is necessary over and above regular communication (Section 10).
If XXX or affected site representatives request consultation in the future, this SSCNMP will be updated in accordance with CRL designation conditions 37.5, with consideration given to the following:
• The extent to which noise may exceed the designation standards
• The timing and duration of any exceedance
• The type of activity causing any exceedance
• A summary of the communication and consultation with the receiver
• The methods and measures to mitigate effects
• A statement of why they reflect best practicable option
Communications records are contained in the communication and consultation plan (CCP). This SSCNMP will be updated to summarise engagement and any agreed site-specific measures.
C73.1 Introduction
This Site Specific Construction Noise Management Plan (SSCNMP) is for 31 Brentwood Ave. A SSCNMP is required because construction is predicted to exceed the standards in CRL designation conditions 31.
This SSCNMP has been prepared in accordance with CRL designation condition 37 and is Appendix C73 of the Mt Eden Main Works Construction Noise and Vibration Delivery Work Plan (CNV DWP). It is a supplementary document that builds on the CNV DWP, and therefore directly references relevant sections of the CNV DWP to avoid repetition. The objective of this SSCNMP is to detail the best practicable option(s) (BPO) to avoid, remedy or mitigate the identified adverse effects from noise exceedances at 31 Brentwood Ave
This SSCNMP has been prepared for the Link Alliance and forms part of the Construction Environmental Management Plan (CEMP) for the Mt Eden Station Main Works
C73.2 Engagement
Mt Eden Main Works
Link Alliance representatives XXX met with building representative XXX on XXX date. The matters discussed included:
• An overview of the project
• General programme, demolition, blasting, rock breaking and utilities relocation activities
• Overview of the CNV DWP and this SSCNMP, communications triggers and monitoring
This single level villa backs onto the NAL rail corridor and worksite.
CNV DWP Section 7 identifies summarise the potential scale of noise and/or vibration exceedances using the modelling outputs in insert hyperlink to the GIS maps here The relevant stages are summarised below. Activity specific mitigation and management measures are included in Section 9 of the CNV DWP, and referenced in brackets, rather than repeated.
• Retaining walls (refer piling in Section 9.8)
The estimated sound level difference across the façade with the windows and doors closed is 20 – 25 decibels. The predicted construction noise effects from Table 12.1 in Section 12.1 are predicted to result in XXX noise effects. Physical receiver mitigation, such as temporary relocation of affected receivers, alternative ventilation and façade sound insulation improvements, have been considered, but are not required as part of the BPO for the Mt Eden Station Main Works.
XXX agreed that prior communication of timeframes for works with the potential to exceed the relevant noise limits was an acceptable means of managing effects. No further activity specific consultation is necessary over and above regular communication (Section 10).
If XXX or affected site representatives request consultation in the future, this SSCNMP will be updated in accordance with CRL designation conditions 37.5, with consideration given to the following:
• The extent to which noise may exceed the designation standards
• The timing and duration of any exceedance
• The type of activity causing any exceedance
• A summary of the communication and consultation with the receiver
• The methods and measures to mitigate effects
• A statement of why they reflect best practicable option
Communications records are contained in the communication and consultation plan (CCP). This SSCNMP will be updated to summarise engagement and any agreed site-specific measures.
C74.1 Introduction
This Site Specific Construction Noise Management Plan (SSCNMP) is for 3 Wynyard Rd. A SSCNMP is required because construction is predicted to exceed the standards in CRL designation conditions 31.
This SSCNMP has been prepared in accordance with CRL designation condition 37 and is Appendix C74 of the Mt Eden Main Works Construction Noise and Vibration Delivery Work Plan (CNV DWP). It is a supplementary document that builds on the CNV DWP, and therefore directly references relevant sections of the CNV DWP to avoid repetition. The objective of this SSCNMP is to detail the best practicable option(s) (BPO) to avoid, remedy or mitigate the identified adverse effects from noise exceedances at 3 Wynyard Rd
This SSCNMP has been prepared for the Link Alliance and forms part of the Construction Environmental Management Plan (CEMP) for the Mt Eden Station Main Works
C74.2 Engagement
Mt Eden Main Works
Link Alliance representatives XXX met with building representative XXX on XXX date. The matters discussed included:
• An overview of the project
• General programme, demolition, blasting, rock breaking and utilities relocation activities
• Overview of the CNV DWP and this SSCNMP, communications triggers and monitoring
This single level villa has a narrow view of the NAL rail corridor and worksite.
CNV DWP Section 7 identifies summarise the potential scale of noise and/or vibration exceedances using the modelling outputs in insert hyperlink to the GIS maps here The relevant stages are summarised below. Activity specific mitigation and management measures are included in Section 9 of the CNV DWP, and referenced in brackets, rather than repeated.
• Excavation (refer concrete and rock breaking in Section 9.7)
• Utilities and drainage (refer concrete cutting and breaking in Sections 9.6 and 9.7)
• Fenton and Porters Ave (refer rock breaking and piling in Sections 9.7 and 9.8)
The estimated sound level difference across the façade with the windows and doors closed is 20 – 25 decibels. The predicted construction noise effects from Table 12.1 in Section 12.1 are predicted to result in XXX noise effects Physical receiver mitigation, such as temporary relocation of affected receivers, alternative ventilation and façade sound insulation improvements, have been considered, but are not required as part of the BPO for the Mt Eden Station Main Works.
XXX agreed that prior communication of timeframes for works with the potential to exceed the relevant noise limits was an acceptable means of managing effects. No further activity specific consultation is necessary over and above regular communication (Section 10).
If XXX or affected site representatives request consultation in the future, this SSCNMP will be updated in accordance with CRL designation conditions 37.5, with consideration given to the following:
• The extent to which noise may exceed the designation standards
• The timing and duration of any exceedance
• The type of activity causing any exceedance
• A summary of the communication and consultation with the receiver
• The methods and measures to mitigate effects
• A statement of why they reflect best practicable option
Communications records are contained in the communication and consultation plan (CCP). This SSCNMP will be updated to summarise engagement and any agreed site-specific measures.
C75.1 Introduction
This Site Specific Construction Noise Management Plan (SSCNMP) is for 4 Wynyard Rd. A SSCNMP is required because construction is predicted to exceed the standards in CRL designation conditions 31.
This SSCNMP has been prepared in accordance with CRL designation condition 37 and is Appendix C75 of the Mt Eden Main Works Construction Noise and Vibration Delivery Work Plan (CNV DWP). It is a supplementary document that builds on the CNV DWP, and therefore directly references relevant sections of the CNV DWP to avoid repetition. The objective of this SSCNMP is to detail the best practicable option(s) (BPO) to avoid, remedy or mitigate the identified adverse effects from noise exceedances at 4 Wynyard Rd
This SSCNMP has been prepared for the Link Alliance and forms part of the Construction Environmental Management Plan (CEMP) for the Mt Eden Station Main Works
C75.2 Engagement
Mt Eden Main Works
Link Alliance representatives XXX met with building representative XXX on XXX date. The matters discussed included:
• An overview of the project
• General programme, demolition, blasting, rock breaking and utilities relocation activities
• Overview of the CNV DWP and this SSCNMP, communications triggers and monitoring
This double-level block of residential units has a narrow view of the NAL rail corridor and worksite. It has a masonry façade with openable windows.
CNV DWP Section 7 identifies summarise the potential scale of noise and/or vibration exceedances using the modelling outputs in insert hyperlink to the GIS maps here The relevant stages are summarised below. Activity specific mitigation and management measures are included in Section 9 of the CNV DWP, and referenced in brackets, rather than repeated.
• Excavation (refer concrete and rock breaking in Section 9.7)
• Utilities and drainage (refer concrete cutting and breaking in Sections 9.6 and 9.7)
• Fenton and Porters Ave (refer rock breaking and piling in Sections 9.7 and 9.8)
The estimated sound level difference across the façade with the windows and doors closed is 25 – 30 decibels. The predicted construction noise effects from Table 12.1 in Section 12.1 are predicted to result in XXX noise effects Physical receiver mitigation, such as temporary relocation of affected receivers, alternative ventilation and façade sound insulation improvements, have been considered, but are not required as part of the BPO for the Mt Eden Station Main Works.
XXX agreed that prior communication of timeframes for works with the potential to exceed the relevant noise limits was an acceptable means of managing effects. No further activity specific consultation is necessary over and above regular communication (Section 10).
If XXX or affected site representatives request consultation in the future, this SSCNMP will be updated in accordance with CRL designation conditions 37.5, with consideration given to the following:
• The extent to which noise may exceed the designation standards
• The timing and duration of any exceedance
• The type of activity causing any exceedance
• A summary of the communication and consultation with the receiver
• The methods and measures to mitigate effects
• A statement of why they reflect best practicable option
Communications records are contained in the communication and consultation plan (CCP). This SSCNMP will be updated to summarise engagement and any agreed site-specific measures.
C76.1 Introduction
This Site Specific Construction Noise Management Plan (SSCNMP) is for 5 Wynyard Rd. A SSCNMP is required because construction is predicted to exceed the standards in CRL designation conditions 31.
This SSCNMP has been prepared in accordance with CRL designation condition 37 and is Appendix C76 of the Mt Eden Main Works Construction Noise and Vibration Delivery Work Plan (CNV DWP). It is a supplementary document that builds on the CNV DWP, and therefore directly references relevant sections of the CNV DWP to avoid repetition. The objective of this SSCNMP is to detail the best practicable option(s) (BPO) to avoid, remedy or mitigate the identified adverse effects from noise exceedances at 5 Wynyard Rd
This SSCNMP has been prepared for the Link Alliance and forms part of the Construction Environmental Management Plan (CEMP) for the Mt Eden Station Main Works
C76.2 Engagement
Mt Eden Main Works
Link Alliance representatives XXX met with building representative XXX on XXX date. The matters discussed included:
• An overview of the project
• General programme, demolition, blasting, rock breaking and utilities relocation activities
• Overview of the CNV DWP and this SSCNMP, communications triggers and monitoring
This single level villa has a narrow view of the NAL rail corridor and worksite.
CNV DWP Section 7 identifies summarise the potential scale of noise and/or vibration exceedances using the modelling outputs in insert hyperlink to the GIS maps here The relevant stages are summarised below. Activity specific mitigation and management measures are included in Section 9 of the CNV DWP, and referenced in brackets, rather than repeated.
• Excavation (refer concrete and rock breaking in Section 9.7)
• Utilities and drainage (refer concrete cutting and breaking in Sections 9.6 and 9.7)
• Fenton and Porters Ave (refer rock breaking and piling in Sections 9.7 and 9.8)
The estimated sound level difference across the façade with the windows and doors closed is 20 – 25 decibels. The predicted construction noise effects from Table 12.1 in Section 12.1 are predicted to result in XXX noise effects Physical receiver mitigation, such as temporary relocation of affected receivers, alternative ventilation and façade sound insulation improvements, have been considered, but are not required as part of the BPO for the Mt Eden Station Main Works.
XXX agreed that prior communication of timeframes for works with the potential to exceed the relevant noise limits was an acceptable means of managing effects. No further activity specific consultation is necessary over and above regular communication (Section 10).
If XXX or affected site representatives request consultation in the future, this SSCNMP will be updated in accordance with CRL designation conditions 37.5, with consideration given to the following:
• The extent to which noise may exceed the designation standards
• The timing and duration of any exceedance
• The type of activity causing any exceedance
• A summary of the communication and consultation with the receiver
• The methods and measures to mitigate effects
• A statement of why they reflect best practicable option
Communications records are contained in the communication and consultation plan (CCP). This SSCNMP will be updated to summarise engagement and any agreed site-specific measures.
C77.1 Introduction
This Site Specific Construction Noise Management Plan (SSCNMP) is for 112 New North Rd. A SSCNMP is required because construction is predicted to exceed the standards in CRL designation conditions 31.
This SSCNMP has been prepared in accordance with CRL designation condition 37 and is Appendix C77 of the Mt Eden Main Works Construction Noise and Vibration Delivery Work Plan (CNV DWP). It is a supplementary document that builds on the CNV DWP, and therefore directly references relevant sections of the CNV DWP to avoid repetition. The objective of this SSCNMP is to detail the best practicable option(s) (BPO) to avoid, remedy or mitigate the identified adverse effects from noise exceedances at 112 New North Rd
This SSCNMP has been prepared for the Link Alliance and forms part of the Construction Environmental Management Plan (CEMP) for the Mt Eden Station Main Works
C77.2 Engagement
Mt Eden Main Works
Link Alliance representatives XXX met with building representative XXX on XXX date. The matters discussed included:
• An overview of the project
• General programme, demolition, blasting, rock breaking and utilities relocation activities
• Overview of the CNV DWP and this SSCNMP, communications triggers and monitoring
The single level industrial building is used as an automotive repairs workshop. It is not noise sensitive.
CNV DWP Section 7 identifies summarise the potential scale of noise and/or vibration exceedances using the modelling outputs in insert hyperlink to the GIS maps here The relevant stages are summarised below. Activity specific mitigation and management measures are included in Section 9 of the CNV DWP, and referenced in brackets, rather than repeated.
• Fenton and Porters Ave (refer rock breaking and piling in Sections 9.7 and 9.8)
The estimated sound level difference across the façade with the windows and doors closed is 25 decibels. The predicted construction noise effects from Table 12.1 in Section 12.1 are predicted to result in XXX noise effects. Physical receiver mitigation, such as temporary relocation of affected receivers, alternative ventilation and façade sound insulation improvements, have been considered, but are not required as part of the BPO for the Mt Eden Station Main Works.
XXX agreed that prior communication of timeframes for works with the potential to exceed the relevant noise limits was an acceptable means of managing effects. No further activity specific consultation is necessary over and above regular communication (Section 10).
If XXX or affected site representatives request consultation in the future, this SSCNMP will be updated in accordance with CRL designation conditions 37.5, with consideration given to the following:
• The extent to which noise may exceed the designation standards
• The timing and duration of any exceedance
• The type of activity causing any exceedance
• A summary of the communication and consultation with the receiver
• The methods and measures to mitigate effects
• A statement of why they reflect best practicable option
Communications records are contained in the communication and consultation plan (CCP). This SSCNMP will be updated to summarise engagement and any agreed site-specific measures.
C78.1 Introduction
This Site Specific Construction Noise Management Plan (SSCNMP) is for 33 Brentwood Ave. A SSCNMP is required because construction is predicted to exceed the standards in CRL designation conditions 31.
This SSCNMP has been prepared in accordance with CRL designation condition 37 and is Appendix C78 of the Mt Eden Main Works Construction Noise and Vibration Delivery Work Plan (CNV DWP). It is a supplementary document that builds on the CNV DWP, and therefore directly references relevant sections of the CNV DWP to avoid repetition. The objective of this SSCNMP is to detail the best practicable option(s) (BPO) to avoid, remedy or mitigate the identified adverse effects from noise exceedances at 33 Brentwood Ave
This SSCNMP has been prepared for the Link Alliance and forms part of the Construction Environmental Management Plan (CEMP) for the Mt Eden Station Main Works
C78.2 Engagement
Mt Eden Main Works
Link Alliance representatives XXX met with building representative XXX on XXX date. The matters discussed included:
• An overview of the project
• General programme, demolition, blasting, rock breaking and utilities relocation activities
• Overview of the CNV DWP and this SSCNMP, communications triggers and monitoring
This single level villa backs onto the NAL rail corridor and worksite.
CNV DWP Section 7 identifies summarise the potential scale of noise and/or vibration exceedances using the modelling outputs in insert hyperlink to the GIS maps here The relevant stages are summarised below. Activity specific mitigation and management measures are included in Section 9 of the CNV DWP, and referenced in brackets, rather than repeated.
• Retaining walls (refer piling in Section 9.8)
The estimated sound level difference across the façade with the windows and doors closed is 20 – 25 decibels. The predicted construction noise effects from Table 12.1 in Section 12.1 are predicted to result in XXX noise effects. Physical receiver mitigation, such as temporary relocation of affected receivers, alternative ventilation and façade sound insulation improvements, have been considered, but are not required as part of the BPO for the Mt Eden Station Main Works.
XXX agreed that prior communication of timeframes for works with the potential to exceed the relevant noise limits was an acceptable means of managing effects. No further activity specific consultation is necessary over and above regular communication (Section 10).
If XXX or affected site representatives request consultation in the future, this SSCNMP will be updated in accordance with CRL designation conditions 37.5, with consideration given to the following:
• The extent to which noise may exceed the designation standards
• The timing and duration of any exceedance
• The type of activity causing any exceedance
• A summary of the communication and consultation with the receiver
• The methods and measures to mitigate effects
• A statement of why they reflect best practicable option
Communications records are contained in the communication and consultation plan (CCP). This SSCNMP will be updated to summarise engagement and any agreed site-specific measures.
C79.1 Introduction
This Site Specific Construction Noise Management Plan (SSCNMP) is for 35 Brentwood Ave. A SSCNMP is required because construction is predicted to exceed the standards in CRL designation conditions 31.
This SSCNMP has been prepared in accordance with CRL designation condition 37 and is Appendix C79 of the Mt Eden Main Works Construction Noise and Vibration Delivery Work Plan (CNV DWP). It is a supplementary document that builds on the CNV DWP, and therefore directly references relevant sections of the CNV DWP to avoid repetition. The objective of this SSCNMP is to detail the best practicable option(s) (BPO) to avoid, remedy or mitigate the identified adverse effects from noise exceedances at 35 Brentwood Ave
This SSCNMP has been prepared for the Link Alliance and forms part of the Construction Environmental Management Plan (CEMP) for the Mt Eden Station Main Works
C79.2 Engagement
Mt Eden Main Works
Link Alliance representatives XXX met with building representative XXX on XXX date. The matters discussed included:
• An overview of the project
• General programme, demolition, blasting, rock breaking and utilities relocation activities
• Overview of the CNV DWP and this SSCNMP, communications triggers and monitoring
The Seventh Day Adventist Church is a double-level masonry building with openable windows fronting the rail corridor and worksite.
CNV DWP Section 7 identifies summarise the potential scale of noise and/or vibration exceedances using the modelling outputs in insert hyperlink to the GIS maps here The relevant stages are summarised below. Activity specific mitigation and management measures are included in Section 9 of the CNV DWP, and referenced in brackets, rather than repeated.
• Retaining walls (refer piling in Section 9.8)
The estimated sound level difference across the façade with the windows and doors closed is 20 – 25 decibels. The predicted construction noise effects from Table 12.1 in Section 12.1 are predicted to result in XXX noise effects. Physical receiver mitigation, such as temporary relocation of affected receivers, alternative ventilation and façade sound insulation improvements, have been considered, but are not required as part of the BPO for the Mt Eden Station Main Works.
XXX agreed that prior communication of timeframes for works with the potential to exceed the relevant noise limits was an acceptable means of managing effects. No further activity specific consultation is necessary over and above regular communication (Section 10).
If XXX or affected site representatives request consultation in the future, this SSCNMP will be updated in accordance with CRL designation conditions 37.5, with consideration given to the following:
• The extent to which noise may exceed the designation standards
• The timing and duration of any exceedance
• The type of activity causing any exceedance
• A summary of the communication and consultation with the receiver
• The methods and measures to mitigate effects
• A statement of why they reflect best practicable option
Communications records are contained in the communication and consultation plan (CCP). This SSCNMP will be updated to summarise engagement and any agreed site-specific measures.
C80.1 Introduction
This Site Specific Construction Noise Management Plan (SSCNMP) is for 6 Wynyard Rd. A SSCNMP is required because construction is predicted to exceed the standards in CRL designation conditions 31.
This SSCNMP has been prepared in accordance with CRL designation condition 37 and is Appendix C82 of the Mt Eden Main Works Construction Noise and Vibration Delivery Work Plan (CNV DWP). It is a supplementary document that builds on the CNV DWP, and therefore directly references relevant sections of the CNV DWP to avoid repetition. The objective of this SSCNMP is to detail the best practicable option(s) (BPO) to avoid, remedy or mitigate the identified adverse effects from noise exceedances at 6 Wynyard Rd
This SSCNMP has been prepared for the Link Alliance and forms part of the Construction Environmental Management Plan (CEMP) for the Mt Eden Station Main Works
C80.2 Engagement
Mt Eden Main Works
Link Alliance representatives XXX met with building representative XXX on XXX date. The matters discussed included:
• An overview of the project
• General programme, demolition, blasting, rock breaking and utilities relocation activities
• Overview of the CNV DWP and this SSCNMP, communications triggers and monitoring
The two-level residential building features a lightweight façade and openable windows fronting Wynyard Rd.
CNV DWP Section 7 identifies summarise the potential scale of noise and/or vibration exceedances using the modelling outputs in insert hyperlink to the GIS maps here The relevant stages are summarised below. Activity specific mitigation and management measures are included in Section 9 of the CNV DWP, and referenced in brackets, rather than repeated.
• Normanby Rd (refer piling in Section 9.8)
The estimated sound level difference across the façade with the windows and doors closed is 25 decibels. The predicted construction noise effects from Table 12.1 in Section 12.1 are predicted to result in XXX noise effects. Physical receiver mitigation, such as temporary relocation of affected receivers, alternative ventilation and façade sound insulation improvements, have been considered, but are not required as part of the BPO for the Mt Eden Station Main Works.
XXX agreed that prior communication of timeframes for works with the potential to exceed the relevant noise limits was an acceptable means of managing effects. No further activity specific consultation is necessary over and above regular communication (Section 10).
If XXX or affected site representatives request consultation in the future, this SSCNMP will be updated in accordance with CRL designation conditions 37.5, with consideration given to the following:
• The extent to which noise may exceed the designation standards
• The timing and duration of any exceedance
• The type of activity causing any exceedance
• A summary of the communication and consultation with the receiver
• The methods and measures to mitigate effects
• A statement of why they reflect best practicable option
Communications records are contained in the communication and consultation plan (CCP). This SSCNMP will be updated to summarise engagement and any agreed site-specific measures.
C81.1 Introduction
This Site Specific Construction Noise Management Plan (SSCNMP) is for 39 Nugent St. A SSCNMP is required because construction is predicted to exceed the standards in CRL designation conditions 31.
This SSCNMP has been prepared in accordance with CRL designation condition 37 and is Appendix C81 of the Mt Eden Main Works Construction Noise and Vibration Delivery Work Plan (CNV DWP). It is a supplementary document that builds on the CNV DWP, and therefore directly references relevant sections of the CNV DWP to avoid repetition. The objective of this SSCNMP is to detail the best practicable option(s) (BPO) to avoid, remedy or mitigate the identified adverse effects from noise exceedances at 39 Nugent St
This SSCNMP has been prepared for the Link Alliance and forms part of the Construction Environmental Management Plan (CEMP) for the Mt Eden Station Main Works
C81.2 Engagement
Mt Eden Main Works
Link Alliance representatives XXX met with building representative XXX on XXX date. The matters discussed included:
• An overview of the project
• General programme, demolition, blasting, rock breaking and utilities relocation activities
• Overview of the CNV DWP and this SSCNMP, communications triggers and monitoring
The two-level commercial building features a masonry façade and openable windows. It has a narrow view of the rail corridor and worksite.
CNV DWP Section 7 identifies summarise the potential scale of noise and/or vibration exceedances using the modelling outputs in insert hyperlink to the GIS maps here The relevant stages are summarised below. Activity specific mitigation and management measures are included in Section 9 of the CNV DWP, and referenced in brackets, rather than repeated.
• Utilities and drainage (refer concrete cutting and breaking in Sections 9.6 and 9.7)
• Normanby Rd (refer piling in Section 9.8)
The estimated sound level difference across the façade with the windows and doors closed is 25 decibels. The predicted construction noise effects from Table 12.1 in Section 12.1 are predicted to result in XXX noise effects Physical receiver mitigation, such as temporary relocation of affected receivers, alternative ventilation and façade sound insulation improvements, have been considered, but are not required as part of the BPO for the Mt Eden Station Main Works.
XXX agreed that prior communication of timeframes for works with the potential to exceed the relevant noise limits was an acceptable means of managing effects. No further activity specific consultation is necessary over and above regular communication (Section 10).
If XXX or affected site representatives request consultation in the future, this SSCNMP will be updated in accordance with CRL designation conditions 37.5, with consideration given to the following:
• The extent to which noise may exceed the designation standards
• The timing and duration of any exceedance
• The type of activity causing any exceedance
• A summary of the communication and consultation with the receiver
• The methods and measures to mitigate effects
• A statement of why they reflect best practicable option
Communications records are contained in the communication and consultation plan (CCP). This SSCNMP will be updated to summarise engagement and any agreed site-specific measures.
C82.1 Introduction
This Site Specific Construction Noise Management Plan (SSCNMP) is for 7 Wynyard Rd. A SSCNMP is required because construction is predicted to exceed the standards in CRL designation conditions 31.
This SSCNMP has been prepared in accordance with CRL designation condition 37 and is Appendix C82 of the Mt Eden Main Works Construction Noise and Vibration Delivery Work Plan (CNV DWP). It is a supplementary document that builds on the CNV DWP, and therefore directly references relevant sections of the CNV DWP to avoid repetition. The objective of this SSCNMP is to detail the best practicable option(s) (BPO) to avoid, remedy or mitigate the identified adverse effects from noise exceedances at 7 Wynyard Rd
This SSCNMP has been prepared for the Link Alliance and forms part of the Construction Environmental Management Plan (CEMP) for the Mt Eden Station Main Works
C82.2 Engagement
Mt Eden Main Works
Link Alliance representatives XXX met with building representative XXX on XXX date. The matters discussed included:
• An overview of the project
• General programme, demolition, blasting, rock breaking and utilities relocation activities
• Overview of the CNV DWP and this SSCNMP, communications triggers and monitoring
The two-level residential building features a lightweight façade and openable windows fronting Wynyard Rd.
CNV DWP Section 7 identifies summarise the potential scale of noise and/or vibration exceedances using the modelling outputs in insert hyperlink to the GIS maps here The relevant stages are summarised below. Activity specific mitigation and management measures are included in Section 9 of the CNV DWP, and referenced in brackets, rather than repeated.
• Normanby Rd (refer piling in Section 9.8)
The estimated sound level difference across the façade with the windows and doors closed is 25 decibels. The predicted construction noise effects from Table 12.1 in Section 12.1 are predicted to result in XXX noise effects. Physical receiver mitigation, such as temporary relocation of affected receivers, alternative ventilation and façade sound insulation improvements, have been considered, but are not required as part of the BPO for the Mt Eden Station Main Works.
XXX agreed that prior communication of timeframes for works with the potential to exceed the relevant noise limits was an acceptable means of managing effects. No further activity specific consultation is necessary over and above regular communication (Section 10).
If XXX or affected site representatives request consultation in the future, this SSCNMP will be updated in accordance with CRL designation conditions 37.5, with consideration given to the following:
• The extent to which noise may exceed the designation standards
• The timing and duration of any exceedance
• The type of activity causing any exceedance
• A summary of the communication and consultation with the receiver
• The methods and measures to mitigate effects
• A statement of why they reflect best practicable option
Communications records are contained in the communication and consultation plan (CCP). This SSCNMP will be updated to summarise engagement and any agreed site-specific measures.