Christopher Sinden - Architecture Portfolio.

Page 1

ARCHITECTURE

PORT FOLIO

CHRISTOPHER SINDEN

Selected works academic + office

Residential housing occupying its context

Timber bench that mimics nature

Steel structure incorporating brick and steel

Architecture campus that connects and moves

Home that separates work and life balance

Façade study, balancing existing and new

UNIVERSITY OF TECHNOLOGY - university

Final University Project, showcasing my University of Technology Design, incorporating the context and circulation of the site.

content
HARFIELD VILLAGE - university RETREAT INTO YOUR CRAFT- university STEEL STRIP SECTION - university UNIVERSITY CAMPUS - university ARTISAN HOUSHOLD - university CAPE TOWN FAÇADE - university
INDUSTRY
WORK Mixed-Use Building – New Boston INDUSTRY OFFICE WORK Residential Apartment Building –Neighbourgood Reserve 3 6 7 8 15 18 19 25 27 31
INDUSTRY OFFICE WORK
Residential House
OFFICE

HARFIELD VILLAGE

Aim: Embody the social context within a working space.

Location: Cape Town

Findings: Combining live and work-spaces into a household needs separation but also adaptation, in order to function.

3
4
5

RETREAT INTO YOUR CRAFT

The purpose of the project was think conceptually, spatially and 3-D with the intention to explore the crafting of space and form by using materiality as an expression of making, which creates particular environments and provokes emotions

The comfortable bamboo/timber styled chair, creates a seamless yet protective shell that covers the occupant from the natural elements for example wind and sound The installation is created purposefully for an escape from the city life The wooden timber and bamboo are used, because it gives not only warm feeling, but creates good sound insulation The occupant will feel and smell the materials and visualize that they are in nature

6
7

Brief:

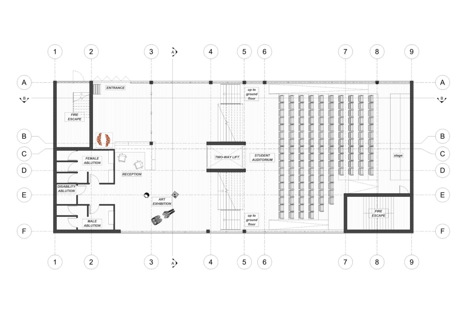
The architecture campus project involved designing a 4 storey university, that involves a auditorium, cafeteria, 3 studios, library, offices and a green roof

Approach:

My approach towards the brief, was to use a lift as the engine/ heart of the building, while layering the different levels around the center piece The main goal was to create a continuous flow inside the campus and also incorporating movement Each floor thus creates a certain visual engagement towards the above and below floors

ARCHITECTURE CAMPUS

8
9
NORTH ELEVATION
ELEVATION 10
SOUTH

Entrance Perspective View

ENTRANCE & AUDITORIUM

Auditorium Perspective View

Cafeteria Perspective View

ENTRANCE & CAFETERIA
11

CAFETERIA & STUDIO 1

STUDIO 1 & STUDIO 2
Mezzanine & Garden Perspective View
Studio 1 Perspective View 12
Mezzanine & Studio 1 Overview
LIBRARY & OFFICES
2 & STUDIO 3
STUDIO
Library Perspective View 13
Studio
2 Perspective View Office/Meeting Room Perspective View
SITEPLAN
GREEN ROOF Green Roof Entrance Perspective View Green Roof Perspective View
14
Green Roof, Lift Entrance Perspective View

AIM: The purpose of this assignment, was to illustrate the finer details of the architectural design process and decisions into reality. I had to understand the technology of my design as well as its materiality and hierarchy.

This Artisan House-Hold was designed to establish a balanced relationship between work and life. The separation of the floors, meant adequate space adaptation to formulate design choices that is unique to its Cape Town context.

ARTISAN HOUSHOLD 15

B.1– CALL OUT GREEN ROOF 2D DETAIL SCALE

A.1 – CALL OUT RAFTER 2D DETAIL SCALE

One Layer Bitumen counter flashing

PVC water overflow outlet pipe

Steel Flashing coping over concrete upstand, fixed with adhesive Expanded Polysterene Insulation board

B.1– CALL OUT GREEN ROOF 3D DETAIL SCALE

A.1 – CALL OUT RAFTER 3D DETAIL (UNDERSIDE) SCALE

A.1 – CALL OUT RAFTER 3D DETAIL (TOP SIDE) SCALE

1:5 image by author (C.Sinden) Concrete Waffle Slab opening 1:5 image by author (C.Sinden)C 1:5 image by author (C.Sinden) 1:5 image by author (C.Sinden) 1:5 image by author (C.Sinden)
ARTISAN HOUSHOLD 16
Steel Rafter Connection bolted to timber rafters Steel flashing fixed to steel sheeting with screws towards treated timber battens

A.2 – CALL OUT SKYLIGHT 2D DETAIL

A.3 – CALL OUT BOX GUTTER 2D DETAIL SCALE 1:5

A.3 – CALL OUT BOX GUTTER 3D DETAIL (UNDERSIDE) SCALE 1:5

A.3 – CALL OUT BOX GUTTER 3D DETAIL (TOP VIEW)

ARTISAN HOUSHOLD
A.2 – CALL OUT SKYLIGHT 3D DETAIL SCALE 1:5 image by author (C.Sinden) image by author (C.Sinden) SCALE 1:5 image by author (C.Sinden) SCALE 1:5 image by author (C.Sinden)
17
image by author (C.Sinden)
FAÇADE STUDY 18
UNIVERSITYOFTECHNOLOGY 19
20

Angled Steps for resting spacec Perforated Brick/Steel facade

DESIGN INTENT

o Break the normality faceless facades on St Johns Street Façade

o Increase street and site engagement

o Active ground floor area that circulates movement from the public towards the exhibition and art gallery centres

o Showcase student works on ground floor with clear view from street

o Separate formal and informal spaces from ground being informal and upper floors to be formal

o Creating a multi-functional space that allows each space to function independently, but creating a relationship between the context and surrounding buildings.

o Incorporate Green Star Rating principles and accommodate spaces such as library, art gallery, conference centre with 2 auditoriums, food court for informal and formal use and workspace for post graduates

BOUBLE DIAGRAMS PROGRAMMIC DIAGRAMS 3D CONCEPT SKETCHES

Street Façade, angled perspective

Drawn By C.Sinden

Perforated wall screen allows for ventilation Timber Fin Façade allows secondary materialistic choice of elevation change

Image

o Spaces that narrate to each other in order to function as purposed

CONCEPTUAL CREATION

o A building model that circulates objective context purpose through circulation of diverting wall facades and captivating resting spaces

o Creating occupation through volumetric double volumes for the entrance as the engine of the building model

Taking multiple views into account for context relationship purpose

Creating separation between street and building envelope by placing a divider that cantilevers in front of the building itself

-architectes-new-cultural-center-in-nevers-incorporates-public-space-into-the- oofdesign/ Engaging with the context and pedestriansthrough addingconnectiontowardsthe streetwith seating or restingpublic and privat spaces Image

Reference: https://www.archdaily.com/56330/omega-block-daniel-bonilla-arquitectos/5008e51a28ba0d27a7000aca-omega-

Phase 1 – Bulk of Site

Relation towards context building to be considered

Circulation a prime driver for concept.

Engagement with Cultural changes to be implimented

Phase 2 – Allowing for pedestrian flow from CPT Hiigh

The main focus is to create engagement with all views and nodes of the site, by creating pathways and primary and secondary entrances to the site and with the University.

Phase 3 – More organic bulk

Changing the bulk to more organic, opposes the surrounding formal square context to a more informal and natural circulation and engagement with the site. Allowing angular shapes mimicking the slope of Avenue Street, the site allows multiple axis’

Double Volumetric Entrance

Double at the entrance creates a circulating space that enables massing towards the context Also a bridge between the formal food court on the 2nd storey creates semi-private routes for students

Chosen Levels of materials

Timber façade

As ground floor is going to be either glass curtain walls or perforated concrete/masonry construction, the intent for the ground floor façade will be to be inclusive towards the public for interaction with the informal food courts and semi-formal art gallery

Drawn By C.Sinden

Phase 4 – Pathway cut through building

The angular walls invite the pedestrians towards the building by walking underneath the 2nd storey. This create a massive door or entrance towards the site as more and more smaller pathways lead towards the central courtyard of the building.

21

INSTITUTIONAL / VOLUMETRICS
TECTONIC
/
”DIVERTIVE GUIDANCE”
Referencehttps://inhabitat.com/ateliers-o-
o As the building model should create a sense of contentment, it should create its own dialogue by being unique to its own, but still being sensitive towards the surrounding context. block-daniel-bonilla-arquitectos-details?next_project=no - The use of perforation brick façade that is cantilevering over the curtain wall.
Rough Sketch Drawn By C.Sinden
Drawn By C.Sinden Drawn By C.Sinden Drawn By C.Sinden Angular 2nd Storey façade, creating a break from street façade. Drawn By C.Sinden
Fins create secondary level engageme nt with public

SOUTH EAST ELEVATION

NORTH WEST ELEVATION

NORTH WEST ELEVATION

NORTH EAST ELEVATION

ELEVATIONS

22

SECTION A-A

SECTION B-B

SECTIONS & 3D DIAGRANMS

ART GALLERY FORMAL FOOD COURT CORRIDOR WORKSHO P 01 AUDITORIUM WORKSHOP 02 AUDITORIUM LIBRARY INFORMAL FOOD COURT 23
GROUND FLOOR
24
FIRST FLOOR PLAN
25
26

NEW BOSTON

Aim: Using the buildings existing envelope to expand internally its apartment capabilities and provide aesthetic valuable return on the property.

Location: Bellville, Cape Town

Findings: The most conclusive findings, were the multiple implications the site had on the project, due to the fact the building had different zoning schemes on the ground floor and upper floors. With an extreme tight budget, re-suing the outer and inner shell of the building was the main driving force to implement cost-effective design choices that ultimately made the project an ongoing success.

27
28
29
30

Aim: The intent of this project was to utilize a heritage site with difficult parametric volumetric challenges, the only solution was to drive a loft-styled apartment space into the pre-existing envelope of the space.

Location: Cape Town

Findings: Being a Micro-Apartment, one should always consider joinery and volume as a source of inspiration and solution to a design. I’ve come to terms that a design should be considered practical, functional but effortless design to adapt the user’s perspective when it comes to Micro living spaces.

31 NEIGHBOURGOOD RESERVE
32 NEIGHBOURGOOD RESERVE
33 NEIGHBOURGOOD RESERVE
34 NEIGHBOURGOOD RESERVE

THANK YOU

Turn static files into dynamic content formats.

Create a flipbook
Issuu converts static files into: digital portfolios, online yearbooks, online catalogs, digital photo albums and more. Sign up and create your flipbook.