
1 minute read
ARCHITECTURE CAMPUS


Advertisement

Entrance Perspective View
ENTRANCE & AUDITORIUM
Auditorium Perspective View


Cafeteria Perspective View



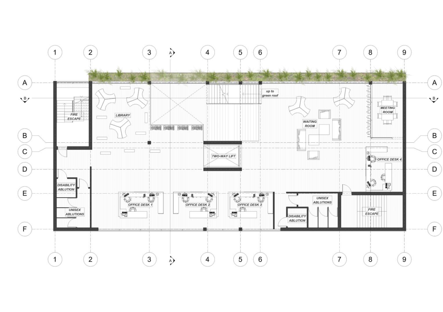
CAFETERIA & STUDIO 1















AIM: The purpose of this assignment, was to illustrate the finer details of the architectural design process and decisions into reality. I had to understand the technology of my design as well as its materiality and hierarchy.


This Artisan House-Hold was designed to establish a balanced relationship between work and life. The separation of the floors, meant adequate space adaptation to formulate design choices that is unique to its Cape Town context.

B.1– CALL OUT GREEN ROOF 2D DETAIL SCALE


A.1 – CALL OUT RAFTER 2D DETAIL SCALE
One Layer Bitumen counter flashing
PVC water overflow outlet pipe
Steel Flashing coping over concrete upstand, fixed with adhesive Expanded Polysterene Insulation board
B.1– CALL OUT GREEN ROOF 3D DETAIL SCALE
A.1 – CALL OUT RAFTER 3D DETAIL (UNDERSIDE) SCALE

A.1 – CALL OUT RAFTER 3D DETAIL (TOP SIDE) SCALE


A.2 – CALL OUT SKYLIGHT 2D DETAIL

A.3 – CALL OUT BOX GUTTER 2D DETAIL SCALE 1:5

A.3 – CALL OUT BOX GUTTER 3D DETAIL (UNDERSIDE) SCALE 1:5
A.3 – CALL OUT BOX GUTTER 3D DETAIL (TOP VIEW)








Angled Steps for resting spacec Perforated Brick/Steel facade
Design Intent
o Break the normality faceless facades on St Johns Street Façade o Increase street and site engagement o Active ground floor area that circulates movement from the public towards the exhibition and art gallery centres o Showcase student works on ground floor with clear view from street o Separate formal and informal spaces from ground being informal and upper floors to be formal o Creating a multi-functional space that allows each space to function independently, but creating a relationship between the context and surrounding buildings. o Incorporate Green Star Rating principles and accommodate spaces such as library, art gallery, conference centre with 2 auditoriums, food court for informal and formal use and workspace for post graduates

BOUBLE DIAGRAMS PROGRAMMIC DIAGRAMS 3D CONCEPT SKETCHES



Street Façade, angled perspective


Drawn By C.Sinden
Perforated wall screen allows for ventilation Timber Fin Façade allows secondary materialistic choice of elevation change
Image o Spaces that narrate to each other in order to function as purposed



