Info Booklet 567 Terrace Drive Coldstream BC

Page 1

567 Terrace Drive, Coldstream

The content presented here is solely for informational purposes. Any information deemed important by a Buyer should be verified

About this property

This spacious 4-bedroom, 3-bathroom home is a timeless gem waiting to be discovered. The heart of the home is the spacious primary suite, boasting an ensuite bathroom and a walk-in closet with views of the expansive Coldstream Valley. The basement offers ample storage space and a spacious fourth bedroom. This home offers an immense amount of potential with each room offering space for your imagination to run wild. The 4 bedrooms provide ample space for family and guests, while the large, flat backyard sits as a canvas waiting to be personalized, perfect for building the backyard oasis you've always dreamed of. If you're seeking a house that's more than just bricks and mortar, if you're ready to infuse life and love into a dwelling that's ready to embrace your vision, then this Coldstream beauty awaits.

Conveniently located just a 5-minute drive from the City of Vernon and all amenities while still being nestled in the serenity that only Coldstream can offer.

FAQ

Renovations/Upgrades

Laminate flooring, gas fireplace, new paint on the entire main floor as well as in the primary bedroom and en suite, new vanity in the en suite and grout around the bathtub, air conditioner is 10 years old, septic set up so a pool could be put in, septic pumped 2 years ago, new steel garage door 6 years ago, upstairs bathroom has new flooring, paint, fixtures and vanity, installed Oak cabinets.

Furnace & Hot Water Tank

Replaced 2021

Electrical

100 amp panel

Roof

Asphalt shingles replaced November 2012

Cell Reception/Wifi

Reception is good, Shaw and Telus fibre optic is set up to the house

Nearby Amenities

The school is 4 km away and the mall is 3 km away

Neighbourhood

The neighbourhood is quiet and filled with good people.

Expenses

Natural Gas $150/mo.

Hydro $150/mo.

Water $250/quarter

Insurance $1400/yr.

Taxes $3500/yr.

Appliances

Refrigerator (New) Midea

Stove LG

Dishwasher Maytag

Microwave Panasonic

Washer Whirlpool

Dryer Whirlpool

Freezer Coronado

*All appliances are negotiable

This information is provided by the Sellers to the best of the Seller's knowledge and is not guaranteed. Any information deemed important by a Buyer should be verified.

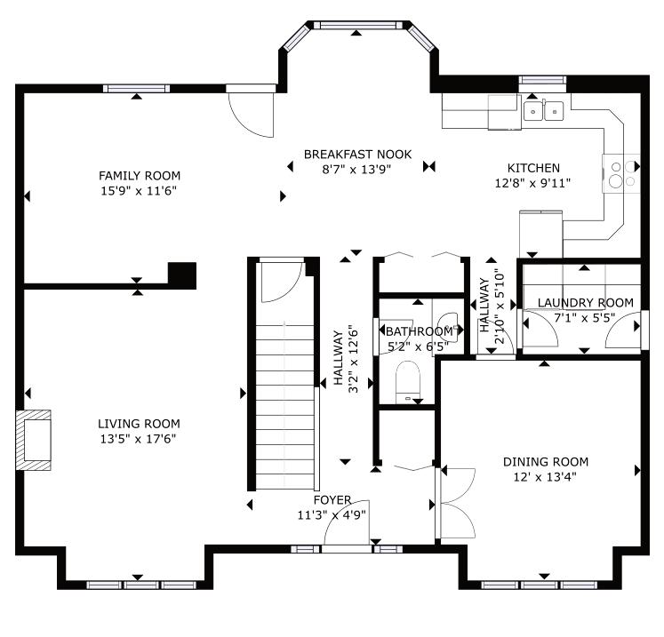
The Home

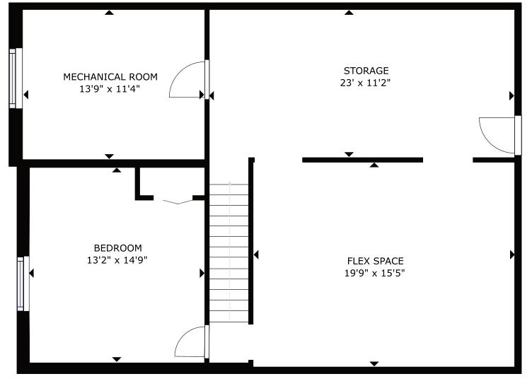
This 2-storey home offers a fantastic layout that provides plenty of space for the whole family. Three bedrooms and two bathrooms are situated comfortably on the upper level with an ensuite and walk-in closet in the primary bedroom. The basement provides ample storage space with endless possibilities as well as a spacious fourth bedroom.

The Exterior

Situated on a .28 acre flat lot, the expansive backyard is a canvas waiting for your creative touch. Whether you envision a lush garden, an in-ground pool, a play area for the kids or an outdoor entertainment oasis, there's plenty of space to bring your vision to life. While the ample parking space is a standout feature for this property whether you have multiple vehicles or a collection of recreational toys, you'll have no shortage of parking options.

Floorplan

**All measurements are taken from Matterport Floor Plans and are interior measurements only. Main Floor 1069 SF

Floorplan

**All measurements are taken from Matterport Floor Plans and are interior measurements only.
Second Level 680 SF Third Level 1002 SF

Chris Holm

Personal Real Estate Corporation

1 (250) 309-0039

chris@chrisholm.ca

chrisholmrealestate.ca

@chrisholmrealtor /chrisholmrealtor /chrisholm

@chrisholmrealtor /chrisholmrealtor /chrisholm

For more information

Want to learn more about this property? Check out this listings featured page on our website! https://chrisholmrealestate.info/567TerraceDrFeatures

Browse more photos, watch our virtual tour video with Chris, and even take a tour through the home with the 3D tour option.

Want to schedule a viewing?

Give us a call today!

The content presented here is solely for informational purposes. Any information deemed important by a Buyer should be verified.

Turn static files into dynamic content formats.

Create a flipbook
Issuu converts static files into: digital portfolios, online yearbooks, online catalogs, digital photo albums and more. Sign up and create your flipbook.
Info Booklet 567 Terrace Drive Coldstream BC by ChrisHolmAssociatesRealEstate - Issuu