545 Wyn - Thesis Design Chris Anderson

Page 1

Senior project design: 545 WYN - Multipurpose Chris anderson prof. summerpsiloyenis2021

About 545 wyn - 545 NW 26th St, Miami, Florida - Located in wynwood district - current use: Commercial - Architect: gensler - Completed construction in 2020 - 325,000+ SQ. FT

Design: By incorporating the vibrant colors featured in wynwood murals, Utilizing wayfinding by the Repitition of finishes, and juxtaposing the entertainment areas and the residential areas, i will create luxurious residences centered around conveinence, as well as an upbeat dining and entertainment experience.

Project info: Multi-use residential & hospitality Project: By incorporating the idea of an inter building ecosystem, and promoting non automobile transportation, i will create an entertaining, yet inviting residence that will provide everything needed for self sufficiency.

Project info & Concept statements

SITEWinterANALYSISsolistice-8:00a.m. Winter solistice - 12:00 p.m. Winter solistice - 4:00 p.m. • Nearby retail stores • within a mile to metrorail • Coffee & breakfast shops • nightclubs • wynwood brewing co. • Average population age: 35 • Museums • Incorporated bike lanes • community grafitti art

Inspiration images

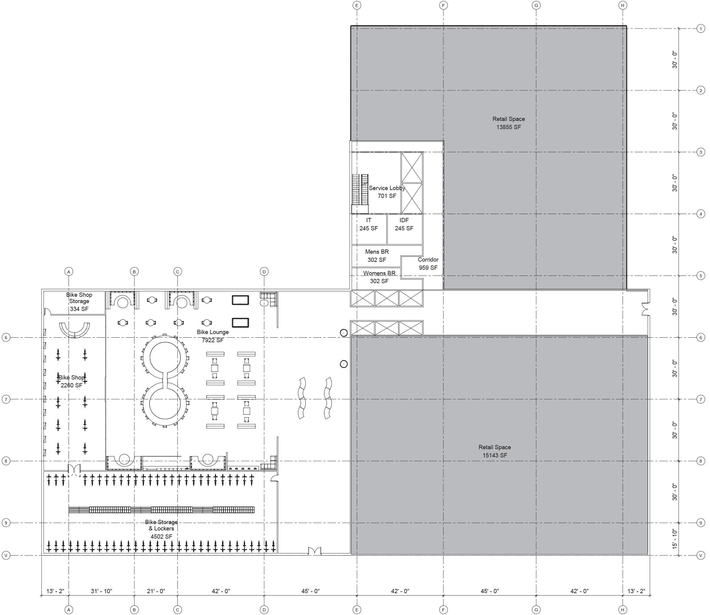
scope of work •Design first floor revolving around bikes, repair, alternate transportation and lounge. •Floors 2-4 not in scope of work, second floor to be parking for commercial offices on third and fourth •Designfloor.fifthfloor to accomodate a rooftop restaurant and bar, as well as entrance to the •Designresidences.floors six through nine with one, two, and three bedroom units, as well as amenities. •Design tenth floor as luxury penthouse suites.

Program RetailRetail Space 15215 SF Retail Space 13855 SF PenthousePenthousesSuite #1 11801 SF Penthouse Suite #2 11102 SF Bedroom Units 1 Bedroom Unit 1019 SF 1 Bedroom Unit 1019 SF 1 Bedroom Unit 1019 SF 1 Bedroom Unit 1019 SF 1 Bedroom Unit 1024 SF 1 Bedroom Unit 1018 SF 1 Bedroom Unit 1018 SF 1 Bedroom Unit 1014 SF 1 Bedroom Unit 1025 SF 1 Bedroom Unit 1025 SF 1 Bedroom Unit - ADA 1784 SF 1 Bedroom Unit - ADA 1784 SF 2 Bedroom Unit 1960 SF 2 Bedroom Unit 2085 SF 2 Bedroom Unit 2085 SF 2 Bedroom Unit 2061 SF 2 Bedroom Unit 2047 SF 2 Bedroom Unit - ADA 2081 SF 2 Bedroom Unit - ADA 2070 SF 3 Bedroom Unit 3091 SF 3 Bedroom Unit ADA 3981 SF 3 Bedroom Unit 3126 SF 3 Bedroom Unit 3402 SF 3 Bedroom Unit 3122 SF Back of House & Amenity Security 1400 SF Housing Staff 500 SF Cleaning Supply Rooms 400 SF Housing Office 1159 SF Bar/Kitchen Storage 698 SF Residence Fitness Center 2962 SF Security 1634 SF Bike Storage & Lockers 4558 SF Uber Ordering 698 SF Kitchen 1067 SF Stor. 88 SF Bike Shop Storage 332 SF Freezer 123 SF Rooftop Bar/Lounge 31886 SF Conveinence Store 2118 SF Bike Shop 2260 SF Bike Lounge 5577 SF Dedicated Working Spaces 5941 SF Fitness Center 2754 SF Sauna 156 SF Game Lounge 2140 SF Laundry Room 238 SF Spa 612 SF Laundry 316 SF Dedicated Working Spaces 7251 SF Conference Space 642 SF Game Lounge 2381 SF Dedicated Working Spaces 6389 SF Game Lounge 2818 SF Dedicated Working Space 6675 SF Public Private/residentialspace space

Floor 1 N

Floor 1 - Lounge

Floor 1 - Bar

Floor 1 - Entry

First floor qr code

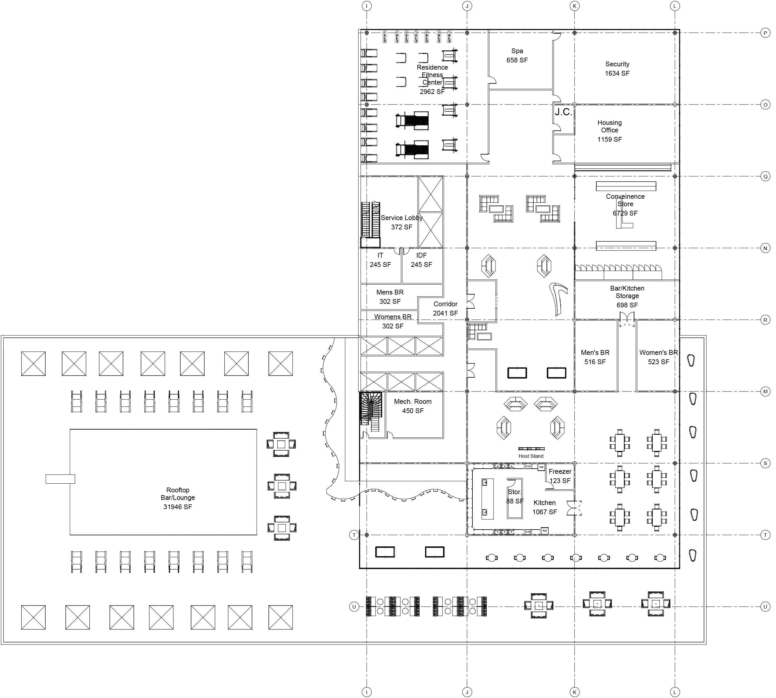
Floor 5

Rooftop deck View of Rooftop deck

Rooftop deck

Restaurant

Convenience store

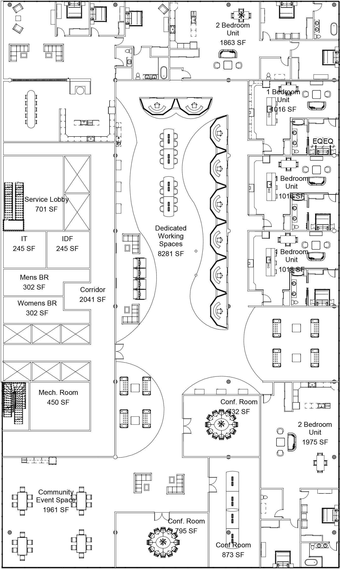
Floor 6 & 8

Work floor (floors 6 & 8)

residence

Residence

Floor 7 & 9

lounge floor (floors 7 & 9)

Residence

Residence Bathroom

Floor 10

Penthouse Living room

Penthouse kitchen

Penthouse Bathroom

North section LevelLevel0'0"340'0" E F G H Level 5 68' 152'124'Level0"90"Roof0" J K L DCBA Level 2 26' Level0"454'0" Level Work82'Floor0"Level10138'0"Level8110'0"Level 7 LoungeFloor96'0" Bike lounge & shop Rooftop Restaurant/lounge Connection between entertainment and residences Level 9 124' Level152'Roof0"0"10138'0"Level8 Level 9 124' Level152'Roof0"0"10138'0"Level8110'0" Level LoungeFloor96'0" Private space Public space Security J.C.

North section - Rendered CommunityCommunityPenthouseCenterLoungeGymCenter Service Lobby Housing Office J.C. Host Stand

Materials

FIRST FLOOR WALKTHROUGH

Turn static files into dynamic content formats.

Create a flipbook
Issuu converts static files into: digital portfolios, online yearbooks, online catalogs, digital photo albums and more. Sign up and create your flipbook.
545 Wyn - Thesis Design Chris Anderson by ChrisAnderson1170 - Issuu