
Ottera
Quartier



S o m m a i r e
![]()

Ottera
Quartier



S o m m a i r e
Plans d’unité par type
Prix des unités
Inclusions

P e r s p e c t i v e s



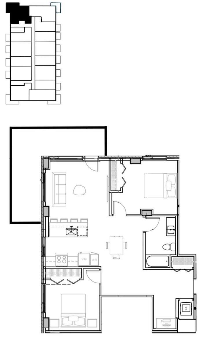
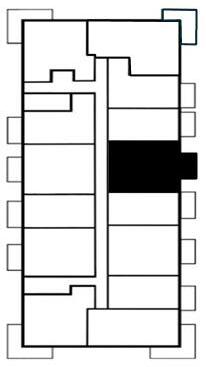
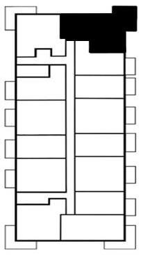
l a n Ă© t a g e 1


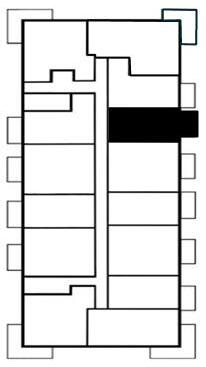
P l a n d e s Ă© t a g e s 2 Ă 7


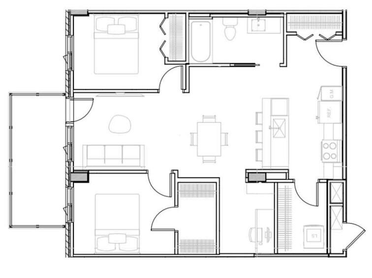
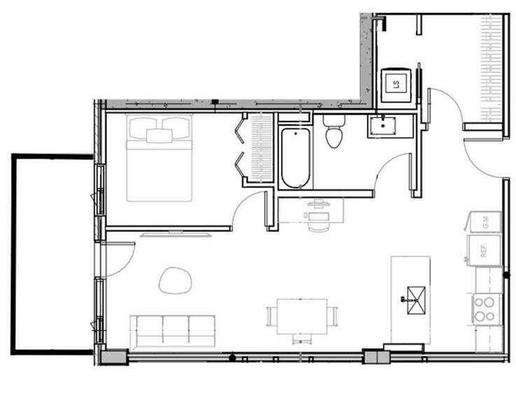
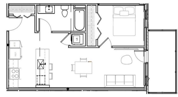
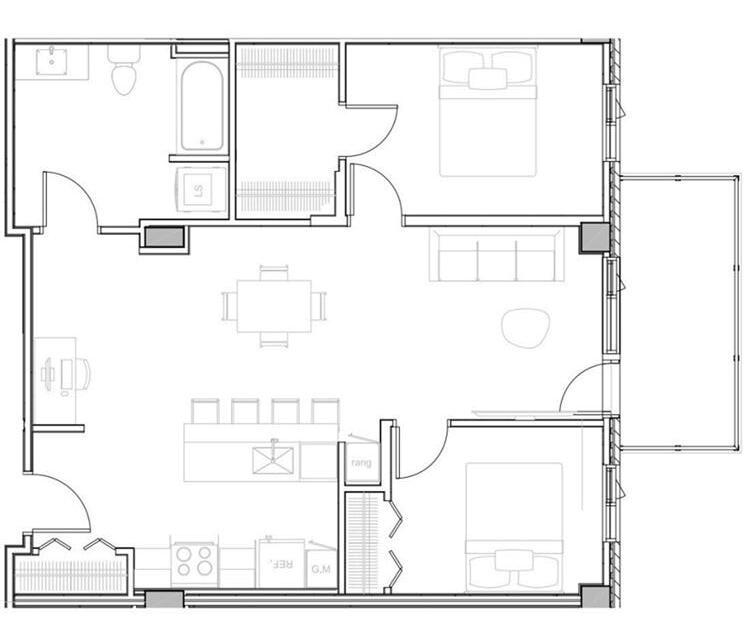
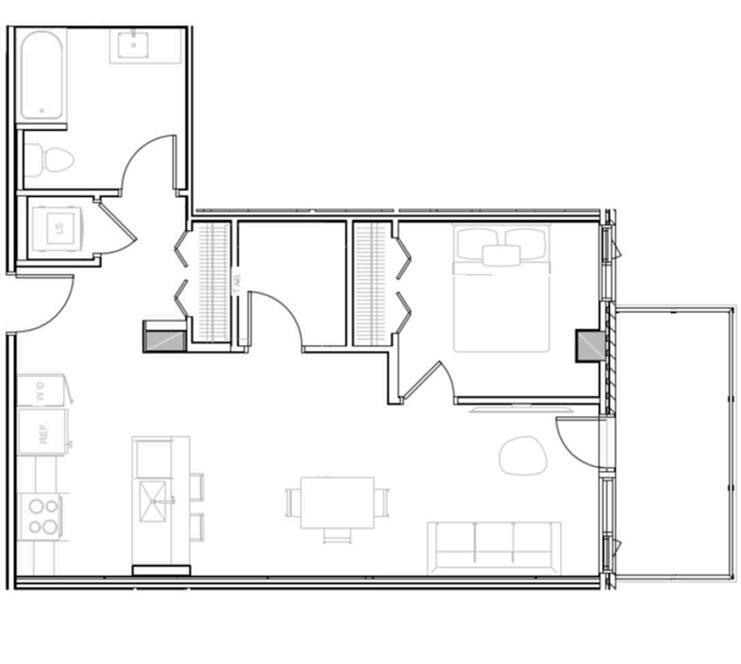
P l a n d ’ u n i t éT y p e A





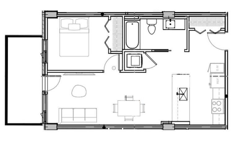
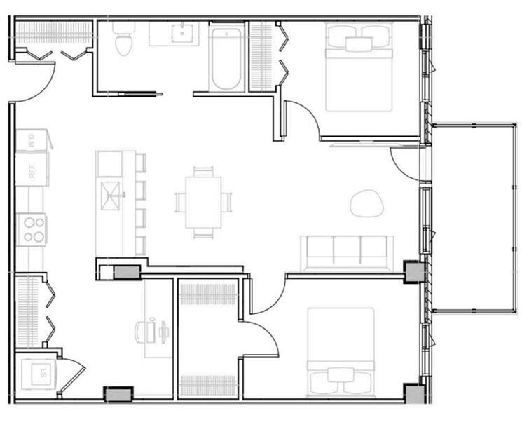
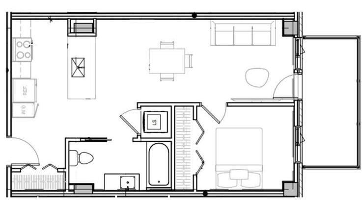
a n d ’ u n i t éT y p e B





n



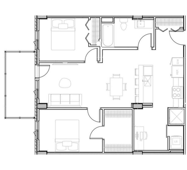
a n d ’ u n i t éT y p e D




n d ’ u n i t éT y p e E



P l a n d ’ u n i t éT y p e F


n i t Ă© ( s ) l o c a t i v e ( s )

i


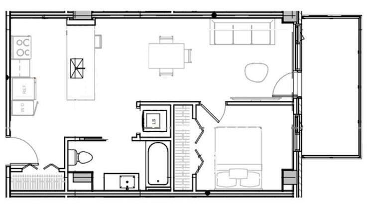
P l a n d ’ u n i t éT y p e H





n



P l a n d ’ u n i t éT y p e K




P l a n d ’ u n i t éT y p e L




a n d ’ u n i t éT y p e M




P l a n d ’ u n i t éT y p e N




a n d ’ u n i t éT y p e O




P l a n d ’ u n i t éT y p e P



Ces tarifs comprennent une place de stationnement en extérieur ainsi que les taxes

Ces tarifs comprennent une place de stationnement en extérieur ainsi que les taxes. P r i x d e s u n i t é s

Ces tarifs comprennent une place de stationnement en extérieur ainsi que les taxes. P r i x d e s u n i t é s

Hall & vestibule
Plancher en céramique, mur de gypse peint, avec accent varié
Plafond de gypse
Casiers postaux individuels regroupés
Boîtes de réception de colis de différents formats
Système d’interphone et contrôle d’entrée
Système de contrôle d’accès à puce (sur les espaces communs uniquement)
Système de télésurveillance couvrant les principales portes communes, les aires communes du bâtiment et les salles de rangements communs
Corridors communs
l u s i o n s
Plancher de tapis de gamme commerciale
Murs finis en gypse peint
Plafonds de gypse peint
Éclairage économie d’énergie
Aires communes RDC
Lobby
Bureau du gestionnaire
Espace de rencontre de groupe
Autres
Stationnements intérieurs disponibles (en supplément)
Espaces de rangement disponibles
Ascenseur

La porte d’entrée de l’unité sera en MDF à âme pleine avec serrure
Les portes intérieures seront à âme creuse
Les boiseries seront de MDF de profil moderne
Quincaillerie selon la gamme du constructeur
Les murs et portes seront peintes blanches
Le revĂŞtement de plancher est en vinyle
Cuisine
Armoires et cabinets en panneaux laminés pleine hauteur
Les dessus du comptoir de cuisine seront en stratifié compact
Ilot fonctionnel avec lavabo et lave-vaisselle incrusté (lave-vaisselle non inclus)
Les revêtements d’îlot seront de stratifié compact
Evier cuve optimisé en acier inoxydable à montage sous le comptoir
Robinet contemporain Ă mitigeur unique avec jet
Les portes et tiroirs seront pourvus d’une quincaillerie lente pour fermeture à action lente
Hotte de cuisine en castrée
Salle de bain
Miroir avec caisson de 3 tablettes
Les salles de bain seront équipées de bains-douches
Les condos de type P auront en plus d’un bain-douche, une douche en verre avec drain central
Vanité de laminé avec tiroirs selon l’aménagement de l’unité
Lavabo avec robinetterie Ă mitigeur unique
Pharmacie en surface au design européen avec miroir pour chaque salle de bain et salle d’eau
Toilette aux lignes épurées et réservoir isolé

Fondations
Fondations en béton armé tel que prévu par l’ingénieur en structure
Finis extérieurs et toits
Revêtement extérieur composé principalement de brique et de revêtement métallique en accord avec l’esprit du projet d’ensemble
Les planchers des balcons seront en béton
Les garde-corps des balcons seront en métal et en verre
Vitrage performant écoénergétique
Fenêtres ouvrantes ou fixes selon le cas et portes de balcon avec cadre composite (intérieur blanc)
Structure
Dalles en béton armé de 9’’pouces tel que prévu par l’ingénieur en structure avec membrane acoustique
Cloisons
Les cloisons mitoyennes d’insonorisation entre les unités sont à ossature, désolidarisées, insonorisées et à double gypse
Hauteur de plafond
Les plafonds des unités seront à 8’-8'' sauf dans les endroits où il y a des retombées.
Système central de chauffe-eau électrique dans l’immeuble. L’eau chaude est incluse dans les frais de condo. I n c l u s i o n s

La ventilation des unités sera assurée par un échangeur d’air. Système d'évacuation séparé pour les hottes.
Une thermopompe réversible (climatisation, chauffage) avec tête murale, généralement située dans l'aire de vie principale, est incluse dans toutes les unités Les condenseurs seront installés sur les balcons, au toit ou au sous-sol, selon la position de l’unité.
Éclairage
Appareil de type suspension au-dessus de l’ilot
Luminaire de type encastré dans l’entrée
Plafonniers dans la salle de bain
Suspensions au-dessus de la vanité de salle de bain
Applique mural vanité de la salle de bain
Interrupteur relié à une prise dans les chambres
L’immeuble sera protégé par un système de caméras, qui seront situées dans les étages de stationnement, les espaces communs et corridors de l’immeuble. I n c l u s i o n s
1 Sortie de téléphone/réseau dans le salon
1 Sortie de téléphone ou il y a possibilité d’installer un bureau
1 Prise double dans l’ilot munie d’une prise USB
Le chauffage sera par plinthes électriques et thermostats digital.
Protection incendie
Le bâtiment sera protégé par un système de protection incendie complet, selon les normes et codes du bâtiment en vigueur.
Intercom -accès au bâtiment
Système d’interphone et contrôle d’entrée
Caméras de surveillance
Tous les choix de revêtements et de finis peuvent varier de sorte que le produit final peut différer des spécifications évoquées dans ce document. Toutes les caractéristiques et tous les éléments de finition sont sujets à des modifications sans préavis. Dans certaines circonstances hors de la volonté du promoteur, des substitutions de matériaux, de qualité égale ou supérieure pourront être imposées
Notes:
